Ingressi Automatici Pedonali Innovativi
 Soluzioni FAAC per ingressi automatici
 Punti di Forza
 Video
Sommario
SOLUZIONI FAAC PER INGRESSI AUTOMATICI
DOPPIA ANTA SCORREVOLE
SOLUZIONI FAAC PER INGRESSI AUTOMATICI
SINGOLA ANTA SCORREVOLE
SOLUZIONI FAAC PER INGRESSI AUTOMATICI
ANTE TELESCOPICHE (AIR A140T)
SOLUZIONI FAAC PER INGRESSI AUTOMATICI
INGRESSI A BATTENTI (950N)
SOLUZIONI FAAC PER INGRESSI AUTOMATICI
PROFILI LEGGERI (TK20)
SOLUZIONI FAAC PER INGRESSI AUTOMATICI
PROFILI PESANTI (TK50)
SOLUZIONI FAAC PER INGRESSI AUTOMATICI
FILO LUCIDO TUTTO VETRO
SOLUZIONI FAAC PER INGRESSI AUTOMATICI
USCITE DI SICUREZZA – SFONDAMENTO TOTALE
SOLUZIONI FAAC PER INGRESSI AUTOMATICI
INGRESSI SEMI-CIRCOLARI
 Soluzioni FAAC per ingressi automatici
 Innovazioni FAAC
 Video
Sommario
RISPARMIO
ENERGETICO
SOLUZIONE
COSTRUTTIVA
INTEGRATA
SEMPLIFICAZIONE
PROGETTUALE
DELL’INGRESSO
RIDUZIONE
INGOMBRI
RIDUZIONE
INTERVENTI
MANUTENTIVI
RETROFIT
INGRESSI
ESISTENTI
 SW intelligente che controlla il movimento delle ante 
scorrevoli
 Riconoscimento della direzione del pedone 
(avvicinamento, allontanamento e passaggio laterale)
 Conseguente riduzione del tempo di apertura 
complessivo delle ante, riduzione delle false aperture
 Forte risparmio sui costi (termici) di gestione
 Soluzioni FAAC per ingressi automatici
 Punti di Forza
 Video
Sommario
DOMANDE?
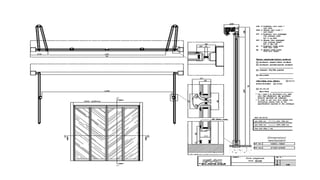
AIR SLIDE INGRESSO AUTOMATICO CON LAMA
D’ARIA INTEGRATA NEL SERRAMENTO
Airslide disegno tecnico
INGRESSO AUTOMATICO CON
MOVIMENTO DELLE ANTE A
LIBRO O SOFFIETTO
INGRESSO A SOFFIETTO
Porta
chiusa
Porta aperta a
sfondamento come
uscita di sicurezza
INGRESSO AUTOMATICO CON
MOVIMENTO DELLE ANTE
ROTOTRASLANTI
INGRESSI SPECIALI ROTOTRASLANTI
INGRESSI SPECIALI
ANTIPANICO
USCITA SICUREZZE
CON RIPRISTINO AUTOMATICO
GRAZIE A TUTTI PER LA PARTECIPAZIONE
BUON LAVORO
Marco Melotti  +393406378483
marco.melotti@faacgroup.com

Faac workshop palermo