CONCRETO ARMADO:
CONCRETO : f'c = 210 kg/cm
CEMENTO TIPO I
CONCRETO CIMENTACION : f'y = 280 kg/cm2
CEMENTO TIPO V
IMPERMEABILIZAR CON ADITIVO
APLICAR PINTURA ASFÁLTICA IMPERMEABLE
AISLAR EL CIMIENTO CON 3 CAPAS DE PLÁSTICO.
ACERO DE REFUERZO : f'y = 4,200 kg/cm2
CONCRETO SIMPLE:
SOBRECIMIENTO : f'c = 175 kg/cm2
CIMIENTO CORRIDO : f'c = 100 kg/cm2 + 30% P.M. (T.M. 6")
FALZA ZAPATA : C:H: 1:12 + 30% P.G. (T.M. 8")
ALBAÑILERÍA:
1. MUROS PORTANTES
UNIDADES DE ALBAÑILERÍA TIPO IV,
CON MÁXIMO 25% DE HUECOS
MORTERO TIPO P1 (1:4 CEMENTO-CAL NORMALIZADA-ARENA)
PARA LA ELECCIÓN DEL TIPO DE CEMENTO A USAR EN LA
CIMENTACIÓN, DEBERÁ REVISARSE EL ESTUDIO DE SUELOS
CORRESPONDIENTE.
f'm = 65 kg/cm2
f'b = 130 kg/cm2
2. MUROS NO PORTANTES:
UNIDADES DE LADRILLO PANDERETA.
EN GENERAL LAS COLUMNAS SE LLENARÁN DENTADAS CON LOS
MUROS, Y SE AMARRARÁN CON ALAMBRE # 8 @ 3 HILADAS
RECUBRIMIENTO:
COLUMNETAS Y VIGAS DE CONFINAMIENTO 2.0 cm
COLUMNAS Y VIGAS ESTRUCTURALES 4.0 cm
ZAPATAS Y CIMENTACIÓN EN MUROS C.A. 7.0 cm
PLACAS Y ESCALERAS 3.0 cm
ALIGERADO, VIGAS CHATAS Y LOSAS 2.0 cm
MUROS EN CONTACTO CON EL TERRENO 4.00 cm
CARACTERÍSTICAS DE LOS ENCOFRADOS:
LOS ENCOFRADOS SE USARÁN DONDE SEA NECESARIO PARA
CONFINAR EL CONCRETO, DARLE LA FORMA DE ACUERDO A LAS
DIMENSIONES REQUERIDAS, SE USARÁ LA NORMA ACI-347-68.
ESTOS DEBEN TENER LA CAPACIDAD SUFICIENTE PARA RESISTIR
LA PRESIÓN RESULTANTE DE LA COLOCACIÓN Y VIBRADO DEL
CONTROL Y DEBEN TENER LA SUFICIENTE RIGIDEZ PARA MANTENER
LAS TOLERANCIAS ESPECIFICADAS.
LOS CORTES DE TERRENO NO DEBEN SER USADOS COMO
ENCOFRADOS PARA SUPERFICIES VERTICALES A MENOS QUE SEA
REQUERIDO O PERMITIDO.
PROTECCIÓN Y CURADO:
SE EXIGIRÁ QUE TODO ELEMENTO ESTRUCTURAL DEL CONCRETO
SEA CORRECTAMENTE PROTEGIDO DESDE EL MOMENTO DE
VACEADO EN LOS ENCOFRADOS, PRINCIPALMENTE DE LA ACCIÓN
Y AGENTES ATMOSFÉRICOS QUE DIFICULTAN EL PROCESO DE
CURADO. PARA ELLO PODRÁN UTILIZARSE ARPILLERAS O
MATERIALES SIMILARES COMO PELÍCULA DE PVC O MANTOS DE
ARENA EN CONTACTO DIRECTO CON LA ESTRUCTURA Y
MANTENIÉNDOLAS SATURADAS CON AGUA POTABLE. DE ESTA FORMA
SE CREARÁN PELÍCULAS LÍQUIDAS SOBRE LAS SUPERFICIES
EXPUESTAS O EVAPORACINES.
SE MANTEDRÁ ASI EL CONCRETO CONTINUAMENTE HUMEDECIDO
(Y NO PERIÓDICAMENTE), POSIBILITANDO Y FAVORECIENDO SU
ENDURECIMIENTO, EVITANDO EL AGRIETAMIENTO.
ESTE PERIODO DE CURADO SE MANTENDRÁ COMO MÍNIMO EN LAS
CONDICIONES ANTES MENCIONADAS DURANTE 7 DÍAS.
CAPACIDAD PORTANTE DEL TERRENO:
Vt =0.80 kg/cm2
SOBRECARGAS:
INDICADAS
EMPALMES Y TRASLAPES:
50 DIÁMETROS MÍNIMOS
PARÁMETROS SISMICOS:
ZONIFICACIÓN Z = 0.45 (Zona 4)
COEFICIENTE DE REDUCCIÓN
Rxx = 4.50
Ryy = 4.50
CATEGORÍA "C" (USO) U = 1.0
AMPLIFICACIÓN SÍSMICA C = 2.50
FACTOR DE AMPLIFICACIÓN DEL SUELO S = 1.05
SISTEMA ESTRUCTURAL:
PÓRTICOS DE CONCRETO ARMADO - DIRECCION X-X
MUROS DE ALBAÑILERIA CONFINADA - DIRECCION Y-Y
DESPLAZAMIENTO MÁX. ULTIMO NIVEL 0.0367 m
DESPLAZAMIENTO MÁX. RELATIVO ENTREPISO EN X: 0.005
DESPLAZAMIENTO MÁX. RELATIVO ENTREPISO EN Y: 0.001
REGLAMENTO Y NORMAS:
DE ACUERDO AL R.N.E. EN LAS NORMAS PERUANAS DE EDIFICACIÓN
E-020 (CARGAS), E-030 (SISMO), E-050 (SUELOS Y CIMENTAC.),
E-060 (CONCRETO ARMADO) Y E-070 (ALBAÑILERÍA).
ESPECIFICACIONES TÉCNICAS
Y
X
1/4"
Ø
3/8"
1/2"
aR
2 cm
3 cm
4 cm
10 cm
15 cm
18 cm
VIGAS Y COLUMNAS
ESC. 1/50
DOBLADO DE ESTRIBOS
a
45°
45°
R
Ø DE COLUMNA
O VIGA
Cimiento de
escalera E2
ALMACEN 1
ALMACEN 2
ALMACEN 3
AREA DE TRABAJO
ENTREVISTA PERSONAL
ANDAMIOS
ELEVADORES
BAÑO Y VESTIDOR
DESCARGA
C-1
C-1
ESC. 1/50
N.F.P.=+0.10
N.F.P.=+0.10
N.F.P.=+0.10
N.F.P.=+0.10
N.F.P.=+0.10
N.F.P.=+0.10
N.F.P.=+0.10
N.F.P.=+0.10
C-1
C-1
C-1 C-1(R)
C-1
C-1
C-1
C-2
C-2
C-2
C-3
C-3
C-3
C-5C-5 C-4
C-4
C-4
C-1
C-6
C-a C-a C-a C-a C-a
C-1
6
5
4
3
1
2
1
2
3
4
5
6
B FD
E GA C
2.06 6.54 4.20
3.053.85
4.82
4.80
3.46
3.05
3.85
4.82
4.803.46
5.60 5.60
11.20
12.80
VCM-1VCM-1
1.50
2.00
2.00
1.50
1.50
Z-1
Ø5/8"@0.20
(Inf.) Ø5/8"@0.20
(Inf.)
1.30
Ø5/8"@0.20
(Inf.)
1.50
Ø5/8"@0.20
(Inf.)
1.30
1.50
1.30
Ø5/8"@0.20
(Inf.)
3.85
1.50
VCM-1
Ø5/8"@0.20
(Inf.)
Ø5/8"@0.20
(Inf.)
Ø5/8"@0.20
(Inf.)
Ø5/8"@0.20
(Inf.)
2 2
2
2
2
2
2 2
2 2
2 2
1.80
1.50
1.80
1.50
1.80
1.50
1.80
1.80
Ø5/8"@0.20
(Inf.)
1
1
1
1
1.50
1.50
Ø5/8"@0.20
(Inf.)
Z-3
Z-3
1.50
1.30
Ø5/8"@0.20
(Inf.)
Z-3
Z-2
Z-3
Z-8
Z-8
Z-8
2 2
VCM-1
1.30
Ø5/8"@0.20
(Inf.)
2 2
2 2
1.50
2.75
Ø5/8"@0.20
(Inf.)
1.20
1.50
1.50
Ø5/8"@0.20
(Inf.)
1.40
Cimiento de
escalera E1
1.30
2.85
2 2
Ø5/8"@0.20
(Inf.)
Z-3 Z-3
Z-4
Z-3
Z-4
Z-8
Ø5/8"@0.20
(Inf.)
1.20
1.40
Ø5/8"@0.25
(Inf.)
1.20
1.40
Ø5/8"@0.25
(Inf.)
Z-5
Z-6 Z-6 Z-7
2
11
2
Cimiento de
escalera E3
3 3
3 3
3 3
3 3
3
3
1.50
1
1
1 1
Ubicación de
Cisterna
Muro de Albañileria
confinada
Concreto Ciclópeo
Concreto Armado
N.F.Z. NIVEL FONDO ZAPATA
LEYENDA
N.F.P. NIVEL FALSO PISO
N.F.F.Z. NIVEL FONDO FALSA ZAPATA
N.T.N. NIVEL DE TERRENO NATURAL
N.L. NIVEL DE LOSA
N.F.V. NIVEL DE FONDO DE VIGA
Losa Maciza e=0.20m
Tabique no estructural
5/8"
Ø
3/4"
Ldb(cm)G(cm)
37
44
40
50
1/4"
3/8"
1/2"
20
22
30 32
Ldb
G
SECCIÓN
CRÍTICA
Cuadros de ganchos standar
en varillas de fierro corrugados
NOTA:
EL ACERO DE REFUERZO UTILIZADO EN
FORMA LONGITUDINAL COLUMNA, DEBERÁN
TERMINAR EN GANCHOS STANDAR, LOS
CUALES SE ALOJARÁN EN LA CIMIENTO
DE CONCRETO CON LAS DIMENSIONES
ESPECIFICADAS EN EL CUADRO ANTERIOR.
30
30
PISO
TIPO
1ER PISO
C-1
CUADRO DE COLUMNAS
C-2 C-3 C-4 C-5
ESC : 1/25
2DO PISO
3ER PISO
4TO PISO
AZOTEA
Nomenclatura:
Ext. : Indica barrilas en las esquinas de la columna
Int.: Indica barras sobre los lados de la columna.
0.30
0.50
12ø5/8"
2 ø3/8":1@.05, 5@.10,
R@.20
10ø5/8"
2 ø3/8":1@.05, 5@.10,
R@.20
8ø5/8"
2 ø3/8":1@.05, 5@.10,
R@.20
8ø5/8"
2 ø3/8":1@.05, 5@.10,
R@.20
0.40
0.50
10ø5/8"
2 ø3/8":1@.05, 5@.10,
R@.20
0.30
0.50
0.30
0.50
0.30
0.50
0.40
0.50
10ø5/8"
2 ø3/8":1@.05, 5@.10,
R@.20
0.40
0.50
10ø5/8"
2 ø3/8":1@.05, 5@.10,
R@.20
0.25
0.50
8ø5/8"
2 ø3/8":1@.05, 5@.10,
R@.20
0.25
0.50
8ø5/8"
2 ø3/8":1@.05, 5@.10,
R@.20
0.25
0.50
8ø5/8"
2 ø3/8":1@.05, 5@.10,
R@.20
0.25
0.50
8ø5/8"
2 ø3/8":1@.05, 5@.10,
R@.20
0.25
0.50
8ø5/8"
2 ø3/8":1@.05, 5@.10,
R@.20
0.40
0.30
8ø5/8"
2 ø3/8":1@.05, 5@.10,
R@.20
0.30
0.30
8ø5/8"
ø3/8":1@.05, 5@.10,
R@.20
0.30
0.30
8ø5/8"
ø3/8":1@.05, 5@.10,
R@.20
0.40
0.30
8ø5/8"
2 ø3/8":1@.05, 5@.10,
R@.20
0.20
0.55
8ø5/8"
2 ø3/8":1@.05, 5@.10,
R@.20
0.20
0.25
4ø5/8"
ø3/8":1@.05, 5@.10,
R@.20
0.20
0.25
4ø5/8"
ø3/8":1@.05, 5@.10,
R@.20
0.20
0.25
4ø5/8"
ø3/8":1@.05, 5@.10,
R@.20
0.15
6ø1/2"
ø1/4":1@.05, 5@.10, R@.25
0.15
0.30
6ø1/2"
ø1/4":1@.05, 5@.10, R@.25
6ø1/2"
ø1/4":1@.05, 5@.10, R@.25
0.15
0.30 0.30
6ø1/2"
ø1/4":1@.05, 5@.10, R@.25
0.30
0.15
6ø1/2"
ø1/4":1@.05, 5@.10, R@.25
0.30
0.15
8ø1/2"
ø1/4":1@.05, 5@.10, R@.25
ESC : 1/25
C-6 (.20x.40)
0.40
0.20
4ø5/8"
ø3/8":1@.05, 5@.10, R@.25
0.25
0.25
ESC : 1/25
C-7 (.30x.30)
0.30
0.50
12ø5/8"
2 ø3/8":1@.05, 5@.10, R@.20
ESC : 1/25
C-1(R) (.30x.50)
6ø1/2"
ø1/4":1@.05, 5@.10, R@.25
0.30
0.15
ESC : 1/25
C-a (.15x.30)
N.F.P.=+0.10
0.30 0.30
Re .20 C/E
1@.05
5@.10
1@.05
ESC. 1/25
0.50
DETALLE DE ZAPATA
SOLADO0.10
VER EN PLANTA
0.10
COLUMNA
NFC=-1.20
5/8"@0.20
0.70
0.10
RELLENO
COMPACTADO
CORTE 2-2
0.70
0.30
0.10
0.60
Concreto ciclopeo 1:10
30% piedra grande.
ESC. 1/25
0.50
0.15
4Ø1/2"+2Ø3/8"
Ø3/8"@.25
ESC. 1/25
CORTE 1-1
0.70
0.30
0.10
0.50
Concreto ciclopeo 1:10
30% piedra grande.
0.60
0.15
2Ø3/8"4Ø1/2"+2Ø3/8"
Ø3/8"@.25 2Ø3/8"
NFP=+0.10 NFP=+0.10
NFC=-1.00NFC=-1.00
VSC-1
VSC-1
ESC. 1/25
CIMENTACION DE TABIQUES
0.10 / 0.15
0.20
0.10
0.40
0.10 0.40 0.10
2Ø3/8"Ø3/8"@0.30
0.30
Ø de Columneta
CORTE 3-3
0.10
ESC. 1/25
0.10
DETALLE- ENCUENTRO
DE VIGA DE CIMENTACION
CON ZAPATA
0.50
VER PLANTA VER PLANTA
0.50
8Ø5/8"+2Ø1/2"
Ø3/8": 1@.05, 4@.10, 6@.15, R@.25
0.25
ESC. 1/25
VCM-1
2Ø1/2"
VCM-1
N.F.Z.=-1.20
0.50
VCM-1
ESCALA:
INDICADA
FECHA:
Nº DE LAMINA:
01 DE 05
PLANO:
ESPECIALIDAD:
FIRMA DEL PROFESIONAL RESPONSABLE:
UBICACIÓN:
PROYECTO:
FIRMA DEL PROPIETARIO:
OCTUBRE 2020
OFICINAS Y TALLERES
TD ENERGY
ING. VICTOR ALEJANDRO C.
ASOCIACION PRO VIVIENDA
LOS CLAVELES MZ S LT 15,
LURIN, LIMA
E-01
ESTRUCTURAS
CIMENTACION
DISEÑO:
TENSORCORP
INGENIEROS
ING. MARCO A. RUIZ MONTOYA
5/8"
Ø
3/4"
Ldb(cm)
60
70
3/8"
1/2" 45
Ldb
Cuadro de Longitud de Desarrollo
en varillas de fierro corrugados
35
1" 112
1. La Longitud de Desarrollo para barras corrugadas y
alamabres corrugados a traccion.
2. Para concreto f'c=210 kg/cm2
NOTA:
5/8"
Ø
3/4"
Ldb(cm)G(cm)
20
25
35
40
1/4"
3/8"
1/2"
10
12
15 28
Ldb
GSECCIÓN
CRÍTICA
Cuadro de ganchos standar
en varillas de fierro corrugados
21
12.5
ELEVADOR
DE CARGA
C-1
C-1
C-1
C-1
C-1
C-1
C-1
C-1
C-2
C-2
C-2
C-3
C-3
C-3
C-5
C-5
C-4
C-4
C-4
C-1
C-6
C-a C-a C-a C-a C-a
6
5
4
3
1
ENCOFRADO 1ER PISO
NIVEL: +3.15
ESC. 1/50
S/C:200 kg/m2
V-1 (0.25x0.50)
V-1 (0.25x0.50)
V-1 (0.25x0.50)
V-1 (0.25x0.50) V-1V-1
V-1(0.25x0.50)V-1(0.25x0.50)
V-1 V-1 V-1
V-2(0.20x0.40)
V-2(0.20x0.40)
V-2(0.20x0.40)
V-2(0.20x0.40)
V-2(0.20x0.40)
V-2 (0.20x0.50)V-2 (0.20x0.40)
V-2(0.20x0.40)
V-2(0.20x0.40)
V-2(0.20x0.40)
V-2(0.20x0.40)
V-2(0.20x0.40)
V-3(0.20x0.50)
V-1(0.25x0.50)
V-1(0.25x0.50)
VCH-2(0.30x0.20)
VCH-3 VCH-3
C-1(R)
C-1
2
1
2
3
4
5
6
B FD
E GA C
1.20
1Ø1/2"
0.70
1Ø3/8"
1Ø1/2"
1.20
1Ø1/2"
0.900.95
1Ø1/2"
1Ø1/2"
0.70
0.95
1Ø1/2"
1Ø1/2"
0.90
1Ø1/2"
1Ø1/2"
0.95
1Ø1/2"
1Ø1/2"
0.90
1Ø1/2"
1.00
1Ø1/2"
1Ø1/2"
1.00
1Ø1/2"
VCH-2
VCH-2(0.30x0.20)
1Ø1/2"
1Ø1/2"
0.80
1Ø1/2"
0.80
1Ø1/2"
1Ø1/2"
0.80
1Ø1/2"
1Ø1/2"
1Ø1/2"
1.000.801.00
1Ø3/8"
1Ø3/8"
1Ø3/8"
1Ø3/8"
V-2(0.20x0.40)
V-1
V-1
V-1
A
A
ESCALERAE3
TRAMO3
ESCALERA E3
TRAMO 2
ESCALERAE3
TRAMO1
ESCALERAE1
TRAMO2
ESCALERAE1
TRAMO1
ESCALERA E2
TRAMO 1
ESCALERAE2
TRAMO2
ESCALERA E2
TRAMO 3
ELEVADOR
DE CARGA
C-1 C-2 C-3 C-4
V-6 (0.25x0.50)
C-1
C-2
V-2(0.20x0.40)
V-2(0.20x0.40)
C-1 C-1
C-2
V-5 (0.25x0.50)
V-1(0.25x0.50)
V-2(0.20x0.40)
V-2(0.20x0.40)
C-1 C-1
V-1(0.25x0.50)
V-2(0.20x0.40)
V-2 (0.20x0.40)V-2 (0.20x0.40)
V-2(0.20x0.40)
V-4
V-2(0.20x0.40)
V-2(0.20x0.40)
V-6 (0.25x0.50)
C-4
C-4
ENCOFRADO 2DO PISO
NIVEL: +5.90
ESC. 1/50
S/C:200 kg/m2
C-1
C-3
C-5C-5
V-2(0.20x0.40)
V-2(0.20x0.40)
V-5 (0.25x0.50)
V-1(0.25x0.50)
V-1 (0.25x0.50) V-1V-1 V-1
C-1 C-3C-1
V-7 (0.25x0.50)
V-3(0.20x0.50)
V-1(0.25x0.50)
V-7 (0.25x0.50)
C-a
V-1(0.25x0.50)V-1(0.25x0.50)
VCH-2(0.30x0.20)
C-1(R)
C-1
6
5
4
3
1
2
1
2
3
4
5
6
B FD
E GA C
1.20
1Ø1/2"
0.85
1Ø1/2"
1.05
1Ø1/2"1Ø1/2"
0.85
1Ø1/2"
1Ø1/2"1Ø1/2"1Ø1/2"
1.05
1Ø1/2"
1Ø1/2"
1.60
1Ø1/2"
1.05
1Ø1/2"
1Ø1/2"
1.00
1Ø1/2"
1.501.501.601.60
V-4 (0.25x0.50)
1Ø1/2"1Ø1/2"
1.201.20
1Ø1/2"1Ø1/2"
0.85
1.60
1.00
1Ø1/2"
1.00
VCH-2 (0.30x0.20)
1Ø1/2"1Ø1/2"
1.20
1Ø1/2"
1Ø1/2"
1Ø1/2"
1.20
1Ø1/2"1Ø1/2"
1.20
1Ø1/2"
1Ø1/2"
0.40
1Ø1/2"
1Ø1/2"
VCH-1(0.20x0.20)
VCH-1
VCH-1(0.20x0.20)
VCH-1(0.20x0.20)
0.85
1Ø1/2"
1Ø1/2"
1Ø1/2"
0.85
1Ø1/2"
0.85
1Ø1/2"
V-2(0.20x0.40)
A
A
A
A
A
A
VCH-1(0.20x0.20)
1.07
VCH-1(0.20x0.20)
ESCALERAE3
TRAMO6
ESCALERA E3
TRAMO 5
ESCALERAE3
TRAMO5
ESCALERAE1
TRAMO4
ESCALERAE1
TRAMO3
ESCALERA E2
TRAMO 4
ESCALERAE2
TRAMO5
ESCALERA E2
TRAMO 6
1Ø3/8"
0.700.70
1Ø3/8"
0.700.70
1Ø3/8"
0.700.70
Muro de Albañileria
confinada
Concreto Ciclópeo
Concreto Armado
N.F.Z. NIVEL FONDO ZAPATA
LEYENDA
N.F.P. NIVEL FALSO PISO
N.F.F.Z. NIVEL FONDO FALSA ZAPATA
N.T.N. NIVEL DE TERRENO NATURAL
N.L. NIVEL DE LOSA
N.F.V. NIVEL DE FONDO DE VIGA
Losa Maciza e=0.20m
Tabique no estructural
0.30
4ø5/8"(Ext)+4ø1/2"(Int)
Ø3/8":1@.05, 10@.10,4@.15
R@.20 C/E
V-1 (0.25x0.50)
ESC. 1/25
0.20
0.25
6ø1/2"
Ø1/4":1@.05, 11@.10,4@.15
R@.20 C/E
VCH-2 (0.30x0.20)
ESC. 1/25
0.20
0.30
0.20
2ø1/2"
Ø1/4":1@.05, R@.20 CE
CORTE A-A
ESC. 1/25
0.15
0.05
4ø1/2"
Ø1/4":1@.05, 11@.10,4@.15
R@.20 C/E
VCH-1 (0.20x0.20)
ESC. 1/25
0.20
0.20
0.20
6ø1/2"
Ø1/4":1@.05, 10@.10,4@.15
R@.20 C/E
V-2 (0.20x0.40)
ESC. 1/25
0.20
0.20
0.30
8ø1/2"
Ø1/4":1@.05, 10@.10,4@.15
R@.20 C/E
V-3 (0.20x0.50)
ESC. 1/25
0.20
0.20
8ø1/2"
Ø1/4":1@.05, 11@.10,4@.15
R@.20 C/E
VCH-3 (0.40x0.20)
ESC. 1/25
0.20
0.40
0.20
6ø1/2"
Ø1/4":1@.05, 10@.10,4@.15
R@.20 C/E
V-4 (0.15x0.40)
ESC. 1/25
0.20
0.15.15
.05
.20
Malla de Ø1/4"@.25
(TEMPERATURA) LADRILLO DE
30x30x15cm
VIGUETA
CONCRETO
f'c= 210 kg/cm2
DE LOSA ALIGERADA
ESC. 1/25
Losa de 5cm
de espesor
ESCALA:
INDICADA
FECHA:
Nº DE LAMINA:
02 DE 05
PLANO:
ESPECIALIDAD:
FIRMA DEL PROFESIONAL RESPONSABLE:
UBICACIÓN:
PROYECTO:
FIRMA DEL PROPIETARIO:
OCTUBRE 2020
E-02
ESTRUCTURAS
ENCOFRADO 1ER Y 2DO NIVEL
DISEÑO:
TENSORCORP
INGENIEROS
OFICINAS Y TALLERES
TD ENERGY
ING. VICTOR ALEJANDRO C.
ASOCIACION PRO VIVIENDA
LOS CLAVELES MZ S LT 15,
LURIN, LIMA
ING. MARCO A. RUIZ MONTOYA
5/8"
Ø
3/4"
Ldb(cm)G(cm)
20
25
35
40
1/4"
3/8"
1/2"
10
12
15 28
Ldb
GSECCIÓN
CRÍTICA
Cuadro de ganchos standar
en varillas de fierro corrugados
21
12.5
5/8"
Ø
3/4"
Ldb(cm)
60
70
3/8"
1/2" 45
Ldb
Cuadro de Longitud de Desarrollo
en varillas de fierro corrugados
35
1" 112
1. La Longitud de Desarrollo para barras corrugadas y
alamabres corrugados a traccion.
2. Para concreto f'c=210 kg/cm2
NOTA:
ELEVADOR
DE CARGA
ENCOFRADO 3ER PISO
NIVEL: +8.65
ESC. 1/50
S/C:200 kg/m2
1V-1 (0.25x0.50)
C-1 C-2
V-2(0.20x0.40)
V-2(0.20x0.40)
C-1
C-2
V-5 (0.25x0.50)
1V-1(0.25x0.50)
V-2(0.20x0.40)
V-2(0.20x0.40)
C-1 C-1
1V-1(0.25x0.50)
V-2(0.20x0.40)
V-2 (0.20x0.40)V-2 (0.20x0.40)
V-2(0.20x0.40)
V-2(0.20x0.40)
V-2(0.20x0.40)
1V-1 (0.25x0.50)
C-4
C-4
C-1
C-3
C-5C-5
V-2(0.20x0.40)
V-2(0.20x0.40)
V-5 (0.25x0.50)
1V-1(0.25x0.50)
V-1 (0.25x0.50) V-1 V-1
C-1 C-1
V-7 (0.25x0.50) V-7 (0.25x0.50)
V-3(0.20x0.50)
V-1(0.25x0.50)
V-1(0.25x0.50)V-1(0.25x0.50)
C-1 C-2 C-3
C-4
C-3
V-4 (0.25x0.50)V-4 (0.25x0.50)
C-a
VCH-2
VCH-2
VCH-2 (0.30x0.20)
VCH-1(0.20x0.20)
C-a
C-1(R)
C-1
6
5
4
3
1
2
1
2
3
4
5
6
B FD
E GA C
1.20
1Ø1/2"
0.85
1Ø1/2"
1.00
1Ø1/2"1Ø1/2"
0.85
1Ø1/2"
1Ø1/2"1Ø1/2"1Ø1/2"
1.00
1Ø1/2"
1Ø1/2"
1.60
1Ø1/2"
1.00
1Ø1/2"
1Ø1/2"
1.00
1Ø1/2"
1.501.501.601.60
1Ø1/2"1Ø1/2"
1.201.20
1Ø1/2"1Ø1/2"
0.85
1.60
1.00
1Ø1/2"
1.00
VCH-2 (0.30x0.20)
1Ø1/2"1Ø1/2"
1.20
1Ø1/2"
1Ø1/2"
1Ø1/2"
1.20
1Ø1/2"1Ø1/2"
1.20
1Ø3/8"
1Ø3/8"
1Ø3/8"
1Ø3/8"
VCH-1(0.20x0.20)
VCH-1
0.85
1Ø1/2"
1Ø1/2"
VCH-2 (0.30x0.20)
VCH-1
VCH-1
1Ø1/2"
0.85
1Ø1/2"
0.85
1Ø3/8"
1Ø3/8"
1Ø1/2"
1Ø1/2"
1Ø1/2"
VCH-2 (0.30x0.20)
VCH-1 (0.20x0.20)
VCH-1(0.20x0.20)
1Ø3/8"
1Ø3/8"
A
A
A
A
VCH-1(0.20x0.20)
VCH-1
VCH-1
VCH-1(0.20x0.20)
VCH-1VCH-1
A
A
VCH-1
1Ø1/2"
1Ø1/2"
ESCALERAE3
TRAMO9
ESCALERA E3
TRAMO 8
ESCALERAE3
TRAMO7
ESCALERAE1
TRAMO5
VCH-2
C-a
V-2(0.20x0.40)
1V-4(0.15x0.40)
0.38
Nace
C-7
Nace
C-7
1Ø3/8"
0.700.70
1Ø3/8"
0.700.70
ENCOFRADO 4TO PISO
NIVEL: +11.40
ESC. 1/50
S/C:200 kg/m2
V-1 (0.25x0.50)
C-1 C-2
V-2(0.20x0.40)
V-2(0.20x0.40)
C-1
C-2
1V-5 (0.25x0.50)
1V-1(0.25x0.50)
V-2(0.20x0.40)
V-2(0.20x0.40)
C-1 C-1C-1
1V-1(0.25x0.50)
V-2(0.20x0.40)
V-2 (0.20x0.40)V-2 (0.20x0.40)
V-2(0.20x0.40)
V-2(0.20x0.40)
V-2(0.20x0.40)
V-1 (0.25x0.50)
C-4
C-1
C-3
C-5
C-5
V-2(0.20x0.40)
V-2(0.20x0.40)
1V-5 (0.25x0.50)
1V-1(0.25x0.50)
V-1 (0.25x0.50) V-1 V-1
C-1 C-1
V-7 (0.25x0.50) V-7 (0.25x0.50)
C-1 C-2 C-3
1V-4
VCH-1(0.20x0.20)
1V-2(0.20x0.50)
1V-1(0.25x0.50)
1V-1(0.25x0.50)
1V-4 (0.25x0.50)
V-7 (0.25x0.50)
C-4
C-1(R)
C-4
C-7
C-7
6
5
4
3
1
2
1
2
3
4
5
6
1V-1(0.25x0.50)
B FD
E GA C
1Ø1/2"
0.85
1Ø1/2"
0.85
1Ø1/2"
1Ø1/2"
1Ø1/2"
1Ø1/2"1Ø1/2"
0.85
1Ø1/2"
1Ø1/2"
1Ø1/2"
1.20
1.20
1Ø1/2"1Ø1/2"
0.85
1.20
1Ø1/2"
0.85
1Ø1/2"1Ø1/2"1Ø1/2"
1.20
1.20
1Ø1/2"1Ø1/2"
1.20
0.85
1Ø1/2"
1Ø1/2"
1Ø3/8"
1Ø3/8"
1.05
1Ø1/2"
1Ø1/2"
1.60
1Ø1/2"
1.05
1Ø1/2"
1Ø1/2"
1.00
1Ø1/2"
1.601.00
1Ø1/2"
1Ø1/2"
1Ø1/2"
1Ø3/8"
1Ø3/8"
VCH-2 (0.30x0.20)
VCH-1(0.20x0.20)
VCH-1(0.20x0.20)
1Ø3/8"
1Ø3/8"
1Ø1/2"
VCH-2 (0.30x0.20)
VCH-2 (0.30x0.20)
VCH-1 (0.20x0.20)
VCH-1(0.20x0.20)
VCH-2
VCH-3
VCH-2
VCH-1
1Ø1/2"
1Ø1/2"
1Ø3/8"
1Ø3/8"
1Ø3/8"
1Ø3/8"
M-1
Z
Z
Z
Z
Z Z
1Ø1/2"
ESCALERAE1
TRAMO6
1Ø3/8"
1Ø3/8"
C-a
V-2(0.20x0.40)
VCH-2
1V-4(0.15x0.40)
1Ø1/2"
VCH-2
VCH-2
Nace
C-a
Nace
C-a
Nace
C-a
Nace
C-a
Nace
C-a
A
A
1Ø3/8"
0.700.70
VCH-1(0.20x0.20)
0.30
4ø5/8"(Ext)+4ø1/2"(Int)
Ø3/8":1@.05, 10@.10,4@.15
R@.20 C/E
V-1 (0.25x0.50)
ESC. 1/25
0.20
0.25
6ø1/2"
Ø1/4":1@.05, 11@.10,4@.15
R@.20 C/E
VCH-2 (0.30x0.20)
ESC. 1/25
0.20
0.30
0.20
2ø1/2"
Ø1/4":1@.05, R@.20 CE
CORTE A-A
ESC. 1/25
0.15
0.05
4ø1/2"
Ø1/4":1@.05, 11@.10,4@.15
R@.20 C/E
VCH-1 (0.20x0.20)
ESC. 1/25
0.20
0.20
0.20
6ø1/2"
Ø1/4":1@.05, 10@.10,4@.15
R@.20 C/E
V-2 (0.20x0.40)
ESC. 1/25
0.20
0.20
0.30
8ø1/2"
Ø1/4":1@.05, 10@.10,4@.15
R@.20 C/E
V-3 (0.20x0.50)
ESC. 1/25
0.20
0.20
8ø1/2"
Ø1/4":1@.05, 11@.10,4@.15
R@.20 C/E
VCH-3 (0.40x0.20)
ESC. 1/25
0.20
0.40
0.20
6ø1/2"
Ø1/4":1@.05, 10@.10,4@.15
R@.20 C/E
V-4 (0.15x0.40)
ESC. 1/25
0.20
0.15
4ø1/2"
Ø1/4":1@.05, 11@.10,4@.15
R@.20 C/E
M-1
ESC. 1/25
0.20
0.20
1.05
0.30
Ø3/8"@0.20
Losa
Maciza
IMPERMEABILIZAR
CON ADITIVO
.15
.05
.20
Malla de Ø1/4"@.25
(TEMPERATURA) LADRILLO DE
30x30x15cm
VIGUETA
CONCRETO
f'c= 210 kg/cm2
DE LOSA ALIGERADA
ESC. 1/25
Losa de 5cm
de espesor
ESCALA:
INDICADA
FECHA:
Nº DE LAMINA:
03 DE 05
PLANO:
ESPECIALIDAD:
FIRMA DEL PROFESIONAL RESPONSABLE:
UBICACIÓN:
PROYECTO:
FIRMA DEL PROPIETARIO:
OCTUBRE 2020
E-03
ESTRUCTURAS
ENCOFRADO 3ER Y 4TO NIVEL
DISEÑO:
TENSORCORP
INGENIEROS
OFICINAS Y TALLERES
TD ENERGY
ING. VICTOR ALEJANDRO C.
ASOCIACION PRO VIVIENDA
LOS CLAVELES MZ S LT 15,
LURIN, LIMA
ING. MARCO A. RUIZ MONTOYA
DE CONCRETO ARMADO
ESC. 1/50
DETALLE DE TABIQUE EN PORTICO
Teknopor min. 3/4"
TABIQUE
.15
.50
4Ø3/8"/Estr.Ø1/4":1@.05,5@.10,r@.20
4Ø1/4" (corridos)
VER DETALLE DP-1
.15
.05
.20
Malla de Ø1/4"@.25
(TEMPERATURA) LADRILLO DE
30x30x15cm
VIGUETA
CONCRETO
f'c= 210 kg/cm2
DE LOSA ALIGERADA
ESC. 1/25
Losa de 5cm
de espesor
Ø3/4" PVC
0.20
0.30
Tabique
Columna
2Ø1/2"
Ø3/4" PVC
0.20
0.30
Tabique
Columna
2Ø1/2"
Teknopor
min. 1/2"
Teknopor
min. 1/2"
PORTICOPORTICO
ANCLAJE DE COLIMNETA
ESC. 1/25
DETALLE DP-1
A PORTICO
5/8"
Ø
3/4"
Ldb(cm)
60
70
3/8"
1/2" 45
Ldb
Cuadro de Longitud de Desarrollo
en varillas de fierro corrugados
35
1" 112
1. La Longitud de Desarrollo para barras corrugadas y
alamabres corrugados a traccion.
2. Para concreto f'c=210 kg/cm2
NOTA:
5/8"
Ø
3/4"
Ldb(cm)G(cm)
20
25
35
40
1/4"
3/8"
1/2"
10
12
15 28
Ldb
GSECCIÓN
CRÍTICA
Cuadro de ganchos standar
en varillas de fierro corrugados
21
12.5
C-1
C-a
C-a
C-a
C-aC-a C-a
C-a
C-a
C-a
ENCOFRADO AZOTEA
ESC. 1/50
S/C:100 kg/m2
C-a
C-a
C-a C-a
C-a
C-a
N-1
C-a
N-1
N-1
N-1
N-1
N-1
N-1
C-a
C-a
6
5
4
3
1
2
1
2
3
4
5
6
B FD
E GA C
M-1 M-1
M-1
M-1
M-1 M-1
ESCALERAE1
TRAMO6
M-1
M-1
N-1
C-a
C-a
1Ø1/2"
1Ø1/2"
1V-4
1V-4
1V-4
1V-4
C-a
N.F.P.=+12.40
N.L.=+14.05
N.F.P.=+12.40
Z
Z
Z
Z
Z
Z
Z
Z
Z Z
NL=+0.10
1.49
1.50
0.15
0.90
NL=+1.59
0.10
0.70
0.40
0.45
0.25
0.18
0.23
0.30
0.30
S/C=200 kg/m2
TRAMO 1
ESCALERA E1
e=0.15
Ø3/8"@0.20
ESC. 1/25
0.15
NL=+1.77
1.38
0.90
1.50
NL=+3.15
0.30
0.30
0.30
0.30
0.25
0.18
TRAMO 2
ESCALERA E1
e=var
Ø3/8"@0.20
S/C=200 kg/m2
ESC. 1/25
1.24
NL=+5.90
NL=+4.66
0.25
e=0.15
0.20
0.20
0.30
0.18
0.30
1.50
TRAMO 4
ESCALERA E1
0.15
Ø3/8"@0.20
S/C=200 kg/m2
ESC. 1/25
NL=+5.90
NL=+8.65
2.75
NL=+8.65
NL=+11.40
e=0.15
TRAMO 5 y 6
ESCALERA E1
3.50
0.90
0.80
0.30
0.30
0.20
0.20
Ø3/8"@0.20
Ø3/8"@0.20
Ø3/8"@0.20
Ø3/8"@0.20
S/C=200 kg/m2
ESC. 1/25
0.18
0.25
1.50
1.33
0.20
0.20
NL=+3.150.23
NL=+4.48
0.30
0.30
0.30
0.30
e=0.15
TRAMO 3
ESCALERA E1
0.15
0.75
Ø3/8"@0.20
S/C=200 kg/m2
ESC. 1/25
6ø1/2"
ø1/4":1@.05, 5@.10, R@.25
0.30
0.20
ESC : 1/25
N-1 (.20x.30)
ESCALA:
INDICADA
FECHA:
Nº DE LAMINA:
04 DE 05
PLANO:
ESPECIALIDAD:
FIRMA DEL PROFESIONAL RESPONSABLE:
UBICACIÓN:
PROYECTO:
FIRMA DEL PROPIETARIO:
OCTUBRE 2020
E-04
ESTRUCTURAS
ESTRUCTURAS EN AZOTEA
ESCALERA E1,
DETALLES VARIOS
DISEÑO:
TENSORCORP
INGENIEROS
OFICINAS Y TALLERES
TD ENERGY
ING. VICTOR ALEJANDRO C.
ASOCIACION PRO VIVIENDA
LOS CLAVELES MZ S LT 15,
LURIN, LIMA
ING. MARCO A. RUIZ MONTOYA
"L"
"T"
L
L
L
L
3/8"
Ø L
0.25
1/2" 0.30
5/8" 0.50
Dobla según
cuadro
0.15
0.05
VIGAS CHATAS
ESC. 1/25
VISTA EN PLANTA DE
ENTREGA DE VIGA CHATA
ESC. 1/25
m
m
h
1. NO EMPALMAR MAS DEL 50% DEL AREA TOTAL EN UNA SECCION.
2. EN CASO DE NO EMPALMARSE EN LAS ZONAS INDICADAS O CON
LOS PORCENTAJES ESPECIFICADOS, AUMENTAR LA LONGITUD
DE EMPALME EN UN 70% O CONSULTAR AL PROYECTISTA.
NOTA:
VIGAS
ESC. 1/25
DETALLE DE EMPALME EN
Ø
Valores de "m"
3/8" 0.30 m
1/2" 0.45 m
5/8" 0.55 m
3/4" 0.65 m
Refuerzo inferior
"H" cualquiera
Refuerzo superior
h<30 h>30
0.30 m
0.45 m
0.55 m
0.65 m
0.45 m
0.60 m
0.75 m
0.90 m
1" 1.15 m1.15 m 1.60 m
L/4 L/4 L/4 L/4
L/3 L/3 L/3
Ø3/8"@d/4 (100 max.)
TIP. EN EMPALMES S.I.C
SOLO PARA VIGAS
0.30
Llenar concreto entre
muros dentados
REMATE
ESC. 1/25
0.300.30
EXTERIOR
INTERIOR
Acero
ACERO
2 alambres #8
cada tres hiladas
0.50 0.50
COLUMNA
Columna
0.50
2 alambres #8
cada tres hiladas
Llenar concreto entre
muros dentados
DETALLE DE
COLUMNAS
1/4"
Ø
3/8"
1/2"
aR
2 cm
3 cm
4 cm
10 cm
15 cm
18 cm
VIGAS Y COLUMNAS
ESC. 1/50
DOBLADO DE ESTRIBOS
a
45°
45°
R
Ø DE COLUMNA
O VIGA
0.30
4ø5/8"(Ext)+6ø1/2"(Int)
Ø3/8":1@.05, 10@.10,4@.15
R@.20 C/E
CORTE B-B
ESC. 1/25
0.20
0.25
0.30
CORTE C-C
ESC. 1/25
4ø5/8"(Ext)+6ø1/2"(Int)
Ø3/8":1@.05, 10@.10,4@.15
R@.20 C/E
0.20
0.25
0.30
ESC. 1/25
6ø5/8"(Ext)+4ø1/2"(Int)
Ø3/8":1@.05, 10@.10,4@.15
R@.20 C/E
CORTE D-D
0.20
0.25
0.30
6ø5/8"(Ext)+4ø1/2"(Int)
Ø3/8":1@.05, 10@.10,4@.15
R@.20 C/E
CORTE E-E
ESC. 1/25
0.20
0.25
B FD
B FD
B FD
B FD
DESARROLLO V-7 (0.25x0.50)
ESC. 1/25
5 5 5
4 4 4
3 3 3
2 2 2
1.65 1.65
B
B
1.65
B
F
C
2Ø1/2"
F
BB
C BB
1.65
C
2Ø1/2"
C
B
1.50
B
1.35
2Ø1/2"
1.20
C
1.20
0.95
2Ø1/2"
0.95
1.50
B
1.35
2Ø1/2"
1.05
1.50
1.65
1.50
1.65
C
C D
D D E
D E
B
B C
C D
B
D
C
B
0.651.85
F
1.65
F
1.65
1.50
1.65
1.50 1.50
DESARROLLO V-6 (0.25x0.50)
ESC. 1/25
DESARROLLO V-5 (0.25x0.50)
ESC. 1/25
DESARROLLO V-4 (0.25x0.50)
ESC. 1/25
2Ø5/8"+1Ø1/2
2Ø5/8"+1Ø1/2
2Ø5/8"+1Ø1/2
2Ø5/8"+1Ø1/2
2Ø5/8"+1Ø1/2
2Ø5/8"+1Ø1/2 2Ø5/8"+1Ø1/2
2Ø5/8"+1Ø1/2
2Ø5/8"+1Ø1/2
2Ø5/8"+1Ø1/22Ø5/8"+1Ø1/2
2Ø5/8"+1Ø1/2
2Ø5/8"+1Ø1/2
2Ø5/8"+1Ø1/22Ø5/8"+1Ø1/2
2Ø5/8"+1Ø1/2
1.35
2Ø1/2"
2Ø1/2"
2Ø5/8" 2Ø5/8"+Ø1/2"
2Ø5/8"+Ø1/2"2Ø1/2"
2Ø1/2"
2Ø1/2"
2Ø1/2"
2Ø1/2"
2Ø5/8"
NL=+0.10
0.15
NL=+1.59
0.23
0.10
1.49
TRAMO 1
ESCALERA E2
0.25
0.18
S/C=200 kg/m2
ESC. 1/25
Ø3/8"@0.20
Ø3/8"@0.20
Ø3/8"@0.20
0.40
0.30
0.30
e=0.15
0.72
0.18
0.20
0.20
0.18
TRAMO 2,5
ESCALERA E2
0.30
0.30
S/C=200 kg/m2
ESC. 1/25
Ø3/8"@0.20
0.25
0.18 Ø3/8"@0.20
0.30
0.30
Ø3/8"@0.20
0.72
0.18
0.20
0.20
0.18
TRAMO 2,5
ESCALERA E2
0.30
0.30
S/C=200 kg/m2
ESC. 1/25
Ø3/8"@0.20
0.25
0.18 Ø3/8"@0.20
0.30
0.30
Ø3/8"@0.20
0.15
0.85
0.18
0.20
0.18
0.25
TRAMO 3,6
ESCALERA E2
0.20
S/C=200 kg/m2
ESC. 1/25
Ø3/8"@0.20
0.30
Ø3/8"@0.20
Ø3/8"@0.20
0.30
0.30
0.30
0.15
TRAMO 4
ESCALERA E2
0.25
0.20
0.18
0.20
1.10
1.00
0.30
S/C=200 kg/m2
ESC. 1/25
Ø3/8"@0.200.30
Ø3/8"@0.20
Ø3/8"@0.20
e=0.15
1.76
NL=+0.10
NL=+1.76
0.15
S/C=200 kg/m2
TRAMO 1
ESCALERA E3
ESC. 1/25
0.19
0.25
0.75
Ø3/8"@0.20
Ø3/8"@0.20
0.30
0.30
e=0.15
TRAMO 2
S/C=200 kg/m2
ESCALERA E3
ESC. 1/25
0.19
Ø3/8"@0.20
0.30
0.15
0.15
NL=+3.15
TRAMO 3
S/C=200 kg/m2
ESCALERA E3
ESC. 1/25
V-1
0.25
0.19
Ø3/8"@0.20
e=0.15
0.15
0.75
TRAMO 4,7
ESC. 1/25
S/C=200 kg/m2
ESCALERA E3
0.18
0.25
Ø3/8"@0.20
e=0.15
0.75
0.15
V-1
1.52
S/C=200 kg/m2
TRAMO 5, 8
ESCALERA E3
ESC. 1/25
0.18
Ø3/8"@0.20
0.30
0.15
0.92
e=0.15
S/C=200 kg/m2
TRAMO 6, 9
ESCALERA E3
ESC. 1/25
V-1
0.25
0.18
Ø3/8"@0.20
1.05
0.15
e=0.15
0.75
ESCALA:
INDICADA
FECHA:
Nº DE LAMINA:
05 DE 05
PLANO:
ESPECIALIDAD:
FIRMA DEL PROFESIONAL RESPONSABLE:
UBICACIÓN:
PROYECTO:
FIRMA DEL PROPIETARIO:
OCTUBRE 2020
E-05
ESTRUCTURAS
DESARROLLO DE VIGAS Y
ESCALERAS E2, E3
DETALLES VARIOS
DISEÑO:
TENSORCORP
INGENIEROS
OFICINAS Y TALLERES
TD ENERGY
ING. VICTOR ALEJANDRO C.
ASOCIACION PRO VIVIENDA
LOS CLAVELES MZ S LT 15,
LURIN, LIMA
ING. MARCO A. RUIZ MONTOYA

Estructuras 291020

  • 1.
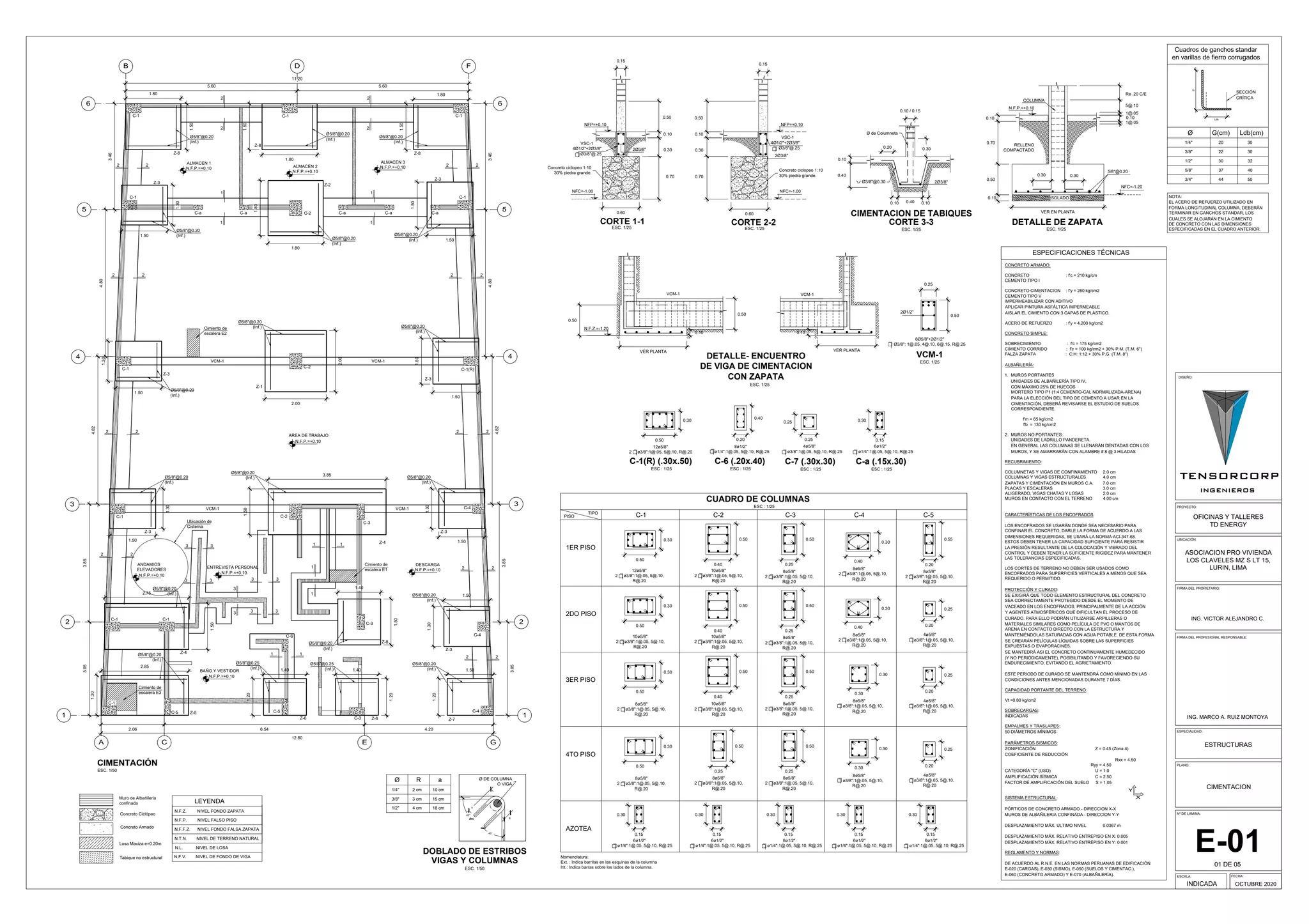
    CONCRETO ARMADO: CONCRETO :f'c = 210 kg/cm CEMENTO TIPO I CONCRETO CIMENTACION : f'y = 280 kg/cm2 CEMENTO TIPO V IMPERMEABILIZAR CON ADITIVO APLICAR PINTURA ASFÁLTICA IMPERMEABLE AISLAR EL CIMIENTO CON 3 CAPAS DE PLÁSTICO. ACERO DE REFUERZO : f'y = 4,200 kg/cm2 CONCRETO SIMPLE: SOBRECIMIENTO : f'c = 175 kg/cm2 CIMIENTO CORRIDO : f'c = 100 kg/cm2 + 30% P.M. (T.M. 6") FALZA ZAPATA : C:H: 1:12 + 30% P.G. (T.M. 8") ALBAÑILERÍA: 1. MUROS PORTANTES UNIDADES DE ALBAÑILERÍA TIPO IV, CON MÁXIMO 25% DE HUECOS MORTERO TIPO P1 (1:4 CEMENTO-CAL NORMALIZADA-ARENA) PARA LA ELECCIÓN DEL TIPO DE CEMENTO A USAR EN LA CIMENTACIÓN, DEBERÁ REVISARSE EL ESTUDIO DE SUELOS CORRESPONDIENTE. f'm = 65 kg/cm2 f'b = 130 kg/cm2 2. MUROS NO PORTANTES: UNIDADES DE LADRILLO PANDERETA. EN GENERAL LAS COLUMNAS SE LLENARÁN DENTADAS CON LOS MUROS, Y SE AMARRARÁN CON ALAMBRE # 8 @ 3 HILADAS RECUBRIMIENTO: COLUMNETAS Y VIGAS DE CONFINAMIENTO 2.0 cm COLUMNAS Y VIGAS ESTRUCTURALES 4.0 cm ZAPATAS Y CIMENTACIÓN EN MUROS C.A. 7.0 cm PLACAS Y ESCALERAS 3.0 cm ALIGERADO, VIGAS CHATAS Y LOSAS 2.0 cm MUROS EN CONTACTO CON EL TERRENO 4.00 cm CARACTERÍSTICAS DE LOS ENCOFRADOS: LOS ENCOFRADOS SE USARÁN DONDE SEA NECESARIO PARA CONFINAR EL CONCRETO, DARLE LA FORMA DE ACUERDO A LAS DIMENSIONES REQUERIDAS, SE USARÁ LA NORMA ACI-347-68. ESTOS DEBEN TENER LA CAPACIDAD SUFICIENTE PARA RESISTIR LA PRESIÓN RESULTANTE DE LA COLOCACIÓN Y VIBRADO DEL CONTROL Y DEBEN TENER LA SUFICIENTE RIGIDEZ PARA MANTENER LAS TOLERANCIAS ESPECIFICADAS. LOS CORTES DE TERRENO NO DEBEN SER USADOS COMO ENCOFRADOS PARA SUPERFICIES VERTICALES A MENOS QUE SEA REQUERIDO O PERMITIDO. PROTECCIÓN Y CURADO: SE EXIGIRÁ QUE TODO ELEMENTO ESTRUCTURAL DEL CONCRETO SEA CORRECTAMENTE PROTEGIDO DESDE EL MOMENTO DE VACEADO EN LOS ENCOFRADOS, PRINCIPALMENTE DE LA ACCIÓN Y AGENTES ATMOSFÉRICOS QUE DIFICULTAN EL PROCESO DE CURADO. PARA ELLO PODRÁN UTILIZARSE ARPILLERAS O MATERIALES SIMILARES COMO PELÍCULA DE PVC O MANTOS DE ARENA EN CONTACTO DIRECTO CON LA ESTRUCTURA Y MANTENIÉNDOLAS SATURADAS CON AGUA POTABLE. DE ESTA FORMA SE CREARÁN PELÍCULAS LÍQUIDAS SOBRE LAS SUPERFICIES EXPUESTAS O EVAPORACINES. SE MANTEDRÁ ASI EL CONCRETO CONTINUAMENTE HUMEDECIDO (Y NO PERIÓDICAMENTE), POSIBILITANDO Y FAVORECIENDO SU ENDURECIMIENTO, EVITANDO EL AGRIETAMIENTO. ESTE PERIODO DE CURADO SE MANTENDRÁ COMO MÍNIMO EN LAS CONDICIONES ANTES MENCIONADAS DURANTE 7 DÍAS. CAPACIDAD PORTANTE DEL TERRENO: Vt =0.80 kg/cm2 SOBRECARGAS: INDICADAS EMPALMES Y TRASLAPES: 50 DIÁMETROS MÍNIMOS PARÁMETROS SISMICOS: ZONIFICACIÓN Z = 0.45 (Zona 4) COEFICIENTE DE REDUCCIÓN Rxx = 4.50 Ryy = 4.50 CATEGORÍA "C" (USO) U = 1.0 AMPLIFICACIÓN SÍSMICA C = 2.50 FACTOR DE AMPLIFICACIÓN DEL SUELO S = 1.05 SISTEMA ESTRUCTURAL: PÓRTICOS DE CONCRETO ARMADO - DIRECCION X-X MUROS DE ALBAÑILERIA CONFINADA - DIRECCION Y-Y DESPLAZAMIENTO MÁX. ULTIMO NIVEL 0.0367 m DESPLAZAMIENTO MÁX. RELATIVO ENTREPISO EN X: 0.005 DESPLAZAMIENTO MÁX. RELATIVO ENTREPISO EN Y: 0.001 REGLAMENTO Y NORMAS: DE ACUERDO AL R.N.E. EN LAS NORMAS PERUANAS DE EDIFICACIÓN E-020 (CARGAS), E-030 (SISMO), E-050 (SUELOS Y CIMENTAC.), E-060 (CONCRETO ARMADO) Y E-070 (ALBAÑILERÍA). ESPECIFICACIONES TÉCNICAS Y X 1/4" Ø 3/8" 1/2" aR 2 cm 3 cm 4 cm 10 cm 15 cm 18 cm VIGAS Y COLUMNAS ESC. 1/50 DOBLADO DE ESTRIBOS a 45° 45° R Ø DE COLUMNA O VIGA Cimiento de escalera E2 ALMACEN 1 ALMACEN 2 ALMACEN 3 AREA DE TRABAJO ENTREVISTA PERSONAL ANDAMIOS ELEVADORES BAÑO Y VESTIDOR DESCARGA C-1 C-1 ESC. 1/50 N.F.P.=+0.10 N.F.P.=+0.10 N.F.P.=+0.10 N.F.P.=+0.10 N.F.P.=+0.10 N.F.P.=+0.10 N.F.P.=+0.10 N.F.P.=+0.10 C-1 C-1 C-1 C-1(R) C-1 C-1 C-1 C-2 C-2 C-2 C-3 C-3 C-3 C-5C-5 C-4 C-4 C-4 C-1 C-6 C-a C-a C-a C-a C-a C-1 6 5 4 3 1 2 1 2 3 4 5 6 B FD E GA C 2.06 6.54 4.20 3.053.85 4.82 4.80 3.46 3.05 3.85 4.82 4.803.46 5.60 5.60 11.20 12.80 VCM-1VCM-1 1.50 2.00 2.00 1.50 1.50 Z-1 Ø5/8"@0.20 (Inf.) Ø5/8"@0.20 (Inf.) 1.30 Ø5/8"@0.20 (Inf.) 1.50 Ø5/8"@0.20 (Inf.) 1.30 1.50 1.30 Ø5/8"@0.20 (Inf.) 3.85 1.50 VCM-1 Ø5/8"@0.20 (Inf.) Ø5/8"@0.20 (Inf.) Ø5/8"@0.20 (Inf.) Ø5/8"@0.20 (Inf.) 2 2 2 2 2 2 2 2 2 2 2 2 1.80 1.50 1.80 1.50 1.80 1.50 1.80 1.80 Ø5/8"@0.20 (Inf.) 1 1 1 1 1.50 1.50 Ø5/8"@0.20 (Inf.) Z-3 Z-3 1.50 1.30 Ø5/8"@0.20 (Inf.) Z-3 Z-2 Z-3 Z-8 Z-8 Z-8 2 2 VCM-1 1.30 Ø5/8"@0.20 (Inf.) 2 2 2 2 1.50 2.75 Ø5/8"@0.20 (Inf.) 1.20 1.50 1.50 Ø5/8"@0.20 (Inf.) 1.40 Cimiento de escalera E1 1.30 2.85 2 2 Ø5/8"@0.20 (Inf.) Z-3 Z-3 Z-4 Z-3 Z-4 Z-8 Ø5/8"@0.20 (Inf.) 1.20 1.40 Ø5/8"@0.25 (Inf.) 1.20 1.40 Ø5/8"@0.25 (Inf.) Z-5 Z-6 Z-6 Z-7 2 11 2 Cimiento de escalera E3 3 3 3 3 3 3 3 3 3 3 1.50 1 1 1 1 Ubicación de Cisterna Muro de Albañileria confinada Concreto Ciclópeo Concreto Armado N.F.Z. NIVEL FONDO ZAPATA LEYENDA N.F.P. NIVEL FALSO PISO N.F.F.Z. NIVEL FONDO FALSA ZAPATA N.T.N. NIVEL DE TERRENO NATURAL N.L. NIVEL DE LOSA N.F.V. NIVEL DE FONDO DE VIGA Losa Maciza e=0.20m Tabique no estructural 5/8" Ø 3/4" Ldb(cm)G(cm) 37 44 40 50 1/4" 3/8" 1/2" 20 22 30 32 Ldb G SECCIÓN CRÍTICA Cuadros de ganchos standar en varillas de fierro corrugados NOTA: EL ACERO DE REFUERZO UTILIZADO EN FORMA LONGITUDINAL COLUMNA, DEBERÁN TERMINAR EN GANCHOS STANDAR, LOS CUALES SE ALOJARÁN EN LA CIMIENTO DE CONCRETO CON LAS DIMENSIONES ESPECIFICADAS EN EL CUADRO ANTERIOR. 30 30 PISO TIPO 1ER PISO C-1 CUADRO DE COLUMNAS C-2 C-3 C-4 C-5 ESC : 1/25 2DO PISO 3ER PISO 4TO PISO AZOTEA Nomenclatura: Ext. : Indica barrilas en las esquinas de la columna Int.: Indica barras sobre los lados de la columna. 0.30 0.50 12ø5/8" 2 ø3/8":1@.05, 5@.10, R@.20 10ø5/8" 2 ø3/8":1@.05, 5@.10, R@.20 8ø5/8" 2 ø3/8":1@.05, 5@.10, R@.20 8ø5/8" 2 ø3/8":1@.05, 5@.10, R@.20 0.40 0.50 10ø5/8" 2 ø3/8":1@.05, 5@.10, R@.20 0.30 0.50 0.30 0.50 0.30 0.50 0.40 0.50 10ø5/8" 2 ø3/8":1@.05, 5@.10, R@.20 0.40 0.50 10ø5/8" 2 ø3/8":1@.05, 5@.10, R@.20 0.25 0.50 8ø5/8" 2 ø3/8":1@.05, 5@.10, R@.20 0.25 0.50 8ø5/8" 2 ø3/8":1@.05, 5@.10, R@.20 0.25 0.50 8ø5/8" 2 ø3/8":1@.05, 5@.10, R@.20 0.25 0.50 8ø5/8" 2 ø3/8":1@.05, 5@.10, R@.20 0.25 0.50 8ø5/8" 2 ø3/8":1@.05, 5@.10, R@.20 0.40 0.30 8ø5/8" 2 ø3/8":1@.05, 5@.10, R@.20 0.30 0.30 8ø5/8" ø3/8":1@.05, 5@.10, R@.20 0.30 0.30 8ø5/8" ø3/8":1@.05, 5@.10, R@.20 0.40 0.30 8ø5/8" 2 ø3/8":1@.05, 5@.10, R@.20 0.20 0.55 8ø5/8" 2 ø3/8":1@.05, 5@.10, R@.20 0.20 0.25 4ø5/8" ø3/8":1@.05, 5@.10, R@.20 0.20 0.25 4ø5/8" ø3/8":1@.05, 5@.10, R@.20 0.20 0.25 4ø5/8" ø3/8":1@.05, 5@.10, R@.20 0.15 6ø1/2" ø1/4":1@.05, 5@.10, R@.25 0.15 0.30 6ø1/2" ø1/4":1@.05, 5@.10, R@.25 6ø1/2" ø1/4":1@.05, 5@.10, R@.25 0.15 0.30 0.30 6ø1/2" ø1/4":1@.05, 5@.10, R@.25 0.30 0.15 6ø1/2" ø1/4":1@.05, 5@.10, R@.25 0.30 0.15 8ø1/2" ø1/4":1@.05, 5@.10, R@.25 ESC : 1/25 C-6 (.20x.40) 0.40 0.20 4ø5/8" ø3/8":1@.05, 5@.10, R@.25 0.25 0.25 ESC : 1/25 C-7 (.30x.30) 0.30 0.50 12ø5/8" 2 ø3/8":1@.05, 5@.10, R@.20 ESC : 1/25 C-1(R) (.30x.50) 6ø1/2" ø1/4":1@.05, 5@.10, R@.25 0.30 0.15 ESC : 1/25 C-a (.15x.30) N.F.P.=+0.10 0.30 0.30 Re .20 C/E 1@.05 5@.10 1@.05 ESC. 1/25 0.50 DETALLE DE ZAPATA SOLADO0.10 VER EN PLANTA 0.10 COLUMNA NFC=-1.20 5/8"@0.20 0.70 0.10 RELLENO COMPACTADO CORTE 2-2 0.70 0.30 0.10 0.60 Concreto ciclopeo 1:10 30% piedra grande. ESC. 1/25 0.50 0.15 4Ø1/2"+2Ø3/8" Ø3/8"@.25 ESC. 1/25 CORTE 1-1 0.70 0.30 0.10 0.50 Concreto ciclopeo 1:10 30% piedra grande. 0.60 0.15 2Ø3/8"4Ø1/2"+2Ø3/8" Ø3/8"@.25 2Ø3/8" NFP=+0.10 NFP=+0.10 NFC=-1.00NFC=-1.00 VSC-1 VSC-1 ESC. 1/25 CIMENTACION DE TABIQUES 0.10 / 0.15 0.20 0.10 0.40 0.10 0.40 0.10 2Ø3/8"Ø3/8"@0.30 0.30 Ø de Columneta CORTE 3-3 0.10 ESC. 1/25 0.10 DETALLE- ENCUENTRO DE VIGA DE CIMENTACION CON ZAPATA 0.50 VER PLANTA VER PLANTA 0.50 8Ø5/8"+2Ø1/2" Ø3/8": 1@.05, 4@.10, 6@.15, R@.25 0.25 ESC. 1/25 VCM-1 2Ø1/2" VCM-1 N.F.Z.=-1.20 0.50 VCM-1 ESCALA: INDICADA FECHA: Nº DE LAMINA: 01 DE 05 PLANO: ESPECIALIDAD: FIRMA DEL PROFESIONAL RESPONSABLE: UBICACIÓN: PROYECTO: FIRMA DEL PROPIETARIO: OCTUBRE 2020 OFICINAS Y TALLERES TD ENERGY ING. VICTOR ALEJANDRO C. ASOCIACION PRO VIVIENDA LOS CLAVELES MZ S LT 15, LURIN, LIMA E-01 ESTRUCTURAS CIMENTACION DISEÑO: TENSORCORP INGENIEROS ING. MARCO A. RUIZ MONTOYA
  • 2.
    5/8" Ø 3/4" Ldb(cm) 60 70 3/8" 1/2" 45 Ldb Cuadro deLongitud de Desarrollo en varillas de fierro corrugados 35 1" 112 1. La Longitud de Desarrollo para barras corrugadas y alamabres corrugados a traccion. 2. Para concreto f'c=210 kg/cm2 NOTA: 5/8" Ø 3/4" Ldb(cm)G(cm) 20 25 35 40 1/4" 3/8" 1/2" 10 12 15 28 Ldb GSECCIÓN CRÍTICA Cuadro de ganchos standar en varillas de fierro corrugados 21 12.5 ELEVADOR DE CARGA C-1 C-1 C-1 C-1 C-1 C-1 C-1 C-1 C-2 C-2 C-2 C-3 C-3 C-3 C-5 C-5 C-4 C-4 C-4 C-1 C-6 C-a C-a C-a C-a C-a 6 5 4 3 1 ENCOFRADO 1ER PISO NIVEL: +3.15 ESC. 1/50 S/C:200 kg/m2 V-1 (0.25x0.50) V-1 (0.25x0.50) V-1 (0.25x0.50) V-1 (0.25x0.50) V-1V-1 V-1(0.25x0.50)V-1(0.25x0.50) V-1 V-1 V-1 V-2(0.20x0.40) V-2(0.20x0.40) V-2(0.20x0.40) V-2(0.20x0.40) V-2(0.20x0.40) V-2 (0.20x0.50)V-2 (0.20x0.40) V-2(0.20x0.40) V-2(0.20x0.40) V-2(0.20x0.40) V-2(0.20x0.40) V-2(0.20x0.40) V-3(0.20x0.50) V-1(0.25x0.50) V-1(0.25x0.50) VCH-2(0.30x0.20) VCH-3 VCH-3 C-1(R) C-1 2 1 2 3 4 5 6 B FD E GA C 1.20 1Ø1/2" 0.70 1Ø3/8" 1Ø1/2" 1.20 1Ø1/2" 0.900.95 1Ø1/2" 1Ø1/2" 0.70 0.95 1Ø1/2" 1Ø1/2" 0.90 1Ø1/2" 1Ø1/2" 0.95 1Ø1/2" 1Ø1/2" 0.90 1Ø1/2" 1.00 1Ø1/2" 1Ø1/2" 1.00 1Ø1/2" VCH-2 VCH-2(0.30x0.20) 1Ø1/2" 1Ø1/2" 0.80 1Ø1/2" 0.80 1Ø1/2" 1Ø1/2" 0.80 1Ø1/2" 1Ø1/2" 1Ø1/2" 1.000.801.00 1Ø3/8" 1Ø3/8" 1Ø3/8" 1Ø3/8" V-2(0.20x0.40) V-1 V-1 V-1 A A ESCALERAE3 TRAMO3 ESCALERA E3 TRAMO 2 ESCALERAE3 TRAMO1 ESCALERAE1 TRAMO2 ESCALERAE1 TRAMO1 ESCALERA E2 TRAMO 1 ESCALERAE2 TRAMO2 ESCALERA E2 TRAMO 3 ELEVADOR DE CARGA C-1 C-2 C-3 C-4 V-6 (0.25x0.50) C-1 C-2 V-2(0.20x0.40) V-2(0.20x0.40) C-1 C-1 C-2 V-5 (0.25x0.50) V-1(0.25x0.50) V-2(0.20x0.40) V-2(0.20x0.40) C-1 C-1 V-1(0.25x0.50) V-2(0.20x0.40) V-2 (0.20x0.40)V-2 (0.20x0.40) V-2(0.20x0.40) V-4 V-2(0.20x0.40) V-2(0.20x0.40) V-6 (0.25x0.50) C-4 C-4 ENCOFRADO 2DO PISO NIVEL: +5.90 ESC. 1/50 S/C:200 kg/m2 C-1 C-3 C-5C-5 V-2(0.20x0.40) V-2(0.20x0.40) V-5 (0.25x0.50) V-1(0.25x0.50) V-1 (0.25x0.50) V-1V-1 V-1 C-1 C-3C-1 V-7 (0.25x0.50) V-3(0.20x0.50) V-1(0.25x0.50) V-7 (0.25x0.50) C-a V-1(0.25x0.50)V-1(0.25x0.50) VCH-2(0.30x0.20) C-1(R) C-1 6 5 4 3 1 2 1 2 3 4 5 6 B FD E GA C 1.20 1Ø1/2" 0.85 1Ø1/2" 1.05 1Ø1/2"1Ø1/2" 0.85 1Ø1/2" 1Ø1/2"1Ø1/2"1Ø1/2" 1.05 1Ø1/2" 1Ø1/2" 1.60 1Ø1/2" 1.05 1Ø1/2" 1Ø1/2" 1.00 1Ø1/2" 1.501.501.601.60 V-4 (0.25x0.50) 1Ø1/2"1Ø1/2" 1.201.20 1Ø1/2"1Ø1/2" 0.85 1.60 1.00 1Ø1/2" 1.00 VCH-2 (0.30x0.20) 1Ø1/2"1Ø1/2" 1.20 1Ø1/2" 1Ø1/2" 1Ø1/2" 1.20 1Ø1/2"1Ø1/2" 1.20 1Ø1/2" 1Ø1/2" 0.40 1Ø1/2" 1Ø1/2" VCH-1(0.20x0.20) VCH-1 VCH-1(0.20x0.20) VCH-1(0.20x0.20) 0.85 1Ø1/2" 1Ø1/2" 1Ø1/2" 0.85 1Ø1/2" 0.85 1Ø1/2" V-2(0.20x0.40) A A A A A A VCH-1(0.20x0.20) 1.07 VCH-1(0.20x0.20) ESCALERAE3 TRAMO6 ESCALERA E3 TRAMO 5 ESCALERAE3 TRAMO5 ESCALERAE1 TRAMO4 ESCALERAE1 TRAMO3 ESCALERA E2 TRAMO 4 ESCALERAE2 TRAMO5 ESCALERA E2 TRAMO 6 1Ø3/8" 0.700.70 1Ø3/8" 0.700.70 1Ø3/8" 0.700.70 Muro de Albañileria confinada Concreto Ciclópeo Concreto Armado N.F.Z. NIVEL FONDO ZAPATA LEYENDA N.F.P. NIVEL FALSO PISO N.F.F.Z. NIVEL FONDO FALSA ZAPATA N.T.N. NIVEL DE TERRENO NATURAL N.L. NIVEL DE LOSA N.F.V. NIVEL DE FONDO DE VIGA Losa Maciza e=0.20m Tabique no estructural 0.30 4ø5/8"(Ext)+4ø1/2"(Int) Ø3/8":1@.05, 10@.10,4@.15 R@.20 C/E V-1 (0.25x0.50) ESC. 1/25 0.20 0.25 6ø1/2" Ø1/4":1@.05, 11@.10,4@.15 R@.20 C/E VCH-2 (0.30x0.20) ESC. 1/25 0.20 0.30 0.20 2ø1/2" Ø1/4":1@.05, R@.20 CE CORTE A-A ESC. 1/25 0.15 0.05 4ø1/2" Ø1/4":1@.05, 11@.10,4@.15 R@.20 C/E VCH-1 (0.20x0.20) ESC. 1/25 0.20 0.20 0.20 6ø1/2" Ø1/4":1@.05, 10@.10,4@.15 R@.20 C/E V-2 (0.20x0.40) ESC. 1/25 0.20 0.20 0.30 8ø1/2" Ø1/4":1@.05, 10@.10,4@.15 R@.20 C/E V-3 (0.20x0.50) ESC. 1/25 0.20 0.20 8ø1/2" Ø1/4":1@.05, 11@.10,4@.15 R@.20 C/E VCH-3 (0.40x0.20) ESC. 1/25 0.20 0.40 0.20 6ø1/2" Ø1/4":1@.05, 10@.10,4@.15 R@.20 C/E V-4 (0.15x0.40) ESC. 1/25 0.20 0.15.15 .05 .20 Malla de Ø1/4"@.25 (TEMPERATURA) LADRILLO DE 30x30x15cm VIGUETA CONCRETO f'c= 210 kg/cm2 DE LOSA ALIGERADA ESC. 1/25 Losa de 5cm de espesor ESCALA: INDICADA FECHA: Nº DE LAMINA: 02 DE 05 PLANO: ESPECIALIDAD: FIRMA DEL PROFESIONAL RESPONSABLE: UBICACIÓN: PROYECTO: FIRMA DEL PROPIETARIO: OCTUBRE 2020 E-02 ESTRUCTURAS ENCOFRADO 1ER Y 2DO NIVEL DISEÑO: TENSORCORP INGENIEROS OFICINAS Y TALLERES TD ENERGY ING. VICTOR ALEJANDRO C. ASOCIACION PRO VIVIENDA LOS CLAVELES MZ S LT 15, LURIN, LIMA ING. MARCO A. RUIZ MONTOYA
  • 3.
    5/8" Ø 3/4" Ldb(cm)G(cm) 20 25 35 40 1/4" 3/8" 1/2" 10 12 15 28 Ldb GSECCIÓN CRÍTICA Cuadro deganchos standar en varillas de fierro corrugados 21 12.5 5/8" Ø 3/4" Ldb(cm) 60 70 3/8" 1/2" 45 Ldb Cuadro de Longitud de Desarrollo en varillas de fierro corrugados 35 1" 112 1. La Longitud de Desarrollo para barras corrugadas y alamabres corrugados a traccion. 2. Para concreto f'c=210 kg/cm2 NOTA: ELEVADOR DE CARGA ENCOFRADO 3ER PISO NIVEL: +8.65 ESC. 1/50 S/C:200 kg/m2 1V-1 (0.25x0.50) C-1 C-2 V-2(0.20x0.40) V-2(0.20x0.40) C-1 C-2 V-5 (0.25x0.50) 1V-1(0.25x0.50) V-2(0.20x0.40) V-2(0.20x0.40) C-1 C-1 1V-1(0.25x0.50) V-2(0.20x0.40) V-2 (0.20x0.40)V-2 (0.20x0.40) V-2(0.20x0.40) V-2(0.20x0.40) V-2(0.20x0.40) 1V-1 (0.25x0.50) C-4 C-4 C-1 C-3 C-5C-5 V-2(0.20x0.40) V-2(0.20x0.40) V-5 (0.25x0.50) 1V-1(0.25x0.50) V-1 (0.25x0.50) V-1 V-1 C-1 C-1 V-7 (0.25x0.50) V-7 (0.25x0.50) V-3(0.20x0.50) V-1(0.25x0.50) V-1(0.25x0.50)V-1(0.25x0.50) C-1 C-2 C-3 C-4 C-3 V-4 (0.25x0.50)V-4 (0.25x0.50) C-a VCH-2 VCH-2 VCH-2 (0.30x0.20) VCH-1(0.20x0.20) C-a C-1(R) C-1 6 5 4 3 1 2 1 2 3 4 5 6 B FD E GA C 1.20 1Ø1/2" 0.85 1Ø1/2" 1.00 1Ø1/2"1Ø1/2" 0.85 1Ø1/2" 1Ø1/2"1Ø1/2"1Ø1/2" 1.00 1Ø1/2" 1Ø1/2" 1.60 1Ø1/2" 1.00 1Ø1/2" 1Ø1/2" 1.00 1Ø1/2" 1.501.501.601.60 1Ø1/2"1Ø1/2" 1.201.20 1Ø1/2"1Ø1/2" 0.85 1.60 1.00 1Ø1/2" 1.00 VCH-2 (0.30x0.20) 1Ø1/2"1Ø1/2" 1.20 1Ø1/2" 1Ø1/2" 1Ø1/2" 1.20 1Ø1/2"1Ø1/2" 1.20 1Ø3/8" 1Ø3/8" 1Ø3/8" 1Ø3/8" VCH-1(0.20x0.20) VCH-1 0.85 1Ø1/2" 1Ø1/2" VCH-2 (0.30x0.20) VCH-1 VCH-1 1Ø1/2" 0.85 1Ø1/2" 0.85 1Ø3/8" 1Ø3/8" 1Ø1/2" 1Ø1/2" 1Ø1/2" VCH-2 (0.30x0.20) VCH-1 (0.20x0.20) VCH-1(0.20x0.20) 1Ø3/8" 1Ø3/8" A A A A VCH-1(0.20x0.20) VCH-1 VCH-1 VCH-1(0.20x0.20) VCH-1VCH-1 A A VCH-1 1Ø1/2" 1Ø1/2" ESCALERAE3 TRAMO9 ESCALERA E3 TRAMO 8 ESCALERAE3 TRAMO7 ESCALERAE1 TRAMO5 VCH-2 C-a V-2(0.20x0.40) 1V-4(0.15x0.40) 0.38 Nace C-7 Nace C-7 1Ø3/8" 0.700.70 1Ø3/8" 0.700.70 ENCOFRADO 4TO PISO NIVEL: +11.40 ESC. 1/50 S/C:200 kg/m2 V-1 (0.25x0.50) C-1 C-2 V-2(0.20x0.40) V-2(0.20x0.40) C-1 C-2 1V-5 (0.25x0.50) 1V-1(0.25x0.50) V-2(0.20x0.40) V-2(0.20x0.40) C-1 C-1C-1 1V-1(0.25x0.50) V-2(0.20x0.40) V-2 (0.20x0.40)V-2 (0.20x0.40) V-2(0.20x0.40) V-2(0.20x0.40) V-2(0.20x0.40) V-1 (0.25x0.50) C-4 C-1 C-3 C-5 C-5 V-2(0.20x0.40) V-2(0.20x0.40) 1V-5 (0.25x0.50) 1V-1(0.25x0.50) V-1 (0.25x0.50) V-1 V-1 C-1 C-1 V-7 (0.25x0.50) V-7 (0.25x0.50) C-1 C-2 C-3 1V-4 VCH-1(0.20x0.20) 1V-2(0.20x0.50) 1V-1(0.25x0.50) 1V-1(0.25x0.50) 1V-4 (0.25x0.50) V-7 (0.25x0.50) C-4 C-1(R) C-4 C-7 C-7 6 5 4 3 1 2 1 2 3 4 5 6 1V-1(0.25x0.50) B FD E GA C 1Ø1/2" 0.85 1Ø1/2" 0.85 1Ø1/2" 1Ø1/2" 1Ø1/2" 1Ø1/2"1Ø1/2" 0.85 1Ø1/2" 1Ø1/2" 1Ø1/2" 1.20 1.20 1Ø1/2"1Ø1/2" 0.85 1.20 1Ø1/2" 0.85 1Ø1/2"1Ø1/2"1Ø1/2" 1.20 1.20 1Ø1/2"1Ø1/2" 1.20 0.85 1Ø1/2" 1Ø1/2" 1Ø3/8" 1Ø3/8" 1.05 1Ø1/2" 1Ø1/2" 1.60 1Ø1/2" 1.05 1Ø1/2" 1Ø1/2" 1.00 1Ø1/2" 1.601.00 1Ø1/2" 1Ø1/2" 1Ø1/2" 1Ø3/8" 1Ø3/8" VCH-2 (0.30x0.20) VCH-1(0.20x0.20) VCH-1(0.20x0.20) 1Ø3/8" 1Ø3/8" 1Ø1/2" VCH-2 (0.30x0.20) VCH-2 (0.30x0.20) VCH-1 (0.20x0.20) VCH-1(0.20x0.20) VCH-2 VCH-3 VCH-2 VCH-1 1Ø1/2" 1Ø1/2" 1Ø3/8" 1Ø3/8" 1Ø3/8" 1Ø3/8" M-1 Z Z Z Z Z Z 1Ø1/2" ESCALERAE1 TRAMO6 1Ø3/8" 1Ø3/8" C-a V-2(0.20x0.40) VCH-2 1V-4(0.15x0.40) 1Ø1/2" VCH-2 VCH-2 Nace C-a Nace C-a Nace C-a Nace C-a Nace C-a A A 1Ø3/8" 0.700.70 VCH-1(0.20x0.20) 0.30 4ø5/8"(Ext)+4ø1/2"(Int) Ø3/8":1@.05, 10@.10,4@.15 R@.20 C/E V-1 (0.25x0.50) ESC. 1/25 0.20 0.25 6ø1/2" Ø1/4":1@.05, 11@.10,4@.15 R@.20 C/E VCH-2 (0.30x0.20) ESC. 1/25 0.20 0.30 0.20 2ø1/2" Ø1/4":1@.05, R@.20 CE CORTE A-A ESC. 1/25 0.15 0.05 4ø1/2" Ø1/4":1@.05, 11@.10,4@.15 R@.20 C/E VCH-1 (0.20x0.20) ESC. 1/25 0.20 0.20 0.20 6ø1/2" Ø1/4":1@.05, 10@.10,4@.15 R@.20 C/E V-2 (0.20x0.40) ESC. 1/25 0.20 0.20 0.30 8ø1/2" Ø1/4":1@.05, 10@.10,4@.15 R@.20 C/E V-3 (0.20x0.50) ESC. 1/25 0.20 0.20 8ø1/2" Ø1/4":1@.05, 11@.10,4@.15 R@.20 C/E VCH-3 (0.40x0.20) ESC. 1/25 0.20 0.40 0.20 6ø1/2" Ø1/4":1@.05, 10@.10,4@.15 R@.20 C/E V-4 (0.15x0.40) ESC. 1/25 0.20 0.15 4ø1/2" Ø1/4":1@.05, 11@.10,4@.15 R@.20 C/E M-1 ESC. 1/25 0.20 0.20 1.05 0.30 Ø3/8"@0.20 Losa Maciza IMPERMEABILIZAR CON ADITIVO .15 .05 .20 Malla de Ø1/4"@.25 (TEMPERATURA) LADRILLO DE 30x30x15cm VIGUETA CONCRETO f'c= 210 kg/cm2 DE LOSA ALIGERADA ESC. 1/25 Losa de 5cm de espesor ESCALA: INDICADA FECHA: Nº DE LAMINA: 03 DE 05 PLANO: ESPECIALIDAD: FIRMA DEL PROFESIONAL RESPONSABLE: UBICACIÓN: PROYECTO: FIRMA DEL PROPIETARIO: OCTUBRE 2020 E-03 ESTRUCTURAS ENCOFRADO 3ER Y 4TO NIVEL DISEÑO: TENSORCORP INGENIEROS OFICINAS Y TALLERES TD ENERGY ING. VICTOR ALEJANDRO C. ASOCIACION PRO VIVIENDA LOS CLAVELES MZ S LT 15, LURIN, LIMA ING. MARCO A. RUIZ MONTOYA
  • 4.
    DE CONCRETO ARMADO ESC.1/50 DETALLE DE TABIQUE EN PORTICO Teknopor min. 3/4" TABIQUE .15 .50 4Ø3/8"/Estr.Ø1/4":1@.05,5@.10,r@.20 4Ø1/4" (corridos) VER DETALLE DP-1 .15 .05 .20 Malla de Ø1/4"@.25 (TEMPERATURA) LADRILLO DE 30x30x15cm VIGUETA CONCRETO f'c= 210 kg/cm2 DE LOSA ALIGERADA ESC. 1/25 Losa de 5cm de espesor Ø3/4" PVC 0.20 0.30 Tabique Columna 2Ø1/2" Ø3/4" PVC 0.20 0.30 Tabique Columna 2Ø1/2" Teknopor min. 1/2" Teknopor min. 1/2" PORTICOPORTICO ANCLAJE DE COLIMNETA ESC. 1/25 DETALLE DP-1 A PORTICO 5/8" Ø 3/4" Ldb(cm) 60 70 3/8" 1/2" 45 Ldb Cuadro de Longitud de Desarrollo en varillas de fierro corrugados 35 1" 112 1. La Longitud de Desarrollo para barras corrugadas y alamabres corrugados a traccion. 2. Para concreto f'c=210 kg/cm2 NOTA: 5/8" Ø 3/4" Ldb(cm)G(cm) 20 25 35 40 1/4" 3/8" 1/2" 10 12 15 28 Ldb GSECCIÓN CRÍTICA Cuadro de ganchos standar en varillas de fierro corrugados 21 12.5 C-1 C-a C-a C-a C-aC-a C-a C-a C-a C-a ENCOFRADO AZOTEA ESC. 1/50 S/C:100 kg/m2 C-a C-a C-a C-a C-a C-a N-1 C-a N-1 N-1 N-1 N-1 N-1 N-1 C-a C-a 6 5 4 3 1 2 1 2 3 4 5 6 B FD E GA C M-1 M-1 M-1 M-1 M-1 M-1 ESCALERAE1 TRAMO6 M-1 M-1 N-1 C-a C-a 1Ø1/2" 1Ø1/2" 1V-4 1V-4 1V-4 1V-4 C-a N.F.P.=+12.40 N.L.=+14.05 N.F.P.=+12.40 Z Z Z Z Z Z Z Z Z Z NL=+0.10 1.49 1.50 0.15 0.90 NL=+1.59 0.10 0.70 0.40 0.45 0.25 0.18 0.23 0.30 0.30 S/C=200 kg/m2 TRAMO 1 ESCALERA E1 e=0.15 Ø3/8"@0.20 ESC. 1/25 0.15 NL=+1.77 1.38 0.90 1.50 NL=+3.15 0.30 0.30 0.30 0.30 0.25 0.18 TRAMO 2 ESCALERA E1 e=var Ø3/8"@0.20 S/C=200 kg/m2 ESC. 1/25 1.24 NL=+5.90 NL=+4.66 0.25 e=0.15 0.20 0.20 0.30 0.18 0.30 1.50 TRAMO 4 ESCALERA E1 0.15 Ø3/8"@0.20 S/C=200 kg/m2 ESC. 1/25 NL=+5.90 NL=+8.65 2.75 NL=+8.65 NL=+11.40 e=0.15 TRAMO 5 y 6 ESCALERA E1 3.50 0.90 0.80 0.30 0.30 0.20 0.20 Ø3/8"@0.20 Ø3/8"@0.20 Ø3/8"@0.20 Ø3/8"@0.20 S/C=200 kg/m2 ESC. 1/25 0.18 0.25 1.50 1.33 0.20 0.20 NL=+3.150.23 NL=+4.48 0.30 0.30 0.30 0.30 e=0.15 TRAMO 3 ESCALERA E1 0.15 0.75 Ø3/8"@0.20 S/C=200 kg/m2 ESC. 1/25 6ø1/2" ø1/4":1@.05, 5@.10, R@.25 0.30 0.20 ESC : 1/25 N-1 (.20x.30) ESCALA: INDICADA FECHA: Nº DE LAMINA: 04 DE 05 PLANO: ESPECIALIDAD: FIRMA DEL PROFESIONAL RESPONSABLE: UBICACIÓN: PROYECTO: FIRMA DEL PROPIETARIO: OCTUBRE 2020 E-04 ESTRUCTURAS ESTRUCTURAS EN AZOTEA ESCALERA E1, DETALLES VARIOS DISEÑO: TENSORCORP INGENIEROS OFICINAS Y TALLERES TD ENERGY ING. VICTOR ALEJANDRO C. ASOCIACION PRO VIVIENDA LOS CLAVELES MZ S LT 15, LURIN, LIMA ING. MARCO A. RUIZ MONTOYA
  • 5.
    "L" "T" L L L L 3/8" Ø L 0.25 1/2" 0.30 5/8"0.50 Dobla según cuadro 0.15 0.05 VIGAS CHATAS ESC. 1/25 VISTA EN PLANTA DE ENTREGA DE VIGA CHATA ESC. 1/25 m m h 1. NO EMPALMAR MAS DEL 50% DEL AREA TOTAL EN UNA SECCION. 2. EN CASO DE NO EMPALMARSE EN LAS ZONAS INDICADAS O CON LOS PORCENTAJES ESPECIFICADOS, AUMENTAR LA LONGITUD DE EMPALME EN UN 70% O CONSULTAR AL PROYECTISTA. NOTA: VIGAS ESC. 1/25 DETALLE DE EMPALME EN Ø Valores de "m" 3/8" 0.30 m 1/2" 0.45 m 5/8" 0.55 m 3/4" 0.65 m Refuerzo inferior "H" cualquiera Refuerzo superior h<30 h>30 0.30 m 0.45 m 0.55 m 0.65 m 0.45 m 0.60 m 0.75 m 0.90 m 1" 1.15 m1.15 m 1.60 m L/4 L/4 L/4 L/4 L/3 L/3 L/3 Ø3/8"@d/4 (100 max.) TIP. EN EMPALMES S.I.C SOLO PARA VIGAS 0.30 Llenar concreto entre muros dentados REMATE ESC. 1/25 0.300.30 EXTERIOR INTERIOR Acero ACERO 2 alambres #8 cada tres hiladas 0.50 0.50 COLUMNA Columna 0.50 2 alambres #8 cada tres hiladas Llenar concreto entre muros dentados DETALLE DE COLUMNAS 1/4" Ø 3/8" 1/2" aR 2 cm 3 cm 4 cm 10 cm 15 cm 18 cm VIGAS Y COLUMNAS ESC. 1/50 DOBLADO DE ESTRIBOS a 45° 45° R Ø DE COLUMNA O VIGA 0.30 4ø5/8"(Ext)+6ø1/2"(Int) Ø3/8":1@.05, 10@.10,4@.15 R@.20 C/E CORTE B-B ESC. 1/25 0.20 0.25 0.30 CORTE C-C ESC. 1/25 4ø5/8"(Ext)+6ø1/2"(Int) Ø3/8":1@.05, 10@.10,4@.15 R@.20 C/E 0.20 0.25 0.30 ESC. 1/25 6ø5/8"(Ext)+4ø1/2"(Int) Ø3/8":1@.05, 10@.10,4@.15 R@.20 C/E CORTE D-D 0.20 0.25 0.30 6ø5/8"(Ext)+4ø1/2"(Int) Ø3/8":1@.05, 10@.10,4@.15 R@.20 C/E CORTE E-E ESC. 1/25 0.20 0.25 B FD B FD B FD B FD DESARROLLO V-7 (0.25x0.50) ESC. 1/25 5 5 5 4 4 4 3 3 3 2 2 2 1.65 1.65 B B 1.65 B F C 2Ø1/2" F BB C BB 1.65 C 2Ø1/2" C B 1.50 B 1.35 2Ø1/2" 1.20 C 1.20 0.95 2Ø1/2" 0.95 1.50 B 1.35 2Ø1/2" 1.05 1.50 1.65 1.50 1.65 C C D D D E D E B B C C D B D C B 0.651.85 F 1.65 F 1.65 1.50 1.65 1.50 1.50 DESARROLLO V-6 (0.25x0.50) ESC. 1/25 DESARROLLO V-5 (0.25x0.50) ESC. 1/25 DESARROLLO V-4 (0.25x0.50) ESC. 1/25 2Ø5/8"+1Ø1/2 2Ø5/8"+1Ø1/2 2Ø5/8"+1Ø1/2 2Ø5/8"+1Ø1/2 2Ø5/8"+1Ø1/2 2Ø5/8"+1Ø1/2 2Ø5/8"+1Ø1/2 2Ø5/8"+1Ø1/2 2Ø5/8"+1Ø1/2 2Ø5/8"+1Ø1/22Ø5/8"+1Ø1/2 2Ø5/8"+1Ø1/2 2Ø5/8"+1Ø1/2 2Ø5/8"+1Ø1/22Ø5/8"+1Ø1/2 2Ø5/8"+1Ø1/2 1.35 2Ø1/2" 2Ø1/2" 2Ø5/8" 2Ø5/8"+Ø1/2" 2Ø5/8"+Ø1/2"2Ø1/2" 2Ø1/2" 2Ø1/2" 2Ø1/2" 2Ø1/2" 2Ø5/8" NL=+0.10 0.15 NL=+1.59 0.23 0.10 1.49 TRAMO 1 ESCALERA E2 0.25 0.18 S/C=200 kg/m2 ESC. 1/25 Ø3/8"@0.20 Ø3/8"@0.20 Ø3/8"@0.20 0.40 0.30 0.30 e=0.15 0.72 0.18 0.20 0.20 0.18 TRAMO 2,5 ESCALERA E2 0.30 0.30 S/C=200 kg/m2 ESC. 1/25 Ø3/8"@0.20 0.25 0.18 Ø3/8"@0.20 0.30 0.30 Ø3/8"@0.20 0.72 0.18 0.20 0.20 0.18 TRAMO 2,5 ESCALERA E2 0.30 0.30 S/C=200 kg/m2 ESC. 1/25 Ø3/8"@0.20 0.25 0.18 Ø3/8"@0.20 0.30 0.30 Ø3/8"@0.20 0.15 0.85 0.18 0.20 0.18 0.25 TRAMO 3,6 ESCALERA E2 0.20 S/C=200 kg/m2 ESC. 1/25 Ø3/8"@0.20 0.30 Ø3/8"@0.20 Ø3/8"@0.20 0.30 0.30 0.30 0.15 TRAMO 4 ESCALERA E2 0.25 0.20 0.18 0.20 1.10 1.00 0.30 S/C=200 kg/m2 ESC. 1/25 Ø3/8"@0.200.30 Ø3/8"@0.20 Ø3/8"@0.20 e=0.15 1.76 NL=+0.10 NL=+1.76 0.15 S/C=200 kg/m2 TRAMO 1 ESCALERA E3 ESC. 1/25 0.19 0.25 0.75 Ø3/8"@0.20 Ø3/8"@0.20 0.30 0.30 e=0.15 TRAMO 2 S/C=200 kg/m2 ESCALERA E3 ESC. 1/25 0.19 Ø3/8"@0.20 0.30 0.15 0.15 NL=+3.15 TRAMO 3 S/C=200 kg/m2 ESCALERA E3 ESC. 1/25 V-1 0.25 0.19 Ø3/8"@0.20 e=0.15 0.15 0.75 TRAMO 4,7 ESC. 1/25 S/C=200 kg/m2 ESCALERA E3 0.18 0.25 Ø3/8"@0.20 e=0.15 0.75 0.15 V-1 1.52 S/C=200 kg/m2 TRAMO 5, 8 ESCALERA E3 ESC. 1/25 0.18 Ø3/8"@0.20 0.30 0.15 0.92 e=0.15 S/C=200 kg/m2 TRAMO 6, 9 ESCALERA E3 ESC. 1/25 V-1 0.25 0.18 Ø3/8"@0.20 1.05 0.15 e=0.15 0.75 ESCALA: INDICADA FECHA: Nº DE LAMINA: 05 DE 05 PLANO: ESPECIALIDAD: FIRMA DEL PROFESIONAL RESPONSABLE: UBICACIÓN: PROYECTO: FIRMA DEL PROPIETARIO: OCTUBRE 2020 E-05 ESTRUCTURAS DESARROLLO DE VIGAS Y ESCALERAS E2, E3 DETALLES VARIOS DISEÑO: TENSORCORP INGENIEROS OFICINAS Y TALLERES TD ENERGY ING. VICTOR ALEJANDRO C. ASOCIACION PRO VIVIENDA LOS CLAVELES MZ S LT 15, LURIN, LIMA ING. MARCO A. RUIZ MONTOYA