PRECISION DIE CASTING INC
THIẾT KẾ CONCEPT
DỰ ÁN: VĂNP
H
Ò
N
GL
À
MV
I
Ệ
CN
H
ÀM
Á
YC
H
ẾT
Ạ
OC
Ô
N
GN
G
H
ỆC
.
Q
.
S
ĐỊA ĐIỂM XÂY DỰNG: SỐ 9, KCN HỐ NAI, XÃ HỐ NAI 3, HUYỆN TRẢNG BOM, ĐỒNG NAI.
項目:...
建设地址 :...
WC MEN
BACK
STAGE
(HẬU
ĐÀI)
MEETING ROOM
TRAINING ROOM
(P.ĐÀO TẠO)
RECEPTION
(LỄ TÂN)
±0.000
SHOWROOM
(KHU TRƯNG BÀY)
MEP
auto sliding doors
WC WOMEN
R2
800
1400
-0.500
MEETING ROOM
MEETING
ROOM
PANTRY
(TRÀ NƯỚC)
1
3
5
7
9
11
13
15
17
19
21
23
25
1
3
5
7
9
11
15
17
19
21
23
25 up
KHO
(STORAGE)
PANTRY
LẦN NỘI DUNG PHÁT HÀNH
NGÀY
PHƯƠNG ÁN -
V
Ă
N
P
H
Ò
N
G
N
H
À
M
Á
Y
C
H
Ế
T
Ạ
O
C
Ô
N
G
N
G
H
Ệ
C
.
Q
.
S
BỘ MÔN -
KIẾN TRÚC - ARCHITECTURE
LOẠI
HỒ
SƠ
HỒ SƠ ĐẤU THẦU -
THIẾT KẾ CƠ SỞ -
THIẾT KẾ THI CÔNG -
DỰ ÁN -
TÊN BẢN VẼ -
HẠNG MỤC -
07/2022
THIẾT KẾ KỸ THUẬT -
CHỦ ĐẦU TƯ -
CHỦ TRÌ THIẾT KẾ -
GIÁM ĐỐC -
THIẾT KẾ 1 -
KIỂM TRA -
KTS. TRẦN HOÀI ANH
KTS. NGUYỄN THỊ THÚY
档案
次数 发行内容
日期
HOÀN THÀNH
完成日期
TỶ LỆ
比例
SỐ HIỆU BẢN VẼ
圖號
TỔNG THẦU -
ĐỊA CHỈ: TẦNG 2-4, TÒA B - KDTM KIM VĂN - KIM LŨ, QUẬN HOÀNG MAI, HÀ NỘI
-
-
C
Ô
N
G
T
Y
C
Ổ
P
H
Ầ
N
Đ
Ầ
U
T
Ư
V
À
X
Â
Y
D
Ự
N
G
V
I
N
A
2
-
C
Ô
N
G
T
Y
C
Ổ
P
H
Ầ
N
Đ
Ú
C
C
H
Í
N
H
X
Á
C
C
.
Q
.
S
M
A
Y
'
S
中譽精密壓鑄股份有限公司
VINA2號投資及建設股份公司
越南河內市黃梅郡金江坊金文金呂新城區B東2-4樓
方案
投标资料
初步设计
施工设计
技术设计
工程
業主
總包
部門
圖檔名稱
項目
設計主任
經理
1 設計師
檢查
KTS. TRẦN HOÀI ANH
THIẾT KẾ 2 - 2 設計師
建築
ĐỊA CHỈ: SỐ 9, KCN HỐ NAI, XÃ HỐ NAI 3, HUYỆN TRẢNG BOM, ĐỒNG NAI.
地址:...................................................................
ĐỊA CHỈ: SỐ 9, KCN HỐ NAI, XÃ HỐ NAI 3, HUYỆN TRẢNG BOM, ĐỒNG NAI.
地址:...................................................................
7000
6550
7000
900
20550
1500
1500
23550
5700
12150
5700
7000
6550
7000
900
20550
1500
1500
23550
5700
12150
5700
8000 4700 4800 4700 8000
1400 30200 1400
33000
Y1
Y2
Y1A
Y3
Y4
Y1
Y2
Y1A
Y3
Y4
X1 X2 X3 X4 X5 X6
1
MẶT BẰNG TẦNG 1
TỶ LỆ 1/150
5000 23000 5000
5000 4250 1275 11950 1275 4250 5000
33000
5900
1600
Y1B
7500
5900
1600
Y1B
7500
450
900
450
2400
1500
200
2100
500
2225
2100
2225
900
1200
700
1500
500
450
500
450
500
1800
1450 2100 1450 1650 2100 400
500
1050 2100 950 500 4500 500 950 2099 1050
500
400 2100 600
750
300 1800 1200 2000
600
600
900
600
675
600
650
600
475
300
1200
1850
1200
4800
500
2100
200
4350
900
450
1350
500
450
500
450
500
1250 487 3275 487 1275 3425 300 4500 300 3425 1275 488 3275 487 1250
500
450
500
450
500
1350
1200
3125
100
2125
WC MEN
WC WOMEN
R2
800
1400
+4.200
SẢNH
(LOBBY)
SEVER
VICE GENERAL
DIRECTOR
(P.PHÓ TỔNG)
PHÒNG IT
(IT ROOM)
CCTV
QC ROOM
(P.QLCL)
H.R ROOM
(P.NHÂN SỰ)
PURCHASING
(P.THU MUA)
IMPORT-EXPORT
(P. XNK)
SECURITY
(P.AN NINH)
SALES
(P.KINH DOANH)
1
3
5
7
9
11
13
15
17
19
21
23
25
up
down
1
3
5
7
9
11
13
15
17
19
21
23
25 up
down
LẦN NỘI DUNG PHÁT HÀNH
NGÀY
PHƯƠNG ÁN -
V
Ă
N
P
H
Ò
N
G
N
H
À
M
Á
Y
C
H
Ế
T
Ạ
O
C
Ô
N
G
N
G
H
Ệ
C
.
Q
.
S
BỘ MÔN -
KIẾN TRÚC - ARCHITECTURE
LOẠI
HỒ
SƠ
HỒ SƠ ĐẤU THẦU -
THIẾT KẾ CƠ SỞ -
THIẾT KẾ THI CÔNG -
DỰ ÁN -
TÊN BẢN VẼ -
HẠNG MỤC -
07/2022
THIẾT KẾ KỸ THUẬT -
CHỦ ĐẦU TƯ -
CHỦ TRÌ THIẾT KẾ -
GIÁM ĐỐC -
THIẾT KẾ 1 -
KIỂM TRA -
KTS. TRẦN HOÀI ANH
KTS. NGUYỄN THỊ THÚY
档案
次数 发行内容
日期
HOÀN THÀNH
完成日期
TỶ LỆ
比例
SỐ HIỆU BẢN VẼ
圖號
TỔNG THẦU -
ĐỊA CHỈ: TẦNG 2-4, TÒA B - KDTM KIM VĂN - KIM LŨ, QUẬN HOÀNG MAI, HÀ NỘI
-
-
C
Ô
N
G
T
Y
C
Ổ
P
H
Ầ
N
Đ
Ầ
U
T
Ư
V
À
X
Â
Y
D
Ự
N
G
V
I
N
A
2
-
C
Ô
N
G
T
Y
C
Ổ
P
H
Ầ
N
Đ
Ú
C
C
H
Í
N
H
X
Á
C
C
.
Q
.
S
M
A
Y
'
S
中譽精密壓鑄股份有限公司
VINA2號投資及建設股份公司
越南河內市黃梅郡金江坊金文金呂新城區B東2-4樓
方案
投标资料
初步设计
施工设计
技术设计
工程
業主
總包
部門
圖檔名稱
項目
設計主任
經理
1 設計師
檢查
KTS. TRẦN HOÀI ANH
THIẾT KẾ 2 - 2 設計師
建築
ĐỊA CHỈ: SỐ 9, KCN HỐ NAI, XÃ HỐ NAI 3, HUYỆN TRẢNG BOM, ĐỒNG NAI.
地址:...................................................................
ĐỊA CHỈ: SỐ 9, KCN HỐ NAI, XÃ HỐ NAI 3, HUYỆN TRẢNG BOM, ĐỒNG NAI.
地址:...................................................................
7000
6550
7000
900
20550
1500
1500
23550
5700
12150
5700
7000
6550
7000
900
20550
1500
1500
23550
5700
12150
5700
8000 4700 4800 4700 8000
1400 30200 1400
33000
Y1
Y2
Y1A
Y3
Y4
Y1
Y2
Y1A
Y3
Y4
X1 X2 X3 X4 X5 X6
1
MẶT BẰNG TẦNG 2
TỶ LỆ 1/150
5000 23000 5000
5000 4250 1275 11950 1275 4250 5000
33000
5900
1600
Y1B
7500
5900
1600
Y1B
7500
1975 1600 4800 1600 1975 1275
1275
450
900
450
2400
1500
501
2099
200
2225
2100
1200
900
1200
700
1500
500
450
500
450
500
1800
1450 2100 1450 1650 2100 400
500
1050 2100 950 500 4500 500 950 2099 1050
500
400 2100 600
750
300 1800 1200 2000
600
600
900
600
675
600
650
600
475
300
1200
1850
1200
4800
200
2099
500
4350
900
450
475
550
1350
500
450
500
450
500
1250 487 3275 487 1275 1275 488 3275 487 1250
500
450
500
450
500
1350
11950
+8.400
LOBBY
WC MEN
WC WOMEN
R2
800
1400
WC
CHAIRMAN
(P.CHỦ TỊCH)
WINE ROOM
VICE GENERAL
DIRECTOR
(P.PHÓ TỔNG)
DOCUMENTS ROOM
P.LƯU TRỮ
CONSTRUCTION
(P.CÔNG TRÌNH)
ACCOUNTANT
(P.KẾ TOÁN)
PANTRY
1
3
5
7
9
11
13
15
17
19
21
23
25
up
down
1
3
5
7
9
11
13
15
17
19
21
23
25 up
down
LẦN NỘI DUNG PHÁT HÀNH
NGÀY
PHƯƠNG ÁN -
V
Ă
N
P
H
Ò
N
G
N
H
À
M
Á
Y
C
H
Ế
T
Ạ
O
C
Ô
N
G
N
G
H
Ệ
C
.
Q
.
S
BỘ MÔN -
KIẾN TRÚC - ARCHITECTURE
LOẠI
HỒ
SƠ
HỒ SƠ ĐẤU THẦU -
THIẾT KẾ CƠ SỞ -
THIẾT KẾ THI CÔNG -
DỰ ÁN -
TÊN BẢN VẼ -
HẠNG MỤC -
07/2022
THIẾT KẾ KỸ THUẬT -
CHỦ ĐẦU TƯ -
CHỦ TRÌ THIẾT KẾ -
GIÁM ĐỐC -
THIẾT KẾ 1 -
KIỂM TRA -
KTS. TRẦN HOÀI ANH
KTS. NGUYỄN THỊ THÚY
档案
次数 发行内容
日期
HOÀN THÀNH
完成日期
TỶ LỆ
比例
SỐ HIỆU BẢN VẼ
圖號
TỔNG THẦU -
ĐỊA CHỈ: TẦNG 2-4, TÒA B - KDTM KIM VĂN - KIM LŨ, QUẬN HOÀNG MAI, HÀ NỘI
-
-
C
Ô
N
G
T
Y
C
Ổ
P
H
Ầ
N
Đ
Ầ
U
T
Ư
V
À
X
Â
Y
D
Ự
N
G
V
I
N
A
2
-
C
Ô
N
G
T
Y
C
Ổ
P
H
Ầ
N
Đ
Ú
C
C
H
Í
N
H
X
Á
C
C
.
Q
.
S
M
A
Y
'
S
中譽精密壓鑄股份有限公司
VINA2號投資及建設股份公司
越南河內市黃梅郡金江坊金文金呂新城區B東2-4樓
方案
投标资料
初步设计
施工设计
技术设计
工程
業主
總包
部門
圖檔名稱
項目
設計主任
經理
1 設計師
檢查
KTS. TRẦN HOÀI ANH
THIẾT KẾ 2 - 2 設計師
建築
ĐỊA CHỈ: SỐ 9, KCN HỐ NAI, XÃ HỐ NAI 3, HUYỆN TRẢNG BOM, ĐỒNG NAI.
地址:...................................................................
ĐỊA CHỈ: SỐ 9, KCN HỐ NAI, XÃ HỐ NAI 3, HUYỆN TRẢNG BOM, ĐỒNG NAI.
地址:...................................................................
7000
6550
7000
900
20550
1500
1500
23550
5700
12150
5700
7000
6550
7000
900
20550
1500
1500
23550
5700
12150
5700
8000 4700 4800 4700 8000
1400 30200 1400
33000
Y1
Y2
Y1A
Y3
Y4
Y1
Y2
Y1A
Y3
Y4
X1 X2 X3 X4 X5 X6
1
MẶT BẰNG TẦNG 3
TỶ LỆ 1/150
5000 23000 5000
5000 4250 1275 11950 1275 4250 5000
33000
501
2099
200
450
900
450
2400
1500
501
2099
200
2225
2100
1200
900
1200
700
1500
500
450
500
450
500
1800
1450 2100 1450 1650 2100 400
500
1050 2100 950 500 4500 500 950 2099 1050
500
400 2100 600
750
300 1800 1200 2000
600
600
900
600
675
600
650
600
475
300
1200
1850
1200
4800
200
2099
500
4350
900
450
475
550
1350
500
450
500
450
500
1250 487 3275 487 1275 1275 488 3275 487 1250
500
450
500
450
500
1350
11950
R2
800
1400
KITCHEN
WC
WC WC
+12.600
LOBBY
(SẢNH)
DINING ROOM
GYM & YOGA
RUN
700
WC
WC
WC WC
21
23
25
up
down
1
3
5
1
3
5
7
9
11
13
15
17
19
21
23
25
down
BALCONY BALCONY
BALCONY BALCONY
LẦN NỘI DUNG PHÁT HÀNH
NGÀY
PHƯƠNG ÁN -
V
Ă
N
P
H
Ò
N
G
N
H
À
M
Á
Y
C
H
Ế
T
Ạ
O
C
Ô
N
G
N
G
H
Ệ
C
.
Q
.
S
BỘ MÔN -
KIẾN TRÚC - ARCHITECTURE
LOẠI
HỒ
SƠ
HỒ SƠ ĐẤU THẦU -
THIẾT KẾ CƠ SỞ -
THIẾT KẾ THI CÔNG -
DỰ ÁN -
TÊN BẢN VẼ -
HẠNG MỤC -
07/2022
THIẾT KẾ KỸ THUẬT -
CHỦ ĐẦU TƯ -
CHỦ TRÌ THIẾT KẾ -
GIÁM ĐỐC -
THIẾT KẾ 1 -
KIỂM TRA -
KTS. TRẦN HOÀI ANH
KTS. NGUYỄN THỊ THÚY
档案
次数 发行内容
日期
HOÀN THÀNH
完成日期
TỶ LỆ
比例
SỐ HIỆU BẢN VẼ
圖號
TỔNG THẦU -
ĐỊA CHỈ: TẦNG 2-4, TÒA B - KDTM KIM VĂN - KIM LŨ, QUẬN HOÀNG MAI, HÀ NỘI
-
-
C
Ô
N
G
T
Y
C
Ổ
P
H
Ầ
N
Đ
Ầ
U
T
Ư
V
À
X
Â
Y
D
Ự
N
G
V
I
N
A
2
-
C
Ô
N
G
T
Y
C
Ổ
P
H
Ầ
N
Đ
Ú
C
C
H
Í
N
H
X
Á
C
C
.
Q
.
S
M
A
Y
'
S
中譽精密壓鑄股份有限公司
VINA2號投資及建設股份公司
越南河內市黃梅郡金江坊金文金呂新城區B東2-4樓
方案
投标资料
初步设计
施工设计
技术设计
工程
業主
總包
部門
圖檔名稱
項目
設計主任
經理
1 設計師
檢查
KTS. TRẦN HOÀI ANH
THIẾT KẾ 2 - 2 設計師
建築
ĐỊA CHỈ: SỐ 9, KCN HỐ NAI, XÃ HỐ NAI 3, HUYỆN TRẢNG BOM, ĐỒNG NAI.
地址:...................................................................
ĐỊA CHỈ: SỐ 9, KCN HỐ NAI, XÃ HỐ NAI 3, HUYỆN TRẢNG BOM, ĐỒNG NAI.
地址:...................................................................
7000
6550
7000
900
20550
1500
1500
23550
5700
12150
5700
7000
6550
7000
900
20550
1500
1500
23550
5700
12150
5700
8000 4700 4800 4700 8000
1400 30200 1400
33000
Y1
Y2
Y1A
Y3
Y4
Y1
Y2
Y1A
Y3
Y4
X1 X2 X3 X4 X5 X6
1
MẶT BẰNG TẦNG 4
TỶ LỆ 1/150
5000 23000 5000
5000 4250 1275 11950 1275 4250 5000
33000
5700
501
2099
200
2225
2100
1200
900
1200
700
5700
1450 2100 1450 1650 2100 400
500
1050 2100 950 500 4500 500 950 2099 1050
500
400 2100 600
750
300 1800 1200 2000
5700
899
200
2099
500
5700
475
550
701
600
900
3650
2800
5000 487 3275 487 1275 1275 488 3275 487 5000
11950
1
3
5
7
9
11
13
15
17
+15.900
Tủ
điện
+17.700
LẦN NỘI DUNG PHÁT HÀNH
NGÀY
PHƯƠNG ÁN -
V
Ă
N
P
H
Ò
N
G
N
H
À
M
Á
Y
C
H
Ế
T
Ạ
O
C
Ô
N
G
N
G
H
Ệ
C
.
Q
.
S
BỘ MÔN -
KIẾN TRÚC - ARCHITECTURE
LOẠI
HỒ
SƠ
HỒ SƠ ĐẤU THẦU -
THIẾT KẾ CƠ SỞ -
THIẾT KẾ THI CÔNG -
DỰ ÁN -
TÊN BẢN VẼ -
HẠNG MỤC -
07/2022
THIẾT KẾ KỸ THUẬT -
CHỦ ĐẦU TƯ -
CHỦ TRÌ THIẾT KẾ -
GIÁM ĐỐC -
THIẾT KẾ 1 -
KIỂM TRA -
KTS. TRẦN HOÀI ANH
KTS. NGUYỄN THỊ THÚY
档案
次数 发行内容
日期
HOÀN THÀNH
完成日期
TỶ LỆ
比例
SỐ HIỆU BẢN VẼ
圖號
TỔNG THẦU -
ĐỊA CHỈ: TẦNG 2-4, TÒA B - KDTM KIM VĂN - KIM LŨ, QUẬN HOÀNG MAI, HÀ NỘI
-
-
C
Ô
N
G
T
Y
C
Ổ
P
H
Ầ
N
Đ
Ầ
U
T
Ư
V
À
X
Â
Y
D
Ự
N
G
V
I
N
A
2
-
C
Ô
N
G
T
Y
C
Ổ
P
H
Ầ
N
Đ
Ú
C
C
H
Í
N
H
X
Á
C
C
.
Q
.
S
M
A
Y
'
S
中譽精密壓鑄股份有限公司
VINA2號投資及建設股份公司
越南河內市黃梅郡金江坊金文金呂新城區B東2-4樓
方案
投标资料
初步设计
施工设计
技术设计
工程
業主
總包
部門
圖檔名稱
項目
設計主任
經理
1 設計師
檢查
KTS. TRẦN HOÀI ANH
THIẾT KẾ 2 - 2 設計師
建築
ĐỊA CHỈ: SỐ 9, KCN HỐ NAI, XÃ HỐ NAI 3, HUYỆN TRẢNG BOM, ĐỒNG NAI.
地址:...................................................................
ĐỊA CHỈ: SỐ 9, KCN HỐ NAI, XÃ HỐ NAI 3, HUYỆN TRẢNG BOM, ĐỒNG NAI.
地址:...................................................................
7000
6550
7000
900
20550
1500
1500
23550
5700
12150
5700
7000
6550
7000
900
20550
1500
1500
23550
5700
12150
5700
8000 4700 4800 4700 8000
1400 30200 1400
33000
Y1
Y2
Y1A
Y3
Y4
Y1
Y2
Y1A
Y3
Y4
X1 X2 X3 X4 X5 X6
1
MẶT BẰNG MÁI
TỶ LỆ 1/150
5000 23000 5000
7850 14500 7850
30200
PRECISION DIE CASTING INC
LẦN NỘI DUNG PHÁT HÀNH
NGÀY
PHƯƠNG ÁN -
V
Ă
N
P
H
Ò
N
G
N
H
À
M
Á
Y
C
H
Ế
T
Ạ
O
C
Ô
N
G
N
G
H
Ệ
C
.
Q
.
S
BỘ MÔN -
KIẾN TRÚC - ARCHITECTURE
LOẠI
HỒ
SƠ
HỒ SƠ ĐẤU THẦU -
THIẾT KẾ CƠ SỞ -
THIẾT KẾ THI CÔNG -
DỰ ÁN -
TÊN BẢN VẼ -
HẠNG MỤC -
07/2022
THIẾT KẾ KỸ THUẬT -
CHỦ ĐẦU TƯ -
CHỦ TRÌ THIẾT KẾ -
GIÁM ĐỐC -
THIẾT KẾ 1 -
KIỂM TRA -
KTS. TRẦN HOÀI ANH
KTS. NGUYỄN THỊ THÚY
档案
次数 发行内容
日期
HOÀN THÀNH
完成日期
TỶ LỆ
比例
SỐ HIỆU BẢN VẼ
圖號
TỔNG THẦU -
ĐỊA CHỈ: TẦNG 2-4, TÒA B - KDTM KIM VĂN - KIM LŨ, QUẬN HOÀNG MAI, HÀ NỘI
-
-
C
Ô
N
G
T
Y
C
Ổ
P
H
Ầ
N
Đ
Ầ
U
T
Ư
V
À
X
Â
Y
D
Ự
N
G
V
I
N
A
2
-
C
Ô
N
G
T
Y
C
Ổ
P
H
Ầ
N
Đ
Ú
C
C
H
Í
N
H
X
Á
C
C
.
Q
.
S
M
A
Y
'
S
中譽精密壓鑄股份有限公司
VINA2號投資及建設股份公司
越南河內市黃梅郡金江坊金文金呂新城區B東2-4樓
方案
投标资料
初步设计
施工设计
技术设计
工程
業主
總包
部門
圖檔名稱
項目
設計主任
經理
1 設計師
檢查
KTS. TRẦN HOÀI ANH
THIẾT KẾ 2 - 2 設計師
建築
ĐỊA CHỈ: SỐ 9, KCN HỐ NAI, XÃ HỐ NAI 3, HUYỆN TRẢNG BOM, ĐỒNG NAI.
地址:...................................................................
ĐỊA CHỈ: SỐ 9, KCN HỐ NAI, XÃ HỐ NAI 3, HUYỆN TRẢNG BOM, ĐỒNG NAI.
地址:...................................................................
8000 4700 4800 4700 8000
1400 30200 1400
33000
X1 X2 X3 X4 X5 X6
5000 23000 5000
1
MẶT ĐỨNG TRỤC X1-X6
TỶ LỆ 1/150
500
4200
4200
4200
3300
1200
500
18100
± 0.000
+4.200
+8.400
+12.600
+15.900
500
4200
4200
4200
3300
1200
500
18100
± 0.000
+4.200
+8.400
+12.600
+15.900
GẠCH THẺ MẦU GHI SÁNG
GẠCH THẺ MẦU GHI ĐẬM
GẠCH THẺ MẦU GHI SÁNG
GẠCH THẺ MẦU GHI SÁNG VÁCH KÍNH CƯỜNG LỰC
VÁCH KÍNH CƯỜNG LỰC
VÁCH KÍNH CƯỜNG LỰC
CỬA SỔ NHÔM KÍNH CỬA SỔ NHÔM KÍNH
ĐÁ GRANITE TỰ NHIÊN MẦU VÀNG SÁNG
PRECISION DIE CASTING INC
LẦN NỘI DUNG PHÁT HÀNH
NGÀY
PHƯƠNG ÁN -
V
Ă
N
P
H
Ò
N
G
N
H
À
M
Á
Y
C
H
Ế
T
Ạ
O
C
Ô
N
G
N
G
H
Ệ
C
.
Q
.
S
BỘ MÔN -
KIẾN TRÚC - ARCHITECTURE
LOẠI
HỒ
SƠ
HỒ SƠ ĐẤU THẦU -
THIẾT KẾ CƠ SỞ -
THIẾT KẾ THI CÔNG -
DỰ ÁN -
TÊN BẢN VẼ -
HẠNG MỤC -
07/2022
THIẾT KẾ KỸ THUẬT -
CHỦ ĐẦU TƯ -
CHỦ TRÌ THIẾT KẾ -
GIÁM ĐỐC -
THIẾT KẾ 1 -
KIỂM TRA -
KTS. TRẦN HOÀI ANH
KTS. NGUYỄN THỊ THÚY
档案
次数 发行内容
日期
HOÀN THÀNH
完成日期
TỶ LỆ
比例
SỐ HIỆU BẢN VẼ
圖號
TỔNG THẦU -
ĐỊA CHỈ: TẦNG 2-4, TÒA B - KDTM KIM VĂN - KIM LŨ, QUẬN HOÀNG MAI, HÀ NỘI
-
-
C
Ô
N
G
T
Y
C
Ổ
P
H
Ầ
N
Đ
Ầ
U
T
Ư
V
À
X
Â
Y
D
Ự
N
G
V
I
N
A
2
-
C
Ô
N
G
T
Y
C
Ổ
P
H
Ầ
N
Đ
Ú
C
C
H
Í
N
H
X
Á
C
C
.
Q
.
S
M
A
Y
'
S
中譽精密壓鑄股份有限公司
VINA2號投資及建設股份公司
越南河內市黃梅郡金江坊金文金呂新城區B東2-4樓
方案
投标资料
初步设计
施工设计
技术设计
工程
業主
總包
部門
圖檔名稱
項目
設計主任
經理
1 設計師
檢查
KTS. TRẦN HOÀI ANH
THIẾT KẾ 2 - 2 設計師
建築
ĐỊA CHỈ: SỐ 9, KCN HỐ NAI, XÃ HỐ NAI 3, HUYỆN TRẢNG BOM, ĐỒNG NAI.
地址:...................................................................
ĐỊA CHỈ: SỐ 9, KCN HỐ NAI, XÃ HỐ NAI 3, HUYỆN TRẢNG BOM, ĐỒNG NAI.
地址:...................................................................
8000 4700 4800 4700 8000
1400 30200 1400
33000
X1 X2 X3 X4 X5 X6
5000 23000 5000
1
MẶT ĐỨNG TRỤC X6-X1
TỶ LỆ 1/150
500
4200
4200
4200
3300
1200
500
18100
± 0.000
+4.200
+8.400
+12.600
+15.900
500
4200
4200
4200
3300
1200
500
18100
± 0.000
+4.200
+8.400
+12.600
+15.900
VÁCH KÍNH CƯỜNG LỰC
GẠCH THẺ MẦU GHI SÁNG
GẠCH THẺ MẦU GHI ĐẬM
GẠCH THẺ MẦU GHI SÁNG
GẠCH THẺ MẦU GHI SÁNG GẠCH THẺ MẦU GHI ĐẬM
CỬA SỔ NHÔM KÍNH CỬA SỔ NHÔM KÍNH
LẦN NỘI DUNG PHÁT HÀNH
NGÀY
PHƯƠNG ÁN -
V
Ă
N
P
H
Ò
N
G
N
H
À
M
Á
Y
C
H
Ế
T
Ạ
O
C
Ô
N
G
N
G
H
Ệ
C
.
Q
.
S
BỘ MÔN -
KIẾN TRÚC - ARCHITECTURE
LOẠI
HỒ
SƠ
HỒ SƠ ĐẤU THẦU -
THIẾT KẾ CƠ SỞ -
THIẾT KẾ THI CÔNG -
DỰ ÁN -
TÊN BẢN VẼ -
HẠNG MỤC -
07/2022
THIẾT KẾ KỸ THUẬT -
CHỦ ĐẦU TƯ -
CHỦ TRÌ THIẾT KẾ -
GIÁM ĐỐC -
THIẾT KẾ 1 -
KIỂM TRA -
KTS. TRẦN HOÀI ANH
KTS. NGUYỄN THỊ THÚY
档案
次数 发行内容
日期
HOÀN THÀNH
完成日期
TỶ LỆ
比例
SỐ HIỆU BẢN VẼ
圖號
TỔNG THẦU -
ĐỊA CHỈ: TẦNG 2-4, TÒA B - KDTM KIM VĂN - KIM LŨ, QUẬN HOÀNG MAI, HÀ NỘI
-
-
C
Ô
N
G
T
Y
C
Ổ
P
H
Ầ
N
Đ
Ầ
U
T
Ư
V
À
X
Â
Y
D
Ự
N
G
V
I
N
A
2
-
C
Ô
N
G
T
Y
C
Ổ
P
H
Ầ
N
Đ
Ú
C
C
H
Í
N
H
X
Á
C
C
.
Q
.
S
M
A
Y
'
S
中譽精密壓鑄股份有限公司
VINA2號投資及建設股份公司
越南河內市黃梅郡金江坊金文金呂新城區B東2-4樓
方案
投标资料
初步设计
施工设计
技术设计
工程
業主
總包
部門
圖檔名稱
項目
設計主任
經理
1 設計師
檢查
KTS. TRẦN HOÀI ANH
THIẾT KẾ 2 - 2 設計師
建築
ĐỊA CHỈ: SỐ 9, KCN HỐ NAI, XÃ HỐ NAI 3, HUYỆN TRẢNG BOM, ĐỒNG NAI.
地址:...................................................................
ĐỊA CHỈ: SỐ 9, KCN HỐ NAI, XÃ HỐ NAI 3, HUYỆN TRẢNG BOM, ĐỒNG NAI.
地址:...................................................................
7000 6550 7000 900
20550 1500
1500
23550
5700 12150 5700
Y1
Y2 Y1A
Y3
Y4
5900 1600
Y1B
7500
500
4200
4200
4200
3300
1200
500
18100
± 0.000
+4.200
+8.400
+12.600
+15.900
500
4200
4200
4200
3300
1200
500
18100
± 0.000
+4.200
+8.400
+12.600
+15.900
GẠCH THẺ MẦU GHI SÁNG
GẠCH THẺ MẦU GHI ĐẬM
GẠCH THẺ MẦU GHI SÁNG GẠCH THẺ MẦU GHI ĐẬM
CỬA SỔ NHÔM KÍNH CỬA SỔ NHÔM KÍNH
VÁCH KÍNH CƯỜNG LỰC
CỬA SỔ NHÔM KÍNH
SƠM MẦU GHI SÁNG
1
MẶT ĐỨNG TRỤC Y4-Y1
TỶ LỆ 1/150
LẦN NỘI DUNG PHÁT HÀNH
NGÀY
PHƯƠNG ÁN -
V
Ă
N
P
H
Ò
N
G
N
H
À
M
Á
Y
C
H
Ế
T
Ạ
O
C
Ô
N
G
N
G
H
Ệ
C
.
Q
.
S
BỘ MÔN -
KIẾN TRÚC - ARCHITECTURE
LOẠI
HỒ
SƠ
HỒ SƠ ĐẤU THẦU -
THIẾT KẾ CƠ SỞ -
THIẾT KẾ THI CÔNG -
DỰ ÁN -
TÊN BẢN VẼ -
HẠNG MỤC -
07/2022
THIẾT KẾ KỸ THUẬT -
CHỦ ĐẦU TƯ -
CHỦ TRÌ THIẾT KẾ -
GIÁM ĐỐC -
THIẾT KẾ 1 -
KIỂM TRA -
KTS. TRẦN HOÀI ANH
KTS. NGUYỄN THỊ THÚY
档案
次数 发行内容
日期
HOÀN THÀNH
完成日期
TỶ LỆ
比例
SỐ HIỆU BẢN VẼ
圖號
TỔNG THẦU -
ĐỊA CHỈ: TẦNG 2-4, TÒA B - KDTM KIM VĂN - KIM LŨ, QUẬN HOÀNG MAI, HÀ NỘI
-
-
C
Ô
N
G
T
Y
C
Ổ
P
H
Ầ
N
Đ
Ầ
U
T
Ư
V
À
X
Â
Y
D
Ự
N
G
V
I
N
A
2
-
C
Ô
N
G
T
Y
C
Ổ
P
H
Ầ
N
Đ
Ú
C
C
H
Í
N
H
X
Á
C
C
.
Q
.
S
M
A
Y
'
S
中譽精密壓鑄股份有限公司
VINA2號投資及建設股份公司
越南河內市黃梅郡金江坊金文金呂新城區B東2-4樓
方案
投标资料
初步设计
施工设计
技术设计
工程
業主
總包
部門
圖檔名稱
項目
設計主任
經理
1 設計師
檢查
KTS. TRẦN HOÀI ANH
THIẾT KẾ 2 - 2 設計師
建築
ĐỊA CHỈ: SỐ 9, KCN HỐ NAI, XÃ HỐ NAI 3, HUYỆN TRẢNG BOM, ĐỒNG NAI.
地址:...................................................................
ĐỊA CHỈ: SỐ 9, KCN HỐ NAI, XÃ HỐ NAI 3, HUYỆN TRẢNG BOM, ĐỒNG NAI.
地址:...................................................................
7000
6550
7000
900
20550
1500 1500
23550
5700
12150
5700
Y1 Y2
Y1A Y3 Y4
5900
1600
Y1B
7500
500
4200
4200
4200
3300
1200
500
18100
± 0.000
+4.200
+8.400
+12.600
+15.900
500
4200
4200
4200
3300
1200
500
18100
± 0.000
+4.200
+8.400
+12.600
+15.900
GẠCH THẺ MẦU GHI SÁNG
GẠCH THẺ MẦU GHI ĐẬM
GẠCH THẺ MẦU GHI SÁNG GẠCH THẺ MẦU GHI ĐẬM
THANG THÉP CỬA THÉP CHỐNG CHÁY
CỬA SỔ NHÔM KÍNH
CỬA NHÔM KÍNH
SƠM MẦU GHI SÁNG CỬA SỔ NHÔM KÍNH
CỬA THÉP CHỐNG CHÁY
1
MẶT ĐỨNG TRỤC Y1-Y4
TỶ LỆ 1/150

CQS UPDATE TYHOME 2022.09.19.pdf

  • 1.
    PRECISION DIE CASTINGINC THIẾT KẾ CONCEPT DỰ ÁN: VĂNP H Ò N GL À MV I Ệ CN H ÀM Á YC H ẾT Ạ OC Ô N GN G H ỆC . Q . S ĐỊA ĐIỂM XÂY DỰNG: SỐ 9, KCN HỐ NAI, XÃ HỐ NAI 3, HUYỆN TRẢNG BOM, ĐỒNG NAI. 項目:... 建设地址 :...
  • 2.
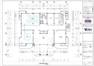
    WC MEN BACK STAGE (HẬU ĐÀI) MEETING ROOM TRAININGROOM (P.ĐÀO TẠO) RECEPTION (LỄ TÂN) ±0.000 SHOWROOM (KHU TRƯNG BÀY) MEP auto sliding doors WC WOMEN R2 800 1400 -0.500 MEETING ROOM MEETING ROOM PANTRY (TRÀ NƯỚC) 1 3 5 7 9 11 13 15 17 19 21 23 25 1 3 5 7 9 11 15 17 19 21 23 25 up KHO (STORAGE) PANTRY LẦN NỘI DUNG PHÁT HÀNH NGÀY PHƯƠNG ÁN - V Ă N P H Ò N G N H À M Á Y C H Ế T Ạ O C Ô N G N G H Ệ C . Q . S BỘ MÔN - KIẾN TRÚC - ARCHITECTURE LOẠI HỒ SƠ HỒ SƠ ĐẤU THẦU - THIẾT KẾ CƠ SỞ - THIẾT KẾ THI CÔNG - DỰ ÁN - TÊN BẢN VẼ - HẠNG MỤC - 07/2022 THIẾT KẾ KỸ THUẬT - CHỦ ĐẦU TƯ - CHỦ TRÌ THIẾT KẾ - GIÁM ĐỐC - THIẾT KẾ 1 - KIỂM TRA - KTS. TRẦN HOÀI ANH KTS. NGUYỄN THỊ THÚY 档案 次数 发行内容 日期 HOÀN THÀNH 完成日期 TỶ LỆ 比例 SỐ HIỆU BẢN VẼ 圖號 TỔNG THẦU - ĐỊA CHỈ: TẦNG 2-4, TÒA B - KDTM KIM VĂN - KIM LŨ, QUẬN HOÀNG MAI, HÀ NỘI - - C Ô N G T Y C Ổ P H Ầ N Đ Ầ U T Ư V À X Â Y D Ự N G V I N A 2 - C Ô N G T Y C Ổ P H Ầ N Đ Ú C C H Í N H X Á C C . Q . S M A Y ' S 中譽精密壓鑄股份有限公司 VINA2號投資及建設股份公司 越南河內市黃梅郡金江坊金文金呂新城區B東2-4樓 方案 投标资料 初步设计 施工设计 技术设计 工程 業主 總包 部門 圖檔名稱 項目 設計主任 經理 1 設計師 檢查 KTS. TRẦN HOÀI ANH THIẾT KẾ 2 - 2 設計師 建築 ĐỊA CHỈ: SỐ 9, KCN HỐ NAI, XÃ HỐ NAI 3, HUYỆN TRẢNG BOM, ĐỒNG NAI. 地址:................................................................... ĐỊA CHỈ: SỐ 9, KCN HỐ NAI, XÃ HỐ NAI 3, HUYỆN TRẢNG BOM, ĐỒNG NAI. 地址:................................................................... 7000 6550 7000 900 20550 1500 1500 23550 5700 12150 5700 7000 6550 7000 900 20550 1500 1500 23550 5700 12150 5700 8000 4700 4800 4700 8000 1400 30200 1400 33000 Y1 Y2 Y1A Y3 Y4 Y1 Y2 Y1A Y3 Y4 X1 X2 X3 X4 X5 X6 1 MẶT BẰNG TẦNG 1 TỶ LỆ 1/150 5000 23000 5000 5000 4250 1275 11950 1275 4250 5000 33000 5900 1600 Y1B 7500 5900 1600 Y1B 7500 450 900 450 2400 1500 200 2100 500 2225 2100 2225 900 1200 700 1500 500 450 500 450 500 1800 1450 2100 1450 1650 2100 400 500 1050 2100 950 500 4500 500 950 2099 1050 500 400 2100 600 750 300 1800 1200 2000 600 600 900 600 675 600 650 600 475 300 1200 1850 1200 4800 500 2100 200 4350 900 450 1350 500 450 500 450 500 1250 487 3275 487 1275 3425 300 4500 300 3425 1275 488 3275 487 1250 500 450 500 450 500 1350 1200 3125 100 2125
  • 3.
    WC MEN WC WOMEN R2 800 1400 +4.200 SẢNH (LOBBY) SEVER VICEGENERAL DIRECTOR (P.PHÓ TỔNG) PHÒNG IT (IT ROOM) CCTV QC ROOM (P.QLCL) H.R ROOM (P.NHÂN SỰ) PURCHASING (P.THU MUA) IMPORT-EXPORT (P. XNK) SECURITY (P.AN NINH) SALES (P.KINH DOANH) 1 3 5 7 9 11 13 15 17 19 21 23 25 up down 1 3 5 7 9 11 13 15 17 19 21 23 25 up down LẦN NỘI DUNG PHÁT HÀNH NGÀY PHƯƠNG ÁN - V Ă N P H Ò N G N H À M Á Y C H Ế T Ạ O C Ô N G N G H Ệ C . Q . S BỘ MÔN - KIẾN TRÚC - ARCHITECTURE LOẠI HỒ SƠ HỒ SƠ ĐẤU THẦU - THIẾT KẾ CƠ SỞ - THIẾT KẾ THI CÔNG - DỰ ÁN - TÊN BẢN VẼ - HẠNG MỤC - 07/2022 THIẾT KẾ KỸ THUẬT - CHỦ ĐẦU TƯ - CHỦ TRÌ THIẾT KẾ - GIÁM ĐỐC - THIẾT KẾ 1 - KIỂM TRA - KTS. TRẦN HOÀI ANH KTS. NGUYỄN THỊ THÚY 档案 次数 发行内容 日期 HOÀN THÀNH 完成日期 TỶ LỆ 比例 SỐ HIỆU BẢN VẼ 圖號 TỔNG THẦU - ĐỊA CHỈ: TẦNG 2-4, TÒA B - KDTM KIM VĂN - KIM LŨ, QUẬN HOÀNG MAI, HÀ NỘI - - C Ô N G T Y C Ổ P H Ầ N Đ Ầ U T Ư V À X Â Y D Ự N G V I N A 2 - C Ô N G T Y C Ổ P H Ầ N Đ Ú C C H Í N H X Á C C . Q . S M A Y ' S 中譽精密壓鑄股份有限公司 VINA2號投資及建設股份公司 越南河內市黃梅郡金江坊金文金呂新城區B東2-4樓 方案 投标资料 初步设计 施工设计 技术设计 工程 業主 總包 部門 圖檔名稱 項目 設計主任 經理 1 設計師 檢查 KTS. TRẦN HOÀI ANH THIẾT KẾ 2 - 2 設計師 建築 ĐỊA CHỈ: SỐ 9, KCN HỐ NAI, XÃ HỐ NAI 3, HUYỆN TRẢNG BOM, ĐỒNG NAI. 地址:................................................................... ĐỊA CHỈ: SỐ 9, KCN HỐ NAI, XÃ HỐ NAI 3, HUYỆN TRẢNG BOM, ĐỒNG NAI. 地址:................................................................... 7000 6550 7000 900 20550 1500 1500 23550 5700 12150 5700 7000 6550 7000 900 20550 1500 1500 23550 5700 12150 5700 8000 4700 4800 4700 8000 1400 30200 1400 33000 Y1 Y2 Y1A Y3 Y4 Y1 Y2 Y1A Y3 Y4 X1 X2 X3 X4 X5 X6 1 MẶT BẰNG TẦNG 2 TỶ LỆ 1/150 5000 23000 5000 5000 4250 1275 11950 1275 4250 5000 33000 5900 1600 Y1B 7500 5900 1600 Y1B 7500 1975 1600 4800 1600 1975 1275 1275 450 900 450 2400 1500 501 2099 200 2225 2100 1200 900 1200 700 1500 500 450 500 450 500 1800 1450 2100 1450 1650 2100 400 500 1050 2100 950 500 4500 500 950 2099 1050 500 400 2100 600 750 300 1800 1200 2000 600 600 900 600 675 600 650 600 475 300 1200 1850 1200 4800 200 2099 500 4350 900 450 475 550 1350 500 450 500 450 500 1250 487 3275 487 1275 1275 488 3275 487 1250 500 450 500 450 500 1350 11950
  • 4.
    +8.400 LOBBY WC MEN WC WOMEN R2 800 1400 WC CHAIRMAN (P.CHỦTỊCH) WINE ROOM VICE GENERAL DIRECTOR (P.PHÓ TỔNG) DOCUMENTS ROOM P.LƯU TRỮ CONSTRUCTION (P.CÔNG TRÌNH) ACCOUNTANT (P.KẾ TOÁN) PANTRY 1 3 5 7 9 11 13 15 17 19 21 23 25 up down 1 3 5 7 9 11 13 15 17 19 21 23 25 up down LẦN NỘI DUNG PHÁT HÀNH NGÀY PHƯƠNG ÁN - V Ă N P H Ò N G N H À M Á Y C H Ế T Ạ O C Ô N G N G H Ệ C . Q . S BỘ MÔN - KIẾN TRÚC - ARCHITECTURE LOẠI HỒ SƠ HỒ SƠ ĐẤU THẦU - THIẾT KẾ CƠ SỞ - THIẾT KẾ THI CÔNG - DỰ ÁN - TÊN BẢN VẼ - HẠNG MỤC - 07/2022 THIẾT KẾ KỸ THUẬT - CHỦ ĐẦU TƯ - CHỦ TRÌ THIẾT KẾ - GIÁM ĐỐC - THIẾT KẾ 1 - KIỂM TRA - KTS. TRẦN HOÀI ANH KTS. NGUYỄN THỊ THÚY 档案 次数 发行内容 日期 HOÀN THÀNH 完成日期 TỶ LỆ 比例 SỐ HIỆU BẢN VẼ 圖號 TỔNG THẦU - ĐỊA CHỈ: TẦNG 2-4, TÒA B - KDTM KIM VĂN - KIM LŨ, QUẬN HOÀNG MAI, HÀ NỘI - - C Ô N G T Y C Ổ P H Ầ N Đ Ầ U T Ư V À X Â Y D Ự N G V I N A 2 - C Ô N G T Y C Ổ P H Ầ N Đ Ú C C H Í N H X Á C C . Q . S M A Y ' S 中譽精密壓鑄股份有限公司 VINA2號投資及建設股份公司 越南河內市黃梅郡金江坊金文金呂新城區B東2-4樓 方案 投标资料 初步设计 施工设计 技术设计 工程 業主 總包 部門 圖檔名稱 項目 設計主任 經理 1 設計師 檢查 KTS. TRẦN HOÀI ANH THIẾT KẾ 2 - 2 設計師 建築 ĐỊA CHỈ: SỐ 9, KCN HỐ NAI, XÃ HỐ NAI 3, HUYỆN TRẢNG BOM, ĐỒNG NAI. 地址:................................................................... ĐỊA CHỈ: SỐ 9, KCN HỐ NAI, XÃ HỐ NAI 3, HUYỆN TRẢNG BOM, ĐỒNG NAI. 地址:................................................................... 7000 6550 7000 900 20550 1500 1500 23550 5700 12150 5700 7000 6550 7000 900 20550 1500 1500 23550 5700 12150 5700 8000 4700 4800 4700 8000 1400 30200 1400 33000 Y1 Y2 Y1A Y3 Y4 Y1 Y2 Y1A Y3 Y4 X1 X2 X3 X4 X5 X6 1 MẶT BẰNG TẦNG 3 TỶ LỆ 1/150 5000 23000 5000 5000 4250 1275 11950 1275 4250 5000 33000 501 2099 200 450 900 450 2400 1500 501 2099 200 2225 2100 1200 900 1200 700 1500 500 450 500 450 500 1800 1450 2100 1450 1650 2100 400 500 1050 2100 950 500 4500 500 950 2099 1050 500 400 2100 600 750 300 1800 1200 2000 600 600 900 600 675 600 650 600 475 300 1200 1850 1200 4800 200 2099 500 4350 900 450 475 550 1350 500 450 500 450 500 1250 487 3275 487 1275 1275 488 3275 487 1250 500 450 500 450 500 1350 11950
  • 5.
    R2 800 1400 KITCHEN WC WC WC +12.600 LOBBY (SẢNH) DINING ROOM GYM& YOGA RUN 700 WC WC WC WC 21 23 25 up down 1 3 5 1 3 5 7 9 11 13 15 17 19 21 23 25 down BALCONY BALCONY BALCONY BALCONY LẦN NỘI DUNG PHÁT HÀNH NGÀY PHƯƠNG ÁN - V Ă N P H Ò N G N H À M Á Y C H Ế T Ạ O C Ô N G N G H Ệ C . Q . S BỘ MÔN - KIẾN TRÚC - ARCHITECTURE LOẠI HỒ SƠ HỒ SƠ ĐẤU THẦU - THIẾT KẾ CƠ SỞ - THIẾT KẾ THI CÔNG - DỰ ÁN - TÊN BẢN VẼ - HẠNG MỤC - 07/2022 THIẾT KẾ KỸ THUẬT - CHỦ ĐẦU TƯ - CHỦ TRÌ THIẾT KẾ - GIÁM ĐỐC - THIẾT KẾ 1 - KIỂM TRA - KTS. TRẦN HOÀI ANH KTS. NGUYỄN THỊ THÚY 档案 次数 发行内容 日期 HOÀN THÀNH 完成日期 TỶ LỆ 比例 SỐ HIỆU BẢN VẼ 圖號 TỔNG THẦU - ĐỊA CHỈ: TẦNG 2-4, TÒA B - KDTM KIM VĂN - KIM LŨ, QUẬN HOÀNG MAI, HÀ NỘI - - C Ô N G T Y C Ổ P H Ầ N Đ Ầ U T Ư V À X Â Y D Ự N G V I N A 2 - C Ô N G T Y C Ổ P H Ầ N Đ Ú C C H Í N H X Á C C . Q . S M A Y ' S 中譽精密壓鑄股份有限公司 VINA2號投資及建設股份公司 越南河內市黃梅郡金江坊金文金呂新城區B東2-4樓 方案 投标资料 初步设计 施工设计 技术设计 工程 業主 總包 部門 圖檔名稱 項目 設計主任 經理 1 設計師 檢查 KTS. TRẦN HOÀI ANH THIẾT KẾ 2 - 2 設計師 建築 ĐỊA CHỈ: SỐ 9, KCN HỐ NAI, XÃ HỐ NAI 3, HUYỆN TRẢNG BOM, ĐỒNG NAI. 地址:................................................................... ĐỊA CHỈ: SỐ 9, KCN HỐ NAI, XÃ HỐ NAI 3, HUYỆN TRẢNG BOM, ĐỒNG NAI. 地址:................................................................... 7000 6550 7000 900 20550 1500 1500 23550 5700 12150 5700 7000 6550 7000 900 20550 1500 1500 23550 5700 12150 5700 8000 4700 4800 4700 8000 1400 30200 1400 33000 Y1 Y2 Y1A Y3 Y4 Y1 Y2 Y1A Y3 Y4 X1 X2 X3 X4 X5 X6 1 MẶT BẰNG TẦNG 4 TỶ LỆ 1/150 5000 23000 5000 5000 4250 1275 11950 1275 4250 5000 33000 5700 501 2099 200 2225 2100 1200 900 1200 700 5700 1450 2100 1450 1650 2100 400 500 1050 2100 950 500 4500 500 950 2099 1050 500 400 2100 600 750 300 1800 1200 2000 5700 899 200 2099 500 5700 475 550 701 600 900 3650 2800 5000 487 3275 487 1275 1275 488 3275 487 5000 11950
  • 6.
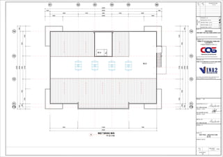
    1 3 5 7 9 11 13 15 17 +15.900 Tủ điện +17.700 LẦN NỘI DUNGPHÁT HÀNH NGÀY PHƯƠNG ÁN - V Ă N P H Ò N G N H À M Á Y C H Ế T Ạ O C Ô N G N G H Ệ C . Q . S BỘ MÔN - KIẾN TRÚC - ARCHITECTURE LOẠI HỒ SƠ HỒ SƠ ĐẤU THẦU - THIẾT KẾ CƠ SỞ - THIẾT KẾ THI CÔNG - DỰ ÁN - TÊN BẢN VẼ - HẠNG MỤC - 07/2022 THIẾT KẾ KỸ THUẬT - CHỦ ĐẦU TƯ - CHỦ TRÌ THIẾT KẾ - GIÁM ĐỐC - THIẾT KẾ 1 - KIỂM TRA - KTS. TRẦN HOÀI ANH KTS. NGUYỄN THỊ THÚY 档案 次数 发行内容 日期 HOÀN THÀNH 完成日期 TỶ LỆ 比例 SỐ HIỆU BẢN VẼ 圖號 TỔNG THẦU - ĐỊA CHỈ: TẦNG 2-4, TÒA B - KDTM KIM VĂN - KIM LŨ, QUẬN HOÀNG MAI, HÀ NỘI - - C Ô N G T Y C Ổ P H Ầ N Đ Ầ U T Ư V À X Â Y D Ự N G V I N A 2 - C Ô N G T Y C Ổ P H Ầ N Đ Ú C C H Í N H X Á C C . Q . S M A Y ' S 中譽精密壓鑄股份有限公司 VINA2號投資及建設股份公司 越南河內市黃梅郡金江坊金文金呂新城區B東2-4樓 方案 投标资料 初步设计 施工设计 技术设计 工程 業主 總包 部門 圖檔名稱 項目 設計主任 經理 1 設計師 檢查 KTS. TRẦN HOÀI ANH THIẾT KẾ 2 - 2 設計師 建築 ĐỊA CHỈ: SỐ 9, KCN HỐ NAI, XÃ HỐ NAI 3, HUYỆN TRẢNG BOM, ĐỒNG NAI. 地址:................................................................... ĐỊA CHỈ: SỐ 9, KCN HỐ NAI, XÃ HỐ NAI 3, HUYỆN TRẢNG BOM, ĐỒNG NAI. 地址:................................................................... 7000 6550 7000 900 20550 1500 1500 23550 5700 12150 5700 7000 6550 7000 900 20550 1500 1500 23550 5700 12150 5700 8000 4700 4800 4700 8000 1400 30200 1400 33000 Y1 Y2 Y1A Y3 Y4 Y1 Y2 Y1A Y3 Y4 X1 X2 X3 X4 X5 X6 1 MẶT BẰNG MÁI TỶ LỆ 1/150 5000 23000 5000 7850 14500 7850 30200
  • 7.
    PRECISION DIE CASTINGINC LẦN NỘI DUNG PHÁT HÀNH NGÀY PHƯƠNG ÁN - V Ă N P H Ò N G N H À M Á Y C H Ế T Ạ O C Ô N G N G H Ệ C . Q . S BỘ MÔN - KIẾN TRÚC - ARCHITECTURE LOẠI HỒ SƠ HỒ SƠ ĐẤU THẦU - THIẾT KẾ CƠ SỞ - THIẾT KẾ THI CÔNG - DỰ ÁN - TÊN BẢN VẼ - HẠNG MỤC - 07/2022 THIẾT KẾ KỸ THUẬT - CHỦ ĐẦU TƯ - CHỦ TRÌ THIẾT KẾ - GIÁM ĐỐC - THIẾT KẾ 1 - KIỂM TRA - KTS. TRẦN HOÀI ANH KTS. NGUYỄN THỊ THÚY 档案 次数 发行内容 日期 HOÀN THÀNH 完成日期 TỶ LỆ 比例 SỐ HIỆU BẢN VẼ 圖號 TỔNG THẦU - ĐỊA CHỈ: TẦNG 2-4, TÒA B - KDTM KIM VĂN - KIM LŨ, QUẬN HOÀNG MAI, HÀ NỘI - - C Ô N G T Y C Ổ P H Ầ N Đ Ầ U T Ư V À X Â Y D Ự N G V I N A 2 - C Ô N G T Y C Ổ P H Ầ N Đ Ú C C H Í N H X Á C C . Q . S M A Y ' S 中譽精密壓鑄股份有限公司 VINA2號投資及建設股份公司 越南河內市黃梅郡金江坊金文金呂新城區B東2-4樓 方案 投标资料 初步设计 施工设计 技术设计 工程 業主 總包 部門 圖檔名稱 項目 設計主任 經理 1 設計師 檢查 KTS. TRẦN HOÀI ANH THIẾT KẾ 2 - 2 設計師 建築 ĐỊA CHỈ: SỐ 9, KCN HỐ NAI, XÃ HỐ NAI 3, HUYỆN TRẢNG BOM, ĐỒNG NAI. 地址:................................................................... ĐỊA CHỈ: SỐ 9, KCN HỐ NAI, XÃ HỐ NAI 3, HUYỆN TRẢNG BOM, ĐỒNG NAI. 地址:................................................................... 8000 4700 4800 4700 8000 1400 30200 1400 33000 X1 X2 X3 X4 X5 X6 5000 23000 5000 1 MẶT ĐỨNG TRỤC X1-X6 TỶ LỆ 1/150 500 4200 4200 4200 3300 1200 500 18100 ± 0.000 +4.200 +8.400 +12.600 +15.900 500 4200 4200 4200 3300 1200 500 18100 ± 0.000 +4.200 +8.400 +12.600 +15.900 GẠCH THẺ MẦU GHI SÁNG GẠCH THẺ MẦU GHI ĐẬM GẠCH THẺ MẦU GHI SÁNG GẠCH THẺ MẦU GHI SÁNG VÁCH KÍNH CƯỜNG LỰC VÁCH KÍNH CƯỜNG LỰC VÁCH KÍNH CƯỜNG LỰC CỬA SỔ NHÔM KÍNH CỬA SỔ NHÔM KÍNH ĐÁ GRANITE TỰ NHIÊN MẦU VÀNG SÁNG
  • 8.
    PRECISION DIE CASTINGINC LẦN NỘI DUNG PHÁT HÀNH NGÀY PHƯƠNG ÁN - V Ă N P H Ò N G N H À M Á Y C H Ế T Ạ O C Ô N G N G H Ệ C . Q . S BỘ MÔN - KIẾN TRÚC - ARCHITECTURE LOẠI HỒ SƠ HỒ SƠ ĐẤU THẦU - THIẾT KẾ CƠ SỞ - THIẾT KẾ THI CÔNG - DỰ ÁN - TÊN BẢN VẼ - HẠNG MỤC - 07/2022 THIẾT KẾ KỸ THUẬT - CHỦ ĐẦU TƯ - CHỦ TRÌ THIẾT KẾ - GIÁM ĐỐC - THIẾT KẾ 1 - KIỂM TRA - KTS. TRẦN HOÀI ANH KTS. NGUYỄN THỊ THÚY 档案 次数 发行内容 日期 HOÀN THÀNH 完成日期 TỶ LỆ 比例 SỐ HIỆU BẢN VẼ 圖號 TỔNG THẦU - ĐỊA CHỈ: TẦNG 2-4, TÒA B - KDTM KIM VĂN - KIM LŨ, QUẬN HOÀNG MAI, HÀ NỘI - - C Ô N G T Y C Ổ P H Ầ N Đ Ầ U T Ư V À X Â Y D Ự N G V I N A 2 - C Ô N G T Y C Ổ P H Ầ N Đ Ú C C H Í N H X Á C C . Q . S M A Y ' S 中譽精密壓鑄股份有限公司 VINA2號投資及建設股份公司 越南河內市黃梅郡金江坊金文金呂新城區B東2-4樓 方案 投标资料 初步设计 施工设计 技术设计 工程 業主 總包 部門 圖檔名稱 項目 設計主任 經理 1 設計師 檢查 KTS. TRẦN HOÀI ANH THIẾT KẾ 2 - 2 設計師 建築 ĐỊA CHỈ: SỐ 9, KCN HỐ NAI, XÃ HỐ NAI 3, HUYỆN TRẢNG BOM, ĐỒNG NAI. 地址:................................................................... ĐỊA CHỈ: SỐ 9, KCN HỐ NAI, XÃ HỐ NAI 3, HUYỆN TRẢNG BOM, ĐỒNG NAI. 地址:................................................................... 8000 4700 4800 4700 8000 1400 30200 1400 33000 X1 X2 X3 X4 X5 X6 5000 23000 5000 1 MẶT ĐỨNG TRỤC X6-X1 TỶ LỆ 1/150 500 4200 4200 4200 3300 1200 500 18100 ± 0.000 +4.200 +8.400 +12.600 +15.900 500 4200 4200 4200 3300 1200 500 18100 ± 0.000 +4.200 +8.400 +12.600 +15.900 VÁCH KÍNH CƯỜNG LỰC GẠCH THẺ MẦU GHI SÁNG GẠCH THẺ MẦU GHI ĐẬM GẠCH THẺ MẦU GHI SÁNG GẠCH THẺ MẦU GHI SÁNG GẠCH THẺ MẦU GHI ĐẬM CỬA SỔ NHÔM KÍNH CỬA SỔ NHÔM KÍNH
  • 9.
    LẦN NỘI DUNGPHÁT HÀNH NGÀY PHƯƠNG ÁN - V Ă N P H Ò N G N H À M Á Y C H Ế T Ạ O C Ô N G N G H Ệ C . Q . S BỘ MÔN - KIẾN TRÚC - ARCHITECTURE LOẠI HỒ SƠ HỒ SƠ ĐẤU THẦU - THIẾT KẾ CƠ SỞ - THIẾT KẾ THI CÔNG - DỰ ÁN - TÊN BẢN VẼ - HẠNG MỤC - 07/2022 THIẾT KẾ KỸ THUẬT - CHỦ ĐẦU TƯ - CHỦ TRÌ THIẾT KẾ - GIÁM ĐỐC - THIẾT KẾ 1 - KIỂM TRA - KTS. TRẦN HOÀI ANH KTS. NGUYỄN THỊ THÚY 档案 次数 发行内容 日期 HOÀN THÀNH 完成日期 TỶ LỆ 比例 SỐ HIỆU BẢN VẼ 圖號 TỔNG THẦU - ĐỊA CHỈ: TẦNG 2-4, TÒA B - KDTM KIM VĂN - KIM LŨ, QUẬN HOÀNG MAI, HÀ NỘI - - C Ô N G T Y C Ổ P H Ầ N Đ Ầ U T Ư V À X Â Y D Ự N G V I N A 2 - C Ô N G T Y C Ổ P H Ầ N Đ Ú C C H Í N H X Á C C . Q . S M A Y ' S 中譽精密壓鑄股份有限公司 VINA2號投資及建設股份公司 越南河內市黃梅郡金江坊金文金呂新城區B東2-4樓 方案 投标资料 初步设计 施工设计 技术设计 工程 業主 總包 部門 圖檔名稱 項目 設計主任 經理 1 設計師 檢查 KTS. TRẦN HOÀI ANH THIẾT KẾ 2 - 2 設計師 建築 ĐỊA CHỈ: SỐ 9, KCN HỐ NAI, XÃ HỐ NAI 3, HUYỆN TRẢNG BOM, ĐỒNG NAI. 地址:................................................................... ĐỊA CHỈ: SỐ 9, KCN HỐ NAI, XÃ HỐ NAI 3, HUYỆN TRẢNG BOM, ĐỒNG NAI. 地址:................................................................... 7000 6550 7000 900 20550 1500 1500 23550 5700 12150 5700 Y1 Y2 Y1A Y3 Y4 5900 1600 Y1B 7500 500 4200 4200 4200 3300 1200 500 18100 ± 0.000 +4.200 +8.400 +12.600 +15.900 500 4200 4200 4200 3300 1200 500 18100 ± 0.000 +4.200 +8.400 +12.600 +15.900 GẠCH THẺ MẦU GHI SÁNG GẠCH THẺ MẦU GHI ĐẬM GẠCH THẺ MẦU GHI SÁNG GẠCH THẺ MẦU GHI ĐẬM CỬA SỔ NHÔM KÍNH CỬA SỔ NHÔM KÍNH VÁCH KÍNH CƯỜNG LỰC CỬA SỔ NHÔM KÍNH SƠM MẦU GHI SÁNG 1 MẶT ĐỨNG TRỤC Y4-Y1 TỶ LỆ 1/150
  • 10.
    LẦN NỘI DUNGPHÁT HÀNH NGÀY PHƯƠNG ÁN - V Ă N P H Ò N G N H À M Á Y C H Ế T Ạ O C Ô N G N G H Ệ C . Q . S BỘ MÔN - KIẾN TRÚC - ARCHITECTURE LOẠI HỒ SƠ HỒ SƠ ĐẤU THẦU - THIẾT KẾ CƠ SỞ - THIẾT KẾ THI CÔNG - DỰ ÁN - TÊN BẢN VẼ - HẠNG MỤC - 07/2022 THIẾT KẾ KỸ THUẬT - CHỦ ĐẦU TƯ - CHỦ TRÌ THIẾT KẾ - GIÁM ĐỐC - THIẾT KẾ 1 - KIỂM TRA - KTS. TRẦN HOÀI ANH KTS. NGUYỄN THỊ THÚY 档案 次数 发行内容 日期 HOÀN THÀNH 完成日期 TỶ LỆ 比例 SỐ HIỆU BẢN VẼ 圖號 TỔNG THẦU - ĐỊA CHỈ: TẦNG 2-4, TÒA B - KDTM KIM VĂN - KIM LŨ, QUẬN HOÀNG MAI, HÀ NỘI - - C Ô N G T Y C Ổ P H Ầ N Đ Ầ U T Ư V À X Â Y D Ự N G V I N A 2 - C Ô N G T Y C Ổ P H Ầ N Đ Ú C C H Í N H X Á C C . Q . S M A Y ' S 中譽精密壓鑄股份有限公司 VINA2號投資及建設股份公司 越南河內市黃梅郡金江坊金文金呂新城區B東2-4樓 方案 投标资料 初步设计 施工设计 技术设计 工程 業主 總包 部門 圖檔名稱 項目 設計主任 經理 1 設計師 檢查 KTS. TRẦN HOÀI ANH THIẾT KẾ 2 - 2 設計師 建築 ĐỊA CHỈ: SỐ 9, KCN HỐ NAI, XÃ HỐ NAI 3, HUYỆN TRẢNG BOM, ĐỒNG NAI. 地址:................................................................... ĐỊA CHỈ: SỐ 9, KCN HỐ NAI, XÃ HỐ NAI 3, HUYỆN TRẢNG BOM, ĐỒNG NAI. 地址:................................................................... 7000 6550 7000 900 20550 1500 1500 23550 5700 12150 5700 Y1 Y2 Y1A Y3 Y4 5900 1600 Y1B 7500 500 4200 4200 4200 3300 1200 500 18100 ± 0.000 +4.200 +8.400 +12.600 +15.900 500 4200 4200 4200 3300 1200 500 18100 ± 0.000 +4.200 +8.400 +12.600 +15.900 GẠCH THẺ MẦU GHI SÁNG GẠCH THẺ MẦU GHI ĐẬM GẠCH THẺ MẦU GHI SÁNG GẠCH THẺ MẦU GHI ĐẬM THANG THÉP CỬA THÉP CHỐNG CHÁY CỬA SỔ NHÔM KÍNH CỬA NHÔM KÍNH SƠM MẦU GHI SÁNG CỬA SỔ NHÔM KÍNH CỬA THÉP CHỐNG CHÁY 1 MẶT ĐỨNG TRỤC Y1-Y4 TỶ LỆ 1/150