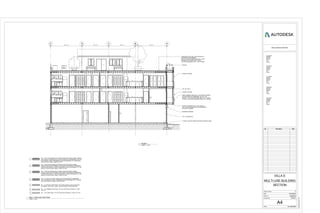
ABCDE 19' - 0"16' - 0"16' - 0"18' - 11"
RAILING
COMPOSITE DECK ON 2X2 SLEEPER ON
WATERPROOF MEMBRANE
ON 3/4" PLYWOOD SHEETHING ON TJI PER
ENGINEER W/ R-38 MIN. BATT. INSUL.
ON VAPOR BARRIER ON 1/2" GYP. BOARD
WOOD FLOORING ON 3/4' PLW. SHEATH.
ON TJI PER ENGINEER ON VAPOR BARRIER
ON 5/8 GYP. BOARD
CEDAR LOOVERS
CEDAR LOOVERS
TYP. CURTAIN WALL
4" CONC. SLAB ON GRADE ON SAND & GRAVEL BASE
FIBER CEMENT PANEL ON 1" AIR SPACE/ FURRING
ON WATERPROOF MEMBRANE ON 3/4' PLYW.
SHEATH. ON (2) 2X4 STUD WALL @ 24' O.C. FILLED
W/ INSUL. ON VAPOR BARRIER ON 5/8" GYP. BOARD
TYP. INT. WALL
BUSINESS SIGNAGE
HEAT
PUMP
5
7
7
EXT. PT CEDAR 1X8 VERT. SIDING OVER WATERPROOF MEMBRANE
OVER 5/8 SHEATH. OVER STAGGERED (2) 2X4 STUDS @ 24" O.C. ON 2X8
SILL PLATE W/ BATT INSUL. OVER 1/2" GYP.
EXT. - (SEE PATTERN @ ELEVATIONS) EQUITONE FIBER CEMENT PANELS
OVER WOOD FURRING OVER OVER WATERPROOF MEMBRANE OVER 5/8
PDX SHEATH. OVER STAGGERED (2) 2X4 STUDS @ 24" O.C. ON 2X8 SILL
PLATE W/ BATT INSUL. OVER 1/2" GYP.
EXT. - (SEE PATTERN @ ELEVATIONS) EQUITONE FIBER CEMENT
PANELS OVER WOOD FURRING OVER OVER WATERPROOF MEMBRANE
OVER 5/8 PDX SHEATH. OVER STAGGERED (2) 2X4 STUDS @ 24" O.C. ON
2X8 SILL PLATE W/ BATT INSUL. OVER 1/2" GYP.
EXT. - (SEE PATTERN @ ELEVATIONS) EQUITONE FIBER CEMENT
PANELS OVER WOOD FURRING OVER OVER WATERPROOF MEMBRANE
OVER 5/8 PDX SHEATH. OVER STAGGERED (2) 2X4 STUDS @ 24" O.C. ON
2X8 SILL PLATE W/ BATT INSUL. OVER 1/2" GYP.
INT. - 6" ACOUSTIC PARTITION: GYP OVER 3/4 METAL DECK OVER 2X4
STUD @ 16" WITH BATT. INSUL. OVER 3/4 METAL DECK OVER GYP
INT. - 6" PLUMBING PARTITION: 1/2" GYP OVER 2X5 STUD @ 16" OVER
1/2" GYP
INT. - 4 1/2" PARTITION: 1/2" GYP OVER 2X4 STUD @ 16" OVER 1/2" GYP
1
2
3
4
5
6
7
www.autodesk.com/revit
Scale
Project number
Date
Drawn by
Checked by
Consultant
Address
Address
Phone
Fax
e-mail
Consultant
Address
Address
Phone
Fax
e-mail
Consultant
Address
Address
Phone
Fax
e-mail
Consultant
Address
Address
Phone
Fax
e-mail
Consultant
Address
Address
Phone
Fax
e-mail
As indicated
3/14/20162:27:41PM
A4
SECTION
7
MULTI-USE BUILDING
VILLA E
3/14/2016
M.BERG
D.ROY
No. Description Date
3/16" = 1'-0"
1
Section 1
1/4" = 1'-0"
WALL TYPES SECTION VIEW

Arch202.Villa.E - Sheet - A4 - SECTION

  • 1.
    ABCDE 19' -0"16' - 0"16' - 0"18' - 11" RAILING COMPOSITE DECK ON 2X2 SLEEPER ON WATERPROOF MEMBRANE ON 3/4" PLYWOOD SHEETHING ON TJI PER ENGINEER W/ R-38 MIN. BATT. INSUL. ON VAPOR BARRIER ON 1/2" GYP. BOARD WOOD FLOORING ON 3/4' PLW. SHEATH. ON TJI PER ENGINEER ON VAPOR BARRIER ON 5/8 GYP. BOARD CEDAR LOOVERS CEDAR LOOVERS TYP. CURTAIN WALL 4" CONC. SLAB ON GRADE ON SAND & GRAVEL BASE FIBER CEMENT PANEL ON 1" AIR SPACE/ FURRING ON WATERPROOF MEMBRANE ON 3/4' PLYW. SHEATH. ON (2) 2X4 STUD WALL @ 24' O.C. FILLED W/ INSUL. ON VAPOR BARRIER ON 5/8" GYP. BOARD TYP. INT. WALL BUSINESS SIGNAGE HEAT PUMP 5 7 7 EXT. PT CEDAR 1X8 VERT. SIDING OVER WATERPROOF MEMBRANE OVER 5/8 SHEATH. OVER STAGGERED (2) 2X4 STUDS @ 24" O.C. ON 2X8 SILL PLATE W/ BATT INSUL. OVER 1/2" GYP. EXT. - (SEE PATTERN @ ELEVATIONS) EQUITONE FIBER CEMENT PANELS OVER WOOD FURRING OVER OVER WATERPROOF MEMBRANE OVER 5/8 PDX SHEATH. OVER STAGGERED (2) 2X4 STUDS @ 24" O.C. ON 2X8 SILL PLATE W/ BATT INSUL. OVER 1/2" GYP. EXT. - (SEE PATTERN @ ELEVATIONS) EQUITONE FIBER CEMENT PANELS OVER WOOD FURRING OVER OVER WATERPROOF MEMBRANE OVER 5/8 PDX SHEATH. OVER STAGGERED (2) 2X4 STUDS @ 24" O.C. ON 2X8 SILL PLATE W/ BATT INSUL. OVER 1/2" GYP. EXT. - (SEE PATTERN @ ELEVATIONS) EQUITONE FIBER CEMENT PANELS OVER WOOD FURRING OVER OVER WATERPROOF MEMBRANE OVER 5/8 PDX SHEATH. OVER STAGGERED (2) 2X4 STUDS @ 24" O.C. ON 2X8 SILL PLATE W/ BATT INSUL. OVER 1/2" GYP. INT. - 6" ACOUSTIC PARTITION: GYP OVER 3/4 METAL DECK OVER 2X4 STUD @ 16" WITH BATT. INSUL. OVER 3/4 METAL DECK OVER GYP INT. - 6" PLUMBING PARTITION: 1/2" GYP OVER 2X5 STUD @ 16" OVER 1/2" GYP INT. - 4 1/2" PARTITION: 1/2" GYP OVER 2X4 STUD @ 16" OVER 1/2" GYP 1 2 3 4 5 6 7 www.autodesk.com/revit Scale Project number Date Drawn by Checked by Consultant Address Address Phone Fax e-mail Consultant Address Address Phone Fax e-mail Consultant Address Address Phone Fax e-mail Consultant Address Address Phone Fax e-mail Consultant Address Address Phone Fax e-mail As indicated 3/14/20162:27:41PM A4 SECTION 7 MULTI-USE BUILDING VILLA E 3/14/2016 M.BERG D.ROY No. Description Date 3/16" = 1'-0" 1 Section 1 1/4" = 1'-0" WALL TYPES SECTION VIEW