Embed presentation
Download to read offline

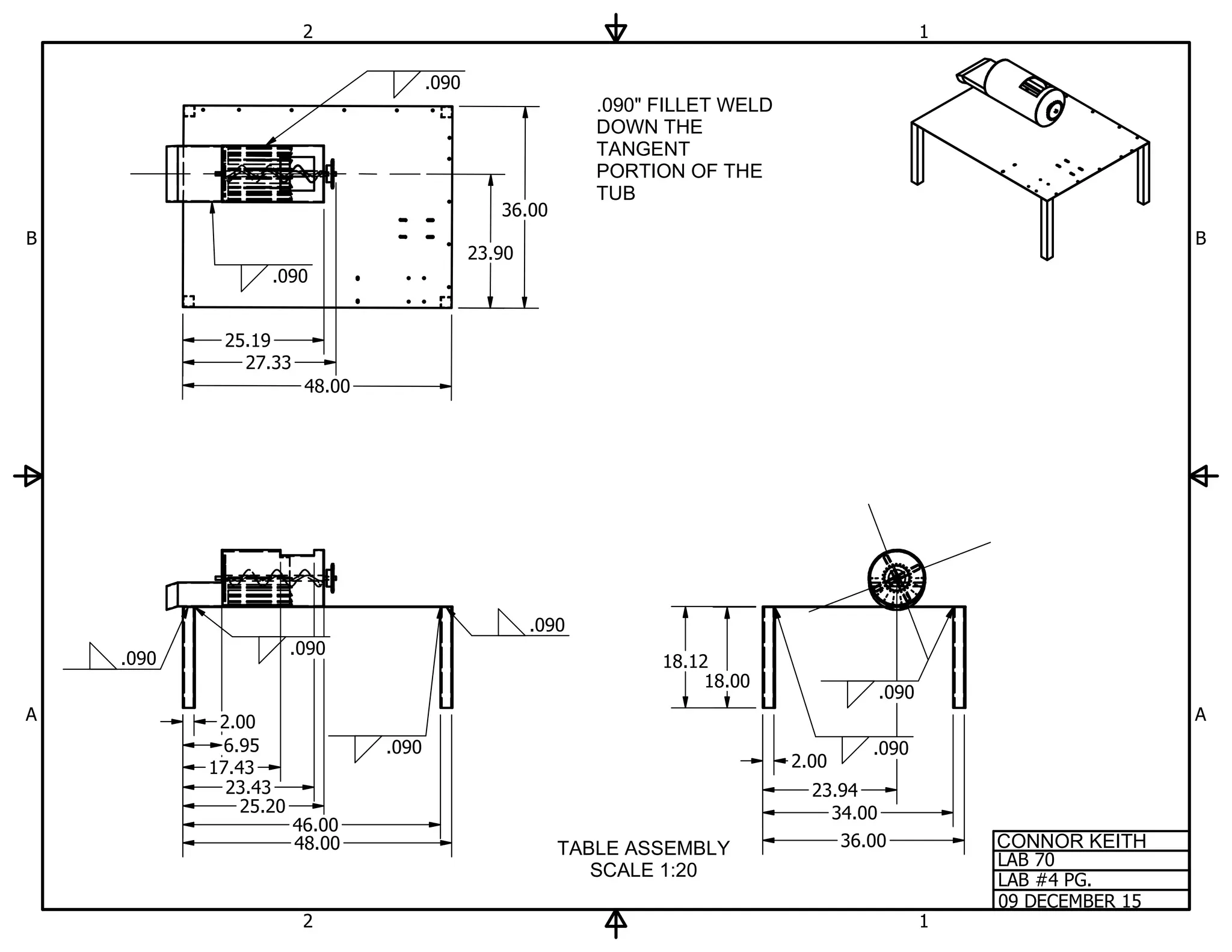
This document is a scale drawing for assembling a table with dimensions provided in inches. The drawing shows a rectangular table top that will be connected to four vertical legs by horizontal supports. Dimensions are given to fully construct the table at a scale of 1 inch on the drawing equals 20 inches in real size using 0.090 inch fillet welds along all joints.
