P H I L L I PGR A S S O
3
CONTENTS
Undergraduate B.F.A
The College of New Jersey	 							
Space Frame
24”x36”Acrylic on Canvas								5
Fracture
24”x36”Acrylic on Canvas								6
Fracture2 B/W
24”x36”Acrylic on Canvas								7
Untitled1
40”x48” Watercolor on Layered Oak Plywood					 8
Untitled2
20”x40” Watercolor on Plywood							9
Template
96”x24” Acrylic on Plywood (with hinges)						 10
Twenty
72”x48” Acrylic and Fiberglass on Oak Plywood					 11
One Seventy On
8”x11” Oil on Masonite								12
Graduate M.Arch
New Jersey Institute of Technology
Fall 2012 Hyde Park Pavilion							13
Location: Hyde Park, U.K
Critic: Nick McDermott
Spring 2013 CLT Mixed Use Midrise Development				 19
Location: Redhook, Brooklyn, NY
Critic: Rhett Russo
Fall 2013 Civic Community Center						 25
Location: Linden, N.J.
Critic: Nick McDermott
Spring 2014 Lowrise Housing Development (collaborative)	 		31
Location: Union Beach, N.J.
Critic: Keith Krumweide
Martina Dekker
Fall 2014 Movie Theater								43
Location: Williamsburg, Brooklyn, N.Y.
Critic: Henry Grossman
4
5
Space Frame
24”x36”Acrylic on Canvas
6
Fracture
24”x36”Acrylic on Canvas
7
Fracture2 B/W
24”x36”Acrylic on Canvas
8
Untitled1
40”x48” Watercolor on Layered Oak Plywood
9
Untitled2
20”x40” Watercolor on Plywood
10
Template
96”x24” Acrylic on Plywood(with hinges)
11
Twenty
72”x48” Acrylic and Fiberglass on Oak Plywood
12
One Seventy On
8”x11” Oil on Masonite
13HYDE PARK PAVILION
First floor- 	 Two conference rooms		 @ 600 sq’/ea.
	 	 Two study/leisure spaces 		 @ 600 sq’/ea.
	 	 One lecture hall			 @ 1,200 sq’
Ground Floor- Gallery space 				 @ 1,200 sq’
		Patio/balcony space			@ 600 sq’
Third Floor-	 One studio				 @1,200 sq’
		 One digital lab			 @ 600 sq’
Roof-		Rooftop patio				@2,600 sq’
14
151/32”= 1’0”
1
2
3
4
- The pavilion located in
Hyde Park, began with a
precedent study of the
“Serpentine Pavilion”
projects done every year.
-Through these analyses, the
concept of our own designs,
achieved through a series
of studies, by experiment-
ing with various geometries
to produce a tessellating
pattern(page14)
-The goal was to create
something with simple
roots, while maintaining a
complexity through the
orientation of parts, the
maximization of views, and
integration of program.
16
17
18
19TIMBER IN THE CITY
Residential
Studio 					100	@ 350 sq’
One Bedroom 			 35	 @ 550 sq’
Two Bedroom 			 25 	 @ 850 sq’
Three Bedroom			 15	 @ 1100 sq’
-Max height of 185’
base height of 60’
setback 15’after 60’
Wood Manufacturing
main production - 				 @ 20,113 sq’
research workshops-				 @ 3,026 sq’
material storage-				 @ 12,750 sq’
showroom-					@ 2,550 sq’
offices-					@ 2,550 sq’
restroom/kitchen-				@ 522 sq’
mechanical-					@ 1,708 sq’
loading dock-					@ 2,063 sq’
Digital
main production-				 @ 6,055 sq’
research workshops-				 @ 2,822 sq’
material storage-				 @ 1,512 sq’
showroom-					@ 2,086 sq’
offices-					@ 1,221 sq’
mechanical-					@ 548 sq’
Bike hub
workshop/maintenance-			 @ 2,011 sq’
bicycle storage-				 @ 5,112 sq’
shop storage-					@ 3,088 sq’
restrooms-					@ 323 sq’
entry-						@ 783 sq’
protected bike parking-			 @ 3,112 sq’
20
-Preliminary exercises focus on
incorporating rainscreen
technology to the facade using
CLT panels as a material.
-Here is a double layer facade
that tapers from bottom to the
top, while the windows slowly
appear to puncture through
each surface
21
22
23
1/512”= 1’0”
1/512”= 1’0”
1/8”=1’0”
24
25CIVIC/COMMUNITY CENTER
Police Station- 			 @ 8,000 sq’
Consolodated Courthouse		 @ 4,000 sq’
Urgent Care				 @ 6,000 sq’
Office of Emergency Management	 @ 2,000 sq’
Job Placement			 @ 2,000 sq’
Parking				@ 12,000 sq’
Retail					@ 1,200 sq’
Parking
Police
Courthouse
Urgent Care
Community/Job
Placement
O.E.M
26
	 The integration of public and private space along
with the transformative or flexible applications to those
spaces can begin to bring people together and provide for,
in many ways a stable and economically sustainable
community.
	 The Office of Emergency Management (O.E.M.)
became a very inspiring design factor in the scheme of
trying to incorporate a very wide variety of program on
a single site. The flexible nature of the O.E.M. provided a
means to experimentation on
active/inactive/seasonal/perennial activities purely by the
conceptual intent behind an O.E.M.
	 During an emergency situation it is important that
the citizens are aware of a place to go as refuge, or for
goods in light of natural disasters. The inherent qualities of
the program made this a very interesting challenge.
	 Balance of community space and civil space is
expressed by providing distinct urban street appeal while
also allowing the porous nature of the building to invite
guests into public courtyards where retail amenities lighten
the atmosphere. Successful Integration of public and pri-
vate space allows both workers and visitors the means to
access the building cohesively and without
interrupting one another.
Up
Down
Loading Dock
Equip Storage
O.E.M Vehicles
Child
Center
Armory
Records
Evidence
Crim.
Intel
Internal
Affairs
Generator
Classroom
Staff Area
Command
Center
Rec.
Room
Comp. Equip
Nurse
Station
Storage
Doc.
Office
Exam
Room
Pharmacy
Lab
Nurses
Offices
Public
Reception
Juv.
Cell
Cell
Block
Officer
Booking
Holding
Cell
Interview
F
Cell
Child
Care
Dom.
Viol.
Detective
M
Cell
B.R.
Lockers
Muster
Room
Roll Call
Interview
F
Cell
F
Cell
M
Cell
M
Cell
M
Cell
Juv.
Cell
Outoor Storage
Traffic Bureau
Captain’s
Office
Secure
Entrance
Conference
Interview
Interview
Interview
Interview Interview
Bistro
Coffee
Shop
Bathrooms
Exam
Room
Exam
Room
Exam
Room
Exam
Room
Exam
Room
Exam
Room
Exam
Room
Exam
Rooms
Exam
Rooms
Doc.
Office
Doc.
Office
Doc.
Offices
Public
Reception
Classroom
lockers/
showers
Info. Center
27
1/64”=1’0”
Up
Down
Chambers
Payment
Family
waiting
Prisoner
waiting
COURT ROOM
Private Counseling
Comp.
Training
Library
Info.
Tech
Emer.
Dispatch
Mediation
Public
Defender
Prosecutor
Family
waiting
(outdoor)
Private Counseling
Library
Retail
28
1/32”=1’0”
1/64”=1’0”
Up
Down
Print
Weight Room
Overnight Sleeping
Court Admin.
Court Admin.
Lockers
29
1/64”=1’0”
30 1/16”=1’0”
31LOW-RISE HOUSING DEVELOPMENT
(Collaborative project pg. 31-41)
Zainab Alaithan
Phillip Grasso
Fernando Campos
DESIGN PROBLEM / INTENT
	 The goal of the project was to generate a new way of looking at
suburbia. The project needed to be low-rise, high density, but besides those
conditions, it also needed to address issues such as resiliency in different
scopes: economic, social and environmental; it needed to address the
issues caused by, and exposed by Super Storms like Sandy, sea level rise,
and FEMA guidelines; all of these parameters without forgetting the use of
smart materials, that we were exposed to during the semester. Overall, it
was a very complex project, with many different considerations to make.
	 We intend to generate a dynamic process of interactions that will ulti-
mately reflect a new way of looking to the form and function of suburbia and
the surrounding activities. We will achieve this through the placement of
dwellings, pedestrian, walkways, share spaces, vehicle circulation and
commercial units, in the form of layers.
N
A:A
B:B
32
VALUES, ATTITUDES, AND APPROACHES
	 We each were given a precedent to apply in a very
loose and formal way to a site. One of us came up with a
grid concept to this precedent, so that was also impor-
tant in the design process. The fact that this project had
to change the way we look at and think if suburbia made
us think that, any new form that we applied to the project
would give us that“different way of looking at suburbia”,
but that was not the point, so instead we focus on“how
suburbia was lived”and we let the project develop from
there.
	 We took as an example, Vicente Guallart and his
Shared-Space tower and the idea of having very small units
with limited services, which shared one common space that
had the commodities that the unit did not. We then took
this idea of how people could potentially co-exist, sharing
the areas where activities could be done as part of a bigger
group. Activities such as: cooking, eating, playing, laundry,
leisure.
	 The second key point is layering and that merged
with the idea of the grid where we generated a series of
layers in plan view but also in elevation. To think of units,
pathways, car circulation, shared spaces and commercial
units, as layers, we super imposed those layers within the
grid to generate an architectural composition that would
allow for those layers to co-exist.
	 In elevation we thought of the relationship of
private, semi-private and public layers, and how these could
also begin to inform the design process.
33
1/64”=1’0”
34
1/64”=1’0”
35
1/64”=1’0”
PRIVATE
SEMI-PRIVATE
SEMI-PUBLIC
PUBLIC
36
1/64”=1’0”
37
1/8”=1’0”
A:A
38 1/32”=1’0”
39
Summer condition Winter condition
1/8”=1’0” 1/8”=1’0”
40
41
42
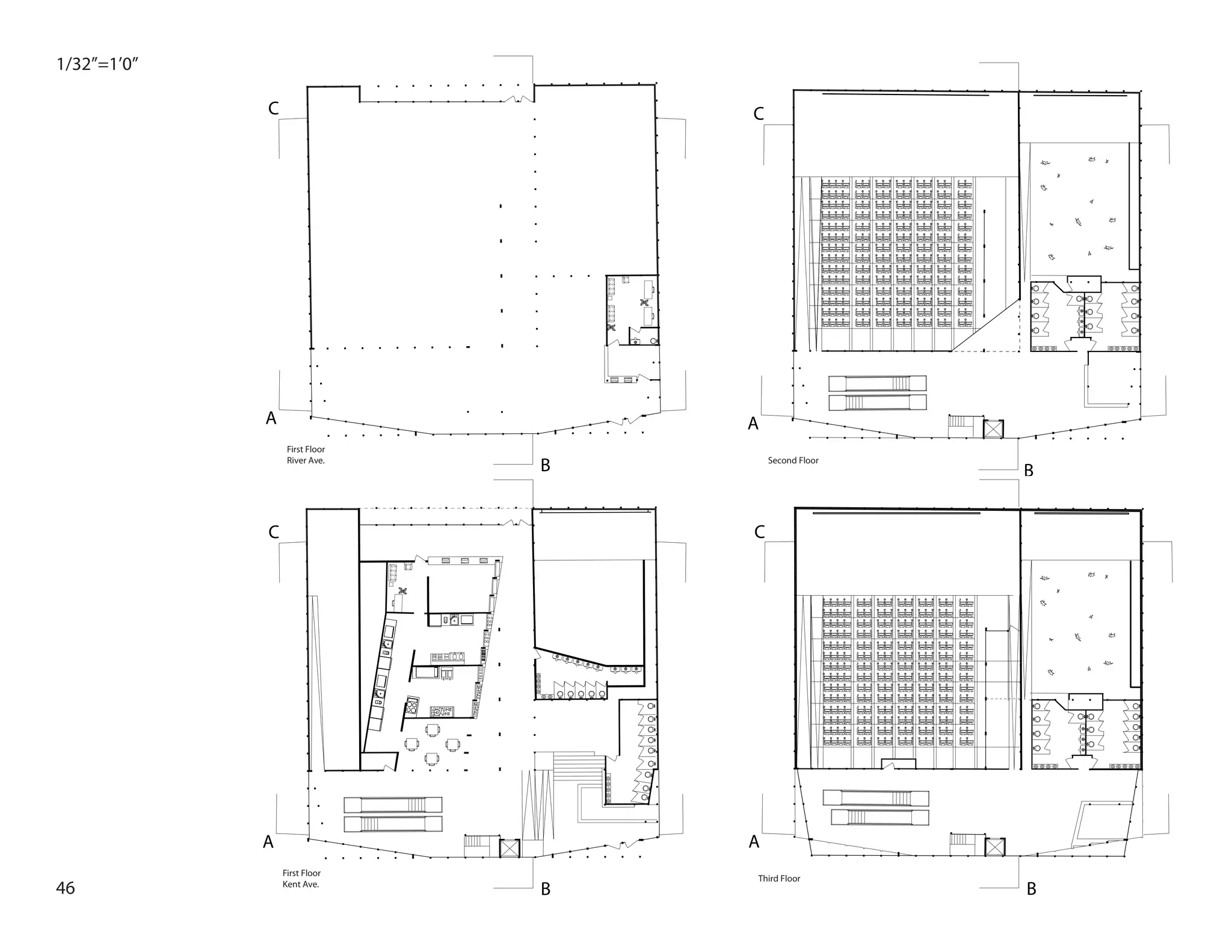
43PALACE OF LIGHT MOVIE THEATER
One Theater-					@ 4,500 sq’
(300 seats including mezzanine)
One Informal Grass Theater-			 @ 2,500 sq”
(180 seats)
One Theater-					@ 3,200 sq’
(220 seats including mezzanine)
Additional Program-				 @ 6,000 sq’
	 Two box offices
	 Five concession stands
	 One pastry / ice cream shop		
	 One rooftop bar
44
45
These stick models are part of a series of models and drawings that reflect
specific cinematic techniques associated with particular films which
revitalized or renewed an appreciation for watching film. What these
intend, is to provide a way of translating the relationship of camera, to
subject and scene, into a tangible object. In turn, becoming the basis for a
cinema pavilion (pg. 45) which was the preliminary exercise before
designing the theater.
46
First Floor
River Ave.
A
B
C
First Floor
Kent Ave.
A
B
C
Second Floor
A
C
B
Third Floor
A
B
C
1/32”=1’0”
47
Fourth Floor
A
B
C
A
B
C
Fifth Floor
	The “Theater” is a transformative space that is experienced rather 
than viewed.  The technological need by society has made the majesty of 
going to see a film obsolete, and therefore, watching a film must change and 
evolve to become as it once was. Through careful organization of components 
the space should envelope the user to become a much more integral part in the
 performance of the theater.   Static energy of today’s movie theaters produce
a very monotonous experience that has little value in the age of HD, 72” 
Flat Screen Televisions. The upscale home has become a theater of sorts, much 
different than that of 60 years ago. The theater re­imagined into a 2 hour amusement
 park, that goes beyond the viewing pleasure, and into the felt, emotional and
 Imaginary world.  To free the Theater and see it as an opportunity for growth and
innovation is necessary for its success.
48
+6
0
-2
1/16”=1’0”
49
+6
0
-2
1/16”=1’0”
50
Now Playing
Section C perspective
51
52
53
54

Portfolio

  • 1.
    P H IL L I PGR A S S O
  • 5.
    3 CONTENTS Undergraduate B.F.A The Collegeof New Jersey Space Frame 24”x36”Acrylic on Canvas 5 Fracture 24”x36”Acrylic on Canvas 6 Fracture2 B/W 24”x36”Acrylic on Canvas 7 Untitled1 40”x48” Watercolor on Layered Oak Plywood 8 Untitled2 20”x40” Watercolor on Plywood 9 Template 96”x24” Acrylic on Plywood (with hinges) 10 Twenty 72”x48” Acrylic and Fiberglass on Oak Plywood 11 One Seventy On 8”x11” Oil on Masonite 12 Graduate M.Arch New Jersey Institute of Technology Fall 2012 Hyde Park Pavilion 13 Location: Hyde Park, U.K Critic: Nick McDermott Spring 2013 CLT Mixed Use Midrise Development 19 Location: Redhook, Brooklyn, NY Critic: Rhett Russo Fall 2013 Civic Community Center 25 Location: Linden, N.J. Critic: Nick McDermott Spring 2014 Lowrise Housing Development (collaborative) 31 Location: Union Beach, N.J. Critic: Keith Krumweide Martina Dekker Fall 2014 Movie Theater 43 Location: Williamsburg, Brooklyn, N.Y. Critic: Henry Grossman
  • 6.
  • 7.
  • 8.
  • 9.
  • 10.
  • 11.
  • 12.
  • 13.
    11 Twenty 72”x48” Acrylic andFiberglass on Oak Plywood
  • 14.
  • 15.
    13HYDE PARK PAVILION Firstfloor- Two conference rooms @ 600 sq’/ea. Two study/leisure spaces @ 600 sq’/ea. One lecture hall @ 1,200 sq’ Ground Floor- Gallery space @ 1,200 sq’ Patio/balcony space @ 600 sq’ Third Floor- One studio @1,200 sq’ One digital lab @ 600 sq’ Roof- Rooftop patio @2,600 sq’
  • 16.
  • 17.
    151/32”= 1’0” 1 2 3 4 - Thepavilion located in Hyde Park, began with a precedent study of the “Serpentine Pavilion” projects done every year. -Through these analyses, the concept of our own designs, achieved through a series of studies, by experiment- ing with various geometries to produce a tessellating pattern(page14) -The goal was to create something with simple roots, while maintaining a complexity through the orientation of parts, the maximization of views, and integration of program.
  • 18.
  • 19.
  • 20.
  • 21.
    19TIMBER IN THECITY Residential Studio 100 @ 350 sq’ One Bedroom 35 @ 550 sq’ Two Bedroom 25 @ 850 sq’ Three Bedroom 15 @ 1100 sq’ -Max height of 185’ base height of 60’ setback 15’after 60’ Wood Manufacturing main production - @ 20,113 sq’ research workshops- @ 3,026 sq’ material storage- @ 12,750 sq’ showroom- @ 2,550 sq’ offices- @ 2,550 sq’ restroom/kitchen- @ 522 sq’ mechanical- @ 1,708 sq’ loading dock- @ 2,063 sq’ Digital main production- @ 6,055 sq’ research workshops- @ 2,822 sq’ material storage- @ 1,512 sq’ showroom- @ 2,086 sq’ offices- @ 1,221 sq’ mechanical- @ 548 sq’ Bike hub workshop/maintenance- @ 2,011 sq’ bicycle storage- @ 5,112 sq’ shop storage- @ 3,088 sq’ restrooms- @ 323 sq’ entry- @ 783 sq’ protected bike parking- @ 3,112 sq’
  • 22.
    20 -Preliminary exercises focuson incorporating rainscreen technology to the facade using CLT panels as a material. -Here is a double layer facade that tapers from bottom to the top, while the windows slowly appear to puncture through each surface
  • 23.
  • 24.
  • 25.
  • 26.
  • 27.
    25CIVIC/COMMUNITY CENTER Police Station- @ 8,000 sq’ Consolodated Courthouse @ 4,000 sq’ Urgent Care @ 6,000 sq’ Office of Emergency Management @ 2,000 sq’ Job Placement @ 2,000 sq’ Parking @ 12,000 sq’ Retail @ 1,200 sq’
  • 28.
    Parking Police Courthouse Urgent Care Community/Job Placement O.E.M 26 Theintegration of public and private space along with the transformative or flexible applications to those spaces can begin to bring people together and provide for, in many ways a stable and economically sustainable community. The Office of Emergency Management (O.E.M.) became a very inspiring design factor in the scheme of trying to incorporate a very wide variety of program on a single site. The flexible nature of the O.E.M. provided a means to experimentation on active/inactive/seasonal/perennial activities purely by the conceptual intent behind an O.E.M. During an emergency situation it is important that the citizens are aware of a place to go as refuge, or for goods in light of natural disasters. The inherent qualities of the program made this a very interesting challenge. Balance of community space and civil space is expressed by providing distinct urban street appeal while also allowing the porous nature of the building to invite guests into public courtyards where retail amenities lighten the atmosphere. Successful Integration of public and pri- vate space allows both workers and visitors the means to access the building cohesively and without interrupting one another.
  • 29.
    Up Down Loading Dock Equip Storage O.E.MVehicles Child Center Armory Records Evidence Crim. Intel Internal Affairs Generator Classroom Staff Area Command Center Rec. Room Comp. Equip Nurse Station Storage Doc. Office Exam Room Pharmacy Lab Nurses Offices Public Reception Juv. Cell Cell Block Officer Booking Holding Cell Interview F Cell Child Care Dom. Viol. Detective M Cell B.R. Lockers Muster Room Roll Call Interview F Cell F Cell M Cell M Cell M Cell Juv. Cell Outoor Storage Traffic Bureau Captain’s Office Secure Entrance Conference Interview Interview Interview Interview Interview Bistro Coffee Shop Bathrooms Exam Room Exam Room Exam Room Exam Room Exam Room Exam Room Exam Room Exam Rooms Exam Rooms Doc. Office Doc. Office Doc. Offices Public Reception Classroom lockers/ showers Info. Center 27 1/64”=1’0”
  • 30.
  • 31.
    Up Down Print Weight Room Overnight Sleeping CourtAdmin. Court Admin. Lockers 29 1/64”=1’0”
  • 32.
  • 33.
    31LOW-RISE HOUSING DEVELOPMENT (Collaborativeproject pg. 31-41) Zainab Alaithan Phillip Grasso Fernando Campos DESIGN PROBLEM / INTENT The goal of the project was to generate a new way of looking at suburbia. The project needed to be low-rise, high density, but besides those conditions, it also needed to address issues such as resiliency in different scopes: economic, social and environmental; it needed to address the issues caused by, and exposed by Super Storms like Sandy, sea level rise, and FEMA guidelines; all of these parameters without forgetting the use of smart materials, that we were exposed to during the semester. Overall, it was a very complex project, with many different considerations to make. We intend to generate a dynamic process of interactions that will ulti- mately reflect a new way of looking to the form and function of suburbia and the surrounding activities. We will achieve this through the placement of dwellings, pedestrian, walkways, share spaces, vehicle circulation and commercial units, in the form of layers.
  • 34.
    N A:A B:B 32 VALUES, ATTITUDES, ANDAPPROACHES We each were given a precedent to apply in a very loose and formal way to a site. One of us came up with a grid concept to this precedent, so that was also impor- tant in the design process. The fact that this project had to change the way we look at and think if suburbia made us think that, any new form that we applied to the project would give us that“different way of looking at suburbia”, but that was not the point, so instead we focus on“how suburbia was lived”and we let the project develop from there. We took as an example, Vicente Guallart and his Shared-Space tower and the idea of having very small units with limited services, which shared one common space that had the commodities that the unit did not. We then took this idea of how people could potentially co-exist, sharing the areas where activities could be done as part of a bigger group. Activities such as: cooking, eating, playing, laundry, leisure. The second key point is layering and that merged with the idea of the grid where we generated a series of layers in plan view but also in elevation. To think of units, pathways, car circulation, shared spaces and commercial units, as layers, we super imposed those layers within the grid to generate an architectural composition that would allow for those layers to co-exist. In elevation we thought of the relationship of private, semi-private and public layers, and how these could also begin to inform the design process.
  • 35.
  • 36.
  • 37.
  • 38.
  • 39.
  • 40.
  • 41.
    39 Summer condition Wintercondition 1/8”=1’0” 1/8”=1’0”
  • 42.
  • 43.
  • 44.
  • 45.
    43PALACE OF LIGHTMOVIE THEATER One Theater- @ 4,500 sq’ (300 seats including mezzanine) One Informal Grass Theater- @ 2,500 sq” (180 seats) One Theater- @ 3,200 sq’ (220 seats including mezzanine) Additional Program- @ 6,000 sq’ Two box offices Five concession stands One pastry / ice cream shop One rooftop bar
  • 46.
  • 47.
    45 These stick modelsare part of a series of models and drawings that reflect specific cinematic techniques associated with particular films which revitalized or renewed an appreciation for watching film. What these intend, is to provide a way of translating the relationship of camera, to subject and scene, into a tangible object. In turn, becoming the basis for a cinema pavilion (pg. 45) which was the preliminary exercise before designing the theater.
  • 48.
    46 First Floor River Ave. A B C FirstFloor Kent Ave. A B C Second Floor A C B Third Floor A B C 1/32”=1’0”
  • 49.
    47 Fourth Floor A B C A B C Fifth Floor The “Theater” is a transformative space that is experienced rather  than viewed.  The technological need by society has made the majesty of  going to see a film obsolete, and therefore, watching a film must change and  evolve to become as it once was. Through carefulorganization of components  the space should envelope the user to become a much more integral part in the  performance of the theater.   Static energy of today’s movie theaters produce a very monotonous experience that has little value in the age of HD, 72”  Flat Screen Televisions. The upscale home has become a theater of sorts, much  different than that of 60 years ago. The theater re­imagined into a 2 hour amusement  park, that goes beyond the viewing pleasure, and into the felt, emotional and  Imaginary world.  To free the Theater and see it as an opportunity for growth and innovation is necessary for its success.
  • 50.
  • 51.
  • 52.
  • 53.
  • 54.
  • 55.
  • 56.