Embed presentation
Download to read offline














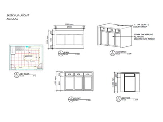
The document discusses 3D modeling and rendering software, mentioning SketchUp and VRay repeatedly for modeling and rendering, as well as AutoCAD for 2D drafting and SketchUp Layout for presentation sheets from SketchUp models, with one mention of InteriCAD Lite.













