DEPARTMENT OF ARCHITECTURE
FACULTY OF ARCHITECTURE, PLANNING AND SURVEYING
UNIVERSITI TEKNOLOGI MARA
ARK 581 CONSTRUCTION TECHNOLOGY VI
ASSIGNMENT 2
HAILANE SALAM
MBG SEEDS-PASAR, CAFE, GALLERY
MOHAMAD ARIF BIN MD. ZAIN
2007106125
CONTENTS
MBG FRUITSHOP 01
DESIGN PROPOSAL 03
FLOOR PLANS 06
CONSTRUCTION 09
CONSTRUCTION DETAIL 12
REFERENCES 16
MBG FRUITSHOP
Mission:
-To offer TOTAL Customer Satisfaction Services.
-To Improve the Quality of Life.
-To maintain as a Quality Value-driven leader in the fruit shop chain in Malaysia.
-To ensure our commitment of "Everyday Fresh @ MBG" for the betterment of everyone.
Vision:
-To make MBG your one-stop centre for premium fruits.
-Together we grow a passion for healthy living.
Purpose
MBG stands for Money Back Guarantee. MBG makes sure every customer get the best products.
MBG will also continue to improve the quality of the products for the best benefit of
their customers. Every customer who makes a purchase at MBG's outlets can be refunded
within 7 days (with a receipt/proof of purchase) should they be not satisfied with the
quality of their purchase.
Culture
MBG-Culture is HONESTY. Being truthful to our customers is our practice. Customers could
count on our words. Thus, bring us on par to be one of the best companies in the nation.
Principle
The Managing Director, Adnan Lee gives the company a sense of honor and a set of virtues
that are equally important in managing both business and life. The Lee family's 3 Basic
Beliefs: HYGIENE, EXCELLENT CUSTOMER SERVICE & QUALITY PRODUCTS is strongly enforced into
the business.
Operation
There are 17 outlets operating around Klang Valley to date. More than 140 staffs are
serving more than 4 million customers per year. We provide healthy fruits to help in
creating a healthy society.
19901960 1970 1980 2000
lee foo starts to sell
fruits in petaling street
lee foo works as
a labour worker
the business is handed over
to lee foo's son ying cheong
adnan lee converted
to islam and married
to nurul ainiying cheong started a fruit
stall at a market in the
bukit bintang area
adnan lee opened
his first store in
a shopping mall in
avenue k, jalan ampangadnan lee finishes his
SPM and start selling
fruits using bicycle
adnan lee started selling
fruits at a night market
around taman desa, taman
maluri and kuchai lama
adnan lee started a permanent
fruit stall at pasar imbi
in the morning
adnan lee rebrands
his business under MBG
1950 20202010
MBG starts promoting,
receiving orders online and
providing delivery services
ying cheong started
selling fruits at pasar pudu
and jalan imbi using bicycle
MBG has always put high priority in their shop concept. Quality has been their main focus thus their shop design and products are carefully selected. More than just
any fruit shop, MBG prides in its' exceptional standard in the fruit industry. MBG sells not only fresh fruit but a range of fruit orientated products as well.
Local & Imported Fruits
MBG has a wide range of both local and imported fruit. We even carry unique seasonal fruits such as the Japanese Kyoho Grapes, Japanese Musk Melon,
Premium Cherries, Indonesian Harum Manis Mangoes, Australian Mangoes, Tambun Sweet Pamelo, Black Pearl Jambu Air and other exotic fruits during whole year.
Fresh Cut Fruits
Prepared using selected fresh fruits picked from the best, mixed in a cup for you to savour. Available with topping such as plum powder and rojak sauce.
Mix & Match Fresh Fruit Juices
A variety of pre-created mix of fruit juices to choose from, complete with it's nutritional information, or create your owm from the choices of fruits available.
100% pure juice, no presevatives, water or sugar added and no ice; with tons of natural healthy benefits.
Fruit Basket
A perfect gift for almost any occasion, hand picked variety of fruits and hand made basket wrapped with ribbons and optional greeting card.
Delivery Service
For a nominal charge, MBG send fruits to your doorstep be it a fruit basket, your weekly fruit grocery or your corporate function.
Fresh Salad
Fresh veggies combined with fruits with dressing, as well as conventional salad made of veggies and dressing to suite your taste. Perfect for a quick lunch or
anyone on a diet.
source : http://www.mbg.com.my
MBG FRUITSHOP HISTORY
MBG FRUITSHOP CONCEPT
DESIGN PROPOSAL
LOCATION PLAN
KEY PLAN
parking
loading bay
ground floor
first floor
lower ground floor
servicesstore
enterance
cafe store
gallery
store
cafe
workshop
gallery
office
lobby
pasar
buah
toilet
gallery
temporary
gallery
communal
space
elevator
stairs
elevator
roof deck
vehicle
stairs
ramp
ramp
stairs
putrajaya
lake
enclosed
space
open
space
pedestrian
pedestrian
movement
kids
teenage
adult
old
family
staff
user program space
education
socialize
shopping
eating
exhibition
working
workshop
/class
pasar buah
cafe
gallery
office
FLOOR PLANS
LOWER-GROUND FLOOR PLAN
NOT TO SCALE
GROUND FLOOR PLAN
NOT TO SCALE
FIRST FLOOR PLAN
NOT TO SCALE
CONSTRUCTION
3.5 m deep excavation of site for lower-ground
sub-basement floor and parking lot and some of the
excavated soil is used in the construction.
800mm deep strip footing foundation
to engineers detail
250mm thick reinforced concrete floor slab
for the sub-basement floor with water proofing
treatment to engineers detail
150mm x 150mm reinforced concrete column
and 150mm x 300mm reinforced concrete beam
(frame construction) to engineers detail
with 20mm thick cement plaster finished with
paint to architects approval
3000mm x 3000mm reinforced concrete
lift core to engineers detail
150mm thick reinforced concrete wall with
water resistant treatment for sub-basement
wall to engineers detail
115mm thick clay brick wall with exmet at
every fourth course layer covered with 20mm
thick cement plaster and painted with weather
proof type paint externally and emulsion
paint internally to architects approval
Reinforced concrete ground beam for the
sub-basement floor to engineers detail
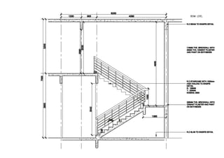
1500mm width reinforced concrete
staircase with 900mm height hand rail
to engineers detail
150mm thick reinforced concrete retaining wall for
sub-basement parking with holes for water movement
to engineers detail
250mm thick reinforced concrete floor slab
for ground floor finished with heavy duty
homogeneous tiles to engineers
detail and architects approval
Heavy duty finished reinforced concrete ramp
for ground floor to engineers detail
6000mm width reinforced concrete
staircase for entrance from parking
lot with 90mm height hand rail
to engineers detail
3000mm width reinforced concrete
staircase for permanent gallery with
90mm height hand rail to engineers detail
10mm thick fixed tempered glass wall with
steel frame structure for temporary gallery
wall to engineers detail and architects approval
10mm thick fixed tempered glass wall with
steel frame structure for souvenir shops
wall to engineers detail and architects approval
250mm thick reinforced concrete floor slab
for ground floor pasar buah finished with floral
pattern heavy duty homogeneous tiles to engineers
detail and architects approval
20mm diameter hollow section warren type
steel truss for roof structure bolted and welded
to I section column to engineers detail
250mm thick 30m long span pre-stressed
concrete floor slab in first floor connected to
beam using bolt and nut to engineers detail
250mm thick reinforced concrete floor slab
roof deck with water proof treatment and finnished
with recycled tyres rubber tiles to engineers
detail and architects approval
10mm thick fixed tempered glass wall with
steel frame structure for first floor workshop
wall to engineers detail and architects approval
150mm x 150mm reinforced concrete column
and 150mm x 300mm reinforced concrete beam
(frame construction) to engineers detail
with 20mm thick cement plaster finished with
paint to architects approval
115mm thick clay brick wall with exmet at
every fourth course layer covered with 20mm
thick cement plaster and painted with weather
proof type paint externally and emulsion paint
internally to architects approval
150mm x 300mm steel I section roof
column connected with bolt and nut to
concrete ground bedding and covered
with paint to engineers detail
2000mm width reinforced concrete
staircase with 90mm height hand rail
to engineers detail
1500mm width reinforced concrete
staircase with 900mm height hand rail
to engineers detail
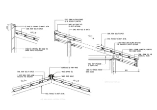
0.5mm thick metal deck roof sheet at
9 degrees pitch finnished with non-shining
weather proof paint,fixed on c channel purlin
and steel trusses roof structure to engineers
detail and architects approval
30mm thick recycled clothing fabric for insulation
including wire mesh, metal ridge and hip capping
CONSTRUCTION DETAIL
ROOF DETAIL
FOUNDATION DETAIL
ROOF DETAIL
ROOF EAVE DETAIL
HIP AND RIDGE CAPPING DETAIL
FOUNDATION DETAIL
REFERENCES
http://www.mbg.com.my
mbg seeds construction

mbg seeds construction

  • 1.
    DEPARTMENT OF ARCHITECTURE FACULTYOF ARCHITECTURE, PLANNING AND SURVEYING UNIVERSITI TEKNOLOGI MARA ARK 581 CONSTRUCTION TECHNOLOGY VI ASSIGNMENT 2 HAILANE SALAM MBG SEEDS-PASAR, CAFE, GALLERY MOHAMAD ARIF BIN MD. ZAIN 2007106125
  • 2.
    CONTENTS MBG FRUITSHOP 01 DESIGNPROPOSAL 03 FLOOR PLANS 06 CONSTRUCTION 09 CONSTRUCTION DETAIL 12 REFERENCES 16
  • 3.
    MBG FRUITSHOP Mission: -To offerTOTAL Customer Satisfaction Services. -To Improve the Quality of Life. -To maintain as a Quality Value-driven leader in the fruit shop chain in Malaysia. -To ensure our commitment of "Everyday Fresh @ MBG" for the betterment of everyone. Vision: -To make MBG your one-stop centre for premium fruits. -Together we grow a passion for healthy living. Purpose MBG stands for Money Back Guarantee. MBG makes sure every customer get the best products. MBG will also continue to improve the quality of the products for the best benefit of their customers. Every customer who makes a purchase at MBG's outlets can be refunded within 7 days (with a receipt/proof of purchase) should they be not satisfied with the quality of their purchase. Culture MBG-Culture is HONESTY. Being truthful to our customers is our practice. Customers could count on our words. Thus, bring us on par to be one of the best companies in the nation. Principle The Managing Director, Adnan Lee gives the company a sense of honor and a set of virtues that are equally important in managing both business and life. The Lee family's 3 Basic Beliefs: HYGIENE, EXCELLENT CUSTOMER SERVICE & QUALITY PRODUCTS is strongly enforced into the business. Operation There are 17 outlets operating around Klang Valley to date. More than 140 staffs are serving more than 4 million customers per year. We provide healthy fruits to help in creating a healthy society.
  • 4.
    19901960 1970 19802000 lee foo starts to sell fruits in petaling street lee foo works as a labour worker the business is handed over to lee foo's son ying cheong adnan lee converted to islam and married to nurul ainiying cheong started a fruit stall at a market in the bukit bintang area adnan lee opened his first store in a shopping mall in avenue k, jalan ampangadnan lee finishes his SPM and start selling fruits using bicycle adnan lee started selling fruits at a night market around taman desa, taman maluri and kuchai lama adnan lee started a permanent fruit stall at pasar imbi in the morning adnan lee rebrands his business under MBG 1950 20202010 MBG starts promoting, receiving orders online and providing delivery services ying cheong started selling fruits at pasar pudu and jalan imbi using bicycle MBG has always put high priority in their shop concept. Quality has been their main focus thus their shop design and products are carefully selected. More than just any fruit shop, MBG prides in its' exceptional standard in the fruit industry. MBG sells not only fresh fruit but a range of fruit orientated products as well. Local & Imported Fruits MBG has a wide range of both local and imported fruit. We even carry unique seasonal fruits such as the Japanese Kyoho Grapes, Japanese Musk Melon, Premium Cherries, Indonesian Harum Manis Mangoes, Australian Mangoes, Tambun Sweet Pamelo, Black Pearl Jambu Air and other exotic fruits during whole year. Fresh Cut Fruits Prepared using selected fresh fruits picked from the best, mixed in a cup for you to savour. Available with topping such as plum powder and rojak sauce. Mix & Match Fresh Fruit Juices A variety of pre-created mix of fruit juices to choose from, complete with it's nutritional information, or create your owm from the choices of fruits available. 100% pure juice, no presevatives, water or sugar added and no ice; with tons of natural healthy benefits. Fruit Basket A perfect gift for almost any occasion, hand picked variety of fruits and hand made basket wrapped with ribbons and optional greeting card. Delivery Service For a nominal charge, MBG send fruits to your doorstep be it a fruit basket, your weekly fruit grocery or your corporate function. Fresh Salad Fresh veggies combined with fruits with dressing, as well as conventional salad made of veggies and dressing to suite your taste. Perfect for a quick lunch or anyone on a diet. source : http://www.mbg.com.my MBG FRUITSHOP HISTORY MBG FRUITSHOP CONCEPT
  • 5.
  • 6.
    parking loading bay ground floor firstfloor lower ground floor servicesstore enterance cafe store gallery store cafe workshop gallery office lobby pasar buah toilet gallery temporary gallery communal space elevator stairs elevator roof deck vehicle stairs ramp ramp stairs putrajaya lake enclosed space open space pedestrian pedestrian movement
  • 7.
  • 8.
  • 9.
  • 10.
  • 11.
    CONSTRUCTION 3.5 m deepexcavation of site for lower-ground sub-basement floor and parking lot and some of the excavated soil is used in the construction.
  • 12.
    800mm deep stripfooting foundation to engineers detail 250mm thick reinforced concrete floor slab for the sub-basement floor with water proofing treatment to engineers detail 150mm x 150mm reinforced concrete column and 150mm x 300mm reinforced concrete beam (frame construction) to engineers detail with 20mm thick cement plaster finished with paint to architects approval 3000mm x 3000mm reinforced concrete lift core to engineers detail 150mm thick reinforced concrete wall with water resistant treatment for sub-basement wall to engineers detail 115mm thick clay brick wall with exmet at every fourth course layer covered with 20mm thick cement plaster and painted with weather proof type paint externally and emulsion paint internally to architects approval Reinforced concrete ground beam for the sub-basement floor to engineers detail 1500mm width reinforced concrete staircase with 900mm height hand rail to engineers detail 150mm thick reinforced concrete retaining wall for sub-basement parking with holes for water movement to engineers detail 250mm thick reinforced concrete floor slab for ground floor finished with heavy duty homogeneous tiles to engineers detail and architects approval Heavy duty finished reinforced concrete ramp for ground floor to engineers detail 6000mm width reinforced concrete staircase for entrance from parking lot with 90mm height hand rail to engineers detail 3000mm width reinforced concrete staircase for permanent gallery with 90mm height hand rail to engineers detail 10mm thick fixed tempered glass wall with steel frame structure for temporary gallery wall to engineers detail and architects approval 10mm thick fixed tempered glass wall with steel frame structure for souvenir shops wall to engineers detail and architects approval 250mm thick reinforced concrete floor slab for ground floor pasar buah finished with floral pattern heavy duty homogeneous tiles to engineers detail and architects approval
  • 13.
    20mm diameter hollowsection warren type steel truss for roof structure bolted and welded to I section column to engineers detail 250mm thick 30m long span pre-stressed concrete floor slab in first floor connected to beam using bolt and nut to engineers detail 250mm thick reinforced concrete floor slab roof deck with water proof treatment and finnished with recycled tyres rubber tiles to engineers detail and architects approval 10mm thick fixed tempered glass wall with steel frame structure for first floor workshop wall to engineers detail and architects approval 150mm x 150mm reinforced concrete column and 150mm x 300mm reinforced concrete beam (frame construction) to engineers detail with 20mm thick cement plaster finished with paint to architects approval 115mm thick clay brick wall with exmet at every fourth course layer covered with 20mm thick cement plaster and painted with weather proof type paint externally and emulsion paint internally to architects approval 150mm x 300mm steel I section roof column connected with bolt and nut to concrete ground bedding and covered with paint to engineers detail 2000mm width reinforced concrete staircase with 90mm height hand rail to engineers detail 1500mm width reinforced concrete staircase with 900mm height hand rail to engineers detail 0.5mm thick metal deck roof sheet at 9 degrees pitch finnished with non-shining weather proof paint,fixed on c channel purlin and steel trusses roof structure to engineers detail and architects approval 30mm thick recycled clothing fabric for insulation including wire mesh, metal ridge and hip capping
  • 14.
  • 15.
    ROOF DETAIL ROOF EAVEDETAIL HIP AND RIDGE CAPPING DETAIL
  • 16.
  • 18.