FADAUFACULTAD DE ARQUITECTURA, DISEÑO,
ARTE Y URBANISMO.
ESCUELA DE ARTE
DE PLASENCIA
GACIO VELO LUCAS
40010301
B+S+B & asociados
Arq. Oscar Borrachia / Arq. Jorge Barroso / Arq. Carlos Sallaberry
EAP
0.0.SITIO
2. IMPLANTACION
4.ESTRUCTURA
MORFOLOGICA
SUSTENTABILIDAD .6
0.0 SITIO
0.1 TEMA
0.1 TEMA/ACTUALIDAD
Luego de realizar el intercambio
universitario en España, encontre una
problematica social en la Ciudad de
Plasencia, Comunidad de Extremadura.
En base a esto y a varias charlas con
personal del ayuntamiento y el Arq. Luis
Ramón Valverde, el cuál se ofreció para
ser mi tutor, decidí realizar la ampliacion
de la Escuela de Pintura en dicha
ciudad, ya que la misma no contaba
con el espacio suficiente para la
cantidad de alumnos que desearían
concurrir, los cuales por este motivo
migraban a otras ciudades cercanas a
practicar dicha actividad.
La ampliación se llevará a cabo en el
Palacio Casa del Dean, que se
encuentra en el casco histórico de la
ciudad, y esta en deshuso hace varios
años.
PROGRAMA
DE
INTERCAMBIO
Universidad
De extremadura
Universidad
De Moron
CASA DEL DEAN
S. XVII
UBICACIÓN GEOGRAFICA
PLASENCIA “CIUDAD AMURALLADA”
ESPAÑA
EXTREMADURA
PLASENCIA
SUPERFICIE: 217 km2
POBLACIÓN: 40.755 hab
DENSIDAD: 187.63 km/hab
FUNDADA EN 1186
PALACIO AINTERVENIR
0.0 SITIO -LOCALIZACION
Plasencia se ha convertido en un importante nudo de
comunicaciones, y son varias las autovías y carreteras que
unen Plasencia con el resto de España; teniendo algunas
su origen en la propia ciudad, y siendo también algunas
de las que más tráfico soportan de la comunidad, como
son la autovía A-66 a su paso por Plasencia, la EX-A1 y la
carretera entre Plasencia y Malpartida de Plasencia.
RUTAS DE ACCESO A LA CIUDAD
ENTORNO CIUDADES CERCANAS
Cáceres
Coria
Logrosán
Trujillo
Navalmoral de la Mata
Plasencia
Valencia de Alcántara
0.0 SITIO -LOCALIZACION
DISTANCIA AMADRID: 248KM
Casco Histórico
(Amurallado)
Principales Vías de
Acceso a la ciudad
Principales Vías de
Circulación de la ciudad Rio de Jerte
Sector a Intervenir
Parque Nacional
Los Pinos
P L A S E N C I A
0.0 SITIO -LOCALIZACION
CONTEXTO HISTORICO
“Ut placeat Deo et hominibus.”
Para que agrade a Dios y a los hombres.
PLASENCIA es la segunda ciudad mas importante y
poblada de la provincia de Cáceres,situada en el norte
de la comunidad Autónoma de Extremadura.
Ciudad de nueva planta diseñada por Brigo (Obispo de
Ávila) basándose en las directrices de “La ciudad de
Dios” de San Agustín.
Se funda como ciudad cabecera de diócesis ya que
tiene obispo y catedral.
Fundada por Alfonso VIII y Leonor de Aquitania (Hermana
de Ricardo Corazón de León) en 1186,tras la conquista
de Cuenca, cerrando el reino de León y Aragón e
impidiendo el avance Islámico.
De tipo RADIAL como todas las Ciudades Cristianas de
la Edad Media
Sus calles eran de tipo gremial, reuniendose cada
grupo de mercaderes o de oficios en una misma calle,
tales como: La calle Zapateria,Calle de los Quesos, y
todas girando a un nucleo central como es la Plaza
Mayor, entendida tambien como el cruce de los
caminos procedentes de Talavera de la Reina,Trujillo,
La Vera, y Valle del Jerte, Coria.
ESTRUCTURA URBANA
0.0 SITIO -CONTEXTUALIZACION
CONTEXTORELIGIOSO
La ciudad de Guadalupe,
sede de la Virgen de
Guadalupe, patrona de
Extremadura, no se
encuentra dentro de la
diócesis de Plasencia ya
que en ella se encontraba
un hospital importante en la
edad media, aunque si se
encuentra entre los límites
de la comunidad.
La Catedral de Santa María de Plasencia es un edificio que
constituye un ejemplo muy interesante de transición del
románico al gótico. La construcción comenzó a principios
del siglo XIII. La parte “nueva” comenzó en el año 1498 y
continuó a lo largo del siglo XVI dentro del estilo gótico-
renacentista.
CONTEXTOHISTORICO-SOCIAL
Otorgado por Alfonso VII luego de la batalla de
Alarcos en 1195 donde se enfrenta al rey de los
almohades y los soldados placentinos no
huyeron como los de Castilla.
NOBLE
Otorgado en 1494 por los reyes católicos para
premiar la fidelidad de Plasencia hacia la
corona, luego de que la ciudad fue regalada a
los Zuñiga y los placentinos asaltaron su ciudad y
consiguen rendir a las tropas del conde.
LEAL
Otorgado en 1901 por María Cristina luego
que Plasencia abrió sus puertas y brindo
hospitalidad a los soldados enfermos y heridos
que volvían de la guerra Cuba, que habían
sido rechazados por muchas ciudades de
España.
BENÉFICA
NOBLES
Estúniga / Zúñiga
Monroy
Carvajal
Paniagua
Trujillo
Dueños de la ciudad siglo XV
Casa de las dos torres / Hospital
Cardenal siglo XVI
Casa del Deán
Casa del Dr. Trujillo
0.0 SITIO -CONTEXTUALIZACION
TITULOS
CONTEXTO ACTUAL
España. Extremadura.
Provincia de Cáceres.
Rodeada de 6 de las 15 ciudades españolas nombradas
patrimonio de la humanidad por la UNESCO.
Próximo al Valle del Jerte y a 3 hs de Sevilla o Madrid.
0.0 SITIO -CONTEXTUALIZACION
PATRIMONIO
0.1 SITIO -LOCALIZACION0.1 SITIO -LOCALIZACION
•La población menor de 20 años es el 22% de la población
total.
•La población comprendida entre 20-40 años es el 29%
•La población comprendida entre 40-60 años es el 27%
•La población mayor de 60 años es el 20%
Esta estructura de la población es típica en el régimen
demográfico moderno, con una evolución hacia un
envejecimiento de la población y una disminución de la
natalidad anual.
DEMOGRAFIA
En 2011 contaba con una población 41.302
habitantes. Igual que con otras ciudades españolas,
la población urbana de Plasencia tiende a aumentar
progresivamente año tras año, si bien éste aumento es
moderado, como sucede con el resto de las ciudades
extremeñas y del interior peninsular. Dentro del
contexto extremeño es uno de los focos principales de
atracción del flujo migratorio, tanto de población
extranjera, como nacional. Así mismo el número de
habitantes crece en gran parte debido a las
migraciones dentro de la propia provincia, puesto que
Plasencia ejerce una notable influencia en el norte de
la Comunidad Autónoma, tanto por el nivel de
servicios que ofrece como por ser uno de los
principales polos industriales en Extremadura.
E V O L U C I O N POBLACION
22%
29%
27%
20%
MENOR
20AÑOS
20/40
AÑOS
40/60
AÑOS
MAYOR
60AÑOS
POBLACION
0.0 SITIO -CONTEXTUALIZACION
Durante nuestra cursada en la Universidad de
Extremadura, conocimos al arquitecto Luis
Valverde, al cual le comentamos nuestra
necesidad de buscar una problemática social
del lugar para poder desarrollar nuestro tema
de tesis, por lo que se ofreció a ser nuestro tutor
durante nuestra estadía en España.
Nos comento que actualmente en su ciudad de
residencia (Plasencia) el complejo Santa Maria
presentaba graves problemas funcionales,
sumado a que en la ciudad había grandes
edificios históricos que podrían refuncionalizarse
llevando algunas de las actividades presentes
en el complejo cultural.
Luego de varias reuniones en el ayuntamiento
pudimos tener acceso al complejo Santa Maria
y también conseguimos que nos permitan
ingresar a los edificios abandonados de la
ciudad.
En mi caso elegí la Escuela de Arte, la cual visite
en varias ocasiones para entender su
funcionamiento y deficiencias.
Propuse trasladarla a la Casa del Dean, ubicada
muy cerca de allí.
0.1 TEMA/PROBLEMÁTICAACTUAL
DESARROLLO DEL TEMA Y VISITAS AL SITIO
A CARGO DEL ARQ. LUIS VALVERDE
Se ubica en el Complejo Cultural Santa María (ex
Hospital Monroy), compartiendo edificio con lo que
hoy en día es el conservatorio de música, la escuela de
danza y la escuela de formación de artes plásticas y
escénicas.
Las diversos actividades dentro de este edificio se ven
en conflicto ya que cada una cuenta con un espacio
limitado que muchas veces no permite la futura
expansión o bien el buen funcionamiento de la misma.
Las funciones que alberga la escuela de pintura son:
Un espacio común en el que se desarrollan las clases
de pintura y dibujo, a la vez, esto imposibilita el
desarrollo de clases especificas, el área de grabado no
cuenta con un espacio propio y a su vez la escuela
carece de espacios de programación, administración
y depósitos para cada área. Actualmente estas
actividades se desarrollan en espacios comunes como
descansos de escaleras, pasillos o dentro del espacio
central donde se dicta la propia clase.
Otra problemática que se observa es que los profesores
no tienen una sala de reunión donde pueden debatir y
relacionarse entre ellos, ni tampoco un espacio para el
director del establecimiento.
0.1 TEMA/PROBLEMÁTICAACTUAL
ESCUELA DE PINTURA
PLANTA BAJA
PLANTA ALTA
0.1 TEMA/PROBLEMÁTICAACTUAL
ESCUELA DE PINTURA ACTUAL
COMPLEJO CULTURAL SANTA MARIA
PLANTABAJA
PLANTAALTA
PROBLEMÁTICA ACTUAL
COMPLEJO CULTURAL SANTA MARIA
0.1 TEMA/PROBLEMÁTICAACTUAL
I M P O SI BI L I D AD D E
C R E C I M I E N T O
El edificio se encuentra a máxima
capacidad de ocupación, sin la posibilidad
de seguir sumando estudiantes ni tampoco
de dividir el área de trabajo según
temática, programas específicos,o años de
estudio, ya que solo cuentan con un
espacio común en el que dibujo y pintura
conviven todo el tiempo.
Áreas de lavado, preparado de
materiales, acopio, área de grabado y
tareas administrativas ocupan espacios
comunes del edifico dificultando el
desarrollo de las mismas y del edificio en
general.
F A L T A D E ESP AC I O
0.1 TEMA/PROBLEMÁTICAACTUAL
PROBLEMÁTICA ACTUAL
COMPLEJO CULTURAL SANTA MARIA
Propongo la Intervención de la casa del Dean, consolidando dicho palacio, y devolviéndole la posibilidad de ser
habitado, descentralizando los usos de las diferentes actividades actualmente existentes en el Complejo Cultural
Santa María, logrando así la ampliación de cada escuela (en mi caso: Pintura) y buscando con esto la reinserción de
los jóvenes en la ciudad, evitando la migración de los mismos a otras ciudades cercanas por falta de actividades.
DESCENTRALIZACION DE USOS
0.1 TEMA/ PROPUESTA
IGLESIA
SAN MARTIN
“ARTES ESCENICAS "
CASA DEL DOCTOR TRUJILLO
“ESCUELA DE ESCULTURA"
CASA DE LAS DOS TORRES
“ ESCUELA DE FORMACION
INTEGRAL DE DANZA"
PINTURA
CASA DEL DEAN
ARTES ESCENICAS ESCULTURADANZA
COMPLEJO CULTURAL
SANTA MARIA
“CONSERVATORIO DE MUSICA"
PROPUESTA
CASA	DE	LAS	
DOS	TORRES
COM`LEJO	
CULTURAL	
SANTA	MARIA
IGLESIA	SAN	
MARTIN
CASA	DEL	
DOCTOR	
TRUJILLO
CASA	DEL	
DEAN
PLAZA	
MAYOR
CATEDRAL
REVITALIZAR	EL	SECTOR
0.1 TEMA/ PROPUESTA
MASTERPLAN
La Casa del Deán es una casa-palacio ubicada en la ciudad
de Plasencia (provincia de Cáceres,Extremadura, España) y
que data del siglo XVII. Debe su nombre al hecho de que en ella
vivieronalgunos de los deanes de la cercana catedral.
Es de sillería y su portada está adintelada con columnas
toscanas. Destaca un gran balcón en ángulo neoclásico-
corintio, coronado por el monumental escudo de Antonio
Paniagua de Loaisa. La balaustrada y las rejas de dicho balcón
son ejemplos de la rejería española de su época
HISTORIA
0.1 TEMA/ HISTORIA
Destaca un gran
balcón en ángulo
neoclásico-
corintio, coronado
por el
monumental
escudo de
Antonio Paniagua
de Loaisa
IMÁGENES EXTERIORES
0.1 TEMA/ ACTUALIDAD
FACHADA A CATEDRALFACHADA ESQUINA PRINCIPAL
0.1 TEMA/ ACTUALIDAD
Palacio del Dean
Palacio Vecino
“Casa del doctor Trujillo”
IMÁGENES CONTRAFRENTE Y TERRENO
IMÁGENES INTERIORES
0.1 TEMA/ ACTUALIDAD
IMÁGENES INTTERIORES PLANTA BAJA
0.1 TEMA/ ACTUALIDAD
IMÁGENES INTERIORES
IMÁGENES INTTERIORES PRIMER/SEGUNDO PISO
IMÁGENES INTERIORES
0.1 TEMA/ ACTUALIDAD
IMÁGENES FONDO
TEMA Y ACTORES
0.1 TEMA/ PROPUESTA
OBJETIVO
Fundir el pasado con el presente respetando la historia
del lugar y preservando su esencia luego de los estragos
del tiempo.
MISIÓN
FOMENTAR EL DESARROLLO DE LA VIDA URBANA.
Permitir que toda la gente oriunda de la ciudad, que lo
desee, pueda concurrir a dicha escuela, donde un
equipo profesional de docentes imparte a niños y
adultos clases de diversas técnicas de pintura, y
espacios de recreación.
Impedir la migración de los jóvenes a otras ciudades
para realizar sus estudios
ARTE URBANO
IDENTIDAD
INTEGRACION
INCLUSION
ACTIVIDADES
ESPACIO PUBLICO
GRUPOS DE
PERTENENCIA
VISIÓN
Convertirnos en la escuela de arte de referenciaen
Plasencia y proporcionar a nuestros alumnos un centro
con todas las facilidades para aprender distintas técnicas
de dibujo y pintura,
Ofrecer a las madres y padres de los alumnos la
posibilidad de realizar una actividad junto a sus hijos.
REACTIVACION
ESPACIO PUBLICO
EAP
ESCUELA	DE	ARTE	DE	PLASENCIA
+
El dibujo es la columna vertebral del proceso lectivo, considerando el dibujo como elemento más importante y punto
de partida de cualquier desarrollo artístico, se pondrá especial énfasis en que el alumno adquiera un buen control y
dominio del dibujo antes de empezar a pintar o esculpir.
El dibujo a lápiz de láminas permite entender las bases y aprender en dichas prácticas conceptos de encaje, gesto,
proporción y precisión. En el dibujo de apuntes de la figura humana, los estudiantes se centran inicialmente en el
desarrollo de un croquis o apunte de corta temporalidad, entendiendo el proceso de construcción a partir del natural.
Posteriormente, con el dibujo a carbón de la figura humana en pose fija y de yesos, se introduce al alumno a trabajar
en masas dibujando con manchas y con una amplia gama de valores de claroscuro, de forma analítica y estudiada.
Objetivos
Entrenar la mirada para ser riguroso/a.
Aprender el proceso de realización de una pintura analítica de estudio.
Aprender conceptos de matiz y saturación sujetos a la teoría de color y en base a la valoración tonal.
Aprender a conocer los colores pigmento y a mezclaros entre sí.
Conocer recursos expresivos gráficos para la representación de aquello que queremos.
0.1 TEMA/ PROPUESTA
PROGRAMA DIBUJO
Empezando por la práctica y la experimentación del medio a través de la grisalla se irán incorporando de forma
graduada los colores, yendo de una paleta limitada tradicional hasta la obtención de una paleta de colores completa
personalizada fabricada al gusto de cada artista estudiante.
Con la práctica de la pintura, el alumno aprenderá a controlar un medio técnico concreto para representar de una
forma más completa, expresiva, pictórica y artística aquello que ve, interpreta y representa. Conoceráy dominará la
teoría del color, como hemos dicho, compartida por todas las técnicas artísticas, técnicas digitales y fotográficas. Se
unirán nuevos conceptos de temperatura, matiz y saturación en su vocabulario para que el alumno sea el único que
controle y dirija su crecimiento y personalidad artística.
FOTO:	ESCUELA	ACTUAL	DE	PINTURA	– COMPLEJO	SANTA	MARIA
PROGRAMA PINTURA
0.1 TEMA/ PROPUESTA
PERSONAL DE SERV. Y
ADMINISTRATIVO
EAP
ESCUELA DE ARTE DE PLASENCIA
EDADESENTRE 5 Y 80
AÑOS.
BUSCAN FORMARSE Y
PODER DIFUNDIR SUS
APRENDIZAJESA
TRAVÉSDE LAS
DIFERENTESMUESTRAS.
PROYECCIÓN DE
CRECIMIENTO.
ALUMNOS DE:
DIBUJO
PINTURA
GRABADO
PINTURA DIGITAL
ALUMNOS
ESTARÁN PRESENTES
DURANTE TODO EL
HORARIO DE
ATENCIÓN.
SE DIVIDIRÁN SEGÚN
LAS ÁREAS DE
TRABAJO.
PERSONAL:
DIRECTOR
SECRETARIA
PROFESORES
SEGURIDAD
LIMPIEZA
EMPLEADOS
VISITANTES LA CIUDAD
YA QUE SE
CONSOLIDARA UN
SECTOR DE LA
CIUDAD QUE SE
ENCUENTRA EN
ESTADO DE
ABANDONO.
TRANSFORMÁNDOLO
EN UN SECTOR
CULTURAL, TAMBIÉN
BENEFICIANDO LA
ECONOMIA DEL
MISMO
(FOMENTANDOEL
TURISMO).
ARTISTAS
LOCAL:
BÚSQUEDA DE
LUGARESPARA
CONTEMPLARY
RELAJARSE.
PREFIEREN MAYOR
CANTIDAD DE
SERVICIOSEN UN
SOLO LUGAR
EXTRANJERO:
BÚSQUEDA DE
LUGARES QUE
OFREZCAN
RECORRIDOS.
CAPACIDAD
ADQUISITIVA Y GUSTO
POR LA PINTURA.
EDAD PROMEDIO
20-50 AÑOS.
REQUIEREN
RECURSOSPARA
PROMOVERY
REALIZAR SU
TRABAJO.
ARTISTAS
INDEPENDIENTESDE
PINTURA, DIBUJO,
GRABADO Y ARTE
DIGITAL
0.1 TEMA/ PROPUESTA
1. COMPROMISO
SOCIAL
1. COMPROMISO SOCIAL
La Casa del Dean actualmente se
encuentra en desuso. En reuniones que
participamos dentro del ayuntamiento
nos comentaron que están abiertos a
recibir propuestas para su re
funcionalización y puesta en valor.
La ultima función que tuvo fue la de
albergar el Palacio de justicia hasta
que se realizo el traslado de los
juzgados a la nueva sede de
Valcorchero.
REFUNCIONALIZACION DE LA
CASA DEL DEAN
Noticias relacionadas con la re
funcionalización y futuras propuestas
para la Casa del Deán
1. COMPROMISO SOCIAL
LO QUE ANTES ERA O PERTENECIA A UN SOLO
INDIVIDUO, HOY PASA A SER DE TODA LA SOCIEDAD.
ü APROVECHAR LA CENTRALIDAD EN LA
CIUDAD DE PLASENCIA
ü EVITAR LA MIGRACION DE LOSJOVENES
A OTRAS CIUDADES CERCNAS
ü GENERAR GRUPOS DE PERTENENCIA
ü FOMENTAR EL TURISMO
ü CRECIMIENTO DE LA CIUDAD
ü REINSERCIÓN DE JÓVENES
ü DESARROLLO RECREATIVO Y CULTURAL
ü CREAR ESPACIOS DE RECREACION AL
AIRE LIBRE
ü FAVORECER EL INTERCAMBIO SOCIAL
2. IMPLANTACION
2.IMPLANTACION
TERRENO875M2 PLAZA MAYOR
TERRENO AINTERVENIR PLAZA DELA CATEDRAL CATEDRAL
2.IMPLANTACION
CALLE BLANCA
CALLE BLANCA
ENTORNO INMEDIATO
Una de las principales calles para realizar visitas turísticas del centro de
la ciudad, visitando la Catedral, la Casa del Deán de la Catedral, la
del Doctor Trujillo, la de los Condes de Torrejón, la de Bernardino de
Carvajal hasta la Casa de las Dos Torres o casa Palacio de los Monroy
y frente a la 2º portada de la Iglesia de San nicolás llegando a la
Plaza del mismo Nombre.
2.IMPLANTACION
La plaza de la Catedral es uno de los rincones
con más sabor de la ciudad de plasencia; se
trata del lugar donde se encuentra el conjunto
monumental más importante de la ciudad,
formado por la Catedral Nueva, la Catedral
Vieja, el Palacio Episcopal y la Casa Deán, entre
otros importantes edificios.
PLAZA DE LA CATEDRAL
ENTORNO INMEDIATO
2.IMPLANTACION
CATEDRAL ANTIGUA
ENTORNO INMEDIATO
2.IMPLANTACION
La catedral de Santa María de Plasencia, (España), constituye
una de las dos edificaciones que componen la actual Catedral
de Plasencia. Comúnmente conocida como catedral antigua
de Plasencia, actual Museo Catedralicio de Plasencia, es un
edificio que supone un ejemplo muy interesante de transición
del románico al gótico y constituye una de las mayores joyas de
la “Perla del Valle del Jerte”
Su construcción comenzó a principios del siglo XIII y las últimas
aportaciones protogóticas se dieron en el siglo XV. Durante estos
siglos las obras corrieron a cargo de maestros como Juan
Francés, Juan Pérez o Diego Díaz.
CATEDRAL NUEVA
ENTORNO INMEDIATO
2.IMPLANTACION
Es el templo de mayor y más rica ornamentación de Extremadura.
Se empezó a construir en el año 1498 y finalizó en el año 1578, en
el que las obras sufrieron una paralización. Más tarde fueron
retomadas durante el siglo XVIII, quedando finalmente
inacabada.
Intervinieron en su construcción varios arquitectos considerados
como los mejores de su tiempo, como Juan de Álava, Francisco
de Colonia o Enrique Egas, que se encargó de realizar los
primeros planos de la futura catedral. También dejaron su huella
otros arquitectos como Alonso de Covarrubias, Pedro de
Ezquerra, Pedro de Ibarra, Rodrigo Gil de Hontañón y Diego de
Siloé.
CATEDRAL NUEVA
ENTORNO INMEDIATO
CATEDRAL ANTIGUA
Plasencia es la única ciudad española que no es capital
provincial y que cuenta con dos catedrales que convivan en
una fusión única y especial.
2.IMPLANTACION
FUSION
ü MANTENER Y PRESERVAR
LOS EDIFICIOS
HISTORICOS DE VALOR
PATRIMONIAL, ASI
COMO PARTE DE LA
FACHADA DE LOS
MISMOS
ü PROYECTAR DE FORMAS
PURAS Y DISCRETAS
CON COLORES TENUES
Y NEUTROS COMO
PRESERVACION Y
RESPETO POR EL
ENTORNO
ü CONSERVACION DE
BIENES CULTURALES
PARA EL DESARROLLO
DE UN PERFIL TURISTICO
LEY 2/1999, DE 29 DE
MARZO, DE PATRIMONIO
HISTÓRICO Y CULTURAL DE
EXTREMADURA
NORMATIVA
EDIFICIO BIPS
Bien de Interes Publico y Social, se permitirá todo, siempre
que su uso fuera justificado como de interés público y
social
CARACTERISTICAS DEL SITIO
+ LOTE DE EDIFICACION EXISTENTE 875M2
+ VALOR PATRIMONIAL A EXHIBIR Y PRESERVAR
+ PLAZA SECA VINCULANDOEL PALACIO CON LA
CATEDRAL
Situaciones que definieron la escencia y morfologia del
proyecto
RESPETO POR EL CONTEXTO HISTORICO COMO PREMISA
FUNDAMENTAL DE DISEÑO
DIALOGO CON LA PREEXISTENCIA
+Revitalizar zona.
+Vinculacion nuevo edificio con catedral
mediante rampas y solados.
+Proximidad al acceso principal.
+Devolverle la identidad al Palacio del Dean.
2.IMPLANTACION
REFERENCIA CATASTRAL DEL INMUEBLE
8452716QE4385A0001SH
DATOS DEL INMUEBLE
LOCALIZACIÓN
CL BLANCA 11
10600 PLASENCIA [CÁCERES]
USO LOCAL PRINCIPAL
Edif. Singular
AÑO CONSTRUCCIÓN
1900
COEFICIENTE DE PARTICIPACIÓN
--
SUPERFICIE CONSTRUIDA [m²]
1.251
DATOS DE LA FINCA A LA QUE PERTENECE EL INMUEBLE
SITUACIÓN
CL BLANCA 11
PLASENCIA [CÁCERES]
SUPERFICIE CONSTRUIDA [m²]
1.251 804
SUPERFICIE GRÁFICA PARCELA [m²] TIPO DE FINCA
Parcela construida sin división horizontal
CONSULTA DESCRIPTIVA Y GRÁFICA DE DATOS CATASTRALES
BIENES INMUEBLES DE NATURALEZA URBANA
MunicipiodePLASENCIAProvinciadeCÁCERES
INFORMACIÓN GRÁFICA E: 1/500
4,434,940
4,434,960
4,434,980
748,180 748,200 748,220
748,220 Coordenadas U.T.M. Huso 29 ETRS89
Este documento no es una certificación catastral, pero sus datos pueden ser verificados a través del
'Acceso a datos catastrales no protegidos' de la SEC.
Límite de Manzana
Límite de Parcela
Límite de Construcciones
Mobiliario y aceras
Límite zona verde
Hidrografía
Martes , 19 de Abril de 2016
ELEMENTOS DE CONSTRUCCIÓN
Uso Escalera Planta Puerta Superficie m²
PUBLICO E 00 01 433
PUBLICO E 01 01 427
CULTURAL E 02 01 391
CARTOGRAFÍA CATASTRAL
Este documento no es una certificación catastral
[748,160 ; 4,434,990]
[748,160 ; 4,434,938]
[748,256 ; 4,434,990]
[748,256 ; 4,434,938]
Provincia de CÁCERES
Municipio de PLASENCIA
Parcela Catastral: 8452716QE4385A
Coordenadas U.T.M. Huso: 29 ETRS89
ESCALA 1:400
10m 0 10 20m
Coordenadas del centro: X = 748,208 Y = 4,434,964 © Dirección General del Catastro 19/04/16
CASA DEL DEAN PLAZA DE LA CATEDRAL CATEDRAL
2.IMPLANTACION
1-CONSERVAR
FACHADA “CASA DEL DEAN” Y
PLAZA EXISTENTE
2-DEMOLER
DEMOLER CONSTRUCCIONES
SIN VALOR PATRIMONIAL
GENERANDO NUEVO ACCESO
3-INTEGRAR
LA PLAZA Y LA IGLESIA AL
PROYECTO MEDIANTE RAMPAS
Y ESPACIO PUBLICO
OBJETIVO
DEVOLVER EL PALACIO A LA
SOCIEDAD
ACCESOORIGINAL
INTENCIONES
PLANTA DE ACCESO ACTUAL
2.IMPLANTACION
1
CONJUNTO DE CASA DEL DEAN
Y PLAZA DE LA CATEDRAL
CONSERVAR Y REFUNCIONALIZAR CONSERVARINTERVENCION
2.IMPLANTACION
(DEMOLER	
CONSTRUCCION	SIN	
VALOR	PATRIMONIAL)
CONSTRUCCIONES VECINAS
PLANTA
REFUNCIONALIZADA
NUEVO
VOLUMEN
NUEVO ACCESO
VINCULACION DE LA PLAZA,
INGRESO AL NUEVO NUCLEO DE
CIRCULACION.
PLANTA BAJA PUBLICA
INTEGRAR EL PALACIO A LA
COMUNIDAD
ACCESIBILIDAD
PARA TODOS LOS USUARIOS
MEDIANTE RAMPAS Y
ASCENSORES
NUEVOS TALLERES Y NUCLEO
DE CIRCULACION
VINCULACION DE LO EXISTENTE
Y EL NUEVO VOLUMEN
2.IMPLANTACION
INTENCIONES
PLANTA DE ACCESO
PROPUESTA
RAMPA DE ACCESO
3. ESTRUCTURA
FUNCIONAL
130m2
40m2
32m2
40m2
5m2
36m2
40m2
170m2
36m2
40m2
PROGRAMA
DE NECESIDADES
70m2
55m2
45m2
40m2
100m2
30m2
15m2
15m2
15m2
5m2
150m2
30m2
216m2
(Planta baja publica)
Ingreso Principal
Hall de ingreso
Expo temporal dibujo
Expo temporal pintura
Sanitarios
Cafetería
Shop
Ingreso secundario
Oficina de
comunicación
Tesorería
Fichaje personal
Kitchen/Sanitario
Sala técnica
Espacio exterior
Semicubierto
De ingreso
Circulaciones
PLANTABAJA.780M
PRIMERPISO.539M
AZOTEA
(Primer año de Estudios)
Administración
Secretaria académica
Estudio del director
Sala de profesores + Cocina
Aula de programación para
Profesores.
Deposito
Dibujo
2 Aulas de modelo / Practicas
-Dibujo
-Dibujo de yesos
-Dibujo de la Figura Humana
-Dibujo Expresivo y Experimental
Zona de lavado
Aula / Teórica Audiovisual
-Historia del Arte
-Anatomía
Espacio común
Deposito
Sanitarios
Circulaciones
Sala técnico
16m2
20m2
32m2
20m2
15m2
130m2
40m2
36m2
15m2
40m2
170m2
5m2
(Segundo año de Estudios)
Pintura Tradicional
2 Aulas / Practica (Talleres)
Pintura de yesos
Pintura de la Figura Humana
Paisaje
Zona de lavado
Deposito
Zona de estudio ( 2 Talleres
especiales)
-Naturaleza muerta
(Estudios compartidos 3 a 4
personas)
Pintura digital
Aulas Teórica / Practica
(informática)
Grabado
Aula taller
Sala técnica
Espacio común
Sanitarios
Circulaciones
(Expansión Pública)
Espacio común
Terraza
SEGUNDOPISO.493M
3.ESTRUCTURAFUNCIONAL
CRECE UN 70 % EN SUPERFICIE
INTERVENCION
PUBLICO
SEMIPUBLICO
REFUNCIONALIZAR
CASA DELDEAN
CAFÉ/SHOP/EXPANSION
TALLERES DIBUJO
TALLERES PINTURA
NUCLEO
EXPO/ADM
DIRECCION
PROGRAMACION
AULAS TEORICAS
DEPOSITOS
3.ESTRUCTURAFUNCIONAL
ESQUEMAS
FUNCIONALES
ACCESO
SECUNDARIO
(Existente, se conserva) ACCESO PRINCIPAL
PRIVADO
3.ESTRUCTURAFUNCIONAL
PLANTA ORIGINAL PLANTA DE ACCESOS
+0.35
FICHAJE PERSONAL
SALA DE
MAQUINAS
1° PISO
1° SS
OFICINA DE
COMUNICACION
ADMINISTRACION
TESORERIA
EXPO PINTURA EXPO DIBUJO
+0.35
NUCLEO PRINCIPAL
ALUMNOS
VISITANTES
SHOP
BARRA COCINA
ASCENSOR
EXISTENTE
PATIO COMPARTIDO
7.66
8.12
8.08
8.00
2.32
4.95
2.04
8.54
4.07
6.88
3.31
15.58
7.32
8.07
3.09
4.11
2.42
3.30
9.30
3.77
10.25 8.00
50.81
4.68
8.00
17.79
6.08
14.00
3.60
6.70
4.04
4.45
1.80
HALL DE ACCESO
CAFETERIA
SANITARIOS
50.67
3.ESTRUCTURAFUNCIONAL
PLANTA DE ACCESOS
HOGARALEÑA
ESPACIO COMUN
AREA DE PREPARADO Y LAVADO
+5.00
DIRECTOR
SECRETARIA
AULA TALLER
ZONADEGUARDADO
AULA TALLER
SALA DE
PROFESORES
DEPOSITO
DIBUJO
AULA DE
PROGRAMACION
PROFESORES
COCINA
ARCO
1° PISO
2° PISO
ASCENSOR
EXISTENTE
AREA DE PREPARADO Y LAVADO
AULA TEORICA
ESPACIO COMUN
SALA
TECNICA
SANITARIOS
VACIO SOBRE HALL VACIO
3.873.435.24
4.86
3.13
4.31
7.44 7.91
8.26
7.87
6.15
5.20
7.66
8.12
8.08
1.60
3.09
7.09
8.07 8.0010.25
8.544.61
1.90 2.04
2.101.002.09 6.23
16.76
8.30
16.26
8.00
ASCENSORES
+5.00
+5.00
1 5
+0.35
FICHAJE PERSONAL
SALA DE
MAQUINAS
1° PISO
1° SS
OFICINA DE
COMUNICACION
ADMINISTRACION
TESORERIA
EXPO PINTURA EXPO DIBUJO
+0.35
NUCLEO PRINCIPAL
ALUMNOS
VISITANTES
SHOP
BARRA COCINA
ASCENSOR
EXISTENTE
PATIO COMPARTIDO
7.66
8.12
8.08
8.00
2.32
4.95
2.04
8.54
4.07
6.88
3.31
15.58
7.32
8.07
3.09
4.11
2.42
3.30
9.30
3.77
10.25 8.00
50.81
4.68
8.00
17.79
6.08
14.00
3.60
6.70
4.04
4.45
1.80
HALL DE ACCESO
CAFETERIA
SANITARIOS
50.67
`` ``
CAFETERIA
100m2
``
``
APOYO
INGRESO SECUNDARIO
ADMINISTRACION
50m2
EXPOSICIONES
100m2
EXPLANADA DE
INGRESO
HALL DE INGRESO
70M2
TIENDA/SHOP
30M2
3.ESTRUCTURAFUNCIONAL
ESPACIOS COMUNES
CIRCULACION
PLANTA DE ACCESOS
Funcionalidad
HOGARALEÑA
ESPACIO COMUN
AREA DE PREPARADO Y LAVADO
+5.00
DIRECTOR
SECRETARIA
AULA TALLER
ZONADEGUARDADO
AULA TALLER
SALA DE
PROFESORES
DEPOSITO
DIBUJO
AULA DE
PROGRAMACION
PROFESORES
COCINA
ARCO
1° PISO
2° PISO
ASCENSOR
EXISTENTE
AREA DE PREPARADO Y LAVADO
AULA TEORICA
ESPACIO COMUN
SALA
TECNICA
SANITARIOS
VACIO SOBRE HALL VACIO
3.873.435.24
4.86
3.13
4.31
7.44 7.91
8.26
7.87
6.15
5.20
7.66
8.12
8.08
1.60
3.09
7.09
8.07 8.0010.25
8.544.61
1.90 2.04
2.101.002.09 6.23
16.76
8.30
16.26
8.00
ASCENSORES
+5.00
+5.00
1 5
3.ESTRUCTURAFUNCIONAL
HOGARALEÑA
ESPACIO COMUN
AREA DE PREPARADO Y LAVADO
+5.00
DIRECTOR
SECRETARIA
AULA TALLER
ZONADEGUARDADO
AULA TALLER
SALA DE
PROFESORES
DEPOSITO
DIBUJO
AULA DE
PROGRAMACION
PROFESORES
COCINA
ARCO
1° PISO
2° PISO
ASCENSOR
EXISTENTE
AREA DE PREPARADO Y LAVADO
AULA TEORICA
ESPACIO COMUN
SALA
TECNICA
SANITARIOS
VACIO SOBRE HALL VACIO
3.873.435.24
4.86
3.13
4.31
7.44 7.91
8.26
7.87
6.15
5.20
7.66
8.12
8.08
1.60
3.09
7.09
8.07 8.0010.25
8.544.61
1.90 2.04
2.101.002.09
6.23
16.76
8.30
16.26
8.00
ASCENSORES
+5.00
+5.00
1 5
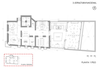
PLANTA 1.PISO
PLANTA ORIGINAL
``
``
HOGARALEÑA
ESPACIO COMUN
AREA DE PREPARADO Y LAVADO
+5.00
DIRECTOR
SECRETARIA
AULA TALLER
ZONADEGUARDADO
AULA TALLER
SALA DE
PROFESORES
DEPOSITO
DIBUJO
AULA DE
PROGRAMACION
PROFESORES
COCINA
ARCO
1° PISO
2° PISO
ASCENSOR
EXISTENTE
AREA DE PREPARADO Y LAVADO
+5.00
AULA TEORICA
ESPACIO COMUN
SALA
TECNICA
SANITARIOS
VACIO SOBRE HALL VACIO
3.873.435.24
4.86
3.13
4.31
7.44 7.91
8.26
7.87
6.15
5.20
7.66
8.12
8.08
1.60
3.09
7.09
8.07 8.0010.26
8.544.61
1.90 2.04
2.101.002.09
6.23
16.76
8.30
3.ESTRUCTURAFUNCIONAL
AULAS/TALLERES
130M2
APOYO
DOCENTE
67m2
AULA TEORICA
40M2
AULA DE
PROGRAMACION Y
DEPOSITO
35M2
ESPACIOS COMUNES
CIRCULACION
PLANTA 1.PISO
Funcionalidad
HOGARALEÑA
ESPACIO COMUN
AREA DE PREPARADO Y LAVADO
+5.00
DIRECTOR
SECRETARIA
AULA TALLER
ZONADEGUARDADO
AULA TALLER
SALA DE
PROFESORES
DEPOSITO
DIBUJO
AULA DE
PROGRAMACION
PROFESORES
COCINA
ARCO
1° PISO
2° PISO
ASCENSOR
EXISTENTE
AREA DE PREPARADO Y LAVADO
AULA TEORICA
ESPACIO COMUN
SALA
TECNICA
SANITARIOS
VACIO SOBRE HALL VACIO
3.873.435.24
4.86
3.13
4.31
7.44 7.91
8.26
7.87
6.15
5.20
7.66
8.12
8.08
1.60
3.09
7.09
8.07 8.0010.25
8.544.61
1.90 2.04
2.101.002.09 6.23
16.76
8.30
16.26
8.00
ASCENSORES
+5.00
+5.00
1 5
3.ESTRUCTURAFUNCIONAL
+9.00
AULA TALLER
ZONADEGUARDADO
AULA TALLER
ESPACIO COMUN
DEPOSITO
PINTURA/GRABADO
TALLER ESPECIALTALLER ESPECIAL
+9.00
+9.00
8.12
8.08
8.07 8.0010.26
VACIO SOBRE HALL
SPACIO COMUN
8.00
9.19
41.94
27.76
16.26
3.72
7.44
2.04
SALA
TECNICA 8.00
3.09
+9.00
AULA TALLER
ZONADEGUARDADO
AULA TALLER
ESPACIO COMUN
+9.00
8.0010.26
VACIO SOBRE HALL
8.00
9.19
27.76
16.26
8.00
60M2
60M2
120M2
FLEXIBILIDAD EN LOS NUEVOS TALLERES
+9.00
AULA TALLER
ZONADEGUARDADO
AULA TALLER
ESPACIO COMUN
DEPOSITO
PINTURA/GRABADO
TALLER ESPECIALTALLER ESPECIAL
AULA PINTURA DIGITAL
AULA GRABADO
PROGRAMACION
PANTALLA
PRENSA
ASCENSOR
EXISTENTE
+9.00
+9.00
7.66
8.12
8.08
8.07 8.0010.26
VACIO SOBRE HALL
ESPACIO COMUN
8.544.61
14.00
8.00
9.19
41.94
27.76
16.26
5.956.55
6.88
3.72
3.72
7.44
1.90 2.04
2.101.002.09 SALA
TECNICA 8.00
3.09
3.ESTRUCTURAFUNCIONAL
PLANTA 2.PISO
HOGARALEÑA
ESPACIO COMUN
AREA DE PREPARADO Y LAVADO
+5.00
DIRECTOR
SECRETARIA
AULA TALLER
ZONADEGUARDADO
AULA TALLER
SALA DE
PROFESORES
DEPOSITO
DIBUJO
AULA DE
PROGRAMACION
PROFESORES
COCINA
ARCO
1° PISO
2° PISO
ASCENSOR
EXISTENTE
AREA DE PREPARADO Y LAVADO
AULA TEORICA
ESPACIO COMUN
SALA
TECNICA
SANITARIOS
VACIO SOBRE HALL VACIO
3.873.435.24
4.86
3.13
4.31
7.44 7.91
8.26
7.87
6.15
5.20
7.66
8.12
8.08
1.60
3.09
7.09
8.07 8.0010.25
8.544.61
1.90 2.04
2.101.002.09 6.23
16.76
8.30
16.26
8.00
ASCENSORES
+5.00
+5.00
1 5
PLANTA ORIGINAL
``
``
+9.00
AULA TALLER
ZONADEGUARDADO
AULA TALLER
ESPACIO COMUN
DEPOSITO
PINTURA/GRABADO
TALLER ESPECIALTALLER ESPECIAL
AULA PINTURA DIGITAL
AULA GRABADO
PROGRAMACION
PANTALLA
PRENSA
ASCENSOR
EXISTENTE
+9.00
+9.00
7.66
8.12
8.08
8.07 8.0010.26
VACIO SOBRE HALL
ESPACIO COMUN
8.544.61
14.00
8.00
9.19
41.94
27.76
16.26
5.956.55
6.88
3.72
3.72
7.44
1.90 2.04
2.101.002.09 SALA
TECNICA 8.00
3.09
3.ESTRUCTURAFUNCIONAL
PINTURA
DIGITAL
32m2 AULAS/TALLERES
130M2
ESPACIOS COMUNES
CIRCULACION
AULA DE
PROGRAMACION Y
DEPOSITO
35M2
AULA DE
GRABADO
40M2
TALLERES ESPECIALES
40M2
PLANTA 2.PISO
Funcionalidad
HOGARALEÑA
ESPACIO COMUN
AREA DE PREPARADO Y LAVADO
+5.00
DIRECTOR
SECRETARIA
AULA TALLER
ZONADEGUARDADO
AULA TALLER
SALA DE
PROFESORES
DEPOSITO
DIBUJO
AULA DE
PROGRAMACION
PROFESORES
COCINA
ARCO
1° PISO
2° PISO
ASCENSOR
EXISTENTE
AREA DE PREPARADO Y LAVADO
AULA TEORICA
ESPACIO COMUN
SALA
TECNICA
SANITARIOS
VACIO SOBRE HALL VACIO
3.873.435.24
4.86
3.13
4.31
7.44 7.91
8.26
7.87
6.15
5.20
7.66
8.12
8.08
1.60
3.09
7.09
8.07 8.0010.25
8.544.61
1.90 2.04
2.101.002.09 6.23
16.76
8.30
16.26
8.00
ASCENSORES
+5.00
+5.00
1 5
3.ESTRUCTURAFUNCIONAL
PLANTA AZOTEA
SALA DE TANQUES
8.0010.26
20.04
4.005.10
ESPACIO COMUN
+13.00
VACIO SOBRE HALL
ASCENSORES
+13.00
ESPACIO COMUN
ESPACIO COMUN
HOGARALEÑA
ESPACIO COMUN
AREA DE PREPARADO Y LAVADO
+5.00
DIRECTOR
SECRETARIA
AULA TALLER
ZONADEGUARDADO
AULA TALLER
SALA DE
PROFESORES
DEPOSITO
DIBUJO
AULA DE
PROGRAMACION
PROFESORES
COCINA
ARCO
1° PISO
2° PISO
ASCENSOR
EXISTENTE
AREA DE PREPARADO Y LAVADO
AULA TEORICA
ESPACIO COMUN
SALA
TECNICA
SANITARIOS
VACIO SOBRE HALL VACIO
3.873.435.24
4.86
3.13
4.31
7.44 7.91
8.26
7.87
6.15
5.20
7.66
8.12
8.08
1.60
3.09
7.09
8.07 8.0010.25
8.544.61
1.90 2.04
2.101.002.09 6.23
16.76
8.30
16.26
8.00
ASCENSORES
+5.00
+5.00
1 5
``
3.ESTRUCTURAFUNCIONAL
SALA DE TANQUES
8.0010.26
20.04
4.005.10
ESPACIO COMUN
+13.00
VACIO SOBRE HALL
ASCENSORES
+13.00
ESPACIO COMUN
ESPACIO COMUN
ESPACIOS COMUNES
CIRCULACION
SALA TANQUES
ESPACIOS COMUNES
OCIO
PLANTA AZOTEA
Funcionalidad
HOGARALEÑA
ESPACIO COMUN
AREA DE PREPARADO Y LAVADO
+5.00
DIRECTOR
SECRETARIA
AULA TALLER
ZONADEGUARDADO
AULA TALLER
SALA DE
PROFESORES
DEPOSITO
DIBUJO
AULA DE
PROGRAMACION
PROFESORES
COCINA
ARCO
1° PISO
2° PISO
ASCENSOR
EXISTENTE
AREA DE PREPARADO Y LAVADO
AULA TEORICA
ESPACIO COMUN
SALA
TECNICA
SANITARIOS
VACIO SOBRE HALL VACIO
3.873.435.24
4.86
3.13
4.31
7.44 7.91
8.26
7.87
6.15
5.20
7.66
8.12
8.08
1.60
3.09
7.09
8.07 8.0010.25
8.544.61
1.90 2.04
2.101.002.09 6.23
16.76
8.30
16.26
8.00
ASCENSORES
+5.00
+5.00
1 5
3.ESTRUCTURAFUNCIONAL
CORTE A-A
5 6 7
1 5
5 6 7
1 5
3.ESTRUCTURAFUNCIONAL
CORTE A-A
Funcionalidad
TALLERES
TALLERES
CAFETERIA
CIRCULACION
VERTICAL
TALLERES ESPECIALES
AULA TEORICA
EXPOSICIONES
AULA DE
PROGRAMACION
PINTURA DIGITAL
APOYO
DOCENTE
3.ESTRUCTURAFUNCIONAL
6 7
1 5
ZOOM CORTE A-A
3.ESTRUCTURAFUNCIONAL
CORTE B-B
1 5
CATEDRAL
3.ESTRUCTURAFUNCIONAL
1 5
1 2 3 4
ZOOM CORTE B-B
3.ESTRUCTURAFUNCIONAL
VISTA PLAZA DE LA CATEDRAL
EAP
1 5
3.ESTRUCTURAFUNCIONAL
VISTA CALLE TRUJILLO
1 5
1 5
3.ESTRUCTURAFUNCIONAL
VISTA CALLE BLANCA
EAP
1 5
3.ESTRUCTURAFUNCIONAL
VISTA LATERAL
1 5
VACIO SOBRE HALL
ESPACIO COMUN
ESPACIO COMUN
PLANTA DE TECHOS
4. ESTRUCTURA
MORFOLOGICA
DEMOLER
CONSTRUCCIONES
POSTERIORES AL
PALACIO DEL
DEAN - SIN VALOR
PATRIMONIAL
TERRENO A
INTERVENIR
DISPONIBLE PARA
IMPLANTAR EL
NUEVO EDIFICIO
INTERVENCION
REFUNCIONALIZACION DEL
EDIFICIO EXISTENTE “CASA DEL
DEAN”, CONSTRUCCION DE
NUEVOS TALLERES, E INGRESO
(ESPACIO CENTRAL Y DE
VINCULACION DE AMBAS
CONTRUCCIONES).
MORFOLOGIA
4.ESTRUCTURAMORFOLOGICA
4.ESTRUCTURAMORFOLOGICA
PARA LA NUEVA INTERVENCION SE RESPETARON LOS
NIVELES EXISTENTES, TANTO INTERNOS COMO EXTERNOS,
PUDIENDO ASI GENERAR PLANTAS ACCESIBLES ENTRE
AMBOS EDIFICIOS , SIN GENERAR DESNIVELES Y
CREANDO UNA RELACION CONSTANTE A MEDIDA QUE
SE RECORRE EL CONJUNTO.
DEMOLER
CONSTRUCCIONES SINVALOR PATRIMONIAL
CONSERVAR
FACHADA ORIGINAL
CON VALOR PATRIMONIAL
REFUNCIONALIZAR
CASA DELDEAN
INTERVENCION
CONSTRUCCIONES VECINAS
INTENCIONES
VISTA FACHADA
4.ESTRUCTURAMORFOLOGICA
5. DISEÑO DE
MATERIALIDAD
EXISTENTE I N T E R V E N C I O N
PIEDRA HIERRO ACERO CORTEN VIDRIO
5.DISEÑODEMATERIALIDAD
ACERO CORTEN
Una plancha de acero cortén tiene la principal virtud de
recoger el paso del tiempo en la obra mediante el
proceso de oxidación, lo que permite que el
edificio no quede finalizado al terminar la
construcción, sino que el proceso continúe
por más tiempo, siendo incorporado como tema de
proyecto.
5.DISEÑODEMATERIALIDAD
EAP
1 5
OBRAS	DE	REFERENCIA	VISITADAS	DURANTE	EL	INTERCAMBIO
ARRIBA	:	CAIXA	FORUM,	MADRID,	ESPAÑA.
ABAJO:		PUERTA	DE	CORIA,	PLASENCIA,	ESPAÑA
P.BAJA
1ºNIVEL
2ºNIVEL
3ºNIVEL
5.DISEÑODEMATERIALIDAD
5.DISEÑODEMATERIALIDAD
Sistema instalado frente a losas.
Proporciona un completo cierre
de la obra gruesa, dando un
aspecto de modernidad al
entorno.
En el caso del diseño de
fachadas es importante
considerar factores de
seguridad. Por su posición
relativa a los lugares de
circulación o permanencia de
personas y por las
consecuencias derivadas de su
rotura, se recomienda utilizar
cristales de seguridad.
El cristal laminado está
constituido por un montaje de
dos o más hojas de vidrio entre
las que se intercalan una o varias
películas de PVB (polivinilo
butiral). Si el vidrio se rompe, la
mayor parte de los fragmentos y
astillas permanecen pegados a
la hoja, manteniendo el cristal en
su lugar.
MURO CORTINA
ABERTURAS PVC
Aislamiento Acústico y hermeticidad:
Ángulos Termofusionados y no unidos
mecánicamente. Mayor estanqueidad, y el doble
vidriado hermético ( DVH ) para bajar
considerablemente los decibeles de ruidos molestos.
Los perfiles de PVC VEKA no son afectados por los
rayos UV, cambios bruscos de temperatura o por los
climas mas agresivos.
Seguridad:
Lograda con DVH especiales (laminados, templados,
etc. ) y con herrajes multipuntos de cierre perimetral .
Los perfiles son autoextinguibles, lo que significa que
no arden ni se derriten como el plástico.
Bajo Mantenimiento:
Fácil limpieza, no requieren pintura.
Vidrios Laminados:
Esta compuesto por dos o mas hojas de vidrio unidas
entre sí mediante una interlámina de PVB polivinil
butiral, mediante un proceso de calor y presión. El
proceso se perfecciona con un autoclave, donde se
somete al conjunto a un proceso de calentamiento
(135°C) y presión (15 kg), lográndose así el vidrio
laminado.
Los laminados pueden contener vidrios crudos o
térmicamente tratados. Antes la rotura, los trozos de
vidrio roto quedan adheridos a la inter-lamina de PVB,
manteniendo su morfología.
Rendimiento de seguridad:
Minimiza el riesgo de lesiones
No deja abierto el vano
No se astilla
No estalla
Los perfiles y placas de
PVC son 100 %
reciclables.
DVH – DOBLE VIDRIADO HERMETICO
AHORRO DE ENERGÍA
• Las pérdidas y ganancias de calor a través
de las ventanas constituyen un 20 % de las
pérdidas totales de la energía de un edificio
con cerramientos convencionales, si hay
muro cortina se incrementa dicho valor.
• Empleando DVH se disminuyen dichas
pérdidas al 50%, con la consiguiente
reducción de la energía consumida.
• Asimismo, se elimina la condensación de
humedad, siendo la temperatura del vidrio
interior similar a temperatura ambiente, por
ello no nunca alcanza la temperatura de
rocío.
• Se anula el efecto de muro frío, por
consiguiente hay un mejor
aprovechamiento del espacio útil interior.
Es un componente
prefabricado compuesto
por dos capas de vidrios
separados entre si y un
espacio de aire seco y
quieto, herméticamente
cerrado al paso de la
humedad y el vapor de
agua. Con el DVH
disminuimos la
transmitancia térmica y
acústica.
5.DISEÑODEMATERIALIDAD
LA NUEVA ESTRUCTURA PLANTEADA SE RESUELVE
EN PIEZAS METALICAS QUE SE EXPRESAN POR
CONTRASTE DENTRO DE LA ARQUITECTURA PRE-
EXISTENTE.
ü 1/ ALIVIANAR LOSAS/ MENOR PESO
ü 2/ MENOR TIEMPO DE EJECUCION , RAPIDEZ DE MONTAJE
STEEL DECK
"Losa colaborante"
V E N T A J A S
ü 3/ SEGURIDAD Y FACIL INSTALACION EN OBRA
ü 4/ REDUCE ENCOFRADOS DE LOSAS.
5.DISEÑODEMATERIALIDAD
Adopción chapa espesor calibre 18
Peso propio= 12,60km/m2
Hormigón s/cresta (5cm) 0,0085m3/m2 x 2400kg/m3 = 204 kg/m2
Piso alisado cemento – Carpeta+ Piso = 0,05 x 2100 kg/m3 = 105kg/m2
Cielorraso = 20kg/m2
G= 341,6 kg/m2
G= 350 kg/m2
P= 300kg/m2
Q= 650kg/m2
PREDIMENSIONADO ENTREPISO
5.DISEÑODEMATERIALIDAD
P.BAJA
1º NIVEL
5.DISEÑODEMATERIALIDAD
DETALLE
CALCULO VIGA PRINCIPAL
Carga sobre Viga principal
P = qv sep x long = 1755 kg/m2 . (6,70m/2 + 4m/2) = 9389 kg= 9,40t
M max = 9.40t x 2,70m = 25,38tm
Hxmc = M max/T adm = 2538000 kg/cm/1200 kg/m2 = 2155 cm3
à A tabla
Se adopta HEB360
WX = 2400cm3
Jx = 43190cm4
Verificacióna la flecha
F max = P.a (3.l2-4.a2)
24 E.J
=9400 kg. 270cm (3.810-2 – 4.270-2)
24 . 2100000 x 431900
= 1.95cm
Fadm = l/400 = 810/400 = 2.02cm (VERIFICA)
5.DISEÑODEMATERIALIDAD
CALCULO VIGAS
30cm
36cm 1,25cm
2,25cm
Qs V.Sec = q.Total x separación= 650 kg/m2 x 2.70m = 1755 kg/m
M. Max = q.l2/8 = 1755 kg x (6,70m) / 8 = 9848 kg/m
Hxncc = M. max / T.adm = 984800 kg/m / 1200 kg/m = 821 cm3 -
à a tabla HEB
Se adopta HEB260
WX = 1150 cm3
JX = 14920 CM4
Verificaciona la felcha
F max = 5/384 . q . l4
e . J
= 5/384 . 17,55 kg/cm . (6,70m)4
2100000 kg/cm2 . 14920
= 1.47
F adm = l/400 = 670cm/400 = 1.68 (VERIFICA)
26cm
26cm 1cm
1,75cm
CALCULO VIGA SECUNDARIA
3 Losas = (8m/2 . 7,50m/2) x (4m/2 + 6,70m/2)
= 41,46m2 x 3 niveles = 124,38m2
P= 124,38m2 x 650 kg/m2 = 80847kg
1 losa = (7,50m/2) . (4m/2 + 6,70m/2) = 20.06m2
P = 20,06m2 x 650kg/m2 = 13.041kg
Carga total = 80847kg + 13041kg = 93888kg
RedimensionamientoColumna
Fnec= P.Total/t.adm
=93888kg/1200kg/cm2
= 78,3cm2
Se adopta HEB300
F = 149
Imin= 7,58
Verificacional pandeo
X= lk/imin
=500cm/7,58
=66 à W=1,55
T= w.R/F = 1,55/149
=977< 1200kg/m2 VERIFICA
5.DISEÑODEMATERIALIDAD
30cm
30cm 1,1cm
1,9cm
tTension terreno= 2kg/cm2
Ab = 1.1 x P/Tension terreno = 1,10 . 938888kg/2kg/cm2 =
51638
Ax = ay= ab = 227cm = 230cm
Se adopta base de 230cm x 230cm
D= 230/3 = 80CM
d= D/3 = 80/3 = 27cm = Se adopta 30cm
30cm
1,1cm
1,9cm
CALCULO COLUMNA/BASE
CALCULO BASE CENTRALCALCULO COLUMNA
230cm
230cm
230cm
N= 45000KG
AB= 11XN/T = 1,1 X 45000KG/2KG/CM2 = 24750KG CM2
A1 = RAIZ AB/2 = 24750CM2/2 = 111CM – 120CM
A2= A1X2 = 120 X 2 = 240CM
D= A2/3 = 240/3 = 80CM
d= D/3 = 80/3 = 27CM = 30CM
CALCULO BASE EXCENTRICA CALCULO BASE EXCENTRICA
5.DISEÑODEMATERIALIDAD
a2=240cm
a1=120cm
D=80cm
120cm
d=30cm
N= 30000KG
AB= 11XN/T = 1,1 X 30000KG/2KG/CM2 = 16500KG CM2
A1 = A2 = RAIZ AB/2 = 16500CM2/2 = 128CM – 130CM x 130cm
D= A2/3 = 130/3 = 43CM – 50CM
d= D/3 = 50/3 = 17CM = 20CM
a1=130cm
a2=130cm
D=20cm
130cm
D=50cm
5.DISEÑODEMATERIALIDAD
PLANO DE FUNDACIONES
B01
130X130
B05
230X230
B06
230X230
B08
230X230
B09
240X120
B02
240X120
B03
240X120
B04
240X120
B07
240X120
B10
130X130
B10
240X120
B11
240X120
V.E V.E
V.E V.E
V.E
V.E
V.E
V.E
V.E
V.E
V.E
V.E
V.E
V.E
V.E
V.E
V.E
ESQUEMAS
ESTRUCTURALES
5.DISEÑODEMATERIALIDAD
ESTRUCTURA SOBRE PLANTA BAJA
C02
IPB 300
C03
IPB 300
C04
IPB 300
C05
IPB 300
C06
IPB 300
C07
IPB 300
C08
IPB 300
C09
IPB 300
C010
IPB 300
C012
IPB 300
C011
IPB 300
V01 IPB 360 V02 IPB 360
V03 IPB 360 V04 IPB 360
V06 IPB 360 V07 IPB 360
V08 IPB 360
V09 IPB 360
V010IPB360V011IPB360V012IPB360
V013IPB260
V05 IPB 260
C01
IPB 300
V014IPB260
V015IPB260
V016IPB260
V017IPB360
V018IPB360
V019IPB360
V020IPB260
V021IPB260
V022IPB260
V023IPB260
V024IPB260
V025IPB260
V026IPB360
V027IPB360
V028IPB360
L 01 L 02 L 03
L 05
L 04
L 06 L 07 L 08 L 09
L010 L011
L012 L013
L014 L015
V01
5.DISEÑODEMATERIALIDAD
ESTRUCTURA SOBRE PRIMER PISO
C102
IPB 300
C103
IPB 300
C104
IPB 300
C105
IPB 300
C106
IPB 300
C107
IPB 300
C108
IPB 300
C109
IPB 300
C110
IPB 300 C111
IPB 300
C101
IPB 300
L 101 L102 L103
L105
L104
L106 L107 L108 L109
L110 L111
L112 L113
L114 L115
V101 IPB 360 V102 IPB 360
V103 IPB 360 V104 IPB 360
V106 IPB 360 V107 IPB 360
V108 IPB 360
V109 IPB 360
V105 IPB 260
V110IPB360V111IPB360V112IPB360
V113IPB260
V114IPB260
V115IPB260
V116IPB260
V017IPB360
V118IPB360
V119IPB360
V120IPB260
V121IPB260
V122IPB260
V123IPB260
V124IPB260
V125IPB260
V126IPB360
V127IPB360
V128IPB360
C112
IPB 300
V02
5.DISEÑODEMATERIALIDAD
ESTRUCTURA SOBRE SEGUNDO PISO
C202
IPB 300
C203
IPB 300
C204
IPB 300
C205
IPB 300
C206
IPB 300
C207
IPB 300
C208
IPB 300
C209
IPB 300
C210
IPB 300 C211
IPB 300
C201
IPB 300
L201 L202 L203
L205
L204
L206 L207 L208 L209
L210 L211
L212 L213
L214 L215
V201 IPB 360 V202 IPB 360
V203 IPB 360 V204 IPB 360
V206 IPB 360 V207 IPB 360
V208 IPB 360
V209 IPB 360
V105 IPB 260
V210IPB360V211IPB360V212IPB360
V213IPB260
V214IPB260
V215IPB260
V216IPB260
V217IPB360
V218IPB360
V219IPB360
V220IPB260
V221IPB260
V222IPB260
V223IPB260
V224IPB260
V225IPB260
V226IPB360
V227IPB360
V228IPB360
C212
IPB 300
V03
5.DISEÑODEMATERIALIDAD
ESTRUCTURA SOBRE TERCER PISO
C302
IPB 300
C304
IPB 300
C305
IPB 300
C307
IPB 300
C308
IPB 300
C310
IPB 300 C311
IPB 300
C301
IPB 300
V301 IPB 360
V303 IPB 360
V306 IPB 360
V308 IPB 360
V305 IPB 260
V310IPB360V311IPB360V312IPB360
V313IPB260
V314IPB260
V315IPB260
V316IPB260
V317IPB360
V318IPB360
V319IPB360
+0.00
FICHAJE PERSONAL
SALA DE
MAQUINAS
1° PISO
1° SS
OFICINA DE
COMUNICACION
ADMINISTRACION
TESORERIA
EXPO PINTURA EXPO DIBUJO
+0.00
NUCLEO PRINCIPAL
ALUMNOS
VISITANTES
SHOP
BARRA COCINA
HALL/INFORMES
ASCENSOR
EXISTENTE
TANQUE
2000L
Tanque de bombeo
CAP: 2000 lts
1TI
1CV Ø25 mm
1VL
5.DISEÑODEMATERIALIDAD
INSTALACIONESSANITARIAS
AGUAFRIA/CALIENTE
INSTALACIONES SANITARIAS PLANTA BAJA
HOGARALEÑA
PISO 1
CASA DEL DEAN
ESPACIO COMUN
AREA DE PREPARADO Y LAVADO
+5.00
DIRECTOR
SECRETARIA
AULA PRACTICA
ZONADEGUARDADO
AULA PRACTICA
SALA DE PROFESORES
DEPOSITO
DIBUJO
AULA DE
PROGRAMACION
PROFESORES
COCINA
ARCO
PISO 1
AULAS PRACTICAS
DIBUJO
1° PISO
2° PISO
ASCENSOR
EXISTENTE
5.DISEÑODEMATERIALIDAD
INSTALACIONES SANITARIAS PRIMER NIVEL
INSTALACIONESSANITARIAS
AGUAFRIA/CALIENTE
+9.00
AULA PRACTICA
ZONADEGUARDADO
AULA PRACTICA
ESPACIO COMUN
DEPOSITO
PINTURA/GRABADO
TALLER ESPECIALTALLER ESPECIAL
PISO 2
CASA DEL DEAN
AULA PINTURA DIGITAL
AULA GRABADO
PROGRAMACION
PISO 2
AULAS PRACTICAS
PINTURA
PANTALLA
PRENSA
ASCENSOR
EXISTENTE
5.DISEÑODEMATERIALIDAD
INSTALACIONES SANITARIAS SEGUNDO NIVEL
INSTALACIONESSANITARIAS
AGUAFRIA/CALIENTE
ESPACIO COMUN
PISO 3
MIRADOR 360 Y
TERRAZA
13
14
15
16
17
19
22
21
22
12
18
23
V.L.
V.E.
LL.P.
LL.P.
V.L.
V.E.
CALDERA
ELECTRICA
5.DISEÑODEMATERIALIDAD
INSTALACIONES SANITARIAS TERCER NIVEL
INSTALACIONESSANITARIAS
AGUAFRIA/CALIENTE
+0.00
FICHAJE PERSONAL
SALA DE
MAQUINAS
1° PISO
1° SS
OFICINA DE
COMUNICACION
ADMINISTRACION
TESORERIA
EXPO PINTURA EXPO DIBUJO
+0.00
NUCLEO PRINCIPAL
ALUMNOS
VISITANTES
SHOP
BARRA COCINA
HALL/INFORMES
ASCENSOR
EXISTENTE
ACOMETIDA
5.DISEÑODEMATERIALIDAD
INSTALACIONES CLOACALES PLANTA BAJA
INSTALACIONESSANITARIAS
CLOACALES
HOGARALEÑA
PISO 1
CASA DEL DEAN
ESPACIO COMUN
AREA DE PREPARADO Y LAVADO
+5.00
DIRECTOR
SECRETARIA
AULA PRACTICA
ZONADEGUARDADO
AULA PRACTICA
SALA DE PROFESORES
DEPOSITO
DIBUJO
AULA DE
PROGRAMACION
PROFESORES
COCINA
ARCO
PISO 1
AULAS PRACTICAS
DIBUJO
1° PISO
2° PISO
ASCENSOR
EXISTENTE
5.DISEÑODEMATERIALIDAD
INSTALACIONES CLOACALES PRIMER NIVEL
INSTALACIONESSANITARIAS
CLOACALES
+9.00
AULA PRACTICA
ZONADEGUARDADO
AULA PRACTICA
ESPACIO COMUN
DEPOSITO
PINTURA/GRABADO
TALLER ESPECIALTALLER ESPECIAL
PISO 2
CASA DEL DEAN
AULA PINTURA DIGITAL
AULA GRABADO
PROGRAMACION
PISO 2
AULAS PRACTICAS
PINTURA
PANTALLA
PRENSA
ASCENSOR
EXISTENTE
5.DISEÑODEMATERIALIDAD
INSTALACIONES CLOACALES SEGUNDO NIVEL
INSTALACIONESSANITARIAS
CLOACALES
5.DISEÑODEMATERIALIDAD
INSTALACIONESSANITARIAS
PLUVIALES
INSTALACIONES PLUVIALES PLANTA DE ACCESOS
+0.00
FICHAJE PERSONAL
SALA DE
MAQUINAS
1° PISO
1° SS
OFICINA DE
COMUNICACION
ADMINISTRACION
TESORERIA
EXPO PINTURA EXPO DIBUJO
+0.00
NUCLEO PRINCIPAL
ALUMNOS
VISITANTES
SHOP
BARRA COCINA
HALL/INFORMES
ASCENSOR
EXISTENTE
5.DISEÑODEMATERIALIDAD
INSTALACIONESSANITARIAS
PLUVIALES
10.25
20.00
4.005.10
ESPACIO COMUN
ESPACIO COMUN
9.50
INSTALACIONES PLUVIALES PLANTA DE TECHOS
+0.00
FICHAJE PERSONAL
SALA DE
MAQUINAS
1° PISO
1° SS
OFICINA DE
COMUNICACION
ADMINISTRACION
TESORERIA
EXPO PINTURA EXPO DIBUJO
+0.00
NUCLEO PRINCIPAL
ALUMNOS
VISITANTES
SHOP
BARRA COCINA
HALL/INFORMES
ASCENSOR
EXISTENTE
REDEXTERNABAJATENSION2x380v/220v
INSTALACIONES ELECTRICAS PLANTA BAJA
5.DISEÑODEMATERIALIDAD
INSTALACIONESELECTRICAS
HOGARALEÑA
PISO 1
CASA DEL DEAN
ESPACIO COMUN
AREA DE PREPARADO Y LAVADO
+5.00
DIRECTOR
SECRETARIA
AULA PRACTICA
ZONADEGUARDADO
AULA PRACTICA
SALA DE PROFESORES
DEPOSITO
DIBUJO
AULA DE
PROGRAMACION
PROFESORES
COCINA
ARCO
PISO 1
AULAS PRACTICAS
DIBUJO
1° PISO
2° PISO
ASCENSOR
EXISTENTE
INSTALACIONES ELECTRICAS PRIMER NIVEL
5.DISEÑODEMATERIALIDAD
INSTALACIONESELECTRICAS
+9.00
AULA PRACTICA
ZONADEGUARDADO
AULA PRACTICA
ESPACIO COMUN
DEPOSITO
PINTURA/GRABADO
TALLER ESPECIALTALLER ESPECIAL
PISO 2
CASA DEL DEAN
AULA PINTURA DIGITAL
AULA GRABADO
PROGRAMACION
PISO 2
AULAS PRACTICAS
PINTURA
PANTALLA
PRENSA
ASCENSOR
EXISTENTE
INSTALACIONES ELECTRICAS SEGUNDO NIVEL
5.DISEÑODEMATERIALIDAD
INSTALACIONESELECTRICAS
ESPACIO COMUN
PISO 3
MIRADOR 360 Y
TERRAZA
13
14
15
16
17
19
22
21
22
12
18
23
CALDERA
INSTALACIONES ELECTRICAS TERCER NIVEL
5.DISEÑODEMATERIALIDAD
INSTALACIONESELECTRICAS
INSTALACIONES SANITARIAS
El suministro de agua a los edificios y a las viviendas se
realiza a través de redes que tienensu origen en
capacitaciones de aguaque se encuentranen la
naturaleza. Para asegurar que el aguase sirve en
condiciones perfectas para la salud se debetratar en
plantas especializadas, desde dondese canalizahacia
los puntos de consumo.
18880LTS
6900LTS
La ubicación y distribucion de las instalaciones en el edificio, se
resuelven mediante plenos anexo a la bateria de sanitarios y
bajo los forjados intermedios proyectados en losa de chapa
colaborante que se utilizaron para la intervencion.
TANQUE DE RESERVA 25780LTS
CALCULO	DE	LA	CAPACIDAD	DE	RESERVA	DE	AGUA
PERSONAS INODORO LAVABO ORINAL
10	A	20	HOMBRES 1 2 1
10	A	20	MUJERES 1 2
DIFERENCIA	POR	70	PERSONAS 4 8 1
TOTAL 6 12 2
TOTAL	NECESARIO	SEGUN	LEY	SEG.	E	HIG. 8 11 2
TOTAL	ADOPTADO	SEGUN	PROYECTO 15 21 3
CALCULO	DE	LA	RESERVA	DE	AGUA	FRIA	ADICIONAL	A	LOS	600L/DIA
INODORO	LTS/DIA 250 15 3750
LAVABO	LTS/DIA 100 21 2100
MINGITORIO	LTS/DIA 150 3 450
TOTAL	RESERVA 6900
RESERVA	DE	INCENDIO 1888 10 18880
TOTAL	RESERVA	SANITARIA 6900
TOTAL	TANQUE	DE	RESERVA 25780
CISTERNA	EN	PLANTA	BAJA	1/3
RESERVA	DE	AGUA	EN	AZOTEA	2/3
RED	HIDRANTES 1	MANGUERA	ABARQUE	RADIO	COBERTURA	30	METROS
EXTINTORES	POLVO	QUIMICO	CO2	TABLEROS	ELECTRICOS MIN	C/200M2
EXTINTORES	POLVO	TRICLASE	TABLEROS	ELECTRICOS MIN	C/200M2
CADA	40MTS
CAUDAL	
6M3/H	A	45	
MCA
5.DISEÑODEMATERIALIDAD
PROTECCIÓN CONTRA INCENDIOS
(Según Código)
01. Vista de inspección para la instalación de Protección
contra incendios
02. Prueba de funcionamiento de la instalación según
Reglamento de Instalaciones de protección contra
incendios, R.D. 1942/1993 de 5 de noviembre, y la norma
básica de la edificación, Condiciones de Protección
contra incendios DB SI.
ü DETECTORES
ü PULSADORES
ü SIRENAS
ü EXTINTORES
ü TABLERO CON TERMICAS Y DISYUNTOR
ü LUZ DE EMERGENCIA Y SEÑALECTICA LED
SEGURIDAD EDILICIA
RED HIDRANTES
/ 1 MANGUERA ABARCA RADIO DE COBERTURA DE 30M
EXTINTORES POLVO QUIMICO CO2 TABLEROS ELECTRICOS
/ MIN C/200M
EXTINTORES POLVO TRICLASE TABLEROS ELECTRICOS
/ MIN C/200M
DETALLE HIDRANTES
INCENDIO
5.DISEÑODEMATERIALIDAD
+0.35
FICHAJE PERSONAL
SALA DE
MAQUINAS
1° PISO
1° SS
OFICINA DE
COMUNICACION
ADMINISTRACION
TESORERIA
EXPO PINTURA EXPO DIBUJO
+0.35
NUCLEO PRINCIPAL
ALUMNOS
VISITANTES
SHOP
BARRA COCINA
ASCENSOR
EXISTENTE
PATIO COMPARTIDO
7.66
8.12
8.08
8.00
2.32
4.95
2.04
8.54
4.07
6.88
3.31
15.58
7.32
8.07
3.09
4.11
2.42
3.30
9.30
3.77
10.25 8.00
50.81
4.68
8.00
17.79
6.08
14.00
3.60
6.70
4.04
4.45
1.80
HALL DE ACCESO
CAFETERIA
SANITARIOS
50.67
EVACUACION PLANTA BAJA
5.DISEÑODEMATERIALIDAD
SENTIDODEEVACUACION
CARTEL SALIDA
SENTIDO EVACUACION
5.DISEÑODEMATERIALIDAD
HIDRANTES
+0.35
FICHAJE PERSONAL
SALA DE
MAQUINAS
1° PISO
1° SS
OFICINA DE
COMUNICACION
ADMINISTRACION
TESORERIA
EXPO PINTURA EXPO DIBUJO
+0.35
NUCLEO PRINCIPAL
ALUMNOS
VISITANTES
SHOP
BARRA COCINA
ASCENSOR
EXISTENTE
PATIO COMPARTIDO
7.66
8.12
8.08
8.00
2.32
4.95
2.04
8.54
4.07
6.88
3.31
15.58
7.32
8.07
3.09
4.11
2.42
3.30
9.30
3.77
10.25 8.00
50.81
4.68
8.00
17.79
6.08
14.00
3.60
6.70
4.04
4.45
1.80
HALL DE ACCESO
CAFETERIA
SANITARIOS
50.67
HOGARALEÑA
ESPACIO COMUN
AREA DE PREPARADO Y LAVADO
+5.00
DIRECTOR
SECRETARIA
AULA TALLER
ZONADEGUARDADO
AULA TALLER
SALA DE
PROFESORES
DEPOSITO
DIBUJO
AULA DE
PROGRAMACION
PROFESORES
COCINA
ARCO
1° PISO
2° PISO
ASCENSOR
EXISTENTE
AREA DE PREPARADO Y LAVADO
+5.00
AULA TEORICA
ESPACIO COMUN
SALA
TECNICA
SANITARIOS
VACIO SOBRE HALL VACIO
3.873.435.24
4.86
3.13
4.31
7.44 7.91
8.26
7.87
6.15
5.20
7.66
8.12
8.08
1.60
3.09
7.09
8.07 8.0010.26
8.544.61
1.90 2.04
2.101.002.09
6.23
16.76
8.30
16.26
8.00
PLANTA BAJA
PRIMER NIVEL
SALA DE TANQUES
8.0010.26
20.04
4.005.10
ESPACIO COMUN
+13.00
VACIO SOBRE HALL
ASCENSORES
+13.00
ESPACIO COMUN
ESPACIO COMUN
5.DISEÑODEMATERIALIDAD
HIDRANTES
AZOTEA
+9.00
AULA TALLER
ZONADEGUARDADO
AULA TALLER
ESPACIO COMUN
DEPOSITO
PINTURA/GRABADO
TALLER ESPECIALTALLER ESPECIAL
AULA PINTURA DIGITAL
AULA GRABADO
PROGRAMACION
PANTALLA
PRENSA
ASCENSOR
EXISTENTE
+9.00
+9.00
7.66
8.12
8.08
8.07 8.0010.26
VACIO SOBRE HALL
ESPACIO COMUN
8.544.61
14.00
8.00
9.19
41.94
27.76
16.26
5.956.55
6.88
3.72
3.72
7.44
1.90 2.04
2.101.002.09
SALA
TECNICA 8.00
3.09
SEGUNDO NIVEL
Rehabilitar
Como la propia palabraindica"rehabilitar"significa volver a poner en uso características de unaedificación en nuestro caso, que por el
paso del tiempo hansufrido un deterioro o se han quedado desfasadas en su operatividad, de forma que en la actualidadno
presentan unas características no presentanunas características mínimas de habitabilidady decoro.
La ciudad de Plasencia cuentacon un rico patrimonio históricoreconocido con la categoría de Conjunto Histórico. Este reconocimiento
obliga a una protección de las características principales del urbanismo histórico de la ciudad.
Son actuaciones protegidas en materiade rehabilitaciónde edificio aquellas que tengan por objeto:
Estabilidad y seguridadestructural y constructiva.
Estanqueidadfrente a la lluvia,evacuación del aguade lluvia y supresiónde humedades.
Iluminación y ventilaciónde espacios.
Condiciones de salubridad.
Sistemas de ahorro energético.
Adecuaciónde las redes generales de agua, gas, electricidad,telefoníay saneamiento.
Accesibilidad y supresiónde las barreras arquitectónicas.
Instalación, renovacióny mejora de ascensores y sus condiciones de seguridad.
La remodelación del número y/o superficie de las viviendas de un edificio, sin que ningunaviviendasupere, en caso de ampliación,120
m2 de superficie útil.
Son actuaciones protegidas en materiade rehabilitaciónde viviendas aquéllas que tenganpor objeto:
Redistribucióninterior.
Iluminación, extracción de humos y ventilación.
Instalación de suministro de agua, gas, electricidady otros suministros energéticos.
Servicios sanitarios, cocina, saneamientoy fontanería.
Accesibilidad y supresiónde barreras arquitectónicas.
Sistema de ahorro energético.
Aislamiento térmico y acústico. http://www.plasencia.es/web/
NORMATIVA
LEY 2/1999, DE 29 DE MARZO, DE PATRIMONIO
HISTÓRICO Y CULTURAL DE EXTREMADURA
La conservación, enriquecimiento y difusión del Patrimonio Histórico constituye, en un Estado social y democrático de Derecho, una obligación de
los
poderes públicos que aparece jurídicamente consagrada en la Constitución Española de 1978, en su artículo 46.
En consonancia con su espíritu, el legado de bienes materiales e inmateriales que constituye este Patrimonio, ha de contribuir a que cada
comunidad
comprenda la realidad histórica y cultural sobrela que se asienta, descubriendo y perfilando su identidad colectiva. Por ello, es necesario articular
los
objetivos de conservación con el acceso de los ciudadanos a su valoración y disfrute cultural.
Artículo 33 Criteriosde intervenciónen inmuebles
1. Cualquier intervención en un inmueble declarado Bien de Interés Cultural habrá de ir encaminada a su protección, conservación y mejora, de
acuerdo con los siguientes criterios:
• a) Se respetarán las características esenciales del inmueble, sin perjuicio de que pueda autorizarse el uso de elementos, técnicas y materiales
actuales para la mejor adaptación del bien a su uso y para valorar determinados elementos o épocas.
• b) Las características volumétricas y espaciales definidoras del inmueble, así como las aportaciones de las distintas épocas deberán ser
respetadas.
En caso de que se autorice alguna supresión, ésta quedará debidamente motivada y documentada.
• c) Los intentos de reconstrucción únicamente se autorizarán en los casos en los que la existencia de suficientes elementos originales o el
conocimiento documental suficiente de lo que se haya perdido lo permitan. En todo caso, tanto la documentación previa del estado original de
losrestos, como el tipo de reconstrucción y los materiales empleados deberá permitir la identificación de la intervención y su reversibilidad.
• d) No podrán realizarse adiciones miméticas que falseen su autenticidad histórica.
• e) Cuando sea indispensable para la estabilidad y el mantenimiento del inmueble, siempre que sean visibles, la adición de materiales habrá de
ser reconocible.
• f) Se impedirán las acciones agresivas en las intervenciones, salvo que estén motivadas técnicamente y se consideren imprescindibles.
NORMATIVA
Artículo 38 Entorno de los monumentos
1. El entorno de los monumentos estará constituido por los inmuebles y espacios colindantes inmediatos; se entiende como entorno de un bien
cultural inmueble el espacio circundante que puede incluir : inmuebles, terrenos edificables, suelo, subsuelo, trama urbana y rural, espacios libres
y estructuras significativas que permitan su percepción y compresión cultural y, en casos excepcionales, por los no colindantes y alejados,
siempre que una alteración de los mismos pueda afectar a los valores propios del bien de que se trate, su contemplación, apreciación o estudio.
A tal fin se concretarán exactamente los términos respecto al entorno del monumento a proteger.
La existencia del entorno realza el bien y lo hace merecedor de una protección singular cuyo alcance y régimen específico se expresará en la
resolución correspondiente de declaración de Bien de Interés Cultural o de inclusión en el Inventario del Patrimonio Histórico y Cultural de
Extremadura. El entorno será delimitado en la correspondiente resolución y gozará de la misma protección que el bien inmueble de que se trate.
2. El volumen, tipología, morfología o cromatismo de las intervenciones en el entono de los monumentos no pueden alterar el carácter
arquitectónico y paisajístico de la zona, ni perturbar la contemplación del bien.
3. Podrán expropiarse y proceder a su derribo, los inmuebles y elementos que impidan o perturben la contemplación de los monumentos o den
lugar a riesgos para los mismos.
4. Para cualquier intervención que pretenda realizarse, la existencia de una figura del planeamiento que afecte al entorno de un monumento no
podrá excusar el informe preceptivo y vinculante de la Consejería de Cultura y Patrimonio.
5. En el caso del entorno de un monumento declarado de Interés Cultural, integrado en un Conjunto Histórico que cuente con un Plan Especial
de
Protección, se regirá por lo establecido en el artículo 42.2 dela presente Ley.
Artículo 69 Acceso
La Junta de Extremadura, a través de la Consejería de Cultura y Patrimonio, garantizará el acceso a los museos y exposiciones museográficas
permanentes, así como el estudio de las colecciones que los integran, sin perjuicio de las restricciones que por razón de conservación de los
bienes o
de la función propia del centro se pudieran establecer reglamentariamente. En el caso de museos o exposiciones museográficas permanentes,
de su titularidad o gestión, la Junta de Extremadura regulará la entrada gratuita a personas o colectivos con dificultades económicas.
NORMATIVA
http://www.plasencia.es/web/
6. SUSTENTABILIDAD
CON LA INTENCION DE
SUMARNUEVOS
ESPACIOS VERDES Y EL
CONTROL TERMICO SE
OPTO POR LA
UTILIZACION DE UNA
CUBIERTA VERDE EN
PARTE DE LA TERRAZA
ACCESIBLE.
SERVICIOS
MURO VERDE
DETALLE CUBIERTA VERDE
LUZ Y VENTILACION NATURAL A
TRAVES DE LUCERNARIO
CONTROL
ACUSTICO
SOBRE
PROPIEDADES
VECINAS
Planta de techos sector lucernario
6.SUSTENTABILIDAD
ASOLEAMIENTO
6.SUSTENTABILIDAD
Para el nuevo frente del edificio, opté por la elección de
parasoles de acero corten.
Este material permite proteger y revestir fachadas, tiene la
particularidad de poder ser perforado lo que proporciona
una excelente flexibidad al producto.
Los paneles tienen posibilidad de apertura al exterior
permitiendo el ingreso y el control de la luz solar.
Ingreso de la luz solar y
ventilación del ambiente.
FILTRO SOLAR
Composición del sistema:
Panel de Acero Corten
1.00 lisos y perforados.
Montantes horizontales:
Perfil C
CONTROL SOLAR
PARASOLES
6.SUSTENTABILIDAD
PARA LA FACHADA INTERNA DEL PROYECTO SE OPTO POR UN
SISTEMA DE TENSORES FIJADOS A LA LOSA POR LOS CUALES
PLANTAS UBICADAS EN EL SECTOR DE LA TERRAZA BAJARAN
CREANDO DIFERENTES SITUACIONES A MEDIDA QUE CRECEN,
GENERANDO UNA REALCION INTERIOR-EXTERIOR CON LOS
TALLERES DE DIBUJO Y PINTURA UBICADOS EN ESE SECTOR.
FACHADA TALLERES
ENTRADA SISTEMA
RIEGO Y
ACABADO
SUPERIOR
ENTRADA SISTEMA
RIEGO EN
MODULO
CUBETA DRENAJE
+ ENTRADA
SISTEMA DE
RIEGO
Para el tratamiento en medianeras se utilizaron panales verdes para generar lo
que se llama “jardín vertical”.
Se plantearon como solución acústica a las propiedades vecinas, ya que en
dichos sectores se desarrollarán actividades al aire libre.
Estos paneles están diseñados especialmente para que crezcan diferentes tipos
de plantas. Son regados de forma constante mediante un sistema de riego, y las
plantas son seleccionadas especialmente para que puedan crecer sin suelo y
en superficies verticales.
6.SUSTENTABILIDAD
TRATAMIENTO DE MEDIANERAS
7. COMPROMISO
CON EL ENTORNO
7.COMPROMISOCONELENTORNO
La Plaza de la catedral se sitúa delante de la catedral nueva y
tiene tres plataformas que se conectan entre sí mediante
escaleras, siendo totalmente incaccesible para los turistas y
los propios ciudadanos.
+ R A M P A S
El Ayuntamiento de Plasencia, a través de
la Concejalia de Accesibilidad, trabaja en la
eliminación de puntos negros en la ciudad en el
ámbito de las barreras arquitectónicas para personas
con discapacidad o diversidad funcional.
La mayor parte de las barreras eliminadas se refieren a
pasos de peatones sin rebajes o con rebajes
insuficientes al ser demasiado elevados; objetos y
elementos que obstaculizan los pasos de peatones y
desniveles sin protección.
Este es un tema que preocupa al Equipo de Gobierno,
por lo que se están realizando nuevos estudios para
seguir eliminando barreras arquitectónicas en nuestra
ciudad.
ELIMINACIONDEBARRERASARQUITECTIONICAS
ACCESIBILIDAD
SEGÚN EL AYUNTAMIENTO DE
PLASENCIA
TURISMO ACCESIBLE
El objetivo del convenio es la elaboración de un
plano-guía para la oficina de turismo del
Ayuntamiento con información de recorridos urbanos
accesibles (itinerarios) y nivel de accesibilidad de
edificios de interés histórico-artístico ubicados en el
centro histórico de la ciudad.
7.COMPROMISOCONELENTORNO
CIRCUITO EXPO ARTE
PB
1º
3º
2º
1490M2
MEDIANTE LA SECTORIZACION DE LA PLANTA BAJA
Y LA UTILIZACION DE LA NUEVA INTERVENCION, SE
PODRA OBTENER UN ESPACIO DE CASI 1500M2
PARA FUTURAS MUESTRAS DE ARTE., CONTANDO,
CON CIRCULACIONES Y SANITARIOS DENTRO DEL
CIRCUITO, PUDIENDO FUNCIONAR FUERA DEL
HORARIO DE LA ESCUELA
7.COMPROMISOCONELENTORNO
GALERIA A CIELO ABIERTO
RETIRANDO LAS REJAS PEATONALES Y
APROVECHANDO EL DESNIVEL ENTRE EL INTERIOR
Y EL EXTERIOR SE GENERO SOBRE LA PLAZA UNA
EXPO A CIELO ABIERTO, MOSTRANDO A LOS
VISITANTES MATERIAL ARTISTICO DE LA ESCUELA E
INVITANDO A UN RECORRIDO TANTO INTERIOR
COMO EXTERIOR DE LA ESCUELA.
7.COMPROMISOCONELENTORNO
7.COMPROMISOCONELENTORNO
SIGLO XII-XV SIGLO XVI
XVII SE PARALIZA LA OBRA
SIGLO XVII SIGLO XXI
LA PLAZA COMO TESTIGO DE LAS DIFERENTES INTERVENCIONES A LO LARGO DEL TIEMPO, DESDE EL SIGLO XII HASTA LA
ACTUALIDAD EL ENTORNO FUE SUMANDO NUEVOS EDIFICIOS, HACIENDO DE ESTE RINCON UNO DE LOS MAS LINDOS Y
DISTINGUIDO DE PLASENCIA.
FUSION FUSION
8. INNOVACION
8.INNOVACION
PINTURA DIGITAL
Se desarrollarán talleres de Arte Digital y Diseño.
El programa de dichos talleres, combina el riguroso
enfoque académico del programa del siglo XIX con
herramientas digitales actuales y emergentes. Es una
especialización seguida de un programa opcional
de residencia artística.
En el programa de residencia, los estudiantes
desarrollan habilidades de observacióny diseño,
trabajando en el desarrollo de una cartera de
contactos y relaciones profesionales.
Los proyectos cubren una amplia gama de técnicas,
incluyendo lápiz, carbón y pintura al óleo en la parte
tradicional, y Photoshop y ZBrush en el lado digital.
El objetivo es acercar cada artista a la libertad de
expresión.
La intención no es la de formar a los alumnos para
convertirlos en clones dispensables, sino para formar
una comunidad de individuos altamente calificados
y sensibles con una fuerte voz personal.
Creemos que dentro de los campos establecidos de
la producción digital, existe una demanda
especializada de artistas en sintonía con la
sensibilidad y el refinamiento proporcionados por la
formación clásica.
+ SUMAR PROGRAMA
Este	punto	nace	desde	el	momento	
que	decidí	intervenir	dentro	del	casco	
histórico	de	una	ciudad	con	tanta	
historia	como	es	Plasencia,	desde	las	
primeras	visitas	a	la	ciudad,	
atravesando	todo	el	proceso	de	
investigación,	de	entender	a	su	gente,	
los	usos	y	costumbres	de	un	lugar	que	
nunca	había	escuchado	hablar	pero	
que	me	sentí	parte	desde	un	primer	
momento.
Con	mi	proyecto	busque	 mejor	la	
calidad	de	vida	y	potenciar	uno	de	los	
rincones	mas	lindos	de	la	ciudad,	
integrando	su	entorno	al	proyecto	y	
fusionandome a	uno	de	los	edificios	
históricos	de	plasencia,	creando	una	
nueva	escuela	para	el	futuro	de	su	
población	y	devolviéndole	 a	los	
Plasentinos esa	parte	de	la	historia	
que	siempre	les	perteneció.	
8.INNOVACION
GRACIAS.
LAMINASTIL
LAMINASTIL
LAMINASTIL

Lucas gacio velo

  • 1.
    FADAUFACULTAD DE ARQUITECTURA,DISEÑO, ARTE Y URBANISMO. ESCUELA DE ARTE DE PLASENCIA GACIO VELO LUCAS 40010301 B+S+B & asociados Arq. Oscar Borrachia / Arq. Jorge Barroso / Arq. Carlos Sallaberry EAP
  • 2.
  • 3.
  • 4.
    0.1 TEMA/ACTUALIDAD Luego derealizar el intercambio universitario en España, encontre una problematica social en la Ciudad de Plasencia, Comunidad de Extremadura. En base a esto y a varias charlas con personal del ayuntamiento y el Arq. Luis Ramón Valverde, el cuál se ofreció para ser mi tutor, decidí realizar la ampliacion de la Escuela de Pintura en dicha ciudad, ya que la misma no contaba con el espacio suficiente para la cantidad de alumnos que desearían concurrir, los cuales por este motivo migraban a otras ciudades cercanas a practicar dicha actividad. La ampliación se llevará a cabo en el Palacio Casa del Dean, que se encuentra en el casco histórico de la ciudad, y esta en deshuso hace varios años. PROGRAMA DE INTERCAMBIO Universidad De extremadura Universidad De Moron CASA DEL DEAN S. XVII
  • 5.
    UBICACIÓN GEOGRAFICA PLASENCIA “CIUDADAMURALLADA” ESPAÑA EXTREMADURA PLASENCIA SUPERFICIE: 217 km2 POBLACIÓN: 40.755 hab DENSIDAD: 187.63 km/hab FUNDADA EN 1186 PALACIO AINTERVENIR 0.0 SITIO -LOCALIZACION
  • 6.
    Plasencia se haconvertido en un importante nudo de comunicaciones, y son varias las autovías y carreteras que unen Plasencia con el resto de España; teniendo algunas su origen en la propia ciudad, y siendo también algunas de las que más tráfico soportan de la comunidad, como son la autovía A-66 a su paso por Plasencia, la EX-A1 y la carretera entre Plasencia y Malpartida de Plasencia. RUTAS DE ACCESO A LA CIUDAD ENTORNO CIUDADES CERCANAS Cáceres Coria Logrosán Trujillo Navalmoral de la Mata Plasencia Valencia de Alcántara 0.0 SITIO -LOCALIZACION DISTANCIA AMADRID: 248KM
  • 7.
    Casco Histórico (Amurallado) Principales Víasde Acceso a la ciudad Principales Vías de Circulación de la ciudad Rio de Jerte Sector a Intervenir Parque Nacional Los Pinos P L A S E N C I A 0.0 SITIO -LOCALIZACION
  • 8.
    CONTEXTO HISTORICO “Ut placeatDeo et hominibus.” Para que agrade a Dios y a los hombres. PLASENCIA es la segunda ciudad mas importante y poblada de la provincia de Cáceres,situada en el norte de la comunidad Autónoma de Extremadura. Ciudad de nueva planta diseñada por Brigo (Obispo de Ávila) basándose en las directrices de “La ciudad de Dios” de San Agustín. Se funda como ciudad cabecera de diócesis ya que tiene obispo y catedral. Fundada por Alfonso VIII y Leonor de Aquitania (Hermana de Ricardo Corazón de León) en 1186,tras la conquista de Cuenca, cerrando el reino de León y Aragón e impidiendo el avance Islámico. De tipo RADIAL como todas las Ciudades Cristianas de la Edad Media Sus calles eran de tipo gremial, reuniendose cada grupo de mercaderes o de oficios en una misma calle, tales como: La calle Zapateria,Calle de los Quesos, y todas girando a un nucleo central como es la Plaza Mayor, entendida tambien como el cruce de los caminos procedentes de Talavera de la Reina,Trujillo, La Vera, y Valle del Jerte, Coria. ESTRUCTURA URBANA 0.0 SITIO -CONTEXTUALIZACION
  • 9.
    CONTEXTORELIGIOSO La ciudad deGuadalupe, sede de la Virgen de Guadalupe, patrona de Extremadura, no se encuentra dentro de la diócesis de Plasencia ya que en ella se encontraba un hospital importante en la edad media, aunque si se encuentra entre los límites de la comunidad. La Catedral de Santa María de Plasencia es un edificio que constituye un ejemplo muy interesante de transición del románico al gótico. La construcción comenzó a principios del siglo XIII. La parte “nueva” comenzó en el año 1498 y continuó a lo largo del siglo XVI dentro del estilo gótico- renacentista. CONTEXTOHISTORICO-SOCIAL Otorgado por Alfonso VII luego de la batalla de Alarcos en 1195 donde se enfrenta al rey de los almohades y los soldados placentinos no huyeron como los de Castilla. NOBLE Otorgado en 1494 por los reyes católicos para premiar la fidelidad de Plasencia hacia la corona, luego de que la ciudad fue regalada a los Zuñiga y los placentinos asaltaron su ciudad y consiguen rendir a las tropas del conde. LEAL Otorgado en 1901 por María Cristina luego que Plasencia abrió sus puertas y brindo hospitalidad a los soldados enfermos y heridos que volvían de la guerra Cuba, que habían sido rechazados por muchas ciudades de España. BENÉFICA NOBLES Estúniga / Zúñiga Monroy Carvajal Paniagua Trujillo Dueños de la ciudad siglo XV Casa de las dos torres / Hospital Cardenal siglo XVI Casa del Deán Casa del Dr. Trujillo 0.0 SITIO -CONTEXTUALIZACION TITULOS
  • 10.
    CONTEXTO ACTUAL España. Extremadura. Provinciade Cáceres. Rodeada de 6 de las 15 ciudades españolas nombradas patrimonio de la humanidad por la UNESCO. Próximo al Valle del Jerte y a 3 hs de Sevilla o Madrid. 0.0 SITIO -CONTEXTUALIZACION PATRIMONIO
  • 11.
    0.1 SITIO -LOCALIZACION0.1SITIO -LOCALIZACION •La población menor de 20 años es el 22% de la población total. •La población comprendida entre 20-40 años es el 29% •La población comprendida entre 40-60 años es el 27% •La población mayor de 60 años es el 20% Esta estructura de la población es típica en el régimen demográfico moderno, con una evolución hacia un envejecimiento de la población y una disminución de la natalidad anual. DEMOGRAFIA En 2011 contaba con una población 41.302 habitantes. Igual que con otras ciudades españolas, la población urbana de Plasencia tiende a aumentar progresivamente año tras año, si bien éste aumento es moderado, como sucede con el resto de las ciudades extremeñas y del interior peninsular. Dentro del contexto extremeño es uno de los focos principales de atracción del flujo migratorio, tanto de población extranjera, como nacional. Así mismo el número de habitantes crece en gran parte debido a las migraciones dentro de la propia provincia, puesto que Plasencia ejerce una notable influencia en el norte de la Comunidad Autónoma, tanto por el nivel de servicios que ofrece como por ser uno de los principales polos industriales en Extremadura. E V O L U C I O N POBLACION 22% 29% 27% 20% MENOR 20AÑOS 20/40 AÑOS 40/60 AÑOS MAYOR 60AÑOS POBLACION 0.0 SITIO -CONTEXTUALIZACION
  • 12.
    Durante nuestra cursadaen la Universidad de Extremadura, conocimos al arquitecto Luis Valverde, al cual le comentamos nuestra necesidad de buscar una problemática social del lugar para poder desarrollar nuestro tema de tesis, por lo que se ofreció a ser nuestro tutor durante nuestra estadía en España. Nos comento que actualmente en su ciudad de residencia (Plasencia) el complejo Santa Maria presentaba graves problemas funcionales, sumado a que en la ciudad había grandes edificios históricos que podrían refuncionalizarse llevando algunas de las actividades presentes en el complejo cultural. Luego de varias reuniones en el ayuntamiento pudimos tener acceso al complejo Santa Maria y también conseguimos que nos permitan ingresar a los edificios abandonados de la ciudad. En mi caso elegí la Escuela de Arte, la cual visite en varias ocasiones para entender su funcionamiento y deficiencias. Propuse trasladarla a la Casa del Dean, ubicada muy cerca de allí. 0.1 TEMA/PROBLEMÁTICAACTUAL DESARROLLO DEL TEMA Y VISITAS AL SITIO A CARGO DEL ARQ. LUIS VALVERDE
  • 13.
    Se ubica enel Complejo Cultural Santa María (ex Hospital Monroy), compartiendo edificio con lo que hoy en día es el conservatorio de música, la escuela de danza y la escuela de formación de artes plásticas y escénicas. Las diversos actividades dentro de este edificio se ven en conflicto ya que cada una cuenta con un espacio limitado que muchas veces no permite la futura expansión o bien el buen funcionamiento de la misma. Las funciones que alberga la escuela de pintura son: Un espacio común en el que se desarrollan las clases de pintura y dibujo, a la vez, esto imposibilita el desarrollo de clases especificas, el área de grabado no cuenta con un espacio propio y a su vez la escuela carece de espacios de programación, administración y depósitos para cada área. Actualmente estas actividades se desarrollan en espacios comunes como descansos de escaleras, pasillos o dentro del espacio central donde se dicta la propia clase. Otra problemática que se observa es que los profesores no tienen una sala de reunión donde pueden debatir y relacionarse entre ellos, ni tampoco un espacio para el director del establecimiento. 0.1 TEMA/PROBLEMÁTICAACTUAL ESCUELA DE PINTURA
  • 14.
    PLANTA BAJA PLANTA ALTA 0.1TEMA/PROBLEMÁTICAACTUAL ESCUELA DE PINTURA ACTUAL COMPLEJO CULTURAL SANTA MARIA PLANTABAJA PLANTAALTA
  • 15.
    PROBLEMÁTICA ACTUAL COMPLEJO CULTURALSANTA MARIA 0.1 TEMA/PROBLEMÁTICAACTUAL I M P O SI BI L I D AD D E C R E C I M I E N T O El edificio se encuentra a máxima capacidad de ocupación, sin la posibilidad de seguir sumando estudiantes ni tampoco de dividir el área de trabajo según temática, programas específicos,o años de estudio, ya que solo cuentan con un espacio común en el que dibujo y pintura conviven todo el tiempo.
  • 16.
    Áreas de lavado,preparado de materiales, acopio, área de grabado y tareas administrativas ocupan espacios comunes del edifico dificultando el desarrollo de las mismas y del edificio en general. F A L T A D E ESP AC I O 0.1 TEMA/PROBLEMÁTICAACTUAL PROBLEMÁTICA ACTUAL COMPLEJO CULTURAL SANTA MARIA
  • 17.
    Propongo la Intervenciónde la casa del Dean, consolidando dicho palacio, y devolviéndole la posibilidad de ser habitado, descentralizando los usos de las diferentes actividades actualmente existentes en el Complejo Cultural Santa María, logrando así la ampliación de cada escuela (en mi caso: Pintura) y buscando con esto la reinserción de los jóvenes en la ciudad, evitando la migración de los mismos a otras ciudades cercanas por falta de actividades. DESCENTRALIZACION DE USOS 0.1 TEMA/ PROPUESTA IGLESIA SAN MARTIN “ARTES ESCENICAS " CASA DEL DOCTOR TRUJILLO “ESCUELA DE ESCULTURA" CASA DE LAS DOS TORRES “ ESCUELA DE FORMACION INTEGRAL DE DANZA" PINTURA CASA DEL DEAN ARTES ESCENICAS ESCULTURADANZA COMPLEJO CULTURAL SANTA MARIA “CONSERVATORIO DE MUSICA" PROPUESTA
  • 18.
  • 19.
    La Casa delDeán es una casa-palacio ubicada en la ciudad de Plasencia (provincia de Cáceres,Extremadura, España) y que data del siglo XVII. Debe su nombre al hecho de que en ella vivieronalgunos de los deanes de la cercana catedral. Es de sillería y su portada está adintelada con columnas toscanas. Destaca un gran balcón en ángulo neoclásico- corintio, coronado por el monumental escudo de Antonio Paniagua de Loaisa. La balaustrada y las rejas de dicho balcón son ejemplos de la rejería española de su época HISTORIA 0.1 TEMA/ HISTORIA Destaca un gran balcón en ángulo neoclásico- corintio, coronado por el monumental escudo de Antonio Paniagua de Loaisa
  • 20.
    IMÁGENES EXTERIORES 0.1 TEMA/ACTUALIDAD FACHADA A CATEDRALFACHADA ESQUINA PRINCIPAL
  • 21.
    0.1 TEMA/ ACTUALIDAD Palaciodel Dean Palacio Vecino “Casa del doctor Trujillo” IMÁGENES CONTRAFRENTE Y TERRENO
  • 22.
    IMÁGENES INTERIORES 0.1 TEMA/ACTUALIDAD IMÁGENES INTTERIORES PLANTA BAJA
  • 23.
    0.1 TEMA/ ACTUALIDAD IMÁGENESINTERIORES IMÁGENES INTTERIORES PRIMER/SEGUNDO PISO
  • 24.
    IMÁGENES INTERIORES 0.1 TEMA/ACTUALIDAD IMÁGENES FONDO
  • 25.
    TEMA Y ACTORES 0.1TEMA/ PROPUESTA OBJETIVO Fundir el pasado con el presente respetando la historia del lugar y preservando su esencia luego de los estragos del tiempo. MISIÓN FOMENTAR EL DESARROLLO DE LA VIDA URBANA. Permitir que toda la gente oriunda de la ciudad, que lo desee, pueda concurrir a dicha escuela, donde un equipo profesional de docentes imparte a niños y adultos clases de diversas técnicas de pintura, y espacios de recreación. Impedir la migración de los jóvenes a otras ciudades para realizar sus estudios ARTE URBANO IDENTIDAD INTEGRACION INCLUSION ACTIVIDADES ESPACIO PUBLICO GRUPOS DE PERTENENCIA VISIÓN Convertirnos en la escuela de arte de referenciaen Plasencia y proporcionar a nuestros alumnos un centro con todas las facilidades para aprender distintas técnicas de dibujo y pintura, Ofrecer a las madres y padres de los alumnos la posibilidad de realizar una actividad junto a sus hijos. REACTIVACION ESPACIO PUBLICO EAP ESCUELA DE ARTE DE PLASENCIA +
  • 26.
    El dibujo esla columna vertebral del proceso lectivo, considerando el dibujo como elemento más importante y punto de partida de cualquier desarrollo artístico, se pondrá especial énfasis en que el alumno adquiera un buen control y dominio del dibujo antes de empezar a pintar o esculpir. El dibujo a lápiz de láminas permite entender las bases y aprender en dichas prácticas conceptos de encaje, gesto, proporción y precisión. En el dibujo de apuntes de la figura humana, los estudiantes se centran inicialmente en el desarrollo de un croquis o apunte de corta temporalidad, entendiendo el proceso de construcción a partir del natural. Posteriormente, con el dibujo a carbón de la figura humana en pose fija y de yesos, se introduce al alumno a trabajar en masas dibujando con manchas y con una amplia gama de valores de claroscuro, de forma analítica y estudiada. Objetivos Entrenar la mirada para ser riguroso/a. Aprender el proceso de realización de una pintura analítica de estudio. Aprender conceptos de matiz y saturación sujetos a la teoría de color y en base a la valoración tonal. Aprender a conocer los colores pigmento y a mezclaros entre sí. Conocer recursos expresivos gráficos para la representación de aquello que queremos. 0.1 TEMA/ PROPUESTA PROGRAMA DIBUJO
  • 27.
    Empezando por lapráctica y la experimentación del medio a través de la grisalla se irán incorporando de forma graduada los colores, yendo de una paleta limitada tradicional hasta la obtención de una paleta de colores completa personalizada fabricada al gusto de cada artista estudiante. Con la práctica de la pintura, el alumno aprenderá a controlar un medio técnico concreto para representar de una forma más completa, expresiva, pictórica y artística aquello que ve, interpreta y representa. Conoceráy dominará la teoría del color, como hemos dicho, compartida por todas las técnicas artísticas, técnicas digitales y fotográficas. Se unirán nuevos conceptos de temperatura, matiz y saturación en su vocabulario para que el alumno sea el único que controle y dirija su crecimiento y personalidad artística. FOTO: ESCUELA ACTUAL DE PINTURA – COMPLEJO SANTA MARIA PROGRAMA PINTURA 0.1 TEMA/ PROPUESTA
  • 28.
    PERSONAL DE SERV.Y ADMINISTRATIVO EAP ESCUELA DE ARTE DE PLASENCIA EDADESENTRE 5 Y 80 AÑOS. BUSCAN FORMARSE Y PODER DIFUNDIR SUS APRENDIZAJESA TRAVÉSDE LAS DIFERENTESMUESTRAS. PROYECCIÓN DE CRECIMIENTO. ALUMNOS DE: DIBUJO PINTURA GRABADO PINTURA DIGITAL ALUMNOS ESTARÁN PRESENTES DURANTE TODO EL HORARIO DE ATENCIÓN. SE DIVIDIRÁN SEGÚN LAS ÁREAS DE TRABAJO. PERSONAL: DIRECTOR SECRETARIA PROFESORES SEGURIDAD LIMPIEZA EMPLEADOS VISITANTES LA CIUDAD YA QUE SE CONSOLIDARA UN SECTOR DE LA CIUDAD QUE SE ENCUENTRA EN ESTADO DE ABANDONO. TRANSFORMÁNDOLO EN UN SECTOR CULTURAL, TAMBIÉN BENEFICIANDO LA ECONOMIA DEL MISMO (FOMENTANDOEL TURISMO). ARTISTAS LOCAL: BÚSQUEDA DE LUGARESPARA CONTEMPLARY RELAJARSE. PREFIEREN MAYOR CANTIDAD DE SERVICIOSEN UN SOLO LUGAR EXTRANJERO: BÚSQUEDA DE LUGARES QUE OFREZCAN RECORRIDOS. CAPACIDAD ADQUISITIVA Y GUSTO POR LA PINTURA. EDAD PROMEDIO 20-50 AÑOS. REQUIEREN RECURSOSPARA PROMOVERY REALIZAR SU TRABAJO. ARTISTAS INDEPENDIENTESDE PINTURA, DIBUJO, GRABADO Y ARTE DIGITAL 0.1 TEMA/ PROPUESTA
  • 29.
  • 30.
    1. COMPROMISO SOCIAL LaCasa del Dean actualmente se encuentra en desuso. En reuniones que participamos dentro del ayuntamiento nos comentaron que están abiertos a recibir propuestas para su re funcionalización y puesta en valor. La ultima función que tuvo fue la de albergar el Palacio de justicia hasta que se realizo el traslado de los juzgados a la nueva sede de Valcorchero. REFUNCIONALIZACION DE LA CASA DEL DEAN Noticias relacionadas con la re funcionalización y futuras propuestas para la Casa del Deán
  • 31.
    1. COMPROMISO SOCIAL LOQUE ANTES ERA O PERTENECIA A UN SOLO INDIVIDUO, HOY PASA A SER DE TODA LA SOCIEDAD. ü APROVECHAR LA CENTRALIDAD EN LA CIUDAD DE PLASENCIA ü EVITAR LA MIGRACION DE LOSJOVENES A OTRAS CIUDADES CERCNAS ü GENERAR GRUPOS DE PERTENENCIA ü FOMENTAR EL TURISMO ü CRECIMIENTO DE LA CIUDAD ü REINSERCIÓN DE JÓVENES ü DESARROLLO RECREATIVO Y CULTURAL ü CREAR ESPACIOS DE RECREACION AL AIRE LIBRE ü FAVORECER EL INTERCAMBIO SOCIAL
  • 32.
  • 33.
  • 34.
    TERRENO AINTERVENIR PLAZADELA CATEDRAL CATEDRAL 2.IMPLANTACION CALLE BLANCA
  • 35.
    CALLE BLANCA ENTORNO INMEDIATO Unade las principales calles para realizar visitas turísticas del centro de la ciudad, visitando la Catedral, la Casa del Deán de la Catedral, la del Doctor Trujillo, la de los Condes de Torrejón, la de Bernardino de Carvajal hasta la Casa de las Dos Torres o casa Palacio de los Monroy y frente a la 2º portada de la Iglesia de San nicolás llegando a la Plaza del mismo Nombre. 2.IMPLANTACION
  • 36.
    La plaza dela Catedral es uno de los rincones con más sabor de la ciudad de plasencia; se trata del lugar donde se encuentra el conjunto monumental más importante de la ciudad, formado por la Catedral Nueva, la Catedral Vieja, el Palacio Episcopal y la Casa Deán, entre otros importantes edificios. PLAZA DE LA CATEDRAL ENTORNO INMEDIATO 2.IMPLANTACION
  • 37.
    CATEDRAL ANTIGUA ENTORNO INMEDIATO 2.IMPLANTACION Lacatedral de Santa María de Plasencia, (España), constituye una de las dos edificaciones que componen la actual Catedral de Plasencia. Comúnmente conocida como catedral antigua de Plasencia, actual Museo Catedralicio de Plasencia, es un edificio que supone un ejemplo muy interesante de transición del románico al gótico y constituye una de las mayores joyas de la “Perla del Valle del Jerte” Su construcción comenzó a principios del siglo XIII y las últimas aportaciones protogóticas se dieron en el siglo XV. Durante estos siglos las obras corrieron a cargo de maestros como Juan Francés, Juan Pérez o Diego Díaz.
  • 38.
    CATEDRAL NUEVA ENTORNO INMEDIATO 2.IMPLANTACION Esel templo de mayor y más rica ornamentación de Extremadura. Se empezó a construir en el año 1498 y finalizó en el año 1578, en el que las obras sufrieron una paralización. Más tarde fueron retomadas durante el siglo XVIII, quedando finalmente inacabada. Intervinieron en su construcción varios arquitectos considerados como los mejores de su tiempo, como Juan de Álava, Francisco de Colonia o Enrique Egas, que se encargó de realizar los primeros planos de la futura catedral. También dejaron su huella otros arquitectos como Alonso de Covarrubias, Pedro de Ezquerra, Pedro de Ibarra, Rodrigo Gil de Hontañón y Diego de Siloé.
  • 39.
    CATEDRAL NUEVA ENTORNO INMEDIATO CATEDRALANTIGUA Plasencia es la única ciudad española que no es capital provincial y que cuenta con dos catedrales que convivan en una fusión única y especial. 2.IMPLANTACION FUSION
  • 40.
    ü MANTENER YPRESERVAR LOS EDIFICIOS HISTORICOS DE VALOR PATRIMONIAL, ASI COMO PARTE DE LA FACHADA DE LOS MISMOS ü PROYECTAR DE FORMAS PURAS Y DISCRETAS CON COLORES TENUES Y NEUTROS COMO PRESERVACION Y RESPETO POR EL ENTORNO ü CONSERVACION DE BIENES CULTURALES PARA EL DESARROLLO DE UN PERFIL TURISTICO LEY 2/1999, DE 29 DE MARZO, DE PATRIMONIO HISTÓRICO Y CULTURAL DE EXTREMADURA NORMATIVA EDIFICIO BIPS Bien de Interes Publico y Social, se permitirá todo, siempre que su uso fuera justificado como de interés público y social CARACTERISTICAS DEL SITIO + LOTE DE EDIFICACION EXISTENTE 875M2 + VALOR PATRIMONIAL A EXHIBIR Y PRESERVAR + PLAZA SECA VINCULANDOEL PALACIO CON LA CATEDRAL Situaciones que definieron la escencia y morfologia del proyecto RESPETO POR EL CONTEXTO HISTORICO COMO PREMISA FUNDAMENTAL DE DISEÑO DIALOGO CON LA PREEXISTENCIA +Revitalizar zona. +Vinculacion nuevo edificio con catedral mediante rampas y solados. +Proximidad al acceso principal. +Devolverle la identidad al Palacio del Dean. 2.IMPLANTACION REFERENCIA CATASTRAL DEL INMUEBLE 8452716QE4385A0001SH DATOS DEL INMUEBLE LOCALIZACIÓN CL BLANCA 11 10600 PLASENCIA [CÁCERES] USO LOCAL PRINCIPAL Edif. Singular AÑO CONSTRUCCIÓN 1900 COEFICIENTE DE PARTICIPACIÓN -- SUPERFICIE CONSTRUIDA [m²] 1.251 DATOS DE LA FINCA A LA QUE PERTENECE EL INMUEBLE SITUACIÓN CL BLANCA 11 PLASENCIA [CÁCERES] SUPERFICIE CONSTRUIDA [m²] 1.251 804 SUPERFICIE GRÁFICA PARCELA [m²] TIPO DE FINCA Parcela construida sin división horizontal CONSULTA DESCRIPTIVA Y GRÁFICA DE DATOS CATASTRALES BIENES INMUEBLES DE NATURALEZA URBANA MunicipiodePLASENCIAProvinciadeCÁCERES INFORMACIÓN GRÁFICA E: 1/500 4,434,940 4,434,960 4,434,980 748,180 748,200 748,220 748,220 Coordenadas U.T.M. Huso 29 ETRS89 Este documento no es una certificación catastral, pero sus datos pueden ser verificados a través del 'Acceso a datos catastrales no protegidos' de la SEC. Límite de Manzana Límite de Parcela Límite de Construcciones Mobiliario y aceras Límite zona verde Hidrografía Martes , 19 de Abril de 2016 ELEMENTOS DE CONSTRUCCIÓN Uso Escalera Planta Puerta Superficie m² PUBLICO E 00 01 433 PUBLICO E 01 01 427 CULTURAL E 02 01 391 CARTOGRAFÍA CATASTRAL Este documento no es una certificación catastral [748,160 ; 4,434,990] [748,160 ; 4,434,938] [748,256 ; 4,434,990] [748,256 ; 4,434,938] Provincia de CÁCERES Municipio de PLASENCIA Parcela Catastral: 8452716QE4385A Coordenadas U.T.M. Huso: 29 ETRS89 ESCALA 1:400 10m 0 10 20m Coordenadas del centro: X = 748,208 Y = 4,434,964 © Dirección General del Catastro 19/04/16
  • 41.
    CASA DEL DEANPLAZA DE LA CATEDRAL CATEDRAL 2.IMPLANTACION
  • 42.
    1-CONSERVAR FACHADA “CASA DELDEAN” Y PLAZA EXISTENTE 2-DEMOLER DEMOLER CONSTRUCCIONES SIN VALOR PATRIMONIAL GENERANDO NUEVO ACCESO 3-INTEGRAR LA PLAZA Y LA IGLESIA AL PROYECTO MEDIANTE RAMPAS Y ESPACIO PUBLICO OBJETIVO DEVOLVER EL PALACIO A LA SOCIEDAD ACCESOORIGINAL INTENCIONES PLANTA DE ACCESO ACTUAL 2.IMPLANTACION 1
  • 43.
    CONJUNTO DE CASADEL DEAN Y PLAZA DE LA CATEDRAL CONSERVAR Y REFUNCIONALIZAR CONSERVARINTERVENCION 2.IMPLANTACION (DEMOLER CONSTRUCCION SIN VALOR PATRIMONIAL) CONSTRUCCIONES VECINAS
  • 44.
    PLANTA REFUNCIONALIZADA NUEVO VOLUMEN NUEVO ACCESO VINCULACION DELA PLAZA, INGRESO AL NUEVO NUCLEO DE CIRCULACION. PLANTA BAJA PUBLICA INTEGRAR EL PALACIO A LA COMUNIDAD ACCESIBILIDAD PARA TODOS LOS USUARIOS MEDIANTE RAMPAS Y ASCENSORES NUEVOS TALLERES Y NUCLEO DE CIRCULACION VINCULACION DE LO EXISTENTE Y EL NUEVO VOLUMEN 2.IMPLANTACION INTENCIONES PLANTA DE ACCESO PROPUESTA RAMPA DE ACCESO
  • 45.
  • 46.
    130m2 40m2 32m2 40m2 5m2 36m2 40m2 170m2 36m2 40m2 PROGRAMA DE NECESIDADES 70m2 55m2 45m2 40m2 100m2 30m2 15m2 15m2 15m2 5m2 150m2 30m2 216m2 (Planta bajapublica) Ingreso Principal Hall de ingreso Expo temporal dibujo Expo temporal pintura Sanitarios Cafetería Shop Ingreso secundario Oficina de comunicación Tesorería Fichaje personal Kitchen/Sanitario Sala técnica Espacio exterior Semicubierto De ingreso Circulaciones PLANTABAJA.780M PRIMERPISO.539M AZOTEA (Primer año de Estudios) Administración Secretaria académica Estudio del director Sala de profesores + Cocina Aula de programación para Profesores. Deposito Dibujo 2 Aulas de modelo / Practicas -Dibujo -Dibujo de yesos -Dibujo de la Figura Humana -Dibujo Expresivo y Experimental Zona de lavado Aula / Teórica Audiovisual -Historia del Arte -Anatomía Espacio común Deposito Sanitarios Circulaciones Sala técnico 16m2 20m2 32m2 20m2 15m2 130m2 40m2 36m2 15m2 40m2 170m2 5m2 (Segundo año de Estudios) Pintura Tradicional 2 Aulas / Practica (Talleres) Pintura de yesos Pintura de la Figura Humana Paisaje Zona de lavado Deposito Zona de estudio ( 2 Talleres especiales) -Naturaleza muerta (Estudios compartidos 3 a 4 personas) Pintura digital Aulas Teórica / Practica (informática) Grabado Aula taller Sala técnica Espacio común Sanitarios Circulaciones (Expansión Pública) Espacio común Terraza SEGUNDOPISO.493M 3.ESTRUCTURAFUNCIONAL CRECE UN 70 % EN SUPERFICIE
  • 47.
    INTERVENCION PUBLICO SEMIPUBLICO REFUNCIONALIZAR CASA DELDEAN CAFÉ/SHOP/EXPANSION TALLERES DIBUJO TALLERESPINTURA NUCLEO EXPO/ADM DIRECCION PROGRAMACION AULAS TEORICAS DEPOSITOS 3.ESTRUCTURAFUNCIONAL ESQUEMAS FUNCIONALES ACCESO SECUNDARIO (Existente, se conserva) ACCESO PRINCIPAL PRIVADO
  • 48.
  • 50.
    +0.35 FICHAJE PERSONAL SALA DE MAQUINAS 1°PISO 1° SS OFICINA DE COMUNICACION ADMINISTRACION TESORERIA EXPO PINTURA EXPO DIBUJO +0.35 NUCLEO PRINCIPAL ALUMNOS VISITANTES SHOP BARRA COCINA ASCENSOR EXISTENTE PATIO COMPARTIDO 7.66 8.12 8.08 8.00 2.32 4.95 2.04 8.54 4.07 6.88 3.31 15.58 7.32 8.07 3.09 4.11 2.42 3.30 9.30 3.77 10.25 8.00 50.81 4.68 8.00 17.79 6.08 14.00 3.60 6.70 4.04 4.45 1.80 HALL DE ACCESO CAFETERIA SANITARIOS 50.67 3.ESTRUCTURAFUNCIONAL PLANTA DE ACCESOS HOGARALEÑA ESPACIO COMUN AREA DE PREPARADO Y LAVADO +5.00 DIRECTOR SECRETARIA AULA TALLER ZONADEGUARDADO AULA TALLER SALA DE PROFESORES DEPOSITO DIBUJO AULA DE PROGRAMACION PROFESORES COCINA ARCO 1° PISO 2° PISO ASCENSOR EXISTENTE AREA DE PREPARADO Y LAVADO AULA TEORICA ESPACIO COMUN SALA TECNICA SANITARIOS VACIO SOBRE HALL VACIO 3.873.435.24 4.86 3.13 4.31 7.44 7.91 8.26 7.87 6.15 5.20 7.66 8.12 8.08 1.60 3.09 7.09 8.07 8.0010.25 8.544.61 1.90 2.04 2.101.002.09 6.23 16.76 8.30 16.26 8.00 ASCENSORES +5.00 +5.00 1 5
  • 51.
    +0.35 FICHAJE PERSONAL SALA DE MAQUINAS 1°PISO 1° SS OFICINA DE COMUNICACION ADMINISTRACION TESORERIA EXPO PINTURA EXPO DIBUJO +0.35 NUCLEO PRINCIPAL ALUMNOS VISITANTES SHOP BARRA COCINA ASCENSOR EXISTENTE PATIO COMPARTIDO 7.66 8.12 8.08 8.00 2.32 4.95 2.04 8.54 4.07 6.88 3.31 15.58 7.32 8.07 3.09 4.11 2.42 3.30 9.30 3.77 10.25 8.00 50.81 4.68 8.00 17.79 6.08 14.00 3.60 6.70 4.04 4.45 1.80 HALL DE ACCESO CAFETERIA SANITARIOS 50.67 `` `` CAFETERIA 100m2 `` `` APOYO INGRESO SECUNDARIO ADMINISTRACION 50m2 EXPOSICIONES 100m2 EXPLANADA DE INGRESO HALL DE INGRESO 70M2 TIENDA/SHOP 30M2 3.ESTRUCTURAFUNCIONAL ESPACIOS COMUNES CIRCULACION PLANTA DE ACCESOS Funcionalidad HOGARALEÑA ESPACIO COMUN AREA DE PREPARADO Y LAVADO +5.00 DIRECTOR SECRETARIA AULA TALLER ZONADEGUARDADO AULA TALLER SALA DE PROFESORES DEPOSITO DIBUJO AULA DE PROGRAMACION PROFESORES COCINA ARCO 1° PISO 2° PISO ASCENSOR EXISTENTE AREA DE PREPARADO Y LAVADO AULA TEORICA ESPACIO COMUN SALA TECNICA SANITARIOS VACIO SOBRE HALL VACIO 3.873.435.24 4.86 3.13 4.31 7.44 7.91 8.26 7.87 6.15 5.20 7.66 8.12 8.08 1.60 3.09 7.09 8.07 8.0010.25 8.544.61 1.90 2.04 2.101.002.09 6.23 16.76 8.30 16.26 8.00 ASCENSORES +5.00 +5.00 1 5
  • 56.
    3.ESTRUCTURAFUNCIONAL HOGARALEÑA ESPACIO COMUN AREA DEPREPARADO Y LAVADO +5.00 DIRECTOR SECRETARIA AULA TALLER ZONADEGUARDADO AULA TALLER SALA DE PROFESORES DEPOSITO DIBUJO AULA DE PROGRAMACION PROFESORES COCINA ARCO 1° PISO 2° PISO ASCENSOR EXISTENTE AREA DE PREPARADO Y LAVADO AULA TEORICA ESPACIO COMUN SALA TECNICA SANITARIOS VACIO SOBRE HALL VACIO 3.873.435.24 4.86 3.13 4.31 7.44 7.91 8.26 7.87 6.15 5.20 7.66 8.12 8.08 1.60 3.09 7.09 8.07 8.0010.25 8.544.61 1.90 2.04 2.101.002.09 6.23 16.76 8.30 16.26 8.00 ASCENSORES +5.00 +5.00 1 5 PLANTA 1.PISO PLANTA ORIGINAL
  • 57.
    `` `` HOGARALEÑA ESPACIO COMUN AREA DEPREPARADO Y LAVADO +5.00 DIRECTOR SECRETARIA AULA TALLER ZONADEGUARDADO AULA TALLER SALA DE PROFESORES DEPOSITO DIBUJO AULA DE PROGRAMACION PROFESORES COCINA ARCO 1° PISO 2° PISO ASCENSOR EXISTENTE AREA DE PREPARADO Y LAVADO +5.00 AULA TEORICA ESPACIO COMUN SALA TECNICA SANITARIOS VACIO SOBRE HALL VACIO 3.873.435.24 4.86 3.13 4.31 7.44 7.91 8.26 7.87 6.15 5.20 7.66 8.12 8.08 1.60 3.09 7.09 8.07 8.0010.26 8.544.61 1.90 2.04 2.101.002.09 6.23 16.76 8.30 3.ESTRUCTURAFUNCIONAL AULAS/TALLERES 130M2 APOYO DOCENTE 67m2 AULA TEORICA 40M2 AULA DE PROGRAMACION Y DEPOSITO 35M2 ESPACIOS COMUNES CIRCULACION PLANTA 1.PISO Funcionalidad HOGARALEÑA ESPACIO COMUN AREA DE PREPARADO Y LAVADO +5.00 DIRECTOR SECRETARIA AULA TALLER ZONADEGUARDADO AULA TALLER SALA DE PROFESORES DEPOSITO DIBUJO AULA DE PROGRAMACION PROFESORES COCINA ARCO 1° PISO 2° PISO ASCENSOR EXISTENTE AREA DE PREPARADO Y LAVADO AULA TEORICA ESPACIO COMUN SALA TECNICA SANITARIOS VACIO SOBRE HALL VACIO 3.873.435.24 4.86 3.13 4.31 7.44 7.91 8.26 7.87 6.15 5.20 7.66 8.12 8.08 1.60 3.09 7.09 8.07 8.0010.25 8.544.61 1.90 2.04 2.101.002.09 6.23 16.76 8.30 16.26 8.00 ASCENSORES +5.00 +5.00 1 5
  • 59.
    3.ESTRUCTURAFUNCIONAL +9.00 AULA TALLER ZONADEGUARDADO AULA TALLER ESPACIOCOMUN DEPOSITO PINTURA/GRABADO TALLER ESPECIALTALLER ESPECIAL +9.00 +9.00 8.12 8.08 8.07 8.0010.26 VACIO SOBRE HALL SPACIO COMUN 8.00 9.19 41.94 27.76 16.26 3.72 7.44 2.04 SALA TECNICA 8.00 3.09 +9.00 AULA TALLER ZONADEGUARDADO AULA TALLER ESPACIO COMUN +9.00 8.0010.26 VACIO SOBRE HALL 8.00 9.19 27.76 16.26 8.00 60M2 60M2 120M2 FLEXIBILIDAD EN LOS NUEVOS TALLERES
  • 61.
    +9.00 AULA TALLER ZONADEGUARDADO AULA TALLER ESPACIOCOMUN DEPOSITO PINTURA/GRABADO TALLER ESPECIALTALLER ESPECIAL AULA PINTURA DIGITAL AULA GRABADO PROGRAMACION PANTALLA PRENSA ASCENSOR EXISTENTE +9.00 +9.00 7.66 8.12 8.08 8.07 8.0010.26 VACIO SOBRE HALL ESPACIO COMUN 8.544.61 14.00 8.00 9.19 41.94 27.76 16.26 5.956.55 6.88 3.72 3.72 7.44 1.90 2.04 2.101.002.09 SALA TECNICA 8.00 3.09 3.ESTRUCTURAFUNCIONAL PLANTA 2.PISO HOGARALEÑA ESPACIO COMUN AREA DE PREPARADO Y LAVADO +5.00 DIRECTOR SECRETARIA AULA TALLER ZONADEGUARDADO AULA TALLER SALA DE PROFESORES DEPOSITO DIBUJO AULA DE PROGRAMACION PROFESORES COCINA ARCO 1° PISO 2° PISO ASCENSOR EXISTENTE AREA DE PREPARADO Y LAVADO AULA TEORICA ESPACIO COMUN SALA TECNICA SANITARIOS VACIO SOBRE HALL VACIO 3.873.435.24 4.86 3.13 4.31 7.44 7.91 8.26 7.87 6.15 5.20 7.66 8.12 8.08 1.60 3.09 7.09 8.07 8.0010.25 8.544.61 1.90 2.04 2.101.002.09 6.23 16.76 8.30 16.26 8.00 ASCENSORES +5.00 +5.00 1 5 PLANTA ORIGINAL
  • 62.
    `` `` +9.00 AULA TALLER ZONADEGUARDADO AULA TALLER ESPACIOCOMUN DEPOSITO PINTURA/GRABADO TALLER ESPECIALTALLER ESPECIAL AULA PINTURA DIGITAL AULA GRABADO PROGRAMACION PANTALLA PRENSA ASCENSOR EXISTENTE +9.00 +9.00 7.66 8.12 8.08 8.07 8.0010.26 VACIO SOBRE HALL ESPACIO COMUN 8.544.61 14.00 8.00 9.19 41.94 27.76 16.26 5.956.55 6.88 3.72 3.72 7.44 1.90 2.04 2.101.002.09 SALA TECNICA 8.00 3.09 3.ESTRUCTURAFUNCIONAL PINTURA DIGITAL 32m2 AULAS/TALLERES 130M2 ESPACIOS COMUNES CIRCULACION AULA DE PROGRAMACION Y DEPOSITO 35M2 AULA DE GRABADO 40M2 TALLERES ESPECIALES 40M2 PLANTA 2.PISO Funcionalidad HOGARALEÑA ESPACIO COMUN AREA DE PREPARADO Y LAVADO +5.00 DIRECTOR SECRETARIA AULA TALLER ZONADEGUARDADO AULA TALLER SALA DE PROFESORES DEPOSITO DIBUJO AULA DE PROGRAMACION PROFESORES COCINA ARCO 1° PISO 2° PISO ASCENSOR EXISTENTE AREA DE PREPARADO Y LAVADO AULA TEORICA ESPACIO COMUN SALA TECNICA SANITARIOS VACIO SOBRE HALL VACIO 3.873.435.24 4.86 3.13 4.31 7.44 7.91 8.26 7.87 6.15 5.20 7.66 8.12 8.08 1.60 3.09 7.09 8.07 8.0010.25 8.544.61 1.90 2.04 2.101.002.09 6.23 16.76 8.30 16.26 8.00 ASCENSORES +5.00 +5.00 1 5
  • 64.
    3.ESTRUCTURAFUNCIONAL PLANTA AZOTEA SALA DETANQUES 8.0010.26 20.04 4.005.10 ESPACIO COMUN +13.00 VACIO SOBRE HALL ASCENSORES +13.00 ESPACIO COMUN ESPACIO COMUN HOGARALEÑA ESPACIO COMUN AREA DE PREPARADO Y LAVADO +5.00 DIRECTOR SECRETARIA AULA TALLER ZONADEGUARDADO AULA TALLER SALA DE PROFESORES DEPOSITO DIBUJO AULA DE PROGRAMACION PROFESORES COCINA ARCO 1° PISO 2° PISO ASCENSOR EXISTENTE AREA DE PREPARADO Y LAVADO AULA TEORICA ESPACIO COMUN SALA TECNICA SANITARIOS VACIO SOBRE HALL VACIO 3.873.435.24 4.86 3.13 4.31 7.44 7.91 8.26 7.87 6.15 5.20 7.66 8.12 8.08 1.60 3.09 7.09 8.07 8.0010.25 8.544.61 1.90 2.04 2.101.002.09 6.23 16.76 8.30 16.26 8.00 ASCENSORES +5.00 +5.00 1 5
  • 65.
    `` 3.ESTRUCTURAFUNCIONAL SALA DE TANQUES 8.0010.26 20.04 4.005.10 ESPACIOCOMUN +13.00 VACIO SOBRE HALL ASCENSORES +13.00 ESPACIO COMUN ESPACIO COMUN ESPACIOS COMUNES CIRCULACION SALA TANQUES ESPACIOS COMUNES OCIO PLANTA AZOTEA Funcionalidad HOGARALEÑA ESPACIO COMUN AREA DE PREPARADO Y LAVADO +5.00 DIRECTOR SECRETARIA AULA TALLER ZONADEGUARDADO AULA TALLER SALA DE PROFESORES DEPOSITO DIBUJO AULA DE PROGRAMACION PROFESORES COCINA ARCO 1° PISO 2° PISO ASCENSOR EXISTENTE AREA DE PREPARADO Y LAVADO AULA TEORICA ESPACIO COMUN SALA TECNICA SANITARIOS VACIO SOBRE HALL VACIO 3.873.435.24 4.86 3.13 4.31 7.44 7.91 8.26 7.87 6.15 5.20 7.66 8.12 8.08 1.60 3.09 7.09 8.07 8.0010.25 8.544.61 1.90 2.04 2.101.002.09 6.23 16.76 8.30 16.26 8.00 ASCENSORES +5.00 +5.00 1 5
  • 68.
  • 69.
    5 6 7 15 3.ESTRUCTURAFUNCIONAL CORTE A-A Funcionalidad TALLERES TALLERES CAFETERIA CIRCULACION VERTICAL TALLERES ESPECIALES AULA TEORICA EXPOSICIONES AULA DE PROGRAMACION PINTURA DIGITAL APOYO DOCENTE
  • 70.
  • 71.
  • 72.
  • 73.
  • 74.
  • 75.
  • 76.
  • 77.
    VACIO SOBRE HALL ESPACIOCOMUN ESPACIO COMUN PLANTA DE TECHOS
  • 79.
  • 80.
    DEMOLER CONSTRUCCIONES POSTERIORES AL PALACIO DEL DEAN- SIN VALOR PATRIMONIAL TERRENO A INTERVENIR DISPONIBLE PARA IMPLANTAR EL NUEVO EDIFICIO INTERVENCION REFUNCIONALIZACION DEL EDIFICIO EXISTENTE “CASA DEL DEAN”, CONSTRUCCION DE NUEVOS TALLERES, E INGRESO (ESPACIO CENTRAL Y DE VINCULACION DE AMBAS CONTRUCCIONES). MORFOLOGIA 4.ESTRUCTURAMORFOLOGICA
  • 81.
    4.ESTRUCTURAMORFOLOGICA PARA LA NUEVAINTERVENCION SE RESPETARON LOS NIVELES EXISTENTES, TANTO INTERNOS COMO EXTERNOS, PUDIENDO ASI GENERAR PLANTAS ACCESIBLES ENTRE AMBOS EDIFICIOS , SIN GENERAR DESNIVELES Y CREANDO UNA RELACION CONSTANTE A MEDIDA QUE SE RECORRE EL CONJUNTO.
  • 84.
    DEMOLER CONSTRUCCIONES SINVALOR PATRIMONIAL CONSERVAR FACHADAORIGINAL CON VALOR PATRIMONIAL REFUNCIONALIZAR CASA DELDEAN INTERVENCION CONSTRUCCIONES VECINAS INTENCIONES VISTA FACHADA 4.ESTRUCTURAMORFOLOGICA
  • 85.
  • 86.
    EXISTENTE I NT E R V E N C I O N PIEDRA HIERRO ACERO CORTEN VIDRIO 5.DISEÑODEMATERIALIDAD
  • 87.
    ACERO CORTEN Una planchade acero cortén tiene la principal virtud de recoger el paso del tiempo en la obra mediante el proceso de oxidación, lo que permite que el edificio no quede finalizado al terminar la construcción, sino que el proceso continúe por más tiempo, siendo incorporado como tema de proyecto. 5.DISEÑODEMATERIALIDAD EAP 1 5 OBRAS DE REFERENCIA VISITADAS DURANTE EL INTERCAMBIO ARRIBA : CAIXA FORUM, MADRID, ESPAÑA. ABAJO: PUERTA DE CORIA, PLASENCIA, ESPAÑA
  • 88.
  • 89.
    5.DISEÑODEMATERIALIDAD Sistema instalado frentea losas. Proporciona un completo cierre de la obra gruesa, dando un aspecto de modernidad al entorno. En el caso del diseño de fachadas es importante considerar factores de seguridad. Por su posición relativa a los lugares de circulación o permanencia de personas y por las consecuencias derivadas de su rotura, se recomienda utilizar cristales de seguridad. El cristal laminado está constituido por un montaje de dos o más hojas de vidrio entre las que se intercalan una o varias películas de PVB (polivinilo butiral). Si el vidrio se rompe, la mayor parte de los fragmentos y astillas permanecen pegados a la hoja, manteniendo el cristal en su lugar. MURO CORTINA
  • 90.
    ABERTURAS PVC Aislamiento Acústicoy hermeticidad: Ángulos Termofusionados y no unidos mecánicamente. Mayor estanqueidad, y el doble vidriado hermético ( DVH ) para bajar considerablemente los decibeles de ruidos molestos. Los perfiles de PVC VEKA no son afectados por los rayos UV, cambios bruscos de temperatura o por los climas mas agresivos. Seguridad: Lograda con DVH especiales (laminados, templados, etc. ) y con herrajes multipuntos de cierre perimetral . Los perfiles son autoextinguibles, lo que significa que no arden ni se derriten como el plástico. Bajo Mantenimiento: Fácil limpieza, no requieren pintura. Vidrios Laminados: Esta compuesto por dos o mas hojas de vidrio unidas entre sí mediante una interlámina de PVB polivinil butiral, mediante un proceso de calor y presión. El proceso se perfecciona con un autoclave, donde se somete al conjunto a un proceso de calentamiento (135°C) y presión (15 kg), lográndose así el vidrio laminado. Los laminados pueden contener vidrios crudos o térmicamente tratados. Antes la rotura, los trozos de vidrio roto quedan adheridos a la inter-lamina de PVB, manteniendo su morfología. Rendimiento de seguridad: Minimiza el riesgo de lesiones No deja abierto el vano No se astilla No estalla Los perfiles y placas de PVC son 100 % reciclables. DVH – DOBLE VIDRIADO HERMETICO AHORRO DE ENERGÍA • Las pérdidas y ganancias de calor a través de las ventanas constituyen un 20 % de las pérdidas totales de la energía de un edificio con cerramientos convencionales, si hay muro cortina se incrementa dicho valor. • Empleando DVH se disminuyen dichas pérdidas al 50%, con la consiguiente reducción de la energía consumida. • Asimismo, se elimina la condensación de humedad, siendo la temperatura del vidrio interior similar a temperatura ambiente, por ello no nunca alcanza la temperatura de rocío. • Se anula el efecto de muro frío, por consiguiente hay un mejor aprovechamiento del espacio útil interior. Es un componente prefabricado compuesto por dos capas de vidrios separados entre si y un espacio de aire seco y quieto, herméticamente cerrado al paso de la humedad y el vapor de agua. Con el DVH disminuimos la transmitancia térmica y acústica. 5.DISEÑODEMATERIALIDAD
  • 91.
    LA NUEVA ESTRUCTURAPLANTEADA SE RESUELVE EN PIEZAS METALICAS QUE SE EXPRESAN POR CONTRASTE DENTRO DE LA ARQUITECTURA PRE- EXISTENTE. ü 1/ ALIVIANAR LOSAS/ MENOR PESO ü 2/ MENOR TIEMPO DE EJECUCION , RAPIDEZ DE MONTAJE STEEL DECK "Losa colaborante" V E N T A J A S ü 3/ SEGURIDAD Y FACIL INSTALACION EN OBRA ü 4/ REDUCE ENCOFRADOS DE LOSAS. 5.DISEÑODEMATERIALIDAD
  • 92.
    Adopción chapa espesorcalibre 18 Peso propio= 12,60km/m2 Hormigón s/cresta (5cm) 0,0085m3/m2 x 2400kg/m3 = 204 kg/m2 Piso alisado cemento – Carpeta+ Piso = 0,05 x 2100 kg/m3 = 105kg/m2 Cielorraso = 20kg/m2 G= 341,6 kg/m2 G= 350 kg/m2 P= 300kg/m2 Q= 650kg/m2 PREDIMENSIONADO ENTREPISO 5.DISEÑODEMATERIALIDAD
  • 93.
  • 95.
    CALCULO VIGA PRINCIPAL Cargasobre Viga principal P = qv sep x long = 1755 kg/m2 . (6,70m/2 + 4m/2) = 9389 kg= 9,40t M max = 9.40t x 2,70m = 25,38tm Hxmc = M max/T adm = 2538000 kg/cm/1200 kg/m2 = 2155 cm3 à A tabla Se adopta HEB360 WX = 2400cm3 Jx = 43190cm4 Verificacióna la flecha F max = P.a (3.l2-4.a2) 24 E.J =9400 kg. 270cm (3.810-2 – 4.270-2) 24 . 2100000 x 431900 = 1.95cm Fadm = l/400 = 810/400 = 2.02cm (VERIFICA) 5.DISEÑODEMATERIALIDAD CALCULO VIGAS 30cm 36cm 1,25cm 2,25cm Qs V.Sec = q.Total x separación= 650 kg/m2 x 2.70m = 1755 kg/m M. Max = q.l2/8 = 1755 kg x (6,70m) / 8 = 9848 kg/m Hxncc = M. max / T.adm = 984800 kg/m / 1200 kg/m = 821 cm3 - à a tabla HEB Se adopta HEB260 WX = 1150 cm3 JX = 14920 CM4 Verificaciona la felcha F max = 5/384 . q . l4 e . J = 5/384 . 17,55 kg/cm . (6,70m)4 2100000 kg/cm2 . 14920 = 1.47 F adm = l/400 = 670cm/400 = 1.68 (VERIFICA) 26cm 26cm 1cm 1,75cm CALCULO VIGA SECUNDARIA
  • 96.
    3 Losas =(8m/2 . 7,50m/2) x (4m/2 + 6,70m/2) = 41,46m2 x 3 niveles = 124,38m2 P= 124,38m2 x 650 kg/m2 = 80847kg 1 losa = (7,50m/2) . (4m/2 + 6,70m/2) = 20.06m2 P = 20,06m2 x 650kg/m2 = 13.041kg Carga total = 80847kg + 13041kg = 93888kg RedimensionamientoColumna Fnec= P.Total/t.adm =93888kg/1200kg/cm2 = 78,3cm2 Se adopta HEB300 F = 149 Imin= 7,58 Verificacional pandeo X= lk/imin =500cm/7,58 =66 à W=1,55 T= w.R/F = 1,55/149 =977< 1200kg/m2 VERIFICA 5.DISEÑODEMATERIALIDAD 30cm 30cm 1,1cm 1,9cm tTension terreno= 2kg/cm2 Ab = 1.1 x P/Tension terreno = 1,10 . 938888kg/2kg/cm2 = 51638 Ax = ay= ab = 227cm = 230cm Se adopta base de 230cm x 230cm D= 230/3 = 80CM d= D/3 = 80/3 = 27cm = Se adopta 30cm 30cm 1,1cm 1,9cm CALCULO COLUMNA/BASE CALCULO BASE CENTRALCALCULO COLUMNA 230cm 230cm 230cm
  • 97.
    N= 45000KG AB= 11XN/T= 1,1 X 45000KG/2KG/CM2 = 24750KG CM2 A1 = RAIZ AB/2 = 24750CM2/2 = 111CM – 120CM A2= A1X2 = 120 X 2 = 240CM D= A2/3 = 240/3 = 80CM d= D/3 = 80/3 = 27CM = 30CM CALCULO BASE EXCENTRICA CALCULO BASE EXCENTRICA 5.DISEÑODEMATERIALIDAD a2=240cm a1=120cm D=80cm 120cm d=30cm N= 30000KG AB= 11XN/T = 1,1 X 30000KG/2KG/CM2 = 16500KG CM2 A1 = A2 = RAIZ AB/2 = 16500CM2/2 = 128CM – 130CM x 130cm D= A2/3 = 130/3 = 43CM – 50CM d= D/3 = 50/3 = 17CM = 20CM a1=130cm a2=130cm D=20cm 130cm D=50cm
  • 98.
  • 99.
    5.DISEÑODEMATERIALIDAD ESTRUCTURA SOBRE PLANTABAJA C02 IPB 300 C03 IPB 300 C04 IPB 300 C05 IPB 300 C06 IPB 300 C07 IPB 300 C08 IPB 300 C09 IPB 300 C010 IPB 300 C012 IPB 300 C011 IPB 300 V01 IPB 360 V02 IPB 360 V03 IPB 360 V04 IPB 360 V06 IPB 360 V07 IPB 360 V08 IPB 360 V09 IPB 360 V010IPB360V011IPB360V012IPB360 V013IPB260 V05 IPB 260 C01 IPB 300 V014IPB260 V015IPB260 V016IPB260 V017IPB360 V018IPB360 V019IPB360 V020IPB260 V021IPB260 V022IPB260 V023IPB260 V024IPB260 V025IPB260 V026IPB360 V027IPB360 V028IPB360 L 01 L 02 L 03 L 05 L 04 L 06 L 07 L 08 L 09 L010 L011 L012 L013 L014 L015 V01
  • 100.
    5.DISEÑODEMATERIALIDAD ESTRUCTURA SOBRE PRIMERPISO C102 IPB 300 C103 IPB 300 C104 IPB 300 C105 IPB 300 C106 IPB 300 C107 IPB 300 C108 IPB 300 C109 IPB 300 C110 IPB 300 C111 IPB 300 C101 IPB 300 L 101 L102 L103 L105 L104 L106 L107 L108 L109 L110 L111 L112 L113 L114 L115 V101 IPB 360 V102 IPB 360 V103 IPB 360 V104 IPB 360 V106 IPB 360 V107 IPB 360 V108 IPB 360 V109 IPB 360 V105 IPB 260 V110IPB360V111IPB360V112IPB360 V113IPB260 V114IPB260 V115IPB260 V116IPB260 V017IPB360 V118IPB360 V119IPB360 V120IPB260 V121IPB260 V122IPB260 V123IPB260 V124IPB260 V125IPB260 V126IPB360 V127IPB360 V128IPB360 C112 IPB 300 V02
  • 101.
    5.DISEÑODEMATERIALIDAD ESTRUCTURA SOBRE SEGUNDOPISO C202 IPB 300 C203 IPB 300 C204 IPB 300 C205 IPB 300 C206 IPB 300 C207 IPB 300 C208 IPB 300 C209 IPB 300 C210 IPB 300 C211 IPB 300 C201 IPB 300 L201 L202 L203 L205 L204 L206 L207 L208 L209 L210 L211 L212 L213 L214 L215 V201 IPB 360 V202 IPB 360 V203 IPB 360 V204 IPB 360 V206 IPB 360 V207 IPB 360 V208 IPB 360 V209 IPB 360 V105 IPB 260 V210IPB360V211IPB360V212IPB360 V213IPB260 V214IPB260 V215IPB260 V216IPB260 V217IPB360 V218IPB360 V219IPB360 V220IPB260 V221IPB260 V222IPB260 V223IPB260 V224IPB260 V225IPB260 V226IPB360 V227IPB360 V228IPB360 C212 IPB 300 V03
  • 102.
    5.DISEÑODEMATERIALIDAD ESTRUCTURA SOBRE TERCERPISO C302 IPB 300 C304 IPB 300 C305 IPB 300 C307 IPB 300 C308 IPB 300 C310 IPB 300 C311 IPB 300 C301 IPB 300 V301 IPB 360 V303 IPB 360 V306 IPB 360 V308 IPB 360 V305 IPB 260 V310IPB360V311IPB360V312IPB360 V313IPB260 V314IPB260 V315IPB260 V316IPB260 V317IPB360 V318IPB360 V319IPB360
  • 103.
    +0.00 FICHAJE PERSONAL SALA DE MAQUINAS 1°PISO 1° SS OFICINA DE COMUNICACION ADMINISTRACION TESORERIA EXPO PINTURA EXPO DIBUJO +0.00 NUCLEO PRINCIPAL ALUMNOS VISITANTES SHOP BARRA COCINA HALL/INFORMES ASCENSOR EXISTENTE TANQUE 2000L Tanque de bombeo CAP: 2000 lts 1TI 1CV Ø25 mm 1VL 5.DISEÑODEMATERIALIDAD INSTALACIONESSANITARIAS AGUAFRIA/CALIENTE INSTALACIONES SANITARIAS PLANTA BAJA
  • 104.
    HOGARALEÑA PISO 1 CASA DELDEAN ESPACIO COMUN AREA DE PREPARADO Y LAVADO +5.00 DIRECTOR SECRETARIA AULA PRACTICA ZONADEGUARDADO AULA PRACTICA SALA DE PROFESORES DEPOSITO DIBUJO AULA DE PROGRAMACION PROFESORES COCINA ARCO PISO 1 AULAS PRACTICAS DIBUJO 1° PISO 2° PISO ASCENSOR EXISTENTE 5.DISEÑODEMATERIALIDAD INSTALACIONES SANITARIAS PRIMER NIVEL INSTALACIONESSANITARIAS AGUAFRIA/CALIENTE
  • 105.
    +9.00 AULA PRACTICA ZONADEGUARDADO AULA PRACTICA ESPACIOCOMUN DEPOSITO PINTURA/GRABADO TALLER ESPECIALTALLER ESPECIAL PISO 2 CASA DEL DEAN AULA PINTURA DIGITAL AULA GRABADO PROGRAMACION PISO 2 AULAS PRACTICAS PINTURA PANTALLA PRENSA ASCENSOR EXISTENTE 5.DISEÑODEMATERIALIDAD INSTALACIONES SANITARIAS SEGUNDO NIVEL INSTALACIONESSANITARIAS AGUAFRIA/CALIENTE
  • 106.
    ESPACIO COMUN PISO 3 MIRADOR360 Y TERRAZA 13 14 15 16 17 19 22 21 22 12 18 23 V.L. V.E. LL.P. LL.P. V.L. V.E. CALDERA ELECTRICA 5.DISEÑODEMATERIALIDAD INSTALACIONES SANITARIAS TERCER NIVEL INSTALACIONESSANITARIAS AGUAFRIA/CALIENTE
  • 107.
    +0.00 FICHAJE PERSONAL SALA DE MAQUINAS 1°PISO 1° SS OFICINA DE COMUNICACION ADMINISTRACION TESORERIA EXPO PINTURA EXPO DIBUJO +0.00 NUCLEO PRINCIPAL ALUMNOS VISITANTES SHOP BARRA COCINA HALL/INFORMES ASCENSOR EXISTENTE ACOMETIDA 5.DISEÑODEMATERIALIDAD INSTALACIONES CLOACALES PLANTA BAJA INSTALACIONESSANITARIAS CLOACALES
  • 108.
    HOGARALEÑA PISO 1 CASA DELDEAN ESPACIO COMUN AREA DE PREPARADO Y LAVADO +5.00 DIRECTOR SECRETARIA AULA PRACTICA ZONADEGUARDADO AULA PRACTICA SALA DE PROFESORES DEPOSITO DIBUJO AULA DE PROGRAMACION PROFESORES COCINA ARCO PISO 1 AULAS PRACTICAS DIBUJO 1° PISO 2° PISO ASCENSOR EXISTENTE 5.DISEÑODEMATERIALIDAD INSTALACIONES CLOACALES PRIMER NIVEL INSTALACIONESSANITARIAS CLOACALES
  • 109.
    +9.00 AULA PRACTICA ZONADEGUARDADO AULA PRACTICA ESPACIOCOMUN DEPOSITO PINTURA/GRABADO TALLER ESPECIALTALLER ESPECIAL PISO 2 CASA DEL DEAN AULA PINTURA DIGITAL AULA GRABADO PROGRAMACION PISO 2 AULAS PRACTICAS PINTURA PANTALLA PRENSA ASCENSOR EXISTENTE 5.DISEÑODEMATERIALIDAD INSTALACIONES CLOACALES SEGUNDO NIVEL INSTALACIONESSANITARIAS CLOACALES
  • 110.
    5.DISEÑODEMATERIALIDAD INSTALACIONESSANITARIAS PLUVIALES INSTALACIONES PLUVIALES PLANTADE ACCESOS +0.00 FICHAJE PERSONAL SALA DE MAQUINAS 1° PISO 1° SS OFICINA DE COMUNICACION ADMINISTRACION TESORERIA EXPO PINTURA EXPO DIBUJO +0.00 NUCLEO PRINCIPAL ALUMNOS VISITANTES SHOP BARRA COCINA HALL/INFORMES ASCENSOR EXISTENTE
  • 111.
  • 112.
    +0.00 FICHAJE PERSONAL SALA DE MAQUINAS 1°PISO 1° SS OFICINA DE COMUNICACION ADMINISTRACION TESORERIA EXPO PINTURA EXPO DIBUJO +0.00 NUCLEO PRINCIPAL ALUMNOS VISITANTES SHOP BARRA COCINA HALL/INFORMES ASCENSOR EXISTENTE REDEXTERNABAJATENSION2x380v/220v INSTALACIONES ELECTRICAS PLANTA BAJA 5.DISEÑODEMATERIALIDAD INSTALACIONESELECTRICAS
  • 113.
    HOGARALEÑA PISO 1 CASA DELDEAN ESPACIO COMUN AREA DE PREPARADO Y LAVADO +5.00 DIRECTOR SECRETARIA AULA PRACTICA ZONADEGUARDADO AULA PRACTICA SALA DE PROFESORES DEPOSITO DIBUJO AULA DE PROGRAMACION PROFESORES COCINA ARCO PISO 1 AULAS PRACTICAS DIBUJO 1° PISO 2° PISO ASCENSOR EXISTENTE INSTALACIONES ELECTRICAS PRIMER NIVEL 5.DISEÑODEMATERIALIDAD INSTALACIONESELECTRICAS
  • 114.
    +9.00 AULA PRACTICA ZONADEGUARDADO AULA PRACTICA ESPACIOCOMUN DEPOSITO PINTURA/GRABADO TALLER ESPECIALTALLER ESPECIAL PISO 2 CASA DEL DEAN AULA PINTURA DIGITAL AULA GRABADO PROGRAMACION PISO 2 AULAS PRACTICAS PINTURA PANTALLA PRENSA ASCENSOR EXISTENTE INSTALACIONES ELECTRICAS SEGUNDO NIVEL 5.DISEÑODEMATERIALIDAD INSTALACIONESELECTRICAS
  • 115.
    ESPACIO COMUN PISO 3 MIRADOR360 Y TERRAZA 13 14 15 16 17 19 22 21 22 12 18 23 CALDERA INSTALACIONES ELECTRICAS TERCER NIVEL 5.DISEÑODEMATERIALIDAD INSTALACIONESELECTRICAS
  • 116.
    INSTALACIONES SANITARIAS El suministrode agua a los edificios y a las viviendas se realiza a través de redes que tienensu origen en capacitaciones de aguaque se encuentranen la naturaleza. Para asegurar que el aguase sirve en condiciones perfectas para la salud se debetratar en plantas especializadas, desde dondese canalizahacia los puntos de consumo. 18880LTS 6900LTS La ubicación y distribucion de las instalaciones en el edificio, se resuelven mediante plenos anexo a la bateria de sanitarios y bajo los forjados intermedios proyectados en losa de chapa colaborante que se utilizaron para la intervencion. TANQUE DE RESERVA 25780LTS CALCULO DE LA CAPACIDAD DE RESERVA DE AGUA PERSONAS INODORO LAVABO ORINAL 10 A 20 HOMBRES 1 2 1 10 A 20 MUJERES 1 2 DIFERENCIA POR 70 PERSONAS 4 8 1 TOTAL 6 12 2 TOTAL NECESARIO SEGUN LEY SEG. E HIG. 8 11 2 TOTAL ADOPTADO SEGUN PROYECTO 15 21 3 CALCULO DE LA RESERVA DE AGUA FRIA ADICIONAL A LOS 600L/DIA INODORO LTS/DIA 250 15 3750 LAVABO LTS/DIA 100 21 2100 MINGITORIO LTS/DIA 150 3 450 TOTAL RESERVA 6900 RESERVA DE INCENDIO 1888 10 18880 TOTAL RESERVA SANITARIA 6900 TOTAL TANQUE DE RESERVA 25780 CISTERNA EN PLANTA BAJA 1/3 RESERVA DE AGUA EN AZOTEA 2/3 RED HIDRANTES 1 MANGUERA ABARQUE RADIO COBERTURA 30 METROS EXTINTORES POLVO QUIMICO CO2 TABLEROS ELECTRICOS MIN C/200M2 EXTINTORES POLVO TRICLASE TABLEROS ELECTRICOS MIN C/200M2 CADA 40MTS CAUDAL 6M3/H A 45 MCA 5.DISEÑODEMATERIALIDAD
  • 117.
    PROTECCIÓN CONTRA INCENDIOS (SegúnCódigo) 01. Vista de inspección para la instalación de Protección contra incendios 02. Prueba de funcionamiento de la instalación según Reglamento de Instalaciones de protección contra incendios, R.D. 1942/1993 de 5 de noviembre, y la norma básica de la edificación, Condiciones de Protección contra incendios DB SI. ü DETECTORES ü PULSADORES ü SIRENAS ü EXTINTORES ü TABLERO CON TERMICAS Y DISYUNTOR ü LUZ DE EMERGENCIA Y SEÑALECTICA LED SEGURIDAD EDILICIA RED HIDRANTES / 1 MANGUERA ABARCA RADIO DE COBERTURA DE 30M EXTINTORES POLVO QUIMICO CO2 TABLEROS ELECTRICOS / MIN C/200M EXTINTORES POLVO TRICLASE TABLEROS ELECTRICOS / MIN C/200M DETALLE HIDRANTES INCENDIO 5.DISEÑODEMATERIALIDAD
  • 118.
    +0.35 FICHAJE PERSONAL SALA DE MAQUINAS 1°PISO 1° SS OFICINA DE COMUNICACION ADMINISTRACION TESORERIA EXPO PINTURA EXPO DIBUJO +0.35 NUCLEO PRINCIPAL ALUMNOS VISITANTES SHOP BARRA COCINA ASCENSOR EXISTENTE PATIO COMPARTIDO 7.66 8.12 8.08 8.00 2.32 4.95 2.04 8.54 4.07 6.88 3.31 15.58 7.32 8.07 3.09 4.11 2.42 3.30 9.30 3.77 10.25 8.00 50.81 4.68 8.00 17.79 6.08 14.00 3.60 6.70 4.04 4.45 1.80 HALL DE ACCESO CAFETERIA SANITARIOS 50.67 EVACUACION PLANTA BAJA 5.DISEÑODEMATERIALIDAD SENTIDODEEVACUACION CARTEL SALIDA SENTIDO EVACUACION
  • 119.
    5.DISEÑODEMATERIALIDAD HIDRANTES +0.35 FICHAJE PERSONAL SALA DE MAQUINAS 1°PISO 1° SS OFICINA DE COMUNICACION ADMINISTRACION TESORERIA EXPO PINTURA EXPO DIBUJO +0.35 NUCLEO PRINCIPAL ALUMNOS VISITANTES SHOP BARRA COCINA ASCENSOR EXISTENTE PATIO COMPARTIDO 7.66 8.12 8.08 8.00 2.32 4.95 2.04 8.54 4.07 6.88 3.31 15.58 7.32 8.07 3.09 4.11 2.42 3.30 9.30 3.77 10.25 8.00 50.81 4.68 8.00 17.79 6.08 14.00 3.60 6.70 4.04 4.45 1.80 HALL DE ACCESO CAFETERIA SANITARIOS 50.67 HOGARALEÑA ESPACIO COMUN AREA DE PREPARADO Y LAVADO +5.00 DIRECTOR SECRETARIA AULA TALLER ZONADEGUARDADO AULA TALLER SALA DE PROFESORES DEPOSITO DIBUJO AULA DE PROGRAMACION PROFESORES COCINA ARCO 1° PISO 2° PISO ASCENSOR EXISTENTE AREA DE PREPARADO Y LAVADO +5.00 AULA TEORICA ESPACIO COMUN SALA TECNICA SANITARIOS VACIO SOBRE HALL VACIO 3.873.435.24 4.86 3.13 4.31 7.44 7.91 8.26 7.87 6.15 5.20 7.66 8.12 8.08 1.60 3.09 7.09 8.07 8.0010.26 8.544.61 1.90 2.04 2.101.002.09 6.23 16.76 8.30 16.26 8.00 PLANTA BAJA PRIMER NIVEL
  • 120.
    SALA DE TANQUES 8.0010.26 20.04 4.005.10 ESPACIOCOMUN +13.00 VACIO SOBRE HALL ASCENSORES +13.00 ESPACIO COMUN ESPACIO COMUN 5.DISEÑODEMATERIALIDAD HIDRANTES AZOTEA +9.00 AULA TALLER ZONADEGUARDADO AULA TALLER ESPACIO COMUN DEPOSITO PINTURA/GRABADO TALLER ESPECIALTALLER ESPECIAL AULA PINTURA DIGITAL AULA GRABADO PROGRAMACION PANTALLA PRENSA ASCENSOR EXISTENTE +9.00 +9.00 7.66 8.12 8.08 8.07 8.0010.26 VACIO SOBRE HALL ESPACIO COMUN 8.544.61 14.00 8.00 9.19 41.94 27.76 16.26 5.956.55 6.88 3.72 3.72 7.44 1.90 2.04 2.101.002.09 SALA TECNICA 8.00 3.09 SEGUNDO NIVEL
  • 121.
    Rehabilitar Como la propiapalabraindica"rehabilitar"significa volver a poner en uso características de unaedificación en nuestro caso, que por el paso del tiempo hansufrido un deterioro o se han quedado desfasadas en su operatividad, de forma que en la actualidadno presentan unas características no presentanunas características mínimas de habitabilidady decoro. La ciudad de Plasencia cuentacon un rico patrimonio históricoreconocido con la categoría de Conjunto Histórico. Este reconocimiento obliga a una protección de las características principales del urbanismo histórico de la ciudad. Son actuaciones protegidas en materiade rehabilitaciónde edificio aquellas que tengan por objeto: Estabilidad y seguridadestructural y constructiva. Estanqueidadfrente a la lluvia,evacuación del aguade lluvia y supresiónde humedades. Iluminación y ventilaciónde espacios. Condiciones de salubridad. Sistemas de ahorro energético. Adecuaciónde las redes generales de agua, gas, electricidad,telefoníay saneamiento. Accesibilidad y supresiónde las barreras arquitectónicas. Instalación, renovacióny mejora de ascensores y sus condiciones de seguridad. La remodelación del número y/o superficie de las viviendas de un edificio, sin que ningunaviviendasupere, en caso de ampliación,120 m2 de superficie útil. Son actuaciones protegidas en materiade rehabilitaciónde viviendas aquéllas que tenganpor objeto: Redistribucióninterior. Iluminación, extracción de humos y ventilación. Instalación de suministro de agua, gas, electricidady otros suministros energéticos. Servicios sanitarios, cocina, saneamientoy fontanería. Accesibilidad y supresiónde barreras arquitectónicas. Sistema de ahorro energético. Aislamiento térmico y acústico. http://www.plasencia.es/web/ NORMATIVA
  • 122.
    LEY 2/1999, DE29 DE MARZO, DE PATRIMONIO HISTÓRICO Y CULTURAL DE EXTREMADURA La conservación, enriquecimiento y difusión del Patrimonio Histórico constituye, en un Estado social y democrático de Derecho, una obligación de los poderes públicos que aparece jurídicamente consagrada en la Constitución Española de 1978, en su artículo 46. En consonancia con su espíritu, el legado de bienes materiales e inmateriales que constituye este Patrimonio, ha de contribuir a que cada comunidad comprenda la realidad histórica y cultural sobrela que se asienta, descubriendo y perfilando su identidad colectiva. Por ello, es necesario articular los objetivos de conservación con el acceso de los ciudadanos a su valoración y disfrute cultural. Artículo 33 Criteriosde intervenciónen inmuebles 1. Cualquier intervención en un inmueble declarado Bien de Interés Cultural habrá de ir encaminada a su protección, conservación y mejora, de acuerdo con los siguientes criterios: • a) Se respetarán las características esenciales del inmueble, sin perjuicio de que pueda autorizarse el uso de elementos, técnicas y materiales actuales para la mejor adaptación del bien a su uso y para valorar determinados elementos o épocas. • b) Las características volumétricas y espaciales definidoras del inmueble, así como las aportaciones de las distintas épocas deberán ser respetadas. En caso de que se autorice alguna supresión, ésta quedará debidamente motivada y documentada. • c) Los intentos de reconstrucción únicamente se autorizarán en los casos en los que la existencia de suficientes elementos originales o el conocimiento documental suficiente de lo que se haya perdido lo permitan. En todo caso, tanto la documentación previa del estado original de losrestos, como el tipo de reconstrucción y los materiales empleados deberá permitir la identificación de la intervención y su reversibilidad. • d) No podrán realizarse adiciones miméticas que falseen su autenticidad histórica. • e) Cuando sea indispensable para la estabilidad y el mantenimiento del inmueble, siempre que sean visibles, la adición de materiales habrá de ser reconocible. • f) Se impedirán las acciones agresivas en las intervenciones, salvo que estén motivadas técnicamente y se consideren imprescindibles. NORMATIVA
  • 123.
    Artículo 38 Entornode los monumentos 1. El entorno de los monumentos estará constituido por los inmuebles y espacios colindantes inmediatos; se entiende como entorno de un bien cultural inmueble el espacio circundante que puede incluir : inmuebles, terrenos edificables, suelo, subsuelo, trama urbana y rural, espacios libres y estructuras significativas que permitan su percepción y compresión cultural y, en casos excepcionales, por los no colindantes y alejados, siempre que una alteración de los mismos pueda afectar a los valores propios del bien de que se trate, su contemplación, apreciación o estudio. A tal fin se concretarán exactamente los términos respecto al entorno del monumento a proteger. La existencia del entorno realza el bien y lo hace merecedor de una protección singular cuyo alcance y régimen específico se expresará en la resolución correspondiente de declaración de Bien de Interés Cultural o de inclusión en el Inventario del Patrimonio Histórico y Cultural de Extremadura. El entorno será delimitado en la correspondiente resolución y gozará de la misma protección que el bien inmueble de que se trate. 2. El volumen, tipología, morfología o cromatismo de las intervenciones en el entono de los monumentos no pueden alterar el carácter arquitectónico y paisajístico de la zona, ni perturbar la contemplación del bien. 3. Podrán expropiarse y proceder a su derribo, los inmuebles y elementos que impidan o perturben la contemplación de los monumentos o den lugar a riesgos para los mismos. 4. Para cualquier intervención que pretenda realizarse, la existencia de una figura del planeamiento que afecte al entorno de un monumento no podrá excusar el informe preceptivo y vinculante de la Consejería de Cultura y Patrimonio. 5. En el caso del entorno de un monumento declarado de Interés Cultural, integrado en un Conjunto Histórico que cuente con un Plan Especial de Protección, se regirá por lo establecido en el artículo 42.2 dela presente Ley. Artículo 69 Acceso La Junta de Extremadura, a través de la Consejería de Cultura y Patrimonio, garantizará el acceso a los museos y exposiciones museográficas permanentes, así como el estudio de las colecciones que los integran, sin perjuicio de las restricciones que por razón de conservación de los bienes o de la función propia del centro se pudieran establecer reglamentariamente. En el caso de museos o exposiciones museográficas permanentes, de su titularidad o gestión, la Junta de Extremadura regulará la entrada gratuita a personas o colectivos con dificultades económicas. NORMATIVA http://www.plasencia.es/web/
  • 124.
  • 125.
    CON LA INTENCIONDE SUMARNUEVOS ESPACIOS VERDES Y EL CONTROL TERMICO SE OPTO POR LA UTILIZACION DE UNA CUBIERTA VERDE EN PARTE DE LA TERRAZA ACCESIBLE. SERVICIOS MURO VERDE DETALLE CUBIERTA VERDE LUZ Y VENTILACION NATURAL A TRAVES DE LUCERNARIO CONTROL ACUSTICO SOBRE PROPIEDADES VECINAS Planta de techos sector lucernario 6.SUSTENTABILIDAD ASOLEAMIENTO
  • 126.
    6.SUSTENTABILIDAD Para el nuevofrente del edificio, opté por la elección de parasoles de acero corten. Este material permite proteger y revestir fachadas, tiene la particularidad de poder ser perforado lo que proporciona una excelente flexibidad al producto. Los paneles tienen posibilidad de apertura al exterior permitiendo el ingreso y el control de la luz solar. Ingreso de la luz solar y ventilación del ambiente. FILTRO SOLAR Composición del sistema: Panel de Acero Corten 1.00 lisos y perforados. Montantes horizontales: Perfil C CONTROL SOLAR PARASOLES
  • 127.
    6.SUSTENTABILIDAD PARA LA FACHADAINTERNA DEL PROYECTO SE OPTO POR UN SISTEMA DE TENSORES FIJADOS A LA LOSA POR LOS CUALES PLANTAS UBICADAS EN EL SECTOR DE LA TERRAZA BAJARAN CREANDO DIFERENTES SITUACIONES A MEDIDA QUE CRECEN, GENERANDO UNA REALCION INTERIOR-EXTERIOR CON LOS TALLERES DE DIBUJO Y PINTURA UBICADOS EN ESE SECTOR. FACHADA TALLERES
  • 129.
    ENTRADA SISTEMA RIEGO Y ACABADO SUPERIOR ENTRADASISTEMA RIEGO EN MODULO CUBETA DRENAJE + ENTRADA SISTEMA DE RIEGO Para el tratamiento en medianeras se utilizaron panales verdes para generar lo que se llama “jardín vertical”. Se plantearon como solución acústica a las propiedades vecinas, ya que en dichos sectores se desarrollarán actividades al aire libre. Estos paneles están diseñados especialmente para que crezcan diferentes tipos de plantas. Son regados de forma constante mediante un sistema de riego, y las plantas son seleccionadas especialmente para que puedan crecer sin suelo y en superficies verticales. 6.SUSTENTABILIDAD TRATAMIENTO DE MEDIANERAS
  • 130.
  • 131.
    7.COMPROMISOCONELENTORNO La Plaza dela catedral se sitúa delante de la catedral nueva y tiene tres plataformas que se conectan entre sí mediante escaleras, siendo totalmente incaccesible para los turistas y los propios ciudadanos. + R A M P A S El Ayuntamiento de Plasencia, a través de la Concejalia de Accesibilidad, trabaja en la eliminación de puntos negros en la ciudad en el ámbito de las barreras arquitectónicas para personas con discapacidad o diversidad funcional. La mayor parte de las barreras eliminadas se refieren a pasos de peatones sin rebajes o con rebajes insuficientes al ser demasiado elevados; objetos y elementos que obstaculizan los pasos de peatones y desniveles sin protección. Este es un tema que preocupa al Equipo de Gobierno, por lo que se están realizando nuevos estudios para seguir eliminando barreras arquitectónicas en nuestra ciudad. ELIMINACIONDEBARRERASARQUITECTIONICAS ACCESIBILIDAD SEGÚN EL AYUNTAMIENTO DE PLASENCIA TURISMO ACCESIBLE El objetivo del convenio es la elaboración de un plano-guía para la oficina de turismo del Ayuntamiento con información de recorridos urbanos accesibles (itinerarios) y nivel de accesibilidad de edificios de interés histórico-artístico ubicados en el centro histórico de la ciudad.
  • 132.
  • 133.
    CIRCUITO EXPO ARTE PB 1º 3º 2º 1490M2 MEDIANTELA SECTORIZACION DE LA PLANTA BAJA Y LA UTILIZACION DE LA NUEVA INTERVENCION, SE PODRA OBTENER UN ESPACIO DE CASI 1500M2 PARA FUTURAS MUESTRAS DE ARTE., CONTANDO, CON CIRCULACIONES Y SANITARIOS DENTRO DEL CIRCUITO, PUDIENDO FUNCIONAR FUERA DEL HORARIO DE LA ESCUELA 7.COMPROMISOCONELENTORNO
  • 135.
    GALERIA A CIELOABIERTO RETIRANDO LAS REJAS PEATONALES Y APROVECHANDO EL DESNIVEL ENTRE EL INTERIOR Y EL EXTERIOR SE GENERO SOBRE LA PLAZA UNA EXPO A CIELO ABIERTO, MOSTRANDO A LOS VISITANTES MATERIAL ARTISTICO DE LA ESCUELA E INVITANDO A UN RECORRIDO TANTO INTERIOR COMO EXTERIOR DE LA ESCUELA. 7.COMPROMISOCONELENTORNO
  • 136.
    7.COMPROMISOCONELENTORNO SIGLO XII-XV SIGLOXVI XVII SE PARALIZA LA OBRA SIGLO XVII SIGLO XXI LA PLAZA COMO TESTIGO DE LAS DIFERENTES INTERVENCIONES A LO LARGO DEL TIEMPO, DESDE EL SIGLO XII HASTA LA ACTUALIDAD EL ENTORNO FUE SUMANDO NUEVOS EDIFICIOS, HACIENDO DE ESTE RINCON UNO DE LOS MAS LINDOS Y DISTINGUIDO DE PLASENCIA. FUSION FUSION
  • 137.
  • 138.
    8.INNOVACION PINTURA DIGITAL Se desarrollarántalleres de Arte Digital y Diseño. El programa de dichos talleres, combina el riguroso enfoque académico del programa del siglo XIX con herramientas digitales actuales y emergentes. Es una especialización seguida de un programa opcional de residencia artística. En el programa de residencia, los estudiantes desarrollan habilidades de observacióny diseño, trabajando en el desarrollo de una cartera de contactos y relaciones profesionales. Los proyectos cubren una amplia gama de técnicas, incluyendo lápiz, carbón y pintura al óleo en la parte tradicional, y Photoshop y ZBrush en el lado digital. El objetivo es acercar cada artista a la libertad de expresión. La intención no es la de formar a los alumnos para convertirlos en clones dispensables, sino para formar una comunidad de individuos altamente calificados y sensibles con una fuerte voz personal. Creemos que dentro de los campos establecidos de la producción digital, existe una demanda especializada de artistas en sintonía con la sensibilidad y el refinamiento proporcionados por la formación clásica. + SUMAR PROGRAMA
  • 139.
  • 140.
  • 141.
  • 142.
  • 143.