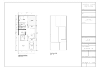
This document appears to be a floor plan for a home that includes a bedroom, guest room, porch, porch, bedroom, bedroom, bathroom, bathroom, and labels for the scale, top view, scale, carport, yard, and yard.