Embed presentation


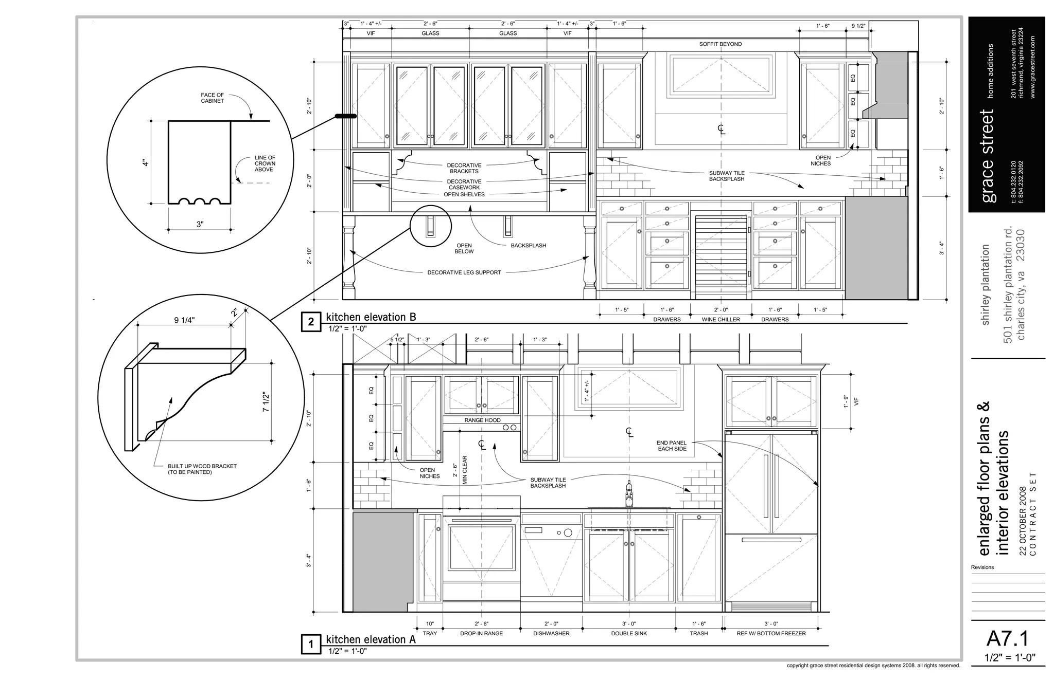
This document contains elevation drawings for a kitchen design. It includes dimensions and details for cabinetry, countertops, appliances, and other features. The drawings show front and side views of the kitchen layout and placement of sinks, ranges, dishwashers, and other elements. Dimensions are provided for clearances and spaces between components.
