Alex Romanos
amromanos@gmail.com - 513 . 375 . 0016
Alex Romanos
amromanos@gmail.com - 513 . 375 . 0016   Education                                                     Skills
                                           University of Cincinnati                                       Drafting - AutoCAD 2010/11
                                           B.S., Interior Design, Class of 2013.                          Modeling - Revit 2009/10/11, SketchUp 7/8
                                           Participating in the Professional Practice Co-op               Graphic - Photoshop, Illustrator, InDesign
                                           Program, alternating quarters of college study                                  CS3/4/5
                                           with quarters of work in the field of Interior                 Office - Microsoft Word, PowerPoint, Excel, Outlook
                                           Design.

                                           Walnut Hills High School, Cincinnati, Ohio
                                           Diploma with Honors 2008
                                                                                                       Honors
                                           Advanced Placement Program                                     Alpha Rho Chi, Professional Fraternity for Architecture
                                           Gleam student literary/art magazine, Senior                    and the                  Allied Arts: Scribe, 2011
                                           Editor 2007-08, Junior Editor 2006-07                          NationalConvention Secretary
                                                                                                          Phi Delta Theta International Fraternity: Warden,
                                         Experience                                                       Recruitment              Chair, Scholarship Chair,Secretary
                                                                                                          Eagle Scout with Silver Palm, 2005
                                            Synthesis Architecture + Planning,                            John Suhar|Architect Scholarship Award, 2008
                                            Cincinnati, Ohio                                              Cincinnati Museum Center-Youth Program Outstanding
                                            Spring 2011                                                           Leadership Award, 2005
                                            Co-op - Sole interior designer for Louisville, KY, Greek
                                            Orthodox church project; worked directly under project
                                            architect. Conceptualized building architecture and
                                            interior finishes. Researched Greek Orthodox design
                                            traditions and developed sympathetic contemporary
                                            material choices, sourced fixtures and finishes within
                                            tight budget constraints. Presented design strategy and
                                            material choices at client board meeting. Liaised with
                                            local sales reps and introduced firm to new industry
                                            relationships.

                                            BHDP Architecture, Cincinnati, Ohio
                                            Spring/Fall 2010
                                            Co-op - Involved in schematic and design development
                                            phases of large and small corporate workplace projects.
                                            Digital modeling, sourcing, construction documents and
                                            client presentations

                                            Cincinnati Museum Center, Cincinnati History
                                            Museum
                                            2003-2008
                                            Floor Interpreter - Researched and developed characters
                                            in 18th and 19th century Cincinnati. Trained in 19th
                                            century letter press, self-taught and subsequently
                                            developed training program for 18th century finger
                                            weaving.
AREA OF CONCENTRATION, AP STUDIO ART - Cincinnati, OH

Selection of acryilc paintings from Senior year of highscool. Works explored using color as line to creat abstract
floral patterns - 2008
The Cave, acrylic on canvas - 2008
(Top Right) Brittle star in a sea sponge, Cozumel   (Top Right) Tree covered in ice after winter
Photography            Mexico, underwater photo at 40 feet below surface   storm. Cincinnati, OH
                       (Top Left) Holly tree covered in ice close up,      (Bottom Right) Spider crab in coral reef,
Selection of 2008/09   Cincinnati, OH                                      Cozumel, Mexico
Sea annenemie, Cozumel, Mexico
Sketches and renderings from the Universit of Cincinnati and Columbus, IN
(Top Right) Tangeman University Center, Cincinnati, OH - 2008
(Bottom Right) North Christian Church, Columbus, IN - 2009
(Left) First Baptist Church, Columbus, IN - 2009

Charcoal, pen
Perspective of park from
downtown Cincinnati, OH

Marker - 2008
LITERARY ON LUDLOW - Cincinnati, OH

Designed an infill structure in the Ludlow gaslight disctrict of Clifton to house a literary arts center,
allowing for stacks, reading areas and including living quarters and lecture space for rotating guest
writers taking into account site and passive environmental strategies. Form was inspired by the
prarie style- 2009
Concept sketches   Street view of Literary Center
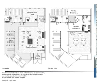
Private
                                           Administration                                    Entrance
                                              Office

                                                                 Reading
                                                                  Nook


                                                                                                 Writer’s
                                                                                                Residence

                                                                                             Lecture
                                                                                              Room


            Stacks



                                          Reading Room
                                                              Reception


                                                           Public
                                                          Etrance




First Floor                                                                   Second Floor

First floor contains the library stacks and ample space for leisure reading
Second floor has living quarters for guest writer with private entrance
and meeting space that can accommodate
lecture series as well as meet and greet

Floor plans - Revit 2009
View from the Reading Room
View from the Writer’s Loft
BHDP ARCHITECTURE - Cincinnati, OH

Participating with the workplace design team at BHDP for the Fall and Spring terms of the 2010 -11
academic year, developing floor plans for corporate workspaces, drafting in AutoCAD and Revit, building
presentations in InDesign and PowerPoint, and working on materials and finish boards
Open workstations

                                                                             VP and Directors at corner
                                                                             workstations

                                                                             1:10 Huddle room ratio

                                                                             Fixed wall; huddle at window

                                                                             All other huddles in core

                                                                             Media:scape at either end

                                                                             Mobile white boards
                                                                             throughout

                                                                             (2) Digital white boards

                                                                             Grouped work settings

                                                                             Collaborative furniture
                                                                             throughout

                                                                             Back walls of acrylic partitions
                                                                             used as presentation walls




                                                 HUM 10
                           HUMANA                Innovations
                                                               Furniture Plan 1b          05/14/10       006

Presentation page for Humana - Lousiville, KY.

Presentation Layout - PowerPoint
Floor plan - AutoCAD, Revit
Original building design by Michael Graves
COAT                                                                                                                                                                                                                                                                                                                                                                                      COAT
                                      TREE                                                                                                                                                                                                                                                                                                                                                                                      TREE




                                                                                                                                                                                                                                                                                                                                                                       HERMAN MILLER

                                             1031                                                                                                                                                                                                                                                                                                                         CELESTE
                                                                                                                                                                                                                                                                                                                                                                                                                1002

                                                                                                                                                                                                                                                                                                                                                                             HERMAN MILLER
                                                                                                                                                                                                                                                                                                                                                                                CELESTE




                                                                                                                                                                                           1001
                    HARD WIRE                                                                                                                                                                                                                                                                                                                                                                                                                         HARD WIRE




                          HARD WIRE                                                                                                                                                                                                                                                                                                                                                                                                          HARD WIRE




                                                                                                   HERMAN MILLER
                                                                                                      CELESTE

                    HARD WIRE                                                                                                                                                                                                                                                                                                                                                                                                                        HARD WIRE


                                                                                                HERMAN MILLER
                                                                                                   CELESTE


                                                                                                                                                                                                                                                                                                                                                                                       HERMAN MILLER
                                                                                                                                                                                                                                                                                                                                                                                          CELESTE
                                                                                                   HERMAN MILLER
                                                                                                     CELESTE

    COAT                                                                                                                                                                                                                                                                                                                                                                               HERMAN MILLER                                                                          COAT
    TREE                                                                                                                                                                                                                                                                                                                                                                                  CELESTE                                                                             TREE
                                                                                                           HERMAN MILLER
                                                                                                              CELESTE




                                                                                                                      1034                               1035                                                                                                                                         1006
                                                                                                                                                                                                                                                                                                                                                                                                          HERMAN MILLER
                                                                                                                                                                            PHONE
                                                                                                                                                                                                                                                                                                                                                                                                             CELESTE

                                                                                                                                                                                                                                                                                     1005
                                                                                                                       HERMAN MILLER
                                                                                                                BOB       CELESTE
                                                                                                                                                                                                                                                                                                                                        PLUG-IN                                                                 HERMAN MILLER                                     HARD WIRE
                                                                                                                                                                                                                                                                                                                                                                                                                   CELESTE
                                                                                                                                                                                                             BOB



                                                                                  1033                                                                                                                                                                                                                                                                                      1007                       HERMAN MILLER
                                                  42x120 TOP
                                                                                                                                                                                                                                     1004                                                                                                                                                                 CELESTE


            1030
                                                                                                                                                                                                                                  BOB

                                                                                                                                                           101                                                                                                                                                                      101
                                                                                                                         ST-1                                                                                                                                                                            ST-2
                                                                                                                                                                                       1022


    COAT
    TREE
                                                                                                                                                                                                             1021                                                                                                                                                                                                                                                             COAT
                                                                                                                                                                                                                                                                                                                                                                                                                                                                              TREE




                                                                                                                                                                                                                            1015
                                                                                                                                                                                                                                                                                                                                                                                                                                                   HARD WIRE
                   HARD WIRE


                                                                            101                                                                                                                                                                                                                                                                                                        101
                                                                                                                             1023                                                                                                                                                                                                                           1013
                                                                                          1025          1024
                                                                                                                                                                                    ALLERMUIR
                                                                                                                                                                                     KOJAK
                                                                                                                                                                                                                                                                                                                              1014
                                                                                                                                                                            GROUPWORK
                                                                                                                                                                               CAFE


                                                                                                      1026                                                 101                                                      101                                                                       101                                            1012
                                                                                                                                                                                1020                                                                                      1016
                                                                                                                                                                                                                                                                                                                                                                                                                                                   HARD WIRE
                   HARD WIRE                                                                                                                                                GROUPWORK
                                                                                                                                                                              CAFE

                                                                                                                                                                                    ALLERMUIR
                                                                                                                                                                                     KOJAK




                                                      BOB
                                                                                                                                                                                                                                                                                              1017                             1011
                                                                                                                                                                                                                                                                                                                                                                                                          BOB

                                                                                                       1027
                                                                                                                                                         1019
                       1029                                                                                                                                                                                                                                                                                                                                                                                     KEILHAUER NET
                                                                                                                                                                                                                                                                                                                                                                                                                                            1009
                   COAT
                   TREE
                                                      KEILHAUER NET
                                                                                                                                                                                                                                                                                                                                                      1010                                                                                            COAT
                                                                                                                                                                                                                                                                                                                                                                                                                                                      TREE




                                                                                                                                                                                      ALLERMUIR A640                             ALLERMUIR KOJAK


                                                                                                                                                                                                                                    1018




                                                                                                                                                                                                                                             C4
                                                                                DIRECTION OF TILE
                                                                                                                                                                                                                                                                                                                                                                        DR2
                                                                                                                                                                                                                                                                                                                                                                                           2
                                                                                                                                                                                                                   CONFERENCE
                                                                                                                        0"




                                                                                                                                                                                                                                                                                                                                                  "




                                                                                                                                                                                                                          1001
                                                                                                                                                                                                                                                                                                                                             -0
                                                                                                                         -
                                                                                                                      7'




                                                                                                                                                                                                                                                                                                                                           7'




                                                                                                                                                                                                                                                                                                                                                         6"
                                                                                                                                                                                                                                                                                                                                                  R 9' -
                                                                                                                  R




                                                                                                                                                                                                                                                                                                                                          R




                                                                                                                         C3                                                                                                                                                                                                        C3


                    OPEN OFFICE                                                                                                                                       EQ.       8' - 0"          EQ.                                                     EQ.               8' - 0"    EQ.                                                                                                                          OPEN OFFICE
                                                                                                                                18' - 2 1/2"




                                                                                                                                                                                                                                                                                                              18' - 2 1/2"




                            1031                                                                                                                                                                                                                                                                                                                                                                                            1002
                                                                                                                                                                                           4"




                                                                                                                                                                                                                                                               4"




                                                                                                                                                                                    C4                                                                                       C4
                                                                           C1                                                                                                       C2                                                                                       C2                                                                                                                                                        C1
                                                                                                                                                           0"




                                                                                                                                                                                                                                                                                            R
                                                                                                                                                                                                                                                               4' - 10"




                                                                                                                                                                                                                                                                                                         C3
                                                                                                                                                                                                                                                                                              7'
                                                                                                                                                            -




                                                                                                                                                                                                                                                                          TYP.
                                                                                                                                                         7'




                                                                                                                              R 9' -
                                                                                                                                                                                                                                                                                                -0




                                                                                                    DR2                                        6"
                                                                                                                                                      R




                                                                                                                                                                                                                                                                                                  "




                                                                                                                                                                 C3                                                                                                                                                                                                    25
                                                                                                                                                                                                                                                                                                                                                                            '-
                                                                                                                                                                                                                                                                                                                                                      C4                         6"

                                                                                                                                                                                                                           C3
                                                                                                                                                                                                                                                                                                                                                                                 703
                                                                            703
                                                                                                                                                                                                                                                                                                                                                                                      4"
                                                                                                                                                                                                                                                                                                                                                                                      '-




                                                                                                                                                                                                 C2                                                      C2
                                                                                                                                                                                                                                                                                                                                                                                 14




                                                                           2                                                                                                                                                                  2                                               703     2
                                                                                                                                                           703                                                                                                                                                                                                                         2
                                                                                                                              2
                                                                                                                                                                                    C4                                                                                       C4             702
                                                                                                                                                                                                                                                                                                                                                                                                                                 L4
                                                                                                                                                                                                                                                                                                                                                                                                                                A009
                                                               701                 701                    701                                                                                                                                                                                                                                                    701
                                                                                                                                                                                                       DR1                                                                        CLOSET
  CONFERENCE                                                                      HUDDLE              HUDDLE                                   HUDDLE                                                                                              P6                                                     CONFERENCE                                               HUDDLE
                                                                                                                                                                                                                                                                                     1005
     1030                                    C1                                     1033                  1034                                      1035                                                                                                                                                                      1006                                  1007                                                                    C1

                                                                                   C3                       C3                                      C3                                                        GATHERING AREA                                                            RF1                                        C3                                  C3
            P2       P2         2                                                                                                                                     701
                                                                                                                                                                                                                          1004

                                                                                                                      STAIR 1                                               BREAK                                                                                                                   STAIR 2
                                                                                                                                                         101
                                                                                                                                                                            1022
                                                                                                                                                                                                                                        C5                                                                                          101
                                                                                                                                                                                                                                                                                                                                                                                                  2
                                                            2                                                          ST-1                                                                                                                                                                           ST-2
                                                                           P3                                                                                                                                                                                                                                                                                                          P3
                                                                                                                                                                                CT1
                                                                                                                                                                                                       CLOSET                              4' - 6"

                                                                                                                                                                                B2                       1021

                                                                                                                                                                                                                         CORRIDOR
                                                                                                                                          C3                                2                                               1015                     2                                              C3



                                                                     101                                                                                                                                                                                                                                                                                                                    101
                                                                                         1025        1024                1023                                                                                                                                                                                                                          1013
                                                         2                                                                                                                          B2                                                                                    B2                                                   1014
                                                                                                                                                                                    CT1                                                                                   CT1                                                           WOMEN'S                                                   2
                                                                                            MEN'S TOILET                                                                                                                                                                                                                                 TOILET
                                                                           P3                                                                                                                                                                                      ELEV.                                                                                                               P3
                    OPEN OFFICE                                                                       1026                                               101                COFFEE                                 101                                            LOBBY                       101                                           1012                                                                       OPEN OFFICE
                            1029                                                                                                                                              1020                                                                                        1016                                                                                                                                                   1009

                                                                                                                                                                            WC1
                               C1                                                                                                                                                                                                                                                                                                                                                                                                           C1

                                       DIRECTION OF TILE
                                                                                                                                                                                                                                                                                                                                                      701
                                                                                                                                                                                                                                                                                                                                   A/V
                                                                                                     COPY                                                                                                                                                                                                                      1011                    HUDDLE
                                                                                                                                           SERVICE ELEV.                                                      FP1                                                                             1017
                                                                                           C1          1027                                   LOBBY                                                                                                                                                                                RF1
                                                                                                                                                                                                                                                                                                                                                            1010
                                                                                                                                                                                                                                                                                                                             702
                                                                                                                                                     1019                                                                               GATHERING                                                                                                           C3
                                                                                                                                                                                                                          B2
                                                                                                                                                                                                                                          AREA
                                                                                                                                                                                                                          CT1                  1018




Furniture and Finish plans for Humana - Louisville, KY

Plans - AutoCAD, Revit by BHDP
Interior and furniture finish presentation board with SketchUp exports, Humana - Louisville, KY
Presentation Board - Multimedia, renderings and icongs done by BHDP
Photo - BHDP
PADI - Cincinnati, OH

Design the interior of the fifth floor of existing Cincinnati architecture for a branch office of a
national firm, including all new branding for the corporation at large
PADI - The Professional Association of Diving Instructors, is the world’s largest scuba certifying body,
expansion into the Midwest is set to accommodate the growth in freshwater quarry diving
Series of logo design iterations

Marker, Illustrator
PADI concept sketches
Sketches showing programming and circulation

Pentel sign pen, prisma color markers - 2010
Open floor plan allows for maximum day
lighting

Low height group workstations allow for
greater collaboration and community

Collaboration space curtained off for
innovative teaching techniques

Reclaimed and recycled materials for low
environmental impact

Floor Plan - Revit, Photoshop
Perspectives - Revit, Photoshop
View into the Reception
View of Workspace and Collaboration space
Durkan/NEWH Carpet Compitition

Contest to design a new carpet patern for Durkan in collaboration with NEWH. Inspiration from computer componants. Corridor patterns featured.

Hand sketches, Illustrator, Photoshop - 2010/11
LEH: underground, Eco-Resort Hospitality Studio- Leh, India

Deisng a low impact eco-resort in northern Inda near the Tibetan boarder. An eco-resort is a
vacation destination that focuses on low impact tourism and tries to give back to the community.
This resort was designed to be a net zero energy user and to fully process its own waste - 2010/11



                           leh, ladakh                                                               LEH: underground
program
                                                                                                                   1 - reception

                         8                                                                                         2- modular room
                                                                      5
                                                                                                                   3- dining/lounge

                                                                                                                   4 - meditation/yoga
                                                  3
                                                                                                                   5 - cleanse

                                                                                                                   6 - privies

                             4                                        6                                            7 - storage/mechanical

                                                      7                                                            8 - water treatment



                                                          1                         2




Floor plan is based off of Buddhist mandala        Communal drinning, yoga, and mediation allow for a Individual sleeping pods allow guest respite
(abstract geometric representation of the universe greater sense of community than most resorts offer from daily activies but encourage guests
                                                                                                      to partake in the communal nature of Leh:
Regular standard concrete pipe sized allow for     Communal bathrooms reduce the amount of waste      underground
easy construction, either production on site or    water that needs to be processed
shipped in                                                                                            SketchUp, Photoshop, InDesign
modular room                                    the rooms set the module for LEH: underground.
                                                   the 2.4m x 3m concrete pipes are standard
                                                   construction that can be transported in or
                                                                                                                                      skylight/vent
                                                   fabricated on site. the modularity of the piping
                                                   allows for less waste than typical construction
                                                   and means the pipe is readily available.




                                                              water lamp
                                         3m
                                                 under bed storage
                                      full size bed




 recycled plank wood flooring

                                                  2.4m
       inspirations                                                                      water treatment           6        1   urine seperating toilets seperate the
                                                                                                                                solid and liquid wastes


                                                                                                         4                  2   the urine is collected in a systern while
                                                                                                                                the solide is flushed into another waste
                                                                                         1                                      recepticle


                                                                                                                                the urine then undergoes anarobic
                                                                                                                            3   decompositoins and produces
                                                                                                                                hydrogen gas


                                                                                                    3                       4   the hydrogen gas is used in fuel cells in
                                                                                                                   7            a special battery

                                                                                                                                the flushed waste is combined with
                                                                                                                            5   the microbe waste and
                                                                                                                                then flows through a reed bed water
                                                                                             2                                  treatment system


                                                                                                             5              6   the electricity from the battery
                                                                                                                                powers the lights and pumps of LEH:
                                                                                                                                undergroud
                                                                                                                                the reed bed water system produces
                                                                                                                            7   potable drinking water allowing for
               focus                   center           community                                                               as little impact on the environment as
                                                                                                                                possible


(Top) Extracted page explaining and             (Right) Form inspirations: The tube for construction,   (Left) Extracted page with diagrams expaing the
diagraming the modular rooms                    the manadal for form and the Hobbit hole for            waste management processes
                                                precedent
SketchUp, Photoshop, InDesign
dining/lounge                                                         offers a communal atmospher to connect with fellow guests. guests
                                                                           prepare meals for their stay from local food provided on hibachi
                                                                           style tables. the lounge adjacent features a plyable modular couch
                                                                           made from recycled materials and offers a relaxing space to
                                                                           gather. the high ceilings add to the sense of grandure and majesty
                                                                           and allows the mind to forget that the body is underground.
                                                   roofing frame




                                                 designer lights




                    hibachi table                buffet                                    flexlove couch




                                                          site section                cleanse perspective




(Top) Section diagram of the dining/lounge space of LEH: underground.    (Right) Section site diagram highlighting the underground nature and the
Highlighting the custom framing system and the modular tube construction approach to LEH: underground
                                                                         (Left) Perspective of the unisex communal ‘cleanse’ space at dusk
SkecthUp, Photoshop, InDesign
roofing diagram
                                                                                          metal framing system supporting
                                                        semi transparent outdoor fabric
                                                                                                             roofing fabric




                                                                                                   skylight with vent




  Extracted page of diagram detailing the tent like roofing structure

  SketchUp, InDesign
Red Newt - Ithaca, New York

Collaborative design charette project with interior design and architecture students from Cornell
Univeristy.
Spent the weekend redesigning the wine tasting room and restaurant of the Red Newt Winery in the
Finger Lakes region of New York - 2010/11
8


                           pause
                                                                                                floor plan
                           & welcome

                                                                   storage
                                                      collect &
                                                      contribute

                                                                              w. c .   w. c .          expanded
                                                                                                        kitchen
                            taste &
                            sample




                                                                                                 wine      & dine
                                                    flex room


                                                                   linger & lounge




                                                                   7                                                                       13

                                              bubble diagram                                                 flex room schemes




                                                                                                (Left) Programatic diagram of floor plan highlighting
(Top) Labeled floor plan of the tasting room, resturaunt                                        cirulation routes
and tapas bar                                                                                   (Right) Furniture layouts for a multi use room

Pencil, InDesign                                                                                Marker, Pencil, InDesign
Synthesis Architecture + Planning - Cincinnati, OH

Design the interior of Panagia Pantovasilissa (All Holy Queen of All) Greek Orthodox Church in
Lexington, KY. Brought on as a designer with knowledge and experience with Eastern Orthodox
culture and religion, sourced contemporary materials and finishes that would help modernize over a
thousand years of traditons but still hold true to central design philosphies of Orthodoxy - 2011
Materials chosen for duribility and look        Terrazzo used in the Solea, Narthex and Altar for      Rendered finish plan of Panagia Pantovasilissa
                                                duribility, timeless look and easy matainence.         Church
Centiva laminate vinyl wood flooring for the    Terrazzo in the Solea also takes into consideration
social hall to withstand impact of high heels   liturgical needs                                       Revit, Photoshop
and large groups in the Social Hall
                                                Each material reflects not only the program but
Carpeting used in the corridors, classrooms     helpes to accentuate the geometries of the Sanctuary
and Nave for sound dampening qualities          and Parish Center
(Left) Custom pattern design for window
screen inserts, to be laser cut
(Top and Bottom at Right) Sketches used
from existing iconography for screen design

SketchUp, Pencil
View of the Nave from the Narthex

Revit, Photoshop
Thank You

A Romanos Portfolio 2011

  • 1.
  • 3.
    Alex Romanos amromanos@gmail.com -513 . 375 . 0016 Education Skills University of Cincinnati Drafting - AutoCAD 2010/11 B.S., Interior Design, Class of 2013. Modeling - Revit 2009/10/11, SketchUp 7/8 Participating in the Professional Practice Co-op Graphic - Photoshop, Illustrator, InDesign Program, alternating quarters of college study CS3/4/5 with quarters of work in the field of Interior Office - Microsoft Word, PowerPoint, Excel, Outlook Design. Walnut Hills High School, Cincinnati, Ohio Diploma with Honors 2008 Honors Advanced Placement Program Alpha Rho Chi, Professional Fraternity for Architecture Gleam student literary/art magazine, Senior and the Allied Arts: Scribe, 2011 Editor 2007-08, Junior Editor 2006-07 NationalConvention Secretary Phi Delta Theta International Fraternity: Warden, Experience Recruitment Chair, Scholarship Chair,Secretary Eagle Scout with Silver Palm, 2005 Synthesis Architecture + Planning, John Suhar|Architect Scholarship Award, 2008 Cincinnati, Ohio Cincinnati Museum Center-Youth Program Outstanding Spring 2011 Leadership Award, 2005 Co-op - Sole interior designer for Louisville, KY, Greek Orthodox church project; worked directly under project architect. Conceptualized building architecture and interior finishes. Researched Greek Orthodox design traditions and developed sympathetic contemporary material choices, sourced fixtures and finishes within tight budget constraints. Presented design strategy and material choices at client board meeting. Liaised with local sales reps and introduced firm to new industry relationships. BHDP Architecture, Cincinnati, Ohio Spring/Fall 2010 Co-op - Involved in schematic and design development phases of large and small corporate workplace projects. Digital modeling, sourcing, construction documents and client presentations Cincinnati Museum Center, Cincinnati History Museum 2003-2008 Floor Interpreter - Researched and developed characters in 18th and 19th century Cincinnati. Trained in 19th century letter press, self-taught and subsequently developed training program for 18th century finger weaving.
  • 5.
    AREA OF CONCENTRATION,AP STUDIO ART - Cincinnati, OH Selection of acryilc paintings from Senior year of highscool. Works explored using color as line to creat abstract floral patterns - 2008
  • 6.
    The Cave, acrylicon canvas - 2008
  • 8.
    (Top Right) Brittlestar in a sea sponge, Cozumel (Top Right) Tree covered in ice after winter Photography Mexico, underwater photo at 40 feet below surface storm. Cincinnati, OH (Top Left) Holly tree covered in ice close up, (Bottom Right) Spider crab in coral reef, Selection of 2008/09 Cincinnati, OH Cozumel, Mexico
  • 9.
  • 11.
    Sketches and renderingsfrom the Universit of Cincinnati and Columbus, IN (Top Right) Tangeman University Center, Cincinnati, OH - 2008 (Bottom Right) North Christian Church, Columbus, IN - 2009 (Left) First Baptist Church, Columbus, IN - 2009 Charcoal, pen
  • 12.
    Perspective of parkfrom downtown Cincinnati, OH Marker - 2008
  • 14.
    LITERARY ON LUDLOW- Cincinnati, OH Designed an infill structure in the Ludlow gaslight disctrict of Clifton to house a literary arts center, allowing for stacks, reading areas and including living quarters and lecture space for rotating guest writers taking into account site and passive environmental strategies. Form was inspired by the prarie style- 2009
  • 15.
    Concept sketches Street view of Literary Center
  • 16.
    Private Administration Entrance Office Reading Nook Writer’s Residence Lecture Room Stacks Reading Room Reception Public Etrance First Floor Second Floor First floor contains the library stacks and ample space for leisure reading Second floor has living quarters for guest writer with private entrance and meeting space that can accommodate lecture series as well as meet and greet Floor plans - Revit 2009
  • 17.
    View from theReading Room
  • 18.
    View from theWriter’s Loft
  • 21.
    BHDP ARCHITECTURE -Cincinnati, OH Participating with the workplace design team at BHDP for the Fall and Spring terms of the 2010 -11 academic year, developing floor plans for corporate workspaces, drafting in AutoCAD and Revit, building presentations in InDesign and PowerPoint, and working on materials and finish boards
  • 22.
    Open workstations VP and Directors at corner workstations 1:10 Huddle room ratio Fixed wall; huddle at window All other huddles in core Media:scape at either end Mobile white boards throughout (2) Digital white boards Grouped work settings Collaborative furniture throughout Back walls of acrylic partitions used as presentation walls HUM 10 HUMANA Innovations Furniture Plan 1b 05/14/10 006 Presentation page for Humana - Lousiville, KY. Presentation Layout - PowerPoint Floor plan - AutoCAD, Revit Original building design by Michael Graves
  • 23.
    COAT COAT TREE TREE HERMAN MILLER 1031 CELESTE 1002 HERMAN MILLER CELESTE 1001 HARD WIRE HARD WIRE HARD WIRE HARD WIRE HERMAN MILLER CELESTE HARD WIRE HARD WIRE HERMAN MILLER CELESTE HERMAN MILLER CELESTE HERMAN MILLER CELESTE COAT HERMAN MILLER COAT TREE CELESTE TREE HERMAN MILLER CELESTE 1034 1035 1006 HERMAN MILLER PHONE CELESTE 1005 HERMAN MILLER BOB CELESTE PLUG-IN HERMAN MILLER HARD WIRE CELESTE BOB 1033 1007 HERMAN MILLER 42x120 TOP 1004 CELESTE 1030 BOB 101 101 ST-1 ST-2 1022 COAT TREE 1021 COAT TREE 1015 HARD WIRE HARD WIRE 101 101 1023 1013 1025 1024 ALLERMUIR KOJAK 1014 GROUPWORK CAFE 1026 101 101 101 1012 1020 1016 HARD WIRE HARD WIRE GROUPWORK CAFE ALLERMUIR KOJAK BOB 1017 1011 BOB 1027 1019 1029 KEILHAUER NET 1009 COAT TREE KEILHAUER NET 1010 COAT TREE ALLERMUIR A640 ALLERMUIR KOJAK 1018 C4 DIRECTION OF TILE DR2 2 CONFERENCE 0" " 1001 -0 - 7' 7' 6" R 9' - R R C3 C3 OPEN OFFICE EQ. 8' - 0" EQ. EQ. 8' - 0" EQ. OPEN OFFICE 18' - 2 1/2" 18' - 2 1/2" 1031 1002 4" 4" C4 C4 C1 C2 C2 C1 0" R 4' - 10" C3 7' - TYP. 7' R 9' - -0 DR2 6" R " C3 25 '- C4 6" C3 703 703 4" '- C2 C2 14 2 2 703 2 703 2 2 C4 C4 702 L4 A009 701 701 701 701 DR1 CLOSET CONFERENCE HUDDLE HUDDLE HUDDLE P6 CONFERENCE HUDDLE 1005 1030 C1 1033 1034 1035 1006 1007 C1 C3 C3 C3 GATHERING AREA RF1 C3 C3 P2 P2 2 701 1004 STAIR 1 BREAK STAIR 2 101 1022 C5 101 2 2 ST-1 ST-2 P3 P3 CT1 CLOSET 4' - 6" B2 1021 CORRIDOR C3 2 1015 2 C3 101 101 1025 1024 1023 1013 2 B2 B2 1014 CT1 CT1 WOMEN'S 2 MEN'S TOILET TOILET P3 ELEV. P3 OPEN OFFICE 1026 101 COFFEE 101 LOBBY 101 1012 OPEN OFFICE 1029 1020 1016 1009 WC1 C1 C1 DIRECTION OF TILE 701 A/V COPY 1011 HUDDLE SERVICE ELEV. FP1 1017 C1 1027 LOBBY RF1 1010 702 1019 GATHERING C3 B2 AREA CT1 1018 Furniture and Finish plans for Humana - Louisville, KY Plans - AutoCAD, Revit by BHDP
  • 24.
    Interior and furniturefinish presentation board with SketchUp exports, Humana - Louisville, KY Presentation Board - Multimedia, renderings and icongs done by BHDP Photo - BHDP
  • 26.
    PADI - Cincinnati,OH Design the interior of the fifth floor of existing Cincinnati architecture for a branch office of a national firm, including all new branding for the corporation at large PADI - The Professional Association of Diving Instructors, is the world’s largest scuba certifying body, expansion into the Midwest is set to accommodate the growth in freshwater quarry diving
  • 27.
    Series of logodesign iterations Marker, Illustrator
  • 28.
    PADI concept sketches Sketchesshowing programming and circulation Pentel sign pen, prisma color markers - 2010
  • 29.
    Open floor planallows for maximum day lighting Low height group workstations allow for greater collaboration and community Collaboration space curtained off for innovative teaching techniques Reclaimed and recycled materials for low environmental impact Floor Plan - Revit, Photoshop Perspectives - Revit, Photoshop
  • 30.
    View into theReception
  • 31.
    View of Workspaceand Collaboration space
  • 33.
    Durkan/NEWH Carpet Compitition Contestto design a new carpet patern for Durkan in collaboration with NEWH. Inspiration from computer componants. Corridor patterns featured. Hand sketches, Illustrator, Photoshop - 2010/11
  • 35.
    LEH: underground, Eco-ResortHospitality Studio- Leh, India Deisng a low impact eco-resort in northern Inda near the Tibetan boarder. An eco-resort is a vacation destination that focuses on low impact tourism and tries to give back to the community. This resort was designed to be a net zero energy user and to fully process its own waste - 2010/11 leh, ladakh LEH: underground
  • 36.
    program 1 - reception 8 2- modular room 5 3- dining/lounge 4 - meditation/yoga 3 5 - cleanse 6 - privies 4 6 7 - storage/mechanical 7 8 - water treatment 1 2 Floor plan is based off of Buddhist mandala Communal drinning, yoga, and mediation allow for a Individual sleeping pods allow guest respite (abstract geometric representation of the universe greater sense of community than most resorts offer from daily activies but encourage guests to partake in the communal nature of Leh: Regular standard concrete pipe sized allow for Communal bathrooms reduce the amount of waste underground easy construction, either production on site or water that needs to be processed shipped in SketchUp, Photoshop, InDesign
  • 37.
    modular room the rooms set the module for LEH: underground. the 2.4m x 3m concrete pipes are standard construction that can be transported in or skylight/vent fabricated on site. the modularity of the piping allows for less waste than typical construction and means the pipe is readily available. water lamp 3m under bed storage full size bed recycled plank wood flooring 2.4m inspirations water treatment 6 1 urine seperating toilets seperate the solid and liquid wastes 4 2 the urine is collected in a systern while the solide is flushed into another waste 1 recepticle the urine then undergoes anarobic 3 decompositoins and produces hydrogen gas 3 4 the hydrogen gas is used in fuel cells in 7 a special battery the flushed waste is combined with 5 the microbe waste and then flows through a reed bed water 2 treatment system 5 6 the electricity from the battery powers the lights and pumps of LEH: undergroud the reed bed water system produces 7 potable drinking water allowing for focus center community as little impact on the environment as possible (Top) Extracted page explaining and (Right) Form inspirations: The tube for construction, (Left) Extracted page with diagrams expaing the diagraming the modular rooms the manadal for form and the Hobbit hole for waste management processes precedent SketchUp, Photoshop, InDesign
  • 38.
    dining/lounge offers a communal atmospher to connect with fellow guests. guests prepare meals for their stay from local food provided on hibachi style tables. the lounge adjacent features a plyable modular couch made from recycled materials and offers a relaxing space to gather. the high ceilings add to the sense of grandure and majesty and allows the mind to forget that the body is underground. roofing frame designer lights hibachi table buffet flexlove couch site section cleanse perspective (Top) Section diagram of the dining/lounge space of LEH: underground. (Right) Section site diagram highlighting the underground nature and the Highlighting the custom framing system and the modular tube construction approach to LEH: underground (Left) Perspective of the unisex communal ‘cleanse’ space at dusk SkecthUp, Photoshop, InDesign
  • 39.
    roofing diagram metal framing system supporting semi transparent outdoor fabric roofing fabric skylight with vent Extracted page of diagram detailing the tent like roofing structure SketchUp, InDesign
  • 41.
    Red Newt -Ithaca, New York Collaborative design charette project with interior design and architecture students from Cornell Univeristy. Spent the weekend redesigning the wine tasting room and restaurant of the Red Newt Winery in the Finger Lakes region of New York - 2010/11
  • 42.
    8 pause floor plan & welcome storage collect & contribute w. c . w. c . expanded kitchen taste & sample wine & dine flex room linger & lounge 7 13 bubble diagram flex room schemes (Left) Programatic diagram of floor plan highlighting (Top) Labeled floor plan of the tasting room, resturaunt cirulation routes and tapas bar (Right) Furniture layouts for a multi use room Pencil, InDesign Marker, Pencil, InDesign
  • 44.
    Synthesis Architecture +Planning - Cincinnati, OH Design the interior of Panagia Pantovasilissa (All Holy Queen of All) Greek Orthodox Church in Lexington, KY. Brought on as a designer with knowledge and experience with Eastern Orthodox culture and religion, sourced contemporary materials and finishes that would help modernize over a thousand years of traditons but still hold true to central design philosphies of Orthodoxy - 2011
  • 45.
    Materials chosen forduribility and look Terrazzo used in the Solea, Narthex and Altar for Rendered finish plan of Panagia Pantovasilissa duribility, timeless look and easy matainence. Church Centiva laminate vinyl wood flooring for the Terrazzo in the Solea also takes into consideration social hall to withstand impact of high heels liturgical needs Revit, Photoshop and large groups in the Social Hall Each material reflects not only the program but Carpeting used in the corridors, classrooms helpes to accentuate the geometries of the Sanctuary and Nave for sound dampening qualities and Parish Center
  • 46.
    (Left) Custom patterndesign for window screen inserts, to be laser cut (Top and Bottom at Right) Sketches used from existing iconography for screen design SketchUp, Pencil
  • 47.
    View of theNave from the Narthex Revit, Photoshop
  • 49.