Embed presentation
Download to read offline



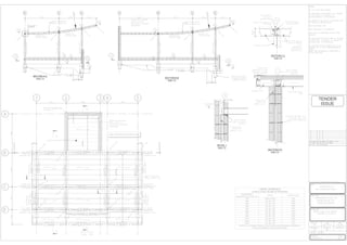
This document contains details for reinforcement and ground beams, including sections and scale drawings. It also includes a lintel schedule specifying the reference, length, and materials for 12 different lintels. Notes indicate that internal lintels should be pre-stressed concrete with minimum 100mm end bearing.


