Portfolio | Pieter Schreurs
Portfolio | Pieter Schreurs




Omslag:
Fotomontage van de locatie van het afstudeerproject ‘Commuter Retreat’
Queens Plaza, New York City, New York, USA
Inleiding

Voor u ligt het Portfolio van Pieter Schreurs. Op 31 maart 2009
heb ik mijn opleiding tot architect aan de Technische Universiteit
Delft afgerond. Nu ben ik op zoek naar een plek om mijn loopbaan
te beginnen, vandaar dat u dit portfolio van mij ontvangt. Ik ben
afgestudeerd in de studio ‘Border Conditions’, onderdeel van de
afstudeerrichting Architectuur, leerstoel Architecture & Modernity. Mijn
mentoren team bestond uit: Dr. Ing. Henriette Bier, Sang Lee M.Arch.
RA en ir. Freerk Hoekstra. Het afstudeerwerk dat ik heb gemaakt is
genomineerd voor de voorselectie van de Archiprix en is gehonoreerd
met een eervolle vermelding van de faculteit Bouwkunde.


Zowel in mijn opleiding, als in mijn overige werkzaamheden, heb ik
mij vooral gespecialiseerd in het ontwerpen van publieke gebouwen,
op verschillende schaalniveaus. Dit varieert van kleine paviljoens
tot complexe gelaagde infrastructurele knooppunten, zoals een
grootschalig metrostation met vele openbare functies. Binnen dit
specialisme liggen mijn competenties vooral bij het omgaan met
complexe en gelaagde programma’s en het actief analyseren en
inzetten van gebruiks- en stromingspatronen voor het ontwikkelen
van architectonische objecten. Dit uit zich in het actief analyseren
en inzetten van complexe data voor het generen van een specifieke
vormentaal met behulp van de computer. In het bijzonder het
genereren van en omgaan met complexe 3 dimensionale geometrie,
met actief gebruik van de computer, komt veelvuldig terug in mijn
werk. Het ontwerpen van complexe 3D structuren en het actief
gebruik van 3D tekenprogramma’s zijn dan ook mijn belangrijkste
specialiteiten.


Ondanks mijn relatief geringe werkervaring, denk ik dat ik beschik over
ruime ervaring met complexe en gelaagde opgaven en de capaciteiten
bezit om hier op een adequate en innovatieve manier mee om te gaan.
Ik ben dan ook op zoek naar een baan waarbij ik deze capaciteiten en
ervaring verder kan ontwikkelen en waarbij ik word uitgedaagd en
gestimuleerd om mezelf praktisch en intellectueel verder te ontplooien.
Hopelijk heb ik hiermee uw interesse kunnen wekken en een profiel
geschetst dat aansluit bij de wensen en verwachten van uw bureau.


In mijn portfolio vindt u een uitgebreide visuele en tekstuele toelichting
op wat ik hierboven omschreven heb. Dit alles zal hopelijk een duidelijk
en compleet beeld schetsen van mij ervaring en capaciteiten als
architect en ontwerper. Mocht u na het bekijken van mijn portfolio nog
vragen of opmerkingen hebben dan kunt u altijd contact opnemen.


Met vriendelijke groet,
Pieter Schreurs




2
Inhoud

Inleiding                                          02


Inhoudsopgave                                      03


 ȃ Curriculum Vitae                                04


 ȃ Projecten | Opleiding                           07


      - Theater ‘De Wacht’                         08
      - Intersecting Interchange                   10
      - FashionHigh                                12
      - Chueca Ecosystem                           14
      - Meanderscars                               16


 ȃ Projecten | Afstuderen                          19


      - New York City Maps                         20
      - Node and Network                           22
      - Commuter Retreat | Concept & Organisatie   24
      - Commuter Retreat | Ruimtelijk Model        26
      - Commuter Retreat | Architectuur            28
      - Commuter Retreat | Techniek                30
      - Commuter Retreat | Productie               32


 ȃ Projecten | Werk                                35


      - Ecowoningen                                36
      - Kim’s Tower                                38
      - BATH project                               40


 ȃ Publicaties                                     43


      - Pantheon                                   44
      - Border Conditions New York City Boek       45




                                                        3
Curriculum Vitae

Persoonsgegevens:                                                      Werkervaring:

Naam:                Pieter H. M. Schreurs                             01.2008 - 02.2008
Adres:               Stadhoudersplein 28 B                             Ontwerp en eindredactie: ‘Border Conditions New York City’ publicatie
Postcode:            3039 ER                                           - Studio Border Conditions - Technische Universiteit Delft
Woonplaats:          Rotterdam
Telefoon mobiel:     +31 (0)6 - 21256096                               04.2007 - 05.2007
Telefoon privé:      +31 (0)10 - 8400308                               Opbouw tentoonstellingspaviljoen: ‘BATH project’, SMAQ -
Email adres:         phmschreurs@hotmail.com                           Architecture | Urbanism | Research - Berlijn,
Geboortedatum:       9 Juni 1983                                       FollyDock tentoonstelling - Rotterdam
Geboorteplaats:      Nijmegen
Geslacht:            M                                                 09.2006 - 03.2007
Nationaliteit:       Nederlands                                        Assistent ontwerper, het ArchitectenConsort - Rotterdam
Burgerlijke staat:   Ongehuwd
Rijbewijs:           B                                                 12.2001 - 10.2002
                                                                       Ontwerp en redactie: pantheon// magazine - D.B.S.G. Stylos - Delft
Opleiding:

2005 - 2009
                                                                       Nominaties:

Master of Science, Architecture, Urbanism and Building Sciences        03.2009
(Bouwkunde) - Technische Universiteit Delft - afstudeerrichting:       Nominatie voorselectie Archiprix 2009
Architectuur (afstudeerstudio: Studio Border Conditions, begleiders:
Henriette Bier, Sang Lee, Freerk Hoekstra)                             Nevenactiviteiten:

2002 - 2007                                                            08.2007 - 07.2008
Bachelor of Science, Architecture, Urbanism and Building Sciences      Aanvoerder Herenteam SRC Thor - Studenten Rugby Club - Delft
(Bouwkunde) - Technische Universiteit Delft
                                                                       04.2005 - 08.2008
2001 - 2002                                                            Nestor studentenhuis (32 bewoners) - Oude Delft 15 -
Propedeuse, Architecture, Urbanism and Building Sciences               Stichting DUWO - Delft
(Bouwkunde) - Technische Universiteit Delft
                                                                       08.2004 - 07.2005
1995 - 2001                                                            Aanvoerder Herenteam SRC Thor - Studenten Rugby Club - Delft
Gymnasium, Stedelijk Gymnasium Nijmegen
(Vakkenpakket: Nederlands, Engels, Frans, Grieks, Scheikunde,          06.2003 - 05.2004
Natuurkunde, Wiskunde-B, Geschiedenis en Aardrijkskunde)               Bestuur SRC Thor, functie: Bootcommissaris -
                                                                       Studenten Rugby Club - Delft


                                                                       09.2002 - 08.2003
                                                                       Publiciteitscommissie - D.B.S.G. Stylos - Delft


                                                                       07.1996 - 06.2006
                                                                       Leadzanger ‘Last To Go’, internationaal opererende band




4
Talenkennis:

Nederlands         Moedertaal
Engels             Gevorderd
Frans              VWO - eindexamen niveau
Duits              Basis kennis


Computerkennis:

Adobe CS3          Photoshop                 Gevorderd
                   Illustrator               Gevorderd
                   Indesign                  Gevorderd
                   Acrobat 8 Professional    Gevorderd
                   Premiere                  Basis kennis
                   Flash                     Basis kennis
                   Dreamweaver               Basis kennis
Autodesk           AutoCAD                   Gevorderd
                   Alias Maya                Gevorderd
Mc Neel            Rhinoceros 4.0            Gevorderd
                   Grasshopper               Basis kennis
Bentley            Microstation              Basis kennis
                   Generative Components     Basis kennis
Google             Sketch-up Professional    Gevorderd
Microsoft Office   Word                      Gevorderd
                   Excel                     Gevorderd
                   Powerpoint                Gevorderd




                                                            5
6
Projecten | Opleiding




                    7
Theater de Wacht

Locatie: Stationsplein, Delft, Nederland / Context: 2e studiejaar
Bachelor opleiding, Technische Universiteit Delft / Docent: Joan van
Dooren / Datum: April 2003


Programma: Kleinschalig theater met semi-openbare wachtruimte ten
behoeve van OV-reizigers


Dit theater voor het stationsplein van Delft was het belangrijkste
individueel ontworpen publieke project van mijn Bachelor opleiding.
Het doel van dit ontwerp was om een gebouw te ontwikkelen dat deel
zou gaan uitmaken van het nieuw te ontwikkelen stationsgebied. Het
was de intentie van het theater om een laagdrempelige toegang tot
het culturele leven van Delft te creëren, door het integreren van een
overdekte openbare wachtruimte voor het naastgelegen busstation,
                                                                                                                                                               N




waar op interactieve wijze kennis kan worden gemaakt met het
beschikbare cultuuraanbod.
                                                                            Plattegrond Begane grond




De belangrijkste aandachtspunten van het ontwerp zijn de overgangen
van publieke naar private ruimtes en van het openbare ‘culturele’
leven op straat naar het meer gesloten culturele circuit van het theater.
Het gebouw bestaat in feite uit twee over elkaar heen gedrapeerde
L-vormen, waarvan de onderste de openbare en ondersteunende
functies bevat en de bovenste de meer private foyer en theaterzalen.
In dit project is de architectonische vertaling van het complexe
meervoudige publieke programma een van de belangrijkste sturende
elementen.


                                         KANTOREN
     FOYER                                                                                                                                                      N




          BAR
                          VIEW
                         BOXES
                                  KLEINE
    GROTE
    ZAAL




                                   ZAAL
                                                                            Plattegrond verdieping 1

     PODIUM                 MAGAZIJN       TECHNIEK
                            WERKPLAATS




                                                                            Doorsnede AA’




Organisatie diagram en programmatische opbouw                               Rechtsboven: nachtelijke impressie vanaf het stationsplein / Rechtsonder: impressie kleine zaal



8
Intersecting Interchange

Locatie: Westblaak, Rotterdam, Nederland / Context: Hybrid Building




                                                                                                                                                                                                                                                               2000
                                                                                                                                                                                                                                                               2000
Studio, 3e studiejaar Bachelor opleiding, Technische Universiteit Delft
                                                                                                                                                                                                                                                                      MV




                                                                                                                                                                                                                                                               1000
/ Docent: Rajan V. Ritoe / Datum: Juni 2005




                                                                                                                                                                                                                                                               1000
                                                                                         Lengte doorsnede door het gebouw




Programma: Cultureel podium en openlucht bioscoop, geintegreerd in
een voetgangerskruispunt.


Intersecting interchange vormde het eindproject voor de Bachelor fase
van mijn opleiding en wordt gekenmerkt door een zeer methodische
en analytische aanpak van het ontwerpproces en het ontwerp. De
centrale thema’s van het ontwerp zijn stroming, beweging en netwerk.
De analyse van bestaande stromingspatronen en het gebruiksnetwerk
op de locatie, inclusief de beschikbare statistische data hiervan, zijn
de sturende factoren voor het ruimtelijke ontwerp. Het programma
van deze ‘cultural node’ bestaat uit een openlucht bioscoop en theater,
internet terminals en een openlucht galerie.


Het gebouw creëert een specifieke plek in het bestaande
bewegingspatroon door de stromen te vervormen, te onderbreken
                                                                                         Plattegronden verdieping 1 / begane grond met interactieve elementen die bepaalde


en te benadrukken. In dit project wordt de computer ingezet om
                                                                                         stromingspatronen benadrukken (groen), dan wel onderbreken (blauw / rood / paars)



contextuele scenario’s te testen en dynamische transformaties van
                                                                                                                    A B C D A B C D A B C D A B C D A B C DA B C D A B C D


het gebouw in de tijd te kunnen vormgeven, evenals de vormgeving
                                                                                                            0.45

                                                                                         N




van het gebouw specifiek te kunnen maken voor de gewenste
                                                                                         u
                                                                                         m
                                                                                                             0.4
                                                                                                                                                                                                                                                           5
                                                                                         b
                                                                                         e                  0.35




stromingspatronen.
                                                                                         r
                                                                                                 o
                                                                                                 f
                                                                                             m
                                                                                                             0.3
                                                                                                                                                                                                                                                           4
                                                                                             o
                                                                                             v
                                                                                             e              0.25
                                                                                             m
                                                                                             e
                                                                                             n
                                                                                             t
                                                                                                             0.2
                                                                                                                                                                                                                                                           3
                                                                                             s
                                                                                                     p      0.15
                                                                                                     e
                                                                                                     r
                                                                                                     p
                                                                                                     e
                                                                                                     r
                                                                                                             0.1
                                                                                                                                                                                                                                                           2
                                                                                                     s
                                                                                                     o      0.05
                                                                                                     n
                                                                                                                                                                                                                                                           1
                                                                                                                0
                                                                                                                    uur
                                                                                                                    uur
                                                                                                                    uur
                                                                                                                    uur
                                                                                                                    uur
                                                                                                                    uur
                                                                                                                    uur
                                                                                                                    uur
                                                                                                                    uur
                                                                                                                    uur
                                                                                                                    uur
                                                                                                                    uur
                                                                                                                    uur
                                                                                                                    uur
                                                                                                                    uur
                                                                                                                    uur
                                                                                                                    uur
                                                                                                                    uur
                                                                                                                    uur
                                                                                                                    uur
                                                                                                                    uur
                                                                                                                    uur
                                                                                                                    uur
                                                                                                                    uur
                                                                                                                    uur
                                                                                                                    uur
                                                                                                                    uur
                                                                                                                    uur
                                                                                                                    uur
                                                                                                                    uur
                                                                                                                    uur
                                                                                                                    uur
                                                                                                                    uur
                                                                                                                    uur
                                                                                                                    uur
                                                                                                                    uur
                                                                                                                    uur
                                                                                                                    uur
                                                                                                                    uur
                                                                                                                    uur
                                                                                                                    uur
                                                                                                                    uur
                                                                                                                    uur
                                                                                                                    uur
                                                                                                                    uur
                                                                                                                    uur
                                                                                                                    uur
                                                                                                                    uur
                                                                                                                    uur
                                                                                                                    uur
                                                                                                                    uur
                                                                                                                    uur
                                                                                                                    uur
                                                                                                                    uur
                                                                                                                    uur
                                                                                                                    uur
                                                                                                                    uur
                                                                                                                    uur
                                                                                                                    uur
                                                                                                                    uur
                                                                                                                    uur
                                                                                                                    uur
                                                                                                                    uur
                                                                                                                    uur
                                                                                                                    uur
                                                                                                                    uur
                                                                                                                    uur
                                                                                                                    uur
                                                                                                                    uur
                                                                                                                    uur
                                                                                                                    uur
                                                                                                                    uur
                                                                                                                    uur
                                                                                                                    uur
                                                                                                                    uur
                                                                                                                    uur
                                                                                                                    uur
                                                                                                                    uur
                                                                                                                    uur
                                                                                                                    uur
                                                                                                                    uur
                                                                                                                    uur
                                                                                                                    uur
                                                                                                                    uur
                                                                                                                    uur
                                                                                                                    uur
                                                                                                                    uur
                                                                                                                    uur
                                                                                                                    uur
                                                                                                                    uur
                                                                                                                    uur
                                                                                                                      0-4
                                                                                                                      4-7
                                                                                                                      7-8
                                                                                                                      8-9
                                                                                                                     9-12
                                                                                                                    12-13
                                                                                                                    13-14
                                                                                                                    14-16
                                                                                                                    16-17
                                                                                                                    17-18
                                                                                                                    18-19
                                                                                                                    19-20
                                                                                                                    20-24
                                                                                                                      0-4
                                                                                                                      4-7
                                                                                                                      7-8
                                                                                                                      8-9
                                                                                                                     9-12
                                                                                                                    12-13
                                                                                                                    13-14
                                                                                                                    14-16
                                                                                                                    16-17
                                                                                                                    17-18
                                                                                                                    18-19
                                                                                                                    19-20
                                                                                                                    20-24
                                                                                                                      0-4
                                                                                                                      4-7
                                                                                                                      7-8
                                                                                                                      8-9
                                                                                                                     9-12
                                                                                                                    12-13
                                                                                                                    13-14
                                                                                                                    14-16
                                                                                                                    16-17
                                                                                                                    17-18
                                                                                                                    18-19
                                                                                                                    19-20
                                                                                                                    20-24
                                                                                                                      0-4
                                                                                                                      4-7
                                                                                                                      7-8
                                                                                                                      8-9
                                                                                                                     9-12
                                                                                                                    12-13
                                                                                                                    13-14
                                                                                                                    14-16
                                                                                                                    16-17
                                                                                                                    17-18
                                                                                                                    18-19
                                                                                                                    19-20
                                                                                                                    20-24
                                                                                                                      0-4
                                                                                                                      4-7
                                                                                                                      7-8
                                                                                                                      8-9
                                                                                                                     9-12
                                                                                                                    12-13
                                                                                                                    13-14
                                                                                                                    14-16
                                                                                                                    16-17
                                                                                                                    17-18
                                                                                                                    18-19
                                                                                                                    19-20
                                                                                                                    20-24
                                                                                                                      0-4
                                                                                                                      4-7
                                                                                                                      7-8
                                                                                                                      8-9
                                                                                                                     9-12
                                                                                                                    12-13
                                                                                                                    13-14
                                                                                                                    14-16
                                                                                                                    16-17
                                                                                                                    17-18
                                                                                                                    18-19
                                                                                                                    19-20
                                                                                                                    20-24
                                                                                                                      0-4
                                                                                                                      4-7
                                                                                                                      7-8
                                                                                                                      8-9
                                                                                                                     9-12
                                                                                                                    12-13
                                                                                                                    13-14
                                                                                                                    14-16
                                                                                                                    16-17
                                                                                                                    17-18
                                                                                                                    18-19
                                                                                                                    19-20
                                                                                                                    20-24
                                                                                                                    Maandag   D ins dag                W oens dag          D onderdag              V rijdag           Z aterdag                  Z ondag

                                                                                                                                                                                Time of day

                                                                                                                                                                                        Total

                                                                                                                                          Work       Services       Shopping        Education        Social recr.   Recreation         Other

                                                                                         Statistische gebruiksanalyse van de stromen op de locatie, deze stuurt het openen en sluiten van de
                                                                                         rode en blauwe barrieres in het gebouw, waarmee het gebouw zich aanpast in de tijd



Stromingsdiagram van de locatie




                                                                                                         A1 / A2 / A3                        A4                                               A5                                  B1




                                                                                         B2 / D1                                             B3 / C3 / D2                                B4                                       B5 / C5




                                                                                         C1                                                  C2                                           C4                                      D3 / D4 / D5

Stromings- en knooppuntendiagram gebouwopzet / Deformatie van diagram door interventie   Analyse van mogelijke scenarios van stromingspatronen die ontstaan door openen en sluiten van
                                                                                         de barrieres in het gebouw aan de hand van de fluctuatie in gebruikersstromen


                                                                                         Rechtsboven: Impressie westzijde & oostzijde / Rechtsonder: overzicht gebouw in locatie



10
FashionHigh

Locatie: Hoogstraat, Rotterdam, Nederland / Context: Interiors,
Buildings and Cities studio, 1e studiejaar Master opleiding,
                                                                                                                                 B


                                                                                                                         A




Technische Universiteit Delft / Docent: Mechtild Stuhlmacher en
Andrej Radman / Datum: November 2005
                                                                                             N.A.P
                                                                                     +0.00




Programma: Modeschool, met openbaar restaurant en cafe, een
auditorium, een winkel en een viertal atelierwoningen.                                           +150
                                                                                                        0 N.A
                                                                                                                .P




Ontwerp voor een modeschool aan de Hoogstraat in Rotterdam.
Dit project wordt gekenmerkt door het samenbrengen van een
meervoudig gelaagd programma, met verschillende niveau’s van
                                                                                                                                         B


                                                                                                                                 A




openbaarheid. De verschillende programmatische elementen
worden met elkaar verbonden door een in het hart van het gebouw
gelegen ontsluitingskern met twee tegen elkaar in draaiende
                                                                              Plattegrond begane grond



ontsluitingsroutes. Een van deze routes ontsluit het (semi-)openbare
school gedeelte, de ander ontsluit de private atelierwoningen die zich
                                                                                                                             B




op de bovenste verdieping van het gebouw bevinden. Het programma
                                                                                                                     A




is georganiseerd aan de hand van verschillende zones, waarin
publieke, private en ondersteunende elementen zijn onderverdeeld. De
ondersteunende functies vormen twee gesloten betonnen volumes, die
de hoofddraagconstructie van het gebouw vormen.


Het belangrijkste ontwerpthema voor dit gebouw was de overgang van
de publieke ruimte naar de verschillende ruimtes in het interieur van
het gebouw. Dit komt tot uiting in de gelaagde opbouw van de gevel en
                                                                                                                                     B




de variatie in materiaal gebruik van zowel de gevel als de afwerking
                                                                                                                             A




van het interieur. Op deze manier wordt het concept van het gebouw
doorgevoerd tot in de uitwerking op detailniveau en ontstaat er een
                                                                              Plattegrond verdieping 1



consistente vertaling van basis concept naar technische uitwerking.




                                                                         al
                                                                   ation
                                                               Educ ach
                                                                appro



                                                                              Doorsnede AA’




                                          N

                             ial
                        merc
                    Com ach
                     appro




Locatietekening met beoogde bezoekersstromen                                  Doorsnede BB’


                                                                              Rechts: gevelfragment 1:20 en details



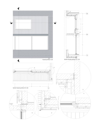
12
C


                                                                                          3




E                                                                          E




                                                                                                                  4




                                               Facade partition 1:20           Section facade partition CC 1:20
                 C




                                           1                           2




    Section facade partition EE 1:20
                                                                                                                      2


                                                                                                                          1




                                       4                         3
Chueca Ecosystem

Locatie: Chueca / Justitia, Madrid, Spanje / Context: Urban Body
studio, 1e studiejaar Master opleiding, Technische Universiteit
Delft / Docent: Alexander Vollebregts en Stephen Read /
Partners: Hendrik Schikarski, Ioannis Perisoratis, Przemyslaw
Olszewski en Marcos Olmo / Datum: April 2006


Programma: Stedenbouwkundige analyse en kleinschalige
stedelijke interventie in de vorm van ontmoetingsplekken.


Deze afbeeldingen tonen onderdelen van een presentatie
website van een stedenbouwkundig onderzoeks- en
ontwerpproject in de wijk Chueca in Madrid. De basis van het
onderzoeksgedeelte werd gevormd door een 24-uurs animatie
van de gebruikspatronen in deze wijk, die interactief kon
worden samengesteld aan de hand van de te onderzoeken
                                                                   Interventie 1: Gran Via



elementen. Op de rechter pagina is een still uit deze animatie
zichtbaar. De animatie maakt inzichtelijk welke functies
wanneer actief worden en hoe de dynamiek van de wijk in
elkaar zit. Met deze animatie werd een experimentele methode
ontwikkeld waarmee de verzamelde data op een informatieve
manier werd gepresenteerd, zodat deze een aanleiding kon
vormen voor het doen van een stedenbouwkundige interventie.


De computer wordt hier actief ingezet om de complexiteit
en gelaagdheid van het stedelijke ensemble weer te geven,
omtegaan met transformaties en fluctuaties van gebruik en
bezetting door de tijd heen en grote hoeveelheden complexe
data te structureren. Door het gebruik van de computer
wordt het mogelijk de verzamelde data over het gebied actief
in te zitten als leidraad voor het ruimtelijk ontwerp. Naar
                                                                   Interventie 2: Palacio Buenavista


aanleiding van de analyse van de animatie werd een viertal
stedenbouwkundige interventies ontworpen, zoals zichtbaar is
op de beelden hiernaast en op de volgende pagina.


Dit project wordt gekenmerkt door een bottom-up benadering
van de opgave, waarbij de ruimtelijke vormgeving voortvloeit
uit de context en de analyse van specifieke gebruikspatronen
met behulp van de computer. Naar aanleiding van de
dynamische geanimeerde analyse kwam een bepaald type
informeel gebruik aan het licht, waarop verder is ingezoomd
en aan de hand waarvan de ruimtelijk ontwerpen zijn opgezet.
De vormentaal komt op deze manier direct voort uit de analyse
en het beoogde gebruikspatroon. Het gebruik van de computer
faciliteert op deze manier de ruimtelijke vormgeving van het
project.                                                           Interventie 3: Plaza de Vazquez de Mella




                                                                   Rechtsboven: still uit 24-uurs analyse Chueca / Rechtonder: Interventie 4: Plaza de Chueca



14
13
Meanderscars

Locatie: Justitia, Madrid, Spanje / Context: Architectural Body
studio, Border Conditions groep, 1e studiejaar Master opleiding,
Technische Unversiteit Delft / Docent: Sabine Muller en William
Veerbeek / Partner: Wouter Oostendorp / Datum: Juni 2006 /


Programma: Ondergronds metrostation, ingevuld met
kleinschalige publieke functies.


Dit ontwerp, in samenwerking met Wouter Oostendorp, is een
experimenteel onderzoek naar de mogelijkheden van scripting
en programmeren voor het architectonisch ontwerp. Het
                                                                            Dwarsoorsnede van een vervormde route met ingevoegde programmatische elementen



ontwerp bestaat uit een metrostation, waarbij meerdere routes
bestaan voor de toe- en afvoer van mensen. Met behulp van
een zelf geschreven computerprogramma wordt elk van deze
routes vervormd en geïnjecteerd met volumes met verschillende
programma’s, afhankelijk van de hoeveelheid en type gebruikers
die langs deze route passeert.


Uitgaande van een generieke basisstructuur ontstaat er op deze
manier een specifieke programmatische structuur, ingegeven
                                                                            Lengtedoorsnede van een vervormde route met ingevoegde programmatische elementen



en gestuurd door context en geoptimaliseerd met behulp van
de computer. De beelden geven één van de geteste scenario’s
weer, dit scenario zou kunnen dienen als programmatische basis
voor een verder ruimtelijke uitwerking in een architectonisch
ontwerp. In dit project heb ik me vooral gefocust op het
programmeren en het genereren van het programmatisch
ruimtelijk model.




                                                                            Impressie van vervormde route met programmatische toevoegingen aan de onderzijde




Diagrammatische weergave van het vervormingsprincipe per verbindingsroute   Impressie van een van de ingangen van het metrostation



                                                                            Rechts: overzichtsimpressies van het metrostation met de vervormde toegangsroutes



16
18
Projecten | Afstuderen




                    19
New York City Maps

Locatie: New York City, New York, USA / Context: Groepswerk fase,
Border Conditions afstudeerstudio, Architecture and Modernity, 2e
                                                                                                                                                                           Map LEGEND
                                                                                                                                                                                                                                                                                                                                                                            NEW YORK CITY TRANSIT subway and elevated lines




studiejaar Master opleiding, Technische Universiteit Delft / Docent:
                                                                                                                                                                                                                                                                                                                                                                                  7th Ave Line
                                                                                                                                                                                                                                                                                                                                                                                  Lexington Ave Line
                                                                                                                                                                                                                                                                                                                                                                                  Flushing line
                                                                                                                                                                                                                                                                                                                                                                                  Broadway Line
                                                                                                                                                                                                                                                                                                                                                                                  Nassau St Line




Marc Schoonderbeek, Oscar Rommens, Henriette Bier en Sang Lee /
                                                                                                                                                                                                                                                                                                                                                                                  14th St Line
                                                                                                                                                                                                                                                                                                                                                                                  8th Ave Line
                                                                                                                                                                                                                                                                                                                                                                                  Brooklyn-Queens Line
                                                                                                                                                                                                                                                                                                                                                                                  Hudson Bergen Light Rail
                                                                                                                                                                                                                                                                                                                                                                                  shuttles




Partner: Arie Gruiters / Datum: November 2007
                                                                                                                                                                                                                                                                                                                                                                                  station (local service only)

                                                                                                                                                                                                                                                                                                                                                                                  station (local and express service)


                                                                                                                                                                                                                                                                                                                                                                            REGIONAL RAILROADS
                                                                                                                                                                                                                                                                                                                                                                                  Long Island, Metro North, Staten Island, NJ Transit, Amtrak




                                                                                       EMPTY SPACE WITHIN THE CIRCLE AVAILABLE




                                                                                                                                                                                                                                                                                                            SPACE (SPATIALISATION)
                                                                                           TO ADD CONNECTIONS MANUALLY




                                                                                                                                                                                                SPATIAL CONTEXT




                                                                                                                                                                                                                                                                                                                                                 PLACE (LOCATION)
                                                                                                                                                     CATEGORISATION




                                                                                                                                                                                                                                                                                                                                                                                                        METROSTATION
                                                                                                                                                                                                                                                        FRAGMENT NR.
Programma: Navigatie en orientatiemiddel voor het metronetwerk van




                                                                                                                                                                                                                                                        NARRATIVE
                                                                                                                                                                                                SITUATION




                                                                                                                                                                                                                                                                                                                                                                                                        RELATED
New York City
                                                                                                                                       SCALE                                                                                                                                                                                                                                             Pacific St/                    Bergen St
                                                                                                                                                                                                                                                                                                                                                                                         Atlantic Ave                   Eastern Pkwy
                                                                                                                                 ACCESSIBILITY                                                                                                                                                                                                                                                                          Brooklyn Mus
                                                                                                                                                                                                                                                                                                                                                                                                                        Clinton/
                                                                                                                                   BOUNDARY                                                                                                                                                                                                                                              Franklyn Ave
                                                                                                                                                                                                                                                                                                                                                                                                                        Washington Aves
                                                                                                                                                                                                                                                          19.4                                             Kitchen                         Prospect Heights
                                                                                                                                       EVENT                                                                                                                                                                                                                                             7 Ave

                                                                                                                                     SUBJECT                                                                                                                                                                                                                                             Franklyn Ave

                                                                                                                                      STATUS                                                                                                                                                                                                                                             Grand Army Plaza



                                                                                                                                                                                                                                                                                                                                          READING DIRECTION FROM ROUGH TO FINE




In het kader van het afstudeerproject in de studio ‘Border Conditions
heb ik een alternatief navigatiemiddel voor New York City ontwikkeld




                                                                                                                                                                                                                                    Medium




                                                                                                                                                                                                                                                                                                                                                                    Super
                                                                                                                                                                                                                                                                                          Large
samen met Arie Gruiters. Dit navigatiemiddel is gebaseerd op




                                                                                                                                                                       Small
                                                                                                                                              SCALE




ruimtelijke omschrijvingen uit krantenknipsels van de New York
Times en New York Post van een week in november 2007. Aan de hand




                                                                                                                                                                                                                                    Private
                                                                                                                                                                       Public
van deze situaties kun je met deze ‘kaart’ met de metro door New
                                                                                                                                     ACCESSIBILITY




York navigeren. Het doel van deze opzet is om zonder voorkennis of
context een wegwijzer of leidraad te hebben om door stad te bewegen




                                                                                                                                                                       Artificial




                                                                                                                                                                                                                                    Natural
en deze te onderzoeken. Deze benadering, gebaseerd op het idee
                                                                                                                                        BOUNDARY




dat specifieke netwerken de samenhang van de stad bepalen, heeft
het verdere verloop van het afstudeerproject bepaald. Het draait




                                                                                                                                                                                                                                                                                          Non-specified
                                                                                                                                                                                                                                    Outside
                                                                                                                                                                       Inside
hierbij om het ontwikkelen van een specifiek notatiesysteem en om
                                                                                                                                   EVENT LOCATION




de ontwikkeling van een taal gebaseerd op specifieke data. Dat wil
zeggen: het verstaanbaar en leesbaar maken van data, zodat het
                                                                                                                                                                                                                                    Multiple
                                                                                                                                                                       Single




bruikbare informatie wordt die voor een specifiek doel kan worden
                                                                                                                                          SUBJECT




ingezet. Deze afbeeldingen laat zowel het navigatiemiddel zien, als de
werking ervan en de met het navigatiemiddel afgelegde trajecten. Door
                                                                                                                                                                                                                                    Projected
                                                                                                                                                                       Existing




                                                                                                                                          STATUS




deze te projecteren op de geografische kaart van de stad ontstond de
ruimtelijke context voor het verdere afstudeerproject.                                                                                                                 REMAINING




                                                                                                                                                                                                                                           SURVEILLANCE CAMERA



                                                                                                                                                                                                                                           WATER FRONT




                                                                                                                                                                             TRAJECTORIES Legend



                                                                                                                                          MOVEMENT
                                                                                                                                          COLOUR                                    DATE                                   LINEWEIGHT           DISTANCE [KM]

                                                                                                                                                                                    09-11-'07                                                   0-5

                                                                                                                                                                                    10-11-'07                                                   5-10

                                                                                                                                                                                    11-11-'07
                                                                                                                                                                                                                                                10-15
                                                                                                                                                                                    12-11-'07
                                                                                                                                                                                                                                                15-20
                                                                                                                                                                                    13-11-'07


                                                                                                                                                                                                                                                20-25




                                                                                                                                          LINETYPE                                  TYPE OF TRANSPORTATION

                                                                                                                                                                                    METRO

                                                                                                                                                                                    FERRY



                                                                                                                                                                                    WALKING                           SIZE




                                                                                                                                          FIXED POINTS
                                                                                                                                                                                                                                                               0           5         10                          15                  20    25
                                                                                                                                                                           STARTING/END POINT                                                                  DISTANCE [KM]

                                                                                                                                                                           METROSTATION
                                                                                                                                              SIZE




                                                                                                                                          0      5                    10            15     20                25       30          35
                                                                                                                                          WAITING TIME [MIN]




                                                                                                                                          DURATION
                                                                                                                                                                                                                  CONNECTION LINE (FROM THE PERIMETRE TO THE PERIMETRE OF THE CIRCLE; APART FROM CASES WHERE STARTING/END POINTS ARE INVOLVED)

                                                                                                                                                                                                                                 Pacific St/
                                                                                                                                                                                                                                 Atlantic Ave                    4 St/Wash Sq                        Prince St

                                                                                                                                          ABSULUTE TIME [HH:MM]                                 11:00                             11:23                            11:57                                  12:10                                                                          13:54




                                                                                                                                          RELATIVE TIME [%]                                                             0                                                       36                                                                                                           100

                                                                                                                                                                                                                                         THE POSITION OF FIXED POINTS (I.E.
                                                                                                                                                                                                                                         METRO STATIONS) CORRESPOND WITH
                                                                                                                                                                                                                                         TIME, RELATIVE TO THE DURATION OF
                                                                                                                                                                                                                                         THE CONNECTION LINE




                                                                         Legenda van het ontwikklede navigatiemiddel voor New york City


Geografische projectie van de afgelegde trajecten                        Rechts: uitsnede van het navigatiemiddel voor New York City met de afgelegde trajecten
                                                                         opgetekend inhet centrum van de cirkel


20
1
                                                                                                                                                                                                                                                                                                                                                                                                                                                                                                                                                                                                                                                 25.1.
                                                                                                                                                                                                                                                                                                                                                                                                                                                                                    16:30
                                                                                                                                                                                                                                                                                                                                                                                                                                                                                     Rector St
                                                                                                                                                                                                                                                                                                                                                                                                                                                                                                                                                                                                                                                                                                                                                                           ty
                                                                                                                                                                                                                                                                                                                                                                                                                                                                                                                    14:40
                                                                                                                                                                                                                                                                                                                                                                                                                                                                                                                                                                                                                                                                                                                                                                   iversi
                                                                                                                                                                                                                                                                                                                                                                                                                                                                                                                    Wallstreet
                                                                                                                                                                                                                                                                                                                                                                                                                                                                                                                                                                                                                                                                                                                                                              rd Un
                                                                                                                                                                                                                                                                                                                                                                                                                                                                                                                                                                                                                                                                                                                                                     Stanfo
                                                                                                                                                                                                                                                                                                                                                                                                                                                                          2.3
                                                                                                                                                                                                                                                                                                                                                                                                                                                                                                                                                                                                                                                                   25.1.2
                                                                                                                                                                                                                                                                                                                                                                                                                                                                                                                                                                                                                                                                                                                                                                                                                     rge
                                                                                                                                                                                                                                                                                                                                                                                                                                                                                                                                                                                                                                                                                                                                                                                                               St Geo
                                                                                                                                                                                                                                                                                                                                                                                                                                                                                                                                                                                                                                                                                                                                                                                                                        ville
                                                                                                                                                                                                                                                                                                                                                                                                                                                                                                                                                                                                                                                                                                                                                                                                                Totten
                                                                                                                                                                                                                                                                                                                                                                                                                                                                                                                                                                                                                                                                                                                                                               AND                                                       on
                                                                                                                                                                                                                                                                                                                                                                                                                                                                                                                                                                                                                                                                                                                                                                                                                Staplet
                                                                                                                                                                                                                                                                                                                                                                                                                                                                                                                                                                                                                                                                                                                                                                                Island                                     Hills
                                                                                                                                                                                                                                                                                                                                                                                                                                                                                                                                                                                                                                                                                                               EN ISL                                                 Staten                                     Dongan
                                                                                                                                                                                                                                                                                                                                                                                                                                                                                                                                                                                                                                                                      STAT
                                                                                                                                                                                                                                                                                                                                                                                                                                                                                                                                                                                                                                                                                4.1
                                                             16:53
                                                             Bleecker St
                                                                                                                                                                                                                                                                                                                                                                                                                                                                                                                                                                                                                                                                                                                                                                                                                         116 St/
                                                                                                                                                                                                                                                                                                                                                                                                                                                                                                                                                                                                                                                                                                                                                                                                                         Columbia U
                                                                                                                                                                                                                                                                                                                                                                                                                                                                                                                                                                                                                                                                                                                                                                                             rsity
                                                                                                                                                                                                                                                                                                                                                                                                                                                                                                                                                                                                                                                                                                                                                                            Columbia Unive
                                                                                                                                                                                                                                                                                 16.25                                                                                                                                                                                                                                                                                                                                                                                                      4.2
                                                                                                                                                                                                                                                                                   South Ferry
                                                                                                                                                                                                                                                                                  Whitehall St/
                                                                                                                                                                                                                                                                                 16.19
                                                                                                                                                                                                                                                                                 Ferry Terminal
                                                                                                                                                                                                                                                                                  Staten Island
                                                                                                                                                                                                                                                                                                                                                                                                                                                                                                                                                                                                                                                                                                                                                                                         The city
                                                                                                                                                                                                                                                                                                                                                                                                                                                                                                                                                                                                                                                                                                  4.3
07:1
18:5
08:3
17:4
08:3
 10.1
 Bedfo
                                                                                                                                                                                                                                                                                                                                                                                                                                                                                                                                                                                                                                                                                                  4.4                                    Professor's office                       Columbia University                           116 St/
                                                                                                                                                                                                                                                                                                                                                                                                                                                                                                                                                                                                                                                                                                                                                                                                                                Columbia U
                                                                                                                                                                                                                                                                                                                                                                                                                                                                                                                                                                                                                                                                                             4.5
                                                                                                                                                                                                                                                                                                                                                                                                                                                                                                                                                                                                                                                                                                                                                Fence
                                                                                                                                                                                                                                                                                                                                                                                                                                                                                                                                                                                                                                                                                                                                                                      Public works garage
         08:52
         Bergen St                                                                                                                                                                                                                                                                                                                                                                                                                                                                                                                                                                                                                                                                                                                                                                           at Long Island
                                                                                                                                                                                                                                                                                                                                                                                                                                                                                                                                                                                                                                                                                      4.6
                                                                                                                                                                                                                                                                                                                                                                                                                                                                                                                                                                                                                                                                                                                          Municipal
                                                                                                                                                                                                                                                                                                                                                                                                                                                                                                                                                                                                                                                                                                                                    ity's high
                                                                                                                                                                                                                                                                                                                                                                                                                                                                                                                                                                                                                                                                                                                          departme             way
                                                                                                                                                                                                                                                                                                                                                                                                                                                                                                                                                                                                                                                                                                                                    nt garage
                                                                                                                                                                                                                                                                                                                                                                                                                                                                                                                                                                                                                                                                                                                                                                            Long Islan
                                                                                                                                                                                                                                                                                                                                                                                                                                                                                                                                                                                                                                                                                                                                                                                         d
                                                                                                                                                                                                                                                                                                                                                                                                                                                                                                                                                                                                                                                                        4.7.1
                                                                                                                                                                                                                                                                                                                                                                                                                                                                                                                                                                                                                                                                                                                                                                                                               Roosev
                                                                                                                                                                                                                                                                                                                                                                                                                                                                                                                                                                                                                                                                                                                                                        Synago                                                Jackso elt Ave/
                                                                                                                                                                                                                                                                                                                                                                                                                                                                                                                                                                                                                                                                                                                                                                 gue in                                             n Hts
                                                                                                                                                                                                                                                                                                                                                                                                                                                                                                                                                                                                                                                                                                                                                                           Queens
                                                                                                                                                                                                                                                                                                                                                                                                                                                                                                                                                                                                                                                                                                                                                                                                                                              Sutphi
                                                                                                                                                                                                                                                                                                                                                                                                                                                                                                                                                                                                                                                                                                                                                                                                         Queens                              JFK Airn Blvd/
                                                                                                                                                                                                                                                                                                                                                                                                                                                                                                                                                                                                                                                                                                                                                                                                                   Plaza                             port
                                                                                                                                                                                                                                                                                                           15.50
                                                                                                                                                                                                                                                                                                           Ferry Terminal                                                                                                                                                                                                                                                                                                                                                                                                                                                                               Forest
                                                                                                                                                                                                                                                                                                               Manhattan                                                                                                                                                                                                                                                                                                                                                                                                                                                                               71 Av Hills/
                                                                                                                                                                                                                                                                                                                                                                                                                                                                                                                                                                                                                                                                                                                                                                                                            e
                                                                                                                                                                                                                                                                                                                                                                                                                                                                                                                                                                                                                                                                                                                                                                                                      23 St/
                                                                                                                                                                                                                                                                                                                                                                                                                                                                                                                                                                                                                                                                                                                                                                                                      Court Ely Ave/
                                                                                                                                                                                                                                                                                                                                                                                                                                                                                                                                                                                                                                                                                                                                                                                                            Sq
                                                                                                                                                                                                                                                                                                           15.45
                                                                                                                                                                                                                                                                                                            St George                                                                                                                                                                                                                                                                                                                                      4.7.2
                                                                                                                                                                                                                                                                                                                                                                                                                                                                                                                                                                                                                                                                                                                                   Scho
                                                                                                                                                                                                                                                                                                                                                                                                                                                                                                                                                                                                                                                                                                                                          ol on
                                                                                                                                                                                                                                                                                                                                                                                                                                                                                                                                                                                                                                                                                                                                                   the Lo                                      Gran
                                                                                                                                                                                                                                                                                                                                                                                                                                                                                                                                                                                                                                                                                                                                                         we r East                                  d St
                                                                                                                                                                                                                                                                                                                                                                                                                                                                                                                                                                                                                                                                                                                                                                   Sid e                      Delan
                                                                                                                                                                                                                                                                                                                                                                                                                                                                                                                                                                                                                                                                                                                                                                                             Esse cey St/
                                                                                                                                                                                                                                                                                                                                                                                                                                                                                                                                                                                                                                                                                                                                                                                            Lowe x St
                                                                                                                                                                                                                                                                                                                                                                                                                                                                                                                                                                                                                                                                                                                                                                                           Side r East
                                                                                                                                                                                                                                                                                                                                                                                                                                                                                                                                                                                                                                                                                                                                                                                                2
                                                                                                                                                                                                                                                                                                                                                                                                                                                                                                                                                                                                                                                                                                                                                                                          East Ave
                                                                                                                                                                                                                                                                                                                                                                                                                                                                                                                                                                                                                                                                                                                                                                                                Broa
                                                                                                                                                                                                                                                                                                                                                                                                                                                                                                                                                                                                                                                                                                                                                                                                     dway
                                                                                                                                                                                                                                                                                                                                                                                                                                                                                                                                                                                                                                                                                                                                                                                         Bowe
                                                                                                                                                                                                                                                                                                                                                                                                                                                                                                                                                                                                                                      4.8                                                                                                                                                     ry
                                                                                                                               09:30
                                                                                                           Broadway/Lafayette St
                                                                                                                                                  09:36
                                                                                                                                                  Bleecker St                                                                                                                                                                                                                                                                                                                                                                                                                                                                                                                                                       The
                                                                                                                                                                                                                                                                                                                                                                                                                                                                                                                                                                                                                                                                                                                          hood
                                                                                                                                                                                                                                                                                                                                                                                                                                                                                                                                                                                                                                                                                                                                 of a
                                                                                                                                                                                                                                                                                                                                                                                                                                                                                                                                                                                                                                                                                                                                        Cadil
                                                                                                                                                                                                                                                                                                                                                                                                                                                                                                                                                                                                                                                                                                                                             lac
                                                                                                                                                                                                                                                                                                                                                                                                                                                                                                                                                                                                                   4.10
                                                                                                                                                                                                                                                                                                                                                                                                                                                                                                                                                                                                                                                                                                        Jena
                                                                                                                                                                                                                                                                                                                                                                                                                                                                                                                                                                                                                                                                                                            , La
                                                                                                                                                                                                                                                                                                                                                                                                                                                                                                                                                                                                                                                                                                                .
                                                                                                                                                                                                                                                                                                                                                                                                                                                                                                                                                                        4.1
                                                                                                                                                                                                                                                                                                                                                                                                                                                                                                                                                                             1
                                                                                                                                                                                                                                                                                                                                                                                                                                                                                                                                                                                                                                                                            A tr
                                                                                                                                                                                                                                                                                                                                                                                                                                                                                                                                      4.1                                                                                                                                       ee
                                                                                                                                                                                                                                                                                                                                                                                                                                                                                                                                            2
                                                                                                                                                                                                                                    10:02
                                                                                                                                                                                                                                        125 St
                                                                                                                                                                                                                                                                                                                                                                                                                                                                                                                                                                                                                                Th
                                                                                                                                                                                                                                                                                                                                                                                                                                                                                                                                                                                                                              sy e Yo
                                                                                                                                                                                                                                                                                                                                                                                                                                                                                                 4.1                                                                                                                            na
                                                                                                                                                                                                                                                                                                                                                                                                                                                                                                       3                                                                                                                           go ung
                                                                                                                                                                                                                                                                                                                                                                                                                                                                                                                                                                                                                                     gu Isra
                                                                                                                                                                                                                                                                                                                                                                                                                                                                                                                                                                                                                                       e in e
                                                                                                                                                                                                                                                                                                                                                                                                                                                                                                                                                                                                                                           Qu l of
                                                                                                                                                                                                                                                                                                                                                                                                                                                                                                                                                                                                                                             ee Hil
                                                                                                                                                                                                                                                                                                                                                                                                                                                                                                                                                                                                                                               ns lcre
                                                                                                                                                                                                                                                                                                                                                                                                                                                                                                                                                                                                                                                            st
                                                                                                                                                                                                                                                                                                                                                                                                                                                                                                                                                                                                                                                                                  17
                                                                                                                                                                                                                                                                                                                                                                                                                                                                                                                                                                                                                                                                                Ja 9 St/
                                                                                                                                                                                                                                                                                                                                                                                                                                                                                                                                                                                                                                                                                   m
                                                                                                                                                                                                                                                                                                                                        15.15
                                                                                                                                                                                                                                                                                                                                                                                                                                                                                                                                                                                                                                                                              169 aica
                                                                                                                                                                                                                                                                                                                                             Old Town                                                                                                                                                                                                                                                                                                                             St
                                                                                                                                                                                                                                                                                                                                                                                                                                                                 4.1
                                                                                                                                                                                                                                                                                                                                                                                                                                                                      4                                                                                                   Mu
                                                                                                                                                                                                                                                                                                         1.3
                                                                                                                                                                                                                                                                                                                                                                                                                                                                                                                                                                        on rry
                                                                                                                                                                                                                                                                                                                                                                                                                                                                                                                                                                           th Be
                                                                                                                                                                                                                                                                                                                                14.13
                                                                                                                                                                                                                                                                                                                                                                                                                                                                                                                                                                             e lo rg
                                                                                                                                                                                                                                                                                                                                                                                                                                                                                                                                                                                 we trau
                                                                                                                                                                                                                                                                                                                                                                                                                                                                                                                                                                                   rE m
                                                                                                                                                                                                                                                                                                                                                                                                                                                                                                                                                                                     as Hig
                                                                                                                                                                                                                                                                                                                                                                                                                                                                                                                                                                                       tS h
                                                                                                                                                                                                                                                                                                                                                                                                                                                                                                                                                                                         ide Sch
                                                                                                                                                                                                                                                                                                                                                                                                                                                                                                                                                                                                                        oo
                                                                                                                                                                                                                                                                                                                                                                                                                                                                                                                                                                                                                          l
                                                                                                                                                                                                                                                                     14:00
                                                                                                                                                                                                                                                                     Mt Eden Ave
                                                                                                                                                                                                                                                                                                                                                                                                                                                                                                           Be
                                                                                                                                                                                                                                                                                                                                                                                                                                                                                                             nc
                                                                                                                                                                                                                                                                                                                                                                                                                                                                                                                h
                                                                                                                                                                                                                                  2.2
                                                                                                                                                                                                                                                                                                                                                                                                                                                                                                                                                                                                                                        Ch
                                                                                                                                                                                                                                                                                                                                                                                                                                                                                                                                                                                                                                            am
                                                                                                                                                                                                                                                                                                                                                                                                                                   13                                                                                                                                                                                                         be
                                                                                                                                                                                                                                                                                                                                                                                                                                     .1
                                                                                                                                                                                                                                                                     2.1
                                                                                                                                                                                                                                                                                                                                                                                                                                                                                                                                                                                                                                                 rs
                                                                                                                                                                                                                                                                                                                                                                                                                                                                                                                                                                                                                                                      St
                                                                                                                                                                                                                                                                                                 10:20
                                                                                                                                                                                                                                                                                                                                                                                                                                                                                                                                 A
                                                                                                                                                                                                                                                                                                                                                                                                                                                                                                                                     sc
                                                                                                                                                                                                                                                                                                                                                                                                                                                                                                                                       ho
                                                                                                                                                                                                                                                                                                                                                                                                                                                                                                                                          ol
                                                                                                                                                                                                                                                                                                                                                                                                                                                                                                                                                a
                                                                                                                                                                      13.35
                                                                                                                                                                       St George
                                                                                                                                                                                                                                                       11:11
                                                                                                                                                                                                                                                       3 Ave/East 149 St                                                                                                                                                                                                                                                                         tS
                                                                                                                                                                                                                                                                                                                                                                                                                                                                                                                                                    tat
                                                                                                                                                                                                                                                  149 St/Gd Concourse                                                                                                                                                                                                                                                                                   en
                                                                                                                                                                                                                                                                                                                                                                                                                                                                                                                                                             Isla
                                                                                                                                                                                                                                   11:43
                                                                                                                                                          Ferry Terminal                                                                                                                                                                                                                                                                                                                                                                                         nd
                                                                                                                                                                Manhattan
                                                                                                                                                                                                                                                                                                                                                                                                                                                                                                                                                                                                        St
                                                                                                                                                                                                                                                       12:30




                                                                                                                                                                                                                                                                                                                                                                                               13
                                                                                                                                                                                                                                                                                                                                                                                                                                                                                                                                                                                                          ap




                                                                                                                                                                                                                                                                                                                                                                                                .2
                                                                                                                                                                                                                                                                                                                                                                                                                                                                                                                                                                                                  Old         le
                                                                                                                                                                13.28
                                                                                                                                                                                                                                                                                                                                                                                                                                                                                                                                                                                                                  to
                                                                                                                                                                                                                                                                                                                                                                                                                                                                                                                                                                                        Old             To          n
                                                                                                                                                                                                                                                                                                                                                                                                                                                                                                                                                                                                             wn
                                                                                                                                                                                                                                                                                                                                                                                                                                                                                                                                                                                  Ne              To
                                                                                                                                                                                                                                                                                                                                                                                                                                                                                                                                                                                     w               wn
                                                                                                                                                                                                                                                                                                                                                                                                                                                                                                                                                                            Elt             Do
                                                                                                                                                                                                                                                                                                                                                                                                                                                                                                                                                                                 ing          rp
                                                                                                                                                                                                                                                                                                                                                                                                                                                                                                                                                                      Ric             vil
                                                                                                                                                                                                                                                                                                                                                                                                                                                                                                                                                                         hm              le
12.30
                                                                                                                                                                                                                                                                                                                                                                                                                                                                                      Gr                                                                                      on
Ferry Ter                                                                                                                                                                                                                                                                                                                                                                                                                                                                                 an                                                                                      d
Staten Is                                                                                                                                                                                                                                                                                                                                                                                                                                                                                   te                                                                                         Va
                                                                                                                                                                                                                                                                                                                                                                                                                                                                                               vil
                                                                                                                                                                                                                                                                                                                                                                                                                                                                                                  le                                                                                        lle
                                                                                                                                                                                                                                                                                                                                                                                                                                                                                                                                                                                                 y




                                                                                                                                                                                                                                                                                                                                                        8.2
                                                                                                                                                                                                                                                                                                                                                          .1
                                                                                                                                                                                                                                                                                                                                                                                                                                                                                                                                Gr
                                                                                                                                                                                                                                                                                                                                                                                                                                                                                                                            E aa




                                                                                                                                                                                                                                                                                                                                                                                                                                                 in
                                                                                                                                                                                                                                                                                                                                                                                                                                                                                                                          Ba ast me




                                                                                                                                                                                                                                                                                                                                                                                                                                               Th Sta
                                                                                                                                                                                                                                                                                                                                                                                                                                                                                                                        St yo 22 re




                                                                                                                                                                                                                                                                                                                                                                                                                                                 e te
                                                                                                                                                                                                                                                                                                                                                                                                                                                    Ne n
                                                                                                                                                                                                                                                                                                                                                                                                                                                                                                                          Ge nne St
                                                                                                                                                                                                                                                                                                                                                                                                                                                                                                                            or      /




                                                                                                                                                                                                                                                                                                                                                                                                                                                      w Isla
                                                                                                                                                                                                                                                                                                                                                                                                                                                           ta
                                                                                                                                                                                                                                                                                                                                                                                                                                                                                                                               ge




                                                                                                                                                                                                                                                                                                                                                                                                                                                       Da n




                                                                                                                                                                                                                                                                                                            8.2
                                                                                                                                                                                                                                                                                                                                                                                                                                                         ko d




                                                                                                                                                                                                                                                                                                              .2
                                                                                                                                                                                                                                                                                                                                                                                                                                                              Din
                                                                                                                                                                                                                                                                                                                                                                                                                                                                r e




                                                                                                                                                                                                                                                                                                                                                                                                    BR
                                                                                                                                                                                                                                                                                                                                                                                                       O




                                                                                                                                                                                                                                                                         8.3
                                                                                                                                                                                                                                                                                                                                                                                                     31
                                                                                                                                                                                                                                                                                                                                                                                                        bu
                                                                                                                                                                                                                                                                                                                                                                                                          ild
                                                                                                                                                                                                                                                                                                                                                                                                                                                                                St
                                                                                                                                                                                                                                                                                                                                                                                                                                                                            aa 2




                                                                                                                                                                                                                                                                                                                                                                                                             ing
                                                                                                                                                                                                                                                                                                                                                                                                                                                                              B Ge
                                                                                                                                                                                                                                                                                                                                                                                                                                                                              me St
                                                                                                                                                                                                                                                                                                                                                                                                                                                                                re /




                                                                                                                                                                                                                                                                                                                                                                                                                s in
                                                                                                                                                                                                                                                                                                                                                                                                                                                                            Ea ayo org
                                                                                                                                                                                                                                                                                                                                                                                                                                                                          Gr st 2 nne e




                                                                                                                                                                                                                                                                                                                                                                                                                 Th
                                                                                                                                                                                                                                                                                                                                                                                                                   eB
                                                                                                                                                                                                                                                                                                                                                                                                                        NX
                                                                                                                                                                                                                                                                                                                                                                                                                       ro
                                                                                                                                                                                                                                                                                                                                                                                                                         nx




                                                                                                                                                                                                                           11.1
                                                                                                                                                                                                                                                                                                                                                    Str
                                                                                                                                                                                                                                                                                                                                                                                                                              Tr




                                                                                                                                                                                                                                                                                                                                                  Co eet
                                                                                                                                                                                                                                                                                                                                                          ity
                                                                                                                                                                                                                                                                                                                                                                                                                            9 S ur
                                                                                                                                                                                                                                                                                                                                                                                                                                 Gd




                                                                                                                                                                                                                                                                                                                                                    mm an
                                                                                                                                                                                                                                                                                                                                                                                                                            Co emo
                                                                                                                                                                                                                                                                                                                                                                                                                                    st
                                                                                                                                                                                                                                                                                                                                                                                                                                      1




                                                                                                                                                                                                                                                                                                                                                        un d T




                                                                                                                                                                                                     11.2
                                                                                                                                                                                                                                                                                                                                                                 o
                                                                                                                                                                                                                                                                                                                                                                                                                          14 nco nt A

                                                                                                                                                                                                                                                                                                                                                                                                                                       18
                                                                                                                                                                                                                                                                                                                                                                                                                                         v
                                                                                                                                                                                                                                                                                                                                                                                                                               t/ se e

                                                                                                                                                                                                                                                                                                                                                                                                                                          0S




                                                                                                                                                                                                                                                                                                                                                              Ce wns
                                                                                                                                                                                                                                                                                                                                                                                                                                           (W
                                                                                                                                                                                                                                                                                                                                                                                                                                             t




                                                                                                                                                                                                                                                                                                                                                                nte en
                                                                                                                                                                                                                                                                                                                                                                                                                                        23 oo
                                                                                                                                                                                                                                                                                                                                                                                                                                 Ea St/ e S
                                                                                                                                                                                                                                                                                                                                                                                                                                               ta




                                                                                                                                                                                                                                                                                                                                                                   ra dA
                                                                                                                                                                                                                                                                                                                                                                                                                                                  d


                                                                                                                                                                                                                                                                                                                                                                                                                                      Y 3 S dlaw




                                                                                                                                                                                                                                                                                                                                                                     t 17 ve
                                                                                                                                                                                                                                                                                                                                                                                                                                    16 anke t/ n)




                                                                                                                                                                                                                                                                                                                                                                         5th nue




                                                                                                                                                                                                                                        Emer




                                                                                                                                                            11.4
                                                                                                                                                                                                                                            genc
                                                                                                                                                                                                                                                                                                         Mar




                                                                                                                                                                                                                                                y ro
                                                                                                                                                                                                                                                                                                            ina




                                                                                                                                                                                                                                                 om
                                                                                                                                                                                                                                                                                                                                                                                     174




                                                                                                                                                                                                                                                                                                            del




                                                                                                    14.1
                                                                                                                                                                                                                                                                                                                                                                                   176
                                                                                                                                                                                                                                                                                                                                                                                         -17




                                                                                                                                                                                                                                                                                                               Rey
                                                                                                                                                                                                                                                                                                                                                                                    St
                                                                                                                                                                                                                                                                                                                                                                                          5S




                                                                                                                                                                                                            Emer
                                                                                                                                                                                                                                                                                                                                                                                           ts




                                                                           14.2
                                                                                                                                                                                                                genc
                                                                                                                                                                                                                                                        Mon




                                                                                                                                                                                                                    y ro




                     23.1
                                                                                                                                                                                                                                                           tefi




                                                                                                                                                                                                                    om
                                                                                                                                                                                                                                                              e or
                                                                                                                                                                                                                                                               Med
                                                                                                                                                                                                                                                                  ical
                                                                                                                                                                                                                                                                                                                        Par
                                                                                                                                                                                                                                                                                                                          Cast
                                                                                                                                                                                                                                                                                                                            kche




                                                                                                                                                                                                                                                                       Cent
                                                                                                                                                                                                                                                                                                                               le




                                                                                                                                                                                                                                                                            er
                                                                                                                                                                                                                                                                                                                                ster

                                                                                                                                                                                                                                                                                                                                  Hill




                                                                                                           Vacan
                                                                                                                                                                                                                                                                                                                                       Ave




                                                                                                             lot t
                                                                                                                                                                                                                                                                                 Mos




                                                                                                                                                                               Emer
                                                                                                                                                                                   ge
                                                                                                                                                                                                                                                                                    holu




                                                                                                                                                                                    and
                                                                                                                                                                                                                                                                                         Pkw
                                                                                                                                                                                                                                                                                             y




                                                                                                                                                                              Adult ncy ro
                                                                                                                                                                                        Pedia
                                                                                                                                                                                           om
                                                                                                                                                                                              tric




                                                                                                                     355 Eas
                                                                                                                        t 194




                                                                                  Jericho
                                                                                                                             th Str
                                                                                                                                   eet




                                                                                    Veteran
                                                                                            's




                            Central Park,
                            Tavern on the
                                                                                        residenc




                                          Green in
                                                                                                e




                                          West 67th street
                                                                                                                                         Kingsb
                                                                                                                                           ridge
                                                                                                                                             Rd




                                 72 St
                                 Center
                                  66 St/Lincoln
Node and Network

Locatie: New York City, New York, USA / Context: Analyse fase,                                         afbeeldingen geven de karakteristieken weer van de connectie
Border Conditions afstudeerstudio, Architecture and Modernity,                                         tussen de ‘elevated’ (bovengrondse) metro en het straat
2e studiejaar Master opleiding, Technische Universiteit Delft /                                        niveau. Iedere sequentie op pagina 23 is een weergave van een
Docent: Henriette Bier en Sang Lee / Datum: Januari 2008                                               specifiek aandachtspunt. In dit deel van het project draaide
                                                                                                       het om de ontwikkeling van een notatiesysteem om een
Programma: Analyse van de werking van het metronetwerk van                                             ruimtelijke conditie weer te geven en tot bruikbare informatie
New York City naar aanleiding van het groepswerk en analyse                                            te maken. Dit is een belangrijke stap in de methodische
van de transities in een specifiek bovengronds metrostation,                                           ontwikkeling van ontwerpproces van mijn afstudeerproject.
Norwood Avenue.                                                                                        De thematiek van transitie tussen netwerken wordt hier
                                                                                                       geanalyseerd en gedefinieerd. Ook komt de methodiek van
Stedenbouwkundige analyse van specifieke typen van                                                     het sampelen van sequenties om de fasering van transities te
connecties tussen verschillende netwerken in de stad. Deze                                             definiëren en ontwerpen tot stand.




                                                                                                                               The
                                                                                                                              Bronx
                                                                                                                                                                        Long
                                                                                                                                                                       Island
                                                                                                                                                                       Sound
                                                                                                  er
                                                                                                 Riv




                                                                                                                                                        River
                                                                                                                                                 East
                                                                                             on



                                                                                                         an
                                                                                            ds



                                                                                                       att
                                                                                            Hu



                                                                                                       nh
                                                                                                  Ma




                                                                                                                                                             Queens




                  Norwood Avenue

                                                                            Upper
                                                                           New York
                                                                               York
                                                                             Bay

                                                                                                                   Brooklyn




                                    Staten
                                    Island


                                                                              Lower
                                                                             New York
                                                                                 Y
                                                                               Bay                                                       Atlantic Ocean

                                                                                                                                    0        2           4         6     8      10KM
                                                                                                                                                                                       N




Overzichtskaart van de geanalyseerde trajecten, oranje = bovengronds, zwart = ondergronds              Rechts: transitie analyse Norwood avenue elevated station



22
Phase 1 | Relocation       Phase 3 | Disconnection                      Phase 5 | Relocation / Re-connection   Phase 7 | Re-connection / Submergence



         1                                                                                             9              10        11                          16




                        3             4             5         6          7               8




         2                                                                                             12             13        14         15               17




                  Phase 2 | Re-orientation         Phase 4 | Submergence (1st phase)             Phase 6 | Re-orientation                                        Phase 4 | Exposure


Basis sequentie: fasering en elementen in de transitie van metro naar straatniveau



     Phase 1 | Relocation       Phase 3 | Disconnection                      Phase 5 | Relocation / Re-connection   Phase 7 | Re-connection / Submergence



         1                                                                                             9              10        11                          16




                        3             4             5         6          7               8




         2                                                                                             12             13        14         15               17




                  Phase 2 | Re-orientation         Phase 4 | Submergence (1st phase)             Phase 6 | Re-orientation                                        Phase 4 | Exposure




      Construction screens
      Signification
      Platforms
      Systems
      Roofs
      Transparant screens / Background
      Constructed boundaries

Analyse sequentie 1: visuele elementen en signalen in de transitie van metro naar straatniveau



     Phase 1 | Relocation       Phase 3 | Disconnection                      Phase 5 | Relocation / Re-connection   Phase 7 | Re-connection / Submergence



         1                                                                                             9              10        11                          16




                        3             4             5         6          7               8




         2                                                                                             12             13        14         15               17




                  Phase 2 | Re-orientation         Phase 4 | Submergence (1st phase)             Phase 6 | Re-orientation                                        Phase 4 | Exposure



      Guiding lights
      Path | Direction

Analyse sequentie 2: richting in relatie tot verlichting in de transitie van metro naar straatniveau



     Phase 1 | Relocation       Phase 3 | Disconnection                      Phase 5 | Relocation / Re-connection   Phase 7 | Re-connection / Submergence



         1                                                                                             9              10        11                          16




                        3             4             5         6          7               8




         2                                                                                             12             13        14         15               17




                  Phase 2 | Re-orientation         Phase 4 | Submergence (1st phase)             Phase 6 | Re-orientation                                        Phase 4 | Exposure



      Hole | Connection to next phase
      Path | Direction

Analyse sequentie 3: richting in relatie tot uitgang in de transitie van metro naar straatniveau
Commuter Retreat - Concept & Organisatie                          Diagrammatische serie van de ontwikkeling van de organisatiestructuur per verbindingsroute



Locatie: Queens plaza, New York City, New York, USA / Context:
                                                                                                                  Distribu on of programma c elements


Concept fase, Border Conditions afstudeerstudio, Architecture
                                                                                                                  on each path according to privacy level



and Modernity, 2e studiejaar Master opleiding, Technische
Universiteit Delft / Docent: Henriette Bier, Sang Lee en Freerk
Hoekstra / Datum: Januari 2008
                                                                                                            Public                                               Private                                                                                                      Public



Programma: Analyse van de ontwerplocatie en ontwikkeling
                                                                                                                   Distribu on of programma c elements
                                                                                                                   over four paths per route according

van de programmatische organisatie van het afstudeerontwerp.
                                                                                                                   speed of ac on and privacy level


Bestaande uit een verbinding tussen een bovengronds en een
                                                                                                                                         Private


ondergronds metrostation, waarbinnen een gezondheidscentrum
                                                                                                                                                                                                                     4

en een conferentie centrum worden gerealiseerd.
                                                                                                                                                                                                          3
                                                                                                                                        Public                                   12



Deze diagrammen vormen de basis voor mijn afstudeerontwerp
‘Commuter Retreat’. Het basisidee van dit ontwerp is het
                                                                                                       Distribu on of programma c elements


maken van een connectie tussen een bovengronds en een
                                                                                                       determines the loca on of control points in sec on


ondergronds metro station en deze connectie ‘injecteren’ met
programmatische elementen, die sterk contrasteren met het
                                                                                                         Con ngency:
                                                                                                         Z - Coordinate

dynamische karakter van het knooppunt, om op deze manier een
                                                                                                                                                                                      Dependency of elements:
                                                                                                                                                                                      Z & X coordinates

nieuw soort dynamiek te creëren. Zoals bovenaan pagina 25 te
                                                                                                       00


zien is, is het programma onderverdeeld in drie hoofdelementen:
een gezondheidscentrum, een conferentie centrum en de
ondersteunende functies. Op basis van deze onderverdeling is op




                                                                                                                                                                                                                                                                                            Elevated
methodische wijze het hoofddiagram ontwikkeld, dat onderaan
                                                                                                                                                                                                                                                                                                       +15
                                                                  REFLECTIVE TRANSFER SPEED




                                                                                                                                       Steam pool


op pagina 25 te zien is.                                                                                                                            Whirlpool




                                                                                                                                                                                 Whirlpool
                                                                                                               Cold Pool




                                                                                                                                                                                                                         Cold Pool
                                                                                                                                                                                                                                                                                                       +10
                                                                                                                           Hot pool




                                                                                                                                                                                                                                                  Hot pool
                                                                                                                                                                                 Ice pool
                                                                                                               50 m2



                                                                                                                           50 m2


                                                                                                                                       25 m2

                                                                                                                                                    10 m2

                                                                                                                                                                40 m2


                                                                                                                                                                                 10 m2




                                                                                                                                                                                                                         50 m2
                                                                                                                                                                                 25 m2




                                                                                                                                                                                                                                                  50 m2
                                                                                                                                                                Sauna
                                                                                                                                                                                                                                                                                                       +03
                                                                           Path 2.4




                                                                                                                                                                                                                                                                                                       +00
                                                                                                                                                                                                                                                                                                       -03
                                                                                                                                                                                                                                                                                                       -05




De drie hoofdelementen werden elk georganiseerd langs een
                                                                                              Subway




                                                                                                                                                                                                                                                       10 x 4 m2
                                                                                                                                                            Coccoon
                                                                                                                                                            Coccoon
                                                                                                                                                                       Coccoon
                                                                                                                                                                                 Coccoon
                                                                                                                                                                                           Coccoon
                                                                                                                                                                                                     Coccoon
                                                                                                                                                                                                               Coccoon
                                                                                                                                                                                                                         Coccoon
                                                                                                                                                                                                                                   Coccoon
                                                                                                                                                                                                                                             Coccoon
verbindingsroute. Vervolgens is elk van deze routes vertakt
in vier paden met verschillende karakteristieken wat betreft
                                                                  Diagrammatische doorsnede route 2.4



privacy en verbindingssnelheid. De programmatische elementen
                                                                                                             Distribu on of programma c elements

zijn daarna op hiërarchische wijze gerangschikt over deze
                                                                                                             determines the loca on of control points in plan


paden. Vervolgens zijn alle elementen geordend op de locatie,
afhankelijk van hoe ze in relatie tot elkaar en het maaiveld
                                                                                                                                                                                                                                   Scale and loca on


moesten staan. De locatie van het programma bepaalde zo de
                                                                                                                                                                                                                                   of program
                                                                                                                                                                                                                                   X & Y coordinates


vorm van de verbindende routes.


Het gebouw bestaat dus uit 12 verbindingsroutes met specifieke
karakteristieken en programmatische elementen. Het op
pagina 25 onderaan afgebeelde diagram vormde de basis
                                                                                                                                   Coccoon
                                                                                                                                   Coccoon
                                                                                                                                   Coccoon
                                                                                                                                   Coccoon
                                                                                                                                   Coccoon
                                                                                                                                   Coccoon
                                                                                                                                   Coccoon
                                                                                                                                   Coccoon
                                                                                                                                   Coccoon
                                                                                                                                   Coccoon
                                                                                                                                   Coccoon
                                                                                                                                  10 x 4 m2




voor de latere 3D modellen. Cruciaal is de methodiek van het
hiërarchisch opbouwen van een netwerkstructuur als basis
voor de organisatie van het gebouw, door een strategie van
                                                                                                                                                                                                                                                Steam pool
                                                                                                                                                                          Whirlpool




                                                                                                                                                                                                                           Whirlpool
                                                                                                                                         Cold Pool




                                                                                                                                                                                                                                                                                Cold Pool
                                                                                                                            Hot pool




                                                                                                                                                                                                                                                                   Hot pool
                                                                                                                                                            Ice pool
                                                                                                                            50 m2


                                                                                                                                         50 m2


                                                                                                                                                            25 m2

                                                                                                                                                                          10 m2


                                                                                                                                                                                                     40 m2

                                                                                                                                                                                                                           10 m2

                                                                                                                                                                                                                                                25 m2


                                                                                                                                                                                                                                                                   50 m2


                                                                                                                                                                                                                                                                                50 m2
                                                                                                                                                                                                     Sauna




vertakken (branching). Daarnaast is het achterliggende concept
van connectie en stromenpatronen als uitgangspunt belang.
Evenals het structureren van data en parameters met behulp
van de computer, om op die manier een organisatiestructuur te
genereren.                                                        Diagrammatische plattegrond route 2.4


                                                                  Rechtsboven: programmatische opbouw / Rechtsonder: organisatiediagram



24
1                                                                                                                        0                                                                                                                                                               2
                                                                        Conference                                                                                                               Public                                                      Service                                                                                             Health
                                                                        centre                                                                                                                   program                                                     program                                                                                             centre
                                                                        570 m2                                                                                                                   672 m2                                                      980 m2                                                                                              960 m2




                                              Conference room 2 x 100




                                                                                                   Discussion room 4 x 30




                                                                                                                                                                                                                                                                                                                                             Swimming pool 250


                                                                                                                                                                                                                                                                                                                                                                 Fitness room 150




                                                                                                                                                                                                                                                                                                                                                                                                                                                                                                                 Whirlpool 2x10
                                                                                                                                                               Reading room 40
                                                                        Presentation room 3 x 50




                                                                                                                                                                                                                                                                                                                                                                                                                                              Massage room 2 x 15
                                                                                                                                                                                                 Ticket


                                                                                                                                                                                                          Info




                                                                                                                                                                                                                                                                   Restaurant


                                                                                                                                                                                                                                                                                Library




                                                                                                                                                                                                                                                                                                                         Dressing rooms
                                                                                                                                            Workplace 10 x 4




                                                                                                                                                                                                                                                                                                                                                                                                                                                                                   Steam pool 25
                                                                                                                            Media room 50




                                                                                                                                                                                                                                                                                                                                                                                                                                                                                                                                  Coccoon 15 x 4
                                                                                                                                                                                                                                                                                                                                                                                    Seminar room 4 x 40




                                                                                                                                                                                                                                                                                                                                                                                                                            Cold pool 2x 50




                                                                                                                                                                                                                                                                                                                                                                                                                                                                    Sauna 2 x 40




                                                                                                                                                                                                                                                                                                                                                                                                                                                                                                   Ice pool 25
                                                                                                                                                                                                                                                   Terrace


                                                                                                                                                                                                                                                             Bar




                                                                                                                                                                                                                                                                                                               Showers
                                                                                                                                                                                                                 Kiosk




                                                                                                                                                                                                                                                                                                                                                                                                          Hot pool 2 x 50
                                                                                                                                                                                        Garden




                                                                                                                                                                                                                                                                                                    Toilets
                                                                                                                                                                                                                                                                                          Lockers
                                                                                                                                                                                                                         Public toilet




                                                                                                    Coccoon
                                                                                                          Coccoon
                                                                                                                CoccoonCoccoon
                                                                                                                             CoccoonCoccoonCoccoon
                                                                                                                                                 Coccoon Coccoon
                                                                                                                                                               Coccoon
                                                                                                                                                              10 x 4 m2      Workspace Workspace Workspace
                                                                                                                                                                                   Workspace Workspace




                                                                                                                                                                                                                                                                                                                                                                                                                                                                                                                                                                                           Pa th 2 .4
        Workspace




                                                                                                                                                                                                                                                                                                                                                                                                                                                                                                                                                                                              Pa th 2
                                                                                                                                                                      Seminar room 4 m2 4 m2 4 m2 4 m2
                                                                                                                                                                                4 m2




                                                                                                                                                                                                                                                                                                                                                                                                                                                                                                                                                                                       Pa th 2 .3
                                                                                               Hot pool        Cold Pool        Ice pool    Whirlpool       Sauna       Whirlpool Steam pool     Hot pool                                                                                                                                                                                                                                                                                                                                                      Cold Pool




                                                                                                                                                                                                                                                                                                                                                                                                                                                                                                                                                                                                Pa
   Workspacex 4m2
         10                                                                                                                                                              40 m2




                                                                                                                                                                                                                                                                                                                                                                                                                                                                                                                                                                                  Pa h 2 .2
                                                                                                50 m2           50 m2            25 m2        10 m2         40 m2        10 m2       25 m2        50 m2                                                                                                                                                                                                                                                                                                                                                         50 m2




                                                                                                                                                                                                                                                                                                                                                                                                                                                                                                                                                                                             .1
                                                                                                            Seminar room                                                                      Fitness room




                                                                                                                                                                                                                                                                                                                                                                                                                                                                                                                                                                                 th 0.4
                                                                                                                                                                                                                                                                                                                                                                                                                                                                                                                                                                                         t
Workspace                                                                                                      40 m2                                                                             150 m2




                                                                                                                                                                                                                                                                                                                                                                                                                                                                                                                                                                                      3
                                                                                                                                                                                                                                                                                                                                                                                                                                                                                                                                                                                    th
                                                                                                                        Bar




                                                                                                                                                                                                                                                                                                                                                                                                                                                                                                                                                                                   0.
                                                                                                                                                                                                     Kiosk
                           Massage room                                                                               200 m2




                                                                                                                                                                                                                                                                                                                                                                                                                                                                                                                                                                               Pa
Workspace                                                                                                                                                                                            10 m2
                        Restaurantm2
                               15                                                                                        Massage Dressing rooms
                                                                                                                                 room          Dressing rooms             Lockers
                         200 m2                                                                                             15 m2 4 x 20 m2      4 x 20 m2                 50 m2
 Workspace
                                              Toilets   Toilets
                                                                                                                                                                                                                                                       Toilets                                                                                                                                                                                                                                                                                     Showers
    Workspace                               2 x 15 m2 2 x 15 m2                                                                                                                                                                                                                                                                                                                                                                                                     Showers
                                                                                                                                                                                                                                                     2 x 15 m2 Toilets                                                                                                                                                                                                                                                                             2 x 20 m2
                                                   Swimming pool                                                                                                                                                                                               2 x 15 m2                                                                                         Garden                                                                                             2 x 20 m2
       Workspace                                      250 m2                                                                                                                                                                                                                                                                                                     600 m2                                                                                  Coccoon
                                                                                                                                                                                                                                                                                                                                                                                                                                                               Coccoon
            Workspace                        Ticket vending Kiosk boot
                                                         Informa on
                                                                                                                                                                                                                                                                                                                                            Library                                                                                                            5 x 4 m2
                                                                                                                                                                                                                                                                                                                                                                                                                                                                                                                                                               Public toilet
                                                  12 m2         10 m2                                                                                                                                                                                                                                                                                                                                                                                                                                                                                            15 m2
                                                                                                                                                                                                                                                                                                                                            150Relax room
                                                                                                                                                                                                                                                                                                                                                m2
              Workspace   Public toilet                                                                                                                                                                                                  Terrace                                                                                                  40 m2
                            15 m2                                                                                                                                                                                                        200 m2
                 Workspace                                                                                                                                                                                                                                                                                      Coccoon
                                                                                                                                                                                                                                                                                                          Coccoon
                                                                                                                                                                                                                                                                                                    Coccoon
               Discussion Room
                    30 m2          Seminar room                                                                                                                                                                                                                                                                                                                                                                                                        Conference room
                                      40 m2                                                                                  Reading room                                                                                                                                                                                                                                                                                                                  100 m2
                                                                                                                                                                                                                                                                                                                                                                                                                                                            Discussion room
                                                                                                                                40 m2
                                                                                                                                                                                           Reading room                                                                                                       Discussion room                                                                                                                                                                                    30 m2
      Discussion Room                                                                                                                                                               Media room m2
                                                                                                                                                                                              40                                                                                                                   30 m2
           30 m2                                                                                                                                                                          Path 0.4
                                                                                                                                                                                      50 m2 .4  .4
                     Presenta on room                                                                                                                                                     Path 1.4
                                                                                                                                                                                                .4
                                                                                                                                                                                                 4                                                                                                                                        Presenta on room
                           50 m2                                                                                                                                                          Path 2.4
                                                                                                                                                                                                 4                                                             Seminar room                                                                     50 m2
                                           Conference room                                                                                                                                                                                                        40 m2
                                               100 m2                                                                                                                            Path 2.1Path 2.3
                                                                                                                                                                                  a
                                                                                                                                                                                          Path 1.2
                                                                                                                                                                                 Path 0.1
                                                                                                                                                                                  a
                                                                                                                                                                                        Path 1.3
                                                                                                                                                                                        Path 1.1
                                                                                                                                                                                        Path 0.2
                                                                                                                                                                                        Path 0.3
                                                                                                                                                                                          th 3
                                                                                                                                                                                           h
                                                                                                                                                                                        Path 2.2
                                                                                                                                                                                        P




                                                                 .1
                                                             h1
                                                          Pat h 1.4
                                                           Pa t      .3
                                                                 h1
                                                             Pat 1.2
                                                                   h
                                                                Pat 0.2
                                                                     h
                                                                 Pat 0.1
                                                                        h
                                                                    Pat
Commuter Retreat - Ruimtelijk Model

Locatie: Queens plaza, New York City, New York, USA / Context:                           gegenereerd. Hierbij word gebruik gemaakt van NURBS geometrie, die
Schetsontwerp, Border Conditions afstudeerstudio, Architecture and                       wordt gedefinieerd door vectoren, in plaats van statische punten, waardoor
Modernity, 2e studiejaar Master opleiding, Technische Universiteit Delft /               informatie over snelheid en verplaatsing kan worden opgenomen
Docent: Henriette Bier, Sang Lee, Freerk Hoekstra / Datum:                               in de vormentaal. Dit wordt mogelijk gemaakt door het gebruik van
Mei 2008                                                                                 specifieke computerprogramma’s, die resulteren in een andere manier
                                                                                         van omgaan met ruimtelijk ontwerp. In de hieronder afgebeelde serie van
Programma: Ontwikkeling van een 3 dimensionale ruimtelijke expressie                     transformaties wordt elke keer een nieuwe laag informatie toegevoegd,
van het ontwikkelde functionele diagram van het gezondheidscentrum met                   waarmee uiteindelijk de ruimtelijke opzet voor het gebouw wordt
behulp van computermanipulaties.                                                         bepaald, zoals die is weergegeven in het diagram op de rechterpagina.
                                                                                         Er worden twee ‘huiden’ gecreëerd, waarvan de binnenste aan de hand
Deze serie van diagrammen vormt de basis van de ontwikkeling van                         van de programmatische eisen en het stromenpatroon vervormt en de
het ruimtelijke model van voor het afstudeerontwerp. In de bijhorende                    buitenste zorgt voor de constructieve en thermische schil van het gebouw.
tekeningen is de ontwikkeling van één van de 12 verbindingsroutes                        Tussen deze twee lagen in worden ondersteunende functies en technische
zichtbaar. Het draait hier vooral om de ontwikkeling van een methodiek,                  randvoorwaarden opgelost. Op deze manier wordt er binnen de methodiek
waarbij aan de hand van een gebruiksstromenpatroon en een dynamische                     gezocht naar een specifieke geïntegreerde oplossing als antwoord op een
opeenvolging van beweging en retentie, een ruimtelijke expressie wordt                   complex probleem.

 Extrusion of a basic geometry along dened spline               Sweep nurbs sec on along modied path                        Scale width of the geometry with the cuvature
                                                                 to create the geometry of the outer skin                     to accomodate the scale of the program




       Insert programma c volumes                                Sweep nurbs geometry along paths
       and stairs into the developed geometry                    outside inserted programma c volumes
                                                                 to create the basic inner skin




                                                                                         Rechts: exploded view ruimtelijk model en programmatische opbouw



26
East bound elevated platform


                 North bound elevated platform
      +15




      +10
                 Elevated station mezzanine




                 Workspaces




      +05
                 Public garden and terrace




      +03        Public workspaces



                 Bar area




                 Dressing rooms ans showers
                 Fitness room
      +00        Lockers and storage
                 Dressing rooms and showers

     Floorplan

Physical model
                 Restaurant area

   Section AA

                 Subway mezzanine
                 Public library
        -05      Cold pool area
                 Sauna and whirlpool area

                 Main swimming pool
                 Hot pool area



        -10
                 Subway platforms




                 Seminar room
Commuter Retreat - Architectuur

Locatie: Queens plaza, New York City, New York, USA / Context:          vervorming van deze elementen door de computer berekend, zodat
Definitief ontwerp, Border Conditions afstudeerstudio, Architecture     ze met de huid mee vormen en een sluitende constructie ontstaat. Dit
and Modernity, 2e studiejaar Master opleiding, Technische               is het zogeheten parametrisch modelleren van de draagconstructie.
Universiteit Delft / Docent: Henriette Bier, Sang Lee en Freerk
Hoekstra / Datum: Februari 2009                                         In de op pagina 29 afgebeelde plattegrond en doorsnede ontstaat een
                                                                        duidelijk beeld van de ontwikkelde ontwerp methodiek en notatie
Programma: Definitieve architectonische expressie van het               techniek. Door het manipuleren van de ‘control points’, de vectoren
gezondheidscentrum en zijn ondersteunende functies, zoals een bar       die de NURBS vlakken bepalen, is de vormentaal van de binnenruimte
en restaurant.                                                          ontstaan. Om dit gecontroleerd te kunnen doen wordt de geometrie
                                                                        benaderd als een landschap en getekend aan de hand van hoogtelijnen.
Het overzichtsbeeld van het afstudeerproject, dat hieronder is          Door middel van de introductie van een grid met vier richtingen,
afgebeeld, laat duidelijk zien hoe het ruimtelijke diagram, dat begon   het ‘diagrid’, is het mogelijk om de vectoren van de lijnen op een
als complex netwerk, een architectonische expressie heeft gekregen,     gestructureerde manier te manipuleren.
aan de hand van programmatische injecties,. Hierbij zijn de 3D          Daarnaast wordt hier het principe van de gelaagdheid van de
methodiek en het initiële concept, gebaseerd op bewegingsstromen        huiden duidelijk zichtbaar. De buitenste huid vormt de dragende
en verbindingsroutes, duidelijk zichtbaar in de vormentaal.             en thermische schil en de binnenste huid vormt zich tot bankjes,
De constructieve schil, die de complexe vormentaal mogelijk maakt,      trappen en kasten. De laag die tussen de huiden ontstaat, bevat
is in deze afbeelding duidelijk zichtbaar. Op de buitenste huid, die    de ondersteunende functies, zoals toiletten en opslag, evenals de
eerder werd gegenereerd, zijn eenvoudige constructie elementen          dragende schijven die de afstand en de vorm van de huiden bepalen.
geprojecteerd die de hoofddraagconstructie vormen. Bij de projectie     Dit alles zorgt voor een gecombineerde en geïntegreerde oplossing van
van deze elementen op de complexe 3D huid werd de parametrische         een complex vraagstuk.




Overzichtsbeeld ‘Commuter Retreat’                                      Rechtsboven: doorsnede AA / Rechtsonder: plattegrond begane grond



28
1                  2              3                  4              5              6                      7                  8              9          10                  11              12                  13          14          15              16                   17                     18                    19                 20




                                                                                                                                                                                                                                                                                                                                                                                                                                                                                           8
                                                                                                                                                                                                                                                                                                                                                                                                                                                                                           7
                                                                                                                                                                                                                                                                                                                                                                                                                                                                                           6
                                                                                                                                                                                                                                                                                                                                                                                                                                                                                           5
                                                                              16                                                                                                                                                                                                                                                                                                                  17




                                                                                                                                                                                                                                                                                                                                                                                                                                                                                           4
                                                                                                                                                                                                                                                                                                                                                                                                                                                                                           3
                                                    1. Public passage




                                                                                                                                                                                                                                                                                                                                                                                                                                                                                           2
                                                    2. Public toilet
                                                    3. Restaurant
                                                                                                                      1
                                                    4. Climate installations restaurant




                                                                                                                                                                                                                                                                                                                                                                                                                                                                                           1
                                                    5. Service corridor
                                                    6. Climate installations pools
                                                                                                                                                                                                                                 1                      2                                         3
                                                    7. Ducts climate installation




                                                                                                                                                                                                                                                                                                                                                                                                                                                                                           0
                                                    8. Main duct channel                                                                                                                                                                                                                                                            10
                                                    9. Main pool
                                                    10. Light well




                                                                                                                                                                                                                                                                                                                                                                                                                                                                                           1
                                                    11. Entrance to massage room                                                                                                                                                             4                                             9
                                                                                                                                                                                                                                                                                                                                         11

                                                    12. Water treatment installations pools                                                                                                                                                                                                                                                                                                                                                                  7

                                                    13. Main passage through the pool section                                                                                                                                                                                                                                                                                         14




                                                                                                                                                                                                                                                                                                                                                                                                                                                                                           2
                                                    14. Access to the thermal pools                                                                                                                                                          5                                                                                 12                                          13
                                                                                                                                                                                                                                                                                                                                                                                                            15
                                                                                                                                                                                                                                                                                                                                                                                                                                                   5
                                                    15. Hot pool                                                                                                                                                             7                          6
                                                    16. Mezzanine elevated train station                                                                                                                                                                                                                                                                                                                                      6




                                                                                                                                                                                                                                                                                                                                                                                                                                                                                           3
                                                                                                                                                                                                                                                                                                                                                                                12
                                                    17. Access to office space                                                                                                                                                                                  8                                                                                                                                                    8




                                                                                                                                                                                                                                                                                                                                                                                                                                                                                           4
                                                                              A           B                C




                                                                                                                                                                                                                                                                                                                                                                                                                                                                                           5
                                                                                                                           D                  E
                                                                                   2100                                                                      F                  G
                                                                                              2100
                                                                                                               2100                                                                            H              I
                                                                                                                                   2100
                                                                                                                                                                                                                                     J                  K
                                                    20




                                                                                                                                                      2100
                                                                                                                                                                     2100
                                                                                                                                                                                        2100                                                                           L              M
                                                                                                                                                                                                       2100
                                                                                                                                                                                                                      2100                                                                            N               O




                                                                                                                                                                                                                                                                                                                                                                                                                                                                                           6
                                                                                                                                                                                                                                             2100
                                                                                                                                                                                                                                                                                                                                         P            Q
                                                                       2100




                                                                                                                                                                                                                                                                2100
                                                                                                                                                                                                                                                                               2100
                                                                                                                                                                                                                                                                                           2100                                                                   R             S
                                                                                                                                                                                                                                                                                                               2100
                                                                                                                                                                                                                                                                                                                               2100                                                                    T                      U
                                                                                                                                                                                                                                                                                                                                               2100
                                                                                                                                                                                                                                                                                                                                                                                                                                                   V
                                                  19




                                                                                                                                                                                                                                                                                                                                                           2100
                                                                                                                                                                                                                                                                                                                                                                       2100
                                                                                                                                                                                                                                                                                                                                                                                           2100
                                                                                                                                                                                                                                                                                                                                                                                                                                                                      W                X
                                                                                                                                                                                                                                                                                                                                                                                                            2100
                                                                                                                                                                                                                                                                                                                                                                                                                                       2100
                                                                                                                                                                                                                       A                                                                                                                                                                                                                                 2100
                                                                  2100




                                                                                                                                                                                                                                                                                                                                                                                                                                                                                2100
                                                                                                                                                                                                                                                                                                                                                                                                                                                                                            2100
                                             18
                                                                2100




                                                                                               9
                                           17
                                                           2100




                                                                                                                          10
                                      16
                                                         2100




                                                                                                   A
                                    15
                                                    2100
                               14




                                                                                                                                                                                                                                                                                                                                                                                                                                                                                           12
                                                  2100
                             13




                                                                                                           2
                                             2100




                                                                                                                                                             3
                        12
                                           2100
                      11




                                                                                                                                                                                                                                                                                                                                                                                 11

                                                                                                                                          3                                                                                                                                                                                                                                                                                                        14
                                      2100




                                                                                                                                                                                                                                                                                                                                                                                                                13
                                                                                                                                                                                                                                                                                                                                                                                                                                                                      14
                 10




                                                                                                                                                                                                                                                                                                                                                                                                                                                                                                14

                                                                                                                                                                                                                                                                                                                                                                                                                                               19
                                    2100




                                                                                                       1
                                                                                                                                                                                                                                 4
                                                                                                                                                                                                                                                                                                                                                                                                                                                                  14
               9




                                                                                                                                                                                                                                                                                                                                                                                                                                                                                            14
                                                                                                                                                                                                                                                                                                                                                                                                                         15
                                                                                                                                                                                                                                                                                                                                                                                                                                              15
                               2100




                                                                                                                                                                            3


                                                                                                                                                                                                                                                                                                                                                                                                                                                                 16
         8




                                                                                                                                                                                                                                                            7
                                                    1. Restaurant entrance
                             2100




                                                    2. Kitchen                                                                                                   5
                                                                                                                                                                                                                                                    7
                                                                                                                                                                                                                                                                                                                                                                                                                                  18
                                                                                                                                                                                                                                                                                                                                                                                                                                                                           17
        7




                                                    3. Seating area restaurant                                                                                                             6
                                                                                                                                                                                                          6


                                                    4. Wardrobe
                        2100




                                                    5. Storage
    6




                                                    6. Public toilet
                                                                                                                                                                                8



                                                    7. Restaurant toilet
                      2100




                                                    8. Public passage
    5




                                                    9. Passage from elevated station to health centre
                                                    10. Elevator
                 2100




                                                    11. Entrance to health centre
                                                    12. Mezzanine
    4




                                                    13.Counter
               2100




                                                    14. Dressing room
                                                    15. Public toilet
3




                                                    16. Library counter
          2100




                                                    17. Library
                                                    18. Passage to restaurant
2




                                                    19. Installation space                                                                                                                                                                                                                                                                                                                                 N
        2100
1




                                                                                                                                                                                               A
Commuter Retreat - Techniek

Locatie: Queens plaza, New York City, New York, USA / Context: Technisch                      knoop ontwikkeld die de constructie-elementen verbindt. Deze worden
ontwerp, Border Conditions afstudeerstudio, Architecture and Modernity,                       gefabriceerd door middel van computer gestuurde lasrobots. De knoop
2e studiejaar Master opleiding, Technische Universiteit Delft / Docent:                       kan hierdoor eenvoudig met verschillende hoekverdraaiingen in elkaar
Henriette Bier, Sang Lee en Freerk Hoekstra / Datum: Februari 2009                            worden gezet, om zo een complexe 3D structuur te kunnen vormen. De
                                                                                              vervorming van de knoop op een bepaalde plek worden gegenereerd door
Programma: Niet-standaard constructie oplossing, die het mogelijk maakt                       de computer, door projectie van een eenvoudig element op het complexe
de complexe vormentaal van het ontwerp te realiseren. Opgebouwd uit                           3D oppervlak. Deze vervormingparameters kunnen vervolgens worden
seriematig uniek te vervaardigen knopen, ontwikkeld met behulp van                            uitgelezen en worden gebruikt om de lasrobot aan te sturen. Zowel de
computergestuurde productietechnieken.                                                        mogelijkheden van de computer als de productiemethoden geven input
                                                                                              aan de ontwikkeling van een oplossing en maken een bepaalde geometrie
De constructieve uitwerking van het Commuter Retreat project richt zich                       mogelijk. Het proces bepaalt ook hier het ontwerp en niet anders om.
vooral op de ontwikkeling van een methodiek voor het maken van een
constructieve huid met een complexe vorm. De problematiek waarmee                             Het ondergrondse gedeelte van de constructie is gebaseerd op
hierbij rekening wordt gehouden is tweeledig. Enerzijds moet er een                           CNC gefreesde isolatie elementen. Deze bepalen de vorm van de
manier worden ontwikkeld om de constructie te kunnen genereren in                             binnenruimten. Op deze elementen wordt vervolgens gewapend
een computerprogramma en anderzijds moet er worden gekeken naar                               spuitbeton aangebracht als draagkrachtige laag. Hierop worden
een constructiewijze die technisch geloofwaardig en uitvoerbaar is,                           vervolgens de afwerklagen aangebracht die nodig zijn om het sauna-
maar niet fundamenteel in gaat tegen de conceptuele principes van het                         en zwembadprogramma mogelijk te maken. Ook bij dit gedeelte van
ontwerp en de mogelijkheden van de gebruikte middelen. In het geval                           de constructie is de input vanuit computergestuurde productie- en
van de bovengrondse constructie is er een relatief eenvoudig te realiseren                    constructiemethoden leidend.




                                                                                                                                                                      1




                                                                                                                                                                      2 / Detail A


                                                                                                                                                                      3


                                                                                                                                                                      4


                                                                                                                                                                      5




                                                                                                                                                                      6




                                                                                                                                                                      7




1. Outline of the structural skin
2. CNC-welded steel joint
3. Load bearing steel truss
4. Structural skin: steel tubing, cross-bracing the structure and carrying the glass facade                                                                           8

5. Profiled sheet metal flooring base, covered by concrete layer
6. Outline of the main pool: reinforced concrete structure
7. Reinforced concrete slab, covering the roof of the health centre
8. Installation space for water treatment
9. Outline of the smaller hot pool                                                                                                                                    9
10. Air duct channel
11. Shotcrete equalization layer                                                                                                                                      10

12. Reinforced shotcrete base                                                                                                                                         11

13. Reinforced high density insulation                                                                                                                                12

14. Reinforced concrete inner structure Main load bearing                                                                                                             13


                                                                                                                                                                      14


Overzichtstekening van de constructieopbouw boven- en ondergronds                             Rechts: detail van de elementaire parametrische knoop



30
1




                                                                          2
                                                                          3
                                                                          4




                                                                          5

                                                                          6

                                                                          7
                                                                          8
                                                                          9
                                                                          10

                                                                          11




                                                                          12




                                                                          13

1. Triangulated HR++ float glass panels
2. Black plastic sheet rain gutter
3. Mullion to mount the glass facade
4. Adjustable steel mount
5. 2 mm sheet stainless-steel glass fixing, adhesive fixed to glass       14
6. M12 bolt
7. CNC steel joint connecting the cross-bracing to the trusses
8. 60 mm high-molecular polythene section for fixing the glass
9. 100/50/6 extruded steel UHP-profile
10. Structural skin: 150/4 mm steel tubing, cross-bracing the structure
11. Expanding connection joint
12.Load bearing steel truss, CNC extruded 250 / 100 / 15 RHS-profile
13. Extruded aluminium profile 30/60/4 mm
14. Glass-fiber reinforced cloth
Commuter Retreat - Productie

Locatie: Queens plaza, New York City, New York, USA / Context:
Technisch ontwerp, Border Conditions afstudeerstudio, Architecture and
                   Perspex 2mm                                                      Cardboard 3,0 mm:




Modernity, 2e studiejaar Master opleiding, Technische Universiteit Delft
/ Docent: Henriette Bier, Sang Lee en Freerk Hoekstra / Datum: Februari
2009


Programma: Productie van een ruimtelijk model van het ontwerp, met
          450.00




                                                                           450.00
behulp van computergestuurde productie methoden. Testcase voor
productietechnieken.


De maquette en het maken van een opzet voor de CNC lasersnijder
vormden een belangrijke stap in het ontwikkelingsproces van het
                                                          800.00                                                          800.00




denken over complexe 3D vormgeving, dat is ontstaan in de loop van
                   Cardboard 3,0 mm:                                                Cardboard 3,0 mm:




het afstudeerproject. De directe connectie van de ontwikkeling van
complexe geometrie en constructie in de computer met geavanceerde
(computergestuurde) productietechnieken vormt een zeer interessante
mogelijkheid om generatieve architectuur realiseerbaar en tastbaar te
maken, evenals op een fundamenteel andere wijze met architectonische
vormgeving en productie om te gaan.
          450.00




                                                                           450.00




Daarnaast ontstaan er op dit gebied mogelijkheden tot verregaande
integratie en optimalisatie van ontwerp en productie, vooral wanneer
dit type productietechniek op grotere schaal beschikbaar is en er
meer begrip ontstaat voor de mogelijkheden die er hier ontstaan.
                                           800.00                                                                         800.00




Het maken van maquettes op deze manier kan worden gezien als
                   Cardboard 3,0 mm:                                                Cardboard 3,0 mm:




het op schaal testen van de mogelijkheden van computergestuurde
productietechnieken en het maken van prototypes voor mogelijke
architectonische uitdrukkingsvormen.
          450.00




                                                                           450.00




                                                          800.00                                                          800.00



                   Cardboard 3,0 mm:                                                Cardboard 3,0 mm:
          450.00




                                                                           450.00




                                                          800.00                                                          800.00

Detail van de maquette vervaardigd met behulp van de lasersnijder          Tekeningen voor het aansturen van de lasersnijder / Rechts: maquette ‘Commuter Retreat’



32
34
Projecten | Werk




              35
Ecowoningen

Locatie: Droogsestraat, Malden, Nederland / Context: Schetsontwerp                                     als biotoop voor flora en fauna, de gebruikte steen is in de directe
Het ArchitectenConsort, Rotterdam, In opdracht van de heer Klerkx /                                    omgeving voorhanden en de thermische massa word gebruikt om
Projectarchitect: Peter Couwenbergh / Datum: Februari 2007                                             de warmtelast te verlichten. Daarnaast is het ontwerp zeer context
                                                                                                       specifiek van opzet, het achtergelegen natuurgebied dringt het
Programma: Stedenbouwkundige opzet en architectonisch ontwerp                                          plangebied binnen en de ruimtelijke vormgeving is bepaald aan de
van een ensemble van 20 eengezinswoningen, waarvan 10 sociale                                          hand van zonneoriëntatie en zichtlijnen vanuit de bestaande gebouwde
huurwoningen en 10 koopwoningen.                                                                       omgeving.


Schetsontwerp in het kader van mijn stage bij het ArchitectenConsort.
Alleen de hoofdopzet en woningtypologieën waren omschreven, verder
had ik in dit ontwerp volledig de vrije hand onder supervisie van Peter
Couwenbergh, senior Architect. Het basisconcept van dit project was
het ontwikkelen van een kleinschalig ecologisch woningbouwproject,
om zo via een artikel 19 procedure de mogelijkheid te krijgen om te
bouwen buiten de zogenaamde rode contour.


Bij het ontwerp was het materiaalgebruik sturend voor het
ontwerpproces, er wordt van de natuurlijke karakteristieken van het
materiaal gebruik gemaakt. De grove steen structuur wordt gebruikt                                     Impressie van de twee-onder-een-kap woningen aan de westzijde van het plangebied




Impressie van een van de binnengebieden van het plangebied met uitzicht op de achtergelegen
bosrand in het noorden




Aanzicht noordzijde van het plangebied                                                        Rechts: overzichtsplattegrond van het plangebied



36
Kim’s Tower

Locatie: Seoul, Zuid-Korea / Context: Definitief ontwerp,
Het ArchitectenConsort, Rotterdam, in opdracht van Garak
Construction Company / Hoofdarchitect: Peter Couwenbergh /
Project architect: Edgar Bosman / Datum: Maart 2007


Programma: Kantoortoren van 62.000 m^2. De onderste zes
verdiepingen vormen een commerciële plint met publieke functies.
De toren is gelegen in een stedelijk landschap.


Kim’s tower vormde het belangrijkste project en mijn hoofdtaak
tijdens mijn stage periode. Ik heb hieraan zowel in de VO als DO
fase als ontwerper meegewerkt. Op het moment wordt dit project
gerealiseerd. Kenmerkend voor dit project was het omgaan met
complexe en zeer strikte bouwregelgeving, die erg bepalend was voor
de configuratie en opzet van het gebouw. Binnen het ontwerpteam
van drie personen (Peter Couwenbergh, Edgar Bosman en mijzelf)
speelde ik een actieve rol en mijn input was bepalend voor de
vormgeving van de publieke buitenruimten en de commerciële plint.
De kantoorlagen van het gebouw met hun generieke plattegrond en
het hoofdconcept van de golvende gevels was op dat moment al vast
omlijnt.


Deelname aan dit project heeft een goed inzicht gegeven in de
realiteit van het bouwen en het omgaan met regelgeving, cliënten,
projectontwikkelaars, productontwikkelaars en technisch adviseurs.
De actieve deelname aan projectbesprekingen, vergaderingen met
de cliënt en overleg met technische adviseurs was een belangrijke
ervaring, waarvan ik veel heb geleerd over de realisatie van een
grootschalig project binnen een architectenbureau.
                                                                      Doorsnede AA’




Plattegrond begane grond                                              Plattegrond verdieping -1



                                                                      Rechts: Artistimpression van het gebouw en publieke buitenruimte



38
The BATH-project

Locatie: Heijplaat, Rotterdam, Nederland / Context: Opbouw
en supervisie paviljoen Follydock tentoonstelling, SMAQ –
Architecture|Urbanism|Research, Berlijn / Hoofdarchitecten:
Sabine Muller en Andreas Quedenau / Partners: Jeroen Zomer en
Guiseppe Licari / Datum: Mei 2007


Programma: Klein architectonisch object met een bad, ligstoel
en kleedkamer, waarbij het water verwarmd word door
zonnewarmte.


Naar aanleiding van het project ‘Meanderscars’, heeft Sabine
Muller van SMAQ mij gevraagd om de supervisie van de realisatie
van dit tentoonstellingspaviljoen op mij te nemen. Uiteindelijk heb
ik ook actief bijgedragen aan de bouw en geholpen met aanpassen
van het definitief ontwerp naar de eisen van de situatie en locatie.


Naast de ervaring met het fysieke bouwen en realiseren van
een kleinschalig project, heb ik bij dit project de realisatie
van complexe vormentaal door middel van CNC technieken in
de realiteit toegepast kunnen zien en kennis gemaakt met de
mogelijkheden en problemen van bouwen op deze manier en op
deze schaal.
                                                                                             Overzichtsfoto van het paviljoen in het universiteitspark van Stuttgart




Publicatie over het paviljoen in het tentoonstellingsboek van de Follydock tentoonstelling   Rechts: sfeerimpressie van het netwerk van slangen voor de verwarming van het badwater



40
42
Publicaties




         43
Pantheon

Locatie: Delft, Nederland / Context: Tweemaandelijks magazine           magazine geschreven. De hier afgebeelde covers en artikelen zijn
D.B.S.G. Stylos, Studievereniging Faculteit Bouwkunde, Technische       afkomstig uit mijn redactieperiode. Dit project geeft inzicht in
Universiteit Delft / Partners: Bart Lans, Eric Gommans, Remko           mijn ervaring met publiceren en het structureren en vormgeven
Siemerink, Pieta ter Horst, Sandra Schijf, Tom Bokkers / Datum:         van complexe en pluriforme informatie tot een overzichtelijk
Jaargang 2001-2002                                                      vormgegeven en leesbare publicatie.


Programma: Redactievoering, grafisch ontwerp en publicatie van
artikelen


In de periode van december 2001 tot oktober 2002 heb ik deel
uitgemaakt van de redactie van dit tweemaandelijkse magazine
van de faculteitsvereniging van de faculteit Bouwkunde van de
Technische Universiteit Delft, D.B.S.G. Stylos. Voor dit magazine heb
ik in samenwerking met zes andere studenten een zeer succesvolle
huisstijl ontwikkeld, die tot op heden ongewijzigd in gebruik is.
Bovendien was ik medeverantwoordelijk voor de inhoud van dit
magazine en heb ik meerdere vakinhoudelijke artikelen voor dit




44
Border Conditions New York City
Locatie: New York City, New York, USA / Context: Publicatie               publicatie. De inhoud van de publicatie is sturend geweest voor de
onderzoeksresultaten, Border Conditions afstudeerstudio, Architecture     vormgeving en logica van het boek. Het boek is onderverdeeld in
and Modernity, 2e studiejaar Master opleiding, Technische Universiteit    een staand katern met essays en een liggend katern met mappings
Delft / Docent: Marc Schoonderbeek, Oscar Rommens, Henriette Bier         (analyses). Het boek kan benaderd worden aan de hand van thema’s
en Sang Lee / Partner: Bart Lans / Datum: Januari 2008                    die de individuen bundelen, aan de hand van de verschillende
                                                                          groepen waarin gewerkt is en aan de hand van de personen die aan
Programma: Ontwerp en eindredactie van de publicatie van de               de specifieke onderdelen gewerkt hebben.
onderzoeksresultaten van de afstudeerstudio ‘Border Conditions New
York City’ in de vorm van een boek


In het kader van mijn afstudeerproject in de studio ‘Border Conditions’
heb ik zorg gedragen voor het grafisch ontwerp en de redactievoering
van de publicatie van de onderzoeksresultaten van de afstudeerstudio.
Deze publicatie is gebundeld in een boek en uitgebracht in een
gelimiteerde oplage. Het boek bevat een deel groepswerk en een deel
individuele essays en analyses van de deelnemers. De inhoud varieert
dus sterk. In dit project heb ik, samen met Bart Lans, gezorgd voor het
structureren van complexe en pluriforme inhoud tot een leesbare
ir. Pieter Schreurs
phmschreurs@hotmail.com
+31(0)6-21256096
Stadhoudersplein 28 B
3039 ER Rotterdam

46
Portfolio | Pieter Schreurs

Portfolio | Pieter Schreurs

  • 1.
  • 2.
    Portfolio | PieterSchreurs Omslag: Fotomontage van de locatie van het afstudeerproject ‘Commuter Retreat’ Queens Plaza, New York City, New York, USA
  • 3.
    Inleiding Voor u ligthet Portfolio van Pieter Schreurs. Op 31 maart 2009 heb ik mijn opleiding tot architect aan de Technische Universiteit Delft afgerond. Nu ben ik op zoek naar een plek om mijn loopbaan te beginnen, vandaar dat u dit portfolio van mij ontvangt. Ik ben afgestudeerd in de studio ‘Border Conditions’, onderdeel van de afstudeerrichting Architectuur, leerstoel Architecture & Modernity. Mijn mentoren team bestond uit: Dr. Ing. Henriette Bier, Sang Lee M.Arch. RA en ir. Freerk Hoekstra. Het afstudeerwerk dat ik heb gemaakt is genomineerd voor de voorselectie van de Archiprix en is gehonoreerd met een eervolle vermelding van de faculteit Bouwkunde. Zowel in mijn opleiding, als in mijn overige werkzaamheden, heb ik mij vooral gespecialiseerd in het ontwerpen van publieke gebouwen, op verschillende schaalniveaus. Dit varieert van kleine paviljoens tot complexe gelaagde infrastructurele knooppunten, zoals een grootschalig metrostation met vele openbare functies. Binnen dit specialisme liggen mijn competenties vooral bij het omgaan met complexe en gelaagde programma’s en het actief analyseren en inzetten van gebruiks- en stromingspatronen voor het ontwikkelen van architectonische objecten. Dit uit zich in het actief analyseren en inzetten van complexe data voor het generen van een specifieke vormentaal met behulp van de computer. In het bijzonder het genereren van en omgaan met complexe 3 dimensionale geometrie, met actief gebruik van de computer, komt veelvuldig terug in mijn werk. Het ontwerpen van complexe 3D structuren en het actief gebruik van 3D tekenprogramma’s zijn dan ook mijn belangrijkste specialiteiten. Ondanks mijn relatief geringe werkervaring, denk ik dat ik beschik over ruime ervaring met complexe en gelaagde opgaven en de capaciteiten bezit om hier op een adequate en innovatieve manier mee om te gaan. Ik ben dan ook op zoek naar een baan waarbij ik deze capaciteiten en ervaring verder kan ontwikkelen en waarbij ik word uitgedaagd en gestimuleerd om mezelf praktisch en intellectueel verder te ontplooien. Hopelijk heb ik hiermee uw interesse kunnen wekken en een profiel geschetst dat aansluit bij de wensen en verwachten van uw bureau. In mijn portfolio vindt u een uitgebreide visuele en tekstuele toelichting op wat ik hierboven omschreven heb. Dit alles zal hopelijk een duidelijk en compleet beeld schetsen van mij ervaring en capaciteiten als architect en ontwerper. Mocht u na het bekijken van mijn portfolio nog vragen of opmerkingen hebben dan kunt u altijd contact opnemen. Met vriendelijke groet, Pieter Schreurs 2
  • 4.
    Inhoud Inleiding 02 Inhoudsopgave 03 ȃ Curriculum Vitae 04 ȃ Projecten | Opleiding 07 - Theater ‘De Wacht’ 08 - Intersecting Interchange 10 - FashionHigh 12 - Chueca Ecosystem 14 - Meanderscars 16 ȃ Projecten | Afstuderen 19 - New York City Maps 20 - Node and Network 22 - Commuter Retreat | Concept & Organisatie 24 - Commuter Retreat | Ruimtelijk Model 26 - Commuter Retreat | Architectuur 28 - Commuter Retreat | Techniek 30 - Commuter Retreat | Productie 32 ȃ Projecten | Werk 35 - Ecowoningen 36 - Kim’s Tower 38 - BATH project 40 ȃ Publicaties 43 - Pantheon 44 - Border Conditions New York City Boek 45 3
  • 5.
    Curriculum Vitae Persoonsgegevens: Werkervaring: Naam: Pieter H. M. Schreurs 01.2008 - 02.2008 Adres: Stadhoudersplein 28 B Ontwerp en eindredactie: ‘Border Conditions New York City’ publicatie Postcode: 3039 ER - Studio Border Conditions - Technische Universiteit Delft Woonplaats: Rotterdam Telefoon mobiel: +31 (0)6 - 21256096 04.2007 - 05.2007 Telefoon privé: +31 (0)10 - 8400308 Opbouw tentoonstellingspaviljoen: ‘BATH project’, SMAQ - Email adres: phmschreurs@hotmail.com Architecture | Urbanism | Research - Berlijn, Geboortedatum: 9 Juni 1983 FollyDock tentoonstelling - Rotterdam Geboorteplaats: Nijmegen Geslacht: M 09.2006 - 03.2007 Nationaliteit: Nederlands Assistent ontwerper, het ArchitectenConsort - Rotterdam Burgerlijke staat: Ongehuwd Rijbewijs: B 12.2001 - 10.2002 Ontwerp en redactie: pantheon// magazine - D.B.S.G. Stylos - Delft Opleiding: 2005 - 2009 Nominaties: Master of Science, Architecture, Urbanism and Building Sciences 03.2009 (Bouwkunde) - Technische Universiteit Delft - afstudeerrichting: Nominatie voorselectie Archiprix 2009 Architectuur (afstudeerstudio: Studio Border Conditions, begleiders: Henriette Bier, Sang Lee, Freerk Hoekstra) Nevenactiviteiten: 2002 - 2007 08.2007 - 07.2008 Bachelor of Science, Architecture, Urbanism and Building Sciences Aanvoerder Herenteam SRC Thor - Studenten Rugby Club - Delft (Bouwkunde) - Technische Universiteit Delft 04.2005 - 08.2008 2001 - 2002 Nestor studentenhuis (32 bewoners) - Oude Delft 15 - Propedeuse, Architecture, Urbanism and Building Sciences Stichting DUWO - Delft (Bouwkunde) - Technische Universiteit Delft 08.2004 - 07.2005 1995 - 2001 Aanvoerder Herenteam SRC Thor - Studenten Rugby Club - Delft Gymnasium, Stedelijk Gymnasium Nijmegen (Vakkenpakket: Nederlands, Engels, Frans, Grieks, Scheikunde, 06.2003 - 05.2004 Natuurkunde, Wiskunde-B, Geschiedenis en Aardrijkskunde) Bestuur SRC Thor, functie: Bootcommissaris - Studenten Rugby Club - Delft 09.2002 - 08.2003 Publiciteitscommissie - D.B.S.G. Stylos - Delft 07.1996 - 06.2006 Leadzanger ‘Last To Go’, internationaal opererende band 4
  • 6.
    Talenkennis: Nederlands Moedertaal Engels Gevorderd Frans VWO - eindexamen niveau Duits Basis kennis Computerkennis: Adobe CS3 Photoshop Gevorderd Illustrator Gevorderd Indesign Gevorderd Acrobat 8 Professional Gevorderd Premiere Basis kennis Flash Basis kennis Dreamweaver Basis kennis Autodesk AutoCAD Gevorderd Alias Maya Gevorderd Mc Neel Rhinoceros 4.0 Gevorderd Grasshopper Basis kennis Bentley Microstation Basis kennis Generative Components Basis kennis Google Sketch-up Professional Gevorderd Microsoft Office Word Gevorderd Excel Gevorderd Powerpoint Gevorderd 5
  • 7.
  • 8.
  • 9.
    Theater de Wacht Locatie:Stationsplein, Delft, Nederland / Context: 2e studiejaar Bachelor opleiding, Technische Universiteit Delft / Docent: Joan van Dooren / Datum: April 2003 Programma: Kleinschalig theater met semi-openbare wachtruimte ten behoeve van OV-reizigers Dit theater voor het stationsplein van Delft was het belangrijkste individueel ontworpen publieke project van mijn Bachelor opleiding. Het doel van dit ontwerp was om een gebouw te ontwikkelen dat deel zou gaan uitmaken van het nieuw te ontwikkelen stationsgebied. Het was de intentie van het theater om een laagdrempelige toegang tot het culturele leven van Delft te creëren, door het integreren van een overdekte openbare wachtruimte voor het naastgelegen busstation, N waar op interactieve wijze kennis kan worden gemaakt met het beschikbare cultuuraanbod. Plattegrond Begane grond De belangrijkste aandachtspunten van het ontwerp zijn de overgangen van publieke naar private ruimtes en van het openbare ‘culturele’ leven op straat naar het meer gesloten culturele circuit van het theater. Het gebouw bestaat in feite uit twee over elkaar heen gedrapeerde L-vormen, waarvan de onderste de openbare en ondersteunende functies bevat en de bovenste de meer private foyer en theaterzalen. In dit project is de architectonische vertaling van het complexe meervoudige publieke programma een van de belangrijkste sturende elementen. KANTOREN FOYER N BAR VIEW BOXES KLEINE GROTE ZAAL ZAAL Plattegrond verdieping 1 PODIUM MAGAZIJN TECHNIEK WERKPLAATS Doorsnede AA’ Organisatie diagram en programmatische opbouw Rechtsboven: nachtelijke impressie vanaf het stationsplein / Rechtsonder: impressie kleine zaal 8
  • 11.
    Intersecting Interchange Locatie: Westblaak,Rotterdam, Nederland / Context: Hybrid Building 2000 2000 Studio, 3e studiejaar Bachelor opleiding, Technische Universiteit Delft MV 1000 / Docent: Rajan V. Ritoe / Datum: Juni 2005 1000 Lengte doorsnede door het gebouw Programma: Cultureel podium en openlucht bioscoop, geintegreerd in een voetgangerskruispunt. Intersecting interchange vormde het eindproject voor de Bachelor fase van mijn opleiding en wordt gekenmerkt door een zeer methodische en analytische aanpak van het ontwerpproces en het ontwerp. De centrale thema’s van het ontwerp zijn stroming, beweging en netwerk. De analyse van bestaande stromingspatronen en het gebruiksnetwerk op de locatie, inclusief de beschikbare statistische data hiervan, zijn de sturende factoren voor het ruimtelijke ontwerp. Het programma van deze ‘cultural node’ bestaat uit een openlucht bioscoop en theater, internet terminals en een openlucht galerie. Het gebouw creëert een specifieke plek in het bestaande bewegingspatroon door de stromen te vervormen, te onderbreken Plattegronden verdieping 1 / begane grond met interactieve elementen die bepaalde en te benadrukken. In dit project wordt de computer ingezet om stromingspatronen benadrukken (groen), dan wel onderbreken (blauw / rood / paars) contextuele scenario’s te testen en dynamische transformaties van A B C D A B C D A B C D A B C D A B C DA B C D A B C D het gebouw in de tijd te kunnen vormgeven, evenals de vormgeving 0.45 N van het gebouw specifiek te kunnen maken voor de gewenste u m 0.4 5 b e 0.35 stromingspatronen. r o f m 0.3 4 o v e 0.25 m e n t 0.2 3 s p 0.15 e r p e r 0.1 2 s o 0.05 n 1 0 uur uur uur uur uur uur uur uur uur uur uur uur uur uur uur uur uur uur uur uur uur uur uur uur uur uur uur uur uur uur uur uur uur uur uur uur uur uur uur uur uur uur uur uur uur uur uur uur uur uur uur uur uur uur uur uur uur uur uur uur uur uur uur uur uur uur uur uur uur uur uur uur uur uur uur uur uur uur uur uur uur uur uur uur uur uur uur uur uur uur uur 0-4 4-7 7-8 8-9 9-12 12-13 13-14 14-16 16-17 17-18 18-19 19-20 20-24 0-4 4-7 7-8 8-9 9-12 12-13 13-14 14-16 16-17 17-18 18-19 19-20 20-24 0-4 4-7 7-8 8-9 9-12 12-13 13-14 14-16 16-17 17-18 18-19 19-20 20-24 0-4 4-7 7-8 8-9 9-12 12-13 13-14 14-16 16-17 17-18 18-19 19-20 20-24 0-4 4-7 7-8 8-9 9-12 12-13 13-14 14-16 16-17 17-18 18-19 19-20 20-24 0-4 4-7 7-8 8-9 9-12 12-13 13-14 14-16 16-17 17-18 18-19 19-20 20-24 0-4 4-7 7-8 8-9 9-12 12-13 13-14 14-16 16-17 17-18 18-19 19-20 20-24 Maandag D ins dag W oens dag D onderdag V rijdag Z aterdag Z ondag Time of day Total Work Services Shopping Education Social recr. Recreation Other Statistische gebruiksanalyse van de stromen op de locatie, deze stuurt het openen en sluiten van de rode en blauwe barrieres in het gebouw, waarmee het gebouw zich aanpast in de tijd Stromingsdiagram van de locatie A1 / A2 / A3 A4 A5 B1 B2 / D1 B3 / C3 / D2 B4 B5 / C5 C1 C2 C4 D3 / D4 / D5 Stromings- en knooppuntendiagram gebouwopzet / Deformatie van diagram door interventie Analyse van mogelijke scenarios van stromingspatronen die ontstaan door openen en sluiten van de barrieres in het gebouw aan de hand van de fluctuatie in gebruikersstromen Rechtsboven: Impressie westzijde & oostzijde / Rechtsonder: overzicht gebouw in locatie 10
  • 13.
    FashionHigh Locatie: Hoogstraat, Rotterdam,Nederland / Context: Interiors, Buildings and Cities studio, 1e studiejaar Master opleiding, B A Technische Universiteit Delft / Docent: Mechtild Stuhlmacher en Andrej Radman / Datum: November 2005 N.A.P +0.00 Programma: Modeschool, met openbaar restaurant en cafe, een auditorium, een winkel en een viertal atelierwoningen. +150 0 N.A .P Ontwerp voor een modeschool aan de Hoogstraat in Rotterdam. Dit project wordt gekenmerkt door het samenbrengen van een meervoudig gelaagd programma, met verschillende niveau’s van B A openbaarheid. De verschillende programmatische elementen worden met elkaar verbonden door een in het hart van het gebouw gelegen ontsluitingskern met twee tegen elkaar in draaiende Plattegrond begane grond ontsluitingsroutes. Een van deze routes ontsluit het (semi-)openbare school gedeelte, de ander ontsluit de private atelierwoningen die zich B op de bovenste verdieping van het gebouw bevinden. Het programma A is georganiseerd aan de hand van verschillende zones, waarin publieke, private en ondersteunende elementen zijn onderverdeeld. De ondersteunende functies vormen twee gesloten betonnen volumes, die de hoofddraagconstructie van het gebouw vormen. Het belangrijkste ontwerpthema voor dit gebouw was de overgang van de publieke ruimte naar de verschillende ruimtes in het interieur van het gebouw. Dit komt tot uiting in de gelaagde opbouw van de gevel en B de variatie in materiaal gebruik van zowel de gevel als de afwerking A van het interieur. Op deze manier wordt het concept van het gebouw doorgevoerd tot in de uitwerking op detailniveau en ontstaat er een Plattegrond verdieping 1 consistente vertaling van basis concept naar technische uitwerking. al ation Educ ach appro Doorsnede AA’ N ial merc Com ach appro Locatietekening met beoogde bezoekersstromen Doorsnede BB’ Rechts: gevelfragment 1:20 en details 12
  • 14.
    C 3 E E 4 Facade partition 1:20 Section facade partition CC 1:20 C 1 2 Section facade partition EE 1:20 2 1 4 3
  • 15.
    Chueca Ecosystem Locatie: Chueca/ Justitia, Madrid, Spanje / Context: Urban Body studio, 1e studiejaar Master opleiding, Technische Universiteit Delft / Docent: Alexander Vollebregts en Stephen Read / Partners: Hendrik Schikarski, Ioannis Perisoratis, Przemyslaw Olszewski en Marcos Olmo / Datum: April 2006 Programma: Stedenbouwkundige analyse en kleinschalige stedelijke interventie in de vorm van ontmoetingsplekken. Deze afbeeldingen tonen onderdelen van een presentatie website van een stedenbouwkundig onderzoeks- en ontwerpproject in de wijk Chueca in Madrid. De basis van het onderzoeksgedeelte werd gevormd door een 24-uurs animatie van de gebruikspatronen in deze wijk, die interactief kon worden samengesteld aan de hand van de te onderzoeken Interventie 1: Gran Via elementen. Op de rechter pagina is een still uit deze animatie zichtbaar. De animatie maakt inzichtelijk welke functies wanneer actief worden en hoe de dynamiek van de wijk in elkaar zit. Met deze animatie werd een experimentele methode ontwikkeld waarmee de verzamelde data op een informatieve manier werd gepresenteerd, zodat deze een aanleiding kon vormen voor het doen van een stedenbouwkundige interventie. De computer wordt hier actief ingezet om de complexiteit en gelaagdheid van het stedelijke ensemble weer te geven, omtegaan met transformaties en fluctuaties van gebruik en bezetting door de tijd heen en grote hoeveelheden complexe data te structureren. Door het gebruik van de computer wordt het mogelijk de verzamelde data over het gebied actief in te zitten als leidraad voor het ruimtelijk ontwerp. Naar Interventie 2: Palacio Buenavista aanleiding van de analyse van de animatie werd een viertal stedenbouwkundige interventies ontworpen, zoals zichtbaar is op de beelden hiernaast en op de volgende pagina. Dit project wordt gekenmerkt door een bottom-up benadering van de opgave, waarbij de ruimtelijke vormgeving voortvloeit uit de context en de analyse van specifieke gebruikspatronen met behulp van de computer. Naar aanleiding van de dynamische geanimeerde analyse kwam een bepaald type informeel gebruik aan het licht, waarop verder is ingezoomd en aan de hand waarvan de ruimtelijk ontwerpen zijn opgezet. De vormentaal komt op deze manier direct voort uit de analyse en het beoogde gebruikspatroon. Het gebruik van de computer faciliteert op deze manier de ruimtelijke vormgeving van het project. Interventie 3: Plaza de Vazquez de Mella Rechtsboven: still uit 24-uurs analyse Chueca / Rechtonder: Interventie 4: Plaza de Chueca 14
  • 16.
  • 17.
    Meanderscars Locatie: Justitia, Madrid,Spanje / Context: Architectural Body studio, Border Conditions groep, 1e studiejaar Master opleiding, Technische Unversiteit Delft / Docent: Sabine Muller en William Veerbeek / Partner: Wouter Oostendorp / Datum: Juni 2006 / Programma: Ondergronds metrostation, ingevuld met kleinschalige publieke functies. Dit ontwerp, in samenwerking met Wouter Oostendorp, is een experimenteel onderzoek naar de mogelijkheden van scripting en programmeren voor het architectonisch ontwerp. Het Dwarsoorsnede van een vervormde route met ingevoegde programmatische elementen ontwerp bestaat uit een metrostation, waarbij meerdere routes bestaan voor de toe- en afvoer van mensen. Met behulp van een zelf geschreven computerprogramma wordt elk van deze routes vervormd en geïnjecteerd met volumes met verschillende programma’s, afhankelijk van de hoeveelheid en type gebruikers die langs deze route passeert. Uitgaande van een generieke basisstructuur ontstaat er op deze manier een specifieke programmatische structuur, ingegeven Lengtedoorsnede van een vervormde route met ingevoegde programmatische elementen en gestuurd door context en geoptimaliseerd met behulp van de computer. De beelden geven één van de geteste scenario’s weer, dit scenario zou kunnen dienen als programmatische basis voor een verder ruimtelijke uitwerking in een architectonisch ontwerp. In dit project heb ik me vooral gefocust op het programmeren en het genereren van het programmatisch ruimtelijk model. Impressie van vervormde route met programmatische toevoegingen aan de onderzijde Diagrammatische weergave van het vervormingsprincipe per verbindingsroute Impressie van een van de ingangen van het metrostation Rechts: overzichtsimpressies van het metrostation met de vervormde toegangsroutes 16
  • 19.
  • 20.
  • 21.
    New York CityMaps Locatie: New York City, New York, USA / Context: Groepswerk fase, Border Conditions afstudeerstudio, Architecture and Modernity, 2e Map LEGEND NEW YORK CITY TRANSIT subway and elevated lines studiejaar Master opleiding, Technische Universiteit Delft / Docent: 7th Ave Line Lexington Ave Line Flushing line Broadway Line Nassau St Line Marc Schoonderbeek, Oscar Rommens, Henriette Bier en Sang Lee / 14th St Line 8th Ave Line Brooklyn-Queens Line Hudson Bergen Light Rail shuttles Partner: Arie Gruiters / Datum: November 2007 station (local service only) station (local and express service) REGIONAL RAILROADS Long Island, Metro North, Staten Island, NJ Transit, Amtrak EMPTY SPACE WITHIN THE CIRCLE AVAILABLE SPACE (SPATIALISATION) TO ADD CONNECTIONS MANUALLY SPATIAL CONTEXT PLACE (LOCATION) CATEGORISATION METROSTATION FRAGMENT NR. Programma: Navigatie en orientatiemiddel voor het metronetwerk van NARRATIVE SITUATION RELATED New York City SCALE Pacific St/ Bergen St Atlantic Ave Eastern Pkwy ACCESSIBILITY Brooklyn Mus Clinton/ BOUNDARY Franklyn Ave Washington Aves 19.4 Kitchen Prospect Heights EVENT 7 Ave SUBJECT Franklyn Ave STATUS Grand Army Plaza READING DIRECTION FROM ROUGH TO FINE In het kader van het afstudeerproject in de studio ‘Border Conditions heb ik een alternatief navigatiemiddel voor New York City ontwikkeld Medium Super Large samen met Arie Gruiters. Dit navigatiemiddel is gebaseerd op Small SCALE ruimtelijke omschrijvingen uit krantenknipsels van de New York Times en New York Post van een week in november 2007. Aan de hand Private Public van deze situaties kun je met deze ‘kaart’ met de metro door New ACCESSIBILITY York navigeren. Het doel van deze opzet is om zonder voorkennis of context een wegwijzer of leidraad te hebben om door stad te bewegen Artificial Natural en deze te onderzoeken. Deze benadering, gebaseerd op het idee BOUNDARY dat specifieke netwerken de samenhang van de stad bepalen, heeft het verdere verloop van het afstudeerproject bepaald. Het draait Non-specified Outside Inside hierbij om het ontwikkelen van een specifiek notatiesysteem en om EVENT LOCATION de ontwikkeling van een taal gebaseerd op specifieke data. Dat wil zeggen: het verstaanbaar en leesbaar maken van data, zodat het Multiple Single bruikbare informatie wordt die voor een specifiek doel kan worden SUBJECT ingezet. Deze afbeeldingen laat zowel het navigatiemiddel zien, als de werking ervan en de met het navigatiemiddel afgelegde trajecten. Door Projected Existing STATUS deze te projecteren op de geografische kaart van de stad ontstond de ruimtelijke context voor het verdere afstudeerproject. REMAINING SURVEILLANCE CAMERA WATER FRONT TRAJECTORIES Legend MOVEMENT COLOUR DATE LINEWEIGHT DISTANCE [KM] 09-11-'07 0-5 10-11-'07 5-10 11-11-'07 10-15 12-11-'07 15-20 13-11-'07 20-25 LINETYPE TYPE OF TRANSPORTATION METRO FERRY WALKING SIZE FIXED POINTS 0 5 10 15 20 25 STARTING/END POINT DISTANCE [KM] METROSTATION SIZE 0 5 10 15 20 25 30 35 WAITING TIME [MIN] DURATION CONNECTION LINE (FROM THE PERIMETRE TO THE PERIMETRE OF THE CIRCLE; APART FROM CASES WHERE STARTING/END POINTS ARE INVOLVED) Pacific St/ Atlantic Ave 4 St/Wash Sq Prince St ABSULUTE TIME [HH:MM] 11:00 11:23 11:57 12:10 13:54 RELATIVE TIME [%] 0 36 100 THE POSITION OF FIXED POINTS (I.E. METRO STATIONS) CORRESPOND WITH TIME, RELATIVE TO THE DURATION OF THE CONNECTION LINE Legenda van het ontwikklede navigatiemiddel voor New york City Geografische projectie van de afgelegde trajecten Rechts: uitsnede van het navigatiemiddel voor New York City met de afgelegde trajecten opgetekend inhet centrum van de cirkel 20
  • 22.
    1 25.1. 16:30 Rector St ty 14:40 iversi Wallstreet rd Un Stanfo 2.3 25.1.2 rge St Geo ville Totten AND on Staplet Island Hills EN ISL Staten Dongan STAT 4.1 16:53 Bleecker St 116 St/ Columbia U rsity Columbia Unive 16.25 4.2 South Ferry Whitehall St/ 16.19 Ferry Terminal Staten Island The city 4.3 07:1 18:5 08:3 17:4 08:3 10.1 Bedfo 4.4 Professor's office Columbia University 116 St/ Columbia U 4.5 Fence Public works garage 08:52 Bergen St at Long Island 4.6 Municipal ity's high departme way nt garage Long Islan d 4.7.1 Roosev Synago Jackso elt Ave/ gue in n Hts Queens Sutphi Queens JFK Airn Blvd/ Plaza port 15.50 Ferry Terminal Forest Manhattan 71 Av Hills/ e 23 St/ Court Ely Ave/ Sq 15.45 St George 4.7.2 Scho ol on the Lo Gran we r East d St Sid e Delan Esse cey St/ Lowe x St Side r East 2 East Ave Broa dway Bowe 4.8 ry 09:30 Broadway/Lafayette St 09:36 Bleecker St The hood of a Cadil lac 4.10 Jena , La . 4.1 1 A tr 4.1 ee 2 10:02 125 St Th sy e Yo 4.1 na 3 go ung gu Isra e in e Qu l of ee Hil ns lcre st 17 Ja 9 St/ m 15.15 169 aica Old Town St 4.1 4 Mu 1.3 on rry th Be 14.13 e lo rg we trau rE m as Hig tS h ide Sch oo l 14:00 Mt Eden Ave Be nc h 2.2 Ch am 13 be .1 2.1 rs St 10:20 A sc ho ol a 13.35 St George 11:11 3 Ave/East 149 St tS tat 149 St/Gd Concourse en Isla 11:43 Ferry Terminal nd Manhattan St 12:30 13 ap .2 Old le 13.28 to Old To n wn Ne To w wn Elt Do ing rp Ric vil hm le 12.30 Gr on Ferry Ter an d Staten Is te Va vil le lle y 8.2 .1 Gr E aa in Ba ast me Th Sta St yo 22 re e te Ne n Ge nne St or / w Isla ta ge Da n 8.2 ko d .2 Din r e BR O 8.3 31 bu ild St aa 2 ing B Ge me St re / s in Ea ayo org Gr st 2 nne e Th eB NX ro nx 11.1 Str Tr Co eet ity 9 S ur Gd mm an Co emo st 1 un d T 11.2 o 14 nco nt A 18 v t/ se e 0S Ce wns (W t nte en 23 oo Ea St/ e S ta ra dA d Y 3 S dlaw t 17 ve 16 anke t/ n) 5th nue Emer 11.4 genc Mar y ro ina om 174 del 14.1 176 -17 Rey St 5S Emer ts 14.2 genc Mon y ro 23.1 tefi om e or Med ical Par Cast kche Cent le er ster Hill Vacan Ave lot t Mos Emer ge holu and Pkw y Adult ncy ro Pedia om tric 355 Eas t 194 Jericho th Str eet Veteran 's Central Park, Tavern on the residenc Green in e West 67th street Kingsb ridge Rd 72 St Center 66 St/Lincoln
  • 23.
    Node and Network Locatie:New York City, New York, USA / Context: Analyse fase, afbeeldingen geven de karakteristieken weer van de connectie Border Conditions afstudeerstudio, Architecture and Modernity, tussen de ‘elevated’ (bovengrondse) metro en het straat 2e studiejaar Master opleiding, Technische Universiteit Delft / niveau. Iedere sequentie op pagina 23 is een weergave van een Docent: Henriette Bier en Sang Lee / Datum: Januari 2008 specifiek aandachtspunt. In dit deel van het project draaide het om de ontwikkeling van een notatiesysteem om een Programma: Analyse van de werking van het metronetwerk van ruimtelijke conditie weer te geven en tot bruikbare informatie New York City naar aanleiding van het groepswerk en analyse te maken. Dit is een belangrijke stap in de methodische van de transities in een specifiek bovengronds metrostation, ontwikkeling van ontwerpproces van mijn afstudeerproject. Norwood Avenue. De thematiek van transitie tussen netwerken wordt hier geanalyseerd en gedefinieerd. Ook komt de methodiek van Stedenbouwkundige analyse van specifieke typen van het sampelen van sequenties om de fasering van transities te connecties tussen verschillende netwerken in de stad. Deze definiëren en ontwerpen tot stand. The Bronx Long Island Sound er Riv River East on an ds att Hu nh Ma Queens Norwood Avenue Upper New York York Bay Brooklyn Staten Island Lower New York Y Bay Atlantic Ocean 0 2 4 6 8 10KM N Overzichtskaart van de geanalyseerde trajecten, oranje = bovengronds, zwart = ondergronds Rechts: transitie analyse Norwood avenue elevated station 22
  • 24.
    Phase 1 |Relocation Phase 3 | Disconnection Phase 5 | Relocation / Re-connection Phase 7 | Re-connection / Submergence 1 9 10 11 16 3 4 5 6 7 8 2 12 13 14 15 17 Phase 2 | Re-orientation Phase 4 | Submergence (1st phase) Phase 6 | Re-orientation Phase 4 | Exposure Basis sequentie: fasering en elementen in de transitie van metro naar straatniveau Phase 1 | Relocation Phase 3 | Disconnection Phase 5 | Relocation / Re-connection Phase 7 | Re-connection / Submergence 1 9 10 11 16 3 4 5 6 7 8 2 12 13 14 15 17 Phase 2 | Re-orientation Phase 4 | Submergence (1st phase) Phase 6 | Re-orientation Phase 4 | Exposure Construction screens Signification Platforms Systems Roofs Transparant screens / Background Constructed boundaries Analyse sequentie 1: visuele elementen en signalen in de transitie van metro naar straatniveau Phase 1 | Relocation Phase 3 | Disconnection Phase 5 | Relocation / Re-connection Phase 7 | Re-connection / Submergence 1 9 10 11 16 3 4 5 6 7 8 2 12 13 14 15 17 Phase 2 | Re-orientation Phase 4 | Submergence (1st phase) Phase 6 | Re-orientation Phase 4 | Exposure Guiding lights Path | Direction Analyse sequentie 2: richting in relatie tot verlichting in de transitie van metro naar straatniveau Phase 1 | Relocation Phase 3 | Disconnection Phase 5 | Relocation / Re-connection Phase 7 | Re-connection / Submergence 1 9 10 11 16 3 4 5 6 7 8 2 12 13 14 15 17 Phase 2 | Re-orientation Phase 4 | Submergence (1st phase) Phase 6 | Re-orientation Phase 4 | Exposure Hole | Connection to next phase Path | Direction Analyse sequentie 3: richting in relatie tot uitgang in de transitie van metro naar straatniveau
  • 25.
    Commuter Retreat -Concept & Organisatie Diagrammatische serie van de ontwikkeling van de organisatiestructuur per verbindingsroute Locatie: Queens plaza, New York City, New York, USA / Context: Distribu on of programma c elements Concept fase, Border Conditions afstudeerstudio, Architecture on each path according to privacy level and Modernity, 2e studiejaar Master opleiding, Technische Universiteit Delft / Docent: Henriette Bier, Sang Lee en Freerk Hoekstra / Datum: Januari 2008 Public Private Public Programma: Analyse van de ontwerplocatie en ontwikkeling Distribu on of programma c elements over four paths per route according van de programmatische organisatie van het afstudeerontwerp. speed of ac on and privacy level Bestaande uit een verbinding tussen een bovengronds en een Private ondergronds metrostation, waarbinnen een gezondheidscentrum 4 en een conferentie centrum worden gerealiseerd. 3 Public 12 Deze diagrammen vormen de basis voor mijn afstudeerontwerp ‘Commuter Retreat’. Het basisidee van dit ontwerp is het Distribu on of programma c elements maken van een connectie tussen een bovengronds en een determines the loca on of control points in sec on ondergronds metro station en deze connectie ‘injecteren’ met programmatische elementen, die sterk contrasteren met het Con ngency: Z - Coordinate dynamische karakter van het knooppunt, om op deze manier een Dependency of elements: Z & X coordinates nieuw soort dynamiek te creëren. Zoals bovenaan pagina 25 te 00 zien is, is het programma onderverdeeld in drie hoofdelementen: een gezondheidscentrum, een conferentie centrum en de ondersteunende functies. Op basis van deze onderverdeling is op Elevated methodische wijze het hoofddiagram ontwikkeld, dat onderaan +15 REFLECTIVE TRANSFER SPEED Steam pool op pagina 25 te zien is. Whirlpool Whirlpool Cold Pool Cold Pool +10 Hot pool Hot pool Ice pool 50 m2 50 m2 25 m2 10 m2 40 m2 10 m2 50 m2 25 m2 50 m2 Sauna +03 Path 2.4 +00 -03 -05 De drie hoofdelementen werden elk georganiseerd langs een Subway 10 x 4 m2 Coccoon Coccoon Coccoon Coccoon Coccoon Coccoon Coccoon Coccoon Coccoon Coccoon verbindingsroute. Vervolgens is elk van deze routes vertakt in vier paden met verschillende karakteristieken wat betreft Diagrammatische doorsnede route 2.4 privacy en verbindingssnelheid. De programmatische elementen Distribu on of programma c elements zijn daarna op hiërarchische wijze gerangschikt over deze determines the loca on of control points in plan paden. Vervolgens zijn alle elementen geordend op de locatie, afhankelijk van hoe ze in relatie tot elkaar en het maaiveld Scale and loca on moesten staan. De locatie van het programma bepaalde zo de of program X & Y coordinates vorm van de verbindende routes. Het gebouw bestaat dus uit 12 verbindingsroutes met specifieke karakteristieken en programmatische elementen. Het op pagina 25 onderaan afgebeelde diagram vormde de basis Coccoon Coccoon Coccoon Coccoon Coccoon Coccoon Coccoon Coccoon Coccoon Coccoon Coccoon 10 x 4 m2 voor de latere 3D modellen. Cruciaal is de methodiek van het hiërarchisch opbouwen van een netwerkstructuur als basis voor de organisatie van het gebouw, door een strategie van Steam pool Whirlpool Whirlpool Cold Pool Cold Pool Hot pool Hot pool Ice pool 50 m2 50 m2 25 m2 10 m2 40 m2 10 m2 25 m2 50 m2 50 m2 Sauna vertakken (branching). Daarnaast is het achterliggende concept van connectie en stromenpatronen als uitgangspunt belang. Evenals het structureren van data en parameters met behulp van de computer, om op die manier een organisatiestructuur te genereren. Diagrammatische plattegrond route 2.4 Rechtsboven: programmatische opbouw / Rechtsonder: organisatiediagram 24
  • 26.
    1 0 2 Conference Public Service Health centre program program centre 570 m2 672 m2 980 m2 960 m2 Conference room 2 x 100 Discussion room 4 x 30 Swimming pool 250 Fitness room 150 Whirlpool 2x10 Reading room 40 Presentation room 3 x 50 Massage room 2 x 15 Ticket Info Restaurant Library Dressing rooms Workplace 10 x 4 Steam pool 25 Media room 50 Coccoon 15 x 4 Seminar room 4 x 40 Cold pool 2x 50 Sauna 2 x 40 Ice pool 25 Terrace Bar Showers Kiosk Hot pool 2 x 50 Garden Toilets Lockers Public toilet Coccoon Coccoon CoccoonCoccoon CoccoonCoccoonCoccoon Coccoon Coccoon Coccoon 10 x 4 m2 Workspace Workspace Workspace Workspace Workspace Pa th 2 .4 Workspace Pa th 2 Seminar room 4 m2 4 m2 4 m2 4 m2 4 m2 Pa th 2 .3 Hot pool Cold Pool Ice pool Whirlpool Sauna Whirlpool Steam pool Hot pool Cold Pool Pa Workspacex 4m2 10 40 m2 Pa h 2 .2 50 m2 50 m2 25 m2 10 m2 40 m2 10 m2 25 m2 50 m2 50 m2 .1 Seminar room Fitness room th 0.4 t Workspace 40 m2 150 m2 3 th Bar 0. Kiosk Massage room 200 m2 Pa Workspace 10 m2 Restaurantm2 15 Massage Dressing rooms room Dressing rooms Lockers 200 m2 15 m2 4 x 20 m2 4 x 20 m2 50 m2 Workspace Toilets Toilets Toilets Showers Workspace 2 x 15 m2 2 x 15 m2 Showers 2 x 15 m2 Toilets 2 x 20 m2 Swimming pool 2 x 15 m2 Garden 2 x 20 m2 Workspace 250 m2 600 m2 Coccoon Coccoon Workspace Ticket vending Kiosk boot Informa on Library 5 x 4 m2 Public toilet 12 m2 10 m2 15 m2 150Relax room m2 Workspace Public toilet Terrace 40 m2 15 m2 200 m2 Workspace Coccoon Coccoon Coccoon Discussion Room 30 m2 Seminar room Conference room 40 m2 Reading room 100 m2 Discussion room 40 m2 Reading room Discussion room 30 m2 Discussion Room Media room m2 40 30 m2 30 m2 Path 0.4 50 m2 .4 .4 Presenta on room Path 1.4 .4 4 Presenta on room 50 m2 Path 2.4 4 Seminar room 50 m2 Conference room 40 m2 100 m2 Path 2.1Path 2.3 a Path 1.2 Path 0.1 a Path 1.3 Path 1.1 Path 0.2 Path 0.3 th 3 h Path 2.2 P .1 h1 Pat h 1.4 Pa t .3 h1 Pat 1.2 h Pat 0.2 h Pat 0.1 h Pat
  • 27.
    Commuter Retreat -Ruimtelijk Model Locatie: Queens plaza, New York City, New York, USA / Context: gegenereerd. Hierbij word gebruik gemaakt van NURBS geometrie, die Schetsontwerp, Border Conditions afstudeerstudio, Architecture and wordt gedefinieerd door vectoren, in plaats van statische punten, waardoor Modernity, 2e studiejaar Master opleiding, Technische Universiteit Delft / informatie over snelheid en verplaatsing kan worden opgenomen Docent: Henriette Bier, Sang Lee, Freerk Hoekstra / Datum: in de vormentaal. Dit wordt mogelijk gemaakt door het gebruik van Mei 2008 specifieke computerprogramma’s, die resulteren in een andere manier van omgaan met ruimtelijk ontwerp. In de hieronder afgebeelde serie van Programma: Ontwikkeling van een 3 dimensionale ruimtelijke expressie transformaties wordt elke keer een nieuwe laag informatie toegevoegd, van het ontwikkelde functionele diagram van het gezondheidscentrum met waarmee uiteindelijk de ruimtelijke opzet voor het gebouw wordt behulp van computermanipulaties. bepaald, zoals die is weergegeven in het diagram op de rechterpagina. Er worden twee ‘huiden’ gecreëerd, waarvan de binnenste aan de hand Deze serie van diagrammen vormt de basis van de ontwikkeling van van de programmatische eisen en het stromenpatroon vervormt en de het ruimtelijke model van voor het afstudeerontwerp. In de bijhorende buitenste zorgt voor de constructieve en thermische schil van het gebouw. tekeningen is de ontwikkeling van één van de 12 verbindingsroutes Tussen deze twee lagen in worden ondersteunende functies en technische zichtbaar. Het draait hier vooral om de ontwikkeling van een methodiek, randvoorwaarden opgelost. Op deze manier wordt er binnen de methodiek waarbij aan de hand van een gebruiksstromenpatroon en een dynamische gezocht naar een specifieke geïntegreerde oplossing als antwoord op een opeenvolging van beweging en retentie, een ruimtelijke expressie wordt complex probleem. Extrusion of a basic geometry along dened spline Sweep nurbs sec on along modied path Scale width of the geometry with the cuvature to create the geometry of the outer skin to accomodate the scale of the program Insert programma c volumes Sweep nurbs geometry along paths and stairs into the developed geometry outside inserted programma c volumes to create the basic inner skin Rechts: exploded view ruimtelijk model en programmatische opbouw 26
  • 28.
    East bound elevatedplatform North bound elevated platform +15 +10 Elevated station mezzanine Workspaces +05 Public garden and terrace +03 Public workspaces Bar area Dressing rooms ans showers Fitness room +00 Lockers and storage Dressing rooms and showers Floorplan Physical model Restaurant area Section AA Subway mezzanine Public library -05 Cold pool area Sauna and whirlpool area Main swimming pool Hot pool area -10 Subway platforms Seminar room
  • 29.
    Commuter Retreat -Architectuur Locatie: Queens plaza, New York City, New York, USA / Context: vervorming van deze elementen door de computer berekend, zodat Definitief ontwerp, Border Conditions afstudeerstudio, Architecture ze met de huid mee vormen en een sluitende constructie ontstaat. Dit and Modernity, 2e studiejaar Master opleiding, Technische is het zogeheten parametrisch modelleren van de draagconstructie. Universiteit Delft / Docent: Henriette Bier, Sang Lee en Freerk Hoekstra / Datum: Februari 2009 In de op pagina 29 afgebeelde plattegrond en doorsnede ontstaat een duidelijk beeld van de ontwikkelde ontwerp methodiek en notatie Programma: Definitieve architectonische expressie van het techniek. Door het manipuleren van de ‘control points’, de vectoren gezondheidscentrum en zijn ondersteunende functies, zoals een bar die de NURBS vlakken bepalen, is de vormentaal van de binnenruimte en restaurant. ontstaan. Om dit gecontroleerd te kunnen doen wordt de geometrie benaderd als een landschap en getekend aan de hand van hoogtelijnen. Het overzichtsbeeld van het afstudeerproject, dat hieronder is Door middel van de introductie van een grid met vier richtingen, afgebeeld, laat duidelijk zien hoe het ruimtelijke diagram, dat begon het ‘diagrid’, is het mogelijk om de vectoren van de lijnen op een als complex netwerk, een architectonische expressie heeft gekregen, gestructureerde manier te manipuleren. aan de hand van programmatische injecties,. Hierbij zijn de 3D Daarnaast wordt hier het principe van de gelaagdheid van de methodiek en het initiële concept, gebaseerd op bewegingsstromen huiden duidelijk zichtbaar. De buitenste huid vormt de dragende en verbindingsroutes, duidelijk zichtbaar in de vormentaal. en thermische schil en de binnenste huid vormt zich tot bankjes, De constructieve schil, die de complexe vormentaal mogelijk maakt, trappen en kasten. De laag die tussen de huiden ontstaat, bevat is in deze afbeelding duidelijk zichtbaar. Op de buitenste huid, die de ondersteunende functies, zoals toiletten en opslag, evenals de eerder werd gegenereerd, zijn eenvoudige constructie elementen dragende schijven die de afstand en de vorm van de huiden bepalen. geprojecteerd die de hoofddraagconstructie vormen. Bij de projectie Dit alles zorgt voor een gecombineerde en geïntegreerde oplossing van van deze elementen op de complexe 3D huid werd de parametrische een complex vraagstuk. Overzichtsbeeld ‘Commuter Retreat’ Rechtsboven: doorsnede AA / Rechtsonder: plattegrond begane grond 28
  • 30.
    1 2 3 4 5 6 7 8 9 10 11 12 13 14 15 16 17 18 19 20 8 7 6 5 16 17 4 3 1. Public passage 2 2. Public toilet 3. Restaurant 1 4. Climate installations restaurant 1 5. Service corridor 6. Climate installations pools 1 2 3 7. Ducts climate installation 0 8. Main duct channel 10 9. Main pool 10. Light well 1 11. Entrance to massage room 4 9 11 12. Water treatment installations pools 7 13. Main passage through the pool section 14 2 14. Access to the thermal pools 5 12 13 15 5 15. Hot pool 7 6 16. Mezzanine elevated train station 6 3 12 17. Access to office space 8 8 4 A B C 5 D E 2100 F G 2100 2100 H I 2100 J K 20 2100 2100 2100 L M 2100 2100 N O 6 2100 P Q 2100 2100 2100 2100 R S 2100 2100 T U 2100 V 19 2100 2100 2100 W X 2100 2100 A 2100 2100 2100 2100 18 2100 9 17 2100 10 16 2100 A 15 2100 14 12 2100 13 2 2100 3 12 2100 11 11 3 14 2100 13 14 10 14 19 2100 1 4 14 9 14 15 15 2100 3 16 8 7 1. Restaurant entrance 2100 2. Kitchen 5 7 18 17 7 3. Seating area restaurant 6 6 4. Wardrobe 2100 5. Storage 6 6. Public toilet 8 7. Restaurant toilet 2100 8. Public passage 5 9. Passage from elevated station to health centre 10. Elevator 2100 11. Entrance to health centre 12. Mezzanine 4 13.Counter 2100 14. Dressing room 15. Public toilet 3 16. Library counter 2100 17. Library 18. Passage to restaurant 2 19. Installation space N 2100 1 A
  • 31.
    Commuter Retreat -Techniek Locatie: Queens plaza, New York City, New York, USA / Context: Technisch knoop ontwikkeld die de constructie-elementen verbindt. Deze worden ontwerp, Border Conditions afstudeerstudio, Architecture and Modernity, gefabriceerd door middel van computer gestuurde lasrobots. De knoop 2e studiejaar Master opleiding, Technische Universiteit Delft / Docent: kan hierdoor eenvoudig met verschillende hoekverdraaiingen in elkaar Henriette Bier, Sang Lee en Freerk Hoekstra / Datum: Februari 2009 worden gezet, om zo een complexe 3D structuur te kunnen vormen. De vervorming van de knoop op een bepaalde plek worden gegenereerd door Programma: Niet-standaard constructie oplossing, die het mogelijk maakt de computer, door projectie van een eenvoudig element op het complexe de complexe vormentaal van het ontwerp te realiseren. Opgebouwd uit 3D oppervlak. Deze vervormingparameters kunnen vervolgens worden seriematig uniek te vervaardigen knopen, ontwikkeld met behulp van uitgelezen en worden gebruikt om de lasrobot aan te sturen. Zowel de computergestuurde productietechnieken. mogelijkheden van de computer als de productiemethoden geven input aan de ontwikkeling van een oplossing en maken een bepaalde geometrie De constructieve uitwerking van het Commuter Retreat project richt zich mogelijk. Het proces bepaalt ook hier het ontwerp en niet anders om. vooral op de ontwikkeling van een methodiek voor het maken van een constructieve huid met een complexe vorm. De problematiek waarmee Het ondergrondse gedeelte van de constructie is gebaseerd op hierbij rekening wordt gehouden is tweeledig. Enerzijds moet er een CNC gefreesde isolatie elementen. Deze bepalen de vorm van de manier worden ontwikkeld om de constructie te kunnen genereren in binnenruimten. Op deze elementen wordt vervolgens gewapend een computerprogramma en anderzijds moet er worden gekeken naar spuitbeton aangebracht als draagkrachtige laag. Hierop worden een constructiewijze die technisch geloofwaardig en uitvoerbaar is, vervolgens de afwerklagen aangebracht die nodig zijn om het sauna- maar niet fundamenteel in gaat tegen de conceptuele principes van het en zwembadprogramma mogelijk te maken. Ook bij dit gedeelte van ontwerp en de mogelijkheden van de gebruikte middelen. In het geval de constructie is de input vanuit computergestuurde productie- en van de bovengrondse constructie is er een relatief eenvoudig te realiseren constructiemethoden leidend. 1 2 / Detail A 3 4 5 6 7 1. Outline of the structural skin 2. CNC-welded steel joint 3. Load bearing steel truss 4. Structural skin: steel tubing, cross-bracing the structure and carrying the glass facade 8 5. Profiled sheet metal flooring base, covered by concrete layer 6. Outline of the main pool: reinforced concrete structure 7. Reinforced concrete slab, covering the roof of the health centre 8. Installation space for water treatment 9. Outline of the smaller hot pool 9 10. Air duct channel 11. Shotcrete equalization layer 10 12. Reinforced shotcrete base 11 13. Reinforced high density insulation 12 14. Reinforced concrete inner structure Main load bearing 13 14 Overzichtstekening van de constructieopbouw boven- en ondergronds Rechts: detail van de elementaire parametrische knoop 30
  • 32.
    1 2 3 4 5 6 7 8 9 10 11 12 13 1. Triangulated HR++ float glass panels 2. Black plastic sheet rain gutter 3. Mullion to mount the glass facade 4. Adjustable steel mount 5. 2 mm sheet stainless-steel glass fixing, adhesive fixed to glass 14 6. M12 bolt 7. CNC steel joint connecting the cross-bracing to the trusses 8. 60 mm high-molecular polythene section for fixing the glass 9. 100/50/6 extruded steel UHP-profile 10. Structural skin: 150/4 mm steel tubing, cross-bracing the structure 11. Expanding connection joint 12.Load bearing steel truss, CNC extruded 250 / 100 / 15 RHS-profile 13. Extruded aluminium profile 30/60/4 mm 14. Glass-fiber reinforced cloth
  • 33.
    Commuter Retreat -Productie Locatie: Queens plaza, New York City, New York, USA / Context: Technisch ontwerp, Border Conditions afstudeerstudio, Architecture and Perspex 2mm Cardboard 3,0 mm: Modernity, 2e studiejaar Master opleiding, Technische Universiteit Delft / Docent: Henriette Bier, Sang Lee en Freerk Hoekstra / Datum: Februari 2009 Programma: Productie van een ruimtelijk model van het ontwerp, met 450.00 450.00 behulp van computergestuurde productie methoden. Testcase voor productietechnieken. De maquette en het maken van een opzet voor de CNC lasersnijder vormden een belangrijke stap in het ontwikkelingsproces van het 800.00 800.00 denken over complexe 3D vormgeving, dat is ontstaan in de loop van Cardboard 3,0 mm: Cardboard 3,0 mm: het afstudeerproject. De directe connectie van de ontwikkeling van complexe geometrie en constructie in de computer met geavanceerde (computergestuurde) productietechnieken vormt een zeer interessante mogelijkheid om generatieve architectuur realiseerbaar en tastbaar te maken, evenals op een fundamenteel andere wijze met architectonische vormgeving en productie om te gaan. 450.00 450.00 Daarnaast ontstaan er op dit gebied mogelijkheden tot verregaande integratie en optimalisatie van ontwerp en productie, vooral wanneer dit type productietechniek op grotere schaal beschikbaar is en er meer begrip ontstaat voor de mogelijkheden die er hier ontstaan. 800.00 800.00 Het maken van maquettes op deze manier kan worden gezien als Cardboard 3,0 mm: Cardboard 3,0 mm: het op schaal testen van de mogelijkheden van computergestuurde productietechnieken en het maken van prototypes voor mogelijke architectonische uitdrukkingsvormen. 450.00 450.00 800.00 800.00 Cardboard 3,0 mm: Cardboard 3,0 mm: 450.00 450.00 800.00 800.00 Detail van de maquette vervaardigd met behulp van de lasersnijder Tekeningen voor het aansturen van de lasersnijder / Rechts: maquette ‘Commuter Retreat’ 32
  • 35.
  • 36.
  • 37.
    Ecowoningen Locatie: Droogsestraat, Malden,Nederland / Context: Schetsontwerp als biotoop voor flora en fauna, de gebruikte steen is in de directe Het ArchitectenConsort, Rotterdam, In opdracht van de heer Klerkx / omgeving voorhanden en de thermische massa word gebruikt om Projectarchitect: Peter Couwenbergh / Datum: Februari 2007 de warmtelast te verlichten. Daarnaast is het ontwerp zeer context specifiek van opzet, het achtergelegen natuurgebied dringt het Programma: Stedenbouwkundige opzet en architectonisch ontwerp plangebied binnen en de ruimtelijke vormgeving is bepaald aan de van een ensemble van 20 eengezinswoningen, waarvan 10 sociale hand van zonneoriëntatie en zichtlijnen vanuit de bestaande gebouwde huurwoningen en 10 koopwoningen. omgeving. Schetsontwerp in het kader van mijn stage bij het ArchitectenConsort. Alleen de hoofdopzet en woningtypologieën waren omschreven, verder had ik in dit ontwerp volledig de vrije hand onder supervisie van Peter Couwenbergh, senior Architect. Het basisconcept van dit project was het ontwikkelen van een kleinschalig ecologisch woningbouwproject, om zo via een artikel 19 procedure de mogelijkheid te krijgen om te bouwen buiten de zogenaamde rode contour. Bij het ontwerp was het materiaalgebruik sturend voor het ontwerpproces, er wordt van de natuurlijke karakteristieken van het materiaal gebruik gemaakt. De grove steen structuur wordt gebruikt Impressie van de twee-onder-een-kap woningen aan de westzijde van het plangebied Impressie van een van de binnengebieden van het plangebied met uitzicht op de achtergelegen bosrand in het noorden Aanzicht noordzijde van het plangebied Rechts: overzichtsplattegrond van het plangebied 36
  • 39.
    Kim’s Tower Locatie: Seoul,Zuid-Korea / Context: Definitief ontwerp, Het ArchitectenConsort, Rotterdam, in opdracht van Garak Construction Company / Hoofdarchitect: Peter Couwenbergh / Project architect: Edgar Bosman / Datum: Maart 2007 Programma: Kantoortoren van 62.000 m^2. De onderste zes verdiepingen vormen een commerciële plint met publieke functies. De toren is gelegen in een stedelijk landschap. Kim’s tower vormde het belangrijkste project en mijn hoofdtaak tijdens mijn stage periode. Ik heb hieraan zowel in de VO als DO fase als ontwerper meegewerkt. Op het moment wordt dit project gerealiseerd. Kenmerkend voor dit project was het omgaan met complexe en zeer strikte bouwregelgeving, die erg bepalend was voor de configuratie en opzet van het gebouw. Binnen het ontwerpteam van drie personen (Peter Couwenbergh, Edgar Bosman en mijzelf) speelde ik een actieve rol en mijn input was bepalend voor de vormgeving van de publieke buitenruimten en de commerciële plint. De kantoorlagen van het gebouw met hun generieke plattegrond en het hoofdconcept van de golvende gevels was op dat moment al vast omlijnt. Deelname aan dit project heeft een goed inzicht gegeven in de realiteit van het bouwen en het omgaan met regelgeving, cliënten, projectontwikkelaars, productontwikkelaars en technisch adviseurs. De actieve deelname aan projectbesprekingen, vergaderingen met de cliënt en overleg met technische adviseurs was een belangrijke ervaring, waarvan ik veel heb geleerd over de realisatie van een grootschalig project binnen een architectenbureau. Doorsnede AA’ Plattegrond begane grond Plattegrond verdieping -1 Rechts: Artistimpression van het gebouw en publieke buitenruimte 38
  • 41.
    The BATH-project Locatie: Heijplaat,Rotterdam, Nederland / Context: Opbouw en supervisie paviljoen Follydock tentoonstelling, SMAQ – Architecture|Urbanism|Research, Berlijn / Hoofdarchitecten: Sabine Muller en Andreas Quedenau / Partners: Jeroen Zomer en Guiseppe Licari / Datum: Mei 2007 Programma: Klein architectonisch object met een bad, ligstoel en kleedkamer, waarbij het water verwarmd word door zonnewarmte. Naar aanleiding van het project ‘Meanderscars’, heeft Sabine Muller van SMAQ mij gevraagd om de supervisie van de realisatie van dit tentoonstellingspaviljoen op mij te nemen. Uiteindelijk heb ik ook actief bijgedragen aan de bouw en geholpen met aanpassen van het definitief ontwerp naar de eisen van de situatie en locatie. Naast de ervaring met het fysieke bouwen en realiseren van een kleinschalig project, heb ik bij dit project de realisatie van complexe vormentaal door middel van CNC technieken in de realiteit toegepast kunnen zien en kennis gemaakt met de mogelijkheden en problemen van bouwen op deze manier en op deze schaal. Overzichtsfoto van het paviljoen in het universiteitspark van Stuttgart Publicatie over het paviljoen in het tentoonstellingsboek van de Follydock tentoonstelling Rechts: sfeerimpressie van het netwerk van slangen voor de verwarming van het badwater 40
  • 43.
  • 44.
  • 45.
    Pantheon Locatie: Delft, Nederland/ Context: Tweemaandelijks magazine magazine geschreven. De hier afgebeelde covers en artikelen zijn D.B.S.G. Stylos, Studievereniging Faculteit Bouwkunde, Technische afkomstig uit mijn redactieperiode. Dit project geeft inzicht in Universiteit Delft / Partners: Bart Lans, Eric Gommans, Remko mijn ervaring met publiceren en het structureren en vormgeven Siemerink, Pieta ter Horst, Sandra Schijf, Tom Bokkers / Datum: van complexe en pluriforme informatie tot een overzichtelijk Jaargang 2001-2002 vormgegeven en leesbare publicatie. Programma: Redactievoering, grafisch ontwerp en publicatie van artikelen In de periode van december 2001 tot oktober 2002 heb ik deel uitgemaakt van de redactie van dit tweemaandelijkse magazine van de faculteitsvereniging van de faculteit Bouwkunde van de Technische Universiteit Delft, D.B.S.G. Stylos. Voor dit magazine heb ik in samenwerking met zes andere studenten een zeer succesvolle huisstijl ontwikkeld, die tot op heden ongewijzigd in gebruik is. Bovendien was ik medeverantwoordelijk voor de inhoud van dit magazine en heb ik meerdere vakinhoudelijke artikelen voor dit 44
  • 46.
    Border Conditions NewYork City Locatie: New York City, New York, USA / Context: Publicatie publicatie. De inhoud van de publicatie is sturend geweest voor de onderzoeksresultaten, Border Conditions afstudeerstudio, Architecture vormgeving en logica van het boek. Het boek is onderverdeeld in and Modernity, 2e studiejaar Master opleiding, Technische Universiteit een staand katern met essays en een liggend katern met mappings Delft / Docent: Marc Schoonderbeek, Oscar Rommens, Henriette Bier (analyses). Het boek kan benaderd worden aan de hand van thema’s en Sang Lee / Partner: Bart Lans / Datum: Januari 2008 die de individuen bundelen, aan de hand van de verschillende groepen waarin gewerkt is en aan de hand van de personen die aan Programma: Ontwerp en eindredactie van de publicatie van de de specifieke onderdelen gewerkt hebben. onderzoeksresultaten van de afstudeerstudio ‘Border Conditions New York City’ in de vorm van een boek In het kader van mijn afstudeerproject in de studio ‘Border Conditions’ heb ik zorg gedragen voor het grafisch ontwerp en de redactievoering van de publicatie van de onderzoeksresultaten van de afstudeerstudio. Deze publicatie is gebundeld in een boek en uitgebracht in een gelimiteerde oplage. Het boek bevat een deel groepswerk en een deel individuele essays en analyses van de deelnemers. De inhoud varieert dus sterk. In dit project heb ik, samen met Bart Lans, gezorgd voor het structureren van complexe en pluriforme inhoud tot een leesbare
  • 47.