Embed presentation
Download as PDF, PPTX















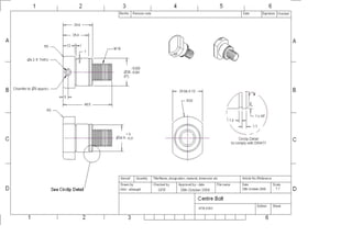
This document discusses screw jacks and includes: 1) An overview of screw jacks and how they are used to raise heavy loads through small heights using square threads for power transmission. 2) Questions about the type of thread used for screw jacks, their uses, paper sizes, title blocks, and drawing sheet layouts. 3) An assembly drawing assignment to create sectional and top views of a screw jack with a parts list and bill of materials.













