Embed presentation
Download as PDF, PPTX

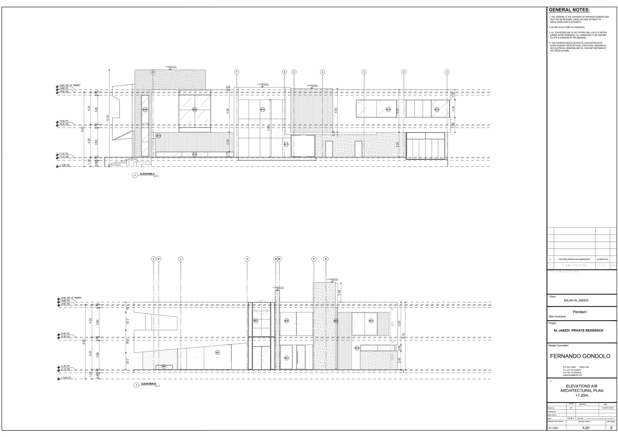
This document appears to be architectural plans for a private residence project for a client named Salah Al Jaeedi. It includes elevations and floor plans drawn by Fernando Gondolo and checked by initials EB. The scale is 1:100 at A1 and the drawing number is 0A-201.
