Embed presentation
Download to read offline









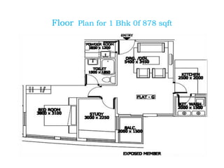
The document presents a detailed floor plan and amenities for a 1 BHK apartment ranging from 794 to 878 sq ft, featuring modern facilities including a centralized gas bank, rooftop pool, and landscaped areas. Residents will have access to various recreational amenities, including a club with a gym, yoga rooms, and a children’s play area. A comprehensive payment plan is outlined, including discounted rates for significant down payments and information for contacting the Kolkata branch.







