T E S I S A R Q U I T E C T U R A
C A T E D R A U M F A D A U
BORRACHIA OSCAR- BARROSO JORGE- SALLABERRY CARLOS –
PINI FERNANDO- ITZCOVICH PABLO.
RESIDENCIA DE INTEGRACION ESTUDIANTIL
A L U M N A
GIALDINI CAMILA NATALIA
4 1 0 1 – 1 5 1 4
TEMA [01]
SITIO [02]
IMPLANTACION [03]
ESTRUCTURA FUNCIONAL [04]
ESTRUCTURA MORFOLOGICA [05]
DISEÑO DE LA MATERIALIDAD [06]
SUSTENTABILIDAD [07]
INNOVACION [08]
COMPROMISO CON EL ENTORNO [09]
DESARROLLO DEL PROYECTO [10]
RECORRER GRANDES DISTANCIAS
PARA ESTUDIAR
HOY! Mas de 40 mil alumnos
EXTRANJEROS eligen estudiar en
nuestro país.
TEMA [01]
MIGRAR PARA ESTUDIAR
La universidad de Morón
cuenta con 5.000
estudiantes inscriptos / 798
alumnos son extranjeros
Cuenta con programas de
intercambio lo cual es muy
importante para adquirir
conocimientos con gente de
otros países.
El TIL es un claro ejemplo de
esta característica.
EN MORON HOY EN DIA NO
EXISTE INFRAESTRUCTURA QUE
CONTEMPLE UN PROGRAMA
RESIDENCIAL PARA ALBERGAR
A LOS ESTUDIANTES.
UM
UTN
UNLAM
UTF
UNA
HUR
TEMA [01]
H A B I T A R
D E S C A N S A R
E N C O N T R A R S E
E S T U D I A R
D I V E R T I R S E
TEMA [01]
M I G R A R P A R A E S T U D I A R
AMBITO URBANO DESCONOCIDO, al
que deben comprender y adaptarse
Rasgos propios del movimiento del
migrante que implica dirigirse a
una ciudad desconocida, siendo un
CENTRO ATRACTOR por la
complejidad de servicios que
ofrece, y dentro de la cual la oferta
educativa de la universidad de
Morón tiene un valor significativo e
histórico.
CAMBIO DE RESIDENCIA: lo cual implica
adaptarse e intercambiar a otras costumbres.
C A M B I O S
SUBJETIVIDAD
DEL ESTUDIANTE
CAMBIO DE RELACIONES SOCIALES: la
persona que se muda, ya sea individualmente,
con su familia o con otros miembros de la
comunidad, lo hace a una comunidad en la
que tendrá que relacionarse con personas a
las que no conocía previamente.
CAMBIO DE EMPLEO: implica un nuevo
trabajo en la misma ocupación.
TEMA [01]
FACTORES que influyen en la decisión del proyecto de migrar con el objetivo de
cursar estudios universitarios
Caracterizar los NIVELES SOCIOEDUCATIVOS y SOCIOECONOMICO del núcleo
familiar del migrante universitario
Inferir de que modo interviene la FAMILIA en el proceso migratorio
Identificar los LAZOS SOCIALES que construyen en el lugar de residencia y las
variaciones en los lazos del lugar de origen
Conocer de qué modo influye la CONDICION DE MIGRANTE en la deserción
alargamiento o interrupción de los estudios.
Facilitar la INSERCION de estudiantes migrantes a la vida universitaria.
INTEGRACION
TEMA [01]
S U B J E T I V I D A D E L E S T U D I A N T E
“E L H A B I T A R : VIVENCIA QUE VA DESDE LA FILOSOFIA HASTA EL ARTE
RESIDENCIA CONDICIONES DE
HABITABILIDAD
INDIVIDUAL
COLECTIVA
Propiciar la sociabilidad entre
los usuarios que tienen un
denominador común:
L A F O R M A C I O N
No es un lugar para
vivir, sino un
COMPLEMENTO para
la vida y los hábitos
estudiantiles
EL USUARIO tiene
características definidas,
sin embargo se debe
considerar las posibles
variables en cuanto a los
servicios que requieran.
La convivencia entre
estudiantes y su
INDIVIDUALIDAD dentro de
un contexto COLECTIVO que
permite el desarrollo de la
actividad académica.
“El habitar crea hábitos, que se expresan en actos y la suma de éstos constituye un principio de la habitación: habitar es habituarse”
El habitar individual y colectivo son conceptos clave que se fusionan en una residencia estudiantil, esto se logra mediante la interrelación
entre individuos y se extiende a través de grupos de personas con intereses comunes.
TEMA [01]
A- Estudiantes provenientes de regiones alejadas del país que vienen a cursar carreras de grado a la UM.
B- Estudiantes nacionales que viven en sectores alejados de la universidad y les conviene económicamente quedarse cerca
del lugar de cursada.
C- Profesores, científicos o expertos que sean invitados por universidades u otras instituciones educativas como
expositores o profesores invitados por un periodo de tiempo limitado.
E L U S U A R I O
TIPO DE ALOJAMIENTO DE
ESTUDIANTES
INTERNACIONALES
TIPO DE UNIVERSIDAD/
INSTITUCION DE LOS ESTUDIANTES
INTERNACIONALES
PAIS DE ORIGEN DE
ESTUDIANTES
INTERNACIONALES
TIPO DE ESTUDIOS QUE
VIENEN A REALIZAR A
NUESTRO PAIS
TEMA [01]
SEDENTARISMO
FALTA DE ACTIVIDAD FISICA
BAJO CONSUMO DE FRUTAS Y
VERDURAS
HABITOS DE MALA ALIMENTACION
Los estilos de vida influyen en el estado de salud de la población y
representa un componente determinante porque influyen de forma
directa en su calidad de vida.
Un componente de los estilos de vida, son lo hábitos alimentarios,
que en gran parte han provocado algunos de los problemas actuales
de salud en la población.
Abordar la alimentación en el espacio universitario significa avanzar
en la educación integral de los futuros profesionales.
La idea es que ellos mismos puedan
autoabastecerse con la producción de alimentos
sanos (generados en huertas comunitaria del
edificio) que mejoren su salud y su calidad de vida.
TEMA [01]
HABITOS DE ALIMENTACION Y ACTIVIDAD FISICA EN ESTUDIANTES UNIVERSITARIOS
P R O G R A M A
CANTIDAD DE HUESPEDES: 162 estudiantes
TOTAL M2: 3800 m2
TEMA [01]
MANTENIMIENTO
Sala de maquinas: 193 m2
ACCESO
Hall y recepción: 80 m2
Sala de espera: 50 m2
CAFETERIA PUBLICA
76 m2
SALON COMEDOR COMUN
1 piso: 160 m2
SANITARIOS
Baños comunes de sectores públicos 80 m2
AREAS COMUNES:
Sectores de socialización y ENCUENTRO 400 m2
SALAS DE ESTUDIO
Sector de informática y sala de idiomas 250m2
CIRCULACIONES
Circulaciones comunes -Lavandería-
área de limpieza 400 m2
GIMNASIO 100 m2
HABITACIONES
40 habitaciones dobles c/u 22 m2 : 880m2
32 habitaciones simples c/u 18m2: 576 m2
8 habitaciones cuádruples c/ 48 m2: 432m2
Conformación espacial.
Multiplicidad de actores y situaciones.
Heterogeneidad programática:
Uso principal: Viviendas 70%.
Usos complementarios: Áreas comunes 20% salas de
estudio + áreas de esparcimiento + alimentación y
deporte 10%.
Optimización del espacio.
Separación de actividades según su tipo.
Espacios colectivos como protagonistas del
espacio.
Arquitectura de la socialización
EL ENCUENTRO
TEMA [01]
TEMA [01]
SITIO [02]
IMPLANTACION [03]
ESTRUCTURA FUNCIONAL [04]
ESTRUCTURA MORFOLOGICA [05]
DISEÑO DE LA MATERIALIDAD [06]
SUSTENTABILIDAD [07]
INNOVACION [08]
COMPROMISO CON EL ENTORNO [09]
DESARROLLO DEL PROYECTO [10]
CABA
MORON
EL SITIO [02]
MORON
Partido: 321.109 hab.
Localidad: 92.725 hab.
Haedo
Ramos Mejía
Castelar
Ituzaingó
MORON es uno de los distritos mas
importantes del conurbano
bonaerense, siendo uno de los
puntos de transbordo mas grandes
de zona oeste.
Es la 2° estación con mayor venta
de boletos después de Once.
Concurren alrededor de 120
millones de pasajeros al año,
siendo el 80% residentes de la zona
Oeste.
EL SITIO [02]
BUENOS AIRES
MORON
FFCC. Rocca
FFCC. Sarmiento
FFCC. San Martin
Conectividad ESTE- OESTE
Conectividad NORTE- SUR
Vías de Ferrocarril
ACCESOS A LA CIUDAD DE MORON
(DISTANCIAS)
20 kilómetros del centro de la ciudad de
Buenos Aires (Capital Federal)
88 kilómetros de La Plata (capital
provincial).
EL SITIO [02]
EL SITIO [02]
AREA DE TRABAJO
TRANSPORTE PUBLICO
ESTACION DE FERRECARRIL
PASOS SOBRE NIVEL
PARADAS DE COLECTIVOS
TRANSITO PESADO
TRAZA DE FERROCARRIL
EL SITIO [02]
141.715 PERSONAS
35.476 PERSONAS
44.655 PERSONAS
91.170 PERSONAS
VIVIENDA MULTIFAMILIAR
PLAZA
BALDIO
SERVICIOS
INDUSTRIAS - TALLERES
EQ. RECREATIVOR
EQ. SALUDS
EQ. BOMBEROSB
EQ. ADMINISTRATIVOA
EQ. CULTURALC
EQ. EDUCATIVOE
REFERENCIAS
COMERCIO
VIVIENDA UNIFAMILIAR
REFERENCIAS
PLANTA BAJA
PLANTA BAJA + 1ER PISO
HASTA 5 PISOS
5 PISOS O MAS
CONSTRUIDO
NO CONSTRUIDO
REFERENCIAS
JERARQUIA DE VIAS
SENTIDO DEL TRANSITO
REFERENCIAS
EL SITIO [02]
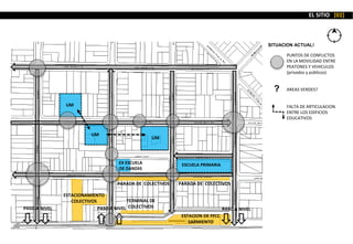
ESCUELA PRIMARIA
UM
UM
UM
EX
ESCUELA
DE DANZAS
ESTACIONAMIENTO
COLECTIVOS
ESTACION DE FFCC
SARMIENTO
SECTOREDUCATIVOSECTORTRASBORDOSECTOR
RESIDENCIAL
PASO A NIVEL PASO A NIVEL PASO A NIVEL
PARADA DE COLECTIVOS PARADA DE COLECTIVOS
TERMINAL DE
COLECTIVOS
PREDOMINANTE: Comercio, Administración,
RETIROS:
ARTICULO 4.5.5.1
LOTEMINIMO Ancho: 25 mts.
Su perficie: 750 m²
PARCELAMIENTO
ZONADENSIDADES
BRUTA
Hab./Ha.
NETA
Hab./Ha.
MC
y Servicios
COMPLEMENTARIO: Según Grilla de Usos
USOSPERMITIDOS
700 1000
NORMASDETEJIDO ESPACIOURBANO
FOS:0.6
INDICADORESDEOCUPACION
Defondo: Según centro libre de manzana (art. 3.3.2.0.).
Esta norma será de cumplimiento obligatorio a partir
de cota + 6. 00 mts.
ESTACIONAMIENTO, CARGAYDESCARGA
Según art. 4.5.1.0.
Defrente: No se exige a = h / 2 mayor o igual a 4.00 mts.
Ver artículo 3.7.
ALTURAMAXIMA
Laterales:No se exige
En el caso de Edificios en Torre ver artículo 3.6.
h = 1.5 a, menor o igual a 35.00 mts.
OBSERVACIONES
PATIOS
Según Grilla General de Usos
PARAMENTOS ENFRENTADOS (art. 4.5.1.1.)
FOT: 3
ÁREA A INTERVENIR: Entorno plaza
Cultural del Municipio de Morón.
CALLES: Alem, Independencia vías del
ferrocarril Sarmiento y Mendoza .
ZONIFICACION
EL SITIO [02]
ESCUELA PRIMARIA
UM
UM
UM
EX ESCUELA
DE DANZAS
ESTACIONAMIENTO
COLECTIVOS
ESTACION DE FFCC
SARMIENTO
PASO A NIVEL PASO A NIVEL PASO A NIVEL
PARADA DE COLECTIVOS PARADA DE COLECTIVOS
TERMINAL DE
COLECTIVOS
PUNTOS DE CONFLICTOS
EN LA MOVILIDAD ENTRE
PEATONES Y VEHICULOS
(privados y públicos)
AREAS VERDES?
FALTA DE ARTICULACION
ENTRE LOS EDIFICIOS
EDUCATIVOS
?
SITUACION ACTUAL!
EL SITIO [02]
FORTALEZASDEBILIDADES
OPORTUNIDADES AMENAZAS
• POLO EDUCATIVO EN
CONEXIÓN CON EL CENTRO
COMERCIAL DE MORON
• ESTACION DE MORON COMO
UNO DE LOS PRINCIPALES
CENTROS DE TRANSBORDO
DEL CONURBANO
BONAERENSE
• VIAS CIRCULATORIAS
COLAPSADAS (EN HORA PICO)
CUANDO FUNCIONA LA
UNIVERSIDAD.
• CARENCIA DE ACTIVIDAD Y
DINAMISMO DURANTE EL VERANO
Y LA EPOCA DE VACACIONES.
• USOS ICOMPATIBLES EN EL
SECTOR.
• EDIFICIOS ABANDONADOS EN
MUY MAL ESTADO PARA
POSIBLE
REFUNCIONALIZACION.
• VACIOS URBANOS Y
ESTACIONAMIENTO QUE NO
RESUELVEN EL TRANSITO
PARTICULAR Y AUMENTA LA
CONGESTION.
• LA GRAN CANTIDAD DE
GENTE QUE PERMANECE Y
PASA POR LA ESTACION DE
MORON GENERA UN
COLAPSO DE LAS VIAS, DE
PEATONES Y DE LA
MOVILIDAD URBANA.
EL SITIO [02]
ANALISIS F.O.D.A
EL SITIO [02]
ARTICULAR Y CONECTAR LOS
EDIFICIOS EDUCATVOS.
VINCULARLOS CON NUEVOS
ESPACIOS VERDES
GENERAR CALLES PEATONALES
“CORREDOR UNIVERSITARIO”
CON EL FIN DE CONTROLAR Y
RESTRINGIR EL ACCESO DE
VEHICULOS. DARLE MAYOR
IMPORTANCIA AL PEATON.
GENERAR ESPACIOS VERDES
RECREATIVOS.
SITUACION DESEADA!
ESTRUCTURA URBANA
PROPUESTA
ESCUELA PRIMARIA
UM
UM
UM
ESTACIONAMIENTO
COLECTIVOS
ESTACION DE FFCC
SARMIENTO
PASO A NIVEL PASO A NIVEL PASO A NIVEL
PARADA DE COLECTIVOS PARADA DE COLECTIVOS
TERMINAL DE
COLECTIVOS
El emplazamiento del edificio
busca generar INTEGRACION
entre ambos espacios públicos
de manera que converjan en
una actividad común a ambos.
Comunicando el corredor
universitario ubicado sobre la
calle Machado y la plaza pública
de Maestra Cueto. Y de esta
manera articular los edificios
educativos
EL SITIO [02]
EL SITIO [02]
EL SITIO [02]
CALLE MACHADO
LOCAL GASTRONOMICO BAR- VERT
ROUGE + LOCAL COMERCIAL
Datos Superficie: Lote de 13m x 31m
Superficie: 400 m2
CALLE MAESTRA CUETO
3 LOCALES CON OFICINAS. EL RESTO
TIENE HABITACIONES CON BAÑO.
LINDEROS A LA UM
Datos Superficie: Lote de 18m x 31 m
Actualmente en venta: Inmobiliaria De
Angelis
Superficie: 790 m2
• Fot: 3
•Fot: 2370 m2
• Fos: 0,6
•Fos: 474 m2
• Valor m2 terreno. 800 dólares• Altura máxima: 35m
•Altura residencia: 35m
Superficie total terreno: 782 m2
Valor m2: 800 dólares
Valor del terreno: 7630.000 uss
Valor M2 de construcción: 1000 U$$
Edificio- residencia = 3.800.000 +
720.000 = 4520.000
• Costo: 1300 dólares el m2 construido
• Edificio a construir de 11 pisos
UNIVERSIDAD
DE MORON
EL SITIO [02]
790 m2
EL SITIO [02]
PLAZA DE LA CULTURA
TEMA [01]
SITIO [02]
IMPLANTACION [03]
ESTRUCTURA FUNCIONAL [04]
ESTRUCTURA MORFOLOGICA [05]
DISEÑO DE LA MATERIALIDAD [06]
SUSTENTABILIDAD [07]
INNOVACION [08]
COMPROMISO CON EL ENTORNO [09]
DESARROLLO DEL PROYECTO [10]
IDENTIDAD
HISTORIA
Representatividad y sentido de pertenencia.
Emblema en la historia de la conformación de la ciudad.
EQUIPAMIENTO Y
AREAS VERDES Esparcimiento - Cultura
PEATON
PROTAGONISTA DEL
ESPACIO
Paseo peatonal
Mobiliario urbano
Conformación espacial
MULTIPLICIDAD DE
ACTORES Y
SITUACIONES
Heterogeneidad de usos, habitantes y
sucesos.
TERRITORIALESPACIALTEMPORALDIMENSION
IMPLANTACION [03]
UM
PLAZA DE LA CULTURA
CONEXIÓN PASEO PEATONAL
ENCUENTRO
PUNTOS DE PARTIDA PARA LA IMPLANTACION DEL EDIFICIO
INTENSIONES
Integrar ambos patiosConectar ambas calles peatonales Configurar el sector universitario
IMPLANTACION [03]
IMPLANTACION [03]
•A nivel urbanístico se eligió ese lugar
para la implantación del edificio ya que
la idea es configurar el sector
universitario entendiendo que en un
futuro la manzana va a terminar de
configurarse tomando como referente a
un edificio emblemático como es la
Universidad de Morón
•El edificio permite que el día de
mañana la universidad de morón pueda
seguir creciendo mediante la unión de
los patios que se generan en el pulmón
de manzana
•Hacia la fachada NORTE (sobre
Machado) tenemos la mayor cantidad
de viviendas.
•Hacia la fachada SUR (sobre Maestra
Cueto) la cantidad de viviendas es mas
reducida ya que se plantea que el
edificio se abra hacia la plaza
aprovechando mayor asoleamiento y
visuales.
Posible crecimiento
CONFIGURACION FUTURA DE LA MANZANA INTERVENIDA
TEMA [01]
SITIO [02]
IMPLANTACION [03]
ESTRUCTURA FUNCIONAL [04]
ESTRUCTURA MORFOLOGICA [05]
DISEÑO DE LA MATERIALIDAD [06]
SUSTENTABILIDAD [07]
INNOVACION [08]
COMPROMISO CON EL ENTORNO [09]
DESARROLLO DEL PROYECTO [10]
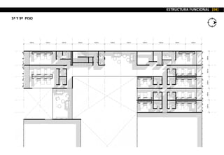
ESTRUCTURA FUNCIONAL [04]
DESARROLLO DE LAS DIFERENTES PLANTAS DEL EDIFICIO
PLANTA BAJA 1º PISO 2º PISO
PLANTA TIPO 6° Y 9º PISO
CAFETERIA
HALL ACCESO
COWORKING
COMEDOR COMUN
INFORMATICA
CLASES IDIOMAS
HABI 2 PERSONAS
SECTOR DE ESTAR
TERRAZA COMUN
HABI. 4 PERSONAS
AREA DE ESTUDIO
AREA DE LECTURA
HABI. 4 PERSONAS
HABI. 4 PERSONAS
HABI 2 PERSONAS
HAB 1 PERSONA
HAB 1 PERSONA HABI 2 PERSONAS
HUERTA COMUNITARIA
ESTRUCTURA FUNCIONAL [04]
PLANTA BAJA +1.30m
ESTRUCTURA FUNCIONAL [04]
PLANTA BAJA +1.30m
HALL
ACCESO
CAFETERIA
SALA COWORKING
ADMINISTRACION
CALLEMAESTRACUETO
CALLEMACHADO
ESTRUCTURA FUNCIONAL [04]
1º PISO + 4.10 m
ESTRUCTURA FUNCIONAL [04]
COMEDOR COMUN INFORMARICA LECTURA
SALA DE IDIOMAS
1º PISO + 4.10 m
ESTRUCTURA FUNCIONAL [04]
2º PISO +7.60 m
ESTRUCTURA FUNCIONAL [04]
2º PISO + 7.60 m
TERRAZA COMUN
HAB PARA 4 PERSONAS
HAB. PARA 2 PERSONAS
SALA DE ESTAR
POSIBLE CONEXIÓN
CON LA UM
LAVADERO
LIMPIEZA
HAB. DISC
HAB. 2 PERSONAS
HALL LLEGADA
AIRE LUZ
PATIO UM
ESTRUCTURA FUNCIONAL [04]
3º PISO +10.80 m y PLANTA TIPO
ESTRUCTURA FUNCIONAL [04]
HAB PARA 4 PERSONAS
HAB. PARA 2 PERSONAS
LIMPIEZA
HAB. DISC
HAB. 2 PERSONAS
HAB. 1PERSONA
LAVADERO
HALL LLEGADA
AIRE LUZ
AIRE LUZ
PATIO UM
3º PISO +10.80 m y PLANTA TIPO
ESTRUCTURA FUNCIONAL [04]
5º Y 9º PISO
ESTRUCTURA FUNCIONAL [04]
5º Y 9º PISO
AIRE LUZ
PATIO UM
SALA DE LECTURA
HAB PARA 4 PERSONAS
HAB. PARA 2 PERSONAS
LIMPIEZA
HAB. DISC
HAB. 2 PERSONASHAB. 1PERSONA
LAVADERO
HALL LLEGADA
AIRE LUZ
ESTRUCTURA FUNCIONAL [04]
PLANTA AZOTEA + 35.00 m
AIRE LUZ
PATIO UM
ESTRUCTURA FUNCIONAL [04]
PLANTA AZOTEA
GIMNASIO
SALA DE MAQUINAS
TERRAZA COMUN
AIRE LUZ
HUERTA COMUNITARIA
PATIO UM
ESTRUCTURA FUNCIONAL [04]
PLANTA TECHOS
CALLEMAESTRACUETO
PLAZADELACULTURA
CALLEMACHADO
ESTRUCTURA FUNCIONAL [04]
VISTA CALLE MAESTRA CUETO
ESTRUCTURA FUNCIONAL [04]
VISTA CALLE MACHADO
ESPACIO - FRECUENCIA
En el caso de la población en estudio,
adquiere significación particular, dadas las
características que reviste por su condición
de “residente transitorio” y por lo tanto
manifiesta una acusada movilidad espacial.
ESPACIO - VIDA
El individuo ejerce sus actividades y
mantiene una red de relaciones familiares,
laborales, educacionales, que pueden
implicar una red de relaciones dobles o
múltiples hasta residencias temporarias o
secundarias.
ESPACIO – ESCENCIA
Proponer un lugar donde el estudiante
pueda sentirse como en su casa y que
pueda organizar sus espacios de acuerdo a
sus costumbres. Por eso el mobiliario
puede variar.
CONCEPTO DE REVERSIBILIDAD
Interior de las unidades funcionales
ESTRUCTURA FUNCIONAL [04]
ESTRUCTURA FUNCIONAL [04]
CONCEPTO DE REVERSIBILIDAD
Interior de las unidades funcionales
ESTRUCTURA FUNCIONAL [04]
CONCEPTO DE REVERSIBILIDAD
Interior de las unidades funcionales
Se proponen una serie de
ESPACIOS COLECTIVOS de
distintas categorías y usos,
dándole un carácter
INTEGRADOR.
Esta situación espacial es la
más importante y el foco de
tensión del proyecto, ya que
ésta es la que recibe al usuario
en el acceso y es la que
propicia las múltiples
relaciones espaciales ente
todos los espacios
constituyentes del edificio.
A nivel del interior del edificio,
se establece a los espacios de
encuentro como el motor o el
elemento en común de todos
los espacios del edificio, donde
estos propicien el encuentro en
distintas escalas, desde el
elemento pasillo pasando por
los espacios comunes hasta el
espacio público que el proyecto
defina a su alrededor.
ESTRUCTURA FUNCIONAL [04]
ESPACIOS COMUNES COMO PROTAGONISTAS
ESTRUCTURA FUNCIONAL [04]
IMAGEN EXTERIOR
TEMA [01]
SITIO [02]
IMPLANTACION [03]
ESTRUCTURA FUNCIONAL [04]
ESTRUCTURA MORFOLOGICA [05]
DISEÑO DE LA MATERIALIDAD [06]
SUSTENTABILIDAD [07]
INNOVACION [08]
COMPROMISO CON EL ENTORNO [09]
DESARROLLO DEL PROYECTO [10]
ESTRUCTURA MORFOLOGICA [05]
ESTRUCTURA MORFOLOGICA [05]
TEMA [01]
SITIO [02]
IMPLANTACION [03]
ESTRUCTURA FUNCIONAL [04]
ESTRUCTURA MORFOLOGICA [05]
DISEÑO DE LA MATERIALIDAD [06]
SUSTENTABILIDAD [07]
INNOVACION [08]
COMPROMISO CON EL ENTORNO [09]
DESARROLLO DEL PROYECTO [10]
ESTRUCTURA
LOSA STEEL DECK
Sobrecarga de uso 350 kg/m2 (losas)
Peso de chapa 18= 12.60kg/m2
Peso /m2 Hormigón sobre la chapa = 0.085 m3/m2
0.085 m3 x 2400kg/3 = 204 kg/m2
m2
g total: chapa 12.60 kg/m2
Hormigón sobre la chapa: 204 kg/m2
0.04 m x 1900= 76 kg/m2
Cielorraso: 20 kg/m2
g =313 kg/m2 = 350 kg/m2
P = 350 kg/m2
q = 700 kg/m2
6.35 cm + 5 cm de hormigón
sobre chapa = 11.35 cm
11.35 cm
DISEÑO DE LA MATERIALIDAD [06]
VIGAS SECUNDARIAS
q viga secundaria = q total x sep. = 700kg/m2 x 3.20m = 2240kg/m
Mmax viga = q x l2 2240 kg/m x (4.22)2
8 8
Mmxnec = Mmax 498600kg/cm
Tadm 1200 kg/cm2
RA = RB = q x l
2 2
= 416 cm3
= 4986 kg/m
=
=
= 2240 X 4.22
= 4726 kg
= 4726 kg x 2 = 9453 kg
SE ADOPTA HEB 180
2240 kg/m
RA RB4.22
+
0.85 cm
1.04 cm
18 cm
18 a cm
9.5 t 9.5
tn
3.20
+
3.20 3.20
M max
Mmax viga = q x l2 9.5 tn x 3.20 m = 30.4 tm
Mmxnec= M max 3.040.000 kg/cm
T adm 1200 kg/cm2
SE ADOPTA HEB 400 wx: 2880 > 2533 cm3
VIGAS PRINCIPALES
=1.35 cm
2.40 cm
40 cm
30 a cm
9.5 t 9.5 t
DISEÑO DE LA MATERIALIDAD [06]
PREDIMENSIONADO COLUMNA
Área de influencia = 4.22m x ( 6.26m + 6.05m)
2 2
N col PB = area x q x n° niveles
N= 26m2 x 700 kg/m2 x 11 niveles = 200.200kg
Predimensionado col:
Fnec= N 200.200 kg
T adm 1200 kg/cm2
SE ADOPTA: HEB= 340 (30/34CM) F = 171 cm2
Verificación al pandeo:
1.45 cm
2.80 cm
50 cm
30 cm
= 25.97 m2 = 26 m2
= = 167 cm3
lk
i min
350 cm
7.53 cm (de tabla)
= = 47 + w = 1.36
W x N
F
1.36 x 200200 kg
171 cm2
= = 1592 > 1200 kg /cm2T
SE ADOPTA HEB = 500
lk
i min
350 cm
7.27 cm (de tabla)
= = 49 + w = 1.37
W x N
F
1.37 x 200200 kg
239 cm2
=
1147kg/cm2 < 1200 kg /cm2 VERIFICA
T
PREDIMENSIONADO BASE
1.1 x N
t
1.10 x 200200 cm
1.50 kg/cm2
=
146.813 cm2
Ab =
Ax =ay = Ab + 146813 cm2
Base = 383m = 390 x 390
=Ab =
T =
2.50
1.80
4.22
2.50
DISEÑO DE LA MATERIALIDAD [06]
DISEÑO DE LA MATERIALIDAD [06]
ESTRUCTURA
DISEÑO DE LA MATERIALIDAD [06]
ESTRUCTURA
DISEÑO DE LA MATERIALIDAD [06]
ESTRUCTURA
DISEÑO DE LA MATERIALIDAD [06]
ESTRUCTURA
DISEÑO DE LA MATERIALIDAD [06]
ESTRUCTURA
DISEÑO DE LA MATERIALIDAD [06]
ESTRUCTURA
DISEÑO DE LA MATERIALIDAD [06]
ESTRUCTURA
DISEÑO DE LA MATERIALIDAD [06]
ESTRUCTURA
CORTE 3-3
Parante tubo metálico 30 x 10
Ventana de aluminio
corrediza con DVH 4
+ 9 + 4 línea A30 NEW
Sustrato orgánico
Membrana filtrante
Capa impermeable anti raíces
Aislante térmico
Placa para control de vapor
Geotextil 200 micrones
METALDECK Calibre 18
Malla de Retracción de
Fraguado HORMIGON H21
Perfil HEB 400
Cuelgue de acero galvanizado
fijado a la losa cada 60 cm.
Cerramiento chapa plegable
microperforada de acero inox.
Perfil metálico anclado a losa
Piso técnico
Parante tubo metálico 30x10
METALDECK Calibre 18
Malla de retracción de
fraguado- hormigón H21
Perfil HEB 400
Perfil metálico anclado a losa
DISEÑO DE LA MATERIALIDAD [06]
ESTRUCTURA
CORTE 1-1 CALLE MAESTRA CUETO
DISEÑO DE LA MATERIALIDAD [06]
ESTRUCTURA
CORTE 2-2 CALLE MACHADO
Corte 2-2 sobre Calle Machado
Muro suspendido de estructura metálica
sobre la medianera existente de la
universidad con el desarrollo de un
jardín vertical en el cual se decide
colocar plantas aromáticas con el fin de
atravesar la manzana y generar un
recorrido agradable disfrutando los
diferentes aromas.
DISEÑO DE LA MATERIALIDAD [06]
CERRAMIENTOS
Para los tabiques divisorios como para
los cielorrasos del edificio se utilizo el
sistema de steel framing-
La utilización de perfiles galvanizados
permite:
• Gran estabilidad estructural
• Dura en el tiempo
• Cuenta con barrera anticorrosión
• Liviandad
Carpinterías con Vidrio DVH
• Aumenta en más del 100% el aislamiento
térmico del vidriado.
• Mejora el aislamiento acústico entre un 40% a
un 70%
• Disminuye el consumo de energía de
climatización por las pérdidas a través del vidrio.
Para el control solar del edificio en el
sector de las viviendas orientadas al
Norte y Sur, se colocaron planchas de
acero galvanizado perforadas que
permiten que el aire y la luz natural
ingrese a las habitaciones.
A su vez al plegarse permiten orientar
los paneles hacia la dirección
conveniente
CALCULO DE ASCENSORES
Nº de personas a transportar en 5min
S x NP x a%
m2 por persona
NP = =
446 m2 x 10 x 0.20
8 m2
NP = = 111 personas
Tiempo total de duración del viaje en seg.
TT = t1 + t2 + t3 + t4
2x20.00x60” +(2x10)+(5x10)+(5x10)
100 m/seg
TT =
TT = 105 segundos
Numero de ascensores
N = tt/ tiempo de espera
TT = 105/45
TT = 2 ASCENSORES
CALCULO DE ESCALERA
Factor de ocupación de viviendas privadas o colectivas
12 + otras áreas 5
Superficie de proyecto / áreas :17
m2/17= 28 personas
Dimensionado de escalera
H de piso: 3.30 m
Alzada: 0.18
Pedada: 0.26
3.30 m/ 0.18m: 18 escalones
2 alzadas + 1 pedada : 0.60+0.63:
2 x 0.18 + 0.25 : 0.61 VERIFICA
18 alzadas / 2 : 9 alzadas 8 pedadas
Dividimos en dos tramos separados por un descanso
DISEÑO DE LA MATERIALIDAD [06]
CALCULO DE RESERVA SANITARIA
PROVISION
Unidad de vivienda completa 580 L 600 L
Baño 350 L 250 L
M 250 L 150 L
L° PC PL 150 L 100 L
DIRECTA BOMBEO
Se adicionara el 50% de estos valores por los artefactos adicionales a
las unidades de vivienda
CALCULO DE TANQUE DE RESERVA
77 locales x 600 l = 46.200
Se consideran 600 litros ya que no es mucha la diferencia
si calculamos los artefactos por separado + los artefactos
de PB Y 1° piso (sectores públicos del edificio).
12 inodoros x 250 l = 3000 litros
16 lavabos x 100 l = 1600 litros
4 mingitorios x 150 l = 600 litros
TOTAL: 5200 litros
46.200 lts. + 5200 lts. = 51.400 litros
Subsuelo: 140 m2
Planta baja: 448 m2
1° piso: 448 m2
2-3-4-5-6-7-8-9-10 pisos: 457 m2 x 9 pisos = 4113
Total: 5.000 m2
Considerando 10 litros x m2= 5.000 x 10 = 50.000 LITROS
Se utilizara tanque de reserva mixto
50.000 + 51.000 = 100.000 Litros.
Volumen de tanque de bombeo: 1/3 x 100.000 = 30.000
Volumen de tanque de reserva: 2/3 x 100.000 = 60.000
Se adopta tanque de bombeo de 30.000 litros
Se adopta tanque de reserva de 60.000 litros
CALCULO DE CAPACIDAD DE TANQUE DE INCENDIO
CALCULO DE NUMERO DE BOCAS DE INCENDIO POR PISO
El numero de bocas de incendio/ hidrantes por piso se
determina en función del alcance de las mangueras de
incendio de modo que barran perfectamente el área
requerida.
Perímetro/ 45=
DISEÑO DE LA MATERIALIDAD [06]
SANITARIAS
SUBSUELO
DISEÑO DE LA MATERIALIDAD [06]
SANITARIAS
PLANTA BAJA
DISEÑO DE LA MATERIALIDAD [06]
SANITARIAS
1° PISO
DISEÑO DE LA MATERIALIDAD [06]
SANITARIAS
2° PISO Y PLANTA TIPO
DISEÑO DE LA MATERIALIDAD [06]
DESARROLLO DEL PROYECTO [06]
SANITARIAS
5° Y 9° PISO
DESARROLLO DEL PROYECTO [06]
SANITARIAS
AZOTEA
DESARROLLO DEL PROYECTO [06]
SANITARIAS
CORTE ESQUEMATICO
Se utilizaron los plenos para poder distribuir las instalaciones
de forma mas sustentable.
3 TANQUES DE RESERVA
23.000 LITROS CADA UNO ROTOPLAST
Altura de tanque 3.00 m
2 TANQUES DE BOMBEO DE 15.000 LITROS CADA UNO
Altura de tanque: 2.5 m
DESARROLLO DEL PROYECTO [06]
ELECTRICIDAD
SUBSUELO
ELECTRICIDAD
PLANTA BAJA
DISEÑO DE LA MATERIALIDAD [06]
ELECTRICIDAD
1° PISO
DISEÑO DE LA MATERIALIDAD [06]
ELECTRICIDAD
2° PISO
DISEÑO DE LA MATERIALIDAD [06]
ELECTRICIDAD
5° Y 9° PISO
DISEÑO DE LA MATERIALIDAD [06]
ELECTRICIDAD
DISEÑO DE LA MATERIALIDAD [06]
INCENDIO
SUBSUELO
DISEÑO DE LA MATERIALIDAD [06]
El numero de bocas de incendio se determina en función del alcance de las mangueras.
Cantidad de Bocas: perímetro de la planta/45
B= 65/45= 2 BOCAS
INCENDIO
PLANTA BAJA
DISEÑO DE LA MATERIALIDAD [06]
El numero de bocas de incendio se determina en función del alcance de las mangueras.
Cantidad de Bocas: perímetro de la planta/45
B= 114/45= 3 BOCAS
INCENDIO
1° PISO
DISEÑO DE LA MATERIALIDAD [06]
El numero de bocas de incendio se determina en función del alcance de las mangueras.
Cantidad de Bocas: perímetro de la planta/45
B= 114/45= 3 BOCAS
INCENDIO
2° PISO
DISEÑO DE LA MATERIALIDAD [06]
El numero de bocas de incendio se determina en función del alcance de las mangueras.
Cantidad de Bocas: perímetro de la planta/45
B= 125/45= 3 BOCAS
INCENDIO
AZOTEA
DISEÑO DE LA MATERIALIDAD [06]
El numero de bocas de incendio se determina en función del alcance de las mangueras.
Cantidad de Bocas: perímetro de la planta/45
B= 74/45= 2 BOCAS
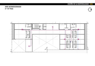
AIRE ACONDICIONADO
Sistema de aire VRV
DISEÑO DE LA MATERIALIDAD [06]
COSTOS DE FUNCIONAMIENTO BAJOS
Los sistemas VRV optimizan el rendimiento estacional
gracias a las unidades exteriores e interiores de alta
eficiencia, a las tecnologías de recuperación de calor e
inverter, al control de gestión inteligente de la energía, etc.
CONTROL PRECISO DE ZONAS
El control individual de cada planta o habitación ahorra
energía. Esta versatilidad hace que el sistema VRV sea ideal
para edificios con varios inquilinos.
CONFORT PERSONAL
Los sistemas VRV proporcionan aire nuevo a la
temperatura correcta, con el nivel correcto de humedad y
con el mínimo nivel sonoro.
Incluyen la tecnología de temperatura de refrigerante
variable y de calefacción continua para evitar corrientes de
aire frío.
GRAN FLEXIBILIDAD
El enfoque modular del sistema VRV es muy flexible para
equilibrar las cargas térmicas de las distintas partes del
edificio.
El sistema VRV IV incluye el configurador VRV para facilitar
la puesta en marcha.
AIRE ACONDICIONADO
PLANTA BAJA
DISEÑO DE LA MATERIALIDAD [06]
AIRE ACONDICIONADO
1° PISO
DISEÑO DE LA MATERIALIDAD [06]
AIRE ACONDICIONADO
2° PISO Y DISTRIBUCION PLANTA TIPO
DISEÑO DE LA MATERIALIDAD [06]
AIRE ACONDICIONADO
5° Y 9° PISO
DISEÑO DE LA MATERIALIDAD [06]
AIRE ACONDICIONADO
AZOTEA
DISEÑO DE LA MATERIALIDAD [06]
TEMA [01]
SITIO [02]
IMPLANTACION [03]
ESTRUCTURA FUNCIONAL [04]
ESTRUCTURA MORFOLOGICA [05]
DISEÑO DE LA MATERIALIDAD [06]
SUSTENTABILIDAD [07]
INNOVACION [08]
COMPROMISO CON EL ENTORNO [09]
DESARROLLO DEL PROYECTO [10]
4 pm
2 pm
8 am
6 am
6 pm
SUSTENTABILIDAD [07]
11 am
ANALISIS DE ASOLEAMIENTO
SUSTENTABILIDAD [07]
ILUMINACION Y VENTILACION
CUBIERTA SUSTENTABLE
En la cubierta del
edificio se colocaron
paneles solares
orientados al Norte
con el fin de
transformar los rayos
solares en energía.
Se trata, por tanto, de
una energía
totalmente renovable
e inagotable.
La cubierta de la
huerta comunitaria a
su vez recolecta el
agua de lluvia para
riego de los cultivos y
para alimentar las
instalaciones del
edificio.
NORTE
CONTROL DE TEMPERATURA
CONTROL DE HUMEDAD
SUSTENTABILIDAD [07]
INSTALACIONES
Las instalaciones del edificio se pensaron de forma tal que
no haya recorridos extensos de cañerías. Se colocaron dos
plenos al lado de cada núcleo vertical con el fin de
optimizar la distribución de las instalaciones.
UTILIZACION DE PLENOS-
SECTORIZACION DE SERVICIOS
12.000.000
PISADAS
72.000.000
JULIOS
10.000
TELEFONOS EN
1 HS.
12 baldosas podrían generar la luz
que necesitan las farolas de 2 calles.
Crean una conciencia de
sostenibilidad en las rutinas diarias.
Baldosas colocadas en el paseo peatonal que convierten la
energía cinética de las pisadas en energía eléctrica renovable.
SUSTENTABILIDAD [07]
INSTALACIONES
ILUMINACION LED
Eficiencia energética con un consumo de
hasta un 85% menos de electricidad.
Mayor vida útil pudiendo ofrecer unas
45.000 horas de uso.
La luz más ecológica. No sólo por el ahorro
energético sino por los componentes
químicos que la forman. Nada de productos
tóxicos.
Baja emisión de calor y mínimo
mantenimiento. La eficiencia energética
provoca una mínima emisión de calor
provocado por el desperdicio de energía
para conseguir la potencia de luz deseada en
las bombillas incandescentes.
TEMA [01]
SITIO [02]
IMPLANTACION [03]
ESTRUCTURA FUNCIONAL [04]
ESTRUCTURA MORFOLOGICA [05]
DISEÑO DE LA MATERIALIDAD [06]
SUSTENTABILIDAD [07]
INNOVACION [08]
COMPROMISO CON EL ENTORNO [09]
DESARROLLO DEL PROYECTO [10]
COMPROMISO CON EL ENTORNO [09]
VISTA MACHADO
VISTA MAESTRA CUETO
CORREDOR
UNIVERSITARIO
UNIVERSIDAD
RESIDENCIA
PLAZA DE LA
CULTURA
UM
UM UM
Respetar
alturas
Continuar el
lenguaje de la
universidad
Configuración futura de la manzana intervenida
Respetar
alturas
TEMA [01]
SITIO [02]
IMPLANTACION [03]
ESTRUCTURA FUNCIONAL [04]
ESTRUCTURA MORFOLOGICA [05]
DISEÑO DE LA MATERIALIDAD [06]
SUSTENTABILIDAD [07]
INNOVACION [08]
COMPROMISO CON EL ENTORNO [09]
DESARROLLO DEL PROYECTO [10]
INNOVACION [08]
+ +
PROBLEMATICA
DAR RESPUESTA PARA GENERAR UN SINFÍN DE NUEVAS
RELACIONES Y OPORTUNIDADES DE CRECIMIENTO
ANALISIS
INNOVACION [08]
“La arquitectura es el punto de partida del que
quiera llevar a la humanidad hacia un porvenir
mejor” (Le Corbusier).
TEMA [01]
SITIO [02]
IMPLANTACION [03]
ESTRUCTURA FUNCIONAL [04]
ESTRUCTURA MORFOLOGICA [05]
DISEÑO DE LA MATERIALIDAD [06]
SUSTENTABILIDAD [07]
INNOVACION [08]
COMPROMISO SOCIAL [09]
DESARROLLO DEL PROYECTO [10]
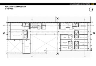
DESARROLLO DEL PROYECTO [06]
REPLANTEO MAMAPOSTERIA
SUBSUELO
DESARROLLO DEL PROYECTO [06]
REPLANTEO MAMAPOSTERIA
PLANTA BAJA
DESARROLLO DEL PROYECTO [06]
REPLANTEO MAMAPOSTERIA
1° PISO
DESARROLLO DEL PROYECTO [06]
REPLANTEO MAMAPOSTERIA
2° PISO
DESARROLLO DEL PROYECTO [06]
REPLANTEO MAMAPOSTERIA
3° PISO Y PLANTA TIPO
DESARROLLO DEL PROYECTO [06]
REPLANTEO MAMAPOSTERIA
5° Y 9° PISO
DESARROLLO DEL PROYECTO [06]
REPLANTEO MAMAPOSTERIA
AZOTEA

n

  • 1.
    T E SI S A R Q U I T E C T U R A C A T E D R A U M F A D A U BORRACHIA OSCAR- BARROSO JORGE- SALLABERRY CARLOS – PINI FERNANDO- ITZCOVICH PABLO. RESIDENCIA DE INTEGRACION ESTUDIANTIL A L U M N A GIALDINI CAMILA NATALIA 4 1 0 1 – 1 5 1 4
  • 2.
    TEMA [01] SITIO [02] IMPLANTACION[03] ESTRUCTURA FUNCIONAL [04] ESTRUCTURA MORFOLOGICA [05] DISEÑO DE LA MATERIALIDAD [06] SUSTENTABILIDAD [07] INNOVACION [08] COMPROMISO CON EL ENTORNO [09] DESARROLLO DEL PROYECTO [10]
  • 3.
    RECORRER GRANDES DISTANCIAS PARAESTUDIAR HOY! Mas de 40 mil alumnos EXTRANJEROS eligen estudiar en nuestro país. TEMA [01] MIGRAR PARA ESTUDIAR
  • 4.
    La universidad deMorón cuenta con 5.000 estudiantes inscriptos / 798 alumnos son extranjeros Cuenta con programas de intercambio lo cual es muy importante para adquirir conocimientos con gente de otros países. El TIL es un claro ejemplo de esta característica. EN MORON HOY EN DIA NO EXISTE INFRAESTRUCTURA QUE CONTEMPLE UN PROGRAMA RESIDENCIAL PARA ALBERGAR A LOS ESTUDIANTES. UM UTN UNLAM UTF UNA HUR TEMA [01]
  • 5.
    H A BI T A R D E S C A N S A R E N C O N T R A R S E E S T U D I A R D I V E R T I R S E TEMA [01]
  • 6.
    M I GR A R P A R A E S T U D I A R AMBITO URBANO DESCONOCIDO, al que deben comprender y adaptarse Rasgos propios del movimiento del migrante que implica dirigirse a una ciudad desconocida, siendo un CENTRO ATRACTOR por la complejidad de servicios que ofrece, y dentro de la cual la oferta educativa de la universidad de Morón tiene un valor significativo e histórico. CAMBIO DE RESIDENCIA: lo cual implica adaptarse e intercambiar a otras costumbres. C A M B I O S SUBJETIVIDAD DEL ESTUDIANTE CAMBIO DE RELACIONES SOCIALES: la persona que se muda, ya sea individualmente, con su familia o con otros miembros de la comunidad, lo hace a una comunidad en la que tendrá que relacionarse con personas a las que no conocía previamente. CAMBIO DE EMPLEO: implica un nuevo trabajo en la misma ocupación. TEMA [01]
  • 7.
    FACTORES que influyenen la decisión del proyecto de migrar con el objetivo de cursar estudios universitarios Caracterizar los NIVELES SOCIOEDUCATIVOS y SOCIOECONOMICO del núcleo familiar del migrante universitario Inferir de que modo interviene la FAMILIA en el proceso migratorio Identificar los LAZOS SOCIALES que construyen en el lugar de residencia y las variaciones en los lazos del lugar de origen Conocer de qué modo influye la CONDICION DE MIGRANTE en la deserción alargamiento o interrupción de los estudios. Facilitar la INSERCION de estudiantes migrantes a la vida universitaria. INTEGRACION TEMA [01] S U B J E T I V I D A D E L E S T U D I A N T E
  • 8.
    “E L HA B I T A R : VIVENCIA QUE VA DESDE LA FILOSOFIA HASTA EL ARTE RESIDENCIA CONDICIONES DE HABITABILIDAD INDIVIDUAL COLECTIVA Propiciar la sociabilidad entre los usuarios que tienen un denominador común: L A F O R M A C I O N No es un lugar para vivir, sino un COMPLEMENTO para la vida y los hábitos estudiantiles EL USUARIO tiene características definidas, sin embargo se debe considerar las posibles variables en cuanto a los servicios que requieran. La convivencia entre estudiantes y su INDIVIDUALIDAD dentro de un contexto COLECTIVO que permite el desarrollo de la actividad académica. “El habitar crea hábitos, que se expresan en actos y la suma de éstos constituye un principio de la habitación: habitar es habituarse” El habitar individual y colectivo son conceptos clave que se fusionan en una residencia estudiantil, esto se logra mediante la interrelación entre individuos y se extiende a través de grupos de personas con intereses comunes. TEMA [01]
  • 9.
    A- Estudiantes provenientesde regiones alejadas del país que vienen a cursar carreras de grado a la UM. B- Estudiantes nacionales que viven en sectores alejados de la universidad y les conviene económicamente quedarse cerca del lugar de cursada. C- Profesores, científicos o expertos que sean invitados por universidades u otras instituciones educativas como expositores o profesores invitados por un periodo de tiempo limitado. E L U S U A R I O TIPO DE ALOJAMIENTO DE ESTUDIANTES INTERNACIONALES TIPO DE UNIVERSIDAD/ INSTITUCION DE LOS ESTUDIANTES INTERNACIONALES PAIS DE ORIGEN DE ESTUDIANTES INTERNACIONALES TIPO DE ESTUDIOS QUE VIENEN A REALIZAR A NUESTRO PAIS TEMA [01]
  • 10.
    SEDENTARISMO FALTA DE ACTIVIDADFISICA BAJO CONSUMO DE FRUTAS Y VERDURAS HABITOS DE MALA ALIMENTACION Los estilos de vida influyen en el estado de salud de la población y representa un componente determinante porque influyen de forma directa en su calidad de vida. Un componente de los estilos de vida, son lo hábitos alimentarios, que en gran parte han provocado algunos de los problemas actuales de salud en la población. Abordar la alimentación en el espacio universitario significa avanzar en la educación integral de los futuros profesionales. La idea es que ellos mismos puedan autoabastecerse con la producción de alimentos sanos (generados en huertas comunitaria del edificio) que mejoren su salud y su calidad de vida. TEMA [01] HABITOS DE ALIMENTACION Y ACTIVIDAD FISICA EN ESTUDIANTES UNIVERSITARIOS
  • 11.
    P R OG R A M A CANTIDAD DE HUESPEDES: 162 estudiantes TOTAL M2: 3800 m2 TEMA [01] MANTENIMIENTO Sala de maquinas: 193 m2 ACCESO Hall y recepción: 80 m2 Sala de espera: 50 m2 CAFETERIA PUBLICA 76 m2 SALON COMEDOR COMUN 1 piso: 160 m2 SANITARIOS Baños comunes de sectores públicos 80 m2 AREAS COMUNES: Sectores de socialización y ENCUENTRO 400 m2 SALAS DE ESTUDIO Sector de informática y sala de idiomas 250m2 CIRCULACIONES Circulaciones comunes -Lavandería- área de limpieza 400 m2 GIMNASIO 100 m2 HABITACIONES 40 habitaciones dobles c/u 22 m2 : 880m2 32 habitaciones simples c/u 18m2: 576 m2 8 habitaciones cuádruples c/ 48 m2: 432m2
  • 12.
    Conformación espacial. Multiplicidad deactores y situaciones. Heterogeneidad programática: Uso principal: Viviendas 70%. Usos complementarios: Áreas comunes 20% salas de estudio + áreas de esparcimiento + alimentación y deporte 10%. Optimización del espacio. Separación de actividades según su tipo. Espacios colectivos como protagonistas del espacio. Arquitectura de la socialización EL ENCUENTRO TEMA [01]
  • 13.
    TEMA [01] SITIO [02] IMPLANTACION[03] ESTRUCTURA FUNCIONAL [04] ESTRUCTURA MORFOLOGICA [05] DISEÑO DE LA MATERIALIDAD [06] SUSTENTABILIDAD [07] INNOVACION [08] COMPROMISO CON EL ENTORNO [09] DESARROLLO DEL PROYECTO [10]
  • 14.
  • 15.
    MORON Partido: 321.109 hab. Localidad:92.725 hab. Haedo Ramos Mejía Castelar Ituzaingó MORON es uno de los distritos mas importantes del conurbano bonaerense, siendo uno de los puntos de transbordo mas grandes de zona oeste. Es la 2° estación con mayor venta de boletos después de Once. Concurren alrededor de 120 millones de pasajeros al año, siendo el 80% residentes de la zona Oeste. EL SITIO [02]
  • 16.
    BUENOS AIRES MORON FFCC. Rocca FFCC.Sarmiento FFCC. San Martin Conectividad ESTE- OESTE Conectividad NORTE- SUR Vías de Ferrocarril ACCESOS A LA CIUDAD DE MORON (DISTANCIAS) 20 kilómetros del centro de la ciudad de Buenos Aires (Capital Federal) 88 kilómetros de La Plata (capital provincial). EL SITIO [02]
  • 17.
  • 18.
    TRANSPORTE PUBLICO ESTACION DEFERRECARRIL PASOS SOBRE NIVEL PARADAS DE COLECTIVOS TRANSITO PESADO TRAZA DE FERROCARRIL EL SITIO [02] 141.715 PERSONAS 35.476 PERSONAS 44.655 PERSONAS 91.170 PERSONAS
  • 19.
    VIVIENDA MULTIFAMILIAR PLAZA BALDIO SERVICIOS INDUSTRIAS -TALLERES EQ. RECREATIVOR EQ. SALUDS EQ. BOMBEROSB EQ. ADMINISTRATIVOA EQ. CULTURALC EQ. EDUCATIVOE REFERENCIAS COMERCIO VIVIENDA UNIFAMILIAR REFERENCIAS PLANTA BAJA PLANTA BAJA + 1ER PISO HASTA 5 PISOS 5 PISOS O MAS CONSTRUIDO NO CONSTRUIDO REFERENCIAS JERARQUIA DE VIAS SENTIDO DEL TRANSITO REFERENCIAS EL SITIO [02]
  • 20.
    ESCUELA PRIMARIA UM UM UM EX ESCUELA DE DANZAS ESTACIONAMIENTO COLECTIVOS ESTACIONDE FFCC SARMIENTO SECTOREDUCATIVOSECTORTRASBORDOSECTOR RESIDENCIAL PASO A NIVEL PASO A NIVEL PASO A NIVEL PARADA DE COLECTIVOS PARADA DE COLECTIVOS TERMINAL DE COLECTIVOS PREDOMINANTE: Comercio, Administración, RETIROS: ARTICULO 4.5.5.1 LOTEMINIMO Ancho: 25 mts. Su perficie: 750 m² PARCELAMIENTO ZONADENSIDADES BRUTA Hab./Ha. NETA Hab./Ha. MC y Servicios COMPLEMENTARIO: Según Grilla de Usos USOSPERMITIDOS 700 1000 NORMASDETEJIDO ESPACIOURBANO FOS:0.6 INDICADORESDEOCUPACION Defondo: Según centro libre de manzana (art. 3.3.2.0.). Esta norma será de cumplimiento obligatorio a partir de cota + 6. 00 mts. ESTACIONAMIENTO, CARGAYDESCARGA Según art. 4.5.1.0. Defrente: No se exige a = h / 2 mayor o igual a 4.00 mts. Ver artículo 3.7. ALTURAMAXIMA Laterales:No se exige En el caso de Edificios en Torre ver artículo 3.6. h = 1.5 a, menor o igual a 35.00 mts. OBSERVACIONES PATIOS Según Grilla General de Usos PARAMENTOS ENFRENTADOS (art. 4.5.1.1.) FOT: 3 ÁREA A INTERVENIR: Entorno plaza Cultural del Municipio de Morón. CALLES: Alem, Independencia vías del ferrocarril Sarmiento y Mendoza . ZONIFICACION EL SITIO [02]
  • 21.
    ESCUELA PRIMARIA UM UM UM EX ESCUELA DEDANZAS ESTACIONAMIENTO COLECTIVOS ESTACION DE FFCC SARMIENTO PASO A NIVEL PASO A NIVEL PASO A NIVEL PARADA DE COLECTIVOS PARADA DE COLECTIVOS TERMINAL DE COLECTIVOS PUNTOS DE CONFLICTOS EN LA MOVILIDAD ENTRE PEATONES Y VEHICULOS (privados y públicos) AREAS VERDES? FALTA DE ARTICULACION ENTRE LOS EDIFICIOS EDUCATIVOS ? SITUACION ACTUAL! EL SITIO [02]
  • 22.
    FORTALEZASDEBILIDADES OPORTUNIDADES AMENAZAS • POLOEDUCATIVO EN CONEXIÓN CON EL CENTRO COMERCIAL DE MORON • ESTACION DE MORON COMO UNO DE LOS PRINCIPALES CENTROS DE TRANSBORDO DEL CONURBANO BONAERENSE • VIAS CIRCULATORIAS COLAPSADAS (EN HORA PICO) CUANDO FUNCIONA LA UNIVERSIDAD. • CARENCIA DE ACTIVIDAD Y DINAMISMO DURANTE EL VERANO Y LA EPOCA DE VACACIONES. • USOS ICOMPATIBLES EN EL SECTOR. • EDIFICIOS ABANDONADOS EN MUY MAL ESTADO PARA POSIBLE REFUNCIONALIZACION. • VACIOS URBANOS Y ESTACIONAMIENTO QUE NO RESUELVEN EL TRANSITO PARTICULAR Y AUMENTA LA CONGESTION. • LA GRAN CANTIDAD DE GENTE QUE PERMANECE Y PASA POR LA ESTACION DE MORON GENERA UN COLAPSO DE LAS VIAS, DE PEATONES Y DE LA MOVILIDAD URBANA. EL SITIO [02] ANALISIS F.O.D.A
  • 23.
    EL SITIO [02] ARTICULARY CONECTAR LOS EDIFICIOS EDUCATVOS. VINCULARLOS CON NUEVOS ESPACIOS VERDES GENERAR CALLES PEATONALES “CORREDOR UNIVERSITARIO” CON EL FIN DE CONTROLAR Y RESTRINGIR EL ACCESO DE VEHICULOS. DARLE MAYOR IMPORTANCIA AL PEATON. GENERAR ESPACIOS VERDES RECREATIVOS. SITUACION DESEADA! ESTRUCTURA URBANA PROPUESTA
  • 24.
    ESCUELA PRIMARIA UM UM UM ESTACIONAMIENTO COLECTIVOS ESTACION DEFFCC SARMIENTO PASO A NIVEL PASO A NIVEL PASO A NIVEL PARADA DE COLECTIVOS PARADA DE COLECTIVOS TERMINAL DE COLECTIVOS El emplazamiento del edificio busca generar INTEGRACION entre ambos espacios públicos de manera que converjan en una actividad común a ambos. Comunicando el corredor universitario ubicado sobre la calle Machado y la plaza pública de Maestra Cueto. Y de esta manera articular los edificios educativos EL SITIO [02]
  • 25.
  • 26.
  • 27.
    CALLE MACHADO LOCAL GASTRONOMICOBAR- VERT ROUGE + LOCAL COMERCIAL Datos Superficie: Lote de 13m x 31m Superficie: 400 m2 CALLE MAESTRA CUETO 3 LOCALES CON OFICINAS. EL RESTO TIENE HABITACIONES CON BAÑO. LINDEROS A LA UM Datos Superficie: Lote de 18m x 31 m Actualmente en venta: Inmobiliaria De Angelis Superficie: 790 m2 • Fot: 3 •Fot: 2370 m2 • Fos: 0,6 •Fos: 474 m2 • Valor m2 terreno. 800 dólares• Altura máxima: 35m •Altura residencia: 35m Superficie total terreno: 782 m2 Valor m2: 800 dólares Valor del terreno: 7630.000 uss Valor M2 de construcción: 1000 U$$ Edificio- residencia = 3.800.000 + 720.000 = 4520.000 • Costo: 1300 dólares el m2 construido • Edificio a construir de 11 pisos UNIVERSIDAD DE MORON EL SITIO [02] 790 m2
  • 28.
    EL SITIO [02] PLAZADE LA CULTURA
  • 29.
    TEMA [01] SITIO [02] IMPLANTACION[03] ESTRUCTURA FUNCIONAL [04] ESTRUCTURA MORFOLOGICA [05] DISEÑO DE LA MATERIALIDAD [06] SUSTENTABILIDAD [07] INNOVACION [08] COMPROMISO CON EL ENTORNO [09] DESARROLLO DEL PROYECTO [10]
  • 30.
    IDENTIDAD HISTORIA Representatividad y sentidode pertenencia. Emblema en la historia de la conformación de la ciudad. EQUIPAMIENTO Y AREAS VERDES Esparcimiento - Cultura PEATON PROTAGONISTA DEL ESPACIO Paseo peatonal Mobiliario urbano Conformación espacial MULTIPLICIDAD DE ACTORES Y SITUACIONES Heterogeneidad de usos, habitantes y sucesos. TERRITORIALESPACIALTEMPORALDIMENSION IMPLANTACION [03] UM PLAZA DE LA CULTURA CONEXIÓN PASEO PEATONAL ENCUENTRO PUNTOS DE PARTIDA PARA LA IMPLANTACION DEL EDIFICIO
  • 31.
    INTENSIONES Integrar ambos patiosConectarambas calles peatonales Configurar el sector universitario IMPLANTACION [03]
  • 32.
    IMPLANTACION [03] •A nivelurbanístico se eligió ese lugar para la implantación del edificio ya que la idea es configurar el sector universitario entendiendo que en un futuro la manzana va a terminar de configurarse tomando como referente a un edificio emblemático como es la Universidad de Morón •El edificio permite que el día de mañana la universidad de morón pueda seguir creciendo mediante la unión de los patios que se generan en el pulmón de manzana •Hacia la fachada NORTE (sobre Machado) tenemos la mayor cantidad de viviendas. •Hacia la fachada SUR (sobre Maestra Cueto) la cantidad de viviendas es mas reducida ya que se plantea que el edificio se abra hacia la plaza aprovechando mayor asoleamiento y visuales. Posible crecimiento CONFIGURACION FUTURA DE LA MANZANA INTERVENIDA
  • 33.
    TEMA [01] SITIO [02] IMPLANTACION[03] ESTRUCTURA FUNCIONAL [04] ESTRUCTURA MORFOLOGICA [05] DISEÑO DE LA MATERIALIDAD [06] SUSTENTABILIDAD [07] INNOVACION [08] COMPROMISO CON EL ENTORNO [09] DESARROLLO DEL PROYECTO [10]
  • 34.
    ESTRUCTURA FUNCIONAL [04] DESARROLLODE LAS DIFERENTES PLANTAS DEL EDIFICIO PLANTA BAJA 1º PISO 2º PISO PLANTA TIPO 6° Y 9º PISO CAFETERIA HALL ACCESO COWORKING COMEDOR COMUN INFORMATICA CLASES IDIOMAS HABI 2 PERSONAS SECTOR DE ESTAR TERRAZA COMUN HABI. 4 PERSONAS AREA DE ESTUDIO AREA DE LECTURA HABI. 4 PERSONAS HABI. 4 PERSONAS HABI 2 PERSONAS HAB 1 PERSONA HAB 1 PERSONA HABI 2 PERSONAS HUERTA COMUNITARIA
  • 35.
  • 36.
    ESTRUCTURA FUNCIONAL [04] PLANTABAJA +1.30m HALL ACCESO CAFETERIA SALA COWORKING ADMINISTRACION CALLEMAESTRACUETO CALLEMACHADO
  • 37.
  • 38.
    ESTRUCTURA FUNCIONAL [04] COMEDORCOMUN INFORMARICA LECTURA SALA DE IDIOMAS 1º PISO + 4.10 m
  • 39.
  • 40.
    ESTRUCTURA FUNCIONAL [04] 2ºPISO + 7.60 m TERRAZA COMUN HAB PARA 4 PERSONAS HAB. PARA 2 PERSONAS SALA DE ESTAR POSIBLE CONEXIÓN CON LA UM LAVADERO LIMPIEZA HAB. DISC HAB. 2 PERSONAS HALL LLEGADA AIRE LUZ PATIO UM
  • 41.
    ESTRUCTURA FUNCIONAL [04] 3ºPISO +10.80 m y PLANTA TIPO
  • 42.
    ESTRUCTURA FUNCIONAL [04] HABPARA 4 PERSONAS HAB. PARA 2 PERSONAS LIMPIEZA HAB. DISC HAB. 2 PERSONAS HAB. 1PERSONA LAVADERO HALL LLEGADA AIRE LUZ AIRE LUZ PATIO UM 3º PISO +10.80 m y PLANTA TIPO
  • 43.
  • 44.
    ESTRUCTURA FUNCIONAL [04] 5ºY 9º PISO AIRE LUZ PATIO UM SALA DE LECTURA HAB PARA 4 PERSONAS HAB. PARA 2 PERSONAS LIMPIEZA HAB. DISC HAB. 2 PERSONASHAB. 1PERSONA LAVADERO HALL LLEGADA AIRE LUZ
  • 45.
    ESTRUCTURA FUNCIONAL [04] PLANTAAZOTEA + 35.00 m AIRE LUZ PATIO UM
  • 46.
    ESTRUCTURA FUNCIONAL [04] PLANTAAZOTEA GIMNASIO SALA DE MAQUINAS TERRAZA COMUN AIRE LUZ HUERTA COMUNITARIA PATIO UM
  • 47.
    ESTRUCTURA FUNCIONAL [04] PLANTATECHOS CALLEMAESTRACUETO PLAZADELACULTURA CALLEMACHADO
  • 48.
  • 49.
  • 50.
    ESPACIO - FRECUENCIA Enel caso de la población en estudio, adquiere significación particular, dadas las características que reviste por su condición de “residente transitorio” y por lo tanto manifiesta una acusada movilidad espacial. ESPACIO - VIDA El individuo ejerce sus actividades y mantiene una red de relaciones familiares, laborales, educacionales, que pueden implicar una red de relaciones dobles o múltiples hasta residencias temporarias o secundarias. ESPACIO – ESCENCIA Proponer un lugar donde el estudiante pueda sentirse como en su casa y que pueda organizar sus espacios de acuerdo a sus costumbres. Por eso el mobiliario puede variar. CONCEPTO DE REVERSIBILIDAD Interior de las unidades funcionales ESTRUCTURA FUNCIONAL [04]
  • 51.
    ESTRUCTURA FUNCIONAL [04] CONCEPTODE REVERSIBILIDAD Interior de las unidades funcionales
  • 52.
    ESTRUCTURA FUNCIONAL [04] CONCEPTODE REVERSIBILIDAD Interior de las unidades funcionales
  • 53.
    Se proponen unaserie de ESPACIOS COLECTIVOS de distintas categorías y usos, dándole un carácter INTEGRADOR. Esta situación espacial es la más importante y el foco de tensión del proyecto, ya que ésta es la que recibe al usuario en el acceso y es la que propicia las múltiples relaciones espaciales ente todos los espacios constituyentes del edificio. A nivel del interior del edificio, se establece a los espacios de encuentro como el motor o el elemento en común de todos los espacios del edificio, donde estos propicien el encuentro en distintas escalas, desde el elemento pasillo pasando por los espacios comunes hasta el espacio público que el proyecto defina a su alrededor. ESTRUCTURA FUNCIONAL [04] ESPACIOS COMUNES COMO PROTAGONISTAS
  • 54.
  • 55.
    TEMA [01] SITIO [02] IMPLANTACION[03] ESTRUCTURA FUNCIONAL [04] ESTRUCTURA MORFOLOGICA [05] DISEÑO DE LA MATERIALIDAD [06] SUSTENTABILIDAD [07] INNOVACION [08] COMPROMISO CON EL ENTORNO [09] DESARROLLO DEL PROYECTO [10]
  • 56.
  • 57.
  • 58.
    TEMA [01] SITIO [02] IMPLANTACION[03] ESTRUCTURA FUNCIONAL [04] ESTRUCTURA MORFOLOGICA [05] DISEÑO DE LA MATERIALIDAD [06] SUSTENTABILIDAD [07] INNOVACION [08] COMPROMISO CON EL ENTORNO [09] DESARROLLO DEL PROYECTO [10]
  • 59.
    ESTRUCTURA LOSA STEEL DECK Sobrecargade uso 350 kg/m2 (losas) Peso de chapa 18= 12.60kg/m2 Peso /m2 Hormigón sobre la chapa = 0.085 m3/m2 0.085 m3 x 2400kg/3 = 204 kg/m2 m2 g total: chapa 12.60 kg/m2 Hormigón sobre la chapa: 204 kg/m2 0.04 m x 1900= 76 kg/m2 Cielorraso: 20 kg/m2 g =313 kg/m2 = 350 kg/m2 P = 350 kg/m2 q = 700 kg/m2 6.35 cm + 5 cm de hormigón sobre chapa = 11.35 cm 11.35 cm DISEÑO DE LA MATERIALIDAD [06]
  • 60.
    VIGAS SECUNDARIAS q vigasecundaria = q total x sep. = 700kg/m2 x 3.20m = 2240kg/m Mmax viga = q x l2 2240 kg/m x (4.22)2 8 8 Mmxnec = Mmax 498600kg/cm Tadm 1200 kg/cm2 RA = RB = q x l 2 2 = 416 cm3 = 4986 kg/m = = = 2240 X 4.22 = 4726 kg = 4726 kg x 2 = 9453 kg SE ADOPTA HEB 180 2240 kg/m RA RB4.22 + 0.85 cm 1.04 cm 18 cm 18 a cm 9.5 t 9.5 tn 3.20 + 3.20 3.20 M max Mmax viga = q x l2 9.5 tn x 3.20 m = 30.4 tm Mmxnec= M max 3.040.000 kg/cm T adm 1200 kg/cm2 SE ADOPTA HEB 400 wx: 2880 > 2533 cm3 VIGAS PRINCIPALES =1.35 cm 2.40 cm 40 cm 30 a cm 9.5 t 9.5 t DISEÑO DE LA MATERIALIDAD [06]
  • 61.
    PREDIMENSIONADO COLUMNA Área deinfluencia = 4.22m x ( 6.26m + 6.05m) 2 2 N col PB = area x q x n° niveles N= 26m2 x 700 kg/m2 x 11 niveles = 200.200kg Predimensionado col: Fnec= N 200.200 kg T adm 1200 kg/cm2 SE ADOPTA: HEB= 340 (30/34CM) F = 171 cm2 Verificación al pandeo: 1.45 cm 2.80 cm 50 cm 30 cm = 25.97 m2 = 26 m2 = = 167 cm3 lk i min 350 cm 7.53 cm (de tabla) = = 47 + w = 1.36 W x N F 1.36 x 200200 kg 171 cm2 = = 1592 > 1200 kg /cm2T SE ADOPTA HEB = 500 lk i min 350 cm 7.27 cm (de tabla) = = 49 + w = 1.37 W x N F 1.37 x 200200 kg 239 cm2 = 1147kg/cm2 < 1200 kg /cm2 VERIFICA T PREDIMENSIONADO BASE 1.1 x N t 1.10 x 200200 cm 1.50 kg/cm2 = 146.813 cm2 Ab = Ax =ay = Ab + 146813 cm2 Base = 383m = 390 x 390 =Ab = T = 2.50 1.80 4.22 2.50 DISEÑO DE LA MATERIALIDAD [06]
  • 62.
    DISEÑO DE LAMATERIALIDAD [06] ESTRUCTURA
  • 63.
    DISEÑO DE LAMATERIALIDAD [06] ESTRUCTURA
  • 64.
    DISEÑO DE LAMATERIALIDAD [06] ESTRUCTURA
  • 65.
    DISEÑO DE LAMATERIALIDAD [06] ESTRUCTURA
  • 66.
    DISEÑO DE LAMATERIALIDAD [06] ESTRUCTURA
  • 67.
    DISEÑO DE LAMATERIALIDAD [06] ESTRUCTURA
  • 68.
    DISEÑO DE LAMATERIALIDAD [06] ESTRUCTURA
  • 69.
    DISEÑO DE LAMATERIALIDAD [06] ESTRUCTURA CORTE 3-3 Parante tubo metálico 30 x 10 Ventana de aluminio corrediza con DVH 4 + 9 + 4 línea A30 NEW Sustrato orgánico Membrana filtrante Capa impermeable anti raíces Aislante térmico Placa para control de vapor Geotextil 200 micrones METALDECK Calibre 18 Malla de Retracción de Fraguado HORMIGON H21 Perfil HEB 400 Cuelgue de acero galvanizado fijado a la losa cada 60 cm. Cerramiento chapa plegable microperforada de acero inox. Perfil metálico anclado a losa Piso técnico Parante tubo metálico 30x10 METALDECK Calibre 18 Malla de retracción de fraguado- hormigón H21 Perfil HEB 400 Perfil metálico anclado a losa
  • 70.
    DISEÑO DE LAMATERIALIDAD [06] ESTRUCTURA CORTE 1-1 CALLE MAESTRA CUETO
  • 71.
    DISEÑO DE LAMATERIALIDAD [06] ESTRUCTURA CORTE 2-2 CALLE MACHADO Corte 2-2 sobre Calle Machado Muro suspendido de estructura metálica sobre la medianera existente de la universidad con el desarrollo de un jardín vertical en el cual se decide colocar plantas aromáticas con el fin de atravesar la manzana y generar un recorrido agradable disfrutando los diferentes aromas.
  • 72.
    DISEÑO DE LAMATERIALIDAD [06] CERRAMIENTOS Para los tabiques divisorios como para los cielorrasos del edificio se utilizo el sistema de steel framing- La utilización de perfiles galvanizados permite: • Gran estabilidad estructural • Dura en el tiempo • Cuenta con barrera anticorrosión • Liviandad Carpinterías con Vidrio DVH • Aumenta en más del 100% el aislamiento térmico del vidriado. • Mejora el aislamiento acústico entre un 40% a un 70% • Disminuye el consumo de energía de climatización por las pérdidas a través del vidrio. Para el control solar del edificio en el sector de las viviendas orientadas al Norte y Sur, se colocaron planchas de acero galvanizado perforadas que permiten que el aire y la luz natural ingrese a las habitaciones. A su vez al plegarse permiten orientar los paneles hacia la dirección conveniente
  • 73.
    CALCULO DE ASCENSORES Nºde personas a transportar en 5min S x NP x a% m2 por persona NP = = 446 m2 x 10 x 0.20 8 m2 NP = = 111 personas Tiempo total de duración del viaje en seg. TT = t1 + t2 + t3 + t4 2x20.00x60” +(2x10)+(5x10)+(5x10) 100 m/seg TT = TT = 105 segundos Numero de ascensores N = tt/ tiempo de espera TT = 105/45 TT = 2 ASCENSORES CALCULO DE ESCALERA Factor de ocupación de viviendas privadas o colectivas 12 + otras áreas 5 Superficie de proyecto / áreas :17 m2/17= 28 personas Dimensionado de escalera H de piso: 3.30 m Alzada: 0.18 Pedada: 0.26 3.30 m/ 0.18m: 18 escalones 2 alzadas + 1 pedada : 0.60+0.63: 2 x 0.18 + 0.25 : 0.61 VERIFICA 18 alzadas / 2 : 9 alzadas 8 pedadas Dividimos en dos tramos separados por un descanso DISEÑO DE LA MATERIALIDAD [06]
  • 74.
    CALCULO DE RESERVASANITARIA PROVISION Unidad de vivienda completa 580 L 600 L Baño 350 L 250 L M 250 L 150 L L° PC PL 150 L 100 L DIRECTA BOMBEO Se adicionara el 50% de estos valores por los artefactos adicionales a las unidades de vivienda CALCULO DE TANQUE DE RESERVA 77 locales x 600 l = 46.200 Se consideran 600 litros ya que no es mucha la diferencia si calculamos los artefactos por separado + los artefactos de PB Y 1° piso (sectores públicos del edificio). 12 inodoros x 250 l = 3000 litros 16 lavabos x 100 l = 1600 litros 4 mingitorios x 150 l = 600 litros TOTAL: 5200 litros 46.200 lts. + 5200 lts. = 51.400 litros Subsuelo: 140 m2 Planta baja: 448 m2 1° piso: 448 m2 2-3-4-5-6-7-8-9-10 pisos: 457 m2 x 9 pisos = 4113 Total: 5.000 m2 Considerando 10 litros x m2= 5.000 x 10 = 50.000 LITROS Se utilizara tanque de reserva mixto 50.000 + 51.000 = 100.000 Litros. Volumen de tanque de bombeo: 1/3 x 100.000 = 30.000 Volumen de tanque de reserva: 2/3 x 100.000 = 60.000 Se adopta tanque de bombeo de 30.000 litros Se adopta tanque de reserva de 60.000 litros CALCULO DE CAPACIDAD DE TANQUE DE INCENDIO CALCULO DE NUMERO DE BOCAS DE INCENDIO POR PISO El numero de bocas de incendio/ hidrantes por piso se determina en función del alcance de las mangueras de incendio de modo que barran perfectamente el área requerida. Perímetro/ 45= DISEÑO DE LA MATERIALIDAD [06]
  • 75.
  • 76.
  • 77.
    SANITARIAS 1° PISO DISEÑO DELA MATERIALIDAD [06]
  • 78.
    SANITARIAS 2° PISO YPLANTA TIPO DISEÑO DE LA MATERIALIDAD [06]
  • 79.
    DESARROLLO DEL PROYECTO[06] SANITARIAS 5° Y 9° PISO
  • 80.
    DESARROLLO DEL PROYECTO[06] SANITARIAS AZOTEA
  • 81.
    DESARROLLO DEL PROYECTO[06] SANITARIAS CORTE ESQUEMATICO Se utilizaron los plenos para poder distribuir las instalaciones de forma mas sustentable. 3 TANQUES DE RESERVA 23.000 LITROS CADA UNO ROTOPLAST Altura de tanque 3.00 m 2 TANQUES DE BOMBEO DE 15.000 LITROS CADA UNO Altura de tanque: 2.5 m
  • 82.
    DESARROLLO DEL PROYECTO[06] ELECTRICIDAD SUBSUELO
  • 83.
  • 84.
  • 85.
  • 86.
    ELECTRICIDAD 5° Y 9°PISO DISEÑO DE LA MATERIALIDAD [06]
  • 87.
    ELECTRICIDAD DISEÑO DE LAMATERIALIDAD [06]
  • 88.
    INCENDIO SUBSUELO DISEÑO DE LAMATERIALIDAD [06] El numero de bocas de incendio se determina en función del alcance de las mangueras. Cantidad de Bocas: perímetro de la planta/45 B= 65/45= 2 BOCAS
  • 89.
    INCENDIO PLANTA BAJA DISEÑO DELA MATERIALIDAD [06] El numero de bocas de incendio se determina en función del alcance de las mangueras. Cantidad de Bocas: perímetro de la planta/45 B= 114/45= 3 BOCAS
  • 90.
    INCENDIO 1° PISO DISEÑO DELA MATERIALIDAD [06] El numero de bocas de incendio se determina en función del alcance de las mangueras. Cantidad de Bocas: perímetro de la planta/45 B= 114/45= 3 BOCAS
  • 91.
    INCENDIO 2° PISO DISEÑO DELA MATERIALIDAD [06] El numero de bocas de incendio se determina en función del alcance de las mangueras. Cantidad de Bocas: perímetro de la planta/45 B= 125/45= 3 BOCAS
  • 92.
    INCENDIO AZOTEA DISEÑO DE LAMATERIALIDAD [06] El numero de bocas de incendio se determina en función del alcance de las mangueras. Cantidad de Bocas: perímetro de la planta/45 B= 74/45= 2 BOCAS
  • 93.
    AIRE ACONDICIONADO Sistema deaire VRV DISEÑO DE LA MATERIALIDAD [06] COSTOS DE FUNCIONAMIENTO BAJOS Los sistemas VRV optimizan el rendimiento estacional gracias a las unidades exteriores e interiores de alta eficiencia, a las tecnologías de recuperación de calor e inverter, al control de gestión inteligente de la energía, etc. CONTROL PRECISO DE ZONAS El control individual de cada planta o habitación ahorra energía. Esta versatilidad hace que el sistema VRV sea ideal para edificios con varios inquilinos. CONFORT PERSONAL Los sistemas VRV proporcionan aire nuevo a la temperatura correcta, con el nivel correcto de humedad y con el mínimo nivel sonoro. Incluyen la tecnología de temperatura de refrigerante variable y de calefacción continua para evitar corrientes de aire frío. GRAN FLEXIBILIDAD El enfoque modular del sistema VRV es muy flexible para equilibrar las cargas térmicas de las distintas partes del edificio. El sistema VRV IV incluye el configurador VRV para facilitar la puesta en marcha.
  • 94.
  • 95.
    AIRE ACONDICIONADO 1° PISO DISEÑODE LA MATERIALIDAD [06]
  • 96.
    AIRE ACONDICIONADO 2° PISOY DISTRIBUCION PLANTA TIPO DISEÑO DE LA MATERIALIDAD [06]
  • 97.
    AIRE ACONDICIONADO 5° Y9° PISO DISEÑO DE LA MATERIALIDAD [06]
  • 98.
  • 99.
    TEMA [01] SITIO [02] IMPLANTACION[03] ESTRUCTURA FUNCIONAL [04] ESTRUCTURA MORFOLOGICA [05] DISEÑO DE LA MATERIALIDAD [06] SUSTENTABILIDAD [07] INNOVACION [08] COMPROMISO CON EL ENTORNO [09] DESARROLLO DEL PROYECTO [10]
  • 100.
    4 pm 2 pm 8am 6 am 6 pm SUSTENTABILIDAD [07] 11 am ANALISIS DE ASOLEAMIENTO
  • 101.
    SUSTENTABILIDAD [07] ILUMINACION YVENTILACION CUBIERTA SUSTENTABLE En la cubierta del edificio se colocaron paneles solares orientados al Norte con el fin de transformar los rayos solares en energía. Se trata, por tanto, de una energía totalmente renovable e inagotable. La cubierta de la huerta comunitaria a su vez recolecta el agua de lluvia para riego de los cultivos y para alimentar las instalaciones del edificio. NORTE CONTROL DE TEMPERATURA CONTROL DE HUMEDAD
  • 102.
    SUSTENTABILIDAD [07] INSTALACIONES Las instalacionesdel edificio se pensaron de forma tal que no haya recorridos extensos de cañerías. Se colocaron dos plenos al lado de cada núcleo vertical con el fin de optimizar la distribución de las instalaciones. UTILIZACION DE PLENOS- SECTORIZACION DE SERVICIOS 12.000.000 PISADAS 72.000.000 JULIOS 10.000 TELEFONOS EN 1 HS. 12 baldosas podrían generar la luz que necesitan las farolas de 2 calles. Crean una conciencia de sostenibilidad en las rutinas diarias. Baldosas colocadas en el paseo peatonal que convierten la energía cinética de las pisadas en energía eléctrica renovable.
  • 103.
    SUSTENTABILIDAD [07] INSTALACIONES ILUMINACION LED Eficienciaenergética con un consumo de hasta un 85% menos de electricidad. Mayor vida útil pudiendo ofrecer unas 45.000 horas de uso. La luz más ecológica. No sólo por el ahorro energético sino por los componentes químicos que la forman. Nada de productos tóxicos. Baja emisión de calor y mínimo mantenimiento. La eficiencia energética provoca una mínima emisión de calor provocado por el desperdicio de energía para conseguir la potencia de luz deseada en las bombillas incandescentes.
  • 104.
    TEMA [01] SITIO [02] IMPLANTACION[03] ESTRUCTURA FUNCIONAL [04] ESTRUCTURA MORFOLOGICA [05] DISEÑO DE LA MATERIALIDAD [06] SUSTENTABILIDAD [07] INNOVACION [08] COMPROMISO CON EL ENTORNO [09] DESARROLLO DEL PROYECTO [10]
  • 105.
    COMPROMISO CON ELENTORNO [09] VISTA MACHADO VISTA MAESTRA CUETO CORREDOR UNIVERSITARIO UNIVERSIDAD RESIDENCIA PLAZA DE LA CULTURA UM UM UM Respetar alturas Continuar el lenguaje de la universidad Configuración futura de la manzana intervenida Respetar alturas
  • 106.
    TEMA [01] SITIO [02] IMPLANTACION[03] ESTRUCTURA FUNCIONAL [04] ESTRUCTURA MORFOLOGICA [05] DISEÑO DE LA MATERIALIDAD [06] SUSTENTABILIDAD [07] INNOVACION [08] COMPROMISO CON EL ENTORNO [09] DESARROLLO DEL PROYECTO [10]
  • 107.
    INNOVACION [08] + + PROBLEMATICA DARRESPUESTA PARA GENERAR UN SINFÍN DE NUEVAS RELACIONES Y OPORTUNIDADES DE CRECIMIENTO ANALISIS
  • 108.
    INNOVACION [08] “La arquitecturaes el punto de partida del que quiera llevar a la humanidad hacia un porvenir mejor” (Le Corbusier).
  • 109.
    TEMA [01] SITIO [02] IMPLANTACION[03] ESTRUCTURA FUNCIONAL [04] ESTRUCTURA MORFOLOGICA [05] DISEÑO DE LA MATERIALIDAD [06] SUSTENTABILIDAD [07] INNOVACION [08] COMPROMISO SOCIAL [09] DESARROLLO DEL PROYECTO [10]
  • 110.
    DESARROLLO DEL PROYECTO[06] REPLANTEO MAMAPOSTERIA SUBSUELO
  • 111.
    DESARROLLO DEL PROYECTO[06] REPLANTEO MAMAPOSTERIA PLANTA BAJA
  • 112.
    DESARROLLO DEL PROYECTO[06] REPLANTEO MAMAPOSTERIA 1° PISO
  • 113.
    DESARROLLO DEL PROYECTO[06] REPLANTEO MAMAPOSTERIA 2° PISO
  • 114.
    DESARROLLO DEL PROYECTO[06] REPLANTEO MAMAPOSTERIA 3° PISO Y PLANTA TIPO
  • 115.
    DESARROLLO DEL PROYECTO[06] REPLANTEO MAMAPOSTERIA 5° Y 9° PISO
  • 116.
    DESARROLLO DEL PROYECTO[06] REPLANTEO MAMAPOSTERIA AZOTEA