Embed presentation
Downloaded 44 times























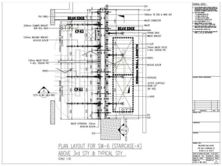
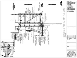
This document discusses different types of formwork used in construction including column formwork, table formwork, and wall formwork. It provides plans, sections, and manufacturing drawings for column formwork as well as plans and sections for table formwork and wall formwork used for building staircases and shear walls.





















