Embed presentation
Download to read offline

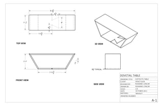
This drawing shows a dovetail table design with dimensions. The table is 3'-21⁄2" long by 1'-12" wide and 1'-71⁄2" tall. It has rounded edges with a radius of 1⁄4" and a dovetailed bottom shelf that is 51⁄2" deep. The drawing title is "Dovetail Table/Coffee TV Table", it was designed by Speke Klien, drawn by Roxanne Loncar, and is drawn to a scale of 1:8.
