Embed presentation
Downloaded 26 times

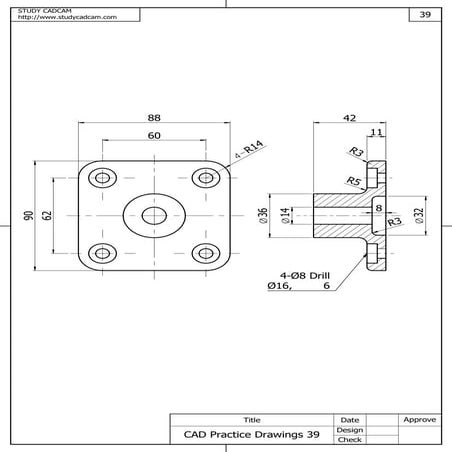
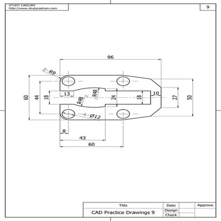
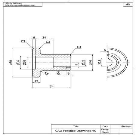
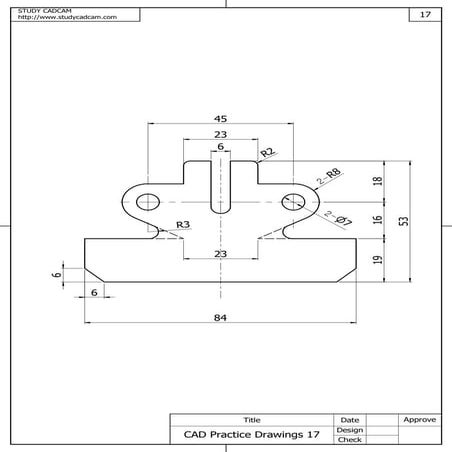
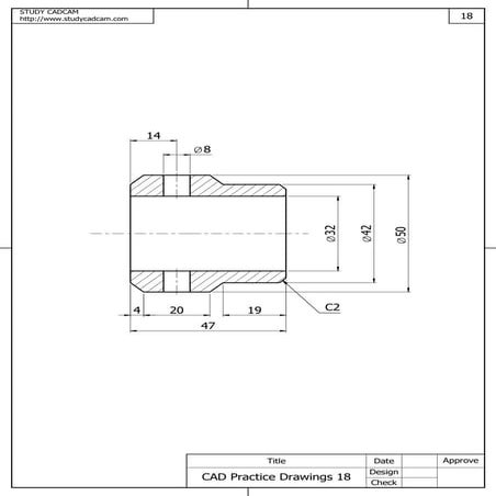
This document appears to contain technical drawings, including dimensions and radii for various round and curved shapes. Numbers and abbreviations like R5, R30, R60 are included, likely representing radius dimensions. Overall it seems to provide geometric specifications and measurements for mechanical or engineering design work.
