JALAN RAJA MUDA ABDUL AZIZ
EVERYBODYELECTRICAL
STORSINARZAMZAM
KEDAIPERALATANKOMUNIKASI
KEDAIEMASYIKLIAN
JALANTUANKUABDULRAHMAN
LORONGHAJIHUSSIEN1
LIFT MOTORROOMFIRE STAIRCASE
1
KLINIK DR LEELA RATOS
HOTEL WAH HIN
ATIKA BEAUTY
KEDAI EMAS CANTIK
PUSAT INTERNET WIRA
Taman Tasik Titiwangsa
Taman Tasik Perdana
Taman KLCC
Padang Golf Titiwangsa
Bukit Bandaraya
Bangsar Baru
Brickfields
Tmn. Duta
Bukit Damansara
Kompleks Kerajaan
Golden Triangle
Mahameru
City Center
Pudu
Bukit Bintang
Kg. Attap
Jln.Duta
Jln.TunRazak
Jln.Damansara
Lebuhraya
SPRINT
Jln. Tun
Razak
Jln. Parlimen
Jln. Hang
Tuah
Jln. Bukit Bintang
Jln. Pudu
Jln. Pudu
Jln. Raja Chulan
Jln. Ampang
Jln. Im
bi
Jln. Sultan Ismail
Jln.TAR
Jln.Kuching
JALAN RAJA MUDA ABDUL AZIZ
JALANTUANKUABDULRAHMAN
JALANPAHANG
LORONG HAJI HUSSIEN 3
LORONG HAJI HUSSIEN 2
LORONGHAJIHUSSIEN3
LORONGHAJIHUSSIEN1
PROPOSED SITE
LAND OWNER AND BUILDING
DRAWN BY
CHECKED BY
SCALE
SIGNATURE DATE
ARCHITECT'S SIGNATURE
SHEET NO.
AMMENDMENT
DRAWING TITLE
JO & LI Consultancy Sdn. Bhd.
DESIGN CONSULTANT
A B C D
F G H J
E
K
AR. ZAHARI ZUBIR
I/C NO: 571212-07-5587
DATO IR. TAN EU KANG
TEL: 03-1323 2567 FAX: 03-1323 2568 CHIEF EXECUTIVE OFFICER
123, 3RD FLOOR,
JALAN SETIA NUSANTARA U11/17,
40170 SHAH ALAM, SELANGOR D.E.
ECO SUCESS SDN. BHD. ( 1020553-T )
PROPOSED DESIGN OF LOT ??, ??, ??, ??,
?? & ?? INTO 4-STOREY FOOD MARKET AT
JALAN RAJA MUDA ABDUL AZIZ,
50300 KUALA LUMPUR,
FEDERAL TERRITORY OF KUALA LUMPUR.
FOR :
ECO SUCESS SDN. BHD.
SEPTEMBER 2015
1:100
I/C NO:640806-10-5490
Ar. Alfred Lee (AL/238)
DIRECTOR
L E M B A G A
A R K I T E K
M A L A Y S I A
L E M B A G A
A R K I T E K
M A L A Y S I A
SCALE
REFER TO DRAWING
CONSTRUCTION DRAWING
PROJECT TITLE
PROJECT NO.
2A
11
2015/BA/ARC3524/
BT2/P1/2A-11
KEY PLAN
LOCATION PLAN
SITE PLAN
NOTE: SUBJECT TO ENGR'S STRUCTURAL INPUT
LEGEND
KEY PLAN
NOT TO SCALE
KP
P1 2A
NORTH
LOCATION PLANLP
P1 2A
NORTH
SITE PLAN
1:200P1 2A
NORTH
SP
1:500
JALAN RAJA MUDA ABDUL AZIZ
EVERYBODYELECTRICAL
STORSINARZAMZAM
KEDAIPERALATANKOMUNIKASI
KEDAIEMASYIKLIAN
JALANTUANKUABDULRAHMAN
LORONGHAJIHUSSIEN1
LIFT MOTORROOMFIRE STAIRCASE
1
KLINIK DR LEELA RATOS
HOTEL WAH HIN
ATIKA BEAUTY
KEDAI EMAS CANTIK
PUSAT INTERNET WIRA
Taman Tasik Titiwangsa
Taman Tasik Perdana
Taman KLCC
Padang Golf Titiwangsa
Bukit Bandaraya
Bangsar Baru
Brickfields
Tmn. Duta
Bukit Damansara
Kompleks Kerajaan
Golden Triangle
Mahameru
City Center
Pudu
Bukit Bintang
Kg. Attap
Jln.Duta
Jln.TunRazak
Jln.Damansara
Lebuhraya
SPRINT
Jln. Tun
Razak
Jln. Parlimen
Jln. Hang
Tuah
Jln. Bukit Bintang
Jln. Pudu
Jln. Pudu
Jln. Raja Chulan
Jln. Ampang
Jln. Im
bi
Jln. Sultan Ismail
Jln.TAR
Jln.Kuching
JALAN RAJA MUDA ABDUL AZIZ
JALANTUANKUABDULRAHMAN
JALANPAHANG
LORONG HAJI HUSSIEN 3
LORONG HAJI HUSSIEN 2
LORONGHAJIHUSSIEN3
LORONGHAJIHUSSIEN1
PROPOSED SITE
LAND OWNER AND BUILDING
DRAWN BY
CHECKED BY
SCALE
SIGNATURE DATE
ARCHITECT'S SIGNATURE
SHEET NO.
AMMENDMENT
DRAWING TITLE
JO & LI Consultancy Sdn. Bhd.
DESIGN CONSULTANT
A B C D
F G H J
E
K
AR. ZAHARI ZUBIR
I/C NO: 571212-07-5587
DATO IR. TAN EU KANG
TEL: 03-1323 2567 FAX: 03-1323 2568 CHIEF EXECUTIVE OFFICER
123, 3RD FLOOR,
JALAN SETIA NUSANTARA U11/17,
40170 SHAH ALAM, SELANGOR D.E.
ECO SUCESS SDN. BHD. ( 1020553-T )
PROPOSED DESIGN OF LOT ??, ??, ??, ??,
?? & ?? INTO 4-STOREY FOOD MARKET AT
JALAN RAJA MUDA ABDUL AZIZ,
50300 KUALA LUMPUR,
FEDERAL TERRITORY OF KUALA LUMPUR.
FOR :
ECO SUCESS SDN. BHD.
SEPTEMBER 2015
1:100
I/C NO:640806-10-5490
Ar. Alfred Lee (AL/238)
DIRECTOR
L E M B A G A
A R K I T E K
M A L A Y S I A
L E M B A G A
A R K I T E K
M A L A Y S I A
SCALE
REFER TO DRAWING
FIRE FIGHTING DRAWING
PROJECT TITLE
PROJECT NO.
2B
11
2015/BA/ARC3524/
BT2/P1/2B-11
KEY PLAN
LOCATION PLAN
SITE PLAN
NOTE: SUBJECT TO ENGR'S STRUCTURAL INPUT
LEGEND
KEY PLAN
NOT TO SCALE
KP
P1 2A
NORTH
LOCATION PLANLP
P1 2A
NORTH
SITE PLAN
1:200P1 2B
NORTH
SP
1:500
5150
D
01
D
07
D
07
D
07
D
07
D
07
COURTYARD
FIRESTAIRCASE1
FIRE
STAIRCASE
2
FIRE STAIRCASE
4
FIRE STAIRCASE
3
FFL = +0.000
-
CI
NV
-
-
69.05 sqm
LOADING BAY
FFL = +0.0000
PP
CR
NV
OP
HT
6300mm
54.64 sqm
FOOD STALL
AREA
FFL = +0.050
-
CR
NV
OP
-
124.00 sqm
SEATING AREA
FFL = +0.050
-
CR
NV
-
-
181.20 sqm
FEMALE
WASHROOM
MALEWASHROOM
REFUSECHAMBER
DISABLEDTOILET
LANDSCAPE
BO
UNDARY
LINE
SETBACK
LINE
FFL = +0.050
PP
CR
MV
OP
HT
6150mm
17.80 sqm
FFL = +0.100
PP
CR
MV
OP
HT
18.37 sqm
GRAB & GO
STALL
-
CR
NV
OP
-
59.27 sqm
FFL = +0.100
PP
CR
MV
OP
HT
17.80 sqm
FFL = +0.0000
-
-
NV
-
HW
13.63 sqm
CORRIDOR
FFL = +0.000
CT
CR
MV
OP
CT
2500mm
10.60 sqm
FFL = +0.000
CT
CR
MV
OP
CT
8.42 sqm
FFL = +0.050
CT
CR
NV
OP
HT
6.75 sqm
FFL = +0.000
CT
CR
MV
OP
CT
3.69 sqm
FFL = +0.030 FFL = +0.050
PP
CR
MV
OP
HT
17.80 sqm
PP
CR
MV
OP
VS
0.80 sqm
ELECTRIC ROOM
-
CR
NV
OP
HT
46.00 sqm
LINELEVELABOVE
RISER:175mm
TREAD:300mm
STEPS:36
RISER:175m
m
TREAD:300m
m
STEPS:36
RISER: 175mm
TREAD: 300mm
STEPS: 36
RISER: 175mm
TREAD: 300mm
STEPS: 36
FFL = +0.050
6150mm
6150mm
6150mm
6150mm
6150mm
2500mm
2500mm
3200mm
6150mm
2500mm
FFL = +0.000
D
01
D
01
D
01
FRD
02
W
01
W
01
W
01
W
01
W
01
W
01
W
02
W
02
W
02
W
02
A
B
C
D
E
1
2
3
4
5
6
7
8
9
10
F
G
K
H
I
L
J
M
N
P
2900
3650
4250
4400
3050
2250
2900
28600
6400
6400
6400
9400
2300
2200
2300
2600
4700
6400
6900
2250
4450
6900
6700
6400
29600
2700
4900
6350
6350
12000
750
2350
6480
LIFT
CORE
LIFT
CORE
RC STAIRCASE TO ENGR'S DETAIL
WITH 1000MM HEIGHT x 500MM WIDTH
M.S. HANDRAIL WELDED ONTO CAST-IN-SITU
40MM x 6MM THK
M.S. PLATE BUSTER
AND TO BE PAINT FINISH
R=175MM, T=300MM
RC LIFT CORE TO ENGR'S DETAIL
RC COLUMN TO ENGR'S DETAIL
150MM THK. CLAYBRICKS
PARTY WALL WITH 25MM THK.
CEMENT PLASTERING
PP
CR
MV
OP
VS
0.80 sqm
SWITCH ROOM
FFL = +0.050
2500mm
LINE
LEVEL
ABOVE
LINE
LEVEL
ABOVE
LINE
LEVEL
ABOVE
LINE
LEVEL
ABOVE
LINE
LEVEL
ABOVE
FRD
02
ROOF LINE
ROOF LINE
dp50
dp50
dp
50
dp 50
dp50
dp
50
dp
50
dp 50
dp 50
dp
150
dp
150
dp
150
dp
150
dp 50
dp
30
dp
20
dp50
dp50
dp50
dp50
dp50
dp50
dp50
dp50
dp50
dp 50
D
06
LAND OWNER AND BUILDING
DRAWN BY
CHECKED BY
SCALE
SIGNATURE DATE
ARCHITECT'S SIGNATURE
SHEET NO.
AMMENDMENT
DRAWING TITLE
JO & LI Consultancy Sdn. Bhd.
DESIGN CONSULTANT
A B C D
F G H J
E
K
AR. ZAHARI ZUBIR
I/C NO: 571212-07-5587
DATO IR. TAN EU KANG
TEL: 03-1323 2567 FAX: 03-1323 2568 CHIEF EXECUTIVE OFFICER
123, 3RD FLOOR,
JALAN SETIA NUSANTARA U11/17,
40170 SHAH ALAM, SELANGOR D.E.
ECO SUCESS SDN. BHD. ( 1020553-T )
PROPOSED DESIGN OF LOT ??, ??, ??, ??,
?? & ?? INTO 4-STOREY FOOD MARKET AT
JALAN RAJA MUDA ABDUL AZIZ,
50300 KUALA LUMPUR,
FEDERAL TERRITORY OF KUALA LUMPUR.
FOR :
ECO SUCESS SDN. BHD.
SEPTEMBER 2015
1:100
I/C NO:640806-10-5490
Ar. Alfred Lee (AL/238)
DIRECTOR
L E M B A G A
A R K I T E K
M A L A Y S I A
L E M B A G A
A R K I T E K
M A L A Y S I A
SCALE
REFER TO DRAWING
CONSTRUCTION DRAWING
PROJECT TITLE
PROJECT NO.
3A
11
2015/BA/ARC3524/
BT2/P1/3A-11
GROUND FLOOR PLAN
GROUND FLOOR PLAN
1:100
GFP
P1 3A
NORTH
NOTE: SUBJECT TO ENGR'S STRUCTURAL INPUT
LEGEND
5150
D
01
D
07
D
07
D
07
D
07
D
07
COURTYARD
FIRESTAIRCASE1
FIRE
STAIRCASE
2
FIRE STAIRCASE
4
FIRE STAIRCASE
3
FFL = +0.000
-
CI
NV
-
-
69.05 sqm
LOADING BAY
FFL = +0.0000
PP
CR
NV
OP
HT
6300mm
54.64 sqm
FOOD STALL
AREA
FFL = +0.050
-
CR
NV
OP
-
124.00 sqm
SEATING AREA
FFL = +0.050
-
CR
NV
-
-
181.20 sqm
FEMALE
WASHROOM
MALEWASHROOM
REFUSECHAMBER
DISABLEDTOILET
LANDSCAPE
BO
UNDARY
LINE
SETBACK
LINE
FFL = +0.050
PP
CR
MV
OP
HT
6150mm
17.80 sqm
FFL = +0.100
PP
CR
MV
OP
HT
18.37 sqm
GRAB & GO
STALL
-
CR
NV
OP
-
59.27 sqm
FFL = +0.100
PP
CR
MV
OP
HT
17.80 sqm
FFL = +0.0000
-
-
NV
-
HW
13.63 sqm
CORRIDOR
FFL = +0.000
CT
CR
MV
OP
CT
2500mm
10.60 sqm
FFL = +0.000
CT
CR
MV
OP
CT
8.42 sqm
FFL = +0.050
CT
CR
NV
OP
HT
6.75 sqm
FFL = +0.000
CT
CR
MV
OP
CT
3.69 sqm
FFL = +0.030 FFL = +0.050
PP
CR
MV
OP
HT
17.80 sqm
PP
CR
MV
OP
VS
0.80 sqm
ELECTRIC ROOM
-
CR
NV
OP
HT
46.00 sqm
LINELEVELABOVE
RISER:175mm
TREAD:300mm
STEPS:36
RISER:175m
m
TREAD:300m
m
STEPS:36
RISER: 175mm
TREAD: 300mm
STEPS: 36
RISER: 175mm
TREAD: 300mm
STEPS: 36
FFL = +0.050
6150mm
6150mm
6150mm
6150mm
6150mm
2500mm
2500mm
3200mm
6150mm
2500mm
FFL = +0.000
D
01
D
01
D
01
FRD
02
W
01
W
01
W
01
W
01
W
01
W
01
W
02
W
02
W
02
W
02
A
B
C
D
E
1
2
3
4
5
6
7
8
9
10
F
G
K
H
I
L
J
M
N
P
2900
3650
4250
4400
3050
2250
2900
28600
6400
6400
6400
9400
2300
2200
2300
2600
4700
6400
6900
2250
4450
6900
6700
6400
29600
2700
4900
6350
6350
12000
750
2350
6480
LIFT
CORE
LIFT
CORE
RC STAIRCASE TO ENGR'S DETAIL
WITH 1000MM HEIGHT x 500MM WIDTH
M.S. HANDRAIL WELDED ONTO CAST-IN-SITU
40MM x 6MM THK
M.S. PLATE BUSTER
AND TO BE PAINT FINISH
R=175MM, T=300MM
RC LIFT CORE TO ENGR'S DETAIL
RC COLUMN TO ENGR'S DETAIL
150MM THK. CLAYBRICKS
PARTY WALL WITH 25MM THK.
CEMENT PLASTERING
PP
CR
MV
OP
VS
0.80 sqm
SWITCH ROOM
FFL = +0.050
2500mm
LINE
LEVEL
ABOVE
LINE
LEVEL
ABOVE
LINE
LEVEL
ABOVE
LINE
LEVEL
ABOVE
LINE
LEVEL
ABOVE
FRD
02
ROOF LINE
ROOF LINE
dp50
dp50
dp
50
dp 50
dp50
dp
50
dp
50
dp 50
dp 50
dp
150
dp
150
dp
150
dp
150
dp 50
dp
30
dp
20
dp50
dp50
dp50
dp50
dp50
dp50
dp50
dp50
dp50
dp 50
D
06
LAND OWNER AND BUILDING
DRAWN BY
CHECKED BY
SCALE
SIGNATURE DATE
ARCHITECT'S SIGNATURE
SHEET NO.
AMMENDMENT
DRAWING TITLE
JO & LI Consultancy Sdn. Bhd.
DESIGN CONSULTANT
A B C D
F G H J
E
K
AR. ZAHARI ZUBIR
I/C NO: 571212-07-5587
DATO IR. TAN EU KANG
TEL: 03-1323 2567 FAX: 03-1323 2568 CHIEF EXECUTIVE OFFICER
123, 3RD FLOOR,
JALAN SETIA NUSANTARA U11/17,
40170 SHAH ALAM, SELANGOR D.E.
ECO SUCESS SDN. BHD. ( 1020553-T )
PROPOSED DESIGN OF LOT ??, ??, ??, ??,
?? & ?? INTO 4-STOREY FOOD MARKET AT
JALAN RAJA MUDA ABDUL AZIZ,
50300 KUALA LUMPUR,
FEDERAL TERRITORY OF KUALA LUMPUR.
FOR :
ECO SUCESS SDN. BHD.
SEPTEMBER 2015
1:100
I/C NO:640806-10-5490
Ar. Alfred Lee (AL/238)
DIRECTOR
L E M B A G A
A R K I T E K
M A L A Y S I A
L E M B A G A
A R K I T E K
M A L A Y S I A
SCALE
REFER TO DRAWING
FIRE FIGHTING DRAWING
PROJECT TITLE
PROJECT NO.
3B
11
2015/BA/ARC3524/
BT2/P1/3B-11
GROUND FLOOR PLAN
GROUND FLOOR PLAN
1:100
GFP
P1 3B
NORTH
NOTE: SUBJECT TO ENGR'S STRUCTURAL INPUT
LEGEND
FIRE FIGHTING SCHEDULES
FIRE FIGHTING LEGEND
DRY POWDER EXTINGUISHER
HOSE REEL
ALARM BELL
WET RISER
SMOKE DETECTOR
BREAK GLASS
EMERGENCY LIGHT
"KELUAR" SIGN
MANUAL CALL POINT
CO₂ PANEL
D
07
D
07
D
07
D
07
D
07
FOOD STALLS &
SEATING AREA
FFL = +6.300
-
CR
NV
OP
-
6150mm
226.11 sqm
FIRESTAIRCASE1
FIRE STAIRCASE
3
FIRE
STAIRCASE
2
BALCONY
RESTAURANT
FFL = +6.300
-
CR
NV
OP
-
3000mm
78.15 sqm
KITCHEN
STORAGE
CORRIDOR
5150
FFL = +6.250
CT
CR
MV
OP
CT
2500mm
10.60 sqm
FFL = +6.250
CT
CR
MV
OP
CT
2500mm
8.42 sqm
FFL = +6.250
PP
CR
NV 2600mm
7.26 sqm
FFL = +6.250
CT
CR
MV
OP
CT
2500mm
3.69 sqm
OP
HT
FFL = +6.300
PP
CR
MV
OP
HT
3000mm
17.80 sqm
FFL = +6.300
PP
CR
MV
OP
HT
3000mm
17.80 sqm
FFL = +6.300
PP
CR
MV
OP
HT
3000mm
18.37 sqm
PP
CT
MV
OP
HT
2500mm
3.31 sqm
-
CR
NV
OP
HT
6150mm
46.00 sqm
FFL = +6.250
PP
CT
MV
OP
HT
3000mm
5.92 sqm
FFL = +6.300
LINE
LEVEL
ABOVE
FIRE STAIRCASE
4
FRD
01
FRD
01
FRD
01
FRD
01
FRD
01
03
D
02
D
W
03
W
02
W
02
W
02
W
02
W
02
W
02
W
04
W
04
W
04
W
05
W
05
W
09
W
09
W
10
W
10
W
11
W
11
W
12
W
12
W
13
W
13
2900
3650
4250
4400
3050
2250
2900
28600
6400
6400
6400
9400
2300
2200
2300
2600
750
2350
6480
3500
1310
2250
4450
6900
6700
6400
29600
4900
6350
6350
12000
2700
4700
6400
6900
A
B
C
D
E
1
2
3
4
5
6
7
8
9
10
F
G
K
H
I
L
J
N
P
M
LIFT
CORE
LIFT
CORE
RC STAIRCASE TO ENGR'S DETAIL
WITH 1000MM HEIGHT x 500MM WIDTH
M.S. HANDRAIL WELDED ONTO CAST-IN-SITU
40MM x 6MM THK
M.S. PLATE BUSTER
AND TO BE PAINT FINISH
R=175MM, T=300MM
RC LIFT CORE TO ENGR'S DETAIL
RC COLUMN TO ENGR'S DETAIL
150MM THK. CLAYBRICKS
PARTY WALL WITH 25MM THK.
CEMENT PLASTERING
1200 HEIGHT
GALVANIZED MILD
STEEL RAILLING
150MM THK. BRICKWALL WITH
25MM THK. CEMENT PLASTERING
ON BOTH SIDES
PRECAST CONCRETE CLADDING
TO ENGR'S DETAIL
FEMALE
WASHROOM
MALEWASHROOM
DISABLEDTOILET
RISER:175mm
TREAD:300mm
STEPS:36
RISER:175m
m
TREAD:300m
m
STEPS:36
RISER: 175mm
TREAD: 300mm
STEPS: 36
RISER: 175mm
TREAD: 300mm
STEPS: 36
PP
CR
MV
17.80 sqm
3000mm
OP
HT
PP
CR
MV
OP
VS
0.80 sqm
ELECTRIC ROOM
FFL = +6.350
2500mm
PP
CR
MV
OP
VS
0.80 sqm
SWITCH ROOM
FFL = +6.350
2500mm
LINELEVELABOVE
VOID
VOID
FRD
02
FRD
02
dp50
dp50
dp50
dp50
dp50
dp50
dp50
dp 50
dp 50
dp 50
dp 50
dp
50
D
06
LAND OWNER AND BUILDING
DRAWN BY
CHECKED BY
SCALE
SIGNATURE DATE
ARCHITECT'S SIGNATURE
SHEET NO.
AMMENDMENT
DRAWING TITLE
JO & LI Consultancy Sdn. Bhd.
DESIGN CONSULTANT
A B C D
F G H J
E
K
AR. ZAHARI ZUBIR
I/C NO: 571212-07-5587
DATO IR. TAN EU KANG
TEL: 03-1323 2567 FAX: 03-1323 2568 CHIEF EXECUTIVE OFFICER
123, 3RD FLOOR,
JALAN SETIA NUSANTARA U11/17,
40170 SHAH ALAM, SELANGOR D.E.
ECO SUCESS SDN. BHD. ( 1020553-T )
PROPOSED DESIGN OF LOT ??, ??, ??, ??,
?? & ?? INTO 4-STOREY FOOD MARKET AT
JALAN RAJA MUDA ABDUL AZIZ,
50300 KUALA LUMPUR,
FEDERAL TERRITORY OF KUALA LUMPUR.
FOR :
ECO SUCESS SDN. BHD.
SEPTEMBER 2015
1:100
I/C NO:640806-10-5490
Ar. Alfred Lee (AL/238)
DIRECTOR
L E M B A G A
A R K I T E K
M A L A Y S I A
L E M B A G A
A R K I T E K
M A L A Y S I A
SCALE
REFER TO DRAWING
CONSTRUCTION DRAWING
PROJECT TITLE
PROJECT NO.
4A
11
2015/BA/ARC3524/
BT2/P1/4A-11
FIRST FLOOR PLAN
FIRST FLOOR PLAN
1:100
1FP
P1 4A
NORTH
NOTE: SUBJECT TO ENGR'S STRUCTURAL INPUT
LEGEND
D
07
D
07
D
07
D
07
D
07
FOOD STALLS &
SEATING AREA
FFL = +6.300
-
CR
NV
OP
-
6150mm
226.11 sqm
FIRESTAIRCASE1
FIRE STAIRCASE
3
FIRE
STAIRCASE
2
BALCONY
RESTAURANT
FFL = +6.300
-
CR
NV
OP
-
3000mm
78.15 sqm
KITCHEN
STORAGE
CORRIDOR
5150
FFL = +6.250
CT
CR
MV
OP
CT
2500mm
10.60 sqm
FFL = +6.250
CT
CR
MV
OP
2500mm
8.42 sqm
FFL = +6.250
PP
CR
NV 2600mm
7.26 sqm
FFL = +6.250
CT
CR
MV
OP
CT
2500mm
3.69 sqm
OP
HT
FFL = +6.300
PP
CR
MV
OP
HT
3000mm
17.80 sqm
FFL = +6.300
PP
CR
MV
OP
HT
3000mm
17.80 sqm
FFL = +6.300
PP
CR
MV
OP
HT
3000mm
18.37 sqm
PP
CT
MV
OP
HT
2500mm
3.31 sqm
-
CR
NV
OP
HT
6150mm
46.00 sqm
FFL = +6.250
PP
CT
MV
OP
HT
3000mm
5.92 sqm
FFL = +6.300
LINE
LEVEL
ABOVE
FIRE STAIRCASE
4
FRD
01
FRD
01
FRD
01
FRD
01
FRD
01
03
D
02
D
W
03
W
02
W
02
W
02
W
02
W
02
W
02
W
04
W
04
W
04
W
05
W
05
W
09
W
09
W
10
W
10
W
11
W
11
W
12
W
12
W
13
W
13
2900
3650
4250
4400
3050
2250
2900
28600
6400
6400
6400
9400
2300
2200
2300
2600
750
2350
6480
3500
1310
2250
4450
6900
6700
6400
29600
4900
6350
6350
12000
2700
4700
6400
6900
A
B
C
D
E
1
2
3
4
5
6
7
8
9
10
F
G
K
H
I
L
J
N
P
M
LIFT
CORE
LIFT
CORE
RC STAIRCASE TO ENGR'S DETAIL
WITH 1000MM HEIGHT x 500MM WIDTH
M.S. HANDRAIL WELDED ONTO CAST-IN-SITU
40MM x 6MM THK
M.S. PLATE BUSTER
AND TO BE PAINT FINISH
R=175MM, T=300MM
RC LIFT CORE TO ENGR'S DETAIL
RC COLUMN TO ENGR'S DETAIL
150MM THK. CLAYBRICKS
PARTY WALL WITH 25MM THK.
CEMENT PLASTERING
1200 HEIGHT
GALVANIZED MILD
STEEL RAILLING
150MM THK. BRICKWALL WITH
25MM THK. CEMENT PLASTERING
ON BOTH SIDES
PRECAST CONCRETE CLADDING
TO ENGR'S DETAIL
FEMALE
WASHROOM
MALEWASHROOM
DISABLEDTOILET
RISER:175mm
TREAD:300mm
STEPS:36
RISER:175m
m
TREAD:300m
m
STEPS:36
RISER: 175mm
TREAD: 300mm
STEPS: 36
RISER: 175mm
TREAD: 300mm
STEPS: 36
PP
CR
MV
17.80 sqm
3000mm
OP
HT
PP
CR
MV
OP
VS
0.80 sqm
ELECTRIC ROOM
FFL = +6.350
2500mm
PP
CR
MV
OP
VS
0.80 sqm
SWITCH ROOM
FFL = +6.350
2500mm
LINELEVELABOVE
VOID
VOID
FRD
02
FRD
02
dp50
dp50
dp50
dp50
dp50
dp50
dp50
dp 50
dp 50
dp 50
dp 50
dp
50
D
06
CT
LAND OWNER AND BUILDING
DRAWN BY
CHECKED BY
SCALE
SIGNATURE DATE
ARCHITECT'S SIGNATURE
SHEET NO.
AMMENDMENT
DRAWING TITLE
JO & LI Consultancy Sdn. Bhd.
DESIGN CONSULTANT
A B C D
F G H J
E
K
AR. ZAHARI ZUBIR
I/C NO: 571212-07-5587
DATO IR. TAN EU KANG
TEL: 03-1323 2567 FAX: 03-1323 2568 CHIEF EXECUTIVE OFFICER
123, 3RD FLOOR,
JALAN SETIA NUSANTARA U11/17,
40170 SHAH ALAM, SELANGOR D.E.
ECO SUCESS SDN. BHD. ( 1020553-T )
PROPOSED DESIGN OF LOT ??, ??, ??, ??,
?? & ?? INTO 4-STOREY FOOD MARKET AT
JALAN RAJA MUDA ABDUL AZIZ,
50300 KUALA LUMPUR,
FEDERAL TERRITORY OF KUALA LUMPUR.
FOR :
ECO SUCESS SDN. BHD.
SEPTEMBER 2015
1:100
I/C NO:640806-10-5490
Ar. Alfred Lee (AL/238)
DIRECTOR
L E M B A G A
A R K I T E K
M A L A Y S I A
L E M B A G A
A R K I T E K
M A L A Y S I A
SCALE
REFER TO DRAWING
FIRE FIGHTING DRAWING
PROJECT TITLE
PROJECT NO.
4B
11
2015/BA/ARC3524/
BT2/P1/4B-11
FIRST FLOOR PLAN
FIRST FLOOR PLAN
1:100
1FP
P1 4B
NORTH
NOTE: SUBJECT TO ENGR'S STRUCTURAL INPUT
LEGEND
7400
7600
2850
D
07
D
07
D
07
D
07
D
07
STORAGE
STAFF
RESTROOM
AP
CR
MV
OP
HT
3000mm
26.89 sqm
CAFETERIA &
BAKERY
FFL = +9.450
-
CR
NV
-
HT
6150mm
149.48 sqm
FIRESTAIRCASE1
FIRE STAIRCASE
3
FIRE
STAIRCASE
2
CORRIDOR
CORRIDOR
FFL = +9.450
-
CR
NV
-
HT
6150mm
21.98 sqm
FIRE STAIRCASE
4
5150
FFL = +9.500
6.87 sqm
PP
CT
MV
OP
HT
2950mm
FFL = +9.450
PP
CR
MV
OP
HT
3000mm
20.93 sqm
FFL = +9.450
PP
CR
MV
OP
HT
3000mm
17.80 sqm
FFL = +9.450
PP
CR
MV
OP
HT
3000mm
18.37 sqm
FFL = +9.450
PP
CR
MV
OP
HT
3000mm
17.80 sqm
LINELEVELABOVE
RISER:175m
m
TREAD:300m
m
STEPS:18
FRD
01
FRD
01
FRD
01
D
04
D
04
W
02
W
02
W
02
W
02
W
06
W
06
W
06
W
06
W
07
W
07
W
08
W
08
W
08
W
08
2900
3650
4250
4400
3050
2250
2900
28600
6400
6400
6400
9400
2300
2200
2300
2600
8650
4700
6400
6900
2250
4450
6900
6700
6400
29600
4900
6350
6350
2700
750
2350
6480
12000
2200
A
B
C
D
E
1
2
3
4
5
6
7
8
9
10
F
G
K
H
I
L
J
N
P
M
LIFT
CORE
LIFT
CORE
RC STAIRCASE TO ENGR'S DETAIL
WITH 1000MM HEIGHT x 500MM WIDTH
M.S. HANDRAIL WELDED ONTO CAST-IN-SITU
40MM x 6MM THK
M.S. PLATE BUSTER
AND TO BE PAINT FINISH
R=175MM, T=300MM
RC LIFT CORE TO ENGR'S DETAIL
RC COLUMN TO ENGR'S DETAIL
150MM THK. CLAYBRICKS
PARTY WALL WITH 25MM THK.
CEMENT PLASTERING
RC STAIRCASE TO ENGR'S DETAIL
WITH 1000MM HEIGHT x 50MM WIDTH
M.S. HANDRAIL WELDED ONTO
CASE-IN-SITU 40MM x 6MM THK.
M.S. PLATE BUSTER
AND TO BE PAINT FINISH
R=175MM, T=300MM
1200 HEIGHT
GALVANIZED MILD
STEEL RAILLING
PRECAST CONCRETE CLADDING
TO ENGR'S DETAIL
FEMALE
WASHROOM
MALEWASHROOM
DISABLEDTOILET
RISER:175mm
TREAD:300mm
STEPS:36
RISER:175m
m
TREAD:300m
m
STEPS:36
RISER: 175mm
TREAD: 300mm
STEPS: 36
RISER: 175mm
TREAD: 300mm
STEPS: 36
FFL = +9.400
CT
CR
MV
OP
CT
2500mm
10.60 sqm
FFL = +9.400
CT
CR
MV
OP
CT
2500mm
8.42 sqm
FFL = +9.400
CT
CR
MV
OP
CT
2500mm
3.69 sqm
FFL = +9.450
PP
CR
MV
17.80 sqm
3000mm
OP
HT
PP
CR
MV
OP
VS
0.80 sqm
ELECTRIC ROOM
FFL = +9.500
2500mm
PP
CR
MV
OP
VS
0.80 sqm
SWITCH ROOM
FFL = +9.500
2500mm
LINE
LEVELABOVE
LINE
LEVEL
ABOVE
LINE
LEVEL
ABOVE
VOID
FRD
01
FRD
02
FRD
02
dp50
dp50
dp50
dp50
dp50
dp50
dp50
dp 50
dp
50
dp 50
dp 50
D
06
LAND OWNER AND BUILDING
DRAWN BY
CHECKED BY
SCALE
SIGNATURE DATE
ARCHITECT'S SIGNATURE
SHEET NO.
AMMENDMENT
DRAWING TITLE
JO & LI Consultancy Sdn. Bhd.
DESIGN CONSULTANT
A B C D
F G H J
E
K
AR. ZAHARI ZUBIR
I/C NO: 571212-07-5587
DATO IR. TAN EU KANG
TEL: 03-1323 2567 FAX: 03-1323 2568 CHIEF EXECUTIVE OFFICER
123, 3RD FLOOR,
JALAN SETIA NUSANTARA U11/17,
40170 SHAH ALAM, SELANGOR D.E.
ECO SUCESS SDN. BHD. ( 1020553-T )
PROPOSED DESIGN OF LOT ??, ??, ??, ??,
?? & ?? INTO 4-STOREY FOOD MARKET AT
JALAN RAJA MUDA ABDUL AZIZ,
50300 KUALA LUMPUR,
FEDERAL TERRITORY OF KUALA LUMPUR.
FOR :
ECO SUCESS SDN. BHD.
SEPTEMBER 2015
1:100
I/C NO:640806-10-5490
Ar. Alfred Lee (AL/238)
DIRECTOR
L E M B A G A
A R K I T E K
M A L A Y S I A
L E M B A G A
A R K I T E K
M A L A Y S I A
SCALE
REFER TO DRAWING
CONSTRUCTION DRAWING
PROJECT TITLE
PROJECT NO.
5A
11
2015/BA/ARC3524/
BT2/P1/5A-11
SECOND FLOOR PLAN
SECOND FLOOR PLAN
1:100
2FP
P1 5A
NORTH
NOTE: SUBJECT TO ENGR'S STRUCTURAL INPUT
LEGEND
7400
7600
2850
D
07
D
07
D
07
D
07
D
07
STORAGE
STAFF
RESTROOM
AP
CR
MV
OP
HT
3000mm
26.89 sqm
CAFETERIA &
BAKERY
FFL = +9.450
-
CR
NV
-
HT
6150mm
149.48 sqm
FIRESTAIRCASE1
FIRE STAIRCASE
3
FIRE
STAIRCASE
2
CORRIDOR
CORRIDOR
FFL = +9.450
-
CR
NV
-
HT
6150mm
21.98 sqm
FIRE STAIRCASE
4
5150
FFL = +9.500
6.87 sqm
PP
CT
MV
OP
HT
2950mm
FFL = +9.450
PP
CR
MV
OP
HT
3000mm
20.93 sqm
FFL = +9.450
PP
CR
MV
OP
HT
3000mm
17.80 sqm
FFL = +9.450
PP
CR
MV
OP
HT
3000mm
18.37 sqm
FFL = +9.450
PP
CR
MV
OP
HT
3000mm
17.80 sqm
LINELEVELABOVE
RISER:175m
m
TREAD:300m
m
STEPS:18
FRD
01
FRD
01
FRD
01
D
04
D
04
W
02
W
02
FRW
02
FRW
02
W
06
W
06W
06
W
06
W
07
W
07
W
08
W
08
W
08
W
08
2900
3650
4250
4400
3050
2250
2900
28600
6400
6400
6400
9400
2300
2200
2300
2600
8650
4700
6400
6900
2250
4450
6900
6700
6400
29600
4900
6350
6350
2700
750
2350
6480
12000
2200
A
B
C
D
E
1
2
3
4
5
6
7
8
9
10
F
G
K
H
I
L
J
N
P
M
LIFT
CORE
LIFT
CORE
RC STAIRCASE TO ENGR'S DETAIL
WITH 1000MM HEIGHT x 500MM WIDTH
M.S. HANDRAIL WELDED ONTO CAST-IN-SITU
40MM x 6MM THK
M.S. PLATE BUSTER
AND TO BE PAINT FINISH
R=175MM, T=300MM
RC LIFT CORE TO ENGR'S DETAIL
RC COLUMN TO ENGR'S DETAIL
150MM THK. CLAYBRICKS
PARTY WALL WITH 25MM THK.
CEMENT PLASTERING
RC STAIRCASE TO ENGR'S DETAIL
WITH 1000MM HEIGHT x 50MM WIDTH
M.S. HANDRAIL WELDED ONTO
CASE-IN-SITU 40MM x 6MM THK.
M.S. PLATE BUSTER
AND TO BE PAINT FINISH
R=175MM, T=300MM
1200 HEIGHT
GALVANIZED MILD
STEEL RAILLING
PRECAST CONCRETE CLADDING
TO ENGR'S DETAIL
FEMALE
WASHROOM
MALEWASHROOM
DISABLEDTOILET
RISER:175mm
TREAD:300mm
STEPS:36
RISER:175m
m
TREAD:300m
m
STEPS:36
RISER: 175mm
TREAD: 300mm
STEPS: 36
RISER: 175mm
TREAD: 300mm
STEPS: 36
FFL = +9.400
CT
CR
MV
OP
CT
2500mm
10.60 sqm
FFL = +9.400
CT
CR
MV
OP
CT
2500mm
3.69 sqm
FFL = +9.450
PP
CR
MV
17.80 sqm
3000mm
OP
HT
PP
CR
MV
OP
VS
0.80 sqm
ELECTRIC ROOM
FFL = +9.500
2500mm
PP
CR
MV
OP
VS
0.80 sqm
SWITCH ROOM
FFL = +9.500
2500mm
LINE
LEVEL
ABOVE
LINE
LEVEL
ABOVE
LINE
LEVEL
ABOVE
VOID
FRD
01
FRD
02
FRD
02
dp50
dp50
dp50
dp50
dp50
dp50
dp50
dp 50
dp
50
dp 50
dp 50
D
06
CT
CR
MV
OP
2500mm
8.42 sqm
CT
FFL = +9.400
LAND OWNER AND BUILDING
DRAWN BY
CHECKED BY
SCALE
SIGNATURE DATE
ARCHITECT'S SIGNATURE
SHEET NO.
AMMENDMENT
DRAWING TITLE
JO & LI Consultancy Sdn. Bhd.
DESIGN CONSULTANT
A B C D
F G H J
E
K
AR. ZAHARI ZUBIR
I/C NO: 571212-07-5587
DATO IR. TAN EU KANG
TEL: 03-1323 2567 FAX: 03-1323 2568 CHIEF EXECUTIVE OFFICER
123, 3RD FLOOR,
JALAN SETIA NUSANTARA U11/17,
40170 SHAH ALAM, SELANGOR D.E.
ECO SUCESS SDN. BHD. ( 1020553-T )
PROPOSED DESIGN OF LOT ??, ??, ??, ??,
?? & ?? INTO 4-STOREY FOOD MARKET AT
JALAN RAJA MUDA ABDUL AZIZ,
50300 KUALA LUMPUR,
FEDERAL TERRITORY OF KUALA LUMPUR.
FOR :
ECO SUCESS SDN. BHD.
SEPTEMBER 2015
1:100
I/C NO:640806-10-5490
Ar. Alfred Lee (AL/238)
DIRECTOR
L E M B A G A
A R K I T E K
M A L A Y S I A
L E M B A G A
A R K I T E K
M A L A Y S I A
SCALE
REFER TO DRAWING
FIRE FIGHTING DRAWING
PROJECT TITLE
PROJECT NO.
5B
11
2015/BA/ARC3524/
BT2/P1/5A-11
SECOND FLOOR PLAN
SECOND FLOOR PLAN
1:100
2FP
P1 5B
NORTH
NOTE: SUBJECT TO ENGR'S STRUCTURAL INPUT
LEGEND
7400
D
07
D
07
D
07
D
07
D
07
FIRESTAIRCASE1
FIRE STAIRCASE
3
FIRE
STAIRCASE
2
BALCONY
LOFT
FFL = +12.600
PP
CR
NV
OP
HT
3000mm
45.19 sqm
BAR & LOUNGE
FFL = +12.600
PP
CR
MV
OP
HT
3000mm
62.25 sqm
OUTDOOR
SEATING AREA
FFL = +12.500
PP
CR
NV
-
HT
-
115.00 sqm
5150
CT
CR
NV
OP
CT
3050mm
6.75 sqm
FFL = +12.600
PP
CR
MV
OP
HT
3000mm
17.80 sqm
FFL = +12.600
PP
CR
MV
OP
HT
3000mm
18.37 sqm
STORAGE
RISER:175m
m
TREAD:300m
m
STEPS:18
FFL = +12.550
CORRIDOR
-
CR
NV
OP
HT
3000mm
46.00 sqm
FRD
01
FRD
01
D
05
FRD
01
FRD
01
03
D
W
02
W
02
W
02
W
02
W
03
W
08
W
08
W
14
W
14
W
14
W
14
7900
3050
2900
4400
2250
2900
28600
6400
6400
6400
9400
2300
2200
2300
2600
1300
4700
6400
6900
2250
11300
6400
29600
4900
6350
6350
12000
2700
6700
A
B
C
D
E
1
2
3
4
5
6
8
9
10
F
G
K
I
L
J
N
P
M
LIFT
CORE
RC STAIRCASE TO ENGR'S DETAIL
WITH 1000MM HEIGHT x 500MM WIDTH
M.S. HANDRAIL WELDED ONTO CAST-IN-SITU
40MM x 6MM THK
M.S. PLATE BUSTER
AND TO BE PAINT FINISH
R=175MM, T=300MM
RC LIFT CORE TO ENGR'S DETAIL
RC COLUMN TO ENGR'S DETAIL
150MM THK. CLAYBRICKS
PARTY WALL WITH 25MM THK.
CEMENT PLASTERING
RC STAIRCASE TO ENGR'S DETAIL
WITH 1000MM HEIGHT x 50MM WIDTH
M.S. HANDRAIL WELDED ONTO
CASE-IN-SITU 40MM x 6MM THK.
M.S. PLATE BUSTER
AND TO BE PAINT FINISH
R=175MM, T=300MM
1200 HEIGHT
GALVANIZED MILD
STEEL RAILLING
150MM THK. BRICKWALL WITH
25MM THK. CEMENT PLASTERING
ON BOTH SIDES
PRECAST CONCRETE CLADDING
TO ENGR'S DETAIL
FEMALE
WASHROOM
MALEWASHROOM
DISABLEDTOILET
RISER:175mm
TREAD:300mm
STEPS:36
RISER:175m
m
TREAD:300m
m
STEPS:36
RISER: 175mm
TREAD: 300mm
STEPS: 36
FFL = +12.600
PP
CR
MV
OP
HT
3000mm
17.80 sqm
PP
CT
MV
OP
HT
2500mm
3.31 sqm
FFL = +12.550
CT
CR
MV
OP
CT
2500mm
10.60 sqm
FFL = +12.550
CT
CR
MV
OP
CT
2500mm
8.42 sqm
FFL = +12.550
CT
CR
MV
OP
CT
2500mm
3.69 sqm
VOID
VOID
dp
100
dp 100
dp50
dp50
dp50
dp50
dp50
dp50
dp50
dp 50
dp
50
D
06
RWP OUTLET
RWP OUTLET
RWP OUTLET
FLOW
FLOW
FLOW
FLOW
FLOW
SCREED TO FALL
GRADIENT 1:150
LAND OWNER AND BUILDING
DRAWN BY
CHECKED BY
SCALE
SIGNATURE DATE
ARCHITECT'S SIGNATURE
SHEET NO.
AMMENDMENT
DRAWING TITLE
JO & LI Consultancy Sdn. Bhd.
DESIGN CONSULTANT
A B C D
F G H J
E
K
AR. ZAHARI ZUBIR
I/C NO: 571212-07-5587
DATO IR. TAN EU KANG
TEL: 03-1323 2567 FAX: 03-1323 2568 CHIEF EXECUTIVE OFFICER
123, 3RD FLOOR,
JALAN SETIA NUSANTARA U11/17,
40170 SHAH ALAM, SELANGOR D.E.
ECO SUCESS SDN. BHD. ( 1020553-T )
PROPOSED DESIGN OF LOT ??, ??, ??, ??,
?? & ?? INTO 4-STOREY FOOD MARKET AT
JALAN RAJA MUDA ABDUL AZIZ,
50300 KUALA LUMPUR,
FEDERAL TERRITORY OF KUALA LUMPUR.
FOR :
ECO SUCESS SDN. BHD.
SEPTEMBER 2015
1:100
I/C NO:640806-10-5490
Ar. Alfred Lee (AL/238)
DIRECTOR
L E M B A G A
A R K I T E K
M A L A Y S I A
L E M B A G A
A R K I T E K
M A L A Y S I A
SCALE
REFER TO DRAWING
CONSTRUCTION DRAWING
PROJECT TITLE
PROJECT NO.
6A
11
2015/BA/ARC3524/
BT2/P1/6A-11
THIRD FLOOR PLAN
THIRD FLOOR PLAN
1:100
3FP
P1 6A
NORTH
NOTE: SUBJECT TO ENGR'S STRUCTURAL INPUT
LEGEND
7400
D
07
D
07
D
07
D
07
D
07
FIRESTAIRCASE1
FIRE STAIRCASE
3
FIRE
STAIRCASE
2
BALCONY
LOFT
FFL = +12.600
PP
CR
NV
OP
HT
3000mm
45.19 sqm
BAR & LOUNGE
FFL = +12.600
PP
CR
MV
OP
HT
3000mm
62.25 sqm
OUTDOOR
SEATING AREA
FFL = +12.500
PP
CR
NV
-
HT
-
115.00 sqm
5150
CT
CR
NV
OP
CT
3050mm
6.75 sqm
FFL = +12.600
PP
CR
MV
OP
HT
3000mm
17.80 sqm
FFL = +12.600
PP
CR
MV
OP
HT
3000mm
18.37 sqm
STORAGE
RISER:175m
m
TREAD:300m
m
STEPS:18
FFL = +12.550
CORRIDOR
-
CR
NV
OP
HT
3000mm
46.00 sqm
FRD
01
FRD
01
D
05
FRD
01
FRD
01
03
D
W
02
W
02
W
02
W
02
FRW
03
W
08
W
08
W
14
W
14
W
14
W
14
7900
3050
2900
4400
2250
2900
28600
6400
6400
6400
9400
2300
2200
2300
2600
1300
4700
6400
6900
2250
11300
6400
29600
4900
6350
6350
12000
2700
6700
A
B
C
D
E
1
2
3
4
5
6
8
9
10
F
G
K
I
L
J
N
P
M
LIFT
CORE
RC STAIRCASE TO ENGR'S DETAIL
WITH 1000MM HEIGHT x 500MM WIDTH
M.S. HANDRAIL WELDED ONTO CAST-IN-SITU
40MM x 6MM THK
M.S. PLATE BUSTER
AND TO BE PAINT FINISH
R=175MM, T=300MM
RC LIFT CORE TO ENGR'S DETAIL
RC COLUMN TO ENGR'S DETAIL
150MM THK. CLAYBRICKS
PARTY WALL WITH 25MM THK.
CEMENT PLASTERING
RC STAIRCASE TO ENGR'S DETAIL
WITH 1000MM HEIGHT x 50MM WIDTH
M.S. HANDRAIL WELDED ONTO
CASE-IN-SITU 40MM x 6MM THK.
M.S. PLATE BUSTER
AND TO BE PAINT FINISH
R=175MM, T=300MM
1200 HEIGHT
GALVANIZED MILD
STEEL RAILLING
150MM THK. BRICKWALL WITH
25MM THK. CEMENT PLASTERING
ON BOTH SIDES
PRECAST CONCRETE CLADDING
TO ENGR'S DETAIL
FEMALE
WASHROOM
MALEWASHROOM
DISABLEDTOILET
RISER:175mm
TREAD:300mm
STEPS:36
RISER:175m
m
TREAD:300m
m
STEPS:36
RISER: 175mm
TREAD: 300mm
STEPS: 36
FFL = +12.600
PP
CR
MV
OP
HT
3000mm
17.80 sqm
PP
CT
MV
OP
HT
2500mm
3.31 sqm
FFL = +12.550
CT
CR
MV
OP
CT
2500mm
10.60 sqm
FFL = +12.550
CR
MV
OP
CT
2500mm
8.42 sqm
FFL = +12.550
CT
CR
MV
OP
CT
2500mm
3.69 sqm
VOID
VOID
dp 100
dp 100
dp50
dp50
dp50
dp50
dp50
dp50
dp50
dp 50
dp
50
D
06
RWP OUTLET
RWP OUTLET
RWP OUTLET
FLOW
FLOW
FLOW
FLOW
FLOW
SCREED TO FALL
GRADIENT 1:150
CT
LAND OWNER AND BUILDING
DRAWN BY
CHECKED BY
SCALE
SIGNATURE DATE
ARCHITECT'S SIGNATURE
SHEET NO.
AMMENDMENT
DRAWING TITLE
JO & LI Consultancy Sdn. Bhd.
DESIGN CONSULTANT
A B C D
F G H J
E
K
AR. ZAHARI ZUBIR
I/C NO: 571212-07-5587
DATO IR. TAN EU KANG
TEL: 03-1323 2567 FAX: 03-1323 2568 CHIEF EXECUTIVE OFFICER
123, 3RD FLOOR,
JALAN SETIA NUSANTARA U11/17,
40170 SHAH ALAM, SELANGOR D.E.
ECO SUCESS SDN. BHD. ( 1020553-T )
PROPOSED DESIGN OF LOT ??, ??, ??, ??,
?? & ?? INTO 4-STOREY FOOD MARKET AT
JALAN RAJA MUDA ABDUL AZIZ,
50300 KUALA LUMPUR,
FEDERAL TERRITORY OF KUALA LUMPUR.
FOR :
ECO SUCESS SDN. BHD.
SEPTEMBER 2015
1:100
I/C NO:640806-10-5490
Ar. Alfred Lee (AL/238)
DIRECTOR
L E M B A G A
A R K I T E K
M A L A Y S I A
L E M B A G A
A R K I T E K
M A L A Y S I A
SCALE
REFER TO DRAWING
FIRE FIGHTING DRAWING
PROJECT TITLE
PROJECT NO.
6B
11
2015/BA/ARC3524/
BT2/P1/6A-11
THIRD FLOOR PLAN
THIRD FLOOR PLAN
1:100
3FP
P1 6B
NORTH
NOTE: SUBJECT TO ENGR'S STRUCTURAL INPUT
LEGEND
28600
6400
12800
9400
11350
2900
2250
3050
29600
13600
6700
5150
7800
18500
12000
2450
15000
150 mm THK. GLASS
WITH 19 mm THK. CEM.
PLASTER ON BOTHSIDES
WITH FINISHED PAINTING
50 mm ALUMN FRAME FIXED
GLASS SKYLIGHT TO DETAIL
50 mm THK. PVC
OPAQUE PANEL
1500 GALLONS GALVANIZED
STEEL PANEL WATER TANK
- (APPROVED TYPE) SIZE:
1200 x 1200 x 900 h
- COMPLETE WITH SET
WATERE PUMP &
FILTER TO MANUF'S
DETAIL
130 mm THK.
PARAPET WALL
WITH 25 mm
FFL = +17.325
CR
17.80 sqm
LIFT
M
OTOR
ROOM
-
-
-
144.95 sqm
PP OP
MV 3000mm
HT
FFL = +17.375
PP
CR
MV
OP
HT
2500mm
10.92 sqm
ROOFTOP
FFL = +17.275
-
CR
NV
300 X 75 mm SCUPPER DRAIN
WITH 100Ø RWDP OUTLET TO
ENGR'S DETAIL
R.C FLAT ROOF
FLOW
100 mm THK. BRICKWALL
WITH 25 mm THK. CEMENT
SAND PLASTER ON BOTH
SIDES
RC STAIRCASE TO ENGR'S
DETAIL
RC COLUMN TO ENGR'S
DETAIL
FLOW
FLOW
FLOW
FLOW
RWPOUTLET
RWPOUTLET
RWPOUTLET
RW
P
OUTLET
RW
P
OUTLET
RW
P
OUTLET
RW
P
OUTLET
FLOW
SCREED TO FALL
GRADIENT 1:150
RW
P
OUTLET
FLOW
FLOW
FLOW
FLOW
FLOW
RW
P
OUTLET
RWPOUTLET
FLOW
FLOW
RWP OUTLET
RWP OUTLET
RWPOUTLET
6600
4800
A
B
D
E
1
2
3
4
5
F
K
I
J
P
RWP OUTLET
RWP OUTLET
RWP OUTLET
FLOW
FLOW
RW
P
OUTLET
FLOW
RW
P
OUTLET
FLOW
RW
P
OUTLET
RWP OUTLET
1° FALL
RW
P
OUTLET
1° FALL
RWPOUTLET
FALL
FALL
FALL
FALL
FALL
FALL
FALL
FALL
FALL
FALL
FALL
FALL
FALLFALL
FALL
FALL
FALL
FALL
FALL
FALL
FALL
FALL
FALL
FALL
1° FALL
150 mm THK. LIGHTWEIGHT
STEEEL FRAMING STRUCTURE
dp 50
dp
50
FIRESTAIRCASE1
RISER:175mm
TREAD:300mm
STEPS:36
LIFTCORE
FRD
01
FRD
01
SCREED TO FALL
GRADIENT 1:150
LAND OWNER AND BUILDING
DRAWN BY
CHECKED BY
SCALE
SIGNATURE DATE
ARCHITECT'S SIGNATURE
SHEET NO.
AMMENDMENT
DRAWING TITLE
JO & LI Consultancy Sdn. Bhd.
DESIGN CONSULTANT
A B C D
F G H J
E
K
AR. ZAHARI ZUBIR
I/C NO: 571212-07-5587
DATO IR. TAN EU KANG
TEL: 03-1323 2567 FAX: 03-1323 2568 CHIEF EXECUTIVE OFFICER
123, 3RD FLOOR,
JALAN SETIA NUSANTARA U11/17,
40170 SHAH ALAM, SELANGOR D.E.
ECO SUCESS SDN. BHD. ( 1020553-T )
PROPOSED DESIGN OF LOT ??, ??, ??, ??,
?? & ?? INTO 4-STOREY FOOD MARKET AT
JALAN RAJA MUDA ABDUL AZIZ,
50300 KUALA LUMPUR,
FEDERAL TERRITORY OF KUALA LUMPUR.
FOR :
ECO SUCESS SDN. BHD.
SEPTEMBER 2015
1:100
I/C NO:640806-10-5490
Ar. Alfred Lee (AL/238)
DIRECTOR
L E M B A G A
A R K I T E K
M A L A Y S I A
L E M B A G A
A R K I T E K
M A L A Y S I A
SCALE
REFER TO DRAWING
CONSTRUCTION DRAWING
PROJECT TITLE
PROJECT NO.
7A
11
2015/BA/ARC3524/
BT2/P1/7A-11
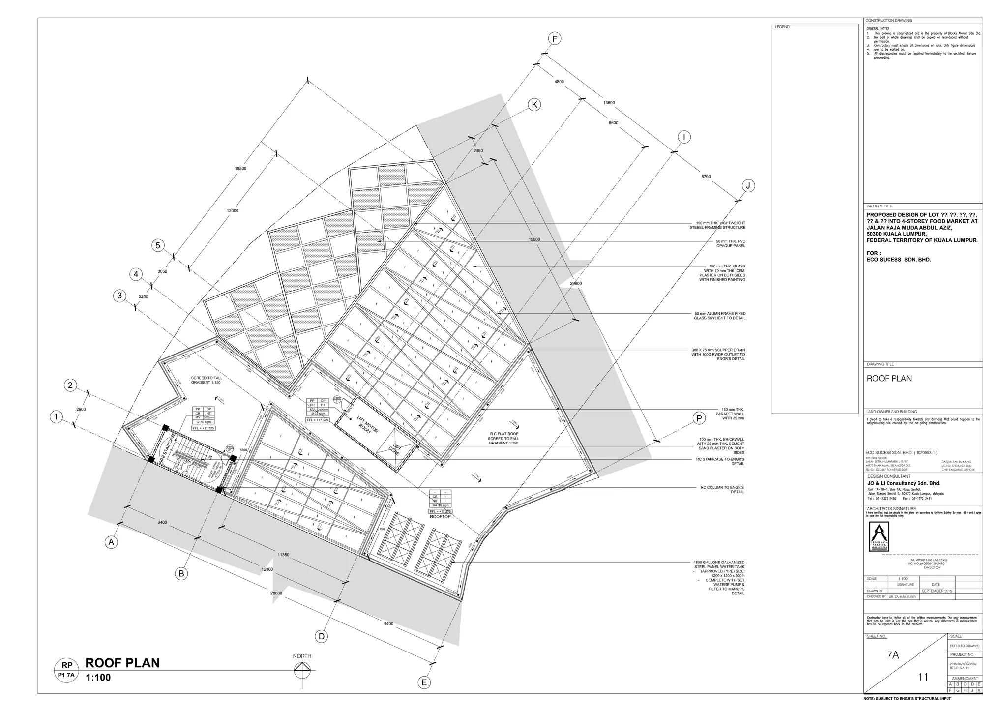
ROOF PLAN
ROOF PLAN
1:100
RP
P1 7A
NORTH
NOTE: SUBJECT TO ENGR'S STRUCTURAL INPUT
LEGEND
28600
6400
12800
9400
11350
2900
2250
3050
29600
13600
6700
5150
7800
18500
12000
2450
15000
150 mm THK. GLASS
WITH 19 mm THK. CEM.
PLASTER ON BOTHSIDES
WITH FINISHED PAINTING
50 mm ALUMN FRAME FIXED
GLASS SKYLIGHT TO DETAIL
50 mm THK. PVC
OPAQUE PANEL
1500 GALLONS GALVANIZED
STEEL PANEL WATER TANK
- (APPROVED TYPE) SIZE:
1200 x 1200 x 900 h
- COMPLETE WITH SET
WATERE PUMP &
FILTER TO MANUF'S
DETAIL
130 mm THK.
PARAPET WALL
WITH 25 mm
FFL = +17.325
CR
17.80 sqm
LIFT
M
OTOR
ROOM
-
-
-
144.95 sqm
PP OP
MV 3000mm
HT
FFL = +17.375
PP
CR
MV
OP
HT
2500mm
10.92 sqm
ROOFTOP
FFL = +17.275
-
CR
NV
300 X 75 mm SCUPPER DRAIN
WITH 100Ø RWDP OUTLET TO
ENGR'S DETAIL
R.C FLAT ROOF
FLOW
100 mm THK. BRICKWALL
WITH 25 mm THK. CEMENT
SAND PLASTER ON BOTH
SIDES
RC STAIRCASE TO ENGR'S
DETAIL
RC COLUMN TO ENGR'S
DETAIL
FLOW
FLOW
FLOW
FLOW
RWPOUTLET
RWPOUTLET
RWPOUTLET
RW
P
OUTLET
RW
P
OUTLET
RW
P
OUTLET
RW
P
OUTLET
FLOW
SCREED TO FALL
GRADIENT 1:150
RW
P
OUTLET
FLOW
FLOW
FLOW
FLOW
FLOW
RW
P
OUTLET
RWPOUTLET
FLOW
FLOW
RWP OUTLET
RWP OUTLET
RWPOUTLET
6600
4800
A
B
D
E
1
2
3
4
5
F
K
I
J
P
RWP OUTLET
RWP OUTLET
RWP OUTLET
FLOW
FLOW
RW
P
OUTLET
FLOW
RW
P
OUTLET
FLOW
RW
P
OUTLET
RWP OUTLET
1° FALL
RW
P
OUTLET
1° FALL
RWPOUTLET
FALL
FALL
FALL
FALL
FALL
FALL
FALL
FALL
FALL
FALL
FALL
FALL
FALLFALL
FALL
FALL
FALL
FALL
FALL
FALL
FALL
FALL
FALL
FALL
1° FALL
150 mm THK. LIGHTWEIGHT
STEEEL FRAMING STRUCTURE
dp 50
dp
50
FIRESTAIRCASE1
RISER:175mm
TREAD:300mm
STEPS:36
LIFTCORE
FRD
01
FRD
01
SCREED TO FALL
GRADIENT 1:150
LAND OWNER AND BUILDING
DRAWN BY
CHECKED BY
SCALE
SIGNATURE DATE
ARCHITECT'S SIGNATURE
SHEET NO.
AMMENDMENT
DRAWING TITLE
JO & LI Consultancy Sdn. Bhd.
DESIGN CONSULTANT
A B C D
F G H J
E
K
AR. ZAHARI ZUBIR
I/C NO: 571212-07-5587
DATO IR. TAN EU KANG
TEL: 03-1323 2567 FAX: 03-1323 2568 CHIEF EXECUTIVE OFFICER
123, 3RD FLOOR,
JALAN SETIA NUSANTARA U11/17,
40170 SHAH ALAM, SELANGOR D.E.
ECO SUCESS SDN. BHD. ( 1020553-T )
PROPOSED DESIGN OF LOT ??, ??, ??, ??,
?? & ?? INTO 4-STOREY FOOD MARKET AT
JALAN RAJA MUDA ABDUL AZIZ,
50300 KUALA LUMPUR,
FEDERAL TERRITORY OF KUALA LUMPUR.
FOR :
ECO SUCESS SDN. BHD.
SEPTEMBER 2015
1:100
I/C NO:640806-10-5490
Ar. Alfred Lee (AL/238)
DIRECTOR
L E M B A G A
A R K I T E K
M A L A Y S I A
L E M B A G A
A R K I T E K
M A L A Y S I A
SCALE
REFER TO DRAWING
FIRE FIGHTING DRAWING
PROJECT TITLE
PROJECT NO.
7B
11
2015/BA/ARC3524/
BT2/P1/7B-11
ROOF PLAN
ROOF PLAN
1:100
RP
P1 7B
NORTH
NOTE: SUBJECT TO ENGR'S STRUCTURAL INPUT
LEGEND

BUILDING TECHNOLOGY 2 [ARC 3524]- Project 1: Building Plans/Fire-Fighting Plans

  • 1.
    JALAN RAJA MUDAABDUL AZIZ EVERYBODYELECTRICAL STORSINARZAMZAM KEDAIPERALATANKOMUNIKASI KEDAIEMASYIKLIAN JALANTUANKUABDULRAHMAN LORONGHAJIHUSSIEN1 LIFT MOTORROOMFIRE STAIRCASE 1 KLINIK DR LEELA RATOS HOTEL WAH HIN ATIKA BEAUTY KEDAI EMAS CANTIK PUSAT INTERNET WIRA Taman Tasik Titiwangsa Taman Tasik Perdana Taman KLCC Padang Golf Titiwangsa Bukit Bandaraya Bangsar Baru Brickfields Tmn. Duta Bukit Damansara Kompleks Kerajaan Golden Triangle Mahameru City Center Pudu Bukit Bintang Kg. Attap Jln.Duta Jln.TunRazak Jln.Damansara Lebuhraya SPRINT Jln. Tun Razak Jln. Parlimen Jln. Hang Tuah Jln. Bukit Bintang Jln. Pudu Jln. Pudu Jln. Raja Chulan Jln. Ampang Jln. Im bi Jln. Sultan Ismail Jln.TAR Jln.Kuching JALAN RAJA MUDA ABDUL AZIZ JALANTUANKUABDULRAHMAN JALANPAHANG LORONG HAJI HUSSIEN 3 LORONG HAJI HUSSIEN 2 LORONGHAJIHUSSIEN3 LORONGHAJIHUSSIEN1 PROPOSED SITE LAND OWNER AND BUILDING DRAWN BY CHECKED BY SCALE SIGNATURE DATE ARCHITECT'S SIGNATURE SHEET NO. AMMENDMENT DRAWING TITLE JO & LI Consultancy Sdn. Bhd. DESIGN CONSULTANT A B C D F G H J E K AR. ZAHARI ZUBIR I/C NO: 571212-07-5587 DATO IR. TAN EU KANG TEL: 03-1323 2567 FAX: 03-1323 2568 CHIEF EXECUTIVE OFFICER 123, 3RD FLOOR, JALAN SETIA NUSANTARA U11/17, 40170 SHAH ALAM, SELANGOR D.E. ECO SUCESS SDN. BHD. ( 1020553-T ) PROPOSED DESIGN OF LOT ??, ??, ??, ??, ?? & ?? INTO 4-STOREY FOOD MARKET AT JALAN RAJA MUDA ABDUL AZIZ, 50300 KUALA LUMPUR, FEDERAL TERRITORY OF KUALA LUMPUR. FOR : ECO SUCESS SDN. BHD. SEPTEMBER 2015 1:100 I/C NO:640806-10-5490 Ar. Alfred Lee (AL/238) DIRECTOR L E M B A G A A R K I T E K M A L A Y S I A L E M B A G A A R K I T E K M A L A Y S I A SCALE REFER TO DRAWING CONSTRUCTION DRAWING PROJECT TITLE PROJECT NO. 2A 11 2015/BA/ARC3524/ BT2/P1/2A-11 KEY PLAN LOCATION PLAN SITE PLAN NOTE: SUBJECT TO ENGR'S STRUCTURAL INPUT LEGEND KEY PLAN NOT TO SCALE KP P1 2A NORTH LOCATION PLANLP P1 2A NORTH SITE PLAN 1:200P1 2A NORTH SP 1:500
  • 2.
    JALAN RAJA MUDAABDUL AZIZ EVERYBODYELECTRICAL STORSINARZAMZAM KEDAIPERALATANKOMUNIKASI KEDAIEMASYIKLIAN JALANTUANKUABDULRAHMAN LORONGHAJIHUSSIEN1 LIFT MOTORROOMFIRE STAIRCASE 1 KLINIK DR LEELA RATOS HOTEL WAH HIN ATIKA BEAUTY KEDAI EMAS CANTIK PUSAT INTERNET WIRA Taman Tasik Titiwangsa Taman Tasik Perdana Taman KLCC Padang Golf Titiwangsa Bukit Bandaraya Bangsar Baru Brickfields Tmn. Duta Bukit Damansara Kompleks Kerajaan Golden Triangle Mahameru City Center Pudu Bukit Bintang Kg. Attap Jln.Duta Jln.TunRazak Jln.Damansara Lebuhraya SPRINT Jln. Tun Razak Jln. Parlimen Jln. Hang Tuah Jln. Bukit Bintang Jln. Pudu Jln. Pudu Jln. Raja Chulan Jln. Ampang Jln. Im bi Jln. Sultan Ismail Jln.TAR Jln.Kuching JALAN RAJA MUDA ABDUL AZIZ JALANTUANKUABDULRAHMAN JALANPAHANG LORONG HAJI HUSSIEN 3 LORONG HAJI HUSSIEN 2 LORONGHAJIHUSSIEN3 LORONGHAJIHUSSIEN1 PROPOSED SITE LAND OWNER AND BUILDING DRAWN BY CHECKED BY SCALE SIGNATURE DATE ARCHITECT'S SIGNATURE SHEET NO. AMMENDMENT DRAWING TITLE JO & LI Consultancy Sdn. Bhd. DESIGN CONSULTANT A B C D F G H J E K AR. ZAHARI ZUBIR I/C NO: 571212-07-5587 DATO IR. TAN EU KANG TEL: 03-1323 2567 FAX: 03-1323 2568 CHIEF EXECUTIVE OFFICER 123, 3RD FLOOR, JALAN SETIA NUSANTARA U11/17, 40170 SHAH ALAM, SELANGOR D.E. ECO SUCESS SDN. BHD. ( 1020553-T ) PROPOSED DESIGN OF LOT ??, ??, ??, ??, ?? & ?? INTO 4-STOREY FOOD MARKET AT JALAN RAJA MUDA ABDUL AZIZ, 50300 KUALA LUMPUR, FEDERAL TERRITORY OF KUALA LUMPUR. FOR : ECO SUCESS SDN. BHD. SEPTEMBER 2015 1:100 I/C NO:640806-10-5490 Ar. Alfred Lee (AL/238) DIRECTOR L E M B A G A A R K I T E K M A L A Y S I A L E M B A G A A R K I T E K M A L A Y S I A SCALE REFER TO DRAWING FIRE FIGHTING DRAWING PROJECT TITLE PROJECT NO. 2B 11 2015/BA/ARC3524/ BT2/P1/2B-11 KEY PLAN LOCATION PLAN SITE PLAN NOTE: SUBJECT TO ENGR'S STRUCTURAL INPUT LEGEND KEY PLAN NOT TO SCALE KP P1 2A NORTH LOCATION PLANLP P1 2A NORTH SITE PLAN 1:200P1 2B NORTH SP 1:500
  • 3.
    5150 D 01 D 07 D 07 D 07 D 07 D 07 COURTYARD FIRESTAIRCASE1 FIRE STAIRCASE 2 FIRE STAIRCASE 4 FIRE STAIRCASE 3 FFL= +0.000 - CI NV - - 69.05 sqm LOADING BAY FFL = +0.0000 PP CR NV OP HT 6300mm 54.64 sqm FOOD STALL AREA FFL = +0.050 - CR NV OP - 124.00 sqm SEATING AREA FFL = +0.050 - CR NV - - 181.20 sqm FEMALE WASHROOM MALEWASHROOM REFUSECHAMBER DISABLEDTOILET LANDSCAPE BO UNDARY LINE SETBACK LINE FFL = +0.050 PP CR MV OP HT 6150mm 17.80 sqm FFL = +0.100 PP CR MV OP HT 18.37 sqm GRAB & GO STALL - CR NV OP - 59.27 sqm FFL = +0.100 PP CR MV OP HT 17.80 sqm FFL = +0.0000 - - NV - HW 13.63 sqm CORRIDOR FFL = +0.000 CT CR MV OP CT 2500mm 10.60 sqm FFL = +0.000 CT CR MV OP CT 8.42 sqm FFL = +0.050 CT CR NV OP HT 6.75 sqm FFL = +0.000 CT CR MV OP CT 3.69 sqm FFL = +0.030 FFL = +0.050 PP CR MV OP HT 17.80 sqm PP CR MV OP VS 0.80 sqm ELECTRIC ROOM - CR NV OP HT 46.00 sqm LINELEVELABOVE RISER:175mm TREAD:300mm STEPS:36 RISER:175m m TREAD:300m m STEPS:36 RISER: 175mm TREAD: 300mm STEPS: 36 RISER: 175mm TREAD: 300mm STEPS: 36 FFL = +0.050 6150mm 6150mm 6150mm 6150mm 6150mm 2500mm 2500mm 3200mm 6150mm 2500mm FFL = +0.000 D 01 D 01 D 01 FRD 02 W 01 W 01 W 01 W 01 W 01 W 01 W 02 W 02 W 02 W 02 A B C D E 1 2 3 4 5 6 7 8 9 10 F G K H I L J M N P 2900 3650 4250 4400 3050 2250 2900 28600 6400 6400 6400 9400 2300 2200 2300 2600 4700 6400 6900 2250 4450 6900 6700 6400 29600 2700 4900 6350 6350 12000 750 2350 6480 LIFT CORE LIFT CORE RC STAIRCASE TO ENGR'S DETAIL WITH 1000MM HEIGHT x 500MM WIDTH M.S. HANDRAIL WELDED ONTO CAST-IN-SITU 40MM x 6MM THK M.S. PLATE BUSTER AND TO BE PAINT FINISH R=175MM, T=300MM RC LIFT CORE TO ENGR'S DETAIL RC COLUMN TO ENGR'S DETAIL 150MM THK. CLAYBRICKS PARTY WALL WITH 25MM THK. CEMENT PLASTERING PP CR MV OP VS 0.80 sqm SWITCH ROOM FFL = +0.050 2500mm LINE LEVEL ABOVE LINE LEVEL ABOVE LINE LEVEL ABOVE LINE LEVEL ABOVE LINE LEVEL ABOVE FRD 02 ROOF LINE ROOF LINE dp50 dp50 dp 50 dp 50 dp50 dp 50 dp 50 dp 50 dp 50 dp 150 dp 150 dp 150 dp 150 dp 50 dp 30 dp 20 dp50 dp50 dp50 dp50 dp50 dp50 dp50 dp50 dp50 dp 50 D 06 LAND OWNER AND BUILDING DRAWN BY CHECKED BY SCALE SIGNATURE DATE ARCHITECT'S SIGNATURE SHEET NO. AMMENDMENT DRAWING TITLE JO & LI Consultancy Sdn. Bhd. DESIGN CONSULTANT A B C D F G H J E K AR. ZAHARI ZUBIR I/C NO: 571212-07-5587 DATO IR. TAN EU KANG TEL: 03-1323 2567 FAX: 03-1323 2568 CHIEF EXECUTIVE OFFICER 123, 3RD FLOOR, JALAN SETIA NUSANTARA U11/17, 40170 SHAH ALAM, SELANGOR D.E. ECO SUCESS SDN. BHD. ( 1020553-T ) PROPOSED DESIGN OF LOT ??, ??, ??, ??, ?? & ?? INTO 4-STOREY FOOD MARKET AT JALAN RAJA MUDA ABDUL AZIZ, 50300 KUALA LUMPUR, FEDERAL TERRITORY OF KUALA LUMPUR. FOR : ECO SUCESS SDN. BHD. SEPTEMBER 2015 1:100 I/C NO:640806-10-5490 Ar. Alfred Lee (AL/238) DIRECTOR L E M B A G A A R K I T E K M A L A Y S I A L E M B A G A A R K I T E K M A L A Y S I A SCALE REFER TO DRAWING CONSTRUCTION DRAWING PROJECT TITLE PROJECT NO. 3A 11 2015/BA/ARC3524/ BT2/P1/3A-11 GROUND FLOOR PLAN GROUND FLOOR PLAN 1:100 GFP P1 3A NORTH NOTE: SUBJECT TO ENGR'S STRUCTURAL INPUT LEGEND
  • 4.
    5150 D 01 D 07 D 07 D 07 D 07 D 07 COURTYARD FIRESTAIRCASE1 FIRE STAIRCASE 2 FIRE STAIRCASE 4 FIRE STAIRCASE 3 FFL= +0.000 - CI NV - - 69.05 sqm LOADING BAY FFL = +0.0000 PP CR NV OP HT 6300mm 54.64 sqm FOOD STALL AREA FFL = +0.050 - CR NV OP - 124.00 sqm SEATING AREA FFL = +0.050 - CR NV - - 181.20 sqm FEMALE WASHROOM MALEWASHROOM REFUSECHAMBER DISABLEDTOILET LANDSCAPE BO UNDARY LINE SETBACK LINE FFL = +0.050 PP CR MV OP HT 6150mm 17.80 sqm FFL = +0.100 PP CR MV OP HT 18.37 sqm GRAB & GO STALL - CR NV OP - 59.27 sqm FFL = +0.100 PP CR MV OP HT 17.80 sqm FFL = +0.0000 - - NV - HW 13.63 sqm CORRIDOR FFL = +0.000 CT CR MV OP CT 2500mm 10.60 sqm FFL = +0.000 CT CR MV OP CT 8.42 sqm FFL = +0.050 CT CR NV OP HT 6.75 sqm FFL = +0.000 CT CR MV OP CT 3.69 sqm FFL = +0.030 FFL = +0.050 PP CR MV OP HT 17.80 sqm PP CR MV OP VS 0.80 sqm ELECTRIC ROOM - CR NV OP HT 46.00 sqm LINELEVELABOVE RISER:175mm TREAD:300mm STEPS:36 RISER:175m m TREAD:300m m STEPS:36 RISER: 175mm TREAD: 300mm STEPS: 36 RISER: 175mm TREAD: 300mm STEPS: 36 FFL = +0.050 6150mm 6150mm 6150mm 6150mm 6150mm 2500mm 2500mm 3200mm 6150mm 2500mm FFL = +0.000 D 01 D 01 D 01 FRD 02 W 01 W 01 W 01 W 01 W 01 W 01 W 02 W 02 W 02 W 02 A B C D E 1 2 3 4 5 6 7 8 9 10 F G K H I L J M N P 2900 3650 4250 4400 3050 2250 2900 28600 6400 6400 6400 9400 2300 2200 2300 2600 4700 6400 6900 2250 4450 6900 6700 6400 29600 2700 4900 6350 6350 12000 750 2350 6480 LIFT CORE LIFT CORE RC STAIRCASE TO ENGR'S DETAIL WITH 1000MM HEIGHT x 500MM WIDTH M.S. HANDRAIL WELDED ONTO CAST-IN-SITU 40MM x 6MM THK M.S. PLATE BUSTER AND TO BE PAINT FINISH R=175MM, T=300MM RC LIFT CORE TO ENGR'S DETAIL RC COLUMN TO ENGR'S DETAIL 150MM THK. CLAYBRICKS PARTY WALL WITH 25MM THK. CEMENT PLASTERING PP CR MV OP VS 0.80 sqm SWITCH ROOM FFL = +0.050 2500mm LINE LEVEL ABOVE LINE LEVEL ABOVE LINE LEVEL ABOVE LINE LEVEL ABOVE LINE LEVEL ABOVE FRD 02 ROOF LINE ROOF LINE dp50 dp50 dp 50 dp 50 dp50 dp 50 dp 50 dp 50 dp 50 dp 150 dp 150 dp 150 dp 150 dp 50 dp 30 dp 20 dp50 dp50 dp50 dp50 dp50 dp50 dp50 dp50 dp50 dp 50 D 06 LAND OWNER AND BUILDING DRAWN BY CHECKED BY SCALE SIGNATURE DATE ARCHITECT'S SIGNATURE SHEET NO. AMMENDMENT DRAWING TITLE JO & LI Consultancy Sdn. Bhd. DESIGN CONSULTANT A B C D F G H J E K AR. ZAHARI ZUBIR I/C NO: 571212-07-5587 DATO IR. TAN EU KANG TEL: 03-1323 2567 FAX: 03-1323 2568 CHIEF EXECUTIVE OFFICER 123, 3RD FLOOR, JALAN SETIA NUSANTARA U11/17, 40170 SHAH ALAM, SELANGOR D.E. ECO SUCESS SDN. BHD. ( 1020553-T ) PROPOSED DESIGN OF LOT ??, ??, ??, ??, ?? & ?? INTO 4-STOREY FOOD MARKET AT JALAN RAJA MUDA ABDUL AZIZ, 50300 KUALA LUMPUR, FEDERAL TERRITORY OF KUALA LUMPUR. FOR : ECO SUCESS SDN. BHD. SEPTEMBER 2015 1:100 I/C NO:640806-10-5490 Ar. Alfred Lee (AL/238) DIRECTOR L E M B A G A A R K I T E K M A L A Y S I A L E M B A G A A R K I T E K M A L A Y S I A SCALE REFER TO DRAWING FIRE FIGHTING DRAWING PROJECT TITLE PROJECT NO. 3B 11 2015/BA/ARC3524/ BT2/P1/3B-11 GROUND FLOOR PLAN GROUND FLOOR PLAN 1:100 GFP P1 3B NORTH NOTE: SUBJECT TO ENGR'S STRUCTURAL INPUT LEGEND FIRE FIGHTING SCHEDULES FIRE FIGHTING LEGEND DRY POWDER EXTINGUISHER HOSE REEL ALARM BELL WET RISER SMOKE DETECTOR BREAK GLASS EMERGENCY LIGHT "KELUAR" SIGN MANUAL CALL POINT CO₂ PANEL
  • 5.
    D 07 D 07 D 07 D 07 D 07 FOOD STALLS & SEATINGAREA FFL = +6.300 - CR NV OP - 6150mm 226.11 sqm FIRESTAIRCASE1 FIRE STAIRCASE 3 FIRE STAIRCASE 2 BALCONY RESTAURANT FFL = +6.300 - CR NV OP - 3000mm 78.15 sqm KITCHEN STORAGE CORRIDOR 5150 FFL = +6.250 CT CR MV OP CT 2500mm 10.60 sqm FFL = +6.250 CT CR MV OP CT 2500mm 8.42 sqm FFL = +6.250 PP CR NV 2600mm 7.26 sqm FFL = +6.250 CT CR MV OP CT 2500mm 3.69 sqm OP HT FFL = +6.300 PP CR MV OP HT 3000mm 17.80 sqm FFL = +6.300 PP CR MV OP HT 3000mm 17.80 sqm FFL = +6.300 PP CR MV OP HT 3000mm 18.37 sqm PP CT MV OP HT 2500mm 3.31 sqm - CR NV OP HT 6150mm 46.00 sqm FFL = +6.250 PP CT MV OP HT 3000mm 5.92 sqm FFL = +6.300 LINE LEVEL ABOVE FIRE STAIRCASE 4 FRD 01 FRD 01 FRD 01 FRD 01 FRD 01 03 D 02 D W 03 W 02 W 02 W 02 W 02 W 02 W 02 W 04 W 04 W 04 W 05 W 05 W 09 W 09 W 10 W 10 W 11 W 11 W 12 W 12 W 13 W 13 2900 3650 4250 4400 3050 2250 2900 28600 6400 6400 6400 9400 2300 2200 2300 2600 750 2350 6480 3500 1310 2250 4450 6900 6700 6400 29600 4900 6350 6350 12000 2700 4700 6400 6900 A B C D E 1 2 3 4 5 6 7 8 9 10 F G K H I L J N P M LIFT CORE LIFT CORE RC STAIRCASE TO ENGR'S DETAIL WITH 1000MM HEIGHT x 500MM WIDTH M.S. HANDRAIL WELDED ONTO CAST-IN-SITU 40MM x 6MM THK M.S. PLATE BUSTER AND TO BE PAINT FINISH R=175MM, T=300MM RC LIFT CORE TO ENGR'S DETAIL RC COLUMN TO ENGR'S DETAIL 150MM THK. CLAYBRICKS PARTY WALL WITH 25MM THK. CEMENT PLASTERING 1200 HEIGHT GALVANIZED MILD STEEL RAILLING 150MM THK. BRICKWALL WITH 25MM THK. CEMENT PLASTERING ON BOTH SIDES PRECAST CONCRETE CLADDING TO ENGR'S DETAIL FEMALE WASHROOM MALEWASHROOM DISABLEDTOILET RISER:175mm TREAD:300mm STEPS:36 RISER:175m m TREAD:300m m STEPS:36 RISER: 175mm TREAD: 300mm STEPS: 36 RISER: 175mm TREAD: 300mm STEPS: 36 PP CR MV 17.80 sqm 3000mm OP HT PP CR MV OP VS 0.80 sqm ELECTRIC ROOM FFL = +6.350 2500mm PP CR MV OP VS 0.80 sqm SWITCH ROOM FFL = +6.350 2500mm LINELEVELABOVE VOID VOID FRD 02 FRD 02 dp50 dp50 dp50 dp50 dp50 dp50 dp50 dp 50 dp 50 dp 50 dp 50 dp 50 D 06 LAND OWNER AND BUILDING DRAWN BY CHECKED BY SCALE SIGNATURE DATE ARCHITECT'S SIGNATURE SHEET NO. AMMENDMENT DRAWING TITLE JO & LI Consultancy Sdn. Bhd. DESIGN CONSULTANT A B C D F G H J E K AR. ZAHARI ZUBIR I/C NO: 571212-07-5587 DATO IR. TAN EU KANG TEL: 03-1323 2567 FAX: 03-1323 2568 CHIEF EXECUTIVE OFFICER 123, 3RD FLOOR, JALAN SETIA NUSANTARA U11/17, 40170 SHAH ALAM, SELANGOR D.E. ECO SUCESS SDN. BHD. ( 1020553-T ) PROPOSED DESIGN OF LOT ??, ??, ??, ??, ?? & ?? INTO 4-STOREY FOOD MARKET AT JALAN RAJA MUDA ABDUL AZIZ, 50300 KUALA LUMPUR, FEDERAL TERRITORY OF KUALA LUMPUR. FOR : ECO SUCESS SDN. BHD. SEPTEMBER 2015 1:100 I/C NO:640806-10-5490 Ar. Alfred Lee (AL/238) DIRECTOR L E M B A G A A R K I T E K M A L A Y S I A L E M B A G A A R K I T E K M A L A Y S I A SCALE REFER TO DRAWING CONSTRUCTION DRAWING PROJECT TITLE PROJECT NO. 4A 11 2015/BA/ARC3524/ BT2/P1/4A-11 FIRST FLOOR PLAN FIRST FLOOR PLAN 1:100 1FP P1 4A NORTH NOTE: SUBJECT TO ENGR'S STRUCTURAL INPUT LEGEND
  • 6.
    D 07 D 07 D 07 D 07 D 07 FOOD STALLS & SEATINGAREA FFL = +6.300 - CR NV OP - 6150mm 226.11 sqm FIRESTAIRCASE1 FIRE STAIRCASE 3 FIRE STAIRCASE 2 BALCONY RESTAURANT FFL = +6.300 - CR NV OP - 3000mm 78.15 sqm KITCHEN STORAGE CORRIDOR 5150 FFL = +6.250 CT CR MV OP CT 2500mm 10.60 sqm FFL = +6.250 CT CR MV OP 2500mm 8.42 sqm FFL = +6.250 PP CR NV 2600mm 7.26 sqm FFL = +6.250 CT CR MV OP CT 2500mm 3.69 sqm OP HT FFL = +6.300 PP CR MV OP HT 3000mm 17.80 sqm FFL = +6.300 PP CR MV OP HT 3000mm 17.80 sqm FFL = +6.300 PP CR MV OP HT 3000mm 18.37 sqm PP CT MV OP HT 2500mm 3.31 sqm - CR NV OP HT 6150mm 46.00 sqm FFL = +6.250 PP CT MV OP HT 3000mm 5.92 sqm FFL = +6.300 LINE LEVEL ABOVE FIRE STAIRCASE 4 FRD 01 FRD 01 FRD 01 FRD 01 FRD 01 03 D 02 D W 03 W 02 W 02 W 02 W 02 W 02 W 02 W 04 W 04 W 04 W 05 W 05 W 09 W 09 W 10 W 10 W 11 W 11 W 12 W 12 W 13 W 13 2900 3650 4250 4400 3050 2250 2900 28600 6400 6400 6400 9400 2300 2200 2300 2600 750 2350 6480 3500 1310 2250 4450 6900 6700 6400 29600 4900 6350 6350 12000 2700 4700 6400 6900 A B C D E 1 2 3 4 5 6 7 8 9 10 F G K H I L J N P M LIFT CORE LIFT CORE RC STAIRCASE TO ENGR'S DETAIL WITH 1000MM HEIGHT x 500MM WIDTH M.S. HANDRAIL WELDED ONTO CAST-IN-SITU 40MM x 6MM THK M.S. PLATE BUSTER AND TO BE PAINT FINISH R=175MM, T=300MM RC LIFT CORE TO ENGR'S DETAIL RC COLUMN TO ENGR'S DETAIL 150MM THK. CLAYBRICKS PARTY WALL WITH 25MM THK. CEMENT PLASTERING 1200 HEIGHT GALVANIZED MILD STEEL RAILLING 150MM THK. BRICKWALL WITH 25MM THK. CEMENT PLASTERING ON BOTH SIDES PRECAST CONCRETE CLADDING TO ENGR'S DETAIL FEMALE WASHROOM MALEWASHROOM DISABLEDTOILET RISER:175mm TREAD:300mm STEPS:36 RISER:175m m TREAD:300m m STEPS:36 RISER: 175mm TREAD: 300mm STEPS: 36 RISER: 175mm TREAD: 300mm STEPS: 36 PP CR MV 17.80 sqm 3000mm OP HT PP CR MV OP VS 0.80 sqm ELECTRIC ROOM FFL = +6.350 2500mm PP CR MV OP VS 0.80 sqm SWITCH ROOM FFL = +6.350 2500mm LINELEVELABOVE VOID VOID FRD 02 FRD 02 dp50 dp50 dp50 dp50 dp50 dp50 dp50 dp 50 dp 50 dp 50 dp 50 dp 50 D 06 CT LAND OWNER AND BUILDING DRAWN BY CHECKED BY SCALE SIGNATURE DATE ARCHITECT'S SIGNATURE SHEET NO. AMMENDMENT DRAWING TITLE JO & LI Consultancy Sdn. Bhd. DESIGN CONSULTANT A B C D F G H J E K AR. ZAHARI ZUBIR I/C NO: 571212-07-5587 DATO IR. TAN EU KANG TEL: 03-1323 2567 FAX: 03-1323 2568 CHIEF EXECUTIVE OFFICER 123, 3RD FLOOR, JALAN SETIA NUSANTARA U11/17, 40170 SHAH ALAM, SELANGOR D.E. ECO SUCESS SDN. BHD. ( 1020553-T ) PROPOSED DESIGN OF LOT ??, ??, ??, ??, ?? & ?? INTO 4-STOREY FOOD MARKET AT JALAN RAJA MUDA ABDUL AZIZ, 50300 KUALA LUMPUR, FEDERAL TERRITORY OF KUALA LUMPUR. FOR : ECO SUCESS SDN. BHD. SEPTEMBER 2015 1:100 I/C NO:640806-10-5490 Ar. Alfred Lee (AL/238) DIRECTOR L E M B A G A A R K I T E K M A L A Y S I A L E M B A G A A R K I T E K M A L A Y S I A SCALE REFER TO DRAWING FIRE FIGHTING DRAWING PROJECT TITLE PROJECT NO. 4B 11 2015/BA/ARC3524/ BT2/P1/4B-11 FIRST FLOOR PLAN FIRST FLOOR PLAN 1:100 1FP P1 4B NORTH NOTE: SUBJECT TO ENGR'S STRUCTURAL INPUT LEGEND
  • 7.
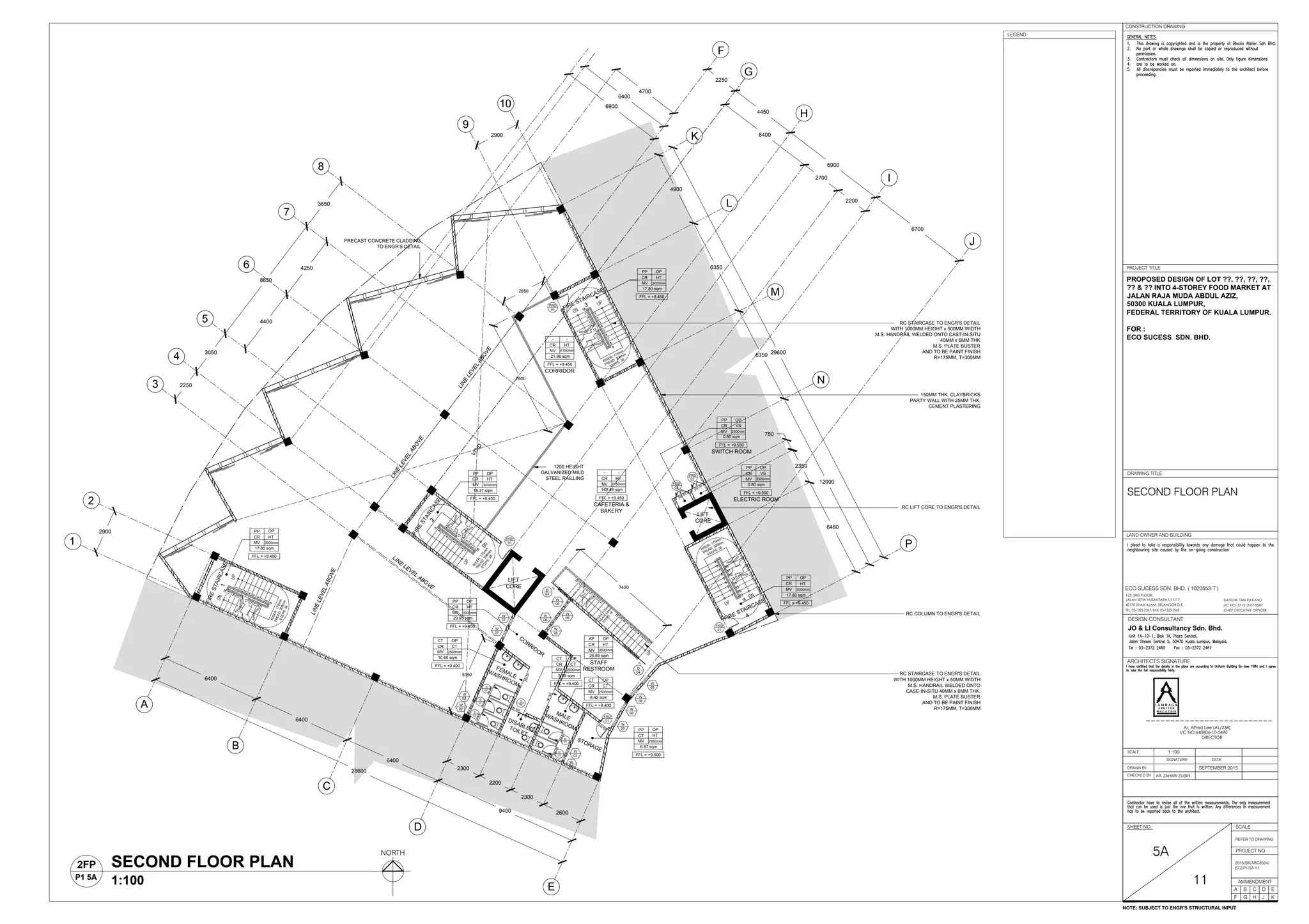
    7400 7600 2850 D 07 D 07 D 07 D 07 D 07 STORAGE STAFF RESTROOM AP CR MV OP HT 3000mm 26.89 sqm CAFETERIA & BAKERY FFL= +9.450 - CR NV - HT 6150mm 149.48 sqm FIRESTAIRCASE1 FIRE STAIRCASE 3 FIRE STAIRCASE 2 CORRIDOR CORRIDOR FFL = +9.450 - CR NV - HT 6150mm 21.98 sqm FIRE STAIRCASE 4 5150 FFL = +9.500 6.87 sqm PP CT MV OP HT 2950mm FFL = +9.450 PP CR MV OP HT 3000mm 20.93 sqm FFL = +9.450 PP CR MV OP HT 3000mm 17.80 sqm FFL = +9.450 PP CR MV OP HT 3000mm 18.37 sqm FFL = +9.450 PP CR MV OP HT 3000mm 17.80 sqm LINELEVELABOVE RISER:175m m TREAD:300m m STEPS:18 FRD 01 FRD 01 FRD 01 D 04 D 04 W 02 W 02 W 02 W 02 W 06 W 06 W 06 W 06 W 07 W 07 W 08 W 08 W 08 W 08 2900 3650 4250 4400 3050 2250 2900 28600 6400 6400 6400 9400 2300 2200 2300 2600 8650 4700 6400 6900 2250 4450 6900 6700 6400 29600 4900 6350 6350 2700 750 2350 6480 12000 2200 A B C D E 1 2 3 4 5 6 7 8 9 10 F G K H I L J N P M LIFT CORE LIFT CORE RC STAIRCASE TO ENGR'S DETAIL WITH 1000MM HEIGHT x 500MM WIDTH M.S. HANDRAIL WELDED ONTO CAST-IN-SITU 40MM x 6MM THK M.S. PLATE BUSTER AND TO BE PAINT FINISH R=175MM, T=300MM RC LIFT CORE TO ENGR'S DETAIL RC COLUMN TO ENGR'S DETAIL 150MM THK. CLAYBRICKS PARTY WALL WITH 25MM THK. CEMENT PLASTERING RC STAIRCASE TO ENGR'S DETAIL WITH 1000MM HEIGHT x 50MM WIDTH M.S. HANDRAIL WELDED ONTO CASE-IN-SITU 40MM x 6MM THK. M.S. PLATE BUSTER AND TO BE PAINT FINISH R=175MM, T=300MM 1200 HEIGHT GALVANIZED MILD STEEL RAILLING PRECAST CONCRETE CLADDING TO ENGR'S DETAIL FEMALE WASHROOM MALEWASHROOM DISABLEDTOILET RISER:175mm TREAD:300mm STEPS:36 RISER:175m m TREAD:300m m STEPS:36 RISER: 175mm TREAD: 300mm STEPS: 36 RISER: 175mm TREAD: 300mm STEPS: 36 FFL = +9.400 CT CR MV OP CT 2500mm 10.60 sqm FFL = +9.400 CT CR MV OP CT 2500mm 8.42 sqm FFL = +9.400 CT CR MV OP CT 2500mm 3.69 sqm FFL = +9.450 PP CR MV 17.80 sqm 3000mm OP HT PP CR MV OP VS 0.80 sqm ELECTRIC ROOM FFL = +9.500 2500mm PP CR MV OP VS 0.80 sqm SWITCH ROOM FFL = +9.500 2500mm LINE LEVELABOVE LINE LEVEL ABOVE LINE LEVEL ABOVE VOID FRD 01 FRD 02 FRD 02 dp50 dp50 dp50 dp50 dp50 dp50 dp50 dp 50 dp 50 dp 50 dp 50 D 06 LAND OWNER AND BUILDING DRAWN BY CHECKED BY SCALE SIGNATURE DATE ARCHITECT'S SIGNATURE SHEET NO. AMMENDMENT DRAWING TITLE JO & LI Consultancy Sdn. Bhd. DESIGN CONSULTANT A B C D F G H J E K AR. ZAHARI ZUBIR I/C NO: 571212-07-5587 DATO IR. TAN EU KANG TEL: 03-1323 2567 FAX: 03-1323 2568 CHIEF EXECUTIVE OFFICER 123, 3RD FLOOR, JALAN SETIA NUSANTARA U11/17, 40170 SHAH ALAM, SELANGOR D.E. ECO SUCESS SDN. BHD. ( 1020553-T ) PROPOSED DESIGN OF LOT ??, ??, ??, ??, ?? & ?? INTO 4-STOREY FOOD MARKET AT JALAN RAJA MUDA ABDUL AZIZ, 50300 KUALA LUMPUR, FEDERAL TERRITORY OF KUALA LUMPUR. FOR : ECO SUCESS SDN. BHD. SEPTEMBER 2015 1:100 I/C NO:640806-10-5490 Ar. Alfred Lee (AL/238) DIRECTOR L E M B A G A A R K I T E K M A L A Y S I A L E M B A G A A R K I T E K M A L A Y S I A SCALE REFER TO DRAWING CONSTRUCTION DRAWING PROJECT TITLE PROJECT NO. 5A 11 2015/BA/ARC3524/ BT2/P1/5A-11 SECOND FLOOR PLAN SECOND FLOOR PLAN 1:100 2FP P1 5A NORTH NOTE: SUBJECT TO ENGR'S STRUCTURAL INPUT LEGEND
  • 8.
    7400 7600 2850 D 07 D 07 D 07 D 07 D 07 STORAGE STAFF RESTROOM AP CR MV OP HT 3000mm 26.89 sqm CAFETERIA & BAKERY FFL= +9.450 - CR NV - HT 6150mm 149.48 sqm FIRESTAIRCASE1 FIRE STAIRCASE 3 FIRE STAIRCASE 2 CORRIDOR CORRIDOR FFL = +9.450 - CR NV - HT 6150mm 21.98 sqm FIRE STAIRCASE 4 5150 FFL = +9.500 6.87 sqm PP CT MV OP HT 2950mm FFL = +9.450 PP CR MV OP HT 3000mm 20.93 sqm FFL = +9.450 PP CR MV OP HT 3000mm 17.80 sqm FFL = +9.450 PP CR MV OP HT 3000mm 18.37 sqm FFL = +9.450 PP CR MV OP HT 3000mm 17.80 sqm LINELEVELABOVE RISER:175m m TREAD:300m m STEPS:18 FRD 01 FRD 01 FRD 01 D 04 D 04 W 02 W 02 FRW 02 FRW 02 W 06 W 06W 06 W 06 W 07 W 07 W 08 W 08 W 08 W 08 2900 3650 4250 4400 3050 2250 2900 28600 6400 6400 6400 9400 2300 2200 2300 2600 8650 4700 6400 6900 2250 4450 6900 6700 6400 29600 4900 6350 6350 2700 750 2350 6480 12000 2200 A B C D E 1 2 3 4 5 6 7 8 9 10 F G K H I L J N P M LIFT CORE LIFT CORE RC STAIRCASE TO ENGR'S DETAIL WITH 1000MM HEIGHT x 500MM WIDTH M.S. HANDRAIL WELDED ONTO CAST-IN-SITU 40MM x 6MM THK M.S. PLATE BUSTER AND TO BE PAINT FINISH R=175MM, T=300MM RC LIFT CORE TO ENGR'S DETAIL RC COLUMN TO ENGR'S DETAIL 150MM THK. CLAYBRICKS PARTY WALL WITH 25MM THK. CEMENT PLASTERING RC STAIRCASE TO ENGR'S DETAIL WITH 1000MM HEIGHT x 50MM WIDTH M.S. HANDRAIL WELDED ONTO CASE-IN-SITU 40MM x 6MM THK. M.S. PLATE BUSTER AND TO BE PAINT FINISH R=175MM, T=300MM 1200 HEIGHT GALVANIZED MILD STEEL RAILLING PRECAST CONCRETE CLADDING TO ENGR'S DETAIL FEMALE WASHROOM MALEWASHROOM DISABLEDTOILET RISER:175mm TREAD:300mm STEPS:36 RISER:175m m TREAD:300m m STEPS:36 RISER: 175mm TREAD: 300mm STEPS: 36 RISER: 175mm TREAD: 300mm STEPS: 36 FFL = +9.400 CT CR MV OP CT 2500mm 10.60 sqm FFL = +9.400 CT CR MV OP CT 2500mm 3.69 sqm FFL = +9.450 PP CR MV 17.80 sqm 3000mm OP HT PP CR MV OP VS 0.80 sqm ELECTRIC ROOM FFL = +9.500 2500mm PP CR MV OP VS 0.80 sqm SWITCH ROOM FFL = +9.500 2500mm LINE LEVEL ABOVE LINE LEVEL ABOVE LINE LEVEL ABOVE VOID FRD 01 FRD 02 FRD 02 dp50 dp50 dp50 dp50 dp50 dp50 dp50 dp 50 dp 50 dp 50 dp 50 D 06 CT CR MV OP 2500mm 8.42 sqm CT FFL = +9.400 LAND OWNER AND BUILDING DRAWN BY CHECKED BY SCALE SIGNATURE DATE ARCHITECT'S SIGNATURE SHEET NO. AMMENDMENT DRAWING TITLE JO & LI Consultancy Sdn. Bhd. DESIGN CONSULTANT A B C D F G H J E K AR. ZAHARI ZUBIR I/C NO: 571212-07-5587 DATO IR. TAN EU KANG TEL: 03-1323 2567 FAX: 03-1323 2568 CHIEF EXECUTIVE OFFICER 123, 3RD FLOOR, JALAN SETIA NUSANTARA U11/17, 40170 SHAH ALAM, SELANGOR D.E. ECO SUCESS SDN. BHD. ( 1020553-T ) PROPOSED DESIGN OF LOT ??, ??, ??, ??, ?? & ?? INTO 4-STOREY FOOD MARKET AT JALAN RAJA MUDA ABDUL AZIZ, 50300 KUALA LUMPUR, FEDERAL TERRITORY OF KUALA LUMPUR. FOR : ECO SUCESS SDN. BHD. SEPTEMBER 2015 1:100 I/C NO:640806-10-5490 Ar. Alfred Lee (AL/238) DIRECTOR L E M B A G A A R K I T E K M A L A Y S I A L E M B A G A A R K I T E K M A L A Y S I A SCALE REFER TO DRAWING FIRE FIGHTING DRAWING PROJECT TITLE PROJECT NO. 5B 11 2015/BA/ARC3524/ BT2/P1/5A-11 SECOND FLOOR PLAN SECOND FLOOR PLAN 1:100 2FP P1 5B NORTH NOTE: SUBJECT TO ENGR'S STRUCTURAL INPUT LEGEND
  • 9.
    7400 D 07 D 07 D 07 D 07 D 07 FIRESTAIRCASE1 FIRE STAIRCASE 3 FIRE STAIRCASE 2 BALCONY LOFT FFL =+12.600 PP CR NV OP HT 3000mm 45.19 sqm BAR & LOUNGE FFL = +12.600 PP CR MV OP HT 3000mm 62.25 sqm OUTDOOR SEATING AREA FFL = +12.500 PP CR NV - HT - 115.00 sqm 5150 CT CR NV OP CT 3050mm 6.75 sqm FFL = +12.600 PP CR MV OP HT 3000mm 17.80 sqm FFL = +12.600 PP CR MV OP HT 3000mm 18.37 sqm STORAGE RISER:175m m TREAD:300m m STEPS:18 FFL = +12.550 CORRIDOR - CR NV OP HT 3000mm 46.00 sqm FRD 01 FRD 01 D 05 FRD 01 FRD 01 03 D W 02 W 02 W 02 W 02 W 03 W 08 W 08 W 14 W 14 W 14 W 14 7900 3050 2900 4400 2250 2900 28600 6400 6400 6400 9400 2300 2200 2300 2600 1300 4700 6400 6900 2250 11300 6400 29600 4900 6350 6350 12000 2700 6700 A B C D E 1 2 3 4 5 6 8 9 10 F G K I L J N P M LIFT CORE RC STAIRCASE TO ENGR'S DETAIL WITH 1000MM HEIGHT x 500MM WIDTH M.S. HANDRAIL WELDED ONTO CAST-IN-SITU 40MM x 6MM THK M.S. PLATE BUSTER AND TO BE PAINT FINISH R=175MM, T=300MM RC LIFT CORE TO ENGR'S DETAIL RC COLUMN TO ENGR'S DETAIL 150MM THK. CLAYBRICKS PARTY WALL WITH 25MM THK. CEMENT PLASTERING RC STAIRCASE TO ENGR'S DETAIL WITH 1000MM HEIGHT x 50MM WIDTH M.S. HANDRAIL WELDED ONTO CASE-IN-SITU 40MM x 6MM THK. M.S. PLATE BUSTER AND TO BE PAINT FINISH R=175MM, T=300MM 1200 HEIGHT GALVANIZED MILD STEEL RAILLING 150MM THK. BRICKWALL WITH 25MM THK. CEMENT PLASTERING ON BOTH SIDES PRECAST CONCRETE CLADDING TO ENGR'S DETAIL FEMALE WASHROOM MALEWASHROOM DISABLEDTOILET RISER:175mm TREAD:300mm STEPS:36 RISER:175m m TREAD:300m m STEPS:36 RISER: 175mm TREAD: 300mm STEPS: 36 FFL = +12.600 PP CR MV OP HT 3000mm 17.80 sqm PP CT MV OP HT 2500mm 3.31 sqm FFL = +12.550 CT CR MV OP CT 2500mm 10.60 sqm FFL = +12.550 CT CR MV OP CT 2500mm 8.42 sqm FFL = +12.550 CT CR MV OP CT 2500mm 3.69 sqm VOID VOID dp 100 dp 100 dp50 dp50 dp50 dp50 dp50 dp50 dp50 dp 50 dp 50 D 06 RWP OUTLET RWP OUTLET RWP OUTLET FLOW FLOW FLOW FLOW FLOW SCREED TO FALL GRADIENT 1:150 LAND OWNER AND BUILDING DRAWN BY CHECKED BY SCALE SIGNATURE DATE ARCHITECT'S SIGNATURE SHEET NO. AMMENDMENT DRAWING TITLE JO & LI Consultancy Sdn. Bhd. DESIGN CONSULTANT A B C D F G H J E K AR. ZAHARI ZUBIR I/C NO: 571212-07-5587 DATO IR. TAN EU KANG TEL: 03-1323 2567 FAX: 03-1323 2568 CHIEF EXECUTIVE OFFICER 123, 3RD FLOOR, JALAN SETIA NUSANTARA U11/17, 40170 SHAH ALAM, SELANGOR D.E. ECO SUCESS SDN. BHD. ( 1020553-T ) PROPOSED DESIGN OF LOT ??, ??, ??, ??, ?? & ?? INTO 4-STOREY FOOD MARKET AT JALAN RAJA MUDA ABDUL AZIZ, 50300 KUALA LUMPUR, FEDERAL TERRITORY OF KUALA LUMPUR. FOR : ECO SUCESS SDN. BHD. SEPTEMBER 2015 1:100 I/C NO:640806-10-5490 Ar. Alfred Lee (AL/238) DIRECTOR L E M B A G A A R K I T E K M A L A Y S I A L E M B A G A A R K I T E K M A L A Y S I A SCALE REFER TO DRAWING CONSTRUCTION DRAWING PROJECT TITLE PROJECT NO. 6A 11 2015/BA/ARC3524/ BT2/P1/6A-11 THIRD FLOOR PLAN THIRD FLOOR PLAN 1:100 3FP P1 6A NORTH NOTE: SUBJECT TO ENGR'S STRUCTURAL INPUT LEGEND
  • 10.
    7400 D 07 D 07 D 07 D 07 D 07 FIRESTAIRCASE1 FIRE STAIRCASE 3 FIRE STAIRCASE 2 BALCONY LOFT FFL =+12.600 PP CR NV OP HT 3000mm 45.19 sqm BAR & LOUNGE FFL = +12.600 PP CR MV OP HT 3000mm 62.25 sqm OUTDOOR SEATING AREA FFL = +12.500 PP CR NV - HT - 115.00 sqm 5150 CT CR NV OP CT 3050mm 6.75 sqm FFL = +12.600 PP CR MV OP HT 3000mm 17.80 sqm FFL = +12.600 PP CR MV OP HT 3000mm 18.37 sqm STORAGE RISER:175m m TREAD:300m m STEPS:18 FFL = +12.550 CORRIDOR - CR NV OP HT 3000mm 46.00 sqm FRD 01 FRD 01 D 05 FRD 01 FRD 01 03 D W 02 W 02 W 02 W 02 FRW 03 W 08 W 08 W 14 W 14 W 14 W 14 7900 3050 2900 4400 2250 2900 28600 6400 6400 6400 9400 2300 2200 2300 2600 1300 4700 6400 6900 2250 11300 6400 29600 4900 6350 6350 12000 2700 6700 A B C D E 1 2 3 4 5 6 8 9 10 F G K I L J N P M LIFT CORE RC STAIRCASE TO ENGR'S DETAIL WITH 1000MM HEIGHT x 500MM WIDTH M.S. HANDRAIL WELDED ONTO CAST-IN-SITU 40MM x 6MM THK M.S. PLATE BUSTER AND TO BE PAINT FINISH R=175MM, T=300MM RC LIFT CORE TO ENGR'S DETAIL RC COLUMN TO ENGR'S DETAIL 150MM THK. CLAYBRICKS PARTY WALL WITH 25MM THK. CEMENT PLASTERING RC STAIRCASE TO ENGR'S DETAIL WITH 1000MM HEIGHT x 50MM WIDTH M.S. HANDRAIL WELDED ONTO CASE-IN-SITU 40MM x 6MM THK. M.S. PLATE BUSTER AND TO BE PAINT FINISH R=175MM, T=300MM 1200 HEIGHT GALVANIZED MILD STEEL RAILLING 150MM THK. BRICKWALL WITH 25MM THK. CEMENT PLASTERING ON BOTH SIDES PRECAST CONCRETE CLADDING TO ENGR'S DETAIL FEMALE WASHROOM MALEWASHROOM DISABLEDTOILET RISER:175mm TREAD:300mm STEPS:36 RISER:175m m TREAD:300m m STEPS:36 RISER: 175mm TREAD: 300mm STEPS: 36 FFL = +12.600 PP CR MV OP HT 3000mm 17.80 sqm PP CT MV OP HT 2500mm 3.31 sqm FFL = +12.550 CT CR MV OP CT 2500mm 10.60 sqm FFL = +12.550 CR MV OP CT 2500mm 8.42 sqm FFL = +12.550 CT CR MV OP CT 2500mm 3.69 sqm VOID VOID dp 100 dp 100 dp50 dp50 dp50 dp50 dp50 dp50 dp50 dp 50 dp 50 D 06 RWP OUTLET RWP OUTLET RWP OUTLET FLOW FLOW FLOW FLOW FLOW SCREED TO FALL GRADIENT 1:150 CT LAND OWNER AND BUILDING DRAWN BY CHECKED BY SCALE SIGNATURE DATE ARCHITECT'S SIGNATURE SHEET NO. AMMENDMENT DRAWING TITLE JO & LI Consultancy Sdn. Bhd. DESIGN CONSULTANT A B C D F G H J E K AR. ZAHARI ZUBIR I/C NO: 571212-07-5587 DATO IR. TAN EU KANG TEL: 03-1323 2567 FAX: 03-1323 2568 CHIEF EXECUTIVE OFFICER 123, 3RD FLOOR, JALAN SETIA NUSANTARA U11/17, 40170 SHAH ALAM, SELANGOR D.E. ECO SUCESS SDN. BHD. ( 1020553-T ) PROPOSED DESIGN OF LOT ??, ??, ??, ??, ?? & ?? INTO 4-STOREY FOOD MARKET AT JALAN RAJA MUDA ABDUL AZIZ, 50300 KUALA LUMPUR, FEDERAL TERRITORY OF KUALA LUMPUR. FOR : ECO SUCESS SDN. BHD. SEPTEMBER 2015 1:100 I/C NO:640806-10-5490 Ar. Alfred Lee (AL/238) DIRECTOR L E M B A G A A R K I T E K M A L A Y S I A L E M B A G A A R K I T E K M A L A Y S I A SCALE REFER TO DRAWING FIRE FIGHTING DRAWING PROJECT TITLE PROJECT NO. 6B 11 2015/BA/ARC3524/ BT2/P1/6A-11 THIRD FLOOR PLAN THIRD FLOOR PLAN 1:100 3FP P1 6B NORTH NOTE: SUBJECT TO ENGR'S STRUCTURAL INPUT LEGEND
  • 11.
    28600 6400 12800 9400 11350 2900 2250 3050 29600 13600 6700 5150 7800 18500 12000 2450 15000 150 mm THK.GLASS WITH 19 mm THK. CEM. PLASTER ON BOTHSIDES WITH FINISHED PAINTING 50 mm ALUMN FRAME FIXED GLASS SKYLIGHT TO DETAIL 50 mm THK. PVC OPAQUE PANEL 1500 GALLONS GALVANIZED STEEL PANEL WATER TANK - (APPROVED TYPE) SIZE: 1200 x 1200 x 900 h - COMPLETE WITH SET WATERE PUMP & FILTER TO MANUF'S DETAIL 130 mm THK. PARAPET WALL WITH 25 mm FFL = +17.325 CR 17.80 sqm LIFT M OTOR ROOM - - - 144.95 sqm PP OP MV 3000mm HT FFL = +17.375 PP CR MV OP HT 2500mm 10.92 sqm ROOFTOP FFL = +17.275 - CR NV 300 X 75 mm SCUPPER DRAIN WITH 100Ø RWDP OUTLET TO ENGR'S DETAIL R.C FLAT ROOF FLOW 100 mm THK. BRICKWALL WITH 25 mm THK. CEMENT SAND PLASTER ON BOTH SIDES RC STAIRCASE TO ENGR'S DETAIL RC COLUMN TO ENGR'S DETAIL FLOW FLOW FLOW FLOW RWPOUTLET RWPOUTLET RWPOUTLET RW P OUTLET RW P OUTLET RW P OUTLET RW P OUTLET FLOW SCREED TO FALL GRADIENT 1:150 RW P OUTLET FLOW FLOW FLOW FLOW FLOW RW P OUTLET RWPOUTLET FLOW FLOW RWP OUTLET RWP OUTLET RWPOUTLET 6600 4800 A B D E 1 2 3 4 5 F K I J P RWP OUTLET RWP OUTLET RWP OUTLET FLOW FLOW RW P OUTLET FLOW RW P OUTLET FLOW RW P OUTLET RWP OUTLET 1° FALL RW P OUTLET 1° FALL RWPOUTLET FALL FALL FALL FALL FALL FALL FALL FALL FALL FALL FALL FALL FALLFALL FALL FALL FALL FALL FALL FALL FALL FALL FALL FALL 1° FALL 150 mm THK. LIGHTWEIGHT STEEEL FRAMING STRUCTURE dp 50 dp 50 FIRESTAIRCASE1 RISER:175mm TREAD:300mm STEPS:36 LIFTCORE FRD 01 FRD 01 SCREED TO FALL GRADIENT 1:150 LAND OWNER AND BUILDING DRAWN BY CHECKED BY SCALE SIGNATURE DATE ARCHITECT'S SIGNATURE SHEET NO. AMMENDMENT DRAWING TITLE JO & LI Consultancy Sdn. Bhd. DESIGN CONSULTANT A B C D F G H J E K AR. ZAHARI ZUBIR I/C NO: 571212-07-5587 DATO IR. TAN EU KANG TEL: 03-1323 2567 FAX: 03-1323 2568 CHIEF EXECUTIVE OFFICER 123, 3RD FLOOR, JALAN SETIA NUSANTARA U11/17, 40170 SHAH ALAM, SELANGOR D.E. ECO SUCESS SDN. BHD. ( 1020553-T ) PROPOSED DESIGN OF LOT ??, ??, ??, ??, ?? & ?? INTO 4-STOREY FOOD MARKET AT JALAN RAJA MUDA ABDUL AZIZ, 50300 KUALA LUMPUR, FEDERAL TERRITORY OF KUALA LUMPUR. FOR : ECO SUCESS SDN. BHD. SEPTEMBER 2015 1:100 I/C NO:640806-10-5490 Ar. Alfred Lee (AL/238) DIRECTOR L E M B A G A A R K I T E K M A L A Y S I A L E M B A G A A R K I T E K M A L A Y S I A SCALE REFER TO DRAWING CONSTRUCTION DRAWING PROJECT TITLE PROJECT NO. 7A 11 2015/BA/ARC3524/ BT2/P1/7A-11 ROOF PLAN ROOF PLAN 1:100 RP P1 7A NORTH NOTE: SUBJECT TO ENGR'S STRUCTURAL INPUT LEGEND
  • 12.
    28600 6400 12800 9400 11350 2900 2250 3050 29600 13600 6700 5150 7800 18500 12000 2450 15000 150 mm THK.GLASS WITH 19 mm THK. CEM. PLASTER ON BOTHSIDES WITH FINISHED PAINTING 50 mm ALUMN FRAME FIXED GLASS SKYLIGHT TO DETAIL 50 mm THK. PVC OPAQUE PANEL 1500 GALLONS GALVANIZED STEEL PANEL WATER TANK - (APPROVED TYPE) SIZE: 1200 x 1200 x 900 h - COMPLETE WITH SET WATERE PUMP & FILTER TO MANUF'S DETAIL 130 mm THK. PARAPET WALL WITH 25 mm FFL = +17.325 CR 17.80 sqm LIFT M OTOR ROOM - - - 144.95 sqm PP OP MV 3000mm HT FFL = +17.375 PP CR MV OP HT 2500mm 10.92 sqm ROOFTOP FFL = +17.275 - CR NV 300 X 75 mm SCUPPER DRAIN WITH 100Ø RWDP OUTLET TO ENGR'S DETAIL R.C FLAT ROOF FLOW 100 mm THK. BRICKWALL WITH 25 mm THK. CEMENT SAND PLASTER ON BOTH SIDES RC STAIRCASE TO ENGR'S DETAIL RC COLUMN TO ENGR'S DETAIL FLOW FLOW FLOW FLOW RWPOUTLET RWPOUTLET RWPOUTLET RW P OUTLET RW P OUTLET RW P OUTLET RW P OUTLET FLOW SCREED TO FALL GRADIENT 1:150 RW P OUTLET FLOW FLOW FLOW FLOW FLOW RW P OUTLET RWPOUTLET FLOW FLOW RWP OUTLET RWP OUTLET RWPOUTLET 6600 4800 A B D E 1 2 3 4 5 F K I J P RWP OUTLET RWP OUTLET RWP OUTLET FLOW FLOW RW P OUTLET FLOW RW P OUTLET FLOW RW P OUTLET RWP OUTLET 1° FALL RW P OUTLET 1° FALL RWPOUTLET FALL FALL FALL FALL FALL FALL FALL FALL FALL FALL FALL FALL FALLFALL FALL FALL FALL FALL FALL FALL FALL FALL FALL FALL 1° FALL 150 mm THK. LIGHTWEIGHT STEEEL FRAMING STRUCTURE dp 50 dp 50 FIRESTAIRCASE1 RISER:175mm TREAD:300mm STEPS:36 LIFTCORE FRD 01 FRD 01 SCREED TO FALL GRADIENT 1:150 LAND OWNER AND BUILDING DRAWN BY CHECKED BY SCALE SIGNATURE DATE ARCHITECT'S SIGNATURE SHEET NO. AMMENDMENT DRAWING TITLE JO & LI Consultancy Sdn. Bhd. DESIGN CONSULTANT A B C D F G H J E K AR. ZAHARI ZUBIR I/C NO: 571212-07-5587 DATO IR. TAN EU KANG TEL: 03-1323 2567 FAX: 03-1323 2568 CHIEF EXECUTIVE OFFICER 123, 3RD FLOOR, JALAN SETIA NUSANTARA U11/17, 40170 SHAH ALAM, SELANGOR D.E. ECO SUCESS SDN. BHD. ( 1020553-T ) PROPOSED DESIGN OF LOT ??, ??, ??, ??, ?? & ?? INTO 4-STOREY FOOD MARKET AT JALAN RAJA MUDA ABDUL AZIZ, 50300 KUALA LUMPUR, FEDERAL TERRITORY OF KUALA LUMPUR. FOR : ECO SUCESS SDN. BHD. SEPTEMBER 2015 1:100 I/C NO:640806-10-5490 Ar. Alfred Lee (AL/238) DIRECTOR L E M B A G A A R K I T E K M A L A Y S I A L E M B A G A A R K I T E K M A L A Y S I A SCALE REFER TO DRAWING FIRE FIGHTING DRAWING PROJECT TITLE PROJECT NO. 7B 11 2015/BA/ARC3524/ BT2/P1/7B-11 ROOF PLAN ROOF PLAN 1:100 RP P1 7B NORTH NOTE: SUBJECT TO ENGR'S STRUCTURAL INPUT LEGEND