Electrificació Polígon Industrial “Los
                    Campets”




Titulació: Enginyeria Tècnica Industrial Esp. en Electricitat



                                             AUTOR: Albert Bel Esteller
                                             DIRECTOR: J.J. Tena Tena
                                            DATA: Setembre / 2004.
Electrificació Polígon Industrial “Los Campets”                Memòria Descriptiva




                                   Memòria descriptiva




                                                     AUTORS: Albert Bel Esteller
                                                    DIRECTORS: J. J. Tena Tena.

                                                         DATA: Setembre / 2004.



Albert Bel Esteller

Enginyer TècnicIndustrial en Electricitat                                      1
Electrificació Polígon Industrial “Los Campets”                                                            Memòria Descriptiva

Índex de la Memòria Descriptiva
       Índex de la Memòria descriptiva ...............................................................................2

       1     Objecte del projecte............................................................................................5

       2     Abast del projecte...............................................................................................5

       3     Situació ..............................................................................................................5

       4     Antecedents........................................................................................................6

       5     Titular ................................................................................................................7

       6     Normes i referències...........................................................................................7

       7     Descripció del polígon........................................................................................8

       8     Justificació del Projecte....................................................................................12

       9     Posta en marxa i funcionament .........................................................................13

       10       Anàlisi de solucions......................................................................................17

       11       Descripció general........................................................................................27

           11.1         Línia Subterrània de Mitja Tensió .........................................................27

              11.1.1       Objecte del projecte ..........................................................................27

              11.1.2         Justificació ...................................................................................27

              11.1.3       Característiques de la Línia Subterrània. ...........................................27

              11.1.4       Descripció de la línia de Mitja Tensió ...............................................27

            11.2        Centres de Transformació .....................................................................32

              11.2.1       Introducció........................................................................................32

              11.2.2       Objecte .............................................................................................33

              11.2.3       Emplaçament ....................................................................................33

              11.2.4       Centres de Transformació prefabricat adoptats.................................33

              11.2.5       Distribució interior dels Centres de Transformació ............................33

              11.2.6       Transformadors de distribució MT/BT ..............................................34

              11.2.7       Aspectes constructius dels Centres de Transformació ........................35


Albert Bel Esteller

Enginyer TècnicIndustrial en Electricitat                                                                                        2
Electrificació Polígon Industrial “Los Campets”                                                        Memòria Descriptiva

             11.2.8      Instal·lació elèctrica. .........................................................................38

             11.2.9      Equips de mesura i contatge. .............................................................42

             11.2.10 Mesures de seguretat. ......................................................................43

             11.2.11 Posta a terra.....................................................................................44

             11.2.12 Enllumenat del centre de transformació ...........................................46

             11.2.13         Senya litzacions i material de seguretat ..............................46

          11.3        Xarxa de distribució en baixa tensió ......................................................46

             11.3.1      Introducció........................................................................................46

             11.3.2      Objecte .............................................................................................46

             11.3.3      Descripció de la instal·lació...............................................................46

             11.3.4      Proteccions de la xarxa de BT contra sobreintensitats:fusibles...........50

             11.3.5      Caixes Generals de Protecció i Caixes de Seccionament....................50

       12      Obra Civil.....................................................................................................51

          12.1        Rases ....................................................................................................51

          12.2        Arquetes de registre ..............................................................................57

          12.3        Cementacions .......................................................................................57

       13      Enllumenat exterior del polígon Industrial “Los Campets”............................58

          13.1        Introducció ...........................................................................................58

          13.2        Objecte .................................................................................................58

          13.3        Requisits de disseny..............................................................................58

          13.4        Abast de la instal·lació ..........................................................................59

          13.5        Descripció de la instal·lació ..................................................................59

          13.6        Secció dels conductors..........................................................................59

          13.7        Lluminàries i suports ............................................................................59

          13.8        Presa a terra de l’Enllumenat Exterior...................................................59

          13.9        Proteccions ...........................................................................................60


Albert Bel Esteller

Enginyer TècnicIndustrial en Electricitat                                                                                    3
Electrificació Polígon Industrial “Los Campets”                                                 Memòria Descriptiva

             13.9.1      Contra contactes directes...................................................................60

             13.9.2      Contra contactes indirectes................................................................60

       14      Planificació i Programació ............................................................................60

       15      Posta en Marxa i Funcionament ....................................................................60

       16      Resum del pressupost ...................................................................................61




Albert Bel Esteller

Enginyer TècnicIndustrial en Electricitat                                                                            4
Electrificació Polígon Industrial “Los Campets”                                Memòria Descriptiva



1      Objecte del projecte
        L’objecte d’aquest projecte, és el de poder realitzar la planificació i els càlculs
necessaris per a poder subministrar energia elèctrica al Polígon Industrial, en tot el seu
abast, que es construirà al Terme Municipal d’Alcanar, justificant cadascuna de les parts de
l’electrificació que ens ocupa i complint amb la normativa i les reglamentacions vigents, ja
siguin locals com administratives i legals que afectaran a la construcció del mateix.


2      Abast del projecte
       Amb el Polígon Industrial “Los Campets” construït a les afores del nucli urbà
d’Alcanar, es farà una important inversió econòmicament parlant, però al mateix temps,
una inversió que farà que el poble en conjunt augmenti les seves prestacions, ja siguin
econòmiques - a mig o llarg plaç -, socials o industrials.

         Pel que fa a l’aspecte d’electrificació, aprofitant la línia de mitja tensió (25 kV) de
l’empresa FECSA, que passa per Alcanar, per la part posterior del poble - l’oest del mateix
-, i justament al sud oest del poble - on està situat el polígon - es realitzarà la derivació i les
conseqüents instal·lacions pertinents per a poder subministrar el polígon d’una manera
eficient, sense deixa de pensar amb el futur, considerant les possibles ampliacions del
polígon que es puguin realitzar.

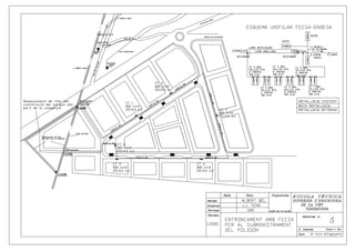
      Tot això es podrà observar al plànol de situació i emplaçament i al Plànol
d’entroncament amb FECSA per al subministrament del polígon.

       A part de l’electrificació, al projecte també s’inclouran la il·luminació necessària a
les vies, ja siguin d’accés com de servei a l’igual que la part d’obra civil, estacions
transformadores i aparamenta necessària per al correcte i segur funcionament de tota la
instal·lació que abastarà a tot el polígon.


3      Situació
        El Polígon Industrial “Los Campets” - que té una superfície total de 169.823,68
m2, dels quals uns 64.075 m2 són edificables- esta ubicat al Terme Municipal d’Alcanar a
la província de Tarragona (sud de la província), tal com es pot observar al plànol de
Situació que es troba a document bàsic dels Plànols. També cal dir que està situat just al
sud oest del nucli urbà, entre la banda esquerra de la carretera de l’Estació TV-3321
(direcció a l’estació) i la banda esquerra del Riu Sénia, que cal explicar que es la
“frontera” que separa Catalunya del País Valencià, o dit d’una altra manera les províncies
de Tarragona i Castelló.

     L’entrada al polígon es podrà realitzar per una derivació que apareix a una rotonda.
En aquesta rotonda també hi ha derivacions que enllacen en la carretera de l’Estació TV-
3321, amb la Ronda Circumval·lació, i la carretera Nova que porta al nucli urbà.(veure
Plànol de Situació).



Albert Bel Esteller

Enginyer TècnicIndustrial en Electricitat                                                      5
Electrificació Polígon Industrial “Los Campets”                                     Memòria Descriptiva



4      Antecedents
        Amb la realització del projecte es pretén dotar al municipi d’Alcanar d’una oferta
de sòl industrial, la qual mancava al municipi fins al moment, i aprofitar el creixement que
la localitat ha experimentat si més no en indústria i en activitats comercials. El fet l’ha
provocat la implantació de noves indústries en terrenys molt dispersats no destinats
solament a sòl industrial, sinó que en parcel·les comprades i destinades a l’activitat que
sigui en cada cas, és per això que l’ajuntament ha cregut convenient el de poder centralitzar
la indústria de la localitat, en uns mateixos terrenys, és a dir al polígon industrial que es
pretén realitzar. Per aquest fet l’ajuntament d’Alcanar està promocionant la implantació de
noves zones per a ús industrial amb ofertes de 18 €/m2, que en relació amb els preus de les
diverses localitats veïnes, es molt assequible econòmicament parlant.

      Contrastant aquesta informació s’ha aconseguit en dades reals la relació de les
poblacions veïnes i els seus respectius polígons al butlletí mensual “EBR€CONÒMIC”,
de l’octubre del 2003, on es relacionaven els polígons industrials de les Terres de l’Ebre.
Com a exemples de diverses poblacions i d’alguns dels seus polígons s’ha extret el
següent:

     POBLACIÓ               POLÍGON               UBICACIÓ            EXTENSIÓ                         PREU


          L’ALDEA              PLA                    AL NORD      533.791M2 (TOTAL) /                    33,06-
                           PARCIAL                DE L’ALDEA    339.016M2 (IND.NET)                  36 € / M2
                          CATALUNYA
                             SUD



         TORTOSA                 PLA                  SUD DE      860.500 M2 (TOTAL) /                     30,05
                           PARCIAL 11              TORTOSA      610.955M2(IND.NET)                     € / M2


         AMPOSTA                  P.I             SORTIDA         697.293 M2 (TOTAL) /                      27-
                            L’ORIOLA        D’AMPOSTA PER       495.078M2(IND.NET)                   32,45 €/M2
                                               LA N-340,
                                               DIRECCIÓ
                                              VALÈNCIA


        S.C. DE LA               P.I. EL             NORD DE      434.100 M2 (TOTAL) /                    2 4 -3 3
       RÀPITA                  SALT               LA RÀPITA     308.211M2(IND.NET)                     €/M2


        ULLDECONA               P.I                SUD            1 7 9 . 8 2 6 M 2 ( T O T AL ) /         24
                          VALLDEPINS         D’ULLDECONA        123.301M2(IND.NET)                     €/M2


         GANDESA                P.I. LA               ES HJKT     186.837 M2 (TOTAL) /                   27 € /
                            PLANA DE              DEL NUCLI     142.535M2(IND.NET)                      M2
                             MERLET                 URBÀ


            FLIX                P.I LA             MARGE          146.900 M2 (TOTAL) /                    30,05-
                             DEVESA          ESQUERRE DEL       103.200M2(IND.NET)                   42,7 €/ M2
                                               RIU EBRE




Albert Bel Esteller

Enginyer TècnicIndustrial en Electricitat                                                               6
Electrificació Polígon Industrial “Los Campets”                          Memòria Descriptiva

5      Titular
     El titular del projecte és l’Ajuntament d’Alcanar amb CIF: B-47.589.695 amb
domicili al Carrer La Generalitat s/n, i codi postal: 43.530. Com a representant legal de
l’Ajuntament: Alfons Beltran Bort amb NIF:42.569.867-M


6      Normes i referències
      Totes les construccions i instal·lacions que es realitzaran en el Polígon Industrial
“Los Campets” aniran determinades per les diverses prescripcions tècniques, normes i
referències que s’esmenten a continuació:

       REGLAMENTS CONSULTAT S:
              - Reglament electrotècnic per Baixa Tensió e Instruccions Tècniques
                Complementàries.
              - Reglament sobre Condicions tècniques i Garanties de Seguretat en Centrals
                Elèctriques i Centres de Transformació e Instruccions Tècniques
                Complementàries.
              - Reglament Tècnic de Línies Elèctriques Aèries d’Alta Tensió.
              - Reglament d’Estacions de Transformació.
              - Reglament de Verificacions Elèctriques i Regularitat en el Subministrament
                d’Energia.

       NORMATIVES:
              - Ordenances Municipals de l’Ajuntament d’Alcanar.
              - Reglaments vigents.
              - Normes Europees EN.
              - Normes Internacionals CEI.
              - Normativa FECSA-ENDESA.
              - Normes Tecnològiques d’edificacions: “Instal·lacions Elèctriques”, “Centres
                de Transformació” y “Presa a Terra”.
              - Recomanacions UNESA – RU6404A – RU5201C – RU6302 A – RU3407B
                – RU3401B – RU3405B.
              - Recomanacions UNESA Terres.

       - Normes Unesa:
              - UNE 21081,CEI
              - UNE-EN 60129 ,CEI 129
              - UNE-EN 60255 ,CEI 255
              - UNE-EN 60298,CEI 298
              - UNE-EN 60694 ,CEI 694

Albert Bel Esteller

Enginyer TècnicIndustrial en Electricitat                                                7
Electrificació Polígon Industrial “Los Campets”                            Memòria Descriptiva

              - UNE-EN 60801 ,CEI 801
              - UNE-EN ISO 9001:2000
              - UNE 21-320/5-IEC 296
              - UNE 48103
              - UNE 21.428
              - UNE-EN 60056 CEI 60056
              - UNE-EN 60265-1 CEI 60265-1
              - UNE-EN 60420 CEI 60420
              - UNE-EN 61000-4 CEI 61000-4

       Quaderns Tècnics:
              - Àngel Muñoz Medina. “Càlcul i Anàlisi d’instal·lacions elèctriques en
                Baixa Tensió”.
              - Enciclopèdia CEAC d’electricitat. “Estacions de transformació i distribució.
                Protecció de sistemes elèctrics”.
              - Jose Carlos Toledano Gasca. Antonio Luna Alonso. “Escomeses elèctriques.
                Legislació i exemples”.
              - E. Gallango, “Instal·lacions de presa a terra en xarxes de distribució”, Palma
                de Mallorca.


7      Descripció del polígon
        Per a fer la descripció completa del Polígon Industrial “Los Campets”, ens basarem
en els següents punts:

      Superfícies distribuïdes per càlculs realitzats i el Pla Urbanístic Municipal de
l’Ajuntament d’Alcanar.

       Extensió total 169.823,68 m2

       Sòl públic:
              - Vialitat: 18.280.04 m2
              - Vialitat de serveis 1.080,13 m2
              - Espais lliures: 30.109,66 m2
              - Equipament públic: 6.375,37 m2

       Total sòl públic: 55.845,20 m2

       Sòl privat: 113.970,24 m2

       Superfície edificable 64.075 m2


Albert Bel Esteller

Enginyer TècnicIndustrial en Electricitat                                                  8
Electrificació Polígon Industrial “Los Campets”                             Memòria Descriptiva

       Subministrament de tensió al polígon i empresa subministradora:

     El Polígon es subministrarà mitjançant una línia aèria de Mitja Tensió (25 kV) a 50
Hz que hi passa just per la banda posterior del polígon propietat de FECSA-ENDESA i
anomenada Lª Renfe.1.

       Potència total necessària:

     Per poder realitzar el càlcul de la potència total a transportar, i per poder projectar si
més no, en una bona aproximació els centres de transformació, és necessari tenir una
aproximació de la potència total del Polígon.

     A part també cal dir que s’ha de tenir en conte que prèviament l’Ajuntament
d’Alcanar no sap quines indústries s’hi instal·laran, de quin tipus seran i la quantitat
d’aquestes.

      Sabent això, amb el que ens hem basat per a tenir una aproximació de la potència
necessària ha estat amb el Reglament de Baixa Tensió, concretament a la ITC-BT-10 on es
determinen les condicions a seguir en diferents casos que ens poden afectar i algunes
condicions que exposa el Pla Urbanístic Municipal de l’Ajuntament d’Alcanar que són
d’obligat compliment.

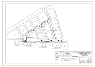
       Cal explicar que en el cas del nostre projecte, la superfície que es tindrà en compte i
on s’aplicarà la ITC-BT-10, serà la superfície edificable, tal com es dictamina pel Pla
Urbanístic Municipal de l’Ajuntament d’Alcanar, la qual es pot observar al plànol de
distribució de parcel·les on s’exposa el Gàlib Màxim de l’Edificació i l’Alineació
Obligatòria de les naus futures. També cal dir que en aquest pla queda constància que es
tindrà e conte un 60 % de la superfície edificable per a edificis destinats a una concentració
d’indústries i amb el 40 % restant, es realitzaran els càlculs com a edificis comercials i
oficines.

      A banda d’aquests percentatges dictaminats en el Pla Urbanístic Municipal de
l’Ajuntament d’Alcanar, en aquest pla també hi apareix un factor d’utilització de la
superfície edificable que es de 0,5 per a tenir superfície per a poder maniobrar en cas
d’accident, ja siguin camions o altres vehicles de grans dimensions, deixant passadissos de
tres metres com a mínim entre naus.

      En el nostre cas, i seguint amb la classificació dels llocs de consum que s’exposa al
reglament, hem de seguir “Edificis destinats a una concentració d’indústries” i “Edificis
comercials o d’oficines”, ja que al Pla Urbanístic Municipal de l’Ajuntament d’Alcanar es
dictamina que un 60% de la superfície edificable (la que a partir de la qual realitzarem tots
els càlculs) sigui per a edificis destinats a una concentració d’indústries i el 40% restant per
a edificis comercials o d’oficines.

       Sabent això ens queda el següent:
              - La superfície total edificable al Polígon Industrial “Los Campets” són
                64.075 m2.
              - El 60% d’aquesta superfície es 38.445 m2, i en aquest cas s’aplica la
                normativa d’edificis destinats a concentració d’indústries de 125W/m2.

Albert Bel Esteller

Enginyer TècnicIndustrial en Electricitat                                                    9
Electrificació Polígon Industrial “Los Campets”                             Memòria Descriptiva

              - El 40% restant són 25.630m2, i com ja s’ha esmentat, degut al Pla
                Urbanístic Municipal de l’Ajuntament d’Alcanar en aquest cas s’aplica la
                normativa per a edificis comercials o d’oficines que tracta de considerar
                100W/m2.

      A la potència total obtinguda segons el Pla Urbanístic Municipal de l’Ajuntament
d’Alcanar se li ha d’aplicar un coeficient d’utilització de la superfície edificable de 0,5
degut a consideracions urbanístiques d’edificabilitat, volum, etc..., es a dir, una superfície
suficient per a poder maniobra sense dificultats alhora de l’edificació de les naus o inclòs
en perspectives de que hi pugui ocórrer algun accident (maniobra de vehicles de grans
dimensions), i com no, segons les característiques particulars del tipus d’indústria que es
pretengui instal·lar a la zona esmentada.

       Potència = Superfície edificable x ITC-BT-10 x Coeficient d’utilització
              - Superfície concentració d’indústries: 38.445m2 -- Potència = 2.403 kW
              - Superfície per a edificis comercials :25.630m2 -- Potència = 1.281,5 kW

       Aplicant un factor de potència de 0.85 ens quedarà el següent:

       POTÈNCIA TOTAL = 2.403 + 1.281,5 = 3.684,3 KW
              - Potència en kVA total = 3.684,3 / 0,85 = 4.334,47 kVA

      A part de realitzar els càlculs a partir de la superfície edificable, tal com s’indica al
Reglament de B.T i al Pla Urbanístic Municipal de l’Ajuntament d’Alcanar, a l’hora de fer
una previsió de potència també tindrem en compte la potència que es podrà necessitar per
a enllumenat exterior, i cal fer esmena que la potència corresponent a l’enllumenat exterior
del polígon determina a partir d’estudis luminotècnics, però que en absència de dades es
pot fer una aproximació estimant 1,5 W/m2 de vial a enllumenar.

       Tenint en compte això i sabent la superfície vial del polígon es pot aplicar el següent:
              - Superfície vial = 18.000 m2

       Previsió de potència per a enllumenat = 18.000x1,5 = 27.000 W = 27 kW

      Una vegada fet el càlcul de les potències que ens afectaran a la previsió de potència,
la previsió de potència que tindrem serà la següent:

        Previsió de potència=Potència total + Previsió de Potència per a enllumenat

       Previsió de potència = 3.684,3 + 27 = 3.711,3 kW

       La previsió de potència en principi és 3.711,3 kW
           - Parts de la instal·lació:

                  Línia aèria de la qual ens abastem.




Albert Bel Esteller

Enginyer TècnicIndustrial en Electricitat                                                   10
Electrificació Polígon Industrial “Los Campets”                             Memòria Descriptiva

    La derivació, es realitzarà des d’una línia de Mitja Tensió que hi passa justament per
damunt del Polígon.

      El fet de que aquesta línia passés en principi per damunt del polígon era un
problema, però es va aplicar la següent solució: Com es pot veure al plànol d’entroncament
amb FECSA per al subministrament del polígon, es realitza un desplaçament de la línia de
M.T. per la part posterior del polígon, sempre esquivant la parcel·la que està més a
l’esquerra del polígon, ja que no es podia construir un polígon per sota mateix d’una línia
de mitja tensió, és per això que es va desplaçar la línia de mitja per l’exterior del polígon i
soterrant-la per a que es poguessin complir les distàncies mínimes de seguretat
determinades en el RAT.

      La línia esmentada que ens subministrarà el Polígon és una línia que ve de l’estació
receptora d’Alcanar i s’anomena “LªRenfe.1” i subministra una part de línia ferroviària que
passa per les localitats de Ulldecona i Alcanar i la cementera d’Alcanar.

     Aquesta línia es va fer per a una cimentera que hi ha al Terme Municipal d’Alcanar
de “CEMEX España”. Aquesta cimentera tenia contractada amb FECSA-ENDESA una
sola entrada, es a dir un sol subministrament, però es van tenir problemes amb el
subministrament esmentat i es va quedar sense electre durant un determinat espai de temps.

      Cal dir que aquestes indústries estan produint les 24 hores del dia i no es poden
permetre parades ja que el ser tan grans de seguida hi ha pèrdues molt elevades, és per això
que es va pensar que es podria fer una nova línia de mitja tensió de 25 kV des de l’estació
receptora d‘Alcanar i així poder disposar de dues entrades per al subministrament de la
cementera.

                  Recepció de la línia de 25 kV.

        Tal com s’indica al Reglament Tècnic de línies elèctriques aèries d’Alta Tensió,
concretament al “Capítol 3-Article 8”, la recepció de la línia es realitzarà mitjançant
empalmes – unió de conductors que assegurin la continuïtat elèctrica i mecànica – tot i que
la connexió a la xarxa no es l’objecte del nostre projecte, quan a una elèctrica s’utilitzen
com a conductors cables, independentment de la seva naturalesa o composició, els
empalmes dels conductors es realitzaran mitjançant peces adequades a la naturalesa,
composició i secció dels conductors (empalmes termorretràctils), d’aquesta forma
realitzarem l’entrada i sortida a la xarxa de M.T. al polígon, deixant així un anell obert per
a poder desplaçar la càrrega sempre que es necessiti. Cal dir que aquests empalmes seran
de disseny i naturalesa tal que evitin els efectes electrolítics, i s’hauran de prendre les
precaucions necessàries per a que les superfícies en contacte no sofreixin oxidacions.

      Complint l’exposat en l’article 8 del reglament esmentat, l’empalme no ha
d’augmentar la resistència elèctrica del conductor, al igual que també hauran de suportar
sense ruptura ni lliscament del cable el 90 per 100 de la càrrega de ruptura del cable
empalmat. Complint el mateix article cal dir també que els empalmes s’efectuaran amb
elements adequats que assegurin la continuïtat de l’alumini ja que han de restituir-se
totalment les característiques mecàniques y elèctriques del conductor.

                  Transformació de la tensió de 25 kV a 380 V:


Albert Bel Esteller

Enginyer TècnicIndustrial en Electricitat                                                   11
Electrificació Polígon Industrial “Los Campets”                              Memòria Descriptiva

       La transformació de M.T a B.T es realitzarà per part dels centres de transformació
ubicats de la forma estudiada i calculada, i on segons s’indica al document bàsic de
Plànols, concretament al Plànol de distribució en mitja Tensió.

       Els centres de transformació esmentats seguiran un criteri de proximitat amb les
parcel·les subministrades per cadascun, de distribució de càrregues i de potències
calculades per a cada zona, i cal dir que aquest criteri alhora de determinar els càlculs anirà
d’acord amb les diferents normatives i reglamentacions aplicables en cada un dels casos.

                  Xarxa de Baixa Tensió

       Per a la xarxa de baixa tensió seguirem les següents directrius:
              - - Línies de distribució en B.T d’alimentació a les parcel·les.
              - - Secció dels conductors escollits.
              - - Proteccions de les línies que formen la xarxa de B.T.

                  Enllumenat del Polígon Industrial:

        Es realitzaran els càlculs lumínics corresponents de les vies que formen el polígon
amb el programa informàtic Calculux. D’acord amb les normatives establertes,
reglamentacions aplicables i ordenances municipals que ens poden afectar, sempre buscant
un estalvi energètic i un respecte pel medi en les solucions adoptades, sense repercutir amb
el rendiment de la instal·lació. Els resultats de l’aplicació del programa informàtic esmentat
es poden consultar en l’annex del present projecte.


8      Justificació del Projecte
        El creixement del poble d’Alcanar a nivell d’habitants ha estat considerable en els
darrers anys d’història. En els últims anys s’ha passat de quasi 7.000 habitants a estar per
damunt de la xifra dels 10.000. Aquest increment ha estat degut a la molta immigració que
han estat patint les Terres de l’Ebre, i en especial tota la zona d’Alcanar, ja que és un dels
pobles on hi ha més activitat agrària de les nostres terres.

      Aquesta activitat es deguda a que al llarg de la història la majoria de la població
(80%) es va bolcar en el cítrics, en concret en la mandarina i en la taronja (el regadiu - ja
que l’emplaçament ho permet -) , i van deixar de banda altres activitats agràries (el secà),
industrials i comercials.

      Aquesta població es va bolcar d’una forma tan intensiva, que la venda de cítrics al
poble d’Alcanar ha arribat límits com per exemple, ser el segon exportador mundial de
mandarines i el primer exportador mundial de vivers (mandariners i tarongers de diverses
classes d’edat baixa per replantar), tot això va comportar un augment molt elevat de la
feina, i conseqüentment de l’economia.

      Però l’aparició dels punts esmentats a continuació ha fet que el sector on visquessin
la majoria del poble estigui en veritables problemes:



Albert Bel Esteller

Enginyer TècnicIndustrial en Electricitat                                                    12
Electrificació Polígon Industrial “Los Campets”                              Memòria Descriptiva

              - Molta immigració, tan de països àrabs com de països de l’est, que han
                col·lapsat el mercat i el treball.
              - Juntament amb la malaltia de “La Tristesa” (els arbres moren) que han patit
                la major part dels arbres.
              - I l’aparició de moltes empreses de diferents sectors del món industrial per
                establir-se al poble, però degut a una mancança de terrenys adequats amb
                facilitats (polígon), feia que aquestes empreses anessin a poblacions veïnes
                que tenien un polígon amb les conseqüents facilitats.
              - Al voltant de 800 joves del poble han d’anar a treballar a diverses empreses
                situades als polígons industrials dels pobles del costat, cosa que fa que el
                jovent del poble hagi d’utilitzar vehicle per anar a treballar.

       Aquests punts ha fet “obrir els ulls” a l’Ajuntament, i ha estat estudiant una
diversificació de l’activitat laboral, ja que s’ha vist que no solament es pot dependre d’una
activitat, ja sigui rural, com comercial o industrial.

      És per això que la forma de diversificar les activitats, és que les empreses que
vinguin des de diferents sectors, tinguin les facilitats corresponents per poder-se establir.
Tot això repercutiria en que es generarien llocs de treball i conseqüentment no es dependria
tan de l’agricultura.

     Degut a aquesta reflexió feta per part de l’administració local, s’ha arribat a la
conclusió que el millor, tan econòmicament com en facilitats per donar un servei més
complet a les empreses, és el de poder centralitzar tot el sòl industrial en un polígon.

      Per a definir la ubicació del polígon s’ha tingut en conte la comunicació de la Ronda
Circumval·lació, recent acabada, que la seva finalitat és el desviar el trànsit de vehicles del
nucli urbà, per a evitar embussos i accidents que tenien alguns vehicles, alguns de grans
dimensions, en passar per carrers petits. I aquesta Ronda juntament amb la carretera de
l’Estació TV-3321 que ens comunica amb Vinaròs (Capital de comarca del Baix Maestrat)
i amb l’autopista A-7 s’aconsegueix una comunicació excel·lent.


9      Posta en marxa i funcionament
     La posta en marxa de Polígon Industrial “Los Campets” es realitzarà efectuant els
següents passos indicats en el següent Diagrama de Gantt:
              - - Permisos.
              - - Legalitzacions.
              - - Instal·lació de castillets de conversió aeri/subterrani.
              - - Obertura de rases de BT i MT.
              - - Instal·lar els Centres de Transformació.
              - - Estesa del cable MT.
              - - Maniobres y connexió a la xarxa de M.T.
              - - Col·locació de les CGP, Caixes de Seccionament.

Albert Bel Esteller

Enginyer TècnicIndustrial en Electricitat                                                    13
Electrificació Polígon Industrial “Los Campets”                          Memòria Descriptiva

              - - Estesa dels conductors de B.T.
              - - Proves d’assaig.
              - - Connexions de B.T.
              - - Maniobres y connexió a xarxa de B.T.

      Un cop realitzades les instal·lacions i amb totes les obres executades, havent fet les
verificacions i proves adients s’establirà, segons el Plec de Condicions Generals, la
recepció provisional, previ pagament d’una part del pressupost, iniciant així el termini de
garantia d’un any després del qual s’efectuarà la recepció de l’obra.




Albert Bel Esteller

Enginyer TècnicIndustrial en Electricitat                                                14
Electrificació Polígon Industrial “Los Campets”                    Memòria Descriptiva


       Diagrama de barres (Diagrama de Gantt)


                                  0 5 10 15 20 25 30 35 40 45 50 55 60 65 70 75 80
    Permisos Oficials
     Legalitzacions.
 Instal·lació de castillets
   Obertura rases BT,
           MT.
      Instal·lar C.T.
 Estesa conductors MT.
  Maniobres i connexió
           M.T.
    Col·locació CGP i
      Seccionament.
 Estesa dels conductors
          de B.T.
       Maniobres i
   Connexions de B.T.
     Proves d’assaig.
 Maniobres i connexió a
         la xarxa


                      85 90 95 100 105 110 115 120 125 130 135 140 145 150 155 160 165
   Permisos
    Oficials
Legalitzacions.
Instal·lació de
   castillets
   Obertura
rases BT, MT.
Instal·lar C.T.
    Estesa
  conductors
     MT.
 Maniobres i
   connexió
     M.T.
  Col·locació
    CGP i
Seccionament.
  Estesa dels
conductors de
     B.T.
 Maniobres i
Connexions de

Albert Bel Esteller

Enginyer TècnicIndustrial en Electricitat                                          15
Electrificació Polígon Industrial “Los Campets”               Memòria Descriptiva

      B.T.
     Proves
    d’assaig.
   Con. Xarxa

                                            170   175   180
        Permisos Oficials
          Legalitzacions.
     Instal·lació de castillets
     Obertura rases BT, MT.
          Instal·lar C.T.
     Estesa conductors MT.
   Maniobres i connexió M.T.
        Col·locació CGP i
          Seccionament.
  Estesa dels conductors de B.T.
   Maniobres i Connexions de
               B.T..
         Proves d’assaig
         Connexió xarxa




Albert Bel Esteller

Enginyer TècnicIndustrial en Electricitat                                     16
Electrificació Polígon Industrial “Los Campets”                             Memòria Descriptiva




10 Anàlisi de solucions
       Connexió a la xarxa de Mitja Tensió

      La connexió del polígon a la xarxa de M.T es farà mitjançant una línia que apropi el
subministrament d’electre justament al punt, on a partir del qual es distribueix en M.T. per
dintre del polígon subministrant els centres de transformació.

     Alhora d’escollir el tipus de línia ens basarem en les característiques pròpies de cada
opció.
              - Línia soterrada

       Les línies soterrades aporten un nivell més alt de seguretat degut a l’aïllament que
comporta està soterrada i aïllada, i és així quan es redueixen en gran quantitat les
actuacions de manteniment correctiu. A banda d’aquest motiu, el de poder soterrar les
línies, també ens aportarà com a avantatge una major llibertat d’actuació en l’espai que
envolta la línia, ja que una vegada, la línia ja estarà soterrada a la superfície es podrà
realitzar qualsevol cosa, sempre tenint en compte que en una determinada profunditat hi
haurà la línia de mitja tensió de la qual ens subministrarem.

       A part de tenir avantatges com els esmentats, també s’han de tenir en compte els
inconvenients alhora d’escollir l’opció que més ens interessi, i en aquest cas com a
desavantatge podem tenir tot el que comporta tan econòmic com laboralment el fet de
realitzar les excavacions amb les maquinàries pertinents, i com no també les avaries, que
tot i que cal dir que en les línies soterrades el risc d’avaries és més baix, en cas de que hi
hagi alguna, també s’han de tenir en compte les excavacions pertinents que s’hauran de
realitzar per a poder localitzar-la, reparar-la i tornar-la a soterrar.

        Tenint en compte aquest inconvenient, la forma de solucionar-ho seria aprofitant
l’entrada-sortida que realitzem en el polígon, i en cas de tenir una avaria en un punt
determinat descarregar la zona afectada i intentar cobrir la resta electrificant-ho per l’altra
banda.

       Línia aèria

       Les línies aèries, com avantatge principal tenen que resulten molt més econòmiques.

      Com a desavantatge, en el cas del nostre projecte, tenim l’obligació en cas de línia
aèria de complir totes les distàncies mínimes de seguretat dictaminades pels reglaments de
B.T i A.T, a banda també, de la col·locació dels suports per a la subjecció de la línia; tot
això s’ha tingut en compte alhora de l’elecció, ja que en el cas d’un polígon industrial, hi
haurà a banda de naus industrials, vehicles de grans dimensions que circularan per les vies
del polígon i ens interessa tenir la major superfície de maniobra possible per als vehicles,
sense tenir en compte suports de la línia, ni la proximitat de la mateixa, per a evitar
possibles accidents.

      Una vegada analitzades les avantatges i desavantatges que es tenien per a cada opció
la solució adoptada ha estat la de la línia soterrada. Ja que en el nostre cas, com la línia de

Albert Bel Esteller

Enginyer TècnicIndustrial en Electricitat                                                   17
Electrificació Polígon Industrial “Los Campets”                            Memòria Descriptiva

Mitja Tensió ens passa directament per sobre del polígon, la connexió ja la farem en un pal
conversor aeri/soterrani al límit del polígon i d’allà es realitzarà el subministrament als
centres de transformació de forma subterrània.

      A l’hora d’escollir la solució adoptada, s’ha tingut en compte la inversió inicial que
s’hauria de fer tan en una opció com en l’altra, la quantitat d’avaries que es produeixen als
dos tipus de línies esmentats, i el risc que es té d’avaries en els dos casos. A banda també
s’ha estudiat que en el cas d’avaria en un o altre cas, les despeses que es poden tenir alhora
de reparar la línia.

       Després d’estudiar les dues opcions s’ha arribat a la conclusió que degut al nivells de
seguretat que són més elevats en el cas de línies soterrades, i degut també a la llibertat
d’actuació en l’espai que envolta la línia, sense deixar de banda el risc d’avaria, que també
en el cas de línia soterrada és menys elevat que en l’altre cas, s’ha escollit la solució de
línia soterrada.

      Cal dir que un altre punt que s’ha tingut en compte ha estat, que la línia soterrada
dóna una major seguretat, i això en el cas del nostre polígon es molt important per que es
vol aconseguir des d’un primer moment un bon funcionament, i una bona seguretat per a
que es redueix-hi al mínim el risc d’avaries, ja que coses que es fan noves com es el nostre
cas interessa que arranquin amb bon peu i molta força.

       Línia Subterrània de Mitja Tensió

       Forma de dimensionar la línia

      Per a realitzar el càlcul per al posterior dimensionat, la línia de mitja tensió tenim
dues opcions:
              - Càlcul preliminar
              - Càlcul de comprovació.

      La primera de les opcions consisteix en escollir la secció del conductor normalitzada
per excés, cal dir que es la corresponent a la major de les calculades pels tres criteris:
màxima caiguda de tensió, màxima intensitat de curtcircuit i màxima intensitat admissible.

      La segona de les opcions consisteix, en que una vegada escollida una
secció, es comprova que la intensitat en règim permanent, la caiguda de
tensió i la intensitat de curtcircuit estan dintre dels valors admissibles.

      Per al nostre projecte hem escollit el segon mètode de càlcul, ja que és
el més usat per a instal·lacions de mitja tensió, a més, les companyies
subministradores, alhora de realitzar l’estesa de la línia subterrània de
mitja tensió, bàsicament es limita a instal·lar cables d’alumini de 150 o 240
mm 2 , i més concretament en els últims temps tan sols s’est enen conductors
d’alumini de 240 mm 2 .




Albert Bel Esteller

Enginyer TècnicIndustrial en Electricitat                                                  18
Electrificació Polígon Industrial “Los Campets”                             Memòria Descriptiva


       Traçat de la Línia Subterrània de Mitja Tensió

      Aquesta línia subterrània de Mitja Tensió farà arribar la tensió de 25 kV que ens
porta la línia aèria que ens arriba de l’Estació Receptora ALCANAR, subministrada per
FECSA des del suport de conversió de línia aèria/soterrada des d’on fem la connexió a la
xarxa fins als centres de transformació, i una vegada passa per tots els CT’s es torna a
connectar a la xarxa MT amb una altra conversió, d’aquesta manera es realitza el circuit
tancat, o dit d’una altra manera l’entrada-sortida al polígon. La forma de connectar els
receptors a la xarxa pot ser en les diferents distribucions que s’esmentaran a continuació:

       Xarxa de distribució en sèrie

       Es considera com a línies en sèrie, la unió del castillet de conversió de línia aèria a
soterrada, amb el primer centre de transformació mitjançant un tram de la línia soterrada, i
la unió d’aquest centre de transformació amb el segon centre de transformació, amb un
altre tram de línia, aquest procés es pot repetir tantes vegades com nombre de centres de
transformació hi hagi al polígon.

      En aquest tipus de distribució tots els receptors es monten en sèrie sobre un circuit,
essent la tensió E, aplicada als extrems, igual a la suma de les tensions necessàries per a fer
funcionar cada receptor o a la suma de les caigudes de tensió originades per dit
funcionament.

      Aquest procediment se sol utilitzar en enllumenats exteriors ja que en aquests,
s’aconsegueixen considerables economies en la instal·lació, tenen l’inconvenient de que al
quedar fora de servei algun receptor per avaria queda tallada la distribució.

       Com a inconvenient principal que ens pot donar aquesta opció es que un defecte en
el primer tram deixa oberta tota la línia i per lo tant sense subministrament, però cal dir que
és la solució més econòmica i el fet de soterrar la línia ens pot donar més seguretat.

       Xarxes en distribució en derivació
              - Xarxes en distribució amb anell:

      Es tracta d’una línia que va del suport de conversió aeri/subterrani fins a la primera
estació transformadora, una altra línia que vagi del suport fins al segon centre de
transformació, i una altra que uneixi els dos centres de transformació. És a dir, tracta d’unir
amb les línies corresponents cada centre de transformació amb els suport aeri/subterrani i
després s’uneixen tots els centres de transformació.

     Aquesta opció com avantatge que té, es que dóna majors recursos al moment de
subministrar l’energia en cas de possibles defectes en algun dels trams de la línia, però
econòmicament suposa un cost econòmic molt alt.

      La veritat, es que molta gent es favorable a connectar-ho en anell, però el fet de que
sigui la solució més cara no proporciona que sigui la millor, tot i que alguns són molt
favorables a aquesta connexió, i a d’altres que no hi estan tan d’acord ja sigui per aspectes
econòmics o bé per sobrecàrregues que es produeixen a conductors per on després que hi



Albert Bel Esteller

Enginyer TècnicIndustrial en Electricitat                                                   19
Electrificació Polígon Industrial “Los Campets”                             Memòria Descriptiva

hagi una fallada o un tall a un tram de línia passi tota la corrent pel mateix conductor
esmentat, tot i que cal dir que tots els càlculs previs estan bastant sobre-dimensionats.

      En aquesta, cada receptor funciona amb independència dels demés. Els receptors
poden funcionar en diferents tensions, ja que la resistència que ofereix el conductor al pas
de la corrent origina una pèrdua de tensió en la línia, en canvi, sempre que la pèrdua de
tensió no excedeixi de certs límits de tensió tolerats, no es produiran anomalies en el
funcionament dels receptors.

       En canvi la forma més comú de distribució és en forma de corrent alterna trifàsica,
connexió en estrella amb neutre que consisteix en un quart fil, el neutre, connectat al centre
de l’estrella. Per raons de seguretat, es posa a terra el neutre de la instal·lació, aconseguint
amb ell que la tensió existent en cada punt no sobrepassi la del transformador o alternador.
Cal dir que generalment s’accepta que la secció del neutre sigui la meitat de la dels demés
fils de fase. La distribució es realitza mitjançant circuits principals i secundaris.

      Els circuits seran anells obertes, els principals van recolzades als centres de
transformació i els secundaris (anells o xarxes radials) parteixen del pal convertidor
d’aeri/subterrani fins als centres de transformació.(en el nostre cas), i cal fer esmena que
aquest centres de transformació es posen molt a prop els centres de consum.

      S’ha de dir que a cada estació transformadora, el cable s’interromp per a donar pas a
uns barres col·lectores, de les quals s’alimenten els diversos transformadors a traves
d’interruptors i seccionadors; això permet, en qualsevol moment, desconnectar el sector
que interessa, tenint en compte que mai s’haurà de derivar la sortida del C.T. en forma de
T; sempre es farà amb seccionament d’entrada i sortida.

       Formant un o diversos anells, s’obtindrà una major seguretat en el servei de
l’explotació, i en el cas de que es produeix-hi una avaria en algun tram del circuit tancat,
desconnectant els seccionadors immediats al tros avariat quedarà aquest fora de servei,
però els transformadors seguiran en funcionament, alimentat per l’altre extrem, ja que en
aquest tipus de xarxa ens assegurem la realimentació en tota el circuit, assegurant d’aquest
manera la continuïtat en el subministrament.
              - Xarxes en distribució radial:

     Una altra distribució utilitzada de vegades es la distribució de forma radial, que no
impedeix, que a la seva vegada es formin xarxes tancades.

      Tracta d’unir el traçat d’una línia per a cada centre de transformació amb un origen
comú per a cada traçat, com és el castillet des d’on es realitzarà la conversió
aèria/subterrània. Econòmicament parlant representa un increment del cost econòmic en
respecte a l’anterior opció, ja que un part de la línia queda doblada.

       Solució adoptada:

       La solució adoptada per a la línia de mitja tensió soterrada serà la de traçar una línia
que des que connecta en el pal conversor, passi per tots els CT’s connectats en aquesta, i
torni a tancar el circuit connectant amb el segon pal conversor que ens unirà una altra
vegada a la línia de Mitja Renfe.1. Amb aquest traçat aconseguirem realitzar un circuit en
sèrie entre els diversos CT’s del polígon, però a la vegada unim en paral·lel tota la

Albert Bel Esteller

Enginyer TècnicIndustrial en Electricitat                                                    20
Electrificació Polígon Industrial “Los Campets”                               Memòria Descriptiva

instal·lació de l’interior del polígon amb la línia principal de Mitja Tensió anomenada
Renfe.1.

       Aquest mètode utilitzat per a la unió de la xarxa subterrània als diferents centres de
transformació, és un sistema de distribució oberta, ja que s’han de tenir en compte
possibles ampliacions, ja sigui en ampliacions de demanda de potència dins del mateix
polígon marcades per activitats especials que es puguin realitzar en alguna de les
parcel·les, o bé una ampliació de la superfície del polígon amb la conseqüent electrificació
de la zona esmentada, i així aconseguir amb aquest sistema que es pugui cobrir amb
relativa facilitat un augment en la demanda de potència.

       Aquesta solució és la més econòmica - i en una inversió inicial tan gran s’ha de tenir
molt en compte aquest aspecte - i cal dir que aquesta opció l’hem escollit per la seguretat
que ens dona el fet que la línia estigui soterrada, el fet de que estigués connectada tota la
instal·lació en sèrie feia que una avaria provoqués la fallida a tot el polígon, però el fet de
torna a connectar una altra vegada a la línia, aquest problema desapareix perquè en
qualsevol moment es pot realitzar un moviment de càrregues i mantenir el subministrament
de l’electricitat en la majoria dels punts del polígon.

       També cal fer esmena que després d’haver edificat tot el polígon s’estudiarà en cas
que quedin recursos econòmics, si es podria tancar tots els centres de transformació en
anell, d’aquesta forma es podria fer front a possibles avaries aïllant amb molta facilitat el
tram de línia afectat i a la vegada donar continuïtat al servei, sense perill de sobrecàrregues
o corrents de retorn d’altres circuits.

       Tipus de conductors de la línia de Mitja Tensió

      - Conductors unipolars: Constituït per una sola ànima, que quasi sempre es de secció
circular, i cal fer esmena que els aïllaments i la protecció són similars al del conductor
multipolar.
              - - Longituds de fabricació molt més grans, reduint així el número de
                possibles empalmes i connexions.
              - - Permeten adoptar un radi de curvatura menor.
              - - Molta facilitat per realitzar les connexions i les derivacions.
              - - Més manejables al moment d’estendre’ls a les rases.
              - - Tenen l’inconvenient que el seu cost econòmic és major.
              - - Admeten més intensitat de règim de càrrega permanent.

       - Conductors multipolars:
              - - Per la seva constitució més rígida resulta més dificultosa la seva extensió i
                curvatura.
              - - La disposició dels diferents conductors de cada pol del cable multipolar i
                l’efecte que fan uns sobre els altres, fa que sigui necessària una secció major
                respecte als conductors unipolars.
              - - El connexionat i les terminacions resulten més dificultoses degut al
                nombre de pols del cable.

Albert Bel Esteller

Enginyer TècnicIndustrial en Electricitat                                                     21
Electrificació Polígon Industrial “Los Campets”                            Memòria Descriptiva

       Solució adoptada:

      Per a realitzar l’estesa de la línia de mitja tensió pel traçat esmentat s’utilitzaran
conductors unipolars que permetran una major facilitat per manejar-los i per connectar-
los. El cable a utilitzar serà d’alumini amb camp radial ja que tenen un menor radi de
corbatura , més manejables en la seva estesa, faciliten l’execució d’empalmes i terminals i
una longitud de fabricació majors reduint el nombre d’empalmes - també cal dir que de
camp no radial, només s’utilitza fins a tensions d’uns 15 kV- utilitzarem d’alumini per
resultar més lleugers tot i que com a inconvenient suposarà la necessitat d’una secció
superior.

       Aïllament dels conductors

       - Aïllament de paper impregnat
              - - Excel·lents característiques i garantia.
              - - Màxima seguretat.
              - - Cost econòmic bastant elevat.
              - - S’utilitzen en instal·lacions on es requereix màxima seguretat de
                funcionament.

       - Policlorur de vinil
              - - Rigidesa dielèctrica bastant elevada.
              - - Resistència a la sobrecàrrega i curtcircuit.
              - - Gran resistència mecànica.
              - - Temperatura de treball entre 70º i 80ºC.
              - - No absorbeix l’aigua.
              - - Resisteix al agents químics.
              - - Utilització vàlida fina 20 kV.

       - Polietilè reticulat
              - - Excel·lent comportament a les sobrecàrregues i curtcircuits.
              - - Elevada resistència mecànica.
              - - Resistent a la humitat i als agents químics.
              - - Temperatura de treball entre 90º i 100ºC.

       Solució adoptada

      Els cables unipolars seleccionats tindran un aïllament de polietilè reticulat i del
tipus UNE DHV 18/30 kV ja que tenen una millor capacitat tèrmica i una gran resistència
mecànica i gran resistència a la humitat.




Albert Bel Esteller

Enginyer TècnicIndustrial en Electricitat                                                  22
Electrificació Polígon Industrial “Los Campets”                            Memòria Descriptiva


       Centres de Transformació.

       Per fer efectiu el subministrament de la potència demandada pel polígon i per a poder
realitzar la transformació des de mitja tensió a una tensió òptima per a poder treballar,
s’adoptarà la instal·lació de sis centres de transformació de 800 kVA cada un, on més
endavant es podrà observar que cada un dels C.T constaran de dos transformadors de 400
kVA.

     En la memòria de càlcul es podrà observar quins mètodes s’han utilitzat per a
determinar el nombre de centres de transformació i la potència de cadascú.

      A banda també en la memòria de càlcul també es pot veure la previsió de càrrega
portarà cada centre de transformació i quines parcel·les subministraran cadascun.

       Emplaçament

       Els diferents centres de transformació es col·locaran de manera que la seva
localització estigui més o menys al centre d’equilibri dels diversos punts de consum que es
preestabliran prèviament, a partir d’una proporció de les superfícies de les diverses
parcel·les i la potència que consumiran. S’ha intentat alhora d’escollir els subministraments
de cada centre de transformació que tots tinguin la mateixa superfície a subministrar en la
suma de les parcel·les que subministren cadascú.

      Tanmateix la localització exacta dels centres de transformació es pot veure en el
plànol de distribució en Mitja Tensió.

      A part d’això s’intentarà que estiguin al centre pel motiu anterior, i per a afavorir la
xarxa de distribució en baixa tensió a cada parcel·la i així intentar que les caigudes de
tensió siguin mínimes.

       Transformadors

       La solució adoptada és la d’instal·lar dos transformadors de 400 kVA 25/0,4 kV en
cada centre de transformació. En el nostre cas tindrem 12 transformadors ja que tindrem 6
centres de transformació distribuïts arreu del polígon. El repartiment de la càrrega es farà
el més proporcional que es pugui tal com s’ha pogut avançar en l’anterior apartat i els sis
centres de transformació permetran que en cas d’alguna avaria no quedin afectades la
totalitat de les parcel·les.

       Edifici del Centre de Transformació

     Alhora d’escollir quin tipus de centres de transformació utilitzarem en el nostre cas,
tenim dues opcions:
              - Obra civil
              - Pre-fabricat

      La solució adoptada en el nostre cas, és la d’instal·lar centres de transformació
prefabricats de la marca Ormazabal.


Albert Bel Esteller

Enginyer TècnicIndustrial en Electricitat                                                  23
Electrificació Polígon Industrial “Los Campets”                            Memòria Descriptiva

       L’elecció ha anat lligada als motius econòmics que ens dóna els centres prefabricats i
la rapidesa en que es poden instal·lar. A part també cal dir que el nostre polígon està
completament fora del casc urbà i conseqüentment fora de les poblacions es poden
instal·lar centres prefabricats perfectament, en el cas que tinguéssim d’instal·lar un centre
de transformació dintre d’un casc urbà llavors és indispensable que el centre de
transformació sigui d’obra civil.

       Els centres de transformació prefabricats esmenats, estaran formats per diferents
elements prefabricats de formigó, que s’uneixen en obra per construir un edifici. Tal com
es podrà detallar en l’apartat de centres de transformació de descripció general per la seva
estructura modular aquests centres de transformació poden ser transportats per a la seva
instal·lació i permeten qualsevol configuració, incloent el nombre de portes d’accés i
transformadors que es requereixen en cada lloc.

      En el seu interior s’incorporaran tots els components elèctrics: aparamenta de mitja
tensió amb aïllament i tall, quadres de baixa tensió, transformadors, dispositius de control i
interconnexions entre els diferents elements.

        Els centres de transformació utilitzats en el nostre polígon son centres de
transformació de la marca ORMAZABAL. Dins de la marca esmentada n’hi ha de diverses
classes i referències, però en el nostre cas serà un PF 203-303.

       Xarxa de Distribució de Baixa Tensió.

     Per a realitzar l’estesa de les línies subterrànies de baixa tensió, tenim dues opcions,
com es la distribució oberta i la distribució tancada.

        En el cas de una distribució oberta les línies que surten de les estacions
transformadores, finalitzen en els subministres corresponents amb total independència,
d’una línia a una altra. En canvi quan realitzem una distribució tancada, cada
subministrament es alimentat per més d’una línia per a d’aquesta forma assegurar el
subministrament en tot moment.

       Si fem la comparació entre les dues opcions i analitzem les avantatges que tindríem
en cada cas, en la distribució oberta tenim l’avantatge que és molt més simple i econòmica.
Mentre que en la distribució tancada tot i tenir un major cost econòmic i temporal té
l’avantatja com ja s’ha dit prèviament que assegura la continuïtat del subministrament als
abonats en cas de que hi hagués alguna avaria.

        Cal explicar que normalment l’opció de distribució tancada s’utilitza en zones
urbanes, on es necessita un subministrament continuïtat, però amb el que es el nostre cas
amb una distribució oberta tindrem suficient, ja que al ser una inversió inicial tan gran
s’intenta poder estalviar amb el que més certesa tinguem que ens pugui rendir amb un
nivell més alt.

        Les línies de distribució que s’utilitzaran sortiran de cada centre de transformació
per a subministrar cada una de les parcel·les que han estat repartides per a cada un. Cal dir
que el repartiment de les parcel·les s’ha fet de forma que s’ha mirat la previsió de potència
de cada una, i els centres de transformació tal com estan situats en el polígon, de forma que
els trams no siguessin molt llargs i que més o menys tots els centres de transformació

Albert Bel Esteller

Enginyer TècnicIndustrial en Electricitat                                                  24
Electrificació Polígon Industrial “Los Campets”                           Memòria Descriptiva

estiguessin carregats de la mateixa forma, ja que com es pot veure en el plànol de
superfícies de les parcel·les no totes les parcel·les tenen la mateixa superfície, i
conseqüentment no tindran la mateixa potència.

      El tipus de conductors que s’adoptaran per al subministrament en BT seran
conductors unipolars d’alumini amb aïllant de polietilè reticulat tipus UNE RV 0,6/1kV.
Cada línia constarà de tres conductors, un per fase, més un neutre i les seccions
corresponents a cada conductor es determinaran a la Memòria de Càlcul del present
projecte, i en la forma de calcular-les es tindrà en compte la caiguda de tensió i la
intensitat màxima admissible.

      Per fer una mica d’esmena de les solucions que s’adoptaran, al que es refereix a la
protecció contra sobreintensitats de cada una de les línies de distribució de B.T s’adoptaran
fusibles adequats a la respectiva intensitat màxima admissible de cadascun dels conductors
de cada línia, i cal dir que aquests fusibles aniran instal·lats al quadre de baixa tensió de
cada centre de transformació, concretament als sòcols dels quadre de baixa de cada
transformador.

       Enllumenat exterior

      Pel que respecta a l’enllumenat exterior, tal com indica que s’ha de nomenar el nou
Reglament Electrotècnic per a Baixa Tensió aprovat en el Real Decreto 842/2002 del 2
d’agost del 2002, es dotarà el polígon d’una xarxa d’enllumenat distribuïda en tots els seus
carrers. I la instal·lació complirà amb els nivells d’il·luminació establerts en normatives
luminotècniques fetes per experiència, sempre sense deixa de banda el respecte pel medi i
conseqüentment per ala contaminació ambiental.

       També cal explicar que la il·luminació del polígon en aquest projecte es realitzarà
mitjançant el programa informàtic CALCULUX, de la marca Philips.

       La instal·lació que s’utilitzarà per a la xarxa d’enllumenat serà una instal·lació de
més d’una línia, ja que s’intentarà repartir les diverses zones del polígon amb els diversos
centres de transformació repartits també pel mateix. És a dir s’intentarà aprofitar la
proximitat dels centres de transformació per a repartir-se les diverses zones del polígon
amb la respectiva potència.

       Làmpades

      Per a l’elecció de les làmpades utilitzades en el nostre polígon s’han tingut en conte
les següents:

              - Làmpades de vapor de mercuri d’alta pressió:

      S’obté un índex de reproducció cromàtica alt, el seu rendiment és de 40 a 60 lm/W,
la vida útil és de 10000 hores.
              - Làmpades de vapor de sodi d’alta pressió:

    S’obté un índex de reproducció cromàtica baix, el seu rendiment és de 80 a 120
lm/W, la vida útil és de 12000 hores.

Albert Bel Esteller

Enginyer TècnicIndustrial en Electricitat                                                 25
Electrificació Polígon Industrial “Los Campets”                         Memòria Descriptiva

       Solució adoptada:

       Tenint en compte les característiques tècniques de cada tipus de làmpades, i
considerant que no es necessària una bona reproducció del color mentre s’obtingui un bon
grau d’il·luminació, i damunt si tenim en compte que en un polígon industrial per les nits
l’activitat es molt baixa, s’adopten les làmpades de vapor de sodi per aconseguir un millor
rendiment i duració.




Albert Bel Esteller

Enginyer TècnicIndustrial en Electricitat                                               26
Electrificació Polígon Industrial “Los Campets”                               Memòria Descriptiva



11 Descripció general
11.1 Línia Subterrània de Mitja Tensió

11.1.1 Objecte del projecte

       L’objecte de la línia subterrània de Mitja Tensió serà el de subministrar energia
elèctrica als centres de transformació que estan distribuïts per tot el polígon, es a dir portar
l’electricitat des del pal de conversió des d’on entroncarem fins als diversos centres de
transformació esmentats.

11.1.2           Justificació

       El motius de fer la línia subterrània, tot i tenir un cost més elevat, i no realitzar-ho en
línia aèria, són per motius de seguretat i constructius del polígon, ja que es va estudiar la
possibilitat de poder subministrar l’electricitat en aeri, però la vam desestimar per raons de
seguretat, ja que per dintre del polígon es tindran que construir naus industrials, hauran de
transitar vehicles de grans dimensions, col·locar bàculs per a l’enllumenat i altres aspectes
que poden fer que la línia aèria sigui menys segura que la subterrània en respecte a
l’entorn que l’envoltaria i a banda també s’ha de dir que el polígon és una zona de pública
concurrència.

        El fet de que la línia soterrada ens doni certes garanties de seguretat, pel fet d’estar
aïllada respecte a tot el que l’envolta, i no influeixi per a res amb el del voltant, fa que
haguéssim escollit soterrar la línia. Encara que cal dir que a banda d’aquests motius
esmentats, el fet que avui en dia s’intenti soterrar totes les línies que es pugui, també ha
estat un punt que ha influït.

11.1.3 Característiques de la Línia Subterrània.

       La línia subterrània de Mitja Tensió tindrà una longitud total de 1200 metres, ja que
es té en compte que es farà entrada/sortida sobre la línia que derivarem. Així doncs tal com
s’indica al plànol hi haurà trams de 2 circuits i trams d’un (entrada i sortida), ja que unirem
tots el transformadors i tornarem a sortir a la línia.

       La derivació de la línia es farà en una conversió que es pot veure en tot detall al
plànol de pal conversor, la derivació en conversió es realitza a través d’un ferrament per a
tres terminals de les mateixes característiques que els cables subterranis. En aquest mateix
ferratge s’instal·laran les autovàlvules connectades amb el terra. Al que és la descripció de
la línia de mitja es farà una descripció més detallada i més clara de tots el elements que
formen aquesta línia.

11.1.4 Descripció de la línia de Mitja Tensió

11.1.4.1 Derivació i Conversió

       La línia subterrània Mitja Tensió, derivarà del recolzament indicat al plànol de
distribució en Mitja Tensió i tindrà una longitud de 1.200 m.


Albert Bel Esteller

Enginyer TècnicIndustrial en Electricitat                                                     27
Electrificació Polígon Industrial “Los Campets”                            Memòria Descriptiva

      Estarà formada per tres conductors d’aïllament sec 18/30 kV i conductor d’alumini
de 240 mm² de secció (un per fase). Una mica més avall de la creueta i a una altura
prudent del castillet, s’instal·larà un ferratge per quatre conjunts terminals de les mateixes
característiques que el cable subterrani i que servirà també com a recolzament per les
electrovàlvules que seran tres en total, una per fase.

       La baixada dels cables subterranis es farà al llarg de l’estructura del suport
subjectant-los amb brides, i per a la seva protecció des d’una alçada de 3 m per sobre el
nivell del terra, es protegirà amb un tub d’acer galvanitzat. En les terminals de connexió de
la línia aèria subterrània, es trauran les malles dels cables de MT i es connectaran a terra,
així com les malles dels terminals situats en el CT.

11.1.4.2 Traçat de la xarxa subterrània de Mitja Tensió

      El traçat de la xarxa MT transcorrerà fins als centres de transformació tal com
s’indica al plànol de distribució en Mitja Tensió. La longitud de la línia serà de uns 1200 m
aproximadament, i cal dir que el traçat passarà per baix de les voreres i de la calçada, i per
lo tant es tindran que realitzar a banda de les rases corresponents per a cada cas, seguir els
permisos administratius corresponents tal y com s’indica al plec de condicions
administratives. Per a realitzar les rases s’haurà de sol·licitar permisos oficials municipals
de l’Ajuntament d’Alcanar per a obertura de rases.

11.1.4.3 Conductors

       Tipus Cable de MT fins 25 kV
              - Material Alumini
              - Secció 240 mm2
              - Designació Cable DHV
              - Nivell d’aïllament 18 / 30 kV
              - Coberta exterior PVC color vermell
              - Intensitat admissible 410 A
              - Espessor aïllant 41,5 mm
              - Pes aproximat 2 kg / m

        L’esforç màxim de tracció que pot suportar un cable unipolar d’alumini de MT,
l’utilitzat en el nostre projecte, és de 3 daN/mm2, i en cap cas l’esforç total al cable podrà
superar els 2500 daN. Per a realitzar l’estesa dels conductors a les corbes es col·locaran
varies rodets, evitant d’aquesta forma que el cable sofreixi esforços de tracció, la màxima
tracció admissible en trams de corbes és 450 x R (daN), essent R el radi de corbatura del
cable.




Albert Bel Esteller

Enginyer TècnicIndustrial en Electricitat                                                  28
Electrificació Polígon Industrial “Los Campets”                               Memòria Descriptiva


11.1.4.4 Proteccions de la línia.

       Proteccions contra sobretensions

      Es realitzarà mitjançant les autovàlvules col·locades en el recolzament de conversió
aeri soterrat. S’instal·laran tres autovàlvules, una per cada fase, connectades cada una entre
la seva fase i el terra.

       Característiques de les electrovàlvules:
               - Model EV 21.
               - Tensió nominal 21 kV.
               - Corrent nominal de descàrrega 5 kA.
               - Tensió mínima de cebat a 50 Hz 38 kV.
               - Tensió cebat ona plana 1,2/50ms 76 kV (cresta).
               - Alçada 460 mm.
               - Pes 6 kg.

       Proteccions contra sobreintensitats

      Tant la línia aèria com la subterrània estan protegides contra sobreintensitats per les
proteccions existents de la companyia.

11.1.4.5 Rases i estesa dels conductors

       Rases

     L’obertura de la rasa serà realitzada mitjançant maquinària pesada (retroexcavadora)
o a ma quan sigui necessari. Els barems per a que es faci a mà o en maquinària, es el
següent:
               - Fins a 5 metres es realitzen les rases a mà.
               - Entre 5 i 15 metres es realitzaran rases mixtes, es a dir a maquinària i a mà.
               - Més de 15 metres es realitzaran totes les rases amb maquinària pesada.

      Per lo tant en el nostre polígon com s’han deexcavar més de 15m de rasa es realitzarà
tot en màquina.

       Les rases es realitzaran seguint els criteris establerts per la companyia distribuïdora
d’electricitat. Els conductors passaran per les voreres y els creuaments dels carrers es
realitzarà sota tub formigonat perpendiculars a la calçada. Als plànol de les rases es pot
veure en més detall com seran les rases depenent de per on passi per dintre del polígon.

       Entrant amb més detall amb el que seran aspectes més constructius de les rases, de
les tipus de rases, i de l’estesa dels conductors, pel que fa a les corbes que es tingui que
realitzar al conductor estaran sempre d’acord amb el radi de corbatura mínim que admetrà
cada conductor,


Albert Bel Esteller

Enginyer TècnicIndustrial en Electricitat                                                     29
Electrificació Polígon Industrial “Los Campets”                             Memòria Descriptiva

       El fons de les rases haurà d’estar en terreny ferm pera evitar possibles deterioraments
de la rasa i dels conductors degut als esforços d’estirament dels cables.

       Es procurarà deixar, un pas de 0,50 m. entre les terres extretes i les rases amb la
finalitat de facilitar la circulació del personal de l’obra i evitar la caiguda o bé del mateix
personal, o inclús una altra vegada de la mateixa terra extreta anteriorment.

      A les rases que faran el creuament dels carrers o calçades, s’instal·laran tubs per a la
conducció i seguretat dels conductors, i cal dir que sempre es deixarà un tub lliure per a
possible ampliacions o avaries de la línia de MT.

       Els tubs seran de formigó, amb un diàmetre exterior de 160 mm i un diàmetre
interior de 135 mm. Com ja s’ha afirmat, els tubs es posen sempre als creuaments de
calçades i de carrers per a guardar els conductors de la compressió que provoquen els
vehicles que passen par damunt, i es per això que es pot dir que la resistència a la
compressió que ens donen aquests tubs és molt fiable.

      A les rases que s’hauran de col·locar els conductes tubulars hauran d’estar obertes en
la seva totalitat per a poder donar una mica de pendent, i així poder evitar l’acumulació
d’aigua en l’interior dels tubs. Cal apuntar a més que quan la longitud dels tubs sigui
superior a 100 m i als canvis de direcció amb angles superiors de 60º s’instal·laran arquetes
de registre amb la finalitat de no sotmetre als conductors a un excés de d’esforços de
tracció i conseqüentment facilitar els posteriors treballs d’estesa de conductors.

      El bloqueig dels tubs es realitzarà amb formigó de resistència H-100 quan provingui
de la planta on es realitza la mescla, o amb una dosificació del ciment de 200kg/m3 quan
es realitzi a peu d’obra. A banda s’haurà de tenir en compte alhora d’escampar el formigó
esmentat de que no s’introdueixi dintre els tubs. I en cas de que ens hagi entrat una mica de
formigó o qualsevol altra cosa procedirem a la neteja de l’interior dels tubs fent passar una
esfera metàl·lica de diàmetre inferior al del tub, amb moviment de vaivé, i després per
acabar-ho de netejar es passa una bossa de draps per a netejar els residus que puguin
quedar.

      La distància mínima a mantenir entre conductors de MT i BT pel que fa a les rases
amb conductes tubulars serà de 0,25 m, la distància del punt de creuament als empalmes
serà d’1 m, i en el cas que no es puguin respectar aquestes distàncies, el conductor que
s’estengui últim es disposarà separat mitjançant divisions d’adequada resistència mecànica.
Segons una resolució de la Generalitat de Catalunya (DOG nº 1649 del 25.09.92) aquesta
protecció es podria fer amb totxos massissos de 290 x 140 x 40 mm amb una capa d’arena
a cada costat de 20mm com a mínim.

      A banda d’aquests, en el nostre projecte no es preveuen altres tipus de creuament i/o
paral·lelismes ja que, al ser una àrea rústica i deshabitada no existeix cap altre servei en la
zona.

      Cal dir que en el nostre cas no realitzarem cates de detecció d’altres serveis existents
subterrànies, ja que el Polígon Industrial “Los Campets”, es realitzarà íntegrament a partir
d’un projecte de construcció de tot el polígon amb tots el seus serveis i construccions, a
banda d’afirmar aquesta qüestió un altre punt en el qual ens hem basat per a no realitzar
cates al terra es perquè els terrenys on està previst realitzar el polígon són uns terrenys

Albert Bel Esteller

Enginyer TècnicIndustrial en Electricitat                                                   30
Electrificació Polígon Industrial “Los Campets”                               Memòria Descriptiva

totalment rurals on es produeixen cítrics, i es per aquesta raó que no serà necessari realitzar
les cates.

      Quan l’estesa s’efectuï sota tub i als canvis de sentit, serà necessària la construcció
d’arquetes de registre cada 100 m, ja que cal fer esmena que la funcionalitat de les arquetes
de registre es facilitar l’estesa dels conductors.

      Les arquetes seran prefabricades amb unes dimensions de 115x115 cm y una altura
de 82 cm, les quals una vegada col·locades s’ompliran amb 40 cm d’arena amb la finalitat
d’esmortir i suavitzar les vibracions que es puguin transmetre desde l’exterior. Damunt de
la capa d’arena s’omplirà amb terra cribada compactada fins a l’altura que es precisi
d’acord amb l’acabat superficial de la rasa.

      Les rases han de ser el suficientment amplies i amb una mica d’inclinació cap als pus
de recollida. Per a la confecció d’empalmes es seguirà els procediments establerts pels
fabricants i homologats per l’empresa distribuïdora i subministradora.

      El traçat de les línies serà el més rectilini possible, paral·lel en tota la seva longitud a
voreres o façanes dels edificis, sempre intentar guardar la integritat de les cementacions de
voreres i façanes. I alhora de marcar el traçat de les rases es tindrà en compte el radi mínim
de corbatura que s’ha de respectar als canvis de direcció. El radi de corbatura d’un cable de
MT ha de ser superior a 30 vegades el seu diàmetre durant l’estesa y a 15 vegades el seu
diàmetre una vegada instal·lat

       Estesa de conductors

      L’estesa dels conductors cal dir que no es una tasca fàcil, i inclòs és pot afirmar que
és l’operació més difícil en la instal·lació de qualsevol línia subterrània, ja que es poden
produir danys ja sigui als conductors o inclòs en alguns dels tubs que no estaven
perfectament nets o ben instal·lats, és per aquests motius que l’estesa dels conductors i la
protecció s’efectuarà sempre davant de l’obra.

      Abans d’iniciar l’estesa dels conductors s’estudiarà quin és el lloc més adequat per a
col·locar la bobina. Després, la extracció dels cables es realitzarà fent rotar la bobina i
estirant del cable a la part superior. L’entrada del cable a la rasa serà mitjançant una
pendent suau i una vegada ja estigui estès tot el cable a l’interior de la rasa, aquest només
podrà ser desplaçat lateralment i a mà.

      Com és el cas d’una línia de Mitja Tensió els cables monofàsics es disposaran en
forma de triangle equilàter per a evitar possibles desequilibris en les fases. Els cables es
subjectaran amb cinta aïllant cada 1,5 m per a evitar que es puguin moure degut algun tipus
d’esforç elctrodinàmic generats per un curtcircuit.

       Pel que fa a l’estesa dels conductors als tubs, el primer que tindrem en compte és
que es col·locarà un circuit per cada tub per a reduir la reactància,

       Tot el que implica l’estesa de conductors als tubs, com és el cas de rases que
s’utilitzen com ja em dit en creuaments de calçada i carrers, es el següent, abans d’iniciar
la instal·lació del cable que s’ha de netejar el tub com ja s’ha comentat en anterioritat,
durant l’estesa s’ha de protegir el cable de les boques del tub per evitar danys en la coberta,

Albert Bel Esteller

Enginyer TècnicIndustrial en Electricitat                                                     31
Electrificació Polígon Industrial “Los Campets”                            Memòria Descriptiva

col·locant un rodet a l’entrada i un munt d’arena a la sortida, de forma que s’obligui al
cable a sortir per la part mitja sense recolzar-se als extrems del tub. Una vegada fet això es
tindran que tapar les boques dels tubs per a evitar l’entrada de gasos i animals.

11.1.4.6 Reompliment i compactament de les rases

       Si alhora d’efectuar l’excavació s’observa que la terra no es el suficientment bona
com per a tornar-la a compactar, ja sigui perquè conté deixalles, o té massa pedres,...etc no
s’utilitzarà aquesta terra i es farà el reompliment amb una altra terra de major qualitat.

       El reompliment de les rases es realitzarà per capes successives, de 0,15 m d’espessor
prèviament compactades per a que el terreny quedi el suficientment compacte i ferm. La
protecció dels cables es realitzarà mitjançant plaques de polietilè, per damunt d’aquestes
plaques y a 0,20 m com a mínim es col·locarà una cinta de color groc que advertirà de
l’existència de cables elèctrics d’acord amb la RU 0205.

11.2 Centres de Transformació

11.2.1 Introducció

       Els centres de transformació seran de la marca ORMAZABAL, del tipus prefabricat
amb pannells composats per formigó armat vibrat i amb acabats de poliuretà de color blanc
a les parets i de color marró a les portes i teulada.

      Els Centres de transformació PF estan formats per diferents elements prefabricats de
formigó que s’acoblen en obra per a construir un edifici, on dintre el seu interior
s’incorporaran tots els components elèctrics: des de la Mitja Tensió fins al quadres de
Baixa Tensió, incloent els transformadors, dispositius de control i interconnexions entre els
diversos elements.

      Per la seva estructura modular, aquests tipus de Centres de Transformació poden ser
fàcilment transportats per a ser instal·lats en llocs de difícil accés, i permeten realitzar
l’execució de qualsevol configuració de Centre de Transformació, incloent el numero de
portes d’accés i transformadors que es requereixin en cada aplicació.

      L’entrada al centre es realitzarà a través d’una porta frontal que dóna accés a la zona
de l’aparamenta on es troben les cel·les d’alta tensió, els quadres de baixa tensió i elements
de control del centre. Cada transformador té una porta pròpia que permet la seva
introducció i l’extracció del centre o l’accés per realitzar manteniments.

       Els centres de transformació objecte del present projecte serà del tipus interior,
utilitzant per al seu aparellament cel·les prefabricades sota un envolvent metàl·lic segon
Norma UNE-20.099.

      L’escomesa als Centres de Transformació serà subterrània, s’alimentarà de la xarxa
de Mitja Tensió subterrània de la qual ens subministrarem, el subministrament s’efectuarà
a una tensió de servei de 25 kV i una freqüència de 50 Hz, essent la Companyia Elèctrica
subministradora FECSA- ENDESA.




Albert Bel Esteller

Enginyer TècnicIndustrial en Electricitat                                                  32
Electrificació Polígon Industrial “Los Campets”                           Memòria Descriptiva

11.2.2 Objecte

      Els Centres de Transformació realitzaran la transformació de 25 kV a 0,4 kV, per a
poder donar subministrament en baixa tensió a totes les parcel·les, ja que com més
endavant s’explicarà amb més detall, els Centres de Transformació s’ubicaran de forma
que quedin ben distribuïts per tot el polígon. Els Centres de Transformació tindran una
potència de 800 kVA repartits en dos transformadors de 400 kVA. Com es pot veure a la
previsió de potència de l’apartat de Descripció del Polígon Industrial, es considerarà que la
potència que ens podran donar els centres de transformació, serà suficient per a poder
garantir tots els serveis de totes les parcel·les que formen el polígon

11.2.3 Emplaçament

      Els sis centres de transformació es col·locaran de manera que la seva localització
estigui al centre d’equilibri dels diversos punts de consum que es preestabliran prèviament.
Aquests punts de consum es preestabliran a partir d’una proporció de les superfícies de les
diverses parcel·les i la potència que consumiran. S’ha intentat alhora d’escollir els
subministraments de cada centre de transformació que tots tinguin la mateixa superfície a
subministrar en la suma de les parcel·les que subministren cadascú, per a d’aquesta forma
aconseguir que els centres de transformació estiguin tots carregats de la mateixa forma, o si
més no s’ha intentat.

      Tanmateix la localització exacta dels centres de transformació es pot veure en els
diferents plànols de distribució, ja sigui en Baixa com en Mitja.

11.2.4 Centres de Transformació prefabricat adoptats

       Com ja s’ha avançat anteriorment a l’anàlisi de solucions, la solució escollida ha
estat la de Centres de Transformació prefabricat PF-203/303 pels molts avantatges que té,
facilitat per a la instal·lació: Tant la construcció com el muntatge i equipament interior es
poden realitzar íntegrament a la fàbrica, garantint , així, una qualitat uniforme i reduint
considerablement els treballs d’obra civil i muntatge en el punt de la instal·lació.

     Aquests Centres de Transformació tenen un disseny que permet la instal·lació tant en
zones de caràcter industrial com en entorns urbans.

     Els centre de transformació utilitzat serà del tipus UNIBLOCK de la marca
ORMAZABAL model PF-203 / 303 amb capacitat per encabir-hi dos transformadors de
1000kVA com a màxim, quatre quadres B.T i espai per quatre cel·les amb la corresponent
aparamenta de M.T.

      La qualitat de les diferents casetes ha estat reconeguda per la Comissió de Qualitat
UNESA en els centres de formigó UNIBLOCK pels seus excel·lents resultats obtinguts en
els assajos realitzats segons la RU 1303 A ( Centres de transformació prefabricats de
formigó ).

11.2.5 Distribució interior dels Centres de Transformació

      Pel que fa referència a la distribució en planta de tots els elements que es poden
trobar dintre d’un Centre de Transformació, concretament es pot trobar en el plànol del CT

Albert Bel Esteller

Enginyer TècnicIndustrial en Electricitat                                                 33
Electrificació Polígon Industrial “Los Campets”                            Memòria Descriptiva

ORMAZABAL PF-203/303 del present projecte amb més claredat, on es podrà veure la
localització dels trafos, els quadres de baixa, l’aparamenta de mitja, els ponts de mitja i de
baixa...

11.2.6 Transformadors de distribució MT/BT

      S’utilitzaran dos transformadors de 400 kVA en lloc d’un sol transformador de 1000
kVA, ja que per recomanacions de la companyia subministradora en l’actualitat s’intenta
evitar la instal·lació d’aquests transformadors, d’aquesta manera s’aconseguirà una millor
seguretat i continuïtat en el subministrament, ja que en el cas d’avaria d’un transformador
es reduiran les zones del polígon sense subministrament d’energia i no es dependrà
solament d’un trafo.

     Els dos transformadors que s’utilitzaran per cada centre de transformació seran de
bany d’oli de 36 kV de nivell d’aïllament. S’utilitza l’emplenat integral d’oli degut als
avantatges que presenta respecte a altes tecnologies de fabricació.
              - - No hi ha degradació de l’oli ni per oxidació ni per absorció d’humitat, al
                no estar en contacte amb l’aire.
              - - Baix grau de manteniment, degut a l’absència d’elements, no precisa
                secador d’aire, ni manteniment de l’oli, ni vàlvules de sobrepressió.
              - - Gran robustesa al no presentar punts dèbils de soldadura com seria la unió
                del dipòsit d’expansió amb la tapa.
              - - Menor pes del conjunt.

       L’equip base estarà format per els següents elements:
              - Commutador de regulació maniobrable sense tensió.
              - Passatapes MT de porcellana.
              - Passabarres BT de porcellana.
              - 2 Terminals de terra.
              - Dispositiu de buidat i toma de mostres.
              - Dispositiu d’omplert.
              - Placa de característiques.
              - Placa de seguretat i instruccions de servei.
              - 2 “Cáncamos” d’elevació.
              - 4 Dispositius d’arriostrament.
              - 4 dispositius d’arrastre.
              - Dispositius per allotjament de termòmetre.

       Les característiques elèctriques dels transformadors seran::
              - - Potència assignada 400 kVA.
              - - Tensió primària assignada ( 24 kV a 36 kV).


Albert Bel Esteller

Enginyer TècnicIndustrial en Electricitat                                                  34
Electrificació Polígon Industrial “Los Campets”                            Memòria Descriptiva

              - - Tensió en el secundari 400 V.
              - - Regulació de tensió (+ 2.5% , + 5%).
              - - Pèrdues en buit 1120 W.
              - - Pèrdues en càrrega a 75º C 4900 W.
              - - Impedància de curtcircuit 4,5 %.
              - Intensitat de buit al 100% de Un 2,2
              - Nivell de potència acústica 65
              - - Caiguda de tensió a plena càrrega
              - Cos ϕ = 1 ∆V = 1,32 %.
              - Cos ϕ = 0,8 ∆V = 3,62 %.
              - - Rendiment a plena càrrega amb cos ϕ = 1 : η = 98,7 %.
              - - Rendiment al 75 % de càrrega amb cos ϕ = 0,8 : η = 98,4 %.

11.2.7 Aspectes constructius dels Centres de Transformació

       Estructura

      Aquests tipus de C.T: es basen en la combinació de peces bàsiques de formigó
prefabricat, en les quals s’obté la caseta tipus UNIBLOCK. El conjunt d’aquest C.T. és de
formigó vibrat, i es compost de dues parts: la primera part consta del que podríem
anomenar fons i parets, que incorpora portes i reixes de ventilació natural i l’altra part que
incorpora el sostre.

      Tots els armats de formigó estan units entre si i al col·lector de terra, segons
RV1303, les portes i reixes presenten una resistència de 10kΩ respecte al terra del conjunt.
L’acabat estàndard del C.T. es realitza amb poliuretà, de color blanc a les parets i marró al
sostre i reixes.

       El pes total de cada centre de transformació serà de 25.800 kg

       Reixes de ventilació

      Es tracta de reixes de ventilació amb làmines en forma de “V” invertida que
combinada amb una reixa mosquitera i amb la seva posició de muntatge, permet la perfecta
ventilació del transformador.

      Aquesta ventilació queda avalada en el protocol nº 93066-1-E per a transformadors
de potència inferior o igual a 630kVA i el protocol nº 92202-1-E per a transformadors de
potència majors. Aquests protocols han estat realitzats per personal d’ Assajos e
Investigacions Industrials LABEIN, d’acord amb la normativa.

      Es col·loquen els pannells verticals, en les perforacions que aporta el fabricant, i es
fixen mitjançant cargols estàndards.

       Portes i tapes d’accés

Albert Bel Esteller

Enginyer TècnicIndustrial en Electricitat                                                  35
Electrificació Polígon Industrial “Los Campets”                           Memòria Descriptiva

      Per a l’accés al Centre de Transformació es disposa de dos tipus, un per a l’accés del
personal tècnic i un altre per a l’accés directe del transformador. El nombre d’accessos, cal
dir que pot ser variable i s’acomoda a la necessitat de cada tipus de transformador.

       Cementacions

      Els Centres de Transformació, tot i ser prefabricats, en tota la seva estructura,
s’hauran d’aposentar sobre unes cementacions que seguiran d’acord amb les mides de la
caseta prefabricada del Centre de Transformació PF-203/303 una longitud de 8700mm, una
profunditat de 560mm i una amplitud de 3788mm.



       Dimensions de la caseta


                        centres fins a 36 kV                          pf-203/303
                                               longitud                7240 mm
                                              amplada                 2620 mm
           dimensions
            exteriors




                                                  alçada              3144 mm
                                             superfície                19,3 m2
                                            alçada vista              2595 mm




                        centres fins a 36 kV                           pf-203/303
                                                  longitud              7080 mm
           dimensions




                                                  amplada               2460 mm
            interiors




                                                   alçada               2615 mm
                                                  superfície             17,8 m2




       Solera i paviment

      Tots els elements que formen els Centres de Transformació estan prefabricats d’una
sola peça de formigó, tal i com s’ha esmentat anteriorment quan s’ha fet la introducció dels
Centres de Transformació. Sobre la placa base, i a una alçada de 460mm, està situada la
solera, quedant un espai buit entre les dues, que permet el pas dels conductors de MT i BT,
als que s’accedeix a través d’uns orificis coberts amb dues lloses.


Albert Bel Esteller

Enginyer TècnicIndustrial en Electricitat                                                 36
Electrificació Polígon Industrial “Los Campets”                            Memòria Descriptiva

       En el lloc del transformador es disposa de dos perfils en forma de “U”, que poden ser
desplaçats en funció de la distància de les rodes del transformador. En la part inferior de
les parets frontals i posteriors es troben els orificis per als conductors de MT y BT. Aquests
orificis estan semi-perforats, perforant-se totalment en obra estrictament els necessaris per
al nou subministrament. De la mateixa manera es disposen d’uns forats semi-perforats
practicables per a les sortides de les terres exteriors.

       Tanques exteriors

      En la paret frontal es situen les portes d’accés de peatons, portes del transformador i
reixes de ventilació. La porta d’accés per a vianants té unes dimensions de 900x2100mm,
mentre que la del transformador té unes dimensions de 1260x2400. La porta d’accés per a
vianants disposa d’un sistema de tanca amb la finalitat de garantir la seguretat del
funcionament i evitar la obertura imprevista. Per això s’utilitza una tanca disseny
ORMAZABAL. Les dues portes esmentades, es poden obrir uns 180º, és a dir gairebé
totalment.



       Ventilació

     Les reixes de ventilació del transformador estan situades a la part inferior de la porta
d’accés d’aquest, i en la part posterior del transformador.

      Aquest fet provoca que l’aire en el seu moviment envolta totalment el transformador,
principal productor de calor, realitzant una eficaç refrigeració dels trafos pel termosifó que
es produeix d’entrada i sortida.

       Condicions de servei

     Les casetes prefabricades UNIBLOCK estan construïdes per a suportar les següents
condicions de treball:
              - Sobrecàrrega de neu de 250 kg /m² en cobertes
              - Sobrecàrrega en solera de 600 kg /m² .
              - Càrrega de un transformador de 5000 kg sobre la meseta.
              - Les temperatures de funcionament de un PF - 203 / 303 son: (fins a una
                humitat del 100%)
                      -   Mínima transitòria -15º C
                      -   Màxima transitòria +50º C
                      -   Màxima mitjana diària +35º C

     Aquestes dades corresponen a una alçada de 2500 m per sobre del nivell del mar
d’acord amb la norma MV-101-1962.




Albert Bel Esteller

Enginyer TècnicIndustrial en Electricitat                                                  37
Electrificació Polígon Industrial “Los Campets”                              Memòria Descriptiva


       Senyalització

      A la reixa de la mampara del transformador i a la porta d’entrada al centre de
transformació, es col·locaran plaques que adverteixin de l’existència de perill elèctric. Així
mateix, en les empunyadures dels accionaments de l’interruptor i el seccionador, hi haurà
indicacions de la seva maniobra que impedeixin els errors d’interpretació.

11.2.8 Instal·lació elèctrica.

      El centre de transformació portarà ja instal·lats de fàbrica o per instal·lar en el lloc de
col·locació la següent aparamenta, tant de mitjà, com de baixa tensió, com els
transformadors.

       Mitja tensió

      En mitja tensió trobarem les cel·les amb la corresponent aparamenta, i el pont de
mitja Tensió.

      Cel·la de línia CGM-CML

       N’hi haurà dos equips a cada centre de transformació. S’utilitzarà el sistema de
cel·les modulars de ORMAZABAL tipus CGM. Les cel·les de entrada/sortida seran del
tipus CGM-CML (interruptor - seccionador).

      Aquestes cel·les formen un sistema d’equips modulars de reduïdes dimensions per a
mitja tensió amb una funció específica per a cada cel·la.

      Com a principals avantatges que ens podem trobar en utilitzar aquest sistema CGM
de la marca ORMAZABAL tenim els següents:
              - Extensiblitat: L’ampliació es pot realitzar per les dues direccions, inclús en
                el lloc de la instal·lació, sense necessitat de repostar el gas, utilitzant el
                “Conjunt d’unió” patentat, totalment aïllat i apantallat.
              - Amplia gamma de característiques ja sigui en intensitats, tensions i
                dimensions, o inclús en aspectes constructius i d’estètica.
              - Completa gamma de funcions: Cel·les de línia, protecció amb fusibles, com
                més endavant es veurà, interruptor passant, interruptor automàtic...
              - Fàcil instal·lació: Mínims requeriments d’obra civil i fàcil transport i
                connexionat a la xarxa.
              - Facilitat d’explotació
              - Operacions ràpides i segures: Maniobres, canvi de fusibles, proves als
                cables.
              - Insensibilitat ambiental: Insensible als agents atmosfèrics, inclús a
                inundacions dels centres de transformació.
              - Seguretat per al personal: Dissenyades per a resistir arcs interns.
              - Proteccions integrades: Opcionalment es poden incloure els nous sistemes
                autònoms electrònics de protecció RPTA i RPGM.

Albert Bel Esteller

Enginyer TècnicIndustrial en Electricitat                                                    38
Electrificació Polígon Industrial “Los Campets”                               Memòria Descriptiva

              - Un baix manteniment: Ja que totes les parts actives estan a l’interior d’un
                compartiment estanc amb gas i el mecanisme de comandament no requereix
                manteniment.
              - Llarga vida útil

      La prefabricació d’aquests elements i els assajos realitzats sobre cada cel·la fabricada
garanteixen el seu funcionament en diverses condicions de temperatura i pressió. El seu
aïllament integral en SF6 permet resistir les cel·les en un perfecte estat la pol·lució i inclús
l’eventual inundació dels centres de transformació, redueix la necessitat de manteniment,
contribuint a minimitzar els costos d’explotació. El connexionat entre els diversos mòduls,
es simple i fiable i permet configurar diversos esquemes per als centres de transformació
amb un o varis transformadors, seccionament, mesura...

        L’hexafluorur de sofre es un component gasós en condicions normals (20º C i 1
bar), químicament inert, no inflamable i no tòxic. Les seves excel·lents propietats
dialèctiques i tèrmiques el fan adequat per a la seva utilització en diverses aplicacions
d’electrotècnia, des de l’alta tensió fins a la mitja. (aparamenta de subestacions i centres de
transformació).

      Les cel·les de línia (CGM-CML) són cel·les amb una coberta metàl·lica, i formades
per un mòdul de Un=36 kV i In=400 A, de 240mm d’amplada per 850mm de profunditat
per 1800mm d’alçada. També en aquestes cel·les de línia o anomenades també, com ja s’ha
dit abans cel·les d’entrada/sortida, es realitza l’entrada de la línia i la sortida de la mateixa,
en els casos que hi ha més d’un centre de transformació, per a poder-los connectar entre
ells.

      Les CGM-CML estan dotades amb un interruptor seccionador de tres posicions, i
permeten comunicar l’embarrat del conjunt de cel·les amb els cables d’escomesa, tallar la
corrent assignada, seccionar aquesta unió o posar a terra simultàniament les tres borns dels
cables de mitja tensió.

       Cel·la de protecció CGM-CMP-F

      Al igual que les cel·les de línia també n’hi haurà dos per cada centre de
transformació. La cel·la CGM-CMP-F és la cel·la que s’encarrega de protegir el trafo
mitjançant tres fusibles de 40A, amb una tensió assignada de 36kV. Aquests fusibles
esmentats estan escollit en funció de la potència de transformador a protegir i també en
funció de la tensió de línia de la part de mitja del trafo.

       Els fusibles poden estar associats( la fusió d’un d’ells no impedeix que les altres dues
fases alimenten al trafo) o bé combinats ( la fusió d’un fusible obri l’interruptor de la
cel·la)

       Com a avantatges, els fusibles tenen efectes limitadors de danys tèrmics (1000
vegades) i dinàmics (250 vegades) originats pel curtcircuit. I com a inconvenients que ens
trobem es que hi ha que reposar els tres fusibles, no protegeix contra sobrecàrregues ni
faltes homopolars i com ja s’ha dit en el cas de fusibles associats, l’alimentació bifàsica pot
ser un inconvenient.



Albert Bel Esteller

Enginyer TècnicIndustrial en Electricitat                                                     39
Electrificació Polígon Industrial “Los Campets”                             Memòria Descriptiva

      La utilització d’aquests fusibles pot respondre a dos sistemes de protecció com ja
s’ha avançat en anterioritat:
              - Fusibles associats: En cas de fusió d’un fusible, no s’obri el l’interruptor de
                cel·la, deixant que el transformador quedi alimentat per dues fases.
              - Fusibles combinats: Quan qualsevol dels fusibles es fon, l’interruptor s’obri
                evitant que el transformador quedi alimentat tan sols a dues fases.

      A banda de l’elecció de la utilització dels fusibles per a la protecció contra
sobreintensitats o fugues a terra la cel·la incorpora el sistema autònom de protecció RPTA,
al igual que es protegirà amb la unitat d’accionament extern el transformador
d’escalfaments.

      Aquest sistema autònom de protecció RPTA dit així de primeres i per a que
s’entengui, dota a una protecció amb fusibles de característiques comparables a les d’una
protecció amb interruptor automàtic.(sobrecàrrega, fugues a terra i dispar extern).

      Degut a als inconvenients, nomenats al que respecta als fusibles sense cap sistema
addicional i a la quantitat d’avantatges que ens dóna, creiem que el millor serà utilitzar el
sistema de fusibles amb RPTA:
              - Efectes limitadors de danys tèrmics i dinàmics.
              - Protecció contra sobrecàrregues i fugues a terra.
              - No hi ha necessitat d’una alimentació auxiliar, al ser un sistema
                autoalimentat.
              - Possibilitat d’implementar el dispar per termòstat sense cap altre element
                addicional.

       A l’annex es donarà més informació del que és amb més detall la unitat RPTA.

       Entrant una mica amb més detalls constructius del que es la CGM-CMP-F és una
cel·la amb coberta metàl·lica, fabricada per ORMAZABAL, formada per un mòdul de
Un=36 kV e In=400 A, de 480mm d’ample per 1035mm de fons per 1800mm d’alt i 270kg
de pes.

      La cel·la CMP-F d’interruptor - seccionador, està constituïda per un embarrat
superior de coure, i una derivació amb un interruptor - seccionador rotatiu, amb capacitat
de tall i aïllament, i posició de posta a terra dels cables d’escomesa interior - frontal
mitjançant borns endollables, i en sèrie amb ell, un conjunt de fusibles freds, combinats o
associats a aquest interruptor.

       Descripció detallada de les cel·les CGM

       Les cel·les CGM de SF6, que hem explicat estan formades pels següents elements:

       Base i frontal

       La rigidesa mecànica de la xapa i galvanitzat garanteixen la indeformabilitat i
resistència a la corrosió de esta base, que suporta tots els elements que integren la cel·la.


Albert Bel Esteller

Enginyer TècnicIndustrial en Electricitat                                                   40
Electrificació Polígon Industrial “Los Campets”                             Memòria Descriptiva

L’alçada i disseny d’aquesta permet el pas de cables entre cel·les sense necessitat de fosa, i
presenta l’esquema unifilar del circuit principal i eixos d’accionament de l’aparamenta a
l’alçada idònia per a la seva operació. Igualment, l’alçada d’aquesta base facilita la
connexió dels cables frontals d’alimentació. La part frontal inclou, en la seva part superior,
la placa de característiques elèctriques, l’espiell per al manòmetre ( per a veure’l),
l’esquema elèctric de la cel·la i els accessos als accionaments del comandament, en la part
inferior es troben les tomes per a les làmpades de senyalització de tensió i el pannell
d’accés als cables i fusibles.En el seu interior hi ha una platina de coure al llarg de tota la
cel·la que permet la connexió a la mateixa del sistema de terres i de pantalles dels
conductors.

       Cubeta

      La cubeta, fabricada en acer inoxidable de 2mm d’espessor, conté l’interruptor,
l’embarrat i el portafusibles, el gas SF6 es troba en el seu interior a una pressió absoluta de
1,3 bars ( excepte per a cel·les especials). El segellat de la cubeta permet el manteniment
dels requisits d’operació segura durant més de trenta anys, sense necessitat de reposició de
gas. Aquesta cubeta compta amb un dispositiu d’evacuació de gasos que, en cas d’arc
intern, permet la seva sortida cap a la part posterior de la cel·la, evitant així, amb l’ajut de
l’alçada de les cel·les, la seva incidència sobre les persones, cables o l’aparamenta del
centre de transformació.

       Interruptor, Seccionador y Seccionador de posta a terra

       L’interruptor disponible en el sistema CGM té tres posicions:
              - - Connectat
              - - Seccionat
              - - Posta a terra

       L’actuació d’aquest interruptor es realitza mitjançant una palanca d’accionament
sobre dos eixos diferents, un per a l’interruptor (que commuta entre les posicions
d’interruptor connectat e interruptor seccionat) i un altre per al seccionador de posta a
terra dels cables d’escomesa (que commuta entre les posicions de seccionador i posta a
terra).

      Aquests elements són de maniobra independent, de forma que la seva velocitat
d’actuació no depèn de la velocitat d’accionament de l’operari. El tall de la corrent es
produeix en el pas de l’interruptor de connectat a seccionat, utilitzant la velocitat de les
“cutxilles” y el bufat de SF6. L’interruptor de la cel·la CMIP tan sols te posicions de
connectat y seccionat.

       Comandament

     Els comandaments d’actuació com poden ser les maniobres d’actuació d’obertura i
tancament, són accessibles des de la part frontal, podent ser accionats de forma manual o
motoritzada.




Albert Bel Esteller

Enginyer TècnicIndustrial en Electricitat                                                    41
Electrificació Polígon Industrial “Los Campets”                             Memòria Descriptiva


       Fusibles

       A les cel·les CMP-F els fusibles es munten sobre uns carros que s’introdueixen en els
tubs portafusibles de resina aïllant, els tres tubs immersos en SF6 són perfectament estancs
respecte del gas i de l’exterior, garantitzant d’aquesta forma la insensibilitat a la pol·lució
externa i a les inundacions. Això s’aconsegueix mitjançant un sistema de tancament ràpid
amb membrana. Aquesta membrana compleix també una altra missió: l’accionament de
l’interruptor per a la seva obertura, que pot tenir origen en l’acció del percutor d’un fusible
quan aquest es fon, o bé per la sobrepressió interna del portafusibles per un calentament
excessiu, és a dir dispararà quan alguna d’aquestes dues opcions passi.

       Connexió entre cel·les

      La connexió elèctrica i mecànica entre cel·les es realitza mitjançant un element que
es denomina “conjunt d’unió”, patentat per ORMAZABAL, que permet la unió de
l’embarrat de les cel·les del sistema CGM fàcilment i sense necessitat de reposar gas SF6.
El “conjunt d’unió” està format per tres adaptadors elastòmerics endollables que muntats
entre tulipes (sortida dels embarrats) existents en els laterals de les cel·les a unir, donen
continuïtat a l’embarrat i segellen la unió, controlant el camp elèctric per mitjà de les
corresponents capes semi-conductores.

      El disseny i composició d’aquest conjunt d’unió a més d’impossibilitar les
descàrregues parcials, permet mantenir els valors característics d’aïllament, d’intensitats
assignades i de curtcircuit que les cel·les tenen per separat.

       Ponts de mitja tensió

       Els ponts de mitja o alta tensió tenen com a funció principal connectar elèctricament
la cel·la que protegeix els trafos, CGM-CMP-F, amb el primari dels transformadors. I
estarà formats per tres cables unipolars 18/30kV 3x1x150 mm2 AL DHV. La connexió es
realitzarà mitjançant terminacions “Elastimold” de 36 kV del tipus endollable i model M-
400 LR en la cel·la SF6 y mitjançant terminals bimetàlics al transformador.

       Enclavaments

       Els enclavaments inclosos en totes les cel·les CGM pretenen impedir:
              - - Connectar el seccionador de posta a terra amb l’embarrat principal tancat, i
                recíprocament, que no es pugui tancar l’embarrat principal si el seccionador
                de posta a terra està connectat.
              - - Treure la tapa frontal si el seccionador de posta a terra està obert, i a la
                inversa, que no es pugui obrir el seccionador de posta a terra quan la tapa
                frontal hagi estat extreta.

11.2.9 Equips de mesura i contatge.

       No és necessària aquesta instal·lació ja que el centre pertany a la companyia
elèctrica.



Albert Bel Esteller

Enginyer TècnicIndustrial en Electricitat                                                   42
Electrificació Polígon Industrial “Los Campets”                             Memòria Descriptiva

11.2.10          Mesures de seguretat.

       Protecció personal i equips.

      Tot i realitzar les explicacions detallades de cada apartat i subapartat que fan
referència als centres de transformació i tots els seus components, ara es farà una visió pel
que respecta a les mesures de seguretat que s’han intentat buscar alhora d’arribar a totes les
solucions que s’han adoptat.

      No serà possible accedir a les zones de normal tensió, si aquestes no han sigut
posades a terra. Per això, el sistema d’enclavaments intern de les cel·les ha d’afectar al
comandament del aparell principal, del seccionador de posta a terra i a les tapes d’accés
dels cables.

      Les cel·les d’entrada i sortida seran amb aïllament integral i tall en SF6, les
connexions entre els seus embarrats hauran de ser apantallades, aconseguint amb això la
insensibilitat davant als agents externs. Amb això s’evita pèrdues de subministre en els
centres de transformació interconnectats amb aquest, inclòs en l’eventual cas d’inundació
de centre de transformació.

     Els borns de connexió de cables i fusibles seran fàcilment accessibles per als
operaris, de forma que en les operacions de manteniment la posició de treball normal no
manqui la visibilitat sobre aquestes zones.

       Els comandaments de l’aparamenta estaran situats davant l’operari en el moment de
realitzar l’operació, i el disseny de l’aparamenta protegirà a l’operari de la sortida de gasos
en cas d’un eventual arc intern.

      El disseny de les cel·les impedirà la incidència dels gasos d’escapament produïts en
el cas d’un arc intern, sobre els cables de mitja i baixa tensió. Per tenir en compte aquest
problema la sortida de gasos no ha d’estar enfocada en cap cas en direcció a la fosa de
cables.

       Baixa tensió

      A la part de baixa tensió dels centres de transformació ens trobarem el pont de baixa
tensió i els quadres de baixa amb la corresponent aparamenta.

       Pont de Baixa Tensió

      Els ponts de baixa seran els encarregats de subministrar energia elèctrica al quadre de
baixa tensió, és a dir unirà elèctricament el secundari del transformador amb el quadre de
baixa. La secció del pont de baixa serà de 3(2x240)+1x240 Al.

       Quadre de baixa tensió

      El quadre de baixa tensió és un conjunt d’aparamenta de baixa tensió, la funció del
qual es rebre el circuit principal de BT procedent del transformador MT/BT i distribuir-lo
en circuits individuals amb les diferents sortides. El quadre de baixa tensió serà del tipus
AC-4 de ORMAZABAL.


Albert Bel Esteller

Enginyer TècnicIndustrial en Electricitat                                                   43
Electrificació Polígon Industrial “Los Campets”                              Memòria Descriptiva

      L’estructura del quadre de BT està constituïda per un bastidor metàl·lic sobre el qual
es munten les diferents unitats funcionals : unitat d’embarrat, unitat d’escomesa, unitat de
protecció i unitat de control.

      El quadre de baixa tensió ofereix un grau de protecció IP-20 i un grau de protecció
contra xocs IK-08 excepte en la part inferior del quadre.

       Les característiques elèctriques dels quadres de baixa tensió utilitzat seran:
              - - Tensió nominal: 440 V.
              - - Int. nominal embarrats: 1000 A.
              - - Int. nominal sortides: 400 A.
              - - Aïllament a frec.ind. (1min)
              - entre fases i a terra: 10 kV.
              - entre fases : 2,5 kV.
              - - Aïllament a ona de xoc
              - Entre fases i a terra : 20 kV.

     Cada sortida estarà formada per tres cables, un per fase, de secció 240mm2 i un de
150mm2 per al neutre. Les fases estaran protegides per fusibles de 315, 400A (segons
normativa ENDESA), mentre que el neutre estarà connectat directament a l’embarrat del
quadre. Les connexions dels cables al quadre es realitzen mitjançant terminals bimetàl·lics.

       En el quadre de BT es distingeixen les següents zones:

       Zona d’escomesa, mesura i equips auxiliars

       En la part superior del mòdul AC-4 existeix un compartiment per a l’escomesa en
aquest, que es realitza a través d’un passamurs tetrapolar, evitant així la penetració d’aigua
a l’interior. Dintre d’aquest compartiment, hi ha quatre platines lliscants que realitzen la
funció de seccionador.

      L’accés a aquest compartiment es realitza per mitjà d’una porta amb frontisses en dos
punts. Sobre ella es munten els elements normalitzats per la companyia
subministradora.

       Zona de sortides

       Aquesta zona està formada per un compartiment que allotja exclusivament
l’embarrat i els elements de protecció de cada circuit de sortida. Aquesta protecció es
realitza mitjançant fusibles disposats en bases trifàsiques però maniobrades fase a fase,
podent-se realitzar maniobres d’obertura en càrrega.

11.2.11 Posta a terra
          - Les postes a terra s’estableixen principalment amb l’objectiu de limitar la
             tensió que, amb respecte a terra, puguin presentar en un moment donat les



Albert Bel Esteller

Enginyer TècnicIndustrial en Electricitat                                                    44
Electrificació Polígon Industrial “Los Campets”                               Memòria Descriptiva

                 masses metàl·liques, assegurar l’actuació de les proteccions i eliminar o
                 disminuir el risc que suposa una avaria en els materials elèctrics utilitzats.
              - La posta o connexió a terra és la unió elèctrica directa, sense fusibles ni cap
                altra protecció, d’alguna part del circuit elèctric o d’una part conductora no
                pertanyent al mateix mitjançant una toma de terra amb un elèctrode o grups
                d’elèctrodes enterrats al sòl.
              - Amb la instal·lació de posta a terra el que s’aconseguirà és, que en el lloc on
                la realitzem no apareguin diferències de potencial perilloses, i al mateix
                temps permeti el pas a terra de les corrents de defecte o les de descàrrega
                d’origen atmosfèric.
              - Com ja es dona per sabut, tota instal·lació elèctrica ha de disposar d’una
                protecció o instal·lació de terra dissenyada de tal manera que en qualsevol
                lloc accessible de l’interior o exterior de la mateixa on les persones poden
                circular o permaneixer, aquestes queden sotmeses com a màxim ales
                tensions de pas i contacte, durant qualsevol defecte en l’esmentada
                instal·lació elèctrica.
              - Els centres de transformació incorporen dues instal·lacions de terres, com
                són la de protecció i la de servei.

       Terra de protecció

      La posta a terra de protecció s’instal·la per a prevenir accidents personals. Totes les
parts metàl·liques d’una instal·lació que no pertanyen al circuit de corrent de treball han
d’estar connectades a terra que al produir-se avaries, inclòs per arcs elèctrics poden entrar
en contacte amb peces que estiguin sota tensió.

       En aquesta primera instal·lació totes les parts metàl·liques no unides als circuits
principals de tots els aparells i equips instal·lats en el centre de transformació, s’uneixen a
la terra de protecció. És a dir en aquesta terra de protecció s’uneixen les envolvents de les
cel·les i quadres de baixa tensió, reixes de protecció, carcasses dels transformadors,
armadura metàl·lica de l’edifici, portes metàl·liques del local, chasis i bastidors dels
aparells de maniobra, tanques, columnes, suports i pòrtics En canvi, cal fer l’aclariment
que no s’hi uniran, les reixes i portes metàl·liques del centre de transformació, si aquestes
són accessibles desde el exterior del centre.

       Terres de servei

       La posta a terra de servei és la que pertany al circuit de corrent de treball, és a dir, al
centre d’estrella de transformadors. També estan inclosos en aquest grup els circuits de
terra dels parallamps i altres dispositius de protecció contra sobretensions.

       La terra de servei es realitza per a evitar tensions perilloses en baixa tensió, degut a
faltes en al xarxa d’alta, el neutre del sistema de baixa tensió es connectarà a una posta a
terra independent del sistema d’alta tensió, de tal forma que no existeixi influència en la
xarxa general de terra. Per a aquesta funció s’utilitza un cable de coure aïllat de (0,6/1 kV).




Albert Bel Esteller

Enginyer TècnicIndustrial en Electricitat                                                     45
Electrificació Polígon Industrial “Los Campets”                             Memòria Descriptiva

11.2.12 Enllumenat del centre de transformació

      Per a l’enllumenat interior dels CT’s s’instal·laran els punts de llum que facin falta
per aconseguir un nivell mitja de 200 Lux. Aquests punts de llum estaran disposats de tal
forma que mantindran la màxima uniformitat que es pugui per a garantir la màxima
qualitat en la lluminositat.

      Per a realitzar el càlcul lumínic interior dels CT’s es realitzarà mitjançant el
programa Calculux, que ens disposarà els dos punts de llum d’acord amb el nivell mitjà de
lluminositat que es necessiti i les característiques de les lluminàries a escollir.

11.2.13      Senyalitzacions i material de seguretat

       Tant la porta d’accés al CT, com les portes i pantalles de protecció portaran el cartell
amb la corresponent senyal triangular distintiva de risc elèctric, segons les dimensions i
colors que especifica la recomanació AMYS1.410, model AE-10. Les cel·les prefabricades
portaran també la senyal triangular distintiva de risc elèctric. En un lloc ben visible de
l’interior del CT es situarà un cartell amb les instruccions de primers auxilis a realitzar en
cas d’accident.

11.3 Xarxa de distribució en baixa tensió

11.3.1 Introducció

      La xarxa de distribució en BT comença en l’armari de baixa tensió, concretament
dintre del centre de transformació, i acaba a les caixes BT de cada parcel·la.

       Justament a l’inici de la xarxa de baixa tensió, les línies de baixa comencen als
sòculs dels esmentats armaris de baixa i és en aquests sòculs on es col·loquen els fusibles
per a la protecció contra sobeintensitats. És a partir dels fusibles que van sortint cada
sortida en cable subterrani 3x1x240+1x150 AL fins a les diverses caixes de baixa tensió
instal·lades e cada parcel·la.

11.3.2 Objecte

      L’objecte de les línies de distribució en baixa tensió, és subministrar energia elèctrica
en condicions òptimes, pel que respecta a la saturació i la caiguda de tensió, a totes les
parcel·les del polígon.

11.3.3 Descripció de la instal·lació

      Les línies de baixa tensió parteixen dels quadres de baixa tensió instal·lats en el
centre de transformació, concretament dels sòcols que hi ha, on s’hi instal·len els fusibles.
El valor dels fusibles dependrà de la intensitat que porti el conductor.

      A continuació es determinen a partir de tota la distribució de potència que s’ha fet
arreu del polígon els quadres i les sortides de cada transformador que hi ha en cada CT del
polígon.




Albert Bel Esteller

Enginyer TècnicIndustrial en Electricitat                                                   46
Electrificació Polígon Industrial “Los Campets”                       Memòria Descriptiva

                                              Cuadres i
              ET              Trafos          Sortides       Parcel·les
               1                1              C1 S1             1
                                               C1 S2             1
                                               C1 S3             2
                                               C1 S4             2
                                  2            C2 S1             3
                                               C2 S2             3
                                               C2 S3          Lliures
                                               C2 S4          Lliures
                2                 1            C1 S1             4
                                               C1 S2             4
                                               C1 S3             5
                                               C1 S4             5
                                  2            C2 S1            17
                                               C2 S2            17
                                               C2 S3      Arm. Enll ext nº1
                                               C2 S4          Lliures
                3                 1            C1 S1             6
                                               C1 S2             6
                                               C1 S3             7
                                               C1 S4             7
                                  2            C2 S1             8
                                               C2 S2             8
                                               C2 S3          Lliures
                                               C2 S4          Lliures
                4                 1            C1 S1             9
                                               C1 S2            10
                                               C1 S3            11
                                               C1 S4            12
                                  2            C2 S1      Arm. Enll ext nº2
                                               C2 S2          Lliures
                                               C2 S3          Lliures
                                               C2 S4          Lliures
                5                 1            C1 S1            13
                                               C1 S2            14
                                               C1 S3            15
                                               C1 S4            15
                                  2            C2 S1          Lliures
                                               C2 S2          Lliures
                                               C2 S3          Lliures
                                               C2 S4          Lliures
                6                 1            C1 S1            16
                                               C1 S2            16
                                               C1 S3            18


Albert Bel Esteller

Enginyer TècnicIndustrial en Electricitat                                             47
Electrificació Polígon Industrial “Los Campets”                                   Memòria Descriptiva

                                                  C1 S4                   18
                                  2               C2 S1                   19
                                                  C2 S2                   19
                                                  C2 S3                 Lliures
                                                  C2 S4                 Lliures

       Com es pot veure en aquesta taula cada transformador té un armari de baixa, del qual
com a màxim pot treure quatre sortides, en cas que s’hagin de treure més sortides d’un
trafo, sempre i quan el trafo estigui en condicions de poder subministrar la potencia
demanada, es realitza el que s’anomena una instal·lació d’un armari d’ampliació, que
consisteix en instal·lar un altre armari de baixa al costat de l’armari ja existent i així poder
tenir quatre sortides més.

11.3.3.1 Secció dels conductors

      En total, i tal com es pot veure en la taula, hi haurà vuit sortides per CT per a poder
aprofitar, quatre per cada armari de baixa i per lo tant, per transformador. Però es pot veure
com després de repartir totes les línies per a totes les parcel·les i per a l’enllumenat exterior
encara ens quedaran sortides.

      Totes les sortides estan ocupades per les línies de BT, i aquestes estaran formades per
quatre conductors: 3x(1x240)+1x(150) Al.

     Per a la xarxa de distribució en baixa seran conductors unipolars segon Normativa
Endesa CNL00100 tipus RV, 0,6/1kV, aïllament de XLPE.

       Per lo tant el conductor escollit es un conductor RV 0,6/1 kV 3x1x240+1x150 Al, on
les tres fases tindran una secció de 240 Al i el neutre tindrà una secció e 150 Al.

      A continuació i en relació amb la taula d’abans que determinava les parcel·les amb
els centres de transformació i els transformadors, s’ha realitzat una taula resum dels
resultats obtinguts en la memòria de càlcul. On es poden veure les sortides doblades dels
quadres de baixa tensió, amb la saturació i la caiguda que ens donaria amb el conductor
d’alumini de 3x1x240+1x150 RV 0,6/1kV escollit per a estendre al polígon, ja sigui en
circuit simple com es el cas de les parcel·les 9,10,11,12,13 i 14, com pot ser en circuits
doblats del tipus de conductor esmentat com es el cas de la resta de parecl·les.
                                                  Saturació cdt parcial cdt parcial
                  Parcel·les         C/S             (%)        [V]         %
                      1           C1 S1 i S2       51,701     2,182       0,546
                      2           C1 S3 i S4       51,701     1,372       0,343
                      3           C2 S1 i S2       56,058     2,366       0,591
                      4           C1 S1 i S2       80,212     1,451       0,363
                      5           C1 S3 i S4       44,634     3,767       0,942
                      6           C1 S1 i S2       51,090     0,924       0,231
                      7           C1 S3 i S4       53,020     0,959       0,240
                      8           C2 S1 i S2       43,711     5,534       1,384
                      9            C1 S1           38,942     1,409       0,352
                     10            C1 S2           34,174     1,030       0,258

Albert Bel Esteller

Enginyer TècnicIndustrial en Electricitat                                                         48
Electrificació Polígon Industrial “Los Campets”                          Memòria Descriptiva

                       11          C1 S3           29,406   1,241    0,310
                       12          C1 S4           24,637   2,377    0,594
                       13          C1 S1           0,000    0,599    0,150
                       14          C1 S2           19,869   0,880    0,220
                       15         C1 S3 i S4       24,339   6,749    1,687
                       16         C1 S1 i S2      111,932   1,626    0,406
                       17         C2 S1 i S2       44,939   0,722    0,180
                       18         C1 S3 i S4       23,942   4,830    1,208
                       19         C2 S1 i S2       42,164   15,035   3,759




Albert Bel Esteller

Enginyer TècnicIndustrial en Electricitat                                                49
Electrificació Polígon Industrial “Los Campets”                              Memòria Descriptiva


11.3.4 Proteccions de la xarxa de BT contra sobreintensitats:fusibles

                                        FUSIBLES    I sortida
                                           315      222,3125
                                           315      222,3125
                                           315       241,05
                                           400      344,9125
                                           315      191,925
                                           315      219,6875
                                           315      227,9875
                                           315     187,95625
                                           400        334,9
                                           400        293,9
                                           315      252,8875
                                           315      211,875
                                           315      170,875
                                           315      209,3125
                                           400         350
                                           315      193,2375
                                           315       102,95
                                           315     181,30625
                                           400         350

      Com abans s’ha avançat els armaris de baixa estan formats per diferents sòcols que
es col·loquen en cada sortida de l’armari de baixa i que serveixen per a poder col·locar els
fusibles per a les línies de baixa, i per lo tan la protecció contra sobreintensitat d’aquestes.

      Els fusible escollits per a cada sortida dels armaris de baixa són els determinats en la
taula i s’encarreguen d’obrir el circuit en cas de que la intensitat sigui superior a la
intensitat de tall de cada fusible, amb això el que s’aconsegueix és evitar que les
sobreintensitats que hi puguin haver no deteriorin la xarxa subterrània de baixa tensió.

11.3.5 Caixes Generals de Protecció i Caixes de Seccionament

         Segons Normativa Endesa, el sol·licitant de cada parcel·la haurà d’aportar i
instal·lar les diferents caixes en lloc permanentment accessible des de via pública per a
poder rebre en condicions les línies de baixa que subministren cada parcel·la.

       Les diferents caixes BT que s’instal·laran en aquest polígon seran les següents:
              - CGP>630 A-(No Nomalitzades)
              - CGP-9-630 A
              - Caixa de Seccionament+CGP-9-400A

      A continuació apareix una taula on es pot veure en cada parcel·la la caixa o conjunt
de caixes que es posarà en el polígon en cada parcel·la:


Albert Bel Esteller

Enginyer TècnicIndustrial en Electricitat                                                    50
Electrificació Polígon Industrial “Los Campets”                            Memòria Descriptiva

               Parcel·les            tipus caixa     I sortida          I total
                   1                CGP-9-630A      222,3125           444,625
                   2                CGP-9-630A      222,3125           444,625
                   3                CGP-9-630A        241,05            482,1
                   4                CGP>630 A       344,9125           689,825
                   5                  C.S+CGP         191,925          383,85
                   6                CGP-9-630A      219,6875           439,375
                   7                CGP-9-630A      227,9875           455,975
                   8                  C.S+CGP       187,95625         375,9125
                   9                  C.S+CGP          334,9            334,9
                  10                  C.S+CGP          293,9            293,9
                  11                  C.S+CGP       252,8875          252,8875
                  12                  C.S+CGP         211,875          211,875
                  13                  C.S+CGP         170,875          170,875
                  14                  C.S+CGP       209,3125          209,3125
                  15                CGP>630 A           350               700
                  16                  C.S+CGP       193,2375           386,475
                  17                  C.S+CGP         102,95            205,9
                  18                  C.S+CGP       181,30625         362,6125
                  19                CGP>630 A           350               700


12 Obra Civil
       Es considerarà obra civil a l’execució de les rases i les cementacions necessàries en
tota la instal·lació. Les rases tindran característiques diferents segons el número i el tipus
de línies que continguin, i també segons si el traçat es per la vorera o bé es fa un creuament
de calçada.

12.1 Rases

       Es realitzaran rases per a conduir les línies de manera subterrània a través del
polígon, des d’allà on derivarem passat per tots els centres de transformació en MT, des
dels CT’s fins a les diferents CGP i Caixes de Seccionament i entre lluminàries.. El C.S
3x1x240+1x150 Al s’estendrà dintre de les rases prèviament fetes. Segons el trajecte de les
línies i la quantitat de cables conductors que estiguin en una mateixa rasa, aquestes tindran
característiques i dimensions diferents. Els diferents tipus de rases seran els següents:

       Rases amb Línia d’Enllumenat sota vorera 1C

      Serà de 60 cm de profunditat per 40 cm d’amplada . El fons es recobrirà amb una
capa de 10 cm de terra cribada. Es col·locarà en la part central de la rasa el tub de PVC que
acollirà els cables de l’enllumenat exterior del polígon. Es recobrirà el tub amb una capa de
sorra fina de 15 cm de gruix. Posteriorment es reomplirà la rasa amb material porgat sense
pedres superiors a 8 cm i compactat al 95% PM. Finalment es col·locaran les lloses
normals sobre la vorera.



Albert Bel Esteller

Enginyer TècnicIndustrial en Electricitat                                                  51
Electrificació Polígon Industrial “Los Campets”                              Memòria Descriptiva


       Rasa amb Línia d’Enllumenat 1C Sota vorera

      Serà de 60 cm de profunditat per 60 cm d’amplada. El fons de la rasa es deixarà net
de pedres i es farà un llit de formigó de resistència característica H-125 de 10 cm de gruix,
col·locant dos tubs de PVC llis, de 11 cm de diàmetre i 3,2 mm de gruix, i cobrint-lo amb
formigó H-125 fins 15 cm per sobre del tub. La resta de la rasa s’omplirà amb formigó
pobre, situant una malla de senyalització de 30 cm d’amplada, 10 cm per sobre del dau de
formigó.

       Rasa amb línia BT 1C sota vorera

       La rasa será de 80 cm de profunditat per 40 cm. El fons es recobrirà amb una capa de
5 cm de terra cribada. Just al centre de la rasa i a 5 cm de la part inferior de la rasa es
col·locarà el conductor de BT. Es cobrirà tot amb terra cribada, a uns 20 cm de la part
inferior es col·locarà la placa de senyalització i es continuarà cobrint tot de terra cribada
fins a aribar a 30 cm.

      A partir d’aquí es començarà a omplir amb capes de terra ben compactades uns 40
cm fin arribar a la part superior de la rasa on es col·locaran les lloses de la vorera. Cal dir
que a 25 cm de la part superior de les lloses es col·locarà la malla de senyalització.

       Rasa amb línia BT 2C sota vorera

      La rasa serà de 80 cm de profunditat per 60 cm. El fons es recobrirà amb una capa de
5 cm de terra cribada. Al damunt es col·locaran els 2 conductors BT a una distància entre
ells de 25 cm longitudinals. Es cobrirà tot amb terra cribada, a uns 20 cm de la part inferior
es col·locaran les plaques de senyalització i es continuarà cobrint tot de terra cribada fins a
aribar a 30 cm.

      A partir d’aquí es començarà a omplir amb capes de terra ben compactades uns 40
cm fins arribar a la part superior de la rasa on es col·locaran les lloses de la voerera. Cal dir
que a uns 25 cm de la part superior de les lloses es col·locaran les malles de senyalització.

       Rasa amb línia BT 3C sota vorera.

      La rasa serà de 80 cm de profunditat per 60 cm. El fons es recobrirà amb una capa de
5 cm de terra cribada. Al damunt es col·locara el conductor BT a la part inferior esquerra.
Es cobrirà tot amb terra cribada, a uns 15 cm de la part inferior es col·locarà la placa de
senyalització i es continuarà cobrint tot de terra cribada fins a arribar a 30 cm que es
col·locarà la malla de senyalització. Just al damunt d’aquesta es col·locaran els altres dos
conductors de BT separats entre ells 25 cm longitudinals. A uns 10 cm d’aquests es
col·locaran les plaques de senyalització.

      A partir d’aquí es començarà a omplir la rasa amb capes de terra ben compactades
fins a la part superior de la rasa. Cal dir que a 25 cm de la part superior de les lloses de la
vorera es col·locaran les malles de senyalització.




Albert Bel Esteller

Enginyer TècnicIndustrial en Electricitat                                                    52
Electrificació Polígon Industrial “Los Campets”                             Memòria Descriptiva


       Rasa amb línia BT 4C sota vorera.

      La rasa serà de 80 cm de profunditat per 60 cm. El fons es recobrirà amb una capa de
5 cm de terra cribada. Al damunt es col·locaran els dos conductors BT separats entre ells
25 cm longitudinals. Es cobrirà tot amb terra cribada, a uns 15 cm de la part inferior es
col·locarà les plaques de senyalització i es continuarà cobrint tot de terra cribada fins a
arribar a 30 cm que es col·locaran les malles de senyalització. Just al damunt d’aquesta es
col·locaran els altres dos conductors de BT separats entre ells 25 cm longitudinals. A uns
10 cm d’aquests es col·locaran les plaques de senyalització.

      A partir d’aquí es començarà a omplir la rasa amb capes de terra ben compactades
fins a la part superior de la rasa. Cal dir que a 25 cm de la part superior de les lloses de la
vorera es col·locaran les malles de senyalització.

      Rasa amb Línia MT 1C – Línia distribució en BT 2C Sota Calçada - Línia
d’Enllumenat exterior 1C.(6 TF)

      La rasa tindrà 100 cm de profunditat per 75 cm d’amplada. El fons de la rasa es
deixarà net de pedres i es farà un llit de formigó de resistència característica H-125
(formigó de neteja). A uns 5 cm es col·locaran tres tubs de fibrociment, de 15 cm de
diàmetre, situats a una distància longitudinal entre ells de 25 cm entre centres. Es recobrirà
amb formigó H-125 fins que els tubs estiguin coberts entre 5 i 10 cm per sobre, llavors es
col·locarà una malla de senyalització i es tornarà a omplir del mateix formigó una capa de
10 cm de gruix.

       Damunt d’aquesta última capa es col·locaran tres tubs més alineats de la mateixa
forma que estaven els tres anteriors separats 25 cm i es tornarà a fer el mateix procés, és a
dir s’omplirà del mateix formigó una capa de 10 cm de gruix. I damunt del formigó es
col·locarà terra ben compactada uns 60 cm fins arribar a la superfície. Es farà passar la
línia d’A.T per un dels dos tubs inferiors i la línia d’enllumenat per un dels dos superiors.
Es deixaran dos tubs lliures.

       Rasa amb línia MT 1C-Distribució BT 4C-Línia enllumenat 1C sota vorera

       La rasa tindrà 90 cm de profunditat i per 60 cm d’amplada. El fons de la rasa es
deixarà net de pedres. La rasa s’omplirà uns 5 cm amb terra cribada i es col·locaran dos
conductors, un de MT i l’altre de distribució en baixa separats entre ells 25 cm
longitudinals. Es continuarà omplint de terra cribada la rasa uns 10 cm i es posaran les les
plaques de senyalització. Es continuarà omplint la rasa amb terra cribada fins a arribar a
una distància de 20 cm dels primers conductors col·locats, i es posaran les malles de
senyalització tal com s’indica als plànols de rases. Es continuarà omplint un parell de cm
més i es col·locaran dos conductors més alineats amb els anteriors, en aquest cas els dos de
distribució en baixa.

       Es seguirà el mateix procediment de plaques i malles de senyalització, fet en primera
instància fins arribar als 20 cm de referència amb els segons conductors col·locats, i es
col·locaran dos conductors més, en aquest últim cas es col·locaran un conductor de
distribució en baixa i un d’enllumenat exterior, aquest últim dintre d’un tub de formigó
d’uns 15 cm de diàmetre, es col·locarà la placa de senyalització i a partir de llavors es


Albert Bel Esteller

Enginyer TècnicIndustrial en Electricitat                                                   53
Electrificació Polígon Industrial “Los Campets”                              Memòria Descriptiva

deixarà d’omplir la rasa en terra cribada i es començarà a omplir amb capes de terra ben
compactada fins arribar a la superfície on es col·locaran les lloses de la vorera.

       Rasa amb línia MT 1C-Distribució BT 4C sota vorera

      Serà el mateix cas que en l’anterior tipus de rasa però sense tenir en compte la línia
d’enllumenat, i deixant la part inferior dreta de la secció de rasa lliure, tal com es pot veure
en el plànol.

       Rasa amb línia MT 1C - Línia BT 3C sota vorera

       La rasa tindrà 90 cm de profunditat per 60 cm d’amplada. . El fons de la rasa es
deixarà net de pedres. La rasa s’omplirà uns 5 cm amb terra cribada i es col·locaran dos
conductors, un de MT i l’altre de distribució en baixa separats entre ells 25 cm
longitudinals. A 15 cm d’altura respecte els conductors es col·locaran les plaques de
senyalització. Es continuarà omplint de terra cribada la rasa uns 10 cm més, llavors es
col·locaran els altres dos conductors de distribució en baixa i es continuarà omplint amb
terra cribada un 10 cm posant en aquesta distància les plaques de senyalització.

     A partir d’aquest moment es continuarà omplint la rasa uns 40 cm amb capes de terra
ben compactades fins arribar a al superfície on es col·locaran les lloses de la vorera.

       Rasa amb línia MT 1C - Línia BT 2C sota vorera

       La rasa tindrà 90 cm de profunditat per 60 cm d’amplada. . El fons de la rasa es
deixarà net de pedres. La rasa s’omplirà uns 5 cm amb terra cribada i es col·locara el
conductor de MT a la part inferior esquerra de la secció de la rasa. A 15 cm d’altura
respecte el conductor es col·locaran la placa de senyalització. Es continuarà omplint de
terra cribada la rasa uns 10 cm més, llavors es col·locaran els altres dos conductors de
distribució en baixa i es continuarà omplint amb terra cribada un 10 cm posant en aquesta
distància les plaques de senyalització.

     A partir d’aquest moment es continuarà omplint la rasa uns 40 cm amb capes de terra
ben compactades fins arribar a al superfície on es col·locaran les lloses de la vorera.

       Rasa amb línia MT 1C - Línia BT 1C sota vorera

      La rasa tindrà 90 cm de profunditat per 60 cm d’amplada. . El fons de la rasa es
deixarà net de pedres. La rasa s’omplirà uns 5 cm amb terra cribada i es col·locaran dos
conductors, un de MT i l’altre de distribució en baixa separats entre ells 25 cm
longitudinals. Es continuarà omplint de terra cribada la rasa uns 25 cm i es posaran les
plaques de senyalització. Es continuarà omplint de terra cribada la rasa uns 10 cm.

      Llavors es començarà a omplir la rasa amb capes de terra ben compactades fin
arribar a la superfície on es col·locaran les lloses de la vorera.




Albert Bel Esteller

Enginyer TècnicIndustrial en Electricitat                                                    54
Electrificació Polígon Industrial “Los Campets”                            Memòria Descriptiva


      Rasa amb línia MT 1C - Línia BT 1C sota vorera- Línia enllumenat exterior 1C sota
vorera

      La rasa tindrà 90 cm de profunditat per 60 cm d’amplada. . El fons de la rasa es
deixarà net de pedres. La rasa s’omplirà uns 5 cm amb terra cribada i es col·locaran dos
conductors, un de MT i l’altre de distribució en baixa separats entre ells 25 cm
longitudinals. Es continuarà omplint de terra cribada la rasa uns 25 cm i es posaran les
plaques de senyalització. Es continuarà omplint de terra cribada la rasa uns 10 cm.

      Es seguirà el mateix procediment de plaques i malles de senyalització, fet en primera
instància fins arribar als 20 cm de referència amb els conductors col·locats, i es col·locaran
un conductor més, tal com es pot veure en el plànol de rases, concretament en aquesta rasa,
en aquest últim cas es col·locarà un conductor d’enllumenat exterior dintre d’un tub de
formigó d’uns 15 cm de diàmetre, es col·locarà la placa de senyalització i a partir de
llavors es deixarà d’omplir la rasa en terra cribada i es començarà a omplir amb capes de
terra ben compactada fins arribar a la part superior on tal com s’indica en els plànols es
col·locaran les lloses de la vorera.

      Llavors es començarà a omplir la rasa amb capes de terra ben compactades fin
arribar a la superfície on es col·locaran les lloses de la vorera.

       Rasa amb línia MT 1C - Línia enllumenat exterior 1C sota vorera

      La rasa tindrà 90 cm de profunditat per 60 cm d’amplada. . El fons de la rasa es
deixarà net de pedres. La rasa s’omplirà uns 5 cm amb terra cribada i es col·locaran dos
conductors, un de MT i l’altre d’enllumenat exterior separats entre ells 25 cm
longitudinals. Es continuarà omplint de terra cribada la rasa uns 25 cm i es posaran les
plaques de senyalització. Es continuarà omplint de terra cribada la rasa uns 10 cm.

      Llavors es començarà a omplir la rasa amb capes de terra ben compactades fins
arribar a la superfície on es col·locaran les lloses de la vorera.

       Rasa amb línia BT 2C - Línia enllumenat exterior 1C sota vorera

      La rasa tindrà 90 cm de profunditat i per 60 cm d’amplada. El fons de la rasa es
deixarà net de pedres. La rasa s’omplirà uns 5 cm amb terra cribada i es col·locaran dos
conductors de BT separats entre ells 25 cm longitudinals. Es continuarà omplint de terra
cribada la rasa uns 10 cm i es posaran les les plaques de senyalització. Es continuarà
omplint la rasa amb terra cribada fins a arribar a una distància de 20 cm dels primers
conductors col·locats, i es posaran les malles de senyalització tal com s’indica als plànols
de rases.

       Es continuarà omplint un parell de cm més i es col·locarà 1 conductor més alineat
amb un dels anteriors, en aquest cas de distribució d’enllumenat exterior dintre d’un tub de
formigó d’uns 15 cm de diàmetre, es col·locarà la placa de senyalització i a partir de
llavors es deixarà d’omplir la rasa en terra cribada i es començarà a omplir amb capes de
terra ben compactada fins arribar a la part superior on tal com s’indica en els plànols es
col·locaran les lloses de la vorera.



Albert Bel Esteller

Enginyer TècnicIndustrial en Electricitat                                                  55
Electrificació Polígon Industrial “Los Campets”                            Memòria Descriptiva


       Rasa amb línia MT 1C-Distribució BT 3C-Línia enllumenat 1C sota vorera

       La rasa tindrà 90 cm de profunditat i per 60 cm d’amplada. El fons de la rasa es
deixarà net de pedres. La rasa s’omplirà uns 5 cm amb terra cribada i es col·locaran dos
conductors, un de MT i l’altre de distribució en baixa separats entre ells 25 cm
longitudinals. Es continuarà omplint de terra cribada la rasa uns 10 cm i es posaran les les
plaques de senyalització. Es continuarà omplint la rasa amb terra cribada fins a arribar a
una distància de 20 cm dels primers conductors col·locats, i es posaran les malles de
senyalització tal com s’indica als plànols de rases. Es continuarà omplint un parell de cm
més i es col·locaran dos conductors més alineats amb els anteriors, en aquest cas els dos de
distribució en baixa.

       Es seguirà el mateix procediment de plaques i malles de senyalització, fet en primera
instància fins arribar als 20 cm de referència amb els segons conductors col·locats, i es
col·locaran un conductor més, tal com es pot veure en el plànol de rases, concretament en
aquesta rasa, en aquest últim cas es col·locarà un conductor d’enllumenat exterior dintre
d’un tub de formigó d’uns 15 cm de diàmetre, es col·locarà la placa de senyalització i a
partir de llavors es deixarà d’omplir la rasa en terra cribada i es començarà a omplir amb
capes de terra ben compactada fins arribar a la part superior on tal com s’indica en els
plànols es col·locaran les lloses de la vorera.

   Rasa amb Línia MT 1C - Línia distribució en BT 2C Sota Calçada (4 TUBS
FORMIGONATS)

      La rasa tindrà 100 cm de profunditat per 75 cm d’amplada. El fons de la rasa es
deixarà net de pedres i es farà un llit de formigó de resistència característica H-125
(formigó de neteja). A uns 5 cm es col·locaran quatre tubs de fibrociment, de 15 cm de
diàmetre, situats a una distància longitudinal entre ells de 20 cm entre centres. Es recobrirà
amb formigó H-125 fins que els tubs estiguin coberts entre 5 i 10 cm per sobre, llavors es
col·locarà una malla de senyalització i es tornarà a omplir del mateix formigó una capa de
10 cm de gruix fins a arribar als 30 cm establerts per al formigó H-125 per aquest tipus de
rasa.

       Damunt del formigó es col·locarà terra ben compactada uns 70 cm fins arribar a la
superfície. Cal dir que en aquesta rasa hi haurà 2C de distribució en BT i un circuit de
distribució en MT i sempre en el cas que es creui la calçada es deixarà com a mínim un tub
formigonat lliure per a que en cas d’avaria poder passar un altre circuit.

       Rasa amb Línia distribució BT 2C Sota Calçada (4 TF)

      La rasa tindrà 100 cm de profunditat per 75 cm d’amplada. El fons de la rasa es
deixarà net de pedres i es farà un llit de formigó de resistència característica H-125
(formigó de neteja). A uns 5 cm es col·locaran quatre tubs de fibrociment, de 15 cm de
diàmetre, situats a una distància longitudinal entre ells de 20 cm entre centres. Es recobrirà
amb formigó H-125 fins que els tubs estiguin coberts entre 5 i 10 cm per sobre, llavors es
col·locarà una malla de senyalització i es tornarà a omplir del mateix formigó una capa de
10 cm de gruix fins a arribar als 30 cm establerts per al formigó H-125 per aquest tipus de
rasa.



Albert Bel Esteller

Enginyer TècnicIndustrial en Electricitat                                                  56
Electrificació Polígon Industrial “Los Campets”                            Memòria Descriptiva

      Damunt del formigó es col·locarà terra ben compactada uns 70 cm fins arribar a la
superfície. Cal dir que en aquesta rasa hi haurà 2C de distribució en BT i sempre en el cas
que es creui la calçada es deixarà com a mínim un tub formigonat lliure, en aquest cas es
de dos tubs lliures, per a que en cas d’avaria poder passar d’altres circuits necessaris.

       Rasa amb Línia distribució MT 1C Sota Calçada (2 TF)

      La rasa tindrà 90 cm de profunditat per 40 cm d’amplada. El fons de la rasa es
deixarà net de pedres i es farà un llit de formigó de resistència característica H-125
(formigó de neteja). A uns 6 cm es col·locaran 2 tubs de fibrociment, de 15 cm de
diàmetre, situats a una distància longitudinal entre ells de 20 cm entre centres. Es recobrirà
amb formigó H-125 fins que els tubs estiguin coberts entre 5 i 10 cm per sobre, llavors es
col·locarà una malla de senyalització i es tornarà a omplir del mateix formigó una capa de
10 cm de gruix fins a arribar als 30 cm establerts per al formigó H-125 per aquest tipus de
rasa.

      Damunt del formigó es col·locarà terra ben compactada uns 70 cm fins arribar a la
superfície. Cal dir que en aquesta rasa hi haurà 2C de distribució en BT i sempre en el cas
que es creui la calçada es deixarà com a mínim un tub formigonat lliure, en aquest cas es
de dos tubs lliures, per a que en cas d’avaria poder passar d’altres circuits necessaris.

       Rasa amb Línia distribució MT 1C Sota Vorera

      La rasa tindrà 90 cm de profunditat per 40 cm d’amplada. El fons de la rasa es
deixarà net de pedres. Llavors s’anirà omplint amb terra cribada fina arribar a uns 6 cm des
de la part inferior de la rasa, que es col·locarà el conductor de MT. Una vegada col·locat es
continuarà amb terra cribada fins arribar a 30 cm que es on es col·locarà la placa de
senyalització.

      Una vegada ja s’hagi omplert la rasa es procedirà a fer el peu de morter per a poder
col·locar les lloses per a la vorera.

12.2 Arquetes de registre

      Es construiran arquetes en els punts de les línies en que sigui necessari fer una
ramificació o connexió, o en canvis de direccions amb angles mot tancats. Complint amb
les instruccions de la NTE, es realitzarà amb formigó de resistència característica H-250 i
un gruix de les parets de 15 cm, les dimensions interiors seran de 0,6 m x 0,6 m i la
profunditat de 0,85 m. Els tubs es situaran a una distància de 10 cm del fons on s’hi haurà
dipositat una capa de grava gruixuda de 15 cm de profunditat per facilitar el drenatge.

      L’arqueta estarà dotada de marc i tapa d’acer fos segons norma UNE 36118-73,
l’anclatge del marc estarà constituït per quatre esquadres situades en el centre de cada cara,
de 5 cm de profunditat, 5 cm de sortint i 10 cm d’ample.

12.3 Cementacions

       Les cementacions que esmentarem a continuació seran les cementacions que es
realitzaran en els suports de les lluminàries. Les cementacions dels suports dels punts de
llum es realitzaran amb formigó de resistència característica H-200, amb forma de dau de

Albert Bel Esteller

Enginyer TècnicIndustrial en Electricitat                                                  57
Electrificació Polígon Industrial “Los Campets”                            Memòria Descriptiva

0,75 m d’amplada per 0,95 m de profunditat, contindran els tubs de plàstic coarrugat de
diàmetre 110 necessaris per passar els cables d’alimentació.

      A banda tal com s’indica en el croquis adjunt del detall de la cementació es
col·locaran quatre ancoratges de M-16 amb l’extrem exterior roscat que subjectaran la base
dels suports. En el plànol de Detall del Bàcul apareixen les cementacions detallades.

      També es realitzaran les cementacions de l’armari de comandament, sobre les quals
reposarà el sòcol de l’armari. Les dimensions, les quals apareixen detallades en el plànol de
l’Armari de Comandament, són 1,2 m d’amplada, 0,5 m de longitud i 0,5 m de profunditat.
Es col·locarà un tub de PVC de 12 cm de diàmetre per a l’entrada dels conductors i un altre
per la sortida dels conductors.


13 Enllumenat exterior del polígon Industrial “Los Campets”
13.1 Introducció

      Nomenem a l’enllumenat exterior, a tota la instal·lació que es necessita per poder
il·luminar el polígon industrial, des dels armaris d’enllumenat, passant pels conductors que
seran de coure amb una secció de 6mm2, realitzant entrada/sortida en cada lluminària,
característiques tècniques de cada lluminària, els tipus de suports amb les característiques
d’aquests, i les característiques luminotècniques que ens donarà el conjunt de la instal·lació
una vegada estigui en funcionament tota la instal·lació.

13.2 Objecte

      L’objecte de l’enllumenat exterior, és, a partir d’unes determinades necessitats i
requisits de disseny del sol·licitant , poder il·luminar el polígon industrial “Los Campets”.

13.3 Requisits de disseny

       Els requisits de disseny que s’han tingut en compte alhora de realitzar l’enllumenat
exterior, són les determinades per l’Ajuntament d’Alcanar. En aquest aspecte, el sol·licitant
degut a la manca de legislació que hi ha en aquest tema de l’enllumenat, s’ha basat en els
requeriments establerts en les instruccions tècniques complementàries generals
d’enllumenat públic A-IT-G1. Concretament les instruccions utilitzades alhora de realitzar
el càlcul exterior del polígon es poden veure en la memòria de càlcul.

       En el cas de la il·luminància mitja que es volia alhora de realitzar els càlculs es va
determinar a partir de la taula que hi ha a continuació. Sempre tenint una previsió de
l’activitat que podia tenir el polígon per la nit i respectant la contaminació lumínica, un
terme molt important, últimament, degut a la consciència que té la gent per a despilfarrar
energia, com a exemple que es pot donar, son les boles blanques que es ficaven abans
sense reflectors a la part superior de la llumenera, cosa que feia que molt llum sortís
reflectida cap al cel, i fent impossible la visiblitat de les estrelles.




Albert Bel Esteller

Enginyer TècnicIndustrial en Electricitat                                                  58
Electrificació Polígon Industrial “Los Campets”                           Memòria Descriptiva

13.4 Abast de la instal·lació

      Es dotarà d’enllumenat exterior tots els carrers del polígon, des de l’entrada al
polígon, vora la rotonda existent a la carretera d’Alcanar TV-3321, fins al carrer de sota, a
la part posterior.

13.5 Descripció de la instal·lació

       La instal·lació d’enllumenat exterior serà a 220 V en monofàsic, degut a la potència
que hi tindrem, 8 kW en cada armari. D’aquest aspecte podem informar que segon
Normativa Endesa, concretament en la guia Vademécum de FECSA-ENDESA per a
instal·lacions d’enllaç, on es pot veure que fins una potència de 13,8 kW el
subministrament es realitza e 220 V en monofàsic, i en aquest armari el que es col·loca es
un conjunt de protecció i mesura per a enllumenat públic en monofàsic, per una banda i a
l’altra banda s’instal·la el control del client, amb els temporitzadors, magnetotèrmics,
diferencials que controlin la instal·lació.

13.6 Secció dels conductors

      Els conductors de la xarxa d’enllumenat, estan formats per una fase i un neutre, ja
que com s’ha dit es un subministrament monofàsic. Així que, la secció dels conductors per
a l’enllumenat exterior es de 6mm2. Els conductors que s’utilitzaran seran conductors de
coure unipolars amb aïllament de polietilè reticulat tipus UNE RV 0,6/1 kV.

      Tal com s’ha calculat en la memòria de càlcul, la secció dels conductors de cada línia
d’enllumenat es de 6mm2 de coure.

     Per als neutres es faran servir conductors de la mateixa secció que els de fase, tal i
com s’estableix en la instrucció ITC-BT 07.

13.7 Lluminàries i suports

       Els suports que s’utilitzaran en el polígon industrial “Los Campets” seran del tipus
AM-10, tal com s’indica en el plànol de columna i bàcul, on està el detall dels suports que
s’utilitzaran.

      Els suports seran bàculs que faran que les lluminàries sobresurtin de la vorera i que
estiguin al damunt de la calçada, els bàculs seran de 9m d’alçada, es col·locaran en
disposició portell separats entre les lluminàries 30 m.

      A partir d’aquestes dades s’han realitzat tots el càlculs luminotècnics amb el
programa informàtic CALCULUX. En els annexes adjunts, està tot el càlcul luminotècnic
de l’enllumenat exterior de cada carrer del polígon industrial.

13.8 Presa a terra de l’Enllumenat Exterior

       La presa a terra dels bàculs de les lluminàries, es realitzarà connectant
individualment cada suport, mitjançant un conductor de protecció de coure, a la línia
principal de terra de coure, la qual estarà unida en un extrem a un elèctrode mitjançant una
línia d’enllaç.


Albert Bel Esteller

Enginyer TècnicIndustrial en Electricitat                                                 59
Electrificació Polígon Industrial “Los Campets”                              Memòria Descriptiva

     A la memòria de càlcul hi ha amb molt més detall, tots els càlculs que s’han realitzat,
amb tots els elements que conformen la presa a terra de l’enllumenat exterior.

13.9 Proteccions

13.9.1 Contra contactes directes

      La instal·lació es realitzarà de manera que les parts actives de la instal·lació no siguin
accessibles a les persones, triant convenientment els materials a utilitzar per a que la seva
manipulació es faci amb la utilització d’eines especials.

13.9.2 Contra contactes indirectes.

      D’acord amb la ITC-BT-09 apartat 6, totes les columnes estaran connectades a terra,
de manera que la resistència òhmica segons la ITC 09 apartat 9 , no pugui donar
tensions de contacte perilloses per a les persones, serà inferior a 37 Ω. Per a evitar això
s’ha previst un interruptor diferencial amb una sensibilitat de 0,03 A.


14 Planificació i Programació
      La planificació i la programació per a la realització de les obres del present projecte
es determinaran amb el contractista de l’obra tenint en compte les condicions i directrius
que s’estableixen en el plec de condicions del projecte.


15 Posta en Marxa i Funcionament
       Una vegada s’hagin acabat tots els treballs per a poder posar en marxa el polígon, es
portarà a cap la comprovació del correcte funcionament dels elements que formen la
totalitat del polígon, per a la seva legalització i la posterior posada en marxa, aquests temes
de posta en marxa estan determinats en la instrucció ITC-BT-04.

       Per a poder sol·licitar l’alta en el subministrament del polígon, tal com s’indica en la
ITC-BT-04, el titular de la instal·lació haurà de sol·licitar el subministrament d’energia a
l’empresa subministradora mitjançant el corresponent exemplar del certificat de la
instal·lació. I així l’empresa podrà realitzar al seu càrrec les verificacions que consideri
oportunes, en lo que es refereix en el compliment de les prescripcions del Reglament de
Baixa Tensió.

     Es en aquest cas quan els valors obtinguts en la indicada verificació no siguin els
senyalats com a correctes en la instrucció ITC-BT-19, l’empresa subministradora no podrà
connectar a les seves xarxes les instal·lacions receptores.

       Així doncs, les comprovacions de les línies d’ A.T les farà la companyia de
distribució i a la part de la instal·lació de B.T els assajos a realitzar seran:




Albert Bel Esteller

Enginyer TècnicIndustrial en Electricitat                                                    60
Electrificació Polígon Industrial “Los Campets”                               Memòria Descriptiva


       Prova de continuïtat

      La prova de continuïtat es realitzarà mitjançant el mètode de timbrat. Es comprovarà
l’absència de tensió a la línia a provar i es prendran precaucions necessàries si existeixen
equips en tensió en les proximitats. S’identificaran els extrems dels conductors i es
comprovarà la seva continuïtat.

       Mesura de la resistència d’aïllament i rigidesa dielèctrica

      Aquest assaig es realitzarà d’acord amb la instrucció ITC-BT-19. Per efectuar la
prova es desconnectaran els sistemes de protecció de les línies. L’aïllament es mesurarà
amb relació a terra i entre conductors, mitjançant l’aplicació de tensió continua d’entre 500
i 1.000 V. Per la mesura de la rigidesa dielèctrica es desconnectaran tots els receptors i els
interruptors automàtics i s’aplicarà durant un minut una tensió mínima de 1500 volts a 50
Hz. L’assaig s’efectuarà per cada conductor amb relació al terra i els altres conductors.

       Comprovació de la resistència de la posta a terra

       Es realitzarà la mesura de la resistència de posta a terra mitjançant un teluròmetre. La
resistència haurà de ser inferior al valor indicat per la companyia subministradora
d’energia elèctrica.


16 Resum del pressupost
      La construcció i instal·lació de tots els elements que formen la electrificació i
il·luminació del Polígon Industrial “Los Campets” puja a la quantitat:

       TOTAL PRESSUPOST D’EXECUCIÓ PER CONTRATA                                  556.650,40 €

       PRESSUPOST GLOBAL DE LICITACIÓ                                           645.714,46 €



                                            Alcanar, 22 d’Agost de 2004




                                                Albert Bel Esteller

                                 Enginyer Tècnic Industrial en Electricitat



Albert Bel Esteller

Enginyer TècnicIndustrial en Electricitat                                                     61
Electrificació Polígon Industrial “Los Campets”                        Annex de Càlcul




                                       Annex de Càlcul




                                                          AUTORS: Albert Bel Esteller
                                                         DIRECTORS: J. J. Tena Tena.

                                                              DATA: Setembre / 2004.

Albert Bel Esteller

Enginyer Tècnic Industrial en Electricitat                                          1
Electrificació Polígon Industrial “Los Campets”                                                         Annex de Càlcul




Índex de l’Annex de Càlcul
       Índex de l’Annex de Càlcul ......................................................................................2

       1    Previsió de potència............................................................................................4

           1.1     Càlcul de la potència prevista......................................................................4

       2    Línia Subterrània de Mitja Tensió.......................................................................6

           2.1     Càlcul de la secció dels conductors.............................................................6

             2.1.1       -Intensitat admissible en règim permanent...........................................7

             2.1.2       Intensitat de curtcircuit........................................................................8

             2.1.3       Caiguda de tensió ................................................................................9

             2.1.4       Potència màxima a transportar pel conductor escollit ........................11

       3    Centres de transformació ..................................................................................12

           3.1     Intensitat en Mitja Tensió .........................................................................12

           3.2     Intensitat en Baixa Tensió .........................................................................12

           3.3     Càlcul de corrents de curtcircuits ..............................................................12

             3.3.1       Corrents de curtcircuit al primari del centre de transformació............13

           3.4     Justificació del Sistema de Ventilació .......................................................16

           3.5     Càlcul de les preses a terra en el centre de transformació ..........................18

             3.5.1       Consideracions prèvies a tenir en compte per realitzar el càlcul.........18

             3.5.2       Seguretat de les persones...................................................................19

             3.5.3       Sobretensions perilloses per a la instal·lació ......................................20

             3.5.4       Limitació del valor mínim del corrent de defecte...............................20

             3.5.5       Càlcul de la Xarxa de Terres .............................................................22

             3.5.6       Càlcul dels Valors Màxims Admissibles que Poden Aparèixer en la
      Instal·lació       26

             3.5.7       Posta a Terra dels Neutres dels Transformadors ................................27

             3.5.8       Elecció de l’elèctrode tipus i càlcul de les terres................................28

Albert Bel Esteller

Enginyer Tècnic Industrial en Electricitat                                                                               2
Electrificació Polígon Industrial “Los Campets”                                                             Annex de Càlcul

           3.6      Estimació y previsió dels transformadors dels CT’s ..................................29

              3.6.1        Previsió de subministraments de parcel·les per transformadors..........29

            3.6.2    Previsió de subministraments de parcel·les amb la previsió de potència
      per a l’enllumenat exterior del polígon .....................................................................30

              3.6.3        Previsió de futures ampliacions de transformadors ............................31

         3.7 Sortides de l’armari de Baixa tensió dels transformadors dels centres de
   transformació ...............................................................................................................32

         3.8        Determinació dels fusibles adoptats per a les diferents sortides dels armaris
   de baixa         33

       4     Xarxa de distribució en BT...............................................................................34

           4.1      Càlcul de la potència i intensitat màxima en cada parcel·la .......................34

           4.2      Càlcul de les seccions dels conductors ......................................................35

              4.2.1        Càlcul de les seccions mitjançant Intensitat Màxima Admissible.......35

              4.2.2        Càlcul de les seccions en funció de la caiguda de tensió ....................37

              4.2.3        Determinació de la secció dels Neutres .............................................39

       5     Càlcul enllumenat exterior................................................................................40

           5.1      Càlculs Luminotècnics..............................................................................40

              5.1.1        Elecció de la lluminària.....................................................................41

              5.1.2        Càlcul de la distància entre lluminàries .............................................41

           5.2      Càlculs Elèctrics .......................................................................................44

              5.2.1        Càlcul de la Potència de l’Enllumenat. ..............................................44

              5.2.2        Càlcul de la secció dels conductors per Caiguda de Tensió ................45

              5.2.3        Càlcul de la Secció dels Conductors per Intensitat Màxima Admissible
                           48

           5.3      Posta a Terra de l’Enllumenat exterior del polígon....................................50

           5.4      Càlcul dels Elements de Protecció i Comandament ...................................51




Albert Bel Esteller

Enginyer Tècnic Industrial en Electricitat                                                                                    3
Electrificació Polígon Industrial “Los Campets”                                Annex de Càlcul



1      Previsió de potència
      La previsió de potència que s’estimarà en aquest polígon seguirà el que es dictamina
en la ITC BT-10 del Reglament de Baixa Tensió, que determina les condicions a seguir
quan no se sap de quan seran les naus a construir o no es té la informació necessària, i
també seguirà la part del Pla Urbanístic de l’Ajuntament d’Alcanar que ens afecta degut
a la construcció de concentracions d’indústries i comerços en polígons industrials.

       Cal explicar que en el cas del nostre projecte, la superfície que es tindrà en compte i
on s’aplicarà la ITC-BT-10, serà a la superfície edificable, tal com es dictamina pel Pla
Urbanístic Municipal de l’Ajuntament d’Alcanar, la qual es pot observar al plànol de
distribució de parcel·les on s’exposa el Gàlib Màxim de l’Edificació i l’Alineació
Obligatòria de les naus futures. També cal dir que en aquest pla queda constància que es
tindrà en conte un 60 % de la superfície edificable per a edificis destinats a una
concentració d’indústries i amb el 40 % restant, es realitzaran els càlculs com a edificis
comercials i oficines.

      A banda d’aquests percentatges dictaminats en el Pla Urbanístic Municipal de
l’Ajuntament d’Alcanar, en aquest pla també hi apareix un factor d’utilització de la
superfície edificable que es de 0,5. Aquest factor d’utilització a relacionat en intentar tenir
superfície suficient, per a poder maniobrar en cas d’accident, ja siguin camions o altres
vehicles de grans dimensions, deixant passadissos de tres metres com a mínim entre naus...

      En el nostre cas, i seguint amb la classificació dels llocs de consum que s’exposa al
reglament, hem de seguir “Edificis destinats a una concentració d’indústries” i “Edificis
comercials o d’oficines”, ja que al Pla Urbanístic Municipal de l’Ajuntament d’Alcanar,
com ja s’ha avançat, es dictamina que un 60% de la superfície edificable (la que a partir de
la qual realitzarem tots els càlculs) sigui per a edificis destinats a una concentració
d’indústries i el 40% restant per a edificis comercials o d’oficines.

1.1    Càlcul de la potència prevista

       La superfície total edificable al Polígon Industrial “Los Campets” són 64.075 m2.

       Aplicant el Reglament de Baixa Tensió i el Pla Urbanístic explicats en anterioritat:
              - El 60% d’aquesta superfície es 38.445 m2, i en aquest cas s’aplica la
                normativa d’edificis destinats a concentració d’indústries de 125W/m2.
              - El 40% restant són 25.630m2, i com ja s’ha esmentat, degut al Pla
                Urbanístic Municipal de l’Ajuntament d’Alcanar en aquest cas s’aplica la
                normativa per a edificis comercials o d’oficines que tracta de considerar
                100W/m2.

      A la potència total obtinguda segons el Pla Urbanístic Municipal de l’Ajuntament
d’Alcanar se li ha d’aplicar un coeficient d’utilització de la superfície edificable de 0,5
degut a consideracions urbanístiques d’edificabilitat, volum, etc..., que també es
dictaminen en aquest, es a dir, el que es vol aconseguir en aquestes mesures es gaudir
d’una superfície suficient per a poder maniobra sense dificultats alhora de l’edificació de
les naus o inclús en perspectives de que hi pugui ocórrer algun accident (maniobra de

Albert Bel Esteller

Enginyer Tècnic Industrial en Electricitat                                                    4
Electrificació Polígon Industrial “Los Campets”                                Annex de Càlcul

vehicles de grans dimensions), i com no, segons les característiques particulars del tipus
d’indústria que es pretengui instal·lar a la zona esmentada.

       Potència = Superfície edificable x ITC-BT-10 x Coeficient d’utilització
              - Superfície concentració d’indústries: 38.445 m2

                      Potència = 2.403 kW
              - Superfície per a edificis comercials : 25.630 m2

                      Potència = 1.281,5 kW

       Aplicant un factor de potència de 0.85 ens quedarà el següent:

       Potència total parcel·les = 2.403 + 1.281,5 = 3.684,3 kW

                                     3.684,3
                       Stotal =              = 4.334,8kVA
                                      cos ϕ
              - Potència prevista per a l’enllumenat exterior:
Tal com s’explica en la memòria descriptiva es consideren 1,5kW per metre quadrat.
           - Superfície vial = 18.000 m2

                 Previsió de potència per a enllumenat = 18.000 x 1.5=27.000W=27 kW

      Una vegada fet el càlcul de les potències que ens afectaran a la previsió de potència,
la previsió de potència que tindrem serà la següent:

            Previsió de potència = Potència total parcel·les + Potència per a enllumenat exterior
              - Previsió de potència = 3.684,3 + 27 = 3.721,3 kW

                                    3 . 721 ,3
                  Sprevista =                  = 4 . 378 kVA
                                      0 ,85

       El polígon consumirà una potència prevista de 4.378 kVA que serà subministrada per
mitjà de sis centres de transformació de 800 kVA, cada un dels quals constarà de dos
transformadors de 400 kV. L’energia s’obtindrà d’una línia de mitja tensió propera al
polígon i es conduirà per una línia subterrània fins els límits del polígon, on serà conduïda
fins a cada centre de transformació.




Albert Bel Esteller

Enginyer Tècnic Industrial en Electricitat                                                  5
Electrificació Polígon Industrial “Los Campets”                                Annex de Càlcul



2      Línia Subterrània de Mitja Tensió
       La línia subterrània està formada per diferents trams que uneixen el que són les
conversions que uneixen la línia de mitja, amb el primer centre de transformació, aquest
amb el segon centre de transformació i així successivament fins arribar al sisè centre de
transformació que unirem finalment una altra vagada a la línia aèria mitjançant una altra
conversió, i així realitzarem el que s’anomena entrada/sortida a la línia aèria de mitja
tensió. Aquests trams es poden veure amb molta més claredat al que es el plànol de
distribució de les parcel·les.

       Tot i determinar tots els trams que tenim, cal dir que realitzarem els càlculs de
comprovació per al pitjor dels casos, com és el cas del primer tram. Diem que és el pitjor
dels casos perquè en el primer tram es transporta tota la potència, fins arribar al CT1, cal
clarificar que el primer tram consta des de la conversió fins al primer CT.

      Així que una vegada realitzats els càlculs del primer tram, si ens surten uns resultats
bons, ja anirem sobrats per a la resta de trams, ja que com ja s’ha dit, en el primer tram, per
a efectes de càlculs s’agafa la potència total.

       A banda d’això, també es pot fer el següent raonament, si al primer centre de
transformació ja utilitzem una part de la potència, per a la resta del polígon ja no quedarà la
totalitat de la potència, i conseqüentment els trams restants sortiran millor a efectes de
càlcul.

       Per a realitzar tots aquests càlculs es realitzarà mitjançant:
              - intensitat admissible.
              - intensitat de curtcircuit.
              - caiguda de tensió.

2.1    Càlcul de la secció dels conductors

       Com ja s’ha avançat en la memòria descriptiva, el càlcul elèctric es pot realitzar de
dues formes , com a Càlcul preliminar o com a Càlcul de Comprovació. En aquest cas
s’utilitzarà el càlcul de comprovació, ja que és el més utilitzat en instal·lacions de mitja
tensió, i que consisteix en escollir un tipus de cable, i una vegada escollida una secció es
comprova que la intensitat de règim permanent, la caiguda de tensió i la intensitat de
curtcircuit estiguin dintre dels valors admissibles determinats pel tipus de conductor
escollit.

      Aquesta línia subterrània tindrà una longitud de 1.120 m. La secció del cable
subterrani serà de 3x240 mm2, amb tensió nominal 18/30kV, amb aïllament de polietilè
reticulat (XLPE) capaç d’aguantar una intensitat admissible de 420 A.




Albert Bel Esteller

Enginyer Tècnic Industrial en Electricitat                                                  6
Electrificació Polígon Industrial “Los Campets”                                Annex de Càlcul


2.1.1 -Intensitat admissible en règim permanent

      Per a dimensionar la línia de Mitja Tensió que ens subministrarà la potència,
agafarem la potencia total prevista, que és de 4 .378 kVA, que serà la potència màxima que
portarà la línia.

      Per a evitar l’elevat cost econòmic que suposaria haver de substituir el cable instal·lat
en el cas que hi hagués un augment de la demanda o bé un ampliació del polígon,
sobredimensionarem les línies un 50%, ja que si comparem el cost de substituir tot el cable
amb un sobredimensionament d’aquestes característiques en relació a un cable de secció
inferior es molt poc.

       Per lo tant ens quedarà un potència total sobredimensionada de 6.567 kVA.

                   S         6.567
             I=          =           = 151,66 A
                  U· 3       25· 3
       On:
              - S = Potència aparent total prevista sobredimensionada [kVA]
              - U = Tensió de línia [kV]
              - I = Intensitat de línia [A]

       La intensitat sobredimensionada que circularà pel cable serà de 151,66A. Com es pot
observar podríem agafar una secció de 150 mm2 capaç de suportar 315A, però degut a que
ho volem sobredimensionar per a futures ampliacions del polígon o augments de demanda,
i sense deixa de banda la tendència de la companyia subministradora que per a
instal·lacions noves ja només utilitza l’estesa de 240mm2 per defecte, escollirem un cable
de 240 Al i aprofitarem per si mai es fa alguna ampliació, o en cas d’alguna avaria amb
algun descàrrec d’algun tram, amb la conseqüència es carregaria més un altre tram, i a
banda també es bo tenir els cables bastant ben dimensionats per a tenir una certa seguretat,
es per tot això que escollirem una secció de 240 Al per fase, es a dir 3x240 Al DHV 18/30
kV.
                  S trafo         S total          Vp       Ip       I max         Sat
                  (kVA)           (kVA)           (kV)     (A)         (A)         %
   CT 1           717,85           6.567           25    151,66       410          37
   CT 2           669,80         5.849,15          25    135,08       410         32,95
   CT 3           665,50         5.179,35          25    119,61       410         29,17
   CT 4           572,44         4.513,85          25    104,24       410         25,42
   CT 5           702,90         3.941,41          25     91,02       410         22,20
   CT 6           766,32         3.238,99          25     74,80       410         18,24

                                                                                       [taula 1]




Albert Bel Esteller

Enginyer Tècnic Industrial en Electricitat                                                  7
Electrificació Polígon Industrial “Los Campets”                                  Annex de Càlcul


2.1.1.1 Densitat de corrent

       El valor de la densitat de corrent amb la intensitat calculada és la següent:

                   I 151,66          A
              ∆=     =      = 0,632
                   S   240          mm 2

       On:
              - ∆ : Densitat de corrent[A/mm2]
              - I : Intensitat admissible en règim permanent[A]
              - S : Secció del cable conductor[mm2]

      Com es pot veure, hem calculat la densitat de corrent per al pitjor dels casos, i per lo
tant no caldrà calcular la densitat de cada tram de circuit, ja que com es pot observar en la
taula 1 la intensitat, a l’igual que la potència va disminuint tram a tram.

2.1.1.2 Densitat de corrent màxima del conductor

                        I max 410          A
              ∆ max =        =     = 1,71
                          S    240        mm 2

       On:
              - ∆ max : Densitat de corrent màxima del conductor[A/mm2]
              - I max : Intensitat màxima admissible del conductor[A]
              - S : Secció del conductor[mm2]

      Com es pot veure, la densitat calculada amb el que seria la potència que hem estimat
des d’un principi, i en el pitjor dels casos, es bastant inferior a la densitat màxima que té el
conductor escollit, per lo tant la secció adoptada es bona.

2.1.2 Intensitat de curtcircuit.

      Per veure la capacitat que té el conductor escollit per suportar la intensitat de
curtcircuit és necessari conèixer la potència de curtcircuit de la xarxa de Mitja Tensió, que
és de 400 MVA. Aquest valor ens l’ha facilitat la companyia subministradora FECSA
ENDESA.

       La intensitat de curtcircuit, per lo tant, la trobarem aplicant la fórmula següent:

                        Scc       400.000
              Icc =           =              = 9.237,6 A
                      U· 3        25· 3

       On:
              - Scc = Potència de curtcircuit [kVA]
              - U = Tensió de línia [kV]


Albert Bel Esteller

Enginyer Tècnic Industrial en Electricitat                                                    8
Electrificació Polígon Industrial “Los Campets”                                 Annex de Càlcul

              - Icc = Intensitat de curtcircuit

2.1.2.1 Secció mínima del conductor per intensitat de curtcircuit

        La secció del conductor escollit haurà d’aguantar la Icc calculada anteriorment,
durant més temps que el que tarden en actuar les proteccions de la línia. Segons dades
facilitades per la companyia subministradora les proteccions de la línia actuen en un temps
de 1,25 segons.

      Un cop tenim la Icc i el temps d’acció de les proteccions escollirem la secció
pertinent de la taula 2, que tenim a continuació.
                                         Duració del curtcircuit (segons)
  Secció          0,1          0,2        0,3     0,5        1        1,5      2         2,5
  (mm2)
    95          27,9          19,2           16,1   12,5    8,8      7,2      6,2       5,6
   150          44,1          30,4           25,5   19,8    13,9     11,4     9,9       8,8
   240          70,5          48,7           40,8   31,6    22,3     18,2     15,8      14,1
   400          117,6         81,2           68,0   53,8    37,2     30,4     26,4      23,6

                                                                                        [taula 2]

      Pel que fa a aquest mètode per trobar la secció del cable, en aquest cas també
podríem adoptar una secció de 150 mm 2 ja que la duració del curtcircuit es de 1,5 segons i
aguanta 11,4 kA - però com agafarem la duració immediatament superior a la donada per
la companyia, ja que la que dóna aquesta és el que tarden en actuar les proteccions de línia-
agafant una secció de 240Al ens aguantarà com a màxim una Icc = 18,2 kA, molt per sobre
de la calculada que era de 9.237,6, o el que és el mateix 9,2 kA.

2.1.3 Caiguda de tensió

       La caiguda de tensió de la línia de Mitja Tensió serà pràcticament nul·la degut a que
l’alta tensió per a poder-se transportar i que la longitud de la xarxa es relativament petita si
ho comparem amb els trams que s’acostumen a tirar en Mitja Tensió. Aquesta es calcula en
funció de la resistència a 50ºC, de la reactància y del moment elèctric, mitjançant
l’expressió:

                   P·L
       U (%) =           ·( R50 + X ·tgρ )
                  10·U 2
       On:
              - U: Tensió [kV]
              - P: Potència [kW]
              - L: Longitud [km]
              - R50: Resistència a 50ºC en Ω/km (R50 = 0,140 Ω/km [Ω]
              - X: Reactància en Ω/km. (X = 0,101 Ω/km) [Ω]


Albert Bel Esteller

Enginyer Tècnic Industrial en Electricitat                                                     9
Electrificació Polígon Industrial “Los Campets”                         Annex de Càlcul

Tram1 derivació/conversió fins a CT1

       R50 = 0,140 Ω/km · 0,220 km = 0,0308 Ω

       X = 0,101 Ω/km · 0,220 km = 0,0222 Ω

                 5.581,95·0,22                                     -3
       U (%) =                 ·(0,0308 + 0,0222·0,62) = 8,756 · 10 %
                    10·252
Tram 2 CT1 – CT2

       R50 = 0,140 Ω/km · 0,120 km = 0,0168 Ω

       X = 0,101 Ω/km · 0,120 km = 0,0121 Ω

                 5.581,95·0,12
       U (%) =            2
                               ·(0,0308 + 0,0222·0,62) = 2,60·10-3 %
                    10·25
Tram 3 CT2-CT3

       R50 = 0,140 Ω/km · 0,205 km = 0,0287 Ω

       X = 0,101 Ω/km · 0,205 km = 0,0207 Ω

                 5.581,95·0,205
       U (%) =            2
                               ·(0,0287 + 0,0207·0,62) = 7,6·10-3 %
                    10·25
Tram 4 CT3-CT4


       R50 = 0,140 Ω/km · 0,180 km = 0,0252 Ω

       X = 0,101 Ω/km · 0,180 km = 0,0181 Ω

                 5.581,95·0,180
       U (%) =            2
                                ·(0,0252 + 0,0181·0,62) = 5,86·10-3 %
                    10·25
Tram 5 CT4-CT5

       R50 = 0,140 Ω/km · 0,215 km = 0,0301 Ω

       X = 0,101 Ω/km · 0,215 km = 0,0217 Ω

                 5.581,95·0,215
       U (%) =            2
                               ·(0,0301+ 0,0217·0,62) = 8,36·10-3 %
                    10·25

Tram 6 CT5-CT6

       R50 = 0,140 Ω/km · 0,035 km = 0,0049 Ω

       X = 0,101 Ω/km · 0,035 km = 0,0035 Ω

Albert Bel Esteller

Enginyer Tècnic Industrial en Electricitat                                           10
Electrificació Polígon Industrial “Los Campets”                                   Annex de Càlcul

                 5.581,95·0,035
       U (%) =            2
                               ·(0,0049 + 0,0035·0,62) = 2,2·10-5 %
                    10·25

2.1.4 Potència màxima a transportar pel conductor escollit

      Degut a que en aquest projecte s’han realitzat molts de càlculs pensant amb el futur,
amb possibles ampliacions de polígon, o algun augment de demanda de potència d’alguna
parcel·la, en cas que aquestes hipòtesis inicials es compleixin, s’haurà de tenir molt en
compte la potència màxima que podrà transportar la línia, que s’ha dimensionat.

       Pmax =     3 · UL · Imax · cos ϕ =    3 · 25 · 410 · 0,85 = 15.090,5 kVA




Albert Bel Esteller

Enginyer Tècnic Industrial en Electricitat                                                     11
Electrificació Polígon Industrial “Los Campets”                                Annex de Càlcul



3      Centres de transformació
       Segons es dictamina a la instrucció complementaria del Reglament d’AT MIE-RAT
20 en el projecte on hi hagi centres de transformació es tindran que conèixer les corrents de
curtcircuit a la part d’alta (mitja) i als borns de baixa tensió del transformador. I serà a
partir d’aquests valors que es determinarà el poder de tall dels fusibles de mitja.

      Al polígon projectat es construiran sis centres de transformació ubicats segons el
plànol 6, Distribució en Mitja Tensió, capaços de subministrar 800 kVA cadascun
mitjançant una transformació de 25/0,4 kV. Els centres de transformació estaran formats
per dos transformadors de 400 kVA .

        A continuació es calcularan els seus valors de la intensitat nominal en la part d’alta
tensió i en la de baixa, així com el càlcul de la corrent de curtcircuit i el càlcul de les
instal·lacions de terres.

3.1    Intensitat en Mitja Tensió

      En aquest apartat es realitzarà el càlcul de la intensitat de la part de mitja tensió del
transformador.

              S    2·400
       I=        =       = 18,5 A
            U · 3 25· 3

       La intensitat al primari de cada transformador serà:

              S    400
       I=        =      = 9,24 A
            U · 3 25· 3

3.2    Intensitat en Baixa Tensió

      Utilitzant la mateixa fórmula que en l’apartat anterior es trobarà el valor de la
intensitat màxima en el secundari de cada transformador. La tensió serà de 400V per cada
transformador.

              S    400
       I=        =       = 577,35 A
            U · 3 0,4· 3

3.3    Càlcul de corrents de curtcircuits

      Segons l’empresa subministradora, la potència de curtcircuit de la línia de la qual
derivarem per a subministrar el polígon és de 400 MVA. Tenint present aquesta dada i tot
el calculat posteriorment, procedirem a l’obtenció de les corrents de curtcircuit del primari
i secundari del transformador.




Albert Bel Esteller

Enginyer Tècnic Industrial en Electricitat                                                  12
Electrificació Polígon Industrial “Los Campets”                               Annex de Càlcul


3.3.1 Corrents de curtcircuit al primari del centre de transformació.

      El càlcul de la corrent de curtcircuit de la part de baixa dels
transformadors exigeix conèixer la impedància total del circuit des dels
generadors de les centrals elèctriques que l’alimenten fins a la sortida de
Baixa Tensió dels trafos.

       En els següents càlculs s’obtindran els valors de les corrents de
curtcircuit que es poden produir en els centres de transformació. Es
realitzarà el càlcul per a la potència de curtcircuit indicada per la
companyia de S = 400 MVA, i considerarem el cas més desfavorable, que
correspon al centre de transformació Nº1, degut a que hi arribarà la
totalitat de la potència que portarà la línia.

3.3.1.1 Càlcul de les impedàncies

3.3.1.1.1 Impedància d’escomesa
           - Zq=1,1·U2/Scc= 1,1·252/400.000=1,72 Ω
              - Xq=0,955·Zq=0,955·1,72=1,64 Ω
              - Rq=0,1·Xq= 0,1·1,64=0,164 Ω
              - Zq=0,164+j1,64Ω

3.3.1.1.2 Impedància de línia aèria

       La impedància de la línia aèria s’ha trobat segons dades de l’empresa
subministradora, ja que en el cas de la línia aèria de mitja, nosaltres no l’hem projectat
perquè l’únic que fem es aprofitar el pas aeri de la línia de mitja per sobre el polígon per a
realitzar la derivació i realitzar entrada sortida.

       Així ens quedarà el següent:
              - Ra=0,23
              - Xa=0,35
              - Za=0,23+j0,35 Ω

3.3.1.1.3 Impedància línia subterrània

       Zs=L·(r’+jX’)=0,220·(0,140+j0,101)=(0,0308+j0,0222)

       Zs=(0,0308+j0,0222)Ω

       On:
              - r ’=0,140 Ω/km
              - X’=0,101 Ω/km
              - L= 0,220 km (com ja s’ha esmentat s’ha agafat el cas més desfavorable, és a
                dir des de la derivació en mitja fins al primer centre de transformació).

Albert Bel Esteller

Enginyer Tècnic Industrial en Electricitat                                                 13
Electrificació Polígon Industrial “Los Campets”                                  Annex de Càlcul

3.3.1.1.4 Impedància total

       Serà el sumatori de totes les impedàncies calculades en aquest apartat.

             Zqas=Zq+Za+Zs=(0,432+j2,01)Ω

       La impedància en valor absolut serà /Zqas/=2.06 Ω

3.3.1.2 Càlcul de les intensitats

       Intensitat inicial simètrica de curtcircuit

                    c·Un    1,1·25
              I=          =        = 7,71kA
                   Zqas· 3 2,06· 3

       On:
              - Un: tensió nominal [kV]
              - Zqas : Impedància total [Ω]
              - c : Valor en A.T. de 1,1

       Intensitat màxima asimètrica de curtcircuit

      El valor de Κ obtingut en funció de la relació Rqas/Xqas, mitjançant el gràfic
adjuntat en l’annex, és:

       Κ = f (Rqas / Xqas) = f ( 0,425/2,01 ) = F(0,211)=1,55

       K =1,55

       ICIA= k· 2 ICCA= 1,55· 2 · 8,82=19,33 kA

      Per aquests valors de corrents de curtcircuit calculats, s’escullen uns fusibles per a
les cel·les de mitja i per als transformadors de 400 kVA de 40 A. Per a escollir ens hem
basat en la taula 3 que hi ha a continuació, la qual ens l’ha facilitat la companyia
ORMAZABAL-




Albert Bel Esteller

Enginyer Tècnic Industrial en Electricitat                                                    14
Electrificació Polígon Industrial “Los Campets”                                Annex de Càlcul




                                                                                       [taula 3]

3.3.1.3 Corrent de curtcircuit al secundari del transformador

      Per al càlcul de les corrents de curtcircuit en barres BT, s’ha de saber la potència dels
transformadors en paral·lel que es disposen als centres de Transformació.

      En el nostre cas el que utilitzarem, com ja s’ha anat dient al llarg de tota la memòria
descriptiva, seran dos transformadors de 400kVA en paral·lel del tipus d’aïllament de bany
d’oli de 36kV.

3.3.1.3.1 Càlcul de les impedàncies

      En aquest apartat degut al canvi de tensió que apareix entre la part de mitja i la de
baixa s’ha de transformar el valor de la impedància Zqas calculada en l’apartat anterior per
adaptar-la a la baixa tensió. Es realitzarà mitjançant la relació de transformació del
transformador.

       Zqas’ (des de la part de baixa)
              - Rqas’ = Rqas ·(1/rt)2 = 0,432·(0,4/25)2 = 0,0001106 Ω
              - Xqas’ = Xqas ·(1/rt)2=2,01·(0,4/25)2 = 0,0005145 Ω
              - Zqas’ = Zqas ·(1/rt)2=2,06·(0,4/25)2 = 0,000527 Ω
              - Zqas = 0,0001106 + j 0,0005145 Ω

       Impedància del transformador
              - Zt = (Uz/100)·(U2/S)= (4,5/100)·(0,42/0,400)= 0,018 Ω
              - Rt = (Ur/100)·(U2/S)= (1,5/100)·(0,42/0,400)=0,006 Ω
              - Xt= V(Zt 2-Rt2)= V(0,0182-0,0062)=0,017 Ω




Albert Bel Esteller

Enginyer Tècnic Industrial en Electricitat                                                  15
Electrificació Polígon Industrial “Los Campets”                                 Annex de Càlcul


       On:
              - Uz = tensió de curtcircuit per a la corrent nominal (Uz = 4,5 %)
              - U: tensió nominal
              - S: potència del transformador
              - Ur: Tensió resistiva de curtcircuit per a la corrent nominal (Ur = 1,5 %)

       Resum dels resultats obtinguts:

       Zt=0,018 Ω                      Rt=0,006 Ω                Xt=0,017 Ω

       Impedància del transformador               Zt = 0,006+j0,017 Ω

       Ztotal Impedància total
              - Ztotal = Zqas’ + Zt
              - Ztotal = (0,006+j0,017)+(0,0001088+j0,000461)= 0,00611+j0,0175 Ω
              - /Ztotal/= 0,0185 Ω

3.3.1.3.2        Càlcul dels corrents de curtcircuit del trafo

3.3.1.3.2.1 Corrent inicial simètrica de curtcircuit

       La corrent de curtcircuit en barres de sortida del transformador serà la següent:

       IccA = (c · Un)/(V3·Ztotal)=(1·0,4)·(V3·0,0185)=12,483 kA

3.3.1.3.2.2 Corrent màxima asimètrica

       El valor de la K ha estat obtingut igual que a la part de mitja del transformador amb
la relació Rtotal/Xtotal, mitjançant el gràfic 1 adjunt en l’annex.

       K = f (Rtotal/Xtotal) = f(0,35)=1,35

       K=1,35

      Per tant la corrent màxima asimètrica o millor dit la corrent de connexió pot agafar el
valor següent:

       IciA= K· V2·IccA =1,35·V2·12,483=23,83 kA

3.4    Justificació del Sistema de Ventilació

       La ventilació es produirà per circulació natural d’aire a través de les dos reixes del
centre de transformació, situades en la part inferior de la porta d’accés i en la part superior,
al darrere dels dos transformadors, per lo que tindrem una renovació permanent d’aire al
local.




Albert Bel Esteller

Enginyer Tècnic Industrial en Electricitat                                                   16
Electrificació Polígon Industrial “Los Campets”                               Annex de Càlcul

      El volum d’aire a renovar es funció de les pèrdues totals dels transformadors que hi
hagi al centre de transformació, de la diferència de temperatures que s’admet entre
l’entrada i la sortida com a màxim 20ºC i la diferència d’altures entre el pla mig de la reixa
de ventilació inferior, i el pla mig de la reixa de sortida o superior.

     La ventilació natural te per objecte dissipar per convecció l’energia calorífica
produïda pel transformador quan se troba treballant en condicions nominals.

     Si recordem que el calor específic de l’aire és 0,24 kcal /kg · ºC, que un m3 d’aire sec
a 20ºC te un pes de 1,16 kg i que 1 kcal equival a 4,178 Joule, tenim que 1 m3 d’aire
absorbeix per cada grau centígrad d’augment de temperatura.
               - 0,24·1,16·4,187= 1,15 kJ/m3/ºC

      Per lo tant el volum d’aire necessari per segon per a poder absorbir les pèrdues dels
transformadors:
               - Va=Pt/1,16·θa [m3/s]
               - Va = 12,04 /1,16·15=0,692 m3/s

       Sent:
               - Pt: les pèrdues totals dels transformadors en kW.
               - θa: L’augment de temperatura admès en l’aire (15ºC segons UNESA)

     Per a evacuar aquest volum per les reixes de ventilació superiors del CT, la secció
d’aquestes haurà de ser:
               - Sf=Va/Vs=0,692/0,455=1,52 m2
               - Sbf=Sf/1-kf=1,52/1-0,3=2,17 m2

       Sent:
               - Va: el volum en m3/seg
               - Vs: velocitat de sortida de l’aire en m/s.
               - Sf: La secció neta de finestra de ventilació.
               - Sbf= Secció bruta de la finestra.
               - Kf: Coeficient d’ocupació de la finestra (per a làmines en forma de Λ=0,3)

      Si després d’aquests resultats ho comparem amb una taula que relaciona el nombre
de trafos i la potència amb la superfície mínima de cada forat de ventilació facilitada per
Merlin Gerin tenim el següent:




Albert Bel Esteller

Enginyer Tècnic Industrial en Electricitat                                                 17
Electrificació Polígon Industrial “Los Campets”                               Annex de Càlcul




Nº de Transformadors Potència dels Trafos             Sup. Mínima per cada forat de
                           (kVA)                               ventilació
                                                                 (cm2)
              1                              250                 5.000
              1                              400                 8.000
              2                              400                12.000

                                                                                        [taula 4]

     Com es pot veure amb la secció calculada anteriorment anem per sobre de l’obertura
mínima que s’ha de realitzar en CT de dos trafos de 400 kVA, que és el nostre cas.

      La velocitat de sortida depèn, com s’ha indicat, de la diferència d’altura dels plans
mitjos de les reixes de ventilació H i de l’augment de temperatura de l’aire, admès segons
la fórmula següent:

             Vs = 4,6· 2,2 / 1,5 = 0,455m / s

      Per últim haurem de tenir en compte que la secció calculada Sf es la secció neta i que
es necessari per a complimentar la instrucció complementària MIE-RAT 14, que les reixes
destinades a la ventilació han d’estar protegides de forma que impedeixin el pas de petits
animals, cossos sòlids de més de 12 mm de diàmetre. A banda estaran disposats de forma
que en cas de ser directament accessible des de l’exterior, no puguin donar lloc a contactes
amb parts en tensió, i a més existirà una disposició laberíntica, així com disposar de
proteccions precises, per a impedir l’entrada de l’aigua.

       Resumint tota aquesta descripció s’haurà de disposar en les reixes de ventilació
d’unes persianes amb làmines del tipus Λ, amb la qual cosa és lògic que la secció bruta de
la finestra haurà de ser superior a la secció neta també calculada.

       Dades de cada trafo:
              - Pèrdues dels transformadors: Pe = 12,04 kW
              - Temperatura d’entrada de l’aire:θ1 = 30 º C
              - Temperatura de sortida de l’aire:θ2 = 45 º C

3.5    Càlcul de les preses a terra en el centre de transformació

3.5.1 Consideracions prèvies a tenir en compte per realitzar el càlcul

      Quan es produeix un defecte a terra en la instal·lació d’alta tensió, és provoca una
elevació del potencial de l’elèctrode, a través del qual el corrent circula cap a terra,
apareixent en el terreny, gradients de potencial.

     Per tant, al dissenyar els elèctrodes de posta a terra, han de tenir-se en compte els
següents aspectes.
              - Seguretat de les persones en relació amb les elevacions de potencial.

Albert Bel Esteller

Enginyer Tècnic Industrial en Electricitat                                                   18
Electrificació Polígon Industrial “Los Campets”                                Annex de Càlcul

              - Sobretensions perilloses per a les instal·lacions.

      Valor de la intensitat de defecte que faci actuar les proteccions, assegurant
l’eliminació de la falta.

3.5.2 Seguretat de les persones

      La MIE – RAT 13 estableix que la tensió es màxima aplicable que pot acceptar al
cos humà, entre mans i peus, és la que estableix l’expressió següent:

         Vca = K/tn
              - Vca = tensió aplicada en vots
              - t = temps de duració de la falta en segons.
              - K, n = constants en funció del temps d’actuació de les proteccions.

                           0,9 ³ t > 0,1................K = 72 ; n = 1

                           3 ³ t > 0,9...................K = 78,5 ; n = 0,18

                           5 ³ t > 3.....................Vca = 64 V

                           t < 5..........................Vca = 50 V

       En base a suposar que la tensió màxima aplicada al cos humà, no superi el valor
indicat en la fórmula anterior per a les tensions de contacte (entre mans i peus), ni superi
10 vegades aquest valor per a les tensions de pas (entre peus separats 1m), els valors
màxims admissibles de la tensió de pas i contacte, que no han de ser superats en la
instal·lació, han de ser els següents.

Tensió de pas

       Vp = 10·K/tn·(1+ (6·ρs/1000))

Tensió de contacte

       Vc= K/tn·(1+(1,5·ρs)/1000)

       On:
              - Vp: tensió de pas [V]
              - Vc: tensió de contacte [v]
              - t: duració de la falta [s]
              - ρs: Resistivitat superficial del terreny [Ω·m]

      En cas de la tensió de pas, pot succeir que la resistivitat superficial del terreny sigui
diferent per a cada peu. Aquesta situació, és habitual en l’accés als centres de
transformació, on els paviments en l’interior i en l’exterior solen ser diferents. En aquests



Albert Bel Esteller

Enginyer Tècnic Industrial en Electricitat                                                  19
Electrificació Polígon Industrial “Los Campets”                                  Annex de Càlcul

casos, l’expressió per obtenir la tensió màxima de pas admissible que pot aparèixer en la
instal·lació és:

       Vpaccés= 10·K/tn·(1+(3·ρs+3ρs’)/1000)

       On:
              - ρs i ρs’ són les resistivitats del terreny en que es recolza cada peu.

3.5.3 Sobretensions perilloses per a la instal·lació

      Per a evitar que la sobretensió que apareix al produir-se un defecte en l’aïllament del
circuit d’alta tensió, i es deteriorin els elements en baixa tensió del centre, l’elèctrode de
posta a terra ha de tenir un efecte limitador de tal manera que la tensió de defecte sigui
inferior a la que suporten aquests elements (Vbt). Per tant hem de tenir present que Vd ha
de ser menor que Vbt.

       Vbt > Vd

       Vd = Rt x Id

                           8.000 >= Vd per instal·lacions d’exterior.

                           6.000 >= Vd per instal·lacions d’interior.
              - Vd = tensió de defecte [V]
              - Vbt = tensió màxima suportada per la instal·lació de baixa. (10.000 V,
                segons recomana UNESA) [V]
              - Rt = resistència màxima de la posta a terra del centre [Ω]
              - Id = intensitat de defecte. [A]

3.5.4 Limitació del valor mínim del corrent de defecte

      Amb l’objectiu de què el corrent de defecte pugui ser detectat per la protecció de
sobreintensitat s’haurà de complir que:

       Id > Valor que garanteix l’accionament de les proteccions.

      Per determinar els valors anteriorment esmentats, ens basarem en el document
elaborat per UNESA “Método de cálculo y proyecto de instalaciones de puesta a tierra
para centros de transformación conectados a redes de tercera categoría”.

      Utilitzant una de les configuracions tipus allà realitzades i les taules i mètodes
descrits. Per determinar el compliment de les condicions de seguretat requerides, es seguirà
el procediment de càlcul que s’indica a continuació segons l‘assenyalat en l’apartat 2.1 de
la MIE RAT 13:
              - Investigació de les característiques del terreny.
              - Determinació de la intensitat màxima de defecte i el temps màxim
                d’eliminació de la falta.


Albert Bel Esteller

Enginyer Tècnic Industrial en Electricitat                                                    20
Electrificació Polígon Industrial “Los Campets”                                     Annex de Càlcul

              - Disseny preliminar de la instal·lació de terra.
              - Càlcul de la resistència de posta a terra del centre.
              - Càlcul de les tensions de pas en l ’exterior de la instal·lació.
              - Càlcul de les tensions de pas i contacte en l’interior de la instal·lació.
              - Càlcul de la tensió de defecte.
              - Càlcul de les tensions de pas i contacte admissibles.
              - Comprovació entre les tensions de pas, contacte i defecte calculades i les
                admissibles.
              - Separació entre els sistemes de posta a terra de la instal·lació.
              - Càlcul preliminar del paràmetre característic de la resistència de posta a
                terra del neutre BT i elecció de la configuració tipus.
              - Càlcul de la resistència de posta a terra del neutre BT.

      Es calcularan dos tipus de terres segons s’especifica en la instrucció MIE RAT 13
apartat 6.1 i 6.2.

       Terres de protecció que inclouran les postes a terra de :

       1- Xassís i bastidors d’aparells de maniobra.

       2- Envolvents dels conjunts d’armaris metàl·lics.

       3- Portes metàl·liques de local.

       4- Tanques i ballat metàl·lic.

       5- Estructures metàl·liques.

       6- Blindatges metàl·lics del cable.

       7- Carcasses del transformador.

       Preses a terra de servei. Inclouran les preses a terra de:

       1- Neutres dels transformadors.

       2- Circuits de baixa tensió dels transformadors de mesura.

       3- Descarregadors per l’eliminació de sobretensions.

       4- Els elements de derivació a terra dels seccionadors de posta a terra.




Albert Bel Esteller

Enginyer Tècnic Industrial en Electricitat                                                       21
Electrificació Polígon Industrial “Los Campets”                                Annex de Càlcul


3.5.5 Càlcul de la Xarxa de Terres

3.5.5.1 Dades preliminars, característiques de la xarxa MT d’alimentació al CT
          - Tensió de servei 25 kV.
              - Valor de posta a terra del neutre AT, R0 = 0 Ω, X0 = 25 Ω.(informació
                facilitada per companyia subministradora)
              - Nivell d’aïllament del material RT del CT: Per a evitar que la sobretensió
                que apareix al produir-se un defecte en l’aïllament del circuit d’alta tensió
                deteriori els elements de baixa del CT, l’elèctrode de posta a terra haurà de
                tenir un efecte limitador, de tal forma que la tensió de defecte (Vd) sigui
                inferior a 10.000 V, que es el nivell de aïllament de les instal·lacions de BT
                del CT, i la recomanació feta per UNESA.

       Vd = Rt x Id ≤ 10.000 V

       Característiques del terreny

     Havent realitzat una determinació arbitrària de la resistència del terreny i contrastant-
ho amb la ITC-BT-18 del Reglament de Baixa Tensió, es considerarà:

       Resistivitat del terreny, ( ρ =75 Ω·m).

       ITC BT-18 Taula 4


                          Naturalesa del Terreny           Valor mig de la ρ


                           Terrenys cultivables                   50
                       Terraplens compactes i humits


                      Terraplens cultivables poc fèrtils         500

                       Sols pedregosos nusos, arenes            5.000



                                                                                       [taula 5]

       Hem agafat una ρ=75 per la diferència de terrenys que es pot trobar allà on es
realitzarà el polígon, on es pot trobar terrenys en tarongers, i terrenys de secà amb oliveres
i garrofers, és per aquest motiu que hem agafat aquesta resistivitat, ja que hem seguit mes o
menys el que decreta el reglament de BT i ham cregut convenient agafar una resistivitat
intermitja entre terrenys cultivables i terrenys cultivables poc fèrtils.




Albert Bel Esteller

Enginyer Tècnic Industrial en Electricitat                                                  22
Electrificació Polígon Industrial “Los Campets”                                Annex de Càlcul

3.5.5.2 Càlcul de la intensitat de defecte

      Per a calcular la intensitat de defecte Id tan sols es considerarà la impedància de la
posta a terra del neutre de la xarxa de mitja Tensió i la resistència de l’elèctrode de posta a
terra Rt, mitjançant la fórmula:

                          U
       Id =
                 3· ( Ro + Rt ) 2 + Xn 2

       No podem obtenir el valor de Id ja que no sabem el valor de Rt, però com se sap que
el valor més elevat de la posta a terra de masses (Rt) ha d’evitar la perforació de
l’aïllament de baixa tensió d’algun element del centre, al circular per ella la intensitat de
defecte (Id). Així que agafant aquestes dues últimes fórmules i resolen aquest sistema de
dues equacions amb dues incògnites traurem els següents resultats.

                              U
          Id =
                   3· ( Ro + Rt ) 2 + Xn 2

       Vd = Rt x Id ≤ 10.000 V
              - Rt=16,64 Ω
              - Id=480,55 A

3.5.5.3 Càlcul del Paràmetre Característic Resistència de posta a terra del CT

       Com a pas previ per efectuar l’elecció de la configuració tipus de l’elèctrode de posta
a terra, cal trobar el valor màxim que haurà de tenir el paràmetre característic de la
resistència de posta a terra sent aquest :

              K’r= Rt/ ρ =16,64 / 75 = 0,222 Ω/Ω·m

       On:
              - K’r : Valor màxim del paràmetre característic de la resistència de posta
                terra. [Ω/Ω·m]
              - Rt : Resistència màxima de la posta a terra del CT [W]
              - ρ : Resistivitat del terreny [Ω·m]

3.5.5.4 Elecció de la configuració tipus

      Una vegada hem aconseguit el valor de K’r ja podem seleccionar l’elèctrode tipus en
funció de les dimensions del CT, ja que és necessari que el centre estigui ubicat dins del
perímetre de la configuració escollida, i a part també haurà de tenir Kr inferior a la
calculada.
              - K’r……………………………..0,222(Ω/Ω · m).
              - Longitud exterior del CT ............7240 mm.
              - Amplada exterior del CT ........... 2620 mm.

Albert Bel Esteller

Enginyer Tècnic Industrial en Electricitat                                                  23
Electrificació Polígon Industrial “Los Campets”                                Annex de Càlcul

              - Amplada excavació .....................3420 mm.
              - Profunditat excavació..................700 mm.

     Tenint present les dades exposades anteriorment i consultant l’annex 2 del document
UNESA “Método de cálculo y proyecto de instalaciones de puesta a tierra para
Centros de Transformación” adoptem una configuració del codi següent:

       80-30 / 5 / 8 2

       On:
              - 80 = longitud del rectangle [dm]
              - 30 = amplada del rectangle [dm]
              - 5 = profunditat de l’instal’lació. [dm]
              - 8 = nº de piques que formen la configuració.
              - 2 = longitud de les piques [m]

       Els valors que s’indiquen en aquestes taules de l’annex 2, corresponen a elèctrodes
amb piques de 14 mm de diàmetre i conductor de coure nu de 50 mm2 de secció. Per a
d’altres diàmetres de pica i altres seccions de conductor, de l’empleat en la pràctica, poden
utilitzar-se igualment aquestes taules, ja que aquestes magnituds determinades en les taules
de l’annex esmentat no afecten pràcticament al comportament de l’elèctrode.

     I amb els següents paràmetres característics de la configuració escollida tindrem els
següents resultats:
              - Kr = 0,069 Ω/Ω·m
              - Kp = 0,0145 Ω/Ω·m
              - Kp (acc) = 0,0303 Ω/Ω·m

       On:
              - Kr : paràmetre característic de la resistència.
              - Kp : paràmetre característic de la tensió de pas.
              - Kp(acc) : paràmetre característic de la tensió de pas en l’accés del CT.

      Podem observar que si la configuració tipus la comparem a les condicions establertes
tant com a dimensions del CT com obtenir una Kr menor que la calculada K’r, complim
totes dues coses.

     Al plànol de preses a terra de servei i protecció es pot veure amb més detall la
ubicació i totes les característiques de la xarxa de terres de servei i de protecció.




Albert Bel Esteller

Enginyer Tècnic Industrial en Electricitat                                                  24
Electrificació Polígon Industrial “Los Campets”                                Annex de Càlcul


3.5.5.5 Càlcul de la resistència de la posta a terra

      Tenint present els valors que ens aporta la configuració escollida de la posta a terra
es procedirà als càlculs.

3.5.5.5.1 Resistència de la posta a terra

       L’obtenim aplicant la següent expressió:

                Rt = Kr · ρs =0,069·75 = 5,175 Ω

       On:
              - Kr = paràmetre característic de la resistència segons configuració escollida.
              - ρs = resistivitat del terreny.

       La intensitat de la corrent per defecte amb el valor de Rt serà:

                              25.000
                I'd =                            = 565,365 A
                          3· 5,175 + 25
                                     2       2



       Tensió de pas en l’exterior del CT

                V’p = Kp · ρs · I’d = 0,0145 x 75 x 565,365= 614,83 V

       Tensió de pas en l’accés al CT

                V’pacc = Kpacc · ρs · I’d = 0,0303 x 75 x 565,365 = 1.284,79 V

       Tensions en l’interior del CT

      El terra del centre de transformació incorpora un mallasso electrosoldat amb rodons
de diàmetre 6 mm, formant una retícula no superior a 0,3 x 0,3m. Aquest mallasso es
connectarà com a mínim en dos punts perfectament oposats a la posta de terra de protecció
del CT. Amb aquesta disposició s’aconsegueix que la persona que tingui que accedir a una
part que pugui quedar en tensió de forma eventual, està sobre una superfície equipotèncial,
amb lo que desapareix el risc inherent a la tensió de contacte i de pas interior. Aquest
mallasso es cobrirà amb una capa de formigó de 10 centímetres d’espessor com a mínim.

      L’edifici prefabricat de formigó estarà construït de tal manera que un cop fabricat, el
seu interior sigui una superfície equipotencial.

       Aquesta armadura equipotencial es connectarà al sistema de terres de protecció,
excepte portes i reixes que estaran aïllades amb una resistència igual o superior a 10kW.
Així doncs no serà necessari el càlcul de les tensions de pas i contacte en l’interior de la
instal·lació, ja que el seu valor serà pràcticament nul.

       Tensió de defecte

       Vd = Rt x I’d = 5,175 x 565,365 = 2.925,76 V

Albert Bel Esteller

Enginyer Tècnic Industrial en Electricitat                                                  25
Electrificació Polígon Industrial “Los Campets”                                Annex de Càlcul

3.5.6 Càlcul dels Valors Màxims Admissibles que Poden Aparèixer en la Instal·lació

      D’acord amb el punt 1.1 del MIE-RAT 13 , la tensió màxima de contacte aplicada a
una persona, entre mans i peus serà determinada en funció del temps de duració del
defecte, segons la fórmula:

       Vca= K/tn = 78,5/10,18=78,5 V

       Sent:
              - K=72 i n=1 per a temps inferiors a 0,9 s.
              - K=78 i n=0,18 per a temps superiors a 0,9s i inferiors a 3s.
              - t: duració de la falta en segons.(dades facilitades per la companyia t=1s)

       Tensió de pas en l’exterior del Centre de Transformació

                  Vp = ((10·78,5)/10,18)·(1+(6·75/1000))=1.138,25 V

       Tensió de pas en l’accés al Centre de Transformació

     Sabent que la ρs’ és la resistivitat superficial del paviment de formigó del Centre de
Transformació (ρs’= 3.000 Ω·m)

                  Vpaccés=(10·78,5/10,18)·(1+3·75+3·3.000/1.000)=8.026,625 V

       Tensió de contacte

       Vc=(78,5/10,18)·1+1,5·3.000/1.000=431,75 V

       Tensió de defecte

     El nivell d’aïllament (tensió d’assaig) dels elements de baixa tensió en el CT serà de
10.000 V degut a les recomanacions fetes per UNESA.

       Comparació dels valors calculats amb els màxims admissibles


             Tensió de pas             614,83 V    <        1.138,25 V
              calculada
             Tensió de pas           1.284,79 V    <        8.026,63 V
               d’accés
              Tensió de              2.925,76 V    <        10.000 V
                defecte




Albert Bel Esteller

Enginyer Tècnic Industrial en Electricitat                                                   26
Electrificació Polígon Industrial “Los Campets”                                   Annex de Càlcul


3.5.7 Posta a Terra dels Neutres dels Transformadors

       El reglament en la seva instrucció MIE-RAT-13 apartat 6, estableix com a
necessàries dues instal·lacions de posta a terra : la de protecció i la de servei, especificant
els elements que han de ser connectats a cada una de les esmentades. En general, a la terra
de protecció es connectaran les masses metàl·liques que normalment no estiguin sotmeses
a tensió, però que poden estar-ho en cas d’avaria en la instal·lació elèctrica. A la de servei,
en canvi, es connectaran entre d’altres elements els neutres dels transformadors dels
centres de transformació.

     Tot i que en principi s’estableix com a norma general la interconnexió de les terres
de protecció i servei, en l’apartat 7.7. de la RAT-13 es recomana la separació entre la
connexió a terra del neutre i la corresponent a la terra general de protecció. S’admetrà la
connexió a un terra general quan es compleixin les següents condicions :

     a) L’alimentació en AT forma part d’una xarxa de cables subterranis amb envolvents
conductores de suficient qualitat.

      b) L’alimentació en AT forma part d’una xarxa mixta de línies aèries i cables
subterranis amb una longitud total mínima de tres quilòmetres. Amb traçats diferents, o
una longitud en cada un d’ells de més d’ un quilòmetre.

      Tenint en compte que els cables subterranis que normalment s’utilitza en l’actualitat
no tenen coberta conductora, s’arriba a la conclusió de que és necessari disposar, en tots els
casos de terres separades per les masses i per els neutres dels transformadors.

      D’acord amb el reglament, cal preveure la separació i l’aïllament adequat entre les
dues presses de terra, sent necessari :

      a) Que entre els dos elèctrodes hi hagi una separació mínima que és fixa per
l’equació :

             D= ρ·Id/2·π·U=75·565,365/2·π·1.000=6,75 m

       On:
              - D = distància mínima entre elèctrodes [ m]
              - ρs = resistivitat del terreny a la profunditat de la instal·lació [Ω·m]
              - Id = Intensitat de defecte, per la banda d’AT i serà facilitada per la
                companyia subministradora. [A]
              - U = tensió de defecte o nivell d’aïllament dels CT. [V]

      Tal com es pot veure en aquest resultat, la distància mínima entre elèctrodes de presa
de terra de protecció i la de servei es de 6,86 m, es per això que a partir d’aquest resultat
hem determinat una distància totalment arbitrària de 12 m, tal com es pot veure en el
plànol de les preses a terra de protecció i de servei.




Albert Bel Esteller

Enginyer Tècnic Industrial en Electricitat                                                     27
Electrificació Polígon Industrial “Los Campets”                                 Annex de Càlcul

      b) Que el conductor d’unió de l’elèctrode de posta a terra amb el born del neutre del
transformador, o amb el born corresponent del quadre de BT, estigui aïllat (0,6 / 1 kV), i
col·locat a l’interior del tub aïllant amb grau de protecció 7 segons norma UNE 20.324.

3.5.8 Elecció de l’elèctrode tipus i càlcul de les terres.

       Per la posta a terra del neutre de BT, és tindrà en compte que l’elevació de tensió en
el terreny pròxim a aquest no sigui superior a 24V. A més és complirà la condició:

       U’b > I’d x Rb

       On:
              - U’b = tensió màxima de la posta a terra de bt al ser atravessada pel corrent
                màxim de defecte (24V) [V]
              - I’d =intensitat màxima de defecte terra en la instal·lació interior (0,65 A)[A]
              - Rb = resistència màxima de la posta a terra. [Ω]

       De l’expressió anterior podem obtenir la resistència màxima de la posta a terra :

     Una vegada connectada la xarxa de posta a terra de servei al neutre de la xarxa de
BT, el valor d’aquesta resistència de posta a terra general haurà de ser inferior a 37 Ω.

      Amb aquest criteri s’aconsegueix que un defecte a terra en una instal·lació interior.
Protegida contra contactes indirectes per un inetrruptor diferencial de sensibilitat 650mA,
no produeixi en l’elèctrode de posta a terra de servei una tensió superior a 24 V.

       Rb = U’b / I’d = 24 / 0,65 = 37Ω.

       Ara, amb aquest valor ja podem assolir el valor màxim del paràmetre característic de
la resistència de posta a terra en Ω/Ω x m ( K’r).

       K’r = Rb / ρ =37 / 75 = 0,493 Ω/Ω · m.

       Per tant el codi de la configuració escollida serà:

                                   5 / 22

       On:
              - 5 = profunditat d’instal·lació del elèctrode en dm
              - 2 = nº de piques.
              - 3 = separació entre piques en m.
              - 2 = Longitud de pica.

       Hem escollit aquesta configuració perquè el paràmetre característic de la resistència
que ens proporciona aquesta configuració escollida (Kr) és inferior al màxim calculada
(K’r).



Albert Bel Esteller

Enginyer Tècnic Industrial en Electricitat                                                   28
Electrificació Polígon Industrial “Los Campets”                              Annex de Càlcul

             Kr = 0,201 Ω/Ω x m < K’r =0,493 Ω/Ω · m

       Per tant obtenim una resistència menor, i conseqüentment la sobretensió no serà
perillosa per a la instal·lació

             Rb = Kr x r = 0,201 x 125,7 = 15,075Ω < 37Ω

     Finalment les piques tindran un diàmetre de 14 mm i el conductor d’unió de les
piques tindrà una secció de 50 mm2 de coure despullat.

3.6    Estimació y previsió dels transformadors dels CT’s

3.6.1 Previsió de subministraments de parcel·les per transformadors


                            Superfície
           Parcel·la           [m2]          Potència [kW] Potència [kVA]    TRAFOS
               1              3.643              209,47        246,44         CT1 T1
               2              3.643              209,47        246,44         CT1 T1
               3              3.950              227,13        267,21         CT1T2
               4              5.652              324,99        382,34         CT2 T1
               5              3.145              180,84        212,75         CT2 T2
               6              3.600              207,00        243,53         CT3 T1
               7              3.736              214,82        252,73         CT3 T2
               8              3.080              177,10        208,35         CT3 T1
               9              2.744              157,78        185,62         CT4 T1
              10              2.408              138,46        162,89         CT4 T2
              11              2.072              119,14        140,16         CT4 T2
              12              1.736               99,82        117,44         CT4 T1
              13              1.400               80,50         94,71         CT5 T1
              14              1.715               98,61        116,01         CT5 T1
              15              7.887              453,50        533,53         CT5 T2
              16             3.166,50            182,07        214,20         CT6 T1
              17              1.687               97,00        114,12         CT2 T2
              18              2.971              170,83        200,98         CT6 T1
              19              5.857              336,78        396,21         CT6 T2

                                                                                     [taula 6]

       Com es pot observar en la taula 6, es realitza una estimació dels transformadors
individualment, ja que alhora de treure la potencia total que ens pot consumir el polígon,
s’havia fet a partir de les superfícies edificables totals i conseqüentment de la previsió de
potencia per parcel·les.

       Una vegada realitzat això el que s’ha fet es distribuir els CT’s arreu del polígon per
a que poguessin donar la potencia total per totes les parcel·les sempre mirant la potència de
cadascuna, amb la potència màxima que podia donar cada CT.


Albert Bel Esteller

Enginyer Tècnic Industrial en Electricitat                                                29
Electrificació Polígon Industrial “Los Campets”                              Annex de Càlcul

        Aquesta distribució dels CT’s s’ha fet a partir de la potència total aparent de cada
CT, i en primera instància no s’ha tingut en compte la potència individual de cada
transformador de l’interior del CT (cada CT consta de 2 transformadors de 400 kVA). I per
lo tant sempre es important veure dins de cada CT, dels dos transformadors que hi ha,
veure quin s’adapta millor a cada parcel·la o a cada conjunt de parcel·les.

       Amb aquesta taula el que s’intentarà doncs, es clarificar les sortides dels quadres de
baixa de cada transformador de cada CT i veure amb més claredat els transformadors que
subministren cada parcel·la.

3.6.2 Previsió de subministraments de parcel·les amb la previsió de potència per a
      l’enllumenat exterior del polígon


                                        Superfície   Potència    Potència
        Parcel·la                          [m2]        [kW]       [kVA]            TRAFOS
            1                             3.643       209,47      246,44            CT1 T1
            2                             3.643       209,47      246,44            CT1 T1
            3                             3.950       227,13      267,21            CT1T2
            4                             5.652       324,99      382,34            CT2 T1
            5                             3.145       180,84      212,75            CT2 T2
            6                             3.600       207,00      243,53            CT3 T1
            7                             3.736       214,82      252,73            CT3 T2
            8                             3.080       177,10      208,35            CT3 T1
            9                             2.744       157,78      185,62            CT4 T1
           10                             2.408       138,46      162,89            CT4 T2
           11                             2.072       119,14      140,16            CT4 T2
           12                             1.736        99,82      117,44            CT4 T1
           13                             1.400        80,50       94,71            CT5 T1
           14                             1.715        98,61      116,01            CT5 T1
           15                             7.887       453,50      533,53            CT5 T2
           16                            3.166,50     182,07      214,20            CT6 T1
           17                             1.687        97,00      114,12            CT2 T2
           18                             2.971       170,83      200,98            CT6 T1
           19                             5.857       336,78      396,21            CT6 T2
  Armari Enllumenat nº1                                 4,83       5,376            CT2 T2
  Armari Enllumenat nº2                                4,83        5,376            CT4 T1

                                                                                     [taula 7]

       Aprofitant doncs, amb la previsió de potència de l’enllumenat exterior i d’acord
amb el que diu la instrucció ITC-BT-009, concretament a l’apartat 8, cada punt de llum
haurà d’estar compensat individualment el factor de potencia per a que sigui igual o
superior a 0,9, així mateix també haurà d’estar protegit contra sobreintensitats, tal com es
determina en la ITC-BT 009 a l’apartat 9.




Albert Bel Esteller

Enginyer Tècnic Industrial en Electricitat                                                30
Electrificació Polígon Industrial “Los Campets”                               Annex de Càlcul

       En aquesta taula es pot veure que si comparem les diferents previsions de potència
per a les diverses parcel·les amb l’enllumenat exterior , aquest últim es gairebé
despreciable, però per a aproximar-mos amb més exactitud amb el que pot ser a la realitat
d’aquest polígon s’ha tingut en compte alhora de dimensionar els CT’s amb els respectius
transformadors.

3.6.3 Previsió de futures ampliacions de transformadors


                                                      TRAFO
                                      Pev. Pot per   EXISTENT         Previsió futura
                                      Trafo [kVA]      [kVA]         ampliació [kVA]
     CT 1             TRAFO 1           492,88          400                630
                      TRAFO 2           267,21          400                400
     CT 2             TRAFO 1           382,34          400                400
                      TRAFO 2           326,87          400                400
     CT 3             TRAFO 1           451,88          400                630
                      TRAFO 2           252,73          400                400
     CT 4             TRAFO 1           303,06          400                400
                      TRAFO 2           303,06          400                400
     CT 5             TRAFO 1           210,72          400                400
                      TRAFO 2           533,53          400                630
     CT 6             TRAFO 1           415,18          400                630
                      TRAFO 2           396,21          400                400

                                                                                      [taula 8]

       Com es pot observar en la taula 8, hi ha parcel·les que necessiten més potència de
400 kVA com és el cas de la parcel·la 15. En aquest cas és tindrà en compte aquesta
potència, però en un principi, com el que s’ha fet ha estat una previsió de potència,
s’esperarà que s’instal·li una empresa, i en el cas que es necessiti la potència esmentada es
realitzarà tal com s’indica en la taula següent un ampliació de transformador de 400kVA a
630 kVA.

      A l’igual que en el cas del trafo 2 del CT 5, es a dir la parcel·la 15, en d’altres
transformadors, com el trafo 1 del CT1, el trafo 1 del CT3 i el trafo 1 del CT 6, també es
pot veure com estan relativament saturats, però com ja hem dit abans aquests valors és en
relació a la previsió de potència feta, en aquesta casos, també es seguirà la mateixa
metodologia de treball, és a dir, s’esperarà que s’instal·lin les empreses, i en el cas en que
es requereixi la potència prevista es realitzarien les ampliacions de trafos pertinents, tal
com s’explica en la taula.




Albert Bel Esteller

Enginyer Tècnic Industrial en Electricitat                                                 31
Electrificació Polígon Industrial “Los Campets”                               Annex de Càlcul


3.7    Sortides de l’armari de Baixa tensió dels transformadors dels centres de
       transformació



                                                   I sortida    I total
                                 C1 S1 i S2        222,3125    444,625
                                 C1 S3 i S4        222,3125    444,625
                                 C2 S1 i S2         241,05      482,1
                                 C1 S1 i S2        344,9125    689,825
                                 C1 S3 i S4        191,925      383,85
                                 C1 S1 i S2        219,6875    439,375
                                 C1 S3 i S4        227,9875    455,975
                                 C2 S1 i S2       187,95625    375,9125
                                  C1 S1              334,9      334,9
                                  C1 S2              293,9      293,9
                                  C1 S3            252,8875    252,8875
                                  C1 S4            211,875     211,875
                                  C1 S1            170,875     170,875
                                  C1 S2            209,3125    209,3125
                                 C1 S3 i S4           350         700
                                 C1 S1 i S2        193,2375    386,475
                                 C2 S1 i S2         102,95      205,9
                                 C1 S3 i S4       181,30625    362,6125
                                 C2 S1 i S2           350         700

                                                                                      [taula 9]

      La taula 9 ens explica com, amb la previsió de potència feta, i els cables escollits per
portar-la, quines sortides utilitzarem per a poder complir que la saturació del cable no ens
augmenti un 80 %, i que la caiguda de tensió no ens passi els límits, així que tal com es
pot veure portarem sortides doblades sempre que superem els 350 A, i com a partir d’aquí
es divideix la intensitat en els casos que doblem circuits.




Albert Bel Esteller

Enginyer Tècnic Industrial en Electricitat                                                 32
Electrificació Polígon Industrial “Los Campets”                                Annex de Càlcul


3.8    Determinació dels fusibles adoptats per a les diferents sortides dels armaris de
       baixa

                                        FUSIBLES    I sortida
                                           315      222,3125
                                           315      222,3125
                                           315       241,05
                                           400      344,9125
                                           315      191,925
                                           315      219,6875
                                           315      227,9875
                                           315     187,95625
                                           400        334,9
                                           400        293,9
                                           315      252,8875
                                           315      211,875
                                           315      170,875
                                           315      209,3125
                                           400         350
                                           315      193,2375
                                           315       102,95
                                           315     181,30625
                                           400         350

                                                                                      [taula 10]

      Els fusibles escollits van d’acord amb la intensitat que es portarà per circuit, encara
que cal dir que en el cas de parcel·les amb poca potència, hem posat un fusible mínim de
315A per a poder tenir un marge en cas d’una sobreintensitat o una ampliació de potència
en alguna parcel·la.



       Diem que van d’acord amb les intensitats perquè s’escullen fusibles amb una
intensitat de tall inferior a la intensitat màxima admissible que pot aguantar el cable,
segons el cable, i així evitar avaries en la xarxa subterrània i evitar despeses innecessàries,
d’aquesta forma en cas d’un augment d’intensitat superior a la intensitat de tall del fusible,
es canviarà el fusible i la instal·lació estarà intacta.




Albert Bel Esteller

Enginyer Tècnic Industrial en Electricitat                                                   33
Electrificació Polígon Industrial “Los Campets”                             Annex de Càlcul



4      Xarxa de distribució en BT
4.1    Càlcul de la potència i intensitat màxima en cada parcel·la

      Tal com ja s’ha explicat amb tot detall en l’apartat de “Càlcul de la potència” de la
memòria de càlcul, per a trobar la potència esmentada ens ha tocat seguir, tan el reglament
de BT com diverses ordenances municipals de l’Ajuntament d’Alcanar. I serà a partir de la
previsió de potència que s’ha fet, des d’on traurem la intensitat màxima de cada parcel·la.

       La Intensitat màxima de cada parcel·la es calcula amb la següent fórmula:

                           P
              I=
                      U ·cosϕ 3
       On:
              - I: Intensitat [A]
              - U: Tensió en [V]
              - P : Potència prevista [kW]
              - Cos ϕ : Factor de potència = 0,85

                 Parcel·la       Superfície [m2] Potència [kW] Intensitat [A]
                     1               3.643           209,47        355,70
                     2               3.643           209,47        355,70
                     3               3.950           227,13        385,68
                     4               5.652           324,99        551,86
                     5               3.145           180,84        307,08
                     6               3.600           207,00        351,50
                     7               3.736           214,82        364,78
                     8               3.080           177,10        300,73
                     9               2.744           157,78        267,92
                    10               2.408           138,46        235,12
                    11               2.072           119,14        202,31
                    12               1.736           99,82         169,50
                    13               1.400           80,50         136,70
                    14               1.715           98,61         167,45
                    15               7.887           453,50        770,09
                    16              3.166,50         182,07        309,18
                    17               1.687           97,00         164,72
                    18               2.971           170,83        290,09
                    19               5.857           336,78        571,88

                                                                                   [taula 11]




Albert Bel Esteller

Enginyer Tècnic Industrial en Electricitat                                                34
Electrificació Polígon Industrial “Los Campets”                                 Annex de Càlcul

4.2    Càlcul de les seccions dels conductors

       Per a determinar la secció dels conductors que utilitzarem ens basarem en dos
mètodes, el primer mètode es tenint en compte les intensitats màximes admissibles amb
tots els factors de correcció aplicats, i el segon mètode serà per càlcul de les caigudes de
tensió.

4.2.1 Càlcul de les seccions mitjançant Intensitat Màxima Admissible

      Per a poder utilitzar el primer mètode esmentat, ens basarem amb les intensitats
màximes admissibles per parcel·la i la ITC BT-07 del reglament de BT que ens dictamina
la secció del conductor a escollir depenent del tipus de cable que hem escollit, que en el
nostre son cables unipolars amb tipus d’aïllament de polietilè reticulat, i de la intensitat
màxima admissible.

       El factor de correcció de la resistivitat tèrmica del terreny en principi, no afectarà la
instal·lació, ja que els cables estaran enterrats en una rasa i no es preveu que la temperatura
del terreny arribi a 25 ºC, ja que a la profunditat on aniran els cables les temperatures no
són tan elevades.

      També cal explicar que per a evitar utilitzar factors de correcció en cables enterrats
en un mateix pla és deixarà una distància superior a 8 cm.

      I en el cas de cables enterrats també per a evitar l’ús de factors de correcció a
diferents plans, es deixarà una distància major de 10 cm.

      En el nostre cas, els cables unipolars escollits aniran entubats. Per lo tant si seguim el
reglament de BT, concretament la ITC-BT-07 s’instal·larà un circuit per tub, la relació
entre el diàmetre interior del tub i el diàmetre aparent del circuit serà superior a 2, podent-
se acceptar 1,5 en casos excepcionals.

       En el cas d’una línia amb cable tripolar o amb una terna de cables unipolars a
l’interior d’un mateix tub (nostre cas), s’aplicarà un factor de correcció de 0,8.




Albert Bel Esteller

Enginyer Tècnic Industrial en Electricitat                                                   35
Electrificació Polígon Industrial “Los Campets”                               Annex de Càlcul


       Aplicació del factor de correcció per cable entubat

                                                  Intensitatcorregida
                                     Parcel·la          [A]
                                        1             444,629
                                        2             444,629
                                        3             482,098
                                        4             689,827
                                        5             383,848
                                        6             439,381
                                        7             455,979
                                        8             375,914
                                        9             334,906
                                        10            293,897
                                        11            252,888
                                        12            211,879
                                        13            170,870
                                        14            209,316
                                        15          962,61 / 700
                                        16            386,472
                                        17            205,899
                                        18            362,611
                                        19          714,85 / 700

                                                                                     [taula 12]

      Consideracions a tenir en compte alhora d’escollir la secció dels cables pel mètode
d’Intensitat Màxima Admissible

      Pel que respecta la selecció dels cables alhora de la distribució en BT per tot el
polígon, ens basarem amb el que es decreta a la instrucció ITC-BT-07 del Reglament de
BT, concretament a la taula 4, on està el tipus de conductor escollit, com és el d’alumini
unipolar amb aïllament de polietilè reticulat, i segons el reglament ens diu que la intensitat
màxima admissible per aquest tipus de cable és de 430 A.

      Tot i això, per recomanacions de la companyia subministradora s’intentarà que els
conductors no portin més de 350A per a que la saturació no ens pugi molt més del 80%,
per a que els cables ens aguantin bé en cas d’alguna ampliació, o avaria.

      En conseqüència amb l’explicat al punt anterior, en el cas de les parcel·les nº15 i
nº19 en que la intensitat es de 962,61 A i 714,848 A també s’ha arribat a la determinació
que la intensitat màxima serà de 700 A d’acord amb les recomanacions de la companyia, i
així poder facilitar els transport d’energia, que en ambdós casos es transportaria amb dos
conductors de 3x240+1x150AL .(2x3x240+2x1x150 AL).

     Dit això cal que quedi clar que els cables que utilitzarem per a la xarxa de BT seran
3x1x240+1x150Al per a parcel·les que necessitaran fins a 350A per a poder tenir la

Albert Bel Esteller

Enginyer Tècnic Industrial en Electricitat                                                  36
Electrificació Polígon Industrial “Los Campets”                                Annex de Càlcul

potència prevista, i que en els casos en que la intensitat a transportar serà superior 350A,
passarem a portar la intensitat en una mateixa parcel·la amb dos cables en paral·lel
2x3x240+2x1x150 Al, i així poder portar fins als 700A.

       Determinació de les línies en funció de la potència de les parcel·les
         Parcel·la       Intensitat [A] Intensitatcorregida [A]           Saturació (%)
             1               355,70           444,625                        51,701
             2                355,7           444,625                        51,701
             3               385,68            482,1                         56,058
             4               551,86           689,825                        80,212
             5               307,08            383,85                        44,634
             6                351,5           439,375                        51,090
             7               364,78           455,975                        53,020
             8               300,73          375,9125                        43,711
             9               267,92            334,9                         77,884
            10               235,12            293,9                         68,349
            11               202,31          252,8875                        58,811
            12                169,5           211,875                        49,273
            13                136,7           170,875                        39,738
            14               167,45          209,3125                        48,677
            15               770,09          962,6125             700        81,395
            16               309,18           386,475                        44,939
            17               164,72            205,9                         47,884
            18               290,09          362,6125                        42,164
            19               571,88            714,85             700        81,395
                                                                                  [taula 13]

4.2.2 Càlcul de les seccions en funció de la caiguda de tensió

       La caiguda de tensió en cada línia de distribució no podrà superar el 5% de la tensió
de la línia com estableix el reglament de baixa tensió.

       Per comprovar que la línia compleixi aquesta condició es realitzarà el càlcul de la
secció per a una caiguda del 5% i s’adoptarà un valor normalitzat immediatament superior
a la secció obtinguda.

     Per a realitzar el càlcul de la secció pel mètode de la caiguda de tensió utilitzarem la
següent formula:

                 1
       S=                ·∑ ( Li·Pi )
             ∆U ·U ·K Al

       On:
              - S = secció dels conductors [ mm 2 ]
              - ∆u = caiguda de tensió [ V ]
              - U = tensió entre fases [ V ]

Albert Bel Esteller

Enginyer Tècnic Industrial en Electricitat                                                  37
Electrificació Polígon Industrial “Los Campets”                                 Annex de Càlcul

              - KAl = 35 (conductivitat de l’alumini). [m/Ω.mm2]
              - Li = distància des del transf. fins armari de distribució [m]
              - Pi = potència de cada parcel·la [ W ]

      Per fer la següent taula, a l’igual que en l’anterior, la nomenclatura que s’ha seguit ha
estat la de numerar les parcel·les, i es per això que es dóna per suposat que amb les
parcel·les ens referim a les línies que hi arriben.


       Parcel·la            Li                  Pi          ΣLi·Pi         Secció [mm2]
          1                  35              209472,5    7331537,50            26,18
          2                  22              209472,5    4608395,00            16,46
          3                  35              227125,0    7949375,00            28,39
          4                  15              324990,0    4874850,00            17,41
          5                  70              180837,5    12658625,00           45,21
          6                  15              207000,0    3105000,00            11,09
          7                  15              214820,0    3222300,00            11,51
          8                 105              177100,0    18595500,00           66,41
          9                  30              157780,0    4733400,00            16,91
          10                 25              138460,0    3461500,00            12,36
          11                 35              119140,0    4169900,00            14,89
          12                 80               99820,0    7985600,00            28,52
          13                 25               80500,0    2012500,00            7,19
          14                 30               98612,5    2958375,00            10,57
          15                 50              453502,5    22675125,00           80,98
          16                 30              182073,8    5462212,50            19,51
          17                 25               97002,5    2425062,50            8,66
          18                 95              170832,5    16229087,50           57,96
          19                150              336777,5    50516625,00          180,42
                                                                                   [taula 14]

      Com es pot veure en la taula 14, si fos per la caiguda de tensió, escolliríem unes
seccions de cables molt reduïdes, això s’explica, degut a que com des d’un principi ja es va
intentar distribuir totes les parcel·les, amb els CT’s més pròxims, el que hem aconseguit, és
reduir en molta quantitat les caigudes de tensió.



       Pel que respecta al nostre cas, tal com hem pogut veure amb el primer mètode
utilitzat per a calcular les seccions, el de la Intensitat màxima admissible dels conductors
escollits, com en les parcel·les s’hi ha de portar molts kW, ens ha tocat portar en moltes
parcel·les circuits doblats per a que la saturació no ens sobrepassés l’estipulat des d’un
principi.



      És per aquest últim motiu que s’han escollit una secció de 240 Al, ja que amb una
secció més petita tot i complir amb el mínim requerit pel mètode de la caiguda, seria més

Albert Bel Esteller

Enginyer Tècnic Industrial en Electricitat                                                   38
Electrificació Polígon Industrial “Los Campets”                               Annex de Càlcul

complicat portar tota la potència, ja que ens tocaria triplicar o inclòs quadruplicar els
circuits per a poder portar la potència requerida, i a part també s’haurien d’instal·lar
armaris d’ampliació de BT als CT’s per a poder treure totes les sortides necessàries.

       Seguint amb els requisits que hem explicat pel que respecta a la forma en que
distribuirem, en BT, a continuació anirà la taula de les caigudes de tensió per a cada circuit
amb els 240Al escollits, i veritablement tindrem les caigudes que tindrem en realitat.



                Parcel·la         Conductor Al    cdt parcial [V]   cdt parcial %
                    1               240 mm2            2,182            0,545
                    2               240 mm2            1,372            0,342
                    3               240 mm2            2,366            0,591
                    4               240 mm2            1,451            0,362
                    5               240 mm2            3,767            0,941
                    6               240 mm2            0,924            0,231
                    7               240 mm2            0,959            0,239
                    8               240 mm2            5,534            1,383
                    9               240 mm2            1,409            0,352
                   10               240 mm2            1,030            0,257
                   11               240 mm2            1,241            0,310
                   12               240 mm2            2,377            0,594
                   13               240 mm2            0,599            0,149
                   14               240 mm2            0,880            0,220
                   15               240 mm2            6,749            1,687
                   16               240 mm2            1,626            0,406
                   17               240 mm2            0,722            0,180
                   18               240 mm2            4,830            1,207
                   19               240 mm2           15,035            3,758
                                                                                     [taula 15]

4.2.3 Determinació de la secció dels Neutres

       Alhora de determinar la secció dels neutres es tindrà en compte l’apartat 2, Taula 1,
de la instrucció ITC-BT-08 del Reglament de B.T, on es diu que:

    La secció del conductor neutre haurà, en tot el seu recorregut, ser com a
mínim igual a la indicada en la taula següent, en funció dels conductors de fase.

     Concretament en el nostre cas en que es farà la distribució en baixa, tots amb
cables de 240 Al, la secció del neutre haurà de ser com a mínim de 120 mm 2 .




Albert Bel Esteller

Enginyer Tècnic Industrial en Electricitat                                                  39
Electrificació Polígon Industrial “Los Campets”                                                      Annex de Càlcul



5      Càlcul enllumenat exterior
5.1    Càlculs Luminotècnics

      En aquest apartat detallarem tots els elements que composen el sistema d’enllumenat
exterior del polígon, justificant totes les solucions adoptades. A banda d’aquests detalls que
donarem a l’annex de càlcul hi anirà el càlcul realitzat pel programa “Calculux Viario”.

       També cal dir que se li ha donat certa importància per a realitzar els càlculs
luminotècnics, els requeriments establerts en les instruccions tècniques complementàries
generals d’enllumenat públic A-IT-G1. En aquestes s’indiquen les característiques
d’il·luminació segons una classificació de les vies de circulació.

      Ja que, pel que respecta al tema d’enllumenat hi ha certes mancances alhora d’existir
una legislació o normativa que legalitzi i normalitzi en xifres per a cada cas determinat.

     Per a vies interiors de polígons industrials, els estàndards i nivells mínims de qualitat
luminotècnica són els següents:
                                              Il·luminància mitja
                           Luminància Mitja




                                                                                      Control d’enlluernament
         Tipus de via




                                                                        Uniformitat
                               (cd/m2)



                                                     (Lux)




                                                                                                           contrast (TI)
                                                                                                            Umbral de
                                                                                         Índex “G”




    Autopistes i                                                     Molt bona
    carreteres                 2                     30-50           Um ≥ 0,75             >6            < 10%
     principals
     Carreteres                                                       Bona
    secundàries                1                     15-25           Um ≥ 0,6              >5            < 10%
     amb tràfic
     Carrers                                                         Molt bona
    principals                 2                     30-50           Um ≥ 0,75             >6            < 10%

  Carrers                                                             Bona
 secundaris                    1                     15-25           Um ≥ 0,6              >5            < 10%
amb fort tràfic
  Carrers                                                           Satisfactòria
 secundaris                 0.5                        7-15          Um ≥ 0,5              >4            < 20%
amb poc tràfic

                                                                                                             [taula 16]


Albert Bel Esteller

Enginyer Tècnic Industrial en Electricitat                                                                                 40
Electrificació Polígon Industrial “Los Campets”                                Annex de Càlcul

       Per al nostre cas escollirem “carrers secundaris amb poc trànsit”, degut a que per part
de l’Ajuntament es preveu que les empreses que s’estableixin en el polígon no tinguin
activitat per la nit, i en cas de que hi hagués alguna, aquesta mateixa aportaria la millora de
l’enllumenat adequant-lo a les necessitats de l’empresa.

      Dit això podem dir també que una de les coses que també s’ha intentat en el disseny
de l’enllumenat exterior del polígon, és que la contaminació lumínica sigui la mínima, ja
que en aquests temps que estem vivint, com l’energia no ens manca (ja sigui de fonts
renovables o contaminants), hi ha moltes instal·lacions d’enllumenat molt sobre-
dimensionades, especialment les podem trobar en ciutats o inclòs en moltes poblacions. I
en el cas de un polígon, tenir entre 7 i 15 lux de mitja està massa bé.

5.1.1 Elecció de la lluminària

       Alhora d’enllumenar el polígon escollirem làmpades de vapor de sodi d’alta pressió,
respecte a altres tipus de làmpades, aquestes presenten la gran avantatja de que tenen una
vida molt més llarga (sobre les 12.000 hores), la qual cosa evita un manteniment freqüent.
A més cal dir que presenten un rendiment molt elevat (de 70 a 120 lm/W). Un altre
avantatja que podem trobar es el rang de potències que podem escollir, de dels 50 W fins
als 1.000 W.

     El gran inconvenient que ens trobem en aquest tipus de lluminàries es que presenten
un Índex de Reproducció Cromàtica molt baix, (entre 20 i 60), però després d’explicar
quines son les previsions per part de l’Ajuntament d’Alcanar, en que per les nits no hi hagi
massa activitat, no és un factor que ens importi gaire, ja que al ser un polígon no
necessitaríem un IRC alt.

       Les dades de la lluminària i de la carcassa de fora escollides són les següents:
              - Tipus de carcassa: SGS305/150T FG P.9 X
              - Tipus de làmpada: 1x SON- TP 150W
              - Potència: 168 kW
              - Φ=16.500 lm

5.1.2 Càlcul de la distància entre lluminàries

       En funció de les dades de la lluminària escollida, haurem de saber a quina distància
instal·larem els diversos punts de llum, per a poder garantir una bona qualitat, i complir
amb els requisits preestablerts en anterioritat mitjançant la taula 16.

       Per a realitzar uns càlculs aproximats escollirem un rendiment del 40%.

       Flux útil de cada focus

                ΦU = Φ · η

                ΦU = 16.500 · 0,4 = 6.600 lm




Albert Bel Esteller

Enginyer Tècnic Industrial en Electricitat                                                  41
Electrificació Polígon Industrial “Los Campets”                           Annex de Càlcul


       On:
              - Φu = Flux útil
              - Φ = Flux de la lluminària
              - η = Rendiment de la lluminària

       Superfície il·luminada per cada focus

                       Φ u 6.600
         S = 12·D =       =      = 440m 2
                       E    15

       On:
              - S: Superfície il·luminada per cada focus. [m2]
              - D: Distància de separació entre lluminàries [m]
              - E: Il·luminància mitja (taula anterior amb dependència del tipus de via)
                [lux]

       Distància entre focus:

                       S 440
                D=      =    = 36,66m
                      12 12
              - S: Superfície il·luminada per cada focus. [m2]
              - D: Distància de separació entre lluminàries [m]

      El que ens diu l’aplicació d’aquestes fórmules, es que com a mínim, en aquestes
lluminàries escollides per a poder donar una il·luminància mitja de 15 lux, els punts de
llum han d’estar a 36,66 m, sabent això el que escollirem per a dimensionar-ho bastant es
una distància de 30 m entre punts de llum.

       Atura dels punts de llum

     Per a calcular l’altura dels punts de llum ens hem basat en taules de valors
recomanats d’acord amb la publicació nº12 de la CIE, 2ª Edició 1977.




Albert Bel Esteller

Enginyer Tècnic Industrial en Electricitat                                             42
Electrificació Polígon Industrial “Los Campets”                              Annex de Càlcul


      En la taula 17 podem trobar l’altura dels punts de llum en relació a l’amplada de la
calçada .



                   Classe            Amplada de     Disposició   Altura de
                d’instal·lació        la calçada   recomanada    muntatge
                d’enllumenat              (m)                       (m)
                     A1                  8/10          1-2         10-12
                                        > 10           2-4          > 12
                       A2                < 10           1           >10
                                          >10          2-3         10-12
                       b1                  <8           1            >8
                                         8/10          1-2         8-10
                                          >10          2-3          > 10
                       b2                 <8            1           >7,5
                                           >8           1           8-9
                      C1-C2                --           1          3,5-9


                                                                                    [taula 17]

       On:
              - Disposició Unilateral
              - Disposició en portell
              - Bilateral aparellada
              - Doble central

      Pel que respecta a les disposicions dels punts de llum, no es gaire important ja que a
partir d’un determinat pressupost, o bé a partir d’aspectes constructius o requisits de
disseny es pot escollir una o una altra disposició, sempre complint amb el preestablert
prèviament. En el nostre cas el que s’ha escollit es una disposició en portell, per a evitar
futurs problemes alhora de la compra de les parcel·les ja que s’ha pensat que si es feia en
una disposició unilateral la banda oposada a la dels punts de llum, potser no interessava
tant per falta de lluminositat, o a l’invers, ja que s’hi estan els bàculs a un cantó hi ha
d’entrar algun camió a una parcel·la potser no hi podria entra amb tanta facilitat com si ho
fes en el cantó oposat, es per això s’ha arribat a la solució final de fer una disposició en
portell, per a repartir una mica tots els punts de llum i conseqüentment també els
avantatges i inconvenients que s’han esmentat i que podrien arribar a tenir els compradors.




Albert Bel Esteller

Enginyer Tècnic Industrial en Electricitat                                                 43
Electrificació Polígon Industrial “Los Campets”                                Annex de Càlcul


5.2    Càlculs Elèctrics

5.2.1 Càlcul de la Potència de l’Enllumenat.

       Alhora de realitzar el càlcul de la potència a instal·lar, s’hauran de sumar les
potències de tots els punts de llum que s’han tingut en compte alhora de dimensionar
l’enllumenat exterior del polígon. En les potències dels punts de llum es tindran en compte
els coeficients a aplicar per al càlcul de la previsió de càrregues establerts en la Instrucció
ITC-BT BT 009 del Reglament Electrotècnic de Baixa Tensió, referent a les làmpades de
descàrrega.

      Es realitzaran els càlculs de la instal·lació de l’enllumenat que estarà formada per
dues línies de tres fases i neutre, que sortiran una de cada C.T. S’utilitzaran cables
tetrapolars amb aïllament de polietilè reticulat tipus UNE RV 0,6/1 kV.


                                Nº receptors      càrrega (W)            pot. total (W)
       LÍNIA 1                       16             168·1,8                 4.838,4
       LÍNIA 2                       16             168·1,8                 4.838,4
       TOTAL                         32                                     9.676,8

                                                                                      [taula 18]

      La potència total de l’enllumenat serà de 9.676,8 W, dividida en les dues línies. Per
lo tant a cada línia es contractarà una potència de 5 kW.

      Pel que respecta a l’esquema de la xarxa, en el plànol de distribució de l’enllumenat
exterior es poden veure les dues línies i els dos armaris d’enllumenat públic que
s’instal·laran en lloc permanentment accessible des de via pública segons Normativa
Endesa.

      Per a poder facilitar la visualització dels càlculs que es realitzaran a posteriori, a
continuació s’avança un esquema unifilar dels punts de llum amb els diversos nusos i
distàncies.




Albert Bel Esteller

Enginyer Tècnic Industrial en Electricitat                                                   44
Electrificació Polígon Industrial “Los Campets”                           Annex de Càlcul




5.2.2 Càlcul de la secció dels conductors per Caiguda de Tensió

      El Reglament de B.T indica en la instrucció MIE BT 009 que la secció mínima dels
conductors serà de 6 mm 2 , i la xarxa estarà prevista per transportar una càrrega mínima
en voltampers de 1,8 vegades la potència en wats de les làmpades que alimenta.

    D’acord amb la instrucció MIE BT 017 del Reglament de B.T, s’adoptarà com a
màxim una caiguda de tensió de 3 %.

      El procediment del càlcul consistirà en trobar la caiguda de tensió considerant una
secció de 6 mm 2 i comprovant que la caiguda de tensió no superi el 3 %, en cas contrari
s’escollirà una secció superior.

       La fórmula utilitzada pel càlcul de la caiguda de tensió serà:

                        P· L·ρ
                ∆U =
                        U ·S

       On:
              - ∆U = caiguda de tensió en V.
              - P = potència en W.
              - S = secció del conductor en mm 2 .
              - ρ = resistivitat del coure 1/56 Ω×m / mm 2 .

Albert Bel Esteller

Enginyer Tècnic Industrial en Electricitat                                             45
Electrificació Polígon Industrial “Los Campets”                                Annex de Càlcul

              - U = tensió de subministrament en V.
              - L = longitud del conductor en metres.

       Els càlculs de les Caigudes de tensió en cada tram es realitzaran en cada una de les
línies de la xarxa, que com ja s’ha informat prèviament són dues per armari d’enllumenat
exterior, i es considerarà cada un dels trams que les formen.

       A banda d’això explicat, també és realitzaran tenint en compte els moments elèctrics,
i es realitzarà mitjançant la fórmula següent:

                        ρ ·∑ Li·Pi
                ∆U =
                            U ·S

       On:
              - ∆U = caiguda de tensió [V]
              - Pi = potència [W]
              - S = secció del conductor en mm 2 (6 mm2) [mm2]
              - ρ = resistivitat de l’alumini 1/56 [Ω×m / mm2]
              - U = tensió de subministrament en V [400V]
              - L = longitud del conductor [m]

      A continuació es realitzaran els càlculs de les diverses línies d’enllumenat que
s’instal·laran al polígon.

       Armari d’enllumenat nº 1. Sortida 1. Tram 1-2

                        1,8·168·[(33·4) + (93·3) + (153·2) + (213·1)
                ∆U =                                                 = 2,09V
                                         56·400·6

                           ∆U ·100
                ∆U % =             = 0,52 %
                             U

       Armari d’enllumenat nº 1. Sortida 1. Tram 1-3

                        1,8·168·[(17·4) + (77·3) + (137·2) + (197·1)
                ∆U =                                                 = 1,73V
                                          56·400·6

                           ∆U ·100
                ∆U % =             = 0,433%
                             U

       Armari d’enllumenat nº 1. Sortida 2. Tram 1-2

                        1,8·168·[(25·3) + (70·2) + (135·1)
                ∆U =                                       = 0,7875V
                                    56·400·6



Albert Bel Esteller

Enginyer Tècnic Industrial en Electricitat                                                  46
Electrificació Polígon Industrial “Los Campets”                                      Annex de Càlcul

                           ∆U ·100
                ∆U % =             = 0,197%
                             U

       Armari d’enllumenat nº 1. Sortida 2. Tram 1-3-5

                        1,8·168·[(25·5) + (70·4) + (135·3) + (180·2) + (240·1)]
                ∆U =                                                            = 3,175V
                                               56·400·6

                           ∆U ·100
                ∆U % =             = 0,793%
                             U

       Armari d’enllumenat nº 1. Sortida 2. Tram 1-3-4

                        1,8·168·[(25·4) + (70·3) + (130·2) + (170·1)]
                ∆U =                                                  = 1,665V
                                          56·400·6

                           ∆U ·100
                ∆U % =             = 0, 4165%
                             U

       Armari d’enllumenat nº 2. Sortida 1. Tram A-1-3-4

                        1,8·168·[(15·5) + (75·4) + (130·3) + (220·2) + (40·1)]
                ∆U =                                                           = 2,801V
                                               56·400·6

                           ∆U ·100
                ∆U % =             = 0,700%
                             U

       Armari d’enllumenat nº 2. Sortida 1. Tram A-1-3-5

                        1,8·168·[(15·6) + (75·5) + (130·4) + (220·3) + (290·2) + (350·1)]
                ∆U =                                                                      = 5,79V
                                                     56·400·6

                           ∆U ·100
                ∆U % =             = 1,45%
                             U

       Armari d’enllumenat nº 2. Sortida 1. Tram A-1-2

                        1,8·168·[(15·3) + (75·2) + (60·1)]
                ∆U =                                       = 0,57V
                                    56·400·6

                           ∆U ·100
                ∆U % =             = 0,14%
                             U

       Armari d’enllumenat nº 2. Sortida 2. Tram A-1-3

                        1,8·168·[(55·7) + (115·6) + (175·5) + (235·4) + (290·3) + (350·2) + (410·1)]
                ∆U =                                                                                 = 10,96V
                                                          56·400·6


Albert Bel Esteller

Enginyer Tècnic Industrial en Electricitat                                                          47
Electrificació Polígon Industrial “Los Campets”                                      Annex de Càlcul

                           ∆U ·100
                ∆U % =             = 2,74%
                             U

       Armari d’enllumenat nº 2. Sortida 2. Tram A-1-2

                        1,8·168·[(55·5) + (115·4) + (175·3) + (235·2) + (275·1)]
                ∆U =                                                             = 4,51V
                                                56·400·6

                           ∆U ·100
                ∆U % =             = 1,13%
                             U

      Com s’ha pogut veure els resultats de tots els trams calculats no han superat en cap
cas la ∆V, determinada al reglament de Baixa Tensió, que com ja s’ha avançat
anteriorment es del 3%. Cal dir que en el cas que ens hagués superat el 3% amb una
determinada secció de cable, el que es faria és provar de calcular la caiguda de tensió amb
la secció immediatament superior fins que aconseguim una caiguda de tensió d’acord amb
el reglament de Baixa Tensió.

5.2.3 Càlcul de la Secció dels Conductors per Intensitat Màxima Admissible

       Alhora de realitzar el càlcul de la secció també tindrem en compte realitzar-ho a
partir de la Intensitat Màxima Admissible del conductor escollit i la potència a transportar.
Per escollir la secció dels cables a partir del càlcul de la intensitat màxima admissible es
seguirà la instrucció MIE BT 007 del Reglament de Baixa Tensió. Amb el valor calculat
de la intensitat es comprovarà la secció corresponent, què figura en la Taula I per a cables
amb conductors de coure.

                            P
                  I=
                       U ·cosϕ · 3

       On:
              - P: Potència acumulada per línia calculada                           [W]
              - U: Tensió de subministrament                                                [V]
              - I: Intensitat per línia                                              [A]
              - Cos ϕ : Factor de potència, que en al cas de les llumeneres considerarem 0,9
                per les bateries de condensadors que hi porten normalment cada llumenera.


       Intensitat línia de l’Armari d’enllumenat nº1

                  P = 1,8·n·W = 1,8·16·168 = 4.838,4W

                           P        4.838,4
                I=                =           = 7,76 A
                      U ·cos ϕ · 3 400·0,9· 3




Albert Bel Esteller

Enginyer Tècnic Industrial en Electricitat                                                        48
Electrificació Polígon Industrial “Los Campets”                              Annex de Càlcul


       Intensitat línia de l’Armari d’enllumenat nº2

                P = 1,8·n·W = 1,8·16·168 = 4.838,4W

                           P        4.838,4
                I=                =           = 7,76 A
                      U ·cos ϕ · 3 400·0,9· 3

      S’aplicarà un factor de correcció de la intensitat per tractar-se de cables instal·lats
dins d’un tub enterrat tal i com s’estableix en la ITC-BT-007. El factor de correcció de la
intensitat màxima admissible serà de 0,8. No serà necessari aplicar altres factors que es
descriuen en la citada instrucció per les característiques de la disposició del cable.

       Intensitat corregida línia de l’Armari d’enllumenat nº1

                        I   7,76
                Ic =      =      = 9,7 A
                       0.8 0,8

       Intensitat corregida línia de l’Armari d’enllumenat nº2

                        I   7,76
                Ic =      =      = 9,7 A
                       0.8 0,8

     Els resultats dels càlculs realitzats amb la fórmula de la intensitat anteriorment
mostrada apareixen en les taules 19 i 20:
         Armari d'enllumenat nº1
   Sortida 1       nombre lluminàries                 P [W]       In [A]     Ic[A]        S[mm2]
   Tram 1-2                4                          1209,6      1,940      2,425           6
   Tram 1-3                4                          1209,6      1,940      2,425           6
   Sortida 2       nombre lluminàries                 P [W]       In [A]     Ic[A]        S[mm2]
   Tram 1-2                3                           907,2      1,455      1,819           6
  Tram 1-3-5               5                           1512       2,425      3,031           6
  Tram 1-3-4               4                          1209,6      1,940      2,425           6

                                                                                     [taula 19]

            Armari d'enllumenat nº2
    Sortida 1       nombre lluminàries                   P [W]      In [A]     Ic[A]           S[mm2]
  Tram A-1-3-4               5                            1512      2,425      3,031              6
  Tram A-1-3-5               6                           1814,4     2,910      3,637              6
   Tram A-1-2                3                            907,2     1,455      1,819              6
    Sortida 2       nombre lluminàries                   P [W]      In [A]     Ic[A]           S[mm2]
   Tram A-1-3                7                           2116,8     3,395      4,244              6
   Tram A-1-2                5                            1512      2,425      3,031              6

                                                                                     [taula 20]




Albert Bel Esteller

Enginyer Tècnic Industrial en Electricitat                                                  49
Electrificació Polígon Industrial “Los Campets”                                 Annex de Càlcul

      Amb el valor de la intensitat, s’escollirà la secció mínima indicada en la Taula I del
Reglament de B.T: Secció = 6 mm 2 . Aquesta serà suficient per conduir la intensitat
màxima de cada línia ja que el seu límit és molt superior: I = 56 A, tal com s’indica en la
taula 5 de la ITC-BT-07.

      Per determinar la secció dels conductors corresponents al neutre es complirà la
instrucció ITC-BT-07, concretament al punt 1, taula 1 la qual indica que per a conductors
de fase de fins a 6 mm2 de secció, els neutres tindran la mateixa secció.

5.3     Posta a Terra de l’Enllumenat exterior del polígon

       Pel que respecta a la posta a terra de l’enllumenat exterior, tal com s’indica en la
ITC-BT-09, concretament a l’apartat 10, la màxima resistència de posta a terra serà tal, que
al llarg de la vida la instal·lació i en qualsevol època de l’any, no es poden produir tensions
de contacte majors de 24 V en les parts metàl·liques accessibles de la instal·lació. (suports,
quadres metàl·lics...)

       La posta a terra dels suports que sostenen les lluminàries es realitzarà connectant
individualment cada suport, mitjançant un conductor de protecció de coure, a la línia
principal de terra de coure, la qual estarà unida en un extrem a un elèctrode mitjançant una
línia d’enllaç.

        En la xarxa de terra s’instal·laran com a mínim un elèctrode de posta a terra cada 5
suports, i sempre en el primer i últim suport de cada línia. Però com ja s’ha avançat, en el
nostre cas se’n col·locarà un per suport.

       Segons l’apartat 10 de la instrucció ITC-BT-09 en l’apartat 10:

       - Els conductors de la xarxa de terra que uneixen els elèctrodes hauran de ser
despullats, de coure de 35 mm2 de secció mínima si formen part de la pròpia xarxa de
terra, en aquest cas aniran per fora de les canalitzacions dels cables d’alimentació.

       - Aïllats, mitjançant cables de tensió assignada 450/750 V, en recobriment de color
verd-groc, amb conductors de coure, de secció mínima 16 mm2 per a xarxes subterrànies, i
d’igual secció que els conductors de fase per a les xarxes posades, en aquest cas aniran per
l’interior de canalitzacions dels cables d’alimentació.

       Així que per a resumir amb el que determina la instrucció esmentada, s’estableix per
a la línia principal de terra que el conductor tindrà una secció mínima de 16 mm 2 , i de 35
mm2 per a la línia d’enllaç.

     Per lo tant el cable que unirà les diferents piques entre elles i entre les piques i les
columnes es realitzarà amb cable de coure de 35 mm2.

       A més de la posta a terra, el sistema de protecció constarà d’un interruptor
diferencial de 30 mA de sensibilitat. Si lliguem el primer punt que diu la ITC-BT-09, en
l’apartat 10, on diu que no es poden produir tensions de contacte majors de 24 V en les
parts metàl·liques accessibles de la instal·lació. (suports, quadres metàl·lics...) , i posem un
interruptor diferencial de 30 mA ens quedarà el següent:



Albert Bel Esteller

Enginyer Tècnic Industrial en Electricitat                                                   50
Electrificació Polígon Industrial “Los Campets”                                Annex de Càlcul

                    24
              R=        = 800Ω
                   0,03

     Per lo tant amb el diferencial instal·lat i agafant el cas més desfavorable que marca el
reglament de BT, la resistència total del circuit de terres haurà de ser més petita de 800Ω.

       D’acord amb la ITC-BT-18 ap. 9 taula 5, després de revisar la taula 4 de la ITC-
BT18 i examinar amb molt deteniment el terreny, s’arriba a la determinació que la
resistivitat mitja es de 75 Ωm, i com que els elèctrodes a utilitzar seran piques verticals de
2 metres de llargada, aplicarem la fórmula de la ITC-BT-18 Taula 5, amb la qual obtenim
la resistència a terra per pica.

               ρ 75
         R=      =   = 37,5Ω
               L   2

       On:
              - ρ: Resistivitat mitja del terreny [Ω·m]
              - L: Longitud de la pica [m]
              - R: Resistència de terra [Ω]

       Quantitat inferior a la resistència màxima permesa. Tenint en compte que totes les
piques estaran unides entre elles i que el nombre total de piques serà de 32. Per a cada
línia, i tal com es pot veure a les taules anteriors el nombre màxim de suports serà de 7, i
amb la unió d’aquestes encara aniríem per sota de la màxima permesa.

      S’instal·larà una línia de posta a terra per cada una de les línies d’enllumenat
exterior de les que consta el polígon. Se situarà una pica en cada un dels suports. La
connexió de les diferents piques entre elles i entre les piques i els suports es realitzarà amb
cable de coure de 35 mm² de secció.

5.4    Càlcul dels Elements de Protecció i Comandament

     Cada una de les línies de l’enllumenat exterior del polígon sortirà d’un armari de
comandament situat al costat dels centres de transformació CT2 i CT4. Dins d’aquests
armaris s’instal·laran els elements necessaris de protecció i comandament de la línia, així
com els aparells de mesura. El dimensionat es farà segons la potència contractada i d’acord
amb les especificacions de la companyia subministradora d’energia.

      En el nostre cas, es contractarà una potència de 8 kW per armari, ja que tenim una
previsió de que el polígon creixi tan en superfície com en empreses grans, i d’aquesta
forma potser es necessiti millorar, tan qualitativament, com quantitativament, l’enllumenat
exterior del polígon. A banda d’això cal dir que fins a 13,8 kW els subministraments per a
enllumenats exteriors són monofàsics, i per lo tant en el nostre cas també ho serà. En
aquest mateix armari s’instal·larà un conjunt de protecció i mesura M2 per a la companyia,
i un mòdul de control per al client.

    A partir de la intensitat nominal de la línia d’enllumenat de cada armari de
comandament es seleccionaran els fusibles de seguretat, els equips de mesura, l’interruptor

Albert Bel Esteller

Enginyer Tècnic Industrial en Electricitat                                                  51
Electrificació Polígon Industrial “Los Campets”                                      Annex de Càlcul

tetrapolar magnetotèrmic (ICP), l’interruptor diferencial (ID), interruptors magnetotèrmics
(PIA) i contactors de maniobra.

       Els diferents aparells esmentats en el nostre cas seran els següents:
                                             Armari nº1                    Armari nº2

   Potència a contractar                           8                             8
           [kW]
   Fusibles de seguretat                          63 A                          63 A

    Conjunt de mesura                         M2 15 A                       M2 15A

    Magnetotèrmic ICP                         In 40 A                        In 40 A
                                             Tall 4.5 kA                   Tall 4.5 kA
        Diferencial ID                         In 40A                        In 40A
                                             Is 30 mA                       Is 30 mA
          Contactor                             30 A                           30 A

              PIA                     In 10 A           In 15 A      In 10 A          In 15 A
                                     Tall 10 kA        Tall 10 kA   Tall 10 kA       Tall 10 kA

     En l’annex s’adjuntarà un ITI facilitat per la companyia on es determina el conjunt
de protecció i mesura i tots els elements que els formen com per exemple els fusibles,
magnetotèrmics...




                                        Alcanar, a 19 d’Agost de 2004




                                              Albert Bel Esteller

                                   Enginyer Tècnic Industrial en Electricitat

Albert Bel Esteller

Enginyer Tècnic Industrial en Electricitat                                                        52
Electrificació Polígon Industrial “Los Campets”                           Pressupost




                                             Plànols




                                                        AUTORS: Albert Bel Esteller
                                                       DIRECTORS: J. J. Tena Tena.

                                                            DATA: Setembre / 2004.

Albert Bel Esteller
Enginyer Tècnic Industrial en Electricitat                                       1
ALCANAR




                                                                                        1
                                                                                      32
                                                                                   V-3
                                                                                 rT                           Ronda Circunval·lació
                                                                               na
                Terme Municipal d'Alcanar                                d'A
                                                                            lca
                                                                     a
                                                                  ter
                Tarragona (Catalunya)                        Ca
                                                               rre
                                                                                              Polígon Industrial "Los Campets"


                       Pont de l'estació




                                                                                  Riu Sènia
Terme Municipal de Vinaròs
Castelló (País Valencià)
                                                    l'AP-7
                                                      de
                                                 cona




                                                                                                                                                  Albert Bel
                                  Vina /sortida
                                            Ullde




                                                                                                                                                  J.J. Tena
                                      ròs i
                                      da
                                       s
                        Peatg ió Vinarò
                       d'Alc e d'entra




                                                                                                                                                   UNE         ALBERT BEL Nº Col:3456
                            anar,
                             c
                        Direc




                                                                                                                                       1:5.000
                                                                                                                                                 SITUACIÓ                                          Albert Bel
                                                                                                                                                                                        3r Curs d'Enginyeria
Ronda Circunval·lació
           Terme Municipal d'Alcanar
           Tarragona (Catalunya)                                                          -33
                                                                                             21
                                                                                        TV
                                                                                   ar
                                                                                 an
                                                                             'Alc                                            Los Campets
                                                                           ad
                                                                        ter
                                                                     rre
                                                                   Ca




                    Pont de l'estació
                                                               7
                                                          l'AP-




Terme Municipal de Vinaròs                                                               Riu Sènia
                                                     a de




Castelló (País Valencià)
                                                 econ
                                      aròs rtida
                                           i Ulld
                            anar trada/so
                                         s
                        Peat ió Vinarò

                                 , Vin
                                  'en




                                                                                                               Albert Bel
                             ge d




                                                                                                               J.J. Tena
                              c
                         Direc




                                                                                                                UNE         ALBERT BEL Nº Col:3456
                       d'Alc




                                                                                                     1:2000   EMPLAÇAMENT
                                                                                                                                                                Albert Bel
                                                                                                                                                     3r Curs d'Enginyeria
Electrificació Polígon Industrial “Los Campets”                              Pressupost




                                             Pressupost




                                                           AUTORS: Albert Bel Esteller
                                                          DIRECTORS: J. J. Tena Tena.

                                                               DATA: Setembre / 2004.

Albert Bel Esteller
Enginyer Tècnic Industrial en Electricitat                                          1
Electrificació Polígon Industrial “Los Campets”                                                            Pressupost




Índex del Pressupost

1.- Quadre de preus .................................................................................................. 3
      A.- LÍNIA AÈREA DE MITJA TENSIÓ........................................................... 3
      B.- LÍNIA SUBTERRÀNIA DE MITJA TENSIÓ............................................. 4
      C.- CENTRE DE TRANSFORMACIÓ ............................................................. 6
      D.- LÍNIES DE DISTRIBUCIÓ SUBTERRÀNEA DE BAIXA TENSIÓ ......... 8
      E.- ENLLUMENAT PÚBLIC ......................................................................... 11
2.- AMIDAMENTS ............................................................................................... 13
      A.- LÍNIA AÈRIA DE MITJA TENSIÓ.......................................................... 13
      B.- LÍNIA SUBTERRÀNIA DE MITJA TENSIÓ........................................... 14
      C.- CENTRE DE TRANSFORMACIÓ ........................................................... 16
      D.- LÍNIES DE DISTRIBUCIÓ SUBTERRÀNEA DE BAIXA TENSIÓ ....... 20
      E.- ENLLUMENAT PÚBLIC ......................................................................... 25
3.- PRESSUPOST .................................................................................................. 27
      A.- LÍNIA AÈRIA DE MITJA TENSIÓ.......................................................... 27
      B.- LÍNIA SUBTERRÀNIA DE MITJA TENSIÓ........................................... 28
      C.- CENTRE DE TRANSFORMACIÓ ........................................................... 30
      D.- LÍNIES DE DISTRIBUCIÓ SUBTERRÀNEA DE BAIXA TENSIÓ ....... 33
      E.- ENLLUMENAT PÚBLIC ......................................................................... 37
4.- RESUM DEL PRESSUPOST ....................................................................... 39




Albert Bel Esteller
Enginyer Tècnic Industrial en Electricitat                                                                          2
Electrificació Polígon Industrial “Los Campets”                                      Pressupost


1.- QUADRE DE PREUS

A.- LÍNIA AÈREA DE MITJA TENSIÓ

Codi Unitat Descripció                                                Preu
A.1   U     Castillet metàl·lic galvanitzat, amb muntatge zero de 16m
            d’altura i 2000 kg d’esforç amb creuetes.                 609,64

A.2        U      Castillet metàl·lic galvanitzat, amb muntatge zero de 16m 486,95
                  d’altura i 1000 kg d’esforç amb creuetes.

A.3        U      Base fusible unipolar, amb muntatge vertical per exterior            119,53

A.4        U      Cartutx fusible A.P.R. exterior de 32 A i 36 kV                       47,60

A.5        U      Unitat de presa a terra composta per barilla de coure de 2m i 18      13,22
                  mm2 més abraçadera

A.6       kg      Conductor de coure nu de 50 mm2,unió entre elèctrode i                4,30
                  recolzament

A.7        U      Seccionador tripolar intempèrie, amb dispositiu de posta a terra i
                  muntatge vertical, 30/36 kV,400A                                   913,66

A.8        U      Joc de cadenes d’amarre amb tres aïlladors                            14,00

A.9        U      Placa d’identificació de perill                                       2,64

A.10       U      Conjunt de ferratges per la subjecció de les autovàlvules i 25,48
                  terminals

A.11       U      Conjunt de ferratges per la subjecció de les autovàlvules i          219.56
                  terminals




Albert Bel Esteller
Enginyer Tècnic Industrial en Electricitat                                                  3
Electrificació Polígon Industrial “Los Campets”                                        Pressupost


B.- LÍNIA SUBTERRÀNIA DE MITJA TENSIÓ

Codi Unitat Descripció                                                      Preu
B.1   m     Rasa 1 circuit M.T. obertura a màquina i a ma en terra amb 7,83
            protecció de sorra. Compren l’obertura i demolició de 1m de
            rasa de 0,40m x 0,90m, ballat i tapat amb la retirada de terres
            sobrants

B.2        m      Rasa MT 1C amb obertura a mà i a màquina en terra amb                  25,00
                  protecció de tubulars formigonats. Inclou l’obertura i demolició
                  de 1 m de rasa de 0,4mx0,9m, ballat i tapat amb retirada de
                  terres sobrants, i amb cobriment de tubular formigonat amb
                  formigó H-125, per a creuament de calçada.

B.3        m      Tapat de la rasa i compactat a màquina en capes de 15 cm                9,90
                  d’espessor, donant la humitat necessària a les terres per obtenir
                  una compactació igual o superior al 95%

B.4        m      Subministrament i estesa en rasa i en tubulars fins 20 m de            16,90
                  cable unipolar d’alumini 18/30 kV 3x1x240 mm2. Consta de
                  disposar dels mitjans necessaris per l’estesa i descàrrega de la
                  bobina amb grua situant-la sobre un eix que faciliti el seu
                  desenvolupament. Inclou subministrament i col·locació
                  d’abraçadera de forma que les fases de un mateix circuit quedin
                  unides en l’interior de la rasa

B.5        m      Subministrament, distribució i col·locació de cinta PE de               0,73
                  senyalització de cables subterranis en l’interior de la rasa

B.6        m      Subministrament, distribució i col·locació en rasa de 1 m linial        2,50
                  de plaques de PE per protecció d’un circuit de cable subterrani.
                  Les plaques aniran ensamblades entre si en sentit longitudinal
                  utilitzant-se plaques de 1 m de longitud per trams rectes i de 0,5
                  pels corbats

B.7        U      Marcar, mesurar i confeccionar els plànols “AS BUILT” de les 1002,00
                  instal·lacions realitzades, entregat en paper vegetal. (Entre 1 i
                  100 m de cable).

B.8        U      Acabat interior termorretràctils per cable unipolar sec de secció 313,50
                  1x240 mm2 Al i terminacions 36 kV del tipus endollable i
                  model M-400LR de ELASTIMOLD. Inclou muntatge, ma
                  d’obra i elements auxiliars.




Albert Bel Esteller
Enginyer Tècnic Industrial en Electricitat                                                    4
Electrificació Polígon Industrial “Los Campets”                             Pressupost


Codi Unitat Descripció                                                    Preu
B.9   U     Assaig tripolar de l’estesa per la comprovació del circuit 506,00
            3x1x240 18/30 kV i el seu perfecte estat després de l’estesa.
            460,01

B.10       U      Conjunt de terminacions exteriors 240 mm2. Connexions entre 415,83
                  LAMT i LSMT en conversió.
B.11       m      Conductor d’alumini UNE DHV 18/30 kV 3x240                   10,32




Albert Bel Esteller
Enginyer Tècnic Industrial en Electricitat                                         5
Electrificació Polígon Industrial “Los Campets”                                   Pressupost


C.- CENTRE DE TRANSFORMACIÓ

Codi Unitat Descripció                                                    Preu
        3
C.1   m     Terraplanat i piconatge per coronació de terraplè amb material 3,77
            seleccionat, amb capes de 25 cm, com a màxim, amb
            compactació del 95%.

C.2       m2      Malla electrosoldada de filferros corrugats d’acer AEH 500T       2,71
                  de límit elàstic 5100 kP/cm2, per l’armadura de lloses de 15
                  x15 cm de 6 mm de diàmetre

C.3   m2 Formigó, per lloses, H-200 de consistència plàstica i amplitud             79,33
máxima del ranurat 20 mm, bolcat amb cubeta

C.4       m3      Llit de sorra per CT prefabricada col·locada                      20,33

C.5        U      Edifici de transformació PF-203/303. Recobriment prefabricat 8701,40
                  de formigó, que inclou l’edifici, portes d’accés, portes de trafo,
                  reixes de ventilació, canalitzacions per cables , ferratges
                  interiors propis del seu us i transport, muntatge i accessoris

C.6        U      CGM-CML interruptor seccionador. Cel·la amb embolcall 3870,17
                  metàl·lic, prefabricat per ORMAZABAL, formada per un
                  mòdul de tensió nominal 36kV e intensitat nominal 400 A de
                  mides 420x 850x1800 mm. Amb telecomandament del tipus B.
                  Inclou el muntatge, la ma d’obra i els elements auxiliars.

C.7        U      Cel·la CGM-CMP-F Protecció fusibles. Cel·la amb embolcall       5325,12
                  metàl·lic, prefabricada per ORMAZABAL, formada per un
                  mòdul de tensió nominal 36kV e intensitat nominal 400 A i de
                  mides 420x850x1800mm. Amb telecomandament del tipus B.
                  Inclou muntatge, ma d’obra i elements auxiliars.
C.8        U      Cables de MT 18/30 kV del tipus DHV, unipolars, amb             2101,61
                  aïllament de etilè-propilè i pantalla amb sorona, sense
                  armadura i amb coberta de PVC, amb conductors de secció i
                  material 1x150 Al utilitzant 3 de 6 m de longitud i
                  terminacions 36 kV del tipus endollable i model M-400LR de
                  ELASTIMOLD. Inclou el muntatge, la ma d’obra i elements
                  auxiliars.
C.9        U      Transformador 400 kVA. Transformador de distribució en          6842,52
                  bany d’oli sèrie 36 kV de 400 kVA. Col·locat.
C.10       U      Quadre de baixa tensió AC-4, amb quatre sortides amb fusibles    315,13
                  en base tipus ITV, marca ORMAZABAL. Inclou muntatge, ma
                  d’obra i elements auxiliars.

C.11       U      Joc de cables per pont de BT, de secció 2x240mm2 AL d’etilè-     510,20
                  propilè sense armadura. Inclou ma d’obra, muntatge i
                  accessoris.


Albert Bel Esteller
Enginyer Tècnic Industrial en Electricitat                                               6
Electrificació Polígon Industrial “Los Campets”                                      Pressupost


Codi Unitat Descripció                                                    Preu
C.12  U     Terra de protecció del transformador. Instal·lació de presa a 1.015,22
            terra de protecció degudament muntada i connectada utilitzant
            conductor nu de CU amb les següents característiques,
            geometria d’anell rectangular, profunditat 0,5m sense piques,
            de dimensions 8 x 3 m.

C.13       U      Terres de servei o neutre del trafo. Instal·lació exterior 722,95
                  realitzada amb Cu aïllat amb el mateix tipus de materials que
                  les terres de protecció
C.14       U      Instal·lació interior de la terra de protecció en l’edifici de 622,92
                  transformació, amb el conductor de cu nu grapat en paret i
                  connectat a les cel·les i demés aparamenta de l’edifici, així
                  com a una caixa general de terres de protecció segons les
                  normes de la cia.
C.15       U      Instal·lació interior de terres de servei en CT, amb el conductor 623,83
                  Cu aïllat grapat en la paret i connectat al neutre de BT, així
                  com a una caixa general de terres de servei segons normes cia.

C.16       U      Piqueta de connexió a terra d’acer recoberta de coure de 2 m la      30,05
                  longitud i 16 mm de diàmetre, estàndard i clavada a terra.
                  Inclou els connectors per la connexió a la xarxa de terres.

C.17       U      Reixa metàl·lica per defensa del transformador, amb un pany 253,53
                  enclavat amb la cel·la de protecció corresponent. Inclou
                  muntatge, ma d’obra i elements auxiliars.

C.18       U      Equip d’enllumenat que permet la suficient visibilitat per 175,31
                  realitzar les maniobres i revisions necessàries de les cel·les de
                  MT i equip autònom d’enllumenat d’emergència i
                  senyalització del local. Inclou muntatge, ma d’obra i elements
                  auxiliars.

C.19       U      Equip d’operació, maniobra i seguretat per permetre la 106,44
                  realització de les maniobres amb aïllament suficient per
                  protegir al personal durant l’execució de les maniobres i
                  operacions de manteniment. Inclou ma d’obra, muntatge i
                  elements auxiliars.

C.20       U      Plaques de senyalització i perill formades per senyal CT i placa     9,16
                  senyalització trafo. Inclou muntatge, ma d’obra i elements
                  auxiliars.




Albert Bel Esteller
Enginyer Tècnic Industrial en Electricitat                                                  7
Electrificació Polígon Industrial “Los Campets”                                       Pressupost


D.- LÍNIES DE DISTRIBUCIÓ SUBTERRÀNEA DE BAIXA TENSIÓ

Codi Unitat Descripció                                                       Preu
D.1   m     Rasa 1C BT amb obertura a màquina i a mà en terra amb 13,53
            protecció de sorra. Inclou la obertura i demolició de 1m de rasa
            de 0,40m x 0,80m, ballat i tapar amb la retirada de terres
            sobrants

D.2        m      Rasa de 2 circuits BT amb obertura a mà i a màquina en terra          16,19
                  amb protecció de sorra. Inclou l’obertura i domicilio de 1m de
                  rasa de 0,6m x 0,9m, ballat i tapat amb retirada de terres
                  sobrants.


D.3        m      Rasa de 3 circuits BT amb obertura a mà i a màquina en terra          16,78
                  amb protecció de sorra. Inclou l’obertura i demolició de 1m de
                  rasa de 0,6m x 0,9 m, ballat i tapat amb la retirada de terres
                  sobrants.

D.4        m      Rasa de 4 circuits BT amb obertura a ma i a màquina en terra          17,31
                  amb protecció de sorra. Inclou l’obertura i demolició de 1m de
                  rasa de 0,6m x 0,9 m, ballat i tapat amb la retirada de terres
                  sobrants.
D.5        m      Rasa mixta MT/BT/EE 1C/4C/1C amb obertura a mà i a                    18,35
                  màquina en terra amb protecció de sorra i protecció de tubulars
                  formigonats per al circuit EE. Inclou l’obertura i demolició de 1
                  m de rasa de 0,6mx0,9m, ballat i tapat amb retirada de terres
                  sobrants.
D.6        m      Rasa mixta MT/BT/EE 1C/3C/1C amb obertura a mà i a                    18,14
                  màquina en terra amb protecció de sorra i protecció de tubulars
                  formigonats per al circuit EE. Inclou l’obertura i demolició de 1
                  m de rasa de 0,6mx0,9m, ballat i tapat amb retirada de terres
                  sobrants.
D.7        m      Rasa mixta MT/BT/EE 1C/2C/1C amb obertura a mà i a                    18,03
                  màquina en terra amb protecció de sorra i protecció de tubulars
                  formigonats per al circuit EE. Inclou l’obertura i demolició de 1
                  m de rasa de 0,6mx0,9m, ballat i tapat amb retirada de terres
                  sobrants.

D.8        m      Rasa mixta MT/BT/EE 1C/1C/1C amb obertura a mà i a                    17,86
                  màquina en terra amb protecció de sorra i protecció de tubulars
                  formigonats per al circuit EE. Inclou l’obertura i demolició de 1
                  m de rasa de 0,6mx0,9m, ballat i tapat amb retirada de terres
                  sobrants.

D.9        m      Rasa MT/EE 1C/1C amb obertura a mà i a màquina en terra.              16,74
                  Inclou l’obertura i demolició de 1 m de rasa de 0,6mx0,6m,
                  ballat i tapat amb retirada de terres sobrants.


Albert Bel Esteller
Enginyer Tècnic Industrial en Electricitat                                                   8
Electrificació Polígon Industrial “Los Campets”                                       Pressupost


Codi Unitat Descripció                                                       Preu
D.10  m     Rasa EE amb obertura a mà i a màquina en terra amb protecció 12,56
            de tubulars formigonats per al circuit EE. Inclou l’obertura i
            demolició de 1 m de rasa de 0,4mx0,6m, ballat i tapat amb
            retirada de terres sobrants.
D.11  m     Rasa BT 2C amb obertura a mà i a màquina en terra amb 14,65
            protecció de tubulars formigonats. Inclou l’obertura i demolició
            de 1 m de rasa de 0,75mx1,0m, ballat i tapat amb retirada de
            terres sobrants, i amb cobriment de tubular formigonat amb
            formigó H-125, per a creuament de calçada.

D.12       m      Rasa MT/BT 1C/2C amb obertura a mà i a màquina en terra               15,87
                  amb protecció de tubulars formigonats. Inclou l’obertura i
                  demolició de 1 m de rasa de 0,75mx1,0m, ballat i tapat amb
                  retirada de terres sobrants, i amb cobriment de tubular
                  formigonat amb formigó H-125, per a creuament de calçada.

D.13       m      Rasa EE amb obertura a mà i a màquina en terra amb protecció          13,87
                  de tubulars formigonats per al circuit EE. Inclou l’obertura i
                  demolició de 1 m de rasa de 0,4mx0,6m, ballat i tapat amb
                  retirada de terres sobrants, i amb cobriment de tubular
                  formigonat amb formigó H-125, per a creuament de calçada.

D.14       m      Rasa mixta MT/BT 1C/4C amb obertura a mà i a màquina en               14,75
                  terra amb protecció de sorra. Inclou l’obertura i demolició de 1
                  m de rasa de 0,6mx0,9m, ballat i tapat amb retirada de terres
                  sobrants.
D.15       m      Rasa mixta MT/BT 1C/2C amb obertura a mà i a màquina en               14,70
                  terra amb protecció de sorra. Inclou l’obertura i demolició de 1
                  m de rasa de 0,6mx0,9m, ballat i tapat amb retirada de terres
                  sobrants.

D.16       m      Rasa BT/EE 4C/1C amb obertura a mà i a màquina en terra.              15,89
                  Inclou l’obertura i demolició de 1 m de rasa de 0,6mx0,6m,
                  ballat i tapat amb retirada de terres sobrants.
D.17       m      Rasa BT/EE 2C/1C amb obertura a mà i a màquina en terra.              15,68
                  Inclou l’obertura i demolició de 1 m de rasa de 0,6mx0,6m,
                  ballat i tapat amb retirada de terres sobrants.

D.18       m      Subministrament i col·locació de sorra per restabliment de rasa        0,68
                  fins a 10 cm per sobre de la mediatriu del tub.

D.19       m      Tapat de la rasa i compactat a màquina en capes de 15 cm               9,13
                  d’espessor, donant la humitat necessària a les terres per obtenir
                  una compactació igual o superior al 95%.
D.20       m      Subministrament i estesa en rasa i en tubulars fins 20m de un         11,33
                  circuit amb conductor 3x1x240 +150 mm2 AL. Inclou disposar
                  dels mitjans necessaris per l’estesa i descàrrega de la bobina i
                  les brides per ajuntar els conductors d’una mateixa fase.

Albert Bel Esteller
Enginyer Tècnic Industrial en Electricitat                                                   9
Electrificació Polígon Industrial “Los Campets”                                   Pressupost


Codi Unitat Descripció                                                        Preu
D.21  U     Marcar, mesurar i confeccionar els plànols “AS BUILT” de les 1013,16
            instal·lacions realitzades, entregat en paper vegetal. (Entre 1 i
            100m).
D.22  U     Terminal bimetàl·lic per cable subterrani BT de 3 x 240 + 1 x 14,88
            150 mm2. Inclou tallar el cable a mida, (tres fases més el
            neutre), deixar en puntes mortes, col·locar terminal premsat,
            encintar i enbornar.

D.23       U      Presa a terra completa per a caixes de seccionament i caixes      53,23
                  BT. Inclou els connectors per la connexió a la xarxa a terra.

D.24       U      Fusibles cutxilla BT F CU 3/315 ETU-1254 ret. Inclou la            7,06
                  instal·lació en caixes i quadres BT del CT . Conjunt de tres
                  fusibles per sòcul.

D.25       m      Conductor d’alumini UNE RV 0,6/1 kV 3x1x240+1x150 Al               8,25




Albert Bel Esteller
Enginyer Tècnic Industrial en Electricitat                                               10
Electrificació Polígon Industrial “Los Campets”                                  Pressupost


E.- ENLLUMENAT PÚBLIC

Codi Unitat Descripció                                                Preu
                                                           2
E.1   m     Conductor de coure UNE RV 0,6/1kV V de 2 x 6 mm col·locat 3,12
            dins de tub.

 E.2       m      Conductor de coure UNE RV 0,6/1 kV de 1x 35 mm2.                    3,76

 E.3       U      Bàcul galvanitzat de 9 metres d’alçada. Inclou transport, 442,68
                  col·locació sobre la cementació, anivellació, connexió al circuit
                  d’alimentació i el de presa de terra

 E.4       U      Pica d’acer i coure de 14 mm de diàmetre i 2 m de longitud. 24,05
                  Inclou soldadura i clavar-la a terra

 E.5       U      Interruptor posicions enllumenat                                   200,00

 E.6       m      Conductor de coure un de 35 mm2                                     3,15

 E.7       m      Tub flexible corrugat PVC DN 100 mm, pressió 4 atmosferes I         2,62
                  4,4 mm de gruix amb grau de protecció al xoc 7 i muntants com
                  a canalització soterrada.

 E.8       U      Fusibles de 63 A. Mida DIN 0, instal·lats abans dels comptadors.    2,82

 E.9       U      Equip de contatge activa i reactiva de 15 A d’intensitat nominal, 595,01
                  amb Instal·lació de rellotge horari que permeti realitzar el
                  contatge en doble tarifa.

E.10       U      Interruptor de control de potència de 4 pols i 15 A d’intensitat 99,17
                  nominal. Legrand DX 10 kA de poder de tall.

E.11       U      Interruptor diferencial 4 pols, 40A i 0,03 A In. Legrand DX.       152,05

E.12       U      Interruptor diferencial 2 pols 40A i 0,03A In. Legrand DV.         59,50

E.13       U      Interruptor magnetotèrmic de 4 pols i 10 A d’intensitat nominal. 79,33
                  Legrand DX 10kA

E.14       U      Interruptor magnetotèrmic 2 pols i 5A d’intensitat nominal. 33,06
                  Legrand DV

E.15       U      Contactor de 4 pols i d’intensitat nominal 20A. Legrand 112,39
                  referència 04033. Bobina 230V.

E.16       U      Contactor de 2 pols i d’intensitat nominal de 12A. Legrand 66,01
                  referència 04033. Bobina 230V.

E.17       U      Armari metàl·lic tipus intempèrie                                  621,45

Albert Bel Esteller
Enginyer Tècnic Industrial en Electricitat                                              11
Electrificació Polígon Industrial “Los Campets”                       Pressupost


Codi Unitat Descripció                                                  Preu
E.18  U     Lluminària vial model Philips tràfic Vision SGS 305/150T. 248,40
            Incorpora làmpada vapor sodi 150 W i equip auxiliar encesa.
E.19  U     Arqueta 60x60x80 cm, G= 15 cm, H-250.                       122,35
            Arqueta de 60x60x80 cm, amb parets de15 cm de gruix de
            formigo H-250, sobre llit de sorra




Albert Bel Esteller
Enginyer Tècnic Industrial en Electricitat                                   12
Electrificació Polígon Industrial “Los Campets”                       Pressupost


2.- AMIDAMENTS

A.- LÍNIA AÈRIA DE MITJA TENSIÓ

Codi Descripció                        Uts. Long. Amp. Alt. Parcials Quantitat
A.1 Castillet metàl·lic galvanitzat, U                         2        2
     amb muntatge zero de 16m
     d’altura i 2000 kgs d’esforç amb
     creuetes.
A.2 Castillet metàl·lic galvanitzat, U                         2        2
     amb muntatge zero de 16m
     d’altura i 1000 kgs d’esforç amb
     creuetes.
A.3 Base fusible unipolar, amb U                               9        9
     muntatge vertical per exterior
A.4 Cartutx fusible A.P.R. exterior de U                       9        9
     32 A i 36 kV

A.5 Unitat de presa a terra composta U                         3         3
    per barilla de coure de 2m i 18
    mm2 més abraçadera
A.6 Conductor de coure nu de 50 kg                            23        23
    mm2,unió entre elèctrode i
    recolzament
A.7 Seccionador tripolar intempèrie, U                         2         2
    amb dispositiu de posta a terra i
    muntatge        vertical,    30/36
    kV,400A
A.8 Joc de cadenes d’amarre amb tres U                         6         6
    aïlladors
A.9 Placa d’identificació de perill    U                       3         3

A.10 Conjunt de ferratges per la                  U            9         9
     subjecció de les autovàlvules i
     terminals




Albert Bel Esteller
Enginyer Tècnic Industrial en Electricitat                                   13
Electrificació Polígon Industrial “Los Campets”                     Pressupost


B.- LÍNIA SUBTERRÀNIA DE MITJA TENSIÓ

Codi Descripció                      Uts. Long. Amp. Alt. Parcials Quantitat
B.1 Rasa 1 circuit M.T. obertura a m       320              320      320
     màquina i a ma en terra amb
     protecció de sorra. Compren
     l’obertura i demolició de 1m de
     rasa de 0,40m x 0,90m, ballat i
     tapat amb la retirada de terres
     sobrants

B.2 Rasa MT 1C amb obertura a mà i                m   25     25        25
    a màquina en terra amb protecció
    de tubulars formigonats. Inclou
    l’obertura i demolició de 1 m de
    rasa de 0,4mx0,9m, ballat i tapat
    amb retirada de terres sobrants, i
    amb cobriment de tubular
    formigonat amb formigó H-125,
    per a creuament de calçada.

B.3 Tapat de la rasa i compactat a                m   345   345       345
    màquina en capes de 15 cm
    d’espessor, donant la humitat
    necessària a les terres per obtenir
    una compactació igual o superior
    al 95%


B.4 Subministrament i estesa en rasa              m   345   345       345
    i en tubulars fins 20 m de cable
    unipolar d’alumini 18/30 kV
    3x1x240 mm2. Consta de
    disposar dels mitjans necessaris
    per l’estesa i descàrrega de la
    bobina amb grua situant-la sobre
    un eix que faciliti el seu
    desenvolupament.              Inclou
    subministrament i col·locació
    d’abraçadera de forma que les
    fases de un mateix circuit quedin
    unides en l’interior de la rasa

B.5 Subministrament, distribució i                m   345   345       345
    col·locació de cinta PE de
    senyalització       de        cables
    subterranis en l’interior de la rasa



Albert Bel Esteller
Enginyer Tècnic Industrial en Electricitat                                  14
Electrificació Polígon Industrial “Los Campets”                       Pressupost


Codi Descripció                         Uts. Long. Amp. Alt. Parcials Quantitat
B.6 Subministrament, distribució i m          345              345      345
     col·locació en rasa de 1 m linial
     de plaques de PE per protecció
     d’un circuit de cable subterrani.
     Les plaques aniran ensamblades
     entre si en sentit longitudinal
     utilitzant-se plaques de 1 m de
     longitud per trams rectes i de 0,5
     pels corbats

B.7 Marcar, mesurar i confeccionar                U             4         4
    els plànols “AS BUILT” de les
    instal·lacions realitzades, entregat
    en paper vegetal. (Entre 1 i 100
    m de cable).

B.8 Acabat interior termorretràctils              U            12        12
    per cable unipolar sec de secció
    1x240 mm2 Al i terminacions 36
    kV del tipus endollable i model
    M-400LR de ELASTIMOLD.
    Inclou muntatge, ma d’obra i
    elements auxiliars.

B.9 Assaig tripolar de l’estesa per la            U             1         1
    comprovació del circuit 3x1x240
    18/30 kV i el seu perfecte estat
    després de l’estesa.

B.10 Conjunt      de    terminacions              U             4         4
                      2
     exteriors 240 mm . Connexions
     entre LAMT i LSMT en
     conversió.
B.11 Conductor d’alumini UNE DHV                  m           1.200     1.200
     18/30 kV 3x240




Albert Bel Esteller
Enginyer Tècnic Industrial en Electricitat                                    15
Electrificació Polígon Industrial “Los Campets”                                  Pressupost


C.- CENTRE DE TRANSFORMACIÓ


Codi Descripció                      Uts. Long. Amp. Alt. Parcials Quantitat
C.1 Terraplanat i piconatge per m3         10    5   0,5    25       150
     coronació de terraplè amb
     material seleccionat, amb capes
     de 25 cm, com a màxim, amb
     compactació del 95%.

C.2     Malla electrosoldada de filferros m2          7,08   2,46        17,41    104,5
        corrugats d’acer AEH 500T de
        límit elàstic 5100 kP/cm2, per
        l’armadura de lloses de 15 x15
        cm de 6 mm de diàmetre

C.3      Formigó, per lloses, H-200 de m2             7,24   2,62        18,97   113,81
         consistència plàstica i amplitud
         máxima del      ranurat 20 mm,
         bolcat amb cubeta

C.4     Llit de sorra per CT prefabricada m3          7,24   2,62 0,15   2,85     17,07
        col·locada

C.5     Edifici de transformació PF-              U                       1         6
        203/303.              Recobriment
        prefabricat de formigó, que
        inclou l’edifici, portes d’accés,
        portes de trafo, reixes de
        ventilació, canalitzacions per
        cables , ferratges interiors propis
        del seu us i transport, muntatge i
        accessoris

C.6     CGM-CML                interruptor        U                       2        12
        seccionador.      Cel·la      amb
        embolcall metàl·lic, prefabricat
        per ORMAZABAL, formada per
        un mòdul de tensió nominal
        36kV e intensitat nominal 400 A
        de mides 420x 850x1800 mm.
        Amb telecomandament del tipus
        B. Inclou el muntatge, la ma
        d’obra i els elements auxiliars.




Albert Bel Esteller
Enginyer Tècnic Industrial en Electricitat                                              16
Electrificació Polígon Industrial “Los Campets”                    Pressupost


Codi Descripció                     Uts. Long. Amp. Alt. Parcials Quantitat
C.7 Cel·la CGM-CMP-F Protecció U                            2       12
     fusibles. Cel·la amb embolcall
     metàl·lic,   prefabricada  per
     ORMAZABAL, formada per un
     mòdul de tensió nominal 36kV e
     intensitat nominal 400 A i de
     mides 420x850x1800mm. Amb
     telecomandament del tipus B.
     Inclou muntatge, ma d’obra i
     elements auxiliars.

C.8     Cables de MT 18/30 kV del tipus           U         2        12
        DHV, unipolars, amb aïllament
        de etilè-propilè i pantalla amb
        sorona, sense armadura i amb
        coberta de PVC, amb conductors
        de secció i material 1x150 Al
        utilitzant 3 de 6 m de longitud i
        terminacions 36 kV del tipus
        endollable i model M-400LR de
        ELASTIMOLD.          Inclou    el
        muntatge, la ma d’obra i
        elements auxiliars.
C.9     Transformador       400     kVA.          U         2        12
        Transformador de distribució en
        bany d’oli sèrie 36 kV de 400
        kVA. Col·locat

C.10 Quadre de baixa tensió AC-4,                 U         2        12
     amb quatre sortides amb fusibles
     en base tipus ITV, marca
     ORMAZABAL.                   Inclou
     muntatge, ma d’obra i elements
     auxiliars.
C.11 Joc de cables per pont de BT, de             U         6        36
     secció 2x240mm2 AL d’etilè-
     propilè sense armadura. Inclou
     ma d’obra, muntatge i accessoris.
C.12 Terra      de     protecció      del         U         2        12
     transformador. Instal·lació de
     presa a terra
     de      protecció      degudament
     muntada i connectada utilitzant
     conductor nu de CU amb les
     següents           característiques,
     geometria d’anell rectangular,
     profunditat 0,5m sense piques,
     de dimensions 8 x 3 m.

Albert Bel Esteller
Enginyer Tècnic Industrial en Electricitat                                17
Electrificació Polígon Industrial “Los Campets”                       Pressupost


Codi Descripció                        Uts. Long. Amp. Alt. Parcials Quantitat
C.13 Terres de servei o neutre del U                           2       12
     trafo.     Instal·lació  exterior
     realitzada amb CU aïllat amb el
     mateix tipus de materials que les
     terres de protecció

C.14 Instal·lació interior de la terra de         U            1         6
     protecció      en    l’edifici    de
     transformació, amb el conductor
     de cu nu grapat en paret i
     connectat a les cel·les i demés
     aparamenta de l’edifici, així com
     a una caixa general de terres de
     protecció segons les normes de
     la cia.

C.15 Instal·lació interior de terres de           U            1         6
     servei en CT, amb el conductor
     CU aïllat grapat en la paret i
     connectat al neutre de BT, així
     com a una caixa general de terres
     de servei segons normes cia.

C.16 Piqueta de connexió a terra                  U            8        48
     d’acer recoberta de coure de 2 m
     la longitud i 16 mm de diàmetre,
     estàndard i clavada a terra.
     Inclou els connectors per la
     connexió a la xarxa de terres.

C.17 Reixa metàl·lica per defensa del             U            2        12
     transformador, amb un pany
     enclavat amb la cel·la de
     protecció corresponent. Inclou
     muntatge, ma d’obra i elements
     auxiliars.

C.18 Equip d’enllumenat que permet                U            1         6
     la suficient visibilitat per
     realitzar   les  maniobres    i
     revisions necessàries de les
     cel·les de MT i equip autònom
     d’enllumenat d’emergència i
     senyalització del local. Inclou
     muntatge, ma d’obra i elements
     auxiliars.



Albert Bel Esteller
Enginyer Tècnic Industrial en Electricitat                                   18
Electrificació Polígon Industrial “Los Campets”                        Pressupost


Codi Descripció                          Uts. Long. Amp. Alt. Parcials Quantitat
C.19 Equip d’operació, maniobra i U                              1        6
     seguretat per permetre la
     realització de les maniobres amb
     aïllament suficient per protegir al
     personal durant l’execució de les
     maniobres i operacions de
     manteniment. Inclou ma d’obra,
     muntatge i elements auxiliars.

C.20 Plaques de senyalització i perill            U             3         18
     formades per senyal CT i placa
     senyalització  trafo.     Inclou
     muntatge, ma d’obra i elements
     auxiliars.




Albert Bel Esteller
Enginyer Tècnic Industrial en Electricitat                                     19
Electrificació Polígon Industrial “Los Campets”                     Pressupost


D.- LÍNIES DE DISTRIBUCIÓ SUBTERRÀNEA DE BAIXA TENSIÓ

Codi Descripció                      Uts. Long. Amp. Alt. Parcials Quantitat
D.1 Rasa 1C BT amb obertura a m             5                5        5
     màquina i a mà en terra amb
     protecció de sorra. Inclou la
     obertura i demolició de 1m de
     rasa de 0,40m x 0,80m, ballat i
     tapar amb la retirada de terres
     sobrants

D.2     Rasa de 2 circuits BT amb                 m   100   100       100
        obertura a mà i a màquina en
        terra amb protecció de sorra.
        Inclou l’obertura i domicilio de
        1m de rasa de 0,6m x 0,9m, ballat
        i tapat amb retirada de terres
        sobrants.

D.3     Rasa de 3 circuits BT amb                 m   12     12       12
        obertura a mà i a màquina en
        terra amb protecció de sorra.
        Inclou l’obertura i demolició de
        1m de rasa de 0,6m x 0,9 m,
        ballat i tapat amb la retirada de
        terres sobrants.

D.4     Rasa de 4 circuits BT amb                 m   20     20       20
        obertura a ma i a màquina en
        terra amb protecció de sorra.
        Inclou l’obertura i demolició de
        1m de rasa de 0,6m x 0,9 m,
        ballat i tapat amb la retirada de
        terres sobrants.

D.5     Rasa       mixta       MT/BT/EE           m   35     35       35
        1C/4C/1C amb obertura a mà i a
        màquina en terra amb protecció
        de sorra i protecció de tubulars
        formigonats per al circuit EE.
        Inclou l’obertura i demolició de 1
        m de rasa de 0,6mx0,9m, ballat i
        tapat amb retirada de terres
        sobrants.




Albert Bel Esteller
Enginyer Tècnic Industrial en Electricitat                                  20
Electrificació Polígon Industrial “Los Campets”                       Pressupost


Codi Descripció                         Uts. Long. Amp. Alt. Parcials Quantitat
D.6 Rasa        mixta       MT/BT/EE m        30               30       30
     1C/3C/1C amb obertura a mà i a
     màquina en terra amb protecció
     de sorra i protecció de tubulars
     formigonats per al circuit EE.
     Inclou l’obertura i demolició de 1
     m de rasa de 0,6mx0,9m, ballat i
     tapat amb retirada de terres
     sobrants.

D.7     Rasa       mixta       MT/BT/EE           m   160     160       160
        1C/2C/1C amb obertura a mà i a
        màquina en terra amb protecció
        de sorra i protecció de tubulars
        formigonats per al circuit EE.
        Inclou l’obertura i demolició de 1
        m de rasa de 0,6mx0,9m, ballat i
        tapat amb retirada de terres
        sobrants.

D.8     Rasa       mixta       MT/BT/EE           m   65       65        65
        1C/1C/1C amb obertura a mà i a
        màquina en terra amb protecció
        de sorra i protecció de tubulars
        formigonats per al circuit EE.
        Inclou l’obertura i demolició de 1
        m de rasa de 0,6mx0,9m, ballat i
        tapat amb retirada de terres
        sobrants.

D.9     Rasa MT/EE 1C/1C amb                      m   410     410       410
        obertura a mà i a màquina en
        terra.    Inclou     l’obertura i
        demolició de 1 m de rasa de
        0,6mx0,6m, ballat i tapat amb
        retirada de terres sobrants.

D.10 Rasa EE amb obertura a mà i a                m   405     405       405
     màquina en terra amb protecció
     de tubulars formigonats per al
     circuit EE. Inclou l’obertura i
     demolició de 1 m de rasa de
     0,4mx0,6m, ballat i tapat amb
     retirada de terres sobrants.




Albert Bel Esteller
Enginyer Tècnic Industrial en Electricitat                                    21
Electrificació Polígon Industrial “Los Campets”                       Pressupost


Codi Descripció                         Uts. Long. Amp. Alt. Parcials Quantitat
D.11 Rasa BT 2C amb obertura a mà i m         12               12       12
     a màquina en terra amb protecció
     de tubulars formigonats. Inclou
     l’obertura i demolició de 1 m de
     rasa de 0,75mx1,0m, ballat i tapat
     amb retirada de terres sobrants, i
     amb cobriment de tubular
     formigonat amb formigó H-125,
     per a creuament de calçada.

D.12 Rasa MT/BT           1C/2C amb               m   10       10        10
     obertura a mà i a màquina en
     terra amb protecció de tubulars
     formigonats. Inclou l’obertura i
     demolició de 1 m de rasa de
     0,75mx1,0m, ballat i tapat amb
     retirada de terres sobrants, i amb
     cobriment de tubular formigonat
     amb formigó H-125, per a
     creuament de calçada.

D.13 Rasa EE amb obertura a mà i a                m   50       50        50
     màquina en terra amb protecció
     de tubulars formigonats per al
     circuit EE. Inclou l’obertura i
     demolició de 1 m de rasa de
     0,4mx0,6m, ballat i tapat amb
     retirada de terres sobrants, i amb
     cobriment de tubular formigonat
     amb formigó H-125, per a
     creuament de calçada.

D.14 Rasa mixta MT/BT 1C/4C amb                   m   26       26        26
     obertura a mà i a màquina en
     terra amb protecció de sorra.
     Inclou l’obertura i demolició de 1
     m de rasa de 0,6mx0,9m, ballat i
     tapat amb retirada de terres
     sobrants.

D.15 Rasa mixta MT/BT 1C/2C amb                   m   40       40        40
     obertura a mà i a màquina en
     terra amb protecció de sorra.
     Inclou l’obertura i demolició de 1
     m de rasa de 0,6mx0,9m, ballat i
     tapat amb retirada de terres
     sobrants.


Albert Bel Esteller
Enginyer Tècnic Industrial en Electricitat                                    22
Electrificació Polígon Industrial “Los Campets”                       Pressupost


Codi Descripció                        Uts. Long. Amp. Alt. Parcials Quantitat
D.16 Rasa BT/EE 4C/1C amb obertura m         110              110      110
     a mà i a màquina en terra. Inclou
     l’obertura i demolició de 1 m de
     rasa de 0,6mx0,6m, ballat i tapat
     amb retirada de terres sobrants.

D.17 Rasa BT/EE 2C/1C amb obertura                m    20     20        20
     a mà i a màquina en terra. Inclou
     l’obertura i demolició de 1 m de
     rasa de 0,6mx0,6m, ballat i tapat
     amb retirada de terres sobrants.

D.18 Subministrament i col·locació de             m   1438   1438      1438
     sorra per restabliment de rasa fins
     a 10 cm per sobre de la mediatriu
     del tub.

D.19 Tapat de la rasa i compactat a               m   1510   1510      1510
     màquina en capes de 15 cm
     d’espessor, donant la humitat
     necessària a les terres per obtenir
     una compactació igual o superior
     al 95%.

D.20 Subministrament i estesa en rasa m                72     72        72
     i en tubulars fins 20m de un
     circuit amb conductor 3x1x240
     +150 mm2 AL. Inclou disposar
     dels mitjans necessaris per
     l’estesa i descàrrega de la bobina
     i les brides per ajuntar els
     conductors d’una mateixa fase.

D.21 Marcar, mesurar i confeccionar U                          5         5
     els plànols “AS BUILT” de les
     instal·lacions realitzades, entregat
     en paper vegetal. (Entre 1 i
     100m).

D.22 Terminal bimetàl·lic per cable U                         44        44
     subterrani BT de 3 x 240 + 1 x
     150 mm2. Inclou tallar el cable a
     mida, (tres fases més el neutre),
     deixar en puntes mortes, col·locar
     terminal premsat, encintar i
     enbornar.



Albert Bel Esteller
Enginyer Tècnic Industrial en Electricitat                                    23
Electrificació Polígon Industrial “Los Campets”                      Pressupost


Codi Descripció                       Uts. Long. Amp. Alt. Parcials Quantitat
D.23 Presa a terra completa per a U                          19       19
     caixes de seccionament i caixes
     BT .Inclou els connectors per la
     connexió a la xarxa a terra.

D.24 Fusibles cutxilla BT F CU 3/315 U                       32        32
     ETU-1254       ret.  Inclou   la
     instal·lació en caixes i quadres
     BT del CT . Conjunt de tres
     fusibles per sòcul.
D.25 Conductor d’alumini UNE RV m                            900       900
     3x1x240+1x150 Al




Albert Bel Esteller
Enginyer Tècnic Industrial en Electricitat                                   24
Electrificació Polígon Industrial “Los Campets”                      Pressupost


E.- ENLLUMENAT PÚBLIC

Codi Descripció                       Uts. Long. Amp. Alt. Parcials Quantitat
E.1 Conductor de coure UNE RV m            1470             1470      1470
     0,6/1kV V de 2 x 6 mm2 col·locat
     dins de tub.

E.2     Conductor de coure UNE               RV m     1470   1470     1470
        0,6/1 kV de 1x 35 mm2.

E.3     Bàcul galvanitzat de 9 metres U                       32       32
        d’alçada.    Inclou    transport,
        col·locació sobre la cementació,
        anivellació, connexió al circuit
        d’alimentació i el de presa de
        terra

E.4     Pica d’acer i coure de 14 mm de U                     32       32
        diàmetre i 2 m de longitud.
        Inclou soldadura i clavar-la a
        terra

E.5     Interruptor posicions enllumenat          U           1         1

E.6     Conductor de coure un de 35 m                 1470   1470     1470
        mm2

E.7     Tub flexible corrugat PVC DN m                1200   1200     1200
        100 mm, pressió 4 atmosferes I
        4,4 mm de gruix amb grau de
        protecció al xoc 7 i muntants com
        a canalització soterrada.

E.8     Fusibles de 63 A. Mida DIN 0, U                       6         6
        instal·lats abans dels comptadors.

E.9  Equip de contatge activa i U                             2         2
     reactiva de 15 A d’intensitat
     nominal, amb Instal·lació de
     rellotge horari que permeti
     realitzar el contatge en doble
     tarifa.
E.10 Interruptor de control de potència U                     2         2
     de 4 pols i 15 A d’intensitat
     nominal. Legrand DX 10 kA de
     poder de tall.

E.11 Interruptor diferencial 4 pols, U                        2         2
     40A i 0,03 A In. Legrand DX.

Albert Bel Esteller
Enginyer Tècnic Industrial en Electricitat                                   25
Electrificació Polígon Industrial “Los Campets”                       Pressupost


Codi Descripció                         Uts. Long. Amp. Alt. Parcials Quantitat
E.12 Interruptor diferencial 2 pols 40A U                       4        4
     i 0,03S In. Legrand DV.

E.13 Interruptor magnetotèrmic de 4               U            2         2
     pols i 10 A d’intensitat nominal.
     Legrand DX 10kA

E.14 Interruptor magnetotèrmic 2 pols             U            4         4
     i 5A d’intensitat nominal.
     Legrand DV

E.15 Contactor de 4 pols i d’intensitat           U            2         2
     nominal 20A. Legrand referència
     04033. Bobina 230V.

E.16 Contactor de 2 pols i d’intensitat           U            4         4
     nominal de 12A. Legrand
     referència 04033. Bobina 230V.

E.17 Armari metàl·lic tipus intempèrie            U            2         2


E.18 Lluminària vial model Philips                U            32        32
     tràfic Vision SGS 306. Incorpora
     làmpada vapor sodi 150 W i
     equip auxiliar encesa.
E.19 Arqueta de regsitre 60x60x80                 U            12        12
     cm, G= 15 cm, H-250.
     Arqueta de 60x60x80 cm, amb
     parets de15 cm de gruix de
     formigo H-250, sobre llit de sorra




Albert Bel Esteller
Enginyer Tècnic Industrial en Electricitat                                    26
Electrificació Polígon Industrial “Los Campets”                               Pressupost


3.- PRESSUPOST

A.- LÍNIA AÈRIA DE MITJA TENSIÓ

Codi Descripció                                   Uts. Quantitat Preu Import
A.1 Castillet metàl·lic galvanitzat, amb muntatge U       2      609,64 1.219,28
     zero de 16m d’altura i 2000 kgs d’esforç amb
     creuetes.

A.2 Castillet metàl·lic galvanitzat, amb muntatge        U      2    486,95 486,95
    zero de 16m d’altura i 1000 kgs d’esforç amb
    creuetes.

A.3 Base fusible unipolar, amb muntatge vertical         U      9    119,53 1.075,77
    per exterior

A.4 Cartutx fusible A.P.R. exterior de 32 A i 36         U      9     47,60    428,40
    kV

A.5 Unitat de presa a terra composta per barilla         U      3     13,22     39,66
    de coure de 2m i 18 mm2 més abraçadera

A.6 Conductor de coure nu de 50 mm2,unió entre kg              23     4,30      98,90
    elèctrode i recolzament

A.7 Seccionador tripolar intempèrie,              amb    U      2    913,66 1.827,32
    dispositiu de posta a terra i
    muntatge vertical, 30/36 kV,400A

A.8 Joc de cadenes d’amarre amb tres aïlladors           U      6     14,00     84,00

A.9 Placa d’identificació de perill                      U      3     2,64      7,92

A.10 Conjunt de ferratges per la subjecció de les        U      9    215,48 1.939,32
     autovàlvules i terminals



                                                        TOTAL CAPÍTOL A: 7.207,52 €




Albert Bel Esteller
Enginyer Tècnic Industrial en Electricitat                                           27
Electrificació Polígon Industrial “Los Campets”                          Pressupost


B.- LÍNIA SUBTERRÀNIA DE MITJA TENSIÓ

Codi Descripció                                   Uts. Quantitat Preu    Import
B.1 Rasa 1 circuit M.T. obertura a màquina i a m         320      7,83   2.505,60
     ma en terra amb protecció de sorra.
     Compren l’obertura i demolició de 1m de
     rasa de 0,40m x 0,90m, ballat i tapat amb la
     retirada de terres sobrants

B.2 Rasa MT 1C amb obertura a mà i a màquina         m   25      25,00    625,00
    en terra amb protecció de tubulars
    formigonats. Inclou l’obertura i demolició
    de 1 m de rasa de 0,4mx0,9m, ballat i tapat
    amb retirada de terres sobrants, i amb
    cobriment de tubular formigonat amb
    formigó H-125, per a creuament de calçada.

B.3 Tapat de la rasa i compactat a màquina en        m   345     9,90    3.415,50
    capes de 15 cm d’espessor, donant la
    humitat necessària a les terres per obtenir
    una compactació igual o superior al 95%

B.4 Subministrament i estesa en rasa i en            m   345     16,90   5.830,5
    tubulars fins 20 m de cable unipolar
    d’alumini 18/30 kV 3x1x240 mm2. Consta
    de disposar dels mitjans necessaris per
    l’estesa i descàrrega de la bobina amb grua
    situant-la sobre un eix que faciliti el seu
    desenvolupament. Inclou subministrament i
    col·locació d’abraçadera de forma que les
    fases de un mateix circuit quedin unides en
    l’interior de la rasa

B.5 Subministrament, distribució i col·locació       m   345     0,73     251,85
    de cinta PE de senyalització de cables
    subterranis en l’interior de la rasa
B.6 Subministrament, distribució i col·locació       m   345     2,50     862,50
    en rasa de 1 m linial de plaques de PE per
    protecció d’un circuit de cable subterrani.
    Les plaques aniran ensamblades entre si en
    sentit longitudinal utilitzant-se plaques de 1
    m de longitud per trams rectes i de 0,5
    pels corbats

B.7 Marcar, mesurar i confeccionar els plànols       U    3     1002,00 3006,00
    “AS BUILT” de les instal·lacions
    realitzades, entregat en paper vegetal. (Entre
    1 i 100 m de cable).


Albert Bel Esteller
Enginyer Tècnic Industrial en Electricitat                                      28
Electrificació Polígon Industrial “Los Campets”                          Pressupost


Codi Descripció                                Uts. Quantitat Preu   Import
B.8 Acabat interior termorretràctils per cable U      12      313,50 3.762,00
     unipolar sec de secció
     1x240 mm2 Al i terminacions 36 kV del
     tipus endollable i model M-400LR de
     ELASTIMOLD. Inclou muntatge, ma
     d’obra i elements auxiliars.

B.9 Assaig tripolar de l’estesa per la             U      1     506,00    506,00
    comprovació del circuit 3x1x240 18/30 kV i
    el seu perfecte estat després de l’estesa.

B.10 Conjunt de terminacions exteriors 240 mm2.    U      4     415,83 1.807,32
     Connexions entre LAMT i LSMT en
     conversió.
B.11 Conductor d’alumini UNE DHV 18/30 kV          m    1.200   10,32    1.210,32
     3x240



                                                  TOTAL CAPÍTOL B: 23.782,54 €




Albert Bel Esteller
Enginyer Tècnic Industrial en Electricitat                                      29
Electrificació Polígon Industrial “Los Campets”                                Pressupost


C.- CENTRE DE TRANSFORMACIÓ

Codi Descripció                              Uts. Quantitat Preu             Import
C.1 Terraplanat i piconatge per coronació de m3     150      3,77              565,5
     terraplè amb material seleccionat, amb
     capes de 25 cm, com a màxim, amb
     compactació del 95%.

C.2     Malla electrosoldada de filferros m2              104,5     2,71      283,195
        corrugats d’acer AEH 500T de límit
        elàstic 5100 kP/cm2, per l’armadura de
        lloses de 15 x15 cm de 6 mm de
        diàmetre

C.3      Formigó, per lloses, H-200 de m2                 113,81    79,33     9.028,55
         consistència plàstica i amplitud máxima
         del ranurat 20 mm, bolcat amb cubeta

C.4     Llit de sorra per CT prefabricada m3              17,07     20,33      347,03
        col·locada

C.5     Edifici de transformació PF-203/303.          U     6      8701,40   52.208,40
        Recobriment prefabricat de formigó, que
        inclou l’edifici, portes d’accés, portes de
        trafo, reixes de ventilació, canalitzacions
        per cables , ferratges interiors propis del
        seu us i transport, muntatge i accessoris

C.6     CGM-CML interruptor seccionador.              U    12      3870,17   46.442,04
        Cel·la     amb    embolcall      metàl·lic,
        prefabricat per ORMAZABAL, formada
        per un mòdul de tensió nominal 36kV e
        intensitat nominal 400 A de mides 420x
        850x1800 mm. Amb telecomandament
        del tipus B. Inclou el muntatge, la ma
        d’obra i els elements auxiliars.

C.7     Cel·la CGM-CMP-F Protecció fusibles.          U    12      5325,12   63.901,44
        Cel·la     amb    embolcall   metàl·lic,
        prefabricada     per   ORMAZABAL,
        formada per un mòdul de tensió nominal
        36kV e intensitat nominal 400 A i de
        mides       420x850x1800mm.      Amb
        telecomandament del tipus B. Inclou
        muntatge, ma d’obra i elements
        auxiliars.




Albert Bel Esteller
Enginyer Tècnic Industrial en Electricitat                                             30
Electrificació Polígon Industrial “Los Campets”                         Pressupost


Codi Descripció                                 Uts. Quantitat Preu    Import
C.8 Cables de MT 18/30 kV del tipus DHV, U             12      2101,61 25.219,32
     unipolars, amb aïllament de etilè-propilè
     i pantalla amb sorona, sense armadura i
     amb coberta de PVC, amb conductors de
     secció i material 1x150 Al utilitzant 3 de
     6 m de longitud i terminacions 36 kV del
     tipus endollable i model M-400LR de
     ELASTIMOLD. Inclou el muntatge, la
     ma d’obra i elements auxiliars.

C.9     Transformador 400 kVA. Transformador       U   12   6842,52   82.110,24
        de distribució en bany d’oli sèrie 36 kV
        de 400 kVA. Col·locat.

C.10 Quadre de baixa tensió AC-4, amb              U   12    315,13    3.781,56
     quatre sortides amb fusibles en base
     tipus ITV, marca ORMAZABAL. Inclou
     muntatge, ma d’obra i elements
     auxiliars.

C.11 Joc de cables per pont de BT, de secció       U   36    510,20    18.367,0
     2x240mm2 AL d’etilè-propilè sense
     armadura. Inclou ma d’obra, muntatge i
     accessoris.

C.12 Terra de protecció del transformador.         U   12   1015,22   12.182,64
     Instal·lació de presa a terra
     de protecció degudament muntada i
     connectada utilitzant conductor nu de
     CU amb les següents característiques,
     geometria        d’anell      rectangular,
     profunditat 0,5m sense piques, de
     dimensions 8 x 3 m.

C.13 Terres de servei o neutre del trafo.          U   12    722,95    8.675,40
     Instal·lació exterior realitzada amb CU
     aïllat amb el mateix tipus de materials
     que les terres de protecció

C.14 Instal·lació interior de la terra de          U   6     622,92    3.737,52
     protecció en l’edifici de transformació,
     amb el conductor de cu nu grapat en
     paret i connectat a les cel·les i demés
     aparamenta de l’edifici, així com a una
     caixa general de terres de protecció
     segons les normes de la cia.



Albert Bel Esteller
Enginyer Tècnic Industrial en Electricitat                                     31
Electrificació Polígon Industrial “Los Campets”                          Pressupost


Codi Descripció                                   Uts. Quantitat Preu   Import
C.15 Instal·lació interior de terres de servei en U       6      623,83  3.742,98
     CT, amb el conductor CU aïllat grapat en
     la paret i connectat al neutre de BT, així
     com a una caixa general de terres de
     servei segons normes cia.

C.16 Piqueta de connexió a terra d’acer           U     48     30,05    1.442,40
     recoberta de coure de 2 m la longitud i
     16 mm de diàmetre, estàndard i clavada
     a terra. Inclou els connectors per la
     connexió a la xarxa de terres.

C.17 Reixa metàl·lica per defensa del             U     12    253,53    3.042,36
     transformador, amb un pany enclavat
     amb la cel·la de protecció corresponent.
     Inclou muntatge, ma d’obra i elements
     auxiliars.

C.18 Equip d’enllumenat que permet la             U     6     175,31    1.051,86
     suficient visibilitat per realitzar les
     maniobres i revisions necessàries de les
     cel·les de MT i equip autònom
     d’enllumenat         d’emergència       i
     senyalització del local. Inclou muntatge,
     ma d’obra i elements auxiliars.

C.19 Equip d’operació, maniobra i seguretat       U     6     106,44     638,64
     per permetre la realització de les
     maniobres amb aïllament suficient per
     protegir al personal durant l’execució de
     les maniobres i operacions de
     manteniment. Inclou ma d’obra,
     muntatge i elements auxiliars.

C.20 Plaques de senyalització i perill            U     18     9,16      164,88
     formades per senyal CT i placa
     senyalització trafo. Inclou muntatge, ma
     d’obra i elements auxiliars.



                                                  TOTAL CAPÍTOL C: 336.932,65 €




Albert Bel Esteller
Enginyer Tècnic Industrial en Electricitat                                      32
Electrificació Polígon Industrial “Los Campets”                             Pressupost


D.- LÍNIES DE DISTRIBUCIÓ SUBTERRÀNEA DE BAIXA TENSIÓ

Codi Descripció                                     Uts. Quantitat Preu      Import
D.1 Rasa 1C BT amb obertura a màquina i a mà m              5       13,53      67,65
     en terra amb protecció de sorra. Inclou la
     obertura i demolició de 1m de rasa de 0,40m
     x 0,80m, ballat i tapar amb la retirada de
     terres sobrants
D.2 Rasa de 2 circuits BT amb obertura a mà i a m          100      16,19       1.619
     màquina en terra amb protecció de sorra.
     Inclou l’obertura i domicilio de 1m de rasa
     de 0,6m x 0,9m, ballat i tapat amb retirada de
     terres sobrants.

D.3     Rasa de 3 circuits BT amb obertura a mà i a       m   12    16,78      201,36
        màquina en terra amb protecció de sorra.
        Inclou l’obertura i demolició de 1m de rasa
        de 0,6m x 0,9 m, ballat i tapat amb la retirada
        de terres sobrants.

D.4     Rasa de 4 circuits BT amb obertura a ma i a       m   20    17,31       346,2
        màquina en terra amb protecció de sorra.
        Inclou l’obertura i demolició de 1m de rasa
        de 0,6m x 0,9 m, ballat i tapat amb la retirada
        de terres sobrants.

D.5     Rasa mixta MT/BT/EE 1C/4C/1C amb                  m   35    18,35      642,25
        obertura a mà i a màquina en terra amb
        protecció de sorra i protecció de tubulars
        formigonats per al circuit EE. Inclou
        l’obertura i demolició de 1 m de rasa de
        0,6mx0,9m, ballat i tapat amb retirada de
        terres sobrants.

D.6     Rasa mixta MT/BT/EE 1C/3C/1C amb                  m   30    18,14      544,20
        obertura a mà i a màquina en terra amb
        protecció de sorra i protecció de tubulars
        formigonats per al circuit EE. Inclou
        l’obertura i demolició de 1 m de rasa de
        0,6mx0,9m, ballat i tapat amb retirada de
        terres sobrants.

D.7     Rasa mixta MT/BT/EE 1C/2C/1C amb                  m   160   18,03     2.884,80
        obertura a mà i a màquina en terra amb
        protecció de sorra i protecció de tubulars
        formigonats per al circuit EE. Inclou
        l’obertura i demolició de 1 m de rasa de
        0,6mx0,9m, ballat i tapat amb retirada de
        terres sobrants.

Albert Bel Esteller
Enginyer Tècnic Industrial en Electricitat                                         33
Electrificació Polígon Industrial “Los Campets”                             Pressupost


Codi Descripció                                 Uts. Quantitat Preu          Import
D.8 Rasa mixta MT/BT/EE 1C/1C/1C amb m                 65       17,86         1.160,90
     obertura a mà i a màquina en terra amb
     protecció de sorra i protecció de tubulars
     formigonats per al circuit EE. Inclou
     l’obertura i demolició de 1 m de rasa de
     0,6mx0,9m, ballat i tapat amb retirada de
     terres sobrants.

D.9     Rasa MT/EE 1C/1C amb obertura a mà i a            m   410   16,74     6.863,40
        màquina en terra. Inclou l’obertura i
        demolició de 1 m de rasa de 0,6mx0,6m,
        ballat i tapat amb retirada de terres sobrants.

D.10 Rasa EE amb obertura a mà i a màquina en             m   405   12,56     5.086,80
     terra amb protecció de tubulars formigonats
     per al circuit EE. Inclou l’obertura i
     demolició de 1 m de rasa de 0,4mx0,6m,
     ballat i tapat amb retirada de terres sobrants.

D.11 Rasa BT 2C amb obertura a mà i a màquina             m   12    14,65      175,80
     en terra amb protecció de tubulars
     formigonats. Inclou l’obertura i demolició de
     1 m de rasa de 0,75mx1,0m, ballat i tapat
     amb retirada de terres sobrants, i amb
     cobriment de tubular formigonat amb
     formigó H-125, per a creuament de calçada.

D.12 Rasa MT/BT 1C/2C amb obertura a mà i a               m   10    15,87      158,70
     màquina en terra amb protecció de tubulars
     formigonats. Inclou l’obertura i demolició de
     1 m de rasa de 0,75mx1,0m, ballat i tapat
     amb retirada de terres sobrants, i amb
     cobriment de tubular formigonat amb
     formigó H-125, per a creuament de calçada.

D.13 Rasa EE amb obertura a mà i a màquina en             m   50    13,87      693,50
     terra amb protecció de tubulars formigonats
     per al circuit EE. Inclou l’obertura i
     demolició de 1 m de rasa de 0,4mx0,6m,
     ballat i tapat amb retirada de terres sobrants, i
     amb cobriment de tubular formigonat amb
     formigó H-125, per a creuament de calçada.

D.14 Rasa mixta MT/BT 1C/4C amb obertura a                m   26    14,75      383,50
     mà i a màquina en terra amb protecció de
     sorra. Inclou l’obertura i demolició de 1 m de
     rasa de 0,6mx0,9m, ballat i tapat amb
     retirada de terres sobrants.

Albert Bel Esteller
Enginyer Tècnic Industrial en Electricitat                                         34
Electrificació Polígon Industrial “Los Campets”                             Pressupost


Codi Descripció                                     Uts. Quantitat Preu      Import
D.15 Rasa mixta MT/BT 1C/2C amb obertura a m               40       14,70      588
     mà i a màquina en terra amb protecció de
     sorra. Inclou l’obertura i demolició de 1 m de
     rasa de 0,6mx0,9m, ballat i tapat amb
     retirada de terres sobrants.

D.16 Rasa BT/EE 4C/1C amb obertura a mà i a            m   110     15,89      1.747,90
     màquina en terra. Inclou l’obertura i
     demolició de 1 m de rasa de 0,6mx0,6m,
     ballat i tapat amb retirada de terres sobrants.

D.17 Rasa BT/EE 2C/1C amb obertura a mà i a            m    20     15,68       313,60
     màquina en terra. Inclou l’obertura i
     demolició de 1 m de rasa de 0,6mx0,6m,
     ballat i tapat amb retirada de terres sobrants.

D.18 Subministrament i col·locació de sorra per        m   1438     0,68       977,84
     restabliment de rasa fins a 10 cm per sobre
     de la mediatriu del tub.

D.19 Tapat de la rasa i compactat a màquina en         m   1510     9,13     13.786,30
     capes de 15 cm d’espessor, donant la humitat
     necessària a les terres per obtenir una
     compactació igual o superior al 95%.

D.20 Subministrament i estesa en rasa i en tubulars    m    72     11,33       815,76
     fins 20m de un circuit amb conductor
     3x1x240 +150 mm2 AL. Inclou disposar dels
     mitjans necessaris per l’estesa i descàrrega de
     la bobina i les brides per ajuntar els
     conductors d’una mateixa fase.

D.21 Marcar, mesurar i confeccionar els plànols        U    5     1013,16 5.065,80
     “AS BUILT” de les instal·lacions realitzades,
     entregat en paper vegetal. (Entre 1 i 100m).

D.22 Terminal bimetàl·lic per cable subterrani BT      U    44     14,88       654,72
     de 3 x 240 + 1 x 150 mm2. Inclou tallar el
     cable a mida, (tres fases més el neutre),
     deixar en puntes mortes, col·locar terminal
     premsat, encintar i enbornar.

D.23 Presa a terra completa per a caixes de            U    19     53,23      1.011,37
     seccionament i caixes BT .Inclou els
     connectors per la connexió a la xarxa a terra.




Albert Bel Esteller
Enginyer Tècnic Industrial en Electricitat                                         35
Electrificació Polígon Industrial “Los Campets”                             Pressupost


Codi Descripció                                      Uts. Quantitat Preu     Import
D.24 Fusibles cutxilla BT F CU 3/315 ETU-1254 U             32       7,06     225,92
     ret. Inclou la instal·lació en caixes i quadres
     BT del CT . Conjunt de tres fusibles per
     sòcul.
D.25 Conductor        d’alumini       UNE        RV m       900      8,25       7425
     3x1x240+1x150 Al


                                                  TOTAL CAPÍTOL D: 53.440,27 €




Albert Bel Esteller
Enginyer Tècnic Industrial en Electricitat                                         36
Electrificació Polígon Industrial “Los Campets”                           Pressupost


E.- ENLLUMENAT PÚBLIC

Codi Descripció                                    Uts. Quantitat Preu Import
E.1 Conductor de coure UNE RV 0,6/1kV V de m              1470     3,12   4.586,4
     2 x 6 mm2 col·locat dins de tub.
E.2 Conductor de coure UNE RV 0,6/1 kV de m               1470     3,76   5.527,2
     1x35 mm2.
E.3 Bàcul galvanitzat de 9 metres d’alçada. U              32     442,68 14.165,76
     Inclou transport, col·locació sobre la
     cementació, anivellació, connexió al circuit
     d’alimentació i el de presa de terra
E.4 Pica d’acer i coure de 14 mm de diàmetre i U           32     24,05 769,60
     2 m de longitud. Inclou soldadura i clavar-la
     a terra

E.5     Interruptor posicions enllumenat              U    1     200,00   200,00

E.6     Conductor de coure un de 35 mm2               m   1470    3,15    4.630,50

E.7     Tub flexible corrugat PVC DN 100 mm,          m   1200    2,62    3.144,00
        pressió 4 atmosferes I 4,4 mm de gruix amb
        grau de protecció al xoc 7 i muntants com a
        canalització soterrada.

E.8     Fusibles de 63 A. Mida DIN 0, instal·lats     U    6      2,82     16,92
        abans dels comptadors.

E.9     Equip de contatge activa i reactiva de 15 A   U    2     595,01 1.190,02
        d’intensitat nominal, amb Instal·lació de
        rellotge horari que permeti realitzar el
        contatge en doble tarifa.

E.10 Interruptor de control de potència de 4 pols i   U    2     99,17    198,34
     15 A d’intensitat nominal. Legrand DX 10
     kA de poder de tall.

E.11 Interruptor diferencial 4 pols, 40A i 0,03 A     U    2     152,05   304,10
     In. Legrand DX.

E.12 Interruptor diferencial 2 pols 40A i 0,03S       U    4     59,50    238,00
     In. Legrand DV.

E.13 Interruptor magnetotèrmic de 4 pols i 10 A       U    2     79,33    158,66
     d’intensitat nominal. Legrand DX 10kA

E.14 Interruptor magnetotèrmic 2 pols i 5A            U    4     33,06    132,24
     d’intensitat nominal. Legrand DV



Albert Bel Esteller
Enginyer Tècnic Industrial en Electricitat                                       37
Electrificació Polígon Industrial “Los Campets”                            Pressupost


Codi Descripció                                 Uts. Quantitat Preu Import
E.15 Contactor de 4 pols i d’intensitat nominal U       2      112,39 224,78
     20A. Legrand referència 04033. Bobina
     230V.

E.16 Contactor de 2 pols i d’intensitat nominal de    U      4     66,01   264,04
     12A. Legrand referència 04033. Bobina
     230V.

E.17 Armari metàl·lic tipus intempèrie                U      2    621,45 1.242,90


E.18 Lluminària vial model Philips tràfic Vision      U     32    248,40 7.948,80
     SGS 306. Incorpora làmpada vapor sodi 150
     W i equip auxiliar encesa.

E.19 Arqueta 60x60x80 cm,G= 15 cm, H-250.             U     12    122,35   1.468,2
     Arqueta de 60x60x80 cm, amb parets de15
     cm de gruix de formigo H-250, sobre llit de
     sorra


                                                     TOTAL CAPÍTOL E: 46.410,46 €




Albert Bel Esteller
Enginyer Tècnic Industrial en Electricitat                                        38
Electrificació Polígon Industrial “Los Campets”                                   Pressupost


4.- RESUM DEL PRESSUPOST
     El pressupost del Polígon Industrial “Los Campets” puja a la quantitat total de:

                                                                  CAPÍTOL A:     7.207,52 €

                                                                  CAPÍTOL B:    23.782,54 €

                                                                  CAPÍTOL C: 336.932,65 €

                                                                  CAPÍTOL D:    53.440,27 €

                                                      CAPÍTOL E: 46.410,46 €
               _____________________________________________________________

                 TOTAL EXECUCIÓ MATERIAL                                       467.773,44 €

                                     13,00 % Despeses Generals                   60.810,55

                                     6% Benefici Industrial                      28.066,40

             ______________________________________________________________

                                     SUMA DE D.G. y B.I.                         88.876,95

             ______________________________________________________________

             TOTAL PRESSUPOST D’EXECUCIÓ PER CONTRATA                           556.650,40

                  16,00 % I.V.A.                                                 89.064,06

                                    _______________________________________________

                                 PRESSUPOST GLOBAL DE LICITACIÓ                645.714,46 €

             ______________________________________________________________

                           PRESSUPOST GLOBAL DE LICITACIÓ                      645.714,46 €

                                    Alcanar, 30 d’Agost de 2004




                                      Albert Bel Esteller
                            Enginyer Tècnic Industrial en Electricitat


Albert Bel Esteller
Enginyer Tècnic Industrial en Electricitat                                               39
Electrificació Polígon Industrial “Los Campets”                      Plec de Condicions




                                         Plec de Condicions




                                                         AUTORS: Albert Bel Esteller
                                                        DIRECTORS: J. J. Tena Tena.

                                                              DATA: Setembre / 2004.



Albert Bel Esteller

Enginyer Tècnic Industrial en Electricitat                                          1
Electrificació Polígon Industrial “Los Campets”                                                           Plec de Condicions




       Índex del Plec de Condicions
       1    PLEC DE CONDICIONS GENERALS .............................................................5

           1.1    Condicions generals....................................................................................5

           1.2    Reglaments i normes...................................................................................5

           1.3    Materials ....................................................................................................5

           1.4    Execució de les obres..................................................................................5

           1.5    Interpretació i desenvolupament del projecte ..............................................6

           1.6    Obres complementàries...............................................................................6

           1.7    Modificacions.............................................................................................7

           1.8    Obra defectuosa..........................................................................................7

           1.9    Mitjans auxiliars .........................................................................................7

           1.10       Conservació de les obres.........................................................................7

           1.11       Recepció de les obres..............................................................................7

           1.12       Contractació de l’empresa.......................................................................8

           1.13       Fiança .....................................................................................................8

       2    PLEC DE CONDICIONS ECONÒMIQUES......................................................9

           2.1    Abonament de l’obra ..................................................................................9

           2.2    Preus ..........................................................................................................9

           2.3    Revisió de preus .........................................................................................9

           2.4    Penal·litzacions...........................................................................................9

           2.5    Contracte ....................................................................................................9

           2.6    Responsabilitats........................................................................................10

           2.7    Rescisió del contracte ...............................................................................10

           2.8    Liquidació en cas de rescissió de contracte ...............................................10

       3    PLEC DE CONDICIONS FACULTATIVES...................................................11


Albert Bel Esteller

Enginyer Tècnic Industrial en Electricitat                                                                                     2
Electrificació Polígon Industrial “Los Campets”                                                           Plec de Condicions

           3.1    Normes a seguir........................................................................................11

           3.2    Personal....................................................................................................11

           3.3    Reconeixement i assajos previs.................................................................11

           3.4    Assajos .....................................................................................................11

           3.5    Aparamenta ..............................................................................................12

           3.6    Varis.........................................................................................................12

       4    PLEC DE CONDICIONS TÈCNIQUES GENERALS .....................................13

           4.1    Moviments de terres .................................................................................13

           4.2    Neteja del terreny .....................................................................................13

           4.3    Explanacions, desmunts i buixardats.........................................................14

           4.4    Replens i Terraplens .................................................................................16

           4.5    Excavació de Rases i Pous ........................................................................17

           4.6    Transport de Terres a l'abocador ...............................................................17

           4.7    Replanteig definitiu ..................................................................................18

           4.8    Fonaments, acers i emmacats....................................................................18

           4.9    Acers ........................................................................................................19

           4.10       Malles, Electrosoldadures d'acer especial..............................................19

           4.11       Emmacats .............................................................................................20

           4.12       Sabates .................................................................................................20

           4.13       Lloses ...................................................................................................20

           4.14       Estructures de formigó ..........................................................................21

           4.15       Estructures metàl·liques ........................................................................24

           4.16       Ram del paleta ......................................................................................25

           4.17       Paviments, enrajolats ............................................................................26

           4.18       Pintures i estocats .................................................................................27

           4.19       Unitats d’obra civil ...............................................................................28


Albert Bel Esteller

Enginyer Tècnic Industrial en Electricitat                                                                                    3
Electrificació Polígon Industrial “Los Campets”                                                       Plec de Condicions

       5    PLEC DE CONDICIONS TÈCNIQUES ELÈCTRIQUES ...............................29

           5.1    Equips elèctrics.........................................................................................29

           5.2    Quadres elèctrics ......................................................................................31

           5.3    Enllumenat ...............................................................................................31

           5.4    Xarxa de preses a terra..............................................................................32

           5.5    Làmpedes de senyalització........................................................................33




Albert Bel Esteller

Enginyer Tècnic Industrial en Electricitat                                                                                4
Electrificació Polígon Industrial “Los Campets”                                Plec de Condicions



1      PLEC DE CONDICIONS GENERALS
1.1    Condicions generals

      El present plec de condicions té com objecte definir al Contractista l’objectiu del
treball i l’execució qualitativa del mateix.

       El treball elèctric consistirà en la instal·lació elèctrica completa per força, enllumenat
i terra.

       L’objectiu del treball del Contractista inclou el disseny i preparació de tots els
plànols, diagrames, especificacions, llistes de material i requisits per l’adquisició e
instal·lació del treball.

1.2    Reglaments i normes

      Totes les unitats d’obra s’executaran complint les prescripcions indicades en els
Reglaments de Seguretat i Normes Tècniques d’obligat compliment per aquests tipus
d’instal·lacions, tant en àmbit nacional, autonòmic com municipal, així com, totes les altres
que s’estableixin en la Memòria Descriptiva del mateix.

      S’adaptaran, a més a més, a les presents condicions particulars que complementaran
les indicades per els Reglaments i Normes anomenades.

1.3    Materials

      Tots els materials utilitzats seran de primera qualitat. Compliran les especificacions i
tindran les característiques indicades en el projecte i en les normes tècniques generals, i a
més a més en les de la Companyia Distribuïdora d’Energia, per aquest tipus de materials.

      Tota especificació o característica de materials que figurin en un sol dels documents
del Projecte, encara sense figurar en els altres és igualment obligatòria. En el cas d’existir
contradicció u omissió en els documents del projecte, el Contractista obtindrà l’obligació
de manifestar-ho al Tècnic Director de l’obra, qui decidirà sobre el particular. En cap cas
podrà substituir la falta directament, sense l’autorització expressa.

      Una vagada adjudicada l’obra definitivament i abans d’iniciar-se aquesta, el
Contractista presentarà al Tècnic Director catàlegs, cartes mostra, certificats de garantia o
de homologació dels materials que s’utilitzaran. No podrà utilitzar-se materials que no
hagin sigut acceptats per el Tècnic Director.

1.4    Execució de les obres

       Començament:

      El contractista donarà l’inici de l’obra en el plaç que figuri en el contracte establert
amb la Propietat, o en el seu defecte en els quinze dies de l’adjudicació definitiva o de la
firma del contracte.



Albert Bel Esteller

Enginyer Tècnic Industrial en Electricitat                                                    5
Electrificació Polígon Industrial “Los Campets”                               Plec de Condicions

     El Contractista estarà obligat a notificar per escrit o personalment en forma directa el
Tècnic Director la data de començament dels treballs.

       Plaç d’execució:

      L’obra s’executarà en el plaç que s’estipuli en el contracte subscrit amb la Propietat o
en el seu defecte, en el que figuri en les condicions del present plec. Quan el Contractista,
doni l’acord, amb algun dels extrems continguts en el present Plec de Condicions, o be en
el contracte establert amb la Propietat, sol·liciti una inspecció per poder realitzar algun
treball ulterior que estigui condicionat per la mateixa, vindrà obligat a tenir preparada, per
l’anomenada inspecció, una quantitat d’obra que correspongui a un ritme normal del
treball.

      Quan el ritme de treball establert per el Contractista, no sigui el normal, o be a
petició d’una de les parts, es podrà convenir una programació de inspeccions obligatòries
d’acord amb el pla d’obra.

       Llibre d’ordres:

      El Contractista disposarà en l’obra d’un Llibre d’Ordres en el que s’escriuran les
ordres que el Tècnic Director estimi donar a través del encarregat o persona responsable,
sense perjudici de les que doni per ofici quan ho cregui necessari i que tindrà l’obligació de
firmar l’assabentat.

1.5    Interpretació i desenvolupament del projecte

      La interpretació tècnica dels documents del Projecte, correspon al Tècnic Director. El
Contractista està obligat a sotmetre a aquest a qualsevol dubte o aclariment que sorgeixi
durant l’execució de l’obra per causa del Projecte, o circumstància aliena, sempre amb la
suficient antelació en funció de la importància de l’assumpte.

      El contractista s’ha de fer responsable de qualsevol error de l’execució motivat per
l’omissió d’aquesta obligació i conseqüentment haurà de refer a costa seu els treballs que
corresponguin a la correcta interpretació del Projecte.

        El Contractista està obligat a realitzar tot el que sigui necessari per la bona execució
de l’obra, encara que no es trobi explícitament expressat en el plec de condicions o en els
documents del projecte. El contractista notificarà per escrit o personalment en forma
directa al Tècnic Director i amb suficient antelació les dates en que quedarà preparada per
inspecció, cada una de les parts d’obra per les que s’ha indicat la necessitat o conveniència
de la mateixa o per aquelles que, total o parcialment hagin posteriorment quedat ocultes.
De les unitats d’obra que s’han d’ocultar, es prendran abans, les dades precises per la seva
mediació, a efectes de liquidació i que siguin subscrites per el Tècnic Director de trobar-les
correctes. De no complir-se aquest requisit, la liquidació es realitzarà en base a les dades o
criteris de mediació aportats per aquest.

1.6    Obres complementàries

      El contractista té l’obligació de realitzar totes les obres complementàries que siguin
indispensables per realitzar qualsevol de les unitats d’obra especificades en qualsevol dels


Albert Bel Esteller

Enginyer Tècnic Industrial en Electricitat                                                   6
Electrificació Polígon Industrial “Los Campets”                              Plec de Condicions

documents del Projecte, encara que en ell, no figurin explícitament mencionades dites
obres complementàries. Tot això sense variació del import contractat.

1.7    Modificacions

      El contractista està obligat a realitzar les obres que se l’hi encarreguin resultant de
modificacions del projecte, tant en augment com amb disminució o simplement variació,
sempre i quan l’import de les mateixes no alteri en més o menys de un 25%el valor
contractat.

      La valoració de les mateixes és farà, d’acord, amb els valors establerts en el
pressupost entregat pel contractista i que ha sigut pres com a base del contracte. El Tècnic
Director de l’obra està facultat per introduir les modificacions d’acord amb el seu criteri en
qualsevol unitat d’obra, durant la construcció, sempre que compleixin les condicions
tècniques referides en el projecte i de manera que no faci variar l’import total de l’obra.

1.8    Obra defectuosa

      Quan el Contractista trobi qualsevol unitat d’obra que no s’ajusti al que esta
especificat en el projecte o en aquest Plec de Condicions, el Tècnic Director podrà
acceptar-ho o rebutjar-ho; en el primer cas, aquest fixarà el preu que cregui just per
arreglar les diferències que hi hagués, estant obligat el Contractista a acceptar dita
valoració, en el altre cas, es reconstruirà a expenses del Contractista la part mal executada
sense que això sigui motiu de reclamació econòmica o de ampliació de plaç d’execució.

1.9    Mitjans auxiliars

      Aniran a càrrec del Contractista tots els mitjans i maquinària auxiliar que sigui
necessària per l’execució de l’obra. En el us dels mateixos estarà obligat a fer complir tots
els Reglaments de Seguretat en el treball vigents i a utilitzar els mitjans de protecció als
seus operaris.

1.10 Conservació de les obres

       És obligació del Contractista la conservació en perfecte estat de les unitats d’obra
realitzades fins la data de la recepció definitiva per la Propietat, i corren al seu càrrec les
despeses derivades d’això.

1.11 Recepció de les obres

       Recepció provisional:

      Un cop acabades les obre, tindrà lloc la recepció provisional i per això es practicarà
en elles un detingut reconeixement per el Tècnic Director i la Propietat en presència del
Contractista, aixecant acta i començant a corre des d’aquell dia el plaç de garantia si es
troben en estat de ser admesa.

       Plaç de garantia:

      El plaç de garantia serà com a mínim d’un any, contant des de la data de la recepció
provisional, o bé, el que s’estableixi en el contracte també contant des de la mateixa data.

Albert Bel Esteller

Enginyer Tècnic Industrial en Electricitat                                                  7
Electrificació Polígon Industrial “Los Campets”                               Plec de Condicions

Durant aquest període queda a càrrec del Contractista la conservació de les obres i arreglar
els desperfectes causats per assentament de les mateixes o per mal construcció.

       Recepció definitiva:

      Es realitza després de transcorre el plaç de garantia de igual manera que la
provisional. A partir d’aquesta data deixa de tenir l’obligació el contractista de conservar i
reparar a compte seu les obres si bé subsistiran les responsabilitats que pugessin tenir per
defectes ocults i deficiències de causa dubtosa.

1.12 Contractació de l’empresa

       Forma de contractació:

       El conjunt de les instal·lacions les realitzarà l’empresa escollida per concurs-subasta.

       Presentació:

      Les empreses seleccionades per dit concurs hauran de presentar els seus projectes en
sobre lacrat, abans de la data estipulada en el domicili del propietari.

       Selecció:

        L’empresa escollida serà anunciada la setmana següent a la conclusió del plaç de
l’entrega. Dita empresa serà escollida de mutu acord entre el propietari i el director de
l’obra, sense possible reclamació per part de les altres empreses concursants.

1.13 Fiança

      En el contracte s’establirà la fiança que el contractista haurà de dipositar en garantia
del compliment del mateix, o es convindrà una retenció sobre els pagaments realitzats a
compte de obra executada. De no estipular-se la fiança en el contracte s’entén que s’adopta
com a garantia una retenció del 5% sobre els pagaments a compte citats. En el cas de que
el Contractista es negués a fer per la seva compte els treballs per ultimar l’obra en les
condicions contractades, o a atendre la garantia, la Propietat podrà ordenar executar-les a
un tercer, abonant el seu import amb càrrec de retenció o fiança, sense perjudici de les
accions legals a que tingui dret la Propietat si l’import de la fiança no es suficient. La
fiança retenida s’abonarà al Contractista en un plaç no superior a trenta dies una vegada
firmada l’acta de recepció definitiva de l’obra.




Albert Bel Esteller

Enginyer Tècnic Industrial en Electricitat                                                   8
Electrificació Polígon Industrial “Los Campets”                               Plec de Condicions



2      PLEC DE CONDICIONS ECONÒMIQUES
2.1    Abonament de l’obra

       En el contracte s’haurà de fixar detalladament la forma i plassos que s’abonaran les
obres. Les liquidacions parcials que pugin establir-se tindran caràcter de documents
provisionals, a bona compte, subjectes a les certificacions que resultin de la liquidació
final. No suposant, dites liquidacions, aprovació ni recepció de les obres que comprenen.
Acabades les obres es procedirà a la liquidació final que s’efectuarà d’acord amb els
criteris establerts en el contracte.

2.2    Preus

      El contractista presentarà, al formalitzar-se el contracte, relació de les unitats d’obra
que integren el projecte, les quals de ser acceptades tindran valor contractual i s’aplicaran a
les possibles variacions que pugin haver. Aquests preus unitaris, s’entén que comprenen
l’execució total de la unitat d’obra, incloent tots els treballs fins i tot els complementaris i
els materials així com la part proporcional d’imposició fiscal, les càrregues laborals i altres
despeses repercutibles.

      En cas de tenir que realitzar-se unitats d’obra no previstes en el projecte, es fixarà el
seu preu entre el Tècnic Director i el Contractista abans d’iniciar l’obra i es presentarà a la
propietat per la seva acceptació o no.

2.3    Revisió de preus

      En el contracte s’establirà si el contractista té dret a revisió de preus i la fórmula a
aplicar per calcular-la. En defecte d’aquesta última, s’aplicarà a opinió del Tècnic Director
algun criteri oficial acceptat.

2.4    Penal·litzacions

      Per retràs en els terminis d’entrega de les obres, es podran establir taules de
penalització les quantitats de les quals i retrassos es fixaran en el contracte.

2.5    Contracte

      El contracte es formalitzarà mitjançant document privat, que podrà elevar-se a
escriptura pública a petició de qualsevol de les parts. Inclourà l’adquisició de tots els
materials, transport, ma d’obra, mitjans auxiliars per l’execució de l’obra projectada en el
plaç estipulat, així com la reconstrucció de les unitats defectuoses, la realització de les
obres complementàries i les derivades de les modificacions que s’introdueixin durant
l’execució, aquestes últimes en els terminis prevists.

      La totalitat dels documents que componen el Projecte Tècnic de l’obra seran
incorporats al contracte i tant el contractista com la Propietat hauran de firmar-los en
testimoni de que els coneixen i accepten.



Albert Bel Esteller

Enginyer Tècnic Industrial en Electricitat                                                   9
Electrificació Polígon Industrial “Los Campets”                               Plec de Condicions

2.6    Responsabilitats

      El contractista és el responsable de l’execució de les obres en les condicions
establertes en el projecte i en el contracte. Com a conseqüència d’això vindrà obligat a la
demolició de la mala execució i a la seva reconstrucció correctament sense que serveixi
d’excusa el que el Tècnic Director hagi examinat i reconegut les obres.

      El Contractista és l’únic responsable de totes les controvèrsies que ell o el seu
personal cometin durant l’execució de les obres u operacions realitzades amb les mateixes.
També és responsable dels accidents o danys que per errors, inexperiència o utilització de
mètodes inadequats es produeixin en la propietat dels veïns o tercers en general.

       El Contractista és l’únic responsable de l’incompliment de les disposicions vigents
en la matèria laboral respecte del seu personal i per tant els accidents que pugin sobrevenir
i dels drets que pugin derivar-se d’ells.

2.7    Rescisió del contracte

       Causes de rescissió:

       Es consideren causes suficients per la rescissió del contracte les següents:
              - Mort o incapacitat del Contractista.
              - La fallida del Contractista.
              - Modificacions del projecte quan produeixi alteracions més o menys 25% del
                valor contractat.
              - Modificacions de les unitats d’obra en un número superior al 40% del
                original.
              - La no inicialització de les obres en el termini estipulat quan sigui per causes
                foranies a la Propietat.
              - La suspensió de les obres ja començades sempre que el termini de suspensió
                sigui més gran de sis mesos.
              - Incompliment de les condicions del Contracte quan impliqui mala fe.
              - Acabament del termini d’execució de l’obra sense haver-se arribat a
                completar aquesta.
              - Actuació de mala fe en l’execució dels treballs.
              - Subcontractat la totalitat o part de l’obra a tercers sense l’autorització del
                Tècnic Director i la Propietat.

2.8    Liquidació en cas de rescissió de contracte

      Sempre que es rescindeixi el contracte per causes anteriors o bé per acord de
ambdues parts, s’abonarà al Contractista les unitats d’obra executades i els materials situats
a peu d’obra i que reuneixin les condicions i siguin necessaris per la mateixa. Quan es
rescindeixi el contracte portarà implícit la retenció de la fiança per obtenir les possibles
despeses de conservació del període de garantia i els derivats del manteniment fins la data
de nova adjudicació.

Albert Bel Esteller

Enginyer Tècnic Industrial en Electricitat                                                   10
Electrificació Polígon Industrial “Los Campets”                              Plec de Condicions

3      PLEC DE CONDICIONS FACULTATIVES
3.1    Normes a seguir

     El disseny de la instal·lació elèctrica estarà d’acord amb les exigències o
recomanacions exposades en l’ultima edició dels següents codis:
              - Reglament Electrotècnic de Baixa Tensió e Instruccions Complementàries.
              - Normes UNE.
              - Publicacions del Comitè Electrotècnic Internacional (CEI).
              - Pla Nacional i Ordenança General de Seguretat e Higiene en el treball.
              - Normes de la Companyia Subministradora.
              - L’especificat en aquest plec de condicions amb preferència a tots els codis i
                normes.
              - Normativa que afecta al Pla Urbanístic d’Alcanar.

3.2    Personal

      Contractista tindrà en l’obra un encarregat amb autoritat sobre els demés operaris i
coneixement acreditats i suficients per l’execució de l’obra. L’encarregat rebrà, complirà i
transmetrà les instruccions i ordres del Tècnic Director de l’obra.

       El Contractista tindrà en l’obra, el número i classe d’operaris que facin falta pel
volum i naturalesa dels treballs que es realitzin, els quals seran de reconeguda aptitud i
experimentats en l’ofici. El Contractista estarà obligat a separar de l’obra, tot aquell
personal que pel criteri del Tècnic Director no compleixi amb les seves obligacions, realitzi
el treball defectuosament, bé per falta de coneixement o per operar amb mala fe.

3.3    Reconeixement i assajos previs

      Quan ho cregui oportú el Tècnic Director, podrà encarregar i ordenar l’anàlisi, assaig
o comprovació dels materials, elements o instal·lacions, bé sigui en fàbrica d’origen,
laboratoris oficials o en la mateixa obra, segons cregui més convenient, encara que
aquestos no estiguin indicats en aquest plec de condicions.

      En el cas de discrepància, els assajos o proves s’efectuaran en el labora tori oficial
que el Tècnic Director d’obra assigni.

3.4    Assajos

      Abans de la posada en servei del sistema elèctric, el Contractista haurà de fer els
assajos adequats per provar, a plena satisfacció del Tècnic Director d’obra, que tot equips,
aparells i cablejat ha sigut instal·lat correctament d’acord amb les normes establertes i
estan en condicions satisfactòries de treball.

     Tots els assajos seran presenciats per l’enginyer que representa el Tècnic Director
d’obra. Els resultats dels assajos seran donats en certificats indicant la data i número de la
persona a càrrec del mateix, així com la categoria professional.

Albert Bel Esteller

Enginyer Tècnic Industrial en Electricitat                                                  11
Electrificació Polígon Industrial “Los Campets”                                Plec de Condicions

       Els cables, abans de posar-se en funcionament, es sotmetran a un assaig de
resistència de aïllament entre les fases i entre fase i terra, que es farà de la manera següent:
               - Enllumenat i força, excepte motors. Mesurar la resistència d’aïllament de
                 tots els aparells (armadures, tomes de corrent, etc...), que hagin sigut
                 connectats, a excepció de la col·locació de les làmpades.
               - En els cables soterrats, aquests assajos de resistència d’aïllament es faran
                 abans i després d’efectuar el reompliment i el compactat.

3.5    Aparamenta

      Abans de posar l’aparamenta sota tensió , es mesurarà la resistència d’aïllament de
cada embarrat entre fases i entre fase i terra. Les mesures hauran de repetir-se amb els
interruptors en posició de funcionament i contactes oberts.

      Tot relè de protecció que sigui ajustable serà calibrat i assajat, utilitzant contactors de
cicles, caixa de càrrega, amperímetre i voltímetre, segons es necessiti. Es disposarà,
sempre que sigui possible, d’un sistema de protecció selectiva.

      D’acord amb això, els relès de protecció s’escolliran i coordinaran per aconseguir un
sistema que permeti actuar primer el dispositiu d’interrupció més pròxim a la falta. El
contractista prepararà corbes de coordinació de relès i calibratge d’aquests per tots els
sistemes de protecció previstos.

      Es comprovarà els circuits secundaris dels transformadors d’intensitat i tensió
aplicant corrents o tensions en els enrollaments secundaris dels transformadors i
comprovant que els instruments connectats a aquests secundaris funcionin. Tots els
interruptors automàtics es col·locaran en posició de prova i cada interruptor serà tancat i
disparat des de l’interruptor de control. Els interruptors han de ser disparats per
accionament manual i aplicant corrent en els relès de protecció. Es comprovaran tots els
enclavaments. Es mesurarà la rigidesa dielèctrica de l’oli d’interruptors de petit volum.

3.6    Varis

      Es comprovarà la posta a terra per determinar la continuïtat dels cables a terra i
connexions i es mesurarà la resistència dels elèctrodes de terra. Es comprovaran els
carregadors de bateries per comprovar el seu funcionament correcte d’acord amb les
recomanacions dels fabricants.




Albert Bel Esteller

Enginyer Tècnic Industrial en Electricitat                                                    12
Electrificació Polígon Industrial “Los Campets”                              Plec de Condicions



4      PLEC DE CONDICIONS TÈCNIQUES GENERALS
      Aquest Plec de Condicions Tècniques Generals comprèn el conjunt de
característiques que hauran de complir els materials emprats a la construcció, així com les
tècniques de la seva col·locació a l'obra i les que hauran de manar l'execució de qualsevol
tipus d’instal·lacions i d'obres accessòries i dependents.

4.1    Moviments de terres

     Comprèn totes les operacions relacionades amb els moviments de terres, incloses
roques, necessàries per a l'execució de l'obra. Aquestes operacions son:
              - Neteja del terreny
              - Explanacions, desmunts i buixardats
              - Replens i terraplens
              - Excavació de rases i pous
              - Transport de terres a l'abocador
              - Replanteig definitiu

       Es considerarà inclosa en el preu de tot moviment de terres qualsevol resta
d'edificació a enderrocar que aparegui.

4.2    Neteja del terreny

     Aquest treball consisteix en extreure i retirar de les zones designades tots els arbres,
soques, plantes, malesa, brossa, runes, escombraries o qualsevol altre material indesitjable.
La seva execució inclou les operacions següents:
              - - Excavació dels materials objecte de l'esbrossada
              - - Retirada dels materials objecte de l'esbrossada.

      Tot això realitzat d'acord amb les presents especificacions i amb les dades que sobre
el particular inclouen els corresponents documents del projecte.

       Execució de les obres:

      Les operacions d'excavació s'efectuaran amb les precaucions necessàries per
aconseguir unes condicions de seguretat suficients i evitar dany en les estructures existents,
d'acord amb el que, sobre el particular, ordeni el Facultatiu Encarregat de les Obres, que
designarà i marcarà els elements que s'hagin de conservar intactes. Per a disminuir el més
possible el deteriorament dels arbres que hagin de conservar-se, es procurarà que els que
s'han d'aterrar caiguin cap al centre de la zona objecte de neteja.

     Quan sigui necessari evitar danys a d'altres arbres, al tràfic per carretera o ferrocarril
o a estructures pròximes, els arbres s'aniran trossejant per la seva brancada i tronc
progressivament. Si per a protegir aquests arbres o altra vegetació destinada a romandre en
un lloc, es precisa aixecar barreres o utilitzar qualsevol altre mitjà, els treballs

Albert Bel Esteller

Enginyer Tècnic Industrial en Electricitat                                                  13
Electrificació Polígon Industrial “Los Campets”                                Plec de Condicions

corresponents s'ajustaran al que, sobre el particular, ordeni el facultatiu encarregat de les
obres. Aquells arbres que ofereixin possibilitats comercials, seran esporgats i netejats;
després es tallaran en trossos adequats i finalment s'emmagatzemaran acuradament al llarg
del tirat, separats dels munts que cal cremar o llençar. La longitud dels trossos de fusta serà
superior a 3 m. (tres metres), si ho permet el tronc. Els treballs es realitzaran de manera que
produeixin la menor molèstia possible als ocupants de les zones pròximes a les obres. Cap
fita-marca de propietat o punt de referència de dades topogràfiques de qualsevol classe serà
fet malbé o desplaçat fins que un agent autoritzat hagi referenciat d'alguna altra manera la
seva situació o aprovat el desplaçament.

       Retirada dels materials objecte d'aclariment i esbrossada:

      Tots els subproductes forestals, excepte la llenya de valor comercial, seran cremats
d'acord amb el que, sobre el particular, ordeni el Facultatiu encarregat de les obres. El
concepte de metre quadrat (m2) d'esbrossada, neteja i preparació del terreny inclourà
també les possibles excavacions i replens motivats per existència de sòls inadequats que, a
judici del director de les Obres, sigui necessari eliminar per a poder endegar els treballs de
fonamentació. Es considerarà que abans de presentar l'oferta econòmica, el Contractista
haurà visitat i estudiat de forma suficient els terrenys sobre els quals s'ha de construir, i que
haurà inclòs en el preu de l'oferta tots els treballs de preparació, que s'abonaran al preu únic
definit al Quadre de Preus núm. 1 i que en cap cas podran ésser objecte d'increment del
preu del contracte. Es considerarà que les dades contingudes a la Memòria tenen únicament
valor informatiu i que llur inexactitud no pot ésser objecte de reclamació.

       Mesura i abonament

      La mesura i abonament es realitzarà per metres quadrats (m2) realment esbrossats i
preparats. El preu inclou la càrrega i transport a l'abocador dels materials i totes les
operacions esmentades en l'apartat precedent i definides en el Quadre de Preus núm. 1.
Simultàniament a les operacions d'esbrossada, es podrà excavar la capa de terra vegetal.
Les terres vegetals es transportaran a l'abocador o s'arreplegaran en les zones que indiqui la
Direcció de les Obres, a fi de ser emprades per a formació de zones verdes. El transport a
l'abocador o a l'amàs intermedi esmentat es considerarà inclòs en els preus unitaris del
Contracte.

4.3    Explanacions, desmunts i buixardats

       Definicions :

       Explanació és el conjunt d'operacions de desmunt o replè necessàries per a nivellar
les zones on hauran d'asseure's les construccions, incloent-hi les plataformes, talussos i
cunetes provisionals o definitives, a mes del transport dels materials remoguts als
abocadors o lloc d'utilització. Desmunt és l'operació consistent en el rebaix del terreny fins
arribar als nivells previstos en els plànols d'obra. Buidat és l'excavació delimitada per unes
mides definides en els plànols de construcció per l'aprofitament de les parts baixes de
l'edifici, com soterrani, garatges, dipòsits o altres utilitzacions. Si durant les excavacions
apareixen manantials o filtracions motivades per qualsevol causa, s'executaran els treballs
que ordeni la Direcció de les Obres, i es consideraran inclosos en els preus d'excavació. En
els preus de les excavacions està inclòs el transport a qualsevol distància. Si a judici del
Director de les Obres els materials no són aptes per a la formació de terraplens, es

Albert Bel Esteller

Enginyer Tècnic Industrial en Electricitat                                                    14
Electrificació Polígon Industrial “Los Campets”                              Plec de Condicions

transportaran a l'abocador, no essent possible que un increment de distància en el transport
sigui motiu de sobre-preu.

       El Director de les Obres, podrà autoritzar el fet d'abocar materials a determinades
zones baixes de les parcel·les, assumint el Contractista l'obligació d'executar els treballs
d'estesa i compactació sense reclamar compensació econòmica de cap mena. El replè de
parcel·les definit, en cap cas podrà superar les cotes de les voreres més pròximes. La unitat
d'excavació inclourà l'ampliació, millora o rectificació dels talussos de zones de desmunt,
així com el seu refinat i l'execució de cunetes provisionals o definitives. Quan les
excavacions arribin a la rasant definida, els treballs que s'executaran per a deixar
l'esplanada refinada, compactada i totalment preparada per a endegar les obres, estaran
inclosos en el preu unitari de l'excavació. Si l'esplanada no compleix les condicions de
capacitat portant necessàries el Director de les Obres podrà ordenar una excavació
addicional, que serà mesurada i abonada mitjançant el mateix preu definit per a totes les
excavacions. Les excavacions es consideraran no classificades i es defineixen amb el preu
únic per a qualsevol tipus de terreny. L'excavació especial de talussos en roca, s'abonarà al
preu únic definit d'excavació

       Mesura i abonament

       Es mesurarà i abonarà per metres cúbics (m3) realment excavats, mesurats per
diferència entre els perfils presos abans i després dels treballs. No són abonables
despreniments ni augments de volum sobre les seccions que prèviament s'hagin fixat en
aquest Projecte. Per a l'efecte dels mesures de moviment de terra, s'entén per metre cúbic
d'excavació el volum corresponent a aquesta unitat, referida al terreny, tal com es trobi on
s'hagi d'excavar. S'entén per volum de terraplè o replè, el que correspon a aquestes obres
després d'executades i consolidades, segons el que es preveu en aquestes Condicions. En
tots els casos els buits que quedin entre les excavacions i les fàbriques, inclòs resultants
dels despreniments o per qualsevol motiu, s'hauran de omplir amb el mateix tipus de
material, sense que el Contractista rebi per això cap quantitat addicional, així com la
realització del buixardat, sense increment de cost. En cas de dubte sobre la determinació
del preu d'una excavació concreta, el Contractista s'atindrà al que decideixi el Facultatiu
Director, sense ajustar-se a allò que, a efectes de valoració del Pressupost, figuri en els
pressupostos parcials del Projecte.

      S'entén que els preus de les excavacions comprenen, a mes de les operacions i
despeses indicades, tots els auxiliars i complementaris com són: instal·lacions,
subministrament i consum d'energia per a enllumenat i força, subministrament d'aigües,
ventilació, utilització de tota mena de maquinària, amb totes les seves despeses i
amortització, etc., així com els entrebancs produïts per les filtracions o per qualsevol altre
motiu. Si el Contrariats amb l'aprovació de la Propietat, executés menor volum
d'excavació que al que hauria de resultar de les prescripcions fixades, solament es
considerarà d'abonament el volum realment executat. En cas de trobar-se fonaments
enterrats o altres construccions, es considerarà que s'inclouen en el concepte ampli
d'excavació en tot tipus de terreny objecte del preu definit.




Albert Bel Esteller

Enginyer Tècnic Industrial en Electricitat                                                  15
Electrificació Polígon Industrial “Los Campets”                              Plec de Condicions


       Buixardats

      Un cop realitzades totes les operacions de moviment de terres es realitzarà el
buixardat, a fi d'aconseguir l'acabat geomètric de tota l'explanació, desmunt, buidat o replè.
Es comprovaran i rectificaran les alineacions i rasants, així com l'amplada de les
explanacions, refinament de talussos en els desmunts i terraplens, neteja i refinat de
cunetes i explanacions, en les coronacions de desmunts i en el començament de talussos.
Les operacions de buixardats es consideren incloses al preu de moviment de terres per
indicar-se expressament en el present Plec.

4.4    Replens i Terraplens

      Replens i terraplens són les masses de terra o d'altres materials amb els que s'omplen
i compacten uns forats, es fan talussos, es anivellen terrenys o es porten a terme obres
similars. Les diferents capes o zones que els componen són:
              - Fonament: Zona que està per sota de la superfície neta del terreny.
              - Nucli: Zona que comprèn des del fonament fins la coronació.
              - Coronació: Capa superior amb un gruix de 50 cm.

      L'equip necessari per a efectuar la compactació es determinarà pel facultatiu
encarregat, en funció de les característiques del material a compactar en el tipus d'obra. El
contractista podrà utilitzar un equip diferent; per això necessitarà l'autorització del
Facultatiu Director, que solament la concedirà quan amb l'equip proposat pel Contractista
obtingui la compactació requerida, al menys del mateix grau, que amb l'equip proposat pel
Facultatiu encarregat. El fonament del replè es prepararà de forma adequada per a suprimir
les superfícies de discontinuïtat evitables.

      A continuació s'estendrà el material a base de tongades, de gruix uniforme,
suficientment reduït, per tal que, amb els mitjans disponibles, s'obtingui en tot el seu gruix
el grau de compactació exigit. Els materials de cada tongada seran de característiques
uniformes i si no ho són, s'aconseguirà aquesta uniformitat barrejant-se convenientment
amb els mitjans adequats per això. No s'estendrà cap tongada mentre no s'hagi comprovat
que la superfície subjacent compleix les condicions exigides i, per tant, sigui autoritzada la
seva estesa pel Facultatiu Encarregat. Quan la tongada subjacent s'hagi reblanit per una
humitat excessiva, no s'estendrà la següent.

       Mesura i abonament

      Es mesuraran i abonaran per metres cúbics (m3.) realment executats i compactats en
el seu perfil definitiu, mesurats per diferència entre perfils presos abans i després dels
treballs. Si el material a utilitzar és, en algun moment, provinent de les excavacions, el
preu del replè inclourà la càrrega, compactació i transport. En cas que el material provingui
de préstecs, el preu corresponent inclou l'excavació, càrrega, transport, estesa, humectació,
compactació, anivellació i cànon de préstec corresponent. El Director de les obres podrà
autoritzar l'excavació en determinades parcel·les a fi d'obtenir materials de préstecs.
L'esmentada excavació de préstecs en parcel·les, en cap cas podrà rebaixar el terreny de les
parcel·les per sota de les cotes de les voreres més pròximes. Quan sigui necessari obtenir
els materials per a formar terraplens de préstecs exteriors al polígon, el preu del terraplè

Albert Bel Esteller

Enginyer Tècnic Industrial en Electricitat                                                  16
Electrificació Polígon Industrial “Los Campets”                              Plec de Condicions

inclourà el Cànon d'extracció, càrrega, transport a qualsevol distància i la resta
d'operacions necessàries per a deixar totalment acabada la unitat del terraplè. El
Contractista haurà de localitzar les zones de préstecs, obtenir els permisos i llicències que
siguin necessàries i, abans de començar les excavacions, haurà de sotmetre a l'aprovació
del Director de les Obres les zones de préstec, a fi de determinar si la qualitat dels sòls és
suficient. La necessitat d'emprar sòls seleccionats serà a criteri del Director de les Obres, i
no podrà ser objecte de sobre-preu, abonant-se a l'únic preu de replè definit al Quadre núm.
1.

4.5    Excavació de Rases i Pous

      La unitat d'excavació de rases i pous comprèn totes les operacions necessàries per tal
d'obrir les rases definides per a l'execució del clavegueram, l'abastament d'aigua, la resta de
les xarxes de serveis definits en el present Projecte, així com les rases i pous necessaris per
fonaments o drenatges. Les excavacions s'executaran d'acord amb els plànols del Projecte i
amb les dades obtingudes del replanteig general de les obres, els plànols de detall i les
ordres de la Direcció de les Obres. Les excavacions es consideraran no classificades i es
definiran en un sol preu per a qualsevol tipus de terreny. L'excavació de roca i l'excavació
especial de talussos en roca s'abonaran al preu únic definit d'excavació.

       El preu de les excavacions comprèn, també, els apuntalaments i excavacions
saltejades a trams que siguin necessàries i el transport de les terres a l'abocador a qualsevol
distància. La Direcció de les Obres podrà autoritzar, si és possible, l'execució de sobre-
excavacions per evitar les operacions d'apuntalament, però els volums sobre-excavats no
seran objecte d'abonament.

      L'excavació de rases s'abonarà per metres cúbics excavats, d'acord amb la mesura
teòrica dels Plànols del Projecte. El preu corresponent inclou el subministrament, transport,
manipulació i ús de tots els materials, maquinària, mà d'obra necessària per la seva
execució, la neteja i esbrossada de tota la vegetació, la construcció d'obres de desguàs per
evitar l'entrada d'aigües, la construcció dels apuntalaments i els calçats que es precisin, els
transports dels productes extrets al lloc d'ús, dipòsits o abocador, indemnitzacions que
calguin i arranjament de les àrees afectades. Serà d'aplicació, en l'excavació de rases i
pous, l'advertit sobre els preus de les excavacions esmentades en l'article 2.4 del present
Plec. Quan durant els treballs d'excavació apareguin serveis existents, independentment
d'haver-se contemplat o no en el projecte, els treballs s'executaran inclòs amb mitjans
manuals per no fer malbé aquestes instal·lacions, completant-se l'excavació amb el calçat o
penjat, en bones condicions, de les canonades d'aigua, gas, clavegueram, instal·lacions
elèctriques, telefòniques, etc. O qualsevol altre servei que sigui precís descobrir, sense que
el Contractista tingui cap dret a pagament per aquests conceptes. Si per qualsevol motiu és
necessari executar excavacions de diferent alçada o amplada que les definides en el
projecte, no serà causa de nova definició de preu.

4.6    Transport de Terres a l'abocador

      Totes aquelles terres, així com els materials que la Direcció Facultativa declari
indesitjables, els carregarà i els transportarà el Contractista fins l'abocador. S'entén que en
totes les partides enunciades resta inclosa la part proporcional de càrrega i transport a
l'abocador dels materials indesitjables.


Albert Bel Esteller

Enginyer Tècnic Industrial en Electricitat                                                  17
Electrificació Polígon Industrial “Los Campets”                              Plec de Condicions

4.7    Replanteig definitiu

       Definició: El Replanteig definitiu és el conjunt d'operacions que són precises per
traslladar al terreny les dades expressades en la Documentació Tècnica de l'Obra que s'ha
de realitzar. El replanteig definitiu es farà en una o varies vegades, segons les
circumstàncies que concurreixin en l'anivellació del terreny. El Contractista està obligat a
subministrar tots els escrits i elements auxiliars necessaris per aquestes operacions, amb
inclusió de claus i estaques. També hi aportarà el personal necessari.

       El Contractista vigilarà, conservarà i respondrà de les estaques o senyals,
responsabilitzant-se de qualsevol desaparició o modificació d'aquests elements. Acta de
Replanteig: Del resultat final del replanteig s'aixecarà una Acta que signaran per triplicat el
Constructor, l'Arquitecte Director de les Obres i el representant de la Propietat, acordant
l'inici de l'obra. El Constructor tindrà un mes natural, comptat a partir de la data de la
signatura de l'acta de replanteig, per a començar l'execució de les obres.

4.8    Fonaments, acers i emmacats

       Fonaments

      Definició: Els fonaments són aquells elements estructurals que transmeten les
càrregues de l'edificació al terreny de sustentació. Reconeixement general de sòls amb
anterioritat a l'execució de les obres, mitjançant els treballs adequats, es reunirà tota la
informació possible provenint de l'observació de les zones veïnes, estat de les edificacions
adjacents, corrents d'aigua, etc. i prenent dades en general de tota mena de circumstàncies
que puguin posteriorment facilitar i orientar els treballs que hauran de realitzar-se en el
moment del reconeixement del terreny.

       Resistència dels terrenys

      L'Arquitecte Director, segons el seu criteri tècnic i després del reconeixement i assaig
del terreny que consideri necessaris, escollirà en cada cas la pressió admissible que
consideri adequada, fixant també l'assentament màxim tolerable.

       Tipus de fonaments

      La Direcció Facultativa comprovarà que els fonaments es realitzin en la forma,
amidament, dosificació i manera particular d'execució que indiquin els plànols i plec de
condicions particulars, amb longituds, forma, separacions, diàmetres, núm. de barres i
seccions que figurin en els plànols. Els recobriments, ancoratges i encaixos s'ajustaran a les
normes vigents. Els pous i rases tindran la forma i mesures fixades en els plànols d'obra.
Abans de formigonar, el Contractista comprovarà que les capes d'assentament del
fonament estiguin perfectament anivellades i netes, procedint a continuació a l'execució
dels fonaments.




Albert Bel Esteller

Enginyer Tècnic Industrial en Electricitat                                                  18
Electrificació Polígon Industrial “Los Campets”                               Plec de Condicions


4.9    Acers

       Condicions generals:

      L 'acer a emprar complirà les condicions exigides a la Instrucció per al Projecte i
Execució de les Obres de Formigó EH-99. Qualitat: L 'allargament repartit de trencament
serà superior o igual a divuit (18) graus, entenent per tal deformació unitària la que
romangui, mesurada després de l'assaig normal de tracció UNE 7101, sobre una base de
cinc (5) diàmetres de coll d'estriccó i de més de tres (3) diàmetres del punt d'aplicació de la
mordassa. El mòdul d'elasticitat inicial serà igual o superior a un milió vuit-cents mil
quilograms per centímetre quadrat (1.800.000 K/cm2). El límit elàstic serà l'indicat en els
plànols, i si no hi ha especificacions, serà de 5.100 K/cm2.

      En els acers d'esglaó de relaxament es prendrà com a límit elàstic, la mínima tensió
capaç de produir una deformació remanent del dos per mil. (0,2%). La tensió màxima de
trencament serà igual o superior al cent vint-i-cinc per cent (125 %) de la corresponent al
seu límit elàstic, entenent per tensió màxima de trencament el valor de l'ordenada màxima
del diagrama tensió-deformació. El valor del límit elàstic característic es determinarà
prenent la mitja aritmètica dels "n/2" valors mes baixos obtinguts en l'assaig de "n"
provetes, prescindint del valor mig de la sèrie, si "n" fos imparell. S'ajustarà a l'article 600
del Plec General del març de 1975.

       Assaig

      Si el Facultatiu Director de l'Obra ho considera convenient, s'exigirà un certificat del
Laboratori Oficial que garanteixi la qualitat del ferro utilitzat. Així mateix, donarà
instruccions sobre l'execució en obra de l'assaig de plegament, descrit en la Instrucció del
Projecte i Execució d'Obres de formigó EH-91.

       Mesura i abonament

      S'abonaran pels quilograms (Kg) que resultin de l'especejament dels plànols que,
abans de començar cada obra, hagin estat presentats al Facultatiu Director i aprovats per
ell, al preu corresponent dels que figurin en el Quadre de Preus Número 1. Estan
compreses en els esmentats preus, totes les operacions i mitjans necessaris per a realitzar el
doblegat i posta a l'obra, així com els encavalcaments, ganxos, elements de sustentació,
pèrdues per retalls, lligaments, soldadures, etc.

4.10 Malles, Electrosoldadures d'acer especial

      Són malles de retícula quadrada o rectangular, formades per barres cilíndriques o
corrugades, d'acer laminat de duresa natural o endurides per deformació en fred, unides en
els punts d'encreuament per soldadura elèctrica.

       Mesura i abonament

     S'abonaran pel quilograms (Kg) que resultin de l'especejament dels plànols que abans
de començar cada obra hagin estat presentats al Facultatiu Director i aprovats per ell
mateix, al preu corresponent que figuri en el Quadre de preus núm. 1. Els esmentats preus
comprenen totes les operacions i mitjans necessaris per a realitzar el doblegat i posta a

Albert Bel Esteller

Enginyer Tècnic Industrial en Electricitat                                                   19
Electrificació Polígon Industrial “Los Campets”                             Plec de Condicions

l'obra, així com els encavalcaments, ganxos, elements de sustentació, pèrdues per retalls,
lligaments, soldadures, etc.

4.11 Emmacats

       L'emmacat és una capa de gruix variable, formada per la compactació de graves.

       Mesura i abonament

     S'abonaran per m2. Es consideraran incloses les ajudes necessàries pel
subministrament del material, la col·locació, estesa i la compactació, incloent-hi també la
maquinària necessària.

4.12 Sabates

      Les sabates contínues són els fonaments d'aquells elements estructurals lineals que
transmeten esforços repartits uniformement en el terreny. El dimensionat restarà fixat a
l'annex de càlcul de la memòria del Projecte d'Execució i als plànols de fonaments
degudament acotats.

       Mesura i abonament

      La mesura i l'abonament de les sabates contínues es realitzarà per metre lineal,
incloent en el preu tant el treball de posta a l'obra, preparació del terreny, materials i mà
d'obra utilitzats, com la maquinària i elements auxiliars necessaris.

      Les sabates aïllades són els fonaments d'aquells elements estructurals que transmeten
esforços puntuals en el terreny. El dimensionat resta fixat a l'annex de càlcul de la memòria
del Projecte d'Execució i als plànols de fonaments, degudament acotats.

       Mesura i abonament

     La mesura i l'abonament de les sabates contínues es realitzarà per m3. incloent en el
preu tant el treball de posta a l'obra, preparació del terreny, materials, així com la
maquinària i els elements auxiliars necessaris.

4.13 Lloses

      Les lloses son els fonaments d'aquells elements estructurals que necessitin tenir
assentaments uniformes o que sigui terreny poc comprimible, fetes de formigó en massa o
armat. En el projecte d'execució s'indica, en els plànols, el dimensionat i l'armat.

       Mesura i abonament

      Es mesuraran i abonaran per metres cúbics (m3.) de formigó, incloent-hi els treballs
auxiliars de preparació, el subministrament i la col·locació del formigó, formació de juntes,
etc.




Albert Bel Esteller

Enginyer Tècnic Industrial en Electricitat                                                 20
Electrificació Polígon Industrial “Los Campets”                               Plec de Condicions


4.14 Estructures de formigó

       Encofrats

      Les cimbres, encofrats i motlles, així com les unions dels diferents elements, tindran
una resistència i rigidesa suficient per resistir, sense assentaments ni deformacions
perjudicials, les accions de qualsevol mena que puguin produir-se com a conseqüència del
procés de formigonat i especialment sota les pressions del formigó en fresc o els efectes
del mètode de compactació utilitzat. Els encofrats i motlles seran suficientment estancs per
a impedir pèrdues apreciables d'abeurada. Els encofrats i motlles de fusta s'humitejaran per
a evitar que absorbeixin l'aigua continguda en el formigó. Les superfícies interiors dels
encofrats i motlles apareixeran netes en el moment del formigonat. Per a facilitar aquesta
neteja, en els fons de pilars i murs es disposaran obertures provisionals a la part inferior
dels encofrats corresponents. Si fos necessari, i a fi d'evitar la formació de fissures en els
paraments de les peces, s'adoptaran les oportunes mesures perquè els encofrats i motlles no
impedeixin la lliure retracció del formigó. Si s'utilitzen productes de desencofrat, no hauran
de deixar senyals en els paraments de formigó i no hauran d'impedir la posterior aplicació
de revestiments ni la possible construcció de juntes de formigonat. L'ús d'aquests productes
haurà d'ésser expressament autoritzat pel Director de l'Obra.

       Formigó

      Tots els formigons compliran l'EH-91 considerant com a definició de resistència la
d'aquesta Instrucció. Es fabricarà sempre en formigonera, essent el període de pastada
superior a un minut i mig, i de tal manera que la consistència del formigó en cada mescla
sigui uniforme. A més de les Prescripcions de l'EH-91 es tindran en compte les següents:
              - La instal·lació de transport i posta a l'obra serà del tipus tal que el formigó
                no perdi capacitat ni homogeneïtat.
              - No es podrà abocar lliurement el formigó des d'una alçada superior a un
                metre i cinquanta centímetres (1.50) ni distribuir-lo amb pala a gran
                distància.
              - Queda prohibit l'ús de canaleres o trompes del transport o la posta a l'obra
                del formigó sense l'autorització del Facultatiu Encarregat. No es podrà
                formigonar quan l'aigua pugui perjudicar la resistència o qualsevol de les
                característiques del formigó. Pel formigonat en temps de fxarxao de calor se
                seguiran les prescripcions de l'EH-91.
              - No es col·locarà mai formigó sobre un terreny que estigui gelat. El per
                vibrador s'introduirà vertical a la massa del formigó fresc i es retirarà també
                verticalment, sense que es mogui horitzontalment mentre que està submergit
                en el formigó.
              - Es procurarà extremar el vibrat en les proximitats dels encofrats, a fi d'evitar
                la formació de bosses de pedres i de coqueres.
              - En general, el vibrat del formigó s'executarà d'acord amb les
                normesespecificades en l'EH-91.




Albert Bel Esteller

Enginyer Tècnic Industrial en Electricitat                                                   21
Electrificació Polígon Industrial “Los Campets”                               Plec de Condicions

              - La situació de les juntes de construcció serà fixada pel Facultatiu Director,
                de manera que compleixin les prescripcions de l'EH-91 i procurant que el
                seu nombre sigui el menor possible.
              - Sempre que s'interrompi el treball, qualsevol que sigui el termini
                d'interrupció, es cobrirà la junta amb sacs de gerga humits, per a protegir-la
                dels agents atmosfèrics.
              - Abans de recomençar els treballs es prendran les disposicions necessàries
                per aconseguir la bona unió del formigó fresc amb ei que està endurit.
              - Durant els tres primers dies es protegirà el formigó dels raigs solars amb una
                arpillera molla. Com a mínim, durant els set primers dies es mantindran les
                superfícies vistes contínuament humides, mitjançant el rec o la inundació, o
                cobrint-les amb sorra o arpillera, que es mantindran constantment humides.
              - La temperatura de l'aigua utilitzada en el rec serà inferior en més de vint
                graus (20ºC) a la del formigó, a fi d'evitar producció de badadures per
                refredament brusc. També es podran utilitzar procediments de curat
                especial, a base de pel·lícules superficials impermeables, prèvia autorització,
                per escrit, del Facultatiu Director.
              - Els paraments han de restar llisos, amb formes perfectes sense defectes o
                rugositats i sense que sigui necessari aplicar-los-hi enlluíts, que no podran
                ser en cap cas executats sense l'autorització prèvia del Facultatiu Director.
                Les operacions precises per a deixar les superfícies en bones condicions
                d'aspecte seran a compte del Contractista. La irregularitat màxima que
                s'admet en els paraments serà la següent:
              - Parament vist: sis mil·límetres.
              - Parament ocult: vint i cinc mil·límetres.

      En qualsevol cas, a totes les obres de fàbrica i murs es prendran provetes, que seran
trencades al set o vint-i-vuit dies. S'efectuaran com a mínim una sèrie de sis provetes cada
cinquanta metres cúbics de formigó utilitzat en taujans, voltes i soleres.

      A les obres de formigó armat, es faran diàriament dues sèries de sis provetes cada
una, per trencar cada sèrie als set o vint-i-vuit dies, prenent com a càrrega de trencada, en
cada sèrie, la mitja dels resultats, descartant les dues extremes.

       Les provetes s’amaçaran de forma similar al del formigó en obra i es conservaran en
condicions anàlogues. Si passats els vint-i-vuit dies la resistència de les provetes fos menor
a les especificades, en aquesta data, en més d'un 20%, s'extrauran provetes de l'obra i si la
seva resistència és menor que l'especificada, serà enderrocada. Si la resistència de les
provetes extretes és més gran que la de les provetes d'assaig, podrà acceptar-se l'obra si es
pot efectuar, sense perill, un assaig de càrrega amb una sobrecarrega superior a un 50% de
la de càlcul, durant el qual es mesurarà la fletxa produïda, que haurà de ser admissible. Si
no fos possible extreure provetes de l'obra i les d'assaig no donessin el 80% de les
resistències especificades l'obra haurà d'enderrocar-se. En cas que la resistència de
provetes d'assaig i les extretes de l'obra estès compresa entre el 80% i el 100% de
l'especificada, el Facultatiu Director podrà rebre l'obra amb reserves, previ l'assaig de
càrrega corresponent.

Albert Bel Esteller

Enginyer Tècnic Industrial en Electricitat                                                   22
Electrificació Polígon Industrial “Los Campets”                              Plec de Condicions

       Els motlles i encofrats seran de fusta que compleixi les condicions exigides a
l'apartat corresponen, metàl·lics o d'altre material que reuneixi condicions d'eficàcia
similars, a judici del Facultatiu Director. Tant les unions com les peces que constitueixen
els encofrats i calçat, hauran de tenir la resistència i la rigidesa necessàries perquè, amb la
marxa del formigó prevista, no es produeixin moviments locals de més de 5 mm. (cinc
mil·límetres).Tant les superfícies dels encofrats com els productes que s'hi puguin aplicar
per facilitar l'encofrat no hauran de contenir substàncies agressives pel formigó.

       Els encofrats de fusta s'humitejaran abans del formigonat i es netejaran, especialment
els fons, deixant-se obertures provisionals per facilitar aquesta tasca. Les juntes entre les
diferents taules, hauran de permetre l'entumiment per la humitat del rec o de l'aigua del
formigó sense que deixin escapar la pasta durant el formigonat. Es disposarà l'encofrat a
les bigues i forjats amb la necessària contra-fletxa perquè, un cop desencofrada i carregada
la peça de formigó, conservi una contra fletxa de 1:300 de la llum. S'autoritza l'ús de tipus i
tècniques especials d'encofrat, de les que el comportament i resultats estan sancionats per
la pràctica havent de justificar l'eficàcia d'aquells altres que es proposin que, per la seva
novetat, manquin d'aquelles garanties. S'inclouen les juntes que calguin formigonar per
qualsevol motiu. El preu del formigó inclourà els possibles additius que la Direcció
d'Obres estimi necessaris i també la possible necessitat d'emprar ciments especials, segons
criteri de la Direcció (ciment, P.A.S., blanc, etc.). El preu dels encofrats podrà anar
independent dels preus del formigó, si així s'estipula. La mesura es realitzarà per metres
quadrats (m2) realment col·locats.

      Els esmentats preus inclouen els materials dels encofrats, la maquinària i la mà
d'obra necessària per a llur col·locació, així com la resta d'operacions materials necessàries.
S'entén que quedaran inclosos en el preu del metre quadrat qualsevol tipus d'accessoris de
l'encofrat, com les juntes entre murs o altres elements que a judici del Director de les obres
siguin necessaris per a obtenir un correcte acabat. El formigó armat s'abonarà al preu del
tipus de formigó emprat, que inclourà totes les operacions necessàries per a executar la
unitat d'obra menys l'encofrat i les armadures, així com la seva col·locació que s'abonarà al
preu del Kg. d'acer col·locat. Les bastides, cimbres, execució de juntes, operacions de
curat i altres operacions necessàries, a judici de la

      Direcció de les Obres, per l'execució del formigonat, es consideraran incloses en els
preus dels formigons.

       Mesura i abonament

      Els formigons es mesuraran d'acord amb els plànols del Projecta, o amb els plànols
de detalls resultants del Replanteig de les Obres i s'abonaran per metres cúbics.

       Advertència sobre l'abonament de les obres de fàbrica

      Únicament s'abonarà el volum d'obra de fàbrica realment executada, conforme a les
condicions i amb subjecció als perfils de replanteig i plànol dels mateixos, que figuren en
el Projecte, o ordres escrites del Facultatiu Director; per tant, en cap cas seran d'abonament
els excessos d'obra de fàbrica executats pel Contractista, pel seu Compte. sense tenir
autorització del Facultatiu Director. Per l'abonament dels increments de secció sobre la
secció teòrica mínima indicats en els plànols de seccions tipus, serà necessari que
prèviament hagi estat ordenada la seva execució pel Facultatiu Director, per escrit en el

Albert Bel Esteller

Enginyer Tècnic Industrial en Electricitat                                                  23
Electrificació Polígon Industrial “Los Campets”                              Plec de Condicions

que consti de manera explícita les dimensions que han de donar-se a la secció. Per això, el
contractista estarà obligat a exigir prèviament a l'execució de cada part d'obra. la definició
exacte d'aquelles dimensions que no ho estan.

       Armadures

      Les armadures es col·locaran netes, sense òxid o qualsevol substància perjudicial. Es
disposaran d'acord amb les indicacions del Projecte, subjectes entre elles i amb l'encofrat,
de manera que no puguin experimentar moviments durant l'abocada i la compactació del
formigó i a fi d'evitar coqueres. En bigues i elements similars, les barres hauran d'anar, al
doblegar-se, agafades amb cèrcols o estreps a la zona del colze.

       Quan hi hagi perill de poder-se confondre unes barres amb altres, es prohibeix la
utilització simultània d'acers de característiques mecàniques diferents. Es podran utilitzar,
dins d'un mateix element, dos tipus diferents d'acers, un per l'armadura principal i l'altre
pels estreps. Els cèrcols o estreps se subjectaran a les barres principals mitjançant lligament
o altre procediment adequat, prohibint-se expressament la fixació mitjançant punts de
soldadura. S'haurà d'acomplir la Instrucció EH-99 en tot el que fa referència a les
armadures (resistència, límit elàstic, etc.)

4.15 Estructures metàl·liques

       Definició:

     Es defineix com estructura metàl·lica d'acer, els elements d'aquest material que
formen la part sustentable de l'edificació.

      La forma i dimensions de l'estructura vindrà definida en els plànols corresponents.
Els acers a emprar son els laminats en xapes o perfils del tipus A-52 definits en la Norma
UNE-36080-73. Tots els productes laminats hauran de tenir una superfície llisa i se
subministraran en estat brut de laminatge. El Contractista haurà de demostrar la
qualificació del personal que executi aquest tipus d'obra.

       Les unions, qualsevol que sigui el seu tipus, es realitzaran d'acord amb les
indicacions del Projecte, Direcció Facultativa i Normativa vigent. Abans del muntatge de
l'estructura es netejaran i pintaran les parts d'aquesta que hauran de restar ocultes. Es
col·locaran plaques de suport sobre els massissos de fàbrica de formigó, que
s'immobilitzaran una vegada aconseguits els aploms i alineacions definitives. Tots els
elements de l'estructura es protegiran contra els fenòmens d'oxidació i corrosió.

      No s'efectuarà la pintada fins que llur execució hagi estat autoritzada pel Director de
l'Obra, després d'haver realitzat la inspecció de les superfícies i unions de l'estructura
acabada al taller. No s'imprimiran ni protegiran les superfícies que calgui soldar, mentre no
s'hagi executat la unió. S'adoptaran les mesures necessàries per evitar la corrosió dels
elements que recolzin directament sobre la fàbrica o que encastin en ella.

       Mesura i abonament

      Les estructures o elements estructurals d'acer es mesuraran per quilograms d'acer
incloent en el preu tots els elements i operacions d'unió, muntatge, assaigs, protecció, ports


Albert Bel Esteller

Enginyer Tècnic Industrial en Electricitat                                                  24
Electrificació Polígon Industrial “Los Campets”                              Plec de Condicions

necessaris per llur completa execució d'acord amb el Projecte i indicacions de la Direcció
Facultativa. Totes les operacions de muntatge s'inclouran en el preu, així com la protecció i
pintura que siguin necessàries, d'acord amb la Normativa.

4.16 Ram del paleta

      Les cobertes són els elements constructius que coronen superiorment l'edifici per a
protegir-lo de precipitacions i d'altres inclemències atmosfèriques.

       Tipus
               - Terrat: són cobertes amb revestiments totalment impermeables i poc
                 pendent.
               - Teulada: són cobertes amb revestiments contínues               o   no,    que
                 impermeabilitzen degut al gran pendent de llurs superfícies.

       Construcció

      En els terrats, un cop formada la caixa per l'ampit dels murs perimetrals i forjat, es
procedirà a la col·locació dels elements per formació de pendents, impermeabilització,
aïllaments, i enrajolat que s'expressen en els plànols corresponents, impermeabilització,
aïllaments, i enrajolat que s'expressen en el plànols corresponents.

      En l'execució es tindrà cura del traçat de careners, pendents, juntes, minvells,
intersecció amb d'altres elements com xemeneies, albellons, etc. Que garanteixin la missió
de desguàs i impermeabilització de la coberta. A les teulades es formaran els pendents
mitjançant l'execució d'elements d'obra diferents dels propis de cobriment, com són
envanets de sosteniment, forjats en pendent, encavallades. i que s'empraran per a sostenir el
recobriment de solera i aïllament sobre el que es col·locaran les peces de revestiment
exterior, com terres, pissarres, planxes metàl·liques, o de fibrociment, etc. Se seguiran les
indicacions de la Direcció d'Obra i Normes vigents pel que fa referència a ancoratges i
carregaments de les peces de revestiment.

       Mesura i abonament

       Tots els tipus de cobertes es mesuraran en metres quadrats (m2) executats, incloent la
totalitat de materials que s'indiquen als plànols, així com els treballs i elements necessaris
per la formació de juntes, crestalleres, careners, minvells i pendents necessaris per al seu
complert acabament, així com d'altres elements necessaris. Tots els materials i operacions
que calguin, compliran estrictament la Normativa vigent.

       Albellons

      Són peces de metall o plàstic que tenen per funció la connexió dels baixants d'aigües
pluvials amb el plànol superficial de la teulada, de manera que resolgui l'estanqueïtat de la
unió entre ambdós elements, no permeti l'obstrucció amb cossos estranys i estigui provist
de sifó antimúrid.




Albert Bel Esteller

Enginyer Tècnic Industrial en Electricitat                                                  25
Electrificació Polígon Industrial “Los Campets”                              Plec de Condicions


       Mesura i abonament

      Els albellons es mesuraran per unitats col·locades i totalment acabades, incloent en el
preu tots els materials, peces i treballs necessaris per la col·locació i perfecta estanqueïtat
de manera que l'element compleixi amb la Normativa vigent.

       Escanalat de desguàs

       Són elements prefabricats o realitzats "in situ" que tenen per objecte recollir l'aigua
que cau dels tremujals d'una teulada, per a dirigir-la cap als baixants corresponents. Són
condicions, perquè funcioni correctament, l'estanqueïtat de les juntes i estar col·locats amb
el suficient pendent per a desguassar ràpidament.

       Mesura i abonament

      Els encanalats es mesuraran en metres lineals, incloent en el preu la part proporcional
de peces especials, impermeabilitzacions, ancoratges, juntes, etc., amb treballs, equips i
ajuts necessaris per a la posta a l'obra, totalment acabat, de manera que s'acompleixin les
Normes vigents al respecte.

       Arrebossats i Enlluïts

     Definició: Els arrebossats i enlluïts són revestiments realitzats amb pastes o morters
de qualsevol conglomerat, calç o ciment, així com amb morters mixtes.

      Tots els materials, qualsevol que sigui la seva classe, compliran en quant a qualitat i
característiques tècniques, les especificacions de la Normativa vigent o de la Direcció
Facultativa.

       Mesura i abonament

       Tots els revestiments es mesuraran en metres quadrats (m2) de superfície revestida,
descomptant dels forats entre quatre i vuit metres quadrats (4 i 8 m2) la meitat de llur
superfície. En el preu d'abonament s'inclouran tots els materials, treballs propis de
col·locació i ajuts d'altres oficis, peces especials, coronaments, preparació dels paraments,
talls, juntes, neteja, tot els necessaris per executar el revestiment d'acord amb les
especificacions de Projecte i de la Direcció d'obra, així com tots els treballs i materials que
calguin per la correcte execució de les obres i a fi d'aconseguir el compliment de les
Normatives corresponents, malgrat que no s'especifiqui exactament en els plànols.
Qualsevol operació o material especial que sigui necessari incorporar al revestiment: a fi
de complir amb la Normativa en el tractament de ponts tèrmics, s'entendrà inclòs en els
preus del revestiment, així com els ajuts adients per realitzar-lo.

4.17 Paviments, enrajolats

       Definició:

      S'anomenen soleres els paviments de formigó en massa, que s'executen sobre el
terreny o sub-bases granulars, podent ser d'un gruix variable en funció de l 'ús al qual es
destinin i que de tant en tant s'armaran.

Albert Bel Esteller

Enginyer Tècnic Industrial en Electricitat                                                  26
Electrificació Polígon Industrial “Los Campets”                                 Plec de Condicions

      Quan les soleres tinguin una superfície superior a cinquanta metres quadrats (50 m2)
es realitzaran juntes de dilatació amb materials elàstics i la disposició que indiqui la
Direcció Facultativa.

       Execució

       Els paviments enrajolats, com terrisses, ceràmics, enllosats de pedra natural o
artificial, etc., es realitzaran sobre base perfectament neta i anivellada, executant-se els talls
i distribució de peces que indiqui la Direcció d'Obra. Un cop executats, s'ajuntaran amb
abeurada de ciment. Els paviments de terrissa, quan s'hagin acabat, es netejaran i
protegiran, a fi d'evitar desperfectes malgrat que a les zones on s'hagin col·locat encara
calgui treballar. Els paviments de fusta no han d'arribar fins les parets perimetrals, sinó que
cal deixar un espai de cinc a deu mil·límetres (5 a 10 mm.) que s'amagarà en l'entornpeu.

       Mesura i abonament

      La mesura dels paviments, de qualsevol tipus, es realitzarà per metres quadrats (m2)
totals executats. En la valoració de les soleres s'inclourà el preu de tots els treballs
necessaris per deixar-les totalment acabades, d'acord amb les especificacions del Projecte i
de la Direcció, sumant-hi en el preu la part proporcional de preparació de la base,
anivellació i acabats superficials, armadures, juntes i entornpeus.

       En els paviments de llosetes de pedra, terrissa, ceràmica, etc., s'inclouran en el preu
tots els treballs necessaris de col·locació, poliment, desbastament, abrillantat, rejuntat,
neteja, part proporcional d'entornpeu, per ben acabar-ho totalment. En els paviments de
fusta s'inclourà la part proporcional de rastells o empostissats, així com els treballs de
coltellejat, poliment, envernissat, entornpeus, totalment acabat. En el preu del metre
quadrat (m2) de paviment s'inclouran tots els materials i operacions que calguin per
complir la Normativa vigent, malgrat que eventualment no es trobi recollida exactament en
els plànols del Projecte. En els paviments encolats s'inclourà en el preu la part proporcional
de materials d'agafada, així com els treballs i peces necessàries per al bon acabament.

4.18 Pintures i estocats

      S'agrupen sota aquesta denominació tots aquells treballs de revestiments de
superfícies, executats amb materials fluids generalment acolorats i compostos per elements
líquids i sòlids, dosificats per tal d'afavorir la conservació i que no es produeixi la
disgregació dels materials emprats en la construcció, protegint-los contra els agents
atmosfèrics i intempèrie. Les seves funcions fonamentals són de protecció, decoració i
funcionals. Els revestiments transparents s'anomenaran vernissos i els opacs pintures.

      Els tipus de pintures a emprar, en cada tipus d'element d'obra vindrà definit en el
projecte, així com els seus colors, acabats i textures. Es presentaran mostres a la Direcció
Facultativa abans de procedir ai pintat de qualsevol element.

       Mesura i abonament

       La mesura de les partides de pintura serà en metres quadrats (m2) totals executats,
diferenciant el tipus de suports que figuren en la mesura i el tipus de pintura. En el preu
s'inclourà la repercussió del cost de preparació, neteja, imprimació dels paraments amb

Albert Bel Esteller

Enginyer Tècnic Industrial en Electricitat                                                     27
Electrificació Polígon Industrial “Los Campets”                                 Plec de Condicions

productes adequats a cada tipus de material i repassos, així com bastimentada i elements
necessaris per poder executar el treball. La mesura de la pintura de conduccions serà en
metres lineals (ml) inclosa la part proporcional d'ancoratges i suports, totalment acabada.

4.19 Unitats d’obra civil

       Paviments

      Abans de procedir a l'estesa de la capa del ferm immediatament superior a la capa de
base, es comprovarà amb especial atenció la qualitat dels treballs de refinament i
compactació de l'esmentada capa de base i s'executaran els assaigs necessaris. Els
percentatges d'humitat del material i de la superfície de base seran els correctes i es
comprovaran els pendents transversals.

       Asfàltics

      Les mescles asfàltiques en calent seran aprovades per a llur ús per l'encarregat
Facultatiu, i llur qualitat, característiques i condicions s'ajustaran a la Instrucció pel control
de fabricació i posta en obra de mescles bituminoses, així com a les Instruccions Vigents,
sobre ferms flexibles. Acompliran, en tot moment, les especificacions de la Normativa
vigent. Es mesuraran i abonaran per Tones (Tn.) calculades a partir dels metres quadrats
(m2.) de paviment executat, i amb el gruix definit als plànols del Projecte i la densitat real
obtinguda als assaigs.

      Els preus inclouran l'execució dels recs d'imprimació i adherència, i de tota l'obra de
pavimentació, inclòs el transport, fabricació, estesa, compactació i els materials (àrids,
lligants, filler i possibles additius).

       Altres paviment

      Quant a les especificacions dels materials a emprar, les dosificacions dels mateixos,
l'equip necessari per a l'execució de les obres, la forma d'executar-les, així com la mesura i
abonament de les unitats referides al tipus de paviment, tals com tractaments superficials,
macadams o paviments de formigó, s'estarà, en tot moment, a allò que disposa la
Normativa vigent, llevat dels lligants, que es consideren sempre inclosos a la unitat d'obra
definida.




Albert Bel Esteller

Enginyer Tècnic Industrial en Electricitat                                                     28
Electrificació Polígon Industrial “Los Campets”                              Plec de Condicions



5      PLEC DE CONDICIONS TÈCNIQUES ELÈCTRIQUES
5.1    Equips elèctrics.

     L’ofertor serà el responsable del subministrament dels equips i elements elèctrics. La
mateixa protecció serà IP54, segons DIN40050, garantitzant una protecció contra dipòsits
nocius de pols i esquitxos d’aigua; garantia de protecció contra derivacions.

      L’objecte de no deixar baixar la temperatura en l’interior dels quadres elèctrics per
sota de la condensació, es preveurà calefacció amb termòstat 30ºc amb potencia calorífica
aproximada de 300W/m 3 , garantitzant una distribució correcte de el calor en aquells de
gran volum. Mínima temperatura 20ºC.

      Així mateix no es deixarà pujar la temperatura en la zona dels quadres elèctrics i
d’instrumentació per sobre dels 35ºC per tant l’ofertor haurà d’estudiar la condició i els
mitjans indicats en el projecte, ventilació forçada i termòstat ambiental, per que si no els
considera suficient prevegi condicionament d’aire per refrigeració, integrada en els quadres
o ambiental per la zona on estan situats. Així doncs tots els armaris incorporaran a més a
més com element auxiliar i propi, els accessoris següents:
              - Ventilació reforçada e independent de l’exterior.
              - Resistència de calentament.
              - Refrigeració, en cas de que sigui necessari.
              - Dispositiu químic-passiu d’absorció de la humitat.
              - Il·luminació interior.
              - Seguretat d’intrusisme o vandalisme.
              - Accessibilitat a tots els seus mòduls i elements.

      Es tindrà em compte les condicions ambientals d’us. Per això, s’aplicarà la
classificació 721-2 de pols, sorra, boira salina, vent, etc. segons norma IEC 721.

      Per determinar els dispositius de protecció en cada punt de la instal·lació s’haurà de
calcular i conèixer:
              - La intensitat de treball en funció del factor de potència, simultaneïtat,
                utilització i factors de aplicació previstos e imprevistos. Per això últim es
                fixarà un factor, i aquest s’expressarà en l’oferta.
              - La intensitat de curtcircuit.
              - El poder de tall del dispositiu de protecció, que haurà de ser mes gran que la
                ICC del punt en el qual està instal·lat.
              - La coordinació del dispositiu de protecció amb l’aparamenta situada aigües
                avall.
              - La selectivitat a considerar en cada cas, amb altres dispositius de protecció
                situats aigües amunt.


Albert Bel Esteller

Enginyer Tècnic Industrial en Electricitat                                                  29
Electrificació Polígon Industrial “Los Campets”                              Plec de Condicions

     Es determinarà la secció de fases i la del neutre en funció de protgir-los contra
sobrecàrregues, verificant:
              - La intensitat que pot suportar la instal·lació serà més gran que la intensitat
                de treball, prèviament calculada.
              - La caiguda de tensió en el punt més desfavorable de la instal·lació serà
                inferior a la caiguda de tensió permesa, considerem els casos més
                desfavorables, com per exemple tenir tots els equips en marxa amb les
                condicions ambientals extremes.
              - Les seccions dels cables d’alimentació general i particular tindran en
                compte consums de les futures ampliacions.

      Es comprovarà la relació de seguretat (Vc/Vl), Tensió de contacte menor o igual a la
tensió límit permesa segons els locals MI-BT021, protecció contra contactes directes e
indirectes. La protecció contra sobrecàrregues i curtcircuits es farà, permanentment, amb
interruptors automàtics d’alt poder de curtcircuit, amb un poder de tall aproximat de 50kA,
i temps de tall inferior a 10mS.

       Quan es prevegin intensitats de curtcircuit superiors a les de 50kA, es coloraran
limitadors de poder de tall majors que 100kA i temps de tall inferior a 5mS. Les corbes de
disparo magnètic dels disjuntors, L-V-D, s’adaptaran a les diferents proteccions dels
receptors Quan s’utilitzin fusibles com limitadors de corrent, aquests s’adaptaran a les
diferents classes de receptors, utilitzant, per això, els més adequat, ja siguin aM,gF ,gL o
gT, segons les normes UNE-21-103.

      Tots els relès auxiliars seran del tipus endollable en base tipus undecal, de tres
contactes inversors, equipats amb contactes de potència, (10A per càrrega resistiva, factor
de potencia = 1), aprovats per UL:

       La protecció contra xoc elèctric serà prevista, i es complirà amb les normes UNE 20-
383 i MI-BT021. La determinació de la corrent admissible en les canalitzacions i el seu
emplaçament serà, com a mínim, segons l’establert en MIBT004. La corrent de les
canalitzacions serà 1.5 vegades la corrent admissible. Les caigudes de tensió màximes
autoritzades serà segons MI BT017, essent el màxim, en el punt més desfavorable, del 3%
in il·luminació i del 5%en força. Aquesta caiguda de tensió es calcularà considerant
alimentats tots els aparells d’utilització susceptibles de funcionar simultàniament, en les
condicions atmosfèriques més desfavorables. Els conductors elèctrics utilitzaran els colors
distintius segons normes UNE, i seran etiquetats i numerats per facilitar la seva fàcil
localització e interpretació en els plànols i en la instal·lació.

      El sistema d’instal·lació serà segons la instrucció MI BT018 i altres per interiors i
receptors, tenint en compte les característiques especials dels locals i tipus d’indústria.
L’ofertor haurà de detallar en la seva oferta tots els elements i equips elèctrics oferts,
indicant el nom del fabricant.

       A més de les especificacions requerides i oferides, s’haurà d’incloure en l’oferta:
              - Memoràndum de càlculs de càrrega, d’il·luminació, de terra, proteccions i
                altres que ajudin a clarificar la qualitat de les instal·lacions ofertades.
              - Disseny preliminars i plànols dels sistemes ofertats.

Albert Bel Esteller

Enginyer Tècnic Industrial en Electricitat                                                   30
Electrificació Polígon Industrial “Los Campets”                                Plec de Condicions

       En els plànols s’utilitzarà simbologia normalitzada S/UNE 20.004

      Es tendirà a homogeneïtzar el tipus d’esquema, numeració de borns de sortida i
entrada i en general tots els elements i mitjans possibles de forma que faciliti el
manteniment de les instal·lacions.

5.2    Quadres elèctrics

     En els quadres elèctrics s’inclouran polsadors frontals de marxa i paro, amb
senyalització del estat de cada aparell (funcionament o aturada).

       El concursant raonarà el tipus escollit, indicant les següents característiques:
              - Estructura dels quadres, amb dimensions de materials empleats (perfils,
                xapes,...), amb les seves seccions o gruixos, protecció antioxidant, pintures,
                etc.... .
              - Compartiment en que es divideixen.
              - Elements que s’allotgen en els quadres (embarrats, aïlladors, ets...), detallant
                els mateixos.
              - Interruptors automàtics.
              - Sortida de cables, relès de protecció, aparells de mesura i elements auxiliars.
              - Proteccions que, com a mínim, seran:
              - Mínima tensió, en l’interruptor general automàtic
              - Sobrecàrrega en cada receptor.
              - Curtcircuit en cada receptor.
              - Defecte a terra, en cada receptor superior a 10 CV. En grups de menys
                potència reagrupats en conjunts de màxim 4 elements. Aquests elements han
                de ser funcionalment iguals.

5.3    Enllumenat

       Les lluminàries seran estanques, amb resistència d’arranc ràpid i amb condensador
corrector del cosinus fi incorporat. S’efectuarà un estudi complet d’il·luminació tant per
interiors i exteriors justificant els lux obtinguts en cada cas.

       Abans de la recepció provisional aquests lux seran verificats amb un luxòmetre per
tota l’àrea il·luminada, la qual tindrà una il·luminació uniforme.

       Enllumenat interior

     Proporcionarà un nivell d’il·luminació suficient per desenvolupar l’activitat prevista
a cada instal·lació segons l’ordenança general de seguretat e higiene en el treball en una
proporció del 50%.

     A més de la qualitat es determinarà la qualitat de la il·luminació que en línies general
compliran amb:


Albert Bel Esteller

Enginyer Tècnic Industrial en Electricitat                                                    31
Electrificació Polígon Industrial “Los Campets”                                Plec de Condicions

              - Eliminació o disminució de les causes d’enlluernament capaces de provocar
                una sensació d’incomoditat e inclòs una reducció de la capacitat visual.
              - Elecció del dispositiu d’il·luminació i el seu emplaçament de tal forma que
                la direcció de llum, la seva uniformitat, el seu grau de difusió i el tipus que
                s’adaptin lo millor possible a la feina visual i a la finalitat del local
                il·luminat.
              - Adaptar una llum la composició espectral de la qual tingui un bon rendiment
                en calor.
              - La reproducció cromàtica serà de qualitat molt bona (depenent de l’activitat
                a desenvolupar).
              - La temperatura de color dels punts de llum estarà entre 3000 i 5500 graus
                Kelvin.
              - Es calcularà un coeficient de manteniment baix, del ordre de 0,7.
              - Els coeficients d’utilització i rendiment de la il·luminació es procurarà que
                siguin el més alt possibles.

       Enllumenat exterior

     Les lluminàries exteriors seran del tipus antivandàlic e inastillables. Els suports,
braços murals, bàculs i de més elements mecànics seran galvanitzats en calent.

       Per projectar el tipus de lluminària es tindrà en compte el següent:
              - - La naturalesa del entorn per utilitzar de un o dos hemisfèric.
              - - Les característiques geomètriques del àrea a il·luminar.
              - - El nivell mig d’il·luminació, que mai serà menor a 15 lux.
              - - L’altura del punt de llum serà l’adequat a els lúmens.
              - - El factor de conservació serà del ordre de 0,6.
              - - El rendiment de la instal·lació i de la il·luminació segons el projecte i el
                fabricant, aura d’arribar al més gran possible.

       Il·luminació de seguretat

      Estarà formada per aparells autònoms automàtics que compleixin amb les normes
UNE 20-062-72 i 20-392-75 i demés disposicions vigents de seguretat. Seran del tipus
fluorescent amb referència. En les instal·lacions electromecàniques amb un grau de
protecció mínim de IP54.

5.4    Xarxa de preses a terra

      En cada instal·lació s’efectuarà una xarxa de terra. El conjunt de línies i reses a terra
tindran unes característiques tals, que les masses metàl·liques no podran posar-se a una
tensió superior a 24 volts respecte el terra. Totes les carcasses de aparells d’enllumenat,
així com endolls, tec..., disposaran de la seva presa de terres, connectada a una xarxa
general independent de la dels centres de transformació i d’acord amb el reglament de B.T.


Albert Bel Esteller

Enginyer Tècnic Industrial en Electricitat                                                    32
Electrificació Polígon Industrial “Los Campets”                                Plec de Condicions

      Les instal·lacions de preses a terra, seguiran les normes establertes en el Reglament
Electrotècnic de Baixa Tensió i les seves instruccions complementàries.

      Els materials que composaran la xarxa de terres estaran formades per plaques,
elèctrodes, terminals, caixes de proves amb els seus terminals d’aïllament i mediació, tec...

     On es previngui falta d’humitat o terreny de poca resistència es colorarà tubs per a
humitejar a més de reforçar la xarxa amb dispositius químics.

      L’estructura d’obra civil serà connectada a terra. Tots els empalmes seran tipus
soldadura aluminitèrmica sistema CADWELL o similar.

5.5    Làmpedes de senyalització

       Totes les làmpades de senyalització seran del tipus Led estandarditzat i normalitzat.

       Els colors que s’utilitzaran seran els següents:
              - Verd: indicació de marxa.
              - Groc: indicació d’avaria lleu. Intermitent alarma lleu.
              - Vermell: indicació d’avaria greu. Intermitent alarma greu.
              - Blanc: indicació informativa, de estat, de posició, etc..

       Totes les làmpades de senyalització es verificaran a través d’un polsador de prova.




                                         Alcanar, 14 d’Agost de 2004




                                              Albert Bel Esteller

                                  Enginyer Tècnic Industrial en Electricitat




Albert Bel Esteller

Enginyer Tècnic Industrial en Electricitat                                                    33
Electrificació Polígon Industrial “Los Campets”          Estudi de Seguretat i Salut




                       Estudi Bàsic de Seguretat i Salut




                                                   AUTORS: Albert Bel Esteller
                                                  DIRECTORS: J. J. Tena Tena.

                                                       DATA: Setembre / 2004.


Albert Bel Esteller

Enginyer Tècnic Industrial en Electricitat                                       1
Electrificació Polígon Industrial “Los Campets”                                                   Estudi de Seguretat i Salut

       Índex de l’Estudi de Seguretat i Salut
       Índex de l’Estudi de Seguretat i Salut........................................................................2

       1    Estudi de Seguretat i Salut Laboral.....................................................................3

           1.1    Objectiu ......................................................................................................3

           1.2    Abast ..........................................................................................................3

           1.3    Anàlisis de Riscos.......................................................................................3

           1.4    Riscos Generals ..........................................................................................3

           1.5    Riscos Específics ........................................................................................4

           1.6    Maquinària y Mitjans Auxiliars ..................................................................7

           1.7    Mesures preventives ...................................................................................9

             1.7.1       Proteccions Col·lectives ....................................................................10

             1.7.2       Proteccions Personals........................................................................16

             1.7.3       Revisions Tècniques de Seguretat .....................................................17

           1.8    Instal·lacions Elèctriques Provisionals ......................................................17

             1.8.1       Riscos Previsibles .............................................................................17

             1.8.2       Mesures Preventives .........................................................................17

           1.9    Estudi de revisions de manteniment ..........................................................19




Albert Bel Esteller

Enginyer Tècnic Industrial en Electricitat                                                                                     2
Electrificació Polígon Industrial “Los Campets”                       Estudi de Seguretat i Salut



1      Estudi de Seguretat i Salut Laboral
1.1    Objectiu

        El present Estudi Bàsic de Seguretat i Salut Laboral te com a objectiu establir les
directrius generals encaminades a disminuir en la mesura del possible, els riscos
d’accidents laborals i enfermetats professionals, així com a la minimització de les
conseqüències dels accidents que es produeixin.

      Aquest estudi s’ha elaborat en compliment del Real Decret 1627/97 de 24 d’
Octubre, el qual estableix els criteris de planificació, control i desenvolupament dels
mitjans i mesures de Seguretat e Higiene que deuen tenir-se presents en la execució dels
Projectes en Construcció.

1.2    Abast

       Les mesures contemplades en aquest Estudi abasten a tots els treballs a realitzar en
el present Projecte, i aplica l’obligació del seu compliment a totes les persones de les
diferents organitzacions que intervinguin en l’execució dels mateixos.

       Tant els riscos previsibles com les mesures preventives a aplicar per als treballs en
instal·lacions, elements i maquines elèctriques son analitzats en els apartats següents.

1.3    Anàlisis de Riscos

         Analitzem a continuació els riscos previsibles inherents a les activitats d’execució
previstes, així com les derivades de l’ us de maquinaria, mitjans auxiliars i manipulació de
instal·lacions, maquines o ferramentes elèctriques.

       Amb l’objectiu de no repetir innecessàriament la relació de riscos analitzarem primer
els riscos generals, que poden donar-se en qualsevol de les activitats, i després seguirem
amb l’anàlisi dels específics de cada activitat.

1.4    Riscos Generals

       Entenem com a riscos generals aquells que poden afectar a tots els treballadors,
independentment de l’activitat concreta que realitzin. Es preveu que puguin donar-se els
següents:
              - Caigudes d’objectes o components sobre persones.
              - Caiguda de persones a diferent nivell.
              - Caiguda de persones al mateix nivell.
              - Projeccions de partícules als ulls.
              - Conjuntivitis per arc de soldadura o altres.
              - Ferides en mans o peus per maneig de materials.
              - Sobre esforços


Albert Bel Esteller

Enginyer Tècnic Industrial en Electricitat                                                    3
Electrificació Polígon Industrial “Los Campets”                       Estudi de Seguretat i Salut

              - Cops i talls per maneig de ferramentes.
              - Cops contra objectes.
              - Atrapaments entre objectes.
              - Cremades per contactes tèrmics.
              - Exposició a descarregues elèctriques.
              - Incendis i explosions.
              - Atrapament per volc de maquines, vehicles o equips.
              - Atropellaments o cops de vehicles en moviment.
              - Lesions per manipulació de productes químics
              - Lesions o enfermetats per factors atmosfèrics que comprometen la seguretat
                o salut.
              - Inhalació de productes tòxics.

1.5    Riscos Específics

     Ens referim aquí als riscos propis d’activitats concretes que afecten només al
personal que realitza treballs en aquestes.

      Aquest personal estarà exposat als riscos generals indicats en el punt 1.4., més els
específics de la seva activitat. Per això analitzem a continuació les activitats mes
significatives.

       Excavacions

       A mes dels generals poden ser inherents a les excavacions els següents riscos:
              - Despreniment o esllavissada de terres.
              - Atropellaments i/o cops per maquines o vehicles.
              - Col·lisions i volcs de maquinaria.
              - Riscos a tercers aliens al propi treball.

       En voladures
              - Projeccions de pedres.
              - Explosions incontrolades per corrents erràtiques o manipulació incorrecta.
              - Barrenes fallides.
              - Elevat nivell de soroll.
              - Riscos a terceres persones.




Albert Bel Esteller

Enginyer Tècnic Industrial en Electricitat                                                    4
Electrificació Polígon Industrial “Los Campets”                          Estudi de Seguretat i Salut

              - Moviment de terres

      En els treballs derivats del moviment de terres per excavacions o rellenos es preveu
els següents riscos:
              - Carrega de materials de les pales o caixes dels vehicles.
              - Caiguda de persones des dels vehicles.
              - Volcs de vehicles per diverses causes (males condicions del terreny, excés
                de càrrega, durant les descàrregues, etc.)
              - Atropellaments i col·lisions.
              - Projecció de partícules.
              - Pols ambiental.

       Treballs amb ferralla

       Els riscos més comuns relatius a la manipulació i muntatge de ferralla son:
              - Talls i ferides en el maneig de les barres o filferro.
              - Atrapaments en les operacions de carrega i descarrega de paquets de barres
                o en la col·locació de les mateixes.
              - Torçadures de peus, i caigudes al mateix nivell al caminar sobre les
                armadures.
              - Trencaments eventuals de barres durant el doblat.

       Treballs d’encofrat i desencofrat

       En aquesta activitat podem destacar els següents:
              - Despreniment de taulers.
              - Punxades amb objectes punxents.
              - Caiguda de materials (taulers, taulons, puntals, etc.)
              - Caiguda d’elements de l’encofrat durant les operacions de desencofrat.
              - Talls i ferides en mans per maneig de ferramentes (serres, raspalls,...) i
                materials.

       Treballs amb formigó

       L’exposició i manipulació del formigó implica els següents riscos:
              - Salpicades de formigó als ulls.
              - Enfonsament, ruptura o caiguda d’encofrats.
              - Torçadures de peus, punxades, i caigudes al mateix i diferent nivell, al
                moure’s sobre les estructures.
              - Dermatitis en la pell.
              - Aplanament o atrapament per fallo en les entibacions.

Albert Bel Esteller

Enginyer Tècnic Industrial en Electricitat                                                       5
Electrificació Polígon Industrial “Los Campets”                          Estudi de Seguretat i Salut

              - Lesions musculars pel maneig de vibradors.
              - Electrocutació per ambients humits

       Manipulació de materials

       Els riscos propis d’aquesta activitat estan inclosos en la descripció de riscos generals.

       Transport de materials y equips dins de l’ obra

     En aquesta activitat, a més dels riscos enumerats en el punt 3.1., són previsibles els
següents:
              - Despreniment o caiguda de la càrrega, o part de la mateixa, per ser
                excessiva o estar mal subjectada.
              - Cops contra parets sortints de la càrrega.
              - Atropellaments de persones.
              - Volcs.
              - Xocs contra altres vehicles o màquines .
              - Xocs o enganxaments de la càrrega amb objectes, instal·lacions o estesa de
                cables.

       Prefabricació i muntatge d’ estructures, tancaments y equips

       Dels específics d’aquest apartat cal destacar:
              - Caiguda de materials per la mala execució de la maniobra de hissat i
                acoblament dels mateixos o fallo mecànic de equips.
              - Caiguda de persones des de altura per diverses causes.
              - Atrapament de mans o peus en el maneig dels materials o equips.
              - Caiguda d’objectes o ferramentes soltes.
              - Explosions o incendis per l’ús de gasos o per projeccions incandescents.

       Maniobres de hissat, situació en obra y muntatge d’ equips y materials

       Com a riscos específics d’aquestes maniobres podem citar els següents:
              - Caiguda de materials, equips o components d’aquests per fallo dels mitjans
                d’elevació o error en la maniobra.
              - Caiguda de petits objectes o materials solts (cantoneres, ferramentes, etc.)
                sobre persones.
              - Caiguda de persones des d’altura en operacions de muntatge i desmuntatge
                de les peces.
              - Atrapaments de mans i peus.
              - Empresonament/aplanament de persones per moviments incontrolats de la
                càrrega.


Albert Bel Esteller

Enginyer Tècnic Industrial en Electricitat                                                       6
Electrificació Polígon Industrial “Los Campets”                        Estudi de Seguretat i Salut

              - Cops de equips, en el seu hissat i transport, contra altres instal·lacions
                (estructures, línies elèctriques, etc.)
              - Caiguda o volc dels mitjans d’elevació.

       Muntatge d’ instal·lacions. Sòls i acabats

     Els riscos inherents a aquestes activitats podem considerar-los inclosos dins dels
generals, al no executar-se a grans altures ni presentar aspectes relativament perillosos.

1.6    Maquinària y Mitjans Auxiliars

      Analitzem en aquest apartat els riscos que a més dels generals, poden presentar-se en
l’ús de maquinària i els mitjans auxiliars.

      La maquinària i els mitjans auxiliars més significatius que es preveu utilitzar per a
l’execució dels treballs objecte dels present Estudi, són els que es relacionen a continuació.
              - Equip de soldadura elèctrica
              - Equip de soldadura oxiacetilenica-oxicorte.
              - Màquina elèctrica de roscar.
              - Camió de transport.
              - Grua mòbil.
              - Camió grua.
              - Cabrestant de hissat.
              - Cabrestant d’estesa de cable subterrani.
              - Pistoles de fixació.
              - Taladradores de mà.
              - Talla tubs.
              - Corvadores de tubs.
              - Radials.
              - Màquina d’excavació amb martell hidràulic.
              - Màquina retroexcavadora mixta.
              - Formigoneres autopropulsades.
              - Camió volquet.
              - Màquina anivelladora.
              - Miniretroexcavadora.
              - Compactadora.
              - Compressor.
              - Martell trencador i picador, etc.

       Entre els mitjans auxiliars, cal mencionar els següents:

Albert Bel Esteller

Enginyer Tècnic Industrial en Electricitat                                                     7
Electrificació Polígon Industrial “Los Campets”                        Estudi de Seguretat i Salut

              - Bastides sobre borriquetas.
              - Bastides metàl·lics modulars.
              - Escales de mà.
              - Escales d’ estisores.
              - Quadres elèctrics auxiliars.
              - Instal·lacions elèctriques provisionals.
              - Ferramentes de mà.
              - Bancs de treball.
              - Equips de mesura.
              - Comprovador de seqüència de fases.
              - Mesurador d’aïllament
              - Mesurador de terres.
              - Pinces amperimètriques.
              - Termòmetres.

       Diferenciem aquests riscos classificant-los en els següents grups:

       Maquines fixes i ferramentes elèctriques

       Els riscos més significatius són:
              - Les característiques de treballs en elements amb tensió elèctrica en els que
                poden produir-se accidents per contactes, tan directes com indirectes.
              - Caigudes de personal al mateix o diferent nivell per desordre de mangueres.
              - Lesions per ús inadequat, o males condicions de màquines giratòries o de
                tall.
              - Projeccions de partícules.

       Mitjans d’elevació

       Considerem com a riscos específics d’aquests mitjans, els següents:
              - Caiguda de la càrrega per deficient maniobra.
              - Trencament de cable, ganxo o qualsevol altre mitjà auxiliar d’elevació.
              - Cops o aplanaments per moviments incontrolats de la càrrega.
              - Excés de càrrega amb el conseqüent trencament, o volc, del mitjà
                corresponent.
              - Fallo d’elements mecànics o elèctrics.
              - Caiguda de persones a diferent nivell durant les operacions de moviment de
                càrregues.



Albert Bel Esteller

Enginyer Tècnic Industrial en Electricitat                                                     8
Electrificació Polígon Industrial “Los Campets”                          Estudi de Seguretat i Salut

       Bastides, plataformes i escales

       Són previsibles els següents riscos:
              - Caigudes de persones a diferent nivell.
              - Caiguda de la bastida per volc.
              - Volc o esllavissada d’escales.
              - Caiguda de materials o ferramentes des de la bastida.
              - Els derivats del sofriment d’enfermetats, no detectades (epilèpsia, vèrtic,...)

       Equips de soldadura elèctrica i oxiacetilénica

       Els riscos previsibles propis de l’ús d’aquests equips són els següents:
              - Incendis.
              - Cremades.
              - Els derivats de la inhalació de vapors metàl·lics.
              - Explosió d’ampolles de gasos.
              - Projeccions incandescents, o de cossos estranys.
              - Contacte amb l’energia elèctrica.

1.7    Mesures preventives

      Per a disminuir en la mesura de lo possible els riscos previstos en l’apartat anterior,
s’ha d’actuar sobre els factors que, per separat o en conjunt, determinen les causes que
produeixen els accidents. Ens estem referint al factor humà i al factor tècnic.

      L’actuació sobre el factor humà, basada fonamentalment en la formació,
mentalització e informació de tot el personal que participi en els treballs del present Estudi,
així com en aspectes ergonómics i condicions ambientals, serà analitzada amb major
deteniment en altres punts d’estudi.

      Pel que fa a la actuació sobre el factor tècnic, s’actuarà bàsicament en els següents
aspectes:
              - Proteccions col·lectives.
              - Proteccions personals.

       Controls i revisions tècniques de seguretat.

     En base als riscos previsibles enunciats en el punt anterior, analitzem a continuació
les mesures previstes en cadascun d’aquests camps.




Albert Bel Esteller

Enginyer Tècnic Industrial en Electricitat                                                       9
Electrificació Polígon Industrial “Los Campets”                         Estudi de Seguretat i Salut


1.7.1 Proteccions Col·lectives

      Sempre que sigui possible es donarà prioritat a l’ús de proteccions col·lectives, ja que
la seva efectivitat és molt superior a la de les proteccions personals. Sense excloure l’ús
d’aquestes últimes, les proteccions col·lectives previstes, en funció dels riscos enunciats,
són les següents:

       Riscos Generals

      Ens referim aquí a les mesures de seguretat a adoptar per a la protecció de riscos que
considerem comuns a totes les activitats. Són les següents:
              - Senyalitzacions d’accés a obra i ús d’elements de protecció personal.
              - Acotament i senyalització de zona on existeixi risc de caiguda d’objectes
                des d’altura.
              - Es muntaran baranes resistents en els buits pels que poguessin produir-se
                caigudes de persones.
              - A cada tros de treball es disposarà de almenys un extintor portàtil de pols
                polivalent.
              - Si algun lloc de treball generés risc de projeccions ( de partícules, o per arc
                de soldadura) a tercers, es col·locaran mampares opaques de material
                ignífug.
              - Si es realitzessin treballs amb projeccions incandescents amb proximitat de
                materials combustibles, es retiraran aquests o es protegiran amb lona
                ignífuga.
              - Es mantindran ordenats els materials, cables i mangueres per a evitar el risc
                de cops o caigudes al mateix nivell per aquesta causa.
              - Les restes de materials generades pel treball es retiraran periòdicament per a
                mantenir netes les zones de treball.
              - Els productes tòxics i perillosos es manipularan segons l’establert en les
                condicions d’ús específiques de cada producte.
              - Respectar la senyalització i limitacions de velocitat fixades per a la
                circulació de vehicles i maquinària en l’interior de l’obra.
              - Aplicar les mesures preventives contra riscos elèctrics que desenvoluparem
                més endavant.
              - Tot els vehicles portaran els indicadors òptics i acústics que exigeixi la
                legislació vigent.
              - Protegir als treballadors contra les inclemències atmosfèriques que puguin
                comprometre la seva seguretat i salut.

       Riscos Específics
              - Les proteccions col·lectives previstes per la prevenció d’aquests riscos són
                les següents:


Albert Bel Esteller

Enginyer Tècnic Industrial en Electricitat                                                      10
Electrificació Polígon Industrial “Los Campets”                          Estudi de Seguretat i Salut

       En excavacions
              - S’entibaran o taludaran totes les excavacions verticals de profunditats
                superior a 1,5 m
              - Se senyalitzaran les excavacions, com a mínim a 1 m de la seva vora.
              - No s’acopiaran terres ni materials a menys de 2 m de la vora de l’excavació.
              - Les excavacions de profunditat superior a 2 m, i en les proximitats de les
                quals hagin de circular persones, es protegiran amb baranes resistents de 90
                cm d’ altura, les quals se situaran sempre que sigui possible, a 2 m de la
                vora de l’excavació.
              - Els accessos a les rases o trinxeres es realitzaran mitjançant escales sòlides
                que sobrepassen en 1 m la vora d’aquestes.
              - Les màquines excavadores i camions només seran manejats per personal
                capacitat, amb el corresponent permís de conduir el qual serà responsable,
                així mateix, de l’adequada conservació de la seva màquina.

       En voladures

      Les voladures seran realitzades per una empresa especialitzada que elaborarà el
corresponent pla de voladures. En la seva execució, a més de complir la legislació vigent
sobre explosius (R.D. 2114/787 B.O.E. 07.09.78), es tindran en compte com a mínim les
següents mesures de seguretat:
              - Acordonar la zona de “càrrega" y "pega" a la que, baix cap concepte, deuen
                accedir persones alienes a les mateixes.
              - Anunciar, amb un toc de sirena 15 minuts abans, la proximitat de la
                voladura, amb dos tocs la immediates de la detonació i amb tres el final de
                la voladura, permetent-se el restabliment de l’activitat en la zona.
              - En el perímetre de la zona acordonada es col·locaran senyals de “prohibit el
                pas – Voladures”.
              - Abans de la “pega”, una persona recorrerà la zona comprovant que no queda
                ningú, i es posaran vigilants en llocs estratègics d’accés a la zona per a
                impedir l’entrada de persones o vehicles.
              - El responsable de la voladura i els artillers comprovaran, quan s’hagin
                dissipat els gasos, que la “pega” ha sigut completa i comprovarà que no
                quedin terrenys inestables, sanejant aquests si fos necessari abans d’iniciar
                els treballs.

       En moviment de terres
              - No es carregaran els camions per damunt de la càrrega admissible ni
                sobrepassant el nivell superior de la caixa.
              - Es prohibeix el trasllat de persones fora de la cabina dels vehicles.
              - Se situaran topes per a limitar la proximitat a vores d’excavacions o
                desnivells en zones de descàrrega.



Albert Bel Esteller

Enginyer Tècnic Industrial en Electricitat                                                       11
Electrificació Polígon Industrial “Los Campets”                          Estudi de Seguretat i Salut

              - Es limitarà la velocitat de vehicles en el camí d’accés i en els vials interiors
                de l’obra a 20 Km/h.
              - En cas necessari i a criteri del Tècnic de Seguretat es procedirà al regat de
                les pistes per a evitar la formació de núvols de pols.

       En treballs en altura

       És evident que el treball en altura es presenta dins de moltes de les activitats que es
realitzen en la execució d’aquest Projecte i, com a tal, les mesures preventives relatives a
aquests seran tractades conjuntament amb la resta de les que afecten a cadascun.

      En canvi, donada l’elevada gravetat de les conseqüències que generalment es deriven
de les caigudes d’altura, es considera oportú i convenient remarcar, en aquest apartat
concret, les mesures de prevenció bàsiques i fonamentals que deuen aplicar-se per a
eliminar, en la mesura del possible, els riscos inherents als treballs en altura.

       Destacarem, entre d’altres, les següents mesures:

       Per a evitar la caiguda d’objectes:
              - Coordinar els treballs de forma que no es realitzen treballs superposats.
              - Davant la necessitat de treballs en la mateixa vertical, posar les oportunes
                proteccions (xarxes, marquesines,...).
              - Acotar i senyalitzar les zones amb risc de caiguda d’objectes.
              - Senyalitzar i controlar la zona on es realitzin maniobres amb càrregues
                suspeses, fins que aquestes es trobin totalment recolzades.
              - Emprar cordes per al guiat de càrregues suspeses, que seran manejades des
                de fora de la zona d’influència de la càrrega, i accedir a aquesta zona només
                quan la càrrega estigui pràcticament arriada.

       Per a evitar la caiguda de persones:
              - Es muntaran baranes resistents en tot el perímetre o vores de plataformes,
                forjats, etc. pels quals es poguessin produir caigudes de persones.
              - Es protegiran amb baranes o tapes de suficient resistència els buits existents
                en forjats, així com en paraments verticals si aquests són accessibles o estan
                a menys de 1,5 m del terra.
              - Les baranes que es treguin o buits que es destapin per a la introducció
                d’equips,..., es mantindran perfectament controlats i senyalitzats durant la
                maniobra, tornant a posar les corresponents proteccions només finalitzar
                aquestes.
              - Les bastides que s’utilitzin (modulars o tubulars) compliran els requisits i
                condicions mínimes definides en la O.G. S . H .T., destacant entre altres:
              - Superfície de recolzament horitzontal i resistent.
              - Si són mòbils , les rodes estaran bloquejades i no es traslladaran amb
                persones sobre les mateixes.


Albert Bel Esteller

Enginyer Tècnic Industrial en Electricitat                                                       12
Electrificació Polígon Industrial “Los Campets”                           Estudi de Seguretat i Salut

              - Arriostrar-los a partir de certa altura.
              - A partir de 2m d’altura es protegirà tot el seu perímetre amb rodapeus i
                “quitamiedos” col·locats a 45 i 90 cm de la superfície, la qual tindrà com a
                mínim una amplada de 60 cm.
              - No sobrecarregar les plataformes de treball i mantenir-les netes i lliures
                d’obstacles.
              - En altura ( més de 2m. ) és obligat utilitzar cinturó de seguretat, sempre que
                no existeixin proteccions (baranes) que impedeixin la caiguda, el qual estarà
                anclat a elements fixos, mòbils, definitius o provisionals, de suficient
                resistència.
              - S’instal·laran cordes o cables fiables per a la subjecció de cinturons de
                seguretat en aquells en que no sigui possible muntar baranes de protecció, o
                bé sigui necessari el desplaçament dels operaris sobre estructures o cobertes.
                En aquest cas s’utilitzaran cinturons de caiguda, amb arnés previstos
                d’absorció d’energia.
              - Les escales de mà compliran, com a mínim les següents condicions:
              - No tindran trencats escalons. Disposaran de tacs antidesllissants.
              - Les superfícies de recolzament inferior i superior seran planes i resistents.
              - Fixació o amarre pel seu cap en casos especials i usar el cinturó de seguretat
                anclat a un element aliè a aquesta.
              - Col·locar-la amb la inclinació adequada.
              - Amb les escales de tisora, posar-li tope o cadena per a que no s’obrin, no
                usar-les plegades i no posar-se a cavall en elles.

       En treballs amb ferralla
              - Els paquets de rodons s’acopiaran en posició horitzontal, separant les capes
                amb trossos de fusta i evitant altures de piles superiors a 1,5 m.
              - No es permetrà trepar per les armadures.
              - Es col·locaran taulers per a circular per les armadures de ferralla.
              - No s’utilitzaran elements o mitjans auxiliars (escales, ganxos,...) fets amb
                trossos de ferralla soldada.
              - Diàriament es netejarà la zona de treball, recollint i retirant els retalls i
                filferros sobrants de l’armat.

       En treballs d’encofrat i desencofrat
              - L’ascens i descens als encofrats es farà amb escales de mà reglamentàries.
              - No romandran operaris en la zona de influència de les càrregues durant les
                operacions de hissat i trasllat de taulers, puntals,...
              - Es trauran tots els claus o puntes existents en la fusta utilitzada.
              - El desencofrat es realitzarà sempre des del costat en que no puguin
                despendre’s els taulers i arrastrar a l’operari.

Albert Bel Esteller

Enginyer Tècnic Industrial en Electricitat                                                        13
Electrificació Polígon Industrial “Los Campets”                        Estudi de Seguretat i Salut

              - S’acotarà, mitjançant cinta de senyalització, la zona en la que puguin caure
                elements procedents de les operacions d’encofrat o desencofrat.

       En treballs de formigó:

       Abocaments mitjançant canaleta:
              - Instal·lar topes de final de recorregut dels camions formigonera per a evitar
                volcs.
              - No situar-se a cap operari darrere dels camions formigonera en les
                maniobres de retrocés.

       Abocament mitjançant cub con grua:
              - Senyalitzar amb pintura el nivell màxim de capacitat del cub per a no
                sobrepassar la càrrega admissible de la grua.
              - No romandre cap operari baix la zona de influencia del cub durant les
                operacions d’hissat i transport d’aquest amb la grua.
              - L’obertura del cub per a abocament, es farà exclusivament accionant la
                palanca prevista per a això. Per a realitzar tal operació s’utilitzaran,
                obligatòriament, guants, ulleres i, quan existeixi risc de caiguda, cinturó de
                seguretat.
              - El guiat del cub fins a la seva posició d’abocament es farà sempre a través
                de cordes guia.

       Per a la manipulació de materials

              - Informar als treballadors sobre els riscos més característics d’aquesta
                activitat, accidents més habituals i forma de prevenir-los fent especialment
                insistència sobre els següents aspectes:
              - Maneig manual de materials.
              - Emmagatzematge de materials, segons les seves característiques.
              - Maneig de materials tòxic/perillosos.

       Per al transport de materials y equips dins de l’obra

              - Es compliran les normes de tràfic i límits de velocitat establerts per a
                circular pels vials de l’obra, les quals estaran senyalitzades i difoses als
                conductors.
              - Es prohibirà que les plataformes i/o camions transportin una càrrega
                superior a la identificada com a màxima admissible.
              - La càrrega es transportarà amarrada amb cables d’acer o cordes de suficient
                resistència.
              - Se senyalitzaran amb banderoles o llums vermelles les parts sortints de la
                càrrega i de produir-se aquestos sortints, no excediran de 1.5 m.


Albert Bel Esteller

Enginyer Tècnic Industrial en Electricitat                                                     14
Electrificació Polígon Industrial “Los Campets”                        Estudi de Seguretat i Salut

              - En les maniobres amb risc de volc del vehicle, es col·locaran topes.
              - Quan es tingui que circular o realitzar maniobres en proximitat de línies
                elèctriques, s’instal·laran topes que evitin aproximar-se a la zona
                d’influència de les línies.
              - No es permetrà el transport de persones fora de la cabina dels vehicles.
              - No es transportaran, en cap cas, càrregues suspeses per la ploma amb grues
                mòbils.
              - Es revisarà periòdicament l’estat dels vehicles de transport i mitjans
                auxiliars corresponents.

       Per a la prefabricació, hissat i muntatge d’estructures, tancaments i equips
              - Se senyalitzaran i acotaran les zones en que hi hagi risc de caiguda de
                materials per manipulació, elevació i transport dels mateixos.
              - No es permetrà l’accés de qualsevol persona a la zona senyalitzada i acotada
                en la que es realitzin maniobres amb càrregues suspeses.
              - El guiat de càrregues/equips per a la seva ubicació definitiva, es farà sempre
                mitjançant cordes guia manejades des de llocs fora de la zona de influencia
                de la seva possible caiguda, i no s’accedirà a dita zona fins el moment just
                d’efectuar el seu acoblament o posicionament.
              - Es taparan o protegiran amb baranes resistents o, segons els casos, se
                senyalitzaran adequadament els buits que es generen en el procés de
                muntatge.
              - S’encaixaran a nivell de sòl, en la mesura que ho permeti la zona de
                muntatge i la capacitat de les grues, els mòduls d’estructures amb l’objectiu
                de reduir en lo possible el número d’hores de treball en altura i els seus
                riscos.
              - Els llocs de treball de soldadura estaran suficientment separats o s’aïllaran
                amb pantalles divisòries.
              - La zona de treball, sigui a taller o de camp, es mantindrà sempre neta i
                ordenada.
              - Els equips/estructures permaneixeran arriostrades, durant tota la fase de
                muntatges fins que no s’efectuï la subjecció definitiva, per a garantitzar la
                seva estabilitat en les pitjors condicions previsibles.
              - Les bastides que s’utilitzin compliran els requisits i condicions mínimes
                definides en la O.G.S.H.T.
              - S’instal·laran cordes o cables fiables per a la subjecció dels cinturons de
                seguretat en aquells casos en que no sigui possible muntar plataformes de
                treball amb baranes, o sigui necessari el desplaçament d’operaris sobre
                l’estructura. En aquests casos s’utilitzaran cinturons de caiguda, amb arnés
                previstos de absorció d’energia.




Albert Bel Esteller

Enginyer Tècnic Industrial en Electricitat                                                     15
Electrificació Polígon Industrial “Los Campets”                         Estudi de Seguretat i Salut

      De qualsevol forma, donat que aquestes operacions i maniobres estan molt
condicionades per l’estat real de l’obra en el moment d’executar-les, en el cas de detectar-
se una complexitat especial s’elaborarà un estudi de seguretat específic.

       Per a maniobres d’hissat i ubicació en obra de materials y equips

      Les mesures de prevenció a aplicar en relació amb els riscos inherents a aquest tipus
de treballs estan contemplades i definides en el punt anterior, destacant especialment les
corresponents a:


              - Senyalitzar i acotar les zones de treball amb càrregues suspeses.
              - No permanèixer cap persona en la zona d’influència de la càrrega.
              - Fer el guiat de les càrregues mitjançant cordes.
              - Entrar en la zona de risc en el moment d’acoblament.

       En instal·lacions de distribució d’energia
              - S’hauran de verificar i mantenir amb regularitat les instal·lacions de
                distribució d’energia presents en l’obra, en particular les que estan sotmeses
                a factors externs.
              - Les instal·lacions existents abans del començament de l’obra hauran d’estar
                localitzades, verificades i senyalitzades clarament.
              - Quan existeixin línies d’estesa elèctrica aeris que puguin afectar a la
                seguretat en l’obra serà necessari desviar-les fora del recinte de l’obra o
                deixar-les sense tensió. Si això no fos possible, es col·locaran barreres o
                avisos per a que els vehicles i les instal·lacions es mantinguin allunyats
                d’aquest. En cas de que vehicles de l’obra tinguessin que circular baix
                l’estesa s’utilitzarà una senyalització d’advertència i una protecció de
                delimitació d’altura.

1.7.2 Proteccions Personals

      Com a complement de les proteccions col·lectives serà obligatori l’ús de les
proteccions personals. Els càrrecs intermitjos i el personal de seguretat vigilaran i
controlaran la correcta utilització d’aquestes peces de protecció.

      Per a no estendre’ns massa, i donat que la majoria dels riscos que obliguen a l’ús de
les proteccions personals són comuns a les activitats a realitzar, relacionarem les peces de
protecció previstes per al conjunt dels treballs.

       Es preveu l’ús, en major o menor grau, de les següents proteccions personals:
              - Casc.
              - Pantalla facial transparent.
              - Pantalla de soldador amb visera abatible i vidre inactínic.
              - Mascaretes facials segons necessitats.

Albert Bel Esteller

Enginyer Tècnic Industrial en Electricitat                                                      16
Electrificació Polígon Industrial “Los Campets”                         Estudi de Seguretat i Salut

              - Mascaretes d’un sol ús de paper.
              - Guants de diferents tipus (muntador, soldador, aïllant, goma,...)
              - Cinturó de seguretat.
              - Absorbidors d’energia.
              - Jaqueta, peto i polaines de cuir.
              - Ulleres de diferents tipus (contra impactes,...)
              - Calçat de seguretat, adequat a cada un dels treballs.
              - Proteccions auditives (casc o taps)

       Roba de treball.

      Totes les proteccions personal compliran la Normativa (CE) relativa a Equips de
Protecció Industrial (EPI).

1.7.3 Revisions Tècniques de Seguretat

      La seva finalitat es comprovar la correcta aplicació del Pla de Seguretat. Per això, el
contractista vetllarà per l’execució correcta de les mesures preventives fixades en aquest
Pla. Podran realitzar-se visites d’inspecció per tècnics assessors especialistes en seguretat,
l’assessorament dels quals pot ser de gran valor.

1.8    Instal·lacions Elèctriques Provisionals

      Per al subministrament d’energia a les màquines i ferramentes elèctriques pròpies
dels treballs objecte del present Estudi, els contractistes instal·laran quadres de distribució
amb presa de corrent en les instal·lacions de la propietat o alimentats mitjançant grups
electrògens.

      L’escomesa elèctrica general alimentarà una sèrie de quadres de distribució dels
diferents contractistes, els quals es col·locaran estratègicament per al subministrament de
corrent a les seves corresponents instal·lacions, equips i ferramentes pròpies dels treballs.

1.8.1 Riscos Previsibles

     Els riscos implícits a aquestes instal·lacions són els característics dels treballs i
manipulació d’elements (quadres, conductors,... i ferramentes elèctriques) que poden
produir accidents per contactes tant directes com indirectes.

1.8.2 Mesures Preventives

       Les principals mesures preventives a aplicar en instal·lacions, elements i equips
elèctrics seran els següents:

       Quadres de distribució

      Seran estancs, permaneixeran totes les parts sota tensió inaccessibles al personal i
estaran dotats de les següents proteccions:


Albert Bel Esteller

Enginyer Tècnic Industrial en Electricitat                                                      17
Electrificació Polígon Industrial “Los Campets”                          Estudi de Seguretat i Salut

              - Interruptor general.
              - Proteccions contra sobrecàrregues i curtcircuits.
              - Diferencial de 300 mA.
              - Presa de terra de resistència màxima 20 ohms.
              - Diferencial de 30 mA per a les preses monofàsiques que alimenten
                ferramentes o útils portàtils.
              - Tindran senyalitzacions de perill elèctric.
              - Només podrà manipular amb ells l’electricista.
              - Els conductors aïllats utilitzats tant per a escomeses com per a instal·lacions,
                seran de 1000 volts de tensió nominal com a mínim.

       Prolongadors, clavilles, connexions y cables
              - Els prolongadors, clavilles i connexions seran de tipus intempèrie amb tapes
                de seguretat en preses de corrent femelles i de característiques tals que
                asseguren l’aïllament, fins i tot en el moments de connectar i desconnectar.
              - Els cables elèctrics seran del tipus intempèrie sense presentar fissures i de
                suficient resistència a esforços mecànics.
              - Els empalmes y aïllaments en cables es realitzarà amb manguitos i cintes
                aïllants vulcanitzades.
              - Les zones de pas es protegiran contra danys mecànics.

       Ferramentes i útils elèctrics portàtils
              - Les làmpades elèctriques portàtils tindran la maneta aïllant i un dispositiu
                protector de la làmpada de suficient resistència. En estructures metàl·liques
                y d’altres zones d’alta conductivitat elèctrica s’utilitzaran transformadors
                para tensions de 24 V.
              - Totes les ferramentes, làmpades y útils seran de doble aïllament.
              - Totes las ferramentes, làmpades y útils elèctrics portàtils, estaran protegides
                por diferencials d’alta sensibilitat (30 mA).

       Màquines i equips elèctrics

      A més d’estar protegits por diferencials de mitja sensibilitat (300 mA), aniran
connectats a una presa de terra de 20Ω de resistència màxima i portaran incorporat a la
manguera d’alimentació el cable de terra connectat al quadre de distribució.

       Normes de caràcter general
              - Sota cap concepte es deixaran elements de tensió, com puntes de cables
                terminals, etc., sense aïllar.
              - Les operacions que afectin a la instal·lació elèctrica, seran realitzades
                únicament per l’electricista.



Albert Bel Esteller

Enginyer Tècnic Industrial en Electricitat                                                       18
Electrificació Polígon Industrial “Los Campets”                            Estudi de Seguretat i Salut

              - Quan es realitzin operacions en cables quadres i instal·lacions elèctriques, es
                realitzaran sense tensió.

1.9    Estudi de revisions de manteniment

       Es realitzarà un adequat manteniment i revisions periòdiques de les distintes
instal·lacions, equips i ferramentes elèctriques, per analitzar i adoptar les mesures
necessàries en funció dels resultats d’esmentades revisions.




                                        Alcanar, a 28 d’Agost de 2004




                                              Albert Bel Esteller

                                  Enginyer Tècnic Industrial en Electricitat




Albert Bel Esteller

Enginyer Tècnic Industrial en Electricitat                                                         19

645pub

  • 1.
    Electrificació Polígon Industrial“Los Campets” Titulació: Enginyeria Tècnica Industrial Esp. en Electricitat AUTOR: Albert Bel Esteller DIRECTOR: J.J. Tena Tena DATA: Setembre / 2004.
  • 2.
    Electrificació Polígon Industrial“Los Campets” Memòria Descriptiva Memòria descriptiva AUTORS: Albert Bel Esteller DIRECTORS: J. J. Tena Tena. DATA: Setembre / 2004. Albert Bel Esteller Enginyer TècnicIndustrial en Electricitat 1
  • 3.
    Electrificació Polígon Industrial“Los Campets” Memòria Descriptiva Índex de la Memòria Descriptiva Índex de la Memòria descriptiva ...............................................................................2 1 Objecte del projecte............................................................................................5 2 Abast del projecte...............................................................................................5 3 Situació ..............................................................................................................5 4 Antecedents........................................................................................................6 5 Titular ................................................................................................................7 6 Normes i referències...........................................................................................7 7 Descripció del polígon........................................................................................8 8 Justificació del Projecte....................................................................................12 9 Posta en marxa i funcionament .........................................................................13 10 Anàlisi de solucions......................................................................................17 11 Descripció general........................................................................................27 11.1 Línia Subterrània de Mitja Tensió .........................................................27 11.1.1 Objecte del projecte ..........................................................................27 11.1.2 Justificació ...................................................................................27 11.1.3 Característiques de la Línia Subterrània. ...........................................27 11.1.4 Descripció de la línia de Mitja Tensió ...............................................27 11.2 Centres de Transformació .....................................................................32 11.2.1 Introducció........................................................................................32 11.2.2 Objecte .............................................................................................33 11.2.3 Emplaçament ....................................................................................33 11.2.4 Centres de Transformació prefabricat adoptats.................................33 11.2.5 Distribució interior dels Centres de Transformació ............................33 11.2.6 Transformadors de distribució MT/BT ..............................................34 11.2.7 Aspectes constructius dels Centres de Transformació ........................35 Albert Bel Esteller Enginyer TècnicIndustrial en Electricitat 2
  • 4.
    Electrificació Polígon Industrial“Los Campets” Memòria Descriptiva 11.2.8 Instal·lació elèctrica. .........................................................................38 11.2.9 Equips de mesura i contatge. .............................................................42 11.2.10 Mesures de seguretat. ......................................................................43 11.2.11 Posta a terra.....................................................................................44 11.2.12 Enllumenat del centre de transformació ...........................................46 11.2.13 Senya litzacions i material de seguretat ..............................46 11.3 Xarxa de distribució en baixa tensió ......................................................46 11.3.1 Introducció........................................................................................46 11.3.2 Objecte .............................................................................................46 11.3.3 Descripció de la instal·lació...............................................................46 11.3.4 Proteccions de la xarxa de BT contra sobreintensitats:fusibles...........50 11.3.5 Caixes Generals de Protecció i Caixes de Seccionament....................50 12 Obra Civil.....................................................................................................51 12.1 Rases ....................................................................................................51 12.2 Arquetes de registre ..............................................................................57 12.3 Cementacions .......................................................................................57 13 Enllumenat exterior del polígon Industrial “Los Campets”............................58 13.1 Introducció ...........................................................................................58 13.2 Objecte .................................................................................................58 13.3 Requisits de disseny..............................................................................58 13.4 Abast de la instal·lació ..........................................................................59 13.5 Descripció de la instal·lació ..................................................................59 13.6 Secció dels conductors..........................................................................59 13.7 Lluminàries i suports ............................................................................59 13.8 Presa a terra de l’Enllumenat Exterior...................................................59 13.9 Proteccions ...........................................................................................60 Albert Bel Esteller Enginyer TècnicIndustrial en Electricitat 3
  • 5.
    Electrificació Polígon Industrial“Los Campets” Memòria Descriptiva 13.9.1 Contra contactes directes...................................................................60 13.9.2 Contra contactes indirectes................................................................60 14 Planificació i Programació ............................................................................60 15 Posta en Marxa i Funcionament ....................................................................60 16 Resum del pressupost ...................................................................................61 Albert Bel Esteller Enginyer TècnicIndustrial en Electricitat 4
  • 6.
    Electrificació Polígon Industrial“Los Campets” Memòria Descriptiva 1 Objecte del projecte L’objecte d’aquest projecte, és el de poder realitzar la planificació i els càlculs necessaris per a poder subministrar energia elèctrica al Polígon Industrial, en tot el seu abast, que es construirà al Terme Municipal d’Alcanar, justificant cadascuna de les parts de l’electrificació que ens ocupa i complint amb la normativa i les reglamentacions vigents, ja siguin locals com administratives i legals que afectaran a la construcció del mateix. 2 Abast del projecte Amb el Polígon Industrial “Los Campets” construït a les afores del nucli urbà d’Alcanar, es farà una important inversió econòmicament parlant, però al mateix temps, una inversió que farà que el poble en conjunt augmenti les seves prestacions, ja siguin econòmiques - a mig o llarg plaç -, socials o industrials. Pel que fa a l’aspecte d’electrificació, aprofitant la línia de mitja tensió (25 kV) de l’empresa FECSA, que passa per Alcanar, per la part posterior del poble - l’oest del mateix -, i justament al sud oest del poble - on està situat el polígon - es realitzarà la derivació i les conseqüents instal·lacions pertinents per a poder subministrar el polígon d’una manera eficient, sense deixa de pensar amb el futur, considerant les possibles ampliacions del polígon que es puguin realitzar. Tot això es podrà observar al plànol de situació i emplaçament i al Plànol d’entroncament amb FECSA per al subministrament del polígon. A part de l’electrificació, al projecte també s’inclouran la il·luminació necessària a les vies, ja siguin d’accés com de servei a l’igual que la part d’obra civil, estacions transformadores i aparamenta necessària per al correcte i segur funcionament de tota la instal·lació que abastarà a tot el polígon. 3 Situació El Polígon Industrial “Los Campets” - que té una superfície total de 169.823,68 m2, dels quals uns 64.075 m2 són edificables- esta ubicat al Terme Municipal d’Alcanar a la província de Tarragona (sud de la província), tal com es pot observar al plànol de Situació que es troba a document bàsic dels Plànols. També cal dir que està situat just al sud oest del nucli urbà, entre la banda esquerra de la carretera de l’Estació TV-3321 (direcció a l’estació) i la banda esquerra del Riu Sénia, que cal explicar que es la “frontera” que separa Catalunya del País Valencià, o dit d’una altra manera les províncies de Tarragona i Castelló. L’entrada al polígon es podrà realitzar per una derivació que apareix a una rotonda. En aquesta rotonda també hi ha derivacions que enllacen en la carretera de l’Estació TV- 3321, amb la Ronda Circumval·lació, i la carretera Nova que porta al nucli urbà.(veure Plànol de Situació). Albert Bel Esteller Enginyer TècnicIndustrial en Electricitat 5
  • 7.
    Electrificació Polígon Industrial“Los Campets” Memòria Descriptiva 4 Antecedents Amb la realització del projecte es pretén dotar al municipi d’Alcanar d’una oferta de sòl industrial, la qual mancava al municipi fins al moment, i aprofitar el creixement que la localitat ha experimentat si més no en indústria i en activitats comercials. El fet l’ha provocat la implantació de noves indústries en terrenys molt dispersats no destinats solament a sòl industrial, sinó que en parcel·les comprades i destinades a l’activitat que sigui en cada cas, és per això que l’ajuntament ha cregut convenient el de poder centralitzar la indústria de la localitat, en uns mateixos terrenys, és a dir al polígon industrial que es pretén realitzar. Per aquest fet l’ajuntament d’Alcanar està promocionant la implantació de noves zones per a ús industrial amb ofertes de 18 €/m2, que en relació amb els preus de les diverses localitats veïnes, es molt assequible econòmicament parlant. Contrastant aquesta informació s’ha aconseguit en dades reals la relació de les poblacions veïnes i els seus respectius polígons al butlletí mensual “EBR€CONÒMIC”, de l’octubre del 2003, on es relacionaven els polígons industrials de les Terres de l’Ebre. Com a exemples de diverses poblacions i d’alguns dels seus polígons s’ha extret el següent: POBLACIÓ POLÍGON UBICACIÓ EXTENSIÓ PREU L’ALDEA PLA AL NORD 533.791M2 (TOTAL) / 33,06- PARCIAL DE L’ALDEA 339.016M2 (IND.NET) 36 € / M2 CATALUNYA SUD TORTOSA PLA SUD DE 860.500 M2 (TOTAL) / 30,05 PARCIAL 11 TORTOSA 610.955M2(IND.NET) € / M2 AMPOSTA P.I SORTIDA 697.293 M2 (TOTAL) / 27- L’ORIOLA D’AMPOSTA PER 495.078M2(IND.NET) 32,45 €/M2 LA N-340, DIRECCIÓ VALÈNCIA S.C. DE LA P.I. EL NORD DE 434.100 M2 (TOTAL) / 2 4 -3 3 RÀPITA SALT LA RÀPITA 308.211M2(IND.NET) €/M2 ULLDECONA P.I SUD 1 7 9 . 8 2 6 M 2 ( T O T AL ) / 24 VALLDEPINS D’ULLDECONA 123.301M2(IND.NET) €/M2 GANDESA P.I. LA ES HJKT 186.837 M2 (TOTAL) / 27 € / PLANA DE DEL NUCLI 142.535M2(IND.NET) M2 MERLET URBÀ FLIX P.I LA MARGE 146.900 M2 (TOTAL) / 30,05- DEVESA ESQUERRE DEL 103.200M2(IND.NET) 42,7 €/ M2 RIU EBRE Albert Bel Esteller Enginyer TècnicIndustrial en Electricitat 6
  • 8.
    Electrificació Polígon Industrial“Los Campets” Memòria Descriptiva 5 Titular El titular del projecte és l’Ajuntament d’Alcanar amb CIF: B-47.589.695 amb domicili al Carrer La Generalitat s/n, i codi postal: 43.530. Com a representant legal de l’Ajuntament: Alfons Beltran Bort amb NIF:42.569.867-M 6 Normes i referències Totes les construccions i instal·lacions que es realitzaran en el Polígon Industrial “Los Campets” aniran determinades per les diverses prescripcions tècniques, normes i referències que s’esmenten a continuació: REGLAMENTS CONSULTAT S: - Reglament electrotècnic per Baixa Tensió e Instruccions Tècniques Complementàries. - Reglament sobre Condicions tècniques i Garanties de Seguretat en Centrals Elèctriques i Centres de Transformació e Instruccions Tècniques Complementàries. - Reglament Tècnic de Línies Elèctriques Aèries d’Alta Tensió. - Reglament d’Estacions de Transformació. - Reglament de Verificacions Elèctriques i Regularitat en el Subministrament d’Energia. NORMATIVES: - Ordenances Municipals de l’Ajuntament d’Alcanar. - Reglaments vigents. - Normes Europees EN. - Normes Internacionals CEI. - Normativa FECSA-ENDESA. - Normes Tecnològiques d’edificacions: “Instal·lacions Elèctriques”, “Centres de Transformació” y “Presa a Terra”. - Recomanacions UNESA – RU6404A – RU5201C – RU6302 A – RU3407B – RU3401B – RU3405B. - Recomanacions UNESA Terres. - Normes Unesa: - UNE 21081,CEI - UNE-EN 60129 ,CEI 129 - UNE-EN 60255 ,CEI 255 - UNE-EN 60298,CEI 298 - UNE-EN 60694 ,CEI 694 Albert Bel Esteller Enginyer TècnicIndustrial en Electricitat 7
  • 9.
    Electrificació Polígon Industrial“Los Campets” Memòria Descriptiva - UNE-EN 60801 ,CEI 801 - UNE-EN ISO 9001:2000 - UNE 21-320/5-IEC 296 - UNE 48103 - UNE 21.428 - UNE-EN 60056 CEI 60056 - UNE-EN 60265-1 CEI 60265-1 - UNE-EN 60420 CEI 60420 - UNE-EN 61000-4 CEI 61000-4 Quaderns Tècnics: - Àngel Muñoz Medina. “Càlcul i Anàlisi d’instal·lacions elèctriques en Baixa Tensió”. - Enciclopèdia CEAC d’electricitat. “Estacions de transformació i distribució. Protecció de sistemes elèctrics”. - Jose Carlos Toledano Gasca. Antonio Luna Alonso. “Escomeses elèctriques. Legislació i exemples”. - E. Gallango, “Instal·lacions de presa a terra en xarxes de distribució”, Palma de Mallorca. 7 Descripció del polígon Per a fer la descripció completa del Polígon Industrial “Los Campets”, ens basarem en els següents punts: Superfícies distribuïdes per càlculs realitzats i el Pla Urbanístic Municipal de l’Ajuntament d’Alcanar. Extensió total 169.823,68 m2 Sòl públic: - Vialitat: 18.280.04 m2 - Vialitat de serveis 1.080,13 m2 - Espais lliures: 30.109,66 m2 - Equipament públic: 6.375,37 m2 Total sòl públic: 55.845,20 m2 Sòl privat: 113.970,24 m2 Superfície edificable 64.075 m2 Albert Bel Esteller Enginyer TècnicIndustrial en Electricitat 8
  • 10.
    Electrificació Polígon Industrial“Los Campets” Memòria Descriptiva Subministrament de tensió al polígon i empresa subministradora: El Polígon es subministrarà mitjançant una línia aèria de Mitja Tensió (25 kV) a 50 Hz que hi passa just per la banda posterior del polígon propietat de FECSA-ENDESA i anomenada Lª Renfe.1. Potència total necessària: Per poder realitzar el càlcul de la potència total a transportar, i per poder projectar si més no, en una bona aproximació els centres de transformació, és necessari tenir una aproximació de la potència total del Polígon. A part també cal dir que s’ha de tenir en conte que prèviament l’Ajuntament d’Alcanar no sap quines indústries s’hi instal·laran, de quin tipus seran i la quantitat d’aquestes. Sabent això, amb el que ens hem basat per a tenir una aproximació de la potència necessària ha estat amb el Reglament de Baixa Tensió, concretament a la ITC-BT-10 on es determinen les condicions a seguir en diferents casos que ens poden afectar i algunes condicions que exposa el Pla Urbanístic Municipal de l’Ajuntament d’Alcanar que són d’obligat compliment. Cal explicar que en el cas del nostre projecte, la superfície que es tindrà en compte i on s’aplicarà la ITC-BT-10, serà la superfície edificable, tal com es dictamina pel Pla Urbanístic Municipal de l’Ajuntament d’Alcanar, la qual es pot observar al plànol de distribució de parcel·les on s’exposa el Gàlib Màxim de l’Edificació i l’Alineació Obligatòria de les naus futures. També cal dir que en aquest pla queda constància que es tindrà e conte un 60 % de la superfície edificable per a edificis destinats a una concentració d’indústries i amb el 40 % restant, es realitzaran els càlculs com a edificis comercials i oficines. A banda d’aquests percentatges dictaminats en el Pla Urbanístic Municipal de l’Ajuntament d’Alcanar, en aquest pla també hi apareix un factor d’utilització de la superfície edificable que es de 0,5 per a tenir superfície per a poder maniobrar en cas d’accident, ja siguin camions o altres vehicles de grans dimensions, deixant passadissos de tres metres com a mínim entre naus. En el nostre cas, i seguint amb la classificació dels llocs de consum que s’exposa al reglament, hem de seguir “Edificis destinats a una concentració d’indústries” i “Edificis comercials o d’oficines”, ja que al Pla Urbanístic Municipal de l’Ajuntament d’Alcanar es dictamina que un 60% de la superfície edificable (la que a partir de la qual realitzarem tots els càlculs) sigui per a edificis destinats a una concentració d’indústries i el 40% restant per a edificis comercials o d’oficines. Sabent això ens queda el següent: - La superfície total edificable al Polígon Industrial “Los Campets” són 64.075 m2. - El 60% d’aquesta superfície es 38.445 m2, i en aquest cas s’aplica la normativa d’edificis destinats a concentració d’indústries de 125W/m2. Albert Bel Esteller Enginyer TècnicIndustrial en Electricitat 9
  • 11.
    Electrificació Polígon Industrial“Los Campets” Memòria Descriptiva - El 40% restant són 25.630m2, i com ja s’ha esmentat, degut al Pla Urbanístic Municipal de l’Ajuntament d’Alcanar en aquest cas s’aplica la normativa per a edificis comercials o d’oficines que tracta de considerar 100W/m2. A la potència total obtinguda segons el Pla Urbanístic Municipal de l’Ajuntament d’Alcanar se li ha d’aplicar un coeficient d’utilització de la superfície edificable de 0,5 degut a consideracions urbanístiques d’edificabilitat, volum, etc..., es a dir, una superfície suficient per a poder maniobra sense dificultats alhora de l’edificació de les naus o inclòs en perspectives de que hi pugui ocórrer algun accident (maniobra de vehicles de grans dimensions), i com no, segons les característiques particulars del tipus d’indústria que es pretengui instal·lar a la zona esmentada. Potència = Superfície edificable x ITC-BT-10 x Coeficient d’utilització - Superfície concentració d’indústries: 38.445m2 -- Potència = 2.403 kW - Superfície per a edificis comercials :25.630m2 -- Potència = 1.281,5 kW Aplicant un factor de potència de 0.85 ens quedarà el següent: POTÈNCIA TOTAL = 2.403 + 1.281,5 = 3.684,3 KW - Potència en kVA total = 3.684,3 / 0,85 = 4.334,47 kVA A part de realitzar els càlculs a partir de la superfície edificable, tal com s’indica al Reglament de B.T i al Pla Urbanístic Municipal de l’Ajuntament d’Alcanar, a l’hora de fer una previsió de potència també tindrem en compte la potència que es podrà necessitar per a enllumenat exterior, i cal fer esmena que la potència corresponent a l’enllumenat exterior del polígon determina a partir d’estudis luminotècnics, però que en absència de dades es pot fer una aproximació estimant 1,5 W/m2 de vial a enllumenar. Tenint en compte això i sabent la superfície vial del polígon es pot aplicar el següent: - Superfície vial = 18.000 m2 Previsió de potència per a enllumenat = 18.000x1,5 = 27.000 W = 27 kW Una vegada fet el càlcul de les potències que ens afectaran a la previsió de potència, la previsió de potència que tindrem serà la següent: Previsió de potència=Potència total + Previsió de Potència per a enllumenat Previsió de potència = 3.684,3 + 27 = 3.711,3 kW La previsió de potència en principi és 3.711,3 kW - Parts de la instal·lació: Línia aèria de la qual ens abastem. Albert Bel Esteller Enginyer TècnicIndustrial en Electricitat 10
  • 12.
    Electrificació Polígon Industrial“Los Campets” Memòria Descriptiva La derivació, es realitzarà des d’una línia de Mitja Tensió que hi passa justament per damunt del Polígon. El fet de que aquesta línia passés en principi per damunt del polígon era un problema, però es va aplicar la següent solució: Com es pot veure al plànol d’entroncament amb FECSA per al subministrament del polígon, es realitza un desplaçament de la línia de M.T. per la part posterior del polígon, sempre esquivant la parcel·la que està més a l’esquerra del polígon, ja que no es podia construir un polígon per sota mateix d’una línia de mitja tensió, és per això que es va desplaçar la línia de mitja per l’exterior del polígon i soterrant-la per a que es poguessin complir les distàncies mínimes de seguretat determinades en el RAT. La línia esmentada que ens subministrarà el Polígon és una línia que ve de l’estació receptora d’Alcanar i s’anomena “LªRenfe.1” i subministra una part de línia ferroviària que passa per les localitats de Ulldecona i Alcanar i la cementera d’Alcanar. Aquesta línia es va fer per a una cimentera que hi ha al Terme Municipal d’Alcanar de “CEMEX España”. Aquesta cimentera tenia contractada amb FECSA-ENDESA una sola entrada, es a dir un sol subministrament, però es van tenir problemes amb el subministrament esmentat i es va quedar sense electre durant un determinat espai de temps. Cal dir que aquestes indústries estan produint les 24 hores del dia i no es poden permetre parades ja que el ser tan grans de seguida hi ha pèrdues molt elevades, és per això que es va pensar que es podria fer una nova línia de mitja tensió de 25 kV des de l’estació receptora d‘Alcanar i així poder disposar de dues entrades per al subministrament de la cementera. Recepció de la línia de 25 kV. Tal com s’indica al Reglament Tècnic de línies elèctriques aèries d’Alta Tensió, concretament al “Capítol 3-Article 8”, la recepció de la línia es realitzarà mitjançant empalmes – unió de conductors que assegurin la continuïtat elèctrica i mecànica – tot i que la connexió a la xarxa no es l’objecte del nostre projecte, quan a una elèctrica s’utilitzen com a conductors cables, independentment de la seva naturalesa o composició, els empalmes dels conductors es realitzaran mitjançant peces adequades a la naturalesa, composició i secció dels conductors (empalmes termorretràctils), d’aquesta forma realitzarem l’entrada i sortida a la xarxa de M.T. al polígon, deixant així un anell obert per a poder desplaçar la càrrega sempre que es necessiti. Cal dir que aquests empalmes seran de disseny i naturalesa tal que evitin els efectes electrolítics, i s’hauran de prendre les precaucions necessàries per a que les superfícies en contacte no sofreixin oxidacions. Complint l’exposat en l’article 8 del reglament esmentat, l’empalme no ha d’augmentar la resistència elèctrica del conductor, al igual que també hauran de suportar sense ruptura ni lliscament del cable el 90 per 100 de la càrrega de ruptura del cable empalmat. Complint el mateix article cal dir també que els empalmes s’efectuaran amb elements adequats que assegurin la continuïtat de l’alumini ja que han de restituir-se totalment les característiques mecàniques y elèctriques del conductor. Transformació de la tensió de 25 kV a 380 V: Albert Bel Esteller Enginyer TècnicIndustrial en Electricitat 11
  • 13.
    Electrificació Polígon Industrial“Los Campets” Memòria Descriptiva La transformació de M.T a B.T es realitzarà per part dels centres de transformació ubicats de la forma estudiada i calculada, i on segons s’indica al document bàsic de Plànols, concretament al Plànol de distribució en mitja Tensió. Els centres de transformació esmentats seguiran un criteri de proximitat amb les parcel·les subministrades per cadascun, de distribució de càrregues i de potències calculades per a cada zona, i cal dir que aquest criteri alhora de determinar els càlculs anirà d’acord amb les diferents normatives i reglamentacions aplicables en cada un dels casos. Xarxa de Baixa Tensió Per a la xarxa de baixa tensió seguirem les següents directrius: - - Línies de distribució en B.T d’alimentació a les parcel·les. - - Secció dels conductors escollits. - - Proteccions de les línies que formen la xarxa de B.T. Enllumenat del Polígon Industrial: Es realitzaran els càlculs lumínics corresponents de les vies que formen el polígon amb el programa informàtic Calculux. D’acord amb les normatives establertes, reglamentacions aplicables i ordenances municipals que ens poden afectar, sempre buscant un estalvi energètic i un respecte pel medi en les solucions adoptades, sense repercutir amb el rendiment de la instal·lació. Els resultats de l’aplicació del programa informàtic esmentat es poden consultar en l’annex del present projecte. 8 Justificació del Projecte El creixement del poble d’Alcanar a nivell d’habitants ha estat considerable en els darrers anys d’història. En els últims anys s’ha passat de quasi 7.000 habitants a estar per damunt de la xifra dels 10.000. Aquest increment ha estat degut a la molta immigració que han estat patint les Terres de l’Ebre, i en especial tota la zona d’Alcanar, ja que és un dels pobles on hi ha més activitat agrària de les nostres terres. Aquesta activitat es deguda a que al llarg de la història la majoria de la població (80%) es va bolcar en el cítrics, en concret en la mandarina i en la taronja (el regadiu - ja que l’emplaçament ho permet -) , i van deixar de banda altres activitats agràries (el secà), industrials i comercials. Aquesta població es va bolcar d’una forma tan intensiva, que la venda de cítrics al poble d’Alcanar ha arribat límits com per exemple, ser el segon exportador mundial de mandarines i el primer exportador mundial de vivers (mandariners i tarongers de diverses classes d’edat baixa per replantar), tot això va comportar un augment molt elevat de la feina, i conseqüentment de l’economia. Però l’aparició dels punts esmentats a continuació ha fet que el sector on visquessin la majoria del poble estigui en veritables problemes: Albert Bel Esteller Enginyer TècnicIndustrial en Electricitat 12
  • 14.
    Electrificació Polígon Industrial“Los Campets” Memòria Descriptiva - Molta immigració, tan de països àrabs com de països de l’est, que han col·lapsat el mercat i el treball. - Juntament amb la malaltia de “La Tristesa” (els arbres moren) que han patit la major part dels arbres. - I l’aparició de moltes empreses de diferents sectors del món industrial per establir-se al poble, però degut a una mancança de terrenys adequats amb facilitats (polígon), feia que aquestes empreses anessin a poblacions veïnes que tenien un polígon amb les conseqüents facilitats. - Al voltant de 800 joves del poble han d’anar a treballar a diverses empreses situades als polígons industrials dels pobles del costat, cosa que fa que el jovent del poble hagi d’utilitzar vehicle per anar a treballar. Aquests punts ha fet “obrir els ulls” a l’Ajuntament, i ha estat estudiant una diversificació de l’activitat laboral, ja que s’ha vist que no solament es pot dependre d’una activitat, ja sigui rural, com comercial o industrial. És per això que la forma de diversificar les activitats, és que les empreses que vinguin des de diferents sectors, tinguin les facilitats corresponents per poder-se establir. Tot això repercutiria en que es generarien llocs de treball i conseqüentment no es dependria tan de l’agricultura. Degut a aquesta reflexió feta per part de l’administració local, s’ha arribat a la conclusió que el millor, tan econòmicament com en facilitats per donar un servei més complet a les empreses, és el de poder centralitzar tot el sòl industrial en un polígon. Per a definir la ubicació del polígon s’ha tingut en conte la comunicació de la Ronda Circumval·lació, recent acabada, que la seva finalitat és el desviar el trànsit de vehicles del nucli urbà, per a evitar embussos i accidents que tenien alguns vehicles, alguns de grans dimensions, en passar per carrers petits. I aquesta Ronda juntament amb la carretera de l’Estació TV-3321 que ens comunica amb Vinaròs (Capital de comarca del Baix Maestrat) i amb l’autopista A-7 s’aconsegueix una comunicació excel·lent. 9 Posta en marxa i funcionament La posta en marxa de Polígon Industrial “Los Campets” es realitzarà efectuant els següents passos indicats en el següent Diagrama de Gantt: - - Permisos. - - Legalitzacions. - - Instal·lació de castillets de conversió aeri/subterrani. - - Obertura de rases de BT i MT. - - Instal·lar els Centres de Transformació. - - Estesa del cable MT. - - Maniobres y connexió a la xarxa de M.T. - - Col·locació de les CGP, Caixes de Seccionament. Albert Bel Esteller Enginyer TècnicIndustrial en Electricitat 13
  • 15.
    Electrificació Polígon Industrial“Los Campets” Memòria Descriptiva - - Estesa dels conductors de B.T. - - Proves d’assaig. - - Connexions de B.T. - - Maniobres y connexió a xarxa de B.T. Un cop realitzades les instal·lacions i amb totes les obres executades, havent fet les verificacions i proves adients s’establirà, segons el Plec de Condicions Generals, la recepció provisional, previ pagament d’una part del pressupost, iniciant així el termini de garantia d’un any després del qual s’efectuarà la recepció de l’obra. Albert Bel Esteller Enginyer TècnicIndustrial en Electricitat 14
  • 16.
    Electrificació Polígon Industrial“Los Campets” Memòria Descriptiva Diagrama de barres (Diagrama de Gantt) 0 5 10 15 20 25 30 35 40 45 50 55 60 65 70 75 80 Permisos Oficials Legalitzacions. Instal·lació de castillets Obertura rases BT, MT. Instal·lar C.T. Estesa conductors MT. Maniobres i connexió M.T. Col·locació CGP i Seccionament. Estesa dels conductors de B.T. Maniobres i Connexions de B.T. Proves d’assaig. Maniobres i connexió a la xarxa 85 90 95 100 105 110 115 120 125 130 135 140 145 150 155 160 165 Permisos Oficials Legalitzacions. Instal·lació de castillets Obertura rases BT, MT. Instal·lar C.T. Estesa conductors MT. Maniobres i connexió M.T. Col·locació CGP i Seccionament. Estesa dels conductors de B.T. Maniobres i Connexions de Albert Bel Esteller Enginyer TècnicIndustrial en Electricitat 15
  • 17.
    Electrificació Polígon Industrial“Los Campets” Memòria Descriptiva B.T. Proves d’assaig. Con. Xarxa 170 175 180 Permisos Oficials Legalitzacions. Instal·lació de castillets Obertura rases BT, MT. Instal·lar C.T. Estesa conductors MT. Maniobres i connexió M.T. Col·locació CGP i Seccionament. Estesa dels conductors de B.T. Maniobres i Connexions de B.T.. Proves d’assaig Connexió xarxa Albert Bel Esteller Enginyer TècnicIndustrial en Electricitat 16
  • 18.
    Electrificació Polígon Industrial“Los Campets” Memòria Descriptiva 10 Anàlisi de solucions Connexió a la xarxa de Mitja Tensió La connexió del polígon a la xarxa de M.T es farà mitjançant una línia que apropi el subministrament d’electre justament al punt, on a partir del qual es distribueix en M.T. per dintre del polígon subministrant els centres de transformació. Alhora d’escollir el tipus de línia ens basarem en les característiques pròpies de cada opció. - Línia soterrada Les línies soterrades aporten un nivell més alt de seguretat degut a l’aïllament que comporta està soterrada i aïllada, i és així quan es redueixen en gran quantitat les actuacions de manteniment correctiu. A banda d’aquest motiu, el de poder soterrar les línies, també ens aportarà com a avantatge una major llibertat d’actuació en l’espai que envolta la línia, ja que una vegada, la línia ja estarà soterrada a la superfície es podrà realitzar qualsevol cosa, sempre tenint en compte que en una determinada profunditat hi haurà la línia de mitja tensió de la qual ens subministrarem. A part de tenir avantatges com els esmentats, també s’han de tenir en compte els inconvenients alhora d’escollir l’opció que més ens interessi, i en aquest cas com a desavantatge podem tenir tot el que comporta tan econòmic com laboralment el fet de realitzar les excavacions amb les maquinàries pertinents, i com no també les avaries, que tot i que cal dir que en les línies soterrades el risc d’avaries és més baix, en cas de que hi hagi alguna, també s’han de tenir en compte les excavacions pertinents que s’hauran de realitzar per a poder localitzar-la, reparar-la i tornar-la a soterrar. Tenint en compte aquest inconvenient, la forma de solucionar-ho seria aprofitant l’entrada-sortida que realitzem en el polígon, i en cas de tenir una avaria en un punt determinat descarregar la zona afectada i intentar cobrir la resta electrificant-ho per l’altra banda. Línia aèria Les línies aèries, com avantatge principal tenen que resulten molt més econòmiques. Com a desavantatge, en el cas del nostre projecte, tenim l’obligació en cas de línia aèria de complir totes les distàncies mínimes de seguretat dictaminades pels reglaments de B.T i A.T, a banda també, de la col·locació dels suports per a la subjecció de la línia; tot això s’ha tingut en compte alhora de l’elecció, ja que en el cas d’un polígon industrial, hi haurà a banda de naus industrials, vehicles de grans dimensions que circularan per les vies del polígon i ens interessa tenir la major superfície de maniobra possible per als vehicles, sense tenir en compte suports de la línia, ni la proximitat de la mateixa, per a evitar possibles accidents. Una vegada analitzades les avantatges i desavantatges que es tenien per a cada opció la solució adoptada ha estat la de la línia soterrada. Ja que en el nostre cas, com la línia de Albert Bel Esteller Enginyer TècnicIndustrial en Electricitat 17
  • 19.
    Electrificació Polígon Industrial“Los Campets” Memòria Descriptiva Mitja Tensió ens passa directament per sobre del polígon, la connexió ja la farem en un pal conversor aeri/soterrani al límit del polígon i d’allà es realitzarà el subministrament als centres de transformació de forma subterrània. A l’hora d’escollir la solució adoptada, s’ha tingut en compte la inversió inicial que s’hauria de fer tan en una opció com en l’altra, la quantitat d’avaries que es produeixen als dos tipus de línies esmentats, i el risc que es té d’avaries en els dos casos. A banda també s’ha estudiat que en el cas d’avaria en un o altre cas, les despeses que es poden tenir alhora de reparar la línia. Després d’estudiar les dues opcions s’ha arribat a la conclusió que degut al nivells de seguretat que són més elevats en el cas de línies soterrades, i degut també a la llibertat d’actuació en l’espai que envolta la línia, sense deixar de banda el risc d’avaria, que també en el cas de línia soterrada és menys elevat que en l’altre cas, s’ha escollit la solució de línia soterrada. Cal dir que un altre punt que s’ha tingut en compte ha estat, que la línia soterrada dóna una major seguretat, i això en el cas del nostre polígon es molt important per que es vol aconseguir des d’un primer moment un bon funcionament, i una bona seguretat per a que es redueix-hi al mínim el risc d’avaries, ja que coses que es fan noves com es el nostre cas interessa que arranquin amb bon peu i molta força. Línia Subterrània de Mitja Tensió Forma de dimensionar la línia Per a realitzar el càlcul per al posterior dimensionat, la línia de mitja tensió tenim dues opcions: - Càlcul preliminar - Càlcul de comprovació. La primera de les opcions consisteix en escollir la secció del conductor normalitzada per excés, cal dir que es la corresponent a la major de les calculades pels tres criteris: màxima caiguda de tensió, màxima intensitat de curtcircuit i màxima intensitat admissible. La segona de les opcions consisteix, en que una vegada escollida una secció, es comprova que la intensitat en règim permanent, la caiguda de tensió i la intensitat de curtcircuit estan dintre dels valors admissibles. Per al nostre projecte hem escollit el segon mètode de càlcul, ja que és el més usat per a instal·lacions de mitja tensió, a més, les companyies subministradores, alhora de realitzar l’estesa de la línia subterrània de mitja tensió, bàsicament es limita a instal·lar cables d’alumini de 150 o 240 mm 2 , i més concretament en els últims temps tan sols s’est enen conductors d’alumini de 240 mm 2 . Albert Bel Esteller Enginyer TècnicIndustrial en Electricitat 18
  • 20.
    Electrificació Polígon Industrial“Los Campets” Memòria Descriptiva Traçat de la Línia Subterrània de Mitja Tensió Aquesta línia subterrània de Mitja Tensió farà arribar la tensió de 25 kV que ens porta la línia aèria que ens arriba de l’Estació Receptora ALCANAR, subministrada per FECSA des del suport de conversió de línia aèria/soterrada des d’on fem la connexió a la xarxa fins als centres de transformació, i una vegada passa per tots els CT’s es torna a connectar a la xarxa MT amb una altra conversió, d’aquesta manera es realitza el circuit tancat, o dit d’una altra manera l’entrada-sortida al polígon. La forma de connectar els receptors a la xarxa pot ser en les diferents distribucions que s’esmentaran a continuació: Xarxa de distribució en sèrie Es considera com a línies en sèrie, la unió del castillet de conversió de línia aèria a soterrada, amb el primer centre de transformació mitjançant un tram de la línia soterrada, i la unió d’aquest centre de transformació amb el segon centre de transformació, amb un altre tram de línia, aquest procés es pot repetir tantes vegades com nombre de centres de transformació hi hagi al polígon. En aquest tipus de distribució tots els receptors es monten en sèrie sobre un circuit, essent la tensió E, aplicada als extrems, igual a la suma de les tensions necessàries per a fer funcionar cada receptor o a la suma de les caigudes de tensió originades per dit funcionament. Aquest procediment se sol utilitzar en enllumenats exteriors ja que en aquests, s’aconsegueixen considerables economies en la instal·lació, tenen l’inconvenient de que al quedar fora de servei algun receptor per avaria queda tallada la distribució. Com a inconvenient principal que ens pot donar aquesta opció es que un defecte en el primer tram deixa oberta tota la línia i per lo tant sense subministrament, però cal dir que és la solució més econòmica i el fet de soterrar la línia ens pot donar més seguretat. Xarxes en distribució en derivació - Xarxes en distribució amb anell: Es tracta d’una línia que va del suport de conversió aeri/subterrani fins a la primera estació transformadora, una altra línia que vagi del suport fins al segon centre de transformació, i una altra que uneixi els dos centres de transformació. És a dir, tracta d’unir amb les línies corresponents cada centre de transformació amb els suport aeri/subterrani i després s’uneixen tots els centres de transformació. Aquesta opció com avantatge que té, es que dóna majors recursos al moment de subministrar l’energia en cas de possibles defectes en algun dels trams de la línia, però econòmicament suposa un cost econòmic molt alt. La veritat, es que molta gent es favorable a connectar-ho en anell, però el fet de que sigui la solució més cara no proporciona que sigui la millor, tot i que alguns són molt favorables a aquesta connexió, i a d’altres que no hi estan tan d’acord ja sigui per aspectes econòmics o bé per sobrecàrregues que es produeixen a conductors per on després que hi Albert Bel Esteller Enginyer TècnicIndustrial en Electricitat 19
  • 21.
    Electrificació Polígon Industrial“Los Campets” Memòria Descriptiva hagi una fallada o un tall a un tram de línia passi tota la corrent pel mateix conductor esmentat, tot i que cal dir que tots els càlculs previs estan bastant sobre-dimensionats. En aquesta, cada receptor funciona amb independència dels demés. Els receptors poden funcionar en diferents tensions, ja que la resistència que ofereix el conductor al pas de la corrent origina una pèrdua de tensió en la línia, en canvi, sempre que la pèrdua de tensió no excedeixi de certs límits de tensió tolerats, no es produiran anomalies en el funcionament dels receptors. En canvi la forma més comú de distribució és en forma de corrent alterna trifàsica, connexió en estrella amb neutre que consisteix en un quart fil, el neutre, connectat al centre de l’estrella. Per raons de seguretat, es posa a terra el neutre de la instal·lació, aconseguint amb ell que la tensió existent en cada punt no sobrepassi la del transformador o alternador. Cal dir que generalment s’accepta que la secció del neutre sigui la meitat de la dels demés fils de fase. La distribució es realitza mitjançant circuits principals i secundaris. Els circuits seran anells obertes, els principals van recolzades als centres de transformació i els secundaris (anells o xarxes radials) parteixen del pal convertidor d’aeri/subterrani fins als centres de transformació.(en el nostre cas), i cal fer esmena que aquest centres de transformació es posen molt a prop els centres de consum. S’ha de dir que a cada estació transformadora, el cable s’interromp per a donar pas a uns barres col·lectores, de les quals s’alimenten els diversos transformadors a traves d’interruptors i seccionadors; això permet, en qualsevol moment, desconnectar el sector que interessa, tenint en compte que mai s’haurà de derivar la sortida del C.T. en forma de T; sempre es farà amb seccionament d’entrada i sortida. Formant un o diversos anells, s’obtindrà una major seguretat en el servei de l’explotació, i en el cas de que es produeix-hi una avaria en algun tram del circuit tancat, desconnectant els seccionadors immediats al tros avariat quedarà aquest fora de servei, però els transformadors seguiran en funcionament, alimentat per l’altre extrem, ja que en aquest tipus de xarxa ens assegurem la realimentació en tota el circuit, assegurant d’aquest manera la continuïtat en el subministrament. - Xarxes en distribució radial: Una altra distribució utilitzada de vegades es la distribució de forma radial, que no impedeix, que a la seva vegada es formin xarxes tancades. Tracta d’unir el traçat d’una línia per a cada centre de transformació amb un origen comú per a cada traçat, com és el castillet des d’on es realitzarà la conversió aèria/subterrània. Econòmicament parlant representa un increment del cost econòmic en respecte a l’anterior opció, ja que un part de la línia queda doblada. Solució adoptada: La solució adoptada per a la línia de mitja tensió soterrada serà la de traçar una línia que des que connecta en el pal conversor, passi per tots els CT’s connectats en aquesta, i torni a tancar el circuit connectant amb el segon pal conversor que ens unirà una altra vegada a la línia de Mitja Renfe.1. Amb aquest traçat aconseguirem realitzar un circuit en sèrie entre els diversos CT’s del polígon, però a la vegada unim en paral·lel tota la Albert Bel Esteller Enginyer TècnicIndustrial en Electricitat 20
  • 22.
    Electrificació Polígon Industrial“Los Campets” Memòria Descriptiva instal·lació de l’interior del polígon amb la línia principal de Mitja Tensió anomenada Renfe.1. Aquest mètode utilitzat per a la unió de la xarxa subterrània als diferents centres de transformació, és un sistema de distribució oberta, ja que s’han de tenir en compte possibles ampliacions, ja sigui en ampliacions de demanda de potència dins del mateix polígon marcades per activitats especials que es puguin realitzar en alguna de les parcel·les, o bé una ampliació de la superfície del polígon amb la conseqüent electrificació de la zona esmentada, i així aconseguir amb aquest sistema que es pugui cobrir amb relativa facilitat un augment en la demanda de potència. Aquesta solució és la més econòmica - i en una inversió inicial tan gran s’ha de tenir molt en compte aquest aspecte - i cal dir que aquesta opció l’hem escollit per la seguretat que ens dona el fet que la línia estigui soterrada, el fet de que estigués connectada tota la instal·lació en sèrie feia que una avaria provoqués la fallida a tot el polígon, però el fet de torna a connectar una altra vegada a la línia, aquest problema desapareix perquè en qualsevol moment es pot realitzar un moviment de càrregues i mantenir el subministrament de l’electricitat en la majoria dels punts del polígon. També cal fer esmena que després d’haver edificat tot el polígon s’estudiarà en cas que quedin recursos econòmics, si es podria tancar tots els centres de transformació en anell, d’aquesta forma es podria fer front a possibles avaries aïllant amb molta facilitat el tram de línia afectat i a la vegada donar continuïtat al servei, sense perill de sobrecàrregues o corrents de retorn d’altres circuits. Tipus de conductors de la línia de Mitja Tensió - Conductors unipolars: Constituït per una sola ànima, que quasi sempre es de secció circular, i cal fer esmena que els aïllaments i la protecció són similars al del conductor multipolar. - - Longituds de fabricació molt més grans, reduint així el número de possibles empalmes i connexions. - - Permeten adoptar un radi de curvatura menor. - - Molta facilitat per realitzar les connexions i les derivacions. - - Més manejables al moment d’estendre’ls a les rases. - - Tenen l’inconvenient que el seu cost econòmic és major. - - Admeten més intensitat de règim de càrrega permanent. - Conductors multipolars: - - Per la seva constitució més rígida resulta més dificultosa la seva extensió i curvatura. - - La disposició dels diferents conductors de cada pol del cable multipolar i l’efecte que fan uns sobre els altres, fa que sigui necessària una secció major respecte als conductors unipolars. - - El connexionat i les terminacions resulten més dificultoses degut al nombre de pols del cable. Albert Bel Esteller Enginyer TècnicIndustrial en Electricitat 21
  • 23.
    Electrificació Polígon Industrial“Los Campets” Memòria Descriptiva Solució adoptada: Per a realitzar l’estesa de la línia de mitja tensió pel traçat esmentat s’utilitzaran conductors unipolars que permetran una major facilitat per manejar-los i per connectar- los. El cable a utilitzar serà d’alumini amb camp radial ja que tenen un menor radi de corbatura , més manejables en la seva estesa, faciliten l’execució d’empalmes i terminals i una longitud de fabricació majors reduint el nombre d’empalmes - també cal dir que de camp no radial, només s’utilitza fins a tensions d’uns 15 kV- utilitzarem d’alumini per resultar més lleugers tot i que com a inconvenient suposarà la necessitat d’una secció superior. Aïllament dels conductors - Aïllament de paper impregnat - - Excel·lents característiques i garantia. - - Màxima seguretat. - - Cost econòmic bastant elevat. - - S’utilitzen en instal·lacions on es requereix màxima seguretat de funcionament. - Policlorur de vinil - - Rigidesa dielèctrica bastant elevada. - - Resistència a la sobrecàrrega i curtcircuit. - - Gran resistència mecànica. - - Temperatura de treball entre 70º i 80ºC. - - No absorbeix l’aigua. - - Resisteix al agents químics. - - Utilització vàlida fina 20 kV. - Polietilè reticulat - - Excel·lent comportament a les sobrecàrregues i curtcircuits. - - Elevada resistència mecànica. - - Resistent a la humitat i als agents químics. - - Temperatura de treball entre 90º i 100ºC. Solució adoptada Els cables unipolars seleccionats tindran un aïllament de polietilè reticulat i del tipus UNE DHV 18/30 kV ja que tenen una millor capacitat tèrmica i una gran resistència mecànica i gran resistència a la humitat. Albert Bel Esteller Enginyer TècnicIndustrial en Electricitat 22
  • 24.
    Electrificació Polígon Industrial“Los Campets” Memòria Descriptiva Centres de Transformació. Per fer efectiu el subministrament de la potència demandada pel polígon i per a poder realitzar la transformació des de mitja tensió a una tensió òptima per a poder treballar, s’adoptarà la instal·lació de sis centres de transformació de 800 kVA cada un, on més endavant es podrà observar que cada un dels C.T constaran de dos transformadors de 400 kVA. En la memòria de càlcul es podrà observar quins mètodes s’han utilitzat per a determinar el nombre de centres de transformació i la potència de cadascú. A banda també en la memòria de càlcul també es pot veure la previsió de càrrega portarà cada centre de transformació i quines parcel·les subministraran cadascun. Emplaçament Els diferents centres de transformació es col·locaran de manera que la seva localització estigui més o menys al centre d’equilibri dels diversos punts de consum que es preestabliran prèviament, a partir d’una proporció de les superfícies de les diverses parcel·les i la potència que consumiran. S’ha intentat alhora d’escollir els subministraments de cada centre de transformació que tots tinguin la mateixa superfície a subministrar en la suma de les parcel·les que subministren cadascú. Tanmateix la localització exacta dels centres de transformació es pot veure en el plànol de distribució en Mitja Tensió. A part d’això s’intentarà que estiguin al centre pel motiu anterior, i per a afavorir la xarxa de distribució en baixa tensió a cada parcel·la i així intentar que les caigudes de tensió siguin mínimes. Transformadors La solució adoptada és la d’instal·lar dos transformadors de 400 kVA 25/0,4 kV en cada centre de transformació. En el nostre cas tindrem 12 transformadors ja que tindrem 6 centres de transformació distribuïts arreu del polígon. El repartiment de la càrrega es farà el més proporcional que es pugui tal com s’ha pogut avançar en l’anterior apartat i els sis centres de transformació permetran que en cas d’alguna avaria no quedin afectades la totalitat de les parcel·les. Edifici del Centre de Transformació Alhora d’escollir quin tipus de centres de transformació utilitzarem en el nostre cas, tenim dues opcions: - Obra civil - Pre-fabricat La solució adoptada en el nostre cas, és la d’instal·lar centres de transformació prefabricats de la marca Ormazabal. Albert Bel Esteller Enginyer TècnicIndustrial en Electricitat 23
  • 25.
    Electrificació Polígon Industrial“Los Campets” Memòria Descriptiva L’elecció ha anat lligada als motius econòmics que ens dóna els centres prefabricats i la rapidesa en que es poden instal·lar. A part també cal dir que el nostre polígon està completament fora del casc urbà i conseqüentment fora de les poblacions es poden instal·lar centres prefabricats perfectament, en el cas que tinguéssim d’instal·lar un centre de transformació dintre d’un casc urbà llavors és indispensable que el centre de transformació sigui d’obra civil. Els centres de transformació prefabricats esmenats, estaran formats per diferents elements prefabricats de formigó, que s’uneixen en obra per construir un edifici. Tal com es podrà detallar en l’apartat de centres de transformació de descripció general per la seva estructura modular aquests centres de transformació poden ser transportats per a la seva instal·lació i permeten qualsevol configuració, incloent el nombre de portes d’accés i transformadors que es requereixen en cada lloc. En el seu interior s’incorporaran tots els components elèctrics: aparamenta de mitja tensió amb aïllament i tall, quadres de baixa tensió, transformadors, dispositius de control i interconnexions entre els diferents elements. Els centres de transformació utilitzats en el nostre polígon son centres de transformació de la marca ORMAZABAL. Dins de la marca esmentada n’hi ha de diverses classes i referències, però en el nostre cas serà un PF 203-303. Xarxa de Distribució de Baixa Tensió. Per a realitzar l’estesa de les línies subterrànies de baixa tensió, tenim dues opcions, com es la distribució oberta i la distribució tancada. En el cas de una distribució oberta les línies que surten de les estacions transformadores, finalitzen en els subministres corresponents amb total independència, d’una línia a una altra. En canvi quan realitzem una distribució tancada, cada subministrament es alimentat per més d’una línia per a d’aquesta forma assegurar el subministrament en tot moment. Si fem la comparació entre les dues opcions i analitzem les avantatges que tindríem en cada cas, en la distribució oberta tenim l’avantatge que és molt més simple i econòmica. Mentre que en la distribució tancada tot i tenir un major cost econòmic i temporal té l’avantatja com ja s’ha dit prèviament que assegura la continuïtat del subministrament als abonats en cas de que hi hagués alguna avaria. Cal explicar que normalment l’opció de distribució tancada s’utilitza en zones urbanes, on es necessita un subministrament continuïtat, però amb el que es el nostre cas amb una distribució oberta tindrem suficient, ja que al ser una inversió inicial tan gran s’intenta poder estalviar amb el que més certesa tinguem que ens pugui rendir amb un nivell més alt. Les línies de distribució que s’utilitzaran sortiran de cada centre de transformació per a subministrar cada una de les parcel·les que han estat repartides per a cada un. Cal dir que el repartiment de les parcel·les s’ha fet de forma que s’ha mirat la previsió de potència de cada una, i els centres de transformació tal com estan situats en el polígon, de forma que els trams no siguessin molt llargs i que més o menys tots els centres de transformació Albert Bel Esteller Enginyer TècnicIndustrial en Electricitat 24
  • 26.
    Electrificació Polígon Industrial“Los Campets” Memòria Descriptiva estiguessin carregats de la mateixa forma, ja que com es pot veure en el plànol de superfícies de les parcel·les no totes les parcel·les tenen la mateixa superfície, i conseqüentment no tindran la mateixa potència. El tipus de conductors que s’adoptaran per al subministrament en BT seran conductors unipolars d’alumini amb aïllant de polietilè reticulat tipus UNE RV 0,6/1kV. Cada línia constarà de tres conductors, un per fase, més un neutre i les seccions corresponents a cada conductor es determinaran a la Memòria de Càlcul del present projecte, i en la forma de calcular-les es tindrà en compte la caiguda de tensió i la intensitat màxima admissible. Per fer una mica d’esmena de les solucions que s’adoptaran, al que es refereix a la protecció contra sobreintensitats de cada una de les línies de distribució de B.T s’adoptaran fusibles adequats a la respectiva intensitat màxima admissible de cadascun dels conductors de cada línia, i cal dir que aquests fusibles aniran instal·lats al quadre de baixa tensió de cada centre de transformació, concretament als sòcols dels quadre de baixa de cada transformador. Enllumenat exterior Pel que respecta a l’enllumenat exterior, tal com indica que s’ha de nomenar el nou Reglament Electrotècnic per a Baixa Tensió aprovat en el Real Decreto 842/2002 del 2 d’agost del 2002, es dotarà el polígon d’una xarxa d’enllumenat distribuïda en tots els seus carrers. I la instal·lació complirà amb els nivells d’il·luminació establerts en normatives luminotècniques fetes per experiència, sempre sense deixa de banda el respecte pel medi i conseqüentment per ala contaminació ambiental. També cal explicar que la il·luminació del polígon en aquest projecte es realitzarà mitjançant el programa informàtic CALCULUX, de la marca Philips. La instal·lació que s’utilitzarà per a la xarxa d’enllumenat serà una instal·lació de més d’una línia, ja que s’intentarà repartir les diverses zones del polígon amb els diversos centres de transformació repartits també pel mateix. És a dir s’intentarà aprofitar la proximitat dels centres de transformació per a repartir-se les diverses zones del polígon amb la respectiva potència. Làmpades Per a l’elecció de les làmpades utilitzades en el nostre polígon s’han tingut en conte les següents: - Làmpades de vapor de mercuri d’alta pressió: S’obté un índex de reproducció cromàtica alt, el seu rendiment és de 40 a 60 lm/W, la vida útil és de 10000 hores. - Làmpades de vapor de sodi d’alta pressió: S’obté un índex de reproducció cromàtica baix, el seu rendiment és de 80 a 120 lm/W, la vida útil és de 12000 hores. Albert Bel Esteller Enginyer TècnicIndustrial en Electricitat 25
  • 27.
    Electrificació Polígon Industrial“Los Campets” Memòria Descriptiva Solució adoptada: Tenint en compte les característiques tècniques de cada tipus de làmpades, i considerant que no es necessària una bona reproducció del color mentre s’obtingui un bon grau d’il·luminació, i damunt si tenim en compte que en un polígon industrial per les nits l’activitat es molt baixa, s’adopten les làmpades de vapor de sodi per aconseguir un millor rendiment i duració. Albert Bel Esteller Enginyer TècnicIndustrial en Electricitat 26
  • 28.
    Electrificació Polígon Industrial“Los Campets” Memòria Descriptiva 11 Descripció general 11.1 Línia Subterrània de Mitja Tensió 11.1.1 Objecte del projecte L’objecte de la línia subterrània de Mitja Tensió serà el de subministrar energia elèctrica als centres de transformació que estan distribuïts per tot el polígon, es a dir portar l’electricitat des del pal de conversió des d’on entroncarem fins als diversos centres de transformació esmentats. 11.1.2 Justificació El motius de fer la línia subterrània, tot i tenir un cost més elevat, i no realitzar-ho en línia aèria, són per motius de seguretat i constructius del polígon, ja que es va estudiar la possibilitat de poder subministrar l’electricitat en aeri, però la vam desestimar per raons de seguretat, ja que per dintre del polígon es tindran que construir naus industrials, hauran de transitar vehicles de grans dimensions, col·locar bàculs per a l’enllumenat i altres aspectes que poden fer que la línia aèria sigui menys segura que la subterrània en respecte a l’entorn que l’envoltaria i a banda també s’ha de dir que el polígon és una zona de pública concurrència. El fet de que la línia soterrada ens doni certes garanties de seguretat, pel fet d’estar aïllada respecte a tot el que l’envolta, i no influeixi per a res amb el del voltant, fa que haguéssim escollit soterrar la línia. Encara que cal dir que a banda d’aquests motius esmentats, el fet que avui en dia s’intenti soterrar totes les línies que es pugui, també ha estat un punt que ha influït. 11.1.3 Característiques de la Línia Subterrània. La línia subterrània de Mitja Tensió tindrà una longitud total de 1200 metres, ja que es té en compte que es farà entrada/sortida sobre la línia que derivarem. Així doncs tal com s’indica al plànol hi haurà trams de 2 circuits i trams d’un (entrada i sortida), ja que unirem tots el transformadors i tornarem a sortir a la línia. La derivació de la línia es farà en una conversió que es pot veure en tot detall al plànol de pal conversor, la derivació en conversió es realitza a través d’un ferrament per a tres terminals de les mateixes característiques que els cables subterranis. En aquest mateix ferratge s’instal·laran les autovàlvules connectades amb el terra. Al que és la descripció de la línia de mitja es farà una descripció més detallada i més clara de tots el elements que formen aquesta línia. 11.1.4 Descripció de la línia de Mitja Tensió 11.1.4.1 Derivació i Conversió La línia subterrània Mitja Tensió, derivarà del recolzament indicat al plànol de distribució en Mitja Tensió i tindrà una longitud de 1.200 m. Albert Bel Esteller Enginyer TècnicIndustrial en Electricitat 27
  • 29.
    Electrificació Polígon Industrial“Los Campets” Memòria Descriptiva Estarà formada per tres conductors d’aïllament sec 18/30 kV i conductor d’alumini de 240 mm² de secció (un per fase). Una mica més avall de la creueta i a una altura prudent del castillet, s’instal·larà un ferratge per quatre conjunts terminals de les mateixes característiques que el cable subterrani i que servirà també com a recolzament per les electrovàlvules que seran tres en total, una per fase. La baixada dels cables subterranis es farà al llarg de l’estructura del suport subjectant-los amb brides, i per a la seva protecció des d’una alçada de 3 m per sobre el nivell del terra, es protegirà amb un tub d’acer galvanitzat. En les terminals de connexió de la línia aèria subterrània, es trauran les malles dels cables de MT i es connectaran a terra, així com les malles dels terminals situats en el CT. 11.1.4.2 Traçat de la xarxa subterrània de Mitja Tensió El traçat de la xarxa MT transcorrerà fins als centres de transformació tal com s’indica al plànol de distribució en Mitja Tensió. La longitud de la línia serà de uns 1200 m aproximadament, i cal dir que el traçat passarà per baix de les voreres i de la calçada, i per lo tant es tindran que realitzar a banda de les rases corresponents per a cada cas, seguir els permisos administratius corresponents tal y com s’indica al plec de condicions administratives. Per a realitzar les rases s’haurà de sol·licitar permisos oficials municipals de l’Ajuntament d’Alcanar per a obertura de rases. 11.1.4.3 Conductors Tipus Cable de MT fins 25 kV - Material Alumini - Secció 240 mm2 - Designació Cable DHV - Nivell d’aïllament 18 / 30 kV - Coberta exterior PVC color vermell - Intensitat admissible 410 A - Espessor aïllant 41,5 mm - Pes aproximat 2 kg / m L’esforç màxim de tracció que pot suportar un cable unipolar d’alumini de MT, l’utilitzat en el nostre projecte, és de 3 daN/mm2, i en cap cas l’esforç total al cable podrà superar els 2500 daN. Per a realitzar l’estesa dels conductors a les corbes es col·locaran varies rodets, evitant d’aquesta forma que el cable sofreixi esforços de tracció, la màxima tracció admissible en trams de corbes és 450 x R (daN), essent R el radi de corbatura del cable. Albert Bel Esteller Enginyer TècnicIndustrial en Electricitat 28
  • 30.
    Electrificació Polígon Industrial“Los Campets” Memòria Descriptiva 11.1.4.4 Proteccions de la línia. Proteccions contra sobretensions Es realitzarà mitjançant les autovàlvules col·locades en el recolzament de conversió aeri soterrat. S’instal·laran tres autovàlvules, una per cada fase, connectades cada una entre la seva fase i el terra. Característiques de les electrovàlvules: - Model EV 21. - Tensió nominal 21 kV. - Corrent nominal de descàrrega 5 kA. - Tensió mínima de cebat a 50 Hz 38 kV. - Tensió cebat ona plana 1,2/50ms 76 kV (cresta). - Alçada 460 mm. - Pes 6 kg. Proteccions contra sobreintensitats Tant la línia aèria com la subterrània estan protegides contra sobreintensitats per les proteccions existents de la companyia. 11.1.4.5 Rases i estesa dels conductors Rases L’obertura de la rasa serà realitzada mitjançant maquinària pesada (retroexcavadora) o a ma quan sigui necessari. Els barems per a que es faci a mà o en maquinària, es el següent: - Fins a 5 metres es realitzen les rases a mà. - Entre 5 i 15 metres es realitzaran rases mixtes, es a dir a maquinària i a mà. - Més de 15 metres es realitzaran totes les rases amb maquinària pesada. Per lo tant en el nostre polígon com s’han deexcavar més de 15m de rasa es realitzarà tot en màquina. Les rases es realitzaran seguint els criteris establerts per la companyia distribuïdora d’electricitat. Els conductors passaran per les voreres y els creuaments dels carrers es realitzarà sota tub formigonat perpendiculars a la calçada. Als plànol de les rases es pot veure en més detall com seran les rases depenent de per on passi per dintre del polígon. Entrant amb més detall amb el que seran aspectes més constructius de les rases, de les tipus de rases, i de l’estesa dels conductors, pel que fa a les corbes que es tingui que realitzar al conductor estaran sempre d’acord amb el radi de corbatura mínim que admetrà cada conductor, Albert Bel Esteller Enginyer TècnicIndustrial en Electricitat 29
  • 31.
    Electrificació Polígon Industrial“Los Campets” Memòria Descriptiva El fons de les rases haurà d’estar en terreny ferm pera evitar possibles deterioraments de la rasa i dels conductors degut als esforços d’estirament dels cables. Es procurarà deixar, un pas de 0,50 m. entre les terres extretes i les rases amb la finalitat de facilitar la circulació del personal de l’obra i evitar la caiguda o bé del mateix personal, o inclús una altra vegada de la mateixa terra extreta anteriorment. A les rases que faran el creuament dels carrers o calçades, s’instal·laran tubs per a la conducció i seguretat dels conductors, i cal dir que sempre es deixarà un tub lliure per a possible ampliacions o avaries de la línia de MT. Els tubs seran de formigó, amb un diàmetre exterior de 160 mm i un diàmetre interior de 135 mm. Com ja s’ha afirmat, els tubs es posen sempre als creuaments de calçades i de carrers per a guardar els conductors de la compressió que provoquen els vehicles que passen par damunt, i es per això que es pot dir que la resistència a la compressió que ens donen aquests tubs és molt fiable. A les rases que s’hauran de col·locar els conductes tubulars hauran d’estar obertes en la seva totalitat per a poder donar una mica de pendent, i així poder evitar l’acumulació d’aigua en l’interior dels tubs. Cal apuntar a més que quan la longitud dels tubs sigui superior a 100 m i als canvis de direcció amb angles superiors de 60º s’instal·laran arquetes de registre amb la finalitat de no sotmetre als conductors a un excés de d’esforços de tracció i conseqüentment facilitar els posteriors treballs d’estesa de conductors. El bloqueig dels tubs es realitzarà amb formigó de resistència H-100 quan provingui de la planta on es realitza la mescla, o amb una dosificació del ciment de 200kg/m3 quan es realitzi a peu d’obra. A banda s’haurà de tenir en compte alhora d’escampar el formigó esmentat de que no s’introdueixi dintre els tubs. I en cas de que ens hagi entrat una mica de formigó o qualsevol altra cosa procedirem a la neteja de l’interior dels tubs fent passar una esfera metàl·lica de diàmetre inferior al del tub, amb moviment de vaivé, i després per acabar-ho de netejar es passa una bossa de draps per a netejar els residus que puguin quedar. La distància mínima a mantenir entre conductors de MT i BT pel que fa a les rases amb conductes tubulars serà de 0,25 m, la distància del punt de creuament als empalmes serà d’1 m, i en el cas que no es puguin respectar aquestes distàncies, el conductor que s’estengui últim es disposarà separat mitjançant divisions d’adequada resistència mecànica. Segons una resolució de la Generalitat de Catalunya (DOG nº 1649 del 25.09.92) aquesta protecció es podria fer amb totxos massissos de 290 x 140 x 40 mm amb una capa d’arena a cada costat de 20mm com a mínim. A banda d’aquests, en el nostre projecte no es preveuen altres tipus de creuament i/o paral·lelismes ja que, al ser una àrea rústica i deshabitada no existeix cap altre servei en la zona. Cal dir que en el nostre cas no realitzarem cates de detecció d’altres serveis existents subterrànies, ja que el Polígon Industrial “Los Campets”, es realitzarà íntegrament a partir d’un projecte de construcció de tot el polígon amb tots el seus serveis i construccions, a banda d’afirmar aquesta qüestió un altre punt en el qual ens hem basat per a no realitzar cates al terra es perquè els terrenys on està previst realitzar el polígon són uns terrenys Albert Bel Esteller Enginyer TècnicIndustrial en Electricitat 30
  • 32.
    Electrificació Polígon Industrial“Los Campets” Memòria Descriptiva totalment rurals on es produeixen cítrics, i es per aquesta raó que no serà necessari realitzar les cates. Quan l’estesa s’efectuï sota tub i als canvis de sentit, serà necessària la construcció d’arquetes de registre cada 100 m, ja que cal fer esmena que la funcionalitat de les arquetes de registre es facilitar l’estesa dels conductors. Les arquetes seran prefabricades amb unes dimensions de 115x115 cm y una altura de 82 cm, les quals una vegada col·locades s’ompliran amb 40 cm d’arena amb la finalitat d’esmortir i suavitzar les vibracions que es puguin transmetre desde l’exterior. Damunt de la capa d’arena s’omplirà amb terra cribada compactada fins a l’altura que es precisi d’acord amb l’acabat superficial de la rasa. Les rases han de ser el suficientment amplies i amb una mica d’inclinació cap als pus de recollida. Per a la confecció d’empalmes es seguirà els procediments establerts pels fabricants i homologats per l’empresa distribuïdora i subministradora. El traçat de les línies serà el més rectilini possible, paral·lel en tota la seva longitud a voreres o façanes dels edificis, sempre intentar guardar la integritat de les cementacions de voreres i façanes. I alhora de marcar el traçat de les rases es tindrà en compte el radi mínim de corbatura que s’ha de respectar als canvis de direcció. El radi de corbatura d’un cable de MT ha de ser superior a 30 vegades el seu diàmetre durant l’estesa y a 15 vegades el seu diàmetre una vegada instal·lat Estesa de conductors L’estesa dels conductors cal dir que no es una tasca fàcil, i inclòs és pot afirmar que és l’operació més difícil en la instal·lació de qualsevol línia subterrània, ja que es poden produir danys ja sigui als conductors o inclòs en alguns dels tubs que no estaven perfectament nets o ben instal·lats, és per aquests motius que l’estesa dels conductors i la protecció s’efectuarà sempre davant de l’obra. Abans d’iniciar l’estesa dels conductors s’estudiarà quin és el lloc més adequat per a col·locar la bobina. Després, la extracció dels cables es realitzarà fent rotar la bobina i estirant del cable a la part superior. L’entrada del cable a la rasa serà mitjançant una pendent suau i una vegada ja estigui estès tot el cable a l’interior de la rasa, aquest només podrà ser desplaçat lateralment i a mà. Com és el cas d’una línia de Mitja Tensió els cables monofàsics es disposaran en forma de triangle equilàter per a evitar possibles desequilibris en les fases. Els cables es subjectaran amb cinta aïllant cada 1,5 m per a evitar que es puguin moure degut algun tipus d’esforç elctrodinàmic generats per un curtcircuit. Pel que fa a l’estesa dels conductors als tubs, el primer que tindrem en compte és que es col·locarà un circuit per cada tub per a reduir la reactància, Tot el que implica l’estesa de conductors als tubs, com és el cas de rases que s’utilitzen com ja em dit en creuaments de calçada i carrers, es el següent, abans d’iniciar la instal·lació del cable que s’ha de netejar el tub com ja s’ha comentat en anterioritat, durant l’estesa s’ha de protegir el cable de les boques del tub per evitar danys en la coberta, Albert Bel Esteller Enginyer TècnicIndustrial en Electricitat 31
  • 33.
    Electrificació Polígon Industrial“Los Campets” Memòria Descriptiva col·locant un rodet a l’entrada i un munt d’arena a la sortida, de forma que s’obligui al cable a sortir per la part mitja sense recolzar-se als extrems del tub. Una vegada fet això es tindran que tapar les boques dels tubs per a evitar l’entrada de gasos i animals. 11.1.4.6 Reompliment i compactament de les rases Si alhora d’efectuar l’excavació s’observa que la terra no es el suficientment bona com per a tornar-la a compactar, ja sigui perquè conté deixalles, o té massa pedres,...etc no s’utilitzarà aquesta terra i es farà el reompliment amb una altra terra de major qualitat. El reompliment de les rases es realitzarà per capes successives, de 0,15 m d’espessor prèviament compactades per a que el terreny quedi el suficientment compacte i ferm. La protecció dels cables es realitzarà mitjançant plaques de polietilè, per damunt d’aquestes plaques y a 0,20 m com a mínim es col·locarà una cinta de color groc que advertirà de l’existència de cables elèctrics d’acord amb la RU 0205. 11.2 Centres de Transformació 11.2.1 Introducció Els centres de transformació seran de la marca ORMAZABAL, del tipus prefabricat amb pannells composats per formigó armat vibrat i amb acabats de poliuretà de color blanc a les parets i de color marró a les portes i teulada. Els Centres de transformació PF estan formats per diferents elements prefabricats de formigó que s’acoblen en obra per a construir un edifici, on dintre el seu interior s’incorporaran tots els components elèctrics: des de la Mitja Tensió fins al quadres de Baixa Tensió, incloent els transformadors, dispositius de control i interconnexions entre els diversos elements. Per la seva estructura modular, aquests tipus de Centres de Transformació poden ser fàcilment transportats per a ser instal·lats en llocs de difícil accés, i permeten realitzar l’execució de qualsevol configuració de Centre de Transformació, incloent el numero de portes d’accés i transformadors que es requereixin en cada aplicació. L’entrada al centre es realitzarà a través d’una porta frontal que dóna accés a la zona de l’aparamenta on es troben les cel·les d’alta tensió, els quadres de baixa tensió i elements de control del centre. Cada transformador té una porta pròpia que permet la seva introducció i l’extracció del centre o l’accés per realitzar manteniments. Els centres de transformació objecte del present projecte serà del tipus interior, utilitzant per al seu aparellament cel·les prefabricades sota un envolvent metàl·lic segon Norma UNE-20.099. L’escomesa als Centres de Transformació serà subterrània, s’alimentarà de la xarxa de Mitja Tensió subterrània de la qual ens subministrarem, el subministrament s’efectuarà a una tensió de servei de 25 kV i una freqüència de 50 Hz, essent la Companyia Elèctrica subministradora FECSA- ENDESA. Albert Bel Esteller Enginyer TècnicIndustrial en Electricitat 32
  • 34.
    Electrificació Polígon Industrial“Los Campets” Memòria Descriptiva 11.2.2 Objecte Els Centres de Transformació realitzaran la transformació de 25 kV a 0,4 kV, per a poder donar subministrament en baixa tensió a totes les parcel·les, ja que com més endavant s’explicarà amb més detall, els Centres de Transformació s’ubicaran de forma que quedin ben distribuïts per tot el polígon. Els Centres de Transformació tindran una potència de 800 kVA repartits en dos transformadors de 400 kVA. Com es pot veure a la previsió de potència de l’apartat de Descripció del Polígon Industrial, es considerarà que la potència que ens podran donar els centres de transformació, serà suficient per a poder garantir tots els serveis de totes les parcel·les que formen el polígon 11.2.3 Emplaçament Els sis centres de transformació es col·locaran de manera que la seva localització estigui al centre d’equilibri dels diversos punts de consum que es preestabliran prèviament. Aquests punts de consum es preestabliran a partir d’una proporció de les superfícies de les diverses parcel·les i la potència que consumiran. S’ha intentat alhora d’escollir els subministraments de cada centre de transformació que tots tinguin la mateixa superfície a subministrar en la suma de les parcel·les que subministren cadascú, per a d’aquesta forma aconseguir que els centres de transformació estiguin tots carregats de la mateixa forma, o si més no s’ha intentat. Tanmateix la localització exacta dels centres de transformació es pot veure en els diferents plànols de distribució, ja sigui en Baixa com en Mitja. 11.2.4 Centres de Transformació prefabricat adoptats Com ja s’ha avançat anteriorment a l’anàlisi de solucions, la solució escollida ha estat la de Centres de Transformació prefabricat PF-203/303 pels molts avantatges que té, facilitat per a la instal·lació: Tant la construcció com el muntatge i equipament interior es poden realitzar íntegrament a la fàbrica, garantint , així, una qualitat uniforme i reduint considerablement els treballs d’obra civil i muntatge en el punt de la instal·lació. Aquests Centres de Transformació tenen un disseny que permet la instal·lació tant en zones de caràcter industrial com en entorns urbans. Els centre de transformació utilitzat serà del tipus UNIBLOCK de la marca ORMAZABAL model PF-203 / 303 amb capacitat per encabir-hi dos transformadors de 1000kVA com a màxim, quatre quadres B.T i espai per quatre cel·les amb la corresponent aparamenta de M.T. La qualitat de les diferents casetes ha estat reconeguda per la Comissió de Qualitat UNESA en els centres de formigó UNIBLOCK pels seus excel·lents resultats obtinguts en els assajos realitzats segons la RU 1303 A ( Centres de transformació prefabricats de formigó ). 11.2.5 Distribució interior dels Centres de Transformació Pel que fa referència a la distribució en planta de tots els elements que es poden trobar dintre d’un Centre de Transformació, concretament es pot trobar en el plànol del CT Albert Bel Esteller Enginyer TècnicIndustrial en Electricitat 33
  • 35.
    Electrificació Polígon Industrial“Los Campets” Memòria Descriptiva ORMAZABAL PF-203/303 del present projecte amb més claredat, on es podrà veure la localització dels trafos, els quadres de baixa, l’aparamenta de mitja, els ponts de mitja i de baixa... 11.2.6 Transformadors de distribució MT/BT S’utilitzaran dos transformadors de 400 kVA en lloc d’un sol transformador de 1000 kVA, ja que per recomanacions de la companyia subministradora en l’actualitat s’intenta evitar la instal·lació d’aquests transformadors, d’aquesta manera s’aconseguirà una millor seguretat i continuïtat en el subministrament, ja que en el cas d’avaria d’un transformador es reduiran les zones del polígon sense subministrament d’energia i no es dependrà solament d’un trafo. Els dos transformadors que s’utilitzaran per cada centre de transformació seran de bany d’oli de 36 kV de nivell d’aïllament. S’utilitza l’emplenat integral d’oli degut als avantatges que presenta respecte a altes tecnologies de fabricació. - - No hi ha degradació de l’oli ni per oxidació ni per absorció d’humitat, al no estar en contacte amb l’aire. - - Baix grau de manteniment, degut a l’absència d’elements, no precisa secador d’aire, ni manteniment de l’oli, ni vàlvules de sobrepressió. - - Gran robustesa al no presentar punts dèbils de soldadura com seria la unió del dipòsit d’expansió amb la tapa. - - Menor pes del conjunt. L’equip base estarà format per els següents elements: - Commutador de regulació maniobrable sense tensió. - Passatapes MT de porcellana. - Passabarres BT de porcellana. - 2 Terminals de terra. - Dispositiu de buidat i toma de mostres. - Dispositiu d’omplert. - Placa de característiques. - Placa de seguretat i instruccions de servei. - 2 “Cáncamos” d’elevació. - 4 Dispositius d’arriostrament. - 4 dispositius d’arrastre. - Dispositius per allotjament de termòmetre. Les característiques elèctriques dels transformadors seran:: - - Potència assignada 400 kVA. - - Tensió primària assignada ( 24 kV a 36 kV). Albert Bel Esteller Enginyer TècnicIndustrial en Electricitat 34
  • 36.
    Electrificació Polígon Industrial“Los Campets” Memòria Descriptiva - - Tensió en el secundari 400 V. - - Regulació de tensió (+ 2.5% , + 5%). - - Pèrdues en buit 1120 W. - - Pèrdues en càrrega a 75º C 4900 W. - - Impedància de curtcircuit 4,5 %. - Intensitat de buit al 100% de Un 2,2 - Nivell de potència acústica 65 - - Caiguda de tensió a plena càrrega - Cos ϕ = 1 ∆V = 1,32 %. - Cos ϕ = 0,8 ∆V = 3,62 %. - - Rendiment a plena càrrega amb cos ϕ = 1 : η = 98,7 %. - - Rendiment al 75 % de càrrega amb cos ϕ = 0,8 : η = 98,4 %. 11.2.7 Aspectes constructius dels Centres de Transformació Estructura Aquests tipus de C.T: es basen en la combinació de peces bàsiques de formigó prefabricat, en les quals s’obté la caseta tipus UNIBLOCK. El conjunt d’aquest C.T. és de formigó vibrat, i es compost de dues parts: la primera part consta del que podríem anomenar fons i parets, que incorpora portes i reixes de ventilació natural i l’altra part que incorpora el sostre. Tots els armats de formigó estan units entre si i al col·lector de terra, segons RV1303, les portes i reixes presenten una resistència de 10kΩ respecte al terra del conjunt. L’acabat estàndard del C.T. es realitza amb poliuretà, de color blanc a les parets i marró al sostre i reixes. El pes total de cada centre de transformació serà de 25.800 kg Reixes de ventilació Es tracta de reixes de ventilació amb làmines en forma de “V” invertida que combinada amb una reixa mosquitera i amb la seva posició de muntatge, permet la perfecta ventilació del transformador. Aquesta ventilació queda avalada en el protocol nº 93066-1-E per a transformadors de potència inferior o igual a 630kVA i el protocol nº 92202-1-E per a transformadors de potència majors. Aquests protocols han estat realitzats per personal d’ Assajos e Investigacions Industrials LABEIN, d’acord amb la normativa. Es col·loquen els pannells verticals, en les perforacions que aporta el fabricant, i es fixen mitjançant cargols estàndards. Portes i tapes d’accés Albert Bel Esteller Enginyer TècnicIndustrial en Electricitat 35
  • 37.
    Electrificació Polígon Industrial“Los Campets” Memòria Descriptiva Per a l’accés al Centre de Transformació es disposa de dos tipus, un per a l’accés del personal tècnic i un altre per a l’accés directe del transformador. El nombre d’accessos, cal dir que pot ser variable i s’acomoda a la necessitat de cada tipus de transformador. Cementacions Els Centres de Transformació, tot i ser prefabricats, en tota la seva estructura, s’hauran d’aposentar sobre unes cementacions que seguiran d’acord amb les mides de la caseta prefabricada del Centre de Transformació PF-203/303 una longitud de 8700mm, una profunditat de 560mm i una amplitud de 3788mm. Dimensions de la caseta centres fins a 36 kV pf-203/303 longitud 7240 mm amplada 2620 mm dimensions exteriors alçada 3144 mm superfície 19,3 m2 alçada vista 2595 mm centres fins a 36 kV pf-203/303 longitud 7080 mm dimensions amplada 2460 mm interiors alçada 2615 mm superfície 17,8 m2 Solera i paviment Tots els elements que formen els Centres de Transformació estan prefabricats d’una sola peça de formigó, tal i com s’ha esmentat anteriorment quan s’ha fet la introducció dels Centres de Transformació. Sobre la placa base, i a una alçada de 460mm, està situada la solera, quedant un espai buit entre les dues, que permet el pas dels conductors de MT i BT, als que s’accedeix a través d’uns orificis coberts amb dues lloses. Albert Bel Esteller Enginyer TècnicIndustrial en Electricitat 36
  • 38.
    Electrificació Polígon Industrial“Los Campets” Memòria Descriptiva En el lloc del transformador es disposa de dos perfils en forma de “U”, que poden ser desplaçats en funció de la distància de les rodes del transformador. En la part inferior de les parets frontals i posteriors es troben els orificis per als conductors de MT y BT. Aquests orificis estan semi-perforats, perforant-se totalment en obra estrictament els necessaris per al nou subministrament. De la mateixa manera es disposen d’uns forats semi-perforats practicables per a les sortides de les terres exteriors. Tanques exteriors En la paret frontal es situen les portes d’accés de peatons, portes del transformador i reixes de ventilació. La porta d’accés per a vianants té unes dimensions de 900x2100mm, mentre que la del transformador té unes dimensions de 1260x2400. La porta d’accés per a vianants disposa d’un sistema de tanca amb la finalitat de garantir la seguretat del funcionament i evitar la obertura imprevista. Per això s’utilitza una tanca disseny ORMAZABAL. Les dues portes esmentades, es poden obrir uns 180º, és a dir gairebé totalment. Ventilació Les reixes de ventilació del transformador estan situades a la part inferior de la porta d’accés d’aquest, i en la part posterior del transformador. Aquest fet provoca que l’aire en el seu moviment envolta totalment el transformador, principal productor de calor, realitzant una eficaç refrigeració dels trafos pel termosifó que es produeix d’entrada i sortida. Condicions de servei Les casetes prefabricades UNIBLOCK estan construïdes per a suportar les següents condicions de treball: - Sobrecàrrega de neu de 250 kg /m² en cobertes - Sobrecàrrega en solera de 600 kg /m² . - Càrrega de un transformador de 5000 kg sobre la meseta. - Les temperatures de funcionament de un PF - 203 / 303 son: (fins a una humitat del 100%) - Mínima transitòria -15º C - Màxima transitòria +50º C - Màxima mitjana diària +35º C Aquestes dades corresponen a una alçada de 2500 m per sobre del nivell del mar d’acord amb la norma MV-101-1962. Albert Bel Esteller Enginyer TècnicIndustrial en Electricitat 37
  • 39.
    Electrificació Polígon Industrial“Los Campets” Memòria Descriptiva Senyalització A la reixa de la mampara del transformador i a la porta d’entrada al centre de transformació, es col·locaran plaques que adverteixin de l’existència de perill elèctric. Així mateix, en les empunyadures dels accionaments de l’interruptor i el seccionador, hi haurà indicacions de la seva maniobra que impedeixin els errors d’interpretació. 11.2.8 Instal·lació elèctrica. El centre de transformació portarà ja instal·lats de fàbrica o per instal·lar en el lloc de col·locació la següent aparamenta, tant de mitjà, com de baixa tensió, com els transformadors. Mitja tensió En mitja tensió trobarem les cel·les amb la corresponent aparamenta, i el pont de mitja Tensió. Cel·la de línia CGM-CML N’hi haurà dos equips a cada centre de transformació. S’utilitzarà el sistema de cel·les modulars de ORMAZABAL tipus CGM. Les cel·les de entrada/sortida seran del tipus CGM-CML (interruptor - seccionador). Aquestes cel·les formen un sistema d’equips modulars de reduïdes dimensions per a mitja tensió amb una funció específica per a cada cel·la. Com a principals avantatges que ens podem trobar en utilitzar aquest sistema CGM de la marca ORMAZABAL tenim els següents: - Extensiblitat: L’ampliació es pot realitzar per les dues direccions, inclús en el lloc de la instal·lació, sense necessitat de repostar el gas, utilitzant el “Conjunt d’unió” patentat, totalment aïllat i apantallat. - Amplia gamma de característiques ja sigui en intensitats, tensions i dimensions, o inclús en aspectes constructius i d’estètica. - Completa gamma de funcions: Cel·les de línia, protecció amb fusibles, com més endavant es veurà, interruptor passant, interruptor automàtic... - Fàcil instal·lació: Mínims requeriments d’obra civil i fàcil transport i connexionat a la xarxa. - Facilitat d’explotació - Operacions ràpides i segures: Maniobres, canvi de fusibles, proves als cables. - Insensibilitat ambiental: Insensible als agents atmosfèrics, inclús a inundacions dels centres de transformació. - Seguretat per al personal: Dissenyades per a resistir arcs interns. - Proteccions integrades: Opcionalment es poden incloure els nous sistemes autònoms electrònics de protecció RPTA i RPGM. Albert Bel Esteller Enginyer TècnicIndustrial en Electricitat 38
  • 40.
    Electrificació Polígon Industrial“Los Campets” Memòria Descriptiva - Un baix manteniment: Ja que totes les parts actives estan a l’interior d’un compartiment estanc amb gas i el mecanisme de comandament no requereix manteniment. - Llarga vida útil La prefabricació d’aquests elements i els assajos realitzats sobre cada cel·la fabricada garanteixen el seu funcionament en diverses condicions de temperatura i pressió. El seu aïllament integral en SF6 permet resistir les cel·les en un perfecte estat la pol·lució i inclús l’eventual inundació dels centres de transformació, redueix la necessitat de manteniment, contribuint a minimitzar els costos d’explotació. El connexionat entre els diversos mòduls, es simple i fiable i permet configurar diversos esquemes per als centres de transformació amb un o varis transformadors, seccionament, mesura... L’hexafluorur de sofre es un component gasós en condicions normals (20º C i 1 bar), químicament inert, no inflamable i no tòxic. Les seves excel·lents propietats dialèctiques i tèrmiques el fan adequat per a la seva utilització en diverses aplicacions d’electrotècnia, des de l’alta tensió fins a la mitja. (aparamenta de subestacions i centres de transformació). Les cel·les de línia (CGM-CML) són cel·les amb una coberta metàl·lica, i formades per un mòdul de Un=36 kV i In=400 A, de 240mm d’amplada per 850mm de profunditat per 1800mm d’alçada. També en aquestes cel·les de línia o anomenades també, com ja s’ha dit abans cel·les d’entrada/sortida, es realitza l’entrada de la línia i la sortida de la mateixa, en els casos que hi ha més d’un centre de transformació, per a poder-los connectar entre ells. Les CGM-CML estan dotades amb un interruptor seccionador de tres posicions, i permeten comunicar l’embarrat del conjunt de cel·les amb els cables d’escomesa, tallar la corrent assignada, seccionar aquesta unió o posar a terra simultàniament les tres borns dels cables de mitja tensió. Cel·la de protecció CGM-CMP-F Al igual que les cel·les de línia també n’hi haurà dos per cada centre de transformació. La cel·la CGM-CMP-F és la cel·la que s’encarrega de protegir el trafo mitjançant tres fusibles de 40A, amb una tensió assignada de 36kV. Aquests fusibles esmentats estan escollit en funció de la potència de transformador a protegir i també en funció de la tensió de línia de la part de mitja del trafo. Els fusibles poden estar associats( la fusió d’un d’ells no impedeix que les altres dues fases alimenten al trafo) o bé combinats ( la fusió d’un fusible obri l’interruptor de la cel·la) Com a avantatges, els fusibles tenen efectes limitadors de danys tèrmics (1000 vegades) i dinàmics (250 vegades) originats pel curtcircuit. I com a inconvenients que ens trobem es que hi ha que reposar els tres fusibles, no protegeix contra sobrecàrregues ni faltes homopolars i com ja s’ha dit en el cas de fusibles associats, l’alimentació bifàsica pot ser un inconvenient. Albert Bel Esteller Enginyer TècnicIndustrial en Electricitat 39
  • 41.
    Electrificació Polígon Industrial“Los Campets” Memòria Descriptiva La utilització d’aquests fusibles pot respondre a dos sistemes de protecció com ja s’ha avançat en anterioritat: - Fusibles associats: En cas de fusió d’un fusible, no s’obri el l’interruptor de cel·la, deixant que el transformador quedi alimentat per dues fases. - Fusibles combinats: Quan qualsevol dels fusibles es fon, l’interruptor s’obri evitant que el transformador quedi alimentat tan sols a dues fases. A banda de l’elecció de la utilització dels fusibles per a la protecció contra sobreintensitats o fugues a terra la cel·la incorpora el sistema autònom de protecció RPTA, al igual que es protegirà amb la unitat d’accionament extern el transformador d’escalfaments. Aquest sistema autònom de protecció RPTA dit així de primeres i per a que s’entengui, dota a una protecció amb fusibles de característiques comparables a les d’una protecció amb interruptor automàtic.(sobrecàrrega, fugues a terra i dispar extern). Degut a als inconvenients, nomenats al que respecta als fusibles sense cap sistema addicional i a la quantitat d’avantatges que ens dóna, creiem que el millor serà utilitzar el sistema de fusibles amb RPTA: - Efectes limitadors de danys tèrmics i dinàmics. - Protecció contra sobrecàrregues i fugues a terra. - No hi ha necessitat d’una alimentació auxiliar, al ser un sistema autoalimentat. - Possibilitat d’implementar el dispar per termòstat sense cap altre element addicional. A l’annex es donarà més informació del que és amb més detall la unitat RPTA. Entrant una mica amb més detalls constructius del que es la CGM-CMP-F és una cel·la amb coberta metàl·lica, fabricada per ORMAZABAL, formada per un mòdul de Un=36 kV e In=400 A, de 480mm d’ample per 1035mm de fons per 1800mm d’alt i 270kg de pes. La cel·la CMP-F d’interruptor - seccionador, està constituïda per un embarrat superior de coure, i una derivació amb un interruptor - seccionador rotatiu, amb capacitat de tall i aïllament, i posició de posta a terra dels cables d’escomesa interior - frontal mitjançant borns endollables, i en sèrie amb ell, un conjunt de fusibles freds, combinats o associats a aquest interruptor. Descripció detallada de les cel·les CGM Les cel·les CGM de SF6, que hem explicat estan formades pels següents elements: Base i frontal La rigidesa mecànica de la xapa i galvanitzat garanteixen la indeformabilitat i resistència a la corrosió de esta base, que suporta tots els elements que integren la cel·la. Albert Bel Esteller Enginyer TècnicIndustrial en Electricitat 40
  • 42.
    Electrificació Polígon Industrial“Los Campets” Memòria Descriptiva L’alçada i disseny d’aquesta permet el pas de cables entre cel·les sense necessitat de fosa, i presenta l’esquema unifilar del circuit principal i eixos d’accionament de l’aparamenta a l’alçada idònia per a la seva operació. Igualment, l’alçada d’aquesta base facilita la connexió dels cables frontals d’alimentació. La part frontal inclou, en la seva part superior, la placa de característiques elèctriques, l’espiell per al manòmetre ( per a veure’l), l’esquema elèctric de la cel·la i els accessos als accionaments del comandament, en la part inferior es troben les tomes per a les làmpades de senyalització de tensió i el pannell d’accés als cables i fusibles.En el seu interior hi ha una platina de coure al llarg de tota la cel·la que permet la connexió a la mateixa del sistema de terres i de pantalles dels conductors. Cubeta La cubeta, fabricada en acer inoxidable de 2mm d’espessor, conté l’interruptor, l’embarrat i el portafusibles, el gas SF6 es troba en el seu interior a una pressió absoluta de 1,3 bars ( excepte per a cel·les especials). El segellat de la cubeta permet el manteniment dels requisits d’operació segura durant més de trenta anys, sense necessitat de reposició de gas. Aquesta cubeta compta amb un dispositiu d’evacuació de gasos que, en cas d’arc intern, permet la seva sortida cap a la part posterior de la cel·la, evitant així, amb l’ajut de l’alçada de les cel·les, la seva incidència sobre les persones, cables o l’aparamenta del centre de transformació. Interruptor, Seccionador y Seccionador de posta a terra L’interruptor disponible en el sistema CGM té tres posicions: - - Connectat - - Seccionat - - Posta a terra L’actuació d’aquest interruptor es realitza mitjançant una palanca d’accionament sobre dos eixos diferents, un per a l’interruptor (que commuta entre les posicions d’interruptor connectat e interruptor seccionat) i un altre per al seccionador de posta a terra dels cables d’escomesa (que commuta entre les posicions de seccionador i posta a terra). Aquests elements són de maniobra independent, de forma que la seva velocitat d’actuació no depèn de la velocitat d’accionament de l’operari. El tall de la corrent es produeix en el pas de l’interruptor de connectat a seccionat, utilitzant la velocitat de les “cutxilles” y el bufat de SF6. L’interruptor de la cel·la CMIP tan sols te posicions de connectat y seccionat. Comandament Els comandaments d’actuació com poden ser les maniobres d’actuació d’obertura i tancament, són accessibles des de la part frontal, podent ser accionats de forma manual o motoritzada. Albert Bel Esteller Enginyer TècnicIndustrial en Electricitat 41
  • 43.
    Electrificació Polígon Industrial“Los Campets” Memòria Descriptiva Fusibles A les cel·les CMP-F els fusibles es munten sobre uns carros que s’introdueixen en els tubs portafusibles de resina aïllant, els tres tubs immersos en SF6 són perfectament estancs respecte del gas i de l’exterior, garantitzant d’aquesta forma la insensibilitat a la pol·lució externa i a les inundacions. Això s’aconsegueix mitjançant un sistema de tancament ràpid amb membrana. Aquesta membrana compleix també una altra missió: l’accionament de l’interruptor per a la seva obertura, que pot tenir origen en l’acció del percutor d’un fusible quan aquest es fon, o bé per la sobrepressió interna del portafusibles per un calentament excessiu, és a dir dispararà quan alguna d’aquestes dues opcions passi. Connexió entre cel·les La connexió elèctrica i mecànica entre cel·les es realitza mitjançant un element que es denomina “conjunt d’unió”, patentat per ORMAZABAL, que permet la unió de l’embarrat de les cel·les del sistema CGM fàcilment i sense necessitat de reposar gas SF6. El “conjunt d’unió” està format per tres adaptadors elastòmerics endollables que muntats entre tulipes (sortida dels embarrats) existents en els laterals de les cel·les a unir, donen continuïtat a l’embarrat i segellen la unió, controlant el camp elèctric per mitjà de les corresponents capes semi-conductores. El disseny i composició d’aquest conjunt d’unió a més d’impossibilitar les descàrregues parcials, permet mantenir els valors característics d’aïllament, d’intensitats assignades i de curtcircuit que les cel·les tenen per separat. Ponts de mitja tensió Els ponts de mitja o alta tensió tenen com a funció principal connectar elèctricament la cel·la que protegeix els trafos, CGM-CMP-F, amb el primari dels transformadors. I estarà formats per tres cables unipolars 18/30kV 3x1x150 mm2 AL DHV. La connexió es realitzarà mitjançant terminacions “Elastimold” de 36 kV del tipus endollable i model M- 400 LR en la cel·la SF6 y mitjançant terminals bimetàlics al transformador. Enclavaments Els enclavaments inclosos en totes les cel·les CGM pretenen impedir: - - Connectar el seccionador de posta a terra amb l’embarrat principal tancat, i recíprocament, que no es pugui tancar l’embarrat principal si el seccionador de posta a terra està connectat. - - Treure la tapa frontal si el seccionador de posta a terra està obert, i a la inversa, que no es pugui obrir el seccionador de posta a terra quan la tapa frontal hagi estat extreta. 11.2.9 Equips de mesura i contatge. No és necessària aquesta instal·lació ja que el centre pertany a la companyia elèctrica. Albert Bel Esteller Enginyer TècnicIndustrial en Electricitat 42
  • 44.
    Electrificació Polígon Industrial“Los Campets” Memòria Descriptiva 11.2.10 Mesures de seguretat. Protecció personal i equips. Tot i realitzar les explicacions detallades de cada apartat i subapartat que fan referència als centres de transformació i tots els seus components, ara es farà una visió pel que respecta a les mesures de seguretat que s’han intentat buscar alhora d’arribar a totes les solucions que s’han adoptat. No serà possible accedir a les zones de normal tensió, si aquestes no han sigut posades a terra. Per això, el sistema d’enclavaments intern de les cel·les ha d’afectar al comandament del aparell principal, del seccionador de posta a terra i a les tapes d’accés dels cables. Les cel·les d’entrada i sortida seran amb aïllament integral i tall en SF6, les connexions entre els seus embarrats hauran de ser apantallades, aconseguint amb això la insensibilitat davant als agents externs. Amb això s’evita pèrdues de subministre en els centres de transformació interconnectats amb aquest, inclòs en l’eventual cas d’inundació de centre de transformació. Els borns de connexió de cables i fusibles seran fàcilment accessibles per als operaris, de forma que en les operacions de manteniment la posició de treball normal no manqui la visibilitat sobre aquestes zones. Els comandaments de l’aparamenta estaran situats davant l’operari en el moment de realitzar l’operació, i el disseny de l’aparamenta protegirà a l’operari de la sortida de gasos en cas d’un eventual arc intern. El disseny de les cel·les impedirà la incidència dels gasos d’escapament produïts en el cas d’un arc intern, sobre els cables de mitja i baixa tensió. Per tenir en compte aquest problema la sortida de gasos no ha d’estar enfocada en cap cas en direcció a la fosa de cables. Baixa tensió A la part de baixa tensió dels centres de transformació ens trobarem el pont de baixa tensió i els quadres de baixa amb la corresponent aparamenta. Pont de Baixa Tensió Els ponts de baixa seran els encarregats de subministrar energia elèctrica al quadre de baixa tensió, és a dir unirà elèctricament el secundari del transformador amb el quadre de baixa. La secció del pont de baixa serà de 3(2x240)+1x240 Al. Quadre de baixa tensió El quadre de baixa tensió és un conjunt d’aparamenta de baixa tensió, la funció del qual es rebre el circuit principal de BT procedent del transformador MT/BT i distribuir-lo en circuits individuals amb les diferents sortides. El quadre de baixa tensió serà del tipus AC-4 de ORMAZABAL. Albert Bel Esteller Enginyer TècnicIndustrial en Electricitat 43
  • 45.
    Electrificació Polígon Industrial“Los Campets” Memòria Descriptiva L’estructura del quadre de BT està constituïda per un bastidor metàl·lic sobre el qual es munten les diferents unitats funcionals : unitat d’embarrat, unitat d’escomesa, unitat de protecció i unitat de control. El quadre de baixa tensió ofereix un grau de protecció IP-20 i un grau de protecció contra xocs IK-08 excepte en la part inferior del quadre. Les característiques elèctriques dels quadres de baixa tensió utilitzat seran: - - Tensió nominal: 440 V. - - Int. nominal embarrats: 1000 A. - - Int. nominal sortides: 400 A. - - Aïllament a frec.ind. (1min) - entre fases i a terra: 10 kV. - entre fases : 2,5 kV. - - Aïllament a ona de xoc - Entre fases i a terra : 20 kV. Cada sortida estarà formada per tres cables, un per fase, de secció 240mm2 i un de 150mm2 per al neutre. Les fases estaran protegides per fusibles de 315, 400A (segons normativa ENDESA), mentre que el neutre estarà connectat directament a l’embarrat del quadre. Les connexions dels cables al quadre es realitzen mitjançant terminals bimetàl·lics. En el quadre de BT es distingeixen les següents zones: Zona d’escomesa, mesura i equips auxiliars En la part superior del mòdul AC-4 existeix un compartiment per a l’escomesa en aquest, que es realitza a través d’un passamurs tetrapolar, evitant així la penetració d’aigua a l’interior. Dintre d’aquest compartiment, hi ha quatre platines lliscants que realitzen la funció de seccionador. L’accés a aquest compartiment es realitza per mitjà d’una porta amb frontisses en dos punts. Sobre ella es munten els elements normalitzats per la companyia subministradora. Zona de sortides Aquesta zona està formada per un compartiment que allotja exclusivament l’embarrat i els elements de protecció de cada circuit de sortida. Aquesta protecció es realitza mitjançant fusibles disposats en bases trifàsiques però maniobrades fase a fase, podent-se realitzar maniobres d’obertura en càrrega. 11.2.11 Posta a terra - Les postes a terra s’estableixen principalment amb l’objectiu de limitar la tensió que, amb respecte a terra, puguin presentar en un moment donat les Albert Bel Esteller Enginyer TècnicIndustrial en Electricitat 44
  • 46.
    Electrificació Polígon Industrial“Los Campets” Memòria Descriptiva masses metàl·liques, assegurar l’actuació de les proteccions i eliminar o disminuir el risc que suposa una avaria en els materials elèctrics utilitzats. - La posta o connexió a terra és la unió elèctrica directa, sense fusibles ni cap altra protecció, d’alguna part del circuit elèctric o d’una part conductora no pertanyent al mateix mitjançant una toma de terra amb un elèctrode o grups d’elèctrodes enterrats al sòl. - Amb la instal·lació de posta a terra el que s’aconseguirà és, que en el lloc on la realitzem no apareguin diferències de potencial perilloses, i al mateix temps permeti el pas a terra de les corrents de defecte o les de descàrrega d’origen atmosfèric. - Com ja es dona per sabut, tota instal·lació elèctrica ha de disposar d’una protecció o instal·lació de terra dissenyada de tal manera que en qualsevol lloc accessible de l’interior o exterior de la mateixa on les persones poden circular o permaneixer, aquestes queden sotmeses com a màxim ales tensions de pas i contacte, durant qualsevol defecte en l’esmentada instal·lació elèctrica. - Els centres de transformació incorporen dues instal·lacions de terres, com són la de protecció i la de servei. Terra de protecció La posta a terra de protecció s’instal·la per a prevenir accidents personals. Totes les parts metàl·liques d’una instal·lació que no pertanyen al circuit de corrent de treball han d’estar connectades a terra que al produir-se avaries, inclòs per arcs elèctrics poden entrar en contacte amb peces que estiguin sota tensió. En aquesta primera instal·lació totes les parts metàl·liques no unides als circuits principals de tots els aparells i equips instal·lats en el centre de transformació, s’uneixen a la terra de protecció. És a dir en aquesta terra de protecció s’uneixen les envolvents de les cel·les i quadres de baixa tensió, reixes de protecció, carcasses dels transformadors, armadura metàl·lica de l’edifici, portes metàl·liques del local, chasis i bastidors dels aparells de maniobra, tanques, columnes, suports i pòrtics En canvi, cal fer l’aclariment que no s’hi uniran, les reixes i portes metàl·liques del centre de transformació, si aquestes són accessibles desde el exterior del centre. Terres de servei La posta a terra de servei és la que pertany al circuit de corrent de treball, és a dir, al centre d’estrella de transformadors. També estan inclosos en aquest grup els circuits de terra dels parallamps i altres dispositius de protecció contra sobretensions. La terra de servei es realitza per a evitar tensions perilloses en baixa tensió, degut a faltes en al xarxa d’alta, el neutre del sistema de baixa tensió es connectarà a una posta a terra independent del sistema d’alta tensió, de tal forma que no existeixi influència en la xarxa general de terra. Per a aquesta funció s’utilitza un cable de coure aïllat de (0,6/1 kV). Albert Bel Esteller Enginyer TècnicIndustrial en Electricitat 45
  • 47.
    Electrificació Polígon Industrial“Los Campets” Memòria Descriptiva 11.2.12 Enllumenat del centre de transformació Per a l’enllumenat interior dels CT’s s’instal·laran els punts de llum que facin falta per aconseguir un nivell mitja de 200 Lux. Aquests punts de llum estaran disposats de tal forma que mantindran la màxima uniformitat que es pugui per a garantir la màxima qualitat en la lluminositat. Per a realitzar el càlcul lumínic interior dels CT’s es realitzarà mitjançant el programa Calculux, que ens disposarà els dos punts de llum d’acord amb el nivell mitjà de lluminositat que es necessiti i les característiques de les lluminàries a escollir. 11.2.13 Senyalitzacions i material de seguretat Tant la porta d’accés al CT, com les portes i pantalles de protecció portaran el cartell amb la corresponent senyal triangular distintiva de risc elèctric, segons les dimensions i colors que especifica la recomanació AMYS1.410, model AE-10. Les cel·les prefabricades portaran també la senyal triangular distintiva de risc elèctric. En un lloc ben visible de l’interior del CT es situarà un cartell amb les instruccions de primers auxilis a realitzar en cas d’accident. 11.3 Xarxa de distribució en baixa tensió 11.3.1 Introducció La xarxa de distribució en BT comença en l’armari de baixa tensió, concretament dintre del centre de transformació, i acaba a les caixes BT de cada parcel·la. Justament a l’inici de la xarxa de baixa tensió, les línies de baixa comencen als sòculs dels esmentats armaris de baixa i és en aquests sòculs on es col·loquen els fusibles per a la protecció contra sobeintensitats. És a partir dels fusibles que van sortint cada sortida en cable subterrani 3x1x240+1x150 AL fins a les diverses caixes de baixa tensió instal·lades e cada parcel·la. 11.3.2 Objecte L’objecte de les línies de distribució en baixa tensió, és subministrar energia elèctrica en condicions òptimes, pel que respecta a la saturació i la caiguda de tensió, a totes les parcel·les del polígon. 11.3.3 Descripció de la instal·lació Les línies de baixa tensió parteixen dels quadres de baixa tensió instal·lats en el centre de transformació, concretament dels sòcols que hi ha, on s’hi instal·len els fusibles. El valor dels fusibles dependrà de la intensitat que porti el conductor. A continuació es determinen a partir de tota la distribució de potència que s’ha fet arreu del polígon els quadres i les sortides de cada transformador que hi ha en cada CT del polígon. Albert Bel Esteller Enginyer TècnicIndustrial en Electricitat 46
  • 48.
    Electrificació Polígon Industrial“Los Campets” Memòria Descriptiva Cuadres i ET Trafos Sortides Parcel·les 1 1 C1 S1 1 C1 S2 1 C1 S3 2 C1 S4 2 2 C2 S1 3 C2 S2 3 C2 S3 Lliures C2 S4 Lliures 2 1 C1 S1 4 C1 S2 4 C1 S3 5 C1 S4 5 2 C2 S1 17 C2 S2 17 C2 S3 Arm. Enll ext nº1 C2 S4 Lliures 3 1 C1 S1 6 C1 S2 6 C1 S3 7 C1 S4 7 2 C2 S1 8 C2 S2 8 C2 S3 Lliures C2 S4 Lliures 4 1 C1 S1 9 C1 S2 10 C1 S3 11 C1 S4 12 2 C2 S1 Arm. Enll ext nº2 C2 S2 Lliures C2 S3 Lliures C2 S4 Lliures 5 1 C1 S1 13 C1 S2 14 C1 S3 15 C1 S4 15 2 C2 S1 Lliures C2 S2 Lliures C2 S3 Lliures C2 S4 Lliures 6 1 C1 S1 16 C1 S2 16 C1 S3 18 Albert Bel Esteller Enginyer TècnicIndustrial en Electricitat 47
  • 49.
    Electrificació Polígon Industrial“Los Campets” Memòria Descriptiva C1 S4 18 2 C2 S1 19 C2 S2 19 C2 S3 Lliures C2 S4 Lliures Com es pot veure en aquesta taula cada transformador té un armari de baixa, del qual com a màxim pot treure quatre sortides, en cas que s’hagin de treure més sortides d’un trafo, sempre i quan el trafo estigui en condicions de poder subministrar la potencia demanada, es realitza el que s’anomena una instal·lació d’un armari d’ampliació, que consisteix en instal·lar un altre armari de baixa al costat de l’armari ja existent i així poder tenir quatre sortides més. 11.3.3.1 Secció dels conductors En total, i tal com es pot veure en la taula, hi haurà vuit sortides per CT per a poder aprofitar, quatre per cada armari de baixa i per lo tant, per transformador. Però es pot veure com després de repartir totes les línies per a totes les parcel·les i per a l’enllumenat exterior encara ens quedaran sortides. Totes les sortides estan ocupades per les línies de BT, i aquestes estaran formades per quatre conductors: 3x(1x240)+1x(150) Al. Per a la xarxa de distribució en baixa seran conductors unipolars segon Normativa Endesa CNL00100 tipus RV, 0,6/1kV, aïllament de XLPE. Per lo tant el conductor escollit es un conductor RV 0,6/1 kV 3x1x240+1x150 Al, on les tres fases tindran una secció de 240 Al i el neutre tindrà una secció e 150 Al. A continuació i en relació amb la taula d’abans que determinava les parcel·les amb els centres de transformació i els transformadors, s’ha realitzat una taula resum dels resultats obtinguts en la memòria de càlcul. On es poden veure les sortides doblades dels quadres de baixa tensió, amb la saturació i la caiguda que ens donaria amb el conductor d’alumini de 3x1x240+1x150 RV 0,6/1kV escollit per a estendre al polígon, ja sigui en circuit simple com es el cas de les parcel·les 9,10,11,12,13 i 14, com pot ser en circuits doblats del tipus de conductor esmentat com es el cas de la resta de parecl·les. Saturació cdt parcial cdt parcial Parcel·les C/S (%) [V] % 1 C1 S1 i S2 51,701 2,182 0,546 2 C1 S3 i S4 51,701 1,372 0,343 3 C2 S1 i S2 56,058 2,366 0,591 4 C1 S1 i S2 80,212 1,451 0,363 5 C1 S3 i S4 44,634 3,767 0,942 6 C1 S1 i S2 51,090 0,924 0,231 7 C1 S3 i S4 53,020 0,959 0,240 8 C2 S1 i S2 43,711 5,534 1,384 9 C1 S1 38,942 1,409 0,352 10 C1 S2 34,174 1,030 0,258 Albert Bel Esteller Enginyer TècnicIndustrial en Electricitat 48
  • 50.
    Electrificació Polígon Industrial“Los Campets” Memòria Descriptiva 11 C1 S3 29,406 1,241 0,310 12 C1 S4 24,637 2,377 0,594 13 C1 S1 0,000 0,599 0,150 14 C1 S2 19,869 0,880 0,220 15 C1 S3 i S4 24,339 6,749 1,687 16 C1 S1 i S2 111,932 1,626 0,406 17 C2 S1 i S2 44,939 0,722 0,180 18 C1 S3 i S4 23,942 4,830 1,208 19 C2 S1 i S2 42,164 15,035 3,759 Albert Bel Esteller Enginyer TècnicIndustrial en Electricitat 49
  • 51.
    Electrificació Polígon Industrial“Los Campets” Memòria Descriptiva 11.3.4 Proteccions de la xarxa de BT contra sobreintensitats:fusibles FUSIBLES I sortida 315 222,3125 315 222,3125 315 241,05 400 344,9125 315 191,925 315 219,6875 315 227,9875 315 187,95625 400 334,9 400 293,9 315 252,8875 315 211,875 315 170,875 315 209,3125 400 350 315 193,2375 315 102,95 315 181,30625 400 350 Com abans s’ha avançat els armaris de baixa estan formats per diferents sòcols que es col·loquen en cada sortida de l’armari de baixa i que serveixen per a poder col·locar els fusibles per a les línies de baixa, i per lo tan la protecció contra sobreintensitat d’aquestes. Els fusible escollits per a cada sortida dels armaris de baixa són els determinats en la taula i s’encarreguen d’obrir el circuit en cas de que la intensitat sigui superior a la intensitat de tall de cada fusible, amb això el que s’aconsegueix és evitar que les sobreintensitats que hi puguin haver no deteriorin la xarxa subterrània de baixa tensió. 11.3.5 Caixes Generals de Protecció i Caixes de Seccionament Segons Normativa Endesa, el sol·licitant de cada parcel·la haurà d’aportar i instal·lar les diferents caixes en lloc permanentment accessible des de via pública per a poder rebre en condicions les línies de baixa que subministren cada parcel·la. Les diferents caixes BT que s’instal·laran en aquest polígon seran les següents: - CGP>630 A-(No Nomalitzades) - CGP-9-630 A - Caixa de Seccionament+CGP-9-400A A continuació apareix una taula on es pot veure en cada parcel·la la caixa o conjunt de caixes que es posarà en el polígon en cada parcel·la: Albert Bel Esteller Enginyer TècnicIndustrial en Electricitat 50
  • 52.
    Electrificació Polígon Industrial“Los Campets” Memòria Descriptiva Parcel·les tipus caixa I sortida I total 1 CGP-9-630A 222,3125 444,625 2 CGP-9-630A 222,3125 444,625 3 CGP-9-630A 241,05 482,1 4 CGP>630 A 344,9125 689,825 5 C.S+CGP 191,925 383,85 6 CGP-9-630A 219,6875 439,375 7 CGP-9-630A 227,9875 455,975 8 C.S+CGP 187,95625 375,9125 9 C.S+CGP 334,9 334,9 10 C.S+CGP 293,9 293,9 11 C.S+CGP 252,8875 252,8875 12 C.S+CGP 211,875 211,875 13 C.S+CGP 170,875 170,875 14 C.S+CGP 209,3125 209,3125 15 CGP>630 A 350 700 16 C.S+CGP 193,2375 386,475 17 C.S+CGP 102,95 205,9 18 C.S+CGP 181,30625 362,6125 19 CGP>630 A 350 700 12 Obra Civil Es considerarà obra civil a l’execució de les rases i les cementacions necessàries en tota la instal·lació. Les rases tindran característiques diferents segons el número i el tipus de línies que continguin, i també segons si el traçat es per la vorera o bé es fa un creuament de calçada. 12.1 Rases Es realitzaran rases per a conduir les línies de manera subterrània a través del polígon, des d’allà on derivarem passat per tots els centres de transformació en MT, des dels CT’s fins a les diferents CGP i Caixes de Seccionament i entre lluminàries.. El C.S 3x1x240+1x150 Al s’estendrà dintre de les rases prèviament fetes. Segons el trajecte de les línies i la quantitat de cables conductors que estiguin en una mateixa rasa, aquestes tindran característiques i dimensions diferents. Els diferents tipus de rases seran els següents: Rases amb Línia d’Enllumenat sota vorera 1C Serà de 60 cm de profunditat per 40 cm d’amplada . El fons es recobrirà amb una capa de 10 cm de terra cribada. Es col·locarà en la part central de la rasa el tub de PVC que acollirà els cables de l’enllumenat exterior del polígon. Es recobrirà el tub amb una capa de sorra fina de 15 cm de gruix. Posteriorment es reomplirà la rasa amb material porgat sense pedres superiors a 8 cm i compactat al 95% PM. Finalment es col·locaran les lloses normals sobre la vorera. Albert Bel Esteller Enginyer TècnicIndustrial en Electricitat 51
  • 53.
    Electrificació Polígon Industrial“Los Campets” Memòria Descriptiva Rasa amb Línia d’Enllumenat 1C Sota vorera Serà de 60 cm de profunditat per 60 cm d’amplada. El fons de la rasa es deixarà net de pedres i es farà un llit de formigó de resistència característica H-125 de 10 cm de gruix, col·locant dos tubs de PVC llis, de 11 cm de diàmetre i 3,2 mm de gruix, i cobrint-lo amb formigó H-125 fins 15 cm per sobre del tub. La resta de la rasa s’omplirà amb formigó pobre, situant una malla de senyalització de 30 cm d’amplada, 10 cm per sobre del dau de formigó. Rasa amb línia BT 1C sota vorera La rasa será de 80 cm de profunditat per 40 cm. El fons es recobrirà amb una capa de 5 cm de terra cribada. Just al centre de la rasa i a 5 cm de la part inferior de la rasa es col·locarà el conductor de BT. Es cobrirà tot amb terra cribada, a uns 20 cm de la part inferior es col·locarà la placa de senyalització i es continuarà cobrint tot de terra cribada fins a aribar a 30 cm. A partir d’aquí es començarà a omplir amb capes de terra ben compactades uns 40 cm fin arribar a la part superior de la rasa on es col·locaran les lloses de la vorera. Cal dir que a 25 cm de la part superior de les lloses es col·locarà la malla de senyalització. Rasa amb línia BT 2C sota vorera La rasa serà de 80 cm de profunditat per 60 cm. El fons es recobrirà amb una capa de 5 cm de terra cribada. Al damunt es col·locaran els 2 conductors BT a una distància entre ells de 25 cm longitudinals. Es cobrirà tot amb terra cribada, a uns 20 cm de la part inferior es col·locaran les plaques de senyalització i es continuarà cobrint tot de terra cribada fins a aribar a 30 cm. A partir d’aquí es començarà a omplir amb capes de terra ben compactades uns 40 cm fins arribar a la part superior de la rasa on es col·locaran les lloses de la voerera. Cal dir que a uns 25 cm de la part superior de les lloses es col·locaran les malles de senyalització. Rasa amb línia BT 3C sota vorera. La rasa serà de 80 cm de profunditat per 60 cm. El fons es recobrirà amb una capa de 5 cm de terra cribada. Al damunt es col·locara el conductor BT a la part inferior esquerra. Es cobrirà tot amb terra cribada, a uns 15 cm de la part inferior es col·locarà la placa de senyalització i es continuarà cobrint tot de terra cribada fins a arribar a 30 cm que es col·locarà la malla de senyalització. Just al damunt d’aquesta es col·locaran els altres dos conductors de BT separats entre ells 25 cm longitudinals. A uns 10 cm d’aquests es col·locaran les plaques de senyalització. A partir d’aquí es començarà a omplir la rasa amb capes de terra ben compactades fins a la part superior de la rasa. Cal dir que a 25 cm de la part superior de les lloses de la vorera es col·locaran les malles de senyalització. Albert Bel Esteller Enginyer TècnicIndustrial en Electricitat 52
  • 54.
    Electrificació Polígon Industrial“Los Campets” Memòria Descriptiva Rasa amb línia BT 4C sota vorera. La rasa serà de 80 cm de profunditat per 60 cm. El fons es recobrirà amb una capa de 5 cm de terra cribada. Al damunt es col·locaran els dos conductors BT separats entre ells 25 cm longitudinals. Es cobrirà tot amb terra cribada, a uns 15 cm de la part inferior es col·locarà les plaques de senyalització i es continuarà cobrint tot de terra cribada fins a arribar a 30 cm que es col·locaran les malles de senyalització. Just al damunt d’aquesta es col·locaran els altres dos conductors de BT separats entre ells 25 cm longitudinals. A uns 10 cm d’aquests es col·locaran les plaques de senyalització. A partir d’aquí es començarà a omplir la rasa amb capes de terra ben compactades fins a la part superior de la rasa. Cal dir que a 25 cm de la part superior de les lloses de la vorera es col·locaran les malles de senyalització. Rasa amb Línia MT 1C – Línia distribució en BT 2C Sota Calçada - Línia d’Enllumenat exterior 1C.(6 TF) La rasa tindrà 100 cm de profunditat per 75 cm d’amplada. El fons de la rasa es deixarà net de pedres i es farà un llit de formigó de resistència característica H-125 (formigó de neteja). A uns 5 cm es col·locaran tres tubs de fibrociment, de 15 cm de diàmetre, situats a una distància longitudinal entre ells de 25 cm entre centres. Es recobrirà amb formigó H-125 fins que els tubs estiguin coberts entre 5 i 10 cm per sobre, llavors es col·locarà una malla de senyalització i es tornarà a omplir del mateix formigó una capa de 10 cm de gruix. Damunt d’aquesta última capa es col·locaran tres tubs més alineats de la mateixa forma que estaven els tres anteriors separats 25 cm i es tornarà a fer el mateix procés, és a dir s’omplirà del mateix formigó una capa de 10 cm de gruix. I damunt del formigó es col·locarà terra ben compactada uns 60 cm fins arribar a la superfície. Es farà passar la línia d’A.T per un dels dos tubs inferiors i la línia d’enllumenat per un dels dos superiors. Es deixaran dos tubs lliures. Rasa amb línia MT 1C-Distribució BT 4C-Línia enllumenat 1C sota vorera La rasa tindrà 90 cm de profunditat i per 60 cm d’amplada. El fons de la rasa es deixarà net de pedres. La rasa s’omplirà uns 5 cm amb terra cribada i es col·locaran dos conductors, un de MT i l’altre de distribució en baixa separats entre ells 25 cm longitudinals. Es continuarà omplint de terra cribada la rasa uns 10 cm i es posaran les les plaques de senyalització. Es continuarà omplint la rasa amb terra cribada fins a arribar a una distància de 20 cm dels primers conductors col·locats, i es posaran les malles de senyalització tal com s’indica als plànols de rases. Es continuarà omplint un parell de cm més i es col·locaran dos conductors més alineats amb els anteriors, en aquest cas els dos de distribució en baixa. Es seguirà el mateix procediment de plaques i malles de senyalització, fet en primera instància fins arribar als 20 cm de referència amb els segons conductors col·locats, i es col·locaran dos conductors més, en aquest últim cas es col·locaran un conductor de distribució en baixa i un d’enllumenat exterior, aquest últim dintre d’un tub de formigó d’uns 15 cm de diàmetre, es col·locarà la placa de senyalització i a partir de llavors es Albert Bel Esteller Enginyer TècnicIndustrial en Electricitat 53
  • 55.
    Electrificació Polígon Industrial“Los Campets” Memòria Descriptiva deixarà d’omplir la rasa en terra cribada i es començarà a omplir amb capes de terra ben compactada fins arribar a la superfície on es col·locaran les lloses de la vorera. Rasa amb línia MT 1C-Distribució BT 4C sota vorera Serà el mateix cas que en l’anterior tipus de rasa però sense tenir en compte la línia d’enllumenat, i deixant la part inferior dreta de la secció de rasa lliure, tal com es pot veure en el plànol. Rasa amb línia MT 1C - Línia BT 3C sota vorera La rasa tindrà 90 cm de profunditat per 60 cm d’amplada. . El fons de la rasa es deixarà net de pedres. La rasa s’omplirà uns 5 cm amb terra cribada i es col·locaran dos conductors, un de MT i l’altre de distribució en baixa separats entre ells 25 cm longitudinals. A 15 cm d’altura respecte els conductors es col·locaran les plaques de senyalització. Es continuarà omplint de terra cribada la rasa uns 10 cm més, llavors es col·locaran els altres dos conductors de distribució en baixa i es continuarà omplint amb terra cribada un 10 cm posant en aquesta distància les plaques de senyalització. A partir d’aquest moment es continuarà omplint la rasa uns 40 cm amb capes de terra ben compactades fins arribar a al superfície on es col·locaran les lloses de la vorera. Rasa amb línia MT 1C - Línia BT 2C sota vorera La rasa tindrà 90 cm de profunditat per 60 cm d’amplada. . El fons de la rasa es deixarà net de pedres. La rasa s’omplirà uns 5 cm amb terra cribada i es col·locara el conductor de MT a la part inferior esquerra de la secció de la rasa. A 15 cm d’altura respecte el conductor es col·locaran la placa de senyalització. Es continuarà omplint de terra cribada la rasa uns 10 cm més, llavors es col·locaran els altres dos conductors de distribució en baixa i es continuarà omplint amb terra cribada un 10 cm posant en aquesta distància les plaques de senyalització. A partir d’aquest moment es continuarà omplint la rasa uns 40 cm amb capes de terra ben compactades fins arribar a al superfície on es col·locaran les lloses de la vorera. Rasa amb línia MT 1C - Línia BT 1C sota vorera La rasa tindrà 90 cm de profunditat per 60 cm d’amplada. . El fons de la rasa es deixarà net de pedres. La rasa s’omplirà uns 5 cm amb terra cribada i es col·locaran dos conductors, un de MT i l’altre de distribució en baixa separats entre ells 25 cm longitudinals. Es continuarà omplint de terra cribada la rasa uns 25 cm i es posaran les plaques de senyalització. Es continuarà omplint de terra cribada la rasa uns 10 cm. Llavors es començarà a omplir la rasa amb capes de terra ben compactades fin arribar a la superfície on es col·locaran les lloses de la vorera. Albert Bel Esteller Enginyer TècnicIndustrial en Electricitat 54
  • 56.
    Electrificació Polígon Industrial“Los Campets” Memòria Descriptiva Rasa amb línia MT 1C - Línia BT 1C sota vorera- Línia enllumenat exterior 1C sota vorera La rasa tindrà 90 cm de profunditat per 60 cm d’amplada. . El fons de la rasa es deixarà net de pedres. La rasa s’omplirà uns 5 cm amb terra cribada i es col·locaran dos conductors, un de MT i l’altre de distribució en baixa separats entre ells 25 cm longitudinals. Es continuarà omplint de terra cribada la rasa uns 25 cm i es posaran les plaques de senyalització. Es continuarà omplint de terra cribada la rasa uns 10 cm. Es seguirà el mateix procediment de plaques i malles de senyalització, fet en primera instància fins arribar als 20 cm de referència amb els conductors col·locats, i es col·locaran un conductor més, tal com es pot veure en el plànol de rases, concretament en aquesta rasa, en aquest últim cas es col·locarà un conductor d’enllumenat exterior dintre d’un tub de formigó d’uns 15 cm de diàmetre, es col·locarà la placa de senyalització i a partir de llavors es deixarà d’omplir la rasa en terra cribada i es començarà a omplir amb capes de terra ben compactada fins arribar a la part superior on tal com s’indica en els plànols es col·locaran les lloses de la vorera. Llavors es començarà a omplir la rasa amb capes de terra ben compactades fin arribar a la superfície on es col·locaran les lloses de la vorera. Rasa amb línia MT 1C - Línia enllumenat exterior 1C sota vorera La rasa tindrà 90 cm de profunditat per 60 cm d’amplada. . El fons de la rasa es deixarà net de pedres. La rasa s’omplirà uns 5 cm amb terra cribada i es col·locaran dos conductors, un de MT i l’altre d’enllumenat exterior separats entre ells 25 cm longitudinals. Es continuarà omplint de terra cribada la rasa uns 25 cm i es posaran les plaques de senyalització. Es continuarà omplint de terra cribada la rasa uns 10 cm. Llavors es començarà a omplir la rasa amb capes de terra ben compactades fins arribar a la superfície on es col·locaran les lloses de la vorera. Rasa amb línia BT 2C - Línia enllumenat exterior 1C sota vorera La rasa tindrà 90 cm de profunditat i per 60 cm d’amplada. El fons de la rasa es deixarà net de pedres. La rasa s’omplirà uns 5 cm amb terra cribada i es col·locaran dos conductors de BT separats entre ells 25 cm longitudinals. Es continuarà omplint de terra cribada la rasa uns 10 cm i es posaran les les plaques de senyalització. Es continuarà omplint la rasa amb terra cribada fins a arribar a una distància de 20 cm dels primers conductors col·locats, i es posaran les malles de senyalització tal com s’indica als plànols de rases. Es continuarà omplint un parell de cm més i es col·locarà 1 conductor més alineat amb un dels anteriors, en aquest cas de distribució d’enllumenat exterior dintre d’un tub de formigó d’uns 15 cm de diàmetre, es col·locarà la placa de senyalització i a partir de llavors es deixarà d’omplir la rasa en terra cribada i es començarà a omplir amb capes de terra ben compactada fins arribar a la part superior on tal com s’indica en els plànols es col·locaran les lloses de la vorera. Albert Bel Esteller Enginyer TècnicIndustrial en Electricitat 55
  • 57.
    Electrificació Polígon Industrial“Los Campets” Memòria Descriptiva Rasa amb línia MT 1C-Distribució BT 3C-Línia enllumenat 1C sota vorera La rasa tindrà 90 cm de profunditat i per 60 cm d’amplada. El fons de la rasa es deixarà net de pedres. La rasa s’omplirà uns 5 cm amb terra cribada i es col·locaran dos conductors, un de MT i l’altre de distribució en baixa separats entre ells 25 cm longitudinals. Es continuarà omplint de terra cribada la rasa uns 10 cm i es posaran les les plaques de senyalització. Es continuarà omplint la rasa amb terra cribada fins a arribar a una distància de 20 cm dels primers conductors col·locats, i es posaran les malles de senyalització tal com s’indica als plànols de rases. Es continuarà omplint un parell de cm més i es col·locaran dos conductors més alineats amb els anteriors, en aquest cas els dos de distribució en baixa. Es seguirà el mateix procediment de plaques i malles de senyalització, fet en primera instància fins arribar als 20 cm de referència amb els segons conductors col·locats, i es col·locaran un conductor més, tal com es pot veure en el plànol de rases, concretament en aquesta rasa, en aquest últim cas es col·locarà un conductor d’enllumenat exterior dintre d’un tub de formigó d’uns 15 cm de diàmetre, es col·locarà la placa de senyalització i a partir de llavors es deixarà d’omplir la rasa en terra cribada i es començarà a omplir amb capes de terra ben compactada fins arribar a la part superior on tal com s’indica en els plànols es col·locaran les lloses de la vorera. Rasa amb Línia MT 1C - Línia distribució en BT 2C Sota Calçada (4 TUBS FORMIGONATS) La rasa tindrà 100 cm de profunditat per 75 cm d’amplada. El fons de la rasa es deixarà net de pedres i es farà un llit de formigó de resistència característica H-125 (formigó de neteja). A uns 5 cm es col·locaran quatre tubs de fibrociment, de 15 cm de diàmetre, situats a una distància longitudinal entre ells de 20 cm entre centres. Es recobrirà amb formigó H-125 fins que els tubs estiguin coberts entre 5 i 10 cm per sobre, llavors es col·locarà una malla de senyalització i es tornarà a omplir del mateix formigó una capa de 10 cm de gruix fins a arribar als 30 cm establerts per al formigó H-125 per aquest tipus de rasa. Damunt del formigó es col·locarà terra ben compactada uns 70 cm fins arribar a la superfície. Cal dir que en aquesta rasa hi haurà 2C de distribució en BT i un circuit de distribució en MT i sempre en el cas que es creui la calçada es deixarà com a mínim un tub formigonat lliure per a que en cas d’avaria poder passar un altre circuit. Rasa amb Línia distribució BT 2C Sota Calçada (4 TF) La rasa tindrà 100 cm de profunditat per 75 cm d’amplada. El fons de la rasa es deixarà net de pedres i es farà un llit de formigó de resistència característica H-125 (formigó de neteja). A uns 5 cm es col·locaran quatre tubs de fibrociment, de 15 cm de diàmetre, situats a una distància longitudinal entre ells de 20 cm entre centres. Es recobrirà amb formigó H-125 fins que els tubs estiguin coberts entre 5 i 10 cm per sobre, llavors es col·locarà una malla de senyalització i es tornarà a omplir del mateix formigó una capa de 10 cm de gruix fins a arribar als 30 cm establerts per al formigó H-125 per aquest tipus de rasa. Albert Bel Esteller Enginyer TècnicIndustrial en Electricitat 56
  • 58.
    Electrificació Polígon Industrial“Los Campets” Memòria Descriptiva Damunt del formigó es col·locarà terra ben compactada uns 70 cm fins arribar a la superfície. Cal dir que en aquesta rasa hi haurà 2C de distribució en BT i sempre en el cas que es creui la calçada es deixarà com a mínim un tub formigonat lliure, en aquest cas es de dos tubs lliures, per a que en cas d’avaria poder passar d’altres circuits necessaris. Rasa amb Línia distribució MT 1C Sota Calçada (2 TF) La rasa tindrà 90 cm de profunditat per 40 cm d’amplada. El fons de la rasa es deixarà net de pedres i es farà un llit de formigó de resistència característica H-125 (formigó de neteja). A uns 6 cm es col·locaran 2 tubs de fibrociment, de 15 cm de diàmetre, situats a una distància longitudinal entre ells de 20 cm entre centres. Es recobrirà amb formigó H-125 fins que els tubs estiguin coberts entre 5 i 10 cm per sobre, llavors es col·locarà una malla de senyalització i es tornarà a omplir del mateix formigó una capa de 10 cm de gruix fins a arribar als 30 cm establerts per al formigó H-125 per aquest tipus de rasa. Damunt del formigó es col·locarà terra ben compactada uns 70 cm fins arribar a la superfície. Cal dir que en aquesta rasa hi haurà 2C de distribució en BT i sempre en el cas que es creui la calçada es deixarà com a mínim un tub formigonat lliure, en aquest cas es de dos tubs lliures, per a que en cas d’avaria poder passar d’altres circuits necessaris. Rasa amb Línia distribució MT 1C Sota Vorera La rasa tindrà 90 cm de profunditat per 40 cm d’amplada. El fons de la rasa es deixarà net de pedres. Llavors s’anirà omplint amb terra cribada fina arribar a uns 6 cm des de la part inferior de la rasa, que es col·locarà el conductor de MT. Una vegada col·locat es continuarà amb terra cribada fins arribar a 30 cm que es on es col·locarà la placa de senyalització. Una vegada ja s’hagi omplert la rasa es procedirà a fer el peu de morter per a poder col·locar les lloses per a la vorera. 12.2 Arquetes de registre Es construiran arquetes en els punts de les línies en que sigui necessari fer una ramificació o connexió, o en canvis de direccions amb angles mot tancats. Complint amb les instruccions de la NTE, es realitzarà amb formigó de resistència característica H-250 i un gruix de les parets de 15 cm, les dimensions interiors seran de 0,6 m x 0,6 m i la profunditat de 0,85 m. Els tubs es situaran a una distància de 10 cm del fons on s’hi haurà dipositat una capa de grava gruixuda de 15 cm de profunditat per facilitar el drenatge. L’arqueta estarà dotada de marc i tapa d’acer fos segons norma UNE 36118-73, l’anclatge del marc estarà constituït per quatre esquadres situades en el centre de cada cara, de 5 cm de profunditat, 5 cm de sortint i 10 cm d’ample. 12.3 Cementacions Les cementacions que esmentarem a continuació seran les cementacions que es realitzaran en els suports de les lluminàries. Les cementacions dels suports dels punts de llum es realitzaran amb formigó de resistència característica H-200, amb forma de dau de Albert Bel Esteller Enginyer TècnicIndustrial en Electricitat 57
  • 59.
    Electrificació Polígon Industrial“Los Campets” Memòria Descriptiva 0,75 m d’amplada per 0,95 m de profunditat, contindran els tubs de plàstic coarrugat de diàmetre 110 necessaris per passar els cables d’alimentació. A banda tal com s’indica en el croquis adjunt del detall de la cementació es col·locaran quatre ancoratges de M-16 amb l’extrem exterior roscat que subjectaran la base dels suports. En el plànol de Detall del Bàcul apareixen les cementacions detallades. També es realitzaran les cementacions de l’armari de comandament, sobre les quals reposarà el sòcol de l’armari. Les dimensions, les quals apareixen detallades en el plànol de l’Armari de Comandament, són 1,2 m d’amplada, 0,5 m de longitud i 0,5 m de profunditat. Es col·locarà un tub de PVC de 12 cm de diàmetre per a l’entrada dels conductors i un altre per la sortida dels conductors. 13 Enllumenat exterior del polígon Industrial “Los Campets” 13.1 Introducció Nomenem a l’enllumenat exterior, a tota la instal·lació que es necessita per poder il·luminar el polígon industrial, des dels armaris d’enllumenat, passant pels conductors que seran de coure amb una secció de 6mm2, realitzant entrada/sortida en cada lluminària, característiques tècniques de cada lluminària, els tipus de suports amb les característiques d’aquests, i les característiques luminotècniques que ens donarà el conjunt de la instal·lació una vegada estigui en funcionament tota la instal·lació. 13.2 Objecte L’objecte de l’enllumenat exterior, és, a partir d’unes determinades necessitats i requisits de disseny del sol·licitant , poder il·luminar el polígon industrial “Los Campets”. 13.3 Requisits de disseny Els requisits de disseny que s’han tingut en compte alhora de realitzar l’enllumenat exterior, són les determinades per l’Ajuntament d’Alcanar. En aquest aspecte, el sol·licitant degut a la manca de legislació que hi ha en aquest tema de l’enllumenat, s’ha basat en els requeriments establerts en les instruccions tècniques complementàries generals d’enllumenat públic A-IT-G1. Concretament les instruccions utilitzades alhora de realitzar el càlcul exterior del polígon es poden veure en la memòria de càlcul. En el cas de la il·luminància mitja que es volia alhora de realitzar els càlculs es va determinar a partir de la taula que hi ha a continuació. Sempre tenint una previsió de l’activitat que podia tenir el polígon per la nit i respectant la contaminació lumínica, un terme molt important, últimament, degut a la consciència que té la gent per a despilfarrar energia, com a exemple que es pot donar, son les boles blanques que es ficaven abans sense reflectors a la part superior de la llumenera, cosa que feia que molt llum sortís reflectida cap al cel, i fent impossible la visiblitat de les estrelles. Albert Bel Esteller Enginyer TècnicIndustrial en Electricitat 58
  • 60.
    Electrificació Polígon Industrial“Los Campets” Memòria Descriptiva 13.4 Abast de la instal·lació Es dotarà d’enllumenat exterior tots els carrers del polígon, des de l’entrada al polígon, vora la rotonda existent a la carretera d’Alcanar TV-3321, fins al carrer de sota, a la part posterior. 13.5 Descripció de la instal·lació La instal·lació d’enllumenat exterior serà a 220 V en monofàsic, degut a la potència que hi tindrem, 8 kW en cada armari. D’aquest aspecte podem informar que segon Normativa Endesa, concretament en la guia Vademécum de FECSA-ENDESA per a instal·lacions d’enllaç, on es pot veure que fins una potència de 13,8 kW el subministrament es realitza e 220 V en monofàsic, i en aquest armari el que es col·loca es un conjunt de protecció i mesura per a enllumenat públic en monofàsic, per una banda i a l’altra banda s’instal·la el control del client, amb els temporitzadors, magnetotèrmics, diferencials que controlin la instal·lació. 13.6 Secció dels conductors Els conductors de la xarxa d’enllumenat, estan formats per una fase i un neutre, ja que com s’ha dit es un subministrament monofàsic. Així que, la secció dels conductors per a l’enllumenat exterior es de 6mm2. Els conductors que s’utilitzaran seran conductors de coure unipolars amb aïllament de polietilè reticulat tipus UNE RV 0,6/1 kV. Tal com s’ha calculat en la memòria de càlcul, la secció dels conductors de cada línia d’enllumenat es de 6mm2 de coure. Per als neutres es faran servir conductors de la mateixa secció que els de fase, tal i com s’estableix en la instrucció ITC-BT 07. 13.7 Lluminàries i suports Els suports que s’utilitzaran en el polígon industrial “Los Campets” seran del tipus AM-10, tal com s’indica en el plànol de columna i bàcul, on està el detall dels suports que s’utilitzaran. Els suports seran bàculs que faran que les lluminàries sobresurtin de la vorera i que estiguin al damunt de la calçada, els bàculs seran de 9m d’alçada, es col·locaran en disposició portell separats entre les lluminàries 30 m. A partir d’aquestes dades s’han realitzat tots el càlculs luminotècnics amb el programa informàtic CALCULUX. En els annexes adjunts, està tot el càlcul luminotècnic de l’enllumenat exterior de cada carrer del polígon industrial. 13.8 Presa a terra de l’Enllumenat Exterior La presa a terra dels bàculs de les lluminàries, es realitzarà connectant individualment cada suport, mitjançant un conductor de protecció de coure, a la línia principal de terra de coure, la qual estarà unida en un extrem a un elèctrode mitjançant una línia d’enllaç. Albert Bel Esteller Enginyer TècnicIndustrial en Electricitat 59
  • 61.
    Electrificació Polígon Industrial“Los Campets” Memòria Descriptiva A la memòria de càlcul hi ha amb molt més detall, tots els càlculs que s’han realitzat, amb tots els elements que conformen la presa a terra de l’enllumenat exterior. 13.9 Proteccions 13.9.1 Contra contactes directes La instal·lació es realitzarà de manera que les parts actives de la instal·lació no siguin accessibles a les persones, triant convenientment els materials a utilitzar per a que la seva manipulació es faci amb la utilització d’eines especials. 13.9.2 Contra contactes indirectes. D’acord amb la ITC-BT-09 apartat 6, totes les columnes estaran connectades a terra, de manera que la resistència òhmica segons la ITC 09 apartat 9 , no pugui donar tensions de contacte perilloses per a les persones, serà inferior a 37 Ω. Per a evitar això s’ha previst un interruptor diferencial amb una sensibilitat de 0,03 A. 14 Planificació i Programació La planificació i la programació per a la realització de les obres del present projecte es determinaran amb el contractista de l’obra tenint en compte les condicions i directrius que s’estableixen en el plec de condicions del projecte. 15 Posta en Marxa i Funcionament Una vegada s’hagin acabat tots els treballs per a poder posar en marxa el polígon, es portarà a cap la comprovació del correcte funcionament dels elements que formen la totalitat del polígon, per a la seva legalització i la posterior posada en marxa, aquests temes de posta en marxa estan determinats en la instrucció ITC-BT-04. Per a poder sol·licitar l’alta en el subministrament del polígon, tal com s’indica en la ITC-BT-04, el titular de la instal·lació haurà de sol·licitar el subministrament d’energia a l’empresa subministradora mitjançant el corresponent exemplar del certificat de la instal·lació. I així l’empresa podrà realitzar al seu càrrec les verificacions que consideri oportunes, en lo que es refereix en el compliment de les prescripcions del Reglament de Baixa Tensió. Es en aquest cas quan els valors obtinguts en la indicada verificació no siguin els senyalats com a correctes en la instrucció ITC-BT-19, l’empresa subministradora no podrà connectar a les seves xarxes les instal·lacions receptores. Així doncs, les comprovacions de les línies d’ A.T les farà la companyia de distribució i a la part de la instal·lació de B.T els assajos a realitzar seran: Albert Bel Esteller Enginyer TècnicIndustrial en Electricitat 60
  • 62.
    Electrificació Polígon Industrial“Los Campets” Memòria Descriptiva Prova de continuïtat La prova de continuïtat es realitzarà mitjançant el mètode de timbrat. Es comprovarà l’absència de tensió a la línia a provar i es prendran precaucions necessàries si existeixen equips en tensió en les proximitats. S’identificaran els extrems dels conductors i es comprovarà la seva continuïtat. Mesura de la resistència d’aïllament i rigidesa dielèctrica Aquest assaig es realitzarà d’acord amb la instrucció ITC-BT-19. Per efectuar la prova es desconnectaran els sistemes de protecció de les línies. L’aïllament es mesurarà amb relació a terra i entre conductors, mitjançant l’aplicació de tensió continua d’entre 500 i 1.000 V. Per la mesura de la rigidesa dielèctrica es desconnectaran tots els receptors i els interruptors automàtics i s’aplicarà durant un minut una tensió mínima de 1500 volts a 50 Hz. L’assaig s’efectuarà per cada conductor amb relació al terra i els altres conductors. Comprovació de la resistència de la posta a terra Es realitzarà la mesura de la resistència de posta a terra mitjançant un teluròmetre. La resistència haurà de ser inferior al valor indicat per la companyia subministradora d’energia elèctrica. 16 Resum del pressupost La construcció i instal·lació de tots els elements que formen la electrificació i il·luminació del Polígon Industrial “Los Campets” puja a la quantitat: TOTAL PRESSUPOST D’EXECUCIÓ PER CONTRATA 556.650,40 € PRESSUPOST GLOBAL DE LICITACIÓ 645.714,46 € Alcanar, 22 d’Agost de 2004 Albert Bel Esteller Enginyer Tècnic Industrial en Electricitat Albert Bel Esteller Enginyer TècnicIndustrial en Electricitat 61
  • 63.
    Electrificació Polígon Industrial“Los Campets” Annex de Càlcul Annex de Càlcul AUTORS: Albert Bel Esteller DIRECTORS: J. J. Tena Tena. DATA: Setembre / 2004. Albert Bel Esteller Enginyer Tècnic Industrial en Electricitat 1
  • 64.
    Electrificació Polígon Industrial“Los Campets” Annex de Càlcul Índex de l’Annex de Càlcul Índex de l’Annex de Càlcul ......................................................................................2 1 Previsió de potència............................................................................................4 1.1 Càlcul de la potència prevista......................................................................4 2 Línia Subterrània de Mitja Tensió.......................................................................6 2.1 Càlcul de la secció dels conductors.............................................................6 2.1.1 -Intensitat admissible en règim permanent...........................................7 2.1.2 Intensitat de curtcircuit........................................................................8 2.1.3 Caiguda de tensió ................................................................................9 2.1.4 Potència màxima a transportar pel conductor escollit ........................11 3 Centres de transformació ..................................................................................12 3.1 Intensitat en Mitja Tensió .........................................................................12 3.2 Intensitat en Baixa Tensió .........................................................................12 3.3 Càlcul de corrents de curtcircuits ..............................................................12 3.3.1 Corrents de curtcircuit al primari del centre de transformació............13 3.4 Justificació del Sistema de Ventilació .......................................................16 3.5 Càlcul de les preses a terra en el centre de transformació ..........................18 3.5.1 Consideracions prèvies a tenir en compte per realitzar el càlcul.........18 3.5.2 Seguretat de les persones...................................................................19 3.5.3 Sobretensions perilloses per a la instal·lació ......................................20 3.5.4 Limitació del valor mínim del corrent de defecte...............................20 3.5.5 Càlcul de la Xarxa de Terres .............................................................22 3.5.6 Càlcul dels Valors Màxims Admissibles que Poden Aparèixer en la Instal·lació 26 3.5.7 Posta a Terra dels Neutres dels Transformadors ................................27 3.5.8 Elecció de l’elèctrode tipus i càlcul de les terres................................28 Albert Bel Esteller Enginyer Tècnic Industrial en Electricitat 2
  • 65.
    Electrificació Polígon Industrial“Los Campets” Annex de Càlcul 3.6 Estimació y previsió dels transformadors dels CT’s ..................................29 3.6.1 Previsió de subministraments de parcel·les per transformadors..........29 3.6.2 Previsió de subministraments de parcel·les amb la previsió de potència per a l’enllumenat exterior del polígon .....................................................................30 3.6.3 Previsió de futures ampliacions de transformadors ............................31 3.7 Sortides de l’armari de Baixa tensió dels transformadors dels centres de transformació ...............................................................................................................32 3.8 Determinació dels fusibles adoptats per a les diferents sortides dels armaris de baixa 33 4 Xarxa de distribució en BT...............................................................................34 4.1 Càlcul de la potència i intensitat màxima en cada parcel·la .......................34 4.2 Càlcul de les seccions dels conductors ......................................................35 4.2.1 Càlcul de les seccions mitjançant Intensitat Màxima Admissible.......35 4.2.2 Càlcul de les seccions en funció de la caiguda de tensió ....................37 4.2.3 Determinació de la secció dels Neutres .............................................39 5 Càlcul enllumenat exterior................................................................................40 5.1 Càlculs Luminotècnics..............................................................................40 5.1.1 Elecció de la lluminària.....................................................................41 5.1.2 Càlcul de la distància entre lluminàries .............................................41 5.2 Càlculs Elèctrics .......................................................................................44 5.2.1 Càlcul de la Potència de l’Enllumenat. ..............................................44 5.2.2 Càlcul de la secció dels conductors per Caiguda de Tensió ................45 5.2.3 Càlcul de la Secció dels Conductors per Intensitat Màxima Admissible 48 5.3 Posta a Terra de l’Enllumenat exterior del polígon....................................50 5.4 Càlcul dels Elements de Protecció i Comandament ...................................51 Albert Bel Esteller Enginyer Tècnic Industrial en Electricitat 3
  • 66.
    Electrificació Polígon Industrial“Los Campets” Annex de Càlcul 1 Previsió de potència La previsió de potència que s’estimarà en aquest polígon seguirà el que es dictamina en la ITC BT-10 del Reglament de Baixa Tensió, que determina les condicions a seguir quan no se sap de quan seran les naus a construir o no es té la informació necessària, i també seguirà la part del Pla Urbanístic de l’Ajuntament d’Alcanar que ens afecta degut a la construcció de concentracions d’indústries i comerços en polígons industrials. Cal explicar que en el cas del nostre projecte, la superfície que es tindrà en compte i on s’aplicarà la ITC-BT-10, serà a la superfície edificable, tal com es dictamina pel Pla Urbanístic Municipal de l’Ajuntament d’Alcanar, la qual es pot observar al plànol de distribució de parcel·les on s’exposa el Gàlib Màxim de l’Edificació i l’Alineació Obligatòria de les naus futures. També cal dir que en aquest pla queda constància que es tindrà en conte un 60 % de la superfície edificable per a edificis destinats a una concentració d’indústries i amb el 40 % restant, es realitzaran els càlculs com a edificis comercials i oficines. A banda d’aquests percentatges dictaminats en el Pla Urbanístic Municipal de l’Ajuntament d’Alcanar, en aquest pla també hi apareix un factor d’utilització de la superfície edificable que es de 0,5. Aquest factor d’utilització a relacionat en intentar tenir superfície suficient, per a poder maniobrar en cas d’accident, ja siguin camions o altres vehicles de grans dimensions, deixant passadissos de tres metres com a mínim entre naus... En el nostre cas, i seguint amb la classificació dels llocs de consum que s’exposa al reglament, hem de seguir “Edificis destinats a una concentració d’indústries” i “Edificis comercials o d’oficines”, ja que al Pla Urbanístic Municipal de l’Ajuntament d’Alcanar, com ja s’ha avançat, es dictamina que un 60% de la superfície edificable (la que a partir de la qual realitzarem tots els càlculs) sigui per a edificis destinats a una concentració d’indústries i el 40% restant per a edificis comercials o d’oficines. 1.1 Càlcul de la potència prevista La superfície total edificable al Polígon Industrial “Los Campets” són 64.075 m2. Aplicant el Reglament de Baixa Tensió i el Pla Urbanístic explicats en anterioritat: - El 60% d’aquesta superfície es 38.445 m2, i en aquest cas s’aplica la normativa d’edificis destinats a concentració d’indústries de 125W/m2. - El 40% restant són 25.630m2, i com ja s’ha esmentat, degut al Pla Urbanístic Municipal de l’Ajuntament d’Alcanar en aquest cas s’aplica la normativa per a edificis comercials o d’oficines que tracta de considerar 100W/m2. A la potència total obtinguda segons el Pla Urbanístic Municipal de l’Ajuntament d’Alcanar se li ha d’aplicar un coeficient d’utilització de la superfície edificable de 0,5 degut a consideracions urbanístiques d’edificabilitat, volum, etc..., que també es dictaminen en aquest, es a dir, el que es vol aconseguir en aquestes mesures es gaudir d’una superfície suficient per a poder maniobra sense dificultats alhora de l’edificació de les naus o inclús en perspectives de que hi pugui ocórrer algun accident (maniobra de Albert Bel Esteller Enginyer Tècnic Industrial en Electricitat 4
  • 67.
    Electrificació Polígon Industrial“Los Campets” Annex de Càlcul vehicles de grans dimensions), i com no, segons les característiques particulars del tipus d’indústria que es pretengui instal·lar a la zona esmentada. Potència = Superfície edificable x ITC-BT-10 x Coeficient d’utilització - Superfície concentració d’indústries: 38.445 m2 Potència = 2.403 kW - Superfície per a edificis comercials : 25.630 m2 Potència = 1.281,5 kW Aplicant un factor de potència de 0.85 ens quedarà el següent: Potència total parcel·les = 2.403 + 1.281,5 = 3.684,3 kW 3.684,3 Stotal = = 4.334,8kVA cos ϕ - Potència prevista per a l’enllumenat exterior: Tal com s’explica en la memòria descriptiva es consideren 1,5kW per metre quadrat. - Superfície vial = 18.000 m2 Previsió de potència per a enllumenat = 18.000 x 1.5=27.000W=27 kW Una vegada fet el càlcul de les potències que ens afectaran a la previsió de potència, la previsió de potència que tindrem serà la següent: Previsió de potència = Potència total parcel·les + Potència per a enllumenat exterior - Previsió de potència = 3.684,3 + 27 = 3.721,3 kW 3 . 721 ,3 Sprevista = = 4 . 378 kVA 0 ,85 El polígon consumirà una potència prevista de 4.378 kVA que serà subministrada per mitjà de sis centres de transformació de 800 kVA, cada un dels quals constarà de dos transformadors de 400 kV. L’energia s’obtindrà d’una línia de mitja tensió propera al polígon i es conduirà per una línia subterrània fins els límits del polígon, on serà conduïda fins a cada centre de transformació. Albert Bel Esteller Enginyer Tècnic Industrial en Electricitat 5
  • 68.
    Electrificació Polígon Industrial“Los Campets” Annex de Càlcul 2 Línia Subterrània de Mitja Tensió La línia subterrània està formada per diferents trams que uneixen el que són les conversions que uneixen la línia de mitja, amb el primer centre de transformació, aquest amb el segon centre de transformació i així successivament fins arribar al sisè centre de transformació que unirem finalment una altra vagada a la línia aèria mitjançant una altra conversió, i així realitzarem el que s’anomena entrada/sortida a la línia aèria de mitja tensió. Aquests trams es poden veure amb molta més claredat al que es el plànol de distribució de les parcel·les. Tot i determinar tots els trams que tenim, cal dir que realitzarem els càlculs de comprovació per al pitjor dels casos, com és el cas del primer tram. Diem que és el pitjor dels casos perquè en el primer tram es transporta tota la potència, fins arribar al CT1, cal clarificar que el primer tram consta des de la conversió fins al primer CT. Així que una vegada realitzats els càlculs del primer tram, si ens surten uns resultats bons, ja anirem sobrats per a la resta de trams, ja que com ja s’ha dit, en el primer tram, per a efectes de càlculs s’agafa la potència total. A banda d’això, també es pot fer el següent raonament, si al primer centre de transformació ja utilitzem una part de la potència, per a la resta del polígon ja no quedarà la totalitat de la potència, i conseqüentment els trams restants sortiran millor a efectes de càlcul. Per a realitzar tots aquests càlculs es realitzarà mitjançant: - intensitat admissible. - intensitat de curtcircuit. - caiguda de tensió. 2.1 Càlcul de la secció dels conductors Com ja s’ha avançat en la memòria descriptiva, el càlcul elèctric es pot realitzar de dues formes , com a Càlcul preliminar o com a Càlcul de Comprovació. En aquest cas s’utilitzarà el càlcul de comprovació, ja que és el més utilitzat en instal·lacions de mitja tensió, i que consisteix en escollir un tipus de cable, i una vegada escollida una secció es comprova que la intensitat de règim permanent, la caiguda de tensió i la intensitat de curtcircuit estiguin dintre dels valors admissibles determinats pel tipus de conductor escollit. Aquesta línia subterrània tindrà una longitud de 1.120 m. La secció del cable subterrani serà de 3x240 mm2, amb tensió nominal 18/30kV, amb aïllament de polietilè reticulat (XLPE) capaç d’aguantar una intensitat admissible de 420 A. Albert Bel Esteller Enginyer Tècnic Industrial en Electricitat 6
  • 69.
    Electrificació Polígon Industrial“Los Campets” Annex de Càlcul 2.1.1 -Intensitat admissible en règim permanent Per a dimensionar la línia de Mitja Tensió que ens subministrarà la potència, agafarem la potencia total prevista, que és de 4 .378 kVA, que serà la potència màxima que portarà la línia. Per a evitar l’elevat cost econòmic que suposaria haver de substituir el cable instal·lat en el cas que hi hagués un augment de la demanda o bé un ampliació del polígon, sobredimensionarem les línies un 50%, ja que si comparem el cost de substituir tot el cable amb un sobredimensionament d’aquestes característiques en relació a un cable de secció inferior es molt poc. Per lo tant ens quedarà un potència total sobredimensionada de 6.567 kVA. S 6.567 I= = = 151,66 A U· 3 25· 3 On: - S = Potència aparent total prevista sobredimensionada [kVA] - U = Tensió de línia [kV] - I = Intensitat de línia [A] La intensitat sobredimensionada que circularà pel cable serà de 151,66A. Com es pot observar podríem agafar una secció de 150 mm2 capaç de suportar 315A, però degut a que ho volem sobredimensionar per a futures ampliacions del polígon o augments de demanda, i sense deixa de banda la tendència de la companyia subministradora que per a instal·lacions noves ja només utilitza l’estesa de 240mm2 per defecte, escollirem un cable de 240 Al i aprofitarem per si mai es fa alguna ampliació, o en cas d’alguna avaria amb algun descàrrec d’algun tram, amb la conseqüència es carregaria més un altre tram, i a banda també es bo tenir els cables bastant ben dimensionats per a tenir una certa seguretat, es per tot això que escollirem una secció de 240 Al per fase, es a dir 3x240 Al DHV 18/30 kV. S trafo S total Vp Ip I max Sat (kVA) (kVA) (kV) (A) (A) % CT 1 717,85 6.567 25 151,66 410 37 CT 2 669,80 5.849,15 25 135,08 410 32,95 CT 3 665,50 5.179,35 25 119,61 410 29,17 CT 4 572,44 4.513,85 25 104,24 410 25,42 CT 5 702,90 3.941,41 25 91,02 410 22,20 CT 6 766,32 3.238,99 25 74,80 410 18,24 [taula 1] Albert Bel Esteller Enginyer Tècnic Industrial en Electricitat 7
  • 70.
    Electrificació Polígon Industrial“Los Campets” Annex de Càlcul 2.1.1.1 Densitat de corrent El valor de la densitat de corrent amb la intensitat calculada és la següent: I 151,66 A ∆= = = 0,632 S 240 mm 2 On: - ∆ : Densitat de corrent[A/mm2] - I : Intensitat admissible en règim permanent[A] - S : Secció del cable conductor[mm2] Com es pot veure, hem calculat la densitat de corrent per al pitjor dels casos, i per lo tant no caldrà calcular la densitat de cada tram de circuit, ja que com es pot observar en la taula 1 la intensitat, a l’igual que la potència va disminuint tram a tram. 2.1.1.2 Densitat de corrent màxima del conductor I max 410 A ∆ max = = = 1,71 S 240 mm 2 On: - ∆ max : Densitat de corrent màxima del conductor[A/mm2] - I max : Intensitat màxima admissible del conductor[A] - S : Secció del conductor[mm2] Com es pot veure, la densitat calculada amb el que seria la potència que hem estimat des d’un principi, i en el pitjor dels casos, es bastant inferior a la densitat màxima que té el conductor escollit, per lo tant la secció adoptada es bona. 2.1.2 Intensitat de curtcircuit. Per veure la capacitat que té el conductor escollit per suportar la intensitat de curtcircuit és necessari conèixer la potència de curtcircuit de la xarxa de Mitja Tensió, que és de 400 MVA. Aquest valor ens l’ha facilitat la companyia subministradora FECSA ENDESA. La intensitat de curtcircuit, per lo tant, la trobarem aplicant la fórmula següent: Scc 400.000 Icc = = = 9.237,6 A U· 3 25· 3 On: - Scc = Potència de curtcircuit [kVA] - U = Tensió de línia [kV] Albert Bel Esteller Enginyer Tècnic Industrial en Electricitat 8
  • 71.
    Electrificació Polígon Industrial“Los Campets” Annex de Càlcul - Icc = Intensitat de curtcircuit 2.1.2.1 Secció mínima del conductor per intensitat de curtcircuit La secció del conductor escollit haurà d’aguantar la Icc calculada anteriorment, durant més temps que el que tarden en actuar les proteccions de la línia. Segons dades facilitades per la companyia subministradora les proteccions de la línia actuen en un temps de 1,25 segons. Un cop tenim la Icc i el temps d’acció de les proteccions escollirem la secció pertinent de la taula 2, que tenim a continuació. Duració del curtcircuit (segons) Secció 0,1 0,2 0,3 0,5 1 1,5 2 2,5 (mm2) 95 27,9 19,2 16,1 12,5 8,8 7,2 6,2 5,6 150 44,1 30,4 25,5 19,8 13,9 11,4 9,9 8,8 240 70,5 48,7 40,8 31,6 22,3 18,2 15,8 14,1 400 117,6 81,2 68,0 53,8 37,2 30,4 26,4 23,6 [taula 2] Pel que fa a aquest mètode per trobar la secció del cable, en aquest cas també podríem adoptar una secció de 150 mm 2 ja que la duració del curtcircuit es de 1,5 segons i aguanta 11,4 kA - però com agafarem la duració immediatament superior a la donada per la companyia, ja que la que dóna aquesta és el que tarden en actuar les proteccions de línia- agafant una secció de 240Al ens aguantarà com a màxim una Icc = 18,2 kA, molt per sobre de la calculada que era de 9.237,6, o el que és el mateix 9,2 kA. 2.1.3 Caiguda de tensió La caiguda de tensió de la línia de Mitja Tensió serà pràcticament nul·la degut a que l’alta tensió per a poder-se transportar i que la longitud de la xarxa es relativament petita si ho comparem amb els trams que s’acostumen a tirar en Mitja Tensió. Aquesta es calcula en funció de la resistència a 50ºC, de la reactància y del moment elèctric, mitjançant l’expressió: P·L U (%) = ·( R50 + X ·tgρ ) 10·U 2 On: - U: Tensió [kV] - P: Potència [kW] - L: Longitud [km] - R50: Resistència a 50ºC en Ω/km (R50 = 0,140 Ω/km [Ω] - X: Reactància en Ω/km. (X = 0,101 Ω/km) [Ω] Albert Bel Esteller Enginyer Tècnic Industrial en Electricitat 9
  • 72.
    Electrificació Polígon Industrial“Los Campets” Annex de Càlcul Tram1 derivació/conversió fins a CT1 R50 = 0,140 Ω/km · 0,220 km = 0,0308 Ω X = 0,101 Ω/km · 0,220 km = 0,0222 Ω 5.581,95·0,22 -3 U (%) = ·(0,0308 + 0,0222·0,62) = 8,756 · 10 % 10·252 Tram 2 CT1 – CT2 R50 = 0,140 Ω/km · 0,120 km = 0,0168 Ω X = 0,101 Ω/km · 0,120 km = 0,0121 Ω 5.581,95·0,12 U (%) = 2 ·(0,0308 + 0,0222·0,62) = 2,60·10-3 % 10·25 Tram 3 CT2-CT3 R50 = 0,140 Ω/km · 0,205 km = 0,0287 Ω X = 0,101 Ω/km · 0,205 km = 0,0207 Ω 5.581,95·0,205 U (%) = 2 ·(0,0287 + 0,0207·0,62) = 7,6·10-3 % 10·25 Tram 4 CT3-CT4 R50 = 0,140 Ω/km · 0,180 km = 0,0252 Ω X = 0,101 Ω/km · 0,180 km = 0,0181 Ω 5.581,95·0,180 U (%) = 2 ·(0,0252 + 0,0181·0,62) = 5,86·10-3 % 10·25 Tram 5 CT4-CT5 R50 = 0,140 Ω/km · 0,215 km = 0,0301 Ω X = 0,101 Ω/km · 0,215 km = 0,0217 Ω 5.581,95·0,215 U (%) = 2 ·(0,0301+ 0,0217·0,62) = 8,36·10-3 % 10·25 Tram 6 CT5-CT6 R50 = 0,140 Ω/km · 0,035 km = 0,0049 Ω X = 0,101 Ω/km · 0,035 km = 0,0035 Ω Albert Bel Esteller Enginyer Tècnic Industrial en Electricitat 10
  • 73.
    Electrificació Polígon Industrial“Los Campets” Annex de Càlcul 5.581,95·0,035 U (%) = 2 ·(0,0049 + 0,0035·0,62) = 2,2·10-5 % 10·25 2.1.4 Potència màxima a transportar pel conductor escollit Degut a que en aquest projecte s’han realitzat molts de càlculs pensant amb el futur, amb possibles ampliacions de polígon, o algun augment de demanda de potència d’alguna parcel·la, en cas que aquestes hipòtesis inicials es compleixin, s’haurà de tenir molt en compte la potència màxima que podrà transportar la línia, que s’ha dimensionat. Pmax = 3 · UL · Imax · cos ϕ = 3 · 25 · 410 · 0,85 = 15.090,5 kVA Albert Bel Esteller Enginyer Tècnic Industrial en Electricitat 11
  • 74.
    Electrificació Polígon Industrial“Los Campets” Annex de Càlcul 3 Centres de transformació Segons es dictamina a la instrucció complementaria del Reglament d’AT MIE-RAT 20 en el projecte on hi hagi centres de transformació es tindran que conèixer les corrents de curtcircuit a la part d’alta (mitja) i als borns de baixa tensió del transformador. I serà a partir d’aquests valors que es determinarà el poder de tall dels fusibles de mitja. Al polígon projectat es construiran sis centres de transformació ubicats segons el plànol 6, Distribució en Mitja Tensió, capaços de subministrar 800 kVA cadascun mitjançant una transformació de 25/0,4 kV. Els centres de transformació estaran formats per dos transformadors de 400 kVA . A continuació es calcularan els seus valors de la intensitat nominal en la part d’alta tensió i en la de baixa, així com el càlcul de la corrent de curtcircuit i el càlcul de les instal·lacions de terres. 3.1 Intensitat en Mitja Tensió En aquest apartat es realitzarà el càlcul de la intensitat de la part de mitja tensió del transformador. S 2·400 I= = = 18,5 A U · 3 25· 3 La intensitat al primari de cada transformador serà: S 400 I= = = 9,24 A U · 3 25· 3 3.2 Intensitat en Baixa Tensió Utilitzant la mateixa fórmula que en l’apartat anterior es trobarà el valor de la intensitat màxima en el secundari de cada transformador. La tensió serà de 400V per cada transformador. S 400 I= = = 577,35 A U · 3 0,4· 3 3.3 Càlcul de corrents de curtcircuits Segons l’empresa subministradora, la potència de curtcircuit de la línia de la qual derivarem per a subministrar el polígon és de 400 MVA. Tenint present aquesta dada i tot el calculat posteriorment, procedirem a l’obtenció de les corrents de curtcircuit del primari i secundari del transformador. Albert Bel Esteller Enginyer Tècnic Industrial en Electricitat 12
  • 75.
    Electrificació Polígon Industrial“Los Campets” Annex de Càlcul 3.3.1 Corrents de curtcircuit al primari del centre de transformació. El càlcul de la corrent de curtcircuit de la part de baixa dels transformadors exigeix conèixer la impedància total del circuit des dels generadors de les centrals elèctriques que l’alimenten fins a la sortida de Baixa Tensió dels trafos. En els següents càlculs s’obtindran els valors de les corrents de curtcircuit que es poden produir en els centres de transformació. Es realitzarà el càlcul per a la potència de curtcircuit indicada per la companyia de S = 400 MVA, i considerarem el cas més desfavorable, que correspon al centre de transformació Nº1, degut a que hi arribarà la totalitat de la potència que portarà la línia. 3.3.1.1 Càlcul de les impedàncies 3.3.1.1.1 Impedància d’escomesa - Zq=1,1·U2/Scc= 1,1·252/400.000=1,72 Ω - Xq=0,955·Zq=0,955·1,72=1,64 Ω - Rq=0,1·Xq= 0,1·1,64=0,164 Ω - Zq=0,164+j1,64Ω 3.3.1.1.2 Impedància de línia aèria La impedància de la línia aèria s’ha trobat segons dades de l’empresa subministradora, ja que en el cas de la línia aèria de mitja, nosaltres no l’hem projectat perquè l’únic que fem es aprofitar el pas aeri de la línia de mitja per sobre el polígon per a realitzar la derivació i realitzar entrada sortida. Així ens quedarà el següent: - Ra=0,23 - Xa=0,35 - Za=0,23+j0,35 Ω 3.3.1.1.3 Impedància línia subterrània Zs=L·(r’+jX’)=0,220·(0,140+j0,101)=(0,0308+j0,0222) Zs=(0,0308+j0,0222)Ω On: - r ’=0,140 Ω/km - X’=0,101 Ω/km - L= 0,220 km (com ja s’ha esmentat s’ha agafat el cas més desfavorable, és a dir des de la derivació en mitja fins al primer centre de transformació). Albert Bel Esteller Enginyer Tècnic Industrial en Electricitat 13
  • 76.
    Electrificació Polígon Industrial“Los Campets” Annex de Càlcul 3.3.1.1.4 Impedància total Serà el sumatori de totes les impedàncies calculades en aquest apartat. Zqas=Zq+Za+Zs=(0,432+j2,01)Ω La impedància en valor absolut serà /Zqas/=2.06 Ω 3.3.1.2 Càlcul de les intensitats Intensitat inicial simètrica de curtcircuit c·Un 1,1·25 I= = = 7,71kA Zqas· 3 2,06· 3 On: - Un: tensió nominal [kV] - Zqas : Impedància total [Ω] - c : Valor en A.T. de 1,1 Intensitat màxima asimètrica de curtcircuit El valor de Κ obtingut en funció de la relació Rqas/Xqas, mitjançant el gràfic adjuntat en l’annex, és: Κ = f (Rqas / Xqas) = f ( 0,425/2,01 ) = F(0,211)=1,55 K =1,55 ICIA= k· 2 ICCA= 1,55· 2 · 8,82=19,33 kA Per aquests valors de corrents de curtcircuit calculats, s’escullen uns fusibles per a les cel·les de mitja i per als transformadors de 400 kVA de 40 A. Per a escollir ens hem basat en la taula 3 que hi ha a continuació, la qual ens l’ha facilitat la companyia ORMAZABAL- Albert Bel Esteller Enginyer Tècnic Industrial en Electricitat 14
  • 77.
    Electrificació Polígon Industrial“Los Campets” Annex de Càlcul [taula 3] 3.3.1.3 Corrent de curtcircuit al secundari del transformador Per al càlcul de les corrents de curtcircuit en barres BT, s’ha de saber la potència dels transformadors en paral·lel que es disposen als centres de Transformació. En el nostre cas el que utilitzarem, com ja s’ha anat dient al llarg de tota la memòria descriptiva, seran dos transformadors de 400kVA en paral·lel del tipus d’aïllament de bany d’oli de 36kV. 3.3.1.3.1 Càlcul de les impedàncies En aquest apartat degut al canvi de tensió que apareix entre la part de mitja i la de baixa s’ha de transformar el valor de la impedància Zqas calculada en l’apartat anterior per adaptar-la a la baixa tensió. Es realitzarà mitjançant la relació de transformació del transformador. Zqas’ (des de la part de baixa) - Rqas’ = Rqas ·(1/rt)2 = 0,432·(0,4/25)2 = 0,0001106 Ω - Xqas’ = Xqas ·(1/rt)2=2,01·(0,4/25)2 = 0,0005145 Ω - Zqas’ = Zqas ·(1/rt)2=2,06·(0,4/25)2 = 0,000527 Ω - Zqas = 0,0001106 + j 0,0005145 Ω Impedància del transformador - Zt = (Uz/100)·(U2/S)= (4,5/100)·(0,42/0,400)= 0,018 Ω - Rt = (Ur/100)·(U2/S)= (1,5/100)·(0,42/0,400)=0,006 Ω - Xt= V(Zt 2-Rt2)= V(0,0182-0,0062)=0,017 Ω Albert Bel Esteller Enginyer Tècnic Industrial en Electricitat 15
  • 78.
    Electrificació Polígon Industrial“Los Campets” Annex de Càlcul On: - Uz = tensió de curtcircuit per a la corrent nominal (Uz = 4,5 %) - U: tensió nominal - S: potència del transformador - Ur: Tensió resistiva de curtcircuit per a la corrent nominal (Ur = 1,5 %) Resum dels resultats obtinguts: Zt=0,018 Ω Rt=0,006 Ω Xt=0,017 Ω Impedància del transformador Zt = 0,006+j0,017 Ω Ztotal Impedància total - Ztotal = Zqas’ + Zt - Ztotal = (0,006+j0,017)+(0,0001088+j0,000461)= 0,00611+j0,0175 Ω - /Ztotal/= 0,0185 Ω 3.3.1.3.2 Càlcul dels corrents de curtcircuit del trafo 3.3.1.3.2.1 Corrent inicial simètrica de curtcircuit La corrent de curtcircuit en barres de sortida del transformador serà la següent: IccA = (c · Un)/(V3·Ztotal)=(1·0,4)·(V3·0,0185)=12,483 kA 3.3.1.3.2.2 Corrent màxima asimètrica El valor de la K ha estat obtingut igual que a la part de mitja del transformador amb la relació Rtotal/Xtotal, mitjançant el gràfic 1 adjunt en l’annex. K = f (Rtotal/Xtotal) = f(0,35)=1,35 K=1,35 Per tant la corrent màxima asimètrica o millor dit la corrent de connexió pot agafar el valor següent: IciA= K· V2·IccA =1,35·V2·12,483=23,83 kA 3.4 Justificació del Sistema de Ventilació La ventilació es produirà per circulació natural d’aire a través de les dos reixes del centre de transformació, situades en la part inferior de la porta d’accés i en la part superior, al darrere dels dos transformadors, per lo que tindrem una renovació permanent d’aire al local. Albert Bel Esteller Enginyer Tècnic Industrial en Electricitat 16
  • 79.
    Electrificació Polígon Industrial“Los Campets” Annex de Càlcul El volum d’aire a renovar es funció de les pèrdues totals dels transformadors que hi hagi al centre de transformació, de la diferència de temperatures que s’admet entre l’entrada i la sortida com a màxim 20ºC i la diferència d’altures entre el pla mig de la reixa de ventilació inferior, i el pla mig de la reixa de sortida o superior. La ventilació natural te per objecte dissipar per convecció l’energia calorífica produïda pel transformador quan se troba treballant en condicions nominals. Si recordem que el calor específic de l’aire és 0,24 kcal /kg · ºC, que un m3 d’aire sec a 20ºC te un pes de 1,16 kg i que 1 kcal equival a 4,178 Joule, tenim que 1 m3 d’aire absorbeix per cada grau centígrad d’augment de temperatura. - 0,24·1,16·4,187= 1,15 kJ/m3/ºC Per lo tant el volum d’aire necessari per segon per a poder absorbir les pèrdues dels transformadors: - Va=Pt/1,16·θa [m3/s] - Va = 12,04 /1,16·15=0,692 m3/s Sent: - Pt: les pèrdues totals dels transformadors en kW. - θa: L’augment de temperatura admès en l’aire (15ºC segons UNESA) Per a evacuar aquest volum per les reixes de ventilació superiors del CT, la secció d’aquestes haurà de ser: - Sf=Va/Vs=0,692/0,455=1,52 m2 - Sbf=Sf/1-kf=1,52/1-0,3=2,17 m2 Sent: - Va: el volum en m3/seg - Vs: velocitat de sortida de l’aire en m/s. - Sf: La secció neta de finestra de ventilació. - Sbf= Secció bruta de la finestra. - Kf: Coeficient d’ocupació de la finestra (per a làmines en forma de Λ=0,3) Si després d’aquests resultats ho comparem amb una taula que relaciona el nombre de trafos i la potència amb la superfície mínima de cada forat de ventilació facilitada per Merlin Gerin tenim el següent: Albert Bel Esteller Enginyer Tècnic Industrial en Electricitat 17
  • 80.
    Electrificació Polígon Industrial“Los Campets” Annex de Càlcul Nº de Transformadors Potència dels Trafos Sup. Mínima per cada forat de (kVA) ventilació (cm2) 1 250 5.000 1 400 8.000 2 400 12.000 [taula 4] Com es pot veure amb la secció calculada anteriorment anem per sobre de l’obertura mínima que s’ha de realitzar en CT de dos trafos de 400 kVA, que és el nostre cas. La velocitat de sortida depèn, com s’ha indicat, de la diferència d’altura dels plans mitjos de les reixes de ventilació H i de l’augment de temperatura de l’aire, admès segons la fórmula següent: Vs = 4,6· 2,2 / 1,5 = 0,455m / s Per últim haurem de tenir en compte que la secció calculada Sf es la secció neta i que es necessari per a complimentar la instrucció complementària MIE-RAT 14, que les reixes destinades a la ventilació han d’estar protegides de forma que impedeixin el pas de petits animals, cossos sòlids de més de 12 mm de diàmetre. A banda estaran disposats de forma que en cas de ser directament accessible des de l’exterior, no puguin donar lloc a contactes amb parts en tensió, i a més existirà una disposició laberíntica, així com disposar de proteccions precises, per a impedir l’entrada de l’aigua. Resumint tota aquesta descripció s’haurà de disposar en les reixes de ventilació d’unes persianes amb làmines del tipus Λ, amb la qual cosa és lògic que la secció bruta de la finestra haurà de ser superior a la secció neta també calculada. Dades de cada trafo: - Pèrdues dels transformadors: Pe = 12,04 kW - Temperatura d’entrada de l’aire:θ1 = 30 º C - Temperatura de sortida de l’aire:θ2 = 45 º C 3.5 Càlcul de les preses a terra en el centre de transformació 3.5.1 Consideracions prèvies a tenir en compte per realitzar el càlcul Quan es produeix un defecte a terra en la instal·lació d’alta tensió, és provoca una elevació del potencial de l’elèctrode, a través del qual el corrent circula cap a terra, apareixent en el terreny, gradients de potencial. Per tant, al dissenyar els elèctrodes de posta a terra, han de tenir-se en compte els següents aspectes. - Seguretat de les persones en relació amb les elevacions de potencial. Albert Bel Esteller Enginyer Tècnic Industrial en Electricitat 18
  • 81.
    Electrificació Polígon Industrial“Los Campets” Annex de Càlcul - Sobretensions perilloses per a les instal·lacions. Valor de la intensitat de defecte que faci actuar les proteccions, assegurant l’eliminació de la falta. 3.5.2 Seguretat de les persones La MIE – RAT 13 estableix que la tensió es màxima aplicable que pot acceptar al cos humà, entre mans i peus, és la que estableix l’expressió següent: Vca = K/tn - Vca = tensió aplicada en vots - t = temps de duració de la falta en segons. - K, n = constants en funció del temps d’actuació de les proteccions. 0,9 ³ t > 0,1................K = 72 ; n = 1 3 ³ t > 0,9...................K = 78,5 ; n = 0,18 5 ³ t > 3.....................Vca = 64 V t < 5..........................Vca = 50 V En base a suposar que la tensió màxima aplicada al cos humà, no superi el valor indicat en la fórmula anterior per a les tensions de contacte (entre mans i peus), ni superi 10 vegades aquest valor per a les tensions de pas (entre peus separats 1m), els valors màxims admissibles de la tensió de pas i contacte, que no han de ser superats en la instal·lació, han de ser els següents. Tensió de pas Vp = 10·K/tn·(1+ (6·ρs/1000)) Tensió de contacte Vc= K/tn·(1+(1,5·ρs)/1000) On: - Vp: tensió de pas [V] - Vc: tensió de contacte [v] - t: duració de la falta [s] - ρs: Resistivitat superficial del terreny [Ω·m] En cas de la tensió de pas, pot succeir que la resistivitat superficial del terreny sigui diferent per a cada peu. Aquesta situació, és habitual en l’accés als centres de transformació, on els paviments en l’interior i en l’exterior solen ser diferents. En aquests Albert Bel Esteller Enginyer Tècnic Industrial en Electricitat 19
  • 82.
    Electrificació Polígon Industrial“Los Campets” Annex de Càlcul casos, l’expressió per obtenir la tensió màxima de pas admissible que pot aparèixer en la instal·lació és: Vpaccés= 10·K/tn·(1+(3·ρs+3ρs’)/1000) On: - ρs i ρs’ són les resistivitats del terreny en que es recolza cada peu. 3.5.3 Sobretensions perilloses per a la instal·lació Per a evitar que la sobretensió que apareix al produir-se un defecte en l’aïllament del circuit d’alta tensió, i es deteriorin els elements en baixa tensió del centre, l’elèctrode de posta a terra ha de tenir un efecte limitador de tal manera que la tensió de defecte sigui inferior a la que suporten aquests elements (Vbt). Per tant hem de tenir present que Vd ha de ser menor que Vbt. Vbt > Vd Vd = Rt x Id 8.000 >= Vd per instal·lacions d’exterior. 6.000 >= Vd per instal·lacions d’interior. - Vd = tensió de defecte [V] - Vbt = tensió màxima suportada per la instal·lació de baixa. (10.000 V, segons recomana UNESA) [V] - Rt = resistència màxima de la posta a terra del centre [Ω] - Id = intensitat de defecte. [A] 3.5.4 Limitació del valor mínim del corrent de defecte Amb l’objectiu de què el corrent de defecte pugui ser detectat per la protecció de sobreintensitat s’haurà de complir que: Id > Valor que garanteix l’accionament de les proteccions. Per determinar els valors anteriorment esmentats, ens basarem en el document elaborat per UNESA “Método de cálculo y proyecto de instalaciones de puesta a tierra para centros de transformación conectados a redes de tercera categoría”. Utilitzant una de les configuracions tipus allà realitzades i les taules i mètodes descrits. Per determinar el compliment de les condicions de seguretat requerides, es seguirà el procediment de càlcul que s’indica a continuació segons l‘assenyalat en l’apartat 2.1 de la MIE RAT 13: - Investigació de les característiques del terreny. - Determinació de la intensitat màxima de defecte i el temps màxim d’eliminació de la falta. Albert Bel Esteller Enginyer Tècnic Industrial en Electricitat 20
  • 83.
    Electrificació Polígon Industrial“Los Campets” Annex de Càlcul - Disseny preliminar de la instal·lació de terra. - Càlcul de la resistència de posta a terra del centre. - Càlcul de les tensions de pas en l ’exterior de la instal·lació. - Càlcul de les tensions de pas i contacte en l’interior de la instal·lació. - Càlcul de la tensió de defecte. - Càlcul de les tensions de pas i contacte admissibles. - Comprovació entre les tensions de pas, contacte i defecte calculades i les admissibles. - Separació entre els sistemes de posta a terra de la instal·lació. - Càlcul preliminar del paràmetre característic de la resistència de posta a terra del neutre BT i elecció de la configuració tipus. - Càlcul de la resistència de posta a terra del neutre BT. Es calcularan dos tipus de terres segons s’especifica en la instrucció MIE RAT 13 apartat 6.1 i 6.2. Terres de protecció que inclouran les postes a terra de : 1- Xassís i bastidors d’aparells de maniobra. 2- Envolvents dels conjunts d’armaris metàl·lics. 3- Portes metàl·liques de local. 4- Tanques i ballat metàl·lic. 5- Estructures metàl·liques. 6- Blindatges metàl·lics del cable. 7- Carcasses del transformador. Preses a terra de servei. Inclouran les preses a terra de: 1- Neutres dels transformadors. 2- Circuits de baixa tensió dels transformadors de mesura. 3- Descarregadors per l’eliminació de sobretensions. 4- Els elements de derivació a terra dels seccionadors de posta a terra. Albert Bel Esteller Enginyer Tècnic Industrial en Electricitat 21
  • 84.
    Electrificació Polígon Industrial“Los Campets” Annex de Càlcul 3.5.5 Càlcul de la Xarxa de Terres 3.5.5.1 Dades preliminars, característiques de la xarxa MT d’alimentació al CT - Tensió de servei 25 kV. - Valor de posta a terra del neutre AT, R0 = 0 Ω, X0 = 25 Ω.(informació facilitada per companyia subministradora) - Nivell d’aïllament del material RT del CT: Per a evitar que la sobretensió que apareix al produir-se un defecte en l’aïllament del circuit d’alta tensió deteriori els elements de baixa del CT, l’elèctrode de posta a terra haurà de tenir un efecte limitador, de tal forma que la tensió de defecte (Vd) sigui inferior a 10.000 V, que es el nivell de aïllament de les instal·lacions de BT del CT, i la recomanació feta per UNESA. Vd = Rt x Id ≤ 10.000 V Característiques del terreny Havent realitzat una determinació arbitrària de la resistència del terreny i contrastant- ho amb la ITC-BT-18 del Reglament de Baixa Tensió, es considerarà: Resistivitat del terreny, ( ρ =75 Ω·m). ITC BT-18 Taula 4 Naturalesa del Terreny Valor mig de la ρ Terrenys cultivables 50 Terraplens compactes i humits Terraplens cultivables poc fèrtils 500 Sols pedregosos nusos, arenes 5.000 [taula 5] Hem agafat una ρ=75 per la diferència de terrenys que es pot trobar allà on es realitzarà el polígon, on es pot trobar terrenys en tarongers, i terrenys de secà amb oliveres i garrofers, és per aquest motiu que hem agafat aquesta resistivitat, ja que hem seguit mes o menys el que decreta el reglament de BT i ham cregut convenient agafar una resistivitat intermitja entre terrenys cultivables i terrenys cultivables poc fèrtils. Albert Bel Esteller Enginyer Tècnic Industrial en Electricitat 22
  • 85.
    Electrificació Polígon Industrial“Los Campets” Annex de Càlcul 3.5.5.2 Càlcul de la intensitat de defecte Per a calcular la intensitat de defecte Id tan sols es considerarà la impedància de la posta a terra del neutre de la xarxa de mitja Tensió i la resistència de l’elèctrode de posta a terra Rt, mitjançant la fórmula: U Id = 3· ( Ro + Rt ) 2 + Xn 2 No podem obtenir el valor de Id ja que no sabem el valor de Rt, però com se sap que el valor més elevat de la posta a terra de masses (Rt) ha d’evitar la perforació de l’aïllament de baixa tensió d’algun element del centre, al circular per ella la intensitat de defecte (Id). Així que agafant aquestes dues últimes fórmules i resolen aquest sistema de dues equacions amb dues incògnites traurem els següents resultats. U Id = 3· ( Ro + Rt ) 2 + Xn 2 Vd = Rt x Id ≤ 10.000 V - Rt=16,64 Ω - Id=480,55 A 3.5.5.3 Càlcul del Paràmetre Característic Resistència de posta a terra del CT Com a pas previ per efectuar l’elecció de la configuració tipus de l’elèctrode de posta a terra, cal trobar el valor màxim que haurà de tenir el paràmetre característic de la resistència de posta a terra sent aquest : K’r= Rt/ ρ =16,64 / 75 = 0,222 Ω/Ω·m On: - K’r : Valor màxim del paràmetre característic de la resistència de posta terra. [Ω/Ω·m] - Rt : Resistència màxima de la posta a terra del CT [W] - ρ : Resistivitat del terreny [Ω·m] 3.5.5.4 Elecció de la configuració tipus Una vegada hem aconseguit el valor de K’r ja podem seleccionar l’elèctrode tipus en funció de les dimensions del CT, ja que és necessari que el centre estigui ubicat dins del perímetre de la configuració escollida, i a part també haurà de tenir Kr inferior a la calculada. - K’r……………………………..0,222(Ω/Ω · m). - Longitud exterior del CT ............7240 mm. - Amplada exterior del CT ........... 2620 mm. Albert Bel Esteller Enginyer Tècnic Industrial en Electricitat 23
  • 86.
    Electrificació Polígon Industrial“Los Campets” Annex de Càlcul - Amplada excavació .....................3420 mm. - Profunditat excavació..................700 mm. Tenint present les dades exposades anteriorment i consultant l’annex 2 del document UNESA “Método de cálculo y proyecto de instalaciones de puesta a tierra para Centros de Transformación” adoptem una configuració del codi següent: 80-30 / 5 / 8 2 On: - 80 = longitud del rectangle [dm] - 30 = amplada del rectangle [dm] - 5 = profunditat de l’instal’lació. [dm] - 8 = nº de piques que formen la configuració. - 2 = longitud de les piques [m] Els valors que s’indiquen en aquestes taules de l’annex 2, corresponen a elèctrodes amb piques de 14 mm de diàmetre i conductor de coure nu de 50 mm2 de secció. Per a d’altres diàmetres de pica i altres seccions de conductor, de l’empleat en la pràctica, poden utilitzar-se igualment aquestes taules, ja que aquestes magnituds determinades en les taules de l’annex esmentat no afecten pràcticament al comportament de l’elèctrode. I amb els següents paràmetres característics de la configuració escollida tindrem els següents resultats: - Kr = 0,069 Ω/Ω·m - Kp = 0,0145 Ω/Ω·m - Kp (acc) = 0,0303 Ω/Ω·m On: - Kr : paràmetre característic de la resistència. - Kp : paràmetre característic de la tensió de pas. - Kp(acc) : paràmetre característic de la tensió de pas en l’accés del CT. Podem observar que si la configuració tipus la comparem a les condicions establertes tant com a dimensions del CT com obtenir una Kr menor que la calculada K’r, complim totes dues coses. Al plànol de preses a terra de servei i protecció es pot veure amb més detall la ubicació i totes les característiques de la xarxa de terres de servei i de protecció. Albert Bel Esteller Enginyer Tècnic Industrial en Electricitat 24
  • 87.
    Electrificació Polígon Industrial“Los Campets” Annex de Càlcul 3.5.5.5 Càlcul de la resistència de la posta a terra Tenint present els valors que ens aporta la configuració escollida de la posta a terra es procedirà als càlculs. 3.5.5.5.1 Resistència de la posta a terra L’obtenim aplicant la següent expressió: Rt = Kr · ρs =0,069·75 = 5,175 Ω On: - Kr = paràmetre característic de la resistència segons configuració escollida. - ρs = resistivitat del terreny. La intensitat de la corrent per defecte amb el valor de Rt serà: 25.000 I'd = = 565,365 A 3· 5,175 + 25 2 2 Tensió de pas en l’exterior del CT V’p = Kp · ρs · I’d = 0,0145 x 75 x 565,365= 614,83 V Tensió de pas en l’accés al CT V’pacc = Kpacc · ρs · I’d = 0,0303 x 75 x 565,365 = 1.284,79 V Tensions en l’interior del CT El terra del centre de transformació incorpora un mallasso electrosoldat amb rodons de diàmetre 6 mm, formant una retícula no superior a 0,3 x 0,3m. Aquest mallasso es connectarà com a mínim en dos punts perfectament oposats a la posta de terra de protecció del CT. Amb aquesta disposició s’aconsegueix que la persona que tingui que accedir a una part que pugui quedar en tensió de forma eventual, està sobre una superfície equipotèncial, amb lo que desapareix el risc inherent a la tensió de contacte i de pas interior. Aquest mallasso es cobrirà amb una capa de formigó de 10 centímetres d’espessor com a mínim. L’edifici prefabricat de formigó estarà construït de tal manera que un cop fabricat, el seu interior sigui una superfície equipotencial. Aquesta armadura equipotencial es connectarà al sistema de terres de protecció, excepte portes i reixes que estaran aïllades amb una resistència igual o superior a 10kW. Així doncs no serà necessari el càlcul de les tensions de pas i contacte en l’interior de la instal·lació, ja que el seu valor serà pràcticament nul. Tensió de defecte Vd = Rt x I’d = 5,175 x 565,365 = 2.925,76 V Albert Bel Esteller Enginyer Tècnic Industrial en Electricitat 25
  • 88.
    Electrificació Polígon Industrial“Los Campets” Annex de Càlcul 3.5.6 Càlcul dels Valors Màxims Admissibles que Poden Aparèixer en la Instal·lació D’acord amb el punt 1.1 del MIE-RAT 13 , la tensió màxima de contacte aplicada a una persona, entre mans i peus serà determinada en funció del temps de duració del defecte, segons la fórmula: Vca= K/tn = 78,5/10,18=78,5 V Sent: - K=72 i n=1 per a temps inferiors a 0,9 s. - K=78 i n=0,18 per a temps superiors a 0,9s i inferiors a 3s. - t: duració de la falta en segons.(dades facilitades per la companyia t=1s) Tensió de pas en l’exterior del Centre de Transformació Vp = ((10·78,5)/10,18)·(1+(6·75/1000))=1.138,25 V Tensió de pas en l’accés al Centre de Transformació Sabent que la ρs’ és la resistivitat superficial del paviment de formigó del Centre de Transformació (ρs’= 3.000 Ω·m) Vpaccés=(10·78,5/10,18)·(1+3·75+3·3.000/1.000)=8.026,625 V Tensió de contacte Vc=(78,5/10,18)·1+1,5·3.000/1.000=431,75 V Tensió de defecte El nivell d’aïllament (tensió d’assaig) dels elements de baixa tensió en el CT serà de 10.000 V degut a les recomanacions fetes per UNESA. Comparació dels valors calculats amb els màxims admissibles Tensió de pas 614,83 V < 1.138,25 V calculada Tensió de pas 1.284,79 V < 8.026,63 V d’accés Tensió de 2.925,76 V < 10.000 V defecte Albert Bel Esteller Enginyer Tècnic Industrial en Electricitat 26
  • 89.
    Electrificació Polígon Industrial“Los Campets” Annex de Càlcul 3.5.7 Posta a Terra dels Neutres dels Transformadors El reglament en la seva instrucció MIE-RAT-13 apartat 6, estableix com a necessàries dues instal·lacions de posta a terra : la de protecció i la de servei, especificant els elements que han de ser connectats a cada una de les esmentades. En general, a la terra de protecció es connectaran les masses metàl·liques que normalment no estiguin sotmeses a tensió, però que poden estar-ho en cas d’avaria en la instal·lació elèctrica. A la de servei, en canvi, es connectaran entre d’altres elements els neutres dels transformadors dels centres de transformació. Tot i que en principi s’estableix com a norma general la interconnexió de les terres de protecció i servei, en l’apartat 7.7. de la RAT-13 es recomana la separació entre la connexió a terra del neutre i la corresponent a la terra general de protecció. S’admetrà la connexió a un terra general quan es compleixin les següents condicions : a) L’alimentació en AT forma part d’una xarxa de cables subterranis amb envolvents conductores de suficient qualitat. b) L’alimentació en AT forma part d’una xarxa mixta de línies aèries i cables subterranis amb una longitud total mínima de tres quilòmetres. Amb traçats diferents, o una longitud en cada un d’ells de més d’ un quilòmetre. Tenint en compte que els cables subterranis que normalment s’utilitza en l’actualitat no tenen coberta conductora, s’arriba a la conclusió de que és necessari disposar, en tots els casos de terres separades per les masses i per els neutres dels transformadors. D’acord amb el reglament, cal preveure la separació i l’aïllament adequat entre les dues presses de terra, sent necessari : a) Que entre els dos elèctrodes hi hagi una separació mínima que és fixa per l’equació : D= ρ·Id/2·π·U=75·565,365/2·π·1.000=6,75 m On: - D = distància mínima entre elèctrodes [ m] - ρs = resistivitat del terreny a la profunditat de la instal·lació [Ω·m] - Id = Intensitat de defecte, per la banda d’AT i serà facilitada per la companyia subministradora. [A] - U = tensió de defecte o nivell d’aïllament dels CT. [V] Tal com es pot veure en aquest resultat, la distància mínima entre elèctrodes de presa de terra de protecció i la de servei es de 6,86 m, es per això que a partir d’aquest resultat hem determinat una distància totalment arbitrària de 12 m, tal com es pot veure en el plànol de les preses a terra de protecció i de servei. Albert Bel Esteller Enginyer Tècnic Industrial en Electricitat 27
  • 90.
    Electrificació Polígon Industrial“Los Campets” Annex de Càlcul b) Que el conductor d’unió de l’elèctrode de posta a terra amb el born del neutre del transformador, o amb el born corresponent del quadre de BT, estigui aïllat (0,6 / 1 kV), i col·locat a l’interior del tub aïllant amb grau de protecció 7 segons norma UNE 20.324. 3.5.8 Elecció de l’elèctrode tipus i càlcul de les terres. Per la posta a terra del neutre de BT, és tindrà en compte que l’elevació de tensió en el terreny pròxim a aquest no sigui superior a 24V. A més és complirà la condició: U’b > I’d x Rb On: - U’b = tensió màxima de la posta a terra de bt al ser atravessada pel corrent màxim de defecte (24V) [V] - I’d =intensitat màxima de defecte terra en la instal·lació interior (0,65 A)[A] - Rb = resistència màxima de la posta a terra. [Ω] De l’expressió anterior podem obtenir la resistència màxima de la posta a terra : Una vegada connectada la xarxa de posta a terra de servei al neutre de la xarxa de BT, el valor d’aquesta resistència de posta a terra general haurà de ser inferior a 37 Ω. Amb aquest criteri s’aconsegueix que un defecte a terra en una instal·lació interior. Protegida contra contactes indirectes per un inetrruptor diferencial de sensibilitat 650mA, no produeixi en l’elèctrode de posta a terra de servei una tensió superior a 24 V. Rb = U’b / I’d = 24 / 0,65 = 37Ω. Ara, amb aquest valor ja podem assolir el valor màxim del paràmetre característic de la resistència de posta a terra en Ω/Ω x m ( K’r). K’r = Rb / ρ =37 / 75 = 0,493 Ω/Ω · m. Per tant el codi de la configuració escollida serà: 5 / 22 On: - 5 = profunditat d’instal·lació del elèctrode en dm - 2 = nº de piques. - 3 = separació entre piques en m. - 2 = Longitud de pica. Hem escollit aquesta configuració perquè el paràmetre característic de la resistència que ens proporciona aquesta configuració escollida (Kr) és inferior al màxim calculada (K’r). Albert Bel Esteller Enginyer Tècnic Industrial en Electricitat 28
  • 91.
    Electrificació Polígon Industrial“Los Campets” Annex de Càlcul Kr = 0,201 Ω/Ω x m < K’r =0,493 Ω/Ω · m Per tant obtenim una resistència menor, i conseqüentment la sobretensió no serà perillosa per a la instal·lació Rb = Kr x r = 0,201 x 125,7 = 15,075Ω < 37Ω Finalment les piques tindran un diàmetre de 14 mm i el conductor d’unió de les piques tindrà una secció de 50 mm2 de coure despullat. 3.6 Estimació y previsió dels transformadors dels CT’s 3.6.1 Previsió de subministraments de parcel·les per transformadors Superfície Parcel·la [m2] Potència [kW] Potència [kVA] TRAFOS 1 3.643 209,47 246,44 CT1 T1 2 3.643 209,47 246,44 CT1 T1 3 3.950 227,13 267,21 CT1T2 4 5.652 324,99 382,34 CT2 T1 5 3.145 180,84 212,75 CT2 T2 6 3.600 207,00 243,53 CT3 T1 7 3.736 214,82 252,73 CT3 T2 8 3.080 177,10 208,35 CT3 T1 9 2.744 157,78 185,62 CT4 T1 10 2.408 138,46 162,89 CT4 T2 11 2.072 119,14 140,16 CT4 T2 12 1.736 99,82 117,44 CT4 T1 13 1.400 80,50 94,71 CT5 T1 14 1.715 98,61 116,01 CT5 T1 15 7.887 453,50 533,53 CT5 T2 16 3.166,50 182,07 214,20 CT6 T1 17 1.687 97,00 114,12 CT2 T2 18 2.971 170,83 200,98 CT6 T1 19 5.857 336,78 396,21 CT6 T2 [taula 6] Com es pot observar en la taula 6, es realitza una estimació dels transformadors individualment, ja que alhora de treure la potencia total que ens pot consumir el polígon, s’havia fet a partir de les superfícies edificables totals i conseqüentment de la previsió de potencia per parcel·les. Una vegada realitzat això el que s’ha fet es distribuir els CT’s arreu del polígon per a que poguessin donar la potencia total per totes les parcel·les sempre mirant la potència de cadascuna, amb la potència màxima que podia donar cada CT. Albert Bel Esteller Enginyer Tècnic Industrial en Electricitat 29
  • 92.
    Electrificació Polígon Industrial“Los Campets” Annex de Càlcul Aquesta distribució dels CT’s s’ha fet a partir de la potència total aparent de cada CT, i en primera instància no s’ha tingut en compte la potència individual de cada transformador de l’interior del CT (cada CT consta de 2 transformadors de 400 kVA). I per lo tant sempre es important veure dins de cada CT, dels dos transformadors que hi ha, veure quin s’adapta millor a cada parcel·la o a cada conjunt de parcel·les. Amb aquesta taula el que s’intentarà doncs, es clarificar les sortides dels quadres de baixa de cada transformador de cada CT i veure amb més claredat els transformadors que subministren cada parcel·la. 3.6.2 Previsió de subministraments de parcel·les amb la previsió de potència per a l’enllumenat exterior del polígon Superfície Potència Potència Parcel·la [m2] [kW] [kVA] TRAFOS 1 3.643 209,47 246,44 CT1 T1 2 3.643 209,47 246,44 CT1 T1 3 3.950 227,13 267,21 CT1T2 4 5.652 324,99 382,34 CT2 T1 5 3.145 180,84 212,75 CT2 T2 6 3.600 207,00 243,53 CT3 T1 7 3.736 214,82 252,73 CT3 T2 8 3.080 177,10 208,35 CT3 T1 9 2.744 157,78 185,62 CT4 T1 10 2.408 138,46 162,89 CT4 T2 11 2.072 119,14 140,16 CT4 T2 12 1.736 99,82 117,44 CT4 T1 13 1.400 80,50 94,71 CT5 T1 14 1.715 98,61 116,01 CT5 T1 15 7.887 453,50 533,53 CT5 T2 16 3.166,50 182,07 214,20 CT6 T1 17 1.687 97,00 114,12 CT2 T2 18 2.971 170,83 200,98 CT6 T1 19 5.857 336,78 396,21 CT6 T2 Armari Enllumenat nº1 4,83 5,376 CT2 T2 Armari Enllumenat nº2 4,83 5,376 CT4 T1 [taula 7] Aprofitant doncs, amb la previsió de potència de l’enllumenat exterior i d’acord amb el que diu la instrucció ITC-BT-009, concretament a l’apartat 8, cada punt de llum haurà d’estar compensat individualment el factor de potencia per a que sigui igual o superior a 0,9, així mateix també haurà d’estar protegit contra sobreintensitats, tal com es determina en la ITC-BT 009 a l’apartat 9. Albert Bel Esteller Enginyer Tècnic Industrial en Electricitat 30
  • 93.
    Electrificació Polígon Industrial“Los Campets” Annex de Càlcul En aquesta taula es pot veure que si comparem les diferents previsions de potència per a les diverses parcel·les amb l’enllumenat exterior , aquest últim es gairebé despreciable, però per a aproximar-mos amb més exactitud amb el que pot ser a la realitat d’aquest polígon s’ha tingut en compte alhora de dimensionar els CT’s amb els respectius transformadors. 3.6.3 Previsió de futures ampliacions de transformadors TRAFO Pev. Pot per EXISTENT Previsió futura Trafo [kVA] [kVA] ampliació [kVA] CT 1 TRAFO 1 492,88 400 630 TRAFO 2 267,21 400 400 CT 2 TRAFO 1 382,34 400 400 TRAFO 2 326,87 400 400 CT 3 TRAFO 1 451,88 400 630 TRAFO 2 252,73 400 400 CT 4 TRAFO 1 303,06 400 400 TRAFO 2 303,06 400 400 CT 5 TRAFO 1 210,72 400 400 TRAFO 2 533,53 400 630 CT 6 TRAFO 1 415,18 400 630 TRAFO 2 396,21 400 400 [taula 8] Com es pot observar en la taula 8, hi ha parcel·les que necessiten més potència de 400 kVA com és el cas de la parcel·la 15. En aquest cas és tindrà en compte aquesta potència, però en un principi, com el que s’ha fet ha estat una previsió de potència, s’esperarà que s’instal·li una empresa, i en el cas que es necessiti la potència esmentada es realitzarà tal com s’indica en la taula següent un ampliació de transformador de 400kVA a 630 kVA. A l’igual que en el cas del trafo 2 del CT 5, es a dir la parcel·la 15, en d’altres transformadors, com el trafo 1 del CT1, el trafo 1 del CT3 i el trafo 1 del CT 6, també es pot veure com estan relativament saturats, però com ja hem dit abans aquests valors és en relació a la previsió de potència feta, en aquesta casos, també es seguirà la mateixa metodologia de treball, és a dir, s’esperarà que s’instal·lin les empreses, i en el cas en que es requereixi la potència prevista es realitzarien les ampliacions de trafos pertinents, tal com s’explica en la taula. Albert Bel Esteller Enginyer Tècnic Industrial en Electricitat 31
  • 94.
    Electrificació Polígon Industrial“Los Campets” Annex de Càlcul 3.7 Sortides de l’armari de Baixa tensió dels transformadors dels centres de transformació I sortida I total C1 S1 i S2 222,3125 444,625 C1 S3 i S4 222,3125 444,625 C2 S1 i S2 241,05 482,1 C1 S1 i S2 344,9125 689,825 C1 S3 i S4 191,925 383,85 C1 S1 i S2 219,6875 439,375 C1 S3 i S4 227,9875 455,975 C2 S1 i S2 187,95625 375,9125 C1 S1 334,9 334,9 C1 S2 293,9 293,9 C1 S3 252,8875 252,8875 C1 S4 211,875 211,875 C1 S1 170,875 170,875 C1 S2 209,3125 209,3125 C1 S3 i S4 350 700 C1 S1 i S2 193,2375 386,475 C2 S1 i S2 102,95 205,9 C1 S3 i S4 181,30625 362,6125 C2 S1 i S2 350 700 [taula 9] La taula 9 ens explica com, amb la previsió de potència feta, i els cables escollits per portar-la, quines sortides utilitzarem per a poder complir que la saturació del cable no ens augmenti un 80 %, i que la caiguda de tensió no ens passi els límits, així que tal com es pot veure portarem sortides doblades sempre que superem els 350 A, i com a partir d’aquí es divideix la intensitat en els casos que doblem circuits. Albert Bel Esteller Enginyer Tècnic Industrial en Electricitat 32
  • 95.
    Electrificació Polígon Industrial“Los Campets” Annex de Càlcul 3.8 Determinació dels fusibles adoptats per a les diferents sortides dels armaris de baixa FUSIBLES I sortida 315 222,3125 315 222,3125 315 241,05 400 344,9125 315 191,925 315 219,6875 315 227,9875 315 187,95625 400 334,9 400 293,9 315 252,8875 315 211,875 315 170,875 315 209,3125 400 350 315 193,2375 315 102,95 315 181,30625 400 350 [taula 10] Els fusibles escollits van d’acord amb la intensitat que es portarà per circuit, encara que cal dir que en el cas de parcel·les amb poca potència, hem posat un fusible mínim de 315A per a poder tenir un marge en cas d’una sobreintensitat o una ampliació de potència en alguna parcel·la. Diem que van d’acord amb les intensitats perquè s’escullen fusibles amb una intensitat de tall inferior a la intensitat màxima admissible que pot aguantar el cable, segons el cable, i així evitar avaries en la xarxa subterrània i evitar despeses innecessàries, d’aquesta forma en cas d’un augment d’intensitat superior a la intensitat de tall del fusible, es canviarà el fusible i la instal·lació estarà intacta. Albert Bel Esteller Enginyer Tècnic Industrial en Electricitat 33
  • 96.
    Electrificació Polígon Industrial“Los Campets” Annex de Càlcul 4 Xarxa de distribució en BT 4.1 Càlcul de la potència i intensitat màxima en cada parcel·la Tal com ja s’ha explicat amb tot detall en l’apartat de “Càlcul de la potència” de la memòria de càlcul, per a trobar la potència esmentada ens ha tocat seguir, tan el reglament de BT com diverses ordenances municipals de l’Ajuntament d’Alcanar. I serà a partir de la previsió de potència que s’ha fet, des d’on traurem la intensitat màxima de cada parcel·la. La Intensitat màxima de cada parcel·la es calcula amb la següent fórmula: P I= U ·cosϕ 3 On: - I: Intensitat [A] - U: Tensió en [V] - P : Potència prevista [kW] - Cos ϕ : Factor de potència = 0,85 Parcel·la Superfície [m2] Potència [kW] Intensitat [A] 1 3.643 209,47 355,70 2 3.643 209,47 355,70 3 3.950 227,13 385,68 4 5.652 324,99 551,86 5 3.145 180,84 307,08 6 3.600 207,00 351,50 7 3.736 214,82 364,78 8 3.080 177,10 300,73 9 2.744 157,78 267,92 10 2.408 138,46 235,12 11 2.072 119,14 202,31 12 1.736 99,82 169,50 13 1.400 80,50 136,70 14 1.715 98,61 167,45 15 7.887 453,50 770,09 16 3.166,50 182,07 309,18 17 1.687 97,00 164,72 18 2.971 170,83 290,09 19 5.857 336,78 571,88 [taula 11] Albert Bel Esteller Enginyer Tècnic Industrial en Electricitat 34
  • 97.
    Electrificació Polígon Industrial“Los Campets” Annex de Càlcul 4.2 Càlcul de les seccions dels conductors Per a determinar la secció dels conductors que utilitzarem ens basarem en dos mètodes, el primer mètode es tenint en compte les intensitats màximes admissibles amb tots els factors de correcció aplicats, i el segon mètode serà per càlcul de les caigudes de tensió. 4.2.1 Càlcul de les seccions mitjançant Intensitat Màxima Admissible Per a poder utilitzar el primer mètode esmentat, ens basarem amb les intensitats màximes admissibles per parcel·la i la ITC BT-07 del reglament de BT que ens dictamina la secció del conductor a escollir depenent del tipus de cable que hem escollit, que en el nostre son cables unipolars amb tipus d’aïllament de polietilè reticulat, i de la intensitat màxima admissible. El factor de correcció de la resistivitat tèrmica del terreny en principi, no afectarà la instal·lació, ja que els cables estaran enterrats en una rasa i no es preveu que la temperatura del terreny arribi a 25 ºC, ja que a la profunditat on aniran els cables les temperatures no són tan elevades. També cal explicar que per a evitar utilitzar factors de correcció en cables enterrats en un mateix pla és deixarà una distància superior a 8 cm. I en el cas de cables enterrats també per a evitar l’ús de factors de correcció a diferents plans, es deixarà una distància major de 10 cm. En el nostre cas, els cables unipolars escollits aniran entubats. Per lo tant si seguim el reglament de BT, concretament la ITC-BT-07 s’instal·larà un circuit per tub, la relació entre el diàmetre interior del tub i el diàmetre aparent del circuit serà superior a 2, podent- se acceptar 1,5 en casos excepcionals. En el cas d’una línia amb cable tripolar o amb una terna de cables unipolars a l’interior d’un mateix tub (nostre cas), s’aplicarà un factor de correcció de 0,8. Albert Bel Esteller Enginyer Tècnic Industrial en Electricitat 35
  • 98.
    Electrificació Polígon Industrial“Los Campets” Annex de Càlcul Aplicació del factor de correcció per cable entubat Intensitatcorregida Parcel·la [A] 1 444,629 2 444,629 3 482,098 4 689,827 5 383,848 6 439,381 7 455,979 8 375,914 9 334,906 10 293,897 11 252,888 12 211,879 13 170,870 14 209,316 15 962,61 / 700 16 386,472 17 205,899 18 362,611 19 714,85 / 700 [taula 12] Consideracions a tenir en compte alhora d’escollir la secció dels cables pel mètode d’Intensitat Màxima Admissible Pel que respecta la selecció dels cables alhora de la distribució en BT per tot el polígon, ens basarem amb el que es decreta a la instrucció ITC-BT-07 del Reglament de BT, concretament a la taula 4, on està el tipus de conductor escollit, com és el d’alumini unipolar amb aïllament de polietilè reticulat, i segons el reglament ens diu que la intensitat màxima admissible per aquest tipus de cable és de 430 A. Tot i això, per recomanacions de la companyia subministradora s’intentarà que els conductors no portin més de 350A per a que la saturació no ens pugi molt més del 80%, per a que els cables ens aguantin bé en cas d’alguna ampliació, o avaria. En conseqüència amb l’explicat al punt anterior, en el cas de les parcel·les nº15 i nº19 en que la intensitat es de 962,61 A i 714,848 A també s’ha arribat a la determinació que la intensitat màxima serà de 700 A d’acord amb les recomanacions de la companyia, i així poder facilitar els transport d’energia, que en ambdós casos es transportaria amb dos conductors de 3x240+1x150AL .(2x3x240+2x1x150 AL). Dit això cal que quedi clar que els cables que utilitzarem per a la xarxa de BT seran 3x1x240+1x150Al per a parcel·les que necessitaran fins a 350A per a poder tenir la Albert Bel Esteller Enginyer Tècnic Industrial en Electricitat 36
  • 99.
    Electrificació Polígon Industrial“Los Campets” Annex de Càlcul potència prevista, i que en els casos en que la intensitat a transportar serà superior 350A, passarem a portar la intensitat en una mateixa parcel·la amb dos cables en paral·lel 2x3x240+2x1x150 Al, i així poder portar fins als 700A. Determinació de les línies en funció de la potència de les parcel·les Parcel·la Intensitat [A] Intensitatcorregida [A] Saturació (%) 1 355,70 444,625 51,701 2 355,7 444,625 51,701 3 385,68 482,1 56,058 4 551,86 689,825 80,212 5 307,08 383,85 44,634 6 351,5 439,375 51,090 7 364,78 455,975 53,020 8 300,73 375,9125 43,711 9 267,92 334,9 77,884 10 235,12 293,9 68,349 11 202,31 252,8875 58,811 12 169,5 211,875 49,273 13 136,7 170,875 39,738 14 167,45 209,3125 48,677 15 770,09 962,6125 700 81,395 16 309,18 386,475 44,939 17 164,72 205,9 47,884 18 290,09 362,6125 42,164 19 571,88 714,85 700 81,395 [taula 13] 4.2.2 Càlcul de les seccions en funció de la caiguda de tensió La caiguda de tensió en cada línia de distribució no podrà superar el 5% de la tensió de la línia com estableix el reglament de baixa tensió. Per comprovar que la línia compleixi aquesta condició es realitzarà el càlcul de la secció per a una caiguda del 5% i s’adoptarà un valor normalitzat immediatament superior a la secció obtinguda. Per a realitzar el càlcul de la secció pel mètode de la caiguda de tensió utilitzarem la següent formula: 1 S= ·∑ ( Li·Pi ) ∆U ·U ·K Al On: - S = secció dels conductors [ mm 2 ] - ∆u = caiguda de tensió [ V ] - U = tensió entre fases [ V ] Albert Bel Esteller Enginyer Tècnic Industrial en Electricitat 37
  • 100.
    Electrificació Polígon Industrial“Los Campets” Annex de Càlcul - KAl = 35 (conductivitat de l’alumini). [m/Ω.mm2] - Li = distància des del transf. fins armari de distribució [m] - Pi = potència de cada parcel·la [ W ] Per fer la següent taula, a l’igual que en l’anterior, la nomenclatura que s’ha seguit ha estat la de numerar les parcel·les, i es per això que es dóna per suposat que amb les parcel·les ens referim a les línies que hi arriben. Parcel·la Li Pi ΣLi·Pi Secció [mm2] 1 35 209472,5 7331537,50 26,18 2 22 209472,5 4608395,00 16,46 3 35 227125,0 7949375,00 28,39 4 15 324990,0 4874850,00 17,41 5 70 180837,5 12658625,00 45,21 6 15 207000,0 3105000,00 11,09 7 15 214820,0 3222300,00 11,51 8 105 177100,0 18595500,00 66,41 9 30 157780,0 4733400,00 16,91 10 25 138460,0 3461500,00 12,36 11 35 119140,0 4169900,00 14,89 12 80 99820,0 7985600,00 28,52 13 25 80500,0 2012500,00 7,19 14 30 98612,5 2958375,00 10,57 15 50 453502,5 22675125,00 80,98 16 30 182073,8 5462212,50 19,51 17 25 97002,5 2425062,50 8,66 18 95 170832,5 16229087,50 57,96 19 150 336777,5 50516625,00 180,42 [taula 14] Com es pot veure en la taula 14, si fos per la caiguda de tensió, escolliríem unes seccions de cables molt reduïdes, això s’explica, degut a que com des d’un principi ja es va intentar distribuir totes les parcel·les, amb els CT’s més pròxims, el que hem aconseguit, és reduir en molta quantitat les caigudes de tensió. Pel que respecta al nostre cas, tal com hem pogut veure amb el primer mètode utilitzat per a calcular les seccions, el de la Intensitat màxima admissible dels conductors escollits, com en les parcel·les s’hi ha de portar molts kW, ens ha tocat portar en moltes parcel·les circuits doblats per a que la saturació no ens sobrepassés l’estipulat des d’un principi. És per aquest últim motiu que s’han escollit una secció de 240 Al, ja que amb una secció més petita tot i complir amb el mínim requerit pel mètode de la caiguda, seria més Albert Bel Esteller Enginyer Tècnic Industrial en Electricitat 38
  • 101.
    Electrificació Polígon Industrial“Los Campets” Annex de Càlcul complicat portar tota la potència, ja que ens tocaria triplicar o inclòs quadruplicar els circuits per a poder portar la potència requerida, i a part també s’haurien d’instal·lar armaris d’ampliació de BT als CT’s per a poder treure totes les sortides necessàries. Seguint amb els requisits que hem explicat pel que respecta a la forma en que distribuirem, en BT, a continuació anirà la taula de les caigudes de tensió per a cada circuit amb els 240Al escollits, i veritablement tindrem les caigudes que tindrem en realitat. Parcel·la Conductor Al cdt parcial [V] cdt parcial % 1 240 mm2 2,182 0,545 2 240 mm2 1,372 0,342 3 240 mm2 2,366 0,591 4 240 mm2 1,451 0,362 5 240 mm2 3,767 0,941 6 240 mm2 0,924 0,231 7 240 mm2 0,959 0,239 8 240 mm2 5,534 1,383 9 240 mm2 1,409 0,352 10 240 mm2 1,030 0,257 11 240 mm2 1,241 0,310 12 240 mm2 2,377 0,594 13 240 mm2 0,599 0,149 14 240 mm2 0,880 0,220 15 240 mm2 6,749 1,687 16 240 mm2 1,626 0,406 17 240 mm2 0,722 0,180 18 240 mm2 4,830 1,207 19 240 mm2 15,035 3,758 [taula 15] 4.2.3 Determinació de la secció dels Neutres Alhora de determinar la secció dels neutres es tindrà en compte l’apartat 2, Taula 1, de la instrucció ITC-BT-08 del Reglament de B.T, on es diu que: La secció del conductor neutre haurà, en tot el seu recorregut, ser com a mínim igual a la indicada en la taula següent, en funció dels conductors de fase. Concretament en el nostre cas en que es farà la distribució en baixa, tots amb cables de 240 Al, la secció del neutre haurà de ser com a mínim de 120 mm 2 . Albert Bel Esteller Enginyer Tècnic Industrial en Electricitat 39
  • 102.
    Electrificació Polígon Industrial“Los Campets” Annex de Càlcul 5 Càlcul enllumenat exterior 5.1 Càlculs Luminotècnics En aquest apartat detallarem tots els elements que composen el sistema d’enllumenat exterior del polígon, justificant totes les solucions adoptades. A banda d’aquests detalls que donarem a l’annex de càlcul hi anirà el càlcul realitzat pel programa “Calculux Viario”. També cal dir que se li ha donat certa importància per a realitzar els càlculs luminotècnics, els requeriments establerts en les instruccions tècniques complementàries generals d’enllumenat públic A-IT-G1. En aquestes s’indiquen les característiques d’il·luminació segons una classificació de les vies de circulació. Ja que, pel que respecta al tema d’enllumenat hi ha certes mancances alhora d’existir una legislació o normativa que legalitzi i normalitzi en xifres per a cada cas determinat. Per a vies interiors de polígons industrials, els estàndards i nivells mínims de qualitat luminotècnica són els següents: Il·luminància mitja Luminància Mitja Control d’enlluernament Tipus de via Uniformitat (cd/m2) (Lux) contrast (TI) Umbral de Índex “G” Autopistes i Molt bona carreteres 2 30-50 Um ≥ 0,75 >6 < 10% principals Carreteres Bona secundàries 1 15-25 Um ≥ 0,6 >5 < 10% amb tràfic Carrers Molt bona principals 2 30-50 Um ≥ 0,75 >6 < 10% Carrers Bona secundaris 1 15-25 Um ≥ 0,6 >5 < 10% amb fort tràfic Carrers Satisfactòria secundaris 0.5 7-15 Um ≥ 0,5 >4 < 20% amb poc tràfic [taula 16] Albert Bel Esteller Enginyer Tècnic Industrial en Electricitat 40
  • 103.
    Electrificació Polígon Industrial“Los Campets” Annex de Càlcul Per al nostre cas escollirem “carrers secundaris amb poc trànsit”, degut a que per part de l’Ajuntament es preveu que les empreses que s’estableixin en el polígon no tinguin activitat per la nit, i en cas de que hi hagués alguna, aquesta mateixa aportaria la millora de l’enllumenat adequant-lo a les necessitats de l’empresa. Dit això podem dir també que una de les coses que també s’ha intentat en el disseny de l’enllumenat exterior del polígon, és que la contaminació lumínica sigui la mínima, ja que en aquests temps que estem vivint, com l’energia no ens manca (ja sigui de fonts renovables o contaminants), hi ha moltes instal·lacions d’enllumenat molt sobre- dimensionades, especialment les podem trobar en ciutats o inclòs en moltes poblacions. I en el cas de un polígon, tenir entre 7 i 15 lux de mitja està massa bé. 5.1.1 Elecció de la lluminària Alhora d’enllumenar el polígon escollirem làmpades de vapor de sodi d’alta pressió, respecte a altres tipus de làmpades, aquestes presenten la gran avantatja de que tenen una vida molt més llarga (sobre les 12.000 hores), la qual cosa evita un manteniment freqüent. A més cal dir que presenten un rendiment molt elevat (de 70 a 120 lm/W). Un altre avantatja que podem trobar es el rang de potències que podem escollir, de dels 50 W fins als 1.000 W. El gran inconvenient que ens trobem en aquest tipus de lluminàries es que presenten un Índex de Reproducció Cromàtica molt baix, (entre 20 i 60), però després d’explicar quines son les previsions per part de l’Ajuntament d’Alcanar, en que per les nits no hi hagi massa activitat, no és un factor que ens importi gaire, ja que al ser un polígon no necessitaríem un IRC alt. Les dades de la lluminària i de la carcassa de fora escollides són les següents: - Tipus de carcassa: SGS305/150T FG P.9 X - Tipus de làmpada: 1x SON- TP 150W - Potència: 168 kW - Φ=16.500 lm 5.1.2 Càlcul de la distància entre lluminàries En funció de les dades de la lluminària escollida, haurem de saber a quina distància instal·larem els diversos punts de llum, per a poder garantir una bona qualitat, i complir amb els requisits preestablerts en anterioritat mitjançant la taula 16. Per a realitzar uns càlculs aproximats escollirem un rendiment del 40%. Flux útil de cada focus ΦU = Φ · η ΦU = 16.500 · 0,4 = 6.600 lm Albert Bel Esteller Enginyer Tècnic Industrial en Electricitat 41
  • 104.
    Electrificació Polígon Industrial“Los Campets” Annex de Càlcul On: - Φu = Flux útil - Φ = Flux de la lluminària - η = Rendiment de la lluminària Superfície il·luminada per cada focus Φ u 6.600 S = 12·D = = = 440m 2 E 15 On: - S: Superfície il·luminada per cada focus. [m2] - D: Distància de separació entre lluminàries [m] - E: Il·luminància mitja (taula anterior amb dependència del tipus de via) [lux] Distància entre focus: S 440 D= = = 36,66m 12 12 - S: Superfície il·luminada per cada focus. [m2] - D: Distància de separació entre lluminàries [m] El que ens diu l’aplicació d’aquestes fórmules, es que com a mínim, en aquestes lluminàries escollides per a poder donar una il·luminància mitja de 15 lux, els punts de llum han d’estar a 36,66 m, sabent això el que escollirem per a dimensionar-ho bastant es una distància de 30 m entre punts de llum. Atura dels punts de llum Per a calcular l’altura dels punts de llum ens hem basat en taules de valors recomanats d’acord amb la publicació nº12 de la CIE, 2ª Edició 1977. Albert Bel Esteller Enginyer Tècnic Industrial en Electricitat 42
  • 105.
    Electrificació Polígon Industrial“Los Campets” Annex de Càlcul En la taula 17 podem trobar l’altura dels punts de llum en relació a l’amplada de la calçada . Classe Amplada de Disposició Altura de d’instal·lació la calçada recomanada muntatge d’enllumenat (m) (m) A1 8/10 1-2 10-12 > 10 2-4 > 12 A2 < 10 1 >10 >10 2-3 10-12 b1 <8 1 >8 8/10 1-2 8-10 >10 2-3 > 10 b2 <8 1 >7,5 >8 1 8-9 C1-C2 -- 1 3,5-9 [taula 17] On: - Disposició Unilateral - Disposició en portell - Bilateral aparellada - Doble central Pel que respecta a les disposicions dels punts de llum, no es gaire important ja que a partir d’un determinat pressupost, o bé a partir d’aspectes constructius o requisits de disseny es pot escollir una o una altra disposició, sempre complint amb el preestablert prèviament. En el nostre cas el que s’ha escollit es una disposició en portell, per a evitar futurs problemes alhora de la compra de les parcel·les ja que s’ha pensat que si es feia en una disposició unilateral la banda oposada a la dels punts de llum, potser no interessava tant per falta de lluminositat, o a l’invers, ja que s’hi estan els bàculs a un cantó hi ha d’entrar algun camió a una parcel·la potser no hi podria entra amb tanta facilitat com si ho fes en el cantó oposat, es per això s’ha arribat a la solució final de fer una disposició en portell, per a repartir una mica tots els punts de llum i conseqüentment també els avantatges i inconvenients que s’han esmentat i que podrien arribar a tenir els compradors. Albert Bel Esteller Enginyer Tècnic Industrial en Electricitat 43
  • 106.
    Electrificació Polígon Industrial“Los Campets” Annex de Càlcul 5.2 Càlculs Elèctrics 5.2.1 Càlcul de la Potència de l’Enllumenat. Alhora de realitzar el càlcul de la potència a instal·lar, s’hauran de sumar les potències de tots els punts de llum que s’han tingut en compte alhora de dimensionar l’enllumenat exterior del polígon. En les potències dels punts de llum es tindran en compte els coeficients a aplicar per al càlcul de la previsió de càrregues establerts en la Instrucció ITC-BT BT 009 del Reglament Electrotècnic de Baixa Tensió, referent a les làmpades de descàrrega. Es realitzaran els càlculs de la instal·lació de l’enllumenat que estarà formada per dues línies de tres fases i neutre, que sortiran una de cada C.T. S’utilitzaran cables tetrapolars amb aïllament de polietilè reticulat tipus UNE RV 0,6/1 kV. Nº receptors càrrega (W) pot. total (W) LÍNIA 1 16 168·1,8 4.838,4 LÍNIA 2 16 168·1,8 4.838,4 TOTAL 32 9.676,8 [taula 18] La potència total de l’enllumenat serà de 9.676,8 W, dividida en les dues línies. Per lo tant a cada línia es contractarà una potència de 5 kW. Pel que respecta a l’esquema de la xarxa, en el plànol de distribució de l’enllumenat exterior es poden veure les dues línies i els dos armaris d’enllumenat públic que s’instal·laran en lloc permanentment accessible des de via pública segons Normativa Endesa. Per a poder facilitar la visualització dels càlculs que es realitzaran a posteriori, a continuació s’avança un esquema unifilar dels punts de llum amb els diversos nusos i distàncies. Albert Bel Esteller Enginyer Tècnic Industrial en Electricitat 44
  • 107.
    Electrificació Polígon Industrial“Los Campets” Annex de Càlcul 5.2.2 Càlcul de la secció dels conductors per Caiguda de Tensió El Reglament de B.T indica en la instrucció MIE BT 009 que la secció mínima dels conductors serà de 6 mm 2 , i la xarxa estarà prevista per transportar una càrrega mínima en voltampers de 1,8 vegades la potència en wats de les làmpades que alimenta. D’acord amb la instrucció MIE BT 017 del Reglament de B.T, s’adoptarà com a màxim una caiguda de tensió de 3 %. El procediment del càlcul consistirà en trobar la caiguda de tensió considerant una secció de 6 mm 2 i comprovant que la caiguda de tensió no superi el 3 %, en cas contrari s’escollirà una secció superior. La fórmula utilitzada pel càlcul de la caiguda de tensió serà: P· L·ρ ∆U = U ·S On: - ∆U = caiguda de tensió en V. - P = potència en W. - S = secció del conductor en mm 2 . - ρ = resistivitat del coure 1/56 Ω×m / mm 2 . Albert Bel Esteller Enginyer Tècnic Industrial en Electricitat 45
  • 108.
    Electrificació Polígon Industrial“Los Campets” Annex de Càlcul - U = tensió de subministrament en V. - L = longitud del conductor en metres. Els càlculs de les Caigudes de tensió en cada tram es realitzaran en cada una de les línies de la xarxa, que com ja s’ha informat prèviament són dues per armari d’enllumenat exterior, i es considerarà cada un dels trams que les formen. A banda d’això explicat, també és realitzaran tenint en compte els moments elèctrics, i es realitzarà mitjançant la fórmula següent: ρ ·∑ Li·Pi ∆U = U ·S On: - ∆U = caiguda de tensió [V] - Pi = potència [W] - S = secció del conductor en mm 2 (6 mm2) [mm2] - ρ = resistivitat de l’alumini 1/56 [Ω×m / mm2] - U = tensió de subministrament en V [400V] - L = longitud del conductor [m] A continuació es realitzaran els càlculs de les diverses línies d’enllumenat que s’instal·laran al polígon. Armari d’enllumenat nº 1. Sortida 1. Tram 1-2 1,8·168·[(33·4) + (93·3) + (153·2) + (213·1) ∆U = = 2,09V 56·400·6 ∆U ·100 ∆U % = = 0,52 % U Armari d’enllumenat nº 1. Sortida 1. Tram 1-3 1,8·168·[(17·4) + (77·3) + (137·2) + (197·1) ∆U = = 1,73V 56·400·6 ∆U ·100 ∆U % = = 0,433% U Armari d’enllumenat nº 1. Sortida 2. Tram 1-2 1,8·168·[(25·3) + (70·2) + (135·1) ∆U = = 0,7875V 56·400·6 Albert Bel Esteller Enginyer Tècnic Industrial en Electricitat 46
  • 109.
    Electrificació Polígon Industrial“Los Campets” Annex de Càlcul ∆U ·100 ∆U % = = 0,197% U Armari d’enllumenat nº 1. Sortida 2. Tram 1-3-5 1,8·168·[(25·5) + (70·4) + (135·3) + (180·2) + (240·1)] ∆U = = 3,175V 56·400·6 ∆U ·100 ∆U % = = 0,793% U Armari d’enllumenat nº 1. Sortida 2. Tram 1-3-4 1,8·168·[(25·4) + (70·3) + (130·2) + (170·1)] ∆U = = 1,665V 56·400·6 ∆U ·100 ∆U % = = 0, 4165% U Armari d’enllumenat nº 2. Sortida 1. Tram A-1-3-4 1,8·168·[(15·5) + (75·4) + (130·3) + (220·2) + (40·1)] ∆U = = 2,801V 56·400·6 ∆U ·100 ∆U % = = 0,700% U Armari d’enllumenat nº 2. Sortida 1. Tram A-1-3-5 1,8·168·[(15·6) + (75·5) + (130·4) + (220·3) + (290·2) + (350·1)] ∆U = = 5,79V 56·400·6 ∆U ·100 ∆U % = = 1,45% U Armari d’enllumenat nº 2. Sortida 1. Tram A-1-2 1,8·168·[(15·3) + (75·2) + (60·1)] ∆U = = 0,57V 56·400·6 ∆U ·100 ∆U % = = 0,14% U Armari d’enllumenat nº 2. Sortida 2. Tram A-1-3 1,8·168·[(55·7) + (115·6) + (175·5) + (235·4) + (290·3) + (350·2) + (410·1)] ∆U = = 10,96V 56·400·6 Albert Bel Esteller Enginyer Tècnic Industrial en Electricitat 47
  • 110.
    Electrificació Polígon Industrial“Los Campets” Annex de Càlcul ∆U ·100 ∆U % = = 2,74% U Armari d’enllumenat nº 2. Sortida 2. Tram A-1-2 1,8·168·[(55·5) + (115·4) + (175·3) + (235·2) + (275·1)] ∆U = = 4,51V 56·400·6 ∆U ·100 ∆U % = = 1,13% U Com s’ha pogut veure els resultats de tots els trams calculats no han superat en cap cas la ∆V, determinada al reglament de Baixa Tensió, que com ja s’ha avançat anteriorment es del 3%. Cal dir que en el cas que ens hagués superat el 3% amb una determinada secció de cable, el que es faria és provar de calcular la caiguda de tensió amb la secció immediatament superior fins que aconseguim una caiguda de tensió d’acord amb el reglament de Baixa Tensió. 5.2.3 Càlcul de la Secció dels Conductors per Intensitat Màxima Admissible Alhora de realitzar el càlcul de la secció també tindrem en compte realitzar-ho a partir de la Intensitat Màxima Admissible del conductor escollit i la potència a transportar. Per escollir la secció dels cables a partir del càlcul de la intensitat màxima admissible es seguirà la instrucció MIE BT 007 del Reglament de Baixa Tensió. Amb el valor calculat de la intensitat es comprovarà la secció corresponent, què figura en la Taula I per a cables amb conductors de coure. P I= U ·cosϕ · 3 On: - P: Potència acumulada per línia calculada [W] - U: Tensió de subministrament [V] - I: Intensitat per línia [A] - Cos ϕ : Factor de potència, que en al cas de les llumeneres considerarem 0,9 per les bateries de condensadors que hi porten normalment cada llumenera. Intensitat línia de l’Armari d’enllumenat nº1 P = 1,8·n·W = 1,8·16·168 = 4.838,4W P 4.838,4 I= = = 7,76 A U ·cos ϕ · 3 400·0,9· 3 Albert Bel Esteller Enginyer Tècnic Industrial en Electricitat 48
  • 111.
    Electrificació Polígon Industrial“Los Campets” Annex de Càlcul Intensitat línia de l’Armari d’enllumenat nº2 P = 1,8·n·W = 1,8·16·168 = 4.838,4W P 4.838,4 I= = = 7,76 A U ·cos ϕ · 3 400·0,9· 3 S’aplicarà un factor de correcció de la intensitat per tractar-se de cables instal·lats dins d’un tub enterrat tal i com s’estableix en la ITC-BT-007. El factor de correcció de la intensitat màxima admissible serà de 0,8. No serà necessari aplicar altres factors que es descriuen en la citada instrucció per les característiques de la disposició del cable. Intensitat corregida línia de l’Armari d’enllumenat nº1 I 7,76 Ic = = = 9,7 A 0.8 0,8 Intensitat corregida línia de l’Armari d’enllumenat nº2 I 7,76 Ic = = = 9,7 A 0.8 0,8 Els resultats dels càlculs realitzats amb la fórmula de la intensitat anteriorment mostrada apareixen en les taules 19 i 20: Armari d'enllumenat nº1 Sortida 1 nombre lluminàries P [W] In [A] Ic[A] S[mm2] Tram 1-2 4 1209,6 1,940 2,425 6 Tram 1-3 4 1209,6 1,940 2,425 6 Sortida 2 nombre lluminàries P [W] In [A] Ic[A] S[mm2] Tram 1-2 3 907,2 1,455 1,819 6 Tram 1-3-5 5 1512 2,425 3,031 6 Tram 1-3-4 4 1209,6 1,940 2,425 6 [taula 19] Armari d'enllumenat nº2 Sortida 1 nombre lluminàries P [W] In [A] Ic[A] S[mm2] Tram A-1-3-4 5 1512 2,425 3,031 6 Tram A-1-3-5 6 1814,4 2,910 3,637 6 Tram A-1-2 3 907,2 1,455 1,819 6 Sortida 2 nombre lluminàries P [W] In [A] Ic[A] S[mm2] Tram A-1-3 7 2116,8 3,395 4,244 6 Tram A-1-2 5 1512 2,425 3,031 6 [taula 20] Albert Bel Esteller Enginyer Tècnic Industrial en Electricitat 49
  • 112.
    Electrificació Polígon Industrial“Los Campets” Annex de Càlcul Amb el valor de la intensitat, s’escollirà la secció mínima indicada en la Taula I del Reglament de B.T: Secció = 6 mm 2 . Aquesta serà suficient per conduir la intensitat màxima de cada línia ja que el seu límit és molt superior: I = 56 A, tal com s’indica en la taula 5 de la ITC-BT-07. Per determinar la secció dels conductors corresponents al neutre es complirà la instrucció ITC-BT-07, concretament al punt 1, taula 1 la qual indica que per a conductors de fase de fins a 6 mm2 de secció, els neutres tindran la mateixa secció. 5.3 Posta a Terra de l’Enllumenat exterior del polígon Pel que respecta a la posta a terra de l’enllumenat exterior, tal com s’indica en la ITC-BT-09, concretament a l’apartat 10, la màxima resistència de posta a terra serà tal, que al llarg de la vida la instal·lació i en qualsevol època de l’any, no es poden produir tensions de contacte majors de 24 V en les parts metàl·liques accessibles de la instal·lació. (suports, quadres metàl·lics...) La posta a terra dels suports que sostenen les lluminàries es realitzarà connectant individualment cada suport, mitjançant un conductor de protecció de coure, a la línia principal de terra de coure, la qual estarà unida en un extrem a un elèctrode mitjançant una línia d’enllaç. En la xarxa de terra s’instal·laran com a mínim un elèctrode de posta a terra cada 5 suports, i sempre en el primer i últim suport de cada línia. Però com ja s’ha avançat, en el nostre cas se’n col·locarà un per suport. Segons l’apartat 10 de la instrucció ITC-BT-09 en l’apartat 10: - Els conductors de la xarxa de terra que uneixen els elèctrodes hauran de ser despullats, de coure de 35 mm2 de secció mínima si formen part de la pròpia xarxa de terra, en aquest cas aniran per fora de les canalitzacions dels cables d’alimentació. - Aïllats, mitjançant cables de tensió assignada 450/750 V, en recobriment de color verd-groc, amb conductors de coure, de secció mínima 16 mm2 per a xarxes subterrànies, i d’igual secció que els conductors de fase per a les xarxes posades, en aquest cas aniran per l’interior de canalitzacions dels cables d’alimentació. Així que per a resumir amb el que determina la instrucció esmentada, s’estableix per a la línia principal de terra que el conductor tindrà una secció mínima de 16 mm 2 , i de 35 mm2 per a la línia d’enllaç. Per lo tant el cable que unirà les diferents piques entre elles i entre les piques i les columnes es realitzarà amb cable de coure de 35 mm2. A més de la posta a terra, el sistema de protecció constarà d’un interruptor diferencial de 30 mA de sensibilitat. Si lliguem el primer punt que diu la ITC-BT-09, en l’apartat 10, on diu que no es poden produir tensions de contacte majors de 24 V en les parts metàl·liques accessibles de la instal·lació. (suports, quadres metàl·lics...) , i posem un interruptor diferencial de 30 mA ens quedarà el següent: Albert Bel Esteller Enginyer Tècnic Industrial en Electricitat 50
  • 113.
    Electrificació Polígon Industrial“Los Campets” Annex de Càlcul 24 R= = 800Ω 0,03 Per lo tant amb el diferencial instal·lat i agafant el cas més desfavorable que marca el reglament de BT, la resistència total del circuit de terres haurà de ser més petita de 800Ω. D’acord amb la ITC-BT-18 ap. 9 taula 5, després de revisar la taula 4 de la ITC- BT18 i examinar amb molt deteniment el terreny, s’arriba a la determinació que la resistivitat mitja es de 75 Ωm, i com que els elèctrodes a utilitzar seran piques verticals de 2 metres de llargada, aplicarem la fórmula de la ITC-BT-18 Taula 5, amb la qual obtenim la resistència a terra per pica. ρ 75 R= = = 37,5Ω L 2 On: - ρ: Resistivitat mitja del terreny [Ω·m] - L: Longitud de la pica [m] - R: Resistència de terra [Ω] Quantitat inferior a la resistència màxima permesa. Tenint en compte que totes les piques estaran unides entre elles i que el nombre total de piques serà de 32. Per a cada línia, i tal com es pot veure a les taules anteriors el nombre màxim de suports serà de 7, i amb la unió d’aquestes encara aniríem per sota de la màxima permesa. S’instal·larà una línia de posta a terra per cada una de les línies d’enllumenat exterior de les que consta el polígon. Se situarà una pica en cada un dels suports. La connexió de les diferents piques entre elles i entre les piques i els suports es realitzarà amb cable de coure de 35 mm² de secció. 5.4 Càlcul dels Elements de Protecció i Comandament Cada una de les línies de l’enllumenat exterior del polígon sortirà d’un armari de comandament situat al costat dels centres de transformació CT2 i CT4. Dins d’aquests armaris s’instal·laran els elements necessaris de protecció i comandament de la línia, així com els aparells de mesura. El dimensionat es farà segons la potència contractada i d’acord amb les especificacions de la companyia subministradora d’energia. En el nostre cas, es contractarà una potència de 8 kW per armari, ja que tenim una previsió de que el polígon creixi tan en superfície com en empreses grans, i d’aquesta forma potser es necessiti millorar, tan qualitativament, com quantitativament, l’enllumenat exterior del polígon. A banda d’això cal dir que fins a 13,8 kW els subministraments per a enllumenats exteriors són monofàsics, i per lo tant en el nostre cas també ho serà. En aquest mateix armari s’instal·larà un conjunt de protecció i mesura M2 per a la companyia, i un mòdul de control per al client. A partir de la intensitat nominal de la línia d’enllumenat de cada armari de comandament es seleccionaran els fusibles de seguretat, els equips de mesura, l’interruptor Albert Bel Esteller Enginyer Tècnic Industrial en Electricitat 51
  • 114.
    Electrificació Polígon Industrial“Los Campets” Annex de Càlcul tetrapolar magnetotèrmic (ICP), l’interruptor diferencial (ID), interruptors magnetotèrmics (PIA) i contactors de maniobra. Els diferents aparells esmentats en el nostre cas seran els següents: Armari nº1 Armari nº2 Potència a contractar 8 8 [kW] Fusibles de seguretat 63 A 63 A Conjunt de mesura M2 15 A M2 15A Magnetotèrmic ICP In 40 A In 40 A Tall 4.5 kA Tall 4.5 kA Diferencial ID In 40A In 40A Is 30 mA Is 30 mA Contactor 30 A 30 A PIA In 10 A In 15 A In 10 A In 15 A Tall 10 kA Tall 10 kA Tall 10 kA Tall 10 kA En l’annex s’adjuntarà un ITI facilitat per la companyia on es determina el conjunt de protecció i mesura i tots els elements que els formen com per exemple els fusibles, magnetotèrmics... Alcanar, a 19 d’Agost de 2004 Albert Bel Esteller Enginyer Tècnic Industrial en Electricitat Albert Bel Esteller Enginyer Tècnic Industrial en Electricitat 52
  • 115.
    Electrificació Polígon Industrial“Los Campets” Pressupost Plànols AUTORS: Albert Bel Esteller DIRECTORS: J. J. Tena Tena. DATA: Setembre / 2004. Albert Bel Esteller Enginyer Tècnic Industrial en Electricitat 1
  • 116.
    ALCANAR 1 32 V-3 rT Ronda Circunval·lació na Terme Municipal d'Alcanar d'A lca a ter Tarragona (Catalunya) Ca rre Polígon Industrial "Los Campets" Pont de l'estació Riu Sènia Terme Municipal de Vinaròs Castelló (País Valencià) l'AP-7 de cona Albert Bel Vina /sortida Ullde J.J. Tena ròs i da s Peatg ió Vinarò d'Alc e d'entra UNE ALBERT BEL Nº Col:3456 anar, c Direc 1:5.000 SITUACIÓ Albert Bel 3r Curs d'Enginyeria
  • 117.
    Ronda Circunval·lació Terme Municipal d'Alcanar Tarragona (Catalunya) -33 21 TV ar an 'Alc Los Campets ad ter rre Ca Pont de l'estació 7 l'AP- Terme Municipal de Vinaròs Riu Sènia a de Castelló (País Valencià) econ aròs rtida i Ulld anar trada/so s Peat ió Vinarò , Vin 'en Albert Bel ge d J.J. Tena c Direc UNE ALBERT BEL Nº Col:3456 d'Alc 1:2000 EMPLAÇAMENT Albert Bel 3r Curs d'Enginyeria
  • 139.
    Electrificació Polígon Industrial“Los Campets” Pressupost Pressupost AUTORS: Albert Bel Esteller DIRECTORS: J. J. Tena Tena. DATA: Setembre / 2004. Albert Bel Esteller Enginyer Tècnic Industrial en Electricitat 1
  • 140.
    Electrificació Polígon Industrial“Los Campets” Pressupost Índex del Pressupost 1.- Quadre de preus .................................................................................................. 3 A.- LÍNIA AÈREA DE MITJA TENSIÓ........................................................... 3 B.- LÍNIA SUBTERRÀNIA DE MITJA TENSIÓ............................................. 4 C.- CENTRE DE TRANSFORMACIÓ ............................................................. 6 D.- LÍNIES DE DISTRIBUCIÓ SUBTERRÀNEA DE BAIXA TENSIÓ ......... 8 E.- ENLLUMENAT PÚBLIC ......................................................................... 11 2.- AMIDAMENTS ............................................................................................... 13 A.- LÍNIA AÈRIA DE MITJA TENSIÓ.......................................................... 13 B.- LÍNIA SUBTERRÀNIA DE MITJA TENSIÓ........................................... 14 C.- CENTRE DE TRANSFORMACIÓ ........................................................... 16 D.- LÍNIES DE DISTRIBUCIÓ SUBTERRÀNEA DE BAIXA TENSIÓ ....... 20 E.- ENLLUMENAT PÚBLIC ......................................................................... 25 3.- PRESSUPOST .................................................................................................. 27 A.- LÍNIA AÈRIA DE MITJA TENSIÓ.......................................................... 27 B.- LÍNIA SUBTERRÀNIA DE MITJA TENSIÓ........................................... 28 C.- CENTRE DE TRANSFORMACIÓ ........................................................... 30 D.- LÍNIES DE DISTRIBUCIÓ SUBTERRÀNEA DE BAIXA TENSIÓ ....... 33 E.- ENLLUMENAT PÚBLIC ......................................................................... 37 4.- RESUM DEL PRESSUPOST ....................................................................... 39 Albert Bel Esteller Enginyer Tècnic Industrial en Electricitat 2
  • 141.
    Electrificació Polígon Industrial“Los Campets” Pressupost 1.- QUADRE DE PREUS A.- LÍNIA AÈREA DE MITJA TENSIÓ Codi Unitat Descripció Preu A.1 U Castillet metàl·lic galvanitzat, amb muntatge zero de 16m d’altura i 2000 kg d’esforç amb creuetes. 609,64 A.2 U Castillet metàl·lic galvanitzat, amb muntatge zero de 16m 486,95 d’altura i 1000 kg d’esforç amb creuetes. A.3 U Base fusible unipolar, amb muntatge vertical per exterior 119,53 A.4 U Cartutx fusible A.P.R. exterior de 32 A i 36 kV 47,60 A.5 U Unitat de presa a terra composta per barilla de coure de 2m i 18 13,22 mm2 més abraçadera A.6 kg Conductor de coure nu de 50 mm2,unió entre elèctrode i 4,30 recolzament A.7 U Seccionador tripolar intempèrie, amb dispositiu de posta a terra i muntatge vertical, 30/36 kV,400A 913,66 A.8 U Joc de cadenes d’amarre amb tres aïlladors 14,00 A.9 U Placa d’identificació de perill 2,64 A.10 U Conjunt de ferratges per la subjecció de les autovàlvules i 25,48 terminals A.11 U Conjunt de ferratges per la subjecció de les autovàlvules i 219.56 terminals Albert Bel Esteller Enginyer Tècnic Industrial en Electricitat 3
  • 142.
    Electrificació Polígon Industrial“Los Campets” Pressupost B.- LÍNIA SUBTERRÀNIA DE MITJA TENSIÓ Codi Unitat Descripció Preu B.1 m Rasa 1 circuit M.T. obertura a màquina i a ma en terra amb 7,83 protecció de sorra. Compren l’obertura i demolició de 1m de rasa de 0,40m x 0,90m, ballat i tapat amb la retirada de terres sobrants B.2 m Rasa MT 1C amb obertura a mà i a màquina en terra amb 25,00 protecció de tubulars formigonats. Inclou l’obertura i demolició de 1 m de rasa de 0,4mx0,9m, ballat i tapat amb retirada de terres sobrants, i amb cobriment de tubular formigonat amb formigó H-125, per a creuament de calçada. B.3 m Tapat de la rasa i compactat a màquina en capes de 15 cm 9,90 d’espessor, donant la humitat necessària a les terres per obtenir una compactació igual o superior al 95% B.4 m Subministrament i estesa en rasa i en tubulars fins 20 m de 16,90 cable unipolar d’alumini 18/30 kV 3x1x240 mm2. Consta de disposar dels mitjans necessaris per l’estesa i descàrrega de la bobina amb grua situant-la sobre un eix que faciliti el seu desenvolupament. Inclou subministrament i col·locació d’abraçadera de forma que les fases de un mateix circuit quedin unides en l’interior de la rasa B.5 m Subministrament, distribució i col·locació de cinta PE de 0,73 senyalització de cables subterranis en l’interior de la rasa B.6 m Subministrament, distribució i col·locació en rasa de 1 m linial 2,50 de plaques de PE per protecció d’un circuit de cable subterrani. Les plaques aniran ensamblades entre si en sentit longitudinal utilitzant-se plaques de 1 m de longitud per trams rectes i de 0,5 pels corbats B.7 U Marcar, mesurar i confeccionar els plànols “AS BUILT” de les 1002,00 instal·lacions realitzades, entregat en paper vegetal. (Entre 1 i 100 m de cable). B.8 U Acabat interior termorretràctils per cable unipolar sec de secció 313,50 1x240 mm2 Al i terminacions 36 kV del tipus endollable i model M-400LR de ELASTIMOLD. Inclou muntatge, ma d’obra i elements auxiliars. Albert Bel Esteller Enginyer Tècnic Industrial en Electricitat 4
  • 143.
    Electrificació Polígon Industrial“Los Campets” Pressupost Codi Unitat Descripció Preu B.9 U Assaig tripolar de l’estesa per la comprovació del circuit 506,00 3x1x240 18/30 kV i el seu perfecte estat després de l’estesa. 460,01 B.10 U Conjunt de terminacions exteriors 240 mm2. Connexions entre 415,83 LAMT i LSMT en conversió. B.11 m Conductor d’alumini UNE DHV 18/30 kV 3x240 10,32 Albert Bel Esteller Enginyer Tècnic Industrial en Electricitat 5
  • 144.
    Electrificació Polígon Industrial“Los Campets” Pressupost C.- CENTRE DE TRANSFORMACIÓ Codi Unitat Descripció Preu 3 C.1 m Terraplanat i piconatge per coronació de terraplè amb material 3,77 seleccionat, amb capes de 25 cm, com a màxim, amb compactació del 95%. C.2 m2 Malla electrosoldada de filferros corrugats d’acer AEH 500T 2,71 de límit elàstic 5100 kP/cm2, per l’armadura de lloses de 15 x15 cm de 6 mm de diàmetre C.3 m2 Formigó, per lloses, H-200 de consistència plàstica i amplitud 79,33 máxima del ranurat 20 mm, bolcat amb cubeta C.4 m3 Llit de sorra per CT prefabricada col·locada 20,33 C.5 U Edifici de transformació PF-203/303. Recobriment prefabricat 8701,40 de formigó, que inclou l’edifici, portes d’accés, portes de trafo, reixes de ventilació, canalitzacions per cables , ferratges interiors propis del seu us i transport, muntatge i accessoris C.6 U CGM-CML interruptor seccionador. Cel·la amb embolcall 3870,17 metàl·lic, prefabricat per ORMAZABAL, formada per un mòdul de tensió nominal 36kV e intensitat nominal 400 A de mides 420x 850x1800 mm. Amb telecomandament del tipus B. Inclou el muntatge, la ma d’obra i els elements auxiliars. C.7 U Cel·la CGM-CMP-F Protecció fusibles. Cel·la amb embolcall 5325,12 metàl·lic, prefabricada per ORMAZABAL, formada per un mòdul de tensió nominal 36kV e intensitat nominal 400 A i de mides 420x850x1800mm. Amb telecomandament del tipus B. Inclou muntatge, ma d’obra i elements auxiliars. C.8 U Cables de MT 18/30 kV del tipus DHV, unipolars, amb 2101,61 aïllament de etilè-propilè i pantalla amb sorona, sense armadura i amb coberta de PVC, amb conductors de secció i material 1x150 Al utilitzant 3 de 6 m de longitud i terminacions 36 kV del tipus endollable i model M-400LR de ELASTIMOLD. Inclou el muntatge, la ma d’obra i elements auxiliars. C.9 U Transformador 400 kVA. Transformador de distribució en 6842,52 bany d’oli sèrie 36 kV de 400 kVA. Col·locat. C.10 U Quadre de baixa tensió AC-4, amb quatre sortides amb fusibles 315,13 en base tipus ITV, marca ORMAZABAL. Inclou muntatge, ma d’obra i elements auxiliars. C.11 U Joc de cables per pont de BT, de secció 2x240mm2 AL d’etilè- 510,20 propilè sense armadura. Inclou ma d’obra, muntatge i accessoris. Albert Bel Esteller Enginyer Tècnic Industrial en Electricitat 6
  • 145.
    Electrificació Polígon Industrial“Los Campets” Pressupost Codi Unitat Descripció Preu C.12 U Terra de protecció del transformador. Instal·lació de presa a 1.015,22 terra de protecció degudament muntada i connectada utilitzant conductor nu de CU amb les següents característiques, geometria d’anell rectangular, profunditat 0,5m sense piques, de dimensions 8 x 3 m. C.13 U Terres de servei o neutre del trafo. Instal·lació exterior 722,95 realitzada amb Cu aïllat amb el mateix tipus de materials que les terres de protecció C.14 U Instal·lació interior de la terra de protecció en l’edifici de 622,92 transformació, amb el conductor de cu nu grapat en paret i connectat a les cel·les i demés aparamenta de l’edifici, així com a una caixa general de terres de protecció segons les normes de la cia. C.15 U Instal·lació interior de terres de servei en CT, amb el conductor 623,83 Cu aïllat grapat en la paret i connectat al neutre de BT, així com a una caixa general de terres de servei segons normes cia. C.16 U Piqueta de connexió a terra d’acer recoberta de coure de 2 m la 30,05 longitud i 16 mm de diàmetre, estàndard i clavada a terra. Inclou els connectors per la connexió a la xarxa de terres. C.17 U Reixa metàl·lica per defensa del transformador, amb un pany 253,53 enclavat amb la cel·la de protecció corresponent. Inclou muntatge, ma d’obra i elements auxiliars. C.18 U Equip d’enllumenat que permet la suficient visibilitat per 175,31 realitzar les maniobres i revisions necessàries de les cel·les de MT i equip autònom d’enllumenat d’emergència i senyalització del local. Inclou muntatge, ma d’obra i elements auxiliars. C.19 U Equip d’operació, maniobra i seguretat per permetre la 106,44 realització de les maniobres amb aïllament suficient per protegir al personal durant l’execució de les maniobres i operacions de manteniment. Inclou ma d’obra, muntatge i elements auxiliars. C.20 U Plaques de senyalització i perill formades per senyal CT i placa 9,16 senyalització trafo. Inclou muntatge, ma d’obra i elements auxiliars. Albert Bel Esteller Enginyer Tècnic Industrial en Electricitat 7
  • 146.
    Electrificació Polígon Industrial“Los Campets” Pressupost D.- LÍNIES DE DISTRIBUCIÓ SUBTERRÀNEA DE BAIXA TENSIÓ Codi Unitat Descripció Preu D.1 m Rasa 1C BT amb obertura a màquina i a mà en terra amb 13,53 protecció de sorra. Inclou la obertura i demolició de 1m de rasa de 0,40m x 0,80m, ballat i tapar amb la retirada de terres sobrants D.2 m Rasa de 2 circuits BT amb obertura a mà i a màquina en terra 16,19 amb protecció de sorra. Inclou l’obertura i domicilio de 1m de rasa de 0,6m x 0,9m, ballat i tapat amb retirada de terres sobrants. D.3 m Rasa de 3 circuits BT amb obertura a mà i a màquina en terra 16,78 amb protecció de sorra. Inclou l’obertura i demolició de 1m de rasa de 0,6m x 0,9 m, ballat i tapat amb la retirada de terres sobrants. D.4 m Rasa de 4 circuits BT amb obertura a ma i a màquina en terra 17,31 amb protecció de sorra. Inclou l’obertura i demolició de 1m de rasa de 0,6m x 0,9 m, ballat i tapat amb la retirada de terres sobrants. D.5 m Rasa mixta MT/BT/EE 1C/4C/1C amb obertura a mà i a 18,35 màquina en terra amb protecció de sorra i protecció de tubulars formigonats per al circuit EE. Inclou l’obertura i demolició de 1 m de rasa de 0,6mx0,9m, ballat i tapat amb retirada de terres sobrants. D.6 m Rasa mixta MT/BT/EE 1C/3C/1C amb obertura a mà i a 18,14 màquina en terra amb protecció de sorra i protecció de tubulars formigonats per al circuit EE. Inclou l’obertura i demolició de 1 m de rasa de 0,6mx0,9m, ballat i tapat amb retirada de terres sobrants. D.7 m Rasa mixta MT/BT/EE 1C/2C/1C amb obertura a mà i a 18,03 màquina en terra amb protecció de sorra i protecció de tubulars formigonats per al circuit EE. Inclou l’obertura i demolició de 1 m de rasa de 0,6mx0,9m, ballat i tapat amb retirada de terres sobrants. D.8 m Rasa mixta MT/BT/EE 1C/1C/1C amb obertura a mà i a 17,86 màquina en terra amb protecció de sorra i protecció de tubulars formigonats per al circuit EE. Inclou l’obertura i demolició de 1 m de rasa de 0,6mx0,9m, ballat i tapat amb retirada de terres sobrants. D.9 m Rasa MT/EE 1C/1C amb obertura a mà i a màquina en terra. 16,74 Inclou l’obertura i demolició de 1 m de rasa de 0,6mx0,6m, ballat i tapat amb retirada de terres sobrants. Albert Bel Esteller Enginyer Tècnic Industrial en Electricitat 8
  • 147.
    Electrificació Polígon Industrial“Los Campets” Pressupost Codi Unitat Descripció Preu D.10 m Rasa EE amb obertura a mà i a màquina en terra amb protecció 12,56 de tubulars formigonats per al circuit EE. Inclou l’obertura i demolició de 1 m de rasa de 0,4mx0,6m, ballat i tapat amb retirada de terres sobrants. D.11 m Rasa BT 2C amb obertura a mà i a màquina en terra amb 14,65 protecció de tubulars formigonats. Inclou l’obertura i demolició de 1 m de rasa de 0,75mx1,0m, ballat i tapat amb retirada de terres sobrants, i amb cobriment de tubular formigonat amb formigó H-125, per a creuament de calçada. D.12 m Rasa MT/BT 1C/2C amb obertura a mà i a màquina en terra 15,87 amb protecció de tubulars formigonats. Inclou l’obertura i demolició de 1 m de rasa de 0,75mx1,0m, ballat i tapat amb retirada de terres sobrants, i amb cobriment de tubular formigonat amb formigó H-125, per a creuament de calçada. D.13 m Rasa EE amb obertura a mà i a màquina en terra amb protecció 13,87 de tubulars formigonats per al circuit EE. Inclou l’obertura i demolició de 1 m de rasa de 0,4mx0,6m, ballat i tapat amb retirada de terres sobrants, i amb cobriment de tubular formigonat amb formigó H-125, per a creuament de calçada. D.14 m Rasa mixta MT/BT 1C/4C amb obertura a mà i a màquina en 14,75 terra amb protecció de sorra. Inclou l’obertura i demolició de 1 m de rasa de 0,6mx0,9m, ballat i tapat amb retirada de terres sobrants. D.15 m Rasa mixta MT/BT 1C/2C amb obertura a mà i a màquina en 14,70 terra amb protecció de sorra. Inclou l’obertura i demolició de 1 m de rasa de 0,6mx0,9m, ballat i tapat amb retirada de terres sobrants. D.16 m Rasa BT/EE 4C/1C amb obertura a mà i a màquina en terra. 15,89 Inclou l’obertura i demolició de 1 m de rasa de 0,6mx0,6m, ballat i tapat amb retirada de terres sobrants. D.17 m Rasa BT/EE 2C/1C amb obertura a mà i a màquina en terra. 15,68 Inclou l’obertura i demolició de 1 m de rasa de 0,6mx0,6m, ballat i tapat amb retirada de terres sobrants. D.18 m Subministrament i col·locació de sorra per restabliment de rasa 0,68 fins a 10 cm per sobre de la mediatriu del tub. D.19 m Tapat de la rasa i compactat a màquina en capes de 15 cm 9,13 d’espessor, donant la humitat necessària a les terres per obtenir una compactació igual o superior al 95%. D.20 m Subministrament i estesa en rasa i en tubulars fins 20m de un 11,33 circuit amb conductor 3x1x240 +150 mm2 AL. Inclou disposar dels mitjans necessaris per l’estesa i descàrrega de la bobina i les brides per ajuntar els conductors d’una mateixa fase. Albert Bel Esteller Enginyer Tècnic Industrial en Electricitat 9
  • 148.
    Electrificació Polígon Industrial“Los Campets” Pressupost Codi Unitat Descripció Preu D.21 U Marcar, mesurar i confeccionar els plànols “AS BUILT” de les 1013,16 instal·lacions realitzades, entregat en paper vegetal. (Entre 1 i 100m). D.22 U Terminal bimetàl·lic per cable subterrani BT de 3 x 240 + 1 x 14,88 150 mm2. Inclou tallar el cable a mida, (tres fases més el neutre), deixar en puntes mortes, col·locar terminal premsat, encintar i enbornar. D.23 U Presa a terra completa per a caixes de seccionament i caixes 53,23 BT. Inclou els connectors per la connexió a la xarxa a terra. D.24 U Fusibles cutxilla BT F CU 3/315 ETU-1254 ret. Inclou la 7,06 instal·lació en caixes i quadres BT del CT . Conjunt de tres fusibles per sòcul. D.25 m Conductor d’alumini UNE RV 0,6/1 kV 3x1x240+1x150 Al 8,25 Albert Bel Esteller Enginyer Tècnic Industrial en Electricitat 10
  • 149.
    Electrificació Polígon Industrial“Los Campets” Pressupost E.- ENLLUMENAT PÚBLIC Codi Unitat Descripció Preu 2 E.1 m Conductor de coure UNE RV 0,6/1kV V de 2 x 6 mm col·locat 3,12 dins de tub. E.2 m Conductor de coure UNE RV 0,6/1 kV de 1x 35 mm2. 3,76 E.3 U Bàcul galvanitzat de 9 metres d’alçada. Inclou transport, 442,68 col·locació sobre la cementació, anivellació, connexió al circuit d’alimentació i el de presa de terra E.4 U Pica d’acer i coure de 14 mm de diàmetre i 2 m de longitud. 24,05 Inclou soldadura i clavar-la a terra E.5 U Interruptor posicions enllumenat 200,00 E.6 m Conductor de coure un de 35 mm2 3,15 E.7 m Tub flexible corrugat PVC DN 100 mm, pressió 4 atmosferes I 2,62 4,4 mm de gruix amb grau de protecció al xoc 7 i muntants com a canalització soterrada. E.8 U Fusibles de 63 A. Mida DIN 0, instal·lats abans dels comptadors. 2,82 E.9 U Equip de contatge activa i reactiva de 15 A d’intensitat nominal, 595,01 amb Instal·lació de rellotge horari que permeti realitzar el contatge en doble tarifa. E.10 U Interruptor de control de potència de 4 pols i 15 A d’intensitat 99,17 nominal. Legrand DX 10 kA de poder de tall. E.11 U Interruptor diferencial 4 pols, 40A i 0,03 A In. Legrand DX. 152,05 E.12 U Interruptor diferencial 2 pols 40A i 0,03A In. Legrand DV. 59,50 E.13 U Interruptor magnetotèrmic de 4 pols i 10 A d’intensitat nominal. 79,33 Legrand DX 10kA E.14 U Interruptor magnetotèrmic 2 pols i 5A d’intensitat nominal. 33,06 Legrand DV E.15 U Contactor de 4 pols i d’intensitat nominal 20A. Legrand 112,39 referència 04033. Bobina 230V. E.16 U Contactor de 2 pols i d’intensitat nominal de 12A. Legrand 66,01 referència 04033. Bobina 230V. E.17 U Armari metàl·lic tipus intempèrie 621,45 Albert Bel Esteller Enginyer Tècnic Industrial en Electricitat 11
  • 150.
    Electrificació Polígon Industrial“Los Campets” Pressupost Codi Unitat Descripció Preu E.18 U Lluminària vial model Philips tràfic Vision SGS 305/150T. 248,40 Incorpora làmpada vapor sodi 150 W i equip auxiliar encesa. E.19 U Arqueta 60x60x80 cm, G= 15 cm, H-250. 122,35 Arqueta de 60x60x80 cm, amb parets de15 cm de gruix de formigo H-250, sobre llit de sorra Albert Bel Esteller Enginyer Tècnic Industrial en Electricitat 12
  • 151.
    Electrificació Polígon Industrial“Los Campets” Pressupost 2.- AMIDAMENTS A.- LÍNIA AÈRIA DE MITJA TENSIÓ Codi Descripció Uts. Long. Amp. Alt. Parcials Quantitat A.1 Castillet metàl·lic galvanitzat, U 2 2 amb muntatge zero de 16m d’altura i 2000 kgs d’esforç amb creuetes. A.2 Castillet metàl·lic galvanitzat, U 2 2 amb muntatge zero de 16m d’altura i 1000 kgs d’esforç amb creuetes. A.3 Base fusible unipolar, amb U 9 9 muntatge vertical per exterior A.4 Cartutx fusible A.P.R. exterior de U 9 9 32 A i 36 kV A.5 Unitat de presa a terra composta U 3 3 per barilla de coure de 2m i 18 mm2 més abraçadera A.6 Conductor de coure nu de 50 kg 23 23 mm2,unió entre elèctrode i recolzament A.7 Seccionador tripolar intempèrie, U 2 2 amb dispositiu de posta a terra i muntatge vertical, 30/36 kV,400A A.8 Joc de cadenes d’amarre amb tres U 6 6 aïlladors A.9 Placa d’identificació de perill U 3 3 A.10 Conjunt de ferratges per la U 9 9 subjecció de les autovàlvules i terminals Albert Bel Esteller Enginyer Tècnic Industrial en Electricitat 13
  • 152.
    Electrificació Polígon Industrial“Los Campets” Pressupost B.- LÍNIA SUBTERRÀNIA DE MITJA TENSIÓ Codi Descripció Uts. Long. Amp. Alt. Parcials Quantitat B.1 Rasa 1 circuit M.T. obertura a m 320 320 320 màquina i a ma en terra amb protecció de sorra. Compren l’obertura i demolició de 1m de rasa de 0,40m x 0,90m, ballat i tapat amb la retirada de terres sobrants B.2 Rasa MT 1C amb obertura a mà i m 25 25 25 a màquina en terra amb protecció de tubulars formigonats. Inclou l’obertura i demolició de 1 m de rasa de 0,4mx0,9m, ballat i tapat amb retirada de terres sobrants, i amb cobriment de tubular formigonat amb formigó H-125, per a creuament de calçada. B.3 Tapat de la rasa i compactat a m 345 345 345 màquina en capes de 15 cm d’espessor, donant la humitat necessària a les terres per obtenir una compactació igual o superior al 95% B.4 Subministrament i estesa en rasa m 345 345 345 i en tubulars fins 20 m de cable unipolar d’alumini 18/30 kV 3x1x240 mm2. Consta de disposar dels mitjans necessaris per l’estesa i descàrrega de la bobina amb grua situant-la sobre un eix que faciliti el seu desenvolupament. Inclou subministrament i col·locació d’abraçadera de forma que les fases de un mateix circuit quedin unides en l’interior de la rasa B.5 Subministrament, distribució i m 345 345 345 col·locació de cinta PE de senyalització de cables subterranis en l’interior de la rasa Albert Bel Esteller Enginyer Tècnic Industrial en Electricitat 14
  • 153.
    Electrificació Polígon Industrial“Los Campets” Pressupost Codi Descripció Uts. Long. Amp. Alt. Parcials Quantitat B.6 Subministrament, distribució i m 345 345 345 col·locació en rasa de 1 m linial de plaques de PE per protecció d’un circuit de cable subterrani. Les plaques aniran ensamblades entre si en sentit longitudinal utilitzant-se plaques de 1 m de longitud per trams rectes i de 0,5 pels corbats B.7 Marcar, mesurar i confeccionar U 4 4 els plànols “AS BUILT” de les instal·lacions realitzades, entregat en paper vegetal. (Entre 1 i 100 m de cable). B.8 Acabat interior termorretràctils U 12 12 per cable unipolar sec de secció 1x240 mm2 Al i terminacions 36 kV del tipus endollable i model M-400LR de ELASTIMOLD. Inclou muntatge, ma d’obra i elements auxiliars. B.9 Assaig tripolar de l’estesa per la U 1 1 comprovació del circuit 3x1x240 18/30 kV i el seu perfecte estat després de l’estesa. B.10 Conjunt de terminacions U 4 4 2 exteriors 240 mm . Connexions entre LAMT i LSMT en conversió. B.11 Conductor d’alumini UNE DHV m 1.200 1.200 18/30 kV 3x240 Albert Bel Esteller Enginyer Tècnic Industrial en Electricitat 15
  • 154.
    Electrificació Polígon Industrial“Los Campets” Pressupost C.- CENTRE DE TRANSFORMACIÓ Codi Descripció Uts. Long. Amp. Alt. Parcials Quantitat C.1 Terraplanat i piconatge per m3 10 5 0,5 25 150 coronació de terraplè amb material seleccionat, amb capes de 25 cm, com a màxim, amb compactació del 95%. C.2 Malla electrosoldada de filferros m2 7,08 2,46 17,41 104,5 corrugats d’acer AEH 500T de límit elàstic 5100 kP/cm2, per l’armadura de lloses de 15 x15 cm de 6 mm de diàmetre C.3 Formigó, per lloses, H-200 de m2 7,24 2,62 18,97 113,81 consistència plàstica i amplitud máxima del ranurat 20 mm, bolcat amb cubeta C.4 Llit de sorra per CT prefabricada m3 7,24 2,62 0,15 2,85 17,07 col·locada C.5 Edifici de transformació PF- U 1 6 203/303. Recobriment prefabricat de formigó, que inclou l’edifici, portes d’accés, portes de trafo, reixes de ventilació, canalitzacions per cables , ferratges interiors propis del seu us i transport, muntatge i accessoris C.6 CGM-CML interruptor U 2 12 seccionador. Cel·la amb embolcall metàl·lic, prefabricat per ORMAZABAL, formada per un mòdul de tensió nominal 36kV e intensitat nominal 400 A de mides 420x 850x1800 mm. Amb telecomandament del tipus B. Inclou el muntatge, la ma d’obra i els elements auxiliars. Albert Bel Esteller Enginyer Tècnic Industrial en Electricitat 16
  • 155.
    Electrificació Polígon Industrial“Los Campets” Pressupost Codi Descripció Uts. Long. Amp. Alt. Parcials Quantitat C.7 Cel·la CGM-CMP-F Protecció U 2 12 fusibles. Cel·la amb embolcall metàl·lic, prefabricada per ORMAZABAL, formada per un mòdul de tensió nominal 36kV e intensitat nominal 400 A i de mides 420x850x1800mm. Amb telecomandament del tipus B. Inclou muntatge, ma d’obra i elements auxiliars. C.8 Cables de MT 18/30 kV del tipus U 2 12 DHV, unipolars, amb aïllament de etilè-propilè i pantalla amb sorona, sense armadura i amb coberta de PVC, amb conductors de secció i material 1x150 Al utilitzant 3 de 6 m de longitud i terminacions 36 kV del tipus endollable i model M-400LR de ELASTIMOLD. Inclou el muntatge, la ma d’obra i elements auxiliars. C.9 Transformador 400 kVA. U 2 12 Transformador de distribució en bany d’oli sèrie 36 kV de 400 kVA. Col·locat C.10 Quadre de baixa tensió AC-4, U 2 12 amb quatre sortides amb fusibles en base tipus ITV, marca ORMAZABAL. Inclou muntatge, ma d’obra i elements auxiliars. C.11 Joc de cables per pont de BT, de U 6 36 secció 2x240mm2 AL d’etilè- propilè sense armadura. Inclou ma d’obra, muntatge i accessoris. C.12 Terra de protecció del U 2 12 transformador. Instal·lació de presa a terra de protecció degudament muntada i connectada utilitzant conductor nu de CU amb les següents característiques, geometria d’anell rectangular, profunditat 0,5m sense piques, de dimensions 8 x 3 m. Albert Bel Esteller Enginyer Tècnic Industrial en Electricitat 17
  • 156.
    Electrificació Polígon Industrial“Los Campets” Pressupost Codi Descripció Uts. Long. Amp. Alt. Parcials Quantitat C.13 Terres de servei o neutre del U 2 12 trafo. Instal·lació exterior realitzada amb CU aïllat amb el mateix tipus de materials que les terres de protecció C.14 Instal·lació interior de la terra de U 1 6 protecció en l’edifici de transformació, amb el conductor de cu nu grapat en paret i connectat a les cel·les i demés aparamenta de l’edifici, així com a una caixa general de terres de protecció segons les normes de la cia. C.15 Instal·lació interior de terres de U 1 6 servei en CT, amb el conductor CU aïllat grapat en la paret i connectat al neutre de BT, així com a una caixa general de terres de servei segons normes cia. C.16 Piqueta de connexió a terra U 8 48 d’acer recoberta de coure de 2 m la longitud i 16 mm de diàmetre, estàndard i clavada a terra. Inclou els connectors per la connexió a la xarxa de terres. C.17 Reixa metàl·lica per defensa del U 2 12 transformador, amb un pany enclavat amb la cel·la de protecció corresponent. Inclou muntatge, ma d’obra i elements auxiliars. C.18 Equip d’enllumenat que permet U 1 6 la suficient visibilitat per realitzar les maniobres i revisions necessàries de les cel·les de MT i equip autònom d’enllumenat d’emergència i senyalització del local. Inclou muntatge, ma d’obra i elements auxiliars. Albert Bel Esteller Enginyer Tècnic Industrial en Electricitat 18
  • 157.
    Electrificació Polígon Industrial“Los Campets” Pressupost Codi Descripció Uts. Long. Amp. Alt. Parcials Quantitat C.19 Equip d’operació, maniobra i U 1 6 seguretat per permetre la realització de les maniobres amb aïllament suficient per protegir al personal durant l’execució de les maniobres i operacions de manteniment. Inclou ma d’obra, muntatge i elements auxiliars. C.20 Plaques de senyalització i perill U 3 18 formades per senyal CT i placa senyalització trafo. Inclou muntatge, ma d’obra i elements auxiliars. Albert Bel Esteller Enginyer Tècnic Industrial en Electricitat 19
  • 158.
    Electrificació Polígon Industrial“Los Campets” Pressupost D.- LÍNIES DE DISTRIBUCIÓ SUBTERRÀNEA DE BAIXA TENSIÓ Codi Descripció Uts. Long. Amp. Alt. Parcials Quantitat D.1 Rasa 1C BT amb obertura a m 5 5 5 màquina i a mà en terra amb protecció de sorra. Inclou la obertura i demolició de 1m de rasa de 0,40m x 0,80m, ballat i tapar amb la retirada de terres sobrants D.2 Rasa de 2 circuits BT amb m 100 100 100 obertura a mà i a màquina en terra amb protecció de sorra. Inclou l’obertura i domicilio de 1m de rasa de 0,6m x 0,9m, ballat i tapat amb retirada de terres sobrants. D.3 Rasa de 3 circuits BT amb m 12 12 12 obertura a mà i a màquina en terra amb protecció de sorra. Inclou l’obertura i demolició de 1m de rasa de 0,6m x 0,9 m, ballat i tapat amb la retirada de terres sobrants. D.4 Rasa de 4 circuits BT amb m 20 20 20 obertura a ma i a màquina en terra amb protecció de sorra. Inclou l’obertura i demolició de 1m de rasa de 0,6m x 0,9 m, ballat i tapat amb la retirada de terres sobrants. D.5 Rasa mixta MT/BT/EE m 35 35 35 1C/4C/1C amb obertura a mà i a màquina en terra amb protecció de sorra i protecció de tubulars formigonats per al circuit EE. Inclou l’obertura i demolició de 1 m de rasa de 0,6mx0,9m, ballat i tapat amb retirada de terres sobrants. Albert Bel Esteller Enginyer Tècnic Industrial en Electricitat 20
  • 159.
    Electrificació Polígon Industrial“Los Campets” Pressupost Codi Descripció Uts. Long. Amp. Alt. Parcials Quantitat D.6 Rasa mixta MT/BT/EE m 30 30 30 1C/3C/1C amb obertura a mà i a màquina en terra amb protecció de sorra i protecció de tubulars formigonats per al circuit EE. Inclou l’obertura i demolició de 1 m de rasa de 0,6mx0,9m, ballat i tapat amb retirada de terres sobrants. D.7 Rasa mixta MT/BT/EE m 160 160 160 1C/2C/1C amb obertura a mà i a màquina en terra amb protecció de sorra i protecció de tubulars formigonats per al circuit EE. Inclou l’obertura i demolició de 1 m de rasa de 0,6mx0,9m, ballat i tapat amb retirada de terres sobrants. D.8 Rasa mixta MT/BT/EE m 65 65 65 1C/1C/1C amb obertura a mà i a màquina en terra amb protecció de sorra i protecció de tubulars formigonats per al circuit EE. Inclou l’obertura i demolició de 1 m de rasa de 0,6mx0,9m, ballat i tapat amb retirada de terres sobrants. D.9 Rasa MT/EE 1C/1C amb m 410 410 410 obertura a mà i a màquina en terra. Inclou l’obertura i demolició de 1 m de rasa de 0,6mx0,6m, ballat i tapat amb retirada de terres sobrants. D.10 Rasa EE amb obertura a mà i a m 405 405 405 màquina en terra amb protecció de tubulars formigonats per al circuit EE. Inclou l’obertura i demolició de 1 m de rasa de 0,4mx0,6m, ballat i tapat amb retirada de terres sobrants. Albert Bel Esteller Enginyer Tècnic Industrial en Electricitat 21
  • 160.
    Electrificació Polígon Industrial“Los Campets” Pressupost Codi Descripció Uts. Long. Amp. Alt. Parcials Quantitat D.11 Rasa BT 2C amb obertura a mà i m 12 12 12 a màquina en terra amb protecció de tubulars formigonats. Inclou l’obertura i demolició de 1 m de rasa de 0,75mx1,0m, ballat i tapat amb retirada de terres sobrants, i amb cobriment de tubular formigonat amb formigó H-125, per a creuament de calçada. D.12 Rasa MT/BT 1C/2C amb m 10 10 10 obertura a mà i a màquina en terra amb protecció de tubulars formigonats. Inclou l’obertura i demolició de 1 m de rasa de 0,75mx1,0m, ballat i tapat amb retirada de terres sobrants, i amb cobriment de tubular formigonat amb formigó H-125, per a creuament de calçada. D.13 Rasa EE amb obertura a mà i a m 50 50 50 màquina en terra amb protecció de tubulars formigonats per al circuit EE. Inclou l’obertura i demolició de 1 m de rasa de 0,4mx0,6m, ballat i tapat amb retirada de terres sobrants, i amb cobriment de tubular formigonat amb formigó H-125, per a creuament de calçada. D.14 Rasa mixta MT/BT 1C/4C amb m 26 26 26 obertura a mà i a màquina en terra amb protecció de sorra. Inclou l’obertura i demolició de 1 m de rasa de 0,6mx0,9m, ballat i tapat amb retirada de terres sobrants. D.15 Rasa mixta MT/BT 1C/2C amb m 40 40 40 obertura a mà i a màquina en terra amb protecció de sorra. Inclou l’obertura i demolició de 1 m de rasa de 0,6mx0,9m, ballat i tapat amb retirada de terres sobrants. Albert Bel Esteller Enginyer Tècnic Industrial en Electricitat 22
  • 161.
    Electrificació Polígon Industrial“Los Campets” Pressupost Codi Descripció Uts. Long. Amp. Alt. Parcials Quantitat D.16 Rasa BT/EE 4C/1C amb obertura m 110 110 110 a mà i a màquina en terra. Inclou l’obertura i demolició de 1 m de rasa de 0,6mx0,6m, ballat i tapat amb retirada de terres sobrants. D.17 Rasa BT/EE 2C/1C amb obertura m 20 20 20 a mà i a màquina en terra. Inclou l’obertura i demolició de 1 m de rasa de 0,6mx0,6m, ballat i tapat amb retirada de terres sobrants. D.18 Subministrament i col·locació de m 1438 1438 1438 sorra per restabliment de rasa fins a 10 cm per sobre de la mediatriu del tub. D.19 Tapat de la rasa i compactat a m 1510 1510 1510 màquina en capes de 15 cm d’espessor, donant la humitat necessària a les terres per obtenir una compactació igual o superior al 95%. D.20 Subministrament i estesa en rasa m 72 72 72 i en tubulars fins 20m de un circuit amb conductor 3x1x240 +150 mm2 AL. Inclou disposar dels mitjans necessaris per l’estesa i descàrrega de la bobina i les brides per ajuntar els conductors d’una mateixa fase. D.21 Marcar, mesurar i confeccionar U 5 5 els plànols “AS BUILT” de les instal·lacions realitzades, entregat en paper vegetal. (Entre 1 i 100m). D.22 Terminal bimetàl·lic per cable U 44 44 subterrani BT de 3 x 240 + 1 x 150 mm2. Inclou tallar el cable a mida, (tres fases més el neutre), deixar en puntes mortes, col·locar terminal premsat, encintar i enbornar. Albert Bel Esteller Enginyer Tècnic Industrial en Electricitat 23
  • 162.
    Electrificació Polígon Industrial“Los Campets” Pressupost Codi Descripció Uts. Long. Amp. Alt. Parcials Quantitat D.23 Presa a terra completa per a U 19 19 caixes de seccionament i caixes BT .Inclou els connectors per la connexió a la xarxa a terra. D.24 Fusibles cutxilla BT F CU 3/315 U 32 32 ETU-1254 ret. Inclou la instal·lació en caixes i quadres BT del CT . Conjunt de tres fusibles per sòcul. D.25 Conductor d’alumini UNE RV m 900 900 3x1x240+1x150 Al Albert Bel Esteller Enginyer Tècnic Industrial en Electricitat 24
  • 163.
    Electrificació Polígon Industrial“Los Campets” Pressupost E.- ENLLUMENAT PÚBLIC Codi Descripció Uts. Long. Amp. Alt. Parcials Quantitat E.1 Conductor de coure UNE RV m 1470 1470 1470 0,6/1kV V de 2 x 6 mm2 col·locat dins de tub. E.2 Conductor de coure UNE RV m 1470 1470 1470 0,6/1 kV de 1x 35 mm2. E.3 Bàcul galvanitzat de 9 metres U 32 32 d’alçada. Inclou transport, col·locació sobre la cementació, anivellació, connexió al circuit d’alimentació i el de presa de terra E.4 Pica d’acer i coure de 14 mm de U 32 32 diàmetre i 2 m de longitud. Inclou soldadura i clavar-la a terra E.5 Interruptor posicions enllumenat U 1 1 E.6 Conductor de coure un de 35 m 1470 1470 1470 mm2 E.7 Tub flexible corrugat PVC DN m 1200 1200 1200 100 mm, pressió 4 atmosferes I 4,4 mm de gruix amb grau de protecció al xoc 7 i muntants com a canalització soterrada. E.8 Fusibles de 63 A. Mida DIN 0, U 6 6 instal·lats abans dels comptadors. E.9 Equip de contatge activa i U 2 2 reactiva de 15 A d’intensitat nominal, amb Instal·lació de rellotge horari que permeti realitzar el contatge en doble tarifa. E.10 Interruptor de control de potència U 2 2 de 4 pols i 15 A d’intensitat nominal. Legrand DX 10 kA de poder de tall. E.11 Interruptor diferencial 4 pols, U 2 2 40A i 0,03 A In. Legrand DX. Albert Bel Esteller Enginyer Tècnic Industrial en Electricitat 25
  • 164.
    Electrificació Polígon Industrial“Los Campets” Pressupost Codi Descripció Uts. Long. Amp. Alt. Parcials Quantitat E.12 Interruptor diferencial 2 pols 40A U 4 4 i 0,03S In. Legrand DV. E.13 Interruptor magnetotèrmic de 4 U 2 2 pols i 10 A d’intensitat nominal. Legrand DX 10kA E.14 Interruptor magnetotèrmic 2 pols U 4 4 i 5A d’intensitat nominal. Legrand DV E.15 Contactor de 4 pols i d’intensitat U 2 2 nominal 20A. Legrand referència 04033. Bobina 230V. E.16 Contactor de 2 pols i d’intensitat U 4 4 nominal de 12A. Legrand referència 04033. Bobina 230V. E.17 Armari metàl·lic tipus intempèrie U 2 2 E.18 Lluminària vial model Philips U 32 32 tràfic Vision SGS 306. Incorpora làmpada vapor sodi 150 W i equip auxiliar encesa. E.19 Arqueta de regsitre 60x60x80 U 12 12 cm, G= 15 cm, H-250. Arqueta de 60x60x80 cm, amb parets de15 cm de gruix de formigo H-250, sobre llit de sorra Albert Bel Esteller Enginyer Tècnic Industrial en Electricitat 26
  • 165.
    Electrificació Polígon Industrial“Los Campets” Pressupost 3.- PRESSUPOST A.- LÍNIA AÈRIA DE MITJA TENSIÓ Codi Descripció Uts. Quantitat Preu Import A.1 Castillet metàl·lic galvanitzat, amb muntatge U 2 609,64 1.219,28 zero de 16m d’altura i 2000 kgs d’esforç amb creuetes. A.2 Castillet metàl·lic galvanitzat, amb muntatge U 2 486,95 486,95 zero de 16m d’altura i 1000 kgs d’esforç amb creuetes. A.3 Base fusible unipolar, amb muntatge vertical U 9 119,53 1.075,77 per exterior A.4 Cartutx fusible A.P.R. exterior de 32 A i 36 U 9 47,60 428,40 kV A.5 Unitat de presa a terra composta per barilla U 3 13,22 39,66 de coure de 2m i 18 mm2 més abraçadera A.6 Conductor de coure nu de 50 mm2,unió entre kg 23 4,30 98,90 elèctrode i recolzament A.7 Seccionador tripolar intempèrie, amb U 2 913,66 1.827,32 dispositiu de posta a terra i muntatge vertical, 30/36 kV,400A A.8 Joc de cadenes d’amarre amb tres aïlladors U 6 14,00 84,00 A.9 Placa d’identificació de perill U 3 2,64 7,92 A.10 Conjunt de ferratges per la subjecció de les U 9 215,48 1.939,32 autovàlvules i terminals TOTAL CAPÍTOL A: 7.207,52 € Albert Bel Esteller Enginyer Tècnic Industrial en Electricitat 27
  • 166.
    Electrificació Polígon Industrial“Los Campets” Pressupost B.- LÍNIA SUBTERRÀNIA DE MITJA TENSIÓ Codi Descripció Uts. Quantitat Preu Import B.1 Rasa 1 circuit M.T. obertura a màquina i a m 320 7,83 2.505,60 ma en terra amb protecció de sorra. Compren l’obertura i demolició de 1m de rasa de 0,40m x 0,90m, ballat i tapat amb la retirada de terres sobrants B.2 Rasa MT 1C amb obertura a mà i a màquina m 25 25,00 625,00 en terra amb protecció de tubulars formigonats. Inclou l’obertura i demolició de 1 m de rasa de 0,4mx0,9m, ballat i tapat amb retirada de terres sobrants, i amb cobriment de tubular formigonat amb formigó H-125, per a creuament de calçada. B.3 Tapat de la rasa i compactat a màquina en m 345 9,90 3.415,50 capes de 15 cm d’espessor, donant la humitat necessària a les terres per obtenir una compactació igual o superior al 95% B.4 Subministrament i estesa en rasa i en m 345 16,90 5.830,5 tubulars fins 20 m de cable unipolar d’alumini 18/30 kV 3x1x240 mm2. Consta de disposar dels mitjans necessaris per l’estesa i descàrrega de la bobina amb grua situant-la sobre un eix que faciliti el seu desenvolupament. Inclou subministrament i col·locació d’abraçadera de forma que les fases de un mateix circuit quedin unides en l’interior de la rasa B.5 Subministrament, distribució i col·locació m 345 0,73 251,85 de cinta PE de senyalització de cables subterranis en l’interior de la rasa B.6 Subministrament, distribució i col·locació m 345 2,50 862,50 en rasa de 1 m linial de plaques de PE per protecció d’un circuit de cable subterrani. Les plaques aniran ensamblades entre si en sentit longitudinal utilitzant-se plaques de 1 m de longitud per trams rectes i de 0,5 pels corbats B.7 Marcar, mesurar i confeccionar els plànols U 3 1002,00 3006,00 “AS BUILT” de les instal·lacions realitzades, entregat en paper vegetal. (Entre 1 i 100 m de cable). Albert Bel Esteller Enginyer Tècnic Industrial en Electricitat 28
  • 167.
    Electrificació Polígon Industrial“Los Campets” Pressupost Codi Descripció Uts. Quantitat Preu Import B.8 Acabat interior termorretràctils per cable U 12 313,50 3.762,00 unipolar sec de secció 1x240 mm2 Al i terminacions 36 kV del tipus endollable i model M-400LR de ELASTIMOLD. Inclou muntatge, ma d’obra i elements auxiliars. B.9 Assaig tripolar de l’estesa per la U 1 506,00 506,00 comprovació del circuit 3x1x240 18/30 kV i el seu perfecte estat després de l’estesa. B.10 Conjunt de terminacions exteriors 240 mm2. U 4 415,83 1.807,32 Connexions entre LAMT i LSMT en conversió. B.11 Conductor d’alumini UNE DHV 18/30 kV m 1.200 10,32 1.210,32 3x240 TOTAL CAPÍTOL B: 23.782,54 € Albert Bel Esteller Enginyer Tècnic Industrial en Electricitat 29
  • 168.
    Electrificació Polígon Industrial“Los Campets” Pressupost C.- CENTRE DE TRANSFORMACIÓ Codi Descripció Uts. Quantitat Preu Import C.1 Terraplanat i piconatge per coronació de m3 150 3,77 565,5 terraplè amb material seleccionat, amb capes de 25 cm, com a màxim, amb compactació del 95%. C.2 Malla electrosoldada de filferros m2 104,5 2,71 283,195 corrugats d’acer AEH 500T de límit elàstic 5100 kP/cm2, per l’armadura de lloses de 15 x15 cm de 6 mm de diàmetre C.3 Formigó, per lloses, H-200 de m2 113,81 79,33 9.028,55 consistència plàstica i amplitud máxima del ranurat 20 mm, bolcat amb cubeta C.4 Llit de sorra per CT prefabricada m3 17,07 20,33 347,03 col·locada C.5 Edifici de transformació PF-203/303. U 6 8701,40 52.208,40 Recobriment prefabricat de formigó, que inclou l’edifici, portes d’accés, portes de trafo, reixes de ventilació, canalitzacions per cables , ferratges interiors propis del seu us i transport, muntatge i accessoris C.6 CGM-CML interruptor seccionador. U 12 3870,17 46.442,04 Cel·la amb embolcall metàl·lic, prefabricat per ORMAZABAL, formada per un mòdul de tensió nominal 36kV e intensitat nominal 400 A de mides 420x 850x1800 mm. Amb telecomandament del tipus B. Inclou el muntatge, la ma d’obra i els elements auxiliars. C.7 Cel·la CGM-CMP-F Protecció fusibles. U 12 5325,12 63.901,44 Cel·la amb embolcall metàl·lic, prefabricada per ORMAZABAL, formada per un mòdul de tensió nominal 36kV e intensitat nominal 400 A i de mides 420x850x1800mm. Amb telecomandament del tipus B. Inclou muntatge, ma d’obra i elements auxiliars. Albert Bel Esteller Enginyer Tècnic Industrial en Electricitat 30
  • 169.
    Electrificació Polígon Industrial“Los Campets” Pressupost Codi Descripció Uts. Quantitat Preu Import C.8 Cables de MT 18/30 kV del tipus DHV, U 12 2101,61 25.219,32 unipolars, amb aïllament de etilè-propilè i pantalla amb sorona, sense armadura i amb coberta de PVC, amb conductors de secció i material 1x150 Al utilitzant 3 de 6 m de longitud i terminacions 36 kV del tipus endollable i model M-400LR de ELASTIMOLD. Inclou el muntatge, la ma d’obra i elements auxiliars. C.9 Transformador 400 kVA. Transformador U 12 6842,52 82.110,24 de distribució en bany d’oli sèrie 36 kV de 400 kVA. Col·locat. C.10 Quadre de baixa tensió AC-4, amb U 12 315,13 3.781,56 quatre sortides amb fusibles en base tipus ITV, marca ORMAZABAL. Inclou muntatge, ma d’obra i elements auxiliars. C.11 Joc de cables per pont de BT, de secció U 36 510,20 18.367,0 2x240mm2 AL d’etilè-propilè sense armadura. Inclou ma d’obra, muntatge i accessoris. C.12 Terra de protecció del transformador. U 12 1015,22 12.182,64 Instal·lació de presa a terra de protecció degudament muntada i connectada utilitzant conductor nu de CU amb les següents característiques, geometria d’anell rectangular, profunditat 0,5m sense piques, de dimensions 8 x 3 m. C.13 Terres de servei o neutre del trafo. U 12 722,95 8.675,40 Instal·lació exterior realitzada amb CU aïllat amb el mateix tipus de materials que les terres de protecció C.14 Instal·lació interior de la terra de U 6 622,92 3.737,52 protecció en l’edifici de transformació, amb el conductor de cu nu grapat en paret i connectat a les cel·les i demés aparamenta de l’edifici, així com a una caixa general de terres de protecció segons les normes de la cia. Albert Bel Esteller Enginyer Tècnic Industrial en Electricitat 31
  • 170.
    Electrificació Polígon Industrial“Los Campets” Pressupost Codi Descripció Uts. Quantitat Preu Import C.15 Instal·lació interior de terres de servei en U 6 623,83 3.742,98 CT, amb el conductor CU aïllat grapat en la paret i connectat al neutre de BT, així com a una caixa general de terres de servei segons normes cia. C.16 Piqueta de connexió a terra d’acer U 48 30,05 1.442,40 recoberta de coure de 2 m la longitud i 16 mm de diàmetre, estàndard i clavada a terra. Inclou els connectors per la connexió a la xarxa de terres. C.17 Reixa metàl·lica per defensa del U 12 253,53 3.042,36 transformador, amb un pany enclavat amb la cel·la de protecció corresponent. Inclou muntatge, ma d’obra i elements auxiliars. C.18 Equip d’enllumenat que permet la U 6 175,31 1.051,86 suficient visibilitat per realitzar les maniobres i revisions necessàries de les cel·les de MT i equip autònom d’enllumenat d’emergència i senyalització del local. Inclou muntatge, ma d’obra i elements auxiliars. C.19 Equip d’operació, maniobra i seguretat U 6 106,44 638,64 per permetre la realització de les maniobres amb aïllament suficient per protegir al personal durant l’execució de les maniobres i operacions de manteniment. Inclou ma d’obra, muntatge i elements auxiliars. C.20 Plaques de senyalització i perill U 18 9,16 164,88 formades per senyal CT i placa senyalització trafo. Inclou muntatge, ma d’obra i elements auxiliars. TOTAL CAPÍTOL C: 336.932,65 € Albert Bel Esteller Enginyer Tècnic Industrial en Electricitat 32
  • 171.
    Electrificació Polígon Industrial“Los Campets” Pressupost D.- LÍNIES DE DISTRIBUCIÓ SUBTERRÀNEA DE BAIXA TENSIÓ Codi Descripció Uts. Quantitat Preu Import D.1 Rasa 1C BT amb obertura a màquina i a mà m 5 13,53 67,65 en terra amb protecció de sorra. Inclou la obertura i demolició de 1m de rasa de 0,40m x 0,80m, ballat i tapar amb la retirada de terres sobrants D.2 Rasa de 2 circuits BT amb obertura a mà i a m 100 16,19 1.619 màquina en terra amb protecció de sorra. Inclou l’obertura i domicilio de 1m de rasa de 0,6m x 0,9m, ballat i tapat amb retirada de terres sobrants. D.3 Rasa de 3 circuits BT amb obertura a mà i a m 12 16,78 201,36 màquina en terra amb protecció de sorra. Inclou l’obertura i demolició de 1m de rasa de 0,6m x 0,9 m, ballat i tapat amb la retirada de terres sobrants. D.4 Rasa de 4 circuits BT amb obertura a ma i a m 20 17,31 346,2 màquina en terra amb protecció de sorra. Inclou l’obertura i demolició de 1m de rasa de 0,6m x 0,9 m, ballat i tapat amb la retirada de terres sobrants. D.5 Rasa mixta MT/BT/EE 1C/4C/1C amb m 35 18,35 642,25 obertura a mà i a màquina en terra amb protecció de sorra i protecció de tubulars formigonats per al circuit EE. Inclou l’obertura i demolició de 1 m de rasa de 0,6mx0,9m, ballat i tapat amb retirada de terres sobrants. D.6 Rasa mixta MT/BT/EE 1C/3C/1C amb m 30 18,14 544,20 obertura a mà i a màquina en terra amb protecció de sorra i protecció de tubulars formigonats per al circuit EE. Inclou l’obertura i demolició de 1 m de rasa de 0,6mx0,9m, ballat i tapat amb retirada de terres sobrants. D.7 Rasa mixta MT/BT/EE 1C/2C/1C amb m 160 18,03 2.884,80 obertura a mà i a màquina en terra amb protecció de sorra i protecció de tubulars formigonats per al circuit EE. Inclou l’obertura i demolició de 1 m de rasa de 0,6mx0,9m, ballat i tapat amb retirada de terres sobrants. Albert Bel Esteller Enginyer Tècnic Industrial en Electricitat 33
  • 172.
    Electrificació Polígon Industrial“Los Campets” Pressupost Codi Descripció Uts. Quantitat Preu Import D.8 Rasa mixta MT/BT/EE 1C/1C/1C amb m 65 17,86 1.160,90 obertura a mà i a màquina en terra amb protecció de sorra i protecció de tubulars formigonats per al circuit EE. Inclou l’obertura i demolició de 1 m de rasa de 0,6mx0,9m, ballat i tapat amb retirada de terres sobrants. D.9 Rasa MT/EE 1C/1C amb obertura a mà i a m 410 16,74 6.863,40 màquina en terra. Inclou l’obertura i demolició de 1 m de rasa de 0,6mx0,6m, ballat i tapat amb retirada de terres sobrants. D.10 Rasa EE amb obertura a mà i a màquina en m 405 12,56 5.086,80 terra amb protecció de tubulars formigonats per al circuit EE. Inclou l’obertura i demolició de 1 m de rasa de 0,4mx0,6m, ballat i tapat amb retirada de terres sobrants. D.11 Rasa BT 2C amb obertura a mà i a màquina m 12 14,65 175,80 en terra amb protecció de tubulars formigonats. Inclou l’obertura i demolició de 1 m de rasa de 0,75mx1,0m, ballat i tapat amb retirada de terres sobrants, i amb cobriment de tubular formigonat amb formigó H-125, per a creuament de calçada. D.12 Rasa MT/BT 1C/2C amb obertura a mà i a m 10 15,87 158,70 màquina en terra amb protecció de tubulars formigonats. Inclou l’obertura i demolició de 1 m de rasa de 0,75mx1,0m, ballat i tapat amb retirada de terres sobrants, i amb cobriment de tubular formigonat amb formigó H-125, per a creuament de calçada. D.13 Rasa EE amb obertura a mà i a màquina en m 50 13,87 693,50 terra amb protecció de tubulars formigonats per al circuit EE. Inclou l’obertura i demolició de 1 m de rasa de 0,4mx0,6m, ballat i tapat amb retirada de terres sobrants, i amb cobriment de tubular formigonat amb formigó H-125, per a creuament de calçada. D.14 Rasa mixta MT/BT 1C/4C amb obertura a m 26 14,75 383,50 mà i a màquina en terra amb protecció de sorra. Inclou l’obertura i demolició de 1 m de rasa de 0,6mx0,9m, ballat i tapat amb retirada de terres sobrants. Albert Bel Esteller Enginyer Tècnic Industrial en Electricitat 34
  • 173.
    Electrificació Polígon Industrial“Los Campets” Pressupost Codi Descripció Uts. Quantitat Preu Import D.15 Rasa mixta MT/BT 1C/2C amb obertura a m 40 14,70 588 mà i a màquina en terra amb protecció de sorra. Inclou l’obertura i demolició de 1 m de rasa de 0,6mx0,9m, ballat i tapat amb retirada de terres sobrants. D.16 Rasa BT/EE 4C/1C amb obertura a mà i a m 110 15,89 1.747,90 màquina en terra. Inclou l’obertura i demolició de 1 m de rasa de 0,6mx0,6m, ballat i tapat amb retirada de terres sobrants. D.17 Rasa BT/EE 2C/1C amb obertura a mà i a m 20 15,68 313,60 màquina en terra. Inclou l’obertura i demolició de 1 m de rasa de 0,6mx0,6m, ballat i tapat amb retirada de terres sobrants. D.18 Subministrament i col·locació de sorra per m 1438 0,68 977,84 restabliment de rasa fins a 10 cm per sobre de la mediatriu del tub. D.19 Tapat de la rasa i compactat a màquina en m 1510 9,13 13.786,30 capes de 15 cm d’espessor, donant la humitat necessària a les terres per obtenir una compactació igual o superior al 95%. D.20 Subministrament i estesa en rasa i en tubulars m 72 11,33 815,76 fins 20m de un circuit amb conductor 3x1x240 +150 mm2 AL. Inclou disposar dels mitjans necessaris per l’estesa i descàrrega de la bobina i les brides per ajuntar els conductors d’una mateixa fase. D.21 Marcar, mesurar i confeccionar els plànols U 5 1013,16 5.065,80 “AS BUILT” de les instal·lacions realitzades, entregat en paper vegetal. (Entre 1 i 100m). D.22 Terminal bimetàl·lic per cable subterrani BT U 44 14,88 654,72 de 3 x 240 + 1 x 150 mm2. Inclou tallar el cable a mida, (tres fases més el neutre), deixar en puntes mortes, col·locar terminal premsat, encintar i enbornar. D.23 Presa a terra completa per a caixes de U 19 53,23 1.011,37 seccionament i caixes BT .Inclou els connectors per la connexió a la xarxa a terra. Albert Bel Esteller Enginyer Tècnic Industrial en Electricitat 35
  • 174.
    Electrificació Polígon Industrial“Los Campets” Pressupost Codi Descripció Uts. Quantitat Preu Import D.24 Fusibles cutxilla BT F CU 3/315 ETU-1254 U 32 7,06 225,92 ret. Inclou la instal·lació en caixes i quadres BT del CT . Conjunt de tres fusibles per sòcul. D.25 Conductor d’alumini UNE RV m 900 8,25 7425 3x1x240+1x150 Al TOTAL CAPÍTOL D: 53.440,27 € Albert Bel Esteller Enginyer Tècnic Industrial en Electricitat 36
  • 175.
    Electrificació Polígon Industrial“Los Campets” Pressupost E.- ENLLUMENAT PÚBLIC Codi Descripció Uts. Quantitat Preu Import E.1 Conductor de coure UNE RV 0,6/1kV V de m 1470 3,12 4.586,4 2 x 6 mm2 col·locat dins de tub. E.2 Conductor de coure UNE RV 0,6/1 kV de m 1470 3,76 5.527,2 1x35 mm2. E.3 Bàcul galvanitzat de 9 metres d’alçada. U 32 442,68 14.165,76 Inclou transport, col·locació sobre la cementació, anivellació, connexió al circuit d’alimentació i el de presa de terra E.4 Pica d’acer i coure de 14 mm de diàmetre i U 32 24,05 769,60 2 m de longitud. Inclou soldadura i clavar-la a terra E.5 Interruptor posicions enllumenat U 1 200,00 200,00 E.6 Conductor de coure un de 35 mm2 m 1470 3,15 4.630,50 E.7 Tub flexible corrugat PVC DN 100 mm, m 1200 2,62 3.144,00 pressió 4 atmosferes I 4,4 mm de gruix amb grau de protecció al xoc 7 i muntants com a canalització soterrada. E.8 Fusibles de 63 A. Mida DIN 0, instal·lats U 6 2,82 16,92 abans dels comptadors. E.9 Equip de contatge activa i reactiva de 15 A U 2 595,01 1.190,02 d’intensitat nominal, amb Instal·lació de rellotge horari que permeti realitzar el contatge en doble tarifa. E.10 Interruptor de control de potència de 4 pols i U 2 99,17 198,34 15 A d’intensitat nominal. Legrand DX 10 kA de poder de tall. E.11 Interruptor diferencial 4 pols, 40A i 0,03 A U 2 152,05 304,10 In. Legrand DX. E.12 Interruptor diferencial 2 pols 40A i 0,03S U 4 59,50 238,00 In. Legrand DV. E.13 Interruptor magnetotèrmic de 4 pols i 10 A U 2 79,33 158,66 d’intensitat nominal. Legrand DX 10kA E.14 Interruptor magnetotèrmic 2 pols i 5A U 4 33,06 132,24 d’intensitat nominal. Legrand DV Albert Bel Esteller Enginyer Tècnic Industrial en Electricitat 37
  • 176.
    Electrificació Polígon Industrial“Los Campets” Pressupost Codi Descripció Uts. Quantitat Preu Import E.15 Contactor de 4 pols i d’intensitat nominal U 2 112,39 224,78 20A. Legrand referència 04033. Bobina 230V. E.16 Contactor de 2 pols i d’intensitat nominal de U 4 66,01 264,04 12A. Legrand referència 04033. Bobina 230V. E.17 Armari metàl·lic tipus intempèrie U 2 621,45 1.242,90 E.18 Lluminària vial model Philips tràfic Vision U 32 248,40 7.948,80 SGS 306. Incorpora làmpada vapor sodi 150 W i equip auxiliar encesa. E.19 Arqueta 60x60x80 cm,G= 15 cm, H-250. U 12 122,35 1.468,2 Arqueta de 60x60x80 cm, amb parets de15 cm de gruix de formigo H-250, sobre llit de sorra TOTAL CAPÍTOL E: 46.410,46 € Albert Bel Esteller Enginyer Tècnic Industrial en Electricitat 38
  • 177.
    Electrificació Polígon Industrial“Los Campets” Pressupost 4.- RESUM DEL PRESSUPOST El pressupost del Polígon Industrial “Los Campets” puja a la quantitat total de: CAPÍTOL A: 7.207,52 € CAPÍTOL B: 23.782,54 € CAPÍTOL C: 336.932,65 € CAPÍTOL D: 53.440,27 € CAPÍTOL E: 46.410,46 € _____________________________________________________________ TOTAL EXECUCIÓ MATERIAL 467.773,44 € 13,00 % Despeses Generals 60.810,55 6% Benefici Industrial 28.066,40 ______________________________________________________________ SUMA DE D.G. y B.I. 88.876,95 ______________________________________________________________ TOTAL PRESSUPOST D’EXECUCIÓ PER CONTRATA 556.650,40 16,00 % I.V.A. 89.064,06 _______________________________________________ PRESSUPOST GLOBAL DE LICITACIÓ 645.714,46 € ______________________________________________________________ PRESSUPOST GLOBAL DE LICITACIÓ 645.714,46 € Alcanar, 30 d’Agost de 2004 Albert Bel Esteller Enginyer Tècnic Industrial en Electricitat Albert Bel Esteller Enginyer Tècnic Industrial en Electricitat 39
  • 178.
    Electrificació Polígon Industrial“Los Campets” Plec de Condicions Plec de Condicions AUTORS: Albert Bel Esteller DIRECTORS: J. J. Tena Tena. DATA: Setembre / 2004. Albert Bel Esteller Enginyer Tècnic Industrial en Electricitat 1
  • 179.
    Electrificació Polígon Industrial“Los Campets” Plec de Condicions Índex del Plec de Condicions 1 PLEC DE CONDICIONS GENERALS .............................................................5 1.1 Condicions generals....................................................................................5 1.2 Reglaments i normes...................................................................................5 1.3 Materials ....................................................................................................5 1.4 Execució de les obres..................................................................................5 1.5 Interpretació i desenvolupament del projecte ..............................................6 1.6 Obres complementàries...............................................................................6 1.7 Modificacions.............................................................................................7 1.8 Obra defectuosa..........................................................................................7 1.9 Mitjans auxiliars .........................................................................................7 1.10 Conservació de les obres.........................................................................7 1.11 Recepció de les obres..............................................................................7 1.12 Contractació de l’empresa.......................................................................8 1.13 Fiança .....................................................................................................8 2 PLEC DE CONDICIONS ECONÒMIQUES......................................................9 2.1 Abonament de l’obra ..................................................................................9 2.2 Preus ..........................................................................................................9 2.3 Revisió de preus .........................................................................................9 2.4 Penal·litzacions...........................................................................................9 2.5 Contracte ....................................................................................................9 2.6 Responsabilitats........................................................................................10 2.7 Rescisió del contracte ...............................................................................10 2.8 Liquidació en cas de rescissió de contracte ...............................................10 3 PLEC DE CONDICIONS FACULTATIVES...................................................11 Albert Bel Esteller Enginyer Tècnic Industrial en Electricitat 2
  • 180.
    Electrificació Polígon Industrial“Los Campets” Plec de Condicions 3.1 Normes a seguir........................................................................................11 3.2 Personal....................................................................................................11 3.3 Reconeixement i assajos previs.................................................................11 3.4 Assajos .....................................................................................................11 3.5 Aparamenta ..............................................................................................12 3.6 Varis.........................................................................................................12 4 PLEC DE CONDICIONS TÈCNIQUES GENERALS .....................................13 4.1 Moviments de terres .................................................................................13 4.2 Neteja del terreny .....................................................................................13 4.3 Explanacions, desmunts i buixardats.........................................................14 4.4 Replens i Terraplens .................................................................................16 4.5 Excavació de Rases i Pous ........................................................................17 4.6 Transport de Terres a l'abocador ...............................................................17 4.7 Replanteig definitiu ..................................................................................18 4.8 Fonaments, acers i emmacats....................................................................18 4.9 Acers ........................................................................................................19 4.10 Malles, Electrosoldadures d'acer especial..............................................19 4.11 Emmacats .............................................................................................20 4.12 Sabates .................................................................................................20 4.13 Lloses ...................................................................................................20 4.14 Estructures de formigó ..........................................................................21 4.15 Estructures metàl·liques ........................................................................24 4.16 Ram del paleta ......................................................................................25 4.17 Paviments, enrajolats ............................................................................26 4.18 Pintures i estocats .................................................................................27 4.19 Unitats d’obra civil ...............................................................................28 Albert Bel Esteller Enginyer Tècnic Industrial en Electricitat 3
  • 181.
    Electrificació Polígon Industrial“Los Campets” Plec de Condicions 5 PLEC DE CONDICIONS TÈCNIQUES ELÈCTRIQUES ...............................29 5.1 Equips elèctrics.........................................................................................29 5.2 Quadres elèctrics ......................................................................................31 5.3 Enllumenat ...............................................................................................31 5.4 Xarxa de preses a terra..............................................................................32 5.5 Làmpedes de senyalització........................................................................33 Albert Bel Esteller Enginyer Tècnic Industrial en Electricitat 4
  • 182.
    Electrificació Polígon Industrial“Los Campets” Plec de Condicions 1 PLEC DE CONDICIONS GENERALS 1.1 Condicions generals El present plec de condicions té com objecte definir al Contractista l’objectiu del treball i l’execució qualitativa del mateix. El treball elèctric consistirà en la instal·lació elèctrica completa per força, enllumenat i terra. L’objectiu del treball del Contractista inclou el disseny i preparació de tots els plànols, diagrames, especificacions, llistes de material i requisits per l’adquisició e instal·lació del treball. 1.2 Reglaments i normes Totes les unitats d’obra s’executaran complint les prescripcions indicades en els Reglaments de Seguretat i Normes Tècniques d’obligat compliment per aquests tipus d’instal·lacions, tant en àmbit nacional, autonòmic com municipal, així com, totes les altres que s’estableixin en la Memòria Descriptiva del mateix. S’adaptaran, a més a més, a les presents condicions particulars que complementaran les indicades per els Reglaments i Normes anomenades. 1.3 Materials Tots els materials utilitzats seran de primera qualitat. Compliran les especificacions i tindran les característiques indicades en el projecte i en les normes tècniques generals, i a més a més en les de la Companyia Distribuïdora d’Energia, per aquest tipus de materials. Tota especificació o característica de materials que figurin en un sol dels documents del Projecte, encara sense figurar en els altres és igualment obligatòria. En el cas d’existir contradicció u omissió en els documents del projecte, el Contractista obtindrà l’obligació de manifestar-ho al Tècnic Director de l’obra, qui decidirà sobre el particular. En cap cas podrà substituir la falta directament, sense l’autorització expressa. Una vagada adjudicada l’obra definitivament i abans d’iniciar-se aquesta, el Contractista presentarà al Tècnic Director catàlegs, cartes mostra, certificats de garantia o de homologació dels materials que s’utilitzaran. No podrà utilitzar-se materials que no hagin sigut acceptats per el Tècnic Director. 1.4 Execució de les obres Començament: El contractista donarà l’inici de l’obra en el plaç que figuri en el contracte establert amb la Propietat, o en el seu defecte en els quinze dies de l’adjudicació definitiva o de la firma del contracte. Albert Bel Esteller Enginyer Tècnic Industrial en Electricitat 5
  • 183.
    Electrificació Polígon Industrial“Los Campets” Plec de Condicions El Contractista estarà obligat a notificar per escrit o personalment en forma directa el Tècnic Director la data de començament dels treballs. Plaç d’execució: L’obra s’executarà en el plaç que s’estipuli en el contracte subscrit amb la Propietat o en el seu defecte, en el que figuri en les condicions del present plec. Quan el Contractista, doni l’acord, amb algun dels extrems continguts en el present Plec de Condicions, o be en el contracte establert amb la Propietat, sol·liciti una inspecció per poder realitzar algun treball ulterior que estigui condicionat per la mateixa, vindrà obligat a tenir preparada, per l’anomenada inspecció, una quantitat d’obra que correspongui a un ritme normal del treball. Quan el ritme de treball establert per el Contractista, no sigui el normal, o be a petició d’una de les parts, es podrà convenir una programació de inspeccions obligatòries d’acord amb el pla d’obra. Llibre d’ordres: El Contractista disposarà en l’obra d’un Llibre d’Ordres en el que s’escriuran les ordres que el Tècnic Director estimi donar a través del encarregat o persona responsable, sense perjudici de les que doni per ofici quan ho cregui necessari i que tindrà l’obligació de firmar l’assabentat. 1.5 Interpretació i desenvolupament del projecte La interpretació tècnica dels documents del Projecte, correspon al Tècnic Director. El Contractista està obligat a sotmetre a aquest a qualsevol dubte o aclariment que sorgeixi durant l’execució de l’obra per causa del Projecte, o circumstància aliena, sempre amb la suficient antelació en funció de la importància de l’assumpte. El contractista s’ha de fer responsable de qualsevol error de l’execució motivat per l’omissió d’aquesta obligació i conseqüentment haurà de refer a costa seu els treballs que corresponguin a la correcta interpretació del Projecte. El Contractista està obligat a realitzar tot el que sigui necessari per la bona execució de l’obra, encara que no es trobi explícitament expressat en el plec de condicions o en els documents del projecte. El contractista notificarà per escrit o personalment en forma directa al Tècnic Director i amb suficient antelació les dates en que quedarà preparada per inspecció, cada una de les parts d’obra per les que s’ha indicat la necessitat o conveniència de la mateixa o per aquelles que, total o parcialment hagin posteriorment quedat ocultes. De les unitats d’obra que s’han d’ocultar, es prendran abans, les dades precises per la seva mediació, a efectes de liquidació i que siguin subscrites per el Tècnic Director de trobar-les correctes. De no complir-se aquest requisit, la liquidació es realitzarà en base a les dades o criteris de mediació aportats per aquest. 1.6 Obres complementàries El contractista té l’obligació de realitzar totes les obres complementàries que siguin indispensables per realitzar qualsevol de les unitats d’obra especificades en qualsevol dels Albert Bel Esteller Enginyer Tècnic Industrial en Electricitat 6
  • 184.
    Electrificació Polígon Industrial“Los Campets” Plec de Condicions documents del Projecte, encara que en ell, no figurin explícitament mencionades dites obres complementàries. Tot això sense variació del import contractat. 1.7 Modificacions El contractista està obligat a realitzar les obres que se l’hi encarreguin resultant de modificacions del projecte, tant en augment com amb disminució o simplement variació, sempre i quan l’import de les mateixes no alteri en més o menys de un 25%el valor contractat. La valoració de les mateixes és farà, d’acord, amb els valors establerts en el pressupost entregat pel contractista i que ha sigut pres com a base del contracte. El Tècnic Director de l’obra està facultat per introduir les modificacions d’acord amb el seu criteri en qualsevol unitat d’obra, durant la construcció, sempre que compleixin les condicions tècniques referides en el projecte i de manera que no faci variar l’import total de l’obra. 1.8 Obra defectuosa Quan el Contractista trobi qualsevol unitat d’obra que no s’ajusti al que esta especificat en el projecte o en aquest Plec de Condicions, el Tècnic Director podrà acceptar-ho o rebutjar-ho; en el primer cas, aquest fixarà el preu que cregui just per arreglar les diferències que hi hagués, estant obligat el Contractista a acceptar dita valoració, en el altre cas, es reconstruirà a expenses del Contractista la part mal executada sense que això sigui motiu de reclamació econòmica o de ampliació de plaç d’execució. 1.9 Mitjans auxiliars Aniran a càrrec del Contractista tots els mitjans i maquinària auxiliar que sigui necessària per l’execució de l’obra. En el us dels mateixos estarà obligat a fer complir tots els Reglaments de Seguretat en el treball vigents i a utilitzar els mitjans de protecció als seus operaris. 1.10 Conservació de les obres És obligació del Contractista la conservació en perfecte estat de les unitats d’obra realitzades fins la data de la recepció definitiva per la Propietat, i corren al seu càrrec les despeses derivades d’això. 1.11 Recepció de les obres Recepció provisional: Un cop acabades les obre, tindrà lloc la recepció provisional i per això es practicarà en elles un detingut reconeixement per el Tècnic Director i la Propietat en presència del Contractista, aixecant acta i començant a corre des d’aquell dia el plaç de garantia si es troben en estat de ser admesa. Plaç de garantia: El plaç de garantia serà com a mínim d’un any, contant des de la data de la recepció provisional, o bé, el que s’estableixi en el contracte també contant des de la mateixa data. Albert Bel Esteller Enginyer Tècnic Industrial en Electricitat 7
  • 185.
    Electrificació Polígon Industrial“Los Campets” Plec de Condicions Durant aquest període queda a càrrec del Contractista la conservació de les obres i arreglar els desperfectes causats per assentament de les mateixes o per mal construcció. Recepció definitiva: Es realitza després de transcorre el plaç de garantia de igual manera que la provisional. A partir d’aquesta data deixa de tenir l’obligació el contractista de conservar i reparar a compte seu les obres si bé subsistiran les responsabilitats que pugessin tenir per defectes ocults i deficiències de causa dubtosa. 1.12 Contractació de l’empresa Forma de contractació: El conjunt de les instal·lacions les realitzarà l’empresa escollida per concurs-subasta. Presentació: Les empreses seleccionades per dit concurs hauran de presentar els seus projectes en sobre lacrat, abans de la data estipulada en el domicili del propietari. Selecció: L’empresa escollida serà anunciada la setmana següent a la conclusió del plaç de l’entrega. Dita empresa serà escollida de mutu acord entre el propietari i el director de l’obra, sense possible reclamació per part de les altres empreses concursants. 1.13 Fiança En el contracte s’establirà la fiança que el contractista haurà de dipositar en garantia del compliment del mateix, o es convindrà una retenció sobre els pagaments realitzats a compte de obra executada. De no estipular-se la fiança en el contracte s’entén que s’adopta com a garantia una retenció del 5% sobre els pagaments a compte citats. En el cas de que el Contractista es negués a fer per la seva compte els treballs per ultimar l’obra en les condicions contractades, o a atendre la garantia, la Propietat podrà ordenar executar-les a un tercer, abonant el seu import amb càrrec de retenció o fiança, sense perjudici de les accions legals a que tingui dret la Propietat si l’import de la fiança no es suficient. La fiança retenida s’abonarà al Contractista en un plaç no superior a trenta dies una vegada firmada l’acta de recepció definitiva de l’obra. Albert Bel Esteller Enginyer Tècnic Industrial en Electricitat 8
  • 186.
    Electrificació Polígon Industrial“Los Campets” Plec de Condicions 2 PLEC DE CONDICIONS ECONÒMIQUES 2.1 Abonament de l’obra En el contracte s’haurà de fixar detalladament la forma i plassos que s’abonaran les obres. Les liquidacions parcials que pugin establir-se tindran caràcter de documents provisionals, a bona compte, subjectes a les certificacions que resultin de la liquidació final. No suposant, dites liquidacions, aprovació ni recepció de les obres que comprenen. Acabades les obres es procedirà a la liquidació final que s’efectuarà d’acord amb els criteris establerts en el contracte. 2.2 Preus El contractista presentarà, al formalitzar-se el contracte, relació de les unitats d’obra que integren el projecte, les quals de ser acceptades tindran valor contractual i s’aplicaran a les possibles variacions que pugin haver. Aquests preus unitaris, s’entén que comprenen l’execució total de la unitat d’obra, incloent tots els treballs fins i tot els complementaris i els materials així com la part proporcional d’imposició fiscal, les càrregues laborals i altres despeses repercutibles. En cas de tenir que realitzar-se unitats d’obra no previstes en el projecte, es fixarà el seu preu entre el Tècnic Director i el Contractista abans d’iniciar l’obra i es presentarà a la propietat per la seva acceptació o no. 2.3 Revisió de preus En el contracte s’establirà si el contractista té dret a revisió de preus i la fórmula a aplicar per calcular-la. En defecte d’aquesta última, s’aplicarà a opinió del Tècnic Director algun criteri oficial acceptat. 2.4 Penal·litzacions Per retràs en els terminis d’entrega de les obres, es podran establir taules de penalització les quantitats de les quals i retrassos es fixaran en el contracte. 2.5 Contracte El contracte es formalitzarà mitjançant document privat, que podrà elevar-se a escriptura pública a petició de qualsevol de les parts. Inclourà l’adquisició de tots els materials, transport, ma d’obra, mitjans auxiliars per l’execució de l’obra projectada en el plaç estipulat, així com la reconstrucció de les unitats defectuoses, la realització de les obres complementàries i les derivades de les modificacions que s’introdueixin durant l’execució, aquestes últimes en els terminis prevists. La totalitat dels documents que componen el Projecte Tècnic de l’obra seran incorporats al contracte i tant el contractista com la Propietat hauran de firmar-los en testimoni de que els coneixen i accepten. Albert Bel Esteller Enginyer Tècnic Industrial en Electricitat 9
  • 187.
    Electrificació Polígon Industrial“Los Campets” Plec de Condicions 2.6 Responsabilitats El contractista és el responsable de l’execució de les obres en les condicions establertes en el projecte i en el contracte. Com a conseqüència d’això vindrà obligat a la demolició de la mala execució i a la seva reconstrucció correctament sense que serveixi d’excusa el que el Tècnic Director hagi examinat i reconegut les obres. El Contractista és l’únic responsable de totes les controvèrsies que ell o el seu personal cometin durant l’execució de les obres u operacions realitzades amb les mateixes. També és responsable dels accidents o danys que per errors, inexperiència o utilització de mètodes inadequats es produeixin en la propietat dels veïns o tercers en general. El Contractista és l’únic responsable de l’incompliment de les disposicions vigents en la matèria laboral respecte del seu personal i per tant els accidents que pugin sobrevenir i dels drets que pugin derivar-se d’ells. 2.7 Rescisió del contracte Causes de rescissió: Es consideren causes suficients per la rescissió del contracte les següents: - Mort o incapacitat del Contractista. - La fallida del Contractista. - Modificacions del projecte quan produeixi alteracions més o menys 25% del valor contractat. - Modificacions de les unitats d’obra en un número superior al 40% del original. - La no inicialització de les obres en el termini estipulat quan sigui per causes foranies a la Propietat. - La suspensió de les obres ja començades sempre que el termini de suspensió sigui més gran de sis mesos. - Incompliment de les condicions del Contracte quan impliqui mala fe. - Acabament del termini d’execució de l’obra sense haver-se arribat a completar aquesta. - Actuació de mala fe en l’execució dels treballs. - Subcontractat la totalitat o part de l’obra a tercers sense l’autorització del Tècnic Director i la Propietat. 2.8 Liquidació en cas de rescissió de contracte Sempre que es rescindeixi el contracte per causes anteriors o bé per acord de ambdues parts, s’abonarà al Contractista les unitats d’obra executades i els materials situats a peu d’obra i que reuneixin les condicions i siguin necessaris per la mateixa. Quan es rescindeixi el contracte portarà implícit la retenció de la fiança per obtenir les possibles despeses de conservació del període de garantia i els derivats del manteniment fins la data de nova adjudicació. Albert Bel Esteller Enginyer Tècnic Industrial en Electricitat 10
  • 188.
    Electrificació Polígon Industrial“Los Campets” Plec de Condicions 3 PLEC DE CONDICIONS FACULTATIVES 3.1 Normes a seguir El disseny de la instal·lació elèctrica estarà d’acord amb les exigències o recomanacions exposades en l’ultima edició dels següents codis: - Reglament Electrotècnic de Baixa Tensió e Instruccions Complementàries. - Normes UNE. - Publicacions del Comitè Electrotècnic Internacional (CEI). - Pla Nacional i Ordenança General de Seguretat e Higiene en el treball. - Normes de la Companyia Subministradora. - L’especificat en aquest plec de condicions amb preferència a tots els codis i normes. - Normativa que afecta al Pla Urbanístic d’Alcanar. 3.2 Personal Contractista tindrà en l’obra un encarregat amb autoritat sobre els demés operaris i coneixement acreditats i suficients per l’execució de l’obra. L’encarregat rebrà, complirà i transmetrà les instruccions i ordres del Tècnic Director de l’obra. El Contractista tindrà en l’obra, el número i classe d’operaris que facin falta pel volum i naturalesa dels treballs que es realitzin, els quals seran de reconeguda aptitud i experimentats en l’ofici. El Contractista estarà obligat a separar de l’obra, tot aquell personal que pel criteri del Tècnic Director no compleixi amb les seves obligacions, realitzi el treball defectuosament, bé per falta de coneixement o per operar amb mala fe. 3.3 Reconeixement i assajos previs Quan ho cregui oportú el Tècnic Director, podrà encarregar i ordenar l’anàlisi, assaig o comprovació dels materials, elements o instal·lacions, bé sigui en fàbrica d’origen, laboratoris oficials o en la mateixa obra, segons cregui més convenient, encara que aquestos no estiguin indicats en aquest plec de condicions. En el cas de discrepància, els assajos o proves s’efectuaran en el labora tori oficial que el Tècnic Director d’obra assigni. 3.4 Assajos Abans de la posada en servei del sistema elèctric, el Contractista haurà de fer els assajos adequats per provar, a plena satisfacció del Tècnic Director d’obra, que tot equips, aparells i cablejat ha sigut instal·lat correctament d’acord amb les normes establertes i estan en condicions satisfactòries de treball. Tots els assajos seran presenciats per l’enginyer que representa el Tècnic Director d’obra. Els resultats dels assajos seran donats en certificats indicant la data i número de la persona a càrrec del mateix, així com la categoria professional. Albert Bel Esteller Enginyer Tècnic Industrial en Electricitat 11
  • 189.
    Electrificació Polígon Industrial“Los Campets” Plec de Condicions Els cables, abans de posar-se en funcionament, es sotmetran a un assaig de resistència de aïllament entre les fases i entre fase i terra, que es farà de la manera següent: - Enllumenat i força, excepte motors. Mesurar la resistència d’aïllament de tots els aparells (armadures, tomes de corrent, etc...), que hagin sigut connectats, a excepció de la col·locació de les làmpades. - En els cables soterrats, aquests assajos de resistència d’aïllament es faran abans i després d’efectuar el reompliment i el compactat. 3.5 Aparamenta Abans de posar l’aparamenta sota tensió , es mesurarà la resistència d’aïllament de cada embarrat entre fases i entre fase i terra. Les mesures hauran de repetir-se amb els interruptors en posició de funcionament i contactes oberts. Tot relè de protecció que sigui ajustable serà calibrat i assajat, utilitzant contactors de cicles, caixa de càrrega, amperímetre i voltímetre, segons es necessiti. Es disposarà, sempre que sigui possible, d’un sistema de protecció selectiva. D’acord amb això, els relès de protecció s’escolliran i coordinaran per aconseguir un sistema que permeti actuar primer el dispositiu d’interrupció més pròxim a la falta. El contractista prepararà corbes de coordinació de relès i calibratge d’aquests per tots els sistemes de protecció previstos. Es comprovarà els circuits secundaris dels transformadors d’intensitat i tensió aplicant corrents o tensions en els enrollaments secundaris dels transformadors i comprovant que els instruments connectats a aquests secundaris funcionin. Tots els interruptors automàtics es col·locaran en posició de prova i cada interruptor serà tancat i disparat des de l’interruptor de control. Els interruptors han de ser disparats per accionament manual i aplicant corrent en els relès de protecció. Es comprovaran tots els enclavaments. Es mesurarà la rigidesa dielèctrica de l’oli d’interruptors de petit volum. 3.6 Varis Es comprovarà la posta a terra per determinar la continuïtat dels cables a terra i connexions i es mesurarà la resistència dels elèctrodes de terra. Es comprovaran els carregadors de bateries per comprovar el seu funcionament correcte d’acord amb les recomanacions dels fabricants. Albert Bel Esteller Enginyer Tècnic Industrial en Electricitat 12
  • 190.
    Electrificació Polígon Industrial“Los Campets” Plec de Condicions 4 PLEC DE CONDICIONS TÈCNIQUES GENERALS Aquest Plec de Condicions Tècniques Generals comprèn el conjunt de característiques que hauran de complir els materials emprats a la construcció, així com les tècniques de la seva col·locació a l'obra i les que hauran de manar l'execució de qualsevol tipus d’instal·lacions i d'obres accessòries i dependents. 4.1 Moviments de terres Comprèn totes les operacions relacionades amb els moviments de terres, incloses roques, necessàries per a l'execució de l'obra. Aquestes operacions son: - Neteja del terreny - Explanacions, desmunts i buixardats - Replens i terraplens - Excavació de rases i pous - Transport de terres a l'abocador - Replanteig definitiu Es considerarà inclosa en el preu de tot moviment de terres qualsevol resta d'edificació a enderrocar que aparegui. 4.2 Neteja del terreny Aquest treball consisteix en extreure i retirar de les zones designades tots els arbres, soques, plantes, malesa, brossa, runes, escombraries o qualsevol altre material indesitjable. La seva execució inclou les operacions següents: - - Excavació dels materials objecte de l'esbrossada - - Retirada dels materials objecte de l'esbrossada. Tot això realitzat d'acord amb les presents especificacions i amb les dades que sobre el particular inclouen els corresponents documents del projecte. Execució de les obres: Les operacions d'excavació s'efectuaran amb les precaucions necessàries per aconseguir unes condicions de seguretat suficients i evitar dany en les estructures existents, d'acord amb el que, sobre el particular, ordeni el Facultatiu Encarregat de les Obres, que designarà i marcarà els elements que s'hagin de conservar intactes. Per a disminuir el més possible el deteriorament dels arbres que hagin de conservar-se, es procurarà que els que s'han d'aterrar caiguin cap al centre de la zona objecte de neteja. Quan sigui necessari evitar danys a d'altres arbres, al tràfic per carretera o ferrocarril o a estructures pròximes, els arbres s'aniran trossejant per la seva brancada i tronc progressivament. Si per a protegir aquests arbres o altra vegetació destinada a romandre en un lloc, es precisa aixecar barreres o utilitzar qualsevol altre mitjà, els treballs Albert Bel Esteller Enginyer Tècnic Industrial en Electricitat 13
  • 191.
    Electrificació Polígon Industrial“Los Campets” Plec de Condicions corresponents s'ajustaran al que, sobre el particular, ordeni el facultatiu encarregat de les obres. Aquells arbres que ofereixin possibilitats comercials, seran esporgats i netejats; després es tallaran en trossos adequats i finalment s'emmagatzemaran acuradament al llarg del tirat, separats dels munts que cal cremar o llençar. La longitud dels trossos de fusta serà superior a 3 m. (tres metres), si ho permet el tronc. Els treballs es realitzaran de manera que produeixin la menor molèstia possible als ocupants de les zones pròximes a les obres. Cap fita-marca de propietat o punt de referència de dades topogràfiques de qualsevol classe serà fet malbé o desplaçat fins que un agent autoritzat hagi referenciat d'alguna altra manera la seva situació o aprovat el desplaçament. Retirada dels materials objecte d'aclariment i esbrossada: Tots els subproductes forestals, excepte la llenya de valor comercial, seran cremats d'acord amb el que, sobre el particular, ordeni el Facultatiu encarregat de les obres. El concepte de metre quadrat (m2) d'esbrossada, neteja i preparació del terreny inclourà també les possibles excavacions i replens motivats per existència de sòls inadequats que, a judici del director de les Obres, sigui necessari eliminar per a poder endegar els treballs de fonamentació. Es considerarà que abans de presentar l'oferta econòmica, el Contractista haurà visitat i estudiat de forma suficient els terrenys sobre els quals s'ha de construir, i que haurà inclòs en el preu de l'oferta tots els treballs de preparació, que s'abonaran al preu únic definit al Quadre de Preus núm. 1 i que en cap cas podran ésser objecte d'increment del preu del contracte. Es considerarà que les dades contingudes a la Memòria tenen únicament valor informatiu i que llur inexactitud no pot ésser objecte de reclamació. Mesura i abonament La mesura i abonament es realitzarà per metres quadrats (m2) realment esbrossats i preparats. El preu inclou la càrrega i transport a l'abocador dels materials i totes les operacions esmentades en l'apartat precedent i definides en el Quadre de Preus núm. 1. Simultàniament a les operacions d'esbrossada, es podrà excavar la capa de terra vegetal. Les terres vegetals es transportaran a l'abocador o s'arreplegaran en les zones que indiqui la Direcció de les Obres, a fi de ser emprades per a formació de zones verdes. El transport a l'abocador o a l'amàs intermedi esmentat es considerarà inclòs en els preus unitaris del Contracte. 4.3 Explanacions, desmunts i buixardats Definicions : Explanació és el conjunt d'operacions de desmunt o replè necessàries per a nivellar les zones on hauran d'asseure's les construccions, incloent-hi les plataformes, talussos i cunetes provisionals o definitives, a mes del transport dels materials remoguts als abocadors o lloc d'utilització. Desmunt és l'operació consistent en el rebaix del terreny fins arribar als nivells previstos en els plànols d'obra. Buidat és l'excavació delimitada per unes mides definides en els plànols de construcció per l'aprofitament de les parts baixes de l'edifici, com soterrani, garatges, dipòsits o altres utilitzacions. Si durant les excavacions apareixen manantials o filtracions motivades per qualsevol causa, s'executaran els treballs que ordeni la Direcció de les Obres, i es consideraran inclosos en els preus d'excavació. En els preus de les excavacions està inclòs el transport a qualsevol distància. Si a judici del Director de les Obres els materials no són aptes per a la formació de terraplens, es Albert Bel Esteller Enginyer Tècnic Industrial en Electricitat 14
  • 192.
    Electrificació Polígon Industrial“Los Campets” Plec de Condicions transportaran a l'abocador, no essent possible que un increment de distància en el transport sigui motiu de sobre-preu. El Director de les Obres, podrà autoritzar el fet d'abocar materials a determinades zones baixes de les parcel·les, assumint el Contractista l'obligació d'executar els treballs d'estesa i compactació sense reclamar compensació econòmica de cap mena. El replè de parcel·les definit, en cap cas podrà superar les cotes de les voreres més pròximes. La unitat d'excavació inclourà l'ampliació, millora o rectificació dels talussos de zones de desmunt, així com el seu refinat i l'execució de cunetes provisionals o definitives. Quan les excavacions arribin a la rasant definida, els treballs que s'executaran per a deixar l'esplanada refinada, compactada i totalment preparada per a endegar les obres, estaran inclosos en el preu unitari de l'excavació. Si l'esplanada no compleix les condicions de capacitat portant necessàries el Director de les Obres podrà ordenar una excavació addicional, que serà mesurada i abonada mitjançant el mateix preu definit per a totes les excavacions. Les excavacions es consideraran no classificades i es defineixen amb el preu únic per a qualsevol tipus de terreny. L'excavació especial de talussos en roca, s'abonarà al preu únic definit d'excavació Mesura i abonament Es mesurarà i abonarà per metres cúbics (m3) realment excavats, mesurats per diferència entre els perfils presos abans i després dels treballs. No són abonables despreniments ni augments de volum sobre les seccions que prèviament s'hagin fixat en aquest Projecte. Per a l'efecte dels mesures de moviment de terra, s'entén per metre cúbic d'excavació el volum corresponent a aquesta unitat, referida al terreny, tal com es trobi on s'hagi d'excavar. S'entén per volum de terraplè o replè, el que correspon a aquestes obres després d'executades i consolidades, segons el que es preveu en aquestes Condicions. En tots els casos els buits que quedin entre les excavacions i les fàbriques, inclòs resultants dels despreniments o per qualsevol motiu, s'hauran de omplir amb el mateix tipus de material, sense que el Contractista rebi per això cap quantitat addicional, així com la realització del buixardat, sense increment de cost. En cas de dubte sobre la determinació del preu d'una excavació concreta, el Contractista s'atindrà al que decideixi el Facultatiu Director, sense ajustar-se a allò que, a efectes de valoració del Pressupost, figuri en els pressupostos parcials del Projecte. S'entén que els preus de les excavacions comprenen, a mes de les operacions i despeses indicades, tots els auxiliars i complementaris com són: instal·lacions, subministrament i consum d'energia per a enllumenat i força, subministrament d'aigües, ventilació, utilització de tota mena de maquinària, amb totes les seves despeses i amortització, etc., així com els entrebancs produïts per les filtracions o per qualsevol altre motiu. Si el Contrariats amb l'aprovació de la Propietat, executés menor volum d'excavació que al que hauria de resultar de les prescripcions fixades, solament es considerarà d'abonament el volum realment executat. En cas de trobar-se fonaments enterrats o altres construccions, es considerarà que s'inclouen en el concepte ampli d'excavació en tot tipus de terreny objecte del preu definit. Albert Bel Esteller Enginyer Tècnic Industrial en Electricitat 15
  • 193.
    Electrificació Polígon Industrial“Los Campets” Plec de Condicions Buixardats Un cop realitzades totes les operacions de moviment de terres es realitzarà el buixardat, a fi d'aconseguir l'acabat geomètric de tota l'explanació, desmunt, buidat o replè. Es comprovaran i rectificaran les alineacions i rasants, així com l'amplada de les explanacions, refinament de talussos en els desmunts i terraplens, neteja i refinat de cunetes i explanacions, en les coronacions de desmunts i en el començament de talussos. Les operacions de buixardats es consideren incloses al preu de moviment de terres per indicar-se expressament en el present Plec. 4.4 Replens i Terraplens Replens i terraplens són les masses de terra o d'altres materials amb els que s'omplen i compacten uns forats, es fan talussos, es anivellen terrenys o es porten a terme obres similars. Les diferents capes o zones que els componen són: - Fonament: Zona que està per sota de la superfície neta del terreny. - Nucli: Zona que comprèn des del fonament fins la coronació. - Coronació: Capa superior amb un gruix de 50 cm. L'equip necessari per a efectuar la compactació es determinarà pel facultatiu encarregat, en funció de les característiques del material a compactar en el tipus d'obra. El contractista podrà utilitzar un equip diferent; per això necessitarà l'autorització del Facultatiu Director, que solament la concedirà quan amb l'equip proposat pel Contractista obtingui la compactació requerida, al menys del mateix grau, que amb l'equip proposat pel Facultatiu encarregat. El fonament del replè es prepararà de forma adequada per a suprimir les superfícies de discontinuïtat evitables. A continuació s'estendrà el material a base de tongades, de gruix uniforme, suficientment reduït, per tal que, amb els mitjans disponibles, s'obtingui en tot el seu gruix el grau de compactació exigit. Els materials de cada tongada seran de característiques uniformes i si no ho són, s'aconseguirà aquesta uniformitat barrejant-se convenientment amb els mitjans adequats per això. No s'estendrà cap tongada mentre no s'hagi comprovat que la superfície subjacent compleix les condicions exigides i, per tant, sigui autoritzada la seva estesa pel Facultatiu Encarregat. Quan la tongada subjacent s'hagi reblanit per una humitat excessiva, no s'estendrà la següent. Mesura i abonament Es mesuraran i abonaran per metres cúbics (m3.) realment executats i compactats en el seu perfil definitiu, mesurats per diferència entre perfils presos abans i després dels treballs. Si el material a utilitzar és, en algun moment, provinent de les excavacions, el preu del replè inclourà la càrrega, compactació i transport. En cas que el material provingui de préstecs, el preu corresponent inclou l'excavació, càrrega, transport, estesa, humectació, compactació, anivellació i cànon de préstec corresponent. El Director de les obres podrà autoritzar l'excavació en determinades parcel·les a fi d'obtenir materials de préstecs. L'esmentada excavació de préstecs en parcel·les, en cap cas podrà rebaixar el terreny de les parcel·les per sota de les cotes de les voreres més pròximes. Quan sigui necessari obtenir els materials per a formar terraplens de préstecs exteriors al polígon, el preu del terraplè Albert Bel Esteller Enginyer Tècnic Industrial en Electricitat 16
  • 194.
    Electrificació Polígon Industrial“Los Campets” Plec de Condicions inclourà el Cànon d'extracció, càrrega, transport a qualsevol distància i la resta d'operacions necessàries per a deixar totalment acabada la unitat del terraplè. El Contractista haurà de localitzar les zones de préstecs, obtenir els permisos i llicències que siguin necessàries i, abans de començar les excavacions, haurà de sotmetre a l'aprovació del Director de les Obres les zones de préstec, a fi de determinar si la qualitat dels sòls és suficient. La necessitat d'emprar sòls seleccionats serà a criteri del Director de les Obres, i no podrà ser objecte de sobre-preu, abonant-se a l'únic preu de replè definit al Quadre núm. 1. 4.5 Excavació de Rases i Pous La unitat d'excavació de rases i pous comprèn totes les operacions necessàries per tal d'obrir les rases definides per a l'execució del clavegueram, l'abastament d'aigua, la resta de les xarxes de serveis definits en el present Projecte, així com les rases i pous necessaris per fonaments o drenatges. Les excavacions s'executaran d'acord amb els plànols del Projecte i amb les dades obtingudes del replanteig general de les obres, els plànols de detall i les ordres de la Direcció de les Obres. Les excavacions es consideraran no classificades i es definiran en un sol preu per a qualsevol tipus de terreny. L'excavació de roca i l'excavació especial de talussos en roca s'abonaran al preu únic definit d'excavació. El preu de les excavacions comprèn, també, els apuntalaments i excavacions saltejades a trams que siguin necessàries i el transport de les terres a l'abocador a qualsevol distància. La Direcció de les Obres podrà autoritzar, si és possible, l'execució de sobre- excavacions per evitar les operacions d'apuntalament, però els volums sobre-excavats no seran objecte d'abonament. L'excavació de rases s'abonarà per metres cúbics excavats, d'acord amb la mesura teòrica dels Plànols del Projecte. El preu corresponent inclou el subministrament, transport, manipulació i ús de tots els materials, maquinària, mà d'obra necessària per la seva execució, la neteja i esbrossada de tota la vegetació, la construcció d'obres de desguàs per evitar l'entrada d'aigües, la construcció dels apuntalaments i els calçats que es precisin, els transports dels productes extrets al lloc d'ús, dipòsits o abocador, indemnitzacions que calguin i arranjament de les àrees afectades. Serà d'aplicació, en l'excavació de rases i pous, l'advertit sobre els preus de les excavacions esmentades en l'article 2.4 del present Plec. Quan durant els treballs d'excavació apareguin serveis existents, independentment d'haver-se contemplat o no en el projecte, els treballs s'executaran inclòs amb mitjans manuals per no fer malbé aquestes instal·lacions, completant-se l'excavació amb el calçat o penjat, en bones condicions, de les canonades d'aigua, gas, clavegueram, instal·lacions elèctriques, telefòniques, etc. O qualsevol altre servei que sigui precís descobrir, sense que el Contractista tingui cap dret a pagament per aquests conceptes. Si per qualsevol motiu és necessari executar excavacions de diferent alçada o amplada que les definides en el projecte, no serà causa de nova definició de preu. 4.6 Transport de Terres a l'abocador Totes aquelles terres, així com els materials que la Direcció Facultativa declari indesitjables, els carregarà i els transportarà el Contractista fins l'abocador. S'entén que en totes les partides enunciades resta inclosa la part proporcional de càrrega i transport a l'abocador dels materials indesitjables. Albert Bel Esteller Enginyer Tècnic Industrial en Electricitat 17
  • 195.
    Electrificació Polígon Industrial“Los Campets” Plec de Condicions 4.7 Replanteig definitiu Definició: El Replanteig definitiu és el conjunt d'operacions que són precises per traslladar al terreny les dades expressades en la Documentació Tècnica de l'Obra que s'ha de realitzar. El replanteig definitiu es farà en una o varies vegades, segons les circumstàncies que concurreixin en l'anivellació del terreny. El Contractista està obligat a subministrar tots els escrits i elements auxiliars necessaris per aquestes operacions, amb inclusió de claus i estaques. També hi aportarà el personal necessari. El Contractista vigilarà, conservarà i respondrà de les estaques o senyals, responsabilitzant-se de qualsevol desaparició o modificació d'aquests elements. Acta de Replanteig: Del resultat final del replanteig s'aixecarà una Acta que signaran per triplicat el Constructor, l'Arquitecte Director de les Obres i el representant de la Propietat, acordant l'inici de l'obra. El Constructor tindrà un mes natural, comptat a partir de la data de la signatura de l'acta de replanteig, per a començar l'execució de les obres. 4.8 Fonaments, acers i emmacats Fonaments Definició: Els fonaments són aquells elements estructurals que transmeten les càrregues de l'edificació al terreny de sustentació. Reconeixement general de sòls amb anterioritat a l'execució de les obres, mitjançant els treballs adequats, es reunirà tota la informació possible provenint de l'observació de les zones veïnes, estat de les edificacions adjacents, corrents d'aigua, etc. i prenent dades en general de tota mena de circumstàncies que puguin posteriorment facilitar i orientar els treballs que hauran de realitzar-se en el moment del reconeixement del terreny. Resistència dels terrenys L'Arquitecte Director, segons el seu criteri tècnic i després del reconeixement i assaig del terreny que consideri necessaris, escollirà en cada cas la pressió admissible que consideri adequada, fixant també l'assentament màxim tolerable. Tipus de fonaments La Direcció Facultativa comprovarà que els fonaments es realitzin en la forma, amidament, dosificació i manera particular d'execució que indiquin els plànols i plec de condicions particulars, amb longituds, forma, separacions, diàmetres, núm. de barres i seccions que figurin en els plànols. Els recobriments, ancoratges i encaixos s'ajustaran a les normes vigents. Els pous i rases tindran la forma i mesures fixades en els plànols d'obra. Abans de formigonar, el Contractista comprovarà que les capes d'assentament del fonament estiguin perfectament anivellades i netes, procedint a continuació a l'execució dels fonaments. Albert Bel Esteller Enginyer Tècnic Industrial en Electricitat 18
  • 196.
    Electrificació Polígon Industrial“Los Campets” Plec de Condicions 4.9 Acers Condicions generals: L 'acer a emprar complirà les condicions exigides a la Instrucció per al Projecte i Execució de les Obres de Formigó EH-99. Qualitat: L 'allargament repartit de trencament serà superior o igual a divuit (18) graus, entenent per tal deformació unitària la que romangui, mesurada després de l'assaig normal de tracció UNE 7101, sobre una base de cinc (5) diàmetres de coll d'estriccó i de més de tres (3) diàmetres del punt d'aplicació de la mordassa. El mòdul d'elasticitat inicial serà igual o superior a un milió vuit-cents mil quilograms per centímetre quadrat (1.800.000 K/cm2). El límit elàstic serà l'indicat en els plànols, i si no hi ha especificacions, serà de 5.100 K/cm2. En els acers d'esglaó de relaxament es prendrà com a límit elàstic, la mínima tensió capaç de produir una deformació remanent del dos per mil. (0,2%). La tensió màxima de trencament serà igual o superior al cent vint-i-cinc per cent (125 %) de la corresponent al seu límit elàstic, entenent per tensió màxima de trencament el valor de l'ordenada màxima del diagrama tensió-deformació. El valor del límit elàstic característic es determinarà prenent la mitja aritmètica dels "n/2" valors mes baixos obtinguts en l'assaig de "n" provetes, prescindint del valor mig de la sèrie, si "n" fos imparell. S'ajustarà a l'article 600 del Plec General del març de 1975. Assaig Si el Facultatiu Director de l'Obra ho considera convenient, s'exigirà un certificat del Laboratori Oficial que garanteixi la qualitat del ferro utilitzat. Així mateix, donarà instruccions sobre l'execució en obra de l'assaig de plegament, descrit en la Instrucció del Projecte i Execució d'Obres de formigó EH-91. Mesura i abonament S'abonaran pels quilograms (Kg) que resultin de l'especejament dels plànols que, abans de començar cada obra, hagin estat presentats al Facultatiu Director i aprovats per ell, al preu corresponent dels que figurin en el Quadre de Preus Número 1. Estan compreses en els esmentats preus, totes les operacions i mitjans necessaris per a realitzar el doblegat i posta a l'obra, així com els encavalcaments, ganxos, elements de sustentació, pèrdues per retalls, lligaments, soldadures, etc. 4.10 Malles, Electrosoldadures d'acer especial Són malles de retícula quadrada o rectangular, formades per barres cilíndriques o corrugades, d'acer laminat de duresa natural o endurides per deformació en fred, unides en els punts d'encreuament per soldadura elèctrica. Mesura i abonament S'abonaran pel quilograms (Kg) que resultin de l'especejament dels plànols que abans de començar cada obra hagin estat presentats al Facultatiu Director i aprovats per ell mateix, al preu corresponent que figuri en el Quadre de preus núm. 1. Els esmentats preus comprenen totes les operacions i mitjans necessaris per a realitzar el doblegat i posta a Albert Bel Esteller Enginyer Tècnic Industrial en Electricitat 19
  • 197.
    Electrificació Polígon Industrial“Los Campets” Plec de Condicions l'obra, així com els encavalcaments, ganxos, elements de sustentació, pèrdues per retalls, lligaments, soldadures, etc. 4.11 Emmacats L'emmacat és una capa de gruix variable, formada per la compactació de graves. Mesura i abonament S'abonaran per m2. Es consideraran incloses les ajudes necessàries pel subministrament del material, la col·locació, estesa i la compactació, incloent-hi també la maquinària necessària. 4.12 Sabates Les sabates contínues són els fonaments d'aquells elements estructurals lineals que transmeten esforços repartits uniformement en el terreny. El dimensionat restarà fixat a l'annex de càlcul de la memòria del Projecte d'Execució i als plànols de fonaments degudament acotats. Mesura i abonament La mesura i l'abonament de les sabates contínues es realitzarà per metre lineal, incloent en el preu tant el treball de posta a l'obra, preparació del terreny, materials i mà d'obra utilitzats, com la maquinària i elements auxiliars necessaris. Les sabates aïllades són els fonaments d'aquells elements estructurals que transmeten esforços puntuals en el terreny. El dimensionat resta fixat a l'annex de càlcul de la memòria del Projecte d'Execució i als plànols de fonaments, degudament acotats. Mesura i abonament La mesura i l'abonament de les sabates contínues es realitzarà per m3. incloent en el preu tant el treball de posta a l'obra, preparació del terreny, materials, així com la maquinària i els elements auxiliars necessaris. 4.13 Lloses Les lloses son els fonaments d'aquells elements estructurals que necessitin tenir assentaments uniformes o que sigui terreny poc comprimible, fetes de formigó en massa o armat. En el projecte d'execució s'indica, en els plànols, el dimensionat i l'armat. Mesura i abonament Es mesuraran i abonaran per metres cúbics (m3.) de formigó, incloent-hi els treballs auxiliars de preparació, el subministrament i la col·locació del formigó, formació de juntes, etc. Albert Bel Esteller Enginyer Tècnic Industrial en Electricitat 20
  • 198.
    Electrificació Polígon Industrial“Los Campets” Plec de Condicions 4.14 Estructures de formigó Encofrats Les cimbres, encofrats i motlles, així com les unions dels diferents elements, tindran una resistència i rigidesa suficient per resistir, sense assentaments ni deformacions perjudicials, les accions de qualsevol mena que puguin produir-se com a conseqüència del procés de formigonat i especialment sota les pressions del formigó en fresc o els efectes del mètode de compactació utilitzat. Els encofrats i motlles seran suficientment estancs per a impedir pèrdues apreciables d'abeurada. Els encofrats i motlles de fusta s'humitejaran per a evitar que absorbeixin l'aigua continguda en el formigó. Les superfícies interiors dels encofrats i motlles apareixeran netes en el moment del formigonat. Per a facilitar aquesta neteja, en els fons de pilars i murs es disposaran obertures provisionals a la part inferior dels encofrats corresponents. Si fos necessari, i a fi d'evitar la formació de fissures en els paraments de les peces, s'adoptaran les oportunes mesures perquè els encofrats i motlles no impedeixin la lliure retracció del formigó. Si s'utilitzen productes de desencofrat, no hauran de deixar senyals en els paraments de formigó i no hauran d'impedir la posterior aplicació de revestiments ni la possible construcció de juntes de formigonat. L'ús d'aquests productes haurà d'ésser expressament autoritzat pel Director de l'Obra. Formigó Tots els formigons compliran l'EH-91 considerant com a definició de resistència la d'aquesta Instrucció. Es fabricarà sempre en formigonera, essent el període de pastada superior a un minut i mig, i de tal manera que la consistència del formigó en cada mescla sigui uniforme. A més de les Prescripcions de l'EH-91 es tindran en compte les següents: - La instal·lació de transport i posta a l'obra serà del tipus tal que el formigó no perdi capacitat ni homogeneïtat. - No es podrà abocar lliurement el formigó des d'una alçada superior a un metre i cinquanta centímetres (1.50) ni distribuir-lo amb pala a gran distància. - Queda prohibit l'ús de canaleres o trompes del transport o la posta a l'obra del formigó sense l'autorització del Facultatiu Encarregat. No es podrà formigonar quan l'aigua pugui perjudicar la resistència o qualsevol de les característiques del formigó. Pel formigonat en temps de fxarxao de calor se seguiran les prescripcions de l'EH-91. - No es col·locarà mai formigó sobre un terreny que estigui gelat. El per vibrador s'introduirà vertical a la massa del formigó fresc i es retirarà també verticalment, sense que es mogui horitzontalment mentre que està submergit en el formigó. - Es procurarà extremar el vibrat en les proximitats dels encofrats, a fi d'evitar la formació de bosses de pedres i de coqueres. - En general, el vibrat del formigó s'executarà d'acord amb les normesespecificades en l'EH-91. Albert Bel Esteller Enginyer Tècnic Industrial en Electricitat 21
  • 199.
    Electrificació Polígon Industrial“Los Campets” Plec de Condicions - La situació de les juntes de construcció serà fixada pel Facultatiu Director, de manera que compleixin les prescripcions de l'EH-91 i procurant que el seu nombre sigui el menor possible. - Sempre que s'interrompi el treball, qualsevol que sigui el termini d'interrupció, es cobrirà la junta amb sacs de gerga humits, per a protegir-la dels agents atmosfèrics. - Abans de recomençar els treballs es prendran les disposicions necessàries per aconseguir la bona unió del formigó fresc amb ei que està endurit. - Durant els tres primers dies es protegirà el formigó dels raigs solars amb una arpillera molla. Com a mínim, durant els set primers dies es mantindran les superfícies vistes contínuament humides, mitjançant el rec o la inundació, o cobrint-les amb sorra o arpillera, que es mantindran constantment humides. - La temperatura de l'aigua utilitzada en el rec serà inferior en més de vint graus (20ºC) a la del formigó, a fi d'evitar producció de badadures per refredament brusc. També es podran utilitzar procediments de curat especial, a base de pel·lícules superficials impermeables, prèvia autorització, per escrit, del Facultatiu Director. - Els paraments han de restar llisos, amb formes perfectes sense defectes o rugositats i sense que sigui necessari aplicar-los-hi enlluíts, que no podran ser en cap cas executats sense l'autorització prèvia del Facultatiu Director. Les operacions precises per a deixar les superfícies en bones condicions d'aspecte seran a compte del Contractista. La irregularitat màxima que s'admet en els paraments serà la següent: - Parament vist: sis mil·límetres. - Parament ocult: vint i cinc mil·límetres. En qualsevol cas, a totes les obres de fàbrica i murs es prendran provetes, que seran trencades al set o vint-i-vuit dies. S'efectuaran com a mínim una sèrie de sis provetes cada cinquanta metres cúbics de formigó utilitzat en taujans, voltes i soleres. A les obres de formigó armat, es faran diàriament dues sèries de sis provetes cada una, per trencar cada sèrie als set o vint-i-vuit dies, prenent com a càrrega de trencada, en cada sèrie, la mitja dels resultats, descartant les dues extremes. Les provetes s’amaçaran de forma similar al del formigó en obra i es conservaran en condicions anàlogues. Si passats els vint-i-vuit dies la resistència de les provetes fos menor a les especificades, en aquesta data, en més d'un 20%, s'extrauran provetes de l'obra i si la seva resistència és menor que l'especificada, serà enderrocada. Si la resistència de les provetes extretes és més gran que la de les provetes d'assaig, podrà acceptar-se l'obra si es pot efectuar, sense perill, un assaig de càrrega amb una sobrecarrega superior a un 50% de la de càlcul, durant el qual es mesurarà la fletxa produïda, que haurà de ser admissible. Si no fos possible extreure provetes de l'obra i les d'assaig no donessin el 80% de les resistències especificades l'obra haurà d'enderrocar-se. En cas que la resistència de provetes d'assaig i les extretes de l'obra estès compresa entre el 80% i el 100% de l'especificada, el Facultatiu Director podrà rebre l'obra amb reserves, previ l'assaig de càrrega corresponent. Albert Bel Esteller Enginyer Tècnic Industrial en Electricitat 22
  • 200.
    Electrificació Polígon Industrial“Los Campets” Plec de Condicions Els motlles i encofrats seran de fusta que compleixi les condicions exigides a l'apartat corresponen, metàl·lics o d'altre material que reuneixi condicions d'eficàcia similars, a judici del Facultatiu Director. Tant les unions com les peces que constitueixen els encofrats i calçat, hauran de tenir la resistència i la rigidesa necessàries perquè, amb la marxa del formigó prevista, no es produeixin moviments locals de més de 5 mm. (cinc mil·límetres).Tant les superfícies dels encofrats com els productes que s'hi puguin aplicar per facilitar l'encofrat no hauran de contenir substàncies agressives pel formigó. Els encofrats de fusta s'humitejaran abans del formigonat i es netejaran, especialment els fons, deixant-se obertures provisionals per facilitar aquesta tasca. Les juntes entre les diferents taules, hauran de permetre l'entumiment per la humitat del rec o de l'aigua del formigó sense que deixin escapar la pasta durant el formigonat. Es disposarà l'encofrat a les bigues i forjats amb la necessària contra-fletxa perquè, un cop desencofrada i carregada la peça de formigó, conservi una contra fletxa de 1:300 de la llum. S'autoritza l'ús de tipus i tècniques especials d'encofrat, de les que el comportament i resultats estan sancionats per la pràctica havent de justificar l'eficàcia d'aquells altres que es proposin que, per la seva novetat, manquin d'aquelles garanties. S'inclouen les juntes que calguin formigonar per qualsevol motiu. El preu del formigó inclourà els possibles additius que la Direcció d'Obres estimi necessaris i també la possible necessitat d'emprar ciments especials, segons criteri de la Direcció (ciment, P.A.S., blanc, etc.). El preu dels encofrats podrà anar independent dels preus del formigó, si així s'estipula. La mesura es realitzarà per metres quadrats (m2) realment col·locats. Els esmentats preus inclouen els materials dels encofrats, la maquinària i la mà d'obra necessària per a llur col·locació, així com la resta d'operacions materials necessàries. S'entén que quedaran inclosos en el preu del metre quadrat qualsevol tipus d'accessoris de l'encofrat, com les juntes entre murs o altres elements que a judici del Director de les obres siguin necessaris per a obtenir un correcte acabat. El formigó armat s'abonarà al preu del tipus de formigó emprat, que inclourà totes les operacions necessàries per a executar la unitat d'obra menys l'encofrat i les armadures, així com la seva col·locació que s'abonarà al preu del Kg. d'acer col·locat. Les bastides, cimbres, execució de juntes, operacions de curat i altres operacions necessàries, a judici de la Direcció de les Obres, per l'execució del formigonat, es consideraran incloses en els preus dels formigons. Mesura i abonament Els formigons es mesuraran d'acord amb els plànols del Projecta, o amb els plànols de detalls resultants del Replanteig de les Obres i s'abonaran per metres cúbics. Advertència sobre l'abonament de les obres de fàbrica Únicament s'abonarà el volum d'obra de fàbrica realment executada, conforme a les condicions i amb subjecció als perfils de replanteig i plànol dels mateixos, que figuren en el Projecte, o ordres escrites del Facultatiu Director; per tant, en cap cas seran d'abonament els excessos d'obra de fàbrica executats pel Contractista, pel seu Compte. sense tenir autorització del Facultatiu Director. Per l'abonament dels increments de secció sobre la secció teòrica mínima indicats en els plànols de seccions tipus, serà necessari que prèviament hagi estat ordenada la seva execució pel Facultatiu Director, per escrit en el Albert Bel Esteller Enginyer Tècnic Industrial en Electricitat 23
  • 201.
    Electrificació Polígon Industrial“Los Campets” Plec de Condicions que consti de manera explícita les dimensions que han de donar-se a la secció. Per això, el contractista estarà obligat a exigir prèviament a l'execució de cada part d'obra. la definició exacte d'aquelles dimensions que no ho estan. Armadures Les armadures es col·locaran netes, sense òxid o qualsevol substància perjudicial. Es disposaran d'acord amb les indicacions del Projecte, subjectes entre elles i amb l'encofrat, de manera que no puguin experimentar moviments durant l'abocada i la compactació del formigó i a fi d'evitar coqueres. En bigues i elements similars, les barres hauran d'anar, al doblegar-se, agafades amb cèrcols o estreps a la zona del colze. Quan hi hagi perill de poder-se confondre unes barres amb altres, es prohibeix la utilització simultània d'acers de característiques mecàniques diferents. Es podran utilitzar, dins d'un mateix element, dos tipus diferents d'acers, un per l'armadura principal i l'altre pels estreps. Els cèrcols o estreps se subjectaran a les barres principals mitjançant lligament o altre procediment adequat, prohibint-se expressament la fixació mitjançant punts de soldadura. S'haurà d'acomplir la Instrucció EH-99 en tot el que fa referència a les armadures (resistència, límit elàstic, etc.) 4.15 Estructures metàl·liques Definició: Es defineix com estructura metàl·lica d'acer, els elements d'aquest material que formen la part sustentable de l'edificació. La forma i dimensions de l'estructura vindrà definida en els plànols corresponents. Els acers a emprar son els laminats en xapes o perfils del tipus A-52 definits en la Norma UNE-36080-73. Tots els productes laminats hauran de tenir una superfície llisa i se subministraran en estat brut de laminatge. El Contractista haurà de demostrar la qualificació del personal que executi aquest tipus d'obra. Les unions, qualsevol que sigui el seu tipus, es realitzaran d'acord amb les indicacions del Projecte, Direcció Facultativa i Normativa vigent. Abans del muntatge de l'estructura es netejaran i pintaran les parts d'aquesta que hauran de restar ocultes. Es col·locaran plaques de suport sobre els massissos de fàbrica de formigó, que s'immobilitzaran una vegada aconseguits els aploms i alineacions definitives. Tots els elements de l'estructura es protegiran contra els fenòmens d'oxidació i corrosió. No s'efectuarà la pintada fins que llur execució hagi estat autoritzada pel Director de l'Obra, després d'haver realitzat la inspecció de les superfícies i unions de l'estructura acabada al taller. No s'imprimiran ni protegiran les superfícies que calgui soldar, mentre no s'hagi executat la unió. S'adoptaran les mesures necessàries per evitar la corrosió dels elements que recolzin directament sobre la fàbrica o que encastin en ella. Mesura i abonament Les estructures o elements estructurals d'acer es mesuraran per quilograms d'acer incloent en el preu tots els elements i operacions d'unió, muntatge, assaigs, protecció, ports Albert Bel Esteller Enginyer Tècnic Industrial en Electricitat 24
  • 202.
    Electrificació Polígon Industrial“Los Campets” Plec de Condicions necessaris per llur completa execució d'acord amb el Projecte i indicacions de la Direcció Facultativa. Totes les operacions de muntatge s'inclouran en el preu, així com la protecció i pintura que siguin necessàries, d'acord amb la Normativa. 4.16 Ram del paleta Les cobertes són els elements constructius que coronen superiorment l'edifici per a protegir-lo de precipitacions i d'altres inclemències atmosfèriques. Tipus - Terrat: són cobertes amb revestiments totalment impermeables i poc pendent. - Teulada: són cobertes amb revestiments contínues o no, que impermeabilitzen degut al gran pendent de llurs superfícies. Construcció En els terrats, un cop formada la caixa per l'ampit dels murs perimetrals i forjat, es procedirà a la col·locació dels elements per formació de pendents, impermeabilització, aïllaments, i enrajolat que s'expressen en els plànols corresponents, impermeabilització, aïllaments, i enrajolat que s'expressen en el plànols corresponents. En l'execució es tindrà cura del traçat de careners, pendents, juntes, minvells, intersecció amb d'altres elements com xemeneies, albellons, etc. Que garanteixin la missió de desguàs i impermeabilització de la coberta. A les teulades es formaran els pendents mitjançant l'execució d'elements d'obra diferents dels propis de cobriment, com són envanets de sosteniment, forjats en pendent, encavallades. i que s'empraran per a sostenir el recobriment de solera i aïllament sobre el que es col·locaran les peces de revestiment exterior, com terres, pissarres, planxes metàl·liques, o de fibrociment, etc. Se seguiran les indicacions de la Direcció d'Obra i Normes vigents pel que fa referència a ancoratges i carregaments de les peces de revestiment. Mesura i abonament Tots els tipus de cobertes es mesuraran en metres quadrats (m2) executats, incloent la totalitat de materials que s'indiquen als plànols, així com els treballs i elements necessaris per la formació de juntes, crestalleres, careners, minvells i pendents necessaris per al seu complert acabament, així com d'altres elements necessaris. Tots els materials i operacions que calguin, compliran estrictament la Normativa vigent. Albellons Són peces de metall o plàstic que tenen per funció la connexió dels baixants d'aigües pluvials amb el plànol superficial de la teulada, de manera que resolgui l'estanqueïtat de la unió entre ambdós elements, no permeti l'obstrucció amb cossos estranys i estigui provist de sifó antimúrid. Albert Bel Esteller Enginyer Tècnic Industrial en Electricitat 25
  • 203.
    Electrificació Polígon Industrial“Los Campets” Plec de Condicions Mesura i abonament Els albellons es mesuraran per unitats col·locades i totalment acabades, incloent en el preu tots els materials, peces i treballs necessaris per la col·locació i perfecta estanqueïtat de manera que l'element compleixi amb la Normativa vigent. Escanalat de desguàs Són elements prefabricats o realitzats "in situ" que tenen per objecte recollir l'aigua que cau dels tremujals d'una teulada, per a dirigir-la cap als baixants corresponents. Són condicions, perquè funcioni correctament, l'estanqueïtat de les juntes i estar col·locats amb el suficient pendent per a desguassar ràpidament. Mesura i abonament Els encanalats es mesuraran en metres lineals, incloent en el preu la part proporcional de peces especials, impermeabilitzacions, ancoratges, juntes, etc., amb treballs, equips i ajuts necessaris per a la posta a l'obra, totalment acabat, de manera que s'acompleixin les Normes vigents al respecte. Arrebossats i Enlluïts Definició: Els arrebossats i enlluïts són revestiments realitzats amb pastes o morters de qualsevol conglomerat, calç o ciment, així com amb morters mixtes. Tots els materials, qualsevol que sigui la seva classe, compliran en quant a qualitat i característiques tècniques, les especificacions de la Normativa vigent o de la Direcció Facultativa. Mesura i abonament Tots els revestiments es mesuraran en metres quadrats (m2) de superfície revestida, descomptant dels forats entre quatre i vuit metres quadrats (4 i 8 m2) la meitat de llur superfície. En el preu d'abonament s'inclouran tots els materials, treballs propis de col·locació i ajuts d'altres oficis, peces especials, coronaments, preparació dels paraments, talls, juntes, neteja, tot els necessaris per executar el revestiment d'acord amb les especificacions de Projecte i de la Direcció d'obra, així com tots els treballs i materials que calguin per la correcte execució de les obres i a fi d'aconseguir el compliment de les Normatives corresponents, malgrat que no s'especifiqui exactament en els plànols. Qualsevol operació o material especial que sigui necessari incorporar al revestiment: a fi de complir amb la Normativa en el tractament de ponts tèrmics, s'entendrà inclòs en els preus del revestiment, així com els ajuts adients per realitzar-lo. 4.17 Paviments, enrajolats Definició: S'anomenen soleres els paviments de formigó en massa, que s'executen sobre el terreny o sub-bases granulars, podent ser d'un gruix variable en funció de l 'ús al qual es destinin i que de tant en tant s'armaran. Albert Bel Esteller Enginyer Tècnic Industrial en Electricitat 26
  • 204.
    Electrificació Polígon Industrial“Los Campets” Plec de Condicions Quan les soleres tinguin una superfície superior a cinquanta metres quadrats (50 m2) es realitzaran juntes de dilatació amb materials elàstics i la disposició que indiqui la Direcció Facultativa. Execució Els paviments enrajolats, com terrisses, ceràmics, enllosats de pedra natural o artificial, etc., es realitzaran sobre base perfectament neta i anivellada, executant-se els talls i distribució de peces que indiqui la Direcció d'Obra. Un cop executats, s'ajuntaran amb abeurada de ciment. Els paviments de terrissa, quan s'hagin acabat, es netejaran i protegiran, a fi d'evitar desperfectes malgrat que a les zones on s'hagin col·locat encara calgui treballar. Els paviments de fusta no han d'arribar fins les parets perimetrals, sinó que cal deixar un espai de cinc a deu mil·límetres (5 a 10 mm.) que s'amagarà en l'entornpeu. Mesura i abonament La mesura dels paviments, de qualsevol tipus, es realitzarà per metres quadrats (m2) totals executats. En la valoració de les soleres s'inclourà el preu de tots els treballs necessaris per deixar-les totalment acabades, d'acord amb les especificacions del Projecte i de la Direcció, sumant-hi en el preu la part proporcional de preparació de la base, anivellació i acabats superficials, armadures, juntes i entornpeus. En els paviments de llosetes de pedra, terrissa, ceràmica, etc., s'inclouran en el preu tots els treballs necessaris de col·locació, poliment, desbastament, abrillantat, rejuntat, neteja, part proporcional d'entornpeu, per ben acabar-ho totalment. En els paviments de fusta s'inclourà la part proporcional de rastells o empostissats, així com els treballs de coltellejat, poliment, envernissat, entornpeus, totalment acabat. En el preu del metre quadrat (m2) de paviment s'inclouran tots els materials i operacions que calguin per complir la Normativa vigent, malgrat que eventualment no es trobi recollida exactament en els plànols del Projecte. En els paviments encolats s'inclourà en el preu la part proporcional de materials d'agafada, així com els treballs i peces necessàries per al bon acabament. 4.18 Pintures i estocats S'agrupen sota aquesta denominació tots aquells treballs de revestiments de superfícies, executats amb materials fluids generalment acolorats i compostos per elements líquids i sòlids, dosificats per tal d'afavorir la conservació i que no es produeixi la disgregació dels materials emprats en la construcció, protegint-los contra els agents atmosfèrics i intempèrie. Les seves funcions fonamentals són de protecció, decoració i funcionals. Els revestiments transparents s'anomenaran vernissos i els opacs pintures. Els tipus de pintures a emprar, en cada tipus d'element d'obra vindrà definit en el projecte, així com els seus colors, acabats i textures. Es presentaran mostres a la Direcció Facultativa abans de procedir ai pintat de qualsevol element. Mesura i abonament La mesura de les partides de pintura serà en metres quadrats (m2) totals executats, diferenciant el tipus de suports que figuren en la mesura i el tipus de pintura. En el preu s'inclourà la repercussió del cost de preparació, neteja, imprimació dels paraments amb Albert Bel Esteller Enginyer Tècnic Industrial en Electricitat 27
  • 205.
    Electrificació Polígon Industrial“Los Campets” Plec de Condicions productes adequats a cada tipus de material i repassos, així com bastimentada i elements necessaris per poder executar el treball. La mesura de la pintura de conduccions serà en metres lineals (ml) inclosa la part proporcional d'ancoratges i suports, totalment acabada. 4.19 Unitats d’obra civil Paviments Abans de procedir a l'estesa de la capa del ferm immediatament superior a la capa de base, es comprovarà amb especial atenció la qualitat dels treballs de refinament i compactació de l'esmentada capa de base i s'executaran els assaigs necessaris. Els percentatges d'humitat del material i de la superfície de base seran els correctes i es comprovaran els pendents transversals. Asfàltics Les mescles asfàltiques en calent seran aprovades per a llur ús per l'encarregat Facultatiu, i llur qualitat, característiques i condicions s'ajustaran a la Instrucció pel control de fabricació i posta en obra de mescles bituminoses, així com a les Instruccions Vigents, sobre ferms flexibles. Acompliran, en tot moment, les especificacions de la Normativa vigent. Es mesuraran i abonaran per Tones (Tn.) calculades a partir dels metres quadrats (m2.) de paviment executat, i amb el gruix definit als plànols del Projecte i la densitat real obtinguda als assaigs. Els preus inclouran l'execució dels recs d'imprimació i adherència, i de tota l'obra de pavimentació, inclòs el transport, fabricació, estesa, compactació i els materials (àrids, lligants, filler i possibles additius). Altres paviment Quant a les especificacions dels materials a emprar, les dosificacions dels mateixos, l'equip necessari per a l'execució de les obres, la forma d'executar-les, així com la mesura i abonament de les unitats referides al tipus de paviment, tals com tractaments superficials, macadams o paviments de formigó, s'estarà, en tot moment, a allò que disposa la Normativa vigent, llevat dels lligants, que es consideren sempre inclosos a la unitat d'obra definida. Albert Bel Esteller Enginyer Tècnic Industrial en Electricitat 28
  • 206.
    Electrificació Polígon Industrial“Los Campets” Plec de Condicions 5 PLEC DE CONDICIONS TÈCNIQUES ELÈCTRIQUES 5.1 Equips elèctrics. L’ofertor serà el responsable del subministrament dels equips i elements elèctrics. La mateixa protecció serà IP54, segons DIN40050, garantitzant una protecció contra dipòsits nocius de pols i esquitxos d’aigua; garantia de protecció contra derivacions. L’objecte de no deixar baixar la temperatura en l’interior dels quadres elèctrics per sota de la condensació, es preveurà calefacció amb termòstat 30ºc amb potencia calorífica aproximada de 300W/m 3 , garantitzant una distribució correcte de el calor en aquells de gran volum. Mínima temperatura 20ºC. Així mateix no es deixarà pujar la temperatura en la zona dels quadres elèctrics i d’instrumentació per sobre dels 35ºC per tant l’ofertor haurà d’estudiar la condició i els mitjans indicats en el projecte, ventilació forçada i termòstat ambiental, per que si no els considera suficient prevegi condicionament d’aire per refrigeració, integrada en els quadres o ambiental per la zona on estan situats. Així doncs tots els armaris incorporaran a més a més com element auxiliar i propi, els accessoris següents: - Ventilació reforçada e independent de l’exterior. - Resistència de calentament. - Refrigeració, en cas de que sigui necessari. - Dispositiu químic-passiu d’absorció de la humitat. - Il·luminació interior. - Seguretat d’intrusisme o vandalisme. - Accessibilitat a tots els seus mòduls i elements. Es tindrà em compte les condicions ambientals d’us. Per això, s’aplicarà la classificació 721-2 de pols, sorra, boira salina, vent, etc. segons norma IEC 721. Per determinar els dispositius de protecció en cada punt de la instal·lació s’haurà de calcular i conèixer: - La intensitat de treball en funció del factor de potència, simultaneïtat, utilització i factors de aplicació previstos e imprevistos. Per això últim es fixarà un factor, i aquest s’expressarà en l’oferta. - La intensitat de curtcircuit. - El poder de tall del dispositiu de protecció, que haurà de ser mes gran que la ICC del punt en el qual està instal·lat. - La coordinació del dispositiu de protecció amb l’aparamenta situada aigües avall. - La selectivitat a considerar en cada cas, amb altres dispositius de protecció situats aigües amunt. Albert Bel Esteller Enginyer Tècnic Industrial en Electricitat 29
  • 207.
    Electrificació Polígon Industrial“Los Campets” Plec de Condicions Es determinarà la secció de fases i la del neutre en funció de protgir-los contra sobrecàrregues, verificant: - La intensitat que pot suportar la instal·lació serà més gran que la intensitat de treball, prèviament calculada. - La caiguda de tensió en el punt més desfavorable de la instal·lació serà inferior a la caiguda de tensió permesa, considerem els casos més desfavorables, com per exemple tenir tots els equips en marxa amb les condicions ambientals extremes. - Les seccions dels cables d’alimentació general i particular tindran en compte consums de les futures ampliacions. Es comprovarà la relació de seguretat (Vc/Vl), Tensió de contacte menor o igual a la tensió límit permesa segons els locals MI-BT021, protecció contra contactes directes e indirectes. La protecció contra sobrecàrregues i curtcircuits es farà, permanentment, amb interruptors automàtics d’alt poder de curtcircuit, amb un poder de tall aproximat de 50kA, i temps de tall inferior a 10mS. Quan es prevegin intensitats de curtcircuit superiors a les de 50kA, es coloraran limitadors de poder de tall majors que 100kA i temps de tall inferior a 5mS. Les corbes de disparo magnètic dels disjuntors, L-V-D, s’adaptaran a les diferents proteccions dels receptors Quan s’utilitzin fusibles com limitadors de corrent, aquests s’adaptaran a les diferents classes de receptors, utilitzant, per això, els més adequat, ja siguin aM,gF ,gL o gT, segons les normes UNE-21-103. Tots els relès auxiliars seran del tipus endollable en base tipus undecal, de tres contactes inversors, equipats amb contactes de potència, (10A per càrrega resistiva, factor de potencia = 1), aprovats per UL: La protecció contra xoc elèctric serà prevista, i es complirà amb les normes UNE 20- 383 i MI-BT021. La determinació de la corrent admissible en les canalitzacions i el seu emplaçament serà, com a mínim, segons l’establert en MIBT004. La corrent de les canalitzacions serà 1.5 vegades la corrent admissible. Les caigudes de tensió màximes autoritzades serà segons MI BT017, essent el màxim, en el punt més desfavorable, del 3% in il·luminació i del 5%en força. Aquesta caiguda de tensió es calcularà considerant alimentats tots els aparells d’utilització susceptibles de funcionar simultàniament, en les condicions atmosfèriques més desfavorables. Els conductors elèctrics utilitzaran els colors distintius segons normes UNE, i seran etiquetats i numerats per facilitar la seva fàcil localització e interpretació en els plànols i en la instal·lació. El sistema d’instal·lació serà segons la instrucció MI BT018 i altres per interiors i receptors, tenint en compte les característiques especials dels locals i tipus d’indústria. L’ofertor haurà de detallar en la seva oferta tots els elements i equips elèctrics oferts, indicant el nom del fabricant. A més de les especificacions requerides i oferides, s’haurà d’incloure en l’oferta: - Memoràndum de càlculs de càrrega, d’il·luminació, de terra, proteccions i altres que ajudin a clarificar la qualitat de les instal·lacions ofertades. - Disseny preliminars i plànols dels sistemes ofertats. Albert Bel Esteller Enginyer Tècnic Industrial en Electricitat 30
  • 208.
    Electrificació Polígon Industrial“Los Campets” Plec de Condicions En els plànols s’utilitzarà simbologia normalitzada S/UNE 20.004 Es tendirà a homogeneïtzar el tipus d’esquema, numeració de borns de sortida i entrada i en general tots els elements i mitjans possibles de forma que faciliti el manteniment de les instal·lacions. 5.2 Quadres elèctrics En els quadres elèctrics s’inclouran polsadors frontals de marxa i paro, amb senyalització del estat de cada aparell (funcionament o aturada). El concursant raonarà el tipus escollit, indicant les següents característiques: - Estructura dels quadres, amb dimensions de materials empleats (perfils, xapes,...), amb les seves seccions o gruixos, protecció antioxidant, pintures, etc.... . - Compartiment en que es divideixen. - Elements que s’allotgen en els quadres (embarrats, aïlladors, ets...), detallant els mateixos. - Interruptors automàtics. - Sortida de cables, relès de protecció, aparells de mesura i elements auxiliars. - Proteccions que, com a mínim, seran: - Mínima tensió, en l’interruptor general automàtic - Sobrecàrrega en cada receptor. - Curtcircuit en cada receptor. - Defecte a terra, en cada receptor superior a 10 CV. En grups de menys potència reagrupats en conjunts de màxim 4 elements. Aquests elements han de ser funcionalment iguals. 5.3 Enllumenat Les lluminàries seran estanques, amb resistència d’arranc ràpid i amb condensador corrector del cosinus fi incorporat. S’efectuarà un estudi complet d’il·luminació tant per interiors i exteriors justificant els lux obtinguts en cada cas. Abans de la recepció provisional aquests lux seran verificats amb un luxòmetre per tota l’àrea il·luminada, la qual tindrà una il·luminació uniforme. Enllumenat interior Proporcionarà un nivell d’il·luminació suficient per desenvolupar l’activitat prevista a cada instal·lació segons l’ordenança general de seguretat e higiene en el treball en una proporció del 50%. A més de la qualitat es determinarà la qualitat de la il·luminació que en línies general compliran amb: Albert Bel Esteller Enginyer Tècnic Industrial en Electricitat 31
  • 209.
    Electrificació Polígon Industrial“Los Campets” Plec de Condicions - Eliminació o disminució de les causes d’enlluernament capaces de provocar una sensació d’incomoditat e inclòs una reducció de la capacitat visual. - Elecció del dispositiu d’il·luminació i el seu emplaçament de tal forma que la direcció de llum, la seva uniformitat, el seu grau de difusió i el tipus que s’adaptin lo millor possible a la feina visual i a la finalitat del local il·luminat. - Adaptar una llum la composició espectral de la qual tingui un bon rendiment en calor. - La reproducció cromàtica serà de qualitat molt bona (depenent de l’activitat a desenvolupar). - La temperatura de color dels punts de llum estarà entre 3000 i 5500 graus Kelvin. - Es calcularà un coeficient de manteniment baix, del ordre de 0,7. - Els coeficients d’utilització i rendiment de la il·luminació es procurarà que siguin el més alt possibles. Enllumenat exterior Les lluminàries exteriors seran del tipus antivandàlic e inastillables. Els suports, braços murals, bàculs i de més elements mecànics seran galvanitzats en calent. Per projectar el tipus de lluminària es tindrà en compte el següent: - - La naturalesa del entorn per utilitzar de un o dos hemisfèric. - - Les característiques geomètriques del àrea a il·luminar. - - El nivell mig d’il·luminació, que mai serà menor a 15 lux. - - L’altura del punt de llum serà l’adequat a els lúmens. - - El factor de conservació serà del ordre de 0,6. - - El rendiment de la instal·lació i de la il·luminació segons el projecte i el fabricant, aura d’arribar al més gran possible. Il·luminació de seguretat Estarà formada per aparells autònoms automàtics que compleixin amb les normes UNE 20-062-72 i 20-392-75 i demés disposicions vigents de seguretat. Seran del tipus fluorescent amb referència. En les instal·lacions electromecàniques amb un grau de protecció mínim de IP54. 5.4 Xarxa de preses a terra En cada instal·lació s’efectuarà una xarxa de terra. El conjunt de línies i reses a terra tindran unes característiques tals, que les masses metàl·liques no podran posar-se a una tensió superior a 24 volts respecte el terra. Totes les carcasses de aparells d’enllumenat, així com endolls, tec..., disposaran de la seva presa de terres, connectada a una xarxa general independent de la dels centres de transformació i d’acord amb el reglament de B.T. Albert Bel Esteller Enginyer Tècnic Industrial en Electricitat 32
  • 210.
    Electrificació Polígon Industrial“Los Campets” Plec de Condicions Les instal·lacions de preses a terra, seguiran les normes establertes en el Reglament Electrotècnic de Baixa Tensió i les seves instruccions complementàries. Els materials que composaran la xarxa de terres estaran formades per plaques, elèctrodes, terminals, caixes de proves amb els seus terminals d’aïllament i mediació, tec... On es previngui falta d’humitat o terreny de poca resistència es colorarà tubs per a humitejar a més de reforçar la xarxa amb dispositius químics. L’estructura d’obra civil serà connectada a terra. Tots els empalmes seran tipus soldadura aluminitèrmica sistema CADWELL o similar. 5.5 Làmpedes de senyalització Totes les làmpades de senyalització seran del tipus Led estandarditzat i normalitzat. Els colors que s’utilitzaran seran els següents: - Verd: indicació de marxa. - Groc: indicació d’avaria lleu. Intermitent alarma lleu. - Vermell: indicació d’avaria greu. Intermitent alarma greu. - Blanc: indicació informativa, de estat, de posició, etc.. Totes les làmpades de senyalització es verificaran a través d’un polsador de prova. Alcanar, 14 d’Agost de 2004 Albert Bel Esteller Enginyer Tècnic Industrial en Electricitat Albert Bel Esteller Enginyer Tècnic Industrial en Electricitat 33
  • 211.
    Electrificació Polígon Industrial“Los Campets” Estudi de Seguretat i Salut Estudi Bàsic de Seguretat i Salut AUTORS: Albert Bel Esteller DIRECTORS: J. J. Tena Tena. DATA: Setembre / 2004. Albert Bel Esteller Enginyer Tècnic Industrial en Electricitat 1
  • 212.
    Electrificació Polígon Industrial“Los Campets” Estudi de Seguretat i Salut Índex de l’Estudi de Seguretat i Salut Índex de l’Estudi de Seguretat i Salut........................................................................2 1 Estudi de Seguretat i Salut Laboral.....................................................................3 1.1 Objectiu ......................................................................................................3 1.2 Abast ..........................................................................................................3 1.3 Anàlisis de Riscos.......................................................................................3 1.4 Riscos Generals ..........................................................................................3 1.5 Riscos Específics ........................................................................................4 1.6 Maquinària y Mitjans Auxiliars ..................................................................7 1.7 Mesures preventives ...................................................................................9 1.7.1 Proteccions Col·lectives ....................................................................10 1.7.2 Proteccions Personals........................................................................16 1.7.3 Revisions Tècniques de Seguretat .....................................................17 1.8 Instal·lacions Elèctriques Provisionals ......................................................17 1.8.1 Riscos Previsibles .............................................................................17 1.8.2 Mesures Preventives .........................................................................17 1.9 Estudi de revisions de manteniment ..........................................................19 Albert Bel Esteller Enginyer Tècnic Industrial en Electricitat 2
  • 213.
    Electrificació Polígon Industrial“Los Campets” Estudi de Seguretat i Salut 1 Estudi de Seguretat i Salut Laboral 1.1 Objectiu El present Estudi Bàsic de Seguretat i Salut Laboral te com a objectiu establir les directrius generals encaminades a disminuir en la mesura del possible, els riscos d’accidents laborals i enfermetats professionals, així com a la minimització de les conseqüències dels accidents que es produeixin. Aquest estudi s’ha elaborat en compliment del Real Decret 1627/97 de 24 d’ Octubre, el qual estableix els criteris de planificació, control i desenvolupament dels mitjans i mesures de Seguretat e Higiene que deuen tenir-se presents en la execució dels Projectes en Construcció. 1.2 Abast Les mesures contemplades en aquest Estudi abasten a tots els treballs a realitzar en el present Projecte, i aplica l’obligació del seu compliment a totes les persones de les diferents organitzacions que intervinguin en l’execució dels mateixos. Tant els riscos previsibles com les mesures preventives a aplicar per als treballs en instal·lacions, elements i maquines elèctriques son analitzats en els apartats següents. 1.3 Anàlisis de Riscos Analitzem a continuació els riscos previsibles inherents a les activitats d’execució previstes, així com les derivades de l’ us de maquinaria, mitjans auxiliars i manipulació de instal·lacions, maquines o ferramentes elèctriques. Amb l’objectiu de no repetir innecessàriament la relació de riscos analitzarem primer els riscos generals, que poden donar-se en qualsevol de les activitats, i després seguirem amb l’anàlisi dels específics de cada activitat. 1.4 Riscos Generals Entenem com a riscos generals aquells que poden afectar a tots els treballadors, independentment de l’activitat concreta que realitzin. Es preveu que puguin donar-se els següents: - Caigudes d’objectes o components sobre persones. - Caiguda de persones a diferent nivell. - Caiguda de persones al mateix nivell. - Projeccions de partícules als ulls. - Conjuntivitis per arc de soldadura o altres. - Ferides en mans o peus per maneig de materials. - Sobre esforços Albert Bel Esteller Enginyer Tècnic Industrial en Electricitat 3
  • 214.
    Electrificació Polígon Industrial“Los Campets” Estudi de Seguretat i Salut - Cops i talls per maneig de ferramentes. - Cops contra objectes. - Atrapaments entre objectes. - Cremades per contactes tèrmics. - Exposició a descarregues elèctriques. - Incendis i explosions. - Atrapament per volc de maquines, vehicles o equips. - Atropellaments o cops de vehicles en moviment. - Lesions per manipulació de productes químics - Lesions o enfermetats per factors atmosfèrics que comprometen la seguretat o salut. - Inhalació de productes tòxics. 1.5 Riscos Específics Ens referim aquí als riscos propis d’activitats concretes que afecten només al personal que realitza treballs en aquestes. Aquest personal estarà exposat als riscos generals indicats en el punt 1.4., més els específics de la seva activitat. Per això analitzem a continuació les activitats mes significatives. Excavacions A mes dels generals poden ser inherents a les excavacions els següents riscos: - Despreniment o esllavissada de terres. - Atropellaments i/o cops per maquines o vehicles. - Col·lisions i volcs de maquinaria. - Riscos a tercers aliens al propi treball. En voladures - Projeccions de pedres. - Explosions incontrolades per corrents erràtiques o manipulació incorrecta. - Barrenes fallides. - Elevat nivell de soroll. - Riscos a terceres persones. Albert Bel Esteller Enginyer Tècnic Industrial en Electricitat 4
  • 215.
    Electrificació Polígon Industrial“Los Campets” Estudi de Seguretat i Salut - Moviment de terres En els treballs derivats del moviment de terres per excavacions o rellenos es preveu els següents riscos: - Carrega de materials de les pales o caixes dels vehicles. - Caiguda de persones des dels vehicles. - Volcs de vehicles per diverses causes (males condicions del terreny, excés de càrrega, durant les descàrregues, etc.) - Atropellaments i col·lisions. - Projecció de partícules. - Pols ambiental. Treballs amb ferralla Els riscos més comuns relatius a la manipulació i muntatge de ferralla son: - Talls i ferides en el maneig de les barres o filferro. - Atrapaments en les operacions de carrega i descarrega de paquets de barres o en la col·locació de les mateixes. - Torçadures de peus, i caigudes al mateix nivell al caminar sobre les armadures. - Trencaments eventuals de barres durant el doblat. Treballs d’encofrat i desencofrat En aquesta activitat podem destacar els següents: - Despreniment de taulers. - Punxades amb objectes punxents. - Caiguda de materials (taulers, taulons, puntals, etc.) - Caiguda d’elements de l’encofrat durant les operacions de desencofrat. - Talls i ferides en mans per maneig de ferramentes (serres, raspalls,...) i materials. Treballs amb formigó L’exposició i manipulació del formigó implica els següents riscos: - Salpicades de formigó als ulls. - Enfonsament, ruptura o caiguda d’encofrats. - Torçadures de peus, punxades, i caigudes al mateix i diferent nivell, al moure’s sobre les estructures. - Dermatitis en la pell. - Aplanament o atrapament per fallo en les entibacions. Albert Bel Esteller Enginyer Tècnic Industrial en Electricitat 5
  • 216.
    Electrificació Polígon Industrial“Los Campets” Estudi de Seguretat i Salut - Lesions musculars pel maneig de vibradors. - Electrocutació per ambients humits Manipulació de materials Els riscos propis d’aquesta activitat estan inclosos en la descripció de riscos generals. Transport de materials y equips dins de l’ obra En aquesta activitat, a més dels riscos enumerats en el punt 3.1., són previsibles els següents: - Despreniment o caiguda de la càrrega, o part de la mateixa, per ser excessiva o estar mal subjectada. - Cops contra parets sortints de la càrrega. - Atropellaments de persones. - Volcs. - Xocs contra altres vehicles o màquines . - Xocs o enganxaments de la càrrega amb objectes, instal·lacions o estesa de cables. Prefabricació i muntatge d’ estructures, tancaments y equips Dels específics d’aquest apartat cal destacar: - Caiguda de materials per la mala execució de la maniobra de hissat i acoblament dels mateixos o fallo mecànic de equips. - Caiguda de persones des de altura per diverses causes. - Atrapament de mans o peus en el maneig dels materials o equips. - Caiguda d’objectes o ferramentes soltes. - Explosions o incendis per l’ús de gasos o per projeccions incandescents. Maniobres de hissat, situació en obra y muntatge d’ equips y materials Com a riscos específics d’aquestes maniobres podem citar els següents: - Caiguda de materials, equips o components d’aquests per fallo dels mitjans d’elevació o error en la maniobra. - Caiguda de petits objectes o materials solts (cantoneres, ferramentes, etc.) sobre persones. - Caiguda de persones des d’altura en operacions de muntatge i desmuntatge de les peces. - Atrapaments de mans i peus. - Empresonament/aplanament de persones per moviments incontrolats de la càrrega. Albert Bel Esteller Enginyer Tècnic Industrial en Electricitat 6
  • 217.
    Electrificació Polígon Industrial“Los Campets” Estudi de Seguretat i Salut - Cops de equips, en el seu hissat i transport, contra altres instal·lacions (estructures, línies elèctriques, etc.) - Caiguda o volc dels mitjans d’elevació. Muntatge d’ instal·lacions. Sòls i acabats Els riscos inherents a aquestes activitats podem considerar-los inclosos dins dels generals, al no executar-se a grans altures ni presentar aspectes relativament perillosos. 1.6 Maquinària y Mitjans Auxiliars Analitzem en aquest apartat els riscos que a més dels generals, poden presentar-se en l’ús de maquinària i els mitjans auxiliars. La maquinària i els mitjans auxiliars més significatius que es preveu utilitzar per a l’execució dels treballs objecte dels present Estudi, són els que es relacionen a continuació. - Equip de soldadura elèctrica - Equip de soldadura oxiacetilenica-oxicorte. - Màquina elèctrica de roscar. - Camió de transport. - Grua mòbil. - Camió grua. - Cabrestant de hissat. - Cabrestant d’estesa de cable subterrani. - Pistoles de fixació. - Taladradores de mà. - Talla tubs. - Corvadores de tubs. - Radials. - Màquina d’excavació amb martell hidràulic. - Màquina retroexcavadora mixta. - Formigoneres autopropulsades. - Camió volquet. - Màquina anivelladora. - Miniretroexcavadora. - Compactadora. - Compressor. - Martell trencador i picador, etc. Entre els mitjans auxiliars, cal mencionar els següents: Albert Bel Esteller Enginyer Tècnic Industrial en Electricitat 7
  • 218.
    Electrificació Polígon Industrial“Los Campets” Estudi de Seguretat i Salut - Bastides sobre borriquetas. - Bastides metàl·lics modulars. - Escales de mà. - Escales d’ estisores. - Quadres elèctrics auxiliars. - Instal·lacions elèctriques provisionals. - Ferramentes de mà. - Bancs de treball. - Equips de mesura. - Comprovador de seqüència de fases. - Mesurador d’aïllament - Mesurador de terres. - Pinces amperimètriques. - Termòmetres. Diferenciem aquests riscos classificant-los en els següents grups: Maquines fixes i ferramentes elèctriques Els riscos més significatius són: - Les característiques de treballs en elements amb tensió elèctrica en els que poden produir-se accidents per contactes, tan directes com indirectes. - Caigudes de personal al mateix o diferent nivell per desordre de mangueres. - Lesions per ús inadequat, o males condicions de màquines giratòries o de tall. - Projeccions de partícules. Mitjans d’elevació Considerem com a riscos específics d’aquests mitjans, els següents: - Caiguda de la càrrega per deficient maniobra. - Trencament de cable, ganxo o qualsevol altre mitjà auxiliar d’elevació. - Cops o aplanaments per moviments incontrolats de la càrrega. - Excés de càrrega amb el conseqüent trencament, o volc, del mitjà corresponent. - Fallo d’elements mecànics o elèctrics. - Caiguda de persones a diferent nivell durant les operacions de moviment de càrregues. Albert Bel Esteller Enginyer Tècnic Industrial en Electricitat 8
  • 219.
    Electrificació Polígon Industrial“Los Campets” Estudi de Seguretat i Salut Bastides, plataformes i escales Són previsibles els següents riscos: - Caigudes de persones a diferent nivell. - Caiguda de la bastida per volc. - Volc o esllavissada d’escales. - Caiguda de materials o ferramentes des de la bastida. - Els derivats del sofriment d’enfermetats, no detectades (epilèpsia, vèrtic,...) Equips de soldadura elèctrica i oxiacetilénica Els riscos previsibles propis de l’ús d’aquests equips són els següents: - Incendis. - Cremades. - Els derivats de la inhalació de vapors metàl·lics. - Explosió d’ampolles de gasos. - Projeccions incandescents, o de cossos estranys. - Contacte amb l’energia elèctrica. 1.7 Mesures preventives Per a disminuir en la mesura de lo possible els riscos previstos en l’apartat anterior, s’ha d’actuar sobre els factors que, per separat o en conjunt, determinen les causes que produeixen els accidents. Ens estem referint al factor humà i al factor tècnic. L’actuació sobre el factor humà, basada fonamentalment en la formació, mentalització e informació de tot el personal que participi en els treballs del present Estudi, així com en aspectes ergonómics i condicions ambientals, serà analitzada amb major deteniment en altres punts d’estudi. Pel que fa a la actuació sobre el factor tècnic, s’actuarà bàsicament en els següents aspectes: - Proteccions col·lectives. - Proteccions personals. Controls i revisions tècniques de seguretat. En base als riscos previsibles enunciats en el punt anterior, analitzem a continuació les mesures previstes en cadascun d’aquests camps. Albert Bel Esteller Enginyer Tècnic Industrial en Electricitat 9
  • 220.
    Electrificació Polígon Industrial“Los Campets” Estudi de Seguretat i Salut 1.7.1 Proteccions Col·lectives Sempre que sigui possible es donarà prioritat a l’ús de proteccions col·lectives, ja que la seva efectivitat és molt superior a la de les proteccions personals. Sense excloure l’ús d’aquestes últimes, les proteccions col·lectives previstes, en funció dels riscos enunciats, són les següents: Riscos Generals Ens referim aquí a les mesures de seguretat a adoptar per a la protecció de riscos que considerem comuns a totes les activitats. Són les següents: - Senyalitzacions d’accés a obra i ús d’elements de protecció personal. - Acotament i senyalització de zona on existeixi risc de caiguda d’objectes des d’altura. - Es muntaran baranes resistents en els buits pels que poguessin produir-se caigudes de persones. - A cada tros de treball es disposarà de almenys un extintor portàtil de pols polivalent. - Si algun lloc de treball generés risc de projeccions ( de partícules, o per arc de soldadura) a tercers, es col·locaran mampares opaques de material ignífug. - Si es realitzessin treballs amb projeccions incandescents amb proximitat de materials combustibles, es retiraran aquests o es protegiran amb lona ignífuga. - Es mantindran ordenats els materials, cables i mangueres per a evitar el risc de cops o caigudes al mateix nivell per aquesta causa. - Les restes de materials generades pel treball es retiraran periòdicament per a mantenir netes les zones de treball. - Els productes tòxics i perillosos es manipularan segons l’establert en les condicions d’ús específiques de cada producte. - Respectar la senyalització i limitacions de velocitat fixades per a la circulació de vehicles i maquinària en l’interior de l’obra. - Aplicar les mesures preventives contra riscos elèctrics que desenvoluparem més endavant. - Tot els vehicles portaran els indicadors òptics i acústics que exigeixi la legislació vigent. - Protegir als treballadors contra les inclemències atmosfèriques que puguin comprometre la seva seguretat i salut. Riscos Específics - Les proteccions col·lectives previstes per la prevenció d’aquests riscos són les següents: Albert Bel Esteller Enginyer Tècnic Industrial en Electricitat 10
  • 221.
    Electrificació Polígon Industrial“Los Campets” Estudi de Seguretat i Salut En excavacions - S’entibaran o taludaran totes les excavacions verticals de profunditats superior a 1,5 m - Se senyalitzaran les excavacions, com a mínim a 1 m de la seva vora. - No s’acopiaran terres ni materials a menys de 2 m de la vora de l’excavació. - Les excavacions de profunditat superior a 2 m, i en les proximitats de les quals hagin de circular persones, es protegiran amb baranes resistents de 90 cm d’ altura, les quals se situaran sempre que sigui possible, a 2 m de la vora de l’excavació. - Els accessos a les rases o trinxeres es realitzaran mitjançant escales sòlides que sobrepassen en 1 m la vora d’aquestes. - Les màquines excavadores i camions només seran manejats per personal capacitat, amb el corresponent permís de conduir el qual serà responsable, així mateix, de l’adequada conservació de la seva màquina. En voladures Les voladures seran realitzades per una empresa especialitzada que elaborarà el corresponent pla de voladures. En la seva execució, a més de complir la legislació vigent sobre explosius (R.D. 2114/787 B.O.E. 07.09.78), es tindran en compte com a mínim les següents mesures de seguretat: - Acordonar la zona de “càrrega" y "pega" a la que, baix cap concepte, deuen accedir persones alienes a les mateixes. - Anunciar, amb un toc de sirena 15 minuts abans, la proximitat de la voladura, amb dos tocs la immediates de la detonació i amb tres el final de la voladura, permetent-se el restabliment de l’activitat en la zona. - En el perímetre de la zona acordonada es col·locaran senyals de “prohibit el pas – Voladures”. - Abans de la “pega”, una persona recorrerà la zona comprovant que no queda ningú, i es posaran vigilants en llocs estratègics d’accés a la zona per a impedir l’entrada de persones o vehicles. - El responsable de la voladura i els artillers comprovaran, quan s’hagin dissipat els gasos, que la “pega” ha sigut completa i comprovarà que no quedin terrenys inestables, sanejant aquests si fos necessari abans d’iniciar els treballs. En moviment de terres - No es carregaran els camions per damunt de la càrrega admissible ni sobrepassant el nivell superior de la caixa. - Es prohibeix el trasllat de persones fora de la cabina dels vehicles. - Se situaran topes per a limitar la proximitat a vores d’excavacions o desnivells en zones de descàrrega. Albert Bel Esteller Enginyer Tècnic Industrial en Electricitat 11
  • 222.
    Electrificació Polígon Industrial“Los Campets” Estudi de Seguretat i Salut - Es limitarà la velocitat de vehicles en el camí d’accés i en els vials interiors de l’obra a 20 Km/h. - En cas necessari i a criteri del Tècnic de Seguretat es procedirà al regat de les pistes per a evitar la formació de núvols de pols. En treballs en altura És evident que el treball en altura es presenta dins de moltes de les activitats que es realitzen en la execució d’aquest Projecte i, com a tal, les mesures preventives relatives a aquests seran tractades conjuntament amb la resta de les que afecten a cadascun. En canvi, donada l’elevada gravetat de les conseqüències que generalment es deriven de les caigudes d’altura, es considera oportú i convenient remarcar, en aquest apartat concret, les mesures de prevenció bàsiques i fonamentals que deuen aplicar-se per a eliminar, en la mesura del possible, els riscos inherents als treballs en altura. Destacarem, entre d’altres, les següents mesures: Per a evitar la caiguda d’objectes: - Coordinar els treballs de forma que no es realitzen treballs superposats. - Davant la necessitat de treballs en la mateixa vertical, posar les oportunes proteccions (xarxes, marquesines,...). - Acotar i senyalitzar les zones amb risc de caiguda d’objectes. - Senyalitzar i controlar la zona on es realitzin maniobres amb càrregues suspeses, fins que aquestes es trobin totalment recolzades. - Emprar cordes per al guiat de càrregues suspeses, que seran manejades des de fora de la zona d’influència de la càrrega, i accedir a aquesta zona només quan la càrrega estigui pràcticament arriada. Per a evitar la caiguda de persones: - Es muntaran baranes resistents en tot el perímetre o vores de plataformes, forjats, etc. pels quals es poguessin produir caigudes de persones. - Es protegiran amb baranes o tapes de suficient resistència els buits existents en forjats, així com en paraments verticals si aquests són accessibles o estan a menys de 1,5 m del terra. - Les baranes que es treguin o buits que es destapin per a la introducció d’equips,..., es mantindran perfectament controlats i senyalitzats durant la maniobra, tornant a posar les corresponents proteccions només finalitzar aquestes. - Les bastides que s’utilitzin (modulars o tubulars) compliran els requisits i condicions mínimes definides en la O.G. S . H .T., destacant entre altres: - Superfície de recolzament horitzontal i resistent. - Si són mòbils , les rodes estaran bloquejades i no es traslladaran amb persones sobre les mateixes. Albert Bel Esteller Enginyer Tècnic Industrial en Electricitat 12
  • 223.
    Electrificació Polígon Industrial“Los Campets” Estudi de Seguretat i Salut - Arriostrar-los a partir de certa altura. - A partir de 2m d’altura es protegirà tot el seu perímetre amb rodapeus i “quitamiedos” col·locats a 45 i 90 cm de la superfície, la qual tindrà com a mínim una amplada de 60 cm. - No sobrecarregar les plataformes de treball i mantenir-les netes i lliures d’obstacles. - En altura ( més de 2m. ) és obligat utilitzar cinturó de seguretat, sempre que no existeixin proteccions (baranes) que impedeixin la caiguda, el qual estarà anclat a elements fixos, mòbils, definitius o provisionals, de suficient resistència. - S’instal·laran cordes o cables fiables per a la subjecció de cinturons de seguretat en aquells en que no sigui possible muntar baranes de protecció, o bé sigui necessari el desplaçament dels operaris sobre estructures o cobertes. En aquest cas s’utilitzaran cinturons de caiguda, amb arnés previstos d’absorció d’energia. - Les escales de mà compliran, com a mínim les següents condicions: - No tindran trencats escalons. Disposaran de tacs antidesllissants. - Les superfícies de recolzament inferior i superior seran planes i resistents. - Fixació o amarre pel seu cap en casos especials i usar el cinturó de seguretat anclat a un element aliè a aquesta. - Col·locar-la amb la inclinació adequada. - Amb les escales de tisora, posar-li tope o cadena per a que no s’obrin, no usar-les plegades i no posar-se a cavall en elles. En treballs amb ferralla - Els paquets de rodons s’acopiaran en posició horitzontal, separant les capes amb trossos de fusta i evitant altures de piles superiors a 1,5 m. - No es permetrà trepar per les armadures. - Es col·locaran taulers per a circular per les armadures de ferralla. - No s’utilitzaran elements o mitjans auxiliars (escales, ganxos,...) fets amb trossos de ferralla soldada. - Diàriament es netejarà la zona de treball, recollint i retirant els retalls i filferros sobrants de l’armat. En treballs d’encofrat i desencofrat - L’ascens i descens als encofrats es farà amb escales de mà reglamentàries. - No romandran operaris en la zona de influència de les càrregues durant les operacions de hissat i trasllat de taulers, puntals,... - Es trauran tots els claus o puntes existents en la fusta utilitzada. - El desencofrat es realitzarà sempre des del costat en que no puguin despendre’s els taulers i arrastrar a l’operari. Albert Bel Esteller Enginyer Tècnic Industrial en Electricitat 13
  • 224.
    Electrificació Polígon Industrial“Los Campets” Estudi de Seguretat i Salut - S’acotarà, mitjançant cinta de senyalització, la zona en la que puguin caure elements procedents de les operacions d’encofrat o desencofrat. En treballs de formigó: Abocaments mitjançant canaleta: - Instal·lar topes de final de recorregut dels camions formigonera per a evitar volcs. - No situar-se a cap operari darrere dels camions formigonera en les maniobres de retrocés. Abocament mitjançant cub con grua: - Senyalitzar amb pintura el nivell màxim de capacitat del cub per a no sobrepassar la càrrega admissible de la grua. - No romandre cap operari baix la zona de influencia del cub durant les operacions d’hissat i transport d’aquest amb la grua. - L’obertura del cub per a abocament, es farà exclusivament accionant la palanca prevista per a això. Per a realitzar tal operació s’utilitzaran, obligatòriament, guants, ulleres i, quan existeixi risc de caiguda, cinturó de seguretat. - El guiat del cub fins a la seva posició d’abocament es farà sempre a través de cordes guia. Per a la manipulació de materials - Informar als treballadors sobre els riscos més característics d’aquesta activitat, accidents més habituals i forma de prevenir-los fent especialment insistència sobre els següents aspectes: - Maneig manual de materials. - Emmagatzematge de materials, segons les seves característiques. - Maneig de materials tòxic/perillosos. Per al transport de materials y equips dins de l’obra - Es compliran les normes de tràfic i límits de velocitat establerts per a circular pels vials de l’obra, les quals estaran senyalitzades i difoses als conductors. - Es prohibirà que les plataformes i/o camions transportin una càrrega superior a la identificada com a màxima admissible. - La càrrega es transportarà amarrada amb cables d’acer o cordes de suficient resistència. - Se senyalitzaran amb banderoles o llums vermelles les parts sortints de la càrrega i de produir-se aquestos sortints, no excediran de 1.5 m. Albert Bel Esteller Enginyer Tècnic Industrial en Electricitat 14
  • 225.
    Electrificació Polígon Industrial“Los Campets” Estudi de Seguretat i Salut - En les maniobres amb risc de volc del vehicle, es col·locaran topes. - Quan es tingui que circular o realitzar maniobres en proximitat de línies elèctriques, s’instal·laran topes que evitin aproximar-se a la zona d’influència de les línies. - No es permetrà el transport de persones fora de la cabina dels vehicles. - No es transportaran, en cap cas, càrregues suspeses per la ploma amb grues mòbils. - Es revisarà periòdicament l’estat dels vehicles de transport i mitjans auxiliars corresponents. Per a la prefabricació, hissat i muntatge d’estructures, tancaments i equips - Se senyalitzaran i acotaran les zones en que hi hagi risc de caiguda de materials per manipulació, elevació i transport dels mateixos. - No es permetrà l’accés de qualsevol persona a la zona senyalitzada i acotada en la que es realitzin maniobres amb càrregues suspeses. - El guiat de càrregues/equips per a la seva ubicació definitiva, es farà sempre mitjançant cordes guia manejades des de llocs fora de la zona de influencia de la seva possible caiguda, i no s’accedirà a dita zona fins el moment just d’efectuar el seu acoblament o posicionament. - Es taparan o protegiran amb baranes resistents o, segons els casos, se senyalitzaran adequadament els buits que es generen en el procés de muntatge. - S’encaixaran a nivell de sòl, en la mesura que ho permeti la zona de muntatge i la capacitat de les grues, els mòduls d’estructures amb l’objectiu de reduir en lo possible el número d’hores de treball en altura i els seus riscos. - Els llocs de treball de soldadura estaran suficientment separats o s’aïllaran amb pantalles divisòries. - La zona de treball, sigui a taller o de camp, es mantindrà sempre neta i ordenada. - Els equips/estructures permaneixeran arriostrades, durant tota la fase de muntatges fins que no s’efectuï la subjecció definitiva, per a garantitzar la seva estabilitat en les pitjors condicions previsibles. - Les bastides que s’utilitzin compliran els requisits i condicions mínimes definides en la O.G.S.H.T. - S’instal·laran cordes o cables fiables per a la subjecció dels cinturons de seguretat en aquells casos en que no sigui possible muntar plataformes de treball amb baranes, o sigui necessari el desplaçament d’operaris sobre l’estructura. En aquests casos s’utilitzaran cinturons de caiguda, amb arnés previstos de absorció d’energia. Albert Bel Esteller Enginyer Tècnic Industrial en Electricitat 15
  • 226.
    Electrificació Polígon Industrial“Los Campets” Estudi de Seguretat i Salut De qualsevol forma, donat que aquestes operacions i maniobres estan molt condicionades per l’estat real de l’obra en el moment d’executar-les, en el cas de detectar- se una complexitat especial s’elaborarà un estudi de seguretat específic. Per a maniobres d’hissat i ubicació en obra de materials y equips Les mesures de prevenció a aplicar en relació amb els riscos inherents a aquest tipus de treballs estan contemplades i definides en el punt anterior, destacant especialment les corresponents a: - Senyalitzar i acotar les zones de treball amb càrregues suspeses. - No permanèixer cap persona en la zona d’influència de la càrrega. - Fer el guiat de les càrregues mitjançant cordes. - Entrar en la zona de risc en el moment d’acoblament. En instal·lacions de distribució d’energia - S’hauran de verificar i mantenir amb regularitat les instal·lacions de distribució d’energia presents en l’obra, en particular les que estan sotmeses a factors externs. - Les instal·lacions existents abans del començament de l’obra hauran d’estar localitzades, verificades i senyalitzades clarament. - Quan existeixin línies d’estesa elèctrica aeris que puguin afectar a la seguretat en l’obra serà necessari desviar-les fora del recinte de l’obra o deixar-les sense tensió. Si això no fos possible, es col·locaran barreres o avisos per a que els vehicles i les instal·lacions es mantinguin allunyats d’aquest. En cas de que vehicles de l’obra tinguessin que circular baix l’estesa s’utilitzarà una senyalització d’advertència i una protecció de delimitació d’altura. 1.7.2 Proteccions Personals Com a complement de les proteccions col·lectives serà obligatori l’ús de les proteccions personals. Els càrrecs intermitjos i el personal de seguretat vigilaran i controlaran la correcta utilització d’aquestes peces de protecció. Per a no estendre’ns massa, i donat que la majoria dels riscos que obliguen a l’ús de les proteccions personals són comuns a les activitats a realitzar, relacionarem les peces de protecció previstes per al conjunt dels treballs. Es preveu l’ús, en major o menor grau, de les següents proteccions personals: - Casc. - Pantalla facial transparent. - Pantalla de soldador amb visera abatible i vidre inactínic. - Mascaretes facials segons necessitats. Albert Bel Esteller Enginyer Tècnic Industrial en Electricitat 16
  • 227.
    Electrificació Polígon Industrial“Los Campets” Estudi de Seguretat i Salut - Mascaretes d’un sol ús de paper. - Guants de diferents tipus (muntador, soldador, aïllant, goma,...) - Cinturó de seguretat. - Absorbidors d’energia. - Jaqueta, peto i polaines de cuir. - Ulleres de diferents tipus (contra impactes,...) - Calçat de seguretat, adequat a cada un dels treballs. - Proteccions auditives (casc o taps) Roba de treball. Totes les proteccions personal compliran la Normativa (CE) relativa a Equips de Protecció Industrial (EPI). 1.7.3 Revisions Tècniques de Seguretat La seva finalitat es comprovar la correcta aplicació del Pla de Seguretat. Per això, el contractista vetllarà per l’execució correcta de les mesures preventives fixades en aquest Pla. Podran realitzar-se visites d’inspecció per tècnics assessors especialistes en seguretat, l’assessorament dels quals pot ser de gran valor. 1.8 Instal·lacions Elèctriques Provisionals Per al subministrament d’energia a les màquines i ferramentes elèctriques pròpies dels treballs objecte del present Estudi, els contractistes instal·laran quadres de distribució amb presa de corrent en les instal·lacions de la propietat o alimentats mitjançant grups electrògens. L’escomesa elèctrica general alimentarà una sèrie de quadres de distribució dels diferents contractistes, els quals es col·locaran estratègicament per al subministrament de corrent a les seves corresponents instal·lacions, equips i ferramentes pròpies dels treballs. 1.8.1 Riscos Previsibles Els riscos implícits a aquestes instal·lacions són els característics dels treballs i manipulació d’elements (quadres, conductors,... i ferramentes elèctriques) que poden produir accidents per contactes tant directes com indirectes. 1.8.2 Mesures Preventives Les principals mesures preventives a aplicar en instal·lacions, elements i equips elèctrics seran els següents: Quadres de distribució Seran estancs, permaneixeran totes les parts sota tensió inaccessibles al personal i estaran dotats de les següents proteccions: Albert Bel Esteller Enginyer Tècnic Industrial en Electricitat 17
  • 228.
    Electrificació Polígon Industrial“Los Campets” Estudi de Seguretat i Salut - Interruptor general. - Proteccions contra sobrecàrregues i curtcircuits. - Diferencial de 300 mA. - Presa de terra de resistència màxima 20 ohms. - Diferencial de 30 mA per a les preses monofàsiques que alimenten ferramentes o útils portàtils. - Tindran senyalitzacions de perill elèctric. - Només podrà manipular amb ells l’electricista. - Els conductors aïllats utilitzats tant per a escomeses com per a instal·lacions, seran de 1000 volts de tensió nominal com a mínim. Prolongadors, clavilles, connexions y cables - Els prolongadors, clavilles i connexions seran de tipus intempèrie amb tapes de seguretat en preses de corrent femelles i de característiques tals que asseguren l’aïllament, fins i tot en el moments de connectar i desconnectar. - Els cables elèctrics seran del tipus intempèrie sense presentar fissures i de suficient resistència a esforços mecànics. - Els empalmes y aïllaments en cables es realitzarà amb manguitos i cintes aïllants vulcanitzades. - Les zones de pas es protegiran contra danys mecànics. Ferramentes i útils elèctrics portàtils - Les làmpades elèctriques portàtils tindran la maneta aïllant i un dispositiu protector de la làmpada de suficient resistència. En estructures metàl·liques y d’altres zones d’alta conductivitat elèctrica s’utilitzaran transformadors para tensions de 24 V. - Totes les ferramentes, làmpades y útils seran de doble aïllament. - Totes las ferramentes, làmpades y útils elèctrics portàtils, estaran protegides por diferencials d’alta sensibilitat (30 mA). Màquines i equips elèctrics A més d’estar protegits por diferencials de mitja sensibilitat (300 mA), aniran connectats a una presa de terra de 20Ω de resistència màxima i portaran incorporat a la manguera d’alimentació el cable de terra connectat al quadre de distribució. Normes de caràcter general - Sota cap concepte es deixaran elements de tensió, com puntes de cables terminals, etc., sense aïllar. - Les operacions que afectin a la instal·lació elèctrica, seran realitzades únicament per l’electricista. Albert Bel Esteller Enginyer Tècnic Industrial en Electricitat 18
  • 229.
    Electrificació Polígon Industrial“Los Campets” Estudi de Seguretat i Salut - Quan es realitzin operacions en cables quadres i instal·lacions elèctriques, es realitzaran sense tensió. 1.9 Estudi de revisions de manteniment Es realitzarà un adequat manteniment i revisions periòdiques de les distintes instal·lacions, equips i ferramentes elèctriques, per analitzar i adoptar les mesures necessàries en funció dels resultats d’esmentades revisions. Alcanar, a 28 d’Agost de 2004 Albert Bel Esteller Enginyer Tècnic Industrial en Electricitat Albert Bel Esteller Enginyer Tècnic Industrial en Electricitat 19