Exemplars from CSEC 2019 Examinations
Technical Drawing
SECTION 1 – WORKING DRAWING
Do NOT spend more than 2 hours on this section.
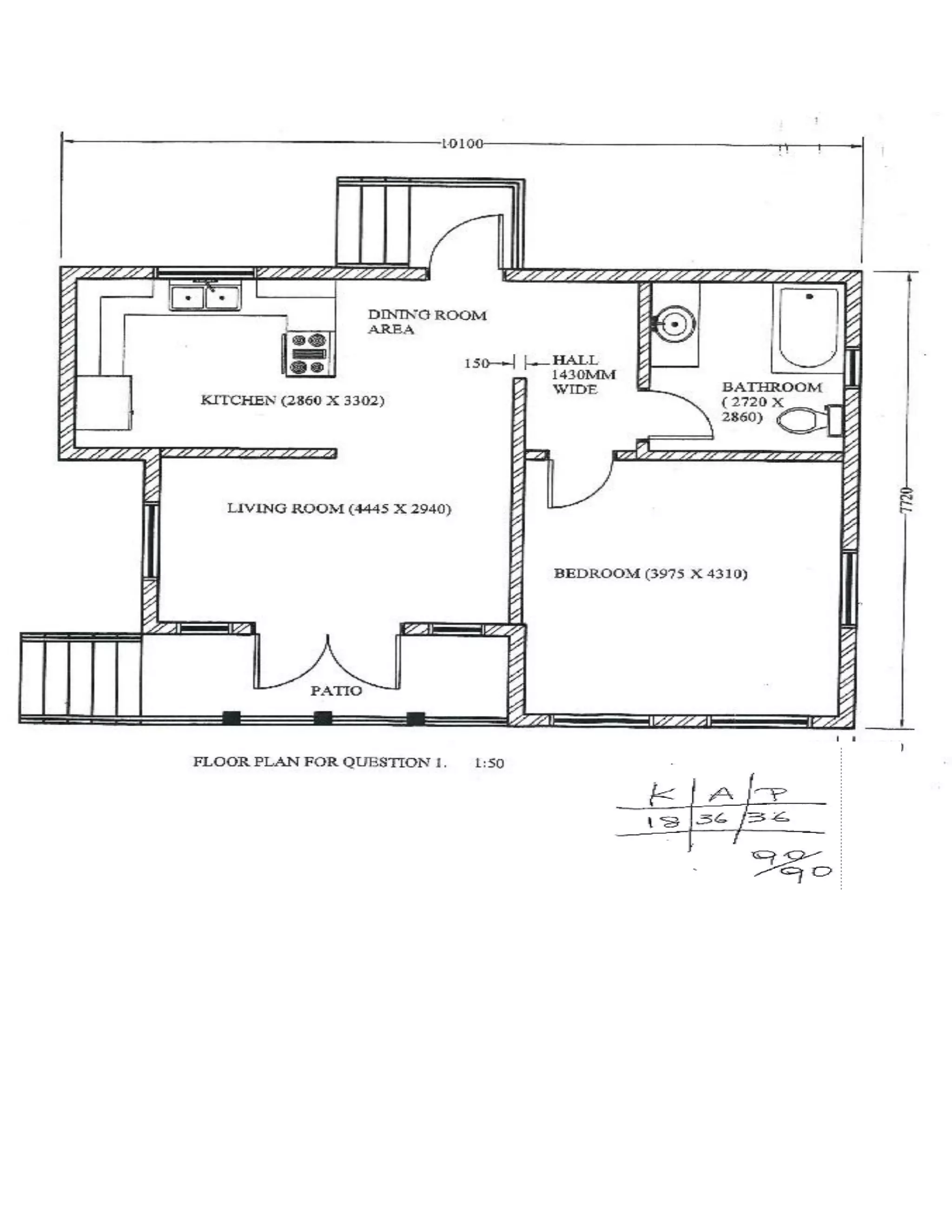
1. Figure 1, on the enclosed sheet, shows an outline of a single line drawing of the floor plan for a
single storey house.
(a) Draw to a scale of 1:50 the given floor plan, using appropriate building conventions, and
the specifications below. The drawing is to include the following:
(i) The kitchen countertop, upper cabinets, stove, sink and refrigerator
(ii) The bathroom with face basin in a counter, toilet and shower
(iii) External and internal wall sizes
(iv) Windows
(v) Doors with door swings
(vi) Stairs with handrail
Comments on CSEC® Technical Drawing, Question 1
Plan
Strengths
 Rooms, patio, stairs, windows and doors drawn to correct scale
 Correct room names and room sizes
 Correctly shows different sizes for internal wall and external walls
 Correct number of doors and windows indicated in correct location
 Correctly indicates the five kitchen elements
 Correctly indicates the three bathroom elements
 Location of shower shown in bathroom corresponds to question with good placement and clearances of toilet
and counter
Weaknesses
 Upper cabinets not drawn to conventional standards
 Missing bedroom closet as per question
Comments on CSEC® Technical Drawing, Question 1
Strengths
 Rooms, patio, stairs, windows and doors drawn to correct scale
 Correct room names and room sizes
 Correctly shows different sizes for internal wall and external walls
 Correct number of doors and windows indicated in correct location
 Correctly indicates the five kitchen elements
 Correctly indicates the three bathroom elements
 Conventional wall hatch correctly shown
Weaknesses
 Upper Cabinets not drawn to conventional standards
 Missing bedroom closet as per question
 Patio columns not correctly aligned
Exemplars from CSEC 2019 Examinations
Technical Drawing
SECTION II – SKETCH AND DESIGN
Do NOT spend more than 30 minutes on this section.
2. Figure 2, on the enclosed sheet, shows the plan of a straight flight staircase.
(a) Make a neat, proportional pictorial sketch of the staircase to include a handrail on ONE side.
(b) Label the following components of the staircase:
(i) A riser
(ii) A tread
(iii) A nosing
(iv) A handrail
(v) Two landings
(30 marks)
Comments on CSEC® Technical Drawing, Question 2
Strengths
 Correctly represents a pictorial sketch in an isometric view
 Number of steps corresponds to the number of steps on the question
 Handrail correctly located one side
 Both landings correctly indicated
 Landing, riser, nosing, treads and handrail correctly labelled
Comments on CSEC® Technical Drawing, Question 2
Strengths
 Correctly represents a pictorial sketch in an oblique view
 Handrail correctly located one side
 Landing, riser, nosing, treads and handrail correctly labelled
Weaknesses
 Incorrect number of steps
 Handrail does not continue at top and bottom landing as per question
Exemplars from CSEC 2019 Examinations
Technical Drawing
P02/B Q1. The candidates were given parts for a Bearing Housing to assemble to produce a
Front Elevation and a Sectional End Elevation (Full Section) along a specific
Cutting Plane.
Comments on CSEC® Technical Drawing P02/B Q1
 The parts were assembled well (correct) and showed proper alignment for orthographic
projection method used to include the pin positional in the correct direction.
 The outside and hidden details of the features were well represented on the Front Elevation
of the assembly.
 The candidate showed the sectional view of the assembled parts along the cutting plane as
indicated in the question.
 Line weights were appropriately applied for outline, hidden detail, centre line, dimensions
and hatching lines.
 Six dimensions were included to show the requested: radius; metric thread, diameter and
an overall dimension.
 The title scale and projection method were indicated in the required format.
 The web was properly represented in section
How this work could be improved:
 Hatching lines must vary in direction and width to represent different parts.
 The cutting plane should be placed on the view representing outside features in this case
the front elevation to show where the section was taken
 All parts featured in the Sectional view (along where the cutting plane passed) must be
hatched.
 The Bolt head will not be visible in the Section View.
The candidates were given parts for a Bearing Housing to assemble to produce a Front Elevation
and a Sectional End Elevation (Full Section) along a specific cutting plane.
Comments on CSEC® Technical Drawing P02/B Q1
 The Sectional End Elevation was also an accurate representation as required by the given cutting plane.
 The cutting plane was shown on the Front Elevation to indicate where the section was taken.
 The requested six dimensions were shown to include the: metric thread, radius, diameter and overall
dimension.
 The web was properly represented in section.
 The Title, scale and projection method was stated in the requested format.
Weaknesses:
 Line weights for dimension lines/extension lines were not appropriate.
 The line to show the cut hole in the bearing cap in section was missing.

Technical Drawing Exemplars

  • 1.
    Exemplars from CSEC2019 Examinations Technical Drawing SECTION 1 – WORKING DRAWING Do NOT spend more than 2 hours on this section. 1. Figure 1, on the enclosed sheet, shows an outline of a single line drawing of the floor plan for a single storey house. (a) Draw to a scale of 1:50 the given floor plan, using appropriate building conventions, and the specifications below. The drawing is to include the following: (i) The kitchen countertop, upper cabinets, stove, sink and refrigerator (ii) The bathroom with face basin in a counter, toilet and shower (iii) External and internal wall sizes (iv) Windows (v) Doors with door swings (vi) Stairs with handrail
  • 3.
    Comments on CSEC®Technical Drawing, Question 1 Plan Strengths  Rooms, patio, stairs, windows and doors drawn to correct scale  Correct room names and room sizes  Correctly shows different sizes for internal wall and external walls  Correct number of doors and windows indicated in correct location  Correctly indicates the five kitchen elements  Correctly indicates the three bathroom elements  Location of shower shown in bathroom corresponds to question with good placement and clearances of toilet and counter Weaknesses  Upper cabinets not drawn to conventional standards  Missing bedroom closet as per question
  • 4.
    Comments on CSEC®Technical Drawing, Question 1 Strengths  Rooms, patio, stairs, windows and doors drawn to correct scale  Correct room names and room sizes  Correctly shows different sizes for internal wall and external walls  Correct number of doors and windows indicated in correct location  Correctly indicates the five kitchen elements  Correctly indicates the three bathroom elements  Conventional wall hatch correctly shown Weaknesses  Upper Cabinets not drawn to conventional standards  Missing bedroom closet as per question  Patio columns not correctly aligned
  • 5.
    Exemplars from CSEC2019 Examinations Technical Drawing SECTION II – SKETCH AND DESIGN Do NOT spend more than 30 minutes on this section. 2. Figure 2, on the enclosed sheet, shows the plan of a straight flight staircase. (a) Make a neat, proportional pictorial sketch of the staircase to include a handrail on ONE side. (b) Label the following components of the staircase: (i) A riser (ii) A tread (iii) A nosing (iv) A handrail (v) Two landings (30 marks)
  • 6.
    Comments on CSEC®Technical Drawing, Question 2 Strengths  Correctly represents a pictorial sketch in an isometric view  Number of steps corresponds to the number of steps on the question  Handrail correctly located one side  Both landings correctly indicated  Landing, riser, nosing, treads and handrail correctly labelled
  • 7.
    Comments on CSEC®Technical Drawing, Question 2 Strengths  Correctly represents a pictorial sketch in an oblique view  Handrail correctly located one side  Landing, riser, nosing, treads and handrail correctly labelled Weaknesses  Incorrect number of steps  Handrail does not continue at top and bottom landing as per question
  • 8.
    Exemplars from CSEC2019 Examinations Technical Drawing P02/B Q1. The candidates were given parts for a Bearing Housing to assemble to produce a Front Elevation and a Sectional End Elevation (Full Section) along a specific Cutting Plane. Comments on CSEC® Technical Drawing P02/B Q1  The parts were assembled well (correct) and showed proper alignment for orthographic projection method used to include the pin positional in the correct direction.  The outside and hidden details of the features were well represented on the Front Elevation of the assembly.
  • 9.
     The candidateshowed the sectional view of the assembled parts along the cutting plane as indicated in the question.  Line weights were appropriately applied for outline, hidden detail, centre line, dimensions and hatching lines.  Six dimensions were included to show the requested: radius; metric thread, diameter and an overall dimension.  The title scale and projection method were indicated in the required format.  The web was properly represented in section How this work could be improved:  Hatching lines must vary in direction and width to represent different parts.  The cutting plane should be placed on the view representing outside features in this case the front elevation to show where the section was taken  All parts featured in the Sectional view (along where the cutting plane passed) must be hatched.  The Bolt head will not be visible in the Section View.
  • 10.
    The candidates weregiven parts for a Bearing Housing to assemble to produce a Front Elevation and a Sectional End Elevation (Full Section) along a specific cutting plane. Comments on CSEC® Technical Drawing P02/B Q1  The Sectional End Elevation was also an accurate representation as required by the given cutting plane.  The cutting plane was shown on the Front Elevation to indicate where the section was taken.  The requested six dimensions were shown to include the: metric thread, radius, diameter and overall dimension.  The web was properly represented in section.  The Title, scale and projection method was stated in the requested format. Weaknesses:  Line weights for dimension lines/extension lines were not appropriate.  The line to show the cut hole in the bearing cap in section was missing.